Ter verduidelijking ik heb even 3 schetsjes gemaakt op de computer
Vloerplan 2.0:
:strip_exif()/f/image/x6KQECDNZzTZAoiNc9enOGto.jpg?f=fotoalbum_large)
(Apart toilet, ''krappe inloopkast'' )
Vloerplan 3.0 (voor verbouwing):
:strip_exif()/f/image/pi4ObW70RlPSDnqoDTE8Vrgj.jpg?f=fotoalbum_large)
(Toilet in badkamer, ruimere inloopkast)
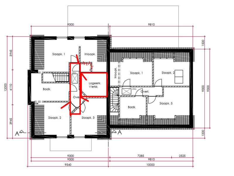
Vloerplan 3.0 (na verbouwing)
:strip_exif()/f/image/1mIoBp4bD4AyevQS5JcK51YT.jpg?f=fotoalbum_large)
(Toilet in badkamer, geen inloopkast 3e kinderslaapkamer)
Let op dat je met deze opstelling geen direct toegang tot die kamer kan creeren (als je de wc laat zitten).
Is inderdaad het geval bij vloerplan 2,
Ik heb nog nooit ruimte teveel gehad

maar alles is een afweging natuurlijk
Ach wat is teveel, mijn ervaring is dat meer ruimte leid tot meer zooi, zeker als we het over opslag ruimte hebben. Verder geeft een zadeldak in de vide de gelegenheid tot het plaatsen van mooie eiken gebinten.
Ik heb dezelfde trap als in je eerste tekening. Ik zie daar zelf geen veiliger/onveiliger iets in.
Onveilig is een groot woord, stel je zou de kwartslag bovenaan hebben zit er meer ruimte tot de deur er recht tegenover. Maar wellicht verwar ik hier het zinnige met het onzinnige.
als je het 'open' afsluit en dat 'zichtbaar' houd (dus niet te veel naar rechts) zal het echt bijdragen aan het ruimtelijke gevoel van de ruimte. Ik kan me lastig inbeelden hoe je haard naar rechts kan doen en tegelijk de doorgang naar link. Ik zie ook nog steeds een 'uitdaging' voor de rookgas afvoer. nu hoeft die natuurlijk niet kaarsrecht naar boven maar ik zat er stiekem aan te denken om hem in "de" koof van de badkamer mee naar het dak te brengen. Dat wordt natuurlijk lastiger als tie naar rechts gaat.
Verre van af maar hier een schetsje met wat ik bedoel. Om eerlijk te zijn heb ik nog totaal niet stil gestaan met de pijp boven
:strip_exif()/f/image/VQ5JJu198EdarwhpIukEoEap.jpg?f=fotoalbum_large)
HEEL persoonlijk: is voor mij geen argument. Dan wordt de grote boodschap maar alleen beneden gedaan. Ik zou daar niet bereid voor zijn om de ruimte voor op te geven.
Valt wat voor te zeggen. Ik heb het in 3.0 meegenomen.
Ik mis een 'wastafel' op de bovenverdieping met deze opstelling. Waar ga je tandenpoetsen, scheren, de vrouw zich opmaken?
Qua badkamer indeling heeft de vrouw nogal wat wensen, zo wil ze graag een dubbele douche, (half)vrijstaand ligbad, en dubbele douche. Waar het toilet zit maakt haar niet uit, zolang als we er maar meer als 1 inhuis hebben en die ene niet in de keuken zit.... mag jij raden waarom ik voorzichtig ben met ''aroma's''..
mee eens maar je moet goed afwegen of dat gevoel opweegt tegen het opgeven van badkamer ruimte.
In 2.0 a 3.0 is de badkamer naar mijn inziens groter en praktischer in te delen als het vloerplan van de tekenaar.
Nu ben ik daar geen expert in maar dat is toch gewoon een stalen rekje voor je kozijn? wat voor lichtvoordeel ga je daar uit halen? Of ga je het nog extra toevoegen, als extra tov de reeds bestaande kozijnen?
Dat een deur glas tot op de grond kan hebben. Het idee is overigens om de ramen naar buiten te schuiven, het raam t.h.v. slaapkamer 1 breder te maken en een deel in deurvorm uit te voeren. Of dit mooi is of uberhaubt kan geen flauw idee maar daarover gaan we volgende week in gesprek.
Let wel goed op je indeling van de kamer: veel kozijnen/ramen gaat je beperken en hoe je wat waar kan zetten. Dressoirs oid kunnen ineens vervelend worden etc.
Pro tip: ik knip altijd de meubels op schaal uit en leg ze op de tekening. Je kan hierdoor eenvoudig een gevoel van de grootte krijgen en super eenvoudig schuiven,passen en meten.
Staat inderdaad nog op de planning, maar aangezien hier nog maar weinig definitief aan is zagen we daar (nog) niet het nut van in.
Ik heb wel aangenomen dat je in deze ruimte ook nog een wasmachine, droger en vriezer kwijt wil.
Droger en wasmachine ja, buiten de kleine vriezer in de keuken zal er in de garage een kistvriezer komen te staan voor de bulkvoorraad.
- ik ben gewend dat de deuren voor de (slaap)kamers de kamer IN openen. Voelt erg onnatuurlijk zoals nu getekend
Er zitten inderdaad veel schoonheidsfoutjes in qua draairichtingen is een van de puntjes die we komende week gaan benoemen.
- ik vind het weinig glas voor slaapkamers 2 en 3. Wellicht niet zozeer de m2 maar de locatie als dit het enige kozijn blijft.
Eens, slaapkamer 2 zou indien nodig nog een dakraam kunnen krijgen. slaapkamer 3 in geval van nood een solartube.
- als je de inloop kast nog als kamer wil gaan gebruiken kun het kozijn beter iets naar rechts schuiven. Dan heb je altijd nog de mogelijkheid om het muurtje door te trekken en de doorgang naar de slaapkamer dicht te zetten.
- als je de deur naar slaapkamer 1 verplaats naar het muurtje naast de trap kan je scheidingsmuur slaapkamer/inloopkast naar links verplaatsen en de inloopkast wat vergroten. je geeft uiteraard slaapkamer m2-s op maar is misschien de afweging waard.
Zie 3.0 na verbouwing.
Ik hecht persoonlijk niet zo veel waarde aan een grote slaapkamer. Een bed + voldoende loopruimte is genoeg. hangt natuurlijk ook erg van de indeling van de kamer af. Als je hier bv een dressoir voor je vrouw voorzien had (met 3 makup spiegels, verlichting, een ringspiegel, en 3 ladeblokken voor alle benodigdheden

) dan is dat wezenlijk anders.
Eens, de enige keer dat ik langer op een slaapkamer ben dan de gebruikelijke nachtrust en horizontale salsa momenten is wanneer ik ziek ben. qua kastruimte hebben we nu 2 malm ladeblokken en ieders een hanggedeelte van een meter. Ook hier geld meer ruimte is meer zooi, met name schoenen

Meegenomen in 3.0 na verbouwing. Kans is klein dat er een derde komt. Als het ons gegund is vind ik een (kleine) verbouwing niet erg. In tegenstelling tot het tegen een 3e lege kinderkamer aan kijken. Vandaar het wisselgeld idee.