Road-runner83 schreef op woensdag 20 november 2019 @ 22:29:
[...]
Mooi ontwerp en fijn dat de architect een ontwerp heeft kunnen maken waar beiden wensen op aansluiten. Als je een 2-onder-1-kap bouwt moet je er toch samen uitkomen met de buren

.
Wat ik nog zou veranderen:
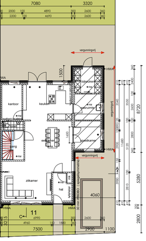
- Beneden zou ik geen rolluiken plaatsen maar screens
Vergeten te vermelden idd. Buiten de aangegeven rolluiken, hebben alle ramen aan zij- en achtergevel screens idd. (Of daar is toch iig een offerte voor aangevraagd, nog even afwachten of het binnen budget gaat vallen.)
- Inloopkast zou ik toegankelijk maken vanuit de slaapkamer
Was expliciete keuze om dat niet te doen, op de kamers zelf is genoeg ruimte voor een kleerkast, dit gaat meer dekenopslag worden e.d.
Ben benieuwd op welke m3 prijzen je uit gaat komen, hopelijk niet op 500+ per m3.
Hoe groot zijn de kavels? En is de plattegrond van de buren redelijk gespiegeld?
Gezien de huidige offertes komen we voor bijna-sleutel-op-deur™ (exclusief: grond, architect/notaris/hypotheekkosten, leges, stucwerk, vloeren (wel cementdekvloer natuurlijk), schilderwerk, keuken en badkamer) uit op ongeveer EUR 420/m3. Wat ons alleszins meevalt!
Kavels zijn ~330m2 per stuk. 11m breed en een 29m lang.
Plattegrond van de buren is behoorlijk anders, maar heb aan hen geen toestemming gevraagd, dus vandaar eraf geknipt

.
Die hebben we in het begin van onze zoektocht ook eens bekeken

. Kwam toentertijd nog redelijk overeen met wat we voor ogen hadden. Wat iteraties verder zijn we wat verder afgeweken

.
Geheel andere vraag. Voor de binnenmuren hebben we de keuze uit Poriso Stuc, BIA ECO blokken, Porotherm PM25 of kalkzandsteen? Wat zouden jullie kiezen en waarom?