Regio Utrecht 1850Wp@79° 3700Wp@259°
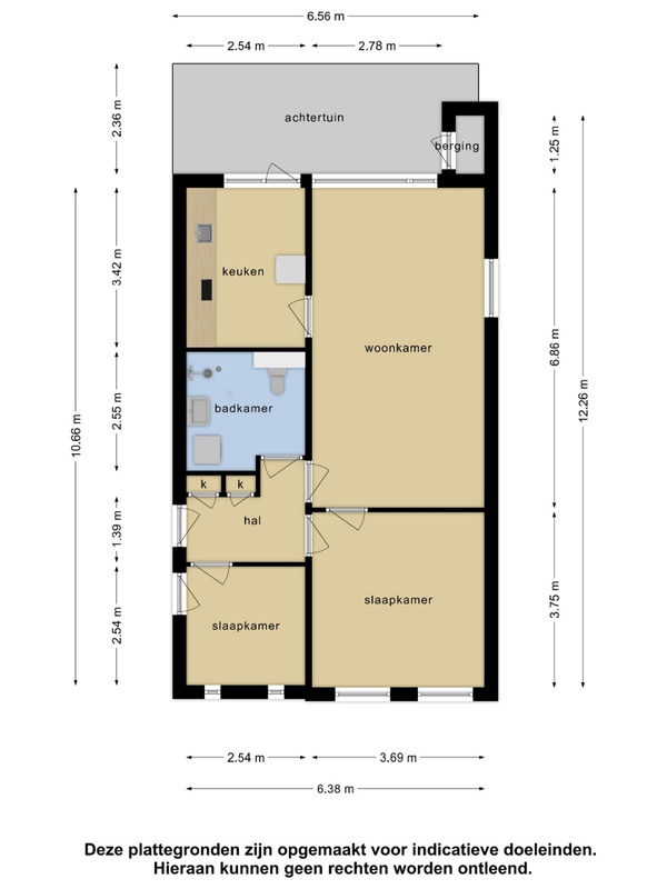
Wel knap, een woonkamer, slaapkamer, keuken en badkamer in 15m2Hertog_Martin schreef op donderdag 10 oktober 2024 @ 10:50:
Ja zo kunnen we idd nog wel even als ze de betaalbaarheid willen vergroten door de woningen gewoon kleiner te maken. Zo kan je ook een betaalbare woning betrekken aan de prinsengracht.
Zo verkopen ze dit appartement met 1 slaapkamer, maar als ik in de slaapkamer kijk zie ik nergens een raam

Ik dacht altijd dat een verblijfsruimte daglicht moet hebben (maar ik ben te lui om dit helemaal door te lezen
https://rijksoverheid.bou...tikelsgewijs/hfd3/afd3-11)
Ik kan het niet onderbouwen, maar heb de indruk dat dit soort zaken een reactie zijn op het huidige tekort en verkopers er mee wegkomen en kopers het (moeten) accepteren.
Dit is precies wat er gaande is:Hertog_Martin schreef op donderdag 10 oktober 2024 @ 10:50:
Ja zo kunnen we idd nog wel even als ze de betaalbaarheid willen vergroten door de woningen gewoon kleiner te maken. Zo kan je ook een betaalbare woning betrekken aan de prinsengracht.
https://nos.nl/artikel/25...omer-veel-huizen-verkocht
Dat vind ik persoonlijk een forse daling in oppervlakte in slechts 5 jaar tijd. Wel natuurlijk de kanttekening dat vrijstaand en 2-kappers van €800k-€1000k (en daarboven) een stuk onaantrekkelijker zijn geworden met de gestegen rente, dus dan is het logisch dat het gemiddelde oppervlakte van nieuwbouw daalt. Dat staat los van de overheid die 'betaalbare woningen' wil creëren.Nieuwe huizen zijn een stuk kleiner dan in het verleden, constateert de makelaarsvereniging. Nieuwbouwwoningen zijn nu gemiddeld 107 vierkante meter groot, vijf jaar geleden was dit nog 132 vierkante meter. "Een reden hiervoor is de politieke focus op betaalbare nieuwbouw. In de afgelopen jaren is de bouw van betaalbare woningen onder de 390.000 euro toegenomen."
Je krijgt er wel een Miele wijnkoeler bij lijkt het?rube schreef op donderdag 10 oktober 2024 @ 13:09:
[...]
Wel knap, een woonkamer, slaapkamer, keuken en badkamer in 15m2. En dan ook nog 221 euro per maand aan VvE kosten. Tja, te duur maar voor iemand die gewoon een "eigen hotelkamer" wilt hebben en voor wie geld geen probleem is....de verkoper kan het altijd proberen.
Laat maar, ik had ook de tekst kunnen lezen.Bij binnenkomst treft u de hoogwaardige pantrykeuken voorzien van 'Onyx' marmeren werkblad en achterwand voorzien van een 'Onyx' marmeren spoelbak, een twee-pits inductie kookplaat en een Miele wijnkoeler.
[ Voor 23% gewijzigd door Paprika op 10-10-2024 13:32 ]
Dit lijkt mij een prima prijs, ik vind het oprecht ook een leuk hotelkamertje. Je gaat hier niet permanent wonen natuurlijk, maar is handig voor het betere "work hard play hardHertog_Martin schreef op donderdag 10 oktober 2024 @ 10:50:
Ja zo kunnen we idd nog wel even als ze de betaalbaarheid willen vergroten door de woningen gewoon kleiner te maken. Zo kan je ook een betaalbare woning betrekken aan de prinsengracht.

Genoeg latente vraag, veel mensen met overwaarde die ruimer willen wonen.geekeep schreef op donderdag 10 oktober 2024 @ 13:30:
Wel natuurlijk de kanttekening dat vrijstaand en 2-kappers van €800k-€1000k (en daarboven) een stuk onaantrekkelijker zijn geworden met de gestegen rente, dus dan is het logisch dat het gemiddelde oppervlakte van nieuwbouw daalt.
Projecten met relatief betaalbare tweekappers zijn sneller verkocht dan dure appartementen.
Het is imo vooral prijs/kwaliteitverhouding: nieuwbouw tweekappers van 5,4m x 11m en een geschakelde garage hebben amper meer bruikbare binnenruimte dan een 25 jaar oude tussenwoning. Die extra hypotheeklast van 500k iets om goed over na te denken.
Regio Utrecht 1850Wp@79° 3700Wp@259°
Laat dat nou precies volgens de ab-so-lute minimumeisen zijn om iets volgens het bouwbesluit een "woning" te mogen noemen. Die keuken zit er niet om te gebruiken, die zit er om fiscale redenen...rube schreef op donderdag 10 oktober 2024 @ 13:09:
[...]
Wel knap, een woonkamer, slaapkamer, keuken en badkamer in 15m2.
Dat is inderdaad de doelgroep. Buitenlanders die bijvoorbeeld door de Brexit naar Amsterdam overgeplaatst zijn, en elk weekend gewoon naar hun "echte" huis in het VK vliegen. Dan is het wel makkelijk als je een "eigen hotelkamer" hebt, waar je gewoon je pakken in de kast kunt laten hangen.En dan ook nog 221 euro per maand aan VvE kosten. Tja, te duur maar voor iemand die gewoon een "eigen hotelkamer" wilt hebben en voor wie geld geen probleem is....de verkoper kan het altijd proberen.
WEES BLIJ !!! Hier had uw advertentie kunnen staan...
https://www.rijnmond.nl/n...t-afkopen-holy-shit-4-ton
Eigenlijk staat er te veel in wat mijn insziens te interessant is om over te slaan, dus ik zou het vooral zelf even lezen, maar samengevat:
- Bezwaar bij nieuwbouw
- Persoon die bezwaar indient is zelf ambtenaar op het ministerie van Volkshuisvesting
- Projectontwikkelaar schade loopt in de miljoenen door stilstand
- Kopers hun renteaanbod gaat verlopen en inmiddels begint de rente op te lopen en is de (relatief aan 1-1.5%) oplopende rente, die we nu weer gewoon achten, in aantocht
- Projectontwikkelaar koopt haar uit (3 ton)
- Projectkopers weten hier niets van en kopen haar eveneens gezamenlijk uit (1 ton)
Wat is "veel mensen met overwaarde die ruimer willen wonen"?hoevenpe schreef op donderdag 10 oktober 2024 @ 13:49:
[...]
Genoeg latente vraag, veel mensen met overwaarde die ruimer willen wonen.
Projecten met relatief betaalbare tweekappers zijn sneller verkocht dan dure appartementen.
Het is imo vooral prijs/kwaliteitverhouding: nieuwbouw tweekappers van 5,4m x 11m en een geschakelde garage hebben amper meer bruikbare binnenruimte dan een 25 jaar oude tussenwoning. Die extra hypotheeklast van 500k iets om goed over na te denken.
Volgens mij zijn daar geen cijfers van, is het gros afgelopen jaren al verhuisd én is het voor de resterende groep nogal wiedes dat men met overwaarde ruimer wil wonen (wie niet?), maar dan wel tegen geringe meerprijs uiteraard

Overigens zeg je met die laatste alinea precies hetzelfde als ik. Vraag naar (dure) tweekappers is gedaald en/of het gemiddelde woonoppervlakte is gedaald.
[ Voor 5% gewijzigd door geekeep op 10-10-2024 15:18 ]
De vraag is er nog steeds, alleen zijn er weinig projecten (meer) waar echt ruime tweekappers in de prijsklasse 800k-1.1M gerealiseerd worden. Weet zeker dat zo'n plan op een gewilde locatie zo weg is.geekeep schreef op donderdag 10 oktober 2024 @ 15:16:
Overigens zeg je met die laatste alinea precies hetzelfde als ik. Vraag naar (dure) tweekappers is gedaald en/of het gemiddelde woonoppervlakte is gedaald.
Regio Utrecht 1850Wp@79° 3700Wp@259°
Als je wel genoeg inschrijfduur had, zou je dan ook echt kans maken? Hier in de regio hebben de meeste eengezinswoningen volgens mij de eis dat je er met minimaal 2 of 3 mensen gaat wonen.JDx schreef op donderdag 10 oktober 2024 @ 10:31:
Exact 3 jaar ingeschreven bij thuiskompas (Drenthe en deel Groningen volgens mij).
Nu niet van toepassing, maar passend aanbod is een hoekwoning van 650/maand
Reageer je nu? Dan kom je voorlopig op plek 197 van 502 in de ranglijst.
Of zelfs maar een tussenwoning van 8 jaar oudhoevenpe schreef op donderdag 10 oktober 2024 @ 13:49:
[...]
Genoeg latente vraag, veel mensen met overwaarde die ruimer willen wonen.
Projecten met relatief betaalbare tweekappers zijn sneller verkocht dan dure appartementen.
Het is imo vooral prijs/kwaliteitverhouding: nieuwbouw tweekappers van 5,4m x 11m en een geschakelde garage hebben amper meer bruikbare binnenruimte dan een 25 jaar oude tussenwoning. Die extra hypotheeklast van 500k iets om goed over na te denken.
Had het in dit topic al eerder genoemd, maar wij hebben 3 jaar terug geboden op een tweekapper, en de enige winst was de grotere tuin en een kleine oprit. De binnenruimte was gelijk aan onze tussenwoning (of ik dacht zelfs 2m2 kleiner). Daar was ons bod dan ook op gebaseerd.
Dan moet er echt wel een tweekapper voorbij komen die zowel binnen als buiten (significant) groter is / meerwaarde biedt, wil ik mijn 30% LTV opgeven
Sommige hebben dat ja, maar ik heb bij de voorkeuren al 1 persoon staan, dus krijg alleen passend aanbod.Eärendil schreef op donderdag 10 oktober 2024 @ 15:41:
[...]
Als je wel genoeg inschrijfduur had, zou je dan ook echt kans maken? Hier in de regio hebben de meeste eengezinswoningen volgens mij de eis dat je er met minimaal 2 of 3 mensen gaat wonen.
Ben momenteel alleen ingeschreven omdat ik het leuk vind om te volgen, maar je weet maar nooit.
Dingen als Games & Music enzo | En 3D/AI/PS hier | CivitAI Models en Prompts
Oprit is m.i. wel erg prettig en met een (PH)EV is het helemaal fijn om thuis te kunnen laden.Denman schreef op donderdag 10 oktober 2024 @ 15:58:
[...]
Of zelfs maar een tussenwoning van 8 jaar oud
Had het in dit topic al eerder genoemd, maar wij hebben 3 jaar terug geboden op een tweekapper, en de enige winst was de grotere tuin en een kleine oprit. De binnenruimte was gelijk aan onze tussenwoning (of ik dacht zelfs 2m2 kleiner). Daar was ons bod dan ook op gebaseerd.
Dan moet er echt wel een tweekapper voorbij komen die zowel binnen als buiten (significant) groter is / meerwaarde biedt, wil ik mijn 30% LTV opgeven
Vanaf een bepaalde grootte is woonoppervlakte minder belangrijk dan oprit, garage, tuin etc.
Verder betaal je ook een beetje voor het type woning an sich 2 kapper vs tussenwoning, is voor sommige ook een dingetje (wat bij vrijstaand vs 2 kapper volgens mij minder speelt).
Ik vind trouwens ITV (obv inkomen) net zo relevant als LTV , een hoge LTV is prima zolang de ITV laag is (betaalbaarheid) .
[ Voor 7% gewijzigd door Sport_Life op 10-10-2024 16:37 ]
PV: 9360 WP WZW/ONO | Warmtepomp: Toshiba Estia 8kW 3fase | A+++ | Zappi v2.1
Ze kunnen net zo mooi zijn, maar een tweekapper heeft wat meer status ofzo inderdaad.Sport_Life schreef op donderdag 10 oktober 2024 @ 16:32:
[...]
Oprit is m.i. wel erg prettig en met een (PH)EV is het helemaal fijn om thuis te kunnen laden.
Vanaf een bepaalde grootte is woonoppervlakte minder belangrijk dan oprit, garage, tuin etc.
Verder betaal je ook een beetje voor het type woning an sich 2 kapper vs tussenwoning, is voor sommige ook een dingetje (wat bij vrijstaand vs 2 kapper volgens mij minder speelt).
Sowieso een hoekwoning heeft puur voor jezelf hetzelfde als wat een tweekapper heeft, behalve dan de vaak aangebouwde garage en de straten waarin tweekappers staan zijn gemiddeld gezien wat anders opgezet.
[ Voor 15% gewijzigd door JDx op 10-10-2024 16:38 ]
Dingen als Games & Music enzo | En 3D/AI/PS hier | CivitAI Models en Prompts
Dit werd met veel tamtam aangekondigd.
Zie je wel dat je betaalbaar kunt bouwen voor de middenhuur.
Ik zet er de nodige vraagtekens bij.
Deze verhuureenheden zijn een onderdeel van een project met veel koopeenheden.
Zonder twijfel een verplichting voor het verkrijgen van de nodige vergunningen.
Zie hier waar het ABP erover schrijft. Prijzen incl. servicekosten?
https://www.abp.nl/nieuws...-betaalbare-huur-woningen
Mee eens, maar als ik op vloeroppervlakte niet groei en dan ook nog eens een opritje heb waar “maar” 1 auto op kan (niet denigrerend bedoeld want nu heb ik niksSport_Life schreef op donderdag 10 oktober 2024 @ 16:32:
[...]
Oprit is m.i. wel erg prettig en met een (PH)EV is het helemaal fijn om thuis te kunnen laden.
Vanaf een bepaalde grootte is woonoppervlakte minder belangrijk dan oprit, garage, tuin etc.
Verder betaal je ook een beetje voor het type woning an sich 2 kapper vs tussenwoning, is voor sommige ook een dingetje (wat bij vrijstaand vs 2 kapper volgens mij minder speelt).
Ik vind trouwens ITV (obv inkomen) net zo relevant als LTV , een hoge LTV is prima zolang de ITV laag is (betaalbaarheid) .
(PH)EV is idd super handig laden bij een tweekapper, maar die heb ik niet en gezien de ontwikkelingen laat ik die ook nog even aan me voorbij gaan. De 5 jaar oude hybride die ik heb overgenomen van m’n vorige werkgever doet het nog prima en ik fiets naar m’n werk.
Dat alles tezamen maakte het voor ons niet waard om een hoger bod uit te brengen dan we toen hebben gedaan. Ik hoef niet ten koste van alles in een tweekapper te wonen. Bovendien zitten we prima (midden in het land, 2 minuten lopen naar school, 15 minuten fietsen naar werk). Tijd is ook wat waard
Combi van lage LTV en lage ITV is nog beter trouwens
Je kunt blijven cirkelredeneren maar onder de streep zeg je nog steeds dat ruime tweekappers te duur zijn en dus nu niet meer interessant.hoevenpe schreef op donderdag 10 oktober 2024 @ 15:38:
[...]
De vraag is er nog steeds, alleen zijn er weinig projecten (meer) waar echt ruime tweekappers in de prijsklasse 800k-1.1M gerealiseerd worden. Weet zeker dat zo'n plan op een gewilde locatie zo weg is.
Nieuwbouwwoningen zijn afgelopen jaren simpelweg kleiner én duurder geworden.
/f/image/adH1ZordOolQNRejZsnr2oBz.png?f=fotoalbum_large)
Voor mij zijn extra ramen een grote meerwaarde voor hoekwoningen/ 2 onder 1 kap. De woonkamer wordt er veel lichter van en je hebt de hele dag zon in huis.Sport_Life schreef op donderdag 10 oktober 2024 @ 16:32:
[...]
Oprit is m.i. wel erg prettig en met een (PH)EV is het helemaal fijn om thuis te kunnen laden.
Vanaf een bepaalde grootte is woonoppervlakte minder belangrijk dan oprit, garage, tuin etc.
Verder betaal je ook een beetje voor het type woning an sich 2 kapper vs tussenwoning, is voor sommige ook een dingetje (wat bij vrijstaand vs 2 kapper volgens mij minder speelt).
Ik vind trouwens ITV (obv inkomen) net zo relevant als LTV , een hoge LTV is prima zolang de ITV laag is (betaalbaarheid) .
Zeker moderne tussenwoningen met vaak grote uitbouwen hebben een heel er tunnelvisie effect. Ook boven heb je dan kamers met aan 2 kanten ramen, dat is gewoon erg fijn.
https://www.cpb.nl/infogr...nario%E2%80%99s-voor-2050
(uit https://www.cpb.nl/kiezen-voor-later-vier-visies-voor-2050)
Vier scenario's voor langetermijnbeleid om uit te kiezen, met elk hun voor- en nadelen. Het is zo makkelijk allemaal nog niet.
Ik denk dat het juist precies andersom zit. De huizen worden 'gewoon' tegen marktconforme prijzen verkocht. Maar omdat de markt zo oververhit is dat de marktprijzen zo hoog liggen, brengen deze woningen extra veel op. En wordt het (nog) makkelijker om, dankzij de extra opbrengsten, naast markt-koopwoningen ook sociale woningbouw te bouwen.hoevenpe schreef op donderdag 10 oktober 2024 @ 10:42:
@JDx
Ik lees een aantal interessante dingen in het artikel:
[...]
Dit is dus een gemeentelijk woningbouwproject, komt geen commerciele ontwikkelaar aan te pas. De gemeenteraad heeft strikte kaders gesteld die alleen op deze manier te realiseren zijn en noemt dat 'marktconform': wat hier eigenlijk staat is dat al die kleine dure koophokjes veel sociale woningbouw moet subsidiëren, meer dan in een 'normale' marktverdeling gebruikelijk is.
Hier wordt vaak gesteld dat 'marktwerking' mede oorzaak is van exploderende huizenprijzen, in dit specifieke geval is er geen grondspeculatie en geen projectontwikkelaar. Goedkoper wordt het er niet door, eerder kleiner en duurder.
Alle nieuwbouwhuizen zijn oninteressant voor wie al een huis heeft, wie gaat het dubbele betalen voor effectief dezelfde woonoppervlakte? Bouw in de Randstad 'ouderwetse' huizen van 180m2 op een kavel van 500m2+ voor 1,2M en je bent ze zo kwijt, idem voor 3 kamer appartementen van 80m2 met fatsoenlijke berging en één parkeerplaats voor 400k.geekeep schreef op donderdag 10 oktober 2024 @ 17:20:
Je kunt blijven cirkelredeneren maar onder de streep zeg je nog steeds dat ruime tweekappers te duur zijn en dus nu niet meer interessant.
Ik denk dat dat problematisch is voor de woningmarkt en starters in het bijzonder: die worden gedwongen deze veel te dure studio's te kopen, ze hebben geen alternatief. Wordt je echt gelukkig daar, samenwonen is het te klein voor...
Regio Utrecht 1850Wp@79° 3700Wp@259°
Men had de woningen ook goedkoper kunnen maken, meer in lijn met de prijzen van bestaande bouw in de omgeving. Of voor hetzelfde bedrag elk appartement 10m2 meer geven, of meer huizen met een tuintje, etc.Rubbergrover1 schreef op donderdag 10 oktober 2024 @ 17:53:
Ik denk dat het juist precies andersom zit. De huizen worden 'gewoon' tegen marktconforme prijzen verkocht. Maar omdat de markt zo oververhit is dat de marktprijzen zo hoog liggen, brengen deze woningen extra veel op. En wordt het (nog) makkelijker om, dankzij de extra opbrengsten, naast markt-koopwoningen ook sociale woningbouw te bouwen.
Laat ik het anders formuleren: 25 jaar geleden moest een project alleen zichzelf bedruipen, kon men op een 90m2 nieuwbouwappartement in Amsterdam van omgerekend 125k euro nog winst maken. Hoeveel zou een vergelijkbaar appartement in 2024 kosten als er niet 2 andere huizen mee gesubsidieerd hoeven te worden? Wat is de echte kostprijs voor die woning?
Regio Utrecht 1850Wp@79° 3700Wp@259°
Tenzij er in een of ander contract staat dat je er minimaal zo veel jaar moet blijven.
Dingen als Games & Music enzo | En 3D/AI/PS hier | CivitAI Models en Prompts
Al maak je er twintig jaar van. Op het moment dat je iets toegeschoven krijgt dat meer waard is dan je ervoor betaald zou je gewoon belasting moeten betalen over het verkregen vermogen. Zou wat zijn als enkelen nu ook al gratis vermogen in de schoot geworpen zouden krijgen op basis van een loting gesubsidieerd door de andere kopers die wel de daadwerkelijke “prijs” betalen en dat van wat er met verlies wordt verkocht. Kansspelbelasting dan maar?JDx schreef op donderdag 10 oktober 2024 @ 19:25:
Tenzij er in een of ander contract staat dat je er minimaal zo veel jaar moet blijven.
Al geldt dat ergens natuurlijk sowieso voor de woningmarkt. Toch denk ik dat als dit zou mogen, dat anderen gaan klagen waarom ze een familielid niet een huis voor xxx.xxx onder de marktwaarde mogen verkopen.
[ Voor 26% gewijzigd door Paprika op 10-10-2024 19:44 ]
Ja, maar dan kan je niet op dag 2 je huis alweer verkopen voor 100.000 euro meer en naar de woning gaan die wel bij je gezinssamenstelling past, maar buiten budget lag. Gewoon marktprijs, klaar.Paprika schreef op donderdag 10 oktober 2024 @ 19:34:
[...]
Al maak je er twintig jaar van. Op het moment dat je iets toegeschoven krijgt dat meer waard is dan je ervoor betaald zou je gewoon belasting moeten betalen over het verkregen vermogen. Zou wat zijn als enkelen nu ook al gratis vermogen in de schoot geworpen zouden krijgen op basis van een loting gesubsidieerd door de andere kopers die wel de daadwerkelijke “prijs” betalen en dat van wat er met verlies wordt verkocht. Kansspelbelasting dan maar?
Al geldt dat ergens natuurlijk sowieso voor de woningmarkt. Toch denk ik dat als dit zou mogen, dat anderen gaan klagen waarom ze een familielid niet een huis voor xxx.xxx onder de marktwaarde mogen verkopen.
Dingen als Games & Music enzo | En 3D/AI/PS hier | CivitAI Models en Prompts
Anders gezegd: men had de huizen ook onder de marktprijs kunnen verkopen. Dan had de gemeente een paar miljoen euro door het riool gespoeld en was het selecte groepje dat een woning kan bemachtigen de lachende derde met een flinke portie gratis vermogen. Op kosten van de belastingbetaler.hoevenpe schreef op donderdag 10 oktober 2024 @ 18:03:
[...]
Men had de woningen ook goedkoper kunnen maken, meer in lijn met de prijzen van bestaande bouw in de omgeving. Of voor hetzelfde bedrag elk appartement 10m2 meer geven, of meer huizen met een tuintje, etc.
De kostprijs is totaal irrelevant. Het gaat om de marktwaarde.Laat ik het anders formuleren: 25 jaar geleden moest een project alleen zichzelf bedruipen, kon men op een 90m2 nieuwbouwappartement in Amsterdam van omgerekend 125k euro nog winst maken. Hoeveel zou een vergelijkbaar appartement in 2024 kosten als er niet 2 andere huizen mee gesubsidieerd hoeven te worden? Wat is de echte kostprijs voor die woning?
Als je een dusdanig groot project tegen kostprijs +20% op de markt zet dalen prijzen in de omgeving vanzelf, los van de vraag of in dit geval 6800 euro per m2 wel de marktprijs is. Zie genoeg leuke label A+ appartementen dichter bij het centrum rond 4000-5500 euro per m2 (1), (2), (3).Rubbergrover1 schreef op donderdag 10 oktober 2024 @ 20:24:
De kostprijs is totaal irrelevant. Het gaat om de marktwaarde.
We gaan het zien, de markt heeft altijd gelijk. Over een paar maanden weten we of het een beetje loopt.
[ Voor 12% gewijzigd door hoevenpe op 10-10-2024 21:26 ]
Regio Utrecht 1850Wp@79° 3700Wp@259°
De markt is zo oververhit dat woningen tegen een lagere prijs in de markt zetten niks helpt. De nieuwe woningen worden verkocht en de omliggende appartementen in oudere wijken blijven duur(der).hoevenpe schreef op donderdag 10 oktober 2024 @ 20:28:
[...]
Als je een dusdanig groot project tegen kostprijs +20% op de markt zet dalen prijzen in de omgeving vanzelf, los van de vraag of in dit geval 6800 euro per m2 wel de marktprijs is. Zie genoeg leuke label A+ appartementen dichter bij het centrum rond 4000-5500 euro per m2 (1), (2), (3).
We gaan het zien, de markt heeft altijd gelijk. Over een paar maanden weten we of het een beetje loopt.
De vergelijking die je trekt klopt enigszins, de appartementen zijn vergelijkbaar qua grootte, maar let wel op: het zijn geïsoleerde woningen van respectievelijk jaren '30 / '30 / '60. Oftewel, bouwkundig al minstens 60 jaar oud.
Jaren '30 woning | Label B | EV: Corsa-E (2020) & ID.3 (2020) | ZP: 16x 300Wp SolarEdge | Eind oktober 2025: Blackbird P80 + 6090Wp extra ZP oost-west
Begrijp dat een bouwkundig nieuwe woning tegen een premium verkocht wordt, maar 50% meer dan een geïsoleerde woning met hetzelfde label op een betere plek én veel goedkopere parkeervergunning? Los van de bouwrente, vloer, gordijnen, niet basic keuken en sanitair die bij nieuwbouw er bij op moet tellen...Pr088 schreef op vrijdag 11 oktober 2024 @ 09:02:
De vergelijking die je trekt klopt enigszins, de appartementen zijn vergelijkbaar qua grootte, maar let wel op: het zijn geïsoleerde woningen van respectievelijk jaren '30 / '30 / '60. Oftewel, bouwkundig al minstens 60 jaar oud.
Ik zou het persoonlijk wel weten, ben oprecht benieuwd hoe hard dit loopt.
[ Voor 7% gewijzigd door hoevenpe op 11-10-2024 09:30 ]
Regio Utrecht 1850Wp@79° 3700Wp@259°
Ik ook. Het aantal aanmeldingen/geïnteresseerden gaat volgens de gemeente wel door het dak, zo meldde de wethouder van wonen afgelopen woensdag. Afwachten hoe de verkoop gaat.hoevenpe schreef op vrijdag 11 oktober 2024 @ 09:21:
[...]
Begrijp dat een bouwkundig nieuwe woning tegen een premium verkocht wordt, maar 50% meer dan een geïsoleerde woning met hetzelfde label op een betere plek én veel goedkopere parkeervergunning? Los van de vloer, gordijnen, niet basic keuken en sanitair die bij nieuwbouw er nog in moet...
Ik zou het persoonlijk wel weten, ben oprecht benieuwd hoe hard dit loopt.
Jaren '30 woning | Label B | EV: Corsa-E (2020) & ID.3 (2020) | ZP: 16x 300Wp SolarEdge | Eind oktober 2025: Blackbird P80 + 6090Wp extra ZP oost-west
Tsja, wat is een 'betere' plek? Ik zie twee woningen waar parkeren beroerd is en een woning waar je aan een van de drukste autoroutes naar en van het stadscentrum woont.hoevenpe schreef op vrijdag 11 oktober 2024 @ 09:21:
[...]
Begrijp dat een bouwkundig nieuwe woning tegen een premium verkocht wordt, maar 50% meer dan een geïsoleerde woning met hetzelfde label op een betere plek én veel goedkopere parkeervergunning? Los van de bouwrente, vloer, gordijnen, niet basic keuken en sanitair die bij nieuwbouw er bij op moet tellen...
Ik zou het persoonlijk wel weten, ben oprecht benieuwd hoe hard dit loopt.
Ik ben vooral ook benieuwd wat de werkelijke verkoopprijs van deze woningen zal zijn. Ik kan dat helaas zelf niet nagaan. Maar ik vermoed dat die prijzen ook nog wel een flink stuk hoger liggen dan de Funda vraagprijzen.
Het is inderdaad subjectief, maar 1500-2000 euro per jaar is een stuk minder dan 370 euro per jaar in de duurste schil rond het centrum. Vanaf de grote markt naar huis kunnen kruipen zie ik als een pre, zeker als je jong en single bent...Rubbergrover1 schreef op vrijdag 11 oktober 2024 @ 10:21:
Tsja, wat is een 'betere' plek? Ik zie twee woningen waar parkeren beroerd is en een woning waar je aan een van de drukste autoroutes naar en van het stadscentrum woont.
Regio Utrecht 1850Wp@79° 3700Wp@259°
Als je jong en single bent en veel in de stad wil uitgaan, dan zijn dit inderdaad prima woningen. Maar dat is misschien ook een andere doelgroep dan de groep voor wie in Suikerzijde wordt gebouwd.hoevenpe schreef op vrijdag 11 oktober 2024 @ 10:32:
[...]
Het is inderdaad subjectief, maar 1500-2000 euro per jaar is een stuk minder dan 370 euro per jaar in de duurste schil rond het centrum. Vanaf de grote markt naar huis kunnen kruipen zie ik als een pre, zeker als je jong en single bent...
De Suikerzijde lijkt mij vooral een wijkje waar veel jonge gezinnen met kinderen of kinderwens hun ogen op gericht hadden, voor meer slaapkamers tikt dat al gauw aan.hoevenpe schreef op vrijdag 11 oktober 2024 @ 10:32:
[...]
Het is inderdaad subjectief, maar 1500-2000 euro per jaar is een stuk minder dan 370 euro per jaar in de duurste schil rond het centrum. Vanaf de grote markt naar huis kunnen kruipen zie ik als een pre, zeker als je jong en single bent...
Voor studenten met rijke ouders is zo'n veredelde studio ook wel leuk in de uni tijd en even daarna. Als het zo door gaat kunnen die ouders daarna de woning met gemak weer verkopen met winst.
[ Voor 6% gewijzigd door JDx op 11-10-2024 10:46 ]
Dingen als Games & Music enzo | En 3D/AI/PS hier | CivitAI Models en Prompts
En vooral ook mensen die het helemaal hebben gehad met het gedoe van de herrie en onderhoud en alles van bestaande bouw. Dus simpel gezegd, de mensen die dat leven van lang uitgaan en daarna naar huis kruipen wel een tijdje achter zich hebben gelaten, en zich nu eerder ergeren aan de "overlast" die dat studentenleven geeft.JDx schreef op vrijdag 11 oktober 2024 @ 10:45:
[...]
De Suikerzijde lijkt mij vooral een wijkje waar veel jonge gezinnen met kinderen of kinderwens hun ogen op gericht hadden, voor meer slaapkamers tikt dat al gauw aan.
Maar wel single, want voor een stelletje is zo'n studio van 50-64m2 gewoon te klein.Rubbergrover1 schreef op vrijdag 11 oktober 2024 @ 10:54:
Dus simpel gezegd, de mensen die dat leven van lang uitgaan en daarna naar huis kruipen wel een tijdje achter zich hebben gelaten, en zich nu eerder ergeren aan de "overlast" die dat studentenleven geeft.
Goed verdienende autoloze dertigers en veertigers zonder relatie- en kinderwens, betwijfel hoe groot die doelgroep is...
Regio Utrecht 1850Wp@79° 3700Wp@259°
Huizenprijzen in de zomer ruim 12 procent gestegen tot nieuw record
NVM-makelaars verkochten de afgelopen drie zomermaanden bijna 37.000 bestaande woningen. Dat is een kleine toename van 0,6 procent vergeleken met het tweede kwartaal van dit jaar. Normaal gesproken zien de makelaars het aantal woningtransacties in de zomer afnemen. Nu is een stijging van 10,9 procent te zien ten opzichte van hetzelfde kwartaal een jaar eerder. Volgens de NVM laat dit zien dat kopers meer vertrouwen hebben in de woningmarkt.
Ook blijven nieuwbouwwoningen in trek. In de eerste negen maanden van dit jaar zijn er 21.500 nieuwbouwwoningen verkocht. Dat zijn er nu al meer dan in heel 2022 en 2023.
De prijs per vierkante meter voor nieuwbouw bedroeg in het derde kwartaal 4600 euro. Dat is een stijging van 1,3 procent ten opzichte van een kwartaal eerder en een stijging van 12,3 procent vergeleken met hetzelfde kwartaal in 2023. Dit komt volgens de NVM door de forse toename van het aantal kleine woningen en de stijgende woningprijzen. In het derde kwartaal kreeg je dus nog minder oppervlakte voor je geld bij de aankoop van een nieuwbouwwoning.
In het derde kwartaal werd er 4,6 procent meer betaald dan de vraagprijs. Bij een gemiddelde woning gaat het om een bedrag van 22.000 euro. Er wordt ongeveer even vaak als vorig kwartaal overboden, bij zo’n twee op de drie woningverkopen.
Regio Utrecht 1850Wp@79° 3700Wp@259°
Aangezien driekwart van het huidige aanbod ook groter is dan die 50-64m2, hoeft die groep ook niet zo groot te zijn. (Overigens denk ik dat een hoop dertiger-stelletjes gewoon prima kunnen wonen in een appartement van 64 m².)hoevenpe schreef op vrijdag 11 oktober 2024 @ 11:00:
[...]
Maar wel single, want voor een stelletje is zo'n studio van 50-64m2 gewoon te klein.
Goed verdienende autoloze dertigers en veertigers zonder relatie- en kinderwens, betwijfel hoe groot die doelgroep is...
Maar los daarvan, denk ik dat er ook best een grote doelgroep voor is. In Groningen is 60% van de huishoudens een eenpersoonshuishouden. Ook als je de grote groep jongeren en studenten eruit weg haalt, houd je nog ongeveer eenderde van de bevolking over aan alleenwonenden. (versus een kleine 20% met kinderen en iets meer dan 20% stellen). Een hoop van die mensen is wel klaar met de "studentikoze" vooroorlogse woningen, maar zit ook niet te wachten op een veel te grote eengezinswoning.
Hoe kom je daar nou bij?hoevenpe schreef op vrijdag 11 oktober 2024 @ 11:00:
[...]
Maar wel single, want voor een stelletje is zo'n studio van 50-64m2 gewoon te klein.
Goed verdienende autoloze dertigers en veertigers zonder relatie- en kinderwens, betwijfel hoe groot die doelgroep is...
60m2 en twee slaapkamers kan echt prima. Er zijn duizenden van dit soort appartementen gebouwd in de jaren 70/80 waar genoeg kinderen in grootgebracht zijn:
:strip_exif()/f/image/7ZleXzTevdp6kT3W61cmg6A7.jpg?f=fotoalbum_large)
Moeten ontwikkelaars wel van die debiele hippe indelingen af stappen..
Daarnaast beginnen dertigers steeds later aan een huis, kinderen en daalt het autogebruik:
https://www.cbs.nl/nl-nl/...eit-sterker-dan-bevolking
Het zijn met name de oudjes die verantwoordelijk zijn voor de groei qua autobezit.
Overigens is er een relatie tussen een auto en een eerste kind krijgen, dus die factoren versterken elkaar (in beide richtingen).
Kortom, er is genoeg vraag naar betaalbare 60-65m2 appartementen (met een normale indeling).
geekeep schreef op vrijdag 11 oktober 2024 @ 14:36:
[...]
Hoe kom je daar nou bij?
60m2 en twee slaapkamers kan echt prima. Er zijn duizenden van dit soort appartementen gebouwd in de jaren 70/80 waar genoeg kinderen in grootgebracht zijn:
[Afbeelding]
Moeten ontwikkelaars wel van die debiele hippe indelingen af stappen..
Daarnaast beginnen dertigers steeds later aan een huis, kinderen en daalt het autogebruik:
https://www.cbs.nl/nl-nl/...eit-sterker-dan-bevolking
Het zijn met name de oudjes die verantwoordelijk zijn voor de groei qua autobezit.
Overigens is er een relatie tussen een auto en een eerste kind krijgen, dus die factoren versterken elkaar (in beide richtingen).
Kortom, er is genoeg vraag naar betaalbare 60-65m2 appartementen (met een normale indeling).
:strip_exif()/f/image/LpVNsJmh3DCbYgls3bo9J7LH.jpg?f=fotoalbum_large)
Ik vind dit niet meteen de meest logische indeling, met sanitair e.d. in het midden. Maar je hebt wel gewoon 2 slaapkamertjes. Toch zou ik eerder kiezen voor de appartementen die nét een slagje groter zijn, 71 m² ipv 64 m². Ik heb het idee dat die voor je gevoel toch een stuk meer woonruimte bieden. In elk geval volgens mij ruim genoeg om als stel te wonen zonder het idee te hebben dat je te klein woont:
:strip_exif()/f/image/ymlfAni1zMePFtuWUXuLBRwL.jpg?f=fotoalbum_large)
Tuurlijk zullen de meeste voorkeur hebben voor 5m2 extra. Maar met dat soort indelingen verspil je gewoon de (al beperkte) ruimte. Een badkamer/wc/washok middenin de woning, waar je met de ruimte rondom weinig kunt doen en zo'n blok tevens het ruimtelijk gevoel belemmerd. Die tweede heeft een nutteloze veel te grote hal waar je ook geen dressoir/kast kan zetten vanwege de breedte en deuren. En daarnaast een open entree waarbij de warmte in de winter zo naar buiten vliegt.Rubbergrover1 schreef op vrijdag 11 oktober 2024 @ 14:50:
[...]
[Afbeelding]
Ik vind dit niet meteen de meest logische indeling, met sanitair e.d. in het midden. Maar je hebt wel gewoon 2 slaapkamertjes. Toch zou ik eerder kiezen voor de appartementen die nét een slagje groter zijn, 71 m² ipv 64 m². Ik heb het idee dat die voor je gevoel toch een stuk meer woonruimte bieden. In elk geval volgens mij ruim genoeg om als stel te wonen zonder het idee te hebben dat je te klein woont:
[Afbeelding]
Hartstikke leuk die "speelse" indelingen, maar de gemiddelde mens heeft liever praktische woningen met dan maar een lager woonoppervlak, gezien de kaders van onze beperkte bouwruimte en budgetten. We zitten tenslotte in een wooncrisis.....
toch leuk dat 'markt' de enige manier is voor grootschalige woningbouw.geekeep schreef op donderdag 10 oktober 2024 @ 17:36:
Voor wie zelf eens overheid wilt spelen:
https://www.cpb.nl/infogr...nario%E2%80%99s-voor-2050
(uit https://www.cpb.nl/kiezen-voor-later-vier-visies-voor-2050)
Vier scenario's voor langetermijnbeleid om uit te kiezen, met elk hun voor- en nadelen. Het is zo makkelijk allemaal nog niet.
is marktwerking toch ergens goed voor
Als je ongelijkheid, vervuiling, natuur, minder baan- en sociale zekerheid, betaalbare zorg en een leefbare omgeving allemaal niet belangrijk vindt wel ja.dikkiedik schreef op vrijdag 11 oktober 2024 @ 16:12:
[...]
toch leuk dat 'markt' de enige manier is voor grootschalige woningbouw.
is marktwerking toch ergens goed voor

De 'markt' is allemaal leuk en aardig, totdat het niet meer werkt en we met z'n allen ons handje ophouden voor onrecht/bestaanszekerheid of schreeuwen dat de overheid moet ingrijpen. Daarnaast is ook de 'markt' goed in een handje ophouden bij de overheid als het even tegen valt..
Noem mij één markt die zichzelf heeft gereguleerd door te stellen "jah jongens, wat we nu doen kan écht niet meer. We moeten onszelf verbeteren voor de lange termijn en/of het algemeen goed".
De schuld aan marktwerking geven is altijd een beetje makkelijk. Zeker omdat aangedragen oplossing om het te 'ontmarkten' vaak slechts een gedeelte een markt betreffen. En juist daar zit het probleem zich in. Een scheefgroei. Eigenlijk is er dus nogsteeds groot en deels martkwerking maar verstoord.geekeep schreef op vrijdag 11 oktober 2024 @ 17:32:
[...]
Als je ongelijkheid, vervuiling, natuur, minder baan- en sociale zekerheid, betaalbare zorg en een leefbare omgeving allemaal niet belangrijk vindt wel ja.![]()
De 'markt' is allemaal leuk en aardig, totdat het niet meer werkt en we met z'n allen ons handje ophouden voor onrecht/bestaanszekerheid of schreeuwen dat de overheid moet ingrijpen. Daarnaast is ook de 'markt' goed in een handje ophouden bij de overheid als het even tegen valt..
Noem mij één markt die zichzelf heeft gereguleerd door te stellen "jah jongens, wat we nu doen kan écht niet meer. We moeten onszelf verbeteren voor de lange termijn en/of het algemeen goed".
Het ontmarkten zorgt eigenlijk alleen voor herverdeling van de voorraad. Het grootste probleem daarvan is dat de woning dus niet meer gaat naar de mensen die het meeste betalen en dus de woning ook 'verdienen'. Hoe moet je anders de verdeling gaan doen? karma punten? hoe vaak je bij je zieke ouders op bezoek bent geweest? credit score? of je baan 'zinvol' is?
Er is op dit moment best wel een probleem op de woningmarkt natuurlijk, dat kan niemand ontkennen. Maar kan iemand mij schetsen hoe deze realistisch opgelost gaan worden door te ontmarkten? Wie gaat de rekening dan betalen?
Mijn ervaring is dat aanvullende wensen van lokale en regionale politiek woningbouw keer op keer frustreren: alsnog een medisch centrum erbij, nog meer sociaal of 'betaalbaar', hogere grondprijzen, minder parkeren, etc. Ben inmiddels 10 jaar aan het bewonersparticiperen: heb 5 verschillende plannen zien langskomen, laatste is geklapt omdat de gemeente 470k voor een 120m2 rijtjeswoning niet 'betaalbaar' genoeg vond. Op loopafstand van een station (12 minuten van Utrecht CS) en winkels om de hoek, zou als een malle verkocht zijn.dikkiedik schreef op vrijdag 11 oktober 2024 @ 19:06:
Er is op dit moment best wel een probleem op de woningmarkt natuurlijk, dat kan niemand ontkennen. Maar kan iemand mij schetsen hoe deze realistisch opgelost gaan worden door te ontmarkten? Wie gaat de rekening dan betalen?
Het probleem is imo eerder te weinig markt dan te veel. Projectontwikkelaars weten heel goed wat verkoopt, geef tien projectontwikkelaars voor een redelijke prijs een stuk grond en verder de vrije hand, ze bouwen zich suf. Vinexwijken zijn niet voor niets zo gewild, ze zijn echter weinig gewenst in vaak progressieve gemeenten. Iets met de maakbare samenleving...
Regio Utrecht 1850Wp@79° 3700Wp@259°
Dat is ook mijn idee. En de marktwerking die er nog is krijgt de schuld van alles. En dat gaat niet alleen op voor de woningmarkt.hoevenpe schreef op vrijdag 11 oktober 2024 @ 20:13:
[...]
Het probleem is imo eerder te weinig markt dan te veel.
Maar ik laat me graag overtuigen. Schets me een goed werkende ontmarkte woningmarkt.
Ik heb krimpflatie voor mijn ogen zien gebeuren: de raad wil extra 'jongerenhuizen' dus de beukmaat van alle koop-rijtjeshuizen ging van 5m40 naar 4m80 voor hetzelfde geld.dikkiedik schreef op vrijdag 11 oktober 2024 @ 20:29:
Dat is ook mijn idee. En de marktwerking die er nog is krijgt de schuld van alles. En dat gaat niet alleen op voor de woningmarkt.
Wij als bewonerscommissie zijn de afgelopen jaren al 100-200 uur bezig geweest, onbezoldigd met goede koffie
In gelul kan je niet wonen...
Regio Utrecht 1850Wp@79° 3700Wp@259°
https://nos.nl/regio/zh-r...-en-rotterdam-kan-het-ookdikkiedik schreef op vrijdag 11 oktober 2024 @ 20:29:
[...]
Dat is ook mijn idee. En de marktwerking die er nog is krijgt de schuld van alles. En dat gaat niet alleen op voor de woningmarkt.
Maar ik laat me graag overtuigen. Schets me een goed werkende ontmarkte woningmarkt.
Uiteraard is het (hier) heel hip om te zeiken op (lokale) overheden en de tijd-/geldverspilling in allerlei plannen en projecten. Ondertussen weet ik na tig bedrijven en (lokale) overheden gezien te hebben dat het bedrijfsleven ook verre van doelmatig en efficiënt concepten maakt en ook niet vies is van plannen compleet overhoop gooien.In Wenen is de gemeente de grootste huisbaas van de stad, met ruim 220 duizend eigen woningen. (..)
Ze zeggen hier: wonen is een plicht en een primaire levensbehoefte. Als gemeente zien ze het als een oerplicht om hier in te voorzien. Het viel mij op dat er in Wenen een goede mix is tussen kleine en grote woningen.
(..)
Ze willen dat inwoners na de afschrijving van de huur ook nog wat geld overhouden om uit te geven in de lokale economie.
(..)
In Wenen ga je als student in je eerste woning en kun je steeds doorgroeien. Scheefhuur is daarom geen probleem.
(..)
In Wenen is 2/3 van de woningen en projecten limited profit. Dat wil zeggen dat de opbrengsten weer ten goede moeten komen aan wonen.
Met inspraak vanuit een commissie word je in ieder geval nog meegenomen in besluiten en planningen i.p.v. dat degene met de grootste zak geld maar wat roept en je achteraf pleisters kan plakken.
Ironisch genoeg hebben we afgelopen jaren precies gezien wat er gebeurd als we de markt z'n ding laten doen. Vooral heel veel (dure) grondgebonden woningen die relatief veel plek innemen en een hoop boeren die hun letterlijke shit niet meer kwijt kunnen en daarbij (vanwege stikstof) tevens medeverantwoordelijk zijn voor de stop van allerlei nieuwbouw.
https://www.nu.nl/economi...eds-jonger-en-rijker.htmlOpmerkelijk genoeg houdt de daling van de gemiddelde leeftijd niet in dat het gemiddelde inkomen omlaaggaat. Integendeel, dat gaat juist omhoog, blijkt uit dezelfde gegevens van HDN. Gekeken naar alle starters, dus van alle leeftijden, heeft ongeveer de helft een inkomen van meer dan 75.000 euro.
"Bij de jongere starters had in 2020 nog geen 5 procent een inkomen van boven de 75.000 euro. Nu is dat ongeveer een kwart", schetst Van der Heijden. HDN heeft zicht op het overgrote deel van de data van alle hypotheekaanvragen.
Mama mia, 25% van de kopers onder de 32 verdient 75k of meer.
Ik lees dat als: alleen de hele rijke jongeren kunnen nog starten op de woningmarkt. Treurig bericht.Requiem19 schreef op zaterdag 12 oktober 2024 @ 07:36:
Leeftijd van starters gaat omlaag, EN het gemiddeld inkomen van de starter stijgt sterk.
[...]
https://www.nu.nl/economi...eds-jonger-en-rijker.html
Mama mia, 25% van de kopers onder de 32 verdient 75k of meer.
Panasonic WH-MDC05J3E5 | Atlantic Explorer V4 270 | 2800Wp | Gasloos
Ik zie bij ons wel opvallend veel managers die onder de 30 zijn , ik heb de indruk dat dat 5-10 jaar geleden veel minder was.Requiem19 schreef op zaterdag 12 oktober 2024 @ 07:36:
Leeftijd van starters gaat omlaag, EN het gemiddeld inkomen van de starter stijgt sterk.
[...]
https://www.nu.nl/economi...eds-jonger-en-rijker.html
Mama mia, 25% van de kopers onder de 32 verdient 75k of meer.
Veel veertigers (met kinderen) werken liever parttime met minder zorgen, het inkomen is ruim voldoende om de (ruime) woning met overwaarde en lage rente te betalen en nog 2-3x op vakantie te gaan. Precies hoe mijn vrouw en ik er ook in staan
[ Voor 8% gewijzigd door Sport_Life op 12-10-2024 08:26 ]
PV: 9360 WP WZW/ONO | Warmtepomp: Toshiba Estia 8kW 3fase | A+++ | Zappi v2.1
Dat klopt.MisterMailman schreef op zaterdag 12 oktober 2024 @ 07:46:
[...]
Ik lees dat als: alleen de hele rijke jongeren kunnen nog starten op de woningmarkt. Treurig bericht.
Maar er zijn kennelijk 5x zoveel rijkere jongeren in 2024 tov 2020.
Het zijn gouden tijden voor jonge mensen op de arbeidsmarkt.
Jeez...Requiem19 schreef op zaterdag 12 oktober 2024 @ 07:36:
Leeftijd van starters gaat omlaag, EN het gemiddeld inkomen van de starter stijgt sterk.
[...]
https://www.nu.nl/economi...eds-jonger-en-rijker.html
Mama mia, 25% van de kopers onder de 32 verdient 75k of meer.
Maar misschien zat toen wel 30 procent op 65.000 ofzo? Waarom die grens van 75.000 euro, als je het zo schrijft lijkt het net alsof een hele grote groep ineens veel meer verdient."Bij de jongere starters had in 2020 nog geen 5 procent een inkomen van boven de 75.000 euro. Nu is dat ongeveer een kwart", schetst Van der Heijden. HDN heeft zicht op het overgrote deel van de data van alle hypotheekaanvragen.
[ Voor 35% gewijzigd door JDx op 12-10-2024 08:50 ]
Dingen als Games & Music enzo | En 3D/AI/PS hier | CivitAI Models en Prompts
Dat lijkt een prachtige samenleving. En inderdaad heeft dit 100 jaar nodig om hier aan te bouwen. En eigenlijk is hier nog steeds enkel sprake van marktwerking, alleen zijn de markt partijen verschoven. Hier ben ik niet op tegen. Een gemeente of overheid mag natuurlijk tegen kostprijs dingen gaan aanbieden en daarmee de markt ´disrupten´. Het probleem zit vooral in een overheid die zegt wat ándere partijen mogen vragen en moeten doen.
Maar laten we voorstellen dat er honderd duizenden woningen met zwembaden worden gebouwd van 100m² voor 800 euro per maand. Dan krijgen we een ´neergang´ van woningprjizen. Immers wil alles en iedereen daar wonen.
Een neergang van huizenprijzen gaat zo goed als direct een bouwstop veroorzaken. Immers bij een dalende trend is uitstellen een verdienmodel. Nieuwbouw gaat op z´n gat liggen. Behalve die spa complexen van de gemeente Amsterdam die ze aan het bouwen zijn voor de minder bedeelde van de samenleving voor 800 piek per maand. Ondertussen komt iedereen die afgelopen 5 jaar een woning heeft gekocht onder water te staan. Bij relatiebreuken komen mensen direct in de problemen en komt er weer meer druk op de gebouwde spa complexen. Terwijl ze genieten van hun sauna kunnen ze wellicht met facetime nog een afspraak krijgen bij de schuldhulpverlening.
Hoe zouden we het vanaf de huidige situatie kunnen ontmarkten? Want 100 jaar de tijd hebben we niet. Tegen die tijd hebben we wel weer andere problemen. Doel moet hierbij zijn om de huidige excessieve groei van de woningprijzen een halt toe te roepen. Niet om in absolute zin woningwaarde te laten verdwijnen. (sociale)huurprijzen moeten natuurlijk de waarde van de markt ergens reflecteren om bovengenoemde problemen te voorkomen.
gaat dit om 75k totaal inkomen voor de hypotheekaanvraag of individueel inkomen? Kan ik niet opmaken uit het dashboard van HDN.Requiem19 schreef op zaterdag 12 oktober 2024 @ 07:36:
Leeftijd van starters gaat omlaag, EN het gemiddeld inkomen van de starter stijgt sterk.
[...]
https://www.nu.nl/economi...eds-jonger-en-rijker.html
Mama mia, 25% van de kopers onder de 32 verdient 75k of meer.
75k is natuurlijk voor een individu een redelijk goed inkomen voor de leeftijd, maar als verzamelinkomen niet veel meer dan minimumloon.
De jongere generatie op de arbeidsmarkt is ook veel bezig met inkomen. De onzekerheden zijn best wel groot geweest en die zoeken vaste banen met hoge inkomens. Waar ze zo hyperbewust lijken gaat het vooral om het goed te regelen voor zichzelf. Dus ook die eigen woning. En die eigen woning valt of staat met een goed (vast) inkomen.
https://mtsprout.nl/leide...20uit%20nieuw%20onderzoek.
Dat kan ik er niet uit opmaken (hoewel ik het ook niet kan uitsluiten). Stel: de prijzen zijn dusdanig gestegen dat steeds minder starters met een lager inkomen kunnen kopen. Zie daar, van 5% naar 25%.Requiem19 schreef op zaterdag 12 oktober 2024 @ 08:37:
[...]
Dat klopt.
Maar er zijn kennelijk 5x zoveel rijkere jongeren in 2024 tov 2020.
Het zijn gouden tijden voor jonge mensen op de arbeidsmarkt.
[ Voor 11% gewijzigd door DutchCommando op 12-10-2024 09:30 ]
Ik snap die jongeren wel, maar daardoor stijgen de starterswoningen ook weer in prijs. Daarnaast dat ze vooral het goed willen regelen voor zichzelf komt door het Neo Liberalisme, die zorgt voor het individualisme. Daarnaast van wie zullen ze dat geleerd hebben om vooral voor zichzelf te zorgen? Boomers doen dat al decennia voor henzelf en na 12 jaar VVD aan de macht hebben ze een goede voorbeeld gehad...dikkiedik schreef op zaterdag 12 oktober 2024 @ 09:08:
[...]
gaat dit om 75k totaal inkomen voor de hypotheekaanvraag of individueel inkomen? Kan ik niet opmaken uit het dashboard van HDN.
75k is natuurlijk voor een individu een redelijk goed inkomen voor de leeftijd, maar als verzamelinkomen niet veel meer dan minimumloon.
De jongere generatie op de arbeidsmarkt is ook veel bezig met inkomen. De onzekerheden zijn best wel groot geweest en die zoeken vaste banen met hoge inkomens. Waar ze zo hyperbewust lijken gaat het vooral om het goed te regelen voor zichzelf. Dus ook die eigen woning. En die eigen woning valt of staat met een goed (vast) inkomen.
https://mtsprout.nl/leide...20uit%20nieuw%20onderzoek.
Niet alleen de prijzen zijn gestegen maar de lonen hebben ook een grote stijging gezien, zo goed als iedereen is er op vooruit gegaan, en de starterslonen zijn ook flink gestegen. Vroeger waren ook stuk minder miljonairs dan tegenwoordig omdat geld toen een stuk meer waarde had, een brood in mijn vaders jeugd koste een kwartje, nu meer dan een euro.DutchCommando schreef op zaterdag 12 oktober 2024 @ 09:26:
[...]
Dat kan ik er niet uit opmaken (hoewel ik het ook niet kan uitsluiten). Stel: de prijzen zijn dusdanig gestegen dat steeds minder starters met een lager inkomen kunnen kopen. Zie daar, van 5% naar 25%.
Als iedereen aan zichzelf denkt zal niemand worden overgeslagen.spijkerhoofd schreef op zaterdag 12 oktober 2024 @ 10:04:
[...]
Ik snap die jongeren wel, maar daardoor stijgen de starterswoningen ook weer in prijs. Daarnaast dat ze vooral het goed willen regelen voor zichzelf komt door het Neo Liberalisme, die zorgt voor het individualisme. Daarnaast van wie zullen ze dat geleerd hebben om vooral voor zichzelf te zorgen? Boomers doen dat al decennia voor henzelf en na 12 jaar VVD aan de macht hebben ze een goede voorbeeld gehad...
Het goede van deze ontwikkeling is wel dat werken weer gaat lonen. En harde werkers kunnen hierdoor nog beloond worden met een fijne woning.
Natuurlijk moeten we rekening houden met een groep die dit niet kan door allemaal verschillende externe factoren. Neemt niet weg dat de basis van de woningmarkt gewoon kan zijn dat de mensen met de grootste portemonnee de mooiste huizen wegpikken. En starters met een verzamelinkomen van 75k lijkt me niet vreemd. Eerlijk gezegd vind ik 25% dan nog heel erg weinig. Als je als stelletje van 30 serieus de koop markt op gaat neem ik aan dat je allebei toch wel minimaal 37,5k p.p aan inkomen mee kunt nemen...
[ Voor 6% gewijzigd door dikkiedik op 12-10-2024 10:13 ]
Sorry maar het hele werken gaat weer lonen is totale bullshit en populistisch. Werken gaat met een behoorlijke inflatie, loonsverhogingen en wellicht een forse loonsverhoging juist minder lonen met een koopwoning. Wij hebben 2 jaar geleden voor de grote loonsverhogingen een woning gekocht, een half jaar later kregen we beide een forse loonsverhoging gekregen om de inflatie te dekken en daardoor konden we beide ineens 32 uur werken. En wij zijn enkel meer gaan verdienen met minder uren werken en onze woonlasten dalen enkel door flink te verduurzamen.dikkiedik schreef op zaterdag 12 oktober 2024 @ 10:08:
[...]
Als iedereen aan zichzelf denkt zal niemand worden overgeslagen.
Het goede van deze ontwikkeling is wel dat werken weer gaat lonen. En harde werkers kunnen hierdoor nog beloond worden met een fijne woning.
Natuurlijk moeten we rekening houden met een groep die dit niet kan door allemaal verschillende externe factoren. Neemt niet weg dat de basis van de woningmarkt gewoon kan zijn dat de mensen met de grootste portemonnee de mooiste huizen wegpikken. En starters met een verzamelinkomen van 75k lijkt me niet vreemd. Eerlijk gezegd vind ik 25% dan nog heel erg weinig.
Niet voor niets werken stellen met een koophuis vanaf 40 jaar behoorlijk vaak parttime, simpel, de lonen stijgen enkel maar de vaste lasten amper, het hypotheekbedrag daalt zelfs doordat de risicorente steeds meer word afgebouwd.
Maar dan heb je in elk geval tot je 40e nog gewerkt. Ik zie bij jongere ook mensen al deeltijden omdat een koophuis toch al niet lukt. Kun je beter maar alvast gaan deeltijden, rondkomen lukt ze toch wel als ze thuis wonen.spijkerhoofd schreef op zaterdag 12 oktober 2024 @ 10:18:
[...]
Sorry maar het hele werken gaat weer lonen is totale bullshit en populistisch. Werken gaat met een behoorlijke inflatie, loonsverhogingen en wellicht een forse loonsverhoging juist minder lonen met een koopwoning. Wij hebben 2 jaar geleden voor de grote loonsverhogingen een woning gekocht, een half jaar later kregen we beide een forse loonsverhoging gekregen om de inflatie te dekken en daardoor konden we beide ineens 32 uur werken. En wij zijn enkel meer gaan verdienen met minder uren werken en onze woonlasten dalen enkel door flink te verduurzamen.
Niet voor niets werken stellen met een koophuis vanaf 40 jaar behoorlijk vaak parttime, simpel, de lonen stijgen enkel maar de vaste lasten amper, het hypotheekbedrag daalt zelfs doordat de risicorente steeds meer word afgebouwd.
Natuurlijk is het zo dat je in een koopwoning met vaste rente een gigantische voorsprong hebt in tijden van inflatie. Niet alleen je woningwaarde neemt toe, maar ook je inkomen groeit erg hard terwijl je maandlasten niet toenemen. Dus goed voor besteedbaar inkomen en part-time potentieel. Enige manier om dit te voorkomen is zorgen dat je lagere inkomens méér gaat belasten. Part timen bij modale of net boven modale inkomens het paradijs op aarde. Belasten naar wat je kán verdienen, niet wat je verdient.
Een voorbeeld die ik gaf van een tijdje geleden. Modaal inkomen met 44k betaal je +- 10.000 euro belasting. Ga je 20 uur per week werken op dat zelfde inkomen verdien je nog 22k maar betaal je nog maar 500 euro belasting. 95% reductie wat compleet ter nadele valt aan de staat. Wat ten goede komt van tijd van iemand die het waarschijnlijk goed voor elkaar heeft.
[ Voor 9% gewijzigd door dikkiedik op 12-10-2024 10:25 ]
Een N=1 is hierin niet erg sterk omdat de statistieken van het CBS iets anders zeggen dan jij aangeeft, namelijk werkenden tussen de 25 en 35 werken de meeste uren, 50+ers werkende minste uren.dikkiedik schreef op zaterdag 12 oktober 2024 @ 10:23:
[...]
Maar dan heb je in elk geval tot je 40e nog gewerkt. Ik zie bij jongere ook mensen al deeltijden omdat een koophuis toch al niet lukt. Kun je beter maar alvast gaan deeltijden, rondkomen lukt ze toch wel als ze thuis wonen.
Klinkt leuk maar totaal niet realistisch, want hoe ga je betalen wat je kan verdienen, en je zorgt zo enkel voor meer bureaucratie, meer controles, en meer bullshitbanen. Plus het is totaal niet te realiseren met de IT systemen van de belastingdienst.Belasten naar wat je kán verdienen, niet wat je verdient.
lagere arbeidskortingen, lagere grenzen van belastingschalen. Progressiviteit uit het systeem proberen te halen. Zorgen dat de extra belastingopbrengsten ten goede komen van de bruto inkomens van banen waar nu een schreeuwend tekort aan is en beschouwd worden als ondergewaardeerd.spijkerhoofd schreef op zaterdag 12 oktober 2024 @ 10:29:
Klinkt leuk maar totaal niet realistisch, want hoe ga je betalen wat je kan verdienen, en je zorgt zo enkel voor meer bureaucratie, meer controles, en meer bullshitbanen. Plus het is totaal niet te realiseren met de IT systemen van de belastingdienst.
Of natuurlijk andersom. Hogere inkomens minder belasting laten betalen om doorwerken te laten lonen. Maar dat valt meestal niet zo lekker.
Als mensen geen deeltijden omdat alles in kannen en kruiken is, dan betekent het toch in feite dat de woningen nog altijd te goedkoop zijn? Of eigenlijk het leven in het algemeen? Niet voor iedereen, maar er is een forse groep voor wie dit geldt. En mensen die niet gaan deeltijden die kopen wel een lekkere SUV voor op de oprit.
Waarom gelijk weer in het extreme trekken en het over 100 jaar lang woningen met zwembaden van 800p/m bouwen?dikkiedik schreef op zaterdag 12 oktober 2024 @ 09:03:
[...]
Dat lijkt een prachtige samenleving. En inderdaad heeft dit 100 jaar nodig om hier aan te bouwen. En eigenlijk is hier nog steeds enkel sprake van marktwerking, alleen zijn de markt partijen verschoven. Hier ben ik niet op tegen. Een gemeente of overheid mag natuurlijk tegen kostprijs dingen gaan aanbieden en daarmee de markt ´disrupten´. Het probleem zit vooral in een overheid die zegt wat ándere partijen mogen vragen en moeten doen.
Maar laten we voorstellen dat er honderd duizenden woningen met zwembaden worden gebouwd van 100m² voor 800 euro per maand. Dan krijgen we een ´neergang´ van woningprjizen. Immers wil alles en iedereen daar wonen.
Een neergang van huizenprijzen gaat zo goed als direct een bouwstop veroorzaken. Immers bij een dalende trend is uitstellen een verdienmodel. Nieuwbouw gaat op z´n gat liggen. Behalve die spa complexen van de gemeente Amsterdam die ze aan het bouwen zijn voor de minder bedeelde van de samenleving voor 800 piek per maand. Ondertussen komt iedereen die afgelopen 5 jaar een woning heeft gekocht onder water te staan. Bij relatiebreuken komen mensen direct in de problemen en komt er weer meer druk op de gebouwde spa complexen. Terwijl ze genieten van hun sauna kunnen ze wellicht met facetime nog een afspraak krijgen bij de schuldhulpverlening.
Hoe zouden we het vanaf de huidige situatie kunnen ontmarkten? Want 100 jaar de tijd hebben we niet. Tegen die tijd hebben we wel weer andere problemen. Doel moet hierbij zijn om de huidige excessieve groei van de woningprijzen een halt toe te roepen. Niet om in absolute zin woningwaarde te laten verdwijnen. (sociale)huurprijzen moeten natuurlijk de waarde van de markt ergens reflecteren om bovengenoemde problemen te voorkomen.
Uiteindelijk moeten we ergens beginnen en dan is woningen zien als een primaire behoefte waarbij corporaties die hun winst weer in nieuwbouw stoppen een voorkeurspositie geven helemaal zo gek nog niet.
Woningen zijn niet te goedkoop, maar gezien een hypotheek 30 jaar duurt en je dus vrij vroeg in het werkende leven in de tijd van veel groei qua loon een woning moet kopen wil je voor je AOW leeftijd een woning hypotheek vrij krijgen.dikkiedik schreef op zaterdag 12 oktober 2024 @ 10:35:
Als mensen geen deeltijden omdat alles in kannen en kruiken is, dan betekent het toch in feite dat de woningen nog altijd te goedkoop zijn? Of eigenlijk het leven in het algemeen? Niet voor iedereen, maar er is een forse groep voor wie dit geldt. En mensen die niet gaan deeltijden die kopen wel een lekkere SUV voor op de oprit.
Ik vind overigens een SUV voor je oprit als doel wel vrij treurig als ik eerlijk ben.
Hard werken en veel verdienen zijn echt twee verschillende dingen.dikkiedik schreef op zaterdag 12 oktober 2024 @ 10:08:
[...]
Het goede van deze ontwikkeling is wel dat werken weer gaat lonen. En harde werkers kunnen hierdoor nog beloond worden met een fijne woning.
Gek genoeg leven we in een wereld waarin degenen die de meeste (onregelmatige) uren draaien of het zwaarste beroep doen over het algemeen juist een stuk minder verdienen. Ook die mensen hebben recht op een woning.
Das een onjuiste redenering. Starters zijn een subgroep van jongeren en zegt niks over het gemiddelde inkomen of aantal rijke jongeren in de totale groep.Requiem19 schreef op zaterdag 12 oktober 2024 @ 08:37:
[...]
Dat klopt.
Maar er zijn kennelijk 5x zoveel rijkere jongeren in 2024 tov 2020.
Het zijn gouden tijden voor jonge mensen op de arbeidsmarkt.
Het zegt eerder dat omdat huizen steeds duurder worden enkel de rijkste groep overblijft om dit te kunnen betalen en daardoor het aandeel goedverdieners in de startersgroep stijgt.
Belastingschalen en tarieven verlagen lost helemaal niets op, behalve het spekken van de haves. Mensen met hoge inkomens hebben over het algemeen toch al hun manieren om minder belastingen af te dragen.dikkiedik schreef op zaterdag 12 oktober 2024 @ 10:35:
[...]
lagere arbeidskortingen, lagere grenzen van belastingschalen. Progressiviteit uit het systeem proberen te halen. Zorgen dat de extra belastingopbrengsten ten goede komen van de bruto inkomens van banen waar nu een schreeuwend tekort aan is en beschouwd worden als ondergewaardeerd.
Of natuurlijk andersom. Hogere inkomens minder belasting laten betalen om doorwerken te laten lonen. Maar dat valt meestal niet zo lekker.
Als mensen geen deeltijden omdat alles in kannen en kruiken is, dan betekent het toch in feite dat de woningen nog altijd te goedkoop zijn? Of eigenlijk het leven in het algemeen? Niet voor iedereen, maar er is een forse groep voor wie dit geldt. En mensen die niet gaan deeltijden die kopen wel een lekkere SUV voor op de oprit.
Daarnaast is het een beetje treurig om te lezen dat het blijkbaar normaal is dat stelletjes maar fulltime moeten werken voor een dak boven hun hoofd (en stellen dat huizen daarom blijkbaar te goedkoop zijn..).
Gij zult tot uw dood loonslaaf zijn. Want kinderen, mantelzorg, vrijwilligerswerk, zorg voor je ouders, de buurman helpen in de tuin, een leuke hobby of wat meer buiten zijn is natuurlijk compleet overbodige luxe.
Dat ligt aan de bron van het inkomen. Volgens mij is er geen enkele manier waarbij je in loondienst met magische trucjes wel even minder belasting gaat afdragen, want het is immers al afgedragen alvorens je het geld op je rekening krijgt. Werken in loon dienst is, ongeacht je salaris, de minst belonende vorm van inkomen op dit moment in Nederland.geekeep schreef op zaterdag 12 oktober 2024 @ 11:49:
[...]
Belastingschalen en tarieven verlagen lost helemaal niets op, behalve het spekken van de haves. Mensen met hoge inkomens hebben over het algemeen toch al hun manieren om minder belastingen af te dragen.
- Verdien je €200.000 per jaar door 60 uur per week operaties uit te voeren als medisch specialist? Dan hou je hier €110.464 van over op jaarbasis, ongeacht welke creatieve constructie je ook gaat bedenken.
- Heb je ooit een of meerdere panden gekocht voor de verhuur, of simpelweg geld laten renderen op welke manier dan ook met beleggen en schenk je dit geld aan je kinderen (zonder enige vrijstelling), dan blijft er van die €200.000 minimaal € 176.564 over.
Als we dan even kijken naar de oude jubelton regeling, waarbij familie A (eigen kind X) een ton kon schenken en daarnaast kind Y van familie B eveneens een ton kon schenken, waarbij familie B dan kind X ook een ton kon schenken (ja, dit was gewoon toegestaan tot in oneindige aantallen), dan kun je niet anders zien dah dat werken in Nederland hard wordt "gestraft".
Hoe de mensen voordat je geboren bent hebben geacteerd is meer bepalend voor de huidige woningmarkt dan je eigen kunnen en dan ben je waarschijnlijk al iemand met een top X (misschien wel top 1%) inkomen voor iemand in loondienst.
De belasting op arbeid is gewoonweg te hoog, en juist al het andere is te laag naar mijn mening, want als je het eenmaal bezit, kunnen hele families en generaties daar eeuwig op voortborduren. Jij noemt zoals het er nu staat alle mensen met een hoog inkomen de "haves", terwijl het vooral de mensen zijn met een hoge bron van inkomsten uit iets anders dan arbeid die behoren tot de "haves", want ondanks dat eerdergenoemde medisch specialist financieel gezien geen zwaar leven zal hebben, zal ie het toch afleggen tegen de buurman waarvan de ouders het goed voor elkaar hadden (op welke manier ze er dan ook zijn gekomen).
Expats.Requiem19 schreef op zaterdag 12 oktober 2024 @ 07:36:
Leeftijd van starters gaat omlaag, EN het gemiddeld inkomen van de starter stijgt sterk.
[...]
https://www.nu.nl/economi...eds-jonger-en-rijker.html
Mama mia, 25% van de kopers onder de 32 verdient 75k of meer.
Eerder dat nieuwbouw dusdanig duur is dat een steeds kleiner wordende groep jongeren het kan betalen. 350k voor een studio, dan heb je als single die 75k inkomen gewoon nodig.Requiem19 schreef op zaterdag 12 oktober 2024 @ 08:37:
Maar er zijn kennelijk 5x zoveel rijkere jongeren in 2024 tov 2020.
Het zijn gouden tijden voor jonge mensen op de arbeidsmarkt.
Regio Utrecht 1850Wp@79° 3700Wp@259°
I know, het was ook voornamelijk om aan te geven dat het verlagen van de hoogste belastingschaal weinig uithaalt zonder ook aan andere knoppen te draaien.Paprika schreef op zaterdag 12 oktober 2024 @ 12:23:
[...]
Dat ligt aan de bron van het inkomen. Volgens mij is er geen enkele manier waarbij je in loondienst met magische trucjes wel even minder belasting gaat afdragen, want het is immers al afgedragen alvorens je het geld op je rekening krijgt. Werken in loon dienst is, ongeacht je salaris, de minst belonende vorm van inkomen op dit moment in Nederland.
- Verdien je €200.000 per jaar door 60 uur per week operaties uit te voeren als medisch specialist? Dan hou je hier €110.464 van over op jaarbasis, ongeacht welke creatieve constructie je ook gaat bedenken.
- Heb je ooit een of meerdere panden gekocht voor de verhuur, of simpelweg geld laten renderen op welke manier dan ook met beleggen en schenk je dit geld aan je kinderen (zonder enige vrijstelling), dan blijft er van die €200.000 minimaal € 176.564 over.
Als we dan even kijken naar de oude jubelton regeling, waarbij familie A (eigen kind X) een ton kon schenken en daarnaast kind Y van familie B eveneens een ton kon schenken, waarbij familie B dan kind X ook een ton kon schenken (ja, dit was gewoon toegestaan tot in oneindige aantallen), dan kun je niet anders zien dah dat werken in Nederland hard wordt "gestraft".
Hoe de mensen voordat je geboren bent hebben geacteerd is meer bepalend voor de huidige woningmarkt dan je eigen kunnen en dan ben je waarschijnlijk al iemand met een top X (misschien wel top 1%) inkomen voor iemand in loondienst.
De belasting op arbeid is gewoonweg te hoog, en juist al het andere is te laag naar mijn mening, want als je het eenmaal bezit, kunnen hele families en generaties daar eeuwig op voortborduren. Jij noemt zoals het er nu staat alle mensen met een hoog inkomen de "haves", terwijl het vooral de mensen zijn met een hoge bron van inkomsten uit iets anders dan arbeid die behoren tot de "haves", want ondanks dat eerdergenoemde medisch specialist financieel gezien geen zwaar leven zal hebben, zal ie het toch afleggen tegen de buurman waarvan de ouders het goed voor elkaar hadden (op welke manier ze er dan ook zijn gekomen).
Daarnaast durf ik te wedden dat de gemiddelde persoon die twee ton verdient zich verhuurt via een bv-tje en zichzelf een loon precies onder die 75k laat uitbetalen.
Daarnaast ben ook ik voorstander van (inkomen uit) vermogen (zowel privé als bij grote bedrijven) meer belasten. In deze tijden van vergrijzing en personeelstekorten is arbeid een schaarser goed dan wat bitcoins of de tig financiële producten en afgeleiden die er tegenwoordig bestaan, waar we makkelijk zonder kunnen.
Correctie, als iedereen aan zichzelf denkt, zal niemand merken wie er allemaal buiten de boot vallen.dikkiedik schreef op zaterdag 12 oktober 2024 @ 10:08:
[...]
Als iedereen aan zichzelf denkt zal niemand worden overgeslagen.
dat moet iedereen helemaal lekker zelf weten. Als het maar niet ten koste gaat van de staatskas wat mij betreft. Het onttrekken van arbeid, zeker voor de middengroep die rond modaal of net boven modaal zit, heeft een gigantisch effect op je 'absolute netto bijdrage' aan de maatschappij. En deze netto bijdrage bedoel ik gewoon in keiharde pegels. Niet de zinvolheid van banen en wat je daarmee bijdraagt.spijkerhoofd schreef op zaterdag 12 oktober 2024 @ 12:43:
Ik word eerlijk gezegd een beetje moe van de constante focus op de parttime werkers. Ik vind persoonlijk 2x 40 uur totaal niet wenselijk, sinds de norm 2x 40 uur is geworden is het aantal burn outs en mentale issues bij deze mensen enorm gestegen. Het zijn vooral stellen die minder gaan werken omdat 2x 40 uur gewoon simpel weg niet vol te houden is voor de meeste mensen, al helemaal icm het laagst aantal vakantiedagen van Europa, het laagst aantal ouderschapsverloven voor ouders en de schandalig laag aantal weken van geboorteverlof. Ik zie veel liever een Scandinavische model waarbij moeders een jaar uit de running mogen zijn om te binden met het pasgeboren kind en het aantal vakantiedagen rond de 40 dagen is. Werkgevers zijn zelf verantwoordelijk voor de velen parttimers vind ik door vooral aan henzelf te denken en zo min mogelijk rechten te bewerkstelligen voor de werknemers. Waarom mogen werkgevers en Neo Liberalen wel aan henzelf denken maar de gewone werkenden niet? En speaking of liberaal, liberalen vinden vrijheden enorm belangrijk, waarom doen ze dan zo moeilijk over de vrijheid om minder te werken?
Het progressieve belastingstelsel draagt hier aan bij. En deeltijders genieten hierdoor onevenredig veel belastingkorting t.o.v. je collega's in de zelfde functie die meer uren werken.
Een progressief stelsel is bedacht om de mensen die niet meer kunnen verdienen toch de gelegenheid een goed leven te hebben. Niet om de mensen die het goed hebben de gelegenheid te geven om minder te werken.
Omdat die 100 jaar expliciet in het artikel over Wenen staat. Dit heeft 100 jaar geduurd om dit te bereiken. Als we dit plaatje, inclusief referentieprijs van €8/m² gaan projecteren op de Nederlandse markt, dan gaan die 100m²+ appartementen met zwembad op A locaties natuurlijk gigantisch de markt verstoren. En als deze dan gebouwd gaan worden in de hoeveelheden zoals in Wenen gaat dat een flink drukkend effect geven op de woningprijzen. Terwijl het ten kosten gaat van belastingopbrengsten en een forse deuk slaat in de begroting.geekeep schreef op zaterdag 12 oktober 2024 @ 11:29:
[...]
Waarom gelijk weer in het extreme trekken en het over 100 jaar lang woningen met zwembaden van 800p/m bouwen?
Uiteindelijk moeten we ergens beginnen en dan is woningen zien als een primaire behoefte waarbij corporaties die hun winst weer in nieuwbouw stoppen een voorkeurspositie geven helemaal zo gek nog niet.
Woningen zijn duur, en dat moeten ze ook zeker blijven. We moeten echt niet gaan aansturen op goedkopere woningen dan nu want dan hebben we in no-time een huizencrisis. Met stokkende nieuwbouwprojecten en grotere druk op sociale woningbouw. Laten we er vooral wel alles aan doen om de groei te normaliseren naar 2-3% per jaar. De huidige 10+% is natuurlijk wel een probleem.
gelukkig kunnen de meeste mensen zwemmen.Rubbergrover1 schreef op zaterdag 12 oktober 2024 @ 15:37:
[...]
Correctie, als iedereen aan zichzelf denkt, zal niemand merken wie er allemaal buiten de boot vallen.
Ben nog steeds benieuwd of het hier gaat om 75k verzamelinkomen gemiddeld of per persoon. Maar zelfs met 75k inkomen voor je 30e ben je nog verre van 'rijk'.Requiem19 schreef op zaterdag 12 oktober 2024 @ 08:37:
[...]
Dat klopt.
Maar er zijn kennelijk 5x zoveel rijkere jongeren in 2024 tov 2020.
Het zijn gouden tijden voor jonge mensen op de arbeidsmarkt.
Maar wat @Paprika mooi uiteenzette. Loondienst loont nou niet bepaald. Je kunt er een leuke boterham mee smeren, maar echt lekker snel vermogend worden is lastig. Zelfs met top inkomens. Terwijl je bijdrage zowel in arbeid als absolute belasting bijdrage erg groot is.
Het is inderdaad makkelijk praten voor de mensen die op de boot zitten, totdat ze zelf (om wat voor reden dan ook) opeens ernaast dobberen.Rubbergrover1 schreef op zaterdag 12 oktober 2024 @ 15:37:
[...]
Correctie, als iedereen aan zichzelf denkt, zal niemand merken wie er allemaal buiten de boot vallen.
Werkelijk iedereen kan iets overkomen, buiten eigen schuld om. Maar dat beseffen individualisten pas als ze zelf in zo'n situatie terecht komen.
We hebben een gigantisch sociaal vangnet. Die is bijna nergens zo groot als in Nederland. Daar ben ik een groot voorstander van, maar we moeten uitkijken dat we die niet nog groter maken dan die al is. Het schaad namelijk de zelfredzaamheid behoorlijk.geekeep schreef op zaterdag 12 oktober 2024 @ 17:05:
[...]
Het is inderdaad makkelijk praten voor de mensen die op de boot zitten, totdat ze zelf (om wat voor reden dan ook) opeens ernaast dobberen.
Werkelijk iedereen kan iets overkomen, buiten eigen schuld om. Maar dat beseffen individualisten pas als ze zelf in zo'n situatie terecht komen.
Je doet alsof zelfredzaamheid een keuze is. Dat geldt slechts voor een beperkte groep.dikkiedik schreef op zaterdag 12 oktober 2024 @ 17:10:
[...]
We hebben een gigantisch sociaal vangnet. Die is bijna nergens zo groot als in Nederland. Daar ben ik een groot voorstander van, maar we moeten uitkijken dat we die niet nog groter maken dan die al is. Het schaad namelijk de zelfredzaamheid behoorlijk.
Als je je druk wilt maken over grote overheidsuitgaven kun je je aandacht beter richten op allerlei subsidies en belastingvoordeeltjes richting (vervuilende) miljardenindustriën waarvan een groot deel van het geld richting het buitenland verdwijnt.
Het is nou eenmaal zo dat een (groeiende) groep mensen geen woning meer kan kopen, maar wel onderdak nodig heeft. En er zijn genoeg mensen die niet fulltime werken maar méér bijdragen aan onze economie of maatschappij dan een gemiddelde manager of consultant. Waarom zouden die parttimers in hemelsnaam minder 'recht' hebben op een betaalbare woning dan het hokje waar je liefst iedereen in ziet zitten?
Ten koste van de staatskas, tja dan moeten we belasting op kerosine fors verhogen, bedrijven net zoveel energie en vervuilingsbelasting betalen als gewone burgers, de kansen om belasting ontwijking voor bedrijven en ondernemers nihil maken en de belastingen op vermogen, erfenissen en schenkingen fors verhogen, want we willen tenslotte niet dat de staatskas pegels missen toch?dikkiedik schreef op zaterdag 12 oktober 2024 @ 17:03:
dat moet iedereen helemaal lekker zelf weten. Als het maar niet ten koste gaat van de staatskas wat mij betreft. Het onttrekken van arbeid, zeker voor de middengroep die rond modaal of net boven modaal zit, heeft een gigantisch effect op je 'absolute netto bijdrage' aan de maatschappij. En deze netto bijdrage bedoel ik gewoon in keiharde pegels. Niet de zinvolheid van banen en wat je daarmee bijdraagt.
Het progressieve belastingstelsel draagt hier aan bij. En deeltijders genieten hierdoor onevenredig veel belastingkorting t.o.v. je collega's in de zelfde functie die meer uren werken.
Een progressief stelsel is bedacht om de mensen die niet meer kunnen verdienen toch de gelegenheid een goed leven te hebben. Niet om de mensen die het goed hebben de gelegenheid te geven om minder te werken.
Daarnaast, ik denk niet dat er wat gebeuren aan de belastingstelsel zoals het nu is, want als de helft van de mensen parttime werkt is dat een enorm stemmerspotentieel, geen partij in Nederland die zoveel miljoen mensen tegen hen in het harnas wilt jagen...
Verwijderd
Precies dat! Straks nog meer arbeidsmigranten nodig...meer woningen : Iedereen part-time, ook de bouwvakkersspijkerhoofd schreef op zaterdag 12 oktober 2024 @ 18:04:
[...]
Ten koste van de staatskas, tja dan moeten we belasting op kerosine fors verhogen, bedrijven net zoveel energie en vervuilingsbelasting betalen als gewone burgers, de kansen om belasting ontwijking voor bedrijven en ondernemers nihil maken en de belastingen op vermogen, erfenissen en schenkingen fors verhogen, want we willen tenslotte niet dat de staatskas pegels missen toch?
Daarnaast, ik denk niet dat er wat gebeuren aan de belastingstelsel zoals het nu is, want als de helft van de mensen parttime werkt is dat een enorm stemmerspotentieel, geen partij in Nederland die zoveel miljoen mensen tegen hen in het harnas wilt jagen...
Ook dat lijken me prima ideeën als we die mondiaal uitvoeren.spijkerhoofd schreef op zaterdag 12 oktober 2024 @ 18:04:
[...]
Ten koste van de staatskas, tja dan moeten we belasting op kerosine fors verhogen, bedrijven net zoveel energie en vervuilingsbelasting betalen als gewone burgers, de kansen om belasting ontwijking voor bedrijven en ondernemers nihil maken en de belastingen op vermogen, erfenissen en schenkingen fors verhogen, want we willen tenslotte niet dat de staatskas pegels missen toch?
Maar zoals je zelf al schetst. Het is een grote groep kiezers. Maar eerlijk gezegd is het sentiment voor belasting op arbeid verlagen en werken weer laten lonen zelden zo sterk geweest als nu. De maatregelen die er uit rollen is alleen nog wel wat geneuzel in de marge, maar de richting is duidelijk. En ook logisch in arbeid schaarste.
Ook voor de 4 daagse werkweek is de roep nog nooit zo hoog, dus wat zegt dat? En we hebben geen arbeidsschaarste maar een overschot aan banen. In de jaren 70 en 80 hadden we 5 miljoen werkenden, vrouwen zaten massaal thuis, toen moest het woord personeelstekorten nog worden uitgevonden. Anno 2024 werken er meer dan 10 miljoen mensen, in 2023 is er nog nooit zoveel uren gewerkt ondanks de parttime cultuur, en we hebben nog steeds last van een personeelstekort? Ik geloof er niet in, eerlijk gezegd kunnen we prima met een 4 daagse werkweek...dikkiedik schreef op zaterdag 12 oktober 2024 @ 19:07:
[...]
Ook dat lijken me prima ideeën als we die mondiaal uitvoeren.
Maar zoals je zelf al schetst. Het is een grote groep kiezers. Maar eerlijk gezegd is het sentiment voor belasting op arbeid verlagen en werken weer laten lonen zelden zo sterk geweest als nu. De maatregelen die er uit rollen is alleen nog wel wat geneuzel in de marge, maar de richting is duidelijk. En ook logisch in arbeid schaarste.
Lijkt mij een prima idee. Hierdoor verschuif je in elk geval de inkomstenbelasting weer iets weg van de huidige fulltimers naar parttimers. Er vanuit gaande dat parttimers weer contract uitbreiding gaan nemen bij invoer van deze 4 daagse werkweek.spijkerhoofd schreef op zaterdag 12 oktober 2024 @ 19:13:
[...]
Ook voor de 4 daagse werkweek is de roep nog nooit zo hoog, dus wat zegt dat? En we hebben geen arbeidsschaarste maar een overschot aan banen. In de jaren 70 en 80 hadden we 5 miljoen werkenden, vrouwen zaten massaal thuis, toen moest het woord personeelstekorten nog worden uitgevonden. Anno 2024 werken er meer dan 10 miljoen mensen, in 2023 is er nog nooit zoveel uren gewerkt ondanks de parttime cultuur, en we hebben nog steeds last van een personeelstekort? Ik geloof er niet in, eerlijk gezegd kunnen we prima met een 4 daagse werkweek...
Opzich is met 36 uur natuurlijk ook prima een 4 daagse werkweek te maken. Dus misschien hebben we deze al wel een beetje in de sectoren waar 36 fulltime is.
Wellicht moeten we 120 jaar aan vooruitgang in arbeids- en woningwetten opschorten en weer terug naar 6 dagen per week 80 uur werken, zodat we 's avonds thuis kunnen komen in onze erbarmelijke tochthokken. Je moest eens weten hoe hard de economische motor toen draaide. Een en al weelde.spijkerhoofd schreef op zaterdag 12 oktober 2024 @ 19:13:
[...]
Ook voor de 4 daagse werkweek is de roep nog nooit zo hoog, dus wat zegt dat? En we hebben geen arbeidsschaarste maar een overschot aan banen. In de jaren 70 en 80 hadden we 5 miljoen werkenden, vrouwen zaten massaal thuis, toen moest het woord personeelstekorten nog worden uitgevonden. Anno 2024 werken er meer dan 10 miljoen mensen, in 2023 is er nog nooit zoveel uren gewerkt ondanks de parttime cultuur, en we hebben nog steeds last van een personeelstekort? Ik geloof er niet in, eerlijk gezegd kunnen we prima met een 4 daagse werkweek...
Dat heet innovatie. Grotendeels van de mensen leven een middelmatig leven en waaien met elke wind mee. Alleen een kleine, selecte groep mensen zorgt voor de innovaties die leiden tot aanzienlijke verbeteringen in onze levenskwaliteit.geekeep schreef op zaterdag 12 oktober 2024 @ 19:36:
[...]
Wellicht moeten we 120 jaar aan vooruitgang in arbeids- en woningwetten opschorten en weer terug naar 6 dagen per week 80 uur werken, zodat we 's avonds thuis kunnen komen in onze erbarmelijke tochthokken. Je moest eens weten hoe hard de economische motor toen draaide. Een en al weelde.
Ik ben van de millennialgeneratie waar de meeste de moeders nog gewoon huismoeder waren of parttime werkten. Er was dus toen nog nauwelijks een industrie om kinder te dumpen omdat papa en mama iets te veel schulden hadden. De directeur op de basisschool was tevens leraar nu hebben we overkoepelende onderwijsorganisaties met een leger aan managers en enorme overhead. Vrijwel iedereen schilderde zelf zijn eigen huis, deed het tuinonderhoud zelf en de meeste klussen werden zelf gedaan al dan niet met een paar vrienden of familieleden. Inmiddels zijn er oneindig veel klussenbedrijven die niks anders doen dan simpele klusjes die juist door innovatie veel eenvoudiger zijn dan ooit. Voor een (relatief) gezonde maaltijd te bereiden ontbreekt vaak de tijd, dus grijpt men sneller naar, in verhouding best dure, zoute Unilever potjes en mixjes of iets bestellen via thuisbezorgd. Wat de maatschappelijke kosten van obesitas is, weten we allemaal wel. Maar zorgt wel voor veel werkgelegenheid.
Zo moet het radertje steeds sneller draaien. Hetzelfde voor een huis. We krijgen de boodschap ingeprent dat een huis kopen een goede investering is, terwijl een huis pas rendement oplevert als het volledig is afbetaald. Van overwaarde wordt alleen een piramide spelletje in leven gehouden waarvan de meeste consumenten echt niet van profiteren. Als jouw huis in waarde stijgt, stijgt die van de buren ook in waarde. Tenzij je besluit te verhuizen van de stad naar de diepste krochten van de provincie of een “ik vertrek je doet” En je van je overwaarde cash een aftands boerderijtje kunt kopen in de campagne. Anders zul je er weinig voordeel aan hebben.
Nee verhuizen naar een ander huis betekent meestal alle “winst” van je verkochte huis inleggen in combinatie met loonstijging waardoor je meer kunt lenen. Daarmee zit je opnieuw vast aan een hypotheek van 30 jaar en hogere maandlasten. Terwijl je je vorige huis misschien al voor de helft had afgelost en door loonstijgingen je hypotheeklasten nihil zijn. Met een beetje discipline had je de hypotheek binnen enkele jaren kunnen aflossen. Zonder hypotheek leef je, ook in Nederland, als een god in Frankrijk. Dan kun je voor je vijftigste beginnen met minder werken, en meer tijd nemen voor hobby’s en interesses. Maar nee, de Nederlander zit liever in de schulden en werkt door tot zijn 67e, niet omdat het werk zijn passie is, maar om elke maand rond te komen.
Minder werken en je tijd anders verdelen is een zegen voor de samenleving maar een ramp voor het BBP.
En wat denk je dat er met de 3 dagen vrij dan gebeurd? Gaan ze leuke dingen doen, zoals een lang weekendje weg. Creëer je nog meer werkgelegenheid als heel NL 3 dagen vrij heeft. Stel je toch eens voor dat leraren ook zeggen, laten we maar 4 dagen school doen per week. Want de kinderen gaan later toch maar 4 dagen per week werken ipv 5.spijkerhoofd schreef op zaterdag 12 oktober 2024 @ 19:13:
[...]
Ook voor de 4 daagse werkweek is de roep nog nooit zo hoog, dus wat zegt dat? En we hebben geen arbeidsschaarste maar een overschot aan banen. In de jaren 70 en 80 hadden we 5 miljoen werkenden, vrouwen zaten massaal thuis, toen moest het woord personeelstekorten nog worden uitgevonden. Anno 2024 werken er meer dan 10 miljoen mensen, in 2023 is er nog nooit zoveel uren gewerkt ondanks de parttime cultuur, en we hebben nog steeds last van een personeelstekort? Ik geloof er niet in, eerlijk gezegd kunnen we prima met een 4 daagse werkweek...
Niet iedereen heeft een bullshit baan er zijn ook nog mensen die in de gezondheidszorg werken of bij de politie.spijkerhoofd schreef op zaterdag 12 oktober 2024 @ 19:13:
[...]
Ook voor de 4 daagse werkweek is de roep nog nooit zo hoog, dus wat zegt dat? En we hebben geen arbeidsschaarste maar een overschot aan banen. In de jaren 70 en 80 hadden we 5 miljoen werkenden, vrouwen zaten massaal thuis, toen moest het woord personeelstekorten nog worden uitgevonden. Anno 2024 werken er meer dan 10 miljoen mensen, in 2023 is er nog nooit zoveel uren gewerkt ondanks de parttime cultuur, en we hebben nog steeds last van een personeelstekort? Ik geloof er niet in, eerlijk gezegd kunnen we prima met een 4 daagse werkweek...
De helft van de mensen heeft nu 3 dagen vrij, zorgt dat echt voor meer werkgelegenheid? De meeste leraren werken al parttime, zoveel zou dat niet uitmaken dus. Hoeveel weekendjes worden er extra geboekt? Ik denk vrij weinig want het is een dure aangelegenheid, en meer vraag betekend dat de weekendjes duurder gaan worden. Die extra dag vrij word door veel parttimers nu gebruikt voor het onbetaalde werk zoals huishouden en mantelzorg zodat weekend echt weekend is.kx22 schreef op zaterdag 12 oktober 2024 @ 22:11:
[...]
En wat denk je dat er met de 3 dagen vrij dan gebeurd? Gaan ze leuke dingen doen, zoals een lang weekendje weg. Creëer je nog meer werkgelegenheid als heel NL 3 dagen vrij heeft. Stel je toch eens voor dat leraren ook zeggen, laten we maar 4 dagen school doen per week. Want de kinderen gaan later toch maar 4 dagen per week werken ipv 5.
En zoals @Autonoesis aangeeft; we waren in het verleden ook veel meer in staat om zelf het e.a. te doen. Nu lijkt iedereen 2 linkerhanden te hebben en overal iemand voor in moeten huren. Eigenlijk is dat ook heel raar want de meeste klussen die je zelf zou kunnen doen staan op YouTube in detail uitgelegd.
Dan kom je er volgens mij op uit dat we de mensen die we hebben moeten stimuleren om zinnig werk te laten doen.
Waarom verander je niet van baan? Als je wilt dat mensen wat zinnigs doen qua werk moet je beginnen bij jezelf. IT kan heel zinnig zijn door aan een systeem te bouwen die automatisering van menselijk werk kan vervangen of dingen gemakkelijker te maken voor werkenden, maar het kan idd ook een onzinproject zijn die weinig toevoegt aan de maatschappij.ProvideInRoot schreef op zondag 13 oktober 2024 @ 07:11:
Ik geloof dat die 4 daagse werkweek echt wel mogelijk is. Een belangrijk punt zou moeten zijn dat we meer zinnig werk gaan doen. We werken momenteel met zijn allen enorm veel uren maar wat voegt het echt toe. Inclusief mijzelf, ik werk in de IT. Maar wat ben ik in hemelsnaam aan het bouwen, een marketingsysteem voor een groot bedrijf dat weinig tot niets toevoegt aan het geluk van mensen.
Ben gedetacheerd en heb de opdracht opgezegd, dus nu kritischer zijn op de volgende opdracht. Ben ook bereid om weer vast in dienst te gaan als de opdrachten allemaal van deze aard zijn. Dan maar iets minder inkomen.spijkerhoofd schreef op zondag 13 oktober 2024 @ 07:37:
[...]
Waarom verander je niet van baan? Als je wilt dat mensen wat zinnigs doen qua werk moet je beginnen bij jezelf. IT kan heel zinnig zijn door aan een systeem te bouwen die automatisering van menselijk werk kan vervangen of dingen gemakkelijker te maken voor werkenden, maar het kan idd ook een onzinproject zijn die weinig toevoegt aan de maatschappij.
Op een gegeven moment zat de helft op z'n telefoon te frutten op Funda, Huispedia en andere sites.
Wat me op viel is hoe rijk mensen echt zijn als je kijkt naar uitgaven en wat hun fictieve vermogen is met absurde overwaardes. We deden met de kinderen een kado van 20 euro pp voor m'n pa, want we moeten toch een beetje op de uitgaven letten, op de parkeerplaats stonden 2e hands Picanto's en een oude RAV4.
Maar na wat zoekwerk hadden we volgens de WOZ/Huispedia samen letterlijk miljoenen aan overwaarde.
Dingen als Games & Music enzo | En 3D/AI/PS hier | CivitAI Models en Prompts
Zie zelf liever kortere dagen, 's morgens ben ik mega productief, van 14 tot 17 deed amper wat, hier verder?spijkerhoofd schreef op zaterdag 12 oktober 2024 @ 19:13:
[...]
Ook voor de 4 daagse werkweek is de roep nog nooit zo hoog, dus wat zegt dat? En we hebben geen arbeidsschaarste maar een overschot aan banen. In de jaren 70 en 80 hadden we 5 miljoen werkenden, vrouwen zaten massaal thuis, toen moest het woord personeelstekorten nog worden uitgevonden. Anno 2024 werken er meer dan 10 miljoen mensen, in 2023 is er nog nooit zoveel uren gewerkt ondanks de parttime cultuur, en we hebben nog steeds last van een personeelstekort? Ik geloof er niet in, eerlijk gezegd kunnen we prima met een 4 daagse werkweek...
JDx in "Vierdaagse werkweek de nieuwe norm?"
Dingen als Games & Music enzo | En 3D/AI/PS hier | CivitAI Models en Prompts
Deels herkenbaar, ik ben ook een vroege vogel, ik begin ook om 7 uur zowel met thuiswerken als kantoordagen en kan om half 4 weer naar huis, voor mij is dat prima te doen want als ik op kantoor zit komen de meeste pas tussen half 9 en half 10 binnen en op kantoor zijn de meeste meetings pas in de middag.JDx schreef op zondag 13 oktober 2024 @ 08:22:
[...]
Zie zelf liever kortere dagen, 's morgens ben ik mega productief, van 14 tot 17 deed amper wat, hier verder?
JDx in "Vierdaagse werkweek de nieuwe norm?"
Voordeel is wel gezien ik een uur moet rijden dat ik voor de files op kantoor ben en in de middag voor de files naar huis kan.
Bijzonder om te zien dat de 4 daagse werkweek ook al op de agenda stond.
[ Voor 4% gewijzigd door spijkerhoofd op 13-10-2024 08:38 ]
Om zo'n starters studio te kunnen betalen heb je die 75k gewoon nodig, of wat minder en een jubelton van ouders. Met z'n tweeën lijkt mij persoonlijk gewoon te krap, maar als je dat doet wat is de kans dat beiden op fietsafstand van zo'n studio wonen? Dan heb je tenminste één auto nodig, ov vaak geen optie.
Regio Utrecht 1850Wp@79° 3700Wp@259°
Voor de generatie die een rente had in een hoog enkel cijfer of zelfs in de dubbele cijfers was verhuizen anders prima mogelijk naar een grotere woning met als gevolg ook nog eens lagere woonlasten. Een schuld van maximaal enkele tonnen is verwaarloosbaar met een lage rente, nog weinig af te lossen en een hedendaags inkomen.Autonoesis schreef op zaterdag 12 oktober 2024 @ 21:34:
[...]
Nee verhuizen naar een ander huis betekent meestal alle “winst” van je verkochte huis inleggen in combinatie met loonstijging waardoor je meer kunt lenen. Daarmee zit je opnieuw vast aan een hypotheek van 30 jaar en hogere maandlasten. Terwijl je je vorige huis misschien al voor de helft had afgelost en door loonstijgingen je hypotheeklasten nihil zijn. Met een beetje discipline had je de hypotheek binnen enkele jaren kunnen aflossen. Zonder hypotheek leef je, ook in Nederland, als een god in Frankrijk. Dan kun je voor je vijftigste beginnen met minder werken, en meer tijd nemen voor hobby’s en interesses. Maar nee, de Nederlander zit liever in de schulden en werkt door tot zijn 67e, niet omdat het werk zijn passie is, maar om elke maand rond te komen.
Weet nog goed dat mijn eerste hypotheekadviseur een buitenkans in de aanbieding had: 20 jaar vast voor 7% rente, dat had hij voor 1997 nog nooit gezien.Paprika schreef op zondag 13 oktober 2024 @ 09:37:
Voor de generatie die een rente had in een hoog enkel cijfer of zelfs in de dubbele cijfers was verhuizen anders prima mogelijk naar een grotere woning met als gevolg ook nog eens lagere woonlasten.
Zijn uiteindelijk voor 2 jaar ongeveer 5% aflossingsvrij gegaan, daarna alleen maar lager. Geld is nooit echt het probleem geweest, ook nu niet, vooral dat door kleinere duurdere nieuwbouw de volgende stap in je wooncarriere weinig toegevoegde waarde meer heeft.
Regio Utrecht 1850Wp@79° 3700Wp@259°
Een uur rijden naar werk? Daar moet ik niet aan denkenspijkerhoofd schreef op zondag 13 oktober 2024 @ 08:37:
[...]
Deels herkenbaar, ik ben ook een vroege vogel, ik begin ook om 7 uur zowel met thuiswerken als kantoordagen en kan om half 4 weer naar huis, voor mij is dat prima te doen want als ik op kantoor zit komen de meeste pas tussen half 9 en half 10 binnen en op kantoor zijn de meeste meetings pas in de middag.
Voordeel is wel gezien ik een uur moet rijden dat ik voor de files op kantoor ben en in de middag voor de files naar huis kan.
Bijzonder om te zien dat de 4 daagse werkweek ook al op de agenda stond.
Om 6 uur vertrekken valt het enorm mee qua drukte, nooit last van files of überhaupt drukte! Daarnaast het is maar voor 2 dagen en de werkplek is erg leuk, ik ga er met plezier heen dus dan valt het mee...jellybrah schreef op zondag 13 oktober 2024 @ 10:17:
[...]
Een uur rijden naar werk? Daar moet ik niet aan denken
Let erop dat je in het juiste topic post. Persoonlijke ervaringen en individuele vragen rondom het kopen en verkopen van huizen, of ervaringen betreffende het zelf bouwen van huizen kunnen in de desbetreffende topics worden geplaatst.
Puur beweren dat immigratie de oorzaak is van de problemen op de woningmarkt willen we hier dus ook niet zien en is off-topic. De algemene migratieproblematiek mag in: Migrantenproblematiek: Migratie in Nederland: problemen, oplossingen en achtergrond
Overige onderwerpen die wel raakvlak hebben met de woningmarkt, maar een eigen topic hebben voor verdieping:
Stikstofproblematiek: De stikstofproblematiek: oorzaak, gevolgen en oplossingen
Ruimtelijke ordening: Ruimtelijke ordening in NL: problemen en achtergronden
WOZ discussie: Ervaringen met de WOZ waarde
Overige discussies mogen in: De wonen kroeg