Hoeder van het Noord-Meierijse dialect
Nee, dak bedoel ik. Ben wel een tweaker. Zolderkamer eerste prioriteitHarrie_ schreef op zaterdag 21 juli 2018 @ 21:32:
[...]
Bedoel je op de voorzijde van je kap of echt letterlijk in de voortuin?
Ga je wel een architect nemen of verzin je zelf iets wat je uit laat tekenen, of ga je voor een totaalbouwer, of weet je het nog niet?grote_oever schreef op zaterdag 21 juli 2018 @ 20:46:
[...]
Bedankt! Het is een twee-onder-één kap en de gemeente laat ons helemaal vrij om er een huis op te zetten samen met de buren. Zitten wel eisen aan hoogte etc, maar niet zozeer aan de stijl. In de buurt is het heel normaal om alle stijlen door elkaar te bouwen (persoonlijk vind ik dit ook het mooiste, ipv straten met dezelfde soort woning).
Zelf nog heel erg aan het oriënteren wat we willen. Voortuin heb ik op het zuiden, dus die kant kom in ieder geval helemaal vol met zonnepanelen. Dit zorgt alweer voor een beperking in architectuur. We willen zoveel mogelijk zelf regelen, maar hebben weinig ervaring erin. Dus het is flink wat uren spitten op internet.
[ Voor 3% gewijzigd door Ernemmer op 21-07-2018 22:19 ]
Voordeel voor ons is dat er al een tekening ligt van de eerste personen die de kavel hadden. Met name handig om te zien wat de medebouwers voor eisen hebben. We gaan eerst eens in gesprek met buren en kijken wat ze gedaan hebben. Daarna aannemer/architect voor aanpassen van de tekening. En morgens eerst veel rondjes rijden en kijken wat ze willen.Ernemmer schreef op zaterdag 21 juli 2018 @ 22:15:
[...]
Ga je wel een architect nemen of verzin je zelf iets wat je uit laat tekenen, of ga je voor een totaalbouwer, of weet je het nog niet?
Dan is er al een heleboel geregeld, scheelt jou weer een boel werk.grote_oever schreef op zaterdag 21 juli 2018 @ 22:30:
[...]
Voordeel voor ons is dat er al een tekening ligt van de eerste personen die de kavel hadden. Met name handig om te zien wat de medebouwers voor eisen hebben. We gaan eerst eens in gesprek met buren en kijken wat ze gedaan hebben. Daarna aannemer/architect voor aanpassen van de tekening. En morgens eerst veel rondjes rijden en kijken wat ze willen.
Scheelt inderdaad al met oriënteren, van die 3 schetsen hebben we de mooiste gepakt en hebben zelf Floorplanners gemaakt wat we wilden qua indeling (afgekeken van andere huizen op Funda). Ook een voorbeeld 2-kapper meegegeven (die wel leek op de bestaande schets alleen dan symmetrisch). Onze buren vonden onze indeling erg handig en hebben die laten schakelen (op wat aanpassingen na).
Heb ons traject al eens gepost hier (kwam er helaas pas na het bouwen achter dat dit topic er was) dus wellicht heb je er nog wat aan
https://gathering.tweaker...message/51965587#51965587
Vloerisolatie:

Keldervloer gestort:

Keldermuren gestort (bakken nog niet verwijderd).

Binnenmuren gemetseld

Kelderdek erop (breedplaatvloeren)

De kelder wordt momenteel onder water gezet zodat daarna de bodempomp eraf kan.
Mooi zo, net voor de bouwvak.JaxMcFadden schreef op zondag 22 juli 2018 @ 08:07:
Kelder bouwen voor beginners:
Vloerisolatie:
[afbeelding]
Keldervloer gestort:
[afbeelding]
Keldermuren gestort (bakken nog niet verwijderd).
[afbeelding]
Binnenmuren gemetseld
[afbeelding]
Kelderdek erop (breedplaatvloeren)
[afbeelding]
De kelder wordt momenteel onder water gezet zodat daarna de bodempomp eraf kan.
Kelder gebouwd door Emmers?
Met gestrekt been.
Yup door Emmers.... was een beetje de vraag of we ‘t gingen halen voor de bouwvak of niet... vooral toen die Belgen van Emmers lieten weten dat ze de volgende dag waarschijnlijk niet op zouden komen dagen vanwege een dikke kater als Belgie zou winnen van Frankrijk (gelukkig verloren zeArtbij schreef op zondag 22 juli 2018 @ 08:55:
[...]
Mooi zo, net voor de bouwvak.
Kelder gebouwd door Emmers?
Die van mij is ook van Emmers. Heb je helemaal geen ramen in je kelder?JaxMcFadden schreef op zondag 22 juli 2018 @ 08:58:
[...]
Yup door Emmers.... was een beetje de vraag of we ‘t gingen halen voor de bouwvak of niet... vooral toen die Belgen van Emmers lieten weten dat ze de volgende dag waarschijnlijk niet op zouden komen dagen vanwege een dikke kater als Belgie zou winnen van Frankrijk (gelukkig verloren ze)
Met gestrekt been.
Nee... de enige echte verblijfsruimte daar heeft een gameroom/homecinema bestemming dus daar waren ramen niet gewenst... (overige ruimtes zijn berging, technische ruimte en wijnkelder)Artbij schreef op zondag 22 juli 2018 @ 09:01:
[...]
Die van mij is ook van Emmers. Heb je helemaal geen ramen in je kelder?
[ Voor 9% gewijzigd door JaxMcFadden op 22-07-2018 09:20 ]
Is nogal een oppervlakte. Heb je zoveel wijn?JaxMcFadden schreef op zondag 22 juli 2018 @ 09:14:
[...]
Nee... de enige echte verblijfsruimte daar heeft een gameroom/homecinema bestemming dus daar waren ramen niet gewenst... (overige ruimtes zijn berging, technische ruimte en wijnkelder)
Met gestrekt been.
Haha. Ik vind wijn bewaren zo zonde....
Met gestrekt been.
Op de foto's (vooral de 1e) kun je zien dat er om de bouwoppervlakte heen pompen geinstalleerd zijn die het grondwater wegpompen zodat er gegraven/gestort/gewerkt kan worden. Nu de kelder 'af' is kan deze bodempomp in principe uit (dat vinden de buren ook wel zo fijn - dat ding staat 24/7 aan).woekele schreef op zondag 22 juli 2018 @ 10:07:
Kun je wat meer vertellen over het onder water zetten van de kelder? Is voor mij iets nieuws
Echter, het simpelweg uitzetten van de pomp heeft dat gevolg dat het grondwater terug komt en de kracht van het water kan ervoor zorgen dat je kelder gaat 'drijven' en omhoog geduwd wordt. Hetzelfde kan je zien bij mensen die hun zwembad helemaal leegpompen als lokaal het grondwater hoog staat.
Straks, als de gehele woning erop staat, dan zorgt het gewicht van de woning ervoor dat de kelder op z'n plek blijft. Tot die tijd kun je de kelder onderwater zetten om voldoende druk naar beneden te creeeren om 'm op z'n plek te houden.
Zorg wel dat je kelder zsm helemaal droog is. In de muren gaat veel vocht zitten en het duurt lang voordat dat eruit is.JaxMcFadden schreef op zondag 22 juli 2018 @ 10:12:
[...]
Op de foto's (vooral de 1e) kun je zien dat er om de bouwoppervlakte heen pompen geinstalleerd zijn die het grondwater wegpompen zodat er gegraven/gestort/gewerkt kan worden. Nu de kelder 'af' is kan deze bodempomp in principe uit (dat vinden de buren ook wel zo fijn - dat ding staat 24/7 aan).
Echter, het simpelweg uitzetten van de pomp heeft dat gevolg dat het grondwater terug komt en de kracht van het water kan ervoor zorgen dat je kelder gaat 'drijven' en omhoog geduwd wordt. Hetzelfde kan je zien bij mensen die hun zwembad helemaal leegpompen als lokaal het grondwater hoog staat.
Straks, als de gehele woning erop staat, dan zorgt het gewicht van de woning ervoor dat de kelder op z'n plek blijft. Tot die tijd kun je de kelder onderwater zetten om voldoende druk naar beneden te creeeren om 'm op z'n plek te houden.
Met gestrekt been.
Supermooie reportageJaxMcFadden schreef op zondag 22 juli 2018 @ 08:07:
Kelder bouwen voor beginners:
Vloerisolatie:
[afbeelding]
Keldervloer gestort:
[afbeelding]
Keldermuren gestort (bakken nog niet verwijderd).
[afbeelding]
Binnenmuren gemetseld
[afbeelding]
Kelderdek erop (breedplaatvloeren)
[afbeelding]
De kelder wordt momenteel onder water gezet zodat daarna de bodempomp eraf kan.
Wat voor muurisolatie is toegepast? Dat zie ik namelijk niet op de foto
Gave kelder! Bij ons komen ze komende vrijdag de kelder graven. Ben benieuwd!JaxMcFadden schreef op zondag 22 juli 2018 @ 08:07:
Kelder bouwen voor beginners:
Vloerisolatie:
Keldervloer gestort:
Keldermuren gestort (bakken nog niet verwijderd).
Binnenmuren gemetseld
Kelderdek erop (breedplaatvloeren)
De kelder wordt momenteel onder water gezet zodat daarna de bodempomp eraf kan.
Mooie foto's. Wat is het effect op de binnenmuren?JaxMcFadden schreef op zondag 22 juli 2018 @ 08:07:
Kelder bouwen voor beginners:
Over een maand beginnen ze bij ons. Tijdens het planningsgesprek werd gezegd dat er twee keuzes zijn. Of de breedplaatvloeren zijn op tijd en men kan direct daarna beginnen met het extra gewicht erop metselen zodat de kelder niet onder water hoeft te staan.
Of ze zetten hem sowieso onderwater, maar dan willen ze graag de binnenmuren later metselen.
Dit vond de installateur dan weer niet leuk.
w00t
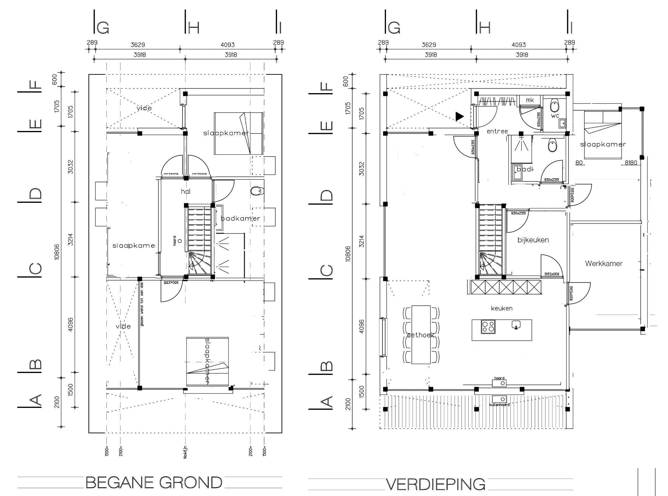
Ik heb het dus zelf even over een andere boeg gegooid op basis van V1 met gebruikmaking van een paar van de suggesties van Finnhouse, zodat we vlot door kunnen pakken na de bouwvak.

Disclaimer: 't is allemaal copy/pasten en schuiven met laagjes in Photoshop dus of dit constructief en qua bouwbesluit allemaal op deze manier kan/mag moet een echte architect zijn oordeel nog over vellen
Wat ik heb gedaan:
- Uitbouw op de begane grond en daar de werkkamer en 4e (gasten)slaapkamer ondergebracht. Dit zijn relatief goedkope m3's om te bouwen in vergelijking met het hele volume van het huis opkrikken. Ons bouwvlak is 13 meter breed dus dit kan makkelijk.
- Bijkeuken op de oude plek van de werkkamer en direct toegankelijk vanuit de keuken, die ik naar de achterkant heb verplaatst. Iets groter gemaakt door de vide aan de achterkant te verkleinen.
- 2e badkamer op de begane grond
- Trap omgedraaid. Moet nu wel een knik in ipv een rechte trap maar anders kost de overloop teveel ruimte.
- Twee kleinste slaapkamers boven samengevoegd
- Badkamer en ouderslaapkamer groter gemaakt.
Waar ik nog niet helemaal tevreden over ben:
- Entree voelt niet heel efficiënt aan op deze manier maar ik zie ook niet zo snel hoe ik het anders zou kunnen doen.
- Badkamer op 1e verdieping vind ik eigenlijk nog steeds te krap. Eventueel zou hij nog een metertje de ouderslaapkamer in kunnen lopen maar het blijft een vrij smalle ruimte (ik schat zo'n 2,5m met hoogte 1500mm+).
Een oplossing voor meer - praktische bruikbare - ruimte boven zonder het huis breder te maken zou zijn om de trap niet meer in het midden van het huis te hebben maar te verplaatsen naar de voorkant, waardoor je ipv een overloop/trapgat alleen een gang in het midden hebt die van voor naar achteren loopt. De kamers kunnen dan ofwel in een lijn aan 1 kant liggen, ofwel aan weerszijden. Daar moet de architect maar eventjes op puzzelen.
Dat kan kloppen - die hebben we nietnokiaan958GB schreef op zondag 22 juli 2018 @ 22:39:
[...]
Wat voor muurisolatie is toegepast? Dat zie ik namelijk niet op de foto
Je bedoeld het water? Daar zal behoorlijk wat vocht intrekken gok ik en dat zal wel wat tijd nodig hebben om op te drogen. 't Is mijn eerste kelderbouw, dus voor mij is 't ook nog afwachtenFireStarter schreef op maandag 23 juli 2018 @ 07:24:
[...]
Mooie foto's. Wat is het effect op de binnenmuren?
Waar zit je woonkamer eigenlijk?Daniel schreef op maandag 23 juli 2018 @ 08:12:
Ik ben mede op basis van de feedback hier even gaan knutselen aan onze plattegrond. Finnhouse heeft zelf op de valreep van de bouwvak nog een aangepast ontwerp opgeleverd maar daar waren ze een beetje doorgeschoten met aanpassingen aan de buitenkant: het huis werd een meter breder, en daardoor werd de dakhelling ook lager om het volume binnen de perken te houden. 35 graden is ideaal voor je zonnepanelen maar verder niet bepaald. Het eerste ontwerp had 45 graden, daar valt goed mee te leven.
Ik heb het dus zelf even over een andere boeg gegooid op basis van V1 met gebruikmaking van een paar van de suggesties van Finnhouse, zodat we vlot door kunnen pakken na de bouwvak.
[afbeelding]
Disclaimer: 't is allemaal copy/pasten en schuiven met laagjes in Photoshop dus of dit constructief en qua bouwbesluit allemaal op deze manier kan/mag moet een echte architect zijn oordeel nog over vellen
Wat ik heb gedaan:
- Uitbouw op de begane grond en daar de werkkamer en 4e (gasten)slaapkamer ondergebracht. Dit zijn relatief goedkope m3's om te bouwen in vergelijking met het hele volume van het huis opkrikken. Ons bouwvlak is 13 meter breed dus dit kan makkelijk.
- Bijkeuken op de oude plek van de werkkamer en direct toegankelijk vanuit de keuken, die ik naar de achterkant heb verplaatst. Iets groter gemaakt door de vide aan de achterkant te verkleinen.
- 2e badkamer op de begane grond
- Trap omgedraaid. Moet nu wel een knik in ipv een rechte trap maar anders kost de overloop teveel ruimte.
- Twee kleinste slaapkamers boven samengevoegd
- Badkamer en ouderslaapkamer groter gemaakt.
Waar ik nog niet helemaal tevreden over ben:
- Entree voelt niet heel efficiënt aan op deze manier maar ik zie ook niet zo snel hoe ik het anders zou kunnen doen.
- Badkamer op 1e verdieping vind ik eigenlijk nog steeds te krap. Eventueel zou hij nog een metertje de ouderslaapkamer in kunnen lopen maar het blijft een vrij smalle ruimte (ik schat zo'n 2,5m met hoogte 1500mm+).
Een oplossing voor meer - praktische bruikbare - ruimte boven zonder het huis breder te maken zou zijn om de trap niet meer in het midden van het huis te hebben maar te verplaatsen naar de voorkant, waardoor je ipv een overloop/trapgat alleen een gang in het midden hebt die van voor naar achteren loopt. De kamers kunnen dan ofwel in een lijn aan 1 kant liggen, ofwel aan weerszijden. Daar moet de architect maar eventjes op puzzelen.
Da's de linkerkant van de benedenverdieping. Heb alleen geen meubels ingetekend daar. Breedte is niet zo groot als ik zou willen (4 meter houdt niet over) maar goed genoeg voor een tv-hoek en verder zitten we daar in de praktijk toch niet zo vaak. Ons sociaal leven speelt zich vooral af in/rond de keuken.
Als ik de tekening bekijk dan is het 3,6m en geen 4m. Daarbij moet je ook voldoende loopruimte houden om van de hal naar de keuken te komen en dan is 3,6m best krap. Daarbij wordt je indeling ook nog beinvloed door de deur van de hal, het raam bij de entrée en het raam bij de zijkant. Teken eens een paar meubels in en kijk of je een praktische indeling kan vinden die voldoet. In zo'n huis wil je niet dat de woonkamer "krap" aanvoelt, zeker niet omdat het de doorloop is naar de keuken.Daniel schreef op maandag 23 juli 2018 @ 09:21:
Da's de linkerkant van de benedenverdieping. Heb alleen geen meubels ingetekend daar. Breedte is niet zo groot als ik zou willen (4 meter houdt niet over) maar goed genoeg voor een tv-hoek en verder zitten we daar in de praktijk toch niet zo vaak. Ons sociaal leven speelt zich vooral af in/rond de keuken.
Klopt. 3,6 is trouwens de breedte van de vide aan de voorkant, de woonkamer zal net iets breder zijn omdat de binnenwanden dunner zijn. Maar inderdaad is het wat te nauw op deze manier voor een ruimte die ook een looproute is. Des te meer argument om de trap te verplaatsen. Andere oplossing is klein stukje uitbouwen ter hoogte van de woonkamer, met een halve meter meer wordt het al een stuk beter.Sturgeon22 schreef op maandag 23 juli 2018 @ 09:28:
[...]
Als ik de tekening bekijk dan is het 3,6m en geen 4m. Daarbij moet je ook voldoende loopruimte houden om van de hal naar de keuken te komen en dan is 3,6m best krap. Daarbij wordt je indeling ook nog beinvloed door de deur van de hal, het raam bij de entrée en het raam bij de zijkant. Teken eens een paar meubels in en kijk of je een praktische indeling kan vinden die voldoet. In zo'n huis wil je niet dat de woonkamer "krap" aanvoelt, zeker niet omdat het de doorloop is naar de keuken.
Ik zou denk ik de badkamer BG een directe verbinding geven met de logeerkamer. Ofwel door de deur van de logeerkamer iets naar links te schuiven, of door de badkamerdeur direct naar logeerkamer te doen.
En wat die woonkamer betreft, zou ik zeker een erker doen, misschien ter plaatse je maximale bouwvlak benutten.
https://www.homestyler.com/int/floorplan/?&lang=en_US
Eenvoudig + Goedkoop Mitsubishi Warmtepomp uitlezen/besturen met een ESP32
Ja goeie tip, daar ga ik eens mee aan de slagxoror schreef op maandag 23 juli 2018 @ 12:16:
@Daniel floorplan hiermee maken zodat alle maten etc ook nog kloppen?
https://www.homestyler.com/int/floorplan/?&lang=en_US
Verwijderd
Ik kwam onlangs op de site van Groothuisbouw terecht en deze bieden een compleet huis aan..
Lekker 13 in een dozijn huis (prima voor ons), enig nadeel is de beperkte mogelijkheden qua inrichting en formaten van het huis.
Het type GL5 (grootste formaat spreekt ons wel aan).
Maar wat is de handigste aanpak? Is een huis ontwerpen met een architect de oplossing?
Ons bouwbudget zal rond de 250-300k liggen excl grond.
Met dit budget moet het wel sleutelklaar zijn.
Wat zijn jullie ervaringen met het uitzoeken van een ontwerp?
Overigens weet ik niet of je al in Emmeloord bent geweest ze flexibeler qua afmetingen en binnenindeling dan de site toelaat.
The Stranger: Do you have to use so many cuss words?
The Dude: What the fuck you talking about?
Verwijderd
Daar hebben we rekening mee gehouden, daarom ook maximaal 300k, dan houden we genoeg over voor evt afwerking en een keuken en tuin.MrFl0ppY schreef op maandag 23 juli 2018 @ 16:26:
Goedkoper dan Groothuisbouw ga je niet snel vinden. Let wel, het basismodel GL5 is al over de €250.000. Dan moet je nog een keuken, wandafwerking, schilderwerk, vloeren, tuin etc. Dan zit je waarschijnlijk al snel boven de 300k. Dus dan kun je beter kijken naar wat kleinere afmetingen.
Overigens weet ik niet of je al in Emmeloord bent geweest ze flexibeler qua afmetingen en binnenindeling dan de site toelaat.
Ben daar nog niet geweest, zoals ik al zei, we zijn orienterend, planning is over 3-5 jaar te willen verhuizen.
[ Voor 8% gewijzigd door Verwijderd op 23-07-2018 16:29 ]
Verder is 3-5 jaar nog ver weg. Als de prijzen zo door blijven stijgen moet je blij zijn dat je voor dat budget een schuur kan laten bouwen
The Stranger: Do you have to use so many cuss words?
The Dude: What the fuck you talking about?
Verwijderd
Thanks, voorlopig zit het er nog niet in, eerst een paar jaar flink sparen om te kunnen verhuizen.MrFl0ppY schreef op maandag 23 juli 2018 @ 16:32:
Als je serieus bent zeker eens gaan kijken en eventueel praten. Werkt als oriëntatie erg fijn kan ik vertellen uit eigen ervaring. Zeker als je niet thuis bent in de bouwwereld.
Verder is 3-5 jaar nog ver weg. Als de prijzen zo door blijven stijgen moet je blij zijn dat je voor dat budget een schuur kan laten bouwen.
Maar we zijn gewoon links en rechts een beetje aan het kijken wat er allemaal bij komt kijken voordat we ergens naar binnen stappen.
Reden waarom het boven uitstaat komt doordat laminaat wordt gelegd.
Overigens trap is afgelopen week geleverd, erg netjes..
[ Voor 14% gewijzigd door xminator op 23-07-2018 21:51 ]
Iemand hier in dit topic (weet even niet wie) houdt de prijzen van Groothuisbouw in de gaten en ziet die elk jaar stijgen (percentage weet ik niet meer precies maar dacht zelfs richting de 10%Verwijderd schreef op maandag 23 juli 2018 @ 16:35:
[...]
Thanks, voorlopig zit het er nog niet in, eerst een paar jaar flink sparen om te kunnen verhuizen.
Maar we zijn gewoon links en rechts een beetje aan het kijken wat er allemaal bij komt kijken voordat we ergens naar binnen stappen.
Hi, regel je die temperatuur niet gewoon via de CV / warmtepomp?xminator schreef op maandag 23 juli 2018 @ 21:44:
Druk bezig met het opstookprotocol, althans dat dacht ik zelf... als ik de vv verdeler op de 2e verdieping en 1e verdieping op 20 graden heb staan (en aan staat), doet de vv het op de bg dan nog wel als ik het op 35 graden heb staan? Kwam namelijk niet hoger dan 25 graden..
Reden waarom het boven uitstaat komt doordat laminaat wordt gelegdz
Ik heb een itho daalderop base cube en ik regel de LT aanvoer temperatuur gewoon in de unit ipv de thermostaat
I was born intelligent - education ruined me
Aanvoertemperatuur op de cv ketel was vrij hoog. Het is een remeha tzerra, buiten aanvoer is daar niets te zien. Had de kamerthermostaat (Isense) op 30 graden staan en vloerverdeler op 35 graden. Echter vv verdeler gaf hoogstens 25 graden weer. Dus maybe omdat de vv verdelers op de overige verdiepingen op 20 graden staan?mistaoutlaw schreef op maandag 23 juli 2018 @ 21:50:
[...]
Hi, regel je die temperatuur niet gewoon via de CV / warmtepomp?
Ik heb een itho daalderop base cube en ik regel de LT aanvoer temperatuur gewoon in de unit ipv de thermostaat
Anders bel ik de installateur morgen wel.
Hoe moet je anders een opstookprotocol uitvoeren met dit weer?Grolsch schreef op maandag 23 juli 2018 @ 22:10:
Geen weers afhankelijke regeling in je CV ketel die zich afvraagt of je wel helemaal lekker bezig bent om met Tb 30+ te gaan verwarmen
De ramen en deuren open houden en je huis lekker op temperatuur laten komen door het mooie weer!xminator schreef op maandag 23 juli 2018 @ 22:17:
[...]
Hoe moet je anders een opstookprotocol uitvoeren met dit weer?
E en W instalateur zijn nog niet klaar, maar die kunnen het nu afmaken.
Ze hoeven alleen nog maar:
- stuckwerk reparen of verbeteren
- spacken
- 1e verdieping binnendeuren afhangen
- voordeur plaatsen
- tuindeur plaatsen
- garagedeur stellen
- dakluik ladder van goede lengte leveren (ladder van 260 cm bij plafondhoogte van 260 cm is het niet helemaal)
- 2 vensterbanken plaatsen (na de bouwvak)
- alles schoonmaken (rommel in huis)
- alles opruimen (keet, containers bouwhekken etc)
En of ik maar vast de laatste 2 periodes over wilde maken.
#6 voor stucken, spacken en schilderen (dat moet nog voor groot stuk gebeuren)
#7 als eindaflevering
Maar eens de hypotheek vertrekker vragen of ik daar de helft van kan betalen.
Anders zie ik geen bouvakkers terug na de vakantie, of pas naar tig keer bellen.
8x330 NO12.5°, 8x330 ZW12.5°, 8x350 ZW60°, 8x325 NO10°, SE8K, P500. 6x410 ZW10° Enphase
Vocht moet uit de vloeren (te hoge luchtvochtigheid buiten atm).PolderPloer! schreef op maandag 23 juli 2018 @ 22:28:
[...]
De ramen en deuren open houden en je huis lekker op temperatuur laten komen door het mooie weer!
Bovendien zal je later als je dan wel het opstookprotocol uitvoert zeker schade ondervinden aan je vloeren (in dit geval pvc verlijmd).
onzin, ik heb nooit het opstookprotocol gevolgd en geen enkel scheurtje. Het gaat erom dat je delta T niet te groot is. Dus zorg gewoon dat je aanvoertemperatuur laag genoeg is. Mijne wordt max 29 graden in de winter en minimaal 18 in de zomer. Geen scheurtje te bekennen.xminator schreef op maandag 23 juli 2018 @ 22:43:
[...]
Vocht moet uit de vloeren (te hoge luchtvochtigheid buiten atm).
Bovendien zal je later als je dan wel het opstookprotocol uitvoert zeker schade ondervinden aan je vloeren (in dit geval pvc verlijmd).
Weer een n=1 onderzoek dat voor waar verkondigd wordt.PolderPloer! schreef op maandag 23 juli 2018 @ 22:59:
[...]
onzin, ik heb nooit het opstookprotocol gevolgd en geen enkel scheurtje. Het gaat erom dat je delta T niet te groot is. Dus zorg gewoon dat je aanvoertemperatuur laag genoeg is. Mijne wordt max 29 graden in de winter en minimaal 18 in de zomer. Geen scheurtje te bekennen.
Het opstookprotocol is niet om vocht uit je vloer te krijgen maar om te zetten.
Ik heb het protocol goed gevolgd en heb helaas toch wat scheuren in de vloer.
Met gestrekt been.
Hele mooie trap! Hoe is deze afgewerkt? Met olie of lak?xminator schreef op maandag 23 juli 2018 @ 21:44:
Overigens trap is afgelopen week geleverd, erg netjes..
[afbeelding]
Wij hadden ook de wens om een Z-trap te plaatsen. Echter moest dat 23.500 euro inc. kosten voor twee trappen dus dat hebben we maar los gelaten. Nu wordt het een stalen trap met open treden wat achteraf misschien juist beter is vanwege de licht inval.
Pentium 233MHz MMX + Diamond Monster 3D 3DFX Voodoo II
Heb je het dan over een nieuw gebouwde woningPolderPloer! schreef op maandag 23 juli 2018 @ 22:59:
[...]
onzin, ik heb nooit het opstookprotocol gevolgd en geen enkel scheurtje. Het gaat erom dat je delta T niet te groot is. Dus zorg gewoon dat je aanvoertemperatuur laag genoeg is. Mijne wordt max 29 graden in de winter en minimaal 18 in de zomer. Geen scheurtje te bekennen.
Bij ons wel het opstookprotocol gevolg tot maximaal 35 graden volgens mij, maar overal diverse "scheurtjes" (zoals het hoort volgens de aannemer). De spanning is nu uit de vloer en alles is gezet.
Gelukkig dus voordat de vloerafwerking erop kwam, dus nu niets meer van te zien.
Nu is 16cm niet veel op een woning van 9,4m breed, maar het levert 2 problemen op:
1. Tussen het raam en de binnenmuur zou 70cm moeten zitten, zodat er een kast geplaatst kan worden. Bij de kamer aan de achterkant heb ik nu ruimte zat, bij de kamer aan de voorkant heb ik nu 62cm, dus na afwerken van de muur past de kast waarschijnlijk niet.
2. Bij onze gevel krijgen we onderstaande details in het metselwerk.

De afstand het raam en de details in metselwerk is zeker aan de bovenkant van het raam vrij kort en ik ben dus bang dat een verschil van 16cm dan vrij goed opvalt (dit is bijna 1 baksteen extra).
Ik wil daarom de aannemer vragen om het muurtje af te breken, de kozijnen goed te stellen en opnieuw te metselen. Is dit een redelijk verzoek of valt een dergelijke afwijking binnen de marges?
Jij bepaalt of het binnen de marges valt. 16cm verschil zou ik nooit accepteren. 3cm ook niet denk ik. Het bepaalt buiten ook heel het aanzicht van je huis. Als dat niet semetrisch is valt het op.Sturgeon22 schreef op dinsdag 24 juli 2018 @ 09:09:
Na het metselen van de binnenmuren viel mij op dat de ramen op de verdieping aan de linkerkant van de woning niet op dezelfde plek zitten, terwijl dit volgens de tekening wel zo zou moeten zijn. Gisterenavond heb ik de verschillen opgemeten en het raam op de slaapkamer links achter zit 16cm meer naar de buitenkant dan het raam op de slaapkamer links voor. Op onderstaande foto's is dit zichtbaar:
***members only***
Nu is 16cm niet veel op een woning van 9,4m breed, maar het levert 2 problemen op:
1. Tussen het raam en de binnenmuur zou 70cm moeten zitten, zodat er een kast geplaatst kan worden. Bij de kamer aan de achterkant heb ik nu ruimte zat, bij de kamer aan de voorkant heb ik nu 62cm, dus na afwerken van de muur past de kast waarschijnlijk niet.
2. Bij onze gevel krijgen we onderstaande details in het metselwerk.
[afbeelding]
De afstand het raam en de details in metselwerk is zeker aan de bovenkant van het raam vrij kort en ik ben dus bang dat een verschil van 16cm dan vrij goed opvalt (dit is bijna 1 baksteen extra).
Ik wil daarom de aannemer vragen om het muurtje af te breken, de kozijnen goed te stellen en opnieuw te metselen. Is dit een redelijk verzoek of valt een dergelijke afwijking binnen de marges?
Met gestrekt been.
Zsm bespreken, valt m.i. niet binnen marges. Zeker als het plaatsen van een kast nu niet meer mogelijk is maakt dat het erg onpraktisch. Nu kan het mogelijk nog worden aanpast al zal dat wellicht ook al niet makkelijk gaan.Sturgeon22 schreef op dinsdag 24 juli 2018 @ 09:09:
Na het metselen van de binnenmuren viel mij op dat de ramen op de verdieping aan de linkerkant van de woning niet op dezelfde plek zitten, terwijl dit volgens de tekening wel zo zou moeten zijn. Gisterenavond heb ik de verschillen opgemeten en het raam op de slaapkamer links achter zit 16cm meer naar de buitenkant dan het raam op de slaapkamer links voor. Op onderstaande foto's is dit zichtbaar:
***members only***
Nu is 16cm niet veel op een woning van 9,4m breed, maar het levert 2 problemen op:
1. Tussen het raam en de binnenmuur zou 70cm moeten zitten, zodat er een kast geplaatst kan worden. Bij de kamer aan de achterkant heb ik nu ruimte zat, bij de kamer aan de voorkant heb ik nu 62cm, dus na afwerken van de muur past de kast waarschijnlijk niet.
2. Bij onze gevel krijgen we onderstaande details in het metselwerk.
[afbeelding]
De afstand het raam en de details in metselwerk is zeker aan de bovenkant van het raam vrij kort en ik ben dus bang dat een verschil van 16cm dan vrij goed opvalt (dit is bijna 1 baksteen extra).
Ik wil daarom de aannemer vragen om het muurtje af te breken, de kozijnen goed te stellen en opnieuw te metselen. Is dit een redelijk verzoek of valt een dergelijke afwijking binnen de marges?
Het lijkt zelfs alsof de openingen verschillen in breedte?
Wel moet je even kijken of de maten die jij hebt van de bestek tekening zijn of van de werktekening. Hier kan namelijk wel verschil in zitten. Neemt natuurlijk niet weg dat het in de gevel gelijk moet zitten met de andere kant.
Volgens mij zit er inderdaad ook verschil in de breedte van de ramen.
[ Voor 9% gewijzigd door Ernemmer op 24-07-2018 09:30 ]
@D-e-n Dat is denk ik vervorming in de foto (genomen met telefoon). Heb het nagemeten en daar zat geen verschil in.
@Ernemmer Ik heb alleen de bestektekeningen en op basis daarvan zouden de ramen op 2,5m van de hoek van de vloer moeten zitten. Aan de rechterkant van de woning klopt dit precies en aan de linkerkant niet, daar zit achter op 2,42m en voor op 2,56m.
De afstand van 2,5m kan iets afwijken maar zou in ieder geval aan beide kanten hetzelfde moeten zijn als de buitengevel stenen ook aan beide kanten hetzelfde is. (ramen worden namelijk op maat van de gevelsteen gezet.)Sturgeon22 schreef op dinsdag 24 juli 2018 @ 09:41:
@Artbij @SquareOne Bedankt voor de bevestiging, dat is ook mijn idee.
@D-e-n Dat is denk ik vervorming in de foto (genomen met telefoon). Heb het nagemeten en daar zat geen verschil in.
@Ernemmer Ik heb alleen de bestektekeningen en op basis daarvan zouden de ramen op 2,5m van de hoek van de vloer moeten zitten. Aan de rechterkant van de woning klopt dit precies en aan de linkerkant niet, daar zit achter op 2,42m en voor op 2,56m.
[ Voor 3% gewijzigd door Ernemmer op 24-07-2018 10:09 ]
Met gestrekt been.
Op een bestektekening wordt er vaak geen rekening gehouden met de afmeting van een steen, omdat de exacte afmeting nog niet helemaal bepaald is.Artbij schreef op dinsdag 24 juli 2018 @ 10:08:
@fable, een bestek en een werktekening zouden toch hetzelfde moeten zijn?
Op de werktekeningen worden de ramen op koppenmaat gezet, als dus de exacte steen bekent is, inclusief dilataties.
Thanks! Afwerking betreft olie (rubio monocoat super white).NDF82 schreef op dinsdag 24 juli 2018 @ 07:58:
[...]
Hele mooie trap! Hoe is deze afgewerkt? Met olie of lak?
Wij hadden ook de wens om een Z-trap te plaatsen. Echter moest dat 23.500 euro inc. kosten voor twee trappen dus dat hebben we maar los gelaten. Nu wordt het een stalen trap met open treden wat achteraf misschien juist beter is vanwege de licht inval.
Dat is een flink bedrag wat ze ervoor hebben gevraagd... mja je merkt toch wel dat de ene aannemer in bepaalde producten goedkoper is en in de andere producten dan weer duurder (en vice versa bij een andere aannemer). Voor twee eiken trappen (waarvan één open) hebben wij circa 6k excl btw betaald.
Ja, maar dat maakt voor de afmeting toch niets uit? Het midden van een muur blijft toch het midden?Ernemmer schreef op dinsdag 24 juli 2018 @ 10:11:
[...]
Op een bestektekening wordt er vaak geen rekening gehouden met de afmeting van een steen, omdat de exacte afmeting nog niet helemaal bepaald is.
Op de werktekeningen worden de ramen op koppenmaat gezet, als dus de exacte steen bekent is, inclusief dilataties.
Met gestrekt been.
Klopt, maar 2,5m is geen koppenmaat en kan dus iets afwijken van de bestektekening.Artbij schreef op dinsdag 24 juli 2018 @ 10:12:
[...]
Ja, maar dat maakt voor de afmeting toch niets uit? Het midden van een muur blijft toch het midden?
De afstand vanaf de buitenkant gevel zou wel gelijk moeten zijn van beide ramen.
http://www.euroblok.nl/do...chniek/11_koppenmaat.html
Dit is ook het punt waarop het bij ''goedkoop'' metselwerk vaak fout gaat.
Dan zie je ongelijke voegen tussen de ramen en dan boven en onder het raam weer anders, of stenen kleiner dan een half ergens tussen geprutst.
Zelf ontwerp ik altijd op koppenmaat, en pas eventueel de grootte van het bouwwerk aan als het niet helemaal uitkomt. Niks lelijker dan ongelijk metselwerk.
[ Voor 36% gewijzigd door Ernemmer op 24-07-2018 10:45 ]
Verwijderd
Ik ben gewoon aan het orienteren en twijfel heel erg om voor casco of sleutelklaar te gaan.
Ik ben nogal kritisch op de invulling van electra en integratie van evt domotica.
Aantal wensen die ik heb
- Temperatuur per kamer regelbaar dmv verwarming/airco/ventilatie. (Domotica)
- Lichtplan (bestuurbaar met domotica)
- bediening zonwering/rolluiken (bestuurbaar met domotica)
- beveiliging (camera's en diverse sensoren, bestuurbaar met domotica)
Nu wordt een huis vaak aangeboden met standaard licht/electra punten en moet je per afwijking of extra aansluiting extra betalen..
Nu heb ik gebeld met Groothuisbouw (waar we een mooi huis hebben gezien) en bovenstaande is prima mogelijk maar de meerwerkprijs is aanzienlijk, en aangezien je soms met 3e partijen werkt zul je alles voor de tijd goed in kaart moeten hebben welke aansluitingen je waar wilt hebben.
Nu is het ook mogelijk om casco te bouwen, buitenkant is dan helemaal klaar, maar de binnenkant moet nog helemaal ingericht worden (m.u.v. binnenmuren).
Dit scheelt 70-80k (excl meerwerk) op het bouwbudget wat je dus kunt gebruiken om zelf de inrichting naar eigen smaak en voorkeur te doen.
Hoe pakken jullie dat aan met de wensen voor installatiewerk?
Van te voren goed duidelijk hebben wat je wil.Verwijderd schreef op dinsdag 24 juli 2018 @ 16:15:
Hoi,
Ik ben gewoon aan het orienteren en twijfel heel erg om voor casco of sleutelklaar te gaan.
Ik ben nogal kritisch op de invulling van electra en integratie van evt domotica.
Aantal wensen die ik heb
- Temperatuur per kamer regelbaar dmv verwarming/airco/ventilatie. (Domotica)
- Lichtplan (bestuurbaar met domotica)
- bediening zonwering/rolluiken (bestuurbaar met domotica)
- beveiliging (camera's en diverse sensoren, bestuurbaar met domotica)
Nu wordt een huis vaak aangeboden met standaard licht/electra punten en moet je per afwijking of extra aansluiting extra betalen..
Nu heb ik gebeld met Groothuisbouw (waar we een mooi huis hebben gezien) en bovenstaande is prima mogelijk maar de meerwerkprijs is aanzienlijk, en aangezien je soms met 3e partijen werkt zul je alles voor de tijd goed in kaart moeten hebben welke aansluitingen je waar wilt hebben.
Nu is het ook mogelijk om casco te bouwen, buitenkant is dan helemaal klaar, maar de binnenkant moet nog helemaal ingericht worden (m.u.v. binnenmuren).
Dit scheelt 70-80k (excl meerwerk) op het bouwbudget wat je dus kunt gebruiken om zelf de inrichting naar eigen smaak en voorkeur te doen.
Hoe pakken jullie dat aan met de wensen voor installatiewerk?
Ik schat dat je wensen laten uitvoeren door een aannemer / installateur qua leidingwerk snel richting de 10K zal gaan.voor de hardware. Wat je zou kunnen doen is loze leidingen laten trekken (kost ook wel geld) en dan zelf alles aanleggen.
Wij hebben toevallig net en huis laten bouwen door GHB. En je kan werkelijk alles bepalen. Voor de standaardpunten per ruimte betaal je niets extra's, en de locatie van die punten bepaal je zelf dat kost ook niets extra's. Wel betaal voor extra loze leidingen etc. Uit mijn hoofd gezegd €75 maar dat kan inmiddels iets hoger liggen, want dit was 1,5 jaar geleden. Voor elke sonos, camera etc hebben wij een loze leiding extra laten leggen, en de buis is ruimer dan de standaard (hier kregen we er best makkelijk twee kabels doorheen (cat6a en coax bijv.). Ongeveer 6 maanden voor oplevering moet je alles in kaart hebben, zeker wbt de zolder of bovenverdieping welke prefab zijn. De benedenverdieping (en bij een GH2 ook 1e verdieping) zijn van kalkzandsteen die punten worden circa 8 weken voor oplevering ter plekke gefreesd en ook met je doorgenomen. Een locatie verplaatsen is zelfs dan nog geen probleem of een extra wcd of loze leiding.Verwijderd schreef op dinsdag 24 juli 2018 @ 16:15:
Hoi,
Ik ben gewoon aan het orienteren en twijfel heel erg om voor casco of sleutelklaar te gaan.
Ik ben nogal kritisch op de invulling van electra en integratie van evt domotica.
Aantal wensen die ik heb
- Temperatuur per kamer regelbaar dmv verwarming/airco/ventilatie. (Domotica)
- Lichtplan (bestuurbaar met domotica)
- bediening zonwering/rolluiken (bestuurbaar met domotica)
- beveiliging (camera's en diverse sensoren, bestuurbaar met domotica)
Nu wordt een huis vaak aangeboden met standaard licht/electra punten en moet je per afwijking of extra aansluiting extra betalen..
Nu heb ik gebeld met Groothuisbouw (waar we een mooi huis hebben gezien) en bovenstaande is prima mogelijk maar de meerwerkprijs is aanzienlijk, en aangezien je soms met 3e partijen werkt zul je alles voor de tijd goed in kaart moeten hebben welke aansluitingen je waar wilt hebben.
Nu is het ook mogelijk om casco te bouwen, buitenkant is dan helemaal klaar, maar de binnenkant moet nog helemaal ingericht worden (m.u.v. binnenmuren).
Dit scheelt 70-80k (excl meerwerk) op het bouwbudget wat je dus kunt gebruiken om zelf de inrichting naar eigen smaak en voorkeur te doen.
Hoe pakken jullie dat aan met de wensen voor installatiewerk?
Wij hebben op alle slaapkamers een eigen thermostaat die via wifi werkt. Dit is in combi met de vloerverwarming. Wij hebben niet voor koeling gekozen omdat dat maar een paar graden scheelt. En in deze warmte is het dan nog warm ;-). Maar wellicht is deze functie beter nu ze gasloos opleveren, wij hebben nog een hybride systeem.
Succes iig met de keuzes!
Ik was benieuwd hoe de zelfbouwers hier het traject hebben doorlopen. In de offerte van de architect is de volgorde dat eerst de omgevingsvergunning wordt aangevraagd en vervolgens na het doen van bouwvoorbereiding en bestek de aanbesteding te gaan doen.
Ik heb een sterke voorkeur om het eerst aan te besteden en vervolgens de vergunning aan te vragen zodat ik zeker weet dat we qua prijs niet een enorme mismatch hebben en we dus met een vergunning zitten die we niet kunnen/willen bouwen omdat het uit financieel gezien uit de hand dreigt te lopen... We zitten in een gebied zonder welstandscommissie, het bouwvlak mogen we zelf bepalen dus ook daar zijn geen problemen te verwachten.
De architect gaf aan dat het gebruikelijk is om eerst de vergunning te regelen en daarna aan te besteden zodat je weet dat wat je aanbesteed je ook mag bouwen, wat ik best begrijp in een gebied met welstandseisen etc. Volgens mij zou bij ons alleen de bouwvergunning afgewezen kunnen worden omdat de architect iets heeft ontworpen wat niet volgens de regels/bouwbesluit is maar is de vergunning in principe geen beperkende factor en zouden we het dus best eerst kunnen aanbesteden. Dat geeft mij de zekerheid dat ik niet na evt. tegenvallende offertes het hele ontwerp om moet gooien en mogelijk een nieuwe vergunning aan moet vragen.
Wat is jullie visie hierop en hoe hebben jullie dit gedaan?
De bedoeling is dat de architect ook een beetje verstand heeft van prijzen waardoor je dus een ontwerp krijgt wat binnen je budget valt. Maar er zijn natuurlijk erg veel kunstenaars die jouw budget alleen zien als een soort subsidie om hun kunstwerk te kunnen bouwen.Piper schreef op dinsdag 24 juli 2018 @ 21:01:
Ik zal me ook eens melden in dit topic. Wij hebben een lapje grond uitgezocht van bijna 2700m2. Een architect hebben we in principe inmiddels gekozen en de eerste schetsen hebben we vorige week gekregen. Deze bevielen nog niet helemaal dus voordat ik ze hier het topic in schiet wachten we nog even een aanpassingsrondje af.. ;-)
Ik was benieuwd hoe de zelfbouwers hier het traject hebben doorlopen. In de offerte van de architect is de volgorde dat eerst de omgevingsvergunning wordt aangevraagd en vervolgens na het doen van bouwvoorbereiding en bestek de aanbesteding te gaan doen.
Ik heb een sterke voorkeur om het eerst aan te besteden en vervolgens de vergunning aan te vragen zodat ik zeker weet dat we qua prijs niet een enorme mismatch hebben en we dus met een vergunning zitten die we niet kunnen/willen bouwen omdat het uit financieel gezien uit de hand dreigt te lopen... We zitten in een gebied zonder welstandscommissie, het bouwvlak mogen we zelf bepalen dus ook daar zijn geen problemen te verwachten.
De architect gaf aan dat het gebruikelijk is om eerst de vergunning te regelen en daarna aan te besteden zodat je weet dat wat je aanbesteed je ook mag bouwen, wat ik best begrijp in een gebied met welstandseisen etc. Volgens mij zou bij ons alleen de bouwvergunning afgewezen kunnen worden omdat de architect iets heeft ontworpen wat niet volgens de regels/bouwbesluit is maar is de vergunning in principe geen beperkende factor en zouden we het dus best eerst kunnen aanbesteden. Dat geeft mij de zekerheid dat ik niet na evt. tegenvallende offertes het hele ontwerp om moet gooien en mogelijk een nieuwe vergunning aan moet vragen.
Wat is jullie visie hierop en hoe hebben jullie dit gedaan?
Als je die eerste hebt kan je er redelijk van op aan dat zijn berekening klopt met wat het ongeveer zal gaan kosten, bij die tweede heb je grote kans dat je wel eens een groot deel te kort gaat komen.
In beide gevallen zou je je ontwerp kunnen laten berekenen door een calculatiebureau, je hebt dan op een paar % nauwkeurig de prijs van je gebouw.
Ik zou lekker eerst een aannemer uitzoeken en daarna pas vergunningstraject ingaan. Dat is procesmatig ook veel fijner (althans vond ik).Piper schreef op dinsdag 24 juli 2018 @ 21:01:
Ik zal me ook eens melden in dit topic. Wij hebben een lapje grond uitgezocht van bijna 2700m2. Een architect hebben we in principe inmiddels gekozen en de eerste schetsen hebben we vorige week gekregen. Deze bevielen nog niet helemaal dus voordat ik ze hier het topic in schiet wachten we nog even een aanpassingsrondje af.. ;-)
Ik was benieuwd hoe de zelfbouwers hier het traject hebben doorlopen. In de offerte van de architect is de volgorde dat eerst de omgevingsvergunning wordt aangevraagd en vervolgens na het doen van bouwvoorbereiding en bestek de aanbesteding te gaan doen.
Ik heb een sterke voorkeur om het eerst aan te besteden en vervolgens de vergunning aan te vragen zodat ik zeker weet dat we qua prijs niet een enorme mismatch hebben en we dus met een vergunning zitten die we niet kunnen/willen bouwen omdat het uit financieel gezien uit de hand dreigt te lopen... We zitten in een gebied zonder welstandscommissie, het bouwvlak mogen we zelf bepalen dus ook daar zijn geen problemen te verwachten.
De architect gaf aan dat het gebruikelijk is om eerst de vergunning te regelen en daarna aan te besteden zodat je weet dat wat je aanbesteed je ook mag bouwen, wat ik best begrijp in een gebied met welstandseisen etc. Volgens mij zou bij ons alleen de bouwvergunning afgewezen kunnen worden omdat de architect iets heeft ontworpen wat niet volgens de regels/bouwbesluit is maar is de vergunning in principe geen beperkende factor en zouden we het dus best eerst kunnen aanbesteden. Dat geeft mij de zekerheid dat ik niet na evt. tegenvallende offertes het hele ontwerp om moet gooien en mogelijk een nieuwe vergunning aan moet vragen.
Wat is jullie visie hierop en hoe hebben jullie dit gedaan?
[ Voor 102% gewijzigd door Deleon78 op 26-07-2021 18:12 ]
Wij hebben eerst een schetsontwerp laten maken door de architect en dit laten toetsen bij welstand. Vervolgens een initiele kostenraming laten opstellen door de architect en bouwkundige, zodat we zeker wisten dat het te bepalen was en daarna de omgevingsvergunning aangevraagd. Gedurende deze aanvraagperiode opzoek gegaan naar een aannemer, dat was niet heel erg ingewikkeld in 2014 was het nog crisis.Piper schreef op dinsdag 24 juli 2018 @ 21:01:
Ik zal me ook eens melden in dit topic. Wij hebben een lapje grond uitgezocht van bijna 2700m2. Een architect hebben we in principe inmiddels gekozen en de eerste schetsen hebben we vorige week gekregen. Deze bevielen nog niet helemaal dus voordat ik ze hier het topic in schiet wachten we nog even een aanpassingsrondje af.. ;-)
Ik was benieuwd hoe de zelfbouwers hier het traject hebben doorlopen. In de offerte van de architect is de volgorde dat eerst de omgevingsvergunning wordt aangevraagd en vervolgens na het doen van bouwvoorbereiding en bestek de aanbesteding te gaan doen.
Ik heb een sterke voorkeur om het eerst aan te besteden en vervolgens de vergunning aan te vragen zodat ik zeker weet dat we qua prijs niet een enorme mismatch hebben en we dus met een vergunning zitten die we niet kunnen/willen bouwen omdat het uit financieel gezien uit de hand dreigt te lopen... We zitten in een gebied zonder welstandscommissie, het bouwvlak mogen we zelf bepalen dus ook daar zijn geen problemen te verwachten.
De architect gaf aan dat het gebruikelijk is om eerst de vergunning te regelen en daarna aan te besteden zodat je weet dat wat je aanbesteed je ook mag bouwen, wat ik best begrijp in een gebied met welstandseisen etc. Volgens mij zou bij ons alleen de bouwvergunning afgewezen kunnen worden omdat de architect iets heeft ontworpen wat niet volgens de regels/bouwbesluit is maar is de vergunning in principe geen beperkende factor en zouden we het dus best eerst kunnen aanbesteden. Dat geeft mij de zekerheid dat ik niet na evt. tegenvallende offertes het hele ontwerp om moet gooien en mogelijk een nieuwe vergunning aan moet vragen.
Wat is jullie visie hierop en hoe hebben jullie dit gedaan?
Ik zou zeker eerst zeker zijn van je ontwerp, je wilt neem ik aan een huis wat bij je past. Als welstand geen problemen oplevert, maakt de volgorde verder niet heel erg uit. Iedere architect moet toch in staat zijn om een ontwerp aan het bouwbesluit te laten voldoen.
Je hoeft natuurlijk nog niet te tekenen voor je de vergunning hebt.LittleTycoon schreef op woensdag 25 juli 2018 @ 01:18:
hmm, er zijn ook nadelen als je eerst aannemer doet. Als er iets in ontwerp moet wijzigen voor omgevingsvergunning dan zit je bij de aannemer gelijk in het dure meewerktraject als je aannemer gekozen hebt.
Je hebt een offerte, vraagt je vergunning aan en als die definitief is teken je bij de aannemer.
Met gestrekt been.
[ Voor 99% gewijzigd door Deleon78 op 26-07-2021 18:12 ]
(December 2015) - Eerst een architect opdracht gegeven om een voorontwerp te maken met de voorwaarde dat we pas hoeven te betalen als we uiteindelijk definitief bouwvergunning hebben.
Vervolgens met welstand gepraat en uiteindelijk (na 3 ontwerpen) goedkeur gekregen van welstand (vooroverleg) op onze concept woning. (begin januari 2016)
Vervolgens architect opdracht gegeven om de tekeningen definitief te maken voor de vergunningsaanvraag, en samen met de aanvraag meteen 4 aannemers aangeschreven om een offerte te maken (begin februari 2016).
Na 6 weken hadden we alle prijzen binnen, en een gesprek gehad met de goedkoopste aannemer met de melding dat zijn prijs nog te hoog was, en dat er bezuinigd moest worden. Omdat hij de goedkoopste inschrijver was kreeg hij de kans de prijs te drukken. Dit had natuurlijk wel enige gevolgen ten opzichte van bestek.
In April 2016 hebben we definitief vergunning gekregen van de gemeente.
1 juli is de grond gepasseerd bij de notaris
half juli heeft de aannemer de defnitieve opdracht ontvangen met startdatum 1 september 2016.
Het hypotheek traject heeft parallel gelopen met bovenstaande, omdat we nog niet wisten wie er ging bouwen en er dus geen aanneemovereenkomst was heeft een makelaar onze toekomstige woning getaxeerd, dat was voldoende voor de bank.
In die tijd belden aannemers mij op met de vraag of ze een offerte mochten maken. Dat is anno 2018 niet meer.
Ik zou eerst zeker zijn van de betaalbaarheid van de woning!jerh schreef op woensdag 25 juli 2018 @ 07:46:
[...]
Ik zou zeker eerst zeker zijn van je ontwerp, je wilt neem ik aan een huis wat bij je past. Als welstand geen problemen oplevert, maakt de volgorde verder niet heel erg uit. Iedere architect moet toch in staat zijn om een ontwerp aan het bouwbesluit te laten voldoen.
Je ontwerp dient toch aan te sluiten bij het budget wat je beschikbaar hebt (en niet omgekeerd)
Zie in dit topic het voorbeeld van @Daniel , dat lijkt me toch het slechtst denkbare scenario!
Daar kan je toch wel vrij snel een inschatting van maken op basis van een gemiddelde m2/m3 prijs. En dat geef je dan mee aan de architect.buiter schreef op woensdag 25 juli 2018 @ 10:12:
[...]
Ik zou eerst zeker zijn van de betaalbaarheid van de woning!
Je ontwerp dient toch aan te sluiten bij het budget wat je beschikbaar hebt (en niet omgekeerd)
Zie in dit topic het voorbeeld van @Daniel , dat lijkt me toch het slechtst denkbare scenario!
Als je het beoogde huis van @Daniel ziet (no offense), dan kan je wel inschatten dat je dat niet met een gemiddelde m3 prijs gaat halen en de huidige markt helpt dan ook niet.
En ik vraag me af hoe je aannemer een prijs kan laten maken als je niet al een voorlopig ontwerp hebt.
In ieder geval een goede afweging maken welk pad je wilt volgen, kan het risico op een zeperd sterkt verminderen.
Ik vraag me persoonlijk nog steeds af waarom het huis van Daniel zo duur moest zijn...jerh schreef op woensdag 25 juli 2018 @ 10:41:
[...]
Daar kan je toch wel vrij snel een inschatting van maken op basis van een gemiddelde m2/m3 prijs. En dat geef je dan mee aan de architect.
Als je het beoogde huis van @Daniel ziet (no offense), dan kan je wel inschatten dat je dat niet met een gemiddelde m3 prijs gaat halen en de huidige markt helpt dan ook niet.
En ik vraag me af hoe je aannemer een prijs kan laten maken als je niet al een voorlopig ontwerp hebt.
In ieder geval een goede afweging maken welk pad je wilt volgen, kan het risico op een zeperd sterkt verminderen.
Ik zou nu met een kuubsprijs van €500, - gaan rekenen. Wellicht voor de zekerheid €550,-. En met dit in je achterhoofd bepalen of je genoeg geld hebt en vervolgens gaan tekenen.
Met gestrekt been.
Met mijn opmerking bedoelde ik wel of je de hypotheek krijgt en/of het er voor over hebt...jerh schreef op woensdag 25 juli 2018 @ 10:41:
[...]
Daar kan je toch wel vrij snel een inschatting van maken op basis van een gemiddelde m2/m3 prijs. En dat geef je dan mee aan de architect.
Als je het beoogde huis van @Daniel ziet (no offense), dan kan je wel inschatten dat je dat niet met een gemiddelde m3 prijs gaat halen en de huidige markt helpt dan ook niet.
En ik vraag me af hoe je aannemer een prijs kan laten maken als je niet al een voorlopig ontwerp hebt.
In ieder geval een goede afweging maken welk pad je wilt volgen, kan het risico op een zeperd sterkt verminderen.
Iedereen kan dromen, maar het moet wel betaalbaar blijven en de bank moet er ook heil in zien.
Die kuub prijs is een makkelijke indicator....
De hut laten uitgroeien tot 1146 m3 zonder dat je daar voor gebudgetteerd hebt is een aardige startArtbij schreef op woensdag 25 juli 2018 @ 11:02:
Ik vraag me persoonlijk nog steeds af waarom het huis van Daniel zo duur moest zijn...
Maar goed genoeg daarover, we hebben dit nu al doorgeslikt en kijken vooral vooruit. Er moet zo langzamerhand wel eens wat gebouwd gaan worden want van de 6 kavels in ons bouwveldje zijn er nu twee al bewoond, eentje is aan het bouwen en de 4e begint in september. Zelfs het laatste kavel dat al twee keer van optienemer is veranderd zit ons nu op de hielen.
Wij rekenen nu inderdaad met 550 euro per m3, dat is een stuk realistischer.Ik zou nu met een kuubsprijs van €500, - gaan rekenen. Wellicht voor de zekerheid €550,-. En met dit in je achterhoofd bepalen of je genoeg geld hebt en vervolgens gaan tekenen.
Ik dacht dat er 1000,- per m3 gevraagd werd.Daniel schreef op woensdag 25 juli 2018 @ 11:46:
[...]
De hut laten uitgroeien tot 1146 m3 zonder dat je daar voor gebudgetteerd hebt is een aardige startEen dergelijk formaat binnen ons budget realiseren kan Groothuisbouw wel maar als je onze specs aanhoudt ging dat natuurlijk nooit lukken. Dat we de boel hebben laten groeien tot dat formaat terwijl we nooit een dergelijk groot huis in volume hebben gewild (uitgangspunt van 800-850 m3) is een staaltje naïviteit waar we nu ook een aardige boete voor betalen. Ook het nadeel van een relatief onervaren architect in woningbouw, en de impliciete aanname dat de specialisten je wel zullen waarschuwen als het mis dreigt te gaan. Dat doen ze dus niet.
Maar goed genoeg daarover, we hebben dit nu al doorgeslikt en kijken vooral vooruit. Er moet zo langzamerhand wel eens wat gebouwd gaan worden want van de 6 kavels in ons bouwveldje zijn er nu twee al bewoond, eentje is aan het bouwen en de 4e begint in september. Zelfs het laatste kavel dat al twee keer van optienemer is veranderd zit ons nu op de hielen.
[...]
Wij rekenen nu inderdaad met 550 euro per m3, dat is een stuk realistischer.
Met gestrekt been.
Nah dat was wel een beetje overdreven want gebaseerd op onderschatting van de m3's en het meerekenen van alle bijkomende kosten behalve de grond. De duurste offerte die ik gehad heb voor het sleutelklaar opleveren was ongeveer 760 per m3, met een zwaar uitgekleed verhaal kwamen we uiteindelijk met de goedkoopste partij iets boven de 500 uit. Op zich geen heel gek bedrag in de huidige markt maar de absolute hoeveelheid speelt ook een rol.Artbij schreef op woensdag 25 juli 2018 @ 12:08:
Ik dacht dat er 1000,- per m3 gevraagd werd.
Nu werktekeningen afronden en materialen bestellen! Start bouw is gepland voor 1 oktober.
The choice is simple – do you do it in this life, or the next? In case of the former, why wait?
Hier ook recent een soortgelijke trap laten plaatsen 4cm eiken, treden in verstek, geolied en vervolgens met super matte lak van skylt. bedrag was rond de 5000 voor 1,5 (split level woning) open trap.dat is exclusief de prefab betonnen trap en stucafwerking.xminator schreef op dinsdag 24 juli 2018 @ 10:11:
[...]
Thanks! Afwerking betreft olie (rubio monocoat super white).
Dat is een flink bedrag wat ze ervoor hebben gevraagd... mja je merkt toch wel dat de ene aannemer in bepaalde producten goedkoper is en in de andere producten dan weer duurder (en vice versa bij een andere aannemer). Voor twee eiken trappen (waarvan één open) hebben wij circa 6k excl btw betaald.
[ Voor 6% gewijzigd door StruvusMaximus op 25-07-2018 20:00 ]
Maar reken je bij je m3 de zolder erbij (dat lijkt me namelijk een relatief goedkope ruimte)?
Of is rekenen met m2 woon oppervlak een betere schatting?
- voordeur plaatsen (morgen)
- tuindeur plaatsen (morgen)
- plafond spacken (morgen)
- defect raam vervangen (morgen)
- pitje 8n ander raam (nageleverd)
- garagedeur afstellen (morgen)
- stuckwerk verbeteren en repareren (?)
- verschillende kleuren knieschotten (verfen komende dagen)
- dakluik trap in juiste lengte (?)
- afdekplaate dilatatie opening goot beter vastzetten
- trapleuning vaster zetten
- gelijksluitende cylinders plaatsen (komende week)
- alles schoon opleveren (binnen en buiten)
Het valt wel mee dus, alleen moeten ze nog best wel wat doen de komende week.
8x330 NO12.5°, 8x330 ZW12.5°, 8x350 ZW60°, 8x325 NO10°, SE8K, P500. 6x410 ZW10° Enphase
Met een viertal mede bouwers werken we samen aan de realisatie van een rij van vijf woningen. De aanpak laat zich wellicht nog het best omschrijven als een CPO light. Op dit moment staat het onderwerp vast en wordt de laatste hand gelegd aan alle stukken die nodig zijn voor de vergunningsaanvraag, waaronder natuurlijk ook de EPC berekening.
In dit topic (of een voorganger) werd ik erop gewezen dat het voor de subsidie op een warmtepomp van belang is dat je zonder de warmtepomp al een EPC van <0,4 haalt en dat de WP de EPC nóg verder omlaag brengt. Tot voor kort overlegde men daarvoor twee EPC berekningen. Eentje op basis van gas(ketel) en eentje mét de warmtepomp. Aangezien er voor vergunningsaanvragen van na 1 juli geen aardgas meer mag worden toegepast, kunnen wij de EPC berekening op basis van een gasketel niet meer maken.
Op de vraag hoe we in ons geval toch nog aanspraak kunnen maken op de subsidie had de architect niet direct een antwoord. Zelf denk ik om de referentie berekening zonder WP te doen op basis van elektrische radiatoren / vloerverwarming. Of kan een berekening op basis van gas daar nog steeds voor worden gebruikt?
Heeft hier iemand voor dezelfde uitdaging gestaan en/of ideeën over hoe we dit zo (financieel) gunstig mogelijk kunnen aanpakken?
Dank alvast!
Overige uitgangspunten:
- Ventilatiesysteem D
- Isolatienormen volgens bouwbesluit
- PV niet mogelijk voor één van de vijf woningen ivm verkeerde/slechte zonorientatie (vrijwel alleen op NO)
Waarom kun je de epc zonder WP niet meer maken? Heeft niets te maken met wat je bij de gemeente aanvraagt.Skubba schreef op woensdag 25 juli 2018 @ 22:04:
Hierbij doe ik ook een beroep op jullie kennis en ervaring.
Met een viertal mede bouwers werken we samen aan de realisatie van een rij van vijf woningen. De aanpak laat zich wellicht nog het best omschrijven als een CPO light. Op dit moment staat het onderwerp vast en wordt de laatste hand gelegd aan alle stukken die nodig zijn voor de vergunningsaanvraag, waaronder natuurlijk ook de EPC berekening.
In dit topic (of een voorganger) werd ik erop gewezen dat het voor de subsidie op een warmtepomp van belang is dat je zonder de warmtepomp al een EPC van <0,4 haalt en dat de WP de EPC nóg verder omlaag brengt. Tot voor kort overlegde men daarvoor twee EPC berekningen. Eentje op basis van gas(ketel) en eentje mét de warmtepomp. Aangezien er voor vergunningsaanvragen van na 1 juli geen aardgas meer mag worden toegepast, kunnen wij de EPC berekening op basis van een gasketel niet meer maken.
Op de vraag hoe we in ons geval toch nog aanspraak kunnen maken op de subsidie had de architect niet direct een antwoord. Zelf denk ik om de referentie berekening zonder WP te doen op basis van elektrische radiatoren / vloerverwarming. Of kan een berekening op basis van gas daar nog steeds voor worden gebruikt?
Heeft hier iemand voor dezelfde uitdaging gestaan en/of ideeën over hoe we dit zo (financieel) gunstig mogelijk kunnen aanpakken?
Dank alvast!
Overige uitgangspunten:
- Ventilatiesysteem D
- Isolatienormen volgens bouwbesluit
- PV niet mogelijk voor één van de vijf woningen ivm verkeerde/slechte zonorientatie (vrijwel alleen op NO)
Ik heb twee weken geleden mijn subsidie aangevraagd. Heb geen vraag gehad voor een EPC zonder WP. Ik zou dus gewoon de gok nemen en geen epc laten maken zonder WP.
Als je een WP plaatst waarom isoleer je de huizen dan niet wat beter?
Met gestrekt been.
Denk aan betere isolatie (raam, vloer, wand, dak)
Luchtdichtheid is ook wel wat mee te halen, maar beetje onbekend voor bouwend nederland denk ik.
Verder werkt voor de EPC nog steeds de lengte die warm water moet afleggen.
Dus warmte opwekker aan andere kant van badkamer muur, en daaronder de keuken doet ook weer klein beetje.
Voor zover ik kon vinden:
- douche wtw -0.05
- zonneboiler -0.08
- zonnepanelen -0.1 per 10 m2 ( dat verschilt nogal als je zoekt)
- warmtepomp -0.2
- zonwering: -0.04 ( minder energie nodig voor koelen)
- gebalanceerder vraag gestuurde ventilatie met wtw -0.1 tot - 0,2 (fabrikanten zijn somes erg enthousiast)
Een aantal maatregelen samen kost al snel meer dan dat die warmtepomp aan subsidie oplevert.
Een beetje screen voor een raam is 500-1000 € afhankelijk van kwaliteit en maat.
Helaas zijn de maatrgelen die aantikken de VP panelen en de warmtepomp..
Ik heb ook een EPC berekening met HR ketel (0.39), en een andere met een Warmtepomp (0.026)
Maar als ik er nu nog een zou maken met screens, triple glas, betere kierdichtheid en meer zonnepanelen zou het wel dicht bij 0 komen. Maar dat is onzinnig, EPC zegt niet zo veel als je op papier maar < 0.4 zit mag je bouwen.
[ Voor 69% gewijzigd door jacovn op 26-07-2018 08:47 ]
8x330 NO12.5°, 8x330 ZW12.5°, 8x350 ZW60°, 8x325 NO10°, SE8K, P500. 6x410 ZW10° Enphase
Uiteindelijk een WP gekocht, factuur ingeleverd en subsidie gekregen van RVO.
Van de gemeente nooit iets weer gehoord.
[ Voor 11% gewijzigd door Grolsch op 25-07-2018 23:24 ]
- HR-combiketel;
- HR-combiketel met warmtepompboiler;
- combi-warmtepomp;
- hybride warmtepomp;
- externe warmtelevering (stadsverwarming);
- biomassa vaste brandstof (tot 1 juli 2018);
- biomassa vaste brandstof (per 1 juli 2018);
Altijd met m3's rekenen. Je bouwt tenslotte een 3d object. Een huis met plafonds van 3 meter is aanmerkelijk duurder dan een huis met plafonds van 2,50 meter, maar groeit niks in oppervlak. De vorm speelt zeker een rol (een plat dak is duurder dan een even groot huis met een puntdak en een rechthoekig huis is duurder dan een vierkant huis) maar binnen dezelfde wijze van uitvoeren zorgen dat soort dingen er doorgaans niet voor dat een m3-prijs ineens 20% hoger of lager wordt.zeroxcool schreef op woensdag 25 juli 2018 @ 21:07:
Ik begrijp dat het slechts indicaties en grove schattingen zijn, de m3 prijs. Maar wat tellen jullie hier gemiddeld onder? De grond zit hier niet bij neem ik aan.
Maar reken je bij je m3 de zolder erbij (dat lijkt me namelijk een relatief goedkope ruimte)?
Of is rekenen met m2 woon oppervlak een betere schatting?
Verder daalt de gemiddelde prijs per m3 naarmate je huis groter wordt, omdat er in die prijs ook bepaalde vaste kosten zitten die dan over een groter aantal m3's worden verdeeld.
De bedragen die je hier ziet per m3 zijn in de regel de bouwkosten voor sleutelklare oplevering, dus zonder de grond. Wát dan precies sleutelklaar is, verschilt van geval tot geval en is iets om met je bouwer af te stemmen. Onderstaand lijstje is een aardige indicatie:
- casco (fundering, dak, muren, vloeren)
- ramen, deuren
- installaties (verwarming, elektra, ventilatie)
- wanden die klaar zijn om afgewerkt te worden
- sanitair en tegelwerk (obv stelpost)
- kosten voor ontwerp en constructieberekeningen
Wat er niet in zit:
- keuken
- vloerafwerking zoals parket of gietvloer
- wandafwerking (schilderen, behangen)
- tuin
- bijkomende adviseurs (sonderingen etc) en gemeentelijke leges
@Grolsch @Artbij Naar wat ik begrepen heb, is die tweede berekening niet van belang voor de gemeente, maar voor het RVO om aansp r aak te maken op de subsidie. Uit jullie antwoorden maak ik dus op dat men hier dus niet naar vraagt / op contorleerd en handhaafd. Kortom, die berekning is misschien niet zo hard nodig in de praktijk als dat ik dacht.
@aikink @jacovn de architect berekend nu in ieder geval wat er nodig is voor EPC 0.4. Er is een wens voor aanvullende maatregelen tbv epc <0.4. Echter als starters is de bovenkant van het budget eerder bereikt
Met andere woorden je EPC moet met gebruik van een gasketel (theoretisch wel te verstaan) al onder de 0,4 zitten.
Maar nogmaals, volgens mij heeft het RVO mij niet om een EPC berekening gevraagd, maar het kan goed zijn dat "ergens" in de vragenlijst daar een opmerking over stond die je naar waarheid in moet vullen. Dat kan ik me niet meer herinneren.
je zult moeten afwegen dat als je met een WP gaat verwarmen je wel de ruimte voor ene WP en een boiler in het te bouwen huis hebt.Skubba schreef op donderdag 26 juli 2018 @ 09:09:
@aikink @jacovn de architect berekend nu in ieder geval wat er nodig is voor EPC 0.4. Er is een wens voor aanvullende maatregelen tbv epc <0.4. Echter als starters is de bovenkant van het budget eerder bereikt. Keuzes...
Je vloerverwarming toe moet passen om met lage temperatuur te kunnen verwarmen (ook op de verdieping wellicht want je kunt er ook enigszins mee koelen over algemeen..)
En ik zou een bouwer vragen om een garantie voor verbeterde luchtdichtheid. Laat hem maar 0.3 of zo in plaats van 0.625 bouwen. Ze zullen dit toch op moeten pakken als BENG komt, hoewel ze waarschijnlijk gaan piepen dat dat veel meer kost.
8x330 NO12.5°, 8x330 ZW12.5°, 8x350 ZW60°, 8x325 NO10°, SE8K, P500. 6x410 ZW10° Enphase
Die overweging moeten wij nu ook maken. Gaan we voor ons met 2 kinderen voor een geïntegreerde boiler van 190 liter of voor een aparte boiler van 300 liter.stefijn schreef op donderdag 26 juli 2018 @ 09:33:
Er zijn ook WPs met ingebouwde boilers (200L meestal), dat volstaat voor ons i.i.g. (twee zonder kids)
Heb al van meerdere mensen (met kinderen) bevestigen gekregen dat in hun geval de 190 liter voldoet. Waarvan twee zelfs zonder douche WTW. Echter vanwege 'range anxiety' ben ik geneigd om voor 300 liter te kiezen.
The choice is simple – do you do it in this life, or the next? In case of the former, why wait?
Wanneer je dus een combi-warmtepomp in de berekening hebt staan vervalt volgens mij je aanspraak op die subsidie.
Blijft de externe warmtelevering en de biomassa over. Kijk eens of je architect een pelletkachel in wil kloppen om de tent te verwarmen, eventueel met een elektrische boiler voor je SWW. Let er wel op dat die onderdelen dan ook op tekening terug te vinden moeten zijn, althans, op de vergunningsstukken. Maak daarnaast een aparte set met daarop de WP op tekening en in de berekening.
@jacovn Heeft de aannemer dan geen recht om te piepen? Je hebt zelf de luchtdichting verzorgd, zet je uren eens af tegen het uurtarief van de aannemer plus materiaalkosten. Zou niet meer dan een rechtmatige vergoeding zijn. Dat goede luchtdichting beter is: geen twijfel over, daarom hebben we daar zelf ook voor gezorgd.
@Joris748 Dat was bij ons ook het dilemma. Uiteindelijk voor een 300l boiler gekozen, maar de boilertemperatuur wel een paar graden lager gezet en de warmtepomp op een lager vermogen ingesteld dan de fabrieksinstelling.
Mits er genoeg marge is dit geen probleem...aikink schreef op donderdag 26 juli 2018 @ 09:59:
@Skubba Wat @Grolsch zegt (behalve dan dat een gasketel niet meer in een nieuwe aanvraag kan). Uit de voorwaarden van de subsidieregeling: "Een apparaat voor een nieuwbouwwoning komt niet in aanmerking als deze nodig is om aan de wettelijke EPC-eis te voldoen."
Wanneer je dus een combi-warmtepomp in de berekening hebt staan vervalt volgens mij je aanspraak op die subsidie.
Zodra dezelfde installatie berekend wordt zonder WP en de EPC gaat daardoor boven de 0,4 dan mag je formeel geen subsidie aanvragen voor de WP.
Niet wetende hoeveel een WP bijdraagt aan de EPC.
EDIT:
Het niet overleggen van de EPC berekening bij de subsidie aanvraag betekend niet dat je deze niet hoeft te hebben.
Als je controle krijgt zal dit wel moeten (als je dit al krijgt).
Heb je dit niet hebt dan loop je het risico op terugbetaling en boete (???)
Het is net als met te hard rijden op de weg, als je het doet dan is er een kans dat je gepakt wordt.
[ Voor 19% gewijzigd door buiter op 26-07-2018 12:04 ]
Ja dat snap ik wel, maar de mensen 10K euro meer laten betalen omdat ze zo veel moeite in afdichten moeten steken volgens hun zelf is ook onzinnig.aikink schreef op donderdag 26 juli 2018 @ 09:59:
@jacovn Heeft de aannemer dan geen recht om te piepen? Je hebt zelf de luchtdichting verzorgd, zet je uren eens af tegen het uurtarief van de aannemer plus materiaalkosten. Zou niet meer dan een rechtmatige vergoeding zijn. Dat goede luchtdichting beter is: geen twijfel over, daarom hebben we daar zelf ook voor gezorgd.
Ik ben denk ik 40-50 uur bezig geweest. 50 euro ex per uur voor iemand die een kwast vast kan houden. dat is een keer 3000 euro. Nog 500 euro aan materiaal. Maar zelf doen was leuk, je denkt beter na over je huis en doet het wellicht ook beter dan een staigaire die ze het laten doen.
Maar ze zouden het in hun hele proces moeten intergreren en op veel punten een klein beetje moeten aanpassen om het geheel beter te maken. Dat zou ook innovatie moeten zijn.
8x330 NO12.5°, 8x330 ZW12.5°, 8x350 ZW60°, 8x325 NO10°, SE8K, P500. 6x410 ZW10° Enphase
Als je die 190 liter maar heet genoeg maakt kan dat zeker heel goed voor een gezin met 2 kinderen.Joris748 schreef op donderdag 26 juli 2018 @ 09:52:
[...]
Die overweging moeten wij nu ook maken. Gaan we voor ons met 2 kinderen voor een geïntegreerde boiler van 190 liter of voor een aparte boiler van 300 liter.
Heb al van meerdere mensen (met kinderen) bevestigen gekregen dat in hun geval de 190 liter voldoet. Waarvan twee zelfs zonder douche WTW. Echter vanwege 'range anxiety' ben ik geneigd om voor 300 liter te kiezen.
Een andere optie is meerdere keren per dag je SWW boiler vewarmen
Maar een WP is juist efficiënt als de boilertemperatuur laag is, en als je maar 1 lange run maakt op een tijdstip dat de Tbuiten het hoogst is.
Laat ik het anders stellen, om 300 liter SWW water beschikbaar te hebben van 38 graden moet de temperatuur van een 190 liter boiler 65 graden zijn, en een 300 liter boiler 45 graden.
65 graden is al een boiler temperatuur die een gemiddelde WP niet gaat halen. (max 55 á 60)
Zelf heb ik geen douche WTW, een 400 liter SWW boiler en een gezin met 2 (kleine) kinderen met een regendouche (12 ltr/minuut) en een groot ligbad. Boilertemperatuur = 45 graden en onze boiler is heel af en toe echt bijna leeg is
Conclusie: Ik zou in mijn situatie zeker geen kleinere boiler genomen hebben.
Ik heb gisteren bij RVO subsidie aangevraagd.Skubba schreef op donderdag 26 juli 2018 @ 09:09:
Dank voor jullie antwoorden!
@Grolsch @Artbij Naar wat ik begrepen heb, is die tweede berekening niet van belang voor de gemeente, maar voor het RVO om aansp r aak te maken op de subsidie. Uit jullie antwoorden maak ik dus op dat men hier dus niet naar vraagt / op contorleerd en handhaafd. Kortom, die berekning is misschien niet zo hard nodig in de praktijk als dat ik dacht.
@aikink @jacovn de architect berekend nu in ieder geval wat er nodig is voor EPC 0.4. Er is een wens voor aanvullende maatregelen tbv epc <0.4. Echter als starters is de bovenkant van het budget eerder bereikt. Keuzes...
Ze vragen niet om de EPC berekening.
I was born intelligent - education ruined me
Dit topic is gesloten.
![]()
Duurzame installaties en domotica hebben eigen fora met veel meer diepgang over dat onderwerp. Dit topic gaat over de perikelen omtrent het bouwen van een eigen woning.
Voor projectmatige woningbouw: Het (projectmatige) nieuwbouwwoning topic. Je tuin is natuurlijk ook iets wat moet gebeuren na de bouw. Zie Het grote tuinen, balkons en plantentopic