Hoop goede suggesties weer, thanks

Sturgeon22 schreef op dinsdag 17 juli 2018 @ 11:18:
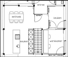
- Bijkeuken liever direct naast de keuken, nu moet je onnodig veel heen en weer lopen
- Plek van de keuken lijkt mij ongelukkig. Om in je woonkamer te komen moet je nu om de eettafel en langs je kookeiland waar het niet heel breed is.
Als het huis breder wordt gemaakt is dat probleem al een stukje kleiner, maar ik snap het punt. De route vanaf de entree naar min of meer alle andere ruimtes in het huis is tussen het kookeiland en de keukenwand door. Dat is niet alleen lang, ook onhandig als er iemand in de keuken bezig is. Wellicht logischer om de keuken naar de voorkant te verplaatsen en de eethoek in het middendeel te doen?
Andere optie: de bijkeuken samenvoegen met de technische berging, en de trap 180 graden draaien waardoor deze richting de achterkant van het huis omhoog loopt. De toegangsdeur tussen entree en woonkamer komt dan recht tegenover de trap, en de toegangsdeur naar de bijkeuken Je kunt dan direct rechtdoor vanuit de entree naar boven lopen, en de toegang van de bijkeuken komt direct in de woonkamer uit. Je hebt dan alleen nog de looproute naar de werkkamer door de keuken maar als die breder wordt is dat meteen een minder groot issue.
Vlug schetsje:

waarbij je in het achterhoofd moet houden dat de bijkeuken en werkkamer links nog 0,5 tot 1 meter uitgebouwd zouden worden.
- Komt er een deur van de trap of blijft deze in het zicht? Over het algemeen wordt een trap in een vrijstaande woning niet open in de woonkamer geplaatst + warmteverlies als het in open verbinding met de bovenverdieping staat.
Ik vermoed dat het als open trap bedoeld is.
- De glazen wand + glazen deur van de werkkamer creert een soort "aquarium" waar je wel erg te kijk zit als je aan het werk bent.
Dat is een bewuste keuze en zien wij niet als een nadeel.
- Een zithoek van 4 bij 4 is niet heel ruim bemeten. Er is nu alleen 1 hoekbank ingetekend, maar met visite heb je al snel een paar extra stoelen nodig.
Die hoekbank verziekt het beeld een beetje want je hebt voor de zithoek natuurlijk de hele breedte van het huis (meter of 8 ) en niet enkel de hoek rechtsonder. Huis zou hier nog wat verlengd kunnen worden zonder veel extra kosten door de veranda kleiner te maken, alleen de verdiepingsvloer wordt dan langer.
Volgens mij is dat onderdeel van het standaard bouwsysteem. Geen idee hoeveel marge daar in zit, kan ik wel navragen.
BG:
- Hal is een soort deurenparadijs, bijna geen enkel vrij stukje muur.
- Je moet door de eetkamer, keuken en woonkamer naar de werkkamer. Je moet in je indeling ruimte houden met veel looplijnen. Ik heb zo'n huis gehad, dat is niet fijn.
- Trap in de woonkamer en de study geeft extra looplijnen waardoor je effectieve woonkamer maar 3 meter breed is.
Zie mogelijke oplossing hierboven. Bereikbaarheid van de werkkamer is overigens in onze ogen niet zo'n issue, meer dan je elke keer het halve huis moet doorkruisen als je je wasgoed in de machine moet gooien die in de bijkeuken staat.
- Vreemd dat je een vide maakt, maar hem niet gebruikt in het zitgedeelte? Is dat bewust?
Bedoel je dan dat daar geen meubels ingetekend staan? Lijkt mij puur indicatief.
VD
- Master is met 4x3 echt te klein. Berucht architectentrucje is om een bed 140x200 te tekenen, terwijl een boxspring met hoofdbord rustig 180x230 is met wat overlap van dekens e.d.
- Kleine slaapkamers zijn gewoon slecht. Bed onder de kap gemoffeld, maar er past nauwelijks een kast of bureau in.
Ja dat is niet acceptabel. Een normale slaapkamer is 10-12 m2 en als er een schuin dak is eerder aan de bovenkant van die range. Wij hebben een nogal fors bemeten bed (210x220) dus hebben in de master bedroom ook zeker meer ruimte nodig. Kan denk ik eenvoudig door de vloer met 0,5-1 meter te verlengen ten kosten van de veranda.
Het hoeven geen twee volwaardige badkamers te zijn maar in het algemeen is het bij grotere woningen inmiddels toch wel gebruikelijk om een 2e badkamer te voorzien met een eigen douche en een 3e toilet. Een aparte gastenbadkamer vinden we ook zelf een fijn idee. Op 5-6 m2 krijg je dat voor elkaar dus dat moet toch altijd wel ergens in te passen zijn.
Cheesy schreef op dinsdag 17 juli 2018 @ 12:25:
Heb je een berging of garage? Zo niet, dan kun je daar ook nog over nadenken.
Wij hebben niet veel rommel, maar toch vind ik het fijn dat we een zolder en garage hebben.
In dit plan zie ik niet veel ruimte om e.e.a. op te bergen.
Een garage zou qua breedte binnen het bouwvlak kunnen (we mogen 13 meter breed, dit is nu 8 en wordt waarschijnlijk 9) maar houden we tot nu toe geen rekening mee. Wel met een losse berging voor fietsen etc. in de tuin, maar die zal wel apart gebouwd worden. In de nok van dit ontwerp is een vliering voor andere zooi.