Ervaringen met het bouwen van een eigen huis - Deel 2 Vorige deel Overzicht Laatste deel

Dit topic is onderdeel van een reeks. Ga naar het meest recente topic in deze reeks.

Pagina: 1 ... 167 ... 272 Laatste
Acties:
  • 2.623.964 views

Onderwerpen


Acties:
  • 0 Henk 'm!

  • Aurum
  • Registratie: December 2017
  • Laatst online: 21:37
@battler
Ik weet persoonlijk niet hoe je een balk met ruim een overbrugging van misschien wel meer dan 8 meter gaat halen zonder tussendoor staanders? of je gaat het misschien van staal doen zodat je grotere overspanningen kan halen? of wil je perse een hele dure houtsoort?

Je gevelbekleding zit bij het huis toch dus het gaat alleen om de pergola?

Acties:
  • 0 Henk 'm!

  • No Hands
  • Registratie: Maart 2016
  • Laatst online: 07:15
vdbeke schreef op vrijdag 1 januari 2021 @ 14:04:
[...]


kleine/ grote update

voor de inrit is er een muur gemetst waar later de welfsels op geplaatste kunnen worden, balkske gieten boven deuropening.
[Afbeelding]

welfsels gelegd:
[Afbeelding]

stuk onder inrit:
[Afbeelding]

en toen werd het leuk:
kelderman zei bij het plaatsen van welfsels, bestel u netten al maar. en dan zien we nog wel voor die dek te gieten. 1 net per 10m². dus 23 netten besteld. netten gelegd en gebonden. kerel proberen te bellen, maar pakte niet af. zijne zoon ook niet. en zijne andere zoon ging eens luisteren, maar niks van gehoord.

regenen heeft het goed gedaan en met al die netten die eroplagen. begint te roesten. water loopt kelder in via de muren. leuk man.
[Afbeelding]

paar aannemers aangesproken voor dek te gieten. 5 gebeld, 3 zijn er geweest komen kijken en ene had offerte gemaakt. vond de prijs wel te hoog ma soit, daar kon wel 500 vanaf. de week dat hem zou komen, belt he dat ze in quarantaine moeten #corona en de melding dat ze geen zicht hadden wanneer ze wel konden. allee vooruit terug bij af.

dan zelf maar begonnen, ozze voi had nog ne kameraad die nog wel wat stipen had staan. en bruggen ed. andere kameraad komen helpen met bekisting zetten. en den dag van de beton komen helpen met storten.
[Afbeelding]

na de bekisting van de druklaag verwijderd te hebben. kon er begonnen worden met de bekisting voor de inrit.

voi heeft met betonblokken stuk gemetst voor die 2 resterende welfsels op te leggen. die moeten hoger komen te liggen om mijn doorrijhoogte te behouden, ander had ik niet zo'n een hoge kelder moeten maken.

stuk zand voor inrit weggegraven en naast kelder gedumpt, zodoende ik met kraan er langs kon voor die welfsels erop te leggen. 3 camions steenpuin laten kappen voor terug houvast te hebben voor mixer en als voorlopige oprit.
[Afbeelding]

[Afbeelding]

dan HSB erop om de regen buiten te houden:

[Afbeelding]

[Afbeelding]

ondertussen is ook mijn "kermisattractie" klaar en liggen mijn panelen daar op ipv op een houten frame dat tegen 40ft container stond.
[Afbeelding]
(solarkabels zijn ondertussen wel netjes getyrewraped)

er zitten lineaire motors op^om de zon te volgen voor 90° instraling te hebben op de zon.

overal winter blijft spannend, er is niet veel zonlicht en toch veelal bewolkt weer. dus met de zon alleen kom je er niet.

wat kost dat?

kelder 43.387,12
welfsels + kraanwerk 10.655,01
poutrelle 240 215
prefab beton trap 2.489,69
betonblokken, zand en cement voor inrit 744,18
signalisaties voor straat af te sluiten 470
23 netten met stekken voor druklaag 966
hout voor bekisting druklaag 413,75
2 keer trilnaald gehuurd 75,02
beton dek en inrit met 1 keer pomp,
inrit met telegoot gegoten 3073,40

totaal €62.489,17

veel geld, maar onder budget gebleven, ik had 70D euro voorzien voor de kelder en voor de HSB van het huis ook, maar dit zal wel zonder de gevel zijn. want padoek is duur. maar die gesprekken zijn voor begin volgend jaar, als corona niet teveel roet in het eten gooit.

de bedoeling is mei juni HSB recht te zetten (prefab laten maken)

en de beste wensen en een goede gezondheid!
Mooi werk hoor!
Hoeveel% is die helling? Ga je daar echt dagelijks je auto in en uitrijden?

Veroordeel niet, verwonder u slechts


Acties:
  • +1 Henk 'm!

  • battler
  • Registratie: November 2004
  • Laatst online: 30-06 15:11
@StevenK pm gestuurd.

@D.deJong Dat gaf de timmerman ook aan, 11K aan materiaal. Het kan best zo zijn dat we dit (grof) onderschat hebben. Verder maakte de timmerman een goede indruk dus als de prijs representatief is gaan we wel graag met hem verder.

@Aurum Houtsoort maakt op dit moment niet heel veel uit, Het liefst onderhoudsarm maar met ons budget kan je ook niet te veel eisen hebben. Als er staanders moeten komen dan is dat geen probleem, het ontwerp is onze eigen impressie en zoals je merkt niet gelimiteerd door enige kennis van zaken :+. We vragen op dit moment ook een aluminium pergola uit, misschien dat dat goedkoper is. De gevelbekleding zit inderdaad bij de woning. Het zou mooi zijn als de houtkleur overeenkomt of past bij de rest van de woning (antraciet).

[ Voor 50% gewijzigd door battler op 02-01-2021 10:35 ]

Lux.Architectuur | Van Dromen tot Wonen | www.Lux-a.nl


Acties:
  • +1 Henk 'm!

  • ybos
  • Registratie: Juni 2013
  • Laatst online: 21:39
battler schreef op vrijdag 1 januari 2021 @ 16:07:
Iemand een goed adresje voor het laten maken van een pergola? Wij hadden een timmerman die in eerste instantie 11K aangaf, maar nu de offerte gespecificeerd heeft op 20K. Misschien toch maar even verder kijken dus.

[Afbeelding]

Daarnaast ben ik ook nog op zoek naar een partij die de keerwand kan maken. Alvast bedankt!
Keerwand van hardhout of damwand :?
Hoolfwerf Heiwerken uit bunschoten / eemdijk kan dit prima. Geen aandelen maar no nonsense, klein bedrijf met hardwerkende mensen. Mijn broer heeft door hen ook een hardhouten keerwand in zijn achtertuin laten zetten langs de sloot en daarna de tuin kleine meter opgehoogd.

(als je de site bekijkt zie je dat het vooral over heiwerk gaat, gewoon even benaderen)

[ Voor 4% gewijzigd door ybos op 02-01-2021 11:07 ]


Acties:
  • +1 Henk 'm!

  • battler
  • Registratie: November 2004
  • Laatst online: 30-06 15:11
@ybos bedankt, ik heb ze even gebeld maar ze doen dit niet meer. Uitsluitend heiwerkzaamheden.

Lux.Architectuur | Van Dromen tot Wonen | www.Lux-a.nl


Acties:
  • 0 Henk 'm!

  • D.deJong
  • Registratie: December 2013
  • Laatst online: 19-10 17:31
battler schreef op zaterdag 2 januari 2021 @ 10:29:
@StevenK pm gestuurd.

@D.deJong Dat gaf de timmerman ook aan, 11K aan materiaal. Het kan best zo zijn dat we dit (grof) onderschat hebben. Verder maakte de timmerman een goede indruk dus als de prijs representatief is gaan we wel graag met hem verder.

@Aurum Houtsoort maakt op dit moment niet heel veel uit, Het liefst onderhoudsarm maar met ons budget kan je ook niet te veel eisen hebben. Als er staanders moeten komen dan is dat geen probleem, het ontwerp is onze eigen impressie en zoals je merkt niet gelimiteerd door enige kennis van zaken :+. We vragen op dit moment ook een aluminium pergola uit, misschien dat dat goedkoper is. De gevelbekleding zit inderdaad bij de woning. Het zou mooi zijn als de houtkleur overeenkomt of past bij de rest van de woning (antraciet).
Zoals op de tekening is de overspanning een uitdaging en gezien het beeldbepalende karakter in het ontwerp doe je dit ook niet met een vurenhouten latje eerder eiken of douglas en dat is nou eenmaal wat duurder.

Acties:
  • 0 Henk 'm!

  • xoror
  • Registratie: November 1999
  • Niet online
battler schreef op zaterdag 2 januari 2021 @ 15:14:
@ybos bedankt, ik heb ze even gebeld maar ze doen dit niet meer. Uitsluitend heiwerkzaamheden.
Welke omgeving? bij mij wordt week 3 een damwand geplaats, dan weet ik of ik die kan aanbevelen :)

Eenvoudig + Goedkoop Mitsubishi Warmtepomp uitlezen/besturen met een ESP32


Acties:
  • +1 Henk 'm!

  • xminator
  • Registratie: Maart 2006
  • Laatst online: 21:44
xoror schreef op zaterdag 2 januari 2021 @ 20:14:
[...]


Welke omgeving? bij mij wordt week 3 een damwand geplaats, dan weet ik of ik die kan aanbevelen :)
Quanta costa?

Acties:
  • 0 Henk 'm!

  • xoror
  • Registratie: November 1999
  • Niet online
Bij 1m hoogte kwam ik uit op ongeveer ruim 300 ex btw / strekkende meter (5 cm hard hout). Prijs is erg afhankelijk van materiaal etc.

Even iets anders: Weet iemand hoe de bijleen regeling in de praktijk gaat als je geen overbruggingshypotheek hebt? Stel je hebt een leuke overwaarde op je oude woning bij verkoop. Alleen is dat geld pas na overdracht beschikbaar. Je wil een deel daarvan gebruiken voor tuin, vloer etc.

Hoe doe je dit fiscaal als je geen overbruggingshypotheek hebt? Eerst voorschieten en bonnen bewaren en later deel van de overwaarde tegen wegstrepen? Mag je dat zo doen?

[ Voor 48% gewijzigd door xoror op 03-01-2021 09:11 ]

Eenvoudig + Goedkoop Mitsubishi Warmtepomp uitlezen/besturen met een ESP32


Acties:
  • 0 Henk 'm!

  • Elja
  • Registratie: September 2004
  • Laatst online: 18-09 08:53
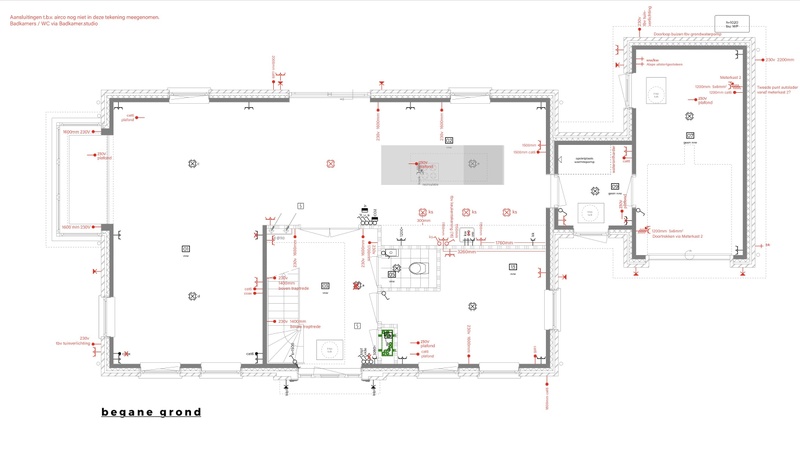
Over anderhalve week hebben we bij onze aannemer (Groothuisbouw) het puntjes op de i-gesprek.
Dan wordt alles nog eens grondig doorgenomen voor de definitieve aannemersovereenkomst.
Daarna staat ook alles definitief vast voor de bouw en kan er niks meer gewijzigd worden.

Voor het gesprek hebben we een installatietekening gekregen waarop staat wat er standaard aan installaties geplaatst wordt (in het zwart) en waarop wij in het rood aangeven wat we zelf willen laten toevoegen.

Ik ben benieuwd of jullie nog suggesties hebben?
Wat zijn we vergeten?

In de tekeningen hebben we onder andere stroompunten bijgetekend voor wandlampen (die op 1600mm). We gaan uit van stroompunten in plaats van schakelpunten omdat we hierop Philips Hue (Liane) lampen gaan plaatsen. Bediening gaat daarom niet via schakelaars, er mag constant stroom op staan.

Aan het plafond zie je ook 230v punten (voor extra rookmelders) en cat6 aansluitingen (voor wifi punten).

Afbeeldingslocatie: https://tweakers.net/i/RIaqxNP-xMUZPW0YqLm8jZqE_gU=/800x/filters:strip_icc():strip_exif()/f/image/aZN2tffBMK6iDnMZzFriwI5X.jpg?f=fotoalbum_large

Afbeeldingslocatie: https://tweakers.net/i/PpWg-mxL5SkWTZ-VcaOxbzVH3co=/800x/filters:strip_icc():strip_exif()/f/image/cJ41BLvsfb8VZfI496nXsZWf.jpg?f=fotoalbum_large

Afbeeldingslocatie: https://tweakers.net/i/HbeDECREY0wtrteS8N1YGJftFxM=/800x/filters:strip_icc():strip_exif()/f/image/LA6Ga0bzTC7L9ABdwajZNgHG.jpg?f=fotoalbum_large

Afbeeldingslocatie: https://tweakers.net/i/1Jw5DE06B-Ojz_0h6oam7I8f-Yo=/800x/filters:strip_icc():strip_exif()/f/image/kKUe0XQ7MLfvPafx55HhnviS.jpg?f=fotoalbum_large

Afbeeldingslocatie: https://tweakers.net/i/YmFlRhwS2su_R0iXltaEufVl1a4=/800x/filters:strip_icc():strip_exif()/f/image/A7b2VL3Zt6OeKVbZMIRjnvK9.jpg?f=fotoalbum_large

Photofacts; weblog over fotografie..


Acties:
  • 0 Henk 'm!

  • Fabian
  • Registratie: April 2000
  • Laatst online: 20-10 20:38
@Elja In de tekening staan meterkast en meterkast2. Zijn dat alleen ruimtes waar buizen uit komen of komt er in meterkast2 ook een stroomverdeler? In geval van een stroomverdeler, hoe worden die twee op elkaar aangesloten ?

Acties:
  • +3 Henk 'm!

  • Señor Sjon
  • Registratie: Juli 2003
  • Laatst online: 20-10 19:32
- Nuldraad mee laten trekken naar schakelaars, of een enkele wcd naast elke schakelaar. Zijn perfect voor wanneer je snel ergens stroom moet hebben en dan heb je gelijk een Nuldraad in de buurt voor als je met ledddimmers werkt (scheelt nagloeien LED).
- voor waar je strijkt een wcd op hoogte, scheelt bukken.
- 3/4e ipv 5/8e buis toepassen
- wcd linksonder 31 handhaven, waarom zou je een hele hoek zonder wcd laten? Liever teveel dan te weinig.
- waar komen kledingkasten? wcd's 70cm uit de hoeken houden zorgt ervoor dat ze altijd buiten een kast zitten.

[ Voor 30% gewijzigd door Señor Sjon op 03-01-2021 12:02 ]

This is my signature. There are many like it, but this one is mine.


Acties:
  • 0 Henk 'm!

  • Elja
  • Registratie: September 2004
  • Laatst online: 18-09 08:53
Fabian schreef op zondag 3 januari 2021 @ 11:48:
@Elja In de tekening staan meterkast en meterkast2. Zijn dat alleen ruimtes waar buizen uit komen of komt er in meterkast2 ook een stroomverdeler? In geval van een stroomverdeler, hoe worden die twee op elkaar aangesloten ?
Meterkast 2 is in eerste instantie vooral een dikke kabel die naar die plek loopt. Het idee is dat vanuit daar extra dingen aangesloten kunnen worden. Zoals 2x een laadpaal voor onze elektrische auto’s, eventueel toekomstige extra zonnepanelen op het dak van de garage (en carport en schuurtje) en mogelijk toekomstige accu’s voor stroomopslag.

Hoe die twee precies op elkaar aangesloten moeten worden weet ik niet; dit was een suggestie van iemand die we gesproken hebben over zonnepanelen plaatsen. Klonk wel handig. :)

Photofacts; weblog over fotografie..


Acties:
  • 0 Henk 'm!

  • xminator
  • Registratie: Maart 2006
  • Laatst online: 21:44
xoror schreef op zondag 3 januari 2021 @ 08:38:
[...]


Bij 1m hoogte kwam ik uit op ongeveer ruim 300 ex btw / strekkende meter (5 cm hard hout). Prijs is erg afhankelijk van materiaal etc.
Net zoals met alles in de bouw scheelt het als je goed gaat vergelijken en meerdere offertes aanvraagt.

Ik was circa 180 euro ex btw (220 incl btw, ex btw prijzen tonen is vreemd) kwijt per strekkende meter weliswaar met 3cm hardhout.

Acties:
  • +1 Henk 'm!

  • frisianstar
  • Registratie: Maart 2008
  • Laatst online: 24-04-2022
Señor Sjon schreef op zondag 3 januari 2021 @ 11:59:
- Nuldraad mee laten trekken naar schakelaars, of een enkele wcd naast elke schakelaar. Zijn perfect voor wanneer je snel ergens stroom moet hebben en dan heb je gelijk een Nuldraad in de buurt voor als je met ledddimmers werkt (scheelt nagloeien LED).
- voor waar je strijkt een wcd op hoogte, scheelt bukken.
- 3/4e ipv 5/8e buis toepassen
- wcd linksonder 31 handhaven, waarom zou je een hele hoek zonder wcd laten? Liever teveel dan te weinig.
- waar komen kledingkasten? wcd's 70cm uit de hoeken houden zorgt ervoor dat ze altijd buiten een kast zitten.
Buis bij voordeur tbv UTP kabel (mogelijke) video-intercom.
Ribbel/ mantel buis van meterkast naar zolder, tuinhuis en garage; deze buis kost haast niks: rond 50 mm: 1 euro per meter.

20x JA Solar 6.9KW; Fronius Symo 7.0; Panasonic J Mono 7KW; Atlantic Explorer V3


Acties:
  • +1 Henk 'm!

  • Fabian
  • Registratie: April 2000
  • Laatst online: 20-10 20:38
Elja schreef op zondag 3 januari 2021 @ 12:33:
[...]


Meterkast 2 is in eerste instantie vooral een dikke kabel die naar die plek loopt. Het idee is dat vanuit daar extra dingen aangesloten kunnen worden. Zoals 2x een laadpaal voor onze elektrische auto’s, eventueel toekomstige extra zonnepanelen op het dak van de garage (en carport en schuurtje) en mogelijk toekomstige accu’s voor stroomopslag.

Hoe die twee precies op elkaar aangesloten moeten worden weet ik niet; dit was een suggestie van iemand die we gesproken hebben over zonnepanelen plaatsen. Klonk wel handig. :)
Volgens mij moeten de twee laadpalen gewoon ieder hun eigen beveiliging (zekering) en afhankelijk van het type laadpaal ook nog dc beveiliging. Je kunt beter drie kabels van de meterkast naar de garage laten leggen en alles gewoon zekeren in meterkast1. Onderverdelen in meterkast2 gaat niet tenzij je een veel zwaardere hoofdzekering neemt met bijbehorende jaarlijkse kosten.

Acties:
  • 0 Henk 'm!

  • vdbeke
  • Registratie: Augustus 2008
  • Laatst online: 08:05
No Hands schreef op zaterdag 2 januari 2021 @ 08:16:
[...]


Mooi werk hoor!
Hoeveel% is die helling? Ga je daar echt dagelijks je auto in en uitrijden?
toevallig vandaag gemeten met digitale waterpas van het werk. is wel in graden, bedoeling was 10 en 20°. niet helemaal gelukt.

had ik jouw vraag gezien had ik hem in % kunnen zetten.

Afbeeldingslocatie: https://tweakers.net/i/HyoQ6aa-6pALDaGMml7pYr_oamo=/800x/filters:strip_icc():strip_exif()/f/image/0saByFL3zTSP5OvQydkZDBlt.jpg?f=fotoalbum_large

Afbeeldingslocatie: https://tweakers.net/i/lchOIQfniTcO9geznZGvd32LqZQ=/800x/filters:strip_icc():strip_exif()/f/image/TsQtXGMF7nbZ9xQ8JYrTA5EL.jpg?f=fotoalbum_large

De bouw van een (bijna) passief offgrid huis


Acties:
  • 0 Henk 'm!

  • Conrado
  • Registratie: November 2012
  • Laatst online: 07:12
Volgens mij komt 20,8° overeen met zo'n 38%. Dat is heel fors want normaalgesproken wordt 20~24% aangehouden bij hellingbanen onder woonhuizen.
Belangrijker zijn daarbij de gekozen aan-/afrijdhoeken, want anders lopen auto's vast onder de bodem (bovenaan) en de onderkant van de bumper (onderaan).

Mijn huis is slimmer dan ik...


Acties:
  • 0 Henk 'm!

  • Andrehj
  • Registratie: Juni 2002
  • Laatst online: 08:41
vdbeke schreef op zondag 3 januari 2021 @ 15:33:
[...]


toevallig vandaag gemeten met digitale waterpas van het werk. is wel in graden, bedoeling was 10 en 20°. niet helemaal gelukt.

had ik jouw vraag gezien had ik hem in % kunnen zetten.

[Afbeelding]

[Afbeelding]
Ik zie twee waarden. Beiden liggen niet tussen de 10 en 20 graden, maar welke waarde is nu je helling?
En ik snap het tolerantiegebied ook niet. En helling van 10 graden is (meer dan) twee keer zo lang als eentje van 20 graden... Je zult je huis toch wel iets nauwkeuriger bouwen dan dat?
Zo'n helling moet je makkelijk op een graad precies kunnen bouwen toch? En er zijn voor dergelijke hellingen inderdaad richtlijnen.
Toen wij nog met het (zeer vroege) ontwerp voor een woning bezig waren heb ik ooit zo'n helling uitgezet in Autocad met daarin ook de aan- en afrijhoeken van onze gezinsauto. Om het toen een beetje lekker te kunnen laten werken had ik al 8 meter helling nodig, en daarmee hoefde ik maar 1.5 meter (halve verdieping) omlaag... Ik denk dat je helling inderdaad wat steil is.

WP: ME PUHZ-SW75YAA + ERSD-VM2D + EV-WP-TWS-1W 300; AC: ME MXZ-2F42VF + 2x MSZ-LN25VGV; PV: 14.08 kWp O/W + SMA STP 8.0; Vent: Zehnder Q600 ERV + Ubbink AirExcellent.


Acties:
  • 0 Henk 'm!

  • bvooijen
  • Registratie: Januari 2008
  • Laatst online: 19-01 11:27
Wij oriënteren ons op een kavel en zelf een huis bouwen, en proberen de kosten in te schatten. Voor de meeste aspecten van het zelf bouwen kan ik wel informatie vinden wat de keuzes zijn en bijbehorende prijzen. Echter voor de fundering kan ik dat niet achterhalen.

We denken aan een huis van 1 bouwlaag, houtskelet, van 10x15 m. In onze omgeving zijn veel huizen onderheid (betonnen palen van 10m) en ik ga er van uit dat wij ook moeten heien. Uuiteraard laten we een sonderingsonderzoek doen. Ik hoop echter een inschatting te krijgen zodat wij kunnen besluiten al dan niet door te gaan.

Vragen die we hebben:
1) hoeveel palen hebben we zo ongeveer nodig?
2) klopt het dat op de palen balken komen en daarop platen (de bgg vloer)? Of mis ik iets?
3) wt kost dit alles (ontgraven, palen, heien, balken en platen, materiaal en arbeid) zo ongeveer?

Groet,
Bas

Acties:
  • +3 Henk 'm!

  • vdbeke
  • Registratie: Augustus 2008
  • Laatst online: 08:05
Andrehj schreef op zondag 3 januari 2021 @ 16:38:
[...]

Ik zie twee waarden. Beiden liggen niet tussen de 10 en 20 graden, maar welke waarde is nu je helling?
En ik snap het tolerantiegebied ook niet. En helling van 10 graden is (meer dan) twee keer zo lang als eentje van 20 graden... Je zult je huis toch wel iets nauwkeuriger bouwen dan dat?
Zo'n helling moet je makkelijk op een graad precies kunnen bouwen toch? En er zijn voor dergelijke hellingen inderdaad richtlijnen.
Toen wij nog met het (zeer vroege) ontwerp voor een woning bezig waren heb ik ooit zo'n helling uitgezet in Autocad met daarin ook de aan- en afrijhoeken van onze gezinsauto. Om het toen een beetje lekker te kunnen laten werken had ik al 8 meter helling nodig, en daarmee hoefde ik maar 1.5 meter (halve verdieping) omlaag... Ik denk dat je helling inderdaad wat steil is.
effe opnieuw dan, de helling bestaat uit 3 stukken. eerste stuk is 10° dan komt een stuk van 20° en dan terug een van 10°.
architect kwam met het voorstel om met 2 verschillende hellingshoeken te werken.

met de tan uitgeteld en afgetekend, mijn vader heeft muur gemetst. maar die mens is ook eigenwijs en doet zijn eigen zin. Dus heb die ook paar keer moeten corrigeren. (verlofdagen waren op van de kelder te gieten, dus kon niet altijd meehelpen)

auto kan vlot naar beneden, aanhanger ook. dus plaatje klopt

en ja, beton ligt niet perfect. maar om hier geen ervaring in te hebben, kon het veel slechter. speciale beton of niet, beton loopt nog altijd naar beneden. dus storten en direct poelieren.

normaal was het de bedoeling om dit te laten doen, maar aannemer laat je dan in de steek. iemand anders zoeken was niet zo evident.

De bouw van een (bijna) passief offgrid huis


Acties:
  • +1 Henk 'm!

  • xoror
  • Registratie: November 1999
  • Niet online
xminator schreef op zondag 3 januari 2021 @ 12:35:
[...]

Net zoals met alles in de bouw scheelt het als je goed gaat vergelijken en meerdere offertes aanvraagt.

Ik was circa 180 euro ex btw (220 incl btw, ex btw prijzen tonen is vreemd) kwijt per strekkende meter weliswaar met 3cm hardhout.
Oh hoe hoog en hoe afgewerkt (hoe lang geleden aangelegd) ? Ook met verankering? Heb je fotos? Is 3cm niet wat dun voor damwand? Zijn meer goede beschoeiingsmaten. Maar als je meer info heb graag :)

[ Voor 13% gewijzigd door xoror op 03-01-2021 18:11 ]

Eenvoudig + Goedkoop Mitsubishi Warmtepomp uitlezen/besturen met een ESP32


Acties:
  • 0 Henk 'm!

  • No Hands
  • Registratie: Maart 2016
  • Laatst online: 07:15
vdbeke schreef op zondag 3 januari 2021 @ 17:02:
[...]


effe opnieuw dan, de helling bestaat uit 3 stukken. eerste stuk is 10° dan komt een stuk van 20° en dan terug een van 10°.
architect kwam met het voorstel om met 2 verschillende hellingshoeken te werken.

met de tan uitgeteld en afgetekend, mijn vader heeft muur gemetst. maar die mens is ook eigenwijs en doet zijn eigen zin. Dus heb die ook paar keer moeten corrigeren. (verlofdagen waren op van de kelder te gieten, dus kon niet altijd meehelpen)

auto kan vlot naar beneden, aanhanger ook. dus plaatje klopt

en ja, beton ligt niet perfect. maar om hier geen ervaring in te hebben, kon het veel slechter. speciale beton of niet, beton loopt nog altijd naar beneden. dus storten en direct poelieren.

normaal was het de bedoeling om dit te laten doen, maar aannemer laat je dan in de steek. iemand anders zoeken was niet zo evident.
Ik vind het behoorlijk schuin, maar ik wilde eigenlijk weten of je daar ook dagelijks je auto inzet. En is de uitrit verwarmd? Of werk je thuis als het vriest?
Knap dat jullie het zelf gedaan hebben!

Veroordeel niet, verwonder u slechts


Acties:
  • 0 Henk 'm!

  • Oilman
  • Registratie: December 2012
  • Laatst online: 23:47
Fabian schreef op zondag 3 januari 2021 @ 12:56:
[...]


Volgens mij moeten de twee laadpalen gewoon ieder hun eigen beveiliging (zekering) en afhankelijk van het type laadpaal ook nog dc beveiliging. Je kunt beter drie kabels van de meterkast naar de garage laten leggen en alles gewoon zekeren in meterkast1. Onderverdelen in meterkast2 gaat niet tenzij je een veel zwaardere hoofdzekering neemt met bijbehorende jaarlijkse kosten.
Buiten het feit dat ik mij afvraag wat de daadwerkelijke meerwaarde van de 2e groepenkast is, klopt dat laatste niet. Selectiviteit is geen eis meer in de NEN1010, enkel nog een aanbeveling. In een groot bedrijfspand is selectiviteit essentieel in een huis zou ik mij er niet druk over maken.

Acties:
  • 0 Henk 'm!

  • Andrehj
  • Registratie: Juni 2002
  • Laatst online: 08:41
vdbeke schreef op zondag 3 januari 2021 @ 17:02:
effe opnieuw dan, de helling bestaat uit 3 stukken. eerste stuk is 10° dan komt een stuk van 20° en dan terug een van 10°.
architect kwam met het voorstel om met 2 verschillende hellingshoeken te werken.
Aha, dat maakt het een stuk duidelijker! En door de drie verschillende hoeken heb je idd geen problemen met het raken van de grond.

[ Voor 11% gewijzigd door Andrehj op 03-01-2021 20:17 ]

WP: ME PUHZ-SW75YAA + ERSD-VM2D + EV-WP-TWS-1W 300; AC: ME MXZ-2F42VF + 2x MSZ-LN25VGV; PV: 14.08 kWp O/W + SMA STP 8.0; Vent: Zehnder Q600 ERV + Ubbink AirExcellent.


Acties:
  • +1 Henk 'm!

  • ybos
  • Registratie: Juni 2013
  • Laatst online: 21:39
Elja schreef op zondag 3 januari 2021 @ 10:03:
Over anderhalve week hebben we bij onze aannemer (Groothuisbouw) het puntjes op de i-gesprek.
Dan wordt alles nog eens grondig doorgenomen voor de definitieve aannemersovereenkomst.
Daarna staat ook alles definitief vast voor de bouw en kan er niks meer gewijzigd worden.

Voor het gesprek hebben we een installatietekening gekregen waarop staat wat er standaard aan installaties geplaatst wordt (in het zwart) en waarop wij in het rood aangeven wat we zelf willen laten toevoegen.

Ik ben benieuwd of jullie nog suggesties hebben?
Wat zijn we vergeten?

In de tekeningen hebben we onder andere stroompunten bijgetekend voor wandlampen (die op 1600mm). We gaan uit van stroompunten in plaats van schakelpunten omdat we hierop Philips Hue (Liane) lampen gaan plaatsen. Bediening gaat daarom niet via schakelaars, er mag constant stroom op staan.

Aan het plafond zie je ook 230v punten (voor extra rookmelders) en cat6 aansluitingen (voor wifi punten).

[Afbeelding]

[Afbeelding]

[Afbeelding]

[Afbeelding]

[Afbeelding]
Belangrijke check: alle dubbele wandcontactdozen hebben 1 "streepje" naar de muur, dat wil zeggen 2 wcd's in 1 inbouwdoos, oftewel, half inbouw. Dat is echt niet meer van deze tijd, en hoort zeker niet in dit type woning. Dus even checken of het misschien verkeerd getekend is, want je wilt echt wel volledig inbouw schakelmateriaal!!!

Woonkamer/keuken: rookmelder in hart van beide centraaldozen? plaatsing nu vreemd en nergens mee in lijn.`(zelfde met rookmelder gang, misschien plaatsing alle rookmelders ff netjes uitlijnen)

Hoofdslaapkamer: waarom de schakelaar aan de verkeerde kant van de deur (draairichting, of laat je de draairichting draaien? )

Acties:
  • 0 Henk 'm!

  • battler
  • Registratie: November 2004
  • Laatst online: 30-06 15:11
@ybos Hoe gaat het tegenwoordig dan? Aparte leiding per stopcontact in een wand contactdoos?

Lux.Architectuur | Van Dromen tot Wonen | www.Lux-a.nl


Acties:
  • 0 Henk 'm!

  • ybos
  • Registratie: Juni 2013
  • Laatst online: 21:39
battler schreef op zondag 3 januari 2021 @ 20:40:
@ybos Hoe gaat het tegenwoordig dan? Aparte leiding per stopcontact in een wand contactdoos?
Gewoon 1 pijp met 2 inbouwdozen voor een dubbel wcd.

Acties:
  • 0 Henk 'm!

  • battler
  • Registratie: November 2004
  • Laatst online: 30-06 15:11
ybos schreef op zondag 3 januari 2021 @ 20:41:
[...]

Gewoon 1 pijp met 2 inbouwdozen voor een dubbel wcd.
Ah ik begrijp dus dat bij groothuisbouw ze worden doorgelust? Dus 2 WCDs op 1 pijp.

Lux.Architectuur | Van Dromen tot Wonen | www.Lux-a.nl


Acties:
  • 0 Henk 'm!

  • ybos
  • Registratie: Juni 2013
  • Laatst online: 21:39
battler schreef op zondag 3 januari 2021 @ 20:44:
[...]


Ah ik begrijp dus dat bij groothuisbouw ze worden doorgelust? Dus 2 WCDs op 1 pijp.
Nee. Volgens deze tekening 1 pijp, en 1 inbouwdoos.
De dubbele wcd komt dan half uit de muur in plaats dat hij netjes in de muur valt.

half inbouw (1 inbouwdoos): https://www.google.com/se...ndcontactdoos+half+inbouw

volledig inbouw (2 inbouwdozen): https://www.elektramat.nl...1Cbvny0q6VucaAqNsEALw_wcB

Acties:
  • 0 Henk 'm!

  • StevenK
  • Registratie: Februari 2001
  • Laatst online: 06:23
ybos schreef op zondag 3 januari 2021 @ 20:49:
[...]

Nee. Volgens deze tekening 1 pijp, en 1 inbouwdoos.
De dubbele wcd komt dan half uit de muur in plaats dat hij netjes in de muur valt.
Ik kan het me haast niet voorstellen, maar aan de andere kant, wel typisch een '100 euro per contactdoos' meerprijs waar je niet omheen kunt halverwege de bouw.

Was advocaat maar vindt het juridische nog steeds leuk


Acties:
  • 0 Henk 'm!

  • ybos
  • Registratie: Juni 2013
  • Laatst online: 21:39
StevenK schreef op zondag 3 januari 2021 @ 20:55:
[...]

Ik kan het me haast niet voorstellen, maar aan de andere kant, wel typisch een '100 euro per contactdoos' meerprijs waar je niet omheen kunt halverwege de bouw.
Symbolen volgens tekening zijn in ieder geval wel zo.
Vaak gevalletje van: concurrentie doet het ook, dus we moeten wel mee anders zijn we te duur.

Acties:
  • 0 Henk 'm!

  • battler
  • Registratie: November 2004
  • Laatst online: 30-06 15:11
ybos schreef op zondag 3 januari 2021 @ 20:58:
[...]

Symbolen volgens tekening zijn in ieder geval wel zo.
Vaak gevalletje van: concurrentie doet het ook, dus we moeten wel mee anders zijn we te duur.
Dat half inbouw is dus een gevolg van die enkele pijp omdat er dan ruimte is het intern door te bedraden?

Bij ons op de tekening zien de dubbele WCDs er zo uit:

Afbeeldingslocatie: https://tweakers.net/i/KJpbQlB5B3QGY3zyrYuBJVIYLFI=/full-fit-in/4000x4000/filters:no_upscale():fill(white):strip_exif()/f/image/NVu4xwzBRTrQZdT9s0Brmqnk.png?f=user_large

[ Voor 24% gewijzigd door battler op 03-01-2021 21:01 ]

Lux.Architectuur | Van Dromen tot Wonen | www.Lux-a.nl


Acties:
  • 0 Henk 'm!

  • StevenK
  • Registratie: Februari 2001
  • Laatst online: 06:23
battler schreef op zondag 3 januari 2021 @ 20:59:
[...]


Dat half inbouw is dus een gevolg van die enkele pijp omdat er dan ruimte is het intern door te bedraden?
Die enkele pijp maakt niet uit, het gaat erom of er één of twee inbouwdozen zijn. Een dubbele WCD zit altijd op een enkele aansluiting.

Was advocaat maar vindt het juridische nog steeds leuk


Acties:
  • +1 Henk 'm!

  • ybos
  • Registratie: Juni 2013
  • Laatst online: 21:39
battler schreef op zondag 3 januari 2021 @ 20:59:
[...]


Dat half inbouw is dus een gevolg van die enkele pijp omdat er dan ruimte is het intern door te bedraden?
Nee, zoals ik al eerder zei:

half inbouw, 1 inbouwdoos, 1 pijp.
volledig inbouw, 2 inbouwdozen, 1 pijp.

voor volledig inbouw zijn 2 inbouwdozen nodig. 2 losse wandcontactdozen, vallen beide in een eigen inbouwdoos (intern doorgelust) en een 2-voudig afdekraam.

half inbouw kan compacter gebouwd worden maar steekt dus wel uit, maar slechts 1 inbouwdoos benodigd.

Acties:
  • 0 Henk 'm!

  • battler
  • Registratie: November 2004
  • Laatst online: 30-06 15:11
@ybos @StevenK Bedankt, het lijkt er op dat ik nog nooit volledige inbouwdoos heb gezien (of goed op het gelet. Bij mijn huidige woning heb ik ook half inbouw, ik dacht dat het altijd zo ging.

Lux.Architectuur | Van Dromen tot Wonen | www.Lux-a.nl


Acties:
  • +2 Henk 'm!

  • iWout
  • Registratie: December 2018
  • Laatst online: 22:56
@Elja @battler https://www.diwodo.nl/begrip/inbouwdozen/ hier zie je de diverse inbouwdozen en de verschillende naast elkaar. In de nieuwbouw kom ik ook vaak de ovale dozen tegen, dus een enkele ovale doos waar een dubbel inbouw wcd inpast. Betreft dan een dubbel wcd die aan elkaar vast zit, hier kan je dus ook geen meervoudige set van maken.
Bij groothuis zijn volgens mij deze sets te zien in de showroom.

Voor wat betreft de keukens, ik zit zelf in de keukenbouw en kan eventueel mee kijken voor tips/trics/prijzen. Maar ook het eerder genoemde forum is hier een goede informatiebron voor.

[ Voor 3% gewijzigd door iWout op 03-01-2021 21:41 ]


Acties:
  • 0 Henk 'm!

  • xminator
  • Registratie: Maart 2006
  • Laatst online: 21:44
xoror schreef op zondag 3 januari 2021 @ 18:05:
[...]


Oh hoe hoog en hoe afgewerkt (hoe lang geleden aangelegd) ? Ook met verankering? Heb je fotos? Is 3cm niet wat dun voor damwand? Zijn meer goede beschoeiingsmaten. Maar als je meer info heb graag :)
Misschien ben ik wel in de war met de vlonderplanken dat die 3cm zijn.

Aangebracht met rvs en m16 trekstang, worteldoek en andere standaardzioi. Hoogte denk ik ook circa 1 meter. Prijzen circa zes maanden geleden vastgelegd en vorige maand is het aangebracht. Zoals reeds gezegd heb ik wel even lopen zoeken, waren namelijk ook partijen die zonder blikken of blozen 2 a 3x zoveel vroegen voor hetzelfde.

Acties:
  • 0 Henk 'm!

  • Deleon78
  • Registratie: Oktober 2010
  • Laatst online: 00:12
.

[ Voor 99% gewijzigd door Deleon78 op 26-07-2021 15:52 ]


Acties:
  • 0 Henk 'm!

  • xoror
  • Registratie: November 1999
  • Niet online
xminator schreef op zondag 3 januari 2021 @ 21:46:
[...]

Misschien ben ik wel in de war met de vlonderplanken dat die 3cm zijn.

Aangebracht met rvs en m16 trekstang, worteldoek en andere standaardzioi. Hoogte denk ik ook circa 1 meter. Prijzen circa zes maanden geleden vastgelegd en vorige maand is het aangebracht. Zoals reeds gezegd heb ik wel even lopen zoeken, waren namelijk ook partijen die zonder blikken of blozen 2 a 3x zoveel vroegen voor hetzelfde.
Fotos? Je mag partij ook via PM sturen :)

Eenvoudig + Goedkoop Mitsubishi Warmtepomp uitlezen/besturen met een ESP32


Acties:
  • 0 Henk 'm!

  • bbbrumbrum
  • Registratie: November 2003
  • Niet online
bvooijen schreef op zondag 3 januari 2021 @ 16:46:
Wij oriënteren ons op een kavel en zelf een huis bouwen, en proberen de kosten in te schatten. Voor de meeste aspecten van het zelf bouwen kan ik wel informatie vinden wat de keuzes zijn en bijbehorende prijzen. Echter voor de fundering kan ik dat niet achterhalen.

We denken aan een huis van 1 bouwlaag, houtskelet, van 10x15 m. In onze omgeving zijn veel huizen onderheid (betonnen palen van 10m) en ik ga er van uit dat wij ook moeten heien. Uuiteraard laten we een sonderingsonderzoek doen. Ik hoop echter een inschatting te krijgen zodat wij kunnen besluiten al dan niet door te gaan.

Vragen die we hebben:
1) hoeveel palen hebben we zo ongeveer nodig?
2) klopt het dat op de palen balken komen en daarop platen (de bgg vloer)? Of mis ik iets?
3) wt kost dit alles (ontgraven, palen, heien, balken en platen, materiaal en arbeid) zo ongeveer?

Groet,
Bas
Kans is aanwezig dat je met HSB, zeker maar 1-laag, wegkomt met een drijvende plaatfundering.
Maar dat zal iemand met meer verstand van zaken en/of lokale ervaring moeten bepalen.

Acties:
  • 0 Henk 'm!

  • bvooijen
  • Registratie: Januari 2008
  • Laatst online: 19-01 11:27
Ja, dat is heel goed mogelijk bbbrumbrum!
maar ik ga er vooralsnog vanuit dat we toch moeten heien. vraag is dan hoeveel palen en wat de hele fundering incl. heien kost.
Nb, onze huidige woning rijtje, 6x11 m met 3 lagen) heeft 2 rijen van 5 palen (maar die delen we met de buren). Moet ik voor het gemak er dan gewoon een derde rijtje naast zetten en kom ik dus op ordegrootte 15 palen uit?

Acties:
  • +3 Henk 'm!

  • deejeebv
  • Registratie: Juni 2008
  • Laatst online: 08:24
bvooijen schreef op maandag 4 januari 2021 @ 07:52:
Ja, dat is heel goed mogelijk bbbrumbrum!
maar ik ga er vooralsnog vanuit dat we toch moeten heien. vraag is dan hoeveel palen en wat de hele fundering incl. heien kost.
Nb, onze huidige woning rijtje, 6x11 m met 3 lagen) heeft 2 rijen van 5 palen (maar die delen we met de buren). Moet ik voor het gemak er dan gewoon een derde rijtje naast zetten en kom ik dus op ordegrootte 15 palen uit?
Denk je nu werkelijk dat iemand op het forum hier iets zinnigs over kan zeggen. Je zult dan echt een sondering moeten hebben en een constructeur moeten vragen.

Acties:
  • 0 Henk 'm!

  • Elja
  • Registratie: September 2004
  • Laatst online: 18-09 08:53
iWout schreef op zondag 3 januari 2021 @ 21:40:
@Elja @battler https://www.diwodo.nl/begrip/inbouwdozen/ hier zie je de diverse inbouwdozen en de verschillende naast elkaar. In de nieuwbouw kom ik ook vaak de ovale dozen tegen, dus een enkele ovale doos waar een dubbel inbouw wcd inpast. Betreft dan een dubbel wcd die aan elkaar vast zit, hier kan je dus ook geen meervoudige set van maken.
Bij groothuis zijn volgens mij deze sets te zien in de showroom.
Thanks!
We gaan het nog even extra checken, maar ik ben 95% zeker dat het gewoon de inbouwvariant is.
Dat was me anders volgens mij wel opgevallen bij de modelwoningen en in de showroom.

Photofacts; weblog over fotografie..


Acties:
  • +1 Henk 'm!

  • Elja
  • Registratie: September 2004
  • Laatst online: 18-09 08:53
ybos schreef op zondag 3 januari 2021 @ 20:28:
[...]

Belangrijke check: alle dubbele wandcontactdozen hebben 1 "streepje" naar de muur, dat wil zeggen 2 wcd's in 1 inbouwdoos, oftewel, half inbouw. Dat is echt niet meer van deze tijd, en hoort zeker niet in dit type woning. Dus even checken of het misschien verkeerd getekend is, want je wilt echt wel volledig inbouw schakelmateriaal!!!

Woonkamer/keuken: rookmelder in hart van beide centraaldozen? plaatsing nu vreemd en nergens mee in lijn.`(zelfde met rookmelder gang, misschien plaatsing alle rookmelders ff netjes uitlijnen)

Hoofdslaapkamer: waarom de schakelaar aan de verkeerde kant van de deur (draairichting, of laat je de draairichting draaien? )
We gaan het checken van de inbouwdozen, maar volgens mij is het wel volledig inbouw.

Goed gekeken in de tekening, thanks! :)
Dat stroompunt is dan toevallig wel voor een lamp boven het kookeiland.
De led lamp die daar komt heeft een dun profiel, vandaar dat we daar niet zo’n inbouwpot getekend hebben.
De rookmelder zit daar (bewust) meer richting de woonkamer.

De rookmelder op de gang is beperkt qua locatie vanwege de vide. Nu zit die vlak bij de meterkast, dat lijkt me wel handig.

En we laten inderdaad de draairichting draaien. Dat geeft iets meer privacy als de kinderen komen binnenstormen moeten ze eerst om de deur heen. :)

Photofacts; weblog over fotografie..


Acties:
  • +2 Henk 'm!

  • Conrado
  • Registratie: November 2012
  • Laatst online: 07:12
No Hands schreef op zondag 3 januari 2021 @ 18:07:
[...]
Ik vind het behoorlijk schuin, maar ik wilde eigenlijk weten of je daar ook dagelijks je auto inzet. En is de uitrit verwarmd? Of werk je thuis als het vriest?
Ik snap je reactie, maar de praktijk is echt anders. Wij hebben nu 20 jaar een hellingbaan naar de garage en die gebruiken we dagelijks. Vorst heeft er geen invloed op, daarvoor heb je ook geen verwarming of zo nodig.

Sneeuw is iets anders: niet om er uit te rijden, maar vooral om er weer terug te komen. Tegelijkertijd druk je met de banden de sneeuw zo stevig aan dat het snel ijs wordt. Kortom, even met de sneeuwschuif in de weer en niets aan de hand :)

Mijn huis is slimmer dan ik...


Acties:
  • 0 Henk 'm!

  • bvooijen
  • Registratie: Januari 2008
  • Laatst online: 19-01 11:27
deejeebv schreef op maandag 4 januari 2021 @ 07:54:
[...]

Denk je nu werkelijk dat iemand op het forum hier iets zinnigs over kan zeggen. Je zult dan echt een sondering moeten hebben en een constructeur moeten vragen.
Ik snap dat ik om het precies te weten een sondering en een constructieberekening moet hebben. Echter, om te kunnen bepalen of het hele project haalbaar is, probeer ik in te schatten waar we aan toe zijn. Dus ja, misschien wel "iets zinnigs".
Maar laten we de vraag of en hoeveel palen gewoon even vergeten; dan resteert de vraag wat dat kost. Stel dat ik 15 palen van 10 m nodig heb, wat kost dan het maken van de hele fundering, dus palen, heien, snellen en fundering erop? In ordegrootte?

Acties:
  • 0 Henk 'm!

  • badboyqxy
  • Registratie: Augustus 2009
  • Laatst online: 12-10 05:29
Hijen mag alleen als de buren minimaal op 15m afstand wonen, van de te bouwen locatie. Anders heb je betonpalen met boren nodig. Deze zijn weer iets duurder.

Meestal kun je vanaf met grondverharding 2.5-5k

Heien begint meestal vanaf 8k en kan oplopen tot 20k afhankelijk van hoeveel balken en hoe lang.


Uitgraven, fondering etc. Is wat lastiger te zeggen omdat meestal 1 partij dat hele traject doet, krijg je een al in prijs. En ligt heel erg aan je constructie. Wil je kelder ja of nee, hoe groot is het bouwwerk l, wat voor materiaal. Hsb is lichter als beton en dus ook minder fundering nodig. Fondering kan exstreem varieren

Acties:
  • 0 Henk 'm!

  • xminator
  • Registratie: Maart 2006
  • Laatst online: 21:44
badboyqxy schreef op maandag 4 januari 2021 @ 13:10:
Hijen mag alleen als de buren minimaal op 15m afstand wonen, van de te bouwen locatie. Anders heb je betonpalen met boren nodig. Deze zijn weer iets duurder.
Waar haal je dit nou weer vandaan...

Acties:
  • +1 Henk 'm!

  • Ernemmer
  • Registratie: Juli 2009
  • Niet online
battler schreef op zondag 3 januari 2021 @ 20:59:
[...]


Dat half inbouw is dus een gevolg van die enkele pijp omdat er dan ruimte is het intern door te bedraden?

Bij ons op de tekening zien de dubbele WCDs er zo uit:

[Afbeelding]
met 2 lijntjes geeft 2 losse WCD's naast elkaar.
Afbeeldingslocatie: https://tweakers.net/i/icowXfxLYwE6KRKDSqTm72Vnu-g=/full-fit-in/4920x3264/filters:max_bytes(3145728):no_upscale():strip_icc():fill(white):strip_exif()/f/image/LRSXljftsSPWuF2cg1ODbkww.jpg?f=user_large

met 1 lijntje geeft 1 dubbele WCD
Afbeeldingslocatie: https://tweakers.net/i/yIenO2VwAuL-lHOBc6uRlGpqoCE=/full-fit-in/4920x3264/filters:max_bytes(3145728):no_upscale():strip_icc():fill(white):strip_exif()/f/image/pBRd2w3bYBNTYSbdkX928t6k.jpg?f=user_large

Maar vaak wordt dit door elkaar gebruikt en zal de uiteindelijke wens in tekst worden omschreven.

Beiden WCD's zijn inbouw, de onderste heeft alleen een langwerpige doos.
Afbeeldingslocatie: https://tweakers.net/i/c0yQu7BmVy3eOuulbb3dvqBgE7I=/full-fit-in/4920x3264/filters:max_bytes(3145728):no_upscale():strip_icc():fill(white):strip_exif()/f/image/p7vzeHbHMcD47VNJ9034blqP.jpg?f=user_large

Acties:
  • 0 Henk 'm!

  • battler
  • Registratie: November 2004
  • Laatst online: 30-06 15:11
@Ernemmer Ik had die dubbele horizontale WCD nog nooit gezien, vandaar dat het even duurde voordat het klikte. Weer wat geleerd. :)

Lux.Architectuur | Van Dromen tot Wonen | www.Lux-a.nl


Acties:
  • +1 Henk 'm!

  • Ernemmer
  • Registratie: Juli 2009
  • Niet online
battler schreef op maandag 4 januari 2021 @ 14:36:
@Ernemmer Ik had die dubbele horizontale WCD nog nooit gezien, vandaar dat het even duurde voordat het klikte. Weer wat geleerd. :)
Alles kan, maar ik zou het er wel expliciet bij zetten of het horizontaal of verticaal is.

Als je goed kijkt op zijn tekening zie je ook alleen wisselschakelaars en geen kruisschakelaars, daaraan is ook te zien dat de tekening van een architect af komt, die weten het verschil vaak niet.
Zelf zet ik er altijd nog een lettertje bij, zodat het duidelijk is welke schakelaar er voor welke lamp is.

[ Voor 62% gewijzigd door Ernemmer op 04-01-2021 15:27 ]


Acties:
  • +2 Henk 'm!

  • Artbij
  • Registratie: Augustus 2006
  • Laatst online: 19-10 22:34
bvooijen schreef op zondag 3 januari 2021 @ 16:46:
Wij oriënteren ons op een kavel en zelf een huis bouwen, en proberen de kosten in te schatten. Voor de meeste aspecten van het zelf bouwen kan ik wel informatie vinden wat de keuzes zijn en bijbehorende prijzen. Echter voor de fundering kan ik dat niet achterhalen.

We denken aan een huis van 1 bouwlaag, houtskelet, van 10x15 m. In onze omgeving zijn veel huizen onderheid (betonnen palen van 10m) en ik ga er van uit dat wij ook moeten heien. Uuiteraard laten we een sonderingsonderzoek doen. Ik hoop echter een inschatting te krijgen zodat wij kunnen besluiten al dan niet door te gaan.

Vragen die we hebben:
1) hoeveel palen hebben we zo ongeveer nodig?
2) klopt het dat op de palen balken komen en daarop platen (de bgg vloer)? Of mis ik iets?
3) wt kost dit alles (ontgraven, palen, heien, balken en platen, materiaal en arbeid) zo ongeveer?

Groet,
Bas
Kijk gewoon op de site van een Groothuis bouw oid. Als je dat kunt betalen kun je gaan bouwen.

Je kunt ook rekenen met wat gemiddeldes zoals in dit topic staan. All incl zou ik gaan voor een €700 a €750 per M3.

Als het het kunnen betalen van je project afhangt van hoelang je heipalen zijn, dan kun je het waarschijnlijk niet betalen.

Met gestrekt been.


Acties:
  • 0 Henk 'm!

  • RJCT
  • Registratie: Maart 2015
  • Laatst online: 02-06 21:06
badboyqxy schreef op maandag 4 januari 2021 @ 13:10:
Hijen mag alleen als de buren minimaal op 15m afstand wonen, van de te bouwen locatie. Anders heb je betonpalen met boren nodig. Deze zijn weer iets duurder.

Meestal kun je vanaf met grondverharding 2.5-5k

Heien begint meestal vanaf 8k en kan oplopen tot 20k afhankelijk van hoeveel balken en hoe lang.


Uitgraven, fondering etc. Is wat lastiger te zeggen omdat meestal 1 partij dat hele traject doet, krijg je een al in prijs. En ligt heel erg aan je constructie. Wil je kelder ja of nee, hoe groot is het bouwwerk l, wat voor materiaal. Hsb is lichter als beton en dus ook minder fundering nodig. Fondering kan exstreem varieren
Om je op weg te helpen. Ons huis is 'slechts' 60m², en we zitten naast een damwand waar we niet op mogen leunen.

heiwerk 13 palen 250x250, ca 10 m, kalenderen € 3,750.00
maatvoeren uitzetten grondwerk + heiwerk € 600.00
graafwerk fund. en vloer + schoonzand € 7,500.00
heiwerk koppensnellen € 650.00
fundering en BG combinatie betonvloer € 13,260.00
sparingen en instortvoorzieningen € 105.00

Acties:
  • 0 Henk 'm!

  • TwArbo
  • Registratie: Juli 2012
  • Niet online
RJCT schreef op maandag 4 januari 2021 @ 17:58:
[...]


Om je op weg te helpen. Ons huis is 'slechts' 60m², en we zitten naast een damwand waar we niet op mogen leunen.

heiwerk 13 palen 250x250, ca 10 m, kalenderen € 3,750.00
maatvoeren uitzetten grondwerk + heiwerk € 600.00
graafwerk fund. en vloer + schoonzand € 7,500.00
heiwerk koppensnellen € 650.00
fundering en BG combinatie betonvloer € 13,260.00
sparingen en instortvoorzieningen € 105.00
Weet je zeker dat de 7,5k voor afgraven, afvoeren en schoonzand klopt? Lijkt mij erg hoog.

Acties:
  • +1 Henk 'm!

  • Sturgeon22
  • Registratie: April 2017
  • Laatst online: 08:46
@Elja
- Een paar stopcontacten in de meterkast voor bijvoorbeeld router (meestal komt hier internet en telefoon binnen), noodzaklamp of kruimeldief kan handig zijn.
- Bij de opstelsplaats warmtepomp staat geen stopcontact, alleen bij de muur rechts daarvan. Wordt dat stopcontact gebruikt voor de warmtepomp of moet er ook nog een stopcontact bij de opstelplaats warmtepomp komen?
- Slechts 1 plafondlamp voor heel de badkamer eerste verdieping? Dat lijkt weinig gezien de grote van de badkamer

Acties:
  • 0 Henk 'm!

  • RJCT
  • Registratie: Maart 2015
  • Laatst online: 02-06 21:06
TwArbo schreef op maandag 4 januari 2021 @ 21:07:
[...]


Weet je zeker dat de 7,5k voor afgraven, afvoeren en schoonzand klopt? Lijkt mij erg hoog.
Je brengt me aan het twijfelen (kopieer deze getallen uit ons budget overzicht). Maar voor dit bedrag is 80kuub afgevoerd, o.m. voor kelder en dieper gelegen vloer. Hier zat dus ook bij inbegrepen het kelder plaatsen (excl kraankosten).

Acties:
  • 0 Henk 'm!

  • Conrado
  • Registratie: November 2012
  • Laatst online: 07:12
Zand afvoeren kan prijzig zijn, afhankelijk van de kwaliteit en waarborg.

[ Voor 14% gewijzigd door Conrado op 05-01-2021 12:28 ]

Mijn huis is slimmer dan ik...


Acties:
  • 0 Henk 'm!

  • Elja
  • Registratie: September 2004
  • Laatst online: 18-09 08:53
Sturgeon22 schreef op dinsdag 5 januari 2021 @ 09:21:
@Elja
- Een paar stopcontacten in de meterkast voor bijvoorbeeld router (meestal komt hier internet en telefoon binnen), noodzaklamp of kruimeldief kan handig zijn.
- Bij de opstelsplaats warmtepomp staat geen stopcontact, alleen bij de muur rechts daarvan. Wordt dat stopcontact gebruikt voor de warmtepomp of moet er ook nog een stopcontact bij de opstelplaats warmtepomp komen?
- Slechts 1 plafondlamp voor heel de badkamer eerste verdieping? Dat lijkt weinig gezien de grote van de badkamer
Dank voor je suggesties!

In de meterkast wil ik inderdaad ook een lading stopcontacten.
Hebben we volgens mij wel genoteerd voor de bespreking, want er intekenen is wat lastig.
Wel een heel goed punt!

Ook een goed punt van de warmtepomp.
Ik ben er vanuit gegaan dat ze daar sowieso een stroompunt voor regelen.
Dat stopcontact is als extra bedoeld, maar ik ga het ook checken.

Ik twijfelde ook al of 1 lamp voldoende zou zijn. Daarom hebben we aan de wand ook nog een plek voor een wandlamp ingetekend. Daarnaast zit er ook licht bij de badkamerspiegel. Zou meer licht nodig zijn, denk je?

Photofacts; weblog over fotografie..


Acties:
  • +1 Henk 'm!

  • Deleon78
  • Registratie: Oktober 2010
  • Laatst online: 00:12
.

[ Voor 99% gewijzigd door Deleon78 op 26-07-2021 15:52 ]


Acties:
  • +3 Henk 'm!

  • vdbeke
  • Registratie: Augustus 2008
  • Laatst online: 08:05
No Hands schreef op zondag 3 januari 2021 @ 18:07:
[...]


Ik vind het behoorlijk schuin, maar ik wilde eigenlijk weten of je daar ook dagelijks je auto inzet. En is de uitrit verwarmd? Of werk je thuis als het vriest?
Knap dat jullie het zelf gedaan hebben!
oeps, vergeten op te antwoorden, excuses. maar het antwoord is ja op dagelijks gebruik, maar is niet verwarmd.

niet de meest duidelijke foto, maar als je een beetje goed kijkt zie de 3 hellingen:
Afbeeldingslocatie: https://tweakers.net/i/5NdCgyE8jvkfU0jmdB3akmxElTM=/x800/filters:strip_icc():strip_exif()/f/image/zfl2bIEIA1XiaNkHqCzmDnMo.jpg?f=fotoalbum_large

en met de auto lukt het prima
Afbeeldingslocatie: https://tweakers.net/i/emy2jsGmMhZuovj1_AbxdzIBuRA=/800x/filters:strip_icc():strip_exif()/f/image/L3EwzJhxVkmc9S4FUyWf14RA.jpg?f=fotoalbum_large
Conrado schreef op maandag 4 januari 2021 @ 11:06:
[...]

Ik snap je reactie, maar de praktijk is echt anders. Wij hebben nu 20 jaar een hellingbaan naar de garage en die gebruiken we dagelijks. Vorst heeft er geen invloed op, daarvoor heb je ook geen verwarming of zo nodig.

Sneeuw is iets anders: niet om er uit te rijden, maar vooral om er weer terug te komen. Tegelijkertijd druk je met de banden de sneeuw zo stevig aan dat het snel ijs wordt. Kortom, even met de sneeuwschuif in de weer en niets aan de hand :)
dank voor jouw antwoord, zoals je op mijn foto's ook kan zien, is de inrit bij mij overdekt en ligt dus niet buiten, dus geen last van regen en sneeuw. de reden voor de inrit te overdekken is bij mij dan uit overweging om mijn kelder niet te laten vollopen als er weer eens een stortbui uit komt gevallen en de pomp moest het maar eens niet doen om de goot in de kelder leeg te pompen. (iets met murphy)

en laten we eerlijk zijn, hoeveel keer sneeuwt het nog? moeten al blij zijn als de temperatuur nog eens onder 0 duikt.
ze komen vrijdag de sectionaal poort plaatsen, zodoende ik mijn kelder kan afsluiten.

De bouw van een (bijna) passief offgrid huis


Acties:
  • 0 Henk 'm!

  • Conrado
  • Registratie: November 2012
  • Laatst online: 07:12
@vdbeke Dank voor de foto, leuk om te zien dat dit zo gaat. In het nieuwe huis gaan we weer voor een hellingbaan, goed om te weten dat dit zo kan.

Dat overkappen van de hellingbaan heeft nog een voordeel: je beton blijft als nieuw. Mijn baan wordt in het voorjaar gerenoveerd want dat is hard nodig. Regen spoelde de toplaag weg....

[ Voor 6% gewijzigd door Conrado op 05-01-2021 18:55 ]

Mijn huis is slimmer dan ik...


Acties:
  • +1 Henk 'm!

  • Sturgeon22
  • Registratie: April 2017
  • Laatst online: 08:46
Elja schreef op dinsdag 5 januari 2021 @ 16:29:
[...]
Ik twijfelde ook al of 1 lamp voldoende zou zijn. Daarom hebben we aan de wand ook nog een plek voor een wandlamp ingetekend. Daarnaast zit er ook licht bij de badkamerspiegel. Zou meer licht nodig zijn, denk je?
Zal afhangen van de indeling van de badkamer en hoe fel de lamp is. Als de indeling zoals getekend echt de indeling wordt dan heb je veel glas en open ruimte en zal het misschien/waarschijnlijk wel gaan. Aan de andere kant zal het ook moeilijk worden om achteraf lichtpunten toe te voegen zonder breekwerk.

Hieronder een plattegrond van onze badkamer
Afbeeldingslocatie: https://tweakers.net/i/zT__X1hetr6vmSH6BHOSzGDcmdc=/full-fit-in/4000x4000/filters:no_upscale():fill(white):strip_exif()/f/image/6HDEwiVQqFsn2pEW55ciNSd4.png?f=user_large

Wij hebben ook 1 plafondlamp, maar dan is het in de douche vrij donker en in de wc helemaal donker (muur is 200-210 hoog). We hebben daarom een extra led strip aangebracht op het muurtje. Hierdoor voldoende en indirecte verlichting.

Acties:
  • 0 Henk 'm!

  • badboyqxy
  • Registratie: Augustus 2009
  • Laatst online: 12-10 05:29
Conrado schreef op maandag 4 januari 2021 @ 11:06:
[...]

Ik snap je reactie, maar de praktijk is echt anders. Wij hebben nu 20 jaar een hellingbaan naar de garage en die gebruiken we dagelijks. Vorst heeft er geen invloed op, daarvoor heb je ook geen verwarming of zo nodig.

Sneeuw is iets anders: niet om er uit te rijden, maar vooral om er weer terug te komen. Tegelijkertijd druk je met de banden de sneeuw zo stevig aan dat het snel ijs wordt. Kortom, even met de sneeuwschuif in de weer en niets aan de hand :)
Ik heb zelf nooit een hellingsbaan gehad, maar we hebben wel keer op werk gehad, dat het smiddags ging sneeuwen en dat alle auto's in de garage die geen winterbanden hadden, niet meer de garage uit konden. Toen moest eerst de hele helling eerst schoongemaakt worden. Helling was wel redelijk stijl.

Acties:
  • 0 Henk 'm!

  • Ernemmer
  • Registratie: Juli 2009
  • Niet online
badboyqxy schreef op woensdag 6 januari 2021 @ 10:20:
[...]


Ik heb zelf nooit een hellingsbaan gehad, maar we hebben wel keer op werk gehad, dat het smiddags ging sneeuwen en dat alle auto's in de garage die geen winterbanden hadden, niet meer de garage uit konden. Toen moest eerst de hele helling eerst schoongemaakt worden. Helling was wel redelijk stijl.
Voor dat probleem adviseer ik altijd een vloerverwarming in een hellingbaan die hem ijsvrij houdt. Particulier wordt het bijna nooit gedaan, maar bij bedrijven en appartementencomplexen bijna altijd.

Acties:
  • 0 Henk 'm!

  • Conrado
  • Registratie: November 2012
  • Laatst online: 07:12
Logisch, bij appartementen en bedrijven is er niemand die dat doet. Thuis is dat anders :)

Geen idee hoe snel die verwarming werkt. Als je preventief de hellingbaan moet verwarmen kan dat een aardige energiepost worden.

Mijn huis is slimmer dan ik...


Acties:
  • +6 Henk 'm!

  • deejeebv
  • Registratie: Juni 2008
  • Laatst online: 08:24
De opbouw van het casco is deze week gestart:
Afbeeldingslocatie: https://tweakers.net/i/tL-XVcqnLxcbCQxaEuFhJ0ZTdN0=/800x/filters:strip_icc():strip_exif()/f/image/sOwI0thvHsJZRSZZeRkC1bdw.jpg?f=fotoalbum_large

Acties:
  • +1 Henk 'm!

  • sanvv78
  • Registratie: Mei 2017
  • Laatst online: 01-03-2021
xoror schreef op zondag 3 januari 2021 @ 18:05:
[...]


Oh hoe hoog en hoe afgewerkt (hoe lang geleden aangelegd) ? Ook met verankering? Heb je fotos? Is 3cm niet wat dun voor damwand? Zijn meer goede beschoeiingsmaten. Maar als je meer info heb graag :)
Let ook of iedereen over het juiste heeft, damwand of schoeiing. Compleet andere montage methodes. Damwand is stuk duurder dan een schoeiing. Meestal gebruiken ze bij beide hardhout. Hoe hoog moet jullie damwand worden? Wij moesten 1.80m hoog en hebben beton gekozen en daarna bekleed met hardhout. Wij waren €389 kwijt per m1. voor betonnen L-profielen met voet. Let op je krijgt ook altijd met een hoek te maken, die meters komen er ook altijd bij. Bij beton was dat 2m per kant. Bij hardhout zo'n 4m per kant. Hardhout damwand kwam bij ons uit op €570 per m1.

Schoeiing voor 1m hoog was rond de €200 per m1

Acties:
  • 0 Henk 'm!

  • sanvv78
  • Registratie: Mei 2017
  • Laatst online: 01-03-2021
StevenK schreef op zondag 3 januari 2021 @ 20:55:
[...]

Ik kan het me haast niet voorstellen, maar aan de andere kant, wel typisch een '100 euro per contactdoos' meerprijs waar je niet omheen kunt halverwege de bouw.
Wij hebben ook een GHB woning, maar een dubbele wcd is zoals volledig inbouw bij ons, en wij hebben geen luxer model oid ;-)

Acties:
  • +1 Henk 'm!

  • sanvv78
  • Registratie: Mei 2017
  • Laatst online: 01-03-2021
Elja schreef op zondag 3 januari 2021 @ 10:03:
Over anderhalve week hebben we bij onze aannemer (Groothuisbouw) het puntjes op de i-gesprek.
Dan wordt alles nog eens grondig doorgenomen voor de definitieve aannemersovereenkomst.
Daarna staat ook alles definitief vast voor de bouw en kan er niks meer gewijzigd worden.

Voor het gesprek hebben we een installatietekening gekregen waarop staat wat er standaard aan installaties geplaatst wordt (in het zwart) en waarop wij in het rood aangeven wat we zelf willen laten toevoegen.

Ik ben benieuwd of jullie nog suggesties hebben?
Wat zijn we vergeten?

In de tekeningen hebben we onder andere stroompunten bijgetekend voor wandlampen (die op 1600mm). We gaan uit van stroompunten in plaats van schakelpunten omdat we hierop Philips Hue (Liane) lampen gaan plaatsen. Bediening gaat daarom niet via schakelaars, er mag constant stroom op staan.

Aan het plafond zie je ook 230v punten (voor extra rookmelders) en cat6 aansluitingen (voor wifi punten).

[Afbeelding]

[Afbeelding]

[Afbeelding]

[Afbeelding]

[Afbeelding]
Wandlampen op 1600mm lijkt mij erg laag, hier zitten ze op 1800mm en dan hebben wij boven/beneden stralers.

Acties:
  • +1 Henk 'm!

  • SquareOne
  • Registratie: Januari 2010
  • Laatst online: 22:24
sanvv78 schreef op donderdag 7 januari 2021 @ 13:35:
[...]


Wandlampen op 1600mm lijkt mij erg laag, hier zitten ze op 1800mm en dan hebben wij boven/beneden stralers.
Zou ooghoogte nemen zodat je niet van bovenaf of onderaf in de lamp kijkt. Dus ook beetje afhankelijk van de lengte van de bewoners.

Acties:
  • +1 Henk 'm!

  • Deleon78
  • Registratie: Oktober 2010
  • Laatst online: 00:12
.

[ Voor 99% gewijzigd door Deleon78 op 26-07-2021 15:52 ]


Acties:
  • +9 Henk 'm!

  • deejeebv
  • Registratie: Juni 2008
  • Laatst online: 08:24
Gaat hard, hoogste punt bereikt.
Afbeeldingslocatie: https://tweakers.net/i/1IaAFKib-hsaAEHl0ufX_gEB7Do=/x800/filters:strip_icc():strip_exif()/f/image/JTiN8TxzZZnulb7wOdda2M2A.jpg?f=fotoalbum_large

Acties:
  • +1 Henk 'm!

  • xminator
  • Registratie: Maart 2006
  • Laatst online: 21:44
sanvv78 schreef op donderdag 7 januari 2021 @ 13:22:
[...]


Let ook of iedereen over het juiste heeft, damwand of schoeiing. Compleet andere montage methodes. Damwand is stuk duurder dan een schoeiing. Meestal gebruiken ze bij beide hardhout. Hoe hoog moet jullie damwand worden? Wij moesten 1.80m hoog en hebben beton gekozen en daarna bekleed met hardhout. Wij waren €389 kwijt per m1. voor betonnen L-profielen met voet. Let op je krijgt ook altijd met een hoek te maken, die meters komen er ook altijd bij. Bij beton was dat 2m per kant. Bij hardhout zo'n 4m per kant. Hardhout damwand kwam bij ons uit op €570 per m1.

Schoeiing voor 1m hoog was rond de €200 per m1
Ja, bij mij was het dus ook beschoeiing ;), vandaar het prijsverschil.

Acties:
  • 0 Henk 'm!

  • Elja
  • Registratie: September 2004
  • Laatst online: 18-09 08:53
SquareOne schreef op donderdag 7 januari 2021 @ 13:42:
[...]
Zou ooghoogte nemen zodat je niet van bovenaf of onderaf in de lamp kijkt. Dus ook beetje afhankelijk van de lengte van de bewoners.
En afhankelijk van de lamp.
We willen Philips Hue Liane wandlampen gaan gebruiken. Die zijn best lang.

We hebben een exemplaar gekocht en hier uitgemeten. 160 lijkt dan de juiste hoogte.
Volgende week nemen we er ook eentje mee naar de modelwoning, dan kunnen we het nog eens checken. :)

Photofacts; weblog over fotografie..


Acties:
  • 0 Henk 'm!

  • ChUcKiE
  • Registratie: September 1999
  • Laatst online: 06:55

ChUcKiE

Dus........

Welke vloer ligt normaal gesproken in de technische ruimte waar de warmtepomp binnenunit, boiler en wasmachine wasdroger komen te staan? Tegelvloer, of gewoon (ook) PVC? Hebben jullie er op k een afvoer putje in?

http://eu.battle.net/d3/en/profile/ChUcKiE-1330/hero/807720


Acties:
  • 0 Henk 'm!

  • MeTooPV
  • Registratie: Juli 2011
  • Laatst online: 19-10 16:21
Heb in mijn eerste huis een afvoerputje in die vloer gemaakt. Had visioenen van een overlopende wasmachine die vanaf de zolder alles liet overstromen. Alleen maar ellende. Putje kwam droog te staan omdat er maanden niets inloopt. Dat geeft stank. Beetje slaolie in het putje hielp, maar ik zou nooit meer zo'n stilstaand putje maken. Maak dan een lekbak.

Acties:
  • 0 Henk 'm!

  • ChUcKiE
  • Registratie: September 1999
  • Laatst online: 06:55

ChUcKiE

Dus........

Dat heb ik nu namelijk ook in mijn huidige huis. In de bijkeuken waar de wasmachine staat zit ook zo'n droog putje.
In de nieuwe technische ruimte komt dan ook de boiler te staan en natuurlijk flink wat leidingwerk.

http://eu.battle.net/d3/en/profile/ChUcKiE-1330/hero/807720


Acties:
  • 0 Henk 'm!

  • TwArbo
  • Registratie: Juli 2012
  • Niet online
ChUcKiE schreef op vrijdag 8 januari 2021 @ 09:03:
Welke vloer ligt normaal gesproken in de technische ruimte waar de warmtepomp binnenunit, boiler en wasmachine wasdroger komen te staan? Tegelvloer, of gewoon (ook) PVC? Hebben jullie er op k een afvoer putje in?
Bij ons werd een afvoerputje echt afgeraden, vanwege (de al eerder genoemde) stank en overlast.

Acties:
  • 0 Henk 'm!

  • ChUcKiE
  • Registratie: September 1999
  • Laatst online: 06:55

ChUcKiE

Dus........

Toevallig mocht ik vandaag even op een bouw kijken waar twee onder 1 kap haast gereed waren. Ook daar even nagevraagd. Vloer maakt niet uit en afvoer zit er niet in.

Erg interessant om eens rond te kijken. Ik blijf alleen de keuze voor deuren nog een beetje vaag vinden. Standaard zaten er bij die woningen stalen kozijnen met standaard opdekdeuren (honingraat) van Svedex opdek standaard alpine wit. Een van de woningen had beneden toch gekozen voor hardhouten kozijnen met stompe deuren en boven de standaard. De andere woning had in het gehele huis houten kozijnen en stompe deuren.

Is het verschil vooral esthetisch, of zitten er ook daadwerkelijk voor- en/of nadelen aan voor de ene of andere soort? Los van de meerprijs van het hout tov standaard staal met opdek? Het viel me nog wel op dat het kozijn van de stompe deuren voorzien was van een rubberen afdichtstrip en de stalen kozijnen hebben alleen gaatjes om van die stootdopjes in te doen.

http://eu.battle.net/d3/en/profile/ChUcKiE-1330/hero/807720


Acties:
  • 0 Henk 'm!

  • YLMOSE
  • Registratie: September 2020
  • Laatst online: 07:23
Ziet er goed uit, mag ik vragen wat de nokhoogte is?

Acties:
  • 0 Henk 'm!

  • deejeebv
  • Registratie: Juni 2008
  • Laatst online: 08:24
YLMOSE schreef op vrijdag 8 januari 2021 @ 13:28:
[...]


Ziet er goed uit, mag ik vragen wat de nokhoogte is?
Nokhoogte is 9.38 m.

Acties:
  • 0 Henk 'm!

Verwijderd

ChUcKiE schreef op vrijdag 8 januari 2021 @ 13:23:
Toevallig mocht ik vandaag even op een bouw kijken waar twee onder 1 kap haast gereed waren. Ook daar even nagevraagd. Vloer maakt niet uit en afvoer zit er niet in.

Erg interessant om eens rond te kijken. Ik blijf alleen de keuze voor deuren nog een beetje vaag vinden. Standaard zaten er bij die woningen stalen kozijnen met standaard opdekdeuren (honingraat) van Svedex opdek standaard alpine wit. Een van de woningen had beneden toch gekozen voor hardhouten kozijnen met stompe deuren en boven de standaard. De andere woning had in het gehele huis houten kozijnen en stompe deuren.

Is het verschil vooral esthetisch, of zitten er ook daadwerkelijk voor- en/of nadelen aan voor de ene of andere soort? Los van de meerprijs van het hout tov standaard staal met opdek? Het viel me nog wel op dat het kozijn van de stompe deuren voorzien was van een rubberen afdichtstrip en de stalen kozijnen hebben alleen gaatjes om van die stootdopjes in te doen.
Deuren zijn best bepalend, maar daar kom je meestal na een paar woningen achter.

Acties:
  • 0 Henk 'm!

  • ChUcKiE
  • Registratie: September 1999
  • Laatst online: 06:55

ChUcKiE

Dus........

Verwijderd schreef op vrijdag 8 januari 2021 @ 15:20:
[...]

Deuren zijn best bepalend, maar daar kom je meestal na een paar woningen achter.
Ja ik neig nu wel steeds meer naar stompe deuren in houten kozijnen, maar dat levert vrees ik een fikse meerprijs op en je mag de schilder nog eens extra laten komen.
Ik vind de uitstraling wel een stuk mooier, maar dat is best persoonlijk.

http://eu.battle.net/d3/en/profile/ChUcKiE-1330/hero/807720


Acties:
  • 0 Henk 'm!

  • Stefke
  • Registratie: December 2000
  • Laatst online: 17-10 08:51
Wij moeten binnenkort een keer een terras maken. Dat wordt een 15cm dikke betonvloer gevlinderd. Deze ligt aan de gevelkant op onze EPS funderingsbekisting (Hectar), bovenop een puinlaag van 25cm

Ik kan/wil het beton niet tegen het huis aan gieten. Het beton moet een cm of 10-15 uit de gevel komen te liggen. Die ruimte vul ik dan met grind.

Om die ruimte te maken moet er dus een bekisting tussen het huis en de betonvloer komen. Vanwege het EPS van de fundering kan ik echter die bekisting niet op die plek fixeren.

Ik dacht eraan om net buiten de fundering palen - bijv. elke meter - in de grond te slaan tot onder de betonlaag. Ik kan dan met (houten) latten de bekisting - bijv. een houten plaat met 2 ribben - bevestigen aan de houten palen. De bekisting kan dan niet naar buiten gedrukt worden (richting het huis).

Ik moet dan nog even bedenken hoe ik de bekisting vast maak aan de verbindingslatten zodat ik die nog makkelijk kan verwijderen, maar de verbindingslatten liggen dan onderin de betonvloer en kunnen niet verwijderd worden. De laagdikte boven deze latten blijft >12cm.

Kan het kwaad dat die latten in het beton blijven, als ze van hout zijn? Ik lees e.e.a. over verloren bekistingen waarbij de bekisting ook achter blijft in het beton, maar kan niet echt duidelijk krijgen of dat dan (willekeurig) hout mag zijn.
Tast dat het beton aan?Afbeeldingslocatie: https://tweakers.net/i/lQ3tmxOhncWailPjAtoNF-JaOMo=/full-fit-in/4000x4000/filters:no_upscale():fill(white):strip_exif()/f/image/RPuyJneUPDLtDvHSSYnfX5r3.png?f=user_large

Acties:
  • +1 Henk 'm!

  • Deleon78
  • Registratie: Oktober 2010
  • Laatst online: 00:12
.

[ Voor 99% gewijzigd door Deleon78 op 26-07-2021 15:52 ]


Acties:
  • 0 Henk 'm!

  • MeTooPV
  • Registratie: Juli 2011
  • Laatst online: 19-10 16:21
Bekisting mag gewoon achter blijven. Enige dat kan gebeuren is dat het hout wegrot, en dan heeft de vloer daar geen steun. Voor het beton kan het geen kwaad. Ik zou een kistje maken tot de muur. Onder het kistje een spanband zodat je het eruit kan trekken na verharding beton.
De dekking op de wapening moet ook bij het hout aanwezig zijn.

Acties:
  • 0 Henk 'm!

  • Stefke
  • Registratie: December 2000
  • Laatst online: 17-10 08:51
De rand boven de EPS bekisting (zeg maar links die bocht omhoog en dan onder dat stuk 45 graden) is vrij kwetsbaar.
Daar zit een rubberen waterkering - die 30cm omhoog tegen de gevel geplakt zit - gelijmd aan een PVC kap. Die kap maakt de fundering van onderaf naar de gevel waterdicht. OP die kap staat dat 45 graden stukje (dat is een stukje extra PIR isolatie).

Die gelijmde rand steekt een beetje uit, als daar iets tegenaan komt dat drukt uitoefent dan vrees ik dat die gelijmde rand lekt raakt.
Ik kan dus niet echt iets "tegen de gevel zetten" om steun te hebben want dat drukt dan alleen tegen die gelijmde rand.

Het bovenste deel (dat rechte deel boven het 45 graden stukje) is een kantplank (12mm cementvezelplaat met 30mm XPS isolatie). Daar zou ik misschien wat steun tegen kunnen vinden/maken

In mijn voorgestelde oplossing zit er om de meter (oid) zon paaltje dus de vloer is over 95% gewoon de volle dikte en steunt ook voor 95% op de ondergrond. Om de meter dan een lat van 30x30mm die deels onderin het beton loopt.
Het is zeg maar alsof er een leiding om de meter onderin de betonlaag ligt...

Ik denk zelf dat dit voldoende moet zijn om de bekisting op zijn plek te houden (15cm beton drukt natuurlijk wel redelijk naar buiten, maar ook weer niet zo extreem)

Wat bedoel je precies met dekking op de wapening?

edit: o, je bedoelt dat de wapening bij het hout niet uit het beton mag komen, dat is wel iets om inderdaad in de gaten te houden.

Acties:
  • +11 Henk 'm!

  • Dengra
  • Registratie: Oktober 2019
  • Laatst online: 18-10 21:35
Wij zijn inmiddels een maandje onderweg, tijd voor een fotoverslag van de voortgang!

Ons grasveld:
Afbeeldingslocatie: https://tweakers.net/i/p_59Bx35D7aoXx42Yj6Zz4EssZQ=/800x/filters:strip_icc():strip_exif()/f/image/5K2KEvfStKpgIzSUIOmENbLL.jpg?f=fotoalbum_large

Afbeeldingslocatie: https://tweakers.net/i/uBoau_q6dTaP9OXu8rcSOhIqjY0=/800x/filters:strip_icc():strip_exif()/f/image/smNcc0XtOtGZ4pR77MGkWP2P.jpg?f=fotoalbum_large

Eerste heipaal:
Afbeeldingslocatie: https://tweakers.net/i/lJJAH1Z41aZ0oiJBNqgL2_bOvzM=/x800/filters:strip_icc():strip_exif()/f/image/zFNf5mH33G0TUCaShKNUHZkJ.jpg?f=fotoalbum_large

Afbeeldingslocatie: https://tweakers.net/i/uuo7qmbMtIEQHqiIYV6lUKKCVHs=/800x/filters:strip_icc():strip_exif()/f/image/dIH1tS8sHGCZWpXHl3Q75DWr.jpg?f=fotoalbum_large

Afbeeldingslocatie: https://tweakers.net/i/jV7BjbnvSzdao8CfALUaqqqLDCE=/800x/filters:strip_icc():strip_exif()/f/image/ePa087NDNzytYoQBQZ7eq5mQ.jpg?f=fotoalbum_large

En vandaag gingen de eerste muren omhoog:
Afbeeldingslocatie: https://tweakers.net/i/RmhTLbSKSeqG7FsQ62f1KCo3ue8=/800x/filters:strip_icc():strip_exif()/f/image/zIxesShbVHGrVKHWePGOMaGG.jpg?f=fotoalbum_large

Over anderhalve week komt de verdiepingsvloer erop!

Acties:
  • 0 Henk 'm!

  • Vantage92
  • Registratie: Maart 2018
  • Laatst online: 11-01 12:31
deejeebv schreef op woensdag 6 januari 2021 @ 14:09:
De opbouw van het casco is deze week gestart:
[Afbeelding]
Mooi project! Ik zie dat je door Nicolaas wordt geadviseerd, dan komt het vast goed ;)

https://duurzamehuizenroute.nl/woning/vrijstaande-woning-2019-ommen


Acties:
  • +1 Henk 'm!

  • StevenK
  • Registratie: Februari 2001
  • Laatst online: 06:23
Vantage92 schreef op vrijdag 8 januari 2021 @ 22:53:
[...]


Mooi project! Ik zie dat je door Nicolaas wordt geadviseerd, dan komt het vast goed ;)
Nicolaas was mijn achterbuurman, samen met hem heb ik mijn eerste stappen gezet (PV, zonneboiler) en nu bij ons nieuwe project is hij uiteraard ook betrokken.
Op dit moment zijn we heel erg aan het nadenken over hoe we de WTW kanalen kunnen laten lopen, omdat ik met CLT minder vrijheid heb dan met HSB of steen.

Was advocaat maar vindt het juridische nog steeds leuk


Acties:
  • 0 Henk 'm!

  • battler
  • Registratie: November 2004
  • Laatst online: 30-06 15:11
In het contract:
Het uitzetten, ontgraven van de bouwplaats tot 95 cm –peil, incl. schoon zand om de bouw, 10
cm schoon zand in de put en het later weer aanvullen. Er is gerekend op een gesloten
grondbalans. Na het gereedkomen van de woning wordt de eventueel nog beschikbare grond
geëgaliseerd.

Ik heb de afvoer van grond over het hoofd gezien als kostenpost, blijkbaar loopt dat flink in de papieren.
Woning heeft een grond oppervlakte van ongeveer 110m2. Dus dat is grofweg ruim 100m3 aan grond.
Voor de stortkosten alleen al heb ik een offerte van 35,- per m3. Vervoer zal ook niet goedkoop zijn maar ik denk dat het in totaal minimaal 5000,- gaat kosten.

Lux.Architectuur | Van Dromen tot Wonen | www.Lux-a.nl


Acties:
  • 0 Henk 'm!

  • kabeltjekabel
  • Registratie: April 2018
  • Laatst online: 13-02-2021
Ernemmer schreef op maandag 4 januari 2021 @ 13:24:
[...]


met 2 lijntjes geeft 2 losse WCD's naast elkaar.
[Afbeelding]

met 1 lijntje geeft 1 dubbele WCD
[Afbeelding]

Maar vaak wordt dit door elkaar gebruikt en zal de uiteindelijke wens in tekst worden omschreven.

Beiden WCD's zijn inbouw, de onderste heeft alleen een langwerpige doos.
[Afbeelding]
Het aanzicht van je 2e plaatje is gelijk aan een half-opbouw dubbel RA wcd op enkele (ronde) doos.

Die langwerpige doos; leuk voor gietbouw. Ga je niet gieten... dan moet je alsnog twee gaten boren. Doe het dan gewoon goed en doe twee normale dozen :P

De variant van halfopbouw kun je trouwens ook horizontaal krijgen; gewoon het element 90 graden gedraaid vastschroeven... ipv dat je dan een haakse stekker hebt met 180 graden knik in het snoer krijg je dan twee haakse stekkers met een 90 graden knik O-)

Acties:
  • +1 Henk 'm!

  • Ernemmer
  • Registratie: Juli 2009
  • Niet online
kabeltjekabel schreef op zaterdag 9 januari 2021 @ 07:35:
[...]


Het aanzicht van je 2e plaatje is gelijk aan een half-opbouw dubbel RA wcd op enkele (ronde) doos.

Die langwerpige doos; leuk voor gietbouw. Ga je niet gieten... dan moet je alsnog twee gaten boren. Doe het dan gewoon goed en doe twee normale dozen :P

De variant van halfopbouw kun je trouwens ook horizontaal krijgen; gewoon het element 90 graden gedraaid vastschroeven... ipv dat je dan een haakse stekker hebt met 180 graden knik in het snoer krijg je dan twee haakse stekkers met een 90 graden knik O-)
Halfopbouw heb je inderdaad als je een klein doosje gebruikt, als je een langwerpig doosje hebt is die volledig inbouw.
Als je 2 gaten maakt heb je 2 wcd's nodig, de optie met 1 doos is goedkoper. Ik heb beiden in mijn huis.

[ Voor 6% gewijzigd door Ernemmer op 09-01-2021 10:02 ]


Acties:
  • 0 Henk 'm!

  • kabeltjekabel
  • Registratie: April 2018
  • Laatst online: 13-02-2021
Ernemmer schreef op zaterdag 9 januari 2021 @ 10:00:
[...]


Halfopbouw heb je inderdaad als je een klein doosje gebruikt, als je een langwerpig doosje hebt is die volledig inbouw.
Als je 2 gaten maakt heb je 2 wcd's nodig, de optie met 1 doos is goedkoper. Ik heb beiden in mijn huis.
Tenzij je ze instort moet je alsnog twee gaten maken. Er is namelijk niks om zo'n raar ovaal gat in één keer te maken.

Acties:
  • +1 Henk 'm!

  • Dengra
  • Registratie: Oktober 2019
  • Laatst online: 18-10 21:35
battler schreef op zaterdag 9 januari 2021 @ 07:10:
In het contract:
Het uitzetten, ontgraven van de bouwplaats tot 95 cm –peil, incl. schoon zand om de bouw, 10
cm schoon zand in de put en het later weer aanvullen. Er is gerekend op een gesloten
grondbalans. Na het gereedkomen van de woning wordt de eventueel nog beschikbare grond
geëgaliseerd.

Ik heb de afvoer van grond over het hoofd gezien als kostenpost, blijkbaar loopt dat flink in de papieren.
Woning heeft een grond oppervlakte van ongeveer 110m2. Dus dat is grofweg ruim 100m3 aan grond.
Voor de stortkosten alleen al heb ik een offerte van 35,- per m3. Vervoer zal ook niet goedkoop zijn maar ik denk dat het in totaal minimaal 5000,- gaat kosten.
Dat hadden wij ook! Gelukkig zit hier een boer in de buurt die het heeft afgevoerd, hij kon het op zijn land gebruiken. 150m3 voor € 1.500.

Acties:
  • +1 Henk 'm!

  • iWout
  • Registratie: December 2018
  • Laatst online: 22:56
battler schreef op zaterdag 9 januari 2021 @ 07:10:
In het contract:
Het uitzetten, ontgraven van de bouwplaats tot 95 cm –peil, incl. schoon zand om de bouw, 10
cm schoon zand in de put en het later weer aanvullen. Er is gerekend op een gesloten
grondbalans. Na het gereedkomen van de woning wordt de eventueel nog beschikbare grond
geëgaliseerd.

Ik heb de afvoer van grond over het hoofd gezien als kostenpost, blijkbaar loopt dat flink in de papieren.
Woning heeft een grond oppervlakte van ongeveer 110m2. Dus dat is grofweg ruim 100m3 aan grond.
Voor de stortkosten alleen al heb ik een offerte van 35,- per m3. Vervoer zal ook niet goedkoop zijn maar ik denk dat het in totaal minimaal 5000,- gaat kosten.
Hier hetzelfde verhaal, 100m3 vast is overigens 120/130m3 los gestort. Met een schoongrond verklaring zou je prijs aardig kunnen kloppen, heb je die verklaring niet dan is het genoemde bedrag wellicht al te weinig. Uiteraard afhankelijk hoe ver je de grond moet wegbrengen. Ik heb iemand kunnen vinden die er erg blij mee was. De kosten zullen dus waarschijnlijk alleen voor het vervoer zijn.

Acties:
  • 0 Henk 'm!

  • anboni
  • Registratie: Maart 2004
  • Laatst online: 07:40
Even wat meningen polsen.

Ons huis is 1.5 jaar geleden opgeleverd door een totaalbouwer. Sinds kort merken we dat de voordeur niet meer lekker sluit. Deze deur is voorzien van driepuntssluiting dmv 3 dagschoten. Dus gewoon dichttrekken en hij zit meteen op 3 punten vast. Helaas is dat laatste niet meer het geval, alleen de bovenste klikt nog vast.

Ik heb hierover gebeld met de projectleider van de aannemer. Die zegt dat het geen garantie meer is omdat het langer dan een jaar geleden is opgeleverd en dat ze op z'n minst voorrijkosten moeten gaan rekenen (ze zitten aan de andere kant van het land en hebben blijkbaar geen projecten hier in de buurt).

Ik heb een lokale aannemer die toevallig bij de buren bezig was, gevraagd of hij even mee wilde kijken wat er aan de hand kon zijn. Hij zegt dat het lijkt alsof de deur een beetje scheef hangt en daardoor de dagschoten niet goed meer in de kom vallen (de onderste raakt zelfs de andere deur niet meer).

Ik heb nu een beetje het idee dat onze aannemer zich er wat te gemakkelijk vanaf maakt door te zeggen dat het geen garantie meer is. Wat vinden jullie hiervan?

Acties:
  • +1 Henk 'm!

  • deejeebv
  • Registratie: Juni 2008
  • Laatst online: 08:24
Garantietermijn bij Woningborg voor hang- en sluitwerk is 1 jaar.
Bron https://www.woningborg.nl...deling/garantietermijnen/
De aannemer lijkt dus formeel gelijk te hebben.

Acties:
  • 0 Henk 'm!

  • newz
  • Registratie: November 2013
  • Laatst online: 15-10 10:01
Mijn vriendin en ik zijn aan het oriënteren voor het bouwen van ons huis. Wij willen proberen in de regio van Gorinchem een kavel te kopen rond de 450 m2 en daarop een huis te bouwen. Nadat we de grond zouden hebben gekocht hebben wij nog een budget van €250.000 om ons huis van te bouwen/inrichten, etc. Vanwege dit budget overwegen wij te gaan voor een partij als Eigenwijs Bouw. Ik ben zelf handig en heb gelukkig handige klussers in de familie. Daarnaast vind ik het zelf ook leuk om veel van de bouw zelf te realiseren (vloerverwarming, badkamer, keuken, toilet, elektra aanleggen misschien?)

Omdat we nog in een oriënterende fase zijn wil ik graag jullie mening of dit realistisch is voor ons budget. Wat wij belangrijk vinden:
  • Minimaal 150 m2 woonoppervlak
  • Warmtepomp i.c.m. zonnepanelen (ik rijd een elektrische auto)
  • Rekening houdend met een toekomstige aanbouw + garage
  • Gasloos
  • Onderhoudsvrij (kunstof kozijnen)
  • Ten minste 4 aparte slaapkamers of de mogelijkheid daartoe (d.m.v aanbouw met eerste etage bijv.)
Een partij als Selekthuis is ook aantrekkelijk, maar die heeft een stuk hogere prijs t.o.v. Eigenwijs bouw. Dat komt natuurlijk omdat Selekthuis meer werkzaamheden zal uitvoeren dan Eigenwijs bouw.

PS: Iemand toevallig een soortgelijke ervaring met aandachtspunten en/of tips waar je niet snel aan denkt?

Marstek Venus 5.12KWh V148 - Shelly Pro 3EM (B2500 geëmuleerd)

Pagina: 1 ... 167 ... 272 Laatste

Dit topic is gesloten.

Let op:
Duurzame installaties en domotica hebben eigen fora met veel meer diepgang over dat onderwerp. Dit topic gaat over de perikelen omtrent het bouwen van een eigen woning.

Voor projectmatige woningbouw: Het (projectmatige) nieuwbouwwoning topic. Je tuin is natuurlijk ook iets wat moet gebeuren na de bouw. Zie Het grote tuinen, balkons en plantentopic