met genoeg van die raampjes kom je ook een eind..Verwijderd schreef op donderdag 11 juni 2020 @ 12:24:
[...]
Moraal van het verhaal, de draairichting moet je goed over nadenken
Dit topic is onderdeel van een reeks. Ga naar het meest recente topic in deze reeks.
met genoeg van die raampjes kom je ook een eind..Verwijderd schreef op donderdag 11 juni 2020 @ 12:24:
[...]
Moraal van het verhaal, de draairichting moet je goed over nadenken
Verwijderd
[ Voor 5% gewijzigd door Verwijderd op 11-06-2020 14:00 ]
Ik heb gelukkig mad skils en kan met mijn elleboog ook een deur naar me toe open doen. Lijkt me erg vervelend om elke keer om de deur heen naar buiten te moeten lopen.Grolsch schreef op donderdag 11 juni 2020 @ 12:30:
[...]
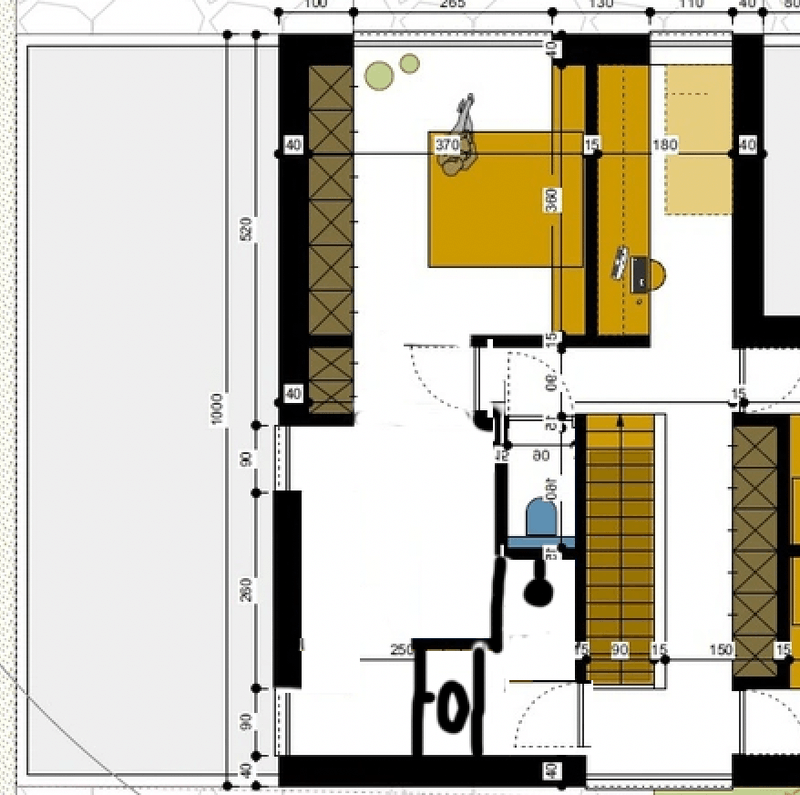
Wij hebben er bewust voor gekozen om de deur van de bijkeuken naar de keuken in de keuken op te laten draaien.
Bij ons komt iedereen binnen via de achterdeur, die dus in de bijkeuken uitkomt. Als ik vervolgens dan met 2 kratjes bier aan kom lopen (of mijn vrouw met andere boodschappen) tik ik met de elleboog die deur open, en loop ik zo de keuken binnen. Als de deur de bijkeuken in zou draaien moeten we eerst de boodschappen op de grond zetten, deur open doen, etc.
Zie onderstaande afbeelding:
[Afbeelding]
KK = KoelKast
Moraal van het verhaal, de draairichting moet je goed over nadenken
[ Voor 8% gewijzigd door Artbij op 11-06-2020 15:36 ]
Met gestrekt been.
:strip_exif()/f/image/Zk1SdX6O1ZxNdn0EzPHrq62f.jpg?f=fotoalbum_large)
:strip_exif()/f/image/viFS30QHycmAsZ4l7UN6LpVy.jpg?f=fotoalbum_large)
[ Voor 0% gewijzigd door Elja op 11-06-2020 17:10 . Reden: Typo ]
Photofacts; weblog over fotografie..
Hij draait anders als op tekening staat, hij draait de keuken in, maar dan rechtsomArtbij schreef op donderdag 11 juni 2020 @ 15:35:
[...]
Ik heb gelukkig mad skils en kan met mijn elleboog ook een deur naar me toe open doen. Lijkt me erg vervelend om elke keer om de deur heen naar buiten te moeten lopen.
Zeker met deze draairichting, je doet hem open met je elleboog en dan loop je vervolgens om het eiland heen met je kratjes? Of doen je met je voet de deur dan weer dicht?


Elke supermarkt heeft datjurjen_g schreef op donderdag 11 juni 2020 @ 17:30:
Eigenlijk is het wel raar dat tegenwoordig op vrijwel elke nieuwe iets duurdere auto een automatische achterklep zit die met een voetbeweging opent, maar dat dit voor deuren in huis nog niet echt gemeengoed is. Lijkt me heerlijk als de deuren openzwaaien als ik met beide handen vol boodschappen naar binnen loop... Ik voel een hobby project opkomen.
“Choose a job you love, and you will never have to work a day in your life.”
[ Voor 99% gewijzigd door Deleon78 op 26-07-2021 16:40 ]
Ik ben ook erg benieuwd naar jullie 1e etage indeling, op basis daarvan hebben wij namelijk voor GL2 gekozen.Elja schreef op donderdag 11 juni 2020 @ 17:09:
Oke, als we dan toch met plattegrondjes bezig zijn, zal ik de onze er ook even ingooien.
Tot eergisteren was dit het plan:
[Afbeelding]
Met een raam in de bijkeuken en verder een redelijk nutteloze gang aan de voorkant richting het toilet.
Nu bedachten we ons alleen dat het raam op de begane grond dan niet echt mooi zou uitlijnen met het raam boven, dus hebben we de boel omgegooid:
[Afbeelding]
Dus een kantoortje toegevoegd en de bijkeuken een stukje kleiner.
Wat vinden jullie van deze opzet? Nog andere creatieve ideeën voor een mooie indeling?
Ik hoor het graag!
Owh, er komen vast opmerkingen over de toegang naar de bijkeuken.
Het leek ons leuk om de ingang naar de bijkeuken te verbergen in een keukenkast van 80 centimeter. Een soort geheime ruimte dus.
Voor wie het liever in 3D bekijkt, dat kan via deze link.
Een panic room!Elja schreef op donderdag 11 juni 2020 @ 17:09:
Owh, er komen vast opmerkingen over de toegang naar de bijkeuken.
Het leek ons leuk om de ingang naar de bijkeuken te verbergen in een keukenkast van 80 centimeter. Een soort geheime ruimte dus.
Pentium 233MHz MMX + Diamond Monster 3D 3DFX Voodoo II
[ Voor 6% gewijzigd door Stefke op 12-06-2020 08:52 ]
De consumentenbond zegt:stefijn schreef op vrijdag 12 juni 2020 @ 08:49:
Iemand een tip m.b.t. muurverf die in 1x dekt op voorgestreken gipsplaten? We hebben nu een testje gedaan met de Hornbachverf i.c.m. prijzige Wijzonol voorstrijk op kleur (ral 9001), maar het dekt niet zelfs als de voorstrijk al op kleur is: je ziet duidelijk waar je bij het schilderen 2x overheen bent geweest en waar niet en als de rol even wat minder verf heeft is het gelijk donkerder.
Sterker nog: in de badkamer zitten nu: 1 laag wijzonol voorstrijk, 1 laag Build badkamer verf, 1 laag wijzonol voorstrijk, 1 laag Hornbach verf en NOG is die Hornbachverf niet dekkend.
Ik had daar een foutje gemaakt met de gipsnaden waardoor ik een deel opnieuw moest schuren én die badkamerverf was semi glanzend (wat is dat lelijk zeg) dus vandaar die extra lagen. Maar dat is dus 3 witte onderlagen en nog moet de Hornbachverf er twee keer op.
Op zich geen punt om 2x te verven, behalve onze 7m hoge binnenwand: die wil ik liefst in 1x dekkend hebben met een RAL9016 verf (dus: voorstrijken met wijzonol voorstrijk, 1x dekkend verven) omdat het geen doen is om 3x de steiger op te bouwen en af te breken.
Dus, voordat ik 150 euro voor een paar liter muurverf neertel, iemand echte praktijkervaring met een verf die WEL in 1x dekt op gipsplaten (op een goede voorstrijk onderlaag)?
enVan de 24 muurverven in deze test dekken 4 soorten in 1 keer:
Flexa Expert muurverf binnen
Perfection Muur & Plafond ultradekkend
Gamma Professional Muur & Plafond
Wijzenol Mat (niet in de tabel).
Sikkens Alphacryl Pure Mat SF - Beste uit de Test
[ Voor 98% gewijzigd door Deleon78 op 26-07-2021 16:40 ]
Dekking
Om te testen hoeveel lagen er nodig zijn voor een dekkend resultaat, wordt de verf aangebracht op een gipsplaat met een brede, zwarte streep. Dit wordt na 24 uur herhaald, net zolang tot de streep niet meer zichtbaar is.
Kookeiland is 3 bij 1,1 meter. Inderdaad moet nog krukken aan de kant bij het raam. En inderdaad een wasbak en inductiekookplaat op het eiland. Lijkt me voldoende ruimte, maar heb nog geen ervaring met een kookeiland in de praktijk.Togi schreef op donderdag 11 juni 2020 @ 17:24:
@Elja Oplossing met kantoor ziet er goed uit. Ik weet alleen niet hoe het idee met je keukenkast naar de bijkeuken gaat werken. Mijn ervaring is dat de randen en deurtjes van keukenkastjes niet zo stevig zijn als gewone deuren en deursponningen ben bang dat dat snel beschadigt. Misschien die deur in de hoek dan zodat je wel die kastenwand hebt met apparatuur
Verder misschien de opzet tussen keukenwand en kookeiland. Deze ligt in de looproute naar je garage. Ik weet niet hoeveel er gebruik gemaakt gaat worden van deze route maar kan mij voorstellen als je aan het koken bent dat men er tussendoor glipt.
En is er voldoende werkruimte op je kookeiland? Ik zie het niet helemaal terug maar denk dat daar ook de wasbak komt en dan lijkt hij mij een beetje klein als je er ook nog een zitplek bij wilt wat voor mij eigenlijk de added value is van een kookeiland)
Goede vraag.Deleon78 schreef op donderdag 11 juni 2020 @ 17:40:
Wat ga je met die enorme lege ruimte linksboven doen?
In de sluis naar de garage komt waarschijnlijk ook een kapstok, maar daarnaast is de insteek toch ook wel onder de trap. Wij zien dat niet echt als een probleem. Ook een garderobe kan er netjes uit zien, toch?Chronos schreef op donderdag 11 juni 2020 @ 19:01:
Ik ben ook erg benieuwd naar jullie 1e etage indeling, op basis daarvan hebben wij namelijk voor GL2 gekozen.
Hebben jullie aan garderobe gedacht ? (misschien in berging?). De trap in GH2 en GL2 is erg mooi, wat ons betreft zonde als er dan een berg jassen onder hangt
:strip_exif()/f/image/0KIWft1SXUPsL3LyktgUi2jy.jpg?f=fotoalbum_large)
:no_upscale():strip_icc():fill(white):strip_exif()/f/image/ugZ1pdAeDt4P6EaVE3N75UlG.jpg?f=user_large)
Daar waren wij ook bang voor, totdat we er achter kwam dat in onze huidige woning de doorgang tussen de deurkozijnen maar 77 centimeter is. Daar hebben we nog nooit last van gehad.NDF82 schreef op donderdag 11 juni 2020 @ 21:14:
Denk wel dat je spijt gaat krijgen van je doorgang naar de bijkeuken door de keuken kasten. 80 cm is een stuk smaller dan een reguliere deur. Met twee boodschappen tassen is dat extra lastig.
Photofacts; weblog over fotografie..
[ Voor 9% gewijzigd door Sturgeon22 op 12-06-2020 09:08 ]
[ Voor 99% gewijzigd door Deleon78 op 26-07-2021 16:39 ]
In de bijkeuken staan de wasmachine / wasdroger zo te zien. Daarnaast is het een bijkeuken dus zullen er wellicht ook wat goederen opgeslagen worden. Al met al een ruimte waar je enkele keren per dag moet zijn (was in de wasmachine, was in de droger, was uit de droger = 3x per was). Dan had ik eerder de wasmachine/droger in dat tussenportaal geplaatst met een deurtje ervoor. En zo'n 'verborgen' ingang klinkt leuk (is het ook wel) maar niet echt praktisch, zeker niet als je er met een volle wasmand doorheen moet. Het lijkt mij sowieso niet handig als je met wasgoed in de hoek van de keuken moet zijn.Elja schreef op donderdag 11 juni 2020 @ 17:09:
Oke, als we dan toch met plattegrondjes bezig zijn, zal ik de onze er ook even ingooien.
Tot eergisteren was dit het plan:
[Afbeelding]
Met een raam in de bijkeuken en verder een redelijk nutteloze gang aan de voorkant richting het toilet.
Nu bedachten we ons alleen dat het raam op de begane grond dan niet echt mooi zou uitlijnen met het raam boven, dus hebben we de boel omgegooid:
[Afbeelding]
Dus een kantoortje toegevoegd en de bijkeuken een stukje kleiner.
Wat vinden jullie van deze opzet? Nog andere creatieve ideeën voor een mooie indeling?
Ik hoor het graag!
Owh, er komen vast opmerkingen over de toegang naar de bijkeuken.
Het leek ons leuk om de ingang naar de bijkeuken te verbergen in een keukenkast van 80 centimeter. Een soort geheime ruimte dus.
Voor wie het liever in 3D bekijkt, dat kan via deze link.
Keim Innostar dekte bij ons in 1 keer op fermacell wat met kant en klaar finish was behandeld. Top product!stefijn schreef op vrijdag 12 juni 2020 @ 08:49:
Iemand een tip m.b.t. muurverf die in 1x dekt op voorgestreken gipsplaten? We hebben nu een testje gedaan met de Hornbachverf i.c.m. prijzige Wijzonol voorstrijk op kleur (ral 9001), maar het dekt niet zelfs als de voorstrijk al op kleur is: je ziet duidelijk waar je bij het schilderen 2x overheen bent geweest en waar niet en als de rol even wat minder verf heeft is het gelijk donkerder.
Sterker nog: in de badkamer zitten nu: 1 laag wijzonol voorstrijk, 1 laag Build badkamer verf, 1 laag wijzonol voorstrijk, 1 laag Hornbach verf en NOG is die Hornbachverf niet dekkend.
Ik had daar een foutje gemaakt met de gipsnaden waardoor ik een deel opnieuw moest schuren én die badkamerverf was semi glanzend (wat is dat lelijk zeg) dus vandaar die extra lagen. Maar dat is dus 3 witte onderlagen en nog moet de Hornbachverf er twee keer op.
Op zich geen punt om 2x te verven, behalve onze 7m hoge binnenwand: die wil ik liefst in 1x dekkend hebben met een RAL9016 verf (dus: voorstrijken met wijzonol voorstrijk, 1x dekkend verven) omdat het geen doen is om 3x de steiger op te bouwen en af te breken.
Dus, voordat ik 150 euro voor een paar liter muurverf neertel, iemand echte praktijkervaring met een verf die WEL in 1x dekt op gipsplaten (op een goede voorstrijk onderlaag)?
https://duurzamehuizenroute.nl/woning/vrijstaande-woning-2019-ommen
:strip_exif()/f/image/2K9OM6Xn5gz1V1Bot6A0H9Qh.jpg?f=fotoalbum_large)
:strip_exif()/f/image/tQNBAhIkJmnfhmKqTUPlaA3c.jpg?f=fotoalbum_large)
:strip_exif()/f/image/WfNUdaKEYP6Ves0BLocxxiln.jpg?f=fotoalbum_large)
:strip_exif()/f/image/xMtwiu1aRUF9v4LR1OLISkqV.jpg?f=fotoalbum_large)
[ Voor 99% gewijzigd door Deleon78 op 26-07-2021 16:39 ]
[ Voor 99% gewijzigd door Deleon78 op 26-07-2021 16:39 ]
Weinig - van de gemeente mag er 30 cm opgehoogd worden (tot aan straatniveau). Dat niet doen, maakt dat de kelder dus een 30 cm hoger zou kunnen uitkomen. Denk niet dat dat voldoende is.ericplan schreef op vrijdag 12 juni 2020 @ 13:04:
@Kwakkel Kan je nog een beetje spelen met hoogtes, zodat je daglicht in je kelder kan krijgen? Dat maakt de kelder direct een stuk bruikbaarder.
[ Voor 99% gewijzigd door Deleon78 op 26-07-2021 16:39 ]
Hangt een beetje van de buurt (en je kavel) af of je er iets mee kan, maar de tuin zou iets lager kunnen liggen dan je inrit en de garage.Kwakkel schreef op vrijdag 12 juni 2020 @ 13:24:
[...]
Weinig - van de gemeente mag er 30 cm opgehoogd worden (tot aan straatniveau). Dat niet doen, maakt dat de kelder dus een 30 cm hoger zou kunnen uitkomen. Denk niet dat dat voldoende is.
(Oja, als het een leefkelder zou worden, gaan we wellicht ook nog even moeten kijken of we de hoogte niet wat moeten aanpassen. Staat voor de kelder nu op 2.20m)
A'dam PVOutput
Hartstikke leuk, speels en open ontwerp: I like it!!Kwakkel schreef op vrijdag 12 juni 2020 @ 12:42:
Heb enige tijd geleden al eens een eerste ontwerp gepost. Omwille van het budget, en de slechtere ondergrond, is dat ontwerp ondertussen gefinetuned, na ongeveer 3 maanden en een 6-tal iteraties, tot het volgende (helaas wat minder spannende, meer 13-in-een-dozijn) ontwerp:
[Afbeelding]
[Afbeelding]
[Afbeelding]
Wat denken jullie?
Nog meegeven:Ik geef ook nog even het vooraanzicht mee. Momenteel getekend met witte gevelsteen, witte ramen, witte overkappingen. Een beetje teveel wit naar mijn smaak, maar goed
- Kelder kan (deels) ingericht worden als leefkelder met bureau en speelruimte, indien het budget dit toelaat
- Leefkeuken blijven we wat twijfelen over de opstelling. Heb in het keukentopic dat deeltje al wel eens gepost. Door het schiereiland verlies je wel wat ruimte (omdat je bewegingsruimte nodig hebt), maar dit lijkt wel de beste opstelling met zicht naar buiten EN naar de zithoek. Andere opties houden in dat je staat te koken/voorbereiden met je rug naar of de tuin of de leefruimte, en je met je gezicht naar de muur staat. Voor sommigen is dat best ok, maar wij verkiezen toch liever de mogelijkheid om contact te maken EN de kinderen in de gaten te houden
- Deur in de leefkeuken draait alleszins verkeerd - moet naar buiten draaien
- In het keukentopic werd geopperd om van het schiereilend toch een echt eiland te maken - dus, verkleinen en loskoppelen van de muur. Dat dtukje muur zou dan (terug) glas kunnen worden.
- Het venster evenwijdig met het eiland, aan het terras, is een schuifdeur!. De andere delen (buiten de deur aan de keuken) zijn (voorlopig) vast.
- De slaapkamers (zeker de kinderkamers) lijken wat klein. De kleerkast staat weliswaar buiten de kamer, maar dan nog stellen we ons de vraag of deze met ongeveer 9.25m² niet te compact zijn. Eenvoudige uitbreiding zou wellicht zijn om het overdekt terras te vervangen door een uitkraging op de verdieping. Dan win je meteen een heel pak ruimte. Maar, dat gaat wellicht te duur worden!
[Afbeelding]
Ik kijk met belangstelling uit naar jullie feedback! Alvast bedankt!
:no_upscale():strip_icc():fill(white):strip_exif()/f/image/8JiGaxX5KIAWhNMpEMLCX0C9.jpg?f=user_large)
Sowieso het droog in en uit je woning kunnen stappeniLLEVAiHCAM schreef op vrijdag 12 juni 2020 @ 13:41:
[...]
Hartstikke leuk, speels en open ontwerp: I like it!!
Enige suggestie is om de garage ietsiepietsie uit te breiden en deze toegankelijk te maken vanuit de woning (zodat je niet "telkens" buitenom moet:
[Afbeelding]
Daar ga je denk ik nog veel plezier van hebben.
Ik vind het een erg leuk ontwerp! Als wij vrijstaand hadden kunnen bouwen had ik deze zeker aan mijn vrouw laten zienKwakkel schreef op vrijdag 12 juni 2020 @ 12:42:
Heb enige tijd geleden al eens een eerste ontwerp gepost. Omwille van het budget, en de slechtere ondergrond, is dat ontwerp ondertussen gefinetuned, na ongeveer 3 maanden en een 6-tal iteraties, tot het volgende (helaas wat minder spannende, meer 13-in-een-dozijn) ontwerp:
[Afbeelding]
[Afbeelding]
[Afbeelding]
Wat denken jullie?
Nog meegeven:Ik geef ook nog even het vooraanzicht mee. Momenteel getekend met witte gevelsteen, witte ramen, witte overkappingen. Een beetje teveel wit naar mijn smaak, maar goed
- Kelder kan (deels) ingericht worden als leefkelder met bureau en speelruimte, indien het budget dit toelaat
- Leefkeuken blijven we wat twijfelen over de opstelling. Heb in het keukentopic dat deeltje al wel eens gepost. Door het schiereiland verlies je wel wat ruimte (omdat je bewegingsruimte nodig hebt), maar dit lijkt wel de beste opstelling met zicht naar buiten EN naar de zithoek. Andere opties houden in dat je staat te koken/voorbereiden met je rug naar of de tuin of de leefruimte, en je met je gezicht naar de muur staat. Voor sommigen is dat best ok, maar wij verkiezen toch liever de mogelijkheid om contact te maken EN de kinderen in de gaten te houden
- Deur in de leefkeuken draait alleszins verkeerd - moet naar buiten draaien
- In het keukentopic werd geopperd om van het schiereilend toch een echt eiland te maken - dus, verkleinen en loskoppelen van de muur. Dat dtukje muur zou dan (terug) glas kunnen worden.
- Het venster evenwijdig met het eiland, aan het terras, is een schuifdeur!. De andere delen (buiten de deur aan de keuken) zijn (voorlopig) vast.
- De slaapkamers (zeker de kinderkamers) lijken wat klein. De kleerkast staat weliswaar buiten de kamer, maar dan nog stellen we ons de vraag of deze met ongeveer 9.25m² niet te compact zijn. Eenvoudige uitbreiding zou wellicht zijn om het overdekt terras te vervangen door een uitkraging op de verdieping. Dan win je meteen een heel pak ruimte. Maar, dat gaat wellicht te duur worden!
[Afbeelding]
Ik kijk met belangstelling uit naar jullie feedback! Alvast bedankt!
Aan kastruimte geen gebrek zo te zien.Kwakkel schreef op vrijdag 12 juni 2020 @ 12:42:
Heb enige tijd geleden al eens een eerste ontwerp gepost. Omwille van het budget, en de slechtere ondergrond, is dat ontwerp ondertussen gefinetuned, na ongeveer 3 maanden en een 6-tal iteraties, tot het volgende (helaas wat minder spannende, meer 13-in-een-dozijn) ontwerp:
[Afbeelding]
[Afbeelding]
[Afbeelding]
Wat denken jullie?
Nog meegeven:Ik geef ook nog even het vooraanzicht mee. Momenteel getekend met witte gevelsteen, witte ramen, witte overkappingen. Een beetje teveel wit naar mijn smaak, maar goed
- Kelder kan (deels) ingericht worden als leefkelder met bureau en speelruimte, indien het budget dit toelaat
- Leefkeuken blijven we wat twijfelen over de opstelling. Heb in het keukentopic dat deeltje al wel eens gepost. Door het schiereiland verlies je wel wat ruimte (omdat je bewegingsruimte nodig hebt), maar dit lijkt wel de beste opstelling met zicht naar buiten EN naar de zithoek. Andere opties houden in dat je staat te koken/voorbereiden met je rug naar of de tuin of de leefruimte, en je met je gezicht naar de muur staat. Voor sommigen is dat best ok, maar wij verkiezen toch liever de mogelijkheid om contact te maken EN de kinderen in de gaten te houden
- Deur in de leefkeuken draait alleszins verkeerd - moet naar buiten draaien
- In het keukentopic werd geopperd om van het schiereilend toch een echt eiland te maken - dus, verkleinen en loskoppelen van de muur. Dat dtukje muur zou dan (terug) glas kunnen worden.
- Het venster evenwijdig met het eiland, aan het terras, is een schuifdeur!. De andere delen (buiten de deur aan de keuken) zijn (voorlopig) vast.
- De slaapkamers (zeker de kinderkamers) lijken wat klein. De kleerkast staat weliswaar buiten de kamer, maar dan nog stellen we ons de vraag of deze met ongeveer 9.25m² niet te compact zijn. Eenvoudige uitbreiding zou wellicht zijn om het overdekt terras te vervangen door een uitkraging op de verdieping. Dan win je meteen een heel pak ruimte. Maar, dat gaat wellicht te duur worden!
[Afbeelding]
Ik kijk met belangstelling uit naar jullie feedback! Alvast bedankt!
We houden het alleszins in ons achterhoofd. 2.50 (zelfde als op 1ste verdiep) kan ook bvb. We zullen zien.Deleon78 schreef op vrijdag 12 juni 2020 @ 13:28:
[...]
Ik zou proberen om de kelder gewoon 260 te maken, dan voelt het minder als een kelder en meer als een echte verdieping.
Maar ik snap dat het op een gegeven moment ophoudt. 220 is altijd beter dan 0 hoogte
Kan misschien ook - om goed te zijn zou ik misschien best al een tuinarchitect aanspreken voor wat ideetjes. Maar 1) mijn vrouw ziet het niet zitten om daar ook nog eens tijd in te steken en 2) die werken ook niet gratis natuurlijkericplan schreef op vrijdag 12 juni 2020 @ 13:37:
[...]
Hangt een beetje van de buurt (en je kavel) af of je er iets mee kan, maar de tuin zou iets lager kunnen liggen dan je inrit en de garage.
En als je een balkon maakt bij de ouderslaapkamer, dan kan je ook droog de keuken uit als het regent.
Helemaal mee eens, want hadden we bij het laatste gesprek met de architect ook geopperdiLLEVAiHCAM schreef op vrijdag 12 juni 2020 @ 13:41:
[...]
Hartstikke leuk, speels en open ontwerp: I like it!!
Enige suggestie is om de garage ietsiepietsie uit te breiden en deze toegankelijk te maken vanuit de woning (zodat je niet "telkens" buitenom moet:
[Afbeelding]
Daar ga je denk ik nog veel plezier van hebben.
Uitsteken van de carport is misschien ook een idee. Gaan we zeker overwegen (als we de carport kunnen zettenTehh schreef op vrijdag 12 juni 2020 @ 13:55:
[...]
Sowieso het droog in en uit je woning kunnen stappen. Onze carport is misschien wel de meest geliefde feature van ons huis ook al waren we daar in eerste instantie niet eens naar op zoek. En anders een kleine overkapping bij de voordeur of de carport een meter 'uit laten steken' en doortrekken naar de voordeur? Ben je ook een beetje van het hoekige af aan de voorkant en zou wel eens leuk kunnen passen bij de 'inkeping' (overdekt terras) aan de achterkant.
Maar @Kwakkel, ga je nu serieus een huis maken van 10.00 bij 10.45? Was die 45 cm echt nodig?![]()
Heb je in het kantoor op de 1e verdieping een vlizotrap naar het dakterras of is dat lichtgele vlak iets anders? Ook zou je kunnen overwegen om hier ook een schuifdeur te plaatsen. Achteraf plaatsen is vaak een stuk lastiger.
Ik mis de wasmachine/droger in het overzicht, komen die in de kelder? Dan zou je een waskoker nog kunen overwegen, kan mooi via de wastafelkast door zo'n kast in de hal op de b.g. lopen en scheelt een boel gesjouw met (vieze) was.
Wat let je - onze noordzijde is helemaal toe, dus kan je perfect tegen een ander huis plakkenAdmiral Freebee schreef op vrijdag 12 juni 2020 @ 14:01:
[...]
Ik vind het een erg leuk ontwerp! Als wij vrijstaand hadden kunnen bouwen had ik deze zeker aan mijn vrouw laten zien
Ik zou overwegen om te bouwen met een donkerrode of rood-bruine baksteen(bvb: https://www.vandersandeng...elsteen-steenstrip/marron)
Bedoel je dan buiten? Geen idee hoe snel een witte gevelsteen echt vuil wordt?Ernemmer schreef op vrijdag 12 juni 2020 @ 14:29:
[...]
Aan kastruimte geen gebrek zo te zien.
En wit is leuk, totdat je het elke paar maanden schoon moet maken.
[ Voor 4% gewijzigd door Kwakkel op 12-06-2020 14:33 ]
@Elja De bijkeuken gebruik je vnl. voor wassen en drogen. De meeste was zal van boven komen vermoed ik. Wij zelf hangen in de winter ook boven de was op. Ik zou de bijkeuken vanuit de hal bereikbaar maken door de wc een kwart slag te draaien.Elja schreef op donderdag 11 juni 2020 @ 17:09:
Oke, als we dan toch met plattegrondjes bezig zijn, zal ik de onze er ook even ingooien.
Tot eergisteren was dit het plan:
[Afbeelding]
Met een raam in de bijkeuken en verder een redelijk nutteloze gang aan de voorkant richting het toilet.
Nu bedachten we ons alleen dat het raam op de begane grond dan niet echt mooi zou uitlijnen met het raam boven, dus hebben we de boel omgegooid:
[Afbeelding]
Dus een kantoortje toegevoegd en de bijkeuken een stukje kleiner.
Wat vinden jullie van deze opzet? Nog andere creatieve ideeën voor een mooie indeling?
Ik hoor het graag!
Owh, er komen vast opmerkingen over de toegang naar de bijkeuken.
Het leek ons leuk om de ingang naar de bijkeuken te verbergen in een keukenkast van 80 centimeter. Een soort geheime ruimte dus.
Voor wie het liever in 3D bekijkt, dat kan via deze link.
[ Voor 5% gewijzigd door Fimke op 12-06-2020 14:36 ]
Zorg voor slaapkamers met voldoende ruimte, als je de woning ooit gaat verkopen is dat wel echt een ding waarop kopers 'm afschieten of juist de hoofdprijs betalen. Je hebt een hoop kastruimte op de gang maar m.i. moet er op een slaapkamer tenminste een bed, bureau en kledingkast kunnen staan. Als de ruimte dat niet toelaat is de slaapkamer (zeker voor een vrijstaand huis) eigenlijk te klein...Kwakkel schreef op vrijdag 12 juni 2020 @ 12:42:
[...]
De slaapkamers (zeker de kinderkamers) lijken wat klein. De kleerkast staat weliswaar buiten de kamer, maar dan nog stellen we ons de vraag of deze met ongeveer 9.25m² niet te compact zijn. Eenvoudige uitbreiding zou wellicht zijn om het overdekt terras te vervangen door een uitkraging op de verdieping. Dan win je meteen een heel pak ruimte. Maar, dat gaat wellicht te duur worden![/li]
[...]
Hoeder van het Noord-Meierijse dialect
Ik zou een was en droogkast ook niet in de 'kelder' willen, je moet het gewoon een andere naam geven. "Beneden" klikt al een stuk beter dan "kelder" ;-) Ik zou ze al helemaal niet graag op de begane grond willen hebben in een ruimte die verder niet afgesloten is, die was- en droogkast hoor je overal in huis behalve "beneden" (tenzij het een open trap is naar "beneden" maar ik meende een deur te kunnen ontdekken voor de trap naar "beneden"). Mocht jij (lees: zij) ze daar echt neer gaan zetten dan zou ik overwegen om de trap naar beneden zo'n 50cm richting de keuken te verschuiven zodat je echt een muur rondom de was en droogkast kan plaatsen tegen het geluid. Maar daar verlies je dan wel gelijk een kastenwand mee. Alternatief is om het bankje bij de voordeur te skippen en de wc 50cm richting de voordeur te plaatsen. Op dat bankje komt toch maar een vaas met wat dooie bloemetjes te staan, geen hond die daar gaat zitten.Kwakkel schreef op vrijdag 12 juni 2020 @ 14:31:
[...]
Grappig - waskoker had ik ook geopperd. Als we wat verder zijn, en we gaan die richting uit, smijt ik het wel nog eens op tafelMaar mijn vrouw wilt de was en droogkast niet in de kelder. Dus momenteel zijn die voorzien aan die blauwe vakjes (op het gelijkvloers, naast het toilet). Uiteraard zou die koker daar volgens mij ook in kunnen uitkomen hoor
[...]
Ben ik met je eens - alleen zitten we (zeker nu) budgetair vast. Groter bouwen lijkt niet te lukken, en kamers grote rmaken kan met dit ontwerp niet. Anders is het volledig terug naar de tekentafel (wat dan ook weer geld gaat kosten aan de architect) om zo de trap te herdenken. Alleen, dan ga je wellicht ook morrelen aan het 'blok' beneden waar die trap in zit. En dan ga je daar het leuke van het ontwerp volgens mij kwijt spelen.Harrie_ schreef op vrijdag 12 juni 2020 @ 14:35:
[...]
Zorg voor slaapkamers met voldoende ruimte, als je de woning ooit gaat verkopen is dat wel echt een ding waarop kopers 'm afschieten of juist de hoofdprijs betalen. Je hebt een hoop kastruimte op de gang maar m.i. moet er op een slaapkamer tenminste een bed, bureau en kledingkast kunnen staan. Als de ruimte dat niet toelaat is de slaapkamer (zeker voor een vrijstaand huis) eigenlijk te klein...
Ik bedoel buiten ja, vaak wordt een witte steen toch wel snel goor ipv mooi wit.Kwakkel schreef op vrijdag 12 juni 2020 @ 14:31:
[...]
We houden het alleszins in ons achterhoofd. 2.50 (zelfde als op 1ste verdiep) kan ook bvb. We zullen zien.
Mijn bureau staat nu in een hoekje van een ruimte onder een plafond van 2.10. Dat is ok, maar de rest van de ruimte heeft wel 2.40 of 2.50 als hoogte. Een hele ruimte met 2.20 voelt wellicht toch wat benepen.
[...]
Kan misschien ook - om goed te zijn zou ik misschien best al een tuinarchitect aanspreken voor wat ideetjes. Maar 1) mijn vrouw ziet het niet zitten om daar ook nog eens tijd in te steken en 2) die werken ook niet gratis natuurlijk
[...]
Helemaal mee eens, want hadden we bij het laatste gesprek met de architect ook geopperd
Alleen wordt het dan te klein naar keukenkasten toe: 1 grote koelkast en 2 ovens passen moeilijk. Misschien als ik ze boven elkaar zet, maar zou ze liever naast elkaar zien verschijnenVermits van de 5 overblijvende kasten er zeker 3 als onder- en bovenkasten moeten komen (dan heb je een nis voor broodrooster, koffiezet, broodbakmachine, ....), zitten de 2 hoge kasten dan meteen vol met apparatuur.
[...]
Uitsteken van de carport is misschien ook een idee. Gaan we zeker overwegen (als we de carport kunnen zetten)!
Sorry - die .45 komt echt van de architect hoorEn denk het wel - zoals ik zei heeft het verdiep niet echt ruimte over (wellicht ook door plaatsing van de trap, maar goed). Dus of de kinderkamers, of de grote slaapkamer zouden dan echt te klein worden vrees ik.
Dat lichtgele is (een optie voor) een bed. Het geld was op, dus een aparte logeerkamer kan niet, maar we hebben wel een nichtje dat geregeld eens komt logeren. En die moet ergens kunnen slapen, natuurlijk
Een deur komt daar zeker ook - we bekijken later nog wel welke
Grappig - waskoker had ik ook geopperd. Als we wat verder zijn, en we gaan die richting uit, smijt ik het wel nog eens op tafelMaar mijn vrouw wilt de was en droogkast niet in de kelder. Dus momenteel zijn die voorzien aan die blauwe vakjes (op het gelijkvloers, naast het toilet). Uiteraard zou die koker daar volgens mij ook in kunnen uitkomen hoor
[...]
Wat let je - onze noordzijde is helemaal toe, dus kan je perfect tegen een ander huis plakken
En thanks - momenteel overwegen wij https://www.vandersandeng...evelsteen-steenstrip/reno
Past nog mooi binnen het budget (in waalformaat 41 cent per steen of 29.30/m² - voorzien budget is 45 cent per steen)
De Marron was idd ook een optie, maar ik denk dat onze voorkeur toch naar de Reno gaat - omwille van de nuances
[...]
Bedoel je dan buiten? Geen idee hoe snel een witte gevelsteen echt vuil wordt?
Binnen hebben we nog geen idee hoe het gaat worden - de architect vond onze Pinterest niet meer, dus heeft zelf maar een invulling gegeven. Zo wit zal het alleszins binnen niet worden
Haha - what's in a nameTehh schreef op vrijdag 12 juni 2020 @ 14:43:
[...]
Ik zou een was en droogkast ook niet in de 'kelder' willen, je moet het gewoon een andere naam geven. "Beneden" klikt al een stuk beter dan "kelder" ;-) Ik zou ze al helemaal niet graag op de begane grond willen hebben in een ruimte die verder niet afgesloten is, die was- en droogkast hoor je overal in huis behalve "beneden" (tenzij het een open trap is naar "beneden" maar ik meende een deur te kunnen ontdekken voor de trap naar "beneden"). Mocht jij (lees: zij) ze daar echt neer gaan zetten dan zou ik overwegen om de trap naar beneden zo'n 50cm richting de keuken te verschuiven zodat je echt een muur rondom de was en droogkast kan plaatsen tegen het geluid. Maar daar verlies je dan wel gelijk een kastenwand mee. Alternatief is om het bankje bij de voordeur te skippen en de wc 50cm richting de voordeur te plaatsen. Op dat bankje komt toch maar een vaas met wat dooie bloemetjes te staan, geen hond die daar gaat zitten.
Zitten we ook over te denken - heb je wel de WC aan de slaapkamer, wat minder 'leuk' is als de kinderen 's nachts naar het toilet gaan.Fimke schreef op vrijdag 12 juni 2020 @ 14:44:
@Kwakkel ik zou de wc op de plek van de douche doen, zodat deze wel vanaf de gang te bereiken is en de douche op de plaats van de wc. Dan kun je de slaapkamer een stuk groter maken, het hoekje om naar de wc kan evt inbouwkast in de kamer komen.
Zit je wel met dat raam.
Hah, dan heeft het weinig zin jaAdmiral Freebee schreef op vrijdag 12 juni 2020 @ 14:45:
@Kwakkel Wij wonen al een jaar in ons huis
Bovendien mocht op dit kavel enkel een woning met puntdak van max 8m breed.
Ok, goed om te weten - volgens de architect viel dat goed mee (voor een gevelsteen - crepi is weer wat anders). Maar ja, dat kan ook relatief zijnErnemmer schreef op vrijdag 12 juni 2020 @ 14:46:
[...]
Ik bedoel buiten ja, vaak wordt een witte steen toch wel snel goor ipv mooi wit.
:fill(white):strip_exif()/f/image/dCk5XTWFyuKXcMMFOPGwyAW8.png?f=user_large)
Ik denk dat de indeling van je bovenverdieping niet heel efficiënt is. Doordat de badkamer van twee kanten toegankelijk is heb je heel veel overloop nodig. Bovendien snap ik niet echt waarom je wél ruimte maakt voor kasten op de gang, maar dat afsnoept van de kinderkamers die je te klein vindt.Kwakkel schreef op vrijdag 12 juni 2020 @ 12:42:
Heb enige tijd geleden al eens een eerste ontwerp gepost. Omwille van het budget, en de slechtere ondergrond, is dat ontwerp ondertussen gefinetuned, na ongeveer 3 maanden en een 6-tal iteraties, tot het volgende (helaas wat minder spannende, meer 13-in-een-dozijn) ontwerp:
[Afbeelding]
• De slaapkamers (zeker de kinderkamers) lijken wat klein. De kleerkast staat weliswaar buiten de kamer, maar dan nog stellen we ons de vraag of deze met ongeveer 9.25m² niet te compact zijn. Eenvoudige uitbreiding zou wellicht zijn om het overdekt terras te vervangen door een uitkraging op de verdieping. Dan win je meteen een heel pak ruimte. Maar, dat gaat wellicht te duur worden!
[/list]
/f/image/bqXq4HD5X9TP7DHfpWekm4po.png?f=fotoalbum_large)
/f/image/Se38FuCSZmqBO5R1QQnJVuy0.png?f=fotoalbum_large)
De Vandersanden Perla zijn we gaan kijken. Die was ook wel mooi, danwel in combinatie met zwarte ramen, niet wit!Ernemmer schreef op vrijdag 12 juni 2020 @ 15:00:
Het is natuurlijk ook afhankelijk van welke witte steen je neemt.
[Afbeelding]
Een beetje zoals Daniel ook tekende denk ik dan?Fimke schreef op vrijdag 12 juni 2020 @ 15:30:
[Afbeelding]
@Kwakkel ik zou inderdaad de gang en kasten op laten gaan in de slaapkamer. Dan heb je een grote slaapkamer die recht doet aan een vrijstaande woning zoals hier eerder ook werd gezegd. Een badkamer van twee kanten bereikbaar zou ik zelf onnodig vinden.
Mijn kinderen gaan bijna nooit snachts naar de wc, althans niet dat ik er wakker van wordt
Als de kasten in de kamer moeten, win je natuurlijk geen ruimte. Je verliest eventueel zelfs wat, omdat de kastdeuren open moeten kunnenDaniel schreef op vrijdag 12 juni 2020 @ 15:30:
[...]
Ik denk dat de indeling van je bovenverdieping niet heel efficiënt is. Doordat de badkamer van twee kanten toegankelijk is heb je heel veel overloop nodig. Bovendien snap ik niet echt waarom je wél ruimte maakt voor kasten op de gang, maar dat afsnoept van de kinderkamers die je te klein vindt.
De badkamer is zó groot (ruim 17 m2) dat ik zou overwegen er twee aparte badkamers van te maken, zodat je kinderen - evt op termijn - hun eigen badkamer hebben. Als je het toilet apart houdt hoeft een ruimte met een wastafel en een douche niet meer dan ± 5 m2 te kosten, als je het handig in kunt delen kan daar ook nog wel een toilet bij. Het wordt dan iets meer puzzelen met de ruimte in de master badkamer als je er een bad, dubbele wastafel en grote douche in wil passen maar je kan die dan wel volledig bij je eigen slaapkamer trekken. En op ongeveer 12 m2 moet dat nog zeker wel lukken.
Zelfs als je dit niet doet zou ik het toilet en de douche van plaats wisselen. Nu moet je, als de badkamer bezet is, de hele gang rond lopen als je vanuit jouw slaapkamer naar het toilet wil.
Even twee heel ugly gemaakte suggesties:
variant 1 met twee badkamers: [Afbeelding]
Hier heb ik de slaapkamers niet aangeraakt maar het toilet naar het midden verplaatst en de badkamer in 2e gesplitst. Op zich is een inpandige badkamer als ie zo klein is geen probleem, anders moet je nog iets verzinnen met daglicht. Ik had hem eerst helemaal langs de ondergevel zodat je nog een raam hebt maar dan krijg je zo'n gekke pijpela. Maar een beetje architect moet hier wel wat creatiefs voor kunnen verzinnen. Omdat je master bedroom en badkamer nu meteen aan elkaar zitten win je daar ook wat ruimte omdat je minder gang nodig hebt.
Zeker met kinderen is zo'n eigen sanctuary echt wel een meerwaarde.
[Afbeelding]
Hier heb ik ook de douche en het toilet geflipped maar de extra ruimte bij de badkamer gelaten. Omdat je het gangetje aan de onderkant niet meer nodig hebt om bij het toilet te komen kun je die ruimte bij de slaapkamers trekken. Het stukje gang haal je bij de onderste slaapkamer, waardoor de tussenmuur ook wat op kan schuiven en beide slaapkamers behoorlijk groter worden.
Je moet hier dan wel iets creatiefs doen met het raam dat nu voor licht op de overloop zorgt maar dat is best mogelijk. En anders heb je altijd nog de optie er een lichtstraat boven te maken. Ik ga er dan ook van uit dat de kastenruimte die op de overloop was niet meer nodig is omdat je kinderen hun kleding in hun eigen kamer kunnen bewaren.
Op de site van Wienerbergen kan je verschillende stenen combineren om zo een leuke mix te krijgen.Kwakkel schreef op vrijdag 12 juni 2020 @ 17:09:
[...]
En gisteren zag ik nog een mooie wit/zwart combinatie. Helaas geen enkel idee welke steen dat was
De geostyle shaded white of light grey van mbi misschien?Kwakkel schreef op vrijdag 12 juni 2020 @ 17:27:
Klopt - heb helaas de indruk dat Wienerberger toch wel wat duurder is dan Vandersanden bvb. Ook Nelissen lijkt wat duurder.
En het is natuurlijk moeilijk om een mix te maken - je hebt geen idee (enfin, ik toch niet) hoe dat er dan 'in het echt' uit gaat zien.
(met zwart/wit combinatie, bedoelde ik witte steen/zwart schrijnwerk trouwens)
Lux.Architectuur | Van Dromen tot Wonen | www.Lux-a.nl
Hele mooie stenen! Helaas wilt de vrouw niet meetwain4me schreef op vrijdag 12 juni 2020 @ 17:51:
[...]
De geostyle shaded white of light grey van mbi misschien?
https://www.mbi.nl/producten/bouw/geostylistix/
https://architectenweb.nl/projecten/project.aspx?ID=38781
Dat is inderdaad een mogelijkheid. (Op de achtergevel moeten/kunnen we dan iets soortgelijk doenbattler schreef op vrijdag 12 juni 2020 @ 21:15:
@Kwakkel Ik adviseer om het raam op de benedenverdieping uit te breiden. Zodanig dat het in het verlengde ligt van het raam op de eerste verdieping. Hierdoor oogt het vooraanzicht rustiger.
- let niet op het zwembad: dat is 'wishfull thinking van de oudste dochter Even als voorbeeld:Admiral Freebee schreef op vrijdag 12 juni 2020 @ 14:01:
[...]
Ik vind het een erg leuk ontwerp! Als wij vrijstaand hadden kunnen bouwen had ik deze zeker aan mijn vrouw laten zien
Ik zou overwegen om te bouwen met een donkerrode of rood-bruine baksteen(bvb: https://www.vandersandeng...elsteen-steenstrip/marron)
:strip_exif()/f/image/EtbTqOxKDzobxpOeYJv01J3I.jpg?f=fotoalbum_large)
Ga naar een adviseur die je ook echt adviseert. Die zal je o.a. uitleggen dat je pas volledig kunt financieren op het moment dat je een aannemingsovereenkomst hebt. Het verschilt per bank wat de mogelijkheden daarbuiten zijn. Op basis van een uitgewerkt ontwerp en een taxatie van de waarde na bouw kreeg ik 80% LTV gefinancierd omdat ik nog geen aannemingsovereenkomst heb. Zou ik die wel hebben gehad, dan zou ik het volledige bedrag hebben kunnen financieren.Stab schreef op vrijdag 12 juni 2020 @ 20:49:
Maar hoe zit het nou precies in de werkelijkheid? We zullen dus eerst de grond moeten kopen. Met een overbruggingshypotheek? En daarnaast plannen maken voor de bouw met de aannemer. En vanaf wanneer kunnen we die dan financieren? Pas als we ons huidige huis verkocht hebben? Of hebben we dan eigenlijk 3 hypotheken? Dan worden de maandlasten waarschijnlijk tijdelijk enorm hoog?
Was advocaat maar vindt het juridische nog steeds leuk. Doet tegenwoordig iets in de metaal.
Thanks. Ja, dit telefoongesprekje van vanmiddag was niet veel soep. Hij had er duidelijk geen zin in en ik zat onderwijl nog met een huilend kind.StevenK schreef op vrijdag 12 juni 2020 @ 21:43:
[...]
Ga naar een adviseur die je ook echt adviseert. Die zal je o.a. uitleggen dat je pas volledig kunt financieren op het moment dat je een aannemingsovereenkomst hebt. Het verschilt per bank wat de mogelijkheden daarbuiten zijn. Op basis van een uitgewerkt ontwerp en een taxatie van de waarde na bouw kreeg ik 80% LTV gefinancierd omdat ik nog geen aannemingsovereenkomst heb. Zou ik die wel hebben gehad, dan zou ik het volledige bedrag hebben kunnen financieren.
Met het plaatje wat jij schetst zul je probleemloos in twee stappen kunnen financieren: eerst de grond en zodra je een aannemingsovereenkomst hebt kun je de de bouw financieren. Het bedrag dat je nog uit de huidige woning zult moeten krijgen zal dan (aflossingsvrij) als overbrugging gefinancierd worden. Ik moest daarvoor wel aantonen dat ik die dubbele lasten voor een jaar zou kunnen betalen.
Verwijderd
Ik heb een oriënterend gesprek gehad met de Rabobank, daar werd mij meteen al verteld dat grond en bouw apart financieren makkelijker zou zijn, omdat ik nog geen aannemingsovereenkomst had. Ben uiteindelijk bij ABN terechtgekomen en kon daar dus meteen genoeg financieren.Verwijderd schreef op vrijdag 12 juni 2020 @ 22:09:
Mijn adviseur was vrij duidelijk dat enkel de grond kopen tegenwoordig ook niet meer zo makkelijk is. De bank wil garantie dat daar een huis op komt en dan moet je al veel overeenkomsten hebben.
Was advocaat maar vindt het juridische nog steeds leuk. Doet tegenwoordig iets in de metaal.
Verwijderd
Geloof ik, mijn situatie was weer anders. En m'n adviseur moest daarmee werken en adviseren. Als je het kunt betalen kom je uiteindelijk wel daar met een goede adviseur.StevenK schreef op vrijdag 12 juni 2020 @ 22:18:
[...]
Ik heb een oriënterend gesprek gehad met de Rabobank, daar werd mij meteen al verteld dat grond en bouw apart financieren makkelijker zou zijn, omdat ik nog geen aannemingsovereenkomst had. Ben uiteindelijk bij ABN terechtgekomen en kon daar dus meteen genoeg financieren.
Wat mogelijk meespeelde is dat het kavel al wel voorzien was van een door welstand goedgekeurd (13 in een dozijn jaren dertig model) ontwerp.
![]() | ![]() |
Lux.Architectuur | Van Dromen tot Wonen | www.Lux-a.nl
Wat je wil is de overwaarde van de huidige woning gebruiken voor het bouwen van de nieuwe woning. Daar is de overbruggingshypotheek voor uitgevonden. Je leent dan feitelijk de overwaarde bij zodat je die kan aanwenden voor de nieuwe woning. Gedurende de tussenliggende periode heb je dan inderdaad drie hypotheken: op het oude huis, op het nieuwe huis en de overbruggingshypotheek. Vlak voordat je gaat verhuizen heb je dan dus inderdaad behoorlijk hoge maandlasten, en de bank zal altijd aangetoond willen zien dat je in staat bent die lasten te dragen. Je hebt daar spaargeld voor, maar daar zul je nog wat andere dingen uit moeten betalen.Stab schreef op vrijdag 12 juni 2020 @ 20:49:
Kan iemand mij even stapsgewijs uitleggen hoe dit precies zit en wat de volgorde is van te nemen stappen? Ik wil het even helder voor ogen krijgen. Het is eigenlijk vrij simpel:
- We hebben momenteel een huis met een waarde van ongeveer 550.000. Huidige hypotheek is op dit moment nog 230.000 om af te lossen. Dit is een annuitaire hypotheek.
- We willen bouwgrond kopen van 325.000 incl K.K.
- We willen daarna een huis bouwen van ongeveer 250.000 tot 300.000
- Ongeveer 50.000 spaargeld
Vandaag een kort gesprek gehad met hypotheek24, waar we al 2 maal eerder een hypotheek hebben laten afsluiten bij Argenta. Volgens hem kunnen we met onze inkomens in totaal 425.000 lenen. Dit is dus niet genoeg om het 'bij te lenen' voor dit project, noch zouden we dat willen, maar het zou dus mogelijk moeten zijn om een overbruggingshypotheek te nemen voor de periode dat ons huis nog niet verkocht is.
Maar hoe zit het nou precies in de werkelijkheid? We zullen dus eerst de grond moeten kopen. Met een overbruggingshypotheek? En daarnaast plannen maken voor de bouw met de aannemer. En vanaf wanneer kunnen we die dan financieren? Pas als we ons huidige huis verkocht hebben? Of hebben we dan eigenlijk 3 hypotheken? Dan worden de maandlasten waarschijnlijk tijdelijk enorm hoog?
Kan iemand me het iets verduidelijken?
Alvast dank.
[ Voor 100% gewijzigd door Deleon78 op 26-07-2021 16:39 ]
Heb je overigens al een prijs van dit ontwerp gehad wat er zitten een aantal flink dure elementen in. De staalconstructie moet flink wat dragen en veiligheidsglas ivm hoogte van de ramen.Kwakkel schreef op vrijdag 12 juni 2020 @ 21:29:
[...]
Hele mooie stenen! Helaas wilt de vrouw niet mee
[...]
Dat is inderdaad een mogelijkheid. (Op de achtergevel moeten/kunnen we dan iets soortgelijk doen
[Afbeelding] - let niet op het zwembad: dat is 'wishfull thinking van de oudste dochter))
[...]
Even als voorbeeld:[Afbeelding]
[Afbeelding]
Lux.Architectuur | Van Dromen tot Wonen | www.Lux-a.nl
Welk programma gebruik jij daar voor 3D?battler schreef op zaterdag 13 juni 2020 @ 05:59:
[Afbeelding] [Afbeelding]
Op funda een woning gevonden die eigenlijk alle elementen heeft die wij graag zouden zien. Ik maak de 3D ontwerpen omdat ik het lastig vind om mij in te beelden hoe iets eruit komt te zien. Nu kan ik het in de praktijk gaan bekijken en inspiratie opdoen, dat is toch een heel stuk prettiger. Het is jammer dat de inspiratiewoning ruim boven budget is, anders had ik het zeker overwogen
Zeer bedankt voor deze duidelijke uitleg. Heel nice.Daniel schreef op zaterdag 13 juni 2020 @ 08:50:
[...]
Wat je wil is de overwaarde van de huidige woning gebruiken voor het bouwen van de nieuwe woning. Daar is de overbruggingshypotheek voor uitgevonden. Je leent dan feitelijk de overwaarde bij zodat je die kan aanwenden voor de nieuwe woning. Gedurende de tussenliggende periode heb je dan inderdaad drie hypotheken: op het oude huis, op het nieuwe huis en de overbruggingshypotheek. Vlak voordat je gaat verhuizen heb je dan dus inderdaad behoorlijk hoge maandlasten, en de bank zal altijd aangetoond willen zien dat je in staat bent die lasten te dragen. Je hebt daar spaargeld voor, maar daar zul je nog wat andere dingen uit moeten betalen.
Voor het project schat je ongeveer 625.000 euro nodig te hebben. Je kunt maximaal 425.000 euro financieren, de resterende 2 ton moeten uit overwaarde komen. Ik zou dat spaargeld niet meerekenen, je moet immers ook nog een huis inrichten en afbouwen, ik ga er althans van uit dat in die 250-300k geen keuken, vloeren, tuin etc zitten.
De maximale overbruggingshypotheek is 90% van de woningwaarde van je huidige woning, min de resterende hypotheek. Dat is dus (0.9 * 550.000) = 495.000 - 230.000 = 265.000 euro. Dat komt wel uit maar het is fors, want de rente op een overbruggingshypotheek is hoger dan die van een normale hypotheek (±1% meer).
Hoe de stappen in zijn werk gaan hangt om te beginnen af van hoe de grondverkoop geregeld is. Wat je het liefst wil is dat je maar 1x naar de notaris hoeft: voor de overdracht van de grond, en direct het vestigen van de hypotheek op het nieuwe huis. Normaal gesproken teken je al wel de koopovereenkomsten voor de grond en de aanneemovereenkomst, maar ga je pas naar de notaris als er ook een omgevingsvergunning is voor het bouwen van de woning.
In dit geval ga je dus naar de bank voor totale projectkosten van 625.000 euro, te financieren uit een nieuwe hypotheek van 425.000 euro en een overbruggingshypotheek van 200.000 euro. Bij de notaris wordt er 325.000 euro direct afgerekend voor de grond en de overige 300.000 wordt in een bouwdepot gestort waaruit je de aannemer gaat betalen naarmate de bouw vordert. Vlak voor oplevering heb je derhalve een hypotheek van 625.000 + 230.000 = 855.000 euro. Als je huidige woning verkocht wordt voor 550.000 euro los je daaruit de bestaande hypotheek af (-230.000), vervolgens de overbruggingshypotheek (-200.000) en de resterende 120.000 euro belandt op je bankrekening om in te zetten naar eigen inzicht.
De catch22-situatie die daar voor zit komt vaker terug in dit topic: als koper wil je pas overeenkomsten tekenen als je zeker weet dat de bank gaat financieren, en de bank wil niet zeggen dat ze gaan financieren zonder getekende overeenkomsten. Zolang je echter niet aan je maximale mogelijkheden zit kom je daar over het algemeen wel uit op basis van een gedegen offerte van een aannemer. Ik neem aan dat je voordat je de grond koopt al wel een globaal beeld hebt gekregen over wat voor huis je wil en of dat haalbaar is.
Je kunt het ook eenvoudiger voor jezelf maken door eerst je huidige huis te verkopen en tijdelijk te gaan huren. Je hebt dan je overwaarde beschikbaar om in het nieuwe huis te steken. Nadeel is dat huren ongetwijfeld duurder is dan wat je nu voor je huidige huis per maand kwijt bent, en dan je twee keer moet verhuizen.
Dit is ook sketchup met een vray plugin. de plugin heeft een trial period en een render farm functionaliteit.Piet91 schreef op zaterdag 13 juni 2020 @ 13:15:
[...]
Welk programma gebruik jij daar voor 3D?
Voor familie heb ik ook een aantal keer hun woning in Sketchup gemaakt met verschillende layers e.d. en dat helpt hen inderdaad veel om 2D tekeningen te interpreteren.
Lux.Architectuur | Van Dromen tot Wonen | www.Lux-a.nl
We zijn ons nu aan het oriënteren. Maar ik vrees ook dat het tegen gaat vallen. Wellicht heb ik het onderschat.SjakieZulu schreef op zaterdag 13 juni 2020 @ 13:59:
@stab: wat wil je gaan bouwen? 250-300 k is niet bepaald een ruim budget. En dan moet het nog ingericht worden (je spaargeld gaat echt helemaal op).
De sluis zit er vooral omdat we dat mooier vinden staan, zo met de garage iets van het huis af.Fimke schreef op vrijdag 12 juni 2020 @ 14:32:
Als de garage meer naar voren mag, kun je ook de sluis nog op je bijkeuken aansluiten, dan ben je de deur in de keuken kwijt. Ik ben later in dit topic gerold, waarom die sluis?
:strip_exif()/f/image/6wZP077wQdfJxsJ5pzMxv0lg.jpg?f=fotoalbum_large)
:strip_exif()/f/image/twlGHh31gacMDgne5LewCn99.jpg?f=fotoalbum_large)
Photofacts; weblog over fotografie..
Je werk kamer is nu een stuk beter omdat hij ook nog voor iets anders te gebruiken is (slaapkamer bv)Elja schreef op zaterdag 13 juni 2020 @ 14:29:
[...]
De sluis zit er vooral omdat we dat mooier vinden staan, zo met de garage iets van het huis af.
We moeten de garage minimaal 2,5 meter vanaf de voorgevel plaatsen, dus op de bijkeuken wordt net lastig.
Overigens gaan onze plannen behoorlijk overhoop met al jullie mooie input (waarvoor dank!).
Dit is nu het nieuwe plan:
[Afbeelding]
Bijkeuken eruit (wasmachine en droger naar de inloopkast).
En de keukenwand zelf niet meer 'tegen de muur', maar 'in de muur'.
Ziet er wel strakker uit, volgens mij.
[Afbeelding]
Het levert zo een flink grotere werkkamer op.
Die heeft wel een raar hoekje gekregen, maar daar doen we dan maar een paar schappen in ofzo.
Wat vinden jullie?
:no_upscale():strip_icc():fill(white):strip_exif()/f/image/JAHohmYnNVZnawgYgGN5KCC1.jpg?f=user_large)
[ Voor 25% gewijzigd door DeBaroN op 13-06-2020 16:47 ]
Sowieso is veel te definitief voor een ontwerpprocesbaronruud schreef op zaterdag 13 juni 2020 @ 16:46:
Meterkast zou ik sowieso in de hoofdbouw laten. Niet in de aanbouw, ivm je leidingwerk.
(ik ga ervan uit dat de ''sluis'' een platdak aanbouw is)
[ Voor 75% gewijzigd door twain4me op 13-06-2020 17:08 . Reden: qoutefix ]
Rond de ~300K excl. tuin, leges, inrichting (keuken, badkamer) , wand/vloer/muurafwerking is waarschijnlijk haalbaar. Uiteraard allemaal afhankelijk van je wensen of het voldoet aan jouw wensen. Wij zaten net onder de 300K voor iets van 166m2 (bruto), twee bouwlagen. Dat was exclusief heipalen, leges, inrichting, afwerking etc.Stab schreef op zaterdag 13 juni 2020 @ 14:19:
[...]
We zijn ons nu aan het oriënteren. Maar ik vrees ook dat het tegen gaat vallen. Wellicht heb ik het onderschat.
Onze wensen:
We willen eigenlijk een vrijstaande woning met woonoppervlakte zo rond de 150-200 m2. Open keuken en woonkamer. Openslaande deuren naar de tuin. Veel ramen beneden.
Dan een kantoorruimte van 20-25m2. Zou bijvoorbeeld ook de garage kunnen zijn die omgebouwd is. Dat heb ik nu ook. En dan, als het even kan nog een extra 'gastenslaapkamer' met eigen badkamer. Het liefst niet 'in' het huis, maar een extra gebouw in de tuin. Dat laatste zal nog wel niet mogelijk zijn met dit budget.
Ik heb naar Prefab zitten kijken. Heb daar wel een aantal huizen gezien die in de buurt komen en dan 'sleutelklaar' worden opgeleverd voor rond de 250.000. Uiteraard moet er dan nog een hoop gebeuren.
Mijn vrouw en ik hebben nu al 2 keer een huis gekocht en 'gerenoveerd'. Wij zijn wel heel erg goed in alles zo goedkoop mogelijk doen en dat het dan nog steeds prima kwaliteit is.
Zo hoeven we geen keuken van een 'keukenboer' voor 25.000. We zetten er zelf een Ikea keuken in met een composieten blad van de goedkoopste online shop die we kunnen vinden. Hebben we nu ook. Kostte ons 'maar' 8000 in totaal ofzo. Ik heb een schitterende houten vloer hier liggen van 'Bebo Parket', 20 euro per m2. Etc. Geen kozijnen van Belisol, maar gewoon van Veka. 30% van de prijs. Dus op dat soort dingen kunnen we wellicht nog een hoop besparen. We hebben momenteel een huis van rond de 250m2 en eigenlijk is alle inrichting er dus al.
Ik kan zo niet goed inschatten wat dan 'de rest' nog gaat kosten. Tuin, leges, aansluitingen, verhuizen, aanpassingen, etc. Daar zal het spaargeld wel aan opgaan.
Ik heb alleen nog geen offertes opgevraagd bij traditionele bouwbedrijven. Zou dat nog goedkoper zijn dan prefab van bv Variahuis?
Of hier staan er ook een aantal binnen budget.
https://www.accentbouwwonen.nl/woningbouw/
Wat denken jullie? Rond de 300.000 te realiseren?
Lux.Architectuur | Van Dromen tot Wonen | www.Lux-a.nl
Herkenbaar. Wij zijn echt jaren aan het kijken geweest en liepen eigenlijk steeds om een bepaald gebied heen, omdat daar het bouwvolume gelimiteerd is tot 600 m3. . Tot we weer eens langs een set kavels reden, waar één woning al bewoond bleek te zijn. Aangebeld of we eens binnen mochten kijken hoe de ruimte in zo'n huis is. Daarmee hebben we een veel beter gevoel voor wat er aan ruimte mogelijk is binnen die beperking. Zo'n goed gevoel dat we toen vaart zijn gaan maken.battler schreef op zaterdag 13 juni 2020 @ 05:59:
Ik maak de 3D ontwerpen omdat ik het lastig vind om mij in te beelden hoe iets eruit komt te zien. Nu kan ik het in de praktijk gaan bekijken en inspiratie opdoen, dat is toch een heel stuk prettiger.
Was advocaat maar vindt het juridische nog steeds leuk. Doet tegenwoordig iets in de metaal.
En dan later tot de conclusie komen dat het technisch niet kan. Komt geregeld voor, mooi ontwerp, praktisch niet te doentwain4me schreef op zaterdag 13 juni 2020 @ 17:08:
[...]
Sowieso is veel te definitief voor een ontwerpproces
Yup zo had ik onlangs een kozijn wat onmogelijk zou zijn, het is inmiddels gewoon gemaakt door een andere fabrikant. Ze bedoelde dus eigenlijk te zeggen.. WIJ willen het niet maken omdat het ONS productieprocces frustreerd.baronruud schreef op zaterdag 13 juni 2020 @ 18:50:
[...]
En dan later tot de conclusie komen dat het technisch niet kan. Komt geregeld voor, mooi ontwerp, praktisch niet te doen
Stapelbouw? Traditioneel noem ik het. Is ook met kanaalplaatvloer natuurlijk. Catalogusbouwers gebruiken die ook meestal en dan ben je niet zo flexibel met je ventilatie ook nog is. Maar dat is een ander verhaal.twain4me schreef op zaterdag 13 juni 2020 @ 19:54:
[...]
Yup zo had ik onlangs een kozijn wat onmogelijk zou zijn, het is inmiddels gewoon gemaakt door een andere fabrikant. Ze bedoelde dus eigenlijk te zeggen.. WIJ willen het niet maken omdat het ONS productieprocces frustreerd.
Er is altijd een eerste keer die wel lukt. neem die grote gevelstenen, jaren geleden gevraagd aan een producent of ze die konden maken, kon niet, voor dat project zijn toen strips gezaagd uit natuursteen. inmiddels wordt je met die grote lange gevelstenen doodgegooid.
Jezelf beperkingen opleggen omdat je denkt dat iets niet kan is gewoon niet handig in een ontwerpprocces.. eigenwijs zijn en blijven staan stampvoeten als blijkt dat het echt niet kan of de andere partij niet wil is daarvan het andere uiterste.
Ik zou met het schetsontwerp in de hand gewoon vragen aan de aannemer en de netheerder.
Technisch kan het gewoon, ik heb het bij stapelbouw (kalkzandsteen+ breedplaten) en HSB al toegepast de vraag is of deze catalogusbouwer de flexabiliteit heeft om het te kunnen. En uiteraard of het mag van de netbeheerder, maar die veranderen ongeveer elke week van mening, ik neem nieteens de moeite om richtlijnen en regels te onthouden, dat heeft toch geen zin.
[ Voor 5% gewijzigd door DeBaroN op 13-06-2020 20:26 ]
Ergens tussen de 150 en 175 m2 moet wel lukken voor dat budget denk ik, als je geen al te gekke wensen hebt qua afwerking of detaillering.Stab schreef op zaterdag 13 juni 2020 @ 14:19:
[...]
Wat denken jullie? Rond de 300.000 te realiseren?
[ Voor 8% gewijzigd door Daniel op 13-06-2020 21:08 ]
Meterkast moet volgens mij altijd achter de voordeur zitten en mag maximaal 2 deuren tussen zitten ofzo. Daar zijn regels voor.baronruud schreef op zaterdag 13 juni 2020 @ 20:21:
[...]
Wat maakt het de netbeheerder nou uit of die in de aanbouw komt.
Veroordeel niet, verwonder u slechts
[ Voor 109% gewijzigd door Deleon78 op 26-07-2021 16:39 ]
Nee, moet direct na de voordeur of achterdeur met een max afstand .No Hands schreef op zaterdag 13 juni 2020 @ 20:46:
[...]
Meterkast moet volgens mij altijd achter de voordeur zitten en mag maximaal 2 deuren tussen zitten ofzo. Daar zijn regels voor.
De meterruimte is vanaf de hal of gang – direct vanaf een toegang – te bereiken. Hij ligt niet meer
dan 3 meter van deze toegang verwijderd en op hetzelfde niveau.
In de meterruimte en in de directe omgeving ervan bevinden zich geen balken, leidingen en dergelijke,
die een vrije invoering van de aansluitleidingen in de weg staan. De meterruimte is zo gelegen, dat
onze meters en leidingen niet kunnen bevriezen.
Ah, ik zit ook af en toe te kijken hoe ik Sketchup modellen kan renderen maar ik loop eigenlijk altijd vast op het feit dat het vaak dure pakketen zijn (wat niet in verhouding zou staan met wat ik met Sketchup doe).battler schreef op zaterdag 13 juni 2020 @ 13:53:
Dit is ook sketchup met een vray plugin. de plugin heeft een trial period en een render farm functionaliteit.
Ik zou de sluis meer benutten en deze inrichten zoals de modelwoning van Groothuis. Lijkt me ideaal, de kinderen komen daar binnen gooien hun jassen en schoenen aan de kant of in een schuifkast. Wc in de sluis (dan heb je minder last in de werkkamer van wc geluiden) en je houd de hal netjes en de wc voor jezelf of eventuele klanten/personeel/zakelijk bezoek.Elja schreef op zaterdag 13 juni 2020 @ 14:29:
[...]
De sluis zit er vooral omdat we dat mooier vinden staan, zo met de garage iets van het huis af.
We moeten de garage minimaal 2,5 meter vanaf de voorgevel plaatsen, dus op de bijkeuken wordt net lastig.
Overigens gaan onze plannen behoorlijk overhoop met al jullie mooie input (waarvoor dank!).
Dit is nu het nieuwe plan:
[Afbeelding]
Bijkeuken eruit (wasmachine en droger naar de inloopkast).
En de keukenwand zelf niet meer 'tegen de muur', maar 'in de muur'.
Ziet er wel strakker uit, volgens mij.
[Afbeelding]
Het levert zo een flink grotere werkkamer op.
Die heeft wel een raar hoekje gekregen, maar daar doen we dan maar een paar schappen in ofzo.
Wat vinden jullie?
tsja en zo noemen sommige mensen een zweihaak een zwaaihaak of de zwei. Sommige dingen hebben gewoon 2 of meer namen afhankelijk van waar je het vraagt heet het echt ook gewoon stapelbouw, Ik snap best wat mensen bedoelen als ze traditioneel zeggen. Stapelbouw heb je in meerdere vormen (zelfs in hout) en daarom vertel ik erbij welke soort, zodat daar geen misverstand over kan ontstaan. niets raars aan volgens mij.baronruud schreef op zaterdag 13 juni 2020 @ 20:21:
[...]
Stapelbouw? Traditioneel noem ik het. Is ook met kanaalplaatvloer natuurlijk.
Jij hebt het over mooie ontwerpen die praktisch niet kunnen,ik zeg alleen dat ik dat vaker hoor en geef er een voorbeeld bijEn ik heb het alleen over de meterkast.....Beetje vreemd om dan als voorbeeld kozijnen en gevelstenen erbij te halen, en wij willen en kunnen niet... Zucht.
mooi ontwerp, praktisch niet te doen
Regelgeving komt uiteraard niet alleen uit het bouwbesluit de afstand tot de "voor"deur is al jaren uit het bouwbesluit Er is echter nog genoeg regelgeving welke ik niet allemaal uit het hoofd weet. Waar ik bij stedin ongeveer de vederdeler aan de schoorsteen op het dak mocht binden, waren de richtlijnen van liander een stuk strenger. Ook dit is allemaal weer anders en ze hebben inmiddels meer 1 lijn, maar er zijn gewoon verschillen.Wat maakt het de netbeheerder nou uit of die in de aanbouw komt. Dat is geen probleem natuurlijk, gaat immers door de grond.
Gewoon op dezelfde manier als wanneer de meterkast niet direct aan een buitenmuur of schacht staat. eerst door de vloerplaat en daarna een muur of schacht in. De beperkende factor hierin is de vloer dat zal ik echt niet ontkennen. Vandaar dat je het de bouwer moet vragen, zelf beslissen dat het maar niet kan is onnodig beperkend voor het ontwerpproces imho.Gaat erom, hoe krijg je je leidingwerk naar de 1e verdieping natuurlijk. Kan wel, maar niet ideaal.
Vloerplaat verdieping is nooit een probleem, zit een sparing. Hoe ga je met je electra verder naar de hoofdbouw? Dan moet je dus met alles door de spouwmuur de hoofdbouw in?twain4me schreef op zaterdag 13 juni 2020 @ 22:45:
[...]
Gewoon op dezelfde manier als wanneer de meterkast niet direct aan een buitenmuur of schacht staat. eerst door de vloerplaat en daarna een muur of schacht in. De beperkende factor hierin is de vloer dat zal ik echt niet ontkennen. Vandaar dat je het de bouwer moet vragen.
Kleiner kavel zelfs.Daniel schreef op zaterdag 13 juni 2020 @ 20:43:
[...]
Ergens tussen de 150 en 175 m2 moet wel lukken voor dat budget denk ik, als je geen al te gekke wensen hebt qua afwerking of detaillering.
Als je zelf al ervaring hebt en handig bent kan je veel besparen.
Ik vraag me alleen af waarom als je nu veel ruimer woont. Groot kavel?
/f/image/EFUR3K25S2JLe1UyuRYNx6xu.png?f=fotoalbum_large)
[ Voor 99% gewijzigd door Deleon78 op 26-07-2021 16:39 ]
Die gang aan de onderkant is een beetje vreemd, met name de deuren naar de woonkamer helemaal in het hoekje.Aurum schreef op zaterdag 13 juni 2020 @ 23:03:
Nou na nog wat avonden achter de tekentafel en wat ideeën opgedaan te hebben van de verschillende ontwerpen die van andere tweakers nog zijn langs gekomen (met shoutout naar @Kwakkel ) is dit een andere indeling geworden met als focus o.a. dat de trap op een juiste manier uit zou komen op de bovenverdieping.
[Afbeelding]
mijn grote wens van een kookeiland van 3,6m zit erin, we hebben evengoed een plaats voor de PC's. wat voor ons prima is dat dit geen afgesloten ruimte is wij werken er niet.
een voor ons gevoel ruimtelijke en vrije indeling en we houden de keuze open om de 2 grote en suite deuren er wel of niet in te plaatsen. De meterkast/wc en daarnaast nog een kast voor de jassen/schoenen. en ook nog een plekje gevonden voor de technische ruimte.
we hebben in dit geval wel de was/droger verplaatst naar de 1e verdieping. maar we hebben door de trap er een extra kamer voor terug gekregen op de 1e.
We hebben ook nog een losstaande garage die ik er niet bij heb staan dus daar zullen we de biertjes koud houden
Beste RochelleDW, je verschillende plattegronden bekeken hebbend zou ik je willen adviseren te overwegen er een architect bij te betrekken. Ja, dit kost geld, maar ik denk oprecht dat die beter in staat zou zijn jouw eisen te verwerken tot een aansprekend en "logisch" ontwerp dan dat je dat zelf (met hulp van mede-Tweakers) kunt.Aurum schreef op zaterdag 13 juni 2020 @ 23:03:
Nou na nog wat avonden achter de tekentafel en wat ideeën opgedaan te hebben van de verschillende ontwerpen die van andere tweakers nog zijn langs gekomen (met shoutout naar @Kwakkel ) is dit een andere indeling geworden met als focus o.a. dat de trap op een juiste manier uit zou komen op de bovenverdieping.
[Afbeelding]
mijn grote wens van een kookeiland van 3,6m zit erin, we hebben evengoed een plaats voor de PC's. wat voor ons prima is dat dit geen afgesloten ruimte is wij werken er niet.
een voor ons gevoel ruimtelijke en vrije indeling en we houden de keuze open om de 2 grote en suite deuren er wel of niet in te plaatsen. De meterkast/wc en daarnaast nog een kast voor de jassen/schoenen. en ook nog een plekje gevonden voor de technische ruimte.
we hebben in dit geval wel de was/droger verplaatst naar de 1e verdieping. maar we hebben door de trap er een extra kamer voor terug gekregen op de 1e.
We hebben ook nog een losstaande garage die ik er niet bij heb staan dus daar zullen we de biertjes koud houden
Precies mijn gedachte!iLLEVAiHCAM schreef op zondag 14 juni 2020 @ 08:31:
[...]
Beste RochelleDW, je verschillende plattegronden bekeken hebbend zou ik je willen adviseren te overwegen er een architect bij te betrekken. Ja, dit kost geld, maar ik denk oprecht dat die beter in staat zou zijn jouw eisen te verwerken tot een aansprekend en "logisch" ontwerp dan dat je dat zelf (met hulp van mede-Tweakers) kunt.
Ik wil nadrukkelijk geen discussie opstarten over toekomstige verkoopbaarheid irt het verwerken van bijzondere eigen wensen. Ik wil je simpelweg laten overwegen er een professional bij te betrekken.
[ Voor 102% gewijzigd door Deleon78 op 26-07-2021 16:39 ]
Ik vind juist de plattegronden van de catalogusbouwers juist vaak dat er door de u vorm veel ruimte wordt verloren. Het smalle deel van de U is eigenlijk nooit echt praktisch. Vaak te smal om echt een ruimte van te maken waardoor het een verkeersruimte wordt van woonkamer naar keuken.SjakieZulu schreef op zondag 14 juni 2020 @ 10:48:
@Aurum:
Toen ik naar je plattegrond keek, dacht ik "wat rommelig" (sorry).
Als je in zee gaat met een architect, ga er dan open in. Denk na over hoe je wil leven/wonen, nu en over 10 jaar.
En natuurlijk moet je echt een klik hebben met die persoon; vraag naar zijn portfolio.
Door slimme / efficiënte indelingen, het beperken van verkeersgerelateerde m2, kom je uiteindelijk op een plattegrond uit, die je zelf NOOIT had kunnen bedenken.
Als je er geen geld aan wil uitgeven, kun je beter een plattegrond kopiëren van een catalogusbouwe (Selekthuis, Groothuisbouw, etc.). Veelal standaard plattegronden die hun waarde hebben bewezen.
[ Voor 99% gewijzigd door Deleon78 op 26-07-2021 16:39 ]
Dat zie ik anders. Wij hebben ook een U maar het smalle deel is nog steeds 3,79m.SquareOne schreef op zondag 14 juni 2020 @ 11:59:
[...]
Ik vind juist de plattegronden van de catalogusbouwers juist vaak dat er door de u vorm veel ruimte wordt verloren. Het smalle deel van de U is eigenlijk nooit echt praktisch. Vaak te smal om echt een ruimte van te maken waardoor het een verkeersruimte wordt van woonkamer naar keuken.
Of zien jullie dit anders?
“Choose a job you love, and you will never have to work a day in your life.”
Zelfs de gang in ons rijtjeshuis lijkt nog breder dan deze. Daar zou ik inderdaad wat aan veranderen.Deleon78 schreef op zaterdag 13 juni 2020 @ 23:11:
[...]
Enige wat ik nog wil toevoegen is dat je nu eigenlijk geen hal hebt, maar alleen een gang. Niet dat dat erg is, maar je komt nu binnen tegen een muur. Deur openen voor gasten en ze binnenlaten kan ook interessant worden.
Je ziet hier best veel mensen met grote hallen, maar het is zeker geen eis voor iedereen.
En dat hoeft dan niet per se een dure architect te zijn die een gigantisch kunstzinnig ontwerp maakt. Het kan ook een bouwkundig tekenaar/ontwerper zijn die in elk geval vaker met dit bijltje gehakt heeft en weet hoe het zit met draairichtingen en afmetingen van ruimtes en dergelijke.iLLEVAiHCAM schreef op zondag 14 juni 2020 @ 08:31:
[...]
Beste RochelleDW, je verschillende plattegronden bekeken hebbend zou ik je willen adviseren te overwegen er een architect bij te betrekken. .
Ik zie dat niet anders. Wij hebben heel bewust de hal in het bijgebouw van de berging en bijkeuken. Dan krijg je een mooiere ruimte in het hoofdgebouw voor de woonkamer en leefkeuken. Wij zijn er blij mee, een ander wellicht helemaal niet.SquareOne schreef op zondag 14 juni 2020 @ 11:59:
[...]
Ik vind juist de plattegronden van de catalogusbouwers juist vaak dat er door de u vorm veel ruimte wordt verloren. Het smalle deel van de U is eigenlijk nooit echt praktisch. Vaak te smal om echt een ruimte van te maken waardoor het een verkeersruimte wordt van woonkamer naar keuken.
Of zien jullie dit anders?
Wij hebben 30 ontwerpen in Sketchup gemaakt, daar kwam 1 ontwerp uit waarop we de offerte hebben aangevraagd. Vervolgens zijn daar nog 7 iteraties geweest op formaat 1 waaruit we concludeerde dat het te klein was. Daarna heeft het nog 29 iteraties gehad op formaat twee waar we de aannemersovereenkomst op hebben getekend. Dit zijn alleen nog maar de 3D ontwerpen, er zijn ook nog een hoop 2D ontwerpen geweest. En dan hebben we het over een kubus van twee bouwlagenAurum schreef op zondag 14 juni 2020 @ 15:43:
Ten eerste wil ik iedereen bedanken voor de Feedback! het is prettig om verschillende meningen te horen en dat er ook met een kritische blik gekeken wordt.
We hebben de kavel nog niet gekocht en willen daarom nog geen architect in de arm nemen voordat de grond daadwerkelijk rond is en ervoor getekend is. Dit wil echter niet betekenen dat we niet in ons budget de kosten van een architect hebben opgenomenhier hebben we wel degelijk rekening mee gehouden we wouden voor nu gewoon ook even met een open blik kijken wat we graag willen en daar hoort uitproberen bij.
Vandaar ook dat ik het heb gepost en het fijn vind dat er ook mensen zelf hun plattegronden delen, bedankt daarvoor!
Voor alsnog gaan we de komende weken lekker verder met ideeen opdoen en tekenen en kijken waar onze voorkeur ligt.
Lux.Architectuur | Van Dromen tot Wonen | www.Lux-a.nl
[ Voor 31% gewijzigd door Ernemmer op 14-06-2020 16:14 ]
Dit topic is gesloten.
![]()
Apple iPhone 17 LG OLED evo G5 Google Pixel 10 Samsung Galaxy S25 Star Wars: Outlaws Nintendo Switch 2 Apple AirPods Pro (2e generatie) Sony PlayStation 5 Pro
Tweakers is onderdeel van
DPG Media B.V.
Alle rechten voorbehouden - Auteursrecht © 1998 - 2026
•
Hosting door TrueFullstaq