Dank voor de uitgebreide feedback!
- waar lopen de leidingsschachten of heb je deze niet nodig?
Riolering door een van de kasten naast de suitedeuren. Elektra/Water zal door de muur gaan.Voor de ventilatie (type D) weet ik nog niet hoe e.e.a. gaat lopen, maar als daarvoor een extra koof in de slaapkamer rechtsboven en/of de kleedkamer moet dan heb ik daar vrede mee.
- de deur van de wc is parallel geplaatst aan de entree/voordeur. Hou rekening met inkijk vanaf de straat.
Door het tuinontwerp wordt de inkijk deels beperkt. De kavel heeft aan de voorzijde uitzicht op weiland (dorpsgrens), komt geen huis tegenover.
- kan de trap naar de vliering niet een kwartslag worden gedraaid en meer in het middenlijn van de verdieping worden geplaatst. Op deze manier kan je de verkeersruimte nuttiger gebruiken door deze toe te voegen aan de inloopkast.
Ondanks dat de woning redeijk hoog is met een nok van 9m80, moet de trap naar de zolder in het midden uitkomen om te voorkomen dat je met je hoofd tegen het dak aankomt. Bedoel je met een kwartslag draaien, 90 graden rechtsom zodat je onder de trap door gaat om naar zolder te gaan ?
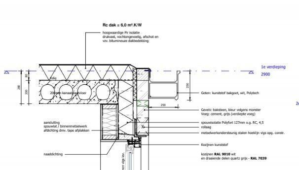
- je hebt een vrij groot raam bij je trapgat. Hou rekening met de aansluiting dak - carport/garage. Let o.a. op opspattend regenwater en vuil. Misschien een idee om later op dit dak een groendak aan te brengen. Zou een mooi gezicht zijn vanuit de hal.
De constructie van alle platte daken is voorbereid om een groendak. Met de veranda en carport erbij zijn het flink wat meters. Weet nog niet of overal meteen wat op komt, maar onder het raam beginnen is een goed idee.
- er staan geen maten bij, maar gevoelsmatig zijn de verkeersruimten op de eerste verdieping smal. Klopt dit of is gezichtsbedrog?
Alles is 1 meter breed. Zonder vide zou dit te claustrofobisch worden, maar met vide en veel licht hoop ik dat dit goed komt.
- je kan de wc op de eerste verdieping nog iets naar voren kunnen schuiven ten koste van de verkeersruimte. Je zou erachter dan een kast voor de slaapkamer kunnen laten maken en/of een nisje voor boven je bad.
Er zal een koof achter het toilet komen die ook dienst kan doen als leidingschacht. Met de huidige indeling wordt voorkomen dat een openstaande deur van het toilet een andere deur blokkeert.
- wat is het idee achter de grootte van de douche? Komt er een dubbele douche in? Daar is nu 1 grote regendouche gepland. Met 2m30 wordt het een flinke wandeling om eindelijk nat te worden
De gehele badkamer was initieel groter gepland (inclusief toilet in de badkamer) maar deze heb ik juist kleiner gemaakt ten gunste van de slaapkamer linksboven. De huidige indeling lijkt tot op heden het meest praktische.
- wat ga je met de vliering doen? Ga je deze ruimte (in de toekomst) gebruiken voor verblijfsruimten? Zo ja, misschien slim om dan gelijk ook wat dakramen erin te plaatsen. Boven de trap zelf is denk ik sowieso wel fijn i.v.m. verlichting/daglicht. Als je de ruimte voorlopig nog niet gaat gebruiken misschien is het dan fijn om de trap te kunnen afsluiten?
Nog geen concrete plannen voor de zolder. Deze wordt wel voorbereid voor een 2e douche (water aanvoer/afvoer) en vloerverwarming. De linker helft van het dak staat vrijwel 100% op het zuiden. Deze wordt volledig gevuld met zonnepanelen. De rechter helft, boven de trap, op het noorden, zou voorzien kunnen worden van een dakraam. Goede tip!. Een alternatief is dat wanneer de zolder een bestemming krijgt, er een dakkapel komt.

