Verwijderd schreef op donderdag 5 september 2019 @ 07:35:
[...]
Ik moet het nuanceren. O.b.v. 2 gesprekken met een architect en handmatige tekeningen op papier is dit vanuit de architect de eerste officiële tekening. Deze wordt nu bekeken door ons en vanuit hier bespreken we andere wensen/wijzigingen.
Ik moet de eerste architect nog tegen komen die als eerste "officiële tekening" brandgrenzen ptt aansluitingen, verdelers voor vloerverwarmiongen of nokdetails etc tekenend. (als ze al weten wat het is) ik durf met tegen zekerheid aangrenzende waarschijnlijkeid te zeggen dat als wat jij zegt klopt dit geen orgineel ontwerp is. en het gewoon uit de la komt.
Er staat onder de linker zijgevel "alternatief" er is geen architect die 2 ideeen geheel uittekend tot dit nivo, hij zal eigenlijk altijd het beste idee het verst uitwerken en het altnatief schetsen of op een andere manier overbrengen. dit lijkt verdacht veel op een kopers optie. waar juist de goedkoopste versie de standaard is en het betere idee het alternatief. Zelfs het verschil tussen Kalkzand en gibo is in de binnenmuren al aangegeven. dwz er is al een bouwmethode en een contructiefplan, iets waar architecten zich (te)weinig mee bezig houden en al helemaal niet in deze fase.
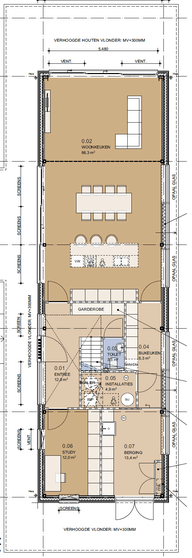
De tekeningen zijn perfect, nergens een deur die verkeerdom draaid, of niet in de muuropening past, allemaal zeer onwaarschijnlijk.
Je hebt het over wijzigingen, ik zie dat de plattegrond al getweaked is en dan niet naar woongenot maar algemene smaak, verkoopbaarheid, bouwbesluit (en efficient bouwen) er zitten 0,0 typische zelfbouw wensen in, geen kantoor of werkplek geen overkapping geen installatie ruimte, geen speciale entree of leef ruimte, geen speelhoek, geen sprekende gevel, geen grootse woonkeuken, geen hobby ruimte. etc ik zie helemaal 0,0 individuele keuzes terug, oftewel waar is de inbreng van je broer?
Zoek anders zelf even in dit topic naar "plattegrond", en kijk hoeveel plattegronden er in deze ontwerpfase zijn waar electra e.d. is getekend. in deze fase heeft een architect het daar echt niet over, het kost alleen maar tijd en omdat ruimtes in deze fase nog veranderen moet je dat werk nog 3 keer gaan doen ook.
Dus mocht het zijn dat wat je zegt waar is, heeft het er alle schijn van dat de "architect" jullie aan het belazeren is.

Dit ontwerp is echt op zijn best een (instap) catalogus woning, maar het riekt aan alle kanten naar een projectbouw woning. en opzich kan je daar ook prima in wonen, maar wanneer je voor een indivudueel ontwerp betaald wil je dat misschien ook wel hebben