Lucht/lucht warmtepomp om mee te verwarmen en te koelen Vorige deel Overzicht Laatste deel

Dit topic is onderdeel van een reeks. Ga naar het meest recente topic in deze reeks.

Pagina: 1 ... 4 ... 319 Laatste
Acties:
  • 2.359.658 views

Acties:
  • 0 Henk 'm!

  • Scooper
  • Registratie: Juni 2001
  • Nu online
mb1 schreef op dinsdag 12 januari 2021 @ 20:48:
[...]


Ik heb nu alvast medelijden met je buren.
De tussenmuur is een ankerloze spouwmuur om contact geluid te voorkomen over en weer
Als jij daar nu leidingen in gaat leggen gaat dat naar de klote!
Dat is dus absoluut hetgeen ik wil voorkomen. Ik wil me vrij voelen in huis en de buren niet lastig vallen met onze geluiden. Met harde voorwerpen kan ik me voorstellen dat het 1-op-1 wordt doorgegeven. Maar met geïsoleerde leidingen zal dat toch wel meevallen? Misschien kan ik na het trekken van de leiding met de buren testen of het geen geluidsproblemen veroorzaakt.

SRK35ZS-W


Acties:
  • 0 Henk 'm!

  • mwk
  • Registratie: April 2015
  • Laatst online: 16-08 11:24

mwk

Scooper schreef op dinsdag 12 januari 2021 @ 20:58:
[...]


Dat is dus absoluut hetgeen ik wil voorkomen. Ik wil me vrij voelen in huis en de buren niet lastig vallen met onze geluiden. Met harde voorwerpen kan ik me voorstellen dat het 1-op-1 wordt doorgegeven. Maar met geïsoleerde leidingen zal dat toch wel meevallen? Misschien kan ik na het trekken van de leiding met de buren testen of het geen geluidsproblemen veroorzaakt.
Vraag is natuurlijk hoeveel gedoe je wilt hebben voor ongeveer 2 meter goot op je eigen muur. Dat het in de woonkamer niet zeer fraai is kan me ik goed indenken.
Volgens mij is het niet de bedoeling om in de spouw te rommelen. Dan heb je grofweg tweeopties. Langs het plafond naar een hoek met een koof. Daar kan je dan eventueel mooie sfeerlampjes in maken die de wand verlichten.

Andere optie is om geen plafondunit te nemen maar een vloerunit. Voor wat betreft verwarmen is dat niet slechter dan een wandunit hoog aan de muur (zelfs beter). Hoe die het voor koelen doen weet ik niet. Maar je kan dan vanuit de unit omlaag de kruipruimte in.

https://www.daikin.nl/con...ct%20Catalogues_Dutch.pdf

Maarten


Acties:
  • 0 Henk 'm!

  • Speedfightserv
  • Registratie: September 2004
  • Laatst online: 28-10 16:12
Scooper schreef op dinsdag 12 januari 2021 @ 20:58:
[...]


Dat is dus absoluut hetgeen ik wil voorkomen. Ik wil me vrij voelen in huis en de buren niet lastig vallen met onze geluiden. Met harde voorwerpen kan ik me voorstellen dat het 1-op-1 wordt doorgegeven. Maar met geïsoleerde leidingen zal dat toch wel meevallen? Misschien kan ik na het trekken van de leiding met de buren testen of het geen geluidsproblemen veroorzaakt.
Er zit inderdaad isolatie tussen maar die leidingen worden vast gemaakt aan een condensor die een compressor heeft, die trilt altijd en dat geeft hij altijd door aan de leidingen. Ook loopt er een vloeistof door heen die in sommige gevallen (tijdelijk) hoorbaar is.

Daarna hangt de andere kant de verdamper die weer een ventilator heeft.

Nu wil ik niet zeggen dat je met alle airco's trillingen hoor of vloeistof geluiden maar ze kunnen altijd even aanwezig zijn, omdat jij je airco aan heb kunnen die kleine geluiden wegvallen. Bij je buren kan dat anders klinken.

Zelf zou ik dit nooit zo doen, te groot risico.

30 x Trina 390wp Op SE en Solis. | MHI 3,5kw


Acties:
  • +1 Henk 'm!

  • ik222
  • Registratie: Maart 2007
  • Niet online
FD2 schreef op dinsdag 12 januari 2021 @ 19:41:
[...]


Probleem is wel dat juist bij het naar horizontaal afbuigen van de luchtstroom de Stylish meer herrie gaat maken. In een slaapkamer niet handig.
Als je in de buurt van de deur recht naar beneden kan blazen zit je ver van het 'hoofdeinde bed' af, en dan tijdig aanzetten, op de nachtstand.
Net even geprobeerd maar ik hoor geen verschil tussen recht naar beneden uitblazen of volledig horizontaal? Ik kan ook niet bedenken hoe dat verschil zou kunnen maken?

Acties:
  • 0 Henk 'm!

  • Glashelder
  • Registratie: September 2002
  • Niet online

Glashelder

Anti Android

Topicstarter
Ik zou eerst eens nagaan of je wel iets met die ruimte mag doen.. :)

PV 4915wp op oost, 2680 wp op west, 1900 wp op zuid. pvoutput - AUX 8 kW bi bloc


Acties:
  • 0 Henk 'm!

  • Tsurany
  • Registratie: Juni 2006
  • Niet online

Tsurany

⭐⭐⭐⭐⭐

jpvk007 schreef op dinsdag 12 januari 2021 @ 20:29:
[...]

[Afbeelding]
Deze onlangs besteld bij een kachelmaterialen zaak uit midden van het land. Ik kan er niets nadeligs over vertellen.
Heb je een linkje? Ziet er mooi uit en kan ik hier wel gebruiken.

SMA SB5.0 + 16x Jinko 310wp OWO + 10x Jinko 310wp WNW |--|--| Daikin 4MXM68N + 1x FTXA50AW + 3x FTXM20N


Acties:
  • +2 Henk 'm!

  • Notna
  • Registratie: November 2002
  • Nu online

Notna

Moderator General Chat / Wonen & Mobiliteit

Where are you?®

Topicstarter
Tsurany schreef op dinsdag 12 januari 2021 @ 23:17:
[...]

Heb je een linkje? Ziet er mooi uit en kan ik hier wel gebruiken.
Gokje met de details die gegeven waren:

https://www.kachelmateria...-covers/airco-covers.html

Xbox Live ID:Notna8310


Acties:
  • 0 Henk 'm!

  • Tsurany
  • Registratie: Juni 2006
  • Niet online

Tsurany

⭐⭐⭐⭐⭐

Thnx, wel enorm duur voor wat in feite drie aluminium panelen zijn :'(

SMA SB5.0 + 16x Jinko 310wp OWO + 10x Jinko 310wp WNW |--|--| Daikin 4MXM68N + 1x FTXA50AW + 3x FTXM20N


Acties:
  • +1 Henk 'm!

  • Notna
  • Registratie: November 2002
  • Nu online

Notna

Moderator General Chat / Wonen & Mobiliteit

Where are you?®

Topicstarter
Tsurany schreef op dinsdag 12 januari 2021 @ 23:25:
[...]

Thnx, wel enorm duur voor wat in feite drie aluminium panelen zijn :'(
Vandaar dat ik zelf weer wat ga maken in het voorjaar als de houtzaken weer open zijn (hoop ik). Netjes in de kleur van het houtwerk van het huis schilderen en dat gaat jaren mee. Voor een fractie van de prijs overigens.

Xbox Live ID:Notna8310


Acties:
  • 0 Henk 'm!

  • Menno1234
  • Registratie: Januari 2002
  • Laatst online: 08-10 17:18
Tsurany schreef op dinsdag 12 januari 2021 @ 23:25:
[...]

Thnx, wel enorm duur voor wat in feite drie aluminium panelen zijn :'(
In de webshop van de Duitse leverancier ben je aanzienlijk goedkoper uit...zie paar posts terug.

Alles van Apple


Acties:
  • 0 Henk 'm!

  • Kire88
  • Registratie: Februari 2018
  • Laatst online: 26-10 17:19
Ik kom weer terug op een probleem met regelgedrag wat ik al eerder heb beschreven. Het gaat hier om gedrag waarbij de unit voor een periode van ongeveer een uur op een hele hoge compressorfrequentie loopt, terwijl de binnenunit niks doet. In deze periode wordt dus ook niet verwarmd.

Eind november heeft @mr_evil08 mij de tip gegeven om de bespaarspand aan te zetten. Dit toen gedaan en vanaf dat moment dit gedrag niet meer gezien. Nu is het echter vanaf gisteren rond het middag uur weer raak.

Sinds een aantal dagen heb ik Home Assistant werkend, en ik kan nu de binnen en buitentemperatuur van de unit zien. Op onderstaande grafiek is te zien hoe de binnentemperatuur in blokken van ongeveer een uur zakt naar de 20 graden.

Afbeeldingslocatie: https://tweakers.net/i/qPOWtNW0xhgpcTEo1abl5Be5O0E=/full-fit-in/4000x4000/filters:no_upscale():fill(white):strip_exif()/f/image/b8isUmsp0aBOZV0Rstm6Kj3V.png?f=user_large

Mijn indruk is dat het gedrag beter wordt als het weer iets kouder wordt, maar helemaal zeker ben ik niet. Daarnaast redt de unit het in de periodes dat hij verwarmt het prima.

Ik blijf het maar vreemd vinden. Er zijn in december genoeg dagen geweest dat het rond het vriespunt was en toen kwam dit gedrag niet voor.

Het is dat ik de airco voor bijverwaming gebruik en dus de vloer ook een buffer is zodat het niet onaangenaam wordt. Maar ik blijf dit gedrag bizar vinden.

Nog mensen die dit gedrag herkennen en nog suggesties hebben?

3.05 kWp Zuid - https://pvoutput.org/list.jsp?userid=80995 - Daikin Comfora FTXP 3.5 kW


Acties:
  • 0 Henk 'm!

  • Idefix70
  • Registratie: Oktober 2009
  • Laatst online: 07:25
ik222 schreef op dinsdag 12 januari 2021 @ 22:07:
[...]

Net even geprobeerd maar ik hoor geen verschil tussen recht naar beneden uitblazen of volledig horizontaal? Ik kan ook niet bedenken hoe dat verschil zou kunnen maken?
En ook hier getest en geen verschil. Daarnaast maakt de nachtstand niet uit wat de geluidsproductie is van de binnenunits.

Acties:
  • 0 Henk 'm!

  • Sarge78
  • Registratie: Februari 2015
  • Laatst online: 28-10 14:51
Goedemorgen,

Vraagje voor de mensen met een 4MXM68N

Wat is de gemiddelde comp freq die jullie hebben als jullie even max aan het verwarmen zijn met meerdere units?

23x 405WP + Enphase IQ7+ SW 45graden - Alfen Eve Single Pro 22KW - 3MXM68N + FTXA25AW + FTX35AW + FTXA50AW - Remeha Avanta 28C, vloer = bijverwarming en radiatoren + Brink Excellent 300 WTW PVOutput


Acties:
  • 0 Henk 'm!

  • Frenkie567917
  • Registratie: September 2002
  • Laatst online: 14:11
We hebben een voorkeur voor de plaats van de binnen-/buitenunit, maar dan loopt de kabelgoot buiten over een niet-rechte (niet 90 graden ) hoek in de gevel. De installateur gaf aan dat dit minder netjes wordt, omdat hij dan de kabelgoten moet zagen en afkitten ipv standaard stukken te gebruiken.

Kan iemand aangeven of dit idd "lelijk" wordt of dat hier andere oplossingen voor zijn?

Acties:
  • 0 Henk 'm!

  • Menno1234
  • Registratie: Januari 2002
  • Laatst online: 08-10 17:18
Mag ik aan jullie een installatie voorleggen zoals de leverancier heeft geoffreerd?

Nieuwbouw woning (2016) goed geïsoleerd met vloerverwarming. Zolder is minder goed geïsoleerd en heeft geen vloerverwarming. Zolder bestaat uit twee kamers, waarvan er dus maar 1 airco krijgt.
Installatie 1 en 2 moeten gescheiden blijven (vanwege locatie)

Installatie 1 (achterzijde woning):
• Buitenunit: MXM52M

• Woonkamer: FTXA 42 AW Stylish (165m3)
• Slaapkmr 1(1e verd): FTXM 20 R Perfera (43 m3)
• Zolderkamer FTXM 25 AW Stylish (32 m3)

Installatie 2 (voorzijde woning):
• Buitenunit: RXMR20

• Slaapkamer 2 (1e): FTXA 20 AW Stylish (38m3)

Wat zijn jullie gedachten hierover?

edit: het betreft Daikin, maar dat was op basis van de typenummers waarschijnlijk wel duidelijk

[ Voor 6% gewijzigd door Menno1234 op 13-01-2021 20:15 ]

Alles van Apple


Acties:
  • 0 Henk 'm!

  • Voske89
  • Registratie: Februari 2018
  • Laatst online: 23-01-2023
Menno1234 schreef op woensdag 13 januari 2021 @ 08:23:
[...]


In de webshop van de Duitse leverancier ben je aanzienlijk goedkoper uit...zie paar posts terug.
Welke webshop had u gevonden?

Acties:
  • 0 Henk 'm!

  • Menno1234
  • Registratie: Januari 2002
  • Laatst online: 08-10 17:18
Voske89 schreef op woensdag 13 januari 2021 @ 10:00:
[...]


Welke webshop had u gevonden?
Deze (klik)

Alles van Apple


Acties:
  • 0 Henk 'm!

  • RonJ
  • Registratie: December 2009
  • Laatst online: 15:47
Frenkie567917 schreef op woensdag 13 januari 2021 @ 09:45:
We hebben een voorkeur voor de plaats van de binnen-/buitenunit, maar dan loopt de kabelgoot buiten over een niet-rechte (niet 90 graden ) hoek in de gevel. De installateur gaf aan dat dit minder netjes wordt, omdat hij dan de kabelgoten moet zagen en afkitten ipv standaard stukken te gebruiken.

Kan iemand aangeven of dit idd "lelijk" wordt of dat hier andere oplossingen voor zijn?
Er zijn ook gewoon 45 graden bochten (2x extra buigen) of zelfs flexibele bochten, zoals deze: https://www.multi-import.nl/sf-77-500-i.html

All-electric.


Acties:
  • 0 Henk 'm!

  • coob
  • Registratie: April 2002
  • Laatst online: 26-10 22:07
Mooi zo'n cover voor je airco maar blokkeert dat niet voor een flink deel de luchtstroom van de buitenunit?
Er zit een grote fan in die ook behoorlijk blaast. Ik kan me voorstellen dat de unit minder efficiënt wordt door die cover?

Acties:
  • 0 Henk 'm!

  • Notna
  • Registratie: November 2002
  • Nu online

Notna

Moderator General Chat / Wonen & Mobiliteit

Where are you?®

Topicstarter
coob schreef op woensdag 13 januari 2021 @ 10:22:
[...]

Mooi zo'n cover voor je airco maar blokkeert dat niet voor een flink deel de luchtstroom van de buitenunit?
Er zit een grote fan in die ook behoorlijk blaast. Ik kan me voorstellen dat de unit minder efficiënt wordt door die cover?
Dat is al eens besproken en het antwoord is 'nee'. Belangrijkste is met name dat de achterkant goed vrij blijft voor de intake; de uitblaas komt wel goed. Daarnaast moet je oppassen dat er geen lucht van de voorkant circuleert met de intake aan de achterkant.

Het is ook niet alsof het een hele luchtdichte box is :)

Xbox Live ID:Notna8310


Acties:
  • +2 Henk 'm!

  • MarkV6
  • Registratie: Augustus 2009
  • Laatst online: 28-10 19:48
Waarschuwing voor trillingveren!

Een half jaar geleden heb ik mijn buitenunit op trilveren gezet. Werkt echt uitstekend. De unit kan best behoorlijk bewegen nu.
Alleen dit weekend geen verwarming meer. Ook geen foutmelding van de Daikin. Blijkt alle R32 weg te zijn. De leidingen waren niet gesoldeerd maar met een hydrolishe pers aan elkaar geknepen. Door het bewegen door de wind denk ik is het los gegaan.
Dus nu de unit aan de bovenkant met strips aan de muur gemaakt zodat de uitslag beperkt is.
Vrees dat de mogelijke energie besparing voor de komende 5 jaar verloren is gegaan.

RZAG71NY1 FBA71A /SRK ZS-S 2.5kW / Varme vt180 / S197 4.0L /Born 170kW / VanMoof S3


Acties:
  • 0 Henk 'm!

  • wizzopa
  • Registratie: September 2003
  • Nu online
MarkV6 schreef op woensdag 13 januari 2021 @ 11:37:
Waarschuwing voor trillingveren!

Een half jaar geleden heb ik mijn buitenunit op trilveren gezet. Werkt echt uitstekend. De unit kan best behoorlijk bewegen nu.
Alleen dit weekend geen verwarming meer. Ook geen foutmelding van de Daikin. Blijkt alle R32 weg te zijn. De leidingen waren niet gesoldeerd maar met een hydrolishe pers aan elkaar geknepen. Door het bewegen door de wind denk ik is het los gegaan.
Dus nu de unit aan de bovenkant met strips aan de muur gemaakt zodat de uitslag beperkt is.
Vrees dat de mogelijke energie besparing voor de komende 5 jaar verloren is gegaan.
Weet je zeker dat het de persverbinding is, vind je daar oliesporen.

PV- 8530Wp..... SWW- Atlantic 200….. WP- Daikin 3,5kW….. Foto’s.....


Acties:
  • 0 Henk 'm!

  • rsbroer
  • Registratie: Augustus 2011
  • Laatst online: 13-10 09:03
Notna schreef op dinsdag 12 januari 2021 @ 23:28:
[...]


Vandaar dat ik zelf weer wat ga maken in het voorjaar als de houtzaken weer open zijn (hoop ik). Netjes in de kleur van het houtwerk van het huis schilderen en dat gaat jaren mee. Voor een fractie van de prijs overigens.
Afbeeldingslocatie: https://tweakers.net/i/n6CUDOv-stoipEsU9TsLFxO3EOQ=/800x/filters:strip_icc():strip_exif()/f/image/1NpeZ31cgeplCNnkn5aJyy7X.jpg?f=fotoalbum_large

Mijn idee ook (op het schilderen na dan).
Liet me inspireren door wat commercieel beschikbaar was en DIY-de dit.

8x 370 Wp Zuid, Growatt 2500-S, 2x 370Wp Oost-West, APS 600Y, 2x Marstek Venus 5.12 kW, CT-003, HW P1, Daikin PERFERA FTXM35N, Mitsubishi Heavy SRK 35ZS-W, Jaga DIY DBE 12x 14cm, 6x 14cm, Tado V3, bridge, thermostaat, 6x radiatorknop


Acties:
  • 0 Henk 'm!

  • Glashelder
  • Registratie: September 2002
  • Niet online

Glashelder

Anti Android

Topicstarter
wizzopa schreef op woensdag 13 januari 2021 @ 11:42:
[...]


Weet je zeker dat het de persverbinding is, vind je daar oliesporen.
Goed punt. Maar ik kan me wel zo voorstellen dat met die anti trilvreren de trillingen veel meer worden doorgegeven aan zo’n perskoppeling. Denk dat de uitslag niet eens het probleem is.

PV 4915wp op oost, 2680 wp op west, 1900 wp op zuid. pvoutput - AUX 8 kW bi bloc


Acties:
  • 0 Henk 'm!

  • revolution-nl
  • Registratie: December 2011
  • Laatst online: 15:58

revolution-nl

B≡ TH≡ CHANG≡

MarkV6 schreef op woensdag 13 januari 2021 @ 11:37:
Waarschuwing voor trillingveren!

Een half jaar geleden heb ik mijn buitenunit op trilveren gezet. Werkt echt uitstekend. De unit kan best behoorlijk bewegen nu.
Alleen dit weekend geen verwarming meer. Ook geen foutmelding van de Daikin. Blijkt alle R32 weg te zijn. De leidingen waren niet gesoldeerd maar met een hydrolishe pers aan elkaar geknepen. Door het bewegen door de wind denk ik is het los gegaan.
Dus nu de unit aan de bovenkant met strips aan de muur gemaakt zodat de uitslag beperkt is.
Vrees dat de mogelijke energie besparing voor de komende 5 jaar verloren is gegaan.
Wat balen zeg.
Ik had al meer van dit soort verhalen gelezen, dit was voor mij een reden om er vanaf te zien.

Vroemt met EV | 10.000WP | 14kWh Thuisaccu | 2x MHI SRK/SRC 35 ZS | LG-WH27s Boiler


Acties:
  • +1 Henk 'm!

  • rupsen
  • Registratie: Juli 2008
  • Laatst online: 12-10 15:49
MarkV6 schreef op woensdag 13 januari 2021 @ 11:37:
Waarschuwing voor trillingveren!

Een half jaar geleden heb ik mijn buitenunit op trilveren gezet. Werkt echt uitstekend. De unit kan best behoorlijk bewegen nu.
Alleen dit weekend geen verwarming meer. Ook geen foutmelding van de Daikin. Blijkt alle R32 weg te zijn. De leidingen waren niet gesoldeerd maar met een hydrolishe pers aan elkaar geknepen. Door het bewegen door de wind denk ik is het los gegaan.
Dus nu de unit aan de bovenkant met strips aan de muur gemaakt zodat de uitslag beperkt is.
Vrees dat de mogelijke energie besparing voor de komende 5 jaar verloren is gegaan.
Lijkt me sterk dat het de persverbinding is, of hij moet al niet goed geweest zijn.
Kijk maar hoeveel bar die pers verbindingen kunnen hebben.


Acties:
  • 0 Henk 'm!

  • Speedfightserv
  • Registratie: September 2004
  • Laatst online: 28-10 16:12
MarkV6 schreef op woensdag 13 januari 2021 @ 11:37:
Waarschuwing voor trillingveren!

Een half jaar geleden heb ik mijn buitenunit op trilveren gezet. Werkt echt uitstekend. De unit kan best behoorlijk bewegen nu.
Alleen dit weekend geen verwarming meer. Ook geen foutmelding van de Daikin. Blijkt alle R32 weg te zijn. De leidingen waren niet gesoldeerd maar met een hydrolishe pers aan elkaar geknepen. Door het bewegen door de wind denk ik is het los gegaan.
Dus nu de unit aan de bovenkant met strips aan de muur gemaakt zodat de uitslag beperkt is.
Vrees dat de mogelijke energie besparing voor de komende 5 jaar verloren is gegaan.
rupsen schreef op woensdag 13 januari 2021 @ 12:59:
[...]

Lijkt me sterk dat het de persverbinding is, of hij moet al niet goed geweest zijn.
Kijk maar hoeveel bar die pers verbindingen kunnen hebben.

[YouTube: MAXIPRO]
Die dingen zijn idd mega sterk, denk ook verkeerd geperst of hij moet hebben staan dansen en metaalmoeheid moet zijn toegeslagen.

[ Voor 43% gewijzigd door Speedfightserv op 13-01-2021 13:09 ]

30 x Trina 390wp Op SE en Solis. | MHI 3,5kw


Acties:
  • 0 Henk 'm!

  • mdecramer
  • Registratie: Mei 2016
  • Laatst online: 15-06-2024
Hallo allen!

Wij zijn van plan om onze 5 jaar oude halfopen woning met plat dak te voorzien van verfrissende airco (wellicht met Compacte wandunits MSZ-AP van Mitsubishi); Wij hebben ondertussen een offerte ontvangen en hebben hier en daar nog wel wat denkwerk voor we terugkoppelen; Daarom hoop ik om hier mss nog het een en het ander op te steken :-)

- In onze kamers boven worden 3 toestellen van 2.5KW (MSZ-AP25VGK) voorgesteld (max 90m³), terwijl deze elk +- 30m³ zijn, kan dit problemen geven? Ik las hier al dat men niet teveel mag 'overpoweren'...
-Bij voorkeur hebben we wel zo stil mogelijke toestellen, op elke toestel staat bvb 19-36db of 21-35db, zit hier een merkbaar verschil tussen? Kamer2 (home-cinema) heeft een vaste beamer die bij gebruik in hartje zomer de kamer in 1-2-3 onleefbaar maakt=> zal de airco hier snel de hoogste db's opzoeken? Of is dit bij een toestel van 2.5KW dan veel minder snel het geval tov 1.5 of 2KW?
-In kamer 1 zou er een condenspomp moeten gemonteerd worden bij de airco, deze zou via een leiding door kamer2 onze technische ruimte ingaan; Zijn er methodes om zoiets te vermijden? Ik lees dat met deze pompjes altijd de eerste problemen worden vastgesteld...
- In onze L-vormige leefruimte (living+keuken) wordt een 3.5KW toestel (MSZ-AP35VG) voorgesteld met vertikale flow (zoals de units boven), is een toestel met horizontale flow in dergelijke ruimte hier beter of maakt dit helemaal niets uit? (bvb MSZ-LN35VG)
- Wanneer koelen dus de hoofdzaak is, is het dan aan te raden alle units (3 boven,1 beneden) op 1 grote buitenunit aan te sluiten? Ik las hier dat dit soms wordt opgesplitst...
Onze aangeraden buitenunit voor dit alles is een MXZ - 4F83VF, (max 6 binnen-units), zou ik hier niet met een MXZ-4F72VF (4 binnen-units) weg kunnen?
Afbeeldingslocatie: https://tweakers.net/i/l8GyyaGf3DLrlLiCW23aId8OYJs=/232x232/filters:strip_icc():strip_exif()/f/image/4xQT1bqQxRcL7clg5JZI3wZx.jpg?f=fotoalbum_tileAfbeeldingslocatie: https://tweakers.net/i/b6lYn6WFO13-hEwqYGri3e8as_c=/232x232/filters:strip_icc():strip_exif()/f/image/TtdXRjafqpWmPeUooAahUeRn.jpg?f=fotoalbum_tile

Bedankt alvast voor enige feedback!
Michael

Acties:
  • 0 Henk 'm!

  • Kire88
  • Registratie: Februari 2018
  • Laatst online: 26-10 17:19
Kire88 schreef op woensdag 13 januari 2021 @ 08:25:
Ik kom weer terug op een probleem met regelgedrag wat ik al eerder heb beschreven. Het gaat hier om gedrag waarbij de unit voor een periode van ongeveer een uur op een hele hoge compressorfrequentie loopt, terwijl de binnenunit niks doet. In deze periode wordt dus ook niet verwarmd.

Eind november heeft @mr_evil08 mij de tip gegeven om de bespaarspand aan te zetten. Dit toen gedaan en vanaf dat moment dit gedrag niet meer gezien. Nu is het echter vanaf gisteren rond het middag uur weer raak.

Sinds een aantal dagen heb ik Home Assistant werkend, en ik kan nu de binnen en buitentemperatuur van de unit zien. Op onderstaande grafiek is te zien hoe de binnentemperatuur in blokken van ongeveer een uur zakt naar de 20 graden.

[Afbeelding]

Mijn indruk is dat het gedrag beter wordt als het weer iets kouder wordt, maar helemaal zeker ben ik niet. Daarnaast redt de unit het in de periodes dat hij verwarmt het prima.

Ik blijf het maar vreemd vinden. Er zijn in december genoeg dagen geweest dat het rond het vriespunt was en toen kwam dit gedrag niet voor.

Het is dat ik de airco voor bijverwaming gebruik en dus de vloer ook een buffer is zodat het niet onaangenaam wordt. Maar ik blijf dit gedrag bizar vinden.

Nog mensen die dit gedrag herkennen en nog suggesties hebben?
Nog even een toevoeging. Hele dag weer dit gedrag vertoont:
Afbeeldingslocatie: https://tweakers.net/i/m6QaY4ZMoZbR3mE-cYKM1v4QfwM=/800x/filters:strip_icc():strip_exif()/f/image/9cSSIiVNUlNsu6K30jyGMgZD.jpg?f=fotoalbum_large

Heb rond 16:00 het setpunt verhoogt van 20 naar 21,daarna maakte hij een iets langere run. Ondertussen loopt hij nu weer met deze settings en lijkt er niet veel aan de hand:
Afbeeldingslocatie: https://tweakers.net/i/_qipWI5AtKYeL0s1stoy5WyEzY4=/800x/filters:strip_icc():strip_exif()/f/image/vXakYyHVMGFg3yfQlMLSgDJL.jpg?f=fotoalbum_large

Voor mijn gevoel is hij bezig om de boel op druk te krijgen oid in die tussenperiode, maar dat is maar een gok.

Misschien koelmiddelvulling na laten kijken?

3.05 kWp Zuid - https://pvoutput.org/list.jsp?userid=80995 - Daikin Comfora FTXP 3.5 kW


Acties:
  • +2 Henk 'm!

  • rimave
  • Registratie: Oktober 2001
  • Nu online
IT happend today.... De buitenunit is verplaatst naar de zijgevel. Ik heb gekozen voor de voor mij beste optie. Ik kan wel m’n poot stijf houden richting buurvrouw, haar steeds m’n huis uit schoppen als ze komt zeuren, etc etc. Maar daar heb ik allemaal geen zin in. Misschien had ze last, misschien niet. Dat laten we lekker in het midden. Zelf heb ik me nooit gestoord aan de buitenunit.

Ik kan nu in ieder geval mijn airco weer gebruiken. _/-\o_
De reactie van de buurvrouw vondt ik nog wel even het vermelden waard. Ze zei alleen ‘o, je verplaatst de airco’. Ik ben dan niet assertief genoeg om te zeggen ‘ja, dat wilde je toch?!’ Daarintegen zei ik ‘ja, zo heb je er geen last meer van’. Besluit zij weer met ‘dat hoop ik dan maar’. Nee, ze zal ook dankjewel zeggen dacht ik later nog... Het blijft een raar mens. Ik schenk er maar niet teveel aandacht aan.

Ik had nog het plan een briefje in de bus te doen om voor te stellen dat ze ook maar een bedrag naar wens naar me overmaakt voor de kosten van het verplaatsen. Zij heeft er immers ook profijt van. Hetzelfde doet zij ook als er iets aan de schutting moet gebeuren. Maar ja... schiet ik daar wat mee op. Met zo’n briefje?

The only thing better than a cow, is a human. Unless you need milk. Then you really need a cow.


Acties:
  • 0 Henk 'm!

  • mr_evil08
  • Registratie: December 2008
  • Laatst online: 14:29
@rimave Vraag volgendekeer even of je zelf mag komen luisteren bij haar en zet de warmtepomp even op max verwarmen.

Zit ook stuk jaloezie tussen wat het versterkt, men ziet het nog steeds als luxeproduct.

WP | SP, Daikin FTXM35M/RXM35M


Acties:
  • 0 Henk 'm!

  • revolution-nl
  • Registratie: December 2011
  • Laatst online: 15:58

revolution-nl

B≡ TH≡ CHANG≡

rimave schreef op woensdag 13 januari 2021 @ 20:23:
IT happend today.... De buitenunit is verplaatst naar de zijgevel. Ik heb gekozen voor de voor mij beste optie. Ik kan wel m’n poot stijf houden richting buurvrouw, haar steeds m’n huis uit schoppen als ze komt zeuren, etc etc. Maar daar heb ik allemaal geen zin in. Misschien had ze last, misschien niet. Dat laten we lekker in het midden. Zelf heb ik me nooit gestoord aan de buitenunit.

Ik kan nu in ieder geval mijn airco weer gebruiken. _/-\o_
De reactie van de buurvrouw vondt ik nog wel even het vermelden waard. Ze zei alleen ‘o, je verplaatst de airco’. Ik ben dan niet assertief genoeg om te zeggen ‘ja, dat wilde je toch?!’ Daarintegen zei ik ‘ja, zo heb je er geen last meer van’. Besluit zij weer met ‘dat hoop ik dan maar’. Nee, ze zal ook dankjewel zeggen dacht ik later nog... Het blijft een raar mens. Ik schenk er maar niet teveel aandacht aan.

Ik had nog het plan een briefje in de bus te doen om voor te stellen dat ze ook maar een bedrag naar wens naar me overmaakt voor de kosten van het verplaatsen. Zij heeft er immers ook profijt van. Hetzelfde doet zij ook als er iets aan de schutting moet gebeuren. Maar ja... schiet ik daar wat mee op. Met zo’n briefje?
Netjes opgelost _/-\o_, de kosten zullen de besparing van het gezeur en de negatieve energie het ongetwijfeld waard zijn.

Waarschijnlijk heeft het mens geen idee van de kosten, ik zou er wel een briefje aan wagen met een vrijblijvende toon en een grote knipoog.

Vroemt met EV | 10.000WP | 14kWh Thuisaccu | 2x MHI SRK/SRC 35 ZS | LG-WH27s Boiler


Acties:
  • 0 Henk 'm!

  • mr_evil08
  • Registratie: December 2008
  • Laatst online: 14:29
Kire88 schreef op woensdag 13 januari 2021 @ 20:15:
[...]


Nog even een toevoeging. Hele dag weer dit gedrag vertoont:
[Afbeelding]

Heb rond 16:00 het setpunt verhoogt van 20 naar 21,daarna maakte hij een iets langere run. Ondertussen loopt hij nu weer met deze settings en lijkt er niet veel aan de hand:
[Afbeelding]

Voor mijn gevoel is hij bezig om de boel op druk te krijgen oid in die tussenperiode, maar dat is maar een gok.

Misschien koelmiddelvulling na laten kijken?
Deze 3,5 unit kan tot cmpfreq=12 maar meestal niet lager dan 16.
Stroombesparingsstand kun je op 3 opties zetten, optie laag verbruik al geprobeerd?

Binnentemperatuur loggen heeft geen zin, die van mij is net zo inaccuraat als de pest, als ik log is dat alleen buitentemp en cmpfreq, overgens setpoint handhaven gaat hier wel prima, alleen bij opeens zon kan de temp 1 tot 1,5c oplopen.

Indien je een multisplit hebt moet dat op alle binnenunits ingesteld zijn anders werkt het schijnbaar niet helemaal goed.

[ Voor 3% gewijzigd door mr_evil08 op 13-01-2021 21:43 ]

WP | SP, Daikin FTXM35M/RXM35M


Acties:
  • 0 Henk 'm!

  • Kire88
  • Registratie: Februari 2018
  • Laatst online: 26-10 17:19
mr_evil08 schreef op woensdag 13 januari 2021 @ 21:42:
[...]


Deze 3,5 unit kan tot cmpfreq=12 maar meestal niet lager dan 16.
Stroombesparingsstand kun je op 3 opties zetten, optie laag verbruik al geprobeerd?

Binnentemperatuur loggen heeft geen zin, die van mij is net zo inaccuraat als de pest, als ik log is dat alleen buitentemp en cmpfreq, overgens setpoint handhaven gaat hier wel prima, alleen bij opeens zon kan de temp 1 tot 1,5c oplopen.

Indien je een multisplit hebt moet dat op alle binnenunits ingesteld zijn anders werkt het schijnbaar niet helemaal goed.
De stroombesparingsstand staat eigenlijk al 1,5 maand op laag.

Ik weet dat de binnentemperatuur niet accuraat is. Normaal wijkt het bij mij ongeveer 2 graden af van de daadwerkelijke kamertemperatuur.
De grafieken die ik plaatste geven echter wel het gedrag aan. Namelijk dat de buitenunit een uur lang op op hoge cmp freq werkt terwijl de binnenunit niks doet, waardoor dus de binnentemperatuur terug loopt. En dat gedrag zou ik graag begrijpen.

3.05 kWp Zuid - https://pvoutput.org/list.jsp?userid=80995 - Daikin Comfora FTXP 3.5 kW


Acties:
  • 0 Henk 'm!

  • realphoenikx
  • Registratie: Januari 2011
  • Laatst online: 12:56
Ik heb een offerte gekregen voor:

- Panasonic Buiten Unit CU-2Z41TBE
- Panasonic Binnen Unit CS-TZ25WKE voor zolderkamer 65 m3
- Panasonic Binnen Unit CS-TZ35WKE voor woonkamer 75 m3

Ik wil de airco's gebruiken voor koelen en verwarmen. De binnenunits 2,5 en 3,5 KW lijken me prima. Ik twijfel echter over de buitenunit, die lijkt me wat licht met 4,1 KW.

Ik kreeg ook een offerte voor:
- Mitsubishi Heavy buitenunit type SCM 45ZS-W
- Mitsubishi Heavy SRK 25ZS-W
- Mitsubishi Heavy SRK 35ZS-W

Deze lijkt misschien beter, maar is meer dan EUR 2.000,= duurder.

[ Voor 22% gewijzigd door realphoenikx op 13-01-2021 22:40 ]


Acties:
  • 0 Henk 'm!

  • Headshot_NL
  • Registratie: Oktober 2007
  • Laatst online: 15:38
Kire88 schreef op woensdag 13 januari 2021 @ 22:01:
[...]


De stroombesparingsstand staat eigenlijk al 1,5 maand op laag.

Ik weet dat de binnentemperatuur niet accuraat is. Normaal wijkt het bij mij ongeveer 2 graden af van de daadwerkelijke kamertemperatuur.
De grafieken die ik plaatste geven echter wel het gedrag aan. Namelijk dat de buitenunit een uur lang op op hoge cmp freq werkt terwijl de binnenunit niks doet, waardoor dus de binnentemperatuur terug loopt. En dat gedrag zou ik graag begrijpen.
Ik heb sterk het vermoeden dat je te weinig koudemiddel in het systeem hebt zitten zoals je zelf al voorstelde. Kan je toevallig makkelijk bij de koppelingen komen? En zo ja, voelen die misschien wat vettig aan?
Hoe oud is het systeem?

🚗 Hyundai Ioniq electric premium 28kWh | ☀️ 4350Wp oost, 1005Wp zuid, 2940Wp west | 🌡️ LG 3,5kW + 2,5kW warmtepomp | 🔋 Marstek Venus 5,12kWh v153 + HW P1


Acties:
  • 0 Henk 'm!

  • Kire88
  • Registratie: Februari 2018
  • Laatst online: 26-10 17:19
Headshot_NL schreef op woensdag 13 januari 2021 @ 22:46:
[...]


Ik heb sterk het vermoeden dat je te weinig koudemiddel in het systeem hebt zitten zoals je zelf al voorstelde. Kan je toevallig makkelijk bij de koppelingen komen? En zo ja, voelen die misschien wat vettig aan?
Hoe oud is het systeem?
Het systeem is juni vorig jaar geinstalleerd.
Heb eerder vanavond nog bij de koppelingen gekeken en was zeker niet vettig. Zal nog eens met daglicht kijken.

Inmiddels een run van 3.5 uur nu met een korte defrost iets na 22:00. De buitenemperatuur schommelt hier nog steeds rond 0 dus daar is weinig veranderd. Als er een probleem met koudemiddel zou zijn zou je dan niet verwachten dat de unit constant hetzelfde gedrag vertoont?

Enige wat ik vandaag veranderd heb is:
Rond 16:00 temperatuur van 20 naar 21
Rond 19:00 heb ik de fanstand op 2 gezet in plaats van auto.

3.05 kWp Zuid - https://pvoutput.org/list.jsp?userid=80995 - Daikin Comfora FTXP 3.5 kW


Acties:
  • +1 Henk 'm!

  • Armin
  • Registratie: April 2001
  • Laatst online: 19-10 19:13
DeV0uReR schreef op maandag 11 januari 2021 @ 13:45:
[...]


Ik zou in ieder geval aanraden om je buitenunit lager te plaatsen dan je binnenunit zodat condens zonder condenspomp afgevoerd kan worden, die dingen zijn niet zo betrouwbaar van wat mijn installateur mij wist te vertellen.
Waar je buiten unit zit is niet noodzakelijk relevant voor de condens. De condens ontstaat 's zomers bij de binnenunit, en moet via een slang afgevoerd worden.

Jij verwijst waarschijnlijk naar het feit dat men meestal de condensleiding zoveel mogelijk samen met de koelmiddel leiding laat lopen. Maar dat is natuurlijk geen wet - vandaar de zoveel mogelijk. Zolang je maar ergens naar buiten kunt of naar een afvoerputje

Acties:
  • +1 Henk 'm!

  • kabeltjekabel
  • Registratie: April 2018
  • Laatst online: 13-02-2021
rimave schreef op woensdag 13 januari 2021 @ 20:23:
De reactie van de buurvrouw vondt ik nog wel even het vermelden waard. Ze zei alleen ‘o, je verplaatst de airco’. Ik ben dan niet assertief genoeg om te zeggen ‘ja, dat wilde je toch?!’ Daarintegen zei ik ‘ja, zo heb je er geen last meer van’. Besluit zij weer met ‘dat hoop ik dan maar’. Nee, ze zal ook dankjewel zeggen dacht ik later nog... Het blijft een raar mens. Ik schenk er maar niet teveel aandacht aan.
Dus jij zegt niet wat je wilt zeggen en de buurvrouw zegt ook maar wat. Past goed bij elkaar dan toch :?

Acties:
  • 0 Henk 'm!

  • kabeltjekabel
  • Registratie: April 2018
  • Laatst online: 13-02-2021
rupsen schreef op woensdag 13 januari 2021 @ 12:59:
[...]

Lijkt me sterk dat het de persverbinding is, of hij moet al niet goed geweest zijn.
Kijk maar hoeveel bar die pers verbindingen kunnen hebben.

[YouTube: MAXIPRO]
Zo'n perskoppeling, op de buitenunit :? Hoe moet ik me dat voorstellen?

EDIT: Ah, met verloopje

[ Voor 14% gewijzigd door kabeltjekabel op 14-01-2021 05:53 ]


Acties:
  • 0 Henk 'm!

  • Headshot_NL
  • Registratie: Oktober 2007
  • Laatst online: 15:38
Kire88 schreef op woensdag 13 januari 2021 @ 23:39:
[...]


Het systeem is juni vorig jaar geinstalleerd.
Heb eerder vanavond nog bij de koppelingen gekeken en was zeker niet vettig. Zal nog eens met daglicht kijken.

Inmiddels een run van 3.5 uur nu met een korte defrost iets na 22:00. De buitenemperatuur schommelt hier nog steeds rond 0 dus daar is weinig veranderd. Als er een probleem met koudemiddel zou zijn zou je dan niet verwachten dat de unit constant hetzelfde gedrag vertoont?

Enige wat ik vandaag veranderd heb is:
Rond 16:00 temperatuur van 20 naar 21
Rond 19:00 heb ik de fanstand op 2 gezet in plaats van auto.
Het klinkt voor mij redelijk herkenbaar. Een systeem waar nog maar 200 gram van de 700 in aanwezig was. Het duurde steeds langer voordat hij begon met verwarmen terwijl de buitenunit druk bezig was. Eerst 5 minuten, toen 10 en later zelfs 20 minuten voordat hij binnen warm begon te blazen.
Als hij eenmaal begon ging het aardig goed, ook zonder een enorm hoog verbruik.
De lekkage was niet te zien met het blote oog maar de koppelingen voelde vettig door de olie die ontsnapt. Als je er bij kunt komen kun je even voelen of dat niet het geval is.

🚗 Hyundai Ioniq electric premium 28kWh | ☀️ 4350Wp oost, 1005Wp zuid, 2940Wp west | 🌡️ LG 3,5kW + 2,5kW warmtepomp | 🔋 Marstek Venus 5,12kWh v153 + HW P1


Acties:
  • 0 Henk 'm!

  • Kire88
  • Registratie: Februari 2018
  • Laatst online: 26-10 17:19
Headshot_NL schreef op donderdag 14 januari 2021 @ 07:28:
[...]


Het klinkt voor mij redelijk herkenbaar. Een systeem waar nog maar 200 gram van de 700 in aanwezig was. Het duurde steeds langer voordat hij begon met verwarmen terwijl de buitenunit druk bezig was. Eerst 5 minuten, toen 10 en later zelfs 20 minuten voordat hij binnen warm begon te blazen.
Als hij eenmaal begon ging het aardig goed, ook zonder een enorm hoog verbruik.
De lekkage was niet te zien met het blote oog maar de koppelingen voelde vettig door de olie die ontsnapt. Als je er bij kunt komen kun je even voelen of dat niet het geval is.
Ok bedankt. Ik zal het nog eens goed nakijken.
Tot nu toe geen storingsmeldingen gezien trouwens. Of gebeurd dat pas als er helemaal niks meer inzit?

3.05 kWp Zuid - https://pvoutput.org/list.jsp?userid=80995 - Daikin Comfora FTXP 3.5 kW


Acties:
  • 0 Henk 'm!

  • Headshot_NL
  • Registratie: Oktober 2007
  • Laatst online: 15:38
Kire88 schreef op donderdag 14 januari 2021 @ 07:38:
[...]


Ok bedankt. Ik zal het nog eens goed nakijken.
Tot nu toe geen storingsmeldingen gezien trouwens. Of gebeurd dat pas als er helemaal niks meer inzit?
Gebeurde hier ook niet. Zelfs de diagnose functie gaf aan dat er niks aan de hand was met het koudemiddel.

Anders als je nog garantie hebt op de installatie de installateur er even naar laten kijken.

[ Voor 11% gewijzigd door Headshot_NL op 14-01-2021 07:55 ]

🚗 Hyundai Ioniq electric premium 28kWh | ☀️ 4350Wp oost, 1005Wp zuid, 2940Wp west | 🌡️ LG 3,5kW + 2,5kW warmtepomp | 🔋 Marstek Venus 5,12kWh v153 + HW P1


Acties:
  • 0 Henk 'm!

  • Kire88
  • Registratie: Februari 2018
  • Laatst online: 26-10 17:19
@Headshot_NL Ja dat zal ik zeker doen. Bedankt voor de input in ieder geval, het helpt al om te weten wat het gedrag zou kunnen verklaren.

3.05 kWp Zuid - https://pvoutput.org/list.jsp?userid=80995 - Daikin Comfora FTXP 3.5 kW


Acties:
  • 0 Henk 'm!

  • revolution-nl
  • Registratie: December 2011
  • Laatst online: 15:58

revolution-nl

B≡ TH≡ CHANG≡

realphoenikx schreef op woensdag 13 januari 2021 @ 22:37:
Ik heb een offerte gekregen voor:

- Panasonic Buiten Unit CU-2Z41TBE
- Panasonic Binnen Unit CS-TZ25WKE voor zolderkamer 65 m3
- Panasonic Binnen Unit CS-TZ35WKE voor woonkamer 75 m3

Ik wil de airco's gebruiken voor koelen en verwarmen. De binnenunits 2,5 en 3,5 KW lijken me prima. Ik twijfel echter over de buitenunit, die lijkt me wat licht met 4,1 KW.

Ik kreeg ook een offerte voor:
- Mitsubishi Heavy buitenunit type SCM 45ZS-W
- Mitsubishi Heavy SRK 25ZS-W
- Mitsubishi Heavy SRK 35ZS-W

Deze lijkt misschien beter, maar is meer dan EUR 2.000,= duurder.
Je gaat hier het advies krijgen om voor twee single splits te gaan. Dit is efficienter, comfortabel en je hebt minder kans op ruisende leidingen of borrelende units. Waarschijnlijk is het nog goedkoper ook :P

Zeker met een een woonkamer van 75m3 is een laag minimaal vermogen wel erg fijn. Hoe goed is je huis geïsoleerd ?

Vroemt met EV | 10.000WP | 14kWh Thuisaccu | 2x MHI SRK/SRC 35 ZS | LG-WH27s Boiler


Acties:
  • 0 Henk 'm!

  • realphoenikx
  • Registratie: Januari 2011
  • Laatst online: 12:56
@revolution-nl Matig. Ik heb HR++ glas, maar geen verdere isolatie. Ik wilde juist een multi split om mijn buren twee ronkende buitenunits te besparen.

Acties:
  • +1 Henk 'm!

  • Speedfightserv
  • Registratie: September 2004
  • Laatst online: 28-10 16:12
realphoenikx schreef op donderdag 14 januari 2021 @ 11:33:
@revolution-nl Matig. Ik heb HR++ glas, maar geen verdere isolatie. Ik wilde juist een multi split om mijn buren twee ronkende buitenunits te besparen.
Mits goed geïnstalleerd hoor je die dingen amper :)
2 losse units is veel goedkoper dan een multisplit, denk rustig aan 800 euro (bij een MHI)

30 x Trina 390wp Op SE en Solis. | MHI 3,5kw


Acties:
  • 0 Henk 'm!

  • Menno1234
  • Registratie: Januari 2002
  • Laatst online: 08-10 17:18
revolution-nl schreef op donderdag 14 januari 2021 @ 09:06:

Je gaat hier het advies krijgen om voor twee single splits te gaan. Dit is efficienter, comfortabel en je hebt minder kans op ruisende leidingen of borrelende units. Waarschijnlijk is het nog goedkoper ook :P

Zeker met een een woonkamer van 75m3 is een laag minimaal vermogen wel erg fijn. Hoe goed is je huis geïsoleerd ?
Zou je dat ook adviseren als het om een een triple gaat (en die dan te splitsen in (i) single en (ii) duo)?

Zoals hier beschreven worstel ik ook met een dergelijke offerte, waarbij aan mij - net als bovenstaande vraagsteller - ook een installatie is geoffreerd waarvan ik mij afvraag of het (lage) vermogen van de buitenunit optimaal is.

Alles van Apple


Acties:
  • 0 Henk 'm!

  • revolution-nl
  • Registratie: December 2011
  • Laatst online: 15:58

revolution-nl

B≡ TH≡ CHANG≡

Menno1234 schreef op donderdag 14 januari 2021 @ 14:06:
[...]


Zou je dat ook adviseren als het om een een triple gaat (en die dan te splitsen in (i) single en (ii) duo)?

Zoals hier beschreven worstel ik ook met een dergelijke offerte, waarbij aan mij - net als bovenstaande vraagsteller - ook een installatie is geoffreerd waarvan ik mij afvraag of het (lage) vermogen van de buitenunit optimaal is.
Wanneer je primair gaat verwarmen en dat in de praktijk veelal met één specifieke unit gaat doen (bijv. de woonkamer) dan zou ik die uitvoeren in een single split, de rest multi.

Vroemt met EV | 10.000WP | 14kWh Thuisaccu | 2x MHI SRK/SRC 35 ZS | LG-WH27s Boiler


Acties:
  • +3 Henk 'm!

  • squareware
  • Registratie: Juli 2014
  • Laatst online: 25-10 12:25
revolution-nl schreef op donderdag 14 januari 2021 @ 14:17:
[...]


Wanneer je primair gaat verwarmen en dat in de praktijk veelal met één specifieke unit gaat doen (bijv. de woonkamer) dan zou ik die uitvoeren in een single split, de rest multi.
Als je het hele huis wil verwarmen op gelijke temp zoals met de cv. Kan dat toch net zo goed een split zijn met voor elke kamer een binnenunit er aan, het zal wel wat meer pendellen, maar vanwege de grote buitenunit minder de-frosten, dat is ook wel fijn als je veel warmte vraag heb.

Acties:
  • +1 Henk 'm!

  • revolution-nl
  • Registratie: December 2011
  • Laatst online: 15:58

revolution-nl

B≡ TH≡ CHANG≡

squareware schreef op donderdag 14 januari 2021 @ 14:26:
[...]


Als je het hele huis wil verwarmen op gelijke temp zoals met de cv. Kan dat toch net zo goed een split zijn met voor elke kamer een binnenunit er aan, het zal wel wat meer pendellen, maar vanwege de grote buitenunit minder de-frosten, dat is ook wel fijn als je veel warmte vraag heb.
Warmte stijgt en vaak is een hogere ruimte temperatuur op boven liggende verdiepingen niet perse gewenst.
Met een goed geïsoleerd huis is er dan amper extra warmte vraag nodig.

Ik verwarm mijn hele huis met de 35 van de woonkamer, op Zolder is het nog 18 graden, op mijn werkkamer zelfs 19 door de warmte van laptop + schermen.

Dit is met koelen anders, daarom zou ik de woonkamer altijd op een single-split doen als dit technisch / qua opstelling mogelijk is.

[ Voor 8% gewijzigd door revolution-nl op 14-01-2021 14:41 ]

Vroemt met EV | 10.000WP | 14kWh Thuisaccu | 2x MHI SRK/SRC 35 ZS | LG-WH27s Boiler


Acties:
  • 0 Henk 'm!

  • Menno1234
  • Registratie: Januari 2002
  • Laatst online: 08-10 17:18
revolution-nl schreef op donderdag 14 januari 2021 @ 14:40:
[...]

Dit is met koelen anders, daarom zou ik de woonkamer altijd op een single-split doen als dit technisch / qua opstelling mogelijk is.
Het gaat mij met name om koelen (overal al vloerverwarming aanwezig). Afgelopen maanden toch regelmatig meegelezen in dit topic, maar zie door de bomen het bos nog maar moeizaam.

In mijn situatie zou ik dus beter de woonkamer als single-split kunnen doen. Zou je kort kunnen toelichten waarom dat beter zou zijn (dan kan ik het proberen te begrijpen)?

Even voor de zekerheid ten opzichte van de triple opstelling: is een MXM52M wel voldoende voor 42+20+25?

Alles van Apple


Acties:
  • 0 Henk 'm!

  • Idefix70
  • Registratie: Oktober 2009
  • Laatst online: 07:25
Ik heb twee buitendelen en zes binnendelen. Op 1 unit woonkamer, kantoor, zolder en de andere keuken, gym en slaapkamer. Zo kan ik het mooi verdelen, weinig defrosts en eigenlijk.... interesseert me dat allemaal niet want als het maar lekker warm dan wel koel is en dat gaat meer dan prima.

Acties:
  • 0 Henk 'm!

  • I-King
  • Registratie: Maart 2003
  • Laatst online: 13:18
Zijn er mensen die een goede methode hebben gevonden om warmte van de zolder toch wat meer een verdieping lager te krijgen? Hoeft niet gigantisch te zijn, maar wellicht heeft iemand een redelijk werkbaar scenario?

Acties:
  • 0 Henk 'm!

  • trippelb
  • Registratie: September 2008
  • Laatst online: 07:01
I-King schreef op donderdag 14 januari 2021 @ 17:01:
Zijn er mensen die een goede methode hebben gevonden om warmte van de zolder toch wat meer een verdieping lager te krijgen? Hoeft niet gigantisch te zijn, maar wellicht heeft iemand een redelijk werkbaar scenario?
Wij hebben een pomp aan de cv ketel zitten deze pompt het warme water van zolder naar de rest van het huis. ;)

Acties:
  • 0 Henk 'm!

  • Glashelder
  • Registratie: September 2002
  • Niet online

Glashelder

Anti Android

Topicstarter
Menno1234 schreef op donderdag 14 januari 2021 @ 15:10:
[...]


Het gaat mij met name om koelen (overal al vloerverwarming aanwezig). Afgelopen maanden toch regelmatig meegelezen in dit topic, maar zie door de bomen het bos nog maar moeizaam.

In mijn situatie zou ik dus beter de woonkamer als single-split kunnen doen. Zou je kort kunnen toelichten waarom dat beter zou zijn (dan kan ik het proberen te begrijpen)?

Even voor de zekerheid ten opzichte van de triple opstelling: is een MXM52M wel voldoende voor 42+20+25?
Heb je de sectie Hoeveel vermogen heb ik nodig? gelezen in de topicstart? Want daar staat dat (hoop ik) vrij duidelijk uitgelegd. Als het niet duidelijk is dan hoor ik dat ook graag, want dan is er blijkbaar ruimte voor verbetering ;)

PV 4915wp op oost, 2680 wp op west, 1900 wp op zuid. pvoutput - AUX 8 kW bi bloc


Acties:
  • +1 Henk 'm!

  • realphoenikx
  • Registratie: Januari 2011
  • Laatst online: 12:56
Dank voor je advies, maar ik ga toch liever voor een multi split. Maar wat ik me afvraag is of de buitenunit met zijn 4,1 KW niet te licht is voor de binnenunits 2,5 en 3,5 KW.

Acties:
  • +2 Henk 'm!

  • Glashelder
  • Registratie: September 2002
  • Niet online

Glashelder

Anti Android

Topicstarter
Dat ligt echt helemaal aan je woning en de koude/warmtevraag.

Als ik zie hoeveel de units hier gemiddeld verbruiken dan is 3,5 kW al teveel :+

Maar als je van het type gebruiker bent dat het systeem pas aanzet als er vraag is en dan onmiddellijk resultaat verwacht dan mag het best een paar maten groter ;) Dan moet je ook niet klagen btw dat het systeem de hele tijd weer uit gaat en dat dan niet comfortabel is :).

Het ligt trouwens ook aan het merk. Daikin staat veel meer ‘overboeking’ toe dan bijv. Mitsubishi Electric.

[ Voor 11% gewijzigd door Glashelder op 14-01-2021 18:21 ]

PV 4915wp op oost, 2680 wp op west, 1900 wp op zuid. pvoutput - AUX 8 kW bi bloc


Acties:
  • 0 Henk 'm!

  • vinom
  • Registratie: Augustus 2009
  • Laatst online: 14:40
Headshot_NL schreef op donderdag 14 januari 2021 @ 07:54:
[...]


Gebeurde hier ook niet. Zelfs de diagnose functie gaf aan dat er niks aan de hand was met het koudemiddel.

Anders als je nog garantie hebt op de installatie de installateur er even naar laten kijken.
Ik vermoed dat ik een soortgelijk probleem heb. Ik heb nog niet zo lang een WiFi Module erin dus eerder kon ik hem niet uitlezen, maar ik vermoedde al iets. Ik heb beneden een singlesplit hangen en boven een multisplit. Die beneden gaat met 2 minuten ofzo lekker warm hard blazen. Die van boven duurt het gerust een kwartier voordat hij gaat blazen en dan is het heel zacht. Cmpfreq kan oplopen tot soms zelfs boven de 100% en hij moduleert nooit verder terug dan 40%. Singlesplit gaat gerust naar 14% met dit weer.

Hij is al eens eerder bijgevuld met 154 gram in 2019 door @koevlaas2, maar wellicht moet er toch meer bij of hij is lek. Hij komt eind januari weer langs.

Acties:
  • 0 Henk 'm!

  • squareware
  • Registratie: Juli 2014
  • Laatst online: 25-10 12:25
I-King schreef op donderdag 14 januari 2021 @ 17:01:
Zijn er mensen die een goede methode hebben gevonden om warmte van de zolder toch wat meer een verdieping lager te krijgen? Hoeft niet gigantisch te zijn, maar wellicht heeft iemand een redelijk werkbaar scenario?
Plafond ventilator?

Acties:
  • 0 Henk 'm!

  • mr_evil08
  • Registratie: December 2008
  • Laatst online: 14:29
I-King schreef op donderdag 14 januari 2021 @ 17:01:
Zijn er mensen die een goede methode hebben gevonden om warmte van de zolder toch wat meer een verdieping lager te krijgen? Hoeft niet gigantisch te zijn, maar wellicht heeft iemand een redelijk werkbaar scenario?
WTW kast en een extra afzuigpunt op zolder, warme lucht blaas je terug naar beneden.

Met CV pomp aan knoeien en laten draaien geloof ik zelf niet in wat iemand aandraagt hier, radiator op zolder is veel te klein daarvoor om uberhaupt invloed erop te hebben dan zal het wel gigantisch heet daar moeten worden.
De CV pomp 24/7 laten draaien kost mogelijk veel meer energie dan het opbrengt.

[ Voor 5% gewijzigd door mr_evil08 op 14-01-2021 19:19 ]

WP | SP, Daikin FTXM35M/RXM35M


Acties:
  • 0 Henk 'm!

  • trippelb
  • Registratie: September 2008
  • Laatst online: 07:01
mr_evil08 schreef op donderdag 14 januari 2021 @ 19:16:
[...]


WTW kast en een extra afzuigpunt op zolder, warme lucht blaas je terug naar beneden.

Met CV pomp aan knoeien en laten draaien geloof ik zelf niet in wat iemand aandraagt hier, radiator op zolder is veel te klein daarvoor om uberhaupt invloed erop te hebben dan zal het wel gigantisch heet daar moeten worden.
De CV pomp 24/7 laten draaien kost mogelijk veel meer energie dan het opbrengt.
Mijn knipoog was misschien niet helemaal duidelijk. Wij hebben naast de airco de cv nog voor warm water. Ik gebruik die natuurlijk niet om warmte naar beneden te pompen vanuit de lunch echter staat de cv simpelweg op zolder. Warme lucht stijgt op. Er zijn bij mijn weten geen efficiënte manieren om deze warme lucht te doen dalen.

Acties:
  • +1 Henk 'm!

  • Menno1234
  • Registratie: Januari 2002
  • Laatst online: 08-10 17:18
Glashelder schreef op donderdag 14 januari 2021 @ 18:05:
[...]

Heb je de sectie Hoeveel vermogen heb ik nodig? gelezen in de topicstart? Want daar staat dat (hoop ik) vrij duidelijk uitgelegd. Als het niet duidelijk is dan hoor ik dat ook graag, want dan is er blijkbaar ruimte voor verbetering ;)
Die heb ik meerdere keren gelezen, maar geeft mij geen duidelijkheid (en kennelijk ook de poster onder jouw post niet want die stelt exact dezelfde vraag). Als ik de berekening uit de opening aanhoud, dan kom ik op het volgende:

m3 factor 30
Woonkamer 165 4,96
Slaapkamer 44 1,31
Zolder 33 0,98

De geoffreerde installatie lijkt dan te weinig vermogen te hebben (immers ik kom hierboven ruim op 7kw). Dat trekt een Daikin MXM52M niet. Tegelijkertijd lees ik hier vaak dat te zwaar ook zeer ongewenst is. De openingspost geeft mij weinig gevoel bij hoe de theorie aansluit bij de ervaring. Geeft dit jou aanknopingspunten om iets zinnig te zeggen over de opstelling?

• Buitenunit: MXM52M

• Woonkamer: FTXA 42 AW Stylish (165m3)
• Slaapkmr 1(1e verd): FTXM 20 R Perfera (43 m3)
• Zolderkamer FTXM 25 AW Stylish (32 m3)

Edit: @ realphoenikx schreef op donderdag 14 januari 2021 @ 18:11: misschien heldert het antwoord ook jouw vraag op over het aan jou voorgestelde lage vermogen.

[ Voor 7% gewijzigd door Menno1234 op 14-01-2021 20:49 ]

Alles van Apple


Acties:
  • +1 Henk 'm!

  • ik222
  • Registratie: Maart 2007
  • Niet online
Menno1234 schreef op donderdag 14 januari 2021 @ 20:47:
[...]


Die heb ik meerdere keren gelezen, maar geeft mij geen duidelijkheid (en kennelijk ook de poster onder jouw post niet want die stelt exact dezelfde vraag). Als ik de berekening uit de opening aanhoud, dan kom ik op het volgende:

m3 factor 30
Woonkamer 165 4,96
Slaapkamer 44 1,31
Zolder 33 0,98

De geoffreerde installatie lijkt dan te weinig vermogen te hebben (immers ik kom hierboven ruim op 7kw). Dat trekt een Daikin MXM52M niet. Tegelijkertijd lees ik hier vaak dat te zwaar ook zeer ongewenst is. De openingspost geeft mij weinig gevoel bij hoe de theorie aansluit bij de ervaring. Geeft dit jou aanknopingspunten om iets zinnig te zeggen over de opstelling?

• Buitenunit: MXM52M

• Woonkamer: FTXA 42 AW Stylish (165m3)
• Slaapkmr 1(1e verd): FTXM 20 R Perfera (43 m3)
• Zolderkamer FTXM 25 AW Stylish (32 m3)

Edit: @ realphoenikx schreef op donderdag 14 januari 2021 @ 18:11: misschien heldert het antwoord ook jouw vraag op over het aan jou voorgestelde lage vermogen.
Zeker voor te koelen is het waarschijnlijk wel genoeg, ik kreeg hier ook een soortgelijk advies. Maar ik wilde zelf iets meer marge houden, ook omdat ik er ook mee verwarm, en heb dus een maatje groter gekozen. Dat is wel een goede keuze merk ik nu, oke soms pendelt het misschien wat sneller maar ik heb weinig defrosts.

Ben zelf uiteindelijk dus voor een 3MXM68N buitenunit gegaan. In mijn geval met 1 x 4,2 en 2 x 2,5 FTXA binnenunits.

[ Voor 5% gewijzigd door ik222 op 14-01-2021 21:13 ]


Acties:
  • +1 Henk 'm!

  • revolution-nl
  • Registratie: December 2011
  • Laatst online: 15:58

revolution-nl

B≡ TH≡ CHANG≡

ik222 schreef op donderdag 14 januari 2021 @ 21:09:
[...]

Zeker voor te koelen is het waarschijnlijk wel genoeg, ik kreeg hier ook een soortgelijk advies. Maar ik wilde zelf iets meer marge houden, ook omdat ik er ook mee verwarm, en heb dus een maatje groter gekozen. Dat is wel een goede keuze merk ik nu, oke soms pendelt het misschien wat sneller maar ik heb weinig defrosts.

Ben zelf uiteindelijk dus voor een 3MXM68N buitenunit gegaan. In mijn geval met 1 x 4,2 en 2 x 2,5 FTXA binnenunits.
In de Nederland heb je vaker omstandigheden waarbij pendelen voorkomt dan omstandigheden waar defrosts voorkomen. Sowieso zijn defrosts bij lucht/lucht volgens mij amper een probleem, bij mij zijn ze tenminste een zeldzaamheid en dan is mijn unit volgens de rekenmethode toch behoorlijk onderbemeten

Ik zou dus zeer terughoudend zijn met teveel vermogen, de 7kW die hierboven gesuggereerd wordt is echt belachelijk.

[ Voor 10% gewijzigd door revolution-nl op 14-01-2021 21:53 ]

Vroemt met EV | 10.000WP | 14kWh Thuisaccu | 2x MHI SRK/SRC 35 ZS | LG-WH27s Boiler


Acties:
  • 0 Henk 'm!

  • revolution-nl
  • Registratie: December 2011
  • Laatst online: 15:58

revolution-nl

B≡ TH≡ CHANG≡

Menno1234 schreef op donderdag 14 januari 2021 @ 20:47:
[...]


Die heb ik meerdere keren gelezen, maar geeft mij geen duidelijkheid (en kennelijk ook de poster onder jouw post niet want die stelt exact dezelfde vraag). Als ik de berekening uit de opening aanhoud, dan kom ik op het volgende:

m3 factor 30
Woonkamer 165 4,96
Slaapkamer 44 1,31
Zolder 33 0,98

De geoffreerde installatie lijkt dan te weinig vermogen te hebben (immers ik kom hierboven ruim op 7kw). Dat trekt een Daikin MXM52M niet. Tegelijkertijd lees ik hier vaak dat te zwaar ook zeer ongewenst is. De openingspost geeft mij weinig gevoel bij hoe de theorie aansluit bij de ervaring. Geeft dit jou aanknopingspunten om iets zinnig te zeggen over de opstelling?

• Buitenunit: MXM52M

• Woonkamer: FTXA 42 AW Stylish (165m3)
• Slaapkmr 1(1e verd): FTXM 20 R Perfera (43 m3)
• Zolderkamer FTXM 25 AW Stylish (32 m3)

Edit: @ realphoenikx schreef op donderdag 14 januari 2021 @ 18:11: misschien heldert het antwoord ook jouw vraag op over het aan jou voorgestelde lage vermogen.
Die MXM52M heeft al 1.5kw minimum vermogen, dat wordt zelfs in de winter een pendelfeest als je primair in de woonkamer gaat verwarmen

Vroemt met EV | 10.000WP | 14kWh Thuisaccu | 2x MHI SRK/SRC 35 ZS | LG-WH27s Boiler


Acties:
  • 0 Henk 'm!

  • revolution-nl
  • Registratie: December 2011
  • Laatst online: 15:58

revolution-nl

B≡ TH≡ CHANG≡

Menno1234 schreef op donderdag 14 januari 2021 @ 15:10:
[...]


Het gaat mij met name om koelen (overal al vloerverwarming aanwezig). Afgelopen maanden toch regelmatig meegelezen in dit topic, maar zie door de bomen het bos nog maar moeizaam.

In mijn situatie zou ik dus beter de woonkamer als single-split kunnen doen. Zou je kort kunnen toelichten waarom dat beter zou zijn (dan kan ik het proberen te begrijpen)?

Even voor de zekerheid ten opzichte van de triple opstelling: is een MXM52M wel voldoende voor 42+20+25?
Dat is de afgelopen paar dagen al een aantal keer in de orde geweest, lees het even terug.

Vroemt met EV | 10.000WP | 14kWh Thuisaccu | 2x MHI SRK/SRC 35 ZS | LG-WH27s Boiler


Acties:
  • +3 Henk 'm!

  • Glashelder
  • Registratie: September 2002
  • Niet online

Glashelder

Anti Android

Topicstarter
Menno1234 schreef op donderdag 14 januari 2021 @ 20:47:
[...]


Die heb ik meerdere keren gelezen, maar geeft mij geen duidelijkheid (en kennelijk ook de poster onder jouw post niet want die stelt exact dezelfde vraag). Als ik de berekening uit de opening aanhoud, dan kom ik op het volgende:

m3 factor 30
Woonkamer 165 4,96
Slaapkamer 44 1,31
Zolder 33 0,98

De geoffreerde installatie lijkt dan te weinig vermogen te hebben (immers ik kom hierboven ruim op 7kw). Dat trekt een Daikin MXM52M niet. Tegelijkertijd lees ik hier vaak dat te zwaar ook zeer ongewenst is. De openingspost geeft mij weinig gevoel bij hoe de theorie aansluit bij de ervaring. Geeft dit jou aanknopingspunten om iets zinnig te zeggen over de opstelling?

• Buitenunit: MXM52M

• Woonkamer: FTXA 42 AW Stylish (165m3)
• Slaapkmr 1(1e verd): FTXM 20 R Perfera (43 m3)
• Zolderkamer FTXM 25 AW Stylish (32 m3)

Edit: @ realphoenikx schreef op donderdag 14 januari 2021 @ 18:11: misschien heldert het antwoord ook jouw vraag op over het aan jou voorgestelde lage vermogen.
Die 7,25kW zal je alleen nodig hebben op de warmste dagen van het jaar, als je net thuiskomt uit Frankrijk (je huis is dus door en door opgewarmd door de zon) en je overal in huis gaat koelen.

In de praktijk heb je vrijwel nooit in je gehele huis tegelijkertijd een maximale vraag. Daarom denk ik dat die 5,2 kW wel prima is, als je dan toch voor multi wilt gaan en ook wil verwarmen.

Te zwaar is dus juist ongewenst omdat een zwaardere compressor ook een hoger minimaal vermogen heeft. Dat betekend in de praktijk vooral in de winter veel aan/uit gedrag. Zelf vind ik dat storend en heb ik dus liever iets te weinig op de koudste dagen van het jaar dan het halve stookseizoen teveel waardoor de temperatuur gaat schommelen :). Ik geloof er dus niet in dat we ooit nog langdurige perioden zullen krijgen waarbij het écht koud is (<-10). Volgens mij in mijn 32 jaar sowieso nog maar één keer meegemaakt in dit land :+

PV 4915wp op oost, 2680 wp op west, 1900 wp op zuid. pvoutput - AUX 8 kW bi bloc


Acties:
  • +1 Henk 'm!

  • aip
  • Registratie: Oktober 2003
  • Laatst online: 14:21

aip

Glashelder schreef op donderdag 14 januari 2021 @ 21:59:
[...]

Die 7,25kW zal je alleen nodig hebben op de warmste dagen van het jaar, als je net thuiskomt uit Frankrijk (je huis is dus door en door opgewarmd door de zon) en je overal in huis gaat koelen.

In de praktijk heb je vrijwel nooit in je gehele huis tegelijkertijd een maximale vraag. Daarom denk ik dat die 5,2 kW wel prima is, als je dan toch voor multi wilt gaan en ook wil verwarmen.

Te zwaar is dus juist ongewenst omdat een zwaardere compressor ook een hoger minimaal vermogen heeft. Dat betekend in de praktijk vooral in de winter veel aan/uit gedrag. Zelf vind ik dat storend en heb ik dus liever iets te weinig op de koudste dagen van het jaar dan het halve stookseizoen teveel waardoor de temperatuur gaat schommelen :). Ik geloof er dus niet in dat we ooit nog langdurige perioden zullen krijgen waarbij het écht koud is (<-10). Volgens mij in mijn 32 jaar sowieso nog maar één keer meegemaakt in dit land :+
32 jaar, dus je bent van 1987-1988. Dus dan heb je de winter van 1997 meegemaakt, en de winters van 2010-2012 waren ook wel fris, met zelfs hier aan de westkust een enkele keer strenge vorst ;)

Maar inderdaad, dat gaat niet vaak gebeuren.

Acties:
  • 0 Henk 'm!

  • Speedfightserv
  • Registratie: September 2004
  • Laatst online: 28-10 16:12
Glashelder schreef op donderdag 14 januari 2021 @ 21:59:
[...]

Die 7,25kW zal je alleen nodig hebben op de warmste dagen van het jaar, als je net thuiskomt uit Frankrijk (je huis is dus door en door opgewarmd door de zon) en je overal in huis gaat koelen.

In de praktijk heb je vrijwel nooit in je gehele huis tegelijkertijd een maximale vraag. Daarom denk ik dat die 5,2 kW wel prima is, als je dan toch voor multi wilt gaan en ook wil verwarmen.

Te zwaar is dus juist ongewenst omdat een zwaardere compressor ook een hoger minimaal vermogen heeft. Dat betekend in de praktijk vooral in de winter veel aan/uit gedrag. Zelf vind ik dat storend en heb ik dus liever iets te weinig op de koudste dagen van het jaar dan het halve stookseizoen teveel waardoor de temperatuur gaat schommelen :). Ik geloof er dus niet in dat we ooit nog langdurige perioden zullen krijgen waarbij het écht koud is (<-10). Volgens mij in mijn 32 jaar sowieso nog maar één keer meegemaakt in dit land :+
Is in die tijd maar een paar keer gebeurt idd, 2012 was het jan/feb een weekje min 20 :/

30 x Trina 390wp Op SE en Solis. | MHI 3,5kw


Acties:
  • 0 Henk 'm!

  • Menno1234
  • Registratie: Januari 2002
  • Laatst online: 08-10 17:18
Veel dank, erg verhelderend

Alles van Apple


Acties:
  • 0 Henk 'm!

  • mdecramer
  • Registratie: Mei 2016
  • Laatst online: 15-06-2024
mdecramer schreef op woensdag 13 januari 2021 @ 18:25:
Hallo allen!

Wij zijn van plan om onze 5 jaar oude halfopen woning met plat dak te voorzien van verfrissende airco (wellicht met Compacte wandunits MSZ-AP van Mitsubishi); Wij hebben ondertussen een offerte ontvangen en hebben hier en daar nog wel wat denkwerk voor we terugkoppelen; Daarom hoop ik om hier mss nog het een en het ander op te steken :-)

- In onze kamers boven worden 3 toestellen van 2.5KW (MSZ-AP25VGK) voorgesteld (max 90m³), terwijl deze elk +- 30m³ zijn, kan dit problemen geven? Ik las hier al dat men niet teveel mag 'overpoweren'...
-Bij voorkeur hebben we wel zo stil mogelijke toestellen, op elke toestel staat bvb 19-36db of 21-35db, zit hier een merkbaar verschil tussen? Kamer2 (home-cinema) heeft een vaste beamer die bij gebruik in hartje zomer de kamer in 1-2-3 onleefbaar maakt=> zal de airco hier snel de hoogste db's opzoeken? Of is dit bij een toestel van 2.5KW dan veel minder snel het geval tov 1.5 of 2KW?
-In kamer 1 zou er een condenspomp moeten gemonteerd worden bij de airco, deze zou via een leiding door kamer2 onze technische ruimte ingaan; Zijn er methodes om zoiets te vermijden? Ik lees dat met deze pompjes altijd de eerste problemen worden vastgesteld...
- In onze L-vormige leefruimte (living+keuken) wordt een 3.5KW toestel (MSZ-AP35VG) voorgesteld met vertikale flow (zoals de units boven), is een toestel met horizontale flow in dergelijke ruimte hier beter of maakt dit helemaal niets uit? (bvb MSZ-LN35VG)
- Wanneer koelen dus de hoofdzaak is, is het dan aan te raden alle units (3 boven,1 beneden) op 1 grote buitenunit aan te sluiten? Ik las hier dat dit soms wordt opgesplitst...
Onze aangeraden buitenunit voor dit alles is een MXZ - 4F83VF, (max 6 binnen-units), zou ik hier niet met een MXZ-4F72VF (4 binnen-units) weg kunnen?
[Afbeelding][Afbeelding]

Bedankt alvast voor enige feedback!
Michael
Vergeef het mij, maar ga dit toch even naar boven halen in de hoop op wat inzichten O-)

Acties:
  • +1 Henk 'm!

  • Glashelder
  • Registratie: September 2002
  • Niet online

Glashelder

Anti Android

Topicstarter
mdecramer schreef op woensdag 13 januari 2021 @ 18:25:
Hallo allen!

Wij zijn van plan om onze 5 jaar oude halfopen woning met plat dak te voorzien van verfrissende airco (wellicht met Compacte wandunits MSZ-AP van Mitsubishi); Wij hebben ondertussen een offerte ontvangen en hebben hier en daar nog wel wat denkwerk voor we terugkoppelen; Daarom hoop ik om hier mss nog het een en het ander op te steken :-)

- In onze kamers boven worden 3 toestellen van 2.5KW (MSZ-AP25VGK) voorgesteld (max 90m³), terwijl deze elk +- 30m³ zijn, kan dit problemen geven? Ik las hier al dat men niet teveel mag 'overpoweren'...
Bij multisplit maakt dit minder uit. Het minimumvermogen van de buitenunit is daar veel meer van belang. De meest gebruikte multisplits leveren vaak al meer minimaal vermogen dan een 1,5kW model aan kan dus dan zal er koudemiddel 'gelekt' (bleeding) worden naar andere units.
-Bij voorkeur hebben we wel zo stil mogelijke toestellen, op elke toestel staat bvb 19-36db of 21-35db, zit hier een merkbaar verschil tussen? Kamer2 (home-cinema) heeft een vaste beamer die bij gebruik in hartje zomer de kamer in 1-2-3 onleefbaar maakt=> zal de airco hier snel de hoogste db's opzoeken? Of is dit bij een toestel van 2.5KW dan veel minder snel het geval tov 1.5 of 2KW?
Toen ik nog bij mijn ouders woonde had ik een cheape Tristar multi-split en die stoorde niet tijdens filmavonden in de zomer :p Zou me dan niet druk maken over 19 over 21 dB. In een slaapkamer daarentegen.. :)
-In kamer 1 zou er een condenspomp moeten gemonteerd worden bij de airco, deze zou via een leiding door kamer2 onze technische ruimte ingaan; Zijn er methodes om zoiets te vermijden? Ik lees dat met deze pompjes altijd de eerste problemen worden vastgesteld...
Er zijn schijnbaar condenspompen die op enige afstand van de binnenunit gemonteerd kunnen worden. Dat zou helpen tegen het geluid. Maar niet tegen de storingsgevoeligheid. Enige is eigenlijk een andere plek of weg vinden zodat het water via natuurlijke wijze kan weglopen.
- In onze L-vormige leefruimte (living+keuken) wordt een 3.5KW toestel (MSZ-AP35VG) voorgesteld met vertikale flow (zoals de units boven), is een toestel met horizontale flow in dergelijke ruimte hier beter of maakt dit helemaal niets uit? (bvb MSZ-LN35VG)
Ben zelf meer fan van horizontaal. Met koelen werkt dat naar mijn ervaring beter omdat de kou dan beter verspreid door de ruimte.
- Wanneer koelen dus de hoofdzaak is, is het dan aan te raden alle units (3 boven,1 beneden) op 1 grote buitenunit aan te sluiten? Ik las hier dat dit soms wordt opgesplitst...
Voor koelen zou ik zeker een multisplit nemen. Splitsen raden we voornamelijk aan als er één unit is die veel zal verwarmen. Vanwege de grotere temperatuurverschillen in de winter (0/5 buiten vs 20/22 binnen) willen we voorkomen dat de unit regelmatig aan en uit gaat. In de zomer zijn deze verschillen kleiner en maakt het wat minder uit. Sowieso is het minimumvermogen bij koelen altijd lager dan bij verwarmen.
Onze aangeraden buitenunit voor dit alles is een MXZ - 4F83VF, (max 6 binnen-units), zou ik hier niet met een MXZ-4F72VF (4 binnen-units) weg kunnen?
[Afbeelding][Afbeelding]

Bedankt alvast voor enige feedback!
Michael
Ik denk dat je hier wel wegkomt met die MXZ-4F72VF.

Overigens nu ik de tekeningen van je woonkamer bekijk zou ik zeker voor horizontale flow gaan. Vrees dat je de luchtstroom teveel gaat voelen met een unit die voornamelijk verticale flow doet.

PV 4915wp op oost, 2680 wp op west, 1900 wp op zuid. pvoutput - AUX 8 kW bi bloc


Acties:
  • 0 Henk 'm!

  • Voske89
  • Registratie: Februari 2018
  • Laatst online: 23-01-2023
Heeft er iemand een ervaring met fujitsu?

Hoe houdt dit merk zich tegenover een daikin of Panasonic?

Acties:
  • +3 Henk 'm!

  • Speedfightserv
  • Registratie: September 2004
  • Laatst online: 28-10 16:12
Even een ervaring delen,

Ik heb op zolder een 2,5kw MHI staan, de zolder is ingedeeld in een voorzolder en een grote zolderruimte gescheiden door een deur. Boven de deur hangt in de grote ruimte de airco die ik op dit moment gebruik om te verwarmen.

Ik wil de voorzolder ook warm hebben omdat ik daar tijdens het thuis werken wel eens naar uitwijk met een extra laptop van de klant die niet meer op mijn huidige bureau past.

Nu werd het met de deur open niet overal warm en was de airco best wel veel aan het pendelen. Het scheelde wel iets hoe ik de lamellen ingesteld had maar nog niet echt super.

Ik heb een losse ventilator op een standaard nu in de richting gezet van de airco op de hoogte waar de warmte de airco uitkomt. (beetje achter in de grote ruimte neer gezet)

Gevolg is dat hij nu bijna niet meer uit gaat maar nu rustig staat te pruttelen en de voorzolder en de grote ruimte op een goede temperatuur houdt :)

Edit: Hij draait nu tussen de 366W en 386 W :)

30 x Trina 390wp Op SE en Solis. | MHI 3,5kw


Acties:
  • 0 Henk 'm!

  • Glashelder
  • Registratie: September 2002
  • Niet online

Glashelder

Anti Android

Topicstarter
Voske89 schreef op vrijdag 15 januari 2021 @ 13:11:
Heeft er iemand een ervaring met fujitsu?

Hoe houdt dit merk zich tegenover een daikin of Panasonic?
Ik heb er hier twee hangen. Bij een vriend van mij hangen er nog twee. Prima spul.

Zijn wel vrij basic units dus kan er vrij weinig over zeggen :+ Het doet zijn werk stilletjes. Maar zoals altijd heeft het merk een hele range aan modellen. Als je vraagt naar ervaringen van Mercedes en je krijgt reacties over de S klasse dan zegt dat niks over de A klasse ;)

Panasonic.. tsja. Ik ben er niet gecharmeerd van. Te vaak defecte units gezien :).

PV 4915wp op oost, 2680 wp op west, 1900 wp op zuid. pvoutput - AUX 8 kW bi bloc


Acties:
  • 0 Henk 'm!

  • eggiebert
  • Registratie: December 2005
  • Laatst online: 19-12-2024
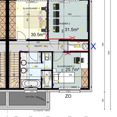
Het vraagstuk overloop blijkt altijd moeilijk te zijn in aircoland maar toch wil ik hier ook nog om advies vragen.
Ik ben super tevreden met mijn MHI SRK-50ZSX in de woonkamer / open keuken maar nu wordt het dus in de rest van het huis best wel koud. Dus besloten om voor nog een airco te gaan voor boven.
Dit is moeilijk vanwege meerdere kleine kamers en technisch gezien heb ik maar 1 goede plek, zie foto.
Hiervoor wil ik de 25ZSX gaan aanschaffen gezien zijn toch redelijk grote bereik van min 0,8 tot max 6kW verwarmen en niet te zwaar ivm pendelen. Koelen zal vast wel lukken denk ik (max 3,8kW).
Zou dit werken om de kou er af te halen en vd zomer de boel boven wat koeler te krijgen?
Gaat met name om slaapkamer 1-2 en 3, deur van 4 kan dicht / is inloopkast.
Totaal +- 90M3.

Afbeeldingslocatie: https://tweakers.net/i/EcDFWGQtxlb_QIe2hZZ3lUdUcHE=/800x/filters:strip_icc():strip_exif()/f/image/ezVWkaicwRiha60ViIaGoW47.jpg?f=fotoalbum_large

Acties:
  • +2 Henk 'm!

  • mr_evil08
  • Registratie: December 2008
  • Laatst online: 14:29
Mja als jullie altijd met de deuren open willen leven tijdens verwarmen/koelen, in praktijk wordt een deur toch best wel vaak gesloten dan duurt het niet zo lang of het koelt af.

Bij koelen zal op deze manier een boel kou zakken via het trappengat, kan je niet beter voor multisplit gaan?

[ Voor 24% gewijzigd door mr_evil08 op 15-01-2021 16:45 ]

WP | SP, Daikin FTXM35M/RXM35M


Acties:
  • 0 Henk 'm!

  • Speedfightserv
  • Registratie: September 2004
  • Laatst online: 28-10 16:12
eggiebert schreef op vrijdag 15 januari 2021 @ 16:40:
Het vraagstuk overloop blijkt altijd moeilijk te zijn in aircoland maar toch wil ik hier ook nog om advies vragen.
Ik ben super tevreden met mijn MHI SRK-50ZSX in de woonkamer / open keuken maar nu wordt het dus in de rest van het huis best wel koud. Dus besloten om voor nog een airco te gaan voor boven.
Dit is moeilijk vanwege meerdere kleine kamers en technisch gezien heb ik maar 1 goede plek, zie foto.
Hiervoor wil ik de 25ZSX gaan aanschaffen gezien zijn toch redelijk grote bereik van min 0,8 tot max 6kW verwarmen en niet te zwaar ivm pendelen. Koelen zal vast wel lukken denk ik (max 3,8kW).
Zou dit werken om de kou er af te halen en vd zomer de boel boven wat koeler te krijgen?
Gaat met name om slaapkamer 1-2 en 3, deur van 4 kan dicht / is inloopkast.
Totaal +- 90M3.

[Afbeelding]
Kou daalt en warmte stijgt, je heb daar wel net een trapgat zitten naar beneden en naar zolder. Kan je je voorstellen wat de kou/warmte gaat doen,

Het gaat in de zomer met koelen wel lukken om iets van de warmte af te krijgen. Met verwarmen wordt het lastiger, de unit hangt al aan de muur bijna tegen het plafond aan, ook al zet je de lamellen anders ben ik bang dat het toch te snel omhoog gaat.

Met koelen ont vochtig je ook waardoor het toch koeler aan voelt dan het is, ook daarom zal koelen beter gaan dan verwarmen voor wat jij wil bereiken.

Ik denk dat je dan nog beter aan 2 kanten van je overloop een airco kan hangen bijvoorbeeld boven de deur van slaapkamer 4 en slaapkamer 1

30 x Trina 390wp Op SE en Solis. | MHI 3,5kw


Acties:
  • 0 Henk 'm!

  • Ronnnn
  • Registratie: Januari 2021
  • Laatst online: 19-02-2021
Ik heb ook een vraag. Heb wat mee zitten lezen in dit topic, en dacht: ook maar eens een profiel aanmaken hier om een vraag te stellen.

Ik wil ook deze zomer ervoor gaan zorgen dat ik dit jaar airco heb. Echter, natuurlijk zou een split-unit ideaal zijn, maar dat is me echt wat te prijzig voor die relatief korte hete periodes dat ik 'm waarschijnlijk toch alleen maar zal gebruiken. Dus mijn keuze gaat uit naar een mobiele airco. Ik ken inmiddels de bezwaren ertegen, maar die neem ik denk ik maar voor lief, en er zijn gelukkig manbieren om de nadelen ervan enigszins tegen te gaan.

Ik heb niet zo'n heel grote woning. Zo'n 49 m² en bij elkaar zo'n 120 m³ heb ik berekend. Veel ramen, plat dak etc. dus volgens hoe ik het berekend heb zou toch wel zo'n 18000 BTU koelvermogen moeten hebben. Het is echter geen keurige vierkante woning, maar met keukenruimte (zonder deur) en een slaapkamer en een overloop. Alleen de slaapkamer heeft een deur. Huiskamer is ongeveer 6 bij 4 meter maar. Maar nogmaals: geen deuren die de ruimte afsluiten, enkel wat muren die ervoor zorgen dat het geen grote, doorlopende open ruimte is. Al met al wel een open ruimte dus, en niet erg groot. Toch kom ik er dan op uit dat ik een koelvermogen van 18000 BTU zou moeten hebben om de boel goed te kunnen koelen. Heb daarom de Eurom Coolperfect 180 op het oog. Voel toch wat absurd voor een helemaal niet zo'n grote woonruimte voor m'n gevoel.

Is dat nou efficiënt op die manier? Of krijg je dan dat als die in de keuken staat, en het daar dan koel is, die afslaat, terwijl de rest dan helemaal niet goed verkoeld is?
Of zou ik dan ventilatoren moeten gebruiken om de lucht van de keuken naar de woonkamer en de slaapkamer te laten blazen bijvoorbeeld?

Wat is wijsheid in zo'n situatie?

Gelukkig heb ik nog heel lang de tijd om tot de meest slimme keuze te komen. :D Maar dacht ook laat ik het hier eens vragen... hopelijk heeft er iemand goed advies hiervoor.

Acties:
  • +1 Henk 'm!

  • mr_evil08
  • Registratie: December 2008
  • Laatst online: 14:29
Ronnnn schreef op vrijdag 15 januari 2021 @ 18:19:
Ik heb ook een vraag. Heb wat mee zitten lezen in dit topic, en dacht: ook maar eens een profiel aanmaken hier om een vraag te stellen.

Ik wil ook deze zomer ervoor gaan zorgen dat ik dit jaar airco heb. Echter, natuurlijk zou een split-unit ideaal zijn, maar dat is me echt wat te prijzig voor die relatief korte hete periodes dat ik 'm waarschijnlijk toch alleen maar zal gebruiken. Dus mijn keuze gaat uit naar een mobiele airco. Ik ken inmiddels de bezwaren ertegen, maar die neem ik denk ik maar voor lief, en er zijn gelukkig manbieren om de nadelen ervan enigszins tegen te gaan.

Ik heb niet zo'n heel grote woning. Zo'n 49 m² en bij elkaar zo'n 120 m³ heb ik berekend. Veel ramen, plat dak etc. dus volgens hoe ik het berekend heb zou toch wel zo'n 18000 BTU koelvermogen moeten hebben. Het is echter geen keurige vierkante woning, maar met keukenruimte (zonder deur) en een slaapkamer en een overloop. Alleen de slaapkamer heeft een deur. Huiskamer is ongeveer 6 bij 4 meter maar. Maar nogmaals: geen deuren die de ruimte afsluiten, enkel wat muren die ervoor zorgen dat het geen grote, doorlopende open ruimte is. Al met al wel een open ruimte dus, en niet erg groot. Toch kom ik er dan op uit dat ik een koelvermogen van 18000 BTU zou moeten hebben om de boel goed te kunnen koelen. Heb daarom de Eurom Coolperfect 180 op het oog. Voel toch wat absurd voor een helemaal niet zo'n grote woonruimte voor m'n gevoel.

IUs dat nou efficiënt op die manier? Of krijg je dan dat als die in de keuken staat, en het daar dan koel is, die afslaat, terwijl de rest dan helemaal niet goed verkoeld is?
Of zou ik dan ventilatoren moeten gebruiken om de lucht van de keuken naar de woonkamer en de slaapkamer te laten blazen bijvoorbeeld?

Wat is wijsheid in zo'n situatie?

Gelukkig heb ik nog heel lang de tijd om tot de meest slimme keuze te komen. :D Maar dacht ook laat ik het hier eens vragen... hopelijk heeft er iemand goed advies hiervoor.
Mobiele airco,s zijn echt alleen bedoelt om kort specifieke ruimte,s te koelen, denk aan een slaapkamer, grote ruimtes ga je er niet mee redden, ook niet met de deuren open of ventilatoren erbij.

Mobiele airco vs split airco is letterlijk een wereld van verschil.

Ze creëren een fors onderdruk in je woning, warmte wat uit die slang verdwijnt wordt elders in je woning weer aangezogen, zou je huis helemaal luchtdicht zijn dan gaat er ook geen lucht uit die slang.

Zet voor de grap je afzuigkap eens aan op max afzuigen nu (als je afzuigkap met motor naar buiten hebt) dat effect krijg je dan ook maar omgekeerd en dat doe je dan de hele dag.

Ik heb hier nog een mobiele staan 11000 BTU en dat ding heeft nog grote moeite om een slaapkamer van 4 bij 4 te laten afkoelen (heb ik gemod en aanzuigslang aan gemaakt toen ging het beter).

Dus voorkom die teleurstelling, mijn split koelt met donder en geweld met 2 vingers in de neus de gehele verdieping en ook nog fors minder energie kwijt.

[ Voor 7% gewijzigd door mr_evil08 op 15-01-2021 18:45 ]

WP | SP, Daikin FTXM35M/RXM35M


Acties:
  • 0 Henk 'm!

  • Glashelder
  • Registratie: September 2002
  • Niet online

Glashelder

Anti Android

Topicstarter
Ronnnn schreef op vrijdag 15 januari 2021 @ 18:19:
Ik heb ook een vraag. Heb wat mee zitten lezen in dit topic, en dacht: ook maar eens een profiel aanmaken hier om een vraag te stellen.

Ik wil ook deze zomer ervoor gaan zorgen dat ik dit jaar airco heb. Echter, natuurlijk zou een split-unit ideaal zijn, maar dat is me echt wat te prijzig voor die relatief korte hete periodes dat ik 'm waarschijnlijk toch alleen maar zal gebruiken. Dus mijn keuze gaat uit naar een mobiele airco. Ik ken inmiddels de bezwaren ertegen, maar die neem ik denk ik maar voor lief, en er zijn gelukkig manbieren om de nadelen ervan enigszins tegen te gaan.

Ik heb niet zo'n heel grote woning. Zo'n 49 m² en bij elkaar zo'n 120 m³ heb ik berekend. Veel ramen, plat dak etc. dus volgens hoe ik het berekend heb zou toch wel zo'n 18000 BTU koelvermogen moeten hebben. Het is echter geen keurige vierkante woning, maar met keukenruimte (zonder deur) en een slaapkamer en een overloop. Alleen de slaapkamer heeft een deur. Huiskamer is ongeveer 6 bij 4 meter maar. Maar nogmaals: geen deuren die de ruimte afsluiten, enkel wat muren die ervoor zorgen dat het geen grote, doorlopende open ruimte is. Al met al wel een open ruimte dus, en niet erg groot. Toch kom ik er dan op uit dat ik een koelvermogen van 18000 BTU zou moeten hebben om de boel goed te kunnen koelen. Heb daarom de Eurom Coolperfect 180 op het oog. Voel toch wat absurd voor een helemaal niet zo'n grote woonruimte voor m'n gevoel.

IUs dat nou efficiënt op die manier? Of krijg je dan dat als die in de keuken staat, en het daar dan koel is, die afslaat, terwijl de rest dan helemaal niet goed verkoeld is?
Of zou ik dan ventilatoren moeten gebruiken om de lucht van de keuken naar de woonkamer en de slaapkamer te laten blazen bijvoorbeeld?

Wat is wijsheid in zo'n situatie?

Gelukkig heb ik nog heel lang de tijd om tot de meest slimme keuze te komen. :D Maar dacht ook laat ik het hier eens vragen... hopelijk heeft er iemand goed advies hiervoor.
Mijn allereerste AC was een mobiele: 12.000 BTU en ik koelde er 16m2 mee :+ Dat werkte wel OK, afgezien van de herrie.

Ik heb die toen mijn ouders weg waren ook wel eens in de woonkamer gezet. Die was iets van 36m2 maar dat deed letterlijk echt niks. Temperatuur daalde niet en het voelde ook niet prettiger in de ruimte.

Zou de centen gewoon in je zak houden dan.. :)

PV 4915wp op oost, 2680 wp op west, 1900 wp op zuid. pvoutput - AUX 8 kW bi bloc


Acties:
  • 0 Henk 'm!

  • ik222
  • Registratie: Maart 2007
  • Niet online
Ronnnn schreef op vrijdag 15 januari 2021 @ 18:19:
Ik heb ook een vraag. Heb wat mee zitten lezen in dit topic, en dacht: ook maar eens een profiel aanmaken hier om een vraag te stellen.

Ik wil ook deze zomer ervoor gaan zorgen dat ik dit jaar airco heb. Echter, natuurlijk zou een split-unit ideaal zijn, maar dat is me echt wat te prijzig voor die relatief korte hete periodes dat ik 'm waarschijnlijk toch alleen maar zal gebruiken. Dus mijn keuze gaat uit naar een mobiele airco. Ik ken inmiddels de bezwaren ertegen, maar die neem ik denk ik maar voor lief, en er zijn gelukkig manbieren om de nadelen ervan enigszins tegen te gaan.

Ik heb niet zo'n heel grote woning. Zo'n 49 m² en bij elkaar zo'n 120 m³ heb ik berekend. Veel ramen, plat dak etc. dus volgens hoe ik het berekend heb zou toch wel zo'n 18000 BTU koelvermogen moeten hebben. Het is echter geen keurige vierkante woning, maar met keukenruimte (zonder deur) en een slaapkamer en een overloop. Alleen de slaapkamer heeft een deur. Huiskamer is ongeveer 6 bij 4 meter maar. Maar nogmaals: geen deuren die de ruimte afsluiten, enkel wat muren die ervoor zorgen dat het geen grote, doorlopende open ruimte is. Al met al wel een open ruimte dus, en niet erg groot. Toch kom ik er dan op uit dat ik een koelvermogen van 18000 BTU zou moeten hebben om de boel goed te kunnen koelen. Heb daarom de Eurom Coolperfect 180 op het oog. Voel toch wat absurd voor een helemaal niet zo'n grote woonruimte voor m'n gevoel.

IUs dat nou efficiënt op die manier? Of krijg je dan dat als die in de keuken staat, en het daar dan koel is, die afslaat, terwijl de rest dan helemaal niet goed verkoeld is?
Of zou ik dan ventilatoren moeten gebruiken om de lucht van de keuken naar de woonkamer en de slaapkamer te laten blazen bijvoorbeeld?

Wat is wijsheid in zo'n situatie?

Gelukkig heb ik nog heel lang de tijd om tot de meest slimme keuze te komen. :D Maar dacht ook laat ik het hier eens vragen... hopelijk heeft er iemand goed advies hiervoor.
Het grootste probleem van een mobiele airco is dat ze het overgrote deel van hun eigen werk zelf weer te niet doen door de onderdruk die ze creëren.

Dus nee ook met een 18000BTU mobiel model ga je die woning bij lange na niet koel krijgen. Ja de kamer waar hij staat zal koeler worden, maar de rest van de woning waarschijnlijk alleen maar warmer vanwege de warme lucht die naar binnen getrokken wordt. En dan hebben we het nog niet over het stroomverbruik en de herrie gehad.

Ik zou echt van een mobiele airco afzien, been there done that en daar krijg je echt spijt van.

Acties:
  • 0 Henk 'm!

  • Ronnnn
  • Registratie: Januari 2021
  • Laatst online: 19-02-2021
mr_evil08 schreef op vrijdag 15 januari 2021 @ 18:41:
[...]


Mobiele airco,s zijn echt alleen bedoelt om kort specifieke ruimte,s te koelen, denk aan een slaapkamer, grote ruimtes ga je er niet mee redden, ook niet met de deuren open of ventilatoren erbij.

Mobiele airco vs split airco is letterlijk een wereld van verschil.

Ze creëren een fors onderdruk in je woning, warmte wat uit die slang verdwijnt wordt elders in je woning weer aangezogen, zou je huis helemaal luchtdicht zijn dan gaat er ook geen lucht uit die slang.

Zet voor de grap je afzuigkap eens aan op max afzuigen nu (als je afzuigkap met motor naar buiten hebt) dat effect krijg je dan ook maar omgekeerd en dat doe je dan de hele dag.

Ik heb hier nog een mobiele staan 11000 BTU en dat ding heeft nog grote moeite om een slaapkamer van 4 bij 4 te laten afkoelen (heb ik gemod en aanzuigslang aan gemaakt toen ging het beter).

Dus voorkom die teleurstelling, mijn split koelt met donder en geweld met 2 vingers in de neus de gehele verdieping en ook nog fors minder energie kwijt.
Dat dit voor de meeste mobiele airco's geldt, was me al duidelijk. Vandaar dus dat ik ben gaan kijken voor zo'n superkrachtige variant die wél grote ruimtes zou kunnen koelen, als het goed is. 12000, zelfs 14000 zou niet voldoende zijn volgens de berekening. Kom echt uit op 18.000, ideaal zou zelfs 20.000 BTU zijn geloof ik.

Zou het zelfs met die Eurom 180 niet lukken dus denk je? (schijnt toch de allerkrachtigste mobiel airco te zijn...)

En voor hoe veel geld zou ik dan klaar kunnen zijn, mocht ik tóch voor een split unit gaan?

Ik heb vaak zitten kijken, en kom dan zat modellen tegen van rond de 700 euro of zo. Maar dan ben je er nog lang niet neem ik aan? Inbouwkosten zijn rond de 500 euro of zo? En komt er dan nog meer bij?

Sommige sites doen het voorkomen alsof je met een euro of 1300 of zo klaar zou kunnen zijn, maar ik heb moeite dat te geloven.

Acties:
  • 0 Henk 'm!

  • Ronnnn
  • Registratie: Januari 2021
  • Laatst online: 19-02-2021
ik222 schreef op vrijdag 15 januari 2021 @ 18:47:
[...]

Het grootste probleem van een mobiele airco is dat ze het overgrote deel van hun eigen werk zelf weer te niet doen door de onderdruk die ze creëren.

Dus nee ook met een 18000BTU mobiel model ga je die woning bij lange na niet koel krijgen. Ja de kamer waar hij staat zal koeler worden, maar de rest van de woning waarschijnlijk alleen maar warmer vanwege de warme lucht die naar binnen getrokken wordt. En dan hebben we het nog niet over het stroomverbruik en de herrie gehad.

Ik zou echt van een mobiele airco afzien, been there done that en daar krijg je echt spijt van.
Dat moeten we niet hebben nee. Ik wil dergelijke teleurstellingen voorkomen inderdaad. Vandaar ook dat ik het eens wil vragen aan mensen die er ervaring mee hebben. Wil toch wel tot een verstandige keuze komen.

Toch lees ik wel in reviews over die eurom dat mensen er hun hele bovenverdieping koel mee krijgen, al dan niet behulp van ventilatoren om de koude lucht de kamer in te krijgen.

Ik woon dan ook op bovenverdieping, wat verbouwd is tot een woonkamer, keuken en nog 1 slaapkamer. Eerst waren het allemaal slaapkamers en een douche. (om ff een idee te geven van m'n woonsituatie)

Acties:
  • 0 Henk 'm!

  • Glashelder
  • Registratie: September 2002
  • Niet online

Glashelder

Anti Android

Topicstarter
Ronnnn schreef op vrijdag 15 januari 2021 @ 19:04:
[...]


Dat dit voor de meeste mobiele airco's geldt, was me al duidelijk. Vandaar dus dat ik ben gaan kijken voor zo'n superkrachtige variant die wél grote ruimtes zou kunnen koelen, als het goed is. 12000, zelfs 14000 zou niet voldoende zijn volgens de berekening. Kom echt uit op 18.000, ideaal zou zelfs 20.000 BTU zijn geloof ik.

Zou het zelfs met die Eurom 180 niet lukken dus denk je? (schijnt toch de allerkrachtigste mobiel airco te zijn...)

En voor hoe veel geld zou ik dan klaar kunnen zijn, mocht ik tóch voor een split unit gaan?

Ik heb vaak zitten kijken, en kom dan zat modellen tegen van rond de 700 euro of zo. Maar dan ben je er nog lang niet neem ik aan? Inbouwkosten zijn rond de 500 euro of zo? En komt er dan nog meer bij?

Sommige sites doen het voorkomen alsof je met een euro of 1300 of zo klaar zou kunnen zijn, maar ik heb moeite dat te geloven.
Wellicht krijgt hij het wel koel, maar welke prijs staat daar tegenover? Mobiele units zijn eigenlijk nooit modulerend, dus draaien altijd volle bak. 1,5kW voor 18.000 BTU is niet heel gek. Elk uur dat dat ding draait kost je dan 0,32 cent. Dan wordt een split al snel interessanter.

Bij een installateur is 1500 euro niet heel gek. Ik heb ze zelf uit het buitenland gehaald en 90% van de installatie zelf gedaan. Dan kan het een stuk goedkoper. Installateurs zijn er niet happig op dus je moet goed zoeken :)

PV 4915wp op oost, 2680 wp op west, 1900 wp op zuid. pvoutput - AUX 8 kW bi bloc


Acties:
  • 0 Henk 'm!

  • Ronnnn
  • Registratie: Januari 2021
  • Laatst online: 19-02-2021
Glashelder schreef op vrijdag 15 januari 2021 @ 19:34:
[...]

Wellicht krijgt hij het wel koel, maar welke prijs staat daar tegenover? Mobiele units zijn eigenlijk nooit modulerend, dus draaien altijd volle bak. 1,5kW voor 18.000 BTU is niet heel gek. Elk uur dat dat ding draait kost je dan 0,32 cent. Dan wordt een split al snel interessanter.

Bij een installateur is 1500 euro niet heel gek. Ik heb ze zelf uit het buitenland gehaald en 90% van de installatie zelf gedaan. Dan kan het een stuk goedkoper. Installateurs zijn er niet happig op dus je moet goed zoeken :)
Bedoel je nou dat je soms zo 1500 alleen al aan een installateur kwijt bent? :o
Jezus! Dat is wel gekkenwerk.

Zelf acht ik mij niet in staat zo'n installatie te doen. Maar ik heb wel een hele handige oom. :D

Ik ben wel weer serieus aan het nadenken over een split unit. Natuurlijk is dat wel ideaal. Maar ik wil ook weer niet duizenden euro's hieraan gaan besteden. Zoals ik al zei: ik woon behoorlijk klein, en voor die paar snikhete dagen per jaar...... vandaar ook dat zo'n krachtige mobiele airco wat dat betreft wel een optie voor me is. Ja, hoge energiekosten, maar goed, zo super veel zou ik 'm ook niet gebruiken waarschijnlijk.

Ik heb gelukkig nog ff tijd om nog uitvoerig te twijfelen ;) Split unit is natuurlijk de superieure optie. Aan de andere kant ben ik allang blij als ik het hier 22 graden kan krijgen als het buiten 38 graden is. Afgelopen zomer was het hier dagen lang iedere dag 31 graden binnen. Hoogst gemeten temp was 32 graden. Dat ga ik iig deze zomer niet meer doen!

Acties:
  • 0 Henk 'm!

  • wizzopa
  • Registratie: September 2003
  • Nu online
Ronnnn schreef op vrijdag 15 januari 2021 @ 19:04:
[...]


Dat dit voor de meeste mobiele airco's geldt, was me al duidelijk. Vandaar dus dat ik ben gaan kijken voor zo'n superkrachtige variant die wél grote ruimtes zou kunnen koelen, als het goed is. 12000, zelfs 14000 zou niet voldoende zijn volgens de berekening. Kom echt uit op 18.000, ideaal zou zelfs 20.000 BTU zijn geloof ik.

Zou het zelfs met die Eurom 180 niet lukken dus denk je? (schijnt toch de allerkrachtigste mobiel airco te zijn...)

En voor hoe veel geld zou ik dan klaar kunnen zijn, mocht ik tóch voor een split unit gaan?

Ik heb vaak zitten kijken, en kom dan zat modellen tegen van rond de 700 euro of zo. Maar dan ben je er nog lang niet neem ik aan? Inbouwkosten zijn rond de 500 euro of zo? En komt er dan nog meer bij?

Sommige sites doen het voorkomen alsof je met een euro of 1300 of zo klaar zou kunnen zijn, maar ik heb moeite dat te geloven.
Hier een kosten plaatje van mijn airco en Daikin sensira 2,5 kW 99% zelf gedaan 1 % door een installateur. https://i.imgur.com/FyHtFvq.jpg

PV- 8530Wp..... SWW- Atlantic 200….. WP- Daikin 3,5kW….. Foto’s.....


Acties:
  • 0 Henk 'm!

  • Ronnnn
  • Registratie: Januari 2021
  • Laatst online: 19-02-2021
wizzopa schreef op vrijdag 15 januari 2021 @ 19:42:
[...]

Hier een kosten plaatje van mijn airco en Daikin sensira 2,5 kW 99% zelf gedaan 1 % door een installateur. https://i.imgur.com/FyHtFvq.jpg
Thanks! Dat is wel goed te doen ja... hoe groot is jouw ruimte ongeveer die je hiermee verkoelt?

Acties:
  • +1 Henk 'm!

  • TigerXtrm
  • Registratie: Juni 2007
  • Laatst online: 08-06 18:39
Ronnnn schreef op vrijdag 15 januari 2021 @ 19:04:
[...]


Dat dit voor de meeste mobiele airco's geldt, was me al duidelijk. Vandaar dus dat ik ben gaan kijken voor zo'n superkrachtige variant die wél grote ruimtes zou kunnen koelen, als het goed is. 12000, zelfs 14000 zou niet voldoende zijn volgens de berekening. Kom echt uit op 18.000, ideaal zou zelfs 20.000 BTU zijn geloof ik.

Zou het zelfs met die Eurom 180 niet lukken dus denk je? (schijnt toch de allerkrachtigste mobiel airco te zijn...)

En voor hoe veel geld zou ik dan klaar kunnen zijn, mocht ik tóch voor een split unit gaan?

Ik heb vaak zitten kijken, en kom dan zat modellen tegen van rond de 700 euro of zo. Maar dan ben je er nog lang niet neem ik aan? Inbouwkosten zijn rond de 500 euro of zo? En komt er dan nog meer bij?

Sommige sites doen het voorkomen alsof je met een euro of 1300 of zo klaar zou kunnen zijn, maar ik heb moeite dat te geloven.
1300 euro voor beetje C merk split unit, inclusief aanleg, klinkt op zich wel realistisch, maar je krijgt uiteindelijk waar je voor betaalt. Je zal uiteraard niet de kwaliteit van de in dit topic genoemde merken hebben, maar voor een paar dagen per jaar koelen heb je dat ook zeker niet nodig.

Wat je ook doet, verspil je geld niet aan een mobiele airco met zo'n slang. Zoals hierboven al gezegd wordt doen ze bijna niks, maar ook belangrijk is dat ze echt idioot veel elektriciteit vreten. Op vol vermogen trekt zo'n ding makkelijk meer dan 1kwh uit de muur, en dat dan een flink aantal uur per dag. De kosten daarvan wegen absoluut niet op tegen het beetje koelte dat zo'n ding weet te produceren.

Er bestaan wel mobiele split units die vele malen efficiënter zijn, maar qua prijs ga je dan ook al snel richting de prijs van een vaste split unit, en dan is de keus ook vrij snel gemaakt.

Acties:
  • 0 Henk 'm!

  • Ronnnn
  • Registratie: Januari 2021
  • Laatst online: 19-02-2021
TigerXtrm schreef op vrijdag 15 januari 2021 @ 19:46:
[...]


1300 euro voor beetje C merk split unit, inclusief aanleg, klinkt op zich wel realistisch, maar je krijgt uiteindelijk waar je voor betaalt. Je zal uiteraard niet de kwaliteit van de in dit topic genoemde merken hebben, maar voor een paar dagen per jaar koelen heb je dat ook zeker niet nodig.

Wat je ook doet, verspil je geld niet aan een mobiele airco met zo'n slang. Zoals hierboven al gezegd wordt doen ze bijna niks, maar ook belangrijk is dat ze echt idioot veel elektriciteit vreten. Op vol vermogen trekt zo'n ding makkelijk meer dan 1kwh uit de muur, en dat dan een flink aantal uur per dag. De kosten daarvan wegen absoluut niet op tegen het beetje koelte dat zo'n ding weet te produceren.

Er bestaan wel mobiele split units die vele malen efficiënter zijn, maar qua prijs ga je dan ook al snel richting de prijs van een vaste split unit, en dan is de keus ook vrij snel gemaakt.
Zou qua bedrag nog wel te overzien zijn. Vind alleen wel: als je het doet, kun je beter goed doen. Vandaar ook dat ik zo'n krachtpatser wou kopen als mobiele airco. Als ik dan zo'n split neem, dan toch weer niet te veel echt een c-merk. Dan liever beetje in het midden; een b-merk dus. :D

Het valt nog niet mee hierin een keuze te maken. Maar als een mobiele airco echt zo'n dikke afrader is, kan ik dat denk ik beter niet doen.

Acties:
  • 0 Henk 'm!

  • wizzopa
  • Registratie: September 2003
  • Nu online
Ronnnn schreef op vrijdag 15 januari 2021 @ 19:45:
[...]


Thanks! Dat is wel goed te doen ja... hoe groot is jouw ruimte ongeveer die je hiermee verkoelt?
Deze koel en verwarmt een slaapkamer 40 m3.
Ik heb daar ook een mobiele gehad https://i.imgur.com/Ize62RV.jpg

[ Voor 11% gewijzigd door wizzopa op 15-01-2021 19:54 ]

PV- 8530Wp..... SWW- Atlantic 200….. WP- Daikin 3,5kW….. Foto’s.....


Acties:
  • +1 Henk 'm!

  • Voske89
  • Registratie: Februari 2018
  • Laatst online: 23-01-2023
Ik heb nog een vraag om een omkasting van de buitenunit.

Met een installateur over gehad, deze raad mij dit af omdat blijkbaar de buiten unit harder moet blazen om zijn ventilatie weg te kunnen krijgen.
Ook zou het zijn “vuile lucht” weer opnieuw aanzuigen, dit zou tot een hoger energie verbruik leiden.

We zaten aan dit type omkasting te denken.
https://www.klimate.nl/evolar-omkasting-small-antraciet.html

Acties:
  • 0 Henk 'm!

  • Glashelder
  • Registratie: September 2002
  • Niet online

Glashelder

Anti Android

Topicstarter
Ronnnn schreef op vrijdag 15 januari 2021 @ 19:41:
[...]


Bedoel je nou dat je soms zo 1500 alleen al aan een installateur kwijt bent? :o
Jezus! Dat is wel gekkenwerk.
Haha nee joh. Dan leveren ze ook de airco :p

Kijk bijv. eens bij Climasense. Daar hebben anderen goede ervaringen mee. Heb er net een 2kW Daikin met installatie bij elkaar geklikt en dat kost schijnbaar 1375. Weet niet wat er nog bijkomt, maar dat zal vast geen honderden euro’s zijn.

[ Voor 30% gewijzigd door Glashelder op 15-01-2021 20:12 ]

PV 4915wp op oost, 2680 wp op west, 1900 wp op zuid. pvoutput - AUX 8 kW bi bloc


Acties:
  • 0 Henk 'm!

  • Ronnnn
  • Registratie: Januari 2021
  • Laatst online: 19-02-2021
Glashelder schreef op vrijdag 15 januari 2021 @ 20:09:
[...]

Haha nee joh. Dan leveren ze ook de airco :p

Kijk bijv. eens bij Climasense. Daar hebben anderen goede ervaringen mee. Heb er net een 2kW Daikin met installatie bij elkaar geklikt en dat kost schijnbaar 1375. Weet niet wat er nog bijkomt, maar dat zal vast geen honderden euro’s zijn.
Ff gekeken... ik zou het zelf niet redden met 2kW waarschijnlijk, met een plat dak, veel ramen en 119,4 m³. Dan kom ik toch al weer gauw uit op 1600+ euro op z'n minst, ook daar. Dat is toch wel behoorlijk serieus geld.

Valt hier trouwens niets voor te zeggen:

https://aircogids.nl/mobiele-airco-grote-ruimte/

?

Met name onder het kopje 'Het verschil tussen enkele en dubbele slang'

Acties:
  • 0 Henk 'm!

  • FD2
  • Registratie: Maart 2008
  • Laatst online: 25-10 20:12

FD2

ik222 schreef op dinsdag 12 januari 2021 @ 22:07:
[...]

Net even geprobeerd maar ik hoor geen verschil tussen recht naar beneden uitblazen of volledig horizontaal? Ik kan ook niet bedenken hoe dat verschil zou kunnen maken?
Het verschil is: een laminaire stroming of een turbulente stroming.
Als je de stroming te ver wilt afbuigen dan krijg je turbulentie, en dat hoor je (of niet).

Maar goed, als jij dat niet hoort dan geldt dat dus niet voor jou.


EDIT:
Nooit gemerkt bij vliegreizen dat vlak voor de landing (als de flaps uitgaan) er meer herrie te horen is ?

[ Voor 10% gewijzigd door FD2 op 15-01-2021 21:31 ]

SolarEdge 7980Wp (2280 Oost, 3420 Zuid, 2280 West)    en    Daikin multisplit 2MXM50M met FTXA50A & FTXM25M


Acties:
  • +5 Henk 'm!

  • Tsurany
  • Registratie: Juni 2006
  • Niet online

Tsurany

⭐⭐⭐⭐⭐

Vandaag een monteur langs gehad omdat m'n binnenunit aan gaf dat het 9 graden was terwijl het binnen 16 graden was. Na het open maken van de unit bleek er een aardige, constante koude luchtstroom aanwezig te zijn.
Bleek dat het gat naar buiten goed dicht zat maar dat het vanuit de spouwmuur naar binnen kwam, nu is dat ook gedicht en blijft de temperatuur keurig vergelijkbaar met de werkelijkheid.

SMA SB5.0 + 16x Jinko 310wp OWO + 10x Jinko 310wp WNW |--|--| Daikin 4MXM68N + 1x FTXA50AW + 3x FTXM20N


Acties:
  • 0 Henk 'm!

  • Glashelder
  • Registratie: September 2002
  • Niet online

Glashelder

Anti Android

Topicstarter
Ronnnn schreef op vrijdag 15 januari 2021 @ 21:08:
[...]


Ff gekeken... ik zou het zelf niet redden met 2kW waarschijnlijk, met een plat dak, veel ramen en 119,4 m³. Dan kom ik toch al weer gauw uit op 1600+ euro op z'n minst, ook daar. Dat is toch wel behoorlijk serieus geld.

Valt hier trouwens niets voor te zeggen:

https://aircogids.nl/mobiele-airco-grote-ruimte/

?

Met name onder het kopje 'Het verschil tussen enkele en dubbele slang'
Dubbele slang zou wel kunnen, maar volgens mij zijn die er niet zoveel tenzij je zelf gaat knutselen.

En die Eurom 180 kost ook ergens tussen de 700 a 800 euro. Dat is nog duurder dan een splitje uit het buitenland.. :p

Als je er nou ook mee gaat verwarmen dan verdien je die 1600 weer terug :).

PV 4915wp op oost, 2680 wp op west, 1900 wp op zuid. pvoutput - AUX 8 kW bi bloc


Acties:
  • 0 Henk 'm!

  • Ronnnn
  • Registratie: Januari 2021
  • Laatst online: 19-02-2021
Glashelder schreef op vrijdag 15 januari 2021 @ 21:47:
[...]

Dubbele slang zou wel kunnen, maar volgens mij zijn die er niet zoveel tenzij je zelf gaat knutselen.

En die Eurom 180 kost ook ergens tussen de 700 a 800 euro. Dat is nog duurder dan een splitje uit het buitenland.. :p

Als je er nou ook mee gaat verwarmen dan verdien je die 1600 weer terug :).
Tips voor 'splitjes uit het buitenland'? ;)
Pagina: 1 ... 4 ... 319 Laatste

Dit topic is gesloten.

Let op:
Een vraag over een offerte, plaatsing of uitzoeken van een L/L WP bij jou thuis hoort in een nieuw, eigen topic.
We respecteren elkaars keuzes over energiegebruik en verschillen in comfort.
Laat bij een 'snelle vraag' wel even weten wat je al gevonden hebt, dat voorkomt herhaling van zetten.
Veel relevante informatie en principes zijn ook te vinden in het Het ik-wil-een-warmtepomp FAQ topic , waar je ook een template kan vinden voor een nieuw adviestopic.
Voor MHI vind je veel tips en tweaks in MHI instellingen topic