Bij een geisoleerde vloer wel, in mijn eigen geval is de ruwbouwvloer nog ongeisoleerd en werken we met een pakket van ca 34cm bovenop de beton. Maar als ik hier de stelkozijnen zie heb je waarschijnlijk wel gelijk.bbbrumbrum schreef op zondag 12 februari 2023 @ 22:41:
[...]
Dat is wel heel veel. 5-10cm is iets gebruikelijker voor de dekvloer.
ik had ook die gedachte, maar als je naar de kozijnen kijkt dan is de hoogte bij lange na niet die afstand tussen vloer en WCD.bbbrumbrum schreef op zondag 12 februari 2023 @ 22:41:
[...]
Dat is wel heel veel. 5-10cm is iets gebruikelijker voor de dekvloer.
20 à 30 cm dekvloer? Dat is toch echt niet gebruikelijk hoor. Meestal zit het onder de 10 cm. Anders zou het toch ook veel te zwaar worden?MacgregorSound schreef op zondag 12 februari 2023 @ 22:23:
Er komt natuurlijk nog iets boven op die ruwe betonvloer, dat kan zo 20 a 30cm zijn. Check ff of er ergens een meterpijl of MP aangegeven staat, dat is een referentie van 1000mm boven je afgewerkte vloer.
WP: ME PUHZ-SW75YAA + ERSD-VM2D + EV-WP-TWS-1W 300; AC: ME MXZ-2F42VF + 2x MSZ-LN25VGV; PV: 14.08 kWp O/W + SMA STP 8.0; Vent: Zehnder Q600 ERV + Ubbink AirExcellent.
Zwevende dekvloer op isolatie, dekvloer alleen zou wel overkill zijn idd.Andrehj schreef op maandag 13 februari 2023 @ 19:25:
[...]
20 à 30 cm dekvloer? Dat is toch echt niet gebruikelijk hoor. Meestal zit het onder de 10 cm. Anders zou het toch ook veel te zwaar worden?
Maar dan nog. Mijn bouw is volledig onderkelderd, deels buiten thermische schil, en mijn zwevende vloer is 7 cm isolatie en 7 cm afstrijk.MacgregorSound schreef op maandag 13 februari 2023 @ 20:23:
[...]
Zwevende dekvloer op isolatie, dekvloer alleen zou wel overkill zijn idd.
Mijn huis is slimmer dan ik...
Een zwevende vloer heeft vaak ongeveer 20mm isolatie op de constructieve vloer met daarop 50 tot 70mm dekvloer.
Bij mij ligt er 100 mm isolatie en daarop 70 mm cementdekvloer.Rien43 schreef op dinsdag 14 februari 2023 @ 07:14:
Een zwevende vloer heeft vaak ongeveer 20mm isolatie op de constructieve vloer met daarop 50 tot 70mm dekvloer.
Totale opbouw vloer is 150 mm isolatie, daarop 200 betonvloerm dan de 100 mm isolatie en 70 mm dekvloer.
Er zijn genoeg mogelijkheden natuurlijk, hier ziet het er ook weer anders uit..
- Kanaalplaatvloer 200mm
- Isolatie 200mm
- Dekvloer 80mm
- Afwerking ca. 15mm
Dus als ik straks WCD's ga boren zit ik bijna 600mm vanaf ruwbouwvloer.
- Kanaalplaatvloer 200mm
- Isolatie 200mm
- Dekvloer 80mm
- Afwerking ca. 15mm
Dus als ik straks WCD's ga boren zit ik bijna 600mm vanaf ruwbouwvloer.
Beste Tweakers, zou iemand mij kunnen helpen: wat zijn ongeveer de bouwkosten voor een vrijstaand huis? Ongeveer 160 m2. Gewoon traditionele bouw.
https://www.groothuisbouw.nl/prijsberekenen voor een ideeturkeyhakan schreef op dinsdag 14 februari 2023 @ 20:22:
Beste Tweakers, zou iemand mij kunnen helpen: wat zijn ongeveer de bouwkosten voor een vrijstaand huis? Ongeveer 160 m2. Gewoon traditionele bouw.
onder architectuur wordt nog wel wat duurder. (en vergeet de keuken, badkamer, tuin, zonwering, gordijnen, vloerafwerking etc niet)
[ Voor 11% gewijzigd door twain4me op 14-02-2023 20:38 ]
Denk dat je zo de 5 of 6 ton aantikt.turkeyhakan schreef op dinsdag 14 februari 2023 @ 20:22:
Beste Tweakers, zou iemand mij kunnen helpen: wat zijn ongeveer de bouwkosten voor een vrijstaand huis? Ongeveer 160 m2. Gewoon traditionele bouw.
Hier stond een link voor een Goldcard 1 jaar gratis + 20.000 punten.
De eerder genoemde link van Groothuisbouw geeft al een mooie indicatie. Maar een richtgetal is lastig en hangt van zoveel verschillende factoren af.turkeyhakan schreef op dinsdag 14 februari 2023 @ 20:22:
Beste Tweakers, zou iemand mij kunnen helpen: wat zijn ongeveer de bouwkosten voor een vrijstaand huis? Ongeveer 160 m2. Gewoon traditionele bouw.
Alles tussen de 400 en 1000 euro per m3 kun je aanhouden.
Van heel simpel tot architetonisch en luxe.
Dat kan wel veeel goedkoper. (en duurder
If I agreed with you, we'd both be wrong.
.
[ Voor 99% gewijzigd door FrankSpin op 14-07-2023 22:40 ]
Wat voor kabels zijn dit? Of woon je in België? In NL is het gebruikelijk dat er PVC-buisjes in de meterkast uitkomen.FrankSpin schreef op woensdag 15 februari 2023 @ 08:52:
Het begint gezellig druk te worden in de meterkast
[Afbeelding]
WP: ME PUHZ-SW75YAA + ERSD-VM2D + EV-WP-TWS-1W 300; AC: ME MXZ-2F42VF + 2x MSZ-LN25VGV; PV: 14.08 kWp O/W + SMA STP 8.0; Vent: Zehnder Q600 ERV + Ubbink AirExcellent.
.
[ Voor 99% gewijzigd door FrankSpin op 14-07-2023 22:40 ]
Het wordt nog veeeeel drukkerFrankSpin schreef op woensdag 15 februari 2023 @ 08:52:
Kleine update voor de liefhebbers.
Het begint gezellig druk te worden in de meterkast
[Afbeelding]
Hier ook een kleine update, gisteren zijn de steigers weg gehaald. Toch weer een totaal ander beeld zo, de aankleding van het hout, kozijen en alucobond moet het echt afmaken, het is nu nog een beetje kaal.
:strip_exif()/f/image/wUBGvbbvp5kxqlfUxKdDAr3R.jpg?f=fotoalbum_large)
:strip_exif()/f/image/mPnrW3Ym9zy0r3qOwbVtLvmK.jpg?f=fotoalbum_large)
:strip_exif()/f/image/5a1ZqRUXEARzTlQ0t1I6smS6.jpg?f=fotoalbum_large)
:strip_exif()/f/image/Ex8BQq0YgxI55kBlNRIF90XC.jpg?f=fotoalbum_large)
:strip_exif()/f/image/6VdlYmQOsTV5mKbSbbjhhArJ.jpg?f=fotoalbum_large)
Er zijn zeker wat dingetjes waar ik als ontwerper niet helemaal happy mee ben maar het begint er behoorlijk op te lijken zo
.
[ Voor 116% gewijzigd door FrankSpin op 14-07-2023 22:39 ]
FrankSpin schreef op woensdag 15 februari 2023 @ 09:18:
[...]
Friesland. Dit zijn enkel elektra leidingen. Ik sluit niet uit dat uiteindelijk in de meterkast nog wordt voorzien van buizen in plaats van flex leidingen.
Hier ook Friesland en flex wat uitkomt in de meterkast maar wordt straks omgezet in buizen vanaf de bovenkant van de meterkast.Andrehj schreef op woensdag 15 februari 2023 @ 09:10:
[...]
Wat voor kabels zijn dit? Of woon je in België? In NL is het gebruikelijk dat er PVC-buisjes in de meterkast uitkomen.
En thanks! We krijgen inderdaad geen dakgoten, het water valt straks op de grond in een grind bak. Het viel mij vanochtend wel op dat de pannenlijn wat laag zit en van binnen kijk je bijna in de pan, ik hoop dat als de kozijnen er in zitten dat dit minder opvalt. Waar ik niet tevreden over ben zijn echt allemaal kleine mierenn**k puntjes:
-We hebben twee verschillende kleuren stenen, een donkere en een lichte. De donkere zit tot onder de lijn van de kozijnen aan de voorgevel en loopt rondom maar het contrast is niet te zien en het kleur verschil tussen de stenen is nagenoeg niets. Ik zie het in ieder geval niet
-Zonnenpanelen lijnen niet uit op het hart van de velux dakramen
-Door het gewijzigde detail van het alucobond is de verhouding iets anders geworden dan in het oorspronkelijke ontwerp, daar moet ik nog even aan wennen. Ik denk dat het straks met het zwart rondom wel goed komt.
Enne.... uiteindelijk mag ik totaal niet klagen met wat er staat, super tevreden verder en het wordt echt een heel mooi huis.
[ Voor 44% gewijzigd door FreezingPixels op 15-02-2023 09:29 ]
Ik had niet gezien dat het flex PVC was. Het leken op de foto net kabels. Flex PVC heeft als enige voordeel dat het goedkoop is. Ben er bepaald geen fan van, want naderhand nog iets aan de bedrading aanpassen is nagenoeg onmogelijk.FrankSpin schreef op woensdag 15 februari 2023 @ 09:18:
Friesland. Dit zijn enkel elektra leidingen. Ik sluit niet uit dat uiteindelijk in de meterkast nog wordt voorzien van buizen in plaats van flex leidingen.
WP: ME PUHZ-SW75YAA + ERSD-VM2D + EV-WP-TWS-1W 300; AC: ME MXZ-2F42VF + 2x MSZ-LN25VGV; PV: 14.08 kWp O/W + SMA STP 8.0; Vent: Zehnder Q600 ERV + Ubbink AirExcellent.
.
[ Voor 99% gewijzigd door FrankSpin op 14-07-2023 22:39 ]
Netjes voor 270m2. Wij komen ruim aan hetzelfde bedrag voor in totaal slechts 165m2. Dat is wel inclusief renovatie van de bestaande woning, uitbouw en garage.FrankSpin schreef op woensdag 15 februari 2023 @ 09:15:
[...]
Het hangt echt van zo enorm veel factoren af, dat we echt wat meer informatie nodig hebben om zinnig antwoord te geven. Ik kan wel wat globale cijfers met je delen zodat je beetje idee hebt. De bedragen in overzicht hieronder zijn niet compleet en uit de losse pols afgerond.
Uitgangspunt: Woning 270m2 oppervlakte
Aanneemsom: 510.000
- Voorbereiding: 25.000
- Grondwerk: 8.000
- Betonwerk: 10.000
- Fundering: 6.000
- Lijmen e.d.: 24.000
- Metselen gevel: 42.000
- Isolatie: 15.000
- Steenachtige elementen: 29.000
- Dak: 72.000
- Aftimmering goten: 10.000
- Metaal: 6.000
- Kozijnen 45.000
- Stelkozijnen en binnen kozijnen: 13.000
- Trap: 7000
- Dakpannen: 25.000
- Tegelwerk: 15.000
- Cementdekvloer: 10.000
- Dakgoten. 8.000
- Installatiewerk 110.000
- Heel veel kleine posten
Meerwerk: 100.000
- Meerwerk via aannemer: 15.000
- Binnendeuren: 13.000
- Keuken: 25.000
- Nutsaansluiting: 5.000
- Bestrating: 8.000 (enkel oprit)
- Bijkeuken 2.000
- Badkamer: 8.000
- Vloeren: 23.000
Vergunning en tekening: 20.000
En dan missen er nog dingen zoals stukadoor, schilderwerk, inrichting, tuin, eventuele bijgebouwen zoals garage.
Morpheusk in "Ervaringen met het bouwen van een eigen huis - Deel 2"
Hier stond een link voor een Goldcard 1 jaar gratis + 20.000 punten.
Wat een prachtige woning! Mijn complimentenFreezingPixels schreef op woensdag 15 februari 2023 @ 09:21:
[...]
[...]
Hier ook Friesland en flex wat uitkomt in de meterkast maar wordt straks omgezet in buizen vanaf de bovenkant van de meterkast.
En thanks! We krijgen inderdaad geen dakgoten, het water valt straks op de grond in een grind bak. Het viel mij vanochtend wel op dat de pannenlijn wat laag zit en van binnen kijk je bijna in de pan, ik hoop dat als de kozijnen er in zitten dat dit minder opvalt. Waar ik niet tevreden over ben zijn echt allemaal kleine mierenn**k puntjes:
-We hebben twee verschillende kleuren stenen, een donkere en een lichte. De donkere zit tot onder de lijn van de kozijnen aan de voorgevel en loopt rondom maar het contrast is niet te zien en het kleur verschil tussen de stenen is nagenoeg niets. Ik zie het in ieder geval niet![]()
-Zonnenpanelen lijnen niet uit op het hart van de velux dakramen
-Door het gewijzigde detail van het alucobond is de verhouding iets anders geworden dan in het oorspronkelijke ontwerp, daar moet ik nog even aan wennen. Ik denk dat het straks met het zwart rondom wel goed komt.
Enne.... uiteindelijk mag ik totaal niet klagen met wat er staat, super tevreden verder en het wordt echt een heel mooi huis.
Ik weet zeker dat je gaandeweg het proces nog veel meer dingen gaat zien die niet helemaal zijn zoals je had gewild maar op een gegeven moment leer je loslaten
Als je het verschil in steenkleur wilt benadrukken, kun je straks nog een beetje spelen met voegkleuren. Wij hebben volledig met dezelfde steen gebouwd maar verschillende voegen gebruikt waardoor het lijkt alsof het twee totaal verschillende stenen zijn.
Cabauw/Lopik; 26 x 370 Wp (12 x O/ZO, 14 x W/ZW) 9,6 kWp
Bedankt!!! Veel van de dingen waar ik niet happy mee was hebben we tijdens de bouw nog kunnen aanpassen maar we komen nu in de afbouw waar het gewoon is zoals het is en dus moet ik het inderdaad los gaan laten.Diepie schreef op woensdag 15 februari 2023 @ 10:04:
[...]
Wat een prachtige woning! Mijn complimenten![]()
Ik weet zeker dat je gaandeweg het proces nog veel meer dingen gaat zien die niet helemaal zijn zoals je had gewild maar op een gegeven moment leer je loslaten![]()
Als je het verschil in steenkleur wilt benadrukken, kun je straks nog een beetje spelen met voegkleuren. Wij hebben volledig met dezelfde steen gebouwd maar verschillende voegen gebruikt waardoor het lijkt alsof het twee totaal verschillende stenen zijn.
Mbt de voegkleur, het is al gevoegd en ik was zo slim om een enkele voegkleur te gebruiken. Ach er komen plantjes voor en dan zie je het straks toch niet meer
:strip_exif()/f/image/9vmVD4g92hGBPHQHWosllCNh.jpg?f=fotoalbum_large)
.
[ Voor 99% gewijzigd door FrankSpin op 14-07-2023 22:39 ]
Erg mooi huis! Stijlvol. Volgens mij is alleen de glaszetter vergeten glas te plaatsen in de voorgevel (begane grond)FreezingPixels schreef op woensdag 15 februari 2023 @ 11:39:
[...]
Bedankt!!! Veel van de dingen waar ik niet happy mee was hebben we tijdens de bouw nog kunnen aanpassen maar we komen nu in de afbouw waar het gewoon is zoals het is en dus moet ik het inderdaad los gaan laten.
Mbt de voegkleur, het is al gevoegd en ik was zo slim om een enkele voegkleur te gebruiken. Ach er komen plantjes voor en dan zie je het straks toch niet meer![]()
[Afbeelding]
Komen er nog afwateringsgootjes waar de dakpannen horizontaal grenzen aan het metselwerk? Anders krijg je erg smerig metselwerk denk ik.
[ Voor 7% gewijzigd door Rien43 op 15-02-2023 12:44 ]
De verlichting ga ik zelf maken, ik heb electra onder de 1e tree van de trap uit laten komen, daar komt een led controller en vanuit daar lopen kabeltjes achter de panelen naar de verschillende ledstrips. Het ledprofiel ga ik 3d printen om precies tussen de latjes te passen en ik had gehoopt om met een zwarte diffuser de leds mooi af te kunnen dekken maar dan zie je toch erg de puntjes zitten dus het wordt een witte diffuser.FrankSpin schreef op woensdag 15 februari 2023 @ 12:39:
@FreezingPixels
Nogmaals prachtig! Heb ook even op je instagram account gekeken. Leuk idee met die wood-up panelen, had exact zelfde ingedachte. Heb je al keuze gemaakt voor verlichting tussen de lamellen?
En de glazenbalustrade. Bij welke zaak heb je die besteld en wat waren de kosten daarvan?
De trap en de ballustrade worden door Comforttrappen uit Drachten gemaakt. ongeveer 12.5k voor trap en hekwerk.
Dankje! Er komen geen afwateringsgootjes, er zit nog ongeveer 10cm oversteek van de pan naar het metselwerk en dat gaat nu goed. Natuurlijk met wind slaat het wel terug op de gevel. We laten het metselwerk later dit jaar nog wel impregneren zodat er minimaal vocht in de stenen trekt. De enige plek waar we wel iets moeten gaan doen is de aansluiting van het resaliet en de muur, water van het platte dak loopt via een verholen goot achter de pannen over de muur heen en daar zie je nu wel een vochtplek. Moet nog even overleggen hoe we dat kunnen oplossen.Rien43 schreef op woensdag 15 februari 2023 @ 12:42:
[...]
Erg mooi huis! Stijlvol. Volgens mij is alleen de glaszetter vergeten glas te plaatsen in de voorgevel (begane grond)
Komen er nog afwateringsgootjes waar de dakpannen horizontaal grenzen aan het metselwerk? Anders krijg je erg smerig metselwerk denk ik.
Recentelijk al wat discussie over vloer-opbouw gelezen, toen ik vandaag over onze net gestorte broodjesvloer liep, triggerde mij dat wel qua geluid. Je hoort echt dat je over een "holle vloer" loopt (zo'n 20cm EPS onder een laagje van 7cm beton) en het dreunt over de gehele plaat door. Ik weet dat dit geheel niet representatief is voor de uiteindelijke situatie, maar toch: We krijgen op de ruwbouwvloer weer een 2cm isolatieplaat waar de VVW op gemonteerd wordt (zogenaamde "tackerplaat"), en daar dan weer 8cm dekvloer op.
Dan zit er dus weer een "holle ruimte", nu slechts 2cm onder de betonvloer. Heeft iemand hier ervaring met deze opbouw en het eventuele geluid wat er van zo'n vloer afkomt bij "stevig stappen", we hebben een aaneengesloten oppervlak van zo'n 95 m2. Lijkt me niet 'grappig' als dat hol gaat klinken. Zie ook deze post om een idee te krijgen waarover ik praat.
Ik zal me wel weer 'druk' maken om niets, maar nu kan er eventueel nog iets aangepast worden. Eerder had ik al eens aangegeven dat het me niet verstandig lijkt omdat je zo de thermische massa van de vloer wellicht minder effectief kunt gebruiken (om de temperatuur binnen beter te kunnen beheersen, mijn buurman met HSB moet bij het minste zonnetje de deuren open gooien om de temperatuur niet te zeer op te laten lopen).
Om dan ook maar direct iets over de voortgang te melden even een timelapse van het storten van betreffende vloer
Dan zit er dus weer een "holle ruimte", nu slechts 2cm onder de betonvloer. Heeft iemand hier ervaring met deze opbouw en het eventuele geluid wat er van zo'n vloer afkomt bij "stevig stappen", we hebben een aaneengesloten oppervlak van zo'n 95 m2. Lijkt me niet 'grappig' als dat hol gaat klinken. Zie ook deze post om een idee te krijgen waarover ik praat.
Ik zal me wel weer 'druk' maken om niets, maar nu kan er eventueel nog iets aangepast worden. Eerder had ik al eens aangegeven dat het me niet verstandig lijkt omdat je zo de thermische massa van de vloer wellicht minder effectief kunt gebruiken (om de temperatuur binnen beter te kunnen beheersen, mijn buurman met HSB moet bij het minste zonnetje de deuren open gooien om de temperatuur niet te zeer op te laten lopen).
Om dan ook maar direct iets over de voortgang te melden even een timelapse van het storten van betreffende vloer
[ Voor 6% gewijzigd door Batilan op 17-02-2023 00:04 ]
.
[ Voor 111% gewijzigd door FrankSpin op 14-07-2023 22:39 ]
Wij hebben ook een combinatievloer met broodjes maar dan op palen. Hierop zit een cementdekvloer van 90mm. We wonen er nog niet maar het dak zit er wel op en de kozijnen zitten erin. Nu galmt het nog aardig binnen aangezien er alleen beton is, maar we hebben niet het idee dat er geluid via de vloer verspreid wordt. De cementdekvloer ligt overigens los van de muren aangezien hier isolatie van de vloerverwarming tussen ligt. Aan het beton zit deze wel vast(nat gemaakt netten voor de vloer verwarming erop, vloerverwarming zelf erop, hier weer dunne krimpnetten overheen en dan het cement erover).
@Vaez @FrankSpin Bedankt voor de reacties!
:strip_exif()/f/image/BQcxDy7MjswzCYTUIdNo5krO.jpg?f=fotoalbum_large)
Wat dat betreft komt de opbouw dus aardig overeen. Misschien is het geluid nog niet eens zo "luid", het is meer dat je duidelijk ervaart dat je over een "holle" vloer loopt (waarbij ik wel stevige passen zet). Volgens de aannemer kan het gewoon, constructief zal het ook geen probleem zijn, maar de 'subjectieve' ervaring van geluid kan voor iedereen weer heel anders zijn. Ik hoop dat de 7cm dekvloer voldoende het 'holle geluid' / gevoel gaat dempen.
Volgens de installateur zijn er bij deze constructie geen krimpnetten nodig (wellicht omdat de vloer helemaal los ligt van de betonvloer er onder (vanwege de tackerplaat en isolatie rondom tegen de muren). Ik hoop inderdaad dat er geen scheuren gaan ontstaan omdat we PVC gaan leggen (maar dat is weer een andere wellicht onnodige 'vrees'
)
De plas is een soort 'zandafgraving', dus huis is ook "op staal" gebouwd (een van de weinige plaatsen hier in de polder waar dat mogelijk is, voor het overige te veel veen of zachte kleigrond:FrankSpin schreef op vrijdag 17 februari 2023 @ 08:07:
@Batilan Wij hebben ook een broodjesvloer en ik ervaar echt nul geluid als ik over de ruwe vloer loop. Over de ruwbouwvloer komt bij ons geen isolatieplaat, maar een maximale dekvloer van 90mm. Wat zei je aannemer ervan dan? Hoe is de rest van je fundering opgebouwd? Gezien je locatie aan het water verwacht ik dat je huis op palen staat? Bij ons is het een stroken fundering op staal.
[Afbeelding]
[Afbeelding]
[Afbeelding]
:strip_exif()/f/image/BQcxDy7MjswzCYTUIdNo5krO.jpg?f=fotoalbum_large)
Wat dat betreft komt de opbouw dus aardig overeen. Misschien is het geluid nog niet eens zo "luid", het is meer dat je duidelijk ervaart dat je over een "holle" vloer loopt (waarbij ik wel stevige passen zet). Volgens de aannemer kan het gewoon, constructief zal het ook geen probleem zijn, maar de 'subjectieve' ervaring van geluid kan voor iedereen weer heel anders zijn. Ik hoop dat de 7cm dekvloer voldoende het 'holle geluid' / gevoel gaat dempen.
Een cementdekvloer van 90mm direct op de beton van broodjesvloer zal wel een lekker robuust geheel geven inderdaad. Bij ons staat 30mm isolatie en 70mm dekvloer ingetekend, maar de installateur geeft aan dat ie 20mm isolatie gaat gebruiken, dus dan neem ik aan dat de dekvloer 80mm gaat worden.Vaez schreef op vrijdag 17 februari 2023 @ 09:32:
Wij hebben ook een combinatievloer met broodjes maar dan op palen. Hierop zit een cementdekvloer van 90mm. We wonen er nog niet maar het dak zit er wel op en de kozijnen zitten erin. Nu galmt het nog aardig binnen aangezien er alleen beton is, maar we hebben niet het idee dat er geluid via de vloer verspreid wordt. De cementdekvloer ligt overigens los van de muren aangezien hier isolatie van de vloerverwarming tussen ligt. Aan het beton zit deze wel vast(nat gemaakt netten voor de vloer verwarming erop, vloerverwarming zelf erop, hier weer dunne krimpnetten overheen en dan het cement erover).
Volgens de installateur zijn er bij deze constructie geen krimpnetten nodig (wellicht omdat de vloer helemaal los ligt van de betonvloer er onder (vanwege de tackerplaat en isolatie rondom tegen de muren). Ik hoop inderdaad dat er geen scheuren gaan ontstaan omdat we PVC gaan leggen (maar dat is weer een andere wellicht onnodige 'vrees'
[ Voor 23% gewijzigd door Batilan op 17-02-2023 12:03 ]
Zelfs 50cm flex aan 1 eind van je traject kan het al een uitdaging maken er later iets (anders) doorheen te krijgen. Alleen de meeste ruime bochten zijn nog werkbaar, maar dan had je geen flex nodig. Ik heb het op enkele lastige plekken gebruikt (korte stukken) en het is vreselijk.Rob-T6 schreef op woensdag 15 februari 2023 @ 09:29:
Waarschijnlijk inderdaad voorbedrade flex.
Dat is voor veel installateurs een quick win in arbeid.
Ik heb wel goede ervaringen met flexbuis. Er is veel verschil in kwaliteit en coatings aan de binnenkant.
Let ook op dat vooral bij bochten maar anders ook de buis echt vast zit met klemmen. Als de buis kan bewegen dan is trekken inderdaad waardeloos.
Twee internetkwabels, 3x2.5+1.5.
Gebruikte overigens wel flexible meeradderig, ik kan me voorstellen dat een verschil kan uitmaken
Let ook op dat vooral bij bochten maar anders ook de buis echt vast zit met klemmen. Als de buis kan bewegen dan is trekken inderdaad waardeloos.
Twee internetkwabels, 3x2.5+1.5.
Gebruikte overigens wel flexible meeradderig, ik kan me voorstellen dat een verschil kan uitmaken
Nee, flex zuigt. De flex die ik hier gebruikt hebt is ook gewoon 19mm Pipelife met coating.meijer3 schreef op zaterdag 18 februari 2023 @ 08:01:
Ik heb wel goede ervaringen met flexbuis. Er is veel verschil in kwaliteit en coatings aan de binnenkant.
Let ook op dat vooral bij bochten maar anders ook de buis echt vast zit met klemmen. Als de buis kan bewegen dan is trekken inderdaad waardeloos.
Twee internetkwabels, 3x2.5+1.5.
Gebruikte overigens wel flexible meeradderig, ik kan me voorstellen dat een verschil kan uitmaken
Die is wel minder klote dan de echte rotzooi bij de bouwmarkt, maar het blijft ribbelige rotzooi.
Kabel trekken zal makkelijker zijn dan VD, maar dat laatste is in NL toch nagenoeg de standaard.
Zelfs met een glasvezel trekveer en veul 3M glijmiddel blijft het lekker schelden om dat door flex te krijgen..
Enige voordeel van flex is als het preflex is, dan ben je ietsjes sneller klaar.
Maar in het toekomst kun je er niets meer mee.
Dat kun je ondervangen door alsnog wat extra starre lege buizen naar de ruimtes te brengen voor de toekomst.
Is overigens wel een mooi klusje om zelf te doen, gaat toch veel uren inzitten voor de E-installateur.
Daarna samen met hem trekken en daarna hoeft hij het alleen af te monteren.
.
[ Voor 99% gewijzigd door FrankSpin op 14-07-2023 22:39 ]
Mooie stap weer! Ik zie de ventilatie? kanalen boven het beton uitkomen, hoe wordt dat straks opgelost met je vloerverwarming? Ligt die daar straks gewoon bovenop?FrankSpin schreef op zaterdag 18 februari 2023 @ 14:27:
Verdiepingsvloer is donderdag afgestort en komende week lijmen van de etage. Ook is staal geplaatst voor de schuifpuien. (Over de verdiepingsvloer komt nog zandcement dekvloer)
[Afbeelding]
[Afbeelding]
[Afbeelding]
[Afbeelding]
Dat lijken mij inderdaad de ventilatiebuizen. Hoe ik denk dat het gaat worden is dat hier nog optioneel isolatiemateriaal bovenop komt, dan de noppenmatten (of folie -- pick your poison) voor de vloerverwarmingsbuizen, daarin geklemd de vloerverwarming en daar wordt dan weer de dekvloer bovenop gestort.FreezingPixels schreef op zaterdag 18 februari 2023 @ 14:31:
[...]
Mooie stap weer! Ik zie de ventilatie? kanalen boven het beton uitkomen, hoe wordt dat straks opgelost met je vloerverwarming? Ligt die daar straks gewoon bovenop?
Misschien is het een Vlaams begrip, maar wat is een etage lijmen precies?
.
[ Voor 100% gewijzigd door FrankSpin op 14-07-2023 22:39 ]
Gisteren het kelderdek / begage grond vloer gestort. 42,5 m³ beton ging er in. Vanochtend de bekisting verwijderd. De rest van carnaval kan het mooi uitharden

Mijn huis is slimmer dan ik...
Heeft hier iemand toevallig ervaring met het bijkleuren/inkleuren van metselwerk? Als ik er op google dan kom ik mooie voorbeelden tegen maar ik ben benieuwd hoe dat zich houd op langer termijn. Het ontbreken van contrast in het trasraam blijft mij toch wel storen, zeker met het zonnetje er op dus ben opzoek naar een manier om dat terug te brengen.
:strip_exif()/f/image/E3NOt5DXbdNTvMn5eClP6JMh.jpg?f=fotoalbum_large)
:strip_exif()/f/image/cpmLB3V6H2H45Dbf6IB4Bfn5.jpg?f=fotoalbum_large)
Het is m'n eigen fout geweest door de verkeerde keuze van de steen maar ik had toch wat meer contrast verwacht tussen 'light' en 'dark'. Heb van beide een sample box ontvangen maar natuurlijk in de lichte box alleen maar lichte stenen en in de donkere alleen maar donkere....
https://www.vandersanden....nd-solutions/nevado-light
https://www.vandersanden....and-solutions/nevado-dark
De optie van plantjes er voor blijft natuurlijk staan
:strip_exif()/f/image/E3NOt5DXbdNTvMn5eClP6JMh.jpg?f=fotoalbum_large)
:strip_exif()/f/image/cpmLB3V6H2H45Dbf6IB4Bfn5.jpg?f=fotoalbum_large)
Het is m'n eigen fout geweest door de verkeerde keuze van de steen maar ik had toch wat meer contrast verwacht tussen 'light' en 'dark'. Heb van beide een sample box ontvangen maar natuurlijk in de lichte box alleen maar lichte stenen en in de donkere alleen maar donkere....
https://www.vandersanden....nd-solutions/nevado-light
https://www.vandersanden....and-solutions/nevado-dark
De optie van plantjes er voor blijft natuurlijk staan
Nm
[ Voor 96% gewijzigd door Deleon78 op 19-02-2023 11:17 ]
die lijken te zijn gaan drijven ik heb voor kanaalplaten weinig "gevoel" maar volgens mij blijven kanalen normaal onder het oppervlak van de plaat.FrankSpin schreef op zaterdag 18 februari 2023 @ 15:10:
@FreezingPixels @keeperson Zijn inderdaad platte ventielatiebuizen. Verwacht dat er wapeningsnetje opkomt met afstandblokjes waar de vloerverwarming op gemonteerd wordt.
Het lijmen van kalkzandsteen blokken voor de muren op de etage ;-)
[ Voor 8% gewijzigd door twain4me op 19-02-2023 11:21 ]
.
[ Voor 99% gewijzigd door FrankSpin op 14-07-2023 22:39 ]
@FrankSpin Breedplaat
Ik weet niet of je een andere kleur voeg gebruikt hebtin t trasraam? Vaak gebruik je dan ook een iets donkere voeg. Maar in jou geval heb je lichte stenen boven maar al een donkere voeg. Een idee is t nog donker, of juist een lichtere voeg te vroegen. (klinkt misschien wat extreem maar kan denk ik wel werken)FreezingPixels schreef op zondag 19 februari 2023 @ 10:47:
Het is m'n eigen fout geweest door de verkeerde keuze van de steen maar ik had toch wat meer contrast verwacht tussen 'light' en 'dark'. Heb van beide een sample box ontvangen maar natuurlijk in de lichte box alleen maar lichte stenen en in de donkere alleen maar donkere....
En als je een diepe voeg hebt, kan je die misschien iets laten opvullen met een andere kleur?
Zelf geen ervaring mee met overvoegen.
Of over 10 jaar alleen de bovenkant laten reinigen
@FreezingPixels je zou je vraag het beste aan de leverancier kunnen stellen. Het hangt erg af van de grondstof en de bakmethode of en hoe dit gaat werken.
Ik denk niet dat het hier speelt, maar bakstenen in de bouw zijn vaak donkerder omdat ze nog veel vocht (van regen en specie) vasthouden. Na enkele maanden zijn de stenen droog en dan zien ze er wat anders uit. Zou dus sowieso even wachten voordat je er een chemische behandeling op los laat.
Ik denk niet dat het hier speelt, maar bakstenen in de bouw zijn vaak donkerder omdat ze nog veel vocht (van regen en specie) vasthouden. Na enkele maanden zijn de stenen droog en dan zien ze er wat anders uit. Zou dus sowieso even wachten voordat je er een chemische behandeling op los laat.
meijer3 schreef op zondag 19 februari 2023 @ 17:10:
[...]
Ik weet niet of je een andere kleur voeg gebruikt hebtin t trasraam? Vaak gebruik je dan ook een iets donkere voeg. Maar in jou geval heb je lichte stenen boven maar al een donkere voeg. Een idee is t nog donker, of juist een lichtere voeg te vroegen. (klinkt misschien wat extreem maar kan denk ik wel werken)
En als je een diepe voeg hebt, kan je die misschien iets laten opvullen met een andere kleur?
Zelf geen ervaring mee met overvoegen.
Of over 10 jaar alleen de bovenkant laten reinigen
Via de aannemer iemand kunnen vinden die het kan bij kleuren en die heeft daar ook goede ervaring mee. Uiteindelijk is het iets van een dag werk en waarschijnlijk laten we dan de voegen en de stenen donkerder maken. Eerst even het hele huis afmaken en opleveren en daarna kijken of het nog nodig is. Ook dit kan dus weer opgelost wordenspatialfabric schreef op zondag 19 februari 2023 @ 18:54:
@FreezingPixels je zou je vraag het beste aan de leverancier kunnen stellen. Het hangt erg af van de grondstof en de bakmethode of en hoe dit gaat werken.
Ik denk niet dat het hier speelt, maar bakstenen in de bouw zijn vaak donkerder omdat ze nog veel vocht (van regen en specie) vasthouden. Na enkele maanden zijn de stenen droog en dan zien ze er wat anders uit. Zou dus sowieso even wachten voordat je er een chemische behandeling op los laat.
Ik bouw een smart-home, waarbij alles aan elkaar gekoppeld is via KNX en DALI voor verlichting. Alleen al in het kelderdek is bijna een km pijp gegaan. Om er niet één grote spaghetti van te maken, werk ik met verschillende verdelers per verdieping.
Nu komen normaal gesproken die pijpen 'ergens' als een bundel uit het beton, maar ik wil dat gewoon keurig strak en in de juiste volgorde. Met behulp van betonplex heb ik platen met het juiste gatenpatroon gemaakt en die onder de sapring in het dek heb geschroefd. vervolgens een tweede plaat met daarom de standaard klemmen van Hager om alles keurig strak op ene rij te laten instorten. Blij met het resultaat

Nu komen normaal gesproken die pijpen 'ergens' als een bundel uit het beton, maar ik wil dat gewoon keurig strak en in de juiste volgorde. Met behulp van betonplex heb ik platen met het juiste gatenpatroon gemaakt en die onder de sapring in het dek heb geschroefd. vervolgens een tweede plaat met daarom de standaard klemmen van Hager om alles keurig strak op ene rij te laten instorten. Blij met het resultaat


Mijn huis is slimmer dan ik...
Nice hoorConrado schreef op maandag 20 februari 2023 @ 19:52:
Ik bouw een smart-home, waarbij alles aan elkaar gekoppeld is via KNX en DALI voor verlichting. Alleen al in het kelderdek is bijna een km pijp gegaan. Om er niet één grote spaghetti van te maken, werk ik met verschillende verdelers per verdieping.
Nu komen normaal gesproken die pijpen 'ergens' als een bundel uit het beton, maar ik wil dat gewoon keurig strak en in de juiste volgorde. Met behulp van betonplex heb ik platen met het juiste gatenpatroon gemaakt en die onder de sapring in het dek heb geschroefd. vervolgens een tweede plaat met daarom de standaard klemmen van Hager om alles keurig strak op ene rij te laten instorten. Blij met het resultaat
[Afbeelding]
[Afbeelding]
Bij mij is het een enorme bundel. Dat werkt toch iets minder handig dan dit systeem
Zijn de kammetjes achteraf weggehaald?
Beide foto’s zijn na elkaar gemaakt, dus na het betonstorten. De achterplaat zit zo’n 12mm van de muur, dus voldoende ruimte om de wand te stucken.keeperson schreef op maandag 20 februari 2023 @ 23:55:
Zijn de kammetjes achteraf weggehaald?
Mijn huis is slimmer dan ik...
Achter de buisjes stucen?Conrado schreef op dinsdag 21 februari 2023 @ 07:58:
[...]
Beide foto’s zijn na elkaar gemaakt, dus na het betonstorten. De achterplaat zit zo’n 12mm van de muur, dus voldoende ruimte om de wand te stucken.
Wordt misschien wel wat krap.
Ha, ha, nee dat brengt ook niet zo veelbuiter schreef op dinsdag 21 februari 2023 @ 08:49:
Achter de buisjes stucen?
Wordt misschien wel wat krap.
Daaromheen wel. Als je dan een achterplaat monteert ligt die op het stucwerk, dat bedoelde ik eigenlijk. Dit is niet de officiële meterkast.
Mijn huis is slimmer dan ik...
ik zit met een probleem waar jullie mij misschien mee kunnen helpen. Ik ben een trap aan het bekisten ( wordt achteraf gestort).
Hoogte : 202 cm
Breedte trapgat 231 cm
Hoek 45 graden.
wanneer ik 9 treden bereken kom ik op:
optrede: 22,44
aantrede: 25,66. Aantrede is perfect, optrede is verre van ideaal.
Bij 11 treden heb je ideale optrede maar geen optimale aantrede. Wat doe ik verkeerd? of wat moet ik anders doen?
Hoogte : 202 cm
Breedte trapgat 231 cm
Hoek 45 graden.
wanneer ik 9 treden bereken kom ik op:
optrede: 22,44
aantrede: 25,66. Aantrede is perfect, optrede is verre van ideaal.
Bij 11 treden heb je ideale optrede maar geen optimale aantrede. Wat doe ik verkeerd? of wat moet ik anders doen?
Je zou er voor kunnen kiezen om de optrede (bekistingsplank/balk) scheef te plaatsen zodat het beter uit komt. Maar dat is een kwestie van smaak en/of stijl. Of in dit geval; geen andere keuze? Misschien een kwartslag draai er in maken of iets, mits daar plaats voor is?karelkale schreef op woensdag 22 februari 2023 @ 20:11:
ik zit met een probleem waar jullie mij misschien mee kunnen helpen. Ik ben een trap aan het bekisten ( wordt achteraf gestort).
Hoogte : 202 cm
Breedte trapgat 231 cm
Hoek 45 graden.
wanneer ik 9 treden bereken kom ik op:
optrede: 22,44
aantrede: 25,66. Aantrede is perfect, optrede is verre van ideaal.
Bij 11 treden heb je ideale optrede maar geen optimale aantrede. Wat doe ik verkeerd? of wat moet ik anders doen?
Deze trap moet dus eigenlijk minder steil. Je zou nog kunnen gaan voor 10 treden. Hier hebben we ook optredes van 20 cm en dat loopt prima. Jij zit daar maar 2mm boven.karelkale schreef op woensdag 22 februari 2023 @ 20:11:
ik zit met een probleem waar jullie mij misschien mee kunnen helpen. Ik ben een trap aan het bekisten ( wordt achteraf gestort).
Hoogte : 202 cm
Breedte trapgat 231 cm
Hoek 45 graden.
wanneer ik 9 treden bereken kom ik op:
optrede: 22,44
aantrede: 25,66. Aantrede is perfect, optrede is verre van ideaal.
Bij 11 treden heb je ideale optrede maar geen optimale aantrede. Wat doe ik verkeerd? of wat moet ik anders doen?
WP: ME PUHZ-SW75YAA + ERSD-VM2D + EV-WP-TWS-1W 300; AC: ME MXZ-2F42VF + 2x MSZ-LN25VGV; PV: 14.08 kWp O/W + SMA STP 8.0; Vent: Zehnder Q600 ERV + Ubbink AirExcellent.
Zeker, scheelt hier 5k ex. btw. Moet de keuze nog maken. Maar het is wel serieus geld. En anders hopen dat ze de bochten niet te krap leggen.Rob-T6 schreef op woensdag 15 februari 2023 @ 09:29:
Waarschijnlijk inderdaad voorbedrade flex.
Dat is voor veel installateurs een quick win in arbeid.
Er bestaan speciale dunnere trekveren voor flexbuizen. Maar zijn wel goed aan de prijs…
https://www.rexel.nl/nln/...nkelstrengig/p/2850307587
https://www.rexel.nl/nln/...ekveersysteem/c/EC000167x
Hier stond een link voor een Goldcard 1 jaar gratis + 20.000 punten.
Heb ik, blijft kudt.Morpheusk schreef op woensdag 22 februari 2023 @ 22:46:
[...]
Zeker, scheelt hier 5k ex. btw. Moet de keuze nog maken. Maar het is wel serieus geld. En anders hopen dat ze de bochten niet te krap leggen.
Er bestaan speciale dunnere trekveren voor flexbuizen. Maar zijn wel goed aan de prijs…
https://www.rexel.nl/nln/...nkelstrengig/p/2850307587
https://www.rexel.nl/nln/...ekveersysteem/c/EC000167x
En waarom zouden ze ruime bochten leggen als er niets meer doorheen getrokken hoeft te worden?
Ik heb heel veel gehad aan deze tool http://www.zhitov.ru/nl/lestnica/ om te zoeken naar een trap die effectief zou zijn.karelkale schreef op woensdag 22 februari 2023 @ 20:11:
ik zit met een probleem waar jullie mij misschien mee kunnen helpen. Ik ben een trap aan het bekisten ( wordt achteraf gestort).
Hoogte : 202 cm
Breedte trapgat 231 cm
Hoek 45 graden.
wanneer ik 9 treden bereken kom ik op:
optrede: 22,44
aantrede: 25,66. Aantrede is perfect, optrede is verre van ideaal.
Bij 11 treden heb je ideale optrede maar geen optimale aantrede. Wat doe ik verkeerd? of wat moet ik anders doen?
Was advocaat maar vindt het juridische nog steeds leuk
Wij gaan tijdelijk in een stacaravan op onze kavel wonen gedurende de bouw van ons huis. Hiervoor hebben wij uiteraard ook internet nodig. Nu heeft T-mobile 4G voor thuis. Echter, naar nu blijkt is op ons nieuwe adres dit niet mogelijk. Ik heb gemerkt dat dit gloednieuwe adres nog veelal niet in de openbare systemen staat. Dit kan de reden zijn dat T-mobile aangeeft dat op het adres 4G voor thuis niet mogelijk is. Een adres dat al langer bestaat dichtbij ons nieuwe adres wordt wel geaccepteerd door T-mobile. T-mobile houdt vol dat 4G voor ons niet mogelijk is.
Nu ben ik aan het kijken naar alternatieven, maar die zijn volgens mij erg beperkt. Enige wat ik kan bedenken is een mifi router met een mobiele unlimited simkaart erin. Echter dan zit ik volgens mij met een maximaal dataverbruik, wat met een mobiel niet erg is, maar als wij ook tv willen kijken via internet wordt het een ander verhaal.
Hebben jullie nog tips / adviezen?
Nu ben ik aan het kijken naar alternatieven, maar die zijn volgens mij erg beperkt. Enige wat ik kan bedenken is een mifi router met een mobiele unlimited simkaart erin. Echter dan zit ik volgens mij met een maximaal dataverbruik, wat met een mobiel niet erg is, maar als wij ook tv willen kijken via internet wordt het een ander verhaal.
Hebben jullie nog tips / adviezen?
Je zou eens kunnen kijken naar starlink! Goede snelheid , redelijk betaalbaar!Rien43 schreef op donderdag 23 februari 2023 @ 07:34:
Wij gaan tijdelijk in een stacaravan op onze kavel wonen gedurende de bouw van ons huis. Hiervoor hebben wij uiteraard ook internet nodig. Nu heeft T-mobile 4G voor thuis. Echter, naar nu blijkt is op ons nieuwe adres dit niet mogelijk. Ik heb gemerkt dat dit gloednieuwe adres nog veelal niet in de openbare systemen staat. Dit kan de reden zijn dat T-mobile aangeeft dat op het adres 4G voor thuis niet mogelijk is. Een adres dat al langer bestaat dichtbij ons nieuwe adres wordt wel geaccepteerd door T-mobile. T-mobile houdt vol dat 4G voor ons niet mogelijk is.
Nu ben ik aan het kijken naar alternatieven, maar die zijn volgens mij erg beperkt. Enige wat ik kan bedenken is een mifi router met een mobiele unlimited simkaart erin. Echter dan zit ik volgens mij met een maximaal dataverbruik, wat met een mobiel niet erg is, maar als wij ook tv willen kijken via internet wordt het een ander verhaal.
Hebben jullie nog tips / adviezen?
Goede, alleen vind ik de prijs wel hoog (85 euro per maand + 450 euro). Maar als dit de enige goede optie is dan is het te overwegen.corneej schreef op donderdag 23 februari 2023 @ 07:37:
[...]
Je zou eens kunnen kijken naar starlink! Goede snelheid , redelijk betaalbaar!
De hardware is na je bouw periode weer goed door te verkopen , ik weet zo 1-2-3 niet wat de maandelijkse kosten zijn voor t-mobile voor thuis, maar wat je wellicht ook kunt doen, is t-mobile voor thuis aanvragen op je ouders / vrienden adres. De dekking van 4G zou je van te voren kunnen “testen” met een telefoon met mobiele data van t-mobile.Rien43 schreef op donderdag 23 februari 2023 @ 07:41:
[...]
Goede, alleen vind ik de prijs wel hoog (85 euro per maand + 450 euro). Maar als dit de enige goede optie is dan is het te overwegen.
Het probleem bij 4g voor thuis is dat het, zover ik weet, door een partner van tmobile geïnstalleerd moet worden. Hierdoor is het lastig om een ander adres op te geven.corneej schreef op donderdag 23 februari 2023 @ 07:51:
[...]
De hardware is na je bouw periode weer goed door te verkopen , ik weet zo 1-2-3 niet wat de maandelijkse kosten zijn voor t-mobile voor thuis, maar wat je wellicht ook kunt doen, is t-mobile voor thuis aanvragen op je ouders / vrienden adres. De dekking van 4G zou je van te voren kunnen “testen” met een telefoon met mobiele data van t-mobile.
Wat ik wel zou kunnen doen is de sim only variant nemen. Dan is dit geen issue. Echter is dan de downloadsnelheid slechts max. 30mbit.Rien43 schreef op donderdag 23 februari 2023 @ 07:53:
[...]
Het probleem bij 4g voor thuis is dat het, zover ik weet, door een partner van tmobile geïnstalleerd moet worden. Hierdoor is het lastig om een ander adres op te geven.
Ik heb t mobile thuis. Unlimitted data maar pas op er zit een beveilignsgrens op van 5 gig per dag, daarna moet je steeds 1 gig gratis aanvragen. Met een beetje streamen ben je daar zo doorheen.
17,5 kWp zuid Vaillant Arotherm plus 55/6, 75/6 en 125/6
Afgelopen week een nieuwe offerte aangevraagd voor 1 ruit die beschadigd is door slijpsel. Ruim 40% duurder dan in 2021 en blijkbaar is de prijs al weer behoorlijk gedaald. Met deze prijzen hadden we het huis niet zo kunnen ontwerpen en bouwen als we nu doen.
Zit je midden in het bouwprocess ben je nog steeds verbaasd van bepaalde prijsstijgingen.
Zit je midden in het bouwprocess ben je nog steeds verbaasd van bepaalde prijsstijgingen.

Hier hetzelfde verhaal, ook op een vals adres (van mn ouders) besteld. Heeft altijd goed gewerkt, alleen de datalimiet was wel een ding. Die zou er niet zijn, maar je moest na 10GB (?) voor elke GB extra een code invoeren in de app.Rien43 schreef op donderdag 23 februari 2023 @ 07:34:
Wij gaan tijdelijk in een stacaravan op onze kavel wonen gedurende de bouw van ons huis. Hiervoor hebben wij uiteraard ook internet nodig. Nu heeft T-mobile 4G voor thuis. Echter, naar nu blijkt is op ons nieuwe adres dit niet mogelijk. Ik heb gemerkt dat dit gloednieuwe adres nog veelal niet in de openbare systemen staat. Dit kan de reden zijn dat T-mobile aangeeft dat op het adres 4G voor thuis niet mogelijk is. Een adres dat al langer bestaat dichtbij ons nieuwe adres wordt wel geaccepteerd door T-mobile. T-mobile houdt vol dat 4G voor ons niet mogelijk is.
Nu ben ik aan het kijken naar alternatieven, maar die zijn volgens mij erg beperkt. Enige wat ik kan bedenken is een mifi router met een mobiele unlimited simkaart erin. Echter dan zit ik volgens mij met een maximaal dataverbruik, wat met een mobiel niet erg is, maar als wij ook tv willen kijken via internet wordt het een ander verhaal.
Hebben jullie nog tips / adviezen?
Irritant, maar wel te doen. Snelheid was OK voor Netflix.
Zorg dat je een goede externe antenne voor je router hebt.
Edit: wat @ds23man al zei dus. Alleen zijn opmerking hieronder kan ik niet beamen, bij"kopen" ging meestal vrij vlot (<1minuut).
En weet je zeker dat je een stacaravan wilt? Qua formaat bedoel ik.
[ Voor 6% gewijzigd door bbbrumbrum op 23-02-2023 12:43 ]
Sterker nog; hij staat al op de kavel. En de ruimte in onze stacaravan valt mij nog mee. Prima woonkamer, keuken met zitgedeelte, 3 slaapkamers.... wat wil een mens nog meer?bbbrumbrum schreef op donderdag 23 februari 2023 @ 12:28:
[...]
En weet je zeker dat je een stacaravan wilt? Qua formaat bedoel ik.
De grens bij T mobile is 5 gig. Dan wordt je gigantisch terug gezet qua snelheid en op hun website die extreem veel dataverkeer kost moet je dan 1 gig "bijkopen". Daar ben je zo een half uurtje mee zoet.
17,5 kWp zuid Vaillant Arotherm plus 55/6, 75/6 en 125/6
Als alternatief zie ik ook nog evenwifi. Iemand hier ervaring mee? Wel prijzig, maar op internet lees ik veel goede recensies.ds23man schreef op donderdag 23 februari 2023 @ 12:42:
De grens bij T mobile is 5 gig. Dan wordt je gigantisch terug gezet qua snelheid en op hun website die extreem veel dataverkeer kost moet je dan 1 gig "bijkopen". Daar ben je zo een half uurtje mee zoet.
Hier ook 4G van T mobile maar ik heb het extra snel pakket. 100mbit met een databundel van 500gig per maand. mocht je dat binnen een maand verbruiken dan kun je simpel via de app bundeltjes van 5gig toevoegen. die zijn gratis. werkt prima
Ik heb ook al anderhalf jaar dit pakket, maar hoef nooit te upgraden. DIt was in het begin wel, maar de laatste maanden echt niet meer. Daarnaast is het upgraden een kwestie van een button indrukken op je telefoon. Stelt allemaal niet zo veel voor. Ik ben er 1,5 jaar enorm mee vooruit geholpen. Is niet 100 procent betrouwbaar, maar wel 99% en dat was voor mij meer dan voldoende. Prijs was echt heel schappelijk. ALs ik juist ben onbeperkt internet 1e jaar 36 euro, daarna 26 euro per maand. Kom daar maar eens om bij andere providers.Clive schreef op donderdag 23 februari 2023 @ 12:54:
Hier ook 4G van T mobile maar ik heb het extra snel pakket. 100mbit met een databundel van 500gig per maand. mocht je dat binnen een maand verbruiken dan kun je simpel via de app bundeltjes van 5gig toevoegen. die zijn gratis. werkt prima
Je kunt in je bouwaansluiting ook internet/kabel aanvragen, toch?Rien43 schreef op donderdag 23 februari 2023 @ 07:34:
Wij gaan tijdelijk in een stacaravan op onze kavel wonen gedurende de bouw van ons huis. Hiervoor hebben wij uiteraard ook internet nodig.
Mijn huis is slimmer dan ik...
Dat werkt dus niet. 4 G thuis is een databundel die je met een sim in een router gebruikt.JPruissen schreef op donderdag 23 februari 2023 @ 13:43:
[...]
Ik heb ook al anderhalf jaar dit pakket, maar hoef nooit te upgraden. DIt was in het begin wel, maar de laatste maanden echt niet meer. Daarnaast is het upgraden een kwestie van een button indrukken op je telefoon. Stelt allemaal niet zo veel voor. Ik ben er 1,5 jaar enorm mee vooruit geholpen. Is niet 100 procent betrouwbaar, maar wel 99% en dat was voor mij meer dan voldoende. Prijs was echt heel schappelijk. ALs ik juist ben onbeperkt internet 1e jaar 36 euro, daarna 26 euro per maand. Kom daar maar eens om bij andere providers.
17,5 kWp zuid Vaillant Arotherm plus 55/6, 75/6 en 125/6
@Conrado Wij hebben gewoon KPN ADSL gratis aan laten leggen en het modem stond de eerste tijd in de bouwkast. Netwerkkabel naar de woonunit en klaar. KPN was zo vriendelijk om hun draad extra lang te maken, die heb ik bij het omzetten van onze aansluiting zelf naar de meterkast gebracht en daar aangesloten
(glasvezel had ook gekund ws., maar dat kostte allemaal duizenden euro's, Ziggo idem).
(glasvezel had ook gekund ws., maar dat kostte allemaal duizenden euro's, Ziggo idem).
Ik ben op zoek naar het juiste gereedschap om een stuk van de dagkant die in het beton zit af te frezen/slijpen:
/f/image/7AavFVKKsoWEoMxYT5CkgsYr.png?f=fotoalbum_large)
Ik wil van de kopse kant +-1,5cm afhebben zodat ik het daarna weer kan opvullen met een stucplaat, op deze manier is de stucplaat gelijk aan de betonnen muur en kan de stucadoor hier overheen stucen.
Op dit moment zit de dagkant exact gelijk met het beton. Als ik daar eerst een stucplaat op plaats komt deze te ver van het beton en kan het alleen worden opgelost met 1,5cm dik stucwerk over de hele muur wat ik ook niet wil.
Is er een freesmachine die hiervoor geschikt is of heeft iemand anders een tip hoe dit op te lossen? Bedankt
Hier nog een close-up foto:
/f/image/7AavFVKKsoWEoMxYT5CkgsYr.png?f=fotoalbum_large)
Ik wil van de kopse kant +-1,5cm afhebben zodat ik het daarna weer kan opvullen met een stucplaat, op deze manier is de stucplaat gelijk aan de betonnen muur en kan de stucadoor hier overheen stucen.
Op dit moment zit de dagkant exact gelijk met het beton. Als ik daar eerst een stucplaat op plaats komt deze te ver van het beton en kan het alleen worden opgelost met 1,5cm dik stucwerk over de hele muur wat ik ook niet wil.
Is er een freesmachine die hiervoor geschikt is of heeft iemand anders een tip hoe dit op te lossen? Bedankt
Hier nog een close-up foto:
:strip_exif()/f/image/DXAq8TLlH9faxb913us5Padu.jpg?f=fotoalbum_large)
Met een cirkelzaag erop waarbij de diepte beperkt is ingesteld zodat het blad niet het beton raakt. Laatste stukjes doe je met een multitool. Beter nog is de plaat er eerst af te schroeven, maar ik ga er van uit dat dat geen optie is nu ?Figaro9 schreef op donderdag 23 februari 2023 @ 21:51:
Ik ben op zoek naar het juiste gereedschap om een stuk van de dagkant die in het beton zit af te frezen/slijpen:
[Afbeelding]
Ik wil van de kopse kant +-1,5cm afhebben zodat ik het daarna weer kan opvullen met een stucplaat, op deze manier is de stucplaat gelijk aan de betonnen muur en kan de stucadoor hier overheen stucen.
Op dit moment zit de dagkant exact gelijk met het beton. Als ik daar eerst een stucplaat op plaats komt deze te ver van het beton en kan het alleen worden opgelost met 1,5cm dik stucwerk over de hele muur wat ik ook niet wil.
Is er een freesmachine die hiervoor geschikt is of heeft iemand anders een tip hoe dit op te lossen? Bedankt
Hier nog een close-up foto:
[Afbeelding]
Een cirkelzaag is inderdaad misschien wel een optie inderdaad met de juiste afstelling. Een multitool heb ik nog niet (wel vaak naar gekeken) maar dat is wellicht het juiste moment om er een aan te schaffen.Olympialooping schreef op donderdag 23 februari 2023 @ 22:23:
[...]
Met een cirkelzaag erop waarbij de diepte beperkt is ingesteld zodat het blad niet het beton raakt. Laatste stukjes doe je met een multitool. Beter nog is de plaat er eerst af te schroeven, maar ik ga er van uit dat dat geen optie is nu ?
Platen eraf is geen optie inderdaad omdat de kozijnen er al inzitten (en de plaat loopt daaronder door)
Kantenfrees is wss wel het makkelijkst om een x mm eraf te halen. Invalzaag kan ook, wel ff kijken hoe je de lineail vastzet. Laatste paar tienden kun je met goed breekmesje wegsnijden. Multitool is leuk, maar niet om meters mee te maken.
Maar zet de stukadoor hier geen hoekprofiel overheen?
Maar zet de stukadoor hier geen hoekprofiel overheen?
[ Voor 10% gewijzigd door bbbrumbrum op 23-02-2023 23:06 ]
Ik zou zeggen: een invalzaag werkt het snelst en het makkelijkst. Laatste stukje doe je dan met een multitool. Als je een assistent hebt hoef je de rail niet vast te zetten. Een festoolrail blijft van zichzelf al met een beetje druk goed op zijn plek.
Eventueel klem je hem vast met een blokje hout op de uiteinden. Een schroefgaatje extra in die platen is overkomelijk?
Eventueel klem je hem vast met een blokje hout op de uiteinden. Een schroefgaatje extra in die platen is overkomelijk?
[ Voor 8% gewijzigd door Stefke op 24-02-2023 08:24 ]
Ik ga er een beetje vanuit als je deze vraag stelt en je al geen multitool hebt. je ook geen 'festool' invalzaag hebt.
Als je een stevige balk op het hout schroeft. je dat als geleider gebruiken.
Dan je t met een gewone cirkelzaag (wel op diepte natuurlijk) ook gewoon doen.
Op youtube staan genoeg 'plunge-cuts'
YouTube: Don't Try This DANGEROUS CUTTING TECHNIQUE! (Here's How To PLUNGE CU...
Als je een stevige balk op het hout schroeft. je dat als geleider gebruiken.
Dan je t met een gewone cirkelzaag (wel op diepte natuurlijk) ook gewoon doen.
Op youtube staan genoeg 'plunge-cuts'
YouTube: Don't Try This DANGEROUS CUTTING TECHNIQUE! (Here's How To PLUNGE CU...
Ik heb ook een dergelijke zaagsnede moeten maken en heb daar de nieuwe rails van Festool voor gebruikt die je kunt vastplakken aan je oppervlak met dubbelzijdige tape. Is een dure optie maar in dit geval zijn geld meer dan waard omdat de plaat gelijk zichtwerk was.
YouTube: Improve Horizontal and Vertical Cuts with Festool FS KP Guide Rails ...
YouTube: Improve Horizontal and Vertical Cuts with Festool FS KP Guide Rails ...
[ Voor 32% gewijzigd door walletje-w op 24-02-2023 10:03 ]
Die kun je huren, maar met een normale cirkelzaag zou het inderdaad natuurlijk ook moeten kunnen. Ik heb een hele tijd een lange laminaatplank met een opgeschroefde lat gebruikt als geleider .meijer3 schreef op vrijdag 24 februari 2023 @ 09:10:
Ik ga er een beetje vanuit als je deze vraag stelt en je al geen multitool hebt. je ook geen 'festool' invalzaag hebt.
Als je een stevige balk op het hout schroeft. je dat als geleider gebruiken.
Dan je t met een gewone cirkelzaag (wel op diepte natuurlijk) ook gewoon doen.
Op youtube staan genoeg 'plunge-cuts'
YouTube: Don't Try This DANGEROUS CUTTING TECHNIQUE! (Here's How To PLUNGE CU...
Voor 150-200 euro kun je een redelijke Festool op marktplaats scoren, heb je zeer veel plezier van
maar als je die vraag moet stellen heb je zo weinig ervaring met machines dat een normale circelzaag laten invallen ook geen heel verstandige onderneming is. zeker niet als je ook nog vertikaal moet gaan zagen.meijer3 schreef op vrijdag 24 februari 2023 @ 09:10:
Ik ga er een beetje vanuit als je deze vraag stelt en je al geen multitool hebt. je ook geen 'festool' invalzaag hebt.
Als je een stevige balk op het hout schroeft. je dat als geleider gebruiken.
Dan je t met een gewone cirkelzaag (wel op diepte natuurlijk) ook gewoon doen.
Op youtube staan genoeg 'plunge-cuts'
YouTube: Don't Try This DANGEROUS CUTTING TECHNIQUE! (Here's How To PLUNGE CU...
je kan filmpjes kijken tot je een ons weegt, het ding daadwerklijk vast houden met een draaiend blad de muur in drukken is toch net wat anders.
Ik heb zelf een Bosch blauw invalzaag. Verticaal werken is lastig en zelfs gevaarlijk. Ik zou eerder mijn bovenvrees pakken met een kantgeleiding.
17,5 kWp zuid Vaillant Arotherm plus 55/6, 75/6 en 125/6
Daar ben ik het niet mee eens, ik heb mijn Festool onder alle hoeken gebruikt om rondom onze woning de hele gevelbekleding strak en onder verstek af te zagen, zowel boven mijn hoofd als nagenoeg tegen de grond aan. Verticaal, horizontaal, schuin, kan allemaal.
Niet gezegd dat dat altijd héél gemakkelijk is. De lat moet goed op zijn plek zitten (klemmen, schroeven, wat maar nodig is) en je moet de zaag er goed tegenaan drukken. Nooit een issue mee gehad.
Nou ja, toen ik tegen de grond aan moest zagen, dus op enkelhoogte, was het af en toe lastig om de druk goed te verdelen, dus de strip van de geleider kreeg af en toe een tik, maar die kun je eenvoudig vervangen door een nieuwe.
Heb geen ervaring met een Bosch invalzaag; als je een Festool hebt gebruikt snap je waarom elke professional er mee werkt. Alleen de prijs he...
Waarmee ik niks wil zeggen over een Bosch; misschien werkt die net zo goed.
Niet gezegd dat dat altijd héél gemakkelijk is. De lat moet goed op zijn plek zitten (klemmen, schroeven, wat maar nodig is) en je moet de zaag er goed tegenaan drukken. Nooit een issue mee gehad.
Nou ja, toen ik tegen de grond aan moest zagen, dus op enkelhoogte, was het af en toe lastig om de druk goed te verdelen, dus de strip van de geleider kreeg af en toe een tik, maar die kun je eenvoudig vervangen door een nieuwe.
Heb geen ervaring met een Bosch invalzaag; als je een Festool hebt gebruikt snap je waarom elke professional er mee werkt. Alleen de prijs he...
Waarmee ik niks wil zeggen over een Bosch; misschien werkt die net zo goed.
De Bosch is een uitgeklede Mafell, en ik zou in ieder geval van de mt55cc niet willen zeggen dat die onder doet voor de Festool.Stefke schreef op vrijdag 24 februari 2023 @ 10:07:
Heb geen ervaring met een Bosch invalzaag; als je een Festool hebt gebruikt snap je waarom elke professional er mee werkt. Alleen de prijs he...
Waarmee ik niks wil zeggen over een Bosch; misschien werkt die net zo goed.
It's time to play the music, it's time to light the lights
De Bosch Pro serie heeft een ongeëvenaarde prijs kwaliteitsverhouding en natuurlijk is Festoolspul de top of the bill maar de prijs is wel een dingetje en in veel gevallen niet te verantwoorden.
Maar als je niet gewend bent om met een invalzaag te werken zou ik niet gelijk met verticaal beginnen.
Maar als je niet gewend bent om met een invalzaag te werken zou ik niet gelijk met verticaal beginnen.
17,5 kWp zuid Vaillant Arotherm plus 55/6, 75/6 en 125/6
Ik zou met mijn ervaring ook een kantenfrees pakken of een circelzaag de muur in drukken. Maar
met circelzagen en frezen moet je m.i. eerst meters maken terwijl de zwartekracht je helpt. voordat je het ding met al zijn kracht en hard ronddraaiende delen tot boven je hoofd gaat tillen. ook met een festool is het een gevaarlijke onderneming. Zonder het nivo te kennen van @Figaro9 is het eigenlijk bezopen om het te adviseren.
Omdat het zoals ik het begrijp toch niet recht hoeft zou ik gewoon de oscillerende zaag adviseren.
met circelzagen en frezen moet je m.i. eerst meters maken terwijl de zwartekracht je helpt. voordat je het ding met al zijn kracht en hard ronddraaiende delen tot boven je hoofd gaat tillen. ook met een festool is het een gevaarlijke onderneming. Zonder het nivo te kennen van @Figaro9 is het eigenlijk bezopen om het te adviseren.
Omdat het zoals ik het begrijp toch niet recht hoeft zou ik gewoon de oscillerende zaag adviseren.
Mee eens, verticaal is wel gelijk een grotere uitdaging. En bij dit soort zaken komt het ook een beetje aan op de juiste tool als je nog een oude invalzaag hebt met vast spouwmes dan maak je het jezelf ook gelijk een stuk lastiger.
En een oscillerende zaag werkt ook snel genoeg. Even een vervelend klusje maar ik heb ondertussen ook vele meters daar mee afgelegd. Goed scherp blad, goede gehoorbescherming en verstand op 0. Kwartiertje later ben je klaar. Kun je je blad nog mooi tegen het beton laten rusten ook om zo een mooie strakke lijn te krijgen.
En een oscillerende zaag werkt ook snel genoeg. Even een vervelend klusje maar ik heb ondertussen ook vele meters daar mee afgelegd. Goed scherp blad, goede gehoorbescherming en verstand op 0. Kwartiertje later ben je klaar. Kun je je blad nog mooi tegen het beton laten rusten ook om zo een mooie strakke lijn te krijgen.
Bij mij zit de sim in een soort kokon antenne bovenop mijn bouwkeet.ds23man schreef op donderdag 23 februari 2023 @ 15:17:
[...]
Dat werkt dus niet. 4 G thuis is een databundel die je met een sim in een router gebruikt.
Daar zit je router dan ook in.JPruissen schreef op vrijdag 24 februari 2023 @ 11:02:
[...]
Bij mij zit de sim in een soort kokon antenne bovenop mijn bouwkeet.
17,5 kWp zuid Vaillant Arotherm plus 55/6, 75/6 en 125/6
Bij ons staat de bouwkast klaar om door de aannemer die de nuts-aansluitingen realiseert geschouwd te gaan worden. Echter, ik lees net dat ik ook een foto moet aanleveren van de geslagen aardpen. Dit is nog niet gebeurd. Voor de snelheid wil ik dit zelf doen. Is het makkelijk om zo'n aardpen zelf te slaan (voor de definitieve woning laat ik dit doen, maar voor de bouwkast lijkt het mij niet zo spannend)?
[ Voor 14% gewijzigd door Rien43 op 24-02-2023 11:26 ]
Je hebt ook van die kleine hand-invalzaagjes. Stukken hanteerbaarder en betaalbaar.
https://www.lidl.nl/p/parkside-invalzaag-710-w/p100348110
https://www.lidl.nl/p/parkside-invalzaag-710-w/p100348110
[ Voor 35% gewijzigd door Smithkj op 24-02-2023 11:38 ]
Ja, dat is prima zelf te doen!Rien43 schreef op vrijdag 24 februari 2023 @ 11:25:
Bij ons staat de bouwkast klaar om door de aannemer die de nuts-aansluitingen realiseert geschouwd te gaan worden. Echter, ik lees net dat ik ook een foto moet aanleveren van de geslagen aardpen. Dit is nog niet gebeurd. Voor de snelheid wil ik dit zelf doen. Is het makkelijk om zo'n aardpen zelf te slaan (voor de definitieve woning laat ik dit doen, maar voor de bouwkast lijkt het mij niet zo spannend)?
Wel eerst een aardpen regelen.
Inslaan/trillen met een moker of met een boorhamer.
Heeft er iemand hier toevallig ervaring met een alternatieve indeling van de meterkast?
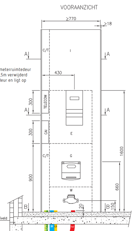
De richtlijnen die Enexis hanteert geven aan dat de bovenkant van de E-aansluiting op 1,60m boven de vloer moet komen. Maar in deze richtlijnen wordt ook nog een gasaansluiting getoond.
/f/image/1MjryHien41q0MfLzagGCRR8.png?f=fotoalbum_large)
M.i. is deze meterkastindeling dus niet meer van deze tijd. Zeker niet aangezien meer en meer mensen domotica gaat toepassen en de indeling dus wel wat optimaler zou mogen.
Graag zou ik de E-aansluiting een stuk lager en/of naar de zijkant geplaatst willen hebben. Hebben jullie enige ervaring of dit toegelaten gaat worden?
Contact met Enexis ben ik helaas nog niet wijzer van geworden. Zij geven aan dat in de aansluiting maar moet aanvragen en dat ik de vraag in de opmerkingen moet vermelden. Dan zijn we natuurlijk weer weken verder voordat ik antwoord heb.
In het ergste geval moet ik een groepenkast boven én onder de aansluiting maken (splitsing standaard en domotica). maar dan moet ik veel kabels tussen de groepenkasten gaan verslepen en dat doe ik liever niet als het niet nodig is.
Als de aansluiting naar onderen kan, kan ik erboven een grotere kast hangen. Als de aansluiting naar links/rechts kan, kan er ernaast nog een kast kwijt.
De richtlijnen die Enexis hanteert geven aan dat de bovenkant van de E-aansluiting op 1,60m boven de vloer moet komen. Maar in deze richtlijnen wordt ook nog een gasaansluiting getoond.
/f/image/1MjryHien41q0MfLzagGCRR8.png?f=fotoalbum_large)
M.i. is deze meterkastindeling dus niet meer van deze tijd. Zeker niet aangezien meer en meer mensen domotica gaat toepassen en de indeling dus wel wat optimaler zou mogen.
Graag zou ik de E-aansluiting een stuk lager en/of naar de zijkant geplaatst willen hebben. Hebben jullie enige ervaring of dit toegelaten gaat worden?
Contact met Enexis ben ik helaas nog niet wijzer van geworden. Zij geven aan dat in de aansluiting maar moet aanvragen en dat ik de vraag in de opmerkingen moet vermelden. Dan zijn we natuurlijk weer weken verder voordat ik antwoord heb.
In het ergste geval moet ik een groepenkast boven én onder de aansluiting maken (splitsing standaard en domotica). maar dan moet ik veel kabels tussen de groepenkasten gaan verslepen en dat doe ik liever niet als het niet nodig is.
Als de aansluiting naar onderen kan, kan ik erboven een grotere kast hangen. Als de aansluiting naar links/rechts kan, kan er ernaast nog een kast kwijt.
Ik weet niet meer in welk topic het gelezen heb maar iemand had hetzelfde aan z'n aannemer gevraagd en die had de volgende afbeelding gebruikt. Die heb ik zelf ook gebruikt en doorgestuurd naar de werkvoorbereider die mijn aansluiting beheerde. (Als het goed is heb je na je aanvraag doorgekregen wie dat is).
De werkvoorbereider heb ik gebeld en al mondeling een akkoord op gekregen. Daarna deze afbeelding in de mail doorgestuurd en bevestiging van hem gekregen. Deze info heb ik uitgeprint en overhandigd aan de monteurs die de nutsaansluiting kwamen realiseren en die vonden het toen allemaal prima.
De werkvoorbereider heb ik gebeld en al mondeling een akkoord op gekregen. Daarna deze afbeelding in de mail doorgestuurd en bevestiging van hem gekregen. Deze info heb ik uitgeprint en overhandigd aan de monteurs die de nutsaansluiting kwamen realiseren en die vonden het toen allemaal prima.
:no_upscale():strip_icc():fill(white):strip_exif()/f/image/H4cOi8ZxK5lsgmQBKQfd8D1E.jpg?f=user_large)
Dat klinkt al vrij positiefwalletje-w schreef op vrijdag 24 februari 2023 @ 12:20:
Ik weet niet meer in welk topic het gelezen heb maar iemand had hetzelfde aan z'n aannemer gevraagd en die had de volgende afbeelding gebruikt. Die heb ik zelf ook gebruikt en doorgestuurd naar de werkvoorbereider die mijn aansluiting beheerde. (Als het goed is heb je na je aanvraag doorgekregen wie dat is).
De werkvoorbereider heb ik gebeld en al mondeling een akkoord op gekregen. Daarna deze afbeelding in de mail doorgestuurd en bevestiging van hem gekregen. Deze info heb ik uitgeprint en overhandigd aan de monteurs die de nutsaansluiting kwamen realiseren en die vonden het toen allemaal prima.
[Afbeelding]
Wie is bij jullie de netbeheerder?
Voor mij zou het nog fijner zijn als hij bijvoorbeeld nog een stuk lager zou komen te hangen. Een stuk in de G-zone, maar dat zal wel een long stretch worden ben ik bang. Eventueel ook met een gesprongen waterleiding dicht bij de hoofdaansluiting?
Liander is onze beheerder.
Lager kun je proberen maar gaat meer gedoe opleveren omdat je dan echt in een andere zone komt. Dat was voor mij niet nodig. Daarnaast is de ruimte eronder nu ook nog goed te gebruiken voor inderdaad water, waterontharder, waterverdeler, netwerk/audio/nas.
Let ook op als je de meterkast breder dan normaal maakt ze soms willen dat je een 45 graden plank aanbrengt ter overbrugging van de extra afstand. Zodat de glasvezel en coax kabel overal goed ondersteund worden. (maar krijg je vanzelf te horen van de persoon tijdens de schouw)
Lager kun je proberen maar gaat meer gedoe opleveren omdat je dan echt in een andere zone komt. Dat was voor mij niet nodig. Daarnaast is de ruimte eronder nu ook nog goed te gebruiken voor inderdaad water, waterontharder, waterverdeler, netwerk/audio/nas.
Let ook op als je de meterkast breder dan normaal maakt ze soms willen dat je een 45 graden plank aanbrengt ter overbrugging van de extra afstand. Zodat de glasvezel en coax kabel overal goed ondersteund worden. (maar krijg je vanzelf te horen van de persoon tijdens de schouw)
Dit topic is gesloten.
Let op:
Duurzame installaties en domotica hebben eigen fora met veel meer diepgang over dat onderwerp. Dit topic gaat over de perikelen omtrent het bouwen van een eigen woning.
Voor projectmatige woningbouw: Het (projectmatige) nieuwbouwwoning topic. Je tuin is natuurlijk ook iets wat moet gebeuren na de bouw. Zie Het grote tuinen, balkons en plantentopic
Duurzame installaties en domotica hebben eigen fora met veel meer diepgang over dat onderwerp. Dit topic gaat over de perikelen omtrent het bouwen van een eigen woning.
Voor projectmatige woningbouw: Het (projectmatige) nieuwbouwwoning topic. Je tuin is natuurlijk ook iets wat moet gebeuren na de bouw. Zie Het grote tuinen, balkons en plantentopic