Was advocaat maar vindt het juridische nog steeds leuk. Doet tegenwoordig iets in de metaal.
Paar punten ter overweging:
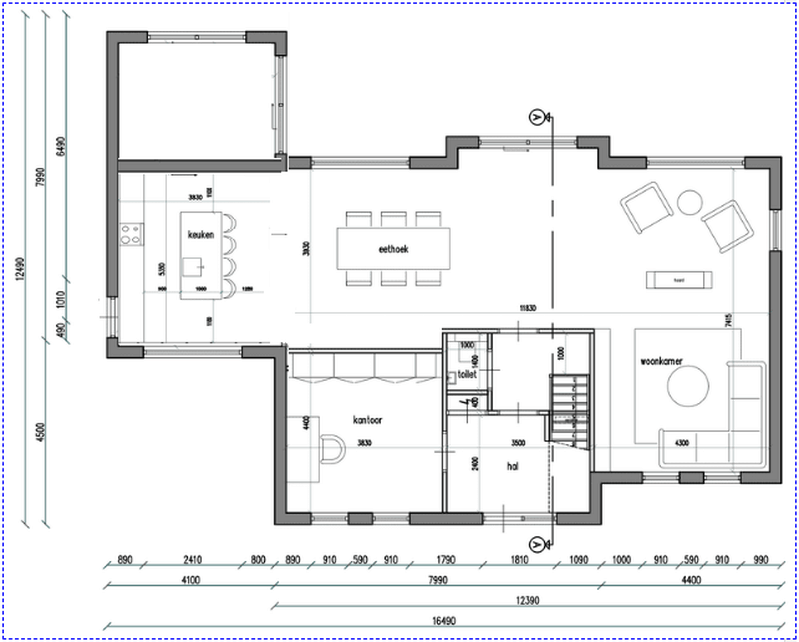
- De indeling van de hal/entree is wat uit balans: MK is wel erg groot, ruimte onder de trap is onbenut (of is dat een keuze), gangetje voor bijkeuken loopt dood (raam is natuurlijk nodig voor symmetrie). Je zou de MK of toilet onder de trap kunnen plaatsen, de BK vergroten en tot aan de voorgevel uitbreiden;
- Extra raam in zitkamer, voor avondlicht vanuit het westen;
- Extra openslaande deur naar terras;
- De WP staat relatief ver van de warm waterverbruikers af.
Mijn huis is slimmer dan ik...
Mooi ontwerp! zeker ook de buitenkant is erg mooi en spreekt ook erg aan. Ik zou zelf de baksteen keuze zo erg mooi vinden omdat het wat zachter aanvoelt als geheel.Lwent schreef op donderdag 7 juli 2022 @ 17:04:
Ik kijk al een tijdje mee naar de mooie ontwerpen die hier gepost worden. Nu is het zover en hebben we eindelijk ook onze kavel bemachtigd en de eerste tekeningen binnen gekregen.
Onderstaand de foto's van het eerste schetsontwerp en de indeling van de begane grond en de 1e verdieping. Hebben jullie nog tips voor ons, dit zou de eerste woning zijn de we laten bouwen.
Alvast bedankt !
Aantal opmerkingen die wij al hadden;
- Andere kleur baksteen
- Woning verder naar voren positioneren tegen de rooilijn.
[Afbeelding]
[Afbeelding]
[Afbeelding]
[Afbeelding]
[Afbeelding]
De indeling is boven ook heel erg mooi met zo'n overloop waar je rond de vide kan lopen, erg chic. Ik zou alleen bij de indeling beneden bedenken of je die lange hal voor de bijkeuken wel nodig hebt, neemt erg veel ruimte weg met weinig functie en de meterkast is ook wel erg ruim bemeten.
Heb je beneden genoeg ruimte voor je zithoek? zonder dat de maten er direct bij staan is dat wat lastig inschatten welke maat het precies is. En heb je ook een doel voor de ruimte tussen de eettafel en de zithoek? ik vind dit in U indelingen altijd van die loze stukken ruimte waar weinig mee gebeurd, daar moet je wat mij betreft wel goed overna denken anders voelt het misschien ongezellig aan. (Keuken en zithoek omdraaien? mooi grootte keuken eiland van 5 a 6 meter lang
Aanvullende opmerkingen dan hiervoor al zijn gegeven. Ik zou geen raam achter het hoofdeind van het bed doen. Inderdaad een vreemde gang bij de bijkeuken. Kun je de bijkeuken niet combineren met de (geïsoleerde?) berging en in plaats van de bijkeuken een extra kamer (kantoor, of speelkamer) doen? En ik zou kijken of het mogelijk is om direct een overkapping bij de dubbele tuindeur mee te nemen.Lwent schreef op donderdag 7 juli 2022 @ 17:04:
Ik kijk al een tijdje mee naar de mooie ontwerpen die hier gepost worden. Nu is het zover en hebben we eindelijk ook onze kavel bemachtigd en de eerste tekeningen binnen gekregen.
Onderstaand de foto's van het eerste schetsontwerp en de indeling van de begane grond en de 1e verdieping. Hebben jullie nog tips voor ons, dit zou de eerste woning zijn de we laten bouwen.
Alvast bedankt !
Aantal opmerkingen die wij al hadden;
- Andere kleur baksteen
- Woning verder naar voren positioneren tegen de rooilijn.
[Afbeelding]
[Afbeelding]
[Afbeelding]
[Afbeelding]
[Afbeelding]
Gaaf!Lwent schreef op donderdag 7 juli 2022 @ 17:04:
Ik kijk al een tijdje mee naar de mooie ontwerpen die hier gepost worden. Nu is het zover en hebben we eindelijk ook onze kavel bemachtigd en de eerste tekeningen binnen gekregen.
Onderstaand de foto's van het eerste schetsontwerp en de indeling van de begane grond en de 1e verdieping. Hebben jullie nog tips voor ons, dit zou de eerste woning zijn de we laten bouwen.
Alvast bedankt !
Aantal opmerkingen die wij al hadden;
- Andere kleur baksteen
- Woning verder naar voren positioneren tegen de rooilijn.
[Afbeelding]
[Afbeelding]
[Afbeelding]
[Afbeelding]
[Afbeelding]
Een paar punten zijn al vermeld, maar ik neem ze mee.
- Warm water wordt opgewekt op een plek die ver ligt van waar je het nodig hebt. Gene probleem, maar idealiter kan dat beter.
- De badkamers boven hebben een afnoer naar beneden nodig.. Er is nu geen plek getekend waar dat is op de begane grond.. Daar gaat ergens een koker moeten komen.. Water dat daar doorheen gaat stromen, ga je horen. Wil je dat? En waar komt die leidingschacht?
- 1e badkamer: Ik zou het bad en de wastafels omdraaien. Beter qua lichtinval voor beide.
- Bijkeuken is klein, maar kan. Kan dat anders/beter georganiseerd worden?
- Waar staande wasmachine / droger?
- als je de trap op loopt kom je recht op een deur van de 2e badkamer. Dat is niet relax en kan fout aflopen. Idealiter komt daar een deur die naar binnen draait (slaapkamer) of geen deur. In een dergelijk groot huis, zou je dat beter kunnen maken.
- Deuren in hoofdslaapkamer en 1e badkamer niet fijn. Je kunt tegen de badkamer-deur aanlopen.
- Wanneer mogelijk: meer openslaande deuren naar buiten. Dat is enorm fijn (eigen ervaring)
- Huis naar voren plaatsen lijkt inderdaad zeer wenselijk. (grotere actertuin?) Ik neem aan dat je 9m uit de grens moet blijven?
- Je benut de avond zond niet helemaal. Hoe zou dat beter kunnen? (als je dat wilt.)
Succes! Ziet er uit als een gaaf project
If I agreed with you, we'd both be wrong.
Zo zou ik de benedenverdieping indelen:Lwent schreef op donderdag 7 juli 2022 @ 17:04:
Ik kijk al een tijdje mee naar de mooie ontwerpen die hier gepost worden. Nu is het zover en hebben we eindelijk ook onze kavel bemachtigd en de eerste tekeningen binnen gekregen.
Onderstaand de foto's van het eerste schetsontwerp en de indeling van de begane grond en de 1e verdieping. Hebben jullie nog tips voor ons, dit zou de eerste woning zijn de we laten bouwen.
Alvast bedankt !
Aantal opmerkingen die wij al hadden;
- Andere kleur baksteen
- Woning verder naar voren positioneren tegen de rooilijn.
[Afbeelding]
[Afbeelding]
[Afbeelding]
[Afbeelding]
[Afbeelding]
:fill(white):strip_exif()/f/image/HMH3J6aasRyYmhCWHJjla6Rk.png?f=user_large)
- Weg met de loze ruimte in je gang aan de linkerkant.
- Een deur van je keuken naar de bijkeuken. Zo krijg je een logische looproute met je boodschappen van de voordeur naar de bijkeuken. En tijdens het koken van de bijkeuken naar de keuken.
- Warmtepomp naar de bijkeuken. Veel dichter bij je keuken en badkamer = sneller warm water. Buitenunit zou ik wel laten staan ivm lawaai.
- Keuken een kwartslag gedraaid zodat je een deur naar de bijkeuken kan hebben. Maar ook zodat je de kamer in kijkt tijdens het koken.
Aan weerszijde van de woningen komt een parkeerplaats. Dus dat is het zijerf. Daar is altijd een vergunning voor nodig. Het bestemmingsplan lijkt me vrij helder daarin, aangezien het een bijgebouw is aan de zijgevel gaat die grens niet op. Maar echt niets verbaast me echt meer met de gemeente.Conrado schreef op woensdag 6 juli 2022 @ 21:17:
[...]
Zo'n garage kan toch vergunningsvrij zijn? Dan valt het volgens mij buiten het bestemmingsplan
Mooi woning, ik hou daar wel van.Lwent schreef op donderdag 7 juli 2022 @ 17:04:
Ik kijk al een tijdje mee naar de mooie ontwerpen die hier gepost worden. Nu is het zover en hebben we eindelijk ook onze kavel bemachtigd en de eerste tekeningen binnen gekregen.
Onderstaand de foto's van het eerste schetsontwerp en de indeling van de begane grond en de 1e verdieping. Hebben jullie nog tips voor ons, dit zou de eerste woning zijn de we laten bouwen.
Vandaar dat ik zelf vorig jaar ook zoiets heb laten bouwen.
Wellicht heb je er nog iets aan om daar wat van terug te lezen.
Mocht je in de buurt van Wijchen zitten, je bent ook best welkom om een kijkje te komen nemen.
Dit type woning is ook iets wat Groothuisbouw voor je kan bouwen.
Ik kan me voorstellen dat dit (catalogusbouw) goedkoper zou kunnen zijn dan het volledig door een aannemer te laten doen.
Veel punten zijn al genoemd door anderen. Wat mij nog opviel is de enorme inloopkast.
Persoonlijk zou ik liever de slaapkamer iets groter maken.
Photofacts; weblog over fotografie..
We hebben nu al op het lijstje staan:
1. Woning verder naar voren (grotere achter tuin)
2. Puntdak op risaliet iets verbreden zodat die gelijk loopt aan de kolommen naast voordeur.
3. Hal gaan we aanpakken die bijkeuken etc kan inderdaad veel efficiënter hier gaan we de suggestie van rocketkoen gebruiken dank daarvoor.
4. Ramen gaan we nog wat in aanpassen (ramen boven maatje groter) en de tip voor de avond zon gaan we zeker wat mee doen door een raam toe te voegen.
5. @Loft Scherp de draairichting van de deuren laten we meteen aanpassen.
6. WP staat inderdaad te ver we gaan die in de bijkeuken zetten zoals RocketKoen dat getekend heeft.
7.@Loft We nemen je tip van harte en maken van een raam nog een paar openslaande deuren.
8. Keuken inderdaad kwart slag draaien betrekt de keuken mooier bij de rest.
@RocketKoen Dankjewel voor de aangepaste tekening ! je hebt de ruimte nu inderdaad optimaal gebruikt hier gaan we nog eens even goed naar kijken.
@Elja Ja ik heb je woning inderdaad stap voor stap gevolgd is erg mooi geworden, we zullen alles nog eens aandachtig bestuderen.
Wasmachine/droger komen op zolder te staan, daar komt nog een extra slaapkamer en een kantoorruimte.
De inloopkast is inderdaad wat groot ingetekend, dit was een wens waar ik weinig over te zeggen had.
Wat betreft de badkamer deze hebben we op de standaard plek laten zitten dus ik neem aan dat hier qua afvoer over nagedacht is maar we gaan het zeker vragen. We hebben inderdaad een catalogusbouwer waarin we onze persoonlijke wensen kunnen verwerken, we zijn qua indeling redelijk vrij, de boven verdieping hebben we qua indeling bijvoorbeeld zelf ontworpen.
De breedte van de woonkamer is iets meer dan 4 meter, redelijk knus maar volgens mij nog wel te doen.
Nogmaals bedankt voor alle reacties.
[ Voor 5% gewijzigd door Lwent op 08-07-2022 09:24 ]
De inloopkast, als ie dan toch zo groot moet, kan ook een mooie plek zijn voor de wasmachine en droger. Dan hoef je niet met je kleding door het hele huis te sjouwen. Eerst je was naar boven brengen om te wassen en daarna weer naar beneden om op te ruimen...Lwent schreef op vrijdag 8 juli 2022 @ 09:23:
Wasmachine/droger komen op zolder te staan, daar komt nog een extra slaapkamer en een kantoorruimte.
De inloopkast is inderdaad wat groot ingetekend, dit was een wens waar ik weinig over te zeggen had.
We hebben inderdaad een catalogusbouwer waarin we onze persoonlijke wensen kunnen verwerken, we zijn qua indeling redelijk vrij, de boven verdieping hebben we qua indeling bijvoorbeeld zelf ontworpen.
De breedte van de woonkamer is iets meer dan 4 meter, redelijk knus maar volgens mij nog wel te doen.
Wij hebben hier voor gekozen en dat bevalt uitstekend. Kan er ook heel netjes uitzien met inbouwkasten. Zelf hebben we een kast laten maken door https://wasmachinekast.nl/.
Erg praktisch.
Onze woonkamer is overigens 4,5 meter breed. Dat was voor ons ruim genoeg. Die 4 meter gaat dus ook wel goed komen bij jullie.
Photofacts; weblog over fotografie..
Ik kan me voorstellen dat je soms snachts de wasmachine aan zet, dan zou ik hem niet naast mijn slaapkamer willen hebben staan.Elja schreef op vrijdag 8 juli 2022 @ 09:58:
[...]
De inloopkast, als ie dan toch zo groot moet, kan ook een mooie plek zijn voor de wasmachine en droger. Dan hoef je niet met je kleding door het hele huis te sjouwen. Eerst je was naar boven brengen om te wassen en daarna weer naar beneden om op te ruimen...
Wij hebben hier voor gekozen en dat bevalt uitstekend. Kan er ook heel netjes uitzien met inbouwkasten. Zelf hebben we een kast laten maken door https://wasmachinekast.nl/.
Erg praktisch.
Onze woonkamer is overigens 4,5 meter breed. Dat was voor ons ruim genoeg. Die 4 meter gaat dus ook wel goed komen bij jullie.
@Lwent Alternatief, als het past zou je ook een goederenlift kunnen overwegen ala:
:no_upscale():strip_icc():fill(white):strip_exif()/f/image/OLkoUYyBmpZaehhIXJ5Lx0gG.jpg?f=user_large)
Als je de materbedroom dan wisselt met de inloopkast kun je hem ook in de bijkeuken uitlaten komen. Bijkomend voordeel is dat je dan ook minder "last" hebt van geluid van de weg.
Voor meer inspiratie even zoeken op laundry chute en of dumbwaiter.
[ Voor 10% gewijzigd door Woody179 op 08-07-2022 10:10 ]
Wel gaaf zo'n dumbwaiter, ook handig als de was weer naar boven moet, maar zal wel weer kostbaar zijn.Woody179 schreef op vrijdag 8 juli 2022 @ 10:04:
[...]
Ik kan me voorstellen dat je soms snachts de wasmachine aan zet, dan zou ik hem niet naast mijn slaapkamer willen hebben staan.
@Lwent Alternatief, als het past zou je ook een goederenlift kunnen overwegen ala:
[Afbeelding]
Als je de materbedroom dan wisselt met de inloopkast kun je hem ook in de bijkeuken uitlaten komen. Bijkomend voordeel is dat je dan ook minder "last" hebt van geluid van de weg.
Voor meer inspiratie even zoeken op laundry chute en of dumbwaiter.
Misschien hier maar eens een laundy chute overwegen tijdens het verbouwen.
Hier stond een link voor een Goldcard 1 jaar gratis + 20.000 punten.
doorgaans is dit de definitie van aanhangsels aan het hoofdgebouw.keeperson schreef op woensdag 6 juli 2022 @ 10:35:
Misschien niet zo spannend of excentriek als sommige woningen hier: gisteren weer een belangrijke stap gezet in het ontwerpproces! Er is nu een buitenkant!Volgende week is de wijkpresentatie en dan worden alle verschillende woningen in het CPO-project in de wijk getekend.
Ik ben positief verrast. Ik had de architect eigenlijk een blank slate gegeven met een paar eisen en toch heeft 'ie er iets tofs van gemaakt. Wordt misschien nog een beetje spannend met de garage. In het bestemmingsplan staat dat aanbouwen aan de achtergevel minimaal 5 meter van de erfgrens aan de achterzijde moeten blijven. Naar mijn inziens is dit een bijgebouw en gaat die regel niet op. De gemeente kan natuurlijk altijd wat anders vinden.
De zijde met de garage is mijn helft.
[Afbeelding] [Afbeelding]
Ow 4 meter valt hartstikke mee, die van ons is ook maar 4.5x5.1 en dat voelt voor ons nog redelijk groot aan.Lwent schreef op vrijdag 8 juli 2022 @ 09:23:
Dank jullie wel, erg fijne tips allemaal!
We hebben nu al op het lijstje staan:
1. Woning verder naar voren (grotere achter tuin)
2. Puntdak op risaliet iets verbreden zodat die gelijk loopt aan de kolommen naast voordeur.
3. Hal gaan we aanpakken die bijkeuken etc kan inderdaad veel efficiënter hier gaan we de suggestie van rocketkoen gebruiken dank daarvoor.
4. Ramen gaan we nog wat in aanpassen (ramen boven maatje groter) en de tip voor de avond zon gaan we zeker wat mee doen door een raam toe te voegen.
5. @Loft Scherp de draairichting van de deuren laten we meteen aanpassen.
6. WP staat inderdaad te ver we gaan die in de bijkeuken zetten zoals RocketKoen dat getekend heeft.
7.@Loft We nemen je tip van harte en maken van een raam nog een paar openslaande deuren.
8. Keuken inderdaad kwart slag draaien betrekt de keuken mooier bij de rest.
@RocketKoen Dankjewel voor de aangepaste tekening ! je hebt de ruimte nu inderdaad optimaal gebruikt hier gaan we nog eens even goed naar kijken.
@Elja Ja ik heb je woning inderdaad stap voor stap gevolgd is erg mooi geworden, we zullen alles nog eens aandachtig bestuderen.
Wasmachine/droger komen op zolder te staan, daar komt nog een extra slaapkamer en een kantoorruimte.
De inloopkast is inderdaad wat groot ingetekend, dit was een wens waar ik weinig over te zeggen had.
Wat betreft de badkamer deze hebben we op de standaard plek laten zitten dus ik neem aan dat hier qua afvoer over nagedacht is maar we gaan het zeker vragen. We hebben inderdaad een catalogusbouwer waarin we onze persoonlijke wensen kunnen verwerken, we zijn qua indeling redelijk vrij, de boven verdieping hebben we qua indeling bijvoorbeeld zelf ontworpen.
De breedte van de woonkamer is iets meer dan 4 meter, redelijk knus maar volgens mij nog wel te doen.
Nogmaals bedankt voor alle reacties.
Dus dan is 4 meter prima. Wij hebben er wel voor gekozen om de wasmachines op dezelfde verdieping te houden als de slaapkamers. Ik vind het heerlijk om niet de trap op te moeten om alles maar naar boven te slepen. Maar goed ja je wilt ze niet aanzetten als je naar bed gaan
Met zonnepanelen is het sowieso chill om die groot gebruikers overdag te gebruiken
@RocketKoen heeft echt een mooie aanpassing gemaakt op de beneden verdieping!
Even mezelf gequote vanwege een update, maar we hebben bericht gekregen dat de uitspraak van de raad van state er binnen 6 weken zal zijn.nils7 schreef op dinsdag 5 juli 2022 @ 09:43:
Even een vraag wat jullie zouden doen..
Het project waar ons kavel in ligt is, na een goedkeuring van het bestemmingsplan, helaas in heroverweging bij de raad van state. Vanwege een bezwaar over uiteraard stikstof (welke 1 dag te laat was ingedient).
De projectontwikkelaar ziet het ook zonnig tegemoet en is al begonnen met het ombouwen van heel het gebied van weiland naar woonwijk incl. gedeeltes met water (wat al deels uitgegraven is). En inmiddels is de riolering en nuts voorzieningen in de straten al aangelegd.
De project ontwikkelaar heeft voor hun eigen bouwproject al een onherroepelijke omgevingsvergunning om 1 blok woningen weg te zetten.
[knip]
Maar de vraag is uiteraard is dat verstandig om te doen?
Of kan ik beter even wachten op de uitspraak, welke binnen enkele weken zal komen.
Uiteraard kan er niet veel gebeuren in deze weken maar bepaalde stappen kosten nu eenmaal geld of zijn onomkeerbaar (overdracht van het kavel bijvoorbeeld) die wel in die weken kunnen plaatsvinden.
En wat als ik doorzet en de raad van state draait hun goedkeuring toch terug, wat dan?
Dus dat kunnen we wel afwachten, de vrees was dat het nog maanden zou duren.
NIO ET5 | Tesla Model Y LR | iRacing Profiel | To finish first, you first have to finish!
Pfff, wat zul je opgelucht zijn!nils7 schreef op vrijdag 8 juli 2022 @ 21:46:
[...]
... we hebben bericht gekregen dat de uitspraak van de raad van state er binnen 6 weken zal zijn.
[ Voor 20% gewijzigd door Conrado op 09-07-2022 15:37 ]
Mijn huis is slimmer dan ik...
Ik zou de locatie van de warmtepomp aanpassen. Waarom zet je hem niet aan de zijkant van de schuur? Zie je hem niet vanuit de achtertuin en kans op het horen van de pomp op het terras is een stuk kleinerLwent schreef op donderdag 7 juli 2022 @ 17:04:
Ik kijk al een tijdje mee naar de mooie ontwerpen die hier gepost worden. Nu is het zover en hebben we eindelijk ook onze kavel bemachtigd en de eerste tekeningen binnen gekregen.
Onderstaand de foto's van het eerste schetsontwerp en de indeling van de begane grond en de 1e verdieping. Hebben jullie nog tips voor ons, dit zou de eerste woning zijn de we laten bouwen.
Alvast bedankt !
Aantal opmerkingen die wij al hadden;
- Andere kleur baksteen
- Woning verder naar voren positioneren tegen de rooilijn.
[Afbeelding]
[Afbeelding]
[Afbeelding]
[Afbeelding]
[Afbeelding]
Ik ben blij dat we dicht bij de bouw wonen en dagelijks meerdere keren langs gaan (de hond moet toch uitgelaten worden
In de slaapkamer hebben ze een koof gemaakt om de kachelpijp maar die is wel een stuk groter uitgevallen dan we dachten, neemt een hoop licht en zicht weg. Daar moeten we het nog even met de aannemer over hebben.
Voor de bouwvak gaan ze nog de vloer gieten en waarschijnlijk komt volgende week ook elektra naar binnen, we gaan het zien.
:strip_exif()/f/image/g9qZvINnSa1bQ4EWRIwZS4BE.jpg?f=fotoalbum_large)
:strip_exif()/f/image/MlA93ppOiLckPnbWvo4hFtws.jpg?f=fotoalbum_large)
:strip_exif()/f/image/wUG6ViFjeA4i2ZzBnYmv4LDf.jpg?f=fotoalbum_large)
Cabauw/Lopik; 26 x 370 Wp (12 x O/ZO, 14 x W/ZW) 9,6 kWp
Bij ons in het bestemmingplan staat:twain4me schreef op vrijdag 8 juli 2022 @ 11:35:
[...]
doorgaans is dit de definitie van aanhangsels aan het hoofdgebouw.
[Afbeelding]
"1.41 bijgebouw:
een vrijstaand of aangebouwd gebouw dat architectonisch ondergeschikt is aan het hoofdgebouw."
Een garage is normaalgezien ondergeschikt aan de woning en zal in de regel dus als bijgebouw gelden (tenzij je het optisch als garage laat uitzien en het vervolgens geheel bij de woonkamer zou betrekken).keeperson schreef op woensdag 6 juli 2022 @ 10:35:
Misschien niet zo spannend of excentriek als sommige woningen hier: gisteren weer een belangrijke stap gezet in het ontwerpproces! Er is nu een buitenkant!Volgende week is de wijkpresentatie en dan worden alle verschillende woningen in het CPO-project in de wijk getekend.
Ik ben positief verrast. Ik had de architect eigenlijk een blank slate gegeven met een paar eisen en toch heeft 'ie er iets tofs van gemaakt. Wordt misschien nog een beetje spannend met de garage. In het bestemmingsplan staat dat aanbouwen aan de achtergevel minimaal 5 meter van de erfgrens aan de achterzijde moeten blijven. Naar mijn inziens is dit een bijgebouw en gaat die regel niet op. De gemeente kan natuurlijk altijd wat anders vinden.
De zijde met de garage is mijn helft.
Wat zegt het bestemmingsplan bij jullie? Ik vind het namelijk vrij subjectief omschreven bij ons
De lamellen zijn met de hand te verstellen, dat is prima, ze staan toch in een zomer en winterstand.
Niet de oplossing die ik oorspronkelijk zocht (ik wilde eigenlijk een volledige openslaande scharnierende gevel, maar dat werd me veel te groot en vooral te duur en complex) en het staat nog leuk ook al zeg ik t zelf
[ Voor 9% gewijzigd door Stefke op 11-07-2022 15:40 ]
Tips voor de indeling zijn nog steeds welkom
NIO ET5 | Tesla Model Y LR | iRacing Profiel | To finish first, you first have to finish!
Leuk zo’n eigen woning ontwerpen.nils7 schreef op maandag 11 juli 2022 @ 22:23:
Hierbij het ontwerp wat naar de welstand is gegaan als concept
***members only***
Tips voor de indeling zijn nog steeds welkom
Persoonlijk zou ik de keuken en eetkamer naar rechterdeel verplaatsen. Eventueel afsluiten als woonkeuken. De ruimte is nu wel heel groot als 1 geheel, met een vreemde doorgang tussen de keuken en de eethoek. Ook door de plaatsing van de hoge kasten nabij de doorgang. T.p.v. de keuken een afsluitbare zithoek, speelkamer oid.
En bij zo’n grote woning is 90 cm tussen koken en spoel - eiland wel krap. Ik zou daar opnieuw naar kijken, trek aan beide kanten een deur of lade open…
En boven achterzijde lijkt er te weinig ruimte te zijn voor de kasten bij de ramen. Zodat de kast net een beetje voor het kozijn uitkomt. Ik zou in ieder geval ruimte over houden voor de standaard Ikea maten, en zeker niet voor het kozijn. (Het kan natuurlijk zijn dat je andere kasten op het oog hebt).
Gaaf! zeker leuk een eigen huis bouwen.nils7 schreef op maandag 11 juli 2022 @ 22:23:
Hierbij het ontwerp wat naar de welstand is gegaan als concept
***members only***
Tips voor de indeling zijn nog steeds welkom
- Plaatsing op de kavel lijkt mij top, mooi uitzicht over het water. De tuin is diep genoeg om achterin veel zon te hebben.
- Begane Grond:
- Die 90cm in de keuken is wel krap. Als je daar ruimte kunt winnen is erg fijn. Dat hoeft maar 20cm te zijn. (buitenmuur 20cm opschuiven) De doorgang naar de eetkamer kan. Ik zie dat niet al probeem.
- De haard zou ik niet in het midden plaatsen. Dat blijft altijd een object en is lastiger met indelen. Als je die toch wilt, zou ik die naar de achtergevel verplaatsen. Op die manier kun je ook die 2 stoeltjes omdraaien zodat je zicht heb op het water. Nu zit je met de rug daar naar toe.
- 2e etage, ik zou altijd alvast de leidingen aanleggen voor een 2e badkamer. Ook als je dat nu niet zelf wilt altijd nuttig en in de bouw amper extra kosten.
- Dakkapel is zeker leuk!
Ik vind de voorkant erg rommelig. En een balkon, en een schuin dak dat uitsteekt (begane grond naar voren, 1e naar achteren) en verspringend middenstuk van de gevel.
Persoonlijk zou ik die gevel gelijk maken aan de rechterkant. Kantoor iets kleiner, Slaapkamer links iets groter en geen balkon. Dat straalt veel meer rust uit.. (is zeer waarschijnlijk ook goedkoper)
Just my2cts
If I agreed with you, we'd both be wrong.
Zo te zien een hele mooie plek aan het water, leuk plekje om te wonen!nils7 schreef op maandag 11 juli 2022 @ 22:23:
Hierbij het ontwerp wat naar de welstand is gegaan als concept
***members only***
Tips voor de indeling zijn nog steeds welkom
Qua indeling zou ik persoonlijk de stoelen voor het raam op de plek van de keuken doen, de keuken op de plek van de eettafel en de eettafel op de plek van de haard. Dan houd je het wat meer open. De keuken lijkt nu erg in een hoekje te zitten.
Mooi! Ik moet ook nog iets vergelijkbaars maken voor onze zuid-zonwering. Heb het hout ook al een jaar of 2 klaarliggen, iig al mooi vergrijsd….Stefke schreef op maandag 11 juli 2022 @ 15:26:
Weer een projectje af, zonwering boven de zithoek. Uiteraard zelf ontworpen en gemonteerd. Niet zelf gemaakt, metaalbewerking moet ik helaas uitbesteden ;-) De constructie lag hier al zo'n 1,5jaar te wachten op andere klussen.
De lamellen zijn met de hand te verstellen, dat is prima, ze staan toch in een zomer en winterstand.
Niet de oplossing die ik oorspronkelijk zocht (ik wilde eigenlijk een volledige openslaande scharnierende gevel, maar dat werd me veel te groot en vooral te duur en complex) en het staat nog leuk ook al zeg ik t zelf
[Afbeelding]
Heb je mss een detailfoto van hoe je het kantelmechanisme hebt uitgevoerd? Ook een bewuste keus geweest om 3 kortere lengtes te gebruiken ipv 2 langere?
Leuk huis!nils7 schreef op maandag 11 juli 2022 @ 22:23:
Hierbij het ontwerp wat naar de welstand is gegaan als concept
***members only***
Tips voor de indeling zijn nog steeds welkom
Wat @Loft ook al zegt, ik zou de open haard verplaatsen. Mijn schoonouders hebben een open haard in de achtergevel, dan kan je hem binnen en buiten gebruiken en heb je meer ruimte in je woonkamer. Zou dat niet precies in dat hoekje bij de 'uitbouw' passen?
17,5 kWp zuid Vaillant Arotherm plus 55/6, 75/6 en 125/6
Let op dat achter mijn gevelplanken extra hout zit op de plekken waar deze constructie zit, zowel onder als boven; de bevestigingsbouten zitten dus allemaal in vol hout, hebben steun en doorboren ook nergens de gevelfolie.
Ik denk dat als je dit puur in je gevelplanken (je had dezelfde red cedar als wij toch?) bevestigd dat misschien niet sterk genoeg is, zeker op het trekpunt van de schoren bovenin; het is erg licht hout... (kan misschien wel als je rampamoeren gebruikt en redelijk dicht op de achterlatten van je gevelplanken zit).
Ik heb hier rekening mee gehouden met het maken van de achterlatten.
Ik heb m in 3 delen gemaakt omdat m.i. anders de planken te lang worden; de pui is 3,6m breed en red cedar (de variant die wij hebben met de noesten) is behoorlijk gevoelig voor werking. Als de lamellen 1,8m lang zouden zijn blijft het zeker niet recht (denk ik), ze zijn nu 1,2m lang.
Daarbij vind ik de lichtwerking mooi als de lamellen niet allemaal in dezelfde stand staan, dan krijg je verschillende lichtinvallen. Achteraf had ik misschien wel 4 schoren bovenop gewild, dat zijn er nu 3.
Ik heb nu uit onze plankenvoorraad zo recht mogelijke planken uitgezocht; dat ligt bij ons ook al 3 jaar op het terrein (afgedekt) dus planken die nu nog recht zijn blijven dat waarschijnlijk wel; sommige van die planken zijn bijna onbruikbaar krom getrokken. De rest ga ik gebruiken om de schuttingen van (zwart gebrand) planken te voorzien, dat is het laatste waar ik het voor nodig heb.
[ Voor 8% gewijzigd door Stefke op 12-07-2022 08:02 ]
Vrij zeker dat ze dat omhoog brengen niet zelf doen. Anders wisten ze al wel dat een wasmachine echt een gigantisch zwaar gewicht is.ds23man schreef op dinsdag 12 juli 2022 @ 07:54:
Ik snap nooit waarom mensen hun wasmachine en droger op zolder zetten terwijl ze een grote bijkeuken hebben. Hoop gedoe om die dingen boven te krijgen en mocht je droger de fik in gaan staat gelijk je dak in de brand.
Maar idd. Wassen+kleding verzamelen doe je bij voorkeur op de verdieping waar je ze meestal ook vervangt
Ik ga misschien tegen de stroom in, maar qua indeling vind ik het erg onlogisch.nils7 schreef op maandag 11 juli 2022 @ 22:23:
Hierbij het ontwerp wat naar de welstand is gegaan als concept
***members only***
Tips voor de indeling zijn nog steeds welkom
De ration verkeersruimte vs. leef/woon/werk gebied is erg scheef.
Je hebt een enorme hal als je binnenkomt, waar niets gebeurd, om vervolgens in een 2e hal te komen waar de trap en WC in gepropt (in verhouding) zijn. (De trapwand is ook niet uitgelijnd met de entree pui).
Om de eethoek kan je redelijk lopen, maar er is een balzaal tussen de eethoek en zithoek?
De keuken is in de hoek gezet, zo ver mogelijk van de woonkamer. wat ik in ieder geval niet echt gezellig vind ogen, de doorgang naar de keuken is ook niet heel breed, als je de kasten zo ook ga plaatsen.
Verder is er in de woonkamer niet echt plek voor een kast, overal staat
Op de eerste verdieping ziet het er op het eerste oog prima uit, maar de badkamer is ongeveer 1/3 tot 1/2 van je overloop
Wat ik mis in een dergelijk groot huis is een goede berging voor fietsen en wat ander spul.
Een efficiëntere indeling is in ieder geval zeker mogelijk, maar is wel afhankelijk van de eisen.
Ik neem aan dat bijvoorbeeld de toegang via de hal tot het kantoor, zonder dat je de trap op kan een eis was?
Met zoveel ruimte zou ik nooit een trap met een draai erin nemen. Per saldo is dat een stel treden met veel minder ruimte. Wij hebben ervoor gekozen met tussenbordessen te werken, nadat in het eerste ontwerp een rechte trap opgenomen was, maar we vanwege de beperkingen van het bestemmingsplan daarmee op de verdieping net te krap uitkwamen.nils7 schreef op maandag 11 juli 2022 @ 22:23:
Hierbij het ontwerp wat naar de welstand is gegaan als concept
***members only***
Tips voor de indeling zijn nog steeds welkom
:strip_exif()/f/image/fxJZDvc1tGeRtrQnze3ZhCjI.jpg?f=fotoalbum_large)
Dit levert van kelder tot zolder heerlijk ruimte trappen op.
Bij ons staan wasmachine en droger overigens bij de achterdeur tegenover een douche die ruim genoeg is om een fiets in schoon te maken
[ Voor 11% gewijzigd door StevenK op 12-07-2022 08:35 ]
Was advocaat maar vindt het juridische nog steeds leuk. Doet tegenwoordig iets in de metaal.
Wie ontwerpt zijn huis nou om een eenmalige sjouwklus heen?! (Sjouwklus: dus niet iets waar je een kraan voor nodig hebt of muren voor moet uitbreken)bottom line schreef op dinsdag 12 juli 2022 @ 08:04:
[...]
Vrij zeker dat ze dat omhoog brengen niet zelf doen. Anders wisten ze al wel dat een wasmachine echt een gigantisch zwaar gewicht is.
Maar ik zou ze zelf ook niet op zolder zetten
Zo eenmalig is die sjouwklus nou ook weer niet, die krengen gaan tegenwoordig allang geen 25 jaar meer mee. En de verkoper doet het echt niet gratis omdat ze met twee man moeten komen en omdat de oude ook naar beneden moet. Verder is de brandweer je heel dankbaar als ze een smeulende droger zo de zijdeur uit kunnen flikkeren.Deleon78 schreef op dinsdag 12 juli 2022 @ 08:31:
[...]
Wie ontwerpt zijn huis nou om een eenmalige sjouwklus heen?! (Sjouwklus: dus niet iets waar je een kraan voor nodig hebt of muren voor moet uitbreken)
Maar ik zou ze zelf ook niet op zolder zetten
17,5 kWp zuid Vaillant Arotherm plus 55/6, 75/6 en 125/6
Met twee man en de juiste techniek is dat echt een klusje van een paar minuten. Die van ons weegt 70kg en hadden we met twee personen echt zo boven. Ik zou er in elk geval geen rekening mee houden in het ontwerp van m'n woning. Wel zouden ze bij ons boven komen, daar kleden we ons ook om en hebben we de kledingkasten staan.bottom line schreef op dinsdag 12 juli 2022 @ 08:04:
[...]
Vrij zeker dat ze dat omhoog brengen niet zelf doen. Anders wisten ze al wel dat een wasmachine echt een gigantisch zwaar gewicht is.
Maar idd. Wassen+kleding verzamelen doe je bij voorkeur op de verdieping waar je ze meestal ook vervangt
Een nieuwbouw woning is super goed geïsoleerd vanaf buiten. Geluiden van binnen vallen dan juist extra op.
Voor ons is de keuze geweest dat we de was ook willen uithangen.ds23man schreef op dinsdag 12 juli 2022 @ 07:54:
Ik snap nooit waarom mensen hun wasmachine en droger op zolder zetten terwijl ze een grote bijkeuken hebben. Hoop gedoe om die dingen boven te krijgen en mocht je droger de fik in gaan staat gelijk je dak in de brand.
In de bijkeuken is daar geen ruimte ivm WTW installatie, koelkast en stellingen/kastjes voor wat je in je bijkeuken wil.
Nu staat het bij ons ook op zolder en is voor ons logisch direct uit de wasmachine daar op te hangen.
Als we de machines beneden zouden laten staan dan moeten we elke keer naar zolder om het op te hangen en dat leek ons onlogisch.
NIO ET5 | Tesla Model Y LR | iRacing Profiel | To finish first, you first have to finish!
17,5 kWp zuid Vaillant Arotherm plus 55/6, 75/6 en 125/6
@Stefke Thanks voor de tip! Die dingen van Wovar had ik anders zelf gemaakt.Stefke schreef op dinsdag 12 juli 2022 @ 07:58:
@bbbrumbrum Ik kan je de cad-tekening wel sturen en een paar extra foto's. De lamellenconstructie kun je zo bestellen in RVS, zwart RVS of zwart kunststof. Ik ga hetzelfde gebruiken (maar dan zwart Rvs) in een hele wand bij ons tuinhuisterras (daar moet ik alleen de planken nog in zetten)
Let op dat achter mijn gevelplanken extra hout zit op de plekken waar deze constructie zit, zowel onder als boven; de bevestigingsbouten zitten dus allemaal in vol hout, hebben steun en doorboren ook nergens de gevelfolie.
Ik denk dat als je dit puur in je gevelplanken (je had dezelfde red cedar als wij toch?) bevestigd dat misschien niet sterk genoeg is, zeker op het trekpunt van de schoren bovenin; het is erg licht hout... (kan misschien wel als je rampamoeren gebruikt en redelijk dicht op de achterlatten van je gevelplanken zit).
Ik heb hier rekening mee gehouden met het maken van de achterlatten.
Ik heb m in 3 delen gemaakt omdat m.i. anders de planken te lang worden; de pui is 3,6m breed en red cedar (de variant die wij hebben met de noesten) is behoorlijk gevoelig voor werking. Als de lamellen 1,8m lang zouden zijn blijft het zeker niet recht (denk ik), ze zijn nu 1,2m lang.
Daarbij vind ik de lichtwerking mooi als de lamellen niet allemaal in dezelfde stand staan, dan krijg je verschillende lichtinvallen. Achteraf had ik misschien wel 4 schoren bovenop gewild, dat zijn er nu 3.
Ik heb nu uit onze plankenvoorraad zo recht mogelijke planken uitgezocht; dat ligt bij ons ook al 3 jaar op het terrein (afgedekt) dus planken die nu nog recht zijn blijven dat waarschijnlijk wel; sommige van die planken zijn bijna onbruikbaar krom getrokken. De rest ga ik gebruiken om de schuttingen van (zwart gebrand) planken te voorzien, dat is het laatste waar ik het voor nodig heb.
Ik heb ook achterhout gereserveerd voor deze units. Ons gevelhout is wel iets anders, nl zilverspar.
Het hout voor de lamellen word wel Red Cedar, volgens leverancier licht en meest stabiele hout voor deze lange vrijhangende constructies.
Red cedar is inderdaad heel licht, maar als je red cedar met noesten hebt - zoals wij - dan kan het wel behoorlijk werken, zeker rond zo'n noest. En het maakt nogal wat uit uit welke plek van de stam zo'n plank komt maar dat is je ws. bekend

Ik heb planken - 3m lang, 145mm breed - die hier (dus) al een tijdje liggen en die heb ik doormidden gezaagd omdat ik 70mm planken nodig had; die planken waren al niet helemaal recht, maar bij het doormidden zagen bogen de 2 helften zo hard naar elkaar toe dat de zaag er op klem sloeg na 30cm zagen. Ik moest er een wig tussen slaan om verder te zagen. Het resultaat is bijna onbruikbaar kromme planken (als je ze niet kunt richten op een onderconstructie).
Dergelijke planken (die bij het doorzagen direct hard kromtrekken) zou ik niet willen gebruiken als lamellen.
Alle planken die ik nog heb liggen zijn 145mm breed, ik moet ze allemaal naar 70 en 45mm terugzagen voor het bekleden van de schuttingen. Maar bij 45mm is het niet zo erg als dat nog kromtrekt, die kan ik makkelijk bij het plaatsen op de schutting recht zetten.
Ik heb ook nog 145mm rechte planken gebruikt voor het maken van schuifluiken (die hoop ik dit weekend op te hangen); daar heb ik de planken doormidden gezaagd en de helften - die wel mooi recht bleven na het zagen - omgekeerd tegen elkaar gelijmd om te zorgen dat de constructie (van red cedar dus) zo recht mogelijk blijft.
Ik moet nog eens nazoeken of die kromtrekkers dosse of kwartiers gezaagd waren...
edit: ik heb zo links en rechts ook wel langere lamellen van hout gezien, die gaan ook onder hun eigen gewicht gewoon doorhangen, vooral als ze doorgaans horizontaal "liggen" in de lamellenconstructie. Bij zo'n onze zonwering hangen ze meestal gedraaid (op hun kant), dat zal ook al wel schelen.
Maar ik ging voor 120cm just to be sure.
[ Voor 18% gewijzigd door Stefke op 12-07-2022 13:51 ]
Eenmalige sjouwklus? Wasmachine/droger gaat nooit kapot en wordt nooit vervangen voor een nieuwer model wil je zeggen?Deleon78 schreef op dinsdag 12 juli 2022 @ 08:31:
[...]
Wie ontwerpt zijn huis nou om een eenmalige sjouwklus heen?! (Sjouwklus: dus niet iets waar je een kraan voor nodig hebt of muren voor moet uitbreken)
Maar ik zou ze zelf ook niet op zolder zetten
Brand vind ik een non argument als ik eerlijk ben want tenzij je de ruimte waar hij in komt te staan als een hoogoven isoleerd zijn de gevolgen overal enorm.
Verder als je een beetje duurzaam wil doen hang je de was indien mogelijk buiten op.. Als hij op zolder staat kun je 5x per week met 10 kilo aan natte was 2 trappen af.... En daarna met droge was weer een trap op....
https://112groningen.nl/3...and-robert-schumanstraat/
17,5 kWp zuid Vaillant Arotherm plus 55/6, 75/6 en 125/6
Het is wel een argument in de zin dat het zeker raadzaam is om er een (gekoppelde) rookmelder op te hangen.ds23man schreef op dinsdag 12 juli 2022 @ 14:07:
Brand is toch wel degelijk een argument, kom op deze site toch wel 1 wasdrogerbrand per 2 weken tegen:
https://112groningen.nl/3...and-robert-schumanstraat/
Maar als je kijkt naar schade in huis door een (wasmachine)brand dan zijn de gevolgen overal enorm... Of hij nu boven of beneden staat.
Als je het bekijkt vanuit een meest veilig scenario dan zou je hem in de garage of een uitbouw moeten plaatsen. Dan is verspreiding door het huis het makkelijkst te beperken.
Maar eerlijk is eerlijk, dat geld voor alle apperatuur....
[ Voor 4% gewijzigd door Woody179 op 12-07-2022 14:19 ]
Er zijn argumenten genoeg genoemd en ieser kan daar zn keuzes in maken. T.net heeft zn werk weer gedaan!
[ Voor 36% gewijzigd door Deleon78 op 12-07-2022 14:59 ]
Mooi huis op een mooie kavel zo te zien!nils7 schreef op maandag 11 juli 2022 @ 22:23:
Hierbij het ontwerp wat naar de welstand is gegaan als concept
***members only***
Tips voor de indeling zijn nog steeds welkom
We zitten nu ook midden in het ontwerp proces van de indeling dus ik snap wel dat het altijd lastig blijft.
Je zou bijvoorbeeld de aanbouw aan de linkerzijde iets verder naar beneden kunnen halen, het uitstekende gedeelte aan de achterzijde kunnen gebruiken als berging. (dan lever je iets ruimte in op het kantoor) Dan kun je links tegen de wand een kastenwand plaatsen met daarvoor een mooi eiland en eet gedeelte.
Veel succes met de mooie woning!
Praktisch gezien hetzelfde:Krijnemans schreef op maandag 11 juli 2022 @ 15:09:
[...]
Bij ons in het bestemmingplan staat:
"1.41 bijgebouw:
een vrijstaand of aangebouwd gebouw dat architectonisch ondergeschikt is aan het hoofdgebouw."
[...]
Een garage is normaalgezien ondergeschikt aan de woning en zal in de regel dus als bijgebouw gelden (tenzij je het optisch als garage laat uitzien en het vervolgens geheel bij de woonkamer zou betrekken).
Wat zegt het bestemmingsplan bij jullie? Ik vind het namelijk vrij subjectief omschreven bij ons
Aangezien er een sectionaaldeur in zit lijkt me het logisch dat het aangemerkt kan worden als een bijgebouw.bijgebouw:
een op zichzelf staand, al dan niet vrijstaand, gebouw, dat door de vorm onderscheiden kan worden van het op hetzelfde bouwperceel gelegen hoofdgebouw en dat in architectonisch opzicht ondergeschikt is aan het hoofdgebouw.
Ales in 1 grote ruimte is echt 🥶
Eens. Lijkt mij ook ondergeschikt. Ik kon dit gelukkig binnen 5 minuten kortsluiten met iemand bij de gemeente. Wellicht de moeite waard om even te bellen en te informeren.keeperson schreef op dinsdag 12 juli 2022 @ 15:14:
[...]
Praktisch gezien hetzelfde:
[...]
Aangezien er een sectionaaldeur in zit lijkt me het logisch dat het aangemerkt kan worden als een bijgebouw.
Met gestrekt been.
We willen direct vanuit de keuken onze overkapping kunnen bereiken als we dus een hokje aan onze keuken maken is die niet direct bereikbaar.Lwent schreef op dinsdag 12 juli 2022 @ 15:05:
[...]
Mooi huis op een mooie kavel zo te zien!
We zitten nu ook midden in het ontwerp proces van de indeling dus ik snap wel dat het altijd lastig blijft.
Je zou bijvoorbeeld de aanbouw aan de linkerzijde iets verder naar beneden kunnen halen, het uitstekende gedeelte aan de achterzijde kunnen gebruiken als berging. (dan lever je iets ruimte in op het kantoor) Dan kun je links tegen de wand een kastenwand plaatsen met daarvoor een mooi eiland en eet gedeelte.
Veel succes met de mooie woning!
[Afbeelding]
Hetzelfde geldt over de keuken te verplaatsen naar een ander deel.
Nu zou dat niet erg zijn als we de keuken met de woonkamer switchen maar dan moet waar nu de keuken zit wel een stuk breder worden.
Over de wasmachine, we zouden ook in de bijkeuken een aansluiting kunnen plaatsen zodat we flexibel zijn met wat we willen.
NIO ET5 | Tesla Model Y LR | iRacing Profiel | To finish first, you first have to finish!
Per m2 € 264.11 excl. btw
Incl. mortelschroefpalen, grondwerken, funderingsijzer, superkist de hoop pekso voor de fundering, beton, kraanhuur, kanaalplaatvloer etc etc.
Ben benieuwd hoe dat zich verhoudt tot bungalow-bouw. Volgende woning wil ik alles gelijkvloers en gelukkig wat kleiner, maar dan ben jk 300k ex btw kwijt aan alleen de casco vloer o.Okarelkale schreef op woensdag 13 juli 2022 @ 13:08:
Ik heb een korte berekening gemaakt nu de begane grondvloer af is. Voor de geïnteresseerden;
Per m2 € 264.11 excl. btw
Incl. mortelschroefpalen, grondwerken, funderingsijzer, superkist de hoop pekso voor de fundering, beton, kraanhuur, kanaalplaatvloer etc etc.
Edit: decimal error! 30k dus. Sounds good!
[ Voor 3% gewijzigd door Deleon78 op 13-07-2022 15:14 ]
Jij wil een huis met 1000+ m² vloeroppervlak?Deleon78 schreef op woensdag 13 juli 2022 @ 14:36:
[...]
Ben benieuwd hoe dat zich verhoudt tot bungalow-bouw. Volgende woning wil ik alles gelijkvloers en gelukkig wat kleiner, maar dan ben jk 300k ex btw kwijt aan alleen de casco vloer o.O
Dat wordt een enorme casco vloer...Deleon78 schreef op woensdag 13 juli 2022 @ 14:36:
[...]
Ben benieuwd hoe dat zich verhoudt tot bungalow-bouw. Volgende woning wil ik alles gelijkvloers en gelukkig wat kleiner, maar dan ben jk 300k ex btw kwijt aan alleen de casco vloer o.O
Ik schat dat je voor bungalow geen of minder palen nodig zal hebben. Tevens zal de hoeveelheid ijzer in de fundering minder zijn. Ik had enkele joekels in de fundering van 60 cm breed. Gemiddeld per m2 zal je waarschijnlijk goedkoper uit zijn.
Note to self: dont respond while walking between meetings…keeperson schreef op woensdag 13 juli 2022 @ 14:40:
[...]
Jij wil een huis met 1000+ m² vloeroppervlak?
🫣
Bedankt voor de reacties
[ Voor 5% gewijzigd door Deleon78 op 13-07-2022 15:15 ]
Ideetje: keuken en eethoek switchen.nils7 schreef op maandag 11 juli 2022 @ 22:23:
Tips voor de indeling zijn nog steeds welkom
Op die manier ligt de keuken dichtbij de eethoek en de woonkamer. In de huidige opzet ligt de woonkamer relatief ver weg van de keuken.
Je wil inderdaad geen lauwe bitterballen bij de borrel!Compuhair schreef op woensdag 13 juli 2022 @ 16:09:
[...]
Ideetje: keuken en eethoek switchen.
Op die manier ligt de keuken dichtbij de eethoek en de woonkamer. In de huidige opzet ligt de woonkamer relatief ver weg van de keuken.
17,5 kWp zuid Vaillant Arotherm plus 55/6, 75/6 en 125/6
Als je koffie gaat zetten moet je "tot ziens" zeggen tegen je vrouw, met zo'n indeling.
Ook zichtbaar in de cirkel linksonder achter de auto geloof ik? Ziet er goed uit voor zover het te beoordelen is van dit plaatjekeeperson schreef op woensdag 13 juli 2022 @ 21:46:
De tweekapper rechtsachter is van mij.
[Afbeelding]
Cabauw/Lopik; 26 x 370 Wp (12 x O/ZO, 14 x W/ZW) 9,6 kWp
Klopt!Diepie schreef op donderdag 14 juli 2022 @ 12:05:
[...]
Ook zichtbaar in de cirkel linksonder achter de auto geloof ik? Ziet er goed uit voor zover het te beoordelen is van dit plaatjeWelke kant wordt van jou?
Hoeveel vierkante meter, als ik vragen mag?
Ja dat mag
Cabauw/Lopik; 26 x 370 Wp (12 x O/ZO, 14 x W/ZW) 9,6 kWp
17,5 kWp zuid Vaillant Arotherm plus 55/6, 75/6 en 125/6
ik vond dat persoonlijk het ergste van de afbouw wat we gedaan hebben.
Haha nee dat heb ik aan de specialisten over gelaten, ze hebben het in anderhalve dag gelegd.Aurum schreef op donderdag 14 juli 2022 @ 15:01:
@Diepie Zelf gedaan?!
Ik krijg al weer flashbacks aan rugpijn en stress als ik het zo zie
Cabauw/Lopik; 26 x 370 Wp (12 x O/ZO, 14 x W/ZW) 9,6 kWp
ik gok dat ze er zand cement op mikken, daar gaat niets in drijven, dat is niet nat genoeg.ds23man schreef op donderdag 14 juli 2022 @ 15:10:
Ik heb hier zelf 300m2 gedaan. Wel weinig bindertjes trouwens, dus de leidingen met water vullen anders kunnen ze gaan opdrijven tijdens het storten.
Er komt inderdaad een 80mm morteldekvloer op.twain4me schreef op donderdag 14 juli 2022 @ 15:37:
[...]
ik gok dat ze er zand cement op mikken, daar gaat niets in drijven, dat is niet nat genoeg.
Cabauw/Lopik; 26 x 370 Wp (12 x O/ZO, 14 x W/ZW) 9,6 kWp
mortelvloer zegt niet zo veel Anhydrietvloer is ook gemaakt van een mortel mortel is een mengsel van water toeslag stoffen en een bindmiddel.Diepie schreef op donderdag 14 juli 2022 @ 15:43:
[...]
Er komt inderdaad een 80mm morteldekvloer op.
zand cement is als spelen met vochtig zand in de zandbak, Anhydriet is een gietmortel ten dikte van cakemix.
(denk aan de weg rennende muis van centraal beheer)
Alleen aan vloerverwarming?
Impressive!
YouTube: Restauratie rijksmonument Randelweer
Helaas een beetje verkeerd geschaald door kijkbuis.
17,5 kWp zuid Vaillant Arotherm plus 55/6, 75/6 en 125/6
Iemand die een idee heeft van een nette prijs in de huidige markt? Dus palen leveren en heien/koppensnellen.
Thanks in advance!
Heeft vloerverwarming op een boven verdieping eigenlijk wel zin, in zo’n goed geïsoleerd huis? Als je wel even snel een kamer wilt verwarmen lijkt mij een vloerverwarming traag qua warmte afgifte?
Hier stond een link voor een Goldcard 1 jaar gratis + 20.000 punten.
Architect tekening:
:no_upscale():strip_icc():fill(white):strip_exif()/f/image/OXYbbTnS2iCtLd3KUYWYQLlN.jpg?f=user_large)
:no_upscale():strip_icc():fill(white):strip_exif()/f/image/33wKZHIOkzbhr1SFxfATaCms.jpg?f=user_large)
In de offerte staat:
"De luxe voordeur wordt uitgevoerd in Aluminium en voorzien van helder glas."
Nu krijgen we dus in principe een voordeur die volledig bestaat uit glas. Aangezien we al voldoende glas om de deur hebben en we ook een stuk privacy willen hadden we gerekend op de deur zoals ingetekend door de architect. Helaas is dit dus niet het geval en hebben we offertes opgevraagd voor een Polytec deur. We krijgen prijzen door tussen 8k-11k, voor enkel de deur & paneel. Dit vind ik echt schrikbarend hoog. Het gaat namelijk in mijn ogen om een redelijk standaard deur:
:no_upscale():strip_icc():fill(white):strip_exif()/f/image/nZGQYLxOv5XZYSCxOnrg8cj5.jpg?f=user_large)
Zijn dit tegenwoordig normale prijzen voor een voordeur? Zijn er nog andere opties waar ik naar kan kijken?
De kozijnen zijn dus van Aluminium en het lijkt mij dat andere materialen niet goed aansluiten (Hout / Kunststof) dus we vast zitten aan aluminium voor de voordeur.
Als iemand nog tips heeft hoor ik het graag, ook of mensen vergelijkbare offertes hebben van Aluminium voordeuren en dit dus inderdaad de prijs is die 'normaal' is.
Alvast bedankt!
Met name voor vloerkoeling is het handig (of plafondkoeling voor de verdieping eronder)Morpheusk schreef op vrijdag 15 juli 2022 @ 08:33:
[...]
Heeft vloerverwarming op een boven verdieping eigenlijk wel zin, in zo’n goed geïsoleerd huis? Als je wel even snel een kamer wilt verwarmen lijkt mij een vloerverwarming traag qua warmte afgifte?
Oké, maar eens in verdiepen, zou verwachten dat een normale airco beter koelt. Dat het als plafondkoeling zou werken kan ik mij dan weer niks bij voorstellen in onze situatie omdat er een dik isolatiepakket tussen zit.H34H schreef op vrijdag 15 juli 2022 @ 08:36:
[...]
Met name voor vloerkoeling is het handig (of plafondkoeling voor de verdieping eronder)
Hier stond een link voor een Goldcard 1 jaar gratis + 20.000 punten.
Houd er ook rekening mee of je een grondgebonden warmtepomp neemt of obv lucht. Wij krijgen namelijk een grondgebonden warmtepomp en ik had ook gevraagd of het handiger werkt om airco's toe te passen om te koelen. Echter doordat je dan meer koele lucht in huis brengt breng je tegelijkertijd in de zomer minder warmte terug je bron in. Hierdoor kan de bron in de grond sneller op raken.Morpheusk schreef op vrijdag 15 juli 2022 @ 08:43:
[...]
Oké, maar eens in verdiepen, zou verwachten dat een normale airco beter koelt. Dat het als plafondkoeling zou werken kan ik mij dan weer niks bij voorstellen in onze situatie omdat er een dik isolatiepakket tussen zit.
Hier is al veel over gezegd, maar wij hebben vloerkoeling op alle verdiepingen en een wtw met bypass (koude lucht van buiten naar binnen).Morpheusk schreef op vrijdag 15 juli 2022 @ 08:43:
[...]
Oké, maar eens in verdiepen, zou verwachten dat een normale airco beter koelt. Dat het als plafondkoeling zou werken kan ik mij dan weer niks bij voorstellen in onze situatie omdat er een dik isolatiepakket tussen zit.
De woonkamer is nog niet boven de 23 graden geweest, onze slaapkamer ook niet (en vaak zelfs lager), alleen direct onder het dak worden de kamers wat warmer met 25 graden tot nu toe.
Het is zeker geen vervanging van de airco, maar met een beetje slim combineren met een wtw bypass en gewoon ramen openen als het kouder is buiten, verwachten het huis op aanvaardbare temperaturen te houden deze zomer.
Volgende week de echte test
Ik vind dat altijd een beetje een rare opmerking. In de winter heb je de thermostaat sowieso altijd op één stand staan. Als je huis goed geïsoleerd en luchtdicht is heb je ook echt niet zoveel verliezen en kan vloerverwarming het prima bijbenen.FrankSpin schreef op vrijdag 15 juli 2022 @ 09:01:
Wij twijfelen ook nog over vloerverwarming/ koeling op de etage. Installateur stelde convector radiatoren voor op de slaapkamers. Zodat je sneller per individuele ruimte gewenste temperatuur kan bereiken.
ALs je wisseling in temperatuur wilt, dus snel opwarmen of koelen dan zijn fancoils beter.FrankSpin schreef op vrijdag 15 juli 2022 @ 09:01:
Wij twijfelen ook nog over vloerverwarming/ koeling op de etage. Installateur stelde convector radiatoren voor op de slaapkamers. Zodat je sneller per individuele ruimte gewenste temperatuur kan bereiken.
1 steady temp, dan gewoon VVW.
Qua koeling zijn fancoils wel wat effectiever, maar ze nemen ruimte in en zijn ook niet stil.
Zou VVW leggen en als je echt twijfelt voorbereiding voor de fancoils (aanvoer + afvoer condens) treffen.
Wat mij betreft alleen als 'ie ook koffie zet, de was doet en de hond uitlaat..Figaro9 schreef op vrijdag 15 juli 2022 @ 08:33:
Nu krijgen we dus in principe een voordeur die volledig bestaat uit glas. Aangezien we al voldoende glas om de deur hebben en we ook een stuk privacy willen hadden we gerekend op de deur zoals ingetekend door de architect. Helaas is dit dus niet het geval en hebben we offertes opgevraagd voor een Polytec deur. We krijgen prijzen door tussen 8k-11k, voor enkel de deur & paneel. Dit vind ik echt schrikbarend hoog. Het gaat namelijk in mijn ogen om een redelijk standaard deur:
[Afbeelding]
Zijn dit tegenwoordig normale prijzen voor een voordeur?
Lokale timmerfabriek/meubelmaker benaderen.Zijn er nog andere opties waar ik naar kan kijken?
Was advocaat maar vindt het juridische nog steeds leuk. Doet tegenwoordig iets in de metaal.
Ik vind het absurd veel geld voor een deur.
Timmerman of meubelmaker vragen.
Of anders eens in het buitenland kijken.
Er worden wel vaker houten deuren toegepast en aluminium kozijnen dus ik zie niet in waarom het per se aluminium zou moeten zijn.Figaro9 schreef op vrijdag 15 juli 2022 @ 08:33:
Zijn er nog andere opties waar ik naar kan kijken?
De kozijnen zijn dus van Aluminium en het lijkt mij dat andere materialen niet goed aansluiten (Hout / Kunststof) dus we vast zitten aan aluminium voor de voordeur.
Als iemand nog tips heeft hoor ik het graag, ook of mensen vergelijkbare offertes hebben van Aluminium voordeuren en dit dus inderdaad de prijs is die 'normaal' is.
Alvast bedankt!
Wat zij de aannemer overigens toen je vroeg waarom hij niet heeft geoffreerd wat de architect heeft getekend? En wat is zijn oplossing hiervoor?
Waarom gelijk zo’n conflicthouding?Tieske88 schreef op vrijdag 15 juli 2022 @ 11:22:
[...]
Er worden wel vaker houten deuren toegepast en aluminium kozijnen dus ik zie niet in waarom het per se aluminium zou moeten zijn.
Wat zij de aannemer overigens toen je vroeg waarom hij niet heeft geoffreerd wat de architect heeft getekend? En wat is zijn oplossing hiervoor?
Wij hebben zowel op de gehele benedenverdieping als op de slaapkamers & badkamer op de 1e verdieping nu sinds 1 jaar vloerverwarming, waarbij elke ruimte is voorzien van een zoneregeling. Dit werkt na volle tevredenheid. Doordat je temperatuur (via L/W waterpomp) op een constant niveau kan houden kan je een aangename temperatuur krijgen in de ruimtes op de 1e verdieping. Als je de temperatuur ineens hoger wilt hebben dan kan dit mede gezien de lage aanvoertemperaturen van de warmtepomp geruime tijd duren.FrankSpin schreef op vrijdag 15 juli 2022 @ 09:01:
Wij twijfelen ook nog over vloerverwarming/ koeling op de etage. Installateur stelde convector radiatoren voor op de slaapkamers. Zodat je sneller per individuele ruimte gewenste temperatuur kan bereiken.
Goed om te weten dat een houten deur in een aluminium eventueel wel mogelijk is. Mij werd verteld dat dit vanwege de verschillende type materialen minder goed sluit en dus afgeraden werd. Dan kies ik ervoor om het huis eerst op te leveren met de deur uit de offerte en ga ik daarna op zoek naar een timmerman die een deur op maat kan maken in hout.
@Tieske88 tot nu toe negeert hij mijn vragen hierover en verwijst hij naar de offerte die leidend is. Ik ga het gesprek nog wel een keer aan maar feitelijk heb ik niks om op te staan. Het is vooral jammer dat de offerte anders is dan de tekening en dit dus een extra kostenpost is. Zo zijn er soms dingen die meevallen en dingen die tegenvallen maar ga er geen big deal van maken. Dat doe ik alleen bij de punten waar ik recht heb van spreken. De oplossing die hij biedt komt met de meerprijs zoals genoemd, vandaar dat ik zelf op zoek ben naar alternatieven. En de gene die o.a. door jou genoemd wordt lijkt mij een goede oplossing.
Je komt hier al langer toch?
Dit is toch niet het projectmatige topic? JIj bent baas. Bel desnoods de kozijnleverancier zelf (moest ik uitiendelijk ook doen, aannemer had geen zin om hier tussen te zitten) en vraag wat de meerprijs is voor de deur die je wilt. Uiteindelijk zal het voor de plaatsende partij geen bal uitmaken welke deur het exact is.Figaro9 schreef op vrijdag 15 juli 2022 @ 12:10:
Dank voor jullie reacties.
Goed om te weten dat een houten deur in een aluminium eventueel wel mogelijk is. Mij werd verteld dat dit vanwege de verschillende type materialen minder goed sluit en dus afgeraden werd. Dan kies ik ervoor om het huis eerst op te leveren met de deur uit de offerte en ga ik daarna op zoek naar een timmerman die een deur op maat kan maken in hout.
@Tieske88 tot nu toe negeert hij mijn vragen hierover en verwijst hij naar de offerte die leidend is. Ik ga het gesprek nog wel een keer aan maar feitelijk heb ik niks om op te staan. Het is vooral jammer dat de offerte anders is dan de tekening en dit dus een extra kostenpost is. Zo zijn er soms dingen die meevallen en dingen die tegenvallen maar ga er geen big deal van maken. Dat doe ik alleen bij de punten waar ik recht heb van spreken. De oplossing die hij biedt komt met de meerprijs zoals genoemd, vandaar dat ik zelf op zoek ben naar alternatieven. En de gene die o.a. door jou genoemd wordt lijkt mij een goede oplossing.
Dit soort kapitaalvernietiging kan ik nooit zo goed tegen, alles is al duur en mensen schaars en dan word er nog moedwillig beide vernietigd.
Merkdeuren zoals Poltec of Hörmann zijn om de één of andere reden loeiduur. Bij hout en kunststof zou ik wegblijven. In een alu-kozijn past - bedoeld als in maatvoering en sluiting - aluminium het beste. Echt letterlijk iedere alu kozijnen boer kan je zo'n deur leveren. het is in principe een alu frame met twee panelen er tegen.Figaro9 schreef op vrijdag 15 juli 2022 @ 08:33:
Helaas is dit dus niet het geval en hebben we offertes opgevraagd voor een Polytec deur. We krijgen prijzen door tussen 8k-11k, voor enkel de deur & paneel. Dit vind ik echt schrikbarend hoog. Het gaat namelijk in mijn ogen om een redelijk standaard deur:
Zijn dit tegenwoordig normale prijzen voor een voordeur? Zijn er nog andere opties waar ik naar kan kijken?
De kozijnen zijn dus van Aluminium en het lijkt mij dat andere materialen niet goed aansluiten (Hout / Kunststof) dus we vast zitten aan aluminium voor de voordeur.
Ik heb hier een aanbieding voor een alu voorpui met deur met daarin een rond raapje. Prijs voor de deur ergens tegen de 2K excl. BTW.
Mijn huis is slimmer dan ik...
Waarom heb je dan een zoneregeling? Was het eenmalig inregelen van je VVW niet voldoende?Nous112 schreef op vrijdag 15 juli 2022 @ 11:47:
[...]
Wij hebben zowel op de gehele benedenverdieping als op de slaapkamers & badkamer op de 1e verdieping nu sinds 1 jaar vloerverwarming, waarbij elke ruimte is voorzien van een zoneregeling. Dit werkt na volle tevredenheid. Doordat je temperatuur (via L/W waterpomp) op een constant niveau kan houden kan je een aangename temperatuur krijgen in de ruimtes op de 1e verdieping. Als je de temperatuur ineens hoger wilt hebben dan kan dit mede gezien de lage aanvoertemperaturen van de warmtepomp geruime tijd duren.
Ik blijf erbij, zeker in een goed geïsoleerde nieuwebouwwoning is een zoneregeling in 99% van de gevallen niet nodig. De temperatuur in de woning is toch ontzettend uniform, en snelle opwarming van een ruimte lukt (door de trage VVW) toch niet. Gewoon een thermostaat op je WP aansluiten en die WP direct het water in je vloer laten pompen is goedkoper, zuiniger, makkelijker aan te leggen en levert een hoger rendement van je WP op.
Aan degenen die nog moeten kiezen: Mocht je twijfelen: Probeer het gewoon zonder zoneregeling. Het bespaart tijdens de aanleg al duizenden euro's, en achteraf nog een zoneregeling toevoegen kan altijd.
[ Voor 5% gewijzigd door Andrehj op 15-07-2022 13:02 ]
WP: ME PUHZ-SW75YAA + ERSD-VM2D + EV-WP-TWS-1W 300; AC: ME MXZ-2F42VF + 2x MSZ-LN25VGV; PV: 14.08 kWp O/W + SMA STP 8.0; Vent: Zehnder Q600 ERV + Ubbink AirExcellent.
Psies, dat werd mij ook aangeraden.Andrehj schreef op vrijdag 15 juli 2022 @ 12:47:
[...]
Mocht je twijfelen: Probeer het gewoon zonder zoneregeling. Het bespaart tijdens de aanleg al duizenden euro's, en achteraf nog een zoneregeling toevoegen kan altijd.
Mijn huis is slimmer dan ik...
Ik zie dit niet als conflicthouding (ik schrijf het wellicht wel wat kort door de bocht op): Ik vraag een offerte voor A, bedrijf levert een offerte voor B. De aannemer heeft dus (bewust of onbewust) iets opgenomen wat je niet gevraagd hebt. Dan mag je toch vragen wat de reden hiervoor is? En dat je dit graag binnen het budget opgelost wil hebben dus daarvoor zijn voorgestelde oplossing is. Je kunt er gewoon zakelijk ingaan toch?
Zoals eerder al aangegeven door bbbrumbrum zou ik dit vooral bij de aannemer laten. Als je later garantieproblemen krijgt geven ze anders niet thuis namelijk. De aannemer mag er ook wel wat moeite voor doen, het gaat niet om een paar euro die je straks naar ze overmaakt he... (overigens puur zakelijk gezien heb je wel een poot om op te staan als je duidelijk een dichte deur hebt aangevraagd maar zij iets anders hebben geoffreerd zonder dat aan te geven. Alleen in de huidige tijd hebben ze waarschijnlijk voldoende werk dus als jij er moeilijk over gaat doen zullen ze het werk wel teruggeven).Figaro9 schreef op vrijdag 15 juli 2022 @ 12:10:
Dank voor jullie reacties.
Goed om te weten dat een houten deur in een aluminium eventueel wel mogelijk is. Mij werd verteld dat dit vanwege de verschillende type materialen minder goed sluit en dus afgeraden werd. Dan kies ik ervoor om het huis eerst op te leveren met de deur uit de offerte en ga ik daarna op zoek naar een timmerman die een deur op maat kan maken in hout.
@Tieske88 tot nu toe negeert hij mijn vragen hierover en verwijst hij naar de offerte die leidend is. Ik ga het gesprek nog wel een keer aan maar feitelijk heb ik niks om op te staan. Het is vooral jammer dat de offerte anders is dan de tekening en dit dus een extra kostenpost is. Zo zijn er soms dingen die meevallen en dingen die tegenvallen maar ga er geen big deal van maken. Dat doe ik alleen bij de punten waar ik recht heb van spreken. De oplossing die hij biedt komt met de meerprijs zoals genoemd, vandaar dat ik zelf op zoek ben naar alternatieven. En de gene die o.a. door jou genoemd wordt lijkt mij een goede oplossing.
Edit: wil je een houten uitstraling of is het alleen van belang dat de deur dicht is? Als hij alleen dicht hoeft te zijn is onderstaand nog wel een optie wellicht, dit zou iedere kozijnleverancier moeten kunnen maken.
[ Voor 8% gewijzigd door Tieske88 op 15-07-2022 13:25 ]
We hebben hiervoor gekozen omdat we ook op de 1e etage volledig keramisch parket leggen en daarmee koude tegels willen voorkomen in de winter. In de zomer levert het juist wat extra koeling op de bovenetage.Morpheusk schreef op vrijdag 15 juli 2022 @ 08:33:
[...]
Heeft vloerverwarming op een boven verdieping eigenlijk wel zin, in zo’n goed geïsoleerd huis? Als je wel even snel een kamer wilt verwarmen lijkt mij een vloerverwarming traag qua warmte afgifte?
Cabauw/Lopik; 26 x 370 Wp (12 x O/ZO, 14 x W/ZW) 9,6 kWp
Zo zie je maar weer in dit topic: ieder z'n voorkeur. Moet er niet aan denken zo'n harde materialen op de bovenverdieping.Diepie schreef op vrijdag 15 juli 2022 @ 13:29:
[...]
We hebben hiervoor gekozen omdat we ook op de 1e etage volledig keramisch parket leggen en daarmee koude tegels willen voorkomen in de winter. In de zomer levert het juist wat extra koeling op de bovenetage.
Ik denk dat het vnl een constructief verhaal is, maakt voor het kozijn nogal uit of er een lichtgewicht alu deur in geplaatst word of een zware massief houten deur. En aangezien het kozijn ook nog eens doorloopt naar de bovenverdieping kan het inderdaad wel eens een duur grapje zijn als voor het geheel een veel zwaardere constructie gebruikt moet worden. Ik zou met die insteek eens om de tafel gaan zitten met de aannemer.Tieske88 schreef op vrijdag 15 juli 2022 @ 13:22:
[...]
Ik zie dit niet als conflicthouding (ik schrijf het wellicht wel wat kort door de bocht op): Ik vraag een offerte voor A, bedrijf levert een offerte voor B. De aannemer heeft dus (bewust of onbewust) iets opgenomen wat je niet gevraagd hebt. Dan mag je toch vragen wat de reden hiervoor is? En dat je dit graag binnen het budget opgelost wil hebben dus daarvoor zijn voorgestelde oplossing is. Je kunt er gewoon zakelijk ingaan toch?
[...]
Zoals eerder al aangegeven door bbbrumbrum zou ik dit vooral bij de aannemer laten. Als je later garantieproblemen krijgt geven ze anders niet thuis namelijk. De aannemer mag er ook wel wat moeite voor doen, het gaat niet om een paar euro die je straks naar ze overmaakt he... (overigens puur zakelijk gezien heb je wel een poot om op te staan als je duidelijk een dichte deur hebt aangevraagd maar zij iets anders hebben geoffreerd zonder dat aan te geven. Alleen in de huidige tijd hebben ze waarschijnlijk voldoende werk dus als jij er moeilijk over gaat doen zullen ze het werk wel teruggeven).
Edit: wil je een houten uitstraling of is het alleen van belang dat de deur dicht is? Als hij alleen dicht hoeft te zijn is onderstaand nog wel een optie wellicht, dit zou iedere kozijnleverancier moeten kunnen maken.
[Afbeelding]
17,5 kWp zuid Vaillant Arotherm plus 55/6, 75/6 en 125/6
Ik moet eerlijk zeggen dat ik het liefst ook hout op de eerste etage had gelegd maar uit praktisch oogpunt hebben we hiervoor gekozen. We hebben een grote hond en er komt er waarschijnlijk daar nog één bij, en ook nog 4 katten dus een grote beestenboel als ik mijzelf ook meerekenbbbrumbrum schreef op vrijdag 15 juli 2022 @ 13:47:
[...]
Zo zie je maar weer in dit topic: ieder z'n voorkeur. Moet er niet aan denken zo'n harde materialen op de bovenverdieping.
Ik moet wel zeggen dat de 'look 'n feel' van keramisch parket de laatste jaren erg vooruit is gegaan en we zijn erg tevreden met de keuze die we gemaakt hebben. Ziet er prachtig uit en voelt ook fijn aan de voeten (uiteraard met blote pootjes getest
Cabauw/Lopik; 26 x 370 Wp (12 x O/ZO, 14 x W/ZW) 9,6 kWp
Wat je nu krijgt is een alu deurkader profiel met dubbelglas. Glas zit gemonteerd achter verwijderbare glaslatten, je zou het glas kunnen vervangen voor schuimpaneel (kunstof) in de kleur die je wenst. De deur die je op foto toont is geheel bekleed (je ziet geen kader dus) dit is niet te realiseren met de bestaande deur.Figaro9 schreef op vrijdag 15 juli 2022 @ 08:33:
Ik volg dit topic al een hele tijd en eind september zijn we zelf eindelijk ook zover dat de bouw gaat beginnen. Bijna alle details vd woning zijn bekend/vastgelegd het enige open eind is de voordeur. Hier hebben we niet goed opgelet in de details die in de offerte staan, welke afwijkt van de tekening van de architect (we hebben alles onder 1 dak).
Architect tekening:
[Afbeelding]
[Afbeelding]
In de offerte staat:
"De luxe voordeur wordt uitgevoerd in Aluminium en voorzien van helder glas."
Nu krijgen we dus in principe een voordeur die volledig bestaat uit glas. Aangezien we al voldoende glas om de deur hebben en we ook een stuk privacy willen hadden we gerekend op de deur zoals ingetekend door de architect. Helaas is dit dus niet het geval en hebben we offertes opgevraagd voor een Polytec deur. We krijgen prijzen door tussen 8k-11k, voor enkel de deur & paneel. Dit vind ik echt schrikbarend hoog. Het gaat namelijk in mijn ogen om een redelijk standaard deur:
[Afbeelding]
Zijn dit tegenwoordig normale prijzen voor een voordeur? Zijn er nog andere opties waar ik naar kan kijken?
De kozijnen zijn dus van Aluminium en het lijkt mij dat andere materialen niet goed aansluiten (Hout / Kunststof) dus we vast zitten aan aluminium voor de voordeur.
Als iemand nog tips heeft hoor ik het graag, ook of mensen vergelijkbare offertes hebben van Aluminium voordeuren en dit dus inderdaad de prijs is die 'normaal' is.
Alvast bedankt!
Dit topic is gesloten.
![]()
Duurzame installaties en domotica hebben eigen fora met veel meer diepgang over dat onderwerp. Dit topic gaat over de perikelen omtrent het bouwen van een eigen woning.
Voor projectmatige woningbouw: Het (projectmatige) nieuwbouwwoning topic. Je tuin is natuurlijk ook iets wat moet gebeuren na de bouw. Zie Het grote tuinen, balkons en plantentopic
:strip_exif()/f/image/OUnnctyczossPJZm7Wp6pjIB.jpg?f=fotoalbum_large)
:strip_exif()/f/image/7X8nyUtzVNW8LIPkyv8wIavB.jpg?f=fotoalbum_large)
:strip_exif()/f/image/C5aQHxpbYbgB0Dw36pWFYsih.jpg?f=fotoalbum_large)
:strip_exif()/f/image/w7O3409aGa1hFRbeEUNEEdLw.jpg?f=fotoalbum_large)
:strip_exif()/f/image/My2l7BHhLjkBKFC9sYyNYiBX.jpg?f=fotoalbum_large)