Met architect aangegeven maar voor mn gevoel afwijkend. Prefab met een architect die samenwerkt met de bouwer, maar eigenlijk 95% eigen ontwerp.battler schreef op maandag 20 december 2021 @ 12:49:
Hier in huis hebben we heel vaak een discussie over het nut van een architect. Door het bouwprocess heb ik mijn mening enigszins bijgesteld, ik ben ik zeer benieuwd naar die van jullie. Nog interessanter is het natuurlijk om deze resultaten te correleren aan een tevredenheidsonderzoek. Misschien dat jullie je mening kunnen toelichten in een post.
Hoe heb je gebouwd?
Poll: Prefab woning:
• Ontworpen door architect
• alleen interieur architect
• met bouwbegeleiding
• met bouwbegeleiding en interieurarchitect
• architect met bouwbegeleiding
• architect en interieurarchitect
• architect met bouwbegeleiding en interieurarchitect
Tussenstand:
[Afbeelding]
Ook een poll maken? Klik hier
Poll: Traditioneelbouw:
• Ontworpen door architect
• alleen interieur architect
• met bouwbegeleiding
• met bouwbegeleiding en interieurarchitect
• architect met bouwbegeleiding
• architect en interieurarchitect
• architect met bouwbegeleiding en interieurarchitect
Tussenstand:
[Afbeelding]
Ook een poll maken? Klik hier
Poll: Gebouwd zonder achitect
• Prefabwoning
• Traditioneelbouw
Tussenstand:
[Afbeelding]
Ook een poll maken? Klik hier
@battler
Feitelijk geen architect maar bouwkundig ontwerper. Eigen ontwerp laten maken op basis van onze eisen en wensen.
Heb aangegeven prefab, dat geldt voor het casco, dat kwam van Isokern.
Feitelijk geen architect maar bouwkundig ontwerper. Eigen ontwerp laten maken op basis van onze eisen en wensen.
Heb aangegeven prefab, dat geldt voor het casco, dat kwam van Isokern.
Tja, ik vind dat altijd een beetje een moeilijke. Natuurlijk is minder beter voor de natuur, maar er zijn ook mensen die met 2 kinderen in een Tiny House van 30m2 kunnen wonen. Of mensen met 5 man in een klein flatje van 60m2. Dan is 140m2 opeens ook heel veel.Karp schreef op maandag 20 december 2021 @ 20:38:
En re: oppervlakte/inhoud. Wij zitten rond de 140-150m2 inclusief een berging, met 2 kinderen. Dat voelt voor mij erg ruim. Elke m2 kost geld, moet je onderhouden, warm stoken en belast je de natuur mee. Minder is meer voor mij.
Ik vind het ook erg veel. Dit hieronder is nu ons huis, een doorsnee rijtjeshuis, en dat voelt al enorm ruim op heel veel vlakken. Als we straks 20% meer hebben is dat een luxe.kepler schreef op maandag 20 december 2021 @ 21:34:
[...]
Tja, ik vind dat altijd een beetje een moeilijke. Natuurlijk is minder beter voor de natuur, maar er zijn ook mensen die met 2 kinderen in een Tiny House van 30m2 kunnen wonen. Of mensen met 5 man in een klein flatje van 60m2. Dan is 140m2 opeens ook heel veel.
Members only:
Alleen zichtbaar voor ingelogde gebruikers.
Inloggen
[ Voor 22% gewijzigd door Karp op 20-12-2021 23:04 ]
Zou je je adres wel zo publiekelijk posten?
[ Voor 41% gewijzigd door Deleon78 op 20-12-2021 23:08 ]
Niet de eerste keer dat ik dat doe 😭🤪Karp schreef op maandag 20 december 2021 @ 23:04:
Aangepast naar membersonly. Als je dan je quote ook aanpast
Ja hier hebben wel wel over nagedacht maar we krijgen ook al een doorkijkhaard tussen de woonkamer en de keuken. Daarnaast ben ik ook bang dat het in de zomer ook warm wordt zoals big bang schrijft.goirke schreef op maandag 20 december 2021 @ 17:44:
[...]
Ook een doorkijkhaard overwogen? Hebben wij ook en geeft echt sfeer. Zowel van binnen als van buiten toegankelijk en zichtbaar
Daar ben ik ook bang voor. Plus dat we al een doorkijkhaard hebben tussen de woonkamer en keuken.big bang schreef op maandag 20 december 2021 @ 17:49:
Nadeel van zo'n buitenhaard in je muur lijkt me, dat als je op een mooie zomerse avond lekker bij een vuurtje zit als het begint af te koelen; je die warmte niet persé ook in je huis wilt hebben. Of denk ik er nu te moeilijk over?
Wat betreft die bergruimte, we krijgen er een kelder bij die we als opslag kunnen gebruiken. Daarnaast staat er een grote schuur van mijn schoonouders waar we nog het een en ander kunnen opslaan. Dit is wat betreft de fietsen en buitenspeelgoed.kepler schreef op maandag 20 december 2021 @ 18:40:
[...]
Ziet er mooi uit! Ik weet niet of er kinderen zijn/komen (aan slaapkamers te zien wel?). Zo ja dan mis ik wat bergruimte misschien? Je hebt wel een berging, maar die is niet heel groot? Komt er nog een garage oid?
Wij hebben 3 kinderen, 200m2 woonoppervlakte. Daarvan is 9m2 echt een opslaghok (denk aan een magazijn) en een garage van 15m2 die ook gebruikt wordt als berging. Alles is behoorlijk vol
Ik ben de oppervlaktes van de stucadoor aan het narekenen en ik kom erachter dat hij de wand rekent inclusief raam. Is dit gebruikelijk? Als ik de afmetingen van het raam er af haal dan scheelt dit zo een 1500,-. Uiteraard ga ik dit aan hem voorleggen maar wat voorkennis is wel handig. Overigens heb ik de offerte al goedgekeurd en zijn ze al aan de slag gegaan. Dit is wel op basis van een m2 prijs maar ik vraag mij af of ik hier uberhaupt nog een punt van kan/moet maken.
Lux.Architectuur | Van Dromen tot Wonen | www.Lux-a.nl
@battler De stucadoor stuct liever 20 vierkante meter extra aan muur dan het gepriegel rondom een raam. Hoekjes etc kosten relatief veel tijd.
@battler
Dat is een redelijke standaard methode voor de berekening, anders krijg je toeslagen voor neggekanten etc.
Waarschijnlijk staat er ergens in de offerte dat de bruto meters gerekend zullen worden.
Heb je een complete offerte, of alleen een m2 prijs?
Dat is een redelijke standaard methode voor de berekening, anders krijg je toeslagen voor neggekanten etc.
Waarschijnlijk staat er ergens in de offerte dat de bruto meters gerekend zullen worden.
Heb je een complete offerte, of alleen een m2 prijs?
Bedankt, ik heb even door de emails gescrolled en ik kan niets vinden over bruto opp. en/of ramen. In de offerte wordt een totaal bedrag gegeven voor een aantal m2. We hebben ook meerprijzen gekregen per m2 (vanwege stuc ipv pleisterwerk).
@Rob-T6
/f/image/ByLbJtWnK8k1yGIThTqPCvy6.png?f=fotoalbum_large)
Net even contact gehad en zij berekenen ramen en deuren niet mee in de oppervlakten. Dus dan moeten we gewoon even gaan kijken waar het verschil in oppervlakte in zit.
@Rob-T6
/f/image/ByLbJtWnK8k1yGIThTqPCvy6.png?f=fotoalbum_large)
Net even contact gehad en zij berekenen ramen en deuren niet mee in de oppervlakten. Dus dan moeten we gewoon even gaan kijken waar het verschil in oppervlakte in zit.
[ Voor 12% gewijzigd door battler op 21-12-2021 12:48 ]
Lux.Architectuur | Van Dromen tot Wonen | www.Lux-a.nl
Onder welke optie valt het maken van Floorplanners die 1 op 1 zijn overgenomen door de architect van de aannemer? Met hier en daar aanpassingen voor dragende muren. De buitenkant is wel aardig een eigen draai aan gegeven maar ook weer met voorbeelden die wij mooi vindenbattler schreef op maandag 20 december 2021 @ 12:49:
Hier in huis hebben we heel vaak een discussie over het nut van een architect. Door het bouwprocess heb ik mijn mening enigszins bijgesteld, ik ben ik zeer benieuwd naar die van jullie. Nog interessanter is het natuurlijk om deze resultaten te correleren aan een tevredenheidsonderzoek. Misschien dat jullie je mening kunnen toelichten in een post.
Hoe heb je gebouwd?
Dat is toch gewoon normale gang van zaken?Road-runner83 schreef op dinsdag 21 december 2021 @ 16:10:
[...]
Onder welke optie valt het maken van Floorplanners die 1 op 1 zijn overgenomen door de architect van de aannemer? Met hier en daar aanpassingen voor dragende muren. De buitenkant is wel aardig een eigen draai aan gegeven maar ook weer met voorbeelden die wij mooi vinden.
Geen idee maar normaal voor een architect toch minder leuk zou je denkenDeleon78 schreef op dinsdag 21 december 2021 @ 16:18:
[...]
Dat is toch gewoon normale gang van zaken?
En hoe zit het met inbraakgevaar met een doorkijkhaard die aan beide kanten open kan. Wij hebben een grote M Design doorkijkhaard tussen woonkeuken en woonkamer, maar zie het gevaar als 1 zijde een opening naar buiten is , waar je het glas eenvoudig naar boven schuift en het dieven wel erg makkelijk maaktgoirke schreef op maandag 20 december 2021 @ 17:44:
[...]
Ook een doorkijkhaard overwogen? Hebben wij ook en geeft echt sfeer. Zowel van binnen als van buiten toegankelijk en zichtbaar
Twente : Kantoor: 14250 W. met Solax 15KW op 10° ZZW. Huis: 9450W (16x315 O+14x315 op ZZO) met GW10KN-DT Navimow H1500e LG65E9
Die is dan ook voor binnen blijkbaar964C2 schreef op dinsdag 21 december 2021 @ 20:10:
[...]
En hoe zit het met inbraakgevaar met een doorkijkhaard die aan beide kanten open kan. Wij hebben een grote M Design doorkijkhaard tussen woonkeuken en woonkamer, maar zie het gevaar als 1 zijde een opening naar buiten is , waar je het glas eenvoudig naar boven schuift en het dieven wel erg makkelijk maakt
Je hebt ze vast ook met bewegingsensor en automatische ontsteker964C2 schreef op dinsdag 21 december 2021 @ 20:10:
[...]
En hoe zit het met inbraakgevaar met een doorkijkhaard die aan beide kanten open kan. Wij hebben een grote M Design doorkijkhaard tussen woonkeuken en woonkamer, maar zie het gevaar als 1 zijde een opening naar buiten is , waar je het glas eenvoudig naar boven schuift en het dieven wel erg makkelijk maakt
RAL9016? Dan zit je straks wel met een zonnebril op in huisbattler schreef op dinsdag 21 december 2021 @ 12:43:
Bedankt, ik heb even door de emails gescrolled en ik kan niets vinden over bruto opp. en/of ramen. In de offerte wordt een totaal bedrag gegeven voor een aantal m2. We hebben ook meerprijzen gekregen per m2 (vanwege stuc ipv pleisterwerk).
@Rob-T6
[Afbeelding]
Net even contact gehad en zij berekenen ramen en deuren niet mee in de oppervlakten. Dus dan moeten we gewoon even gaan kijken waar het verschil in oppervlakte in zit.
Oeh ja smaken verschillen natuurlijk, maar dat zou ik ook echt niet doen… spierwit geeft imo echt een goedkope steriele uitstraling. Dat past niet bij een huis van dit “kaliber”.RocketKoen schreef op dinsdag 21 december 2021 @ 20:52:
[...]
RAL9016? Dan zit je straks wel met een zonnebril op in huis
Wij hebben obv kleuradvies gekozen voor keim 9514 als basiskleur voor de wanden (wel witte plafonds en plinten). Is echt een aanrader. Inmiddels stuk of 4 vrienden en collega’s die deze kleur hebben overgenomen
Maar nogmaals, smaken verschillen, als het écht weloverwogen is dan prima natuurlijk!
Ik heb bij mijn vorige werkgever bijna alles opgeleverd in RAL9016.onne schreef op dinsdag 21 december 2021 @ 21:32:
[...]
Oeh ja smaken verschillen natuurlijk, maar dat zou ik ook echt niet doen… spierwit geeft imo echt een goedkope steriele uitstraling. Dat past niet bij een huis van dit “kaliber”.
Wij hebben obv kleuradvies gekozen voor keim 9514 als basiskleur voor de wanden (wel wit op de plafonds). Is echt een aanrader. Inmiddels stuk of 4 vrienden en collega’s die deze kleur hebben overgenomen![]()
Maar nogmaals, smaken verschillen, als het écht weloverwogen is dan prima natuurlijk!
Maar die bouwde kassen.
@RocketKoen @onne Korte discussie hier intern gevoerd maar blijkbaar is dit wel overwogen.
Ik ben benieuwd, tot nu toe moet ik altijd achteraf toegeven dat ze gelijk heeft..
Ik ben benieuwd, tot nu toe moet ik altijd achteraf toegeven dat ze gelijk heeft..
[ Voor 93% gewijzigd door battler op 21-12-2021 22:01 ]
Lux.Architectuur | Van Dromen tot Wonen | www.Lux-a.nl
.
[ Voor 99% gewijzigd door FrankSpin op 15-07-2023 12:34 ]
@battler Ik heb ook alles 9016 en dat bevalt uitstekend. Wel voorkomen dat je met verlichting kouder gaat dan 2700K. Hoe 9016 er uiteindelijk uit ziet hangt ook af van de kleur van de vloer waar zonlicht op weerkaatst je woning in.
Waar is dit Frank? Als ik het goed lees zit dus de stevige grond zo'n 6,5 meter diep.FrankSpin schreef op dinsdag 21 december 2021 @ 22:05:
De vaart zit er goed in, inmiddels zijn de sonderingen uitgevoerd.
Mijn huis is slimmer dan ik...
.
[ Voor 112% gewijzigd door FrankSpin op 15-07-2023 12:34 ]
Het maaiveld zit op 6,5m vanaf NAP en de vaste grond (>5Mpa) zit er een meter onder ongeveer.Conrado schreef op dinsdag 21 december 2021 @ 23:07:
[...]
Waar is dit Frank? Als ik het goed lees zit dus de stevige grond zo'n 6,5 meter diep.
Peil ligt meestal 100mm boven het maaiveld.FrankSpin schreef op woensdag 22 december 2021 @ 07:52:
Edit: die 6.47 is peil t.o.v. n.a.p. Maaiveld ligt dus 6.47 meter boven n.a.p. En dan is de eerste dikke meter zand, dan laagje veen en daarna weer zand.
[ Voor 35% gewijzigd door Ernemmer op 22-12-2021 08:03 ]
Keim 9514 ziet er idd goed uit! Heb je een fotootje toevallig?onne schreef op dinsdag 21 december 2021 @ 21:32:
[...]
Oeh ja smaken verschillen natuurlijk, maar dat zou ik ook echt niet doen… spierwit geeft imo echt een goedkope steriele uitstraling. Dat past niet bij een huis van dit “kaliber”.
Wij hebben obv kleuradvies gekozen voor keim 9514 als basiskleur voor de wanden (wel witte plafonds en plinten). Is echt een aanrader. Inmiddels stuk of 4 vrienden en collega’s die deze kleur hebben overgenomen![]()
Maar nogmaals, smaken verschillen, als het écht weloverwogen is dan prima natuurlijk!
In het westen kijk ik bij quickscans voor projecten meestal naar 10. Ik vind het laagje bovenin nou ook weer niet zo dik, niet geholpen door een laagje dik water op ~ 1.8 onder maaiveld.Ernemmer schreef op woensdag 22 december 2021 @ 07:58:
[...]
Het maaiveld zit op 6,5m vanaf NAP en de vaste grond (>5Mpa) zit er een meter onder ongeveer.
[...]
Peil ligt meestal 100mm boven het maaiveld.
This is my signature. There are many like it, but this one is mine.
Zo doet iedereen het weer iets anders, ik gebruikte bijna altijd 5 bij het berekenen van een fundering. Dat was het minimale als je nog een beetje normale breedte van je fundering wilde hebben.Señor Sjon schreef op woensdag 22 december 2021 @ 10:25:
[...]
In het westen kijk ik bij quickscans voor projecten meestal naar 10. Ik vind het laagje bovenin nou ook weer niet zo dik, niet geholpen door een laagje dik water op ~ 1.8 onder maaiveld.
[ Voor 10% gewijzigd door Ernemmer op 22-12-2021 10:35 ]
Funderen op staal is hier in 99.9% van de gevallen bij voorbaat kansloos. Bij paalpunten heb je natuurlijk wat meer weerstand nodig.
This is my signature. There are many like it, but this one is mine.
Het is goed dat je het al hebt, niets zo erg dat het fundament een stelpost wordt.FrankSpin schreef op woensdag 22 december 2021 @ 07:52:
Op de grens van Drenthe en Friesland. Ik kan zelf de metingen ook niet zo goed lezen. Maar verwacht dat stevige laag wel ondieper zit. Gezien rest van de woningen ook niet voorzien zijn van heipalen. Maar misschien hebben we pech :-)
Hier (ZO Brabant) wordt standaard op staal gebouwd, echter wij bouwen een kelder. Je graaft dan helaas de goed grond weg en komt op leem uit. Ons huidige huis - ook met kelder - staat op schroefpalen. We gaan 5 km verderop bouwen, en daar zit op 4 meter diep een laag met MPa = 20. Met een meter zandverbetering wordt dat de basis, dus (gelukkig) zonder palen.
Alles afhankelijk hoe je bouwt: wij bouwen traditioneel plus een betonnen kelder, da heb er een behoorlijk gewicht op staan
Mijn huis is slimmer dan ik...
Zie hier. Blijft altijd lastig op de foto, maar het geeft naar mijn idee een warm / chique effect. En witte delen (plint, schakelaars, plafond) komen er mooi(er) uit.H34H schreef op woensdag 22 december 2021 @ 09:31:
[...]
Keim 9514 ziet er idd goed uit! Heb je een fotootje toevallig?
:strip_exif()/f/image/XM29wVQRZtiiptSbryZGS5vr.jpg?f=fotoalbum_large)
9514 is dan ook een grijstint, geen (variatie van) wit.
RAL9010 zou mijn keuze zijn voor wit, en dan supermatt van sigma/sigmapearl.
RAL9010 zou mijn keuze zijn voor wit, en dan supermatt van sigma/sigmapearl.
[ Voor 17% gewijzigd door 20ten op 22-12-2021 18:57 ]
Bij mij in Langedijke (Oosterwolde) is mijn woning op strokenfundering gebouwd die van de overburen op heipalen en naast mij is de teelaarde laag weggehaald en vervangen door zand waarop de isolatie en de betonvloer is gelegd.FrankSpin schreef op woensdag 22 december 2021 @ 07:52:
[...]
Op de grens van Drenthe en Friesland. Ik kan zelf de metingen ook niet zo goed lezen. Maar verwacht dat stevige laag wel ondieper zit. Gezien rest van de woningen ook niet voorzien zijn van heipalen. Maar misschien hebben we pech :-)
Zullen het binnenkort wel horen van de constructeur
Edit: die 6.47 is peil t.o.v. n.a.p. Maaiveld ligt dus 6.47 meter boven n.a.p. En dan is de eerste dikke meter zand, dan laagje veen en daarna weer zand.
20x JA Solar 6.9KW; Fronius Symo 7.0; Panasonic J Mono 7KW; Atlantic Explorer V3
Jawel, maar wel een wat groter project (woongebouw) en vanaf de zijkant.pepelstwan schreef op donderdag 23 december 2021 @ 16:23:
Iemand hier enige ervaring hiermee
Kan iemand mij helpen met jullie ervaring of kennis?
ze mogen in iedergeval gewoon nog steeds je bouw controleren, en dat gaan ze ook doen waar de binnendienst steken heeft laten vallen gaat de buitendienst vaak overuren draaien.. doorgaans kan je beter meewerken met wat de binnendienst wil want zodra de buitendienst zijn tent heeft opgezet naast je bouwput ben je vaak veder van huis.
Als de warmte pomp niet op de tekening staat valt hij natuurlijk niet onder de aanvraag en kan het zijn dat een aantal plekken niet legaal is. dat ze daar iets over vragen is zo gek niet, je andere voorbeelden zijn te vaag om iets over te kunnen zeggen.
Vergeet niet dat je nog steeds ook plichten hebt.
Voor de aan- en afvoer van de WTW zijn we niet zo gecharmeerd van de standaard ventielen.
Een Square frameloos ventiel heeft onze voorkeur. Alternatief zou een frameloos lijnrooster kunnen zijn.
Maar kunnen deze opties ook gerealiseerd worden in een breedplaatvloer?
Kan dit dan via een instortvoorziening (spotbox bijv. voor optie 1) of is dit echt alleen voor verlaagde plafonds?
Installateurs die ik tot nog toe heb gesproken, zijn hier niet bekend mee. Zij komen vooral met de standaard ventielen.
Een Square frameloos ventiel heeft onze voorkeur. Alternatief zou een frameloos lijnrooster kunnen zijn.
Maar kunnen deze opties ook gerealiseerd worden in een breedplaatvloer?
Kan dit dan via een instortvoorziening (spotbox bijv. voor optie 1) of is dit echt alleen voor verlaagde plafonds?
Installateurs die ik tot nog toe heb gesproken, zijn hier niet bekend mee. Zij komen vooral met de standaard ventielen.
Move along people. Nothing to see here.
Beiden zijn bedoeld voor systeemplafonds of gipsplaat, en niet geschikt voor het instorten in een breedplaat.
De Square frameless kan wel maar dan moet je een sparing laten in de breedplaat waar de unit ruim in past, vervolgens gelijk aanleggen met de breedplaat (van onderen erg goed vastzetten), aansluiten en instorten met beton. Dat is te doen, maar is wel veel werk. Natuurlijk geen probleem als dat je eigen tijd is.
Het is wél een groot gat (230x230 mm) en dus moet dat in overleg met de constructeur.
De Square frameless kan wel maar dan moet je een sparing laten in de breedplaat waar de unit ruim in past, vervolgens gelijk aanleggen met de breedplaat (van onderen erg goed vastzetten), aansluiten en instorten met beton. Dat is te doen, maar is wel veel werk. Natuurlijk geen probleem als dat je eigen tijd is.
Het is wél een groot gat (230x230 mm) en dus moet dat in overleg met de constructeur.
[ Voor 3% gewijzigd door Conrado op 23-12-2021 21:37 ]
Mijn huis is slimmer dan ik...
Een heel andere suggestie, misschien al wel naar gekeken, maar zeg het toch maar: https://producten.zehnder...tiel-comfovalve-luna-e125evol schreef op donderdag 23 december 2021 @ 21:01:
Voor de aan- en afvoer van de WTW zijn we niet zo gecharmeerd van de standaard ventielen.
Een Square frameloos ventiel heeft onze voorkeur. Alternatief zou een frameloos lijnrooster kunnen zijn.
Maar kunnen deze opties ook gerealiseerd worden in een breedplaatvloer?
Kan dit dan via een instortvoorziening (spotbox bijv. voor optie 1) of is dit echt alleen voor verlaagde plafonds?
Installateurs die ik tot nog toe heb gesproken, zijn hier niet bekend mee. Zij komen vooral met de standaard ventielen.
Optie 1 is voor een dubbele laag gipsplaat bedoelt, voor een breedplaatvloer wordt het DIY... het rooster moet precies op de juiste hoogte in de breedplaatvloer worden opgehangen en bij het betonstorten ook zo blijven.evol schreef op donderdag 23 december 2021 @ 21:01:
Voor de aan- en afvoer van de WTW zijn we niet zo gecharmeerd van de standaard ventielen.
Een Square frameloos ventiel heeft onze voorkeur. Alternatief zou een frameloos lijnrooster kunnen zijn.
Maar kunnen deze opties ook gerealiseerd worden in een breedplaatvloer?
Kan dit dan via een instortvoorziening (spotbox bijv. voor optie 1) of is dit echt alleen voor verlaagde plafonds?
Installateurs die ik tot nog toe heb gesproken, zijn hier niet bekend mee. Zij komen vooral met de standaard ventielen.
Ik zit óók met het dilemma dat ik geen enkel ventiel mooi vindt.
Ik zit er aan te denken om de inblaas in de woonkamer in een soort koof in te bouwen met een 'rooster' op de volle breedte van de koof, zo wordt ook de luchtsnelheid verlaagd en daarmee de kans op voelbare tocht.
20x JA Solar 6.9KW; Fronius Symo 7.0; Panasonic J Mono 7KW; Atlantic Explorer V3
Zou ik niet een ventilatie spotbox kunnen gebruiken om een square ventiel in te stucen?
Lijkt net wel of net niet te passen, maar vroeg me af of het principe zou kunnen werken.
De Zehnder ventielen hadden we ook gezien. Die zijn wel redelijk, maar het fraaist zou toch zijn om het nog minder opvallend te verwerken.
De airspot, en ventilatie spotbox hierboven, waar het gecombineerd wordt met verlichting kan ook maar leidt wel tot enorm veel spots waar we ook geen behoefte aan hebben.
Lijkt net wel of net niet te passen, maar vroeg me af of het principe zou kunnen werken.
De Zehnder ventielen hadden we ook gezien. Die zijn wel redelijk, maar het fraaist zou toch zijn om het nog minder opvallend te verwerken.
De airspot, en ventilatie spotbox hierboven, waar het gecombineerd wordt met verlichting kan ook maar leidt wel tot enorm veel spots waar we ook geen behoefte aan hebben.
Move along people. Nothing to see here.
De inwendige maten van de spotbox is te klein voor de https://www.ventilatiesho...iel-125mm-toevoer-afvoer/evol schreef op vrijdag 24 december 2021 @ 09:08:
Zou ik niet een ventilatie spotbox kunnen gebruiken om een square ventiel in te stucen?
Lijkt net wel of net niet te passen, maar vroeg me af of het principe zou kunnen werken.
De Zehnder ventielen hadden we ook gezien. Die zijn wel redelijk, maar het fraaist zou toch zijn om het nog minder opvallend te verwerken.
De airspot, en ventilatie spotbox hierboven, waar het gecombineerd wordt met verlichting kan ook maar leidt wel tot enorm veel spots waar we ook geen behoefte aan hebben.
Ook al zou je toch die spotbox gaan gebruiken, deze moet zeer goed vast gezet worden op de breedplaatvloer in verband met het betonstorten op de breedplaatvloer; er wordt over de box heen gelopen, er worden tientallen kilo's beton tegen aan gesmeten...
20x JA Solar 6.9KW; Fronius Symo 7.0; Panasonic J Mono 7KW; Atlantic Explorer V3
Bedoeling van producten als spotbox is dat ze in de breedplaat worden gegoten en dan op de bouw arriveren. Dan kunnen ze geen kant op.
Blijft natuurlijk dat ook de aansluitingen stevig vastgezet moeten worden.
Blijft natuurlijk dat ook de aansluitingen stevig vastgezet moeten worden.
Mijn huis is slimmer dan ik...
Morgen gaan we het stucwerk insnijden om scheuren te voorkomen. Ik lees verschillende verhalen over wat er ingesneden moet worden. Iemand tips? Alle naden en hoeken of alleen waar er verschillende materialen op elkaar worden aangesloten.
Lux.Architectuur | Van Dromen tot Wonen | www.Lux-a.nl
Ik moet je heel eerlijk zeggen dat ik nog nooit stucwerk ingesneden heb zien worden, ook niet in mijn vorige nieuwbouwwoning. Daar heb ik uiteindelijk 1 scheurtje gehad, op de overgang van kalkzandsteen naar een gibo wandje. Puur op ervaring zou ik, als je dan toch gaat insnijden, op de overgang van verschillende materialen. Die zetten anders en zouden dus tot scheuren kunnen leidenbattler schreef op zaterdag 25 december 2021 @ 23:08:
Morgen gaan we het stucwerk insnijden om scheuren te voorkomen. Ik lees verschillende verhalen over wat er ingesneden moet worden. Iemand tips? Alle naden en hoeken of alleen waar er verschillende materialen op elkaar worden aangesloten.
Groot genoeg voor 2 hoofdletters
Wij laten een vrij grote sparing maken in de breedplaat vloer en daar legt de aannemer gewoon een blok cellenbeton in met een houten plaat en een stempel eronder. Zou prima moeten kunnen zo.frisianstar schreef op vrijdag 24 december 2021 @ 09:33:
[...]
De inwendige maten van de spotbox is te klein voor de https://www.ventilatiesho...iel-125mm-toevoer-afvoer/
Ook al zou je toch die spotbox gaan gebruiken, deze moet zeer goed vast gezet worden op de breedplaatvloer in verband met het betonstorten op de breedplaatvloer; er wordt over de box heen gelopen, er worden tientallen kilo's beton tegen aan gesmeten...
@evol dan kun je zo'n vierkante ventiel precies passend in die plaat cellenbeton vooraf beton storten monteren.Olympialooping schreef op zondag 26 december 2021 @ 09:24:
[...]
Wij laten een vrij grote sparing maken in de breedplaat vloer en daar legt de aannemer gewoon een blok cellenbeton in met een houten plaat en een stempel eronder. Zou prima moeten kunnen zo.
20x JA Solar 6.9KW; Fronius Symo 7.0; Panasonic J Mono 7KW; Atlantic Explorer V3
Bij ons ook nog speciaal laten insnijden. Zeker omdat we een woonboot hebben is het stucwerk kwetsbaar.battler schreef op zaterdag 25 december 2021 @ 23:08:
Morgen gaan we het stucwerk insnijden om scheuren te voorkomen. Ik lees verschillende verhalen over wat er ingesneden moet worden. Iemand tips? Alle naden en hoeken of alleen waar er verschillende materialen op elkaar worden aangesloten.
In prinicpe alle binnenhoeken doen. Materiaalovergangen onder je stucwek moet je voorkomen want voer voor ellende maar als het kan zonder dat het lelijk is idd ook insnijden.
Klinkt hoopvol inderdaad. Hopelijk gaan installateur en aannemer hierin mee. Ik ga het ze voorleggen.frisianstar schreef op zondag 26 december 2021 @ 10:20:
[...]
@evol dan kun je zo'n vierkante ventiel precies passend in die plaat cellenbeton vooraf beton storten monteren.
Als er nog andere tips zijn om je WTW toe- en afvoer onopvallend weg te werken dan hou ik me aanbevolen!
Move along people. Nothing to see here.
Wat gebruiken jullie voor het isoleren van het dak bij nieuwbouw, met minimale rc waarde van 6 ?
isobouw slimfix, unidek pasdak, unilin of kingspan, zie door de bomen het bos niet meer, wil
het dak samen met de timmerman zelf gaan timmeren
isobouw slimfix, unidek pasdak, unilin of kingspan, zie door de bomen het bos niet meer, wil
het dak samen met de timmerman zelf gaan timmeren
Mijn architect had met Unilin panelen getekend, maar zelf had ik waarschijnlijk voor Isobouw gekozen (kingspan is nagenoeg hetzelfde maar iets duurder). Later heb ik dit met mijn bouwbegeleider veranderd.brutus26 schreef op maandag 27 december 2021 @ 20:39:
Wat gebruiken jullie voor het isoleren van het dak bij nieuwbouw, met minimale rc waarde van 6 ?
isobouw slimfix, unidek pasdak, unilin of kingspan, zie door de bomen het bos niet meer, wil
het dak samen met de timmerman zelf gaan timmeren
Wat ik nu zelf aan het maken ben is sporen over de gordingen (omdat dit nou eenmaal zo was ontworpen met stalen spanten).
Tussen die sporen komt steen- of glaswol.
Boven op de sporen komt 20cm PIR (B-keus).
Totale R-waarde van 12-13 voor minder geld dan R-8 Isobouw / Kingspan panelen.
Het is een hoop werk, vooral omdat ik 120cm overstek heb en verholen goot, maar zelfs zonder ervaring is het prima te doen als je de tijd hebt. Bijkomend voordeel als je het zelf doet is dat je of hogere isolatiewaarde kan halen of minder geld uitgeeft, en als je bereid bent om B-keus PIR te gebruiken kom je nog goedkoper uit.
Echt jammer dat ik dat niet veel eerder wist. Ik had via de bouwer (van Wanrooij) de keus uit Gira ST of Busch Jaeger. We hadden gekozen voor Busch Jaeger, maar dat is blijkbaar verkeerd doorgekomen. In de bevestiging stond Gira ST, en die hebben we ondertekend.10us10 schreef op zondag 5 december 2021 @ 17:41:
[...]
Kijk ook eens naar Gira E2 vlakke montage. Moet je op tijd bij zijn want heeft een speciale inbouwdozen nodig maar vind je vast mooi. De E2 hebben wij nu, Future linear in het vorige huis. Vond het mooi maar wel een beetje krakerig / gammel aandoen...
Achteraf dus niet erg dat het Gira ST is geworden. Maar ik las eerst dus dat E2 en E2 design compatible is met Standard 55 systeem. Dus eerst blij. Maar las dus later dat met de standaard inbouwdozen de ramen niet strak tegen de muur komen te zitten.
Wel jammer. Want los van dat het E2 design nog ff wat strakker is. Is het ook wat groter. En dat had me nu door het stucwerk beter uitgekomen.
Dè developers podcast in je moerstaal : CodeKlets Podcast
Heb je het overstek ook geisoleerd?Sivvis schreef op maandag 27 december 2021 @ 21:01:
[...]
Mijn architect had met Unilin panelen getekend, maar zelf had ik waarschijnlijk voor Isobouw gekozen (kingspan is nagenoeg hetzelfde maar iets duurder). Later heb ik dit met mijn bouwbegeleider veranderd.
Wat ik nu zelf aan het maken ben is sporen over de gordingen (omdat dit nou eenmaal zo was ontworpen met stalen spanten).
Tussen die sporen komt steen- of glaswol.
Boven op de sporen komt 20cm PIR (B-keus).
Totale R-waarde van 12-13 voor minder geld dan R-8 Isobouw / Kingspan panelen.
Het is een hoop werk, vooral omdat ik 120cm overstek heb en verholen goot, maar zelfs zonder ervaring is het prima te doen als je de tijd hebt. Bijkomend voordeel als je het zelf doet is dat je of hogere isolatiewaarde kan halen of minder geld uitgeeft, en als je bereid bent om B-keus PIR te gebruiken kom je nog goedkoper uit.
Nee, dat is weggegooid geld. Mijn dakisolatie laat ik stoppen gelijk aan de rand van de spouwmuur isolatie, misschien een paar cm verder afhankelijk van hoe het uitkomt.
Ook als je de dakelementen van Kingspan, Isobouw, etc, neemt stoppen die normaal gelijk met je spouwmuurisolatie, en dan moet je de overstek balken inwerken (stuk piepschuim wegzagen en balk in het gat schuiven), maar dan zit je met maximaal 80cm overstek volgens mij.
Als je het gaat uitrekenen of je kant en klare elementen wilt of het zelf gaat maken moet je goed rekening houden met schroeven en beugels en alles. Met alleen het hout en isolatie kan je zomaar flink wat kosten over het hoofd zien.
En als je het de moeite waard vindt ook goed zoeken waar je schroeven / beugels bestelt, dat scheelt soms 300% en je hebt er behoorlijk wat van nodig.
Zo zou ik dat niet doen. Om condens te voorkomen (zie de recente problemen van @President in het klustopic) moet je ook dat overstek isoleren. Dat hoeft weliswaar niet met Rc 6 of hoger (ik schat dat Rc 2 al genoeg is), maar geen isolatie zou ik nooit doen.Sivvis schreef op dinsdag 28 december 2021 @ 10:38:
Nee, dat is weggegooid geld. Mijn dakisolatie laat ik stoppen gelijk aan de rand van de spouwmuur isolatie, misschien een paar cm verder afhankelijk van hoe het uitkomt.
Hier zijn ook de dakoverstekken en de carport van dunne isolatie voorzien, en die blijven ook bij heldere nachten met maximale uitstraling altijd mooi droog aan de onderkant.
WP: ME PUHZ-SW75YAA + ERSD-VM2D + EV-WP-TWS-1W 300; AC: ME MXZ-2F42VF + 2x MSZ-LN25VGV; PV: 14.08 kWp O/W + SMA STP 8.0; Vent: Zehnder Q600 ERV + Ubbink AirExcellent.
Een update: De woning is volledig gestuced en het is strak geworden. We zijn alles nagelopen met zaklamp, winkelhaak en waterpas en ze hebben al onze punten gecorrigieerd. Ze zijn wel 2 dagen langer bezig geweest maar ze begrepen ook dat als je geen plinten en vensterbanken hebt, je netjes moet stucen. Alles wat niet recht is opgeleverd door de aannemer, laten corrigeren door de stucadoors en de kosten worden gecrediteerd door de aannemer. Het zit weer mee
:strip_exif()/f/image/Qa338sIm8fIYEr8J8OfiWwes.jpg?f=fotoalbum_large)
Op de foto is te zien: spotjes, speakers, gordijnrails allemaal in stucwerk. Dagkanten gegipsed en kozijnen dichtgezet. Strak tot de vloer gestuced ivm geen plinten. En dat voor een prefabwoning
We hebben het stucwerk ingesneden en gaan dit komende week dichtkitten. Zodra er geverfd is komt de vloer, keuken, badkamer, trap en wat kasten.
:strip_exif()/f/image/Qa338sIm8fIYEr8J8OfiWwes.jpg?f=fotoalbum_large)
Op de foto is te zien: spotjes, speakers, gordijnrails allemaal in stucwerk. Dagkanten gegipsed en kozijnen dichtgezet. Strak tot de vloer gestuced ivm geen plinten. En dat voor een prefabwoning
We hebben het stucwerk ingesneden en gaan dit komende week dichtkitten. Zodra er geverfd is komt de vloer, keuken, badkamer, trap en wat kasten.
[ Voor 6% gewijzigd door battler op 28-12-2021 22:14 ]
Lux.Architectuur | Van Dromen tot Wonen | www.Lux-a.nl
Hier heb ik nog nooit van gehoord, en als ik zo online lees is er nog wel eens wat verwarring / onenigheid over.Andrehj schreef op dinsdag 28 december 2021 @ 10:46:
[...]
Zo zou ik dat niet doen. Om condens te voorkomen (zie de recente problemen van @President in het klustopic) moet je ook dat overstek isoleren. Dat hoeft weliswaar niet met Rc 6 of hoger (ik schat dat Rc 2 al genoeg is), maar geen isolatie zou ik nooit doen.
Hier zijn ook de dakoverstekken en de carport van dunne isolatie voorzien, en die blijven ook bij heldere nachten met maximale uitstraling altijd mooi droog aan de onderkant.
Kingspan heeft voor mij toen tekeningen gemaakt voor de overstek (die is meer dan standaard mogelijk) maar niks vermeld over isolatie tussen de overstek. Mijn architect en bouwbegeleider hebben het er ook nooit over gehad en alleen Isobouw (voor zover ik even snel kan vinden) meldt "Indien gewenst kan de overstek eenvoudig geïsoleerd worden met apart te bestellen EPS-platen".
Ik neem aan dat je dan condens onder alleen de overstek bedoelt? De situatie van @President is natuurlijk niet direct te vergelijken met een geïsoleerd huis. De carport dan weer wel met de overstek.
Misschien wel de moeite waard om eens naar te kijken, nu kan het nog makkelijk, zodra alles straks dichtgetimmerd is wordt het lastiger.
Maar als het alleen condens is onder de overstek, hoe erg is dat dan? die loopt onder 42 graden dus dan is alleen de rand even oppassen? De constructie is in principe geventileerd naar de buitenlucht dus daarvoor zal het niet uitmaken.
Heel mooi! Heb je toevallig nog detail foto’s van hoe de dagkanten nu zijn afgewerkt? Wil zelf waarschijnlijk iets soortgelijks doen en ben dan benieuwd wat voor voorbereiding we moeten nemen.battler schreef op dinsdag 28 december 2021 @ 21:35:
Een update: De woning is volledig gestuced en het is strak geworden. We zijn alles nagelopen met zaklamp, winkelhaak en waterpas en ze hebben al onze punten gecorrigieerd. Ze zijn wel 2 dagen langer bezig geweest maar ze begrepen ook dat als je geen plinten en vensterbanken hebt, je netjes moet stucen. Alles wat niet recht is opgeleverd door de aannemer, laten corrigeren door de stucadoors en de kosten worden gecrediteerd door de aannemer. Het zit weer mee![]()
[Afbeelding]
Op de foto is te zien: spotjes, speakers, gordijnrails allemaal in stucwerk. Dagkanten gegipsed en kozijnen dichtgezet. Strak tot de vloer gestuced ivm geen plinten. En dat voor een prefabwoning
We hebben het stucwerk ingesneden en gaan dit komende week dichtkitten. Zodra er geverfd is komt de vloer, keuken, badkamer, trap en wat kasten.
Daarnaast hoe is de afwerking naar buiten toe? Als het stucwerk zichtbaar is van buiten laat je dat dan ook een beetje mooi aansluiten op je buitengevel?
@battler
Dat ziet er echt schitterend uit! prachtig resultaat. Fijn ook dat het allemaal gelukt is het de dagkanten zoals je dat graag zag.
Wij zijn zelf nu de dagkanten aan het afgipsen en zien ook wel dat ruwbouw ook echt dat is... geen kalkzandsteenwandje zit netjes naast de stelkozijnen in ons geval... maargoed dat is ondertussen opgelost met maar extra gipsplaten plakken tegen het kalkzandsteen aan.
Hoe zien jullie binnendeur kozijnen er nu uit? heb je daar ook iets bijzonders mee gedaan?
Dat ziet er echt schitterend uit! prachtig resultaat. Fijn ook dat het allemaal gelukt is het de dagkanten zoals je dat graag zag.
Wij zijn zelf nu de dagkanten aan het afgipsen en zien ook wel dat ruwbouw ook echt dat is... geen kalkzandsteenwandje zit netjes naast de stelkozijnen in ons geval... maargoed dat is ondertussen opgelost met maar extra gipsplaten plakken tegen het kalkzandsteen aan.
Hoe zien jullie binnendeur kozijnen er nu uit? heb je daar ook iets bijzonders mee gedaan?
Misschien een stomme vraag van mijn kant. Maar is het niet standaard om dagkanten te stucen? Tuurlijk, ik zie ook afwerklatten, maar ik had meer het idee dat men dat doet bij renovatie/ vervangen van ramen.battler schreef op dinsdag 28 december 2021 @ 21:35:
Een update: De woning is volledig gestuced en het is strak geworden. We zijn alles nagelopen met zaklamp, winkelhaak en waterpas en ze hebben al onze punten gecorrigieerd. Ze zijn wel 2 dagen langer bezig geweest maar ze begrepen ook dat als je geen plinten en vensterbanken hebt, je netjes moet stucen. Alles wat niet recht is opgeleverd door de aannemer, laten corrigeren door de stucadoors en de kosten worden gecrediteerd door de aannemer. Het zit weer mee![]()
[Afbeelding]
Op de foto is te zien: spotjes, speakers, gordijnrails allemaal in stucwerk. Dagkanten gegipsed en kozijnen dichtgezet. Strak tot de vloer gestuced ivm geen plinten. En dat voor een prefabwoning
We hebben het stucwerk ingesneden en gaan dit komende week dichtkitten. Zodra er geverfd is komt de vloer, keuken, badkamer, trap en wat kasten.
walletje-w schreef op woensdag 29 december 2021 @ 08:09:
[...]
Heel mooi! Heb je toevallig nog detail foto’s van hoe de dagkanten nu zijn afgewerkt? Wil zelf waarschijnlijk iets soortgelijks doen en ben dan benieuwd wat voor voorbereiding we moeten nemen.
Daarnaast hoe is de afwerking naar buiten toe? Als het stucwerk zichtbaar is van buiten laat je dat dan ook een beetje mooi aansluiten op je buitengevel?
:strip_exif()/f/image/QIZJkKvNY5ZMWIEu5Z82TjxL.jpg?f=fotoalbum_large)
Het stelt eigenlijk niets voor, gipsplaten tegen houten balken aan die zijn vastgezet tegen de dagkanten. Aan de voorkant afgewerkt met 4mm overstucbaar plaatmateriaal. Het stucwerk loopt tot de glaskit dus is van buiten niet zichtbaar.
Lux.Architectuur | Van Dromen tot Wonen | www.Lux-a.nl
Ja, het blijft de bouw. Wij hebben overal tekeningen van maar vrijwel niemand kijkt er naar. En dan worden soms zaken niet direct netjes afgewerkt want vloer, plint, tegels etc komt er nog. Tot dat men erachter komt dat die zaken er niet altijd komen.Aurum schreef op woensdag 29 december 2021 @ 08:29:
@battler
Dat ziet er echt schitterend uit! prachtig resultaat. Fijn ook dat het allemaal gelukt is het de dagkanten zoals je dat graag zag.
Wij zijn zelf nu de dagkanten aan het afgipsen en zien ook wel dat ruwbouw ook echt dat is... geen kalkzandsteenwandje zit netjes naast de stelkozijnen in ons geval... maargoed dat is ondertussen opgelost met maar extra gipsplaten plakken tegen het kalkzandsteen aan.
Hoe zien jullie binnendeur kozijnen er nu uit? heb je daar ook iets bijzonders mee gedaan?
:strip_exif()/f/image/ASuOb7hVtb0dQ0TM0Jbm4ZEZ.jpg?f=fotoalbum_large)
De binnenkozijnen zijn vlakgestuced met de wanden. Deze snijden we alleen nog in en kitten we dicht. Hier dus ook geen architraven
[ Voor 6% gewijzigd door battler op 29-12-2021 09:37 ]
Lux.Architectuur | Van Dromen tot Wonen | www.Lux-a.nl
Geen idee hoe erg het is, maar droog is beter, scheelt een hoop gedrup. En bij een carport (die aan de onderkant vlak is) wil je die condens al helemaal niet. Ik ben in ieder geval blij dat de aannemer hier die carport netjes heeft geïsoleerd.Sivvis schreef op woensdag 29 december 2021 @ 07:27:
Maar als het alleen condens is onder de overstek, hoe erg is dat dan? die loopt onder 42 graden dus dan is alleen de rand even oppassen? De constructie is in principe geventileerd naar de buitenlucht dus daarvoor zal het niet uitmaken.
Het zou ook zomaar kunnen dat het bij een overstek sowieso niet zo'n groot probleem is door de warmteuitstraling van je muren.
Hier zijn de overstekken in ieder geval wel voorzien van een dunne laag isolatie, geen idee hoe het was geweest zonder.
WP: ME PUHZ-SW75YAA + ERSD-VM2D + EV-WP-TWS-1W 300; AC: ME MXZ-2F42VF + 2x MSZ-LN25VGV; PV: 14.08 kWp O/W + SMA STP 8.0; Vent: Zehnder Q600 ERV + Ubbink AirExcellent.
Hier wordt het toch best aardig uitgelegd:Ik zie ook geen onenigheid.Sivvis schreef op woensdag 29 december 2021 @ 07:27:
Hier heb ik nog nooit van gehoord, en als ik zo online lees is er nog wel eens wat verwarring / onenigheid over.
De consensus is ook dat een warm dak (dus isolatie tussen het constructieve dak en de dakbedekking) de beste methode is.
WP: ME PUHZ-SW75YAA + ERSD-VM2D + EV-WP-TWS-1W 300; AC: ME MXZ-2F42VF + 2x MSZ-LN25VGV; PV: 14.08 kWp O/W + SMA STP 8.0; Vent: Zehnder Q600 ERV + Ubbink AirExcellent.
Beste allen,
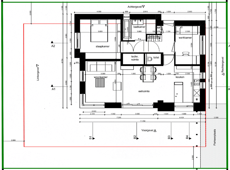
Interessant topic, het lukt me niet om alles te lezen maar ik heb al veel voorbij zijn komen. Ook ik ben bezig met het (laten) bouwen van een huis. De kavel is niet zo groot als ik hier lees (320m2), maar wij krijgen maar aan 1 kant buren (noordzijde huis) de westzijde kijkt uit over weiland en de zuidzijde is speelveld. Het bestemmingsplan is vrij restrictief wat je mag bouwen met max 250m3 (+15% afwijking). Een deel van de woning wordt vergunningsvrij gebouwd.
Het wordt een bungalow gebouwd volgens het passief huis principe. Dit betekent, zeer goede isolatie (er wordt gerekend met rc dak 9, rc gevel 8.5, rc vloer 6.5 U glas, kozijn en voordeur 0.53), kierdicht (n50 <0.6) en geoptimaliseerd ontwerp tav ligging ramen (geen/weinig op het noorden wel op het zuiden). Met het huidige ontwerp is de warmevraag ca 11 kW/m2 per jaar. Gegeven de beperkte oppervlakte van de woning is dat minder dan 1000 kWh/jaar. We zijn nog aan het kijken naar de installaties. We willen iets als de Nilan compact P (of compact S), het is even de vraag of dat gaat passen. Het apparaat wel, maar alle leidingen en geluiddempers blijkt nogal een gedoe te zijn.
De bouw zal zoveel mogelijk biobased zijn (dus met bijvoorbeeld stro als isolatie van de gevel). Gevolg is wel dat de gevels ca 50cm dik worden.
Wij hebben nu een team bestaande uit een architect, duurzaamheidsadviseur en een constructeur. Binnenkort sluit ook de beoogd aannemer aan. We hebben besloten om met 1 partij in zee te gaan in principe. Hij maakt dan een offerte die wordt beoordeeld door een kostendeskundige. Het voordeel hiervan is dat hij in het voor proces mee zal denken over het technisch ontwerp en daarmee kosten besparing op kan leveren. Ook vinden we het belangrijk een aannemer te hebben die snapt wat passief bouw is.
De ontwerpen van de architect zijn voor vooroverleg naar de gemeente gegaan en die zijn redelijk positief (al had ik me bij het woord vooroverleg iets anders voorgesteld dan een brief met het resultaat). Gelukkig was die brief er al binnen een week. De welstand had het volgende: "De voorgestelde woning voldoet qua massa en uitstraling aan het beeldkwaliteitsplan. Wij adviseren in principe positief op dit schetsplan. Als enig roep het stucwerk vragen op. ..." (rest weggelaten).
/f/image/GgKEfRxSTu6u04O4Gs6h7ll3.png?f=fotoalbum_large)
/f/image/7dLoBFIONSuLpc9ZoqToLTyP.png?f=fotoalbum_large)
/f/image/DbSw5prn99fuoQ69vfjpTuvS.png?f=fotoalbum_large)
/f/image/ejKdFbVM2ZlDtxorsT7aE1MW.png?f=fotoalbum_large)
Het idee van de technische ruimte is dat daar de warmwatervoorziening en WTW komt (we hebben verder geen echte verwarming nodig, iets bijverwarmen via de WTW is genoeg) en daar komt dan ook de wasmachine te staan. In de slaapkamer komt een kastenwand. Bij de badkamer een aparte douche (rechts) en bad (links). Verder een kleine logeer/studeerkamer.
Boven de werkkamer en badkamer komt een vliering. Boven een deel van de slaapkamer ook. De rest is open naar boven toe, dus je hebt in de gang en slaapkamer bovenramen. Ook het keukengedeelte krijgt een schuin oplopend plafond waardoor je binnen een hoogtesprong krijgt.
Ik ben benieuwd naar jullie mening.
Interessant topic, het lukt me niet om alles te lezen maar ik heb al veel voorbij zijn komen. Ook ik ben bezig met het (laten) bouwen van een huis. De kavel is niet zo groot als ik hier lees (320m2), maar wij krijgen maar aan 1 kant buren (noordzijde huis) de westzijde kijkt uit over weiland en de zuidzijde is speelveld. Het bestemmingsplan is vrij restrictief wat je mag bouwen met max 250m3 (+15% afwijking). Een deel van de woning wordt vergunningsvrij gebouwd.
Het wordt een bungalow gebouwd volgens het passief huis principe. Dit betekent, zeer goede isolatie (er wordt gerekend met rc dak 9, rc gevel 8.5, rc vloer 6.5 U glas, kozijn en voordeur 0.53), kierdicht (n50 <0.6) en geoptimaliseerd ontwerp tav ligging ramen (geen/weinig op het noorden wel op het zuiden). Met het huidige ontwerp is de warmevraag ca 11 kW/m2 per jaar. Gegeven de beperkte oppervlakte van de woning is dat minder dan 1000 kWh/jaar. We zijn nog aan het kijken naar de installaties. We willen iets als de Nilan compact P (of compact S), het is even de vraag of dat gaat passen. Het apparaat wel, maar alle leidingen en geluiddempers blijkt nogal een gedoe te zijn.
De bouw zal zoveel mogelijk biobased zijn (dus met bijvoorbeeld stro als isolatie van de gevel). Gevolg is wel dat de gevels ca 50cm dik worden.
Wij hebben nu een team bestaande uit een architect, duurzaamheidsadviseur en een constructeur. Binnenkort sluit ook de beoogd aannemer aan. We hebben besloten om met 1 partij in zee te gaan in principe. Hij maakt dan een offerte die wordt beoordeeld door een kostendeskundige. Het voordeel hiervan is dat hij in het voor proces mee zal denken over het technisch ontwerp en daarmee kosten besparing op kan leveren. Ook vinden we het belangrijk een aannemer te hebben die snapt wat passief bouw is.
De ontwerpen van de architect zijn voor vooroverleg naar de gemeente gegaan en die zijn redelijk positief (al had ik me bij het woord vooroverleg iets anders voorgesteld dan een brief met het resultaat). Gelukkig was die brief er al binnen een week. De welstand had het volgende: "De voorgestelde woning voldoet qua massa en uitstraling aan het beeldkwaliteitsplan. Wij adviseren in principe positief op dit schetsplan. Als enig roep het stucwerk vragen op. ..." (rest weggelaten).
/f/image/GgKEfRxSTu6u04O4Gs6h7ll3.png?f=fotoalbum_large)
/f/image/7dLoBFIONSuLpc9ZoqToLTyP.png?f=fotoalbum_large)
/f/image/DbSw5prn99fuoQ69vfjpTuvS.png?f=fotoalbum_large)
/f/image/ejKdFbVM2ZlDtxorsT7aE1MW.png?f=fotoalbum_large)
Het idee van de technische ruimte is dat daar de warmwatervoorziening en WTW komt (we hebben verder geen echte verwarming nodig, iets bijverwarmen via de WTW is genoeg) en daar komt dan ook de wasmachine te staan. In de slaapkamer komt een kastenwand. Bij de badkamer een aparte douche (rechts) en bad (links). Verder een kleine logeer/studeerkamer.
Boven de werkkamer en badkamer komt een vliering. Boven een deel van de slaapkamer ook. De rest is open naar boven toe, dus je hebt in de gang en slaapkamer bovenramen. Ook het keukengedeelte krijgt een schuin oplopend plafond waardoor je binnen een hoogtesprong krijgt.
Ik ben benieuwd naar jullie mening.
Ah ik dacht dat de zonnepanelen het zou verraden.Karp schreef op vrijdag 31 december 2021 @ 15:48:
Wat is noord/zuid, en heb je al plannen voor zonwering?
Maar om een beeld te geven, hier de google maps met noord naar boven en met mijn zeer vaste muishand de kavel ongeveer ingetekend.
Zonwering komt er zeker. Wel is er een berekening gedaan met de wat als variant met en zonder zonwering (en meer van dat soort zaken). De berekende summer overheating rate is 0.6%. Als je de zonwering weglaat (of open laat) wordt dat 5.5%. Op zich valt dat mee, wij kunnen goed tegen hitte.
@ArnaudYK Als je alleen de Nilan hebt kun je ook alleen via de WTW koelen. Mijn ervaring is dat als het warme water op de maximale temperatuur is de koeling stopt. Als je geen andere koeling hebt adviseer ik je in elk geval een thermostatisch mengventiel op te nemen achter de Nilan, dan kun je hem flink opstoken zonder verbrandingsgevaar.
Ik heb een Nilan Compact P Geo, ik denk dat ik het via de lucht ook wel warm zou kunnen houden, maar ik vind het wel comfortabel dat de vloer enigszins warm is. Ook met de vorst van de kerstdagen stond de aanvoer voor de vloerverwarming maar rond de 24 graden.
Ik heb een Nilan Compact P Geo, ik denk dat ik het via de lucht ook wel warm zou kunnen houden, maar ik vind het wel comfortabel dat de vloer enigszins warm is. Ook met de vorst van de kerstdagen stond de aanvoer voor de vloerverwarming maar rond de 24 graden.
Leuk ontwerp, origineel. Dus als ik het goed begrijp is de rechtergevel de noordgevel. En die gaat richting de ene te bebouwen perceel? Wellicht helpt het als je een situatietekening toe kunt voegen.ArnaudYK schreef op vrijdag 31 december 2021 @ 15:44:
Beste allen,
Interessant topic, het lukt me niet om alles te lezen maar ik heb al veel voorbij zijn komen. Ook ik ben bezig met het (laten) bouwen van een huis. De kavel is niet zo groot als ik hier lees (320m2), maar wij krijgen maar aan 1 kant buren (noordzijde huis) de westzijde kijkt uit over weiland en de zuidzijde is speelveld. Het bestemmingsplan is vrij restrictief wat je mag bouwen met max 250m3 (+15% afwijking). Een deel van de woning wordt vergunningsvrij gebouwd.
Het wordt een bungalow gebouwd volgens het passief huis principe. Dit betekent, zeer goede isolatie (er wordt gerekend met rc dak 9, rc gevel 8.5, rc vloer 6.5 U glas, kozijn en voordeur 0.53), kierdicht (n50 <0.6) en geoptimaliseerd ontwerp tav ligging ramen (geen/weinig op het noorden wel op het zuiden). Met het huidige ontwerp is de warmevraag ca 11 kW/m2 per jaar. Gegeven de beperkte oppervlakte van de woning is dat minder dan 1000 kWh/jaar. We zijn nog aan het kijken naar de installaties. We willen iets als de Nilan compact P (of compact S), het is even de vraag of dat gaat passen. Het apparaat wel, maar alle leidingen en geluiddempers blijkt nogal een gedoe te zijn.
De bouw zal zoveel mogelijk biobased zijn (dus met bijvoorbeeld stro als isolatie van de gevel). Gevolg is wel dat de gevels ca 50cm dik worden.
Wij hebben nu een team bestaande uit een architect, duurzaamheidsadviseur en een constructeur. Binnenkort sluit ook de beoogd aannemer aan. We hebben besloten om met 1 partij in zee te gaan in principe. Hij maakt dan een offerte die wordt beoordeeld door een kostendeskundige. Het voordeel hiervan is dat hij in het voor proces mee zal denken over het technisch ontwerp en daarmee kosten besparing op kan leveren. Ook vinden we het belangrijk een aannemer te hebben die snapt wat passief bouw is.
De ontwerpen van de architect zijn voor vooroverleg naar de gemeente gegaan en die zijn redelijk positief (al had ik me bij het woord vooroverleg iets anders voorgesteld dan een brief met het resultaat). Gelukkig was die brief er al binnen een week. De welstand had het volgende: "De voorgestelde woning voldoet qua massa en uitstraling aan het beeldkwaliteitsplan. Wij adviseren in principe positief op dit schetsplan. Als enig roep het stucwerk vragen op. ..." (rest weggelaten).
[Afbeelding]
[Afbeelding]
[Afbeelding]
[Afbeelding]
Het idee van de technische ruimte is dat daar de warmwatervoorziening en WTW komt (we hebben verder geen echte verwarming nodig, iets bijverwarmen via de WTW is genoeg) en daar komt dan ook de wasmachine te staan. In de slaapkamer komt een kastenwand. Bij de badkamer een aparte douche (rechts) en bad (links). Verder een kleine logeer/studeerkamer.
Boven de werkkamer en badkamer komt een vliering. Boven een deel van de slaapkamer ook. De rest is open naar boven toe, dus je hebt in de gang en slaapkamer bovenramen. Ook het keukengedeelte krijgt een schuin oplopend plafond waardoor je binnen een hoogtesprong krijgt.
Ik ben benieuwd naar jullie mening.
Ik zou die afstand dan groter maken. Op 2 meter is krap, je zit dan ook met brandveiligheidsregels en de parkeerplaats van 2 meter breed is te krap. Zeker als je er een haag tussen zet.
En de toegangsdeur is aan de achterzijde? Niet op voorhand logisch, maar kan een keuze zijn. Ik zou dit wel afstemmen met het lokale energiebedrijf, ivm de plaatsing van de meterruimte. En hoe kom je op de vliering, vlizotrap of een vaste trap?
Dank je wel. De parkeerplaats wordt breder. Hij is 2 meter bij een klein stukje omdat de gevel 2 meter uit de weg komt, maar dat is alleen het hoekje. De werkelijke breedte wordt meen ik 2.5 (of wat er ook al weer standaard voor langs parkeren wordt gehanteerd. ). Die groene haag is zo door de architect ingetekend, hoe we het precies doen moet nog bepaald worden.Bas.013 schreef op vrijdag 31 december 2021 @ 16:50:
[...]
Leuk ontwerp, origineel. Dus als ik het goed begrijp is de rechtergevel de noordgevel. En die gaat richting de ene te bebouwen perceel? Wellicht helpt het als je een situatietekening toe kunt voegen.
Ik zou die afstand dan groter maken. Op 2 meter is krap, je zit dan ook met brandveiligheidsregels en de parkeerplaats van 2 meter breed is te krap. Zeker als je er een haag tussen zet.
En de toegangsdeur is aan de achterzijde? Niet op voorhand logisch, maar kan een keuze zijn. Ik zou dit wel afstemmen met het lokale energiebedrijf, ivm de plaatsing van de meterruimte. En hoe kom je op de vliering, vlizotrap of een vaste trap?
Onder de tekening (iets eerder concept, maar voor het idee). Zwart is kadestrale kaart dus linksboven is weiland, links onder speelveld, rechts de weg en rechtsboven komt een andere woning. De toegang is dus aan de noord zijde dicht bij de weg. We hebben bewust gekozen voor het opschuiven van de woning richting erfgrens of aan de andere kant zoveel mogelijk tuin te hebben. Je loopt wel met je fiets die 1.1 meter brede gang door naar achter waar nog een (vergunningsvrije) schuur komt. Qua brandveiligheid komt dat wel goed met deze gevel die zal afdoende brandwerend zijn.
Ok dank je. Hoe zit het bij jullie met leidingen en geluidempers is dat echt zo veel? En als je naar de tekening kijkt zie je wel dat de architect extra dikke binnenmuren heeft rond de technische ruimte, maar maakt die Nilan veel geluid?deejeebv schreef op vrijdag 31 december 2021 @ 16:35:
@ArnaudYK Als je alleen de Nilan hebt kun je ook alleen via de WTW koelen. Mijn ervaring is dat als het warme water op de maximale temperatuur is de koeling stopt. Als je geen andere koeling hebt adviseer ik je in elk geval een thermostatisch mengventiel op te nemen achter de Nilan, dan kun je hem flink opstoken zonder verbrandingsgevaar.
Ik heb een Nilan Compact P Geo, ik denk dat ik het via de lucht ook wel warm zou kunnen houden, maar ik vind het wel comfortabel dat de vloer enigszins warm is. Ook met de vorst van de kerstdagen stond de aanvoer voor de vloerverwarming maar rond de 24 graden.
Reden om geen extra verwarmunit te nemen (zoals vloerverwarming) is omdat het niet nodig lijkt en het dan financieel best een extra kostenpost is. Zoals de adviseur zegt, je kunt die investering beter in je gebouwschil doen. Die hoef je na 15/20 jaar niet te vervangen. Punt is dan wel dat het echt goed moet zijn, anders heb je te weinig verwarmingscapaciteit en als erkende koukleum moet ik daar niet aan denken.
Het geluid van de Nilan valt wel mee, zeker in de normale stand, waarop hij bij ons meestal draait, dat is 50%.ArnaudYK schreef op vrijdag 31 december 2021 @ 17:18:
[...]
Ok dank je. Hoe zit het bij jullie met leidingen en geluidempers is dat echt zo veel? En als je naar de tekening kijkt zie je wel dat de architect extra dikke binnenmuren heeft rond de technische ruimte, maar maakt die Nilan veel geluid?
Reden om geen extra verwarmunit te nemen (zoals vloerverwarming) is omdat het niet nodig lijkt en het dan financieel best een extra kostenpost is. Zoals de adviseur zegt, je kunt die investering beter in je gebouwschil doen. Die hoef je na 15/20 jaar niet te vervangen. Punt is dan wel dat het echt goed moet zijn, anders heb je te weinig verwarmingscapaciteit en als erkende koukleum moet ik daar niet aan denken.
Voor de ruimte, zie de foto:
:strip_exif()/f/image/SgC3qva0RT2yubW7n55Z3ZBK.jpg?f=fotoalbum_large)
De glimmende delen bovenin zijn de geluiddempers. Houd er wel rekening mee dat er ruimte tussen aanvoer en afvoer van de lucht moet zitten, dat vereist een leiding van een behoorlijke diameter.
Als je alleen verwarming via de lucht hebt moet je er ook rekening mee houden dat tijdens het opwarmen van het water je geen luchtverwarming hebt. De lucht die ingeblazen wordt is dan om en nabij dezelfde temperatuur als de afgezogen lucht.
@ArnaudYK Als je kan zou ik de keuze maken tussen werkruimte óf logeerkamer. Ik zou bang zijn dat als je 2 dingen wil, het allebei niet slaagt.
Het is een beetje richting formaat tiny house, wat elke keuze nog impactvoller maakt. Een meter te veel of te weinig zul je snel merken. Mijn tip zou zijn om na te denken over wat je nu allemaal hebt, en wat je doet in je huidige woning, en of dat in de nieuwe ook past. Waar laat je handdoeken? Kerstspullen? Vieze was? Een strijkplank? De stofzuiger?
Het is een beetje richting formaat tiny house, wat elke keuze nog impactvoller maakt. Een meter te veel of te weinig zul je snel merken. Mijn tip zou zijn om na te denken over wat je nu allemaal hebt, en wat je doet in je huidige woning, en of dat in de nieuwe ook past. Waar laat je handdoeken? Kerstspullen? Vieze was? Een strijkplank? De stofzuiger?
@karp Ach ja. Voordeel is dat dit net vergelijkbaar en zelfs iets groter is dan wat ik nu heb (ik woon schuin tegenover het kavel, straks moet ik 18 m verhuizen..). De vliering is heel belangrijk (ik heb daar nu ook dingen als kampeerspullen winter/zomerbanden of iets als een gourmetstel liggen). Ik hoop de stofzuiger en strijkplank e.d in meterkast/technische ruimte kwijt te kunnen. Met de hele hoge gang ben ik van plan een wasrek op katrol op te hangen. Dan kun je je was lekker hoog laten drogen als het buiten niet kan.
We zitten gewoon heel beperkt wat mag in het bestemmingsplan en we willen geen 2e verdieping (is ook niet de bedoeling, maar je kunt tot max 5m+15%=5.75, dus het gebeurt wel).
We zitten gewoon heel beperkt wat mag in het bestemmingsplan en we willen geen 2e verdieping (is ook niet de bedoeling, maar je kunt tot max 5m+15%=5.75, dus het gebeurt wel).
[ Voor 14% gewijzigd door ArnaudYK op 31-12-2021 23:28 ]
Ziet er mooi uit en eens wat anders dan al die kastelen die hier voorbijkomen.ArnaudYK schreef op vrijdag 31 december 2021 @ 15:44:
Het wordt een bungalow gebouwd volgens het passief huis principe. Dit betekent, zeer goede isolatie (er wordt gerekend met rc dak 9, rc gevel 8.5, rc vloer 6.5 U glas, kozijn en voordeur 0.53), kierdicht (n50 <0.6) en geoptimaliseerd ontwerp tav ligging ramen (geen/weinig op het noorden wel op het zuiden). Met het huidige ontwerp is de warmevraag ca 11 kW/m2 per jaar. Gegeven de beperkte oppervlakte van de woning is dat minder dan 1000 kWh/jaar. We zijn nog aan het kijken naar de installaties. We willen iets als de Nilan compact P (of compact S), het is even de vraag of dat gaat passen. Het apparaat wel, maar alle leidingen en geluiddempers blijkt nogal een gedoe te zijn.
Ik ben benieuwd naar jullie mening.
Ik weet niet hoeveel je rijdt per jaar, maar die 17 zonnepanelen zijn wellicht niet genoeg om ook een elektrische auto nog mee te kunnen laden? Wellicht het groene dak ook vervangen door nog extra panelen?
Dan zou je eventueel ook nog kunnen kiezen voor het toevoegen van een airco. Die kun je dan gebruiken als extra verwarming en koeling. Maar wellicht past dat niet in het passief huis idee.
Photofacts; weblog over fotografie..
Ons huis is extreem langzaam door het vergunningsproces aan het lopen, dus ik ben eindelijk weer eens wat serieuze tijd aan het besteden in de afwerking. Eén van de dingen die ik nonstandaard wil aanpakken zijn de deuren: liefst wil ik geen fysieke sleutels maar alles met access control doen. Dat maakt fysieke veiligheid een stuk makkelijker en stelt me ook in staat om vreemden een sleutel te geven die maar beperkte tijd geldig is.
Dit is vrij gangbaar in bedrijfspanden en appartementencomplexen, maar ik kan maar weinig vinden voor woonhuizen, en al helemaal niets betaalbaars. Ik zit daarom te denken aan een Maxim iButton-systeem zoals we dat ook op de hackerspace gebruiken, en dan met elektronisch bestuurde dag/nachtschoten in alle deuren. Daarnaast nog één deur met een fysiek slot als last resort backup.
Is er iemand anders in dit topic die iets vergelijkbaars heeft gedaan? Ik ben erg benieuwd naar de ervaringen.
Dit is vrij gangbaar in bedrijfspanden en appartementencomplexen, maar ik kan maar weinig vinden voor woonhuizen, en al helemaal niets betaalbaars. Ik zit daarom te denken aan een Maxim iButton-systeem zoals we dat ook op de hackerspace gebruiken, en dan met elektronisch bestuurde dag/nachtschoten in alle deuren. Daarnaast nog één deur met een fysiek slot als last resort backup.
Is er iemand anders in dit topic die iets vergelijkbaars heeft gedaan? Ik ben erg benieuwd naar de ervaringen.
@Elja
Ja, het idee van passiefhuis is dat je weinig energie nodig hebt voor verwarming. Vanuit dat oogpunt ligt zonwering eerder voor de hand dan elektrische koeling.
Een nadeel van zonnepanelen is dat de opbrengst varieert binnen de dag en ook tijd van het jaar, helemaal op een dak met lage hoek. Met 4kWp 15 graden oost/west wekte ik in december, met vaak somber weer, typisch minder dan 1 kWh per dag op. Te weinig voor het verbruik binnenshuis.
Als het dak een hoge hoek (>40 graden) op zuid had gehad, zou je met een batterijopslag een buffer kunnen creëren. Zoiets is wel duur.
Ja, het idee van passiefhuis is dat je weinig energie nodig hebt voor verwarming. Vanuit dat oogpunt ligt zonwering eerder voor de hand dan elektrische koeling.
Een nadeel van zonnepanelen is dat de opbrengst varieert binnen de dag en ook tijd van het jaar, helemaal op een dak met lage hoek. Met 4kWp 15 graden oost/west wekte ik in december, met vaak somber weer, typisch minder dan 1 kWh per dag op. Te weinig voor het verbruik binnenshuis.
Als het dak een hoge hoek (>40 graden) op zuid had gehad, zou je met een batterijopslag een buffer kunnen creëren. Zoiets is wel duur.
offtopic:
Wat mij betreft zou de overheid het salderen beter niet af kunnen schaffen en in plaats daarvan lokale energieopslag regelen. De opbrengst van zonnepanelen gaat vaak verloren doordat het alleen lokaal benut kan worden, als dat wordt opgeslagen en als de netbeheerders zich eindelijk eens als zodanig gaan gedragen en actie ondernemen, zou het nog wat kunnen worden. We kunnen een voorbeeld nemen aan Schotland dat in 2020 al 98,6% (doel was 100% in 2020) elektriciteit hernieuwbaar opwekt. Ze lopen voorop met waterstofgeneratie uit wind die als energieopslag dient. Piekbelastingen zouden we allang moeten hebben opgelost met batterij of pompen. Als de marktwerking in de weg staat, maak het dan weer een nutsvoorziening zonder winstoogmerk.
Wat mij betreft zou de overheid het salderen beter niet af kunnen schaffen en in plaats daarvan lokale energieopslag regelen. De opbrengst van zonnepanelen gaat vaak verloren doordat het alleen lokaal benut kan worden, als dat wordt opgeslagen en als de netbeheerders zich eindelijk eens als zodanig gaan gedragen en actie ondernemen, zou het nog wat kunnen worden. We kunnen een voorbeeld nemen aan Schotland dat in 2020 al 98,6% (doel was 100% in 2020) elektriciteit hernieuwbaar opwekt. Ze lopen voorop met waterstofgeneratie uit wind die als energieopslag dient. Piekbelastingen zouden we allang moeten hebben opgelost met batterij of pompen. Als de marktwerking in de weg staat, maak het dan weer een nutsvoorziening zonder winstoogmerk.
Vraagje: ik ben bezig met het beslag en toen kwam de vraag naar boven welk slot we willen hebben op de meterkast en techniek ruimte. Eigenlijk wil ik helemaal geen slot hebben op die deuren, want dat vinden we lelijk in de gang. De techniek ruimte heeft een normale deur, met een normale kruk. De meterkast heeft ook een normale kruk (maar aan 1 kant natuurlijk).
Moet op deze beide ruimtes ook echt een slot? Of is dit een regel die eigenlijk nooit wordt gecontroleerd?
En als dit wel moet, mag het dan ook een draaiknop zijn? Vinden we mooier dan een deur waar een sleutel uit steekt in de gang. (Ik ben me er van bewust dat als het een draaiknop wordt, we er dan eigenlijk niks aan hebben natuurlijk).
Moet op deze beide ruimtes ook echt een slot? Of is dit een regel die eigenlijk nooit wordt gecontroleerd?
En als dit wel moet, mag het dan ook een draaiknop zijn? Vinden we mooier dan een deur waar een sleutel uit steekt in de gang. (Ik ben me er van bewust dat als het een draaiknop wordt, we er dan eigenlijk niks aan hebben natuurlijk).
afsluitbaarheid staat wel in de meeste eisen voor metekasten.. er is doorgaans geen meterkastpolitie, maar het ontbreken van handhaving is een bar slechte reden om je niet aan voorschriften te houden.ChrisM schreef op zaterdag 1 januari 2022 @ 19:22:
Vraagje: ik ben bezig met het beslag en toen kwam de vraag naar boven welk slot we willen hebben op de meterkast en techniek ruimte. Eigenlijk wil ik helemaal geen slot hebben op die deuren, want dat vinden we lelijk in de gang. De techniek ruimte heeft een normale deur, met een normale kruk. De meterkast heeft ook een normale kruk (maar aan 1 kant natuurlijk).
Moet op deze beide ruimtes ook echt een slot? Of is dit een regel die eigenlijk nooit wordt gecontroleerd?
En als dit wel moet, mag het dan ook een draaiknop zijn? Vinden we mooier dan een deur waar een sleutel uit steekt in de gang. (Ik ben me er van bewust dat als het een draaiknop wordt, we er dan eigenlijk niks aan hebben natuurlijk).
overegens gaat je netbeheerder over de eisen van de meterkast vaak zijn de eisen/richtlijnen voor een kast zonder gas wel milder, je kan even op de site van je netbeheerder kijken.
ik weet niet wat voor beslag je neemt maar soms is een ander deurschildje genoeg om het sleutelgat niet meer te zien. dat zou je eventueel achteraf prima kunnen veranderen (en weer aanpassen als je de boel verkoopt)
[ Voor 8% gewijzigd door twain4me op 01-01-2022 19:38 ]
Het antwoord op je vraag kun je vinden in NEN 2768 en met een eenvoudige zoekopdracht ook wel.ChrisM schreef op zaterdag 1 januari 2022 @ 19:22:
Vraagje: ik ben bezig met het beslag en toen kwam de vraag naar boven welk slot we willen hebben op de meterkast en techniek ruimte. Eigenlijk wil ik helemaal geen slot hebben op die deuren, want dat vinden we lelijk in de gang. De techniek ruimte heeft een normale deur, met een normale kruk. De meterkast heeft ook een normale kruk (maar aan 1 kant natuurlijk).
Moet op deze beide ruimtes ook echt een slot? Of is dit een regel die eigenlijk nooit wordt gecontroleerd?
En als dit wel moet, mag het dan ook een draaiknop zijn? Vinden we mooier dan een deur waar een sleutel uit steekt in de gang. (Ik ben me er van bewust dat als het een draaiknop wordt, we er dan eigenlijk niks aan hebben natuurlijk).
[ Voor 3% gewijzigd door EWK op 01-01-2022 19:42 ]
Hoi!
Er moet een slot op, maar ik lees verder nergens welk type slot dat zou moeten zijn. Ik begrijp dat het vooral vanwege veiligheid voor kleine kinderen is, maar dat mensen vaak de sleutel in de kast laten zitten omdat het in geval van nood handig is. Dat heeft dus hetzelfde effect als een draaiknop.ChrisM schreef op zaterdag 1 januari 2022 @ 19:22:
Moet op deze beide ruimtes ook echt een slot? Of is dit een regel die eigenlijk nooit wordt gecontroleerd?
En als dit wel moet, mag het dan ook een draaiknop zijn?
Ik zou dat dus gewoon doen als je dat mooier vindt.
De tekst is "Het moet met een slot afsluitbaar zijn".Toke_gt schreef op zaterdag 1 januari 2022 @ 20:02:
[...]
Er moet een slot op, maar ik lees verder nergens welk type slot dat zou moeten zijn. Ik begrijp dat het vooral vanwege veiligheid voor kleine kinderen is, maar dat mensen vaak de sleutel in de kast laten zitten omdat het in geval van nood handig is. Dat heeft dus hetzelfde effect als een draaiknop.
Ik zou dat dus gewoon doen als je dat mooier vindt.
Een draaiknop met een "op slot" knop mag dus niet. Daarmee is de deur namelijk niet afsluitbaar. Iedereen kan de deur van het slot halen.
Een draaiknop met een wegneembare sleutel mag wel. En als jij er voor kiest om die dan nooit op slot te draaien moet je dat helemaal zelf weten natuurlijk.
Het risico van je niet aan de voorschriften houden is dat de netbeheerder weigert om je huis aan te sluiten.
Waar kopen jullie de trappen in ? er zijn vele aanbieders, wil hem zelf met de timmerman monteren, hen er nl 3 nodig
Mogelijke reden om te gaan voor een standaard meterkastslot zonder kruk: dan ziet bezoek eenvoudig welke deur de toilet is in de gang (of in iig welke deur de toilet niet isChrisM schreef op zaterdag 1 januari 2022 @ 19:22:
Vraagje: ik ben bezig met het beslag en toen kwam de vraag naar boven welk slot we willen hebben op de meterkast en techniek ruimte. Eigenlijk wil ik helemaal geen slot hebben op die deuren, want dat vinden we lelijk in de gang. De techniek ruimte heeft een normale deur, met een normale kruk. De meterkast heeft ook een normale kruk (maar aan 1 kant natuurlijk).
Moet op deze beide ruimtes ook echt een slot? Of is dit een regel die eigenlijk nooit wordt gecontroleerd?
En als dit wel moet, mag het dan ook een draaiknop zijn? Vinden we mooier dan een deur waar een sleutel uit steekt in de gang. (Ik ben me er van bewust dat als het een draaiknop wordt, we er dan eigenlijk niks aan hebben natuurlijk).
Ik ben toch malle pietje niet!
hangt af van wat je wil.. wij bestelde voor renovatie meestal normale vuren trappen op maat bij jaap reek. maar ik denk dat je iets meer luxe/design wil?brutus26 schreef op zaterdag 1 januari 2022 @ 22:08:
Waar kopen jullie de trappen in ? er zijn vele aanbieders, wil hem zelf met de timmerman monteren, hen er nl 3 nodig
Welke regio? Hier VD Coolwijk uit Megen, goede ervaring. Kostte ze zo’n 2u per trap om die te plaatsen/ter plekke te assembleren door 1 monteur.brutus26 schreef op zaterdag 1 januari 2022 @ 22:08:
Waar kopen jullie de trappen in ? er zijn vele aanbieders, wil hem zelf met de timmerman monteren, hen er nl 3 nodig
Heeft je timmerman geen ervaring met lokale partijen? Als hij geen ervaring met trappen heeft zou ik dat mooi uitbesteden en de man(nen) met ervaring assisteren.
Heb je al naar ekey gekeken? Zeer betrouwbaar, al jarenlang beschikbaar en te combineren met veel andere zaken als installatie materiaal of deur intercoms.mux schreef op zaterdag 1 januari 2022 @ 17:38:
Eén van de dingen die ik nonstandaard wil aanpakken zijn de deuren: liefst wil ik geen fysieke sleutels maar alles met access control doen.
Mijn huis is slimmer dan ik...
Die kende ik nog niet, maar in principe vermijd ik vingerafdrukidentificatie gezien dat erg onveilig is (het is bijna triviaal om te omzeilen). Context: ik loop al enige tijd rond in de locksport-gemeenschap.Conrado schreef op zaterdag 1 januari 2022 @ 23:54:
[...]
Heb je al naar ekey gekeken? Zeer betrouwbaar, al jarenlang beschikbaar en te combineren met veel andere zaken als installatie materiaal of deur intercoms.
Maar misschien belangrijker: ik heb al op 2 plekken (hackerspace en multibedrijfspand) met access control gewerkt, en vaak heb je niet de gelegenheid om een sleutel lokaal in te checken. Zeg dat ik in 2 aparte auto's met een vriend dingen aan het verhuizen ben, dan wil ik eigenlijk gewoon een 2e sleutel meenemen en die op afstand valideren zodat hij vooruit kan rijden en m'n huis in kan voordat ik er ben. Het inchecken van een vingerafdruk is dan echt heel onhandig en een beetje creepy.
Verplicht gebruik van vingerafdrukken voor toegangscontrole mag niet als je een bedrijf bent. Als particulier mag het wettelijk wel, maar alles wat mag hoef je nog niet te doen.
Een groot aantal van die digitale sloten zijn kraakbaar. Onder andere doordat ze draadloos communiceren (replay attack) of omdat ze een draadje een 'open' signaal sturen. Ze worden gemaakt omdat er vraag is, niet omdat ze veiliger zijn. Vaak is het ontwerpdoel dat het werkt. Goede sleutelsloten hebben over het algemeen een betere prijs/veiligheid ratio.
-edit-
@Conrado De afweging is dat fysieke sleutelmakers een volwassen industrie vormen en dat de digitale sloten vaak niet goed doordacht zijn. Zelfs als het wordt gemaakt door old school bouwers met een goede reputatie. Dat komt doordat er een gebrek aan ervaring en kennis bij hen is en doordat standaard electronica soms intrinsiek onveilig is.
Ik weet dat fysieke sloten soms ook makkelijk te openen zijn. Wat je niet vaak ziet bij de lock picking lawyer zijn de betere systemen, die zijn niet zo makkelijk te openen als de meestal goedkopere sloten. Als zijn filmpjes je referentiekader vormen, weet dan dat het sterk vervormd is door selectie.
Omdat ik voldoende kennis heb van beide groepen sloten (digitaal nog meer dan fysiek) kan ik de conclusie trekken: goede fysieke sleutelsloten hebben over het algemeen een betere prijs/veiligheid ratio. Dat betekent dat je voor dezelfde prijs typisch meer veiligheid krijgt met fysieke sleutels dan met digitale sloten. Die uitspraak deed ik weloverwogen. Veilige sloten zijn overigens meestal duur.
Een groot aantal van die digitale sloten zijn kraakbaar. Onder andere doordat ze draadloos communiceren (replay attack) of omdat ze een draadje een 'open' signaal sturen. Ze worden gemaakt omdat er vraag is, niet omdat ze veiliger zijn. Vaak is het ontwerpdoel dat het werkt. Goede sleutelsloten hebben over het algemeen een betere prijs/veiligheid ratio.
-edit-
@Conrado De afweging is dat fysieke sleutelmakers een volwassen industrie vormen en dat de digitale sloten vaak niet goed doordacht zijn. Zelfs als het wordt gemaakt door old school bouwers met een goede reputatie. Dat komt doordat er een gebrek aan ervaring en kennis bij hen is en doordat standaard electronica soms intrinsiek onveilig is.
Ik weet dat fysieke sloten soms ook makkelijk te openen zijn. Wat je niet vaak ziet bij de lock picking lawyer zijn de betere systemen, die zijn niet zo makkelijk te openen als de meestal goedkopere sloten. Als zijn filmpjes je referentiekader vormen, weet dan dat het sterk vervormd is door selectie.
Omdat ik voldoende kennis heb van beide groepen sloten (digitaal nog meer dan fysiek) kan ik de conclusie trekken: goede fysieke sleutelsloten hebben over het algemeen een betere prijs/veiligheid ratio. Dat betekent dat je voor dezelfde prijs typisch meer veiligheid krijgt met fysieke sleutels dan met digitale sloten. Die uitspraak deed ik weloverwogen. Veilige sloten zijn overigens meestal duur.
[ Voor 49% gewijzigd door mrmrmr op 02-01-2022 18:16 ]
*knip*EWK schreef op zaterdag 1 januari 2022 @ 19:37:
[...]
Het antwoord op je vraag kun je vinden in NEN 2768 en met een eenvoudige zoekopdracht ook wel.
Dit gekibbel hebben we al helemaal niks aan.
[ Voor 41% gewijzigd door tweakduke op 02-01-2022 19:55 ]
*knip*
Door aan te geven wat je al hebt gevonden, voorkom je dit gekibbel dus.
Overigens ging de vraag niet alleen over de meterkast, maar ook of er een slot op de deur van een technische ruimte moet. De genoemde NEN en de mooie google link gaan alleen over meterkasten/ruimtes.
Door aan te geven wat je al hebt gevonden, voorkom je dit gekibbel dus.
Overigens ging de vraag niet alleen over de meterkast, maar ook of er een slot op de deur van een technische ruimte moet. De genoemde NEN en de mooie google link gaan alleen over meterkasten/ruimtes.
[ Voor 66% gewijzigd door tweakduke op 02-01-2022 19:56 ]
Waarschijnlijk heb je het over bouwmarkt spul. Maar er wordt ook veel kwaliteit verkocht maar zoals zo vaak moet je vooral op Duitstalige sites je informatie halen.mrmrmr schreef op zondag 2 januari 2022 @ 09:20:
Een groot aantal van die digitale sloten zijn kraakbaar. Onder andere doordat ze draadloos communiceren (replay attack) of omdat ze een draadje een 'open' signaal sturen.
En verder is dit de bekende discussie: iedereen kent/weet de design flaws van electrisch aangedreven sloten, en vertrouwd daarom op een stukje metaal dat de Lock-picking Lawyer in 10 sec open heeft 😊
Keuzes, keuzes….
Mijn huis is slimmer dan ik...
Regio Overijssel, de timmerman heeft er wel ervaring mee maar hij moet dan wel een bouwpakket hebben
bbbrumbrum schreef op zaterdag 1 januari 2022 @ 23:32:
[...]
Welke regio? Hier VD Coolwijk uit Megen, goede ervaring. Kostte ze zo’n 2u per trap om die te plaatsen/ter plekke te assembleren door 1 monteur.
Heeft je timmerman geen ervaring met lokale partijen? Als hij geen ervaring met trappen heeft zou ik dat mooi uitbesteden en de man(nen) met ervaring assisteren.
Zo goed worden als de lock picking lawyer kost enorm veel tijd en heel veel oefenen , en laten mensen die je huis binnen willen doorgaans aardslui zijn. Als ze iets kunnen kopen op de zwarte markt om een electronisch slot te openen met een druk op de knop zullen ze dat doen. Kijk bv naar het "clonen" van keyless auto sleutels, alle hard en software zoeken die dieven echt niet zelf uit, ze kopen het systeem gewoon kant en klaar en drukken op een knopje. Als je dat in je achterhoofd houd zou je eigenlijk het meest niets zeggende merk met de kleinste oplage moeten kopen.mrmrmr schreef op zondag 2 januari 2022 @ 09:20:
Verplicht gebruik van vingerafdrukken voor toegangscontrole mag niet als je een bedrijf bent. Als particulier mag het wettelijk wel, maar alles wat mag hoef je nog niet te doen.
Een groot aantal van die digitale sloten zijn kraakbaar. Onder andere doordat ze draadloos communiceren (replay attack) of omdat ze een draadje een 'open' signaal sturen. Ze worden gemaakt omdat er vraag is, niet omdat ze veiliger zijn. Vaak is het ontwerpdoel dat het werkt. Goede sleutelsloten hebben over het algemeen een betere prijs/veiligheid ratio.
-edit-
@Conrado De afweging is dat fysieke sleutelmakers een volwassen industrie vormen en dat de digitale sloten vaak niet goed doordacht zijn. Zelfs als het wordt gemaakt door old school bouwers met een goede reputatie. Dat komt doordat er een gebrek aan ervaring is kennis bij hen is en doordat standaard electronica soms intrinsiek onveilig is.
Ik weet dat fysieke sloten soms ook makkelijk te openen zijn. Wat je niet vaak ziet bij de lock picking lawyer zijn de betere systemen, die zijn niet zo makkelijk te openen als de meestal goedkopere sloten. Als zijn filmpjes je referentiekader vormen, weet dan dat het sterk vervormd is door selectie.
Omdat ik voldoende kennis heb van beide groepen sloten (digitaal nog meer dan fysiek) kan ik de conclusie trekken: goede fysieke sleutelsloten hebben over het algemeen een betere prijs/veiligheid ratio. Dat betekent dat je voor dezelfde prijs typisch meer veiligheid krijgt met fysieke sleutels dan met digitale sloten. Die uitspraak deed ik weloverwogen. Veilige sloten zijn overigens meestal duur.
Thanks. ;-) Ik had zeker de NEN norm gevonden, en al veel gezocht. Ik vroeg daarom ook niet naar wat de eisen zijn, maar wat de ervaringen zijn (die zijn weinig te vinden via Google) en wat de anderen doen (dat brengt me weer op goede ideeen). Dus… ik heb heel veel gehad aan de meeste reacties, thanks allen.20ten schreef op zondag 2 januari 2022 @ 09:36:
[...]
Ik haat dit soort non-antwoorden. Hier heeft echt niemand wat aan. Als je weet dat je voor dit soort vragen deze specifiek NEN moet hebben, dan stel je de vraag hier niet, want dan weet je al waar je moet zoekenEn een vraag stellen op een forum dat gaat over (de technische kant van) het bouwen van een huis, is ook een zoekopdracht.
Dit is inderdaad het belangrijkste punt; we hebben het hier over de beveiliging van een woonhuis, het soort inbraken wat hier wordt gepleegd is redelijk grof en lui; breek- en hakwerk, of als het type slot een hele bekende fout heeft, misschien een zero skill attack met een goedkope tool.twain4me schreef op zondag 2 januari 2022 @ 11:06:
[...]
Zo goed worden als de lock picking lawyer kost enorm veel tijd en heel veel oefenen , en laten mensen die je huis binnen willen doorgaans aardslui zijn. Als ze iets kunnen kopen op de zwarte markt om een electronisch slot te openen met een druk op de knop zullen ze dat doen. Kijk bv naar het "clonen" van keyless auto sleutels, alle hard en software zoeken die dieven echt niet zelf uit, ze kopen het systeem gewoon kant en klaar en drukken op een knopje. Als je dat in je achterhoofd houd zou je eigenlijk het meest niets zeggende merk met de kleinste oplage moeten kopen.
Ik wil access control in m'n huis. Dit maakt alles 10x makkelijker; ik kan met 1 sleutel alle toegangen en zelfs andere dingen (postbus, schuur, garagedeur, meterkast, etc.) bedienen, ik heb geen dure mechanische sloten nodig en zit niet met vendor lock-in tussen sluitwerk en sleutelsystemen. En ik kan andere mensen een universele sleutel geven die ze voor een beperkte tijd toegang geeft. Als er sleutels worden verloren, dan kan ik ze blacklisten en een nieuwe maken binnen een minuut. Dit alles is gewoon heel erg relaxt, en sinds ik het in werking heb gezien wil ik eigenlijk niet meer terug naar mechanische sleutels. En bij dingen als een voordeur heb ik nog het toegevoegde voordeel dat de meestvoorkomende inbraakmethoden echt helemaal voorkomen kunnen worden (cilinders afbreken en kieren forceren). Mijn voordeur wordt een vlakke plaat zonder haakbare kieren; als je er zonder sleutel doorheen wilt zul je een kettingzaag moeten gebruiken.
Mijn go-to oplossing, als ik niets anders vind, zal een Doorduino worden (https://revspace.nl/Doorduino3); die maakt gebruik van iButtons die zowel een interne ID als SHA-1 coprocessor hebben om een RSA secret te kunnen produceren. Dit zit dichtbij het soort validatie dat een Yubikey doet en is dus als elektronisch token aardig veilig. En hij werkt NIET draadloos, je moet 'm tegen een ontvanger aan duwen. Dit combineer ik dan met gemotoriseerde sloten en - waarschijnlijk - paniekbeslag binnen. Naar buiten kun je altijd zonder sleutel, naar binnen altijd met. En dan een achterdeur met een combinatie cilinder+elektronisch slot voor het geval de doorduino stuk is of langdurig de stroom is uitgevallen.
Maar ik ben dus heel geinteresseerd of er mensen zijn die access control op hun huis anders hebben uitgevoerd of hierover hebben nagedacht en betere suggesties hebben. Want ondanks m'n interesse in locksport weet ik eigenlijk maar heel weinig van daadwerkelijk beschikbaar sluitwerk.
Tja, de bekende discussie dustwain4me schreef op zondag 2 januari 2022 @ 11:06:
[...]
Zo goed worden als de lock picking lawyer kost enorm veel tijd en heel veel oefenen , en laten mensen die je huis binnen willen doorgaans aardslui zijn. Als ze iets kunnen kopen op de zwarte markt om een electronisch slot te openen met een druk op de knop zullen ze dat doen. Kijk bv naar het "clonen" van keyless auto sleutels,
Keyless entry van auto's 'clonen'- eigenlijk versterken - is het hacken van een industrieel product. Als het werkt voor een groep auto's, hoef je dus alleen zo'n auto te zoeken, simpel zat. Van een gemotoriseerd slot zie je aan de buitenkant niets, dus heeft de dief ook geen idee. Los daarvan dieven komen met braakgereedschap of maken gebruik van onachtzaamheid.
Maar ja, we zijn gewend aan mechanische sleutels, dat lijkt veiliger
Mijn huis is slimmer dan ik...
En, moet er nu wel of niet een slot op een technische ruimte? En dan bedoel ik niet de meterkast, maar een aparte ruimte waar bijv. de warmtepomp binnenunit en vloerverwarmingsverdeler en bijv een wtw unit staan.ChrisM schreef op zondag 2 januari 2022 @ 11:35:
[...]
Thanks. ;-) Ik had zeker de NEN norm gevonden, en al veel gezocht. Ik vroeg daarom ook niet naar wat de eisen zijn, maar wat de ervaringen zijn (die zijn weinig te vinden via Google) en wat de anderen doen (dat brengt me weer op goede ideeen). Dus… ik heb heel veel gehad aan de meeste reacties, thanks allen.
Dit topic is gesloten.
![]()
Let op:
Duurzame installaties en domotica hebben eigen fora met veel meer diepgang over dat onderwerp. Dit topic gaat over de perikelen omtrent het bouwen van een eigen woning.
Voor projectmatige woningbouw: Het (projectmatige) nieuwbouwwoning topic. Je tuin is natuurlijk ook iets wat moet gebeuren na de bouw. Zie Het grote tuinen, balkons en plantentopic
Duurzame installaties en domotica hebben eigen fora met veel meer diepgang over dat onderwerp. Dit topic gaat over de perikelen omtrent het bouwen van een eigen woning.
Voor projectmatige woningbouw: Het (projectmatige) nieuwbouwwoning topic. Je tuin is natuurlijk ook iets wat moet gebeuren na de bouw. Zie Het grote tuinen, balkons en plantentopic