iLLEVAiHCAM schreef op zaterdag 21 augustus 2021 @ 09:59:
[...]
Qua situering bedoelde ik: hoeveel tuin/terras zit er aan de zijkanten van de woning (ik meende namelijk schuifdeuren te zien op de oorspronkelijke plattegronden) én waar is het Noorden?
Ik heb trouwens nog even een andere indeling gemaakt, zodat je begrijpt wat ik bedoelde met het verplaatsen van de voordeur:
Members only:
Alleen zichtbaar voor ingelogde gebruikers.
Inloggen
Members only:
Alleen zichtbaar voor ingelogde gebruikers.
Inloggen
Zo, jij bent goed met photoshop, daar heb je wel even serieus tijd ingestoken!
Ik zal hier onder nog even kort proberen te reageren op de punten.
Noemenswaardige eigenschappen:
- De garage is vrij smal. Plus, je woning heeft al een soort van rechthoekige uitbouw. Door daar óók nog een rechthoekige glazen gang aan toe te voegen zijn de verhoudingen - wat mij betreft - een beetje uit balans. Het lijkt mij daarom mooier de uitbouw die er tóch al is als ingang te gebruiken. En aangezien je tóch al van plan was om die garage te potdekselen zou ik geld investeren om die garage te verbreden. Daardoor ontstaat ook ruimte voor een extra verdiepinkje.
Een grote garage prijs ik alleen maar toe. Maar ook wij hebben met een welstand en stedenbouwkundigen te maken. Een bijgebouw moet wel ondergeschikt zijn aan het woonhuis en mag dus maar een maximale hoogte hebben van 5 meter. Potdekselen heeft niet onze voorkeur, maar maakt het wel duidelijk een schuur. Waarschijnlijk gaan we dit als nog in dezelfde lijn als het huis uitvoeren.
- Om de symmetrie nog verder te "verbeteren" heb ik onder andere de voordeur vervangen voor een raam. De materialen daarvoor zijn al aanwezig.
Dit kan het huis goed hebben en zie je wel vaker. Leuk om het ook even in onze schets te zien!
- Ik heb wat zichtlijnen toegevoegd (ramen in elkaars verlengde geplaatst) en muren weggehaald. Dit is weliswaar een kwestie van smaak, maar zorgt wél een ruimtelijker beleving.
Hier zie ik nog wel wat beperkingen. Je krijgt voor mijn gevoel zo wel loze ruimtes, onder andere aan de voorkant van het huis en in het midden.
Verder is de bijkeuken nagenoeg weg en die zie ik niet snel naar boven gaan. Oke, misschien verwend en ik weet dat nagenoeg elk nieuwbouw projectwijk geen bijkeuken heeft, maar dit is wel echt een pre. In het huidige plan is bijkeuken zowel vanuit de tuin en voorkant bereikbaar zonder eerst door het huis te lopen. Verder zou ik een niet afsluitbare keuken er niet door heen krijgen. En bij vrienden met kinderen die dat niet hebben zie ik eigenlijk steeds meer de voordelen van een afsluitbare keuken in

- In deze opstelling zit en kook je met je rug naar een wand en je gezicht richting de deur. Veel mensen vinden dit een "veiliger" opstelling.
Weinig aan toe te voegen, dit zou ook idealer zijn inderdaad.
- Ook zit de keuken nu aan de kant van de tuin. Wederom een keuze, maar veel mensen vinden dit praktisch.
Bewuste keuze om de woonkamer bij de tuin te betrekken.
- De trap, televisie én het bureau kan je opnemen in een maatwerkmeubel dat eenheid brengt in je interieur.
De trap komt in de woonkamer uit, juist een halletje met een klassieke granito vloer spreekt ons wel aan.
Hoe dan ook: misschien heb je wat aan deze ideeën. Je zit nu immers nog in de ontwerpfase en je kan je geld maar één keer uitgeven!
De keuken zou echt de perfecte opstelling zijn, genoeg kasten voor apparatuur etc. Maar dan moeten we het idee van de woonkamer aan de tuinkant laten vervallen, wie weet!
Zo en dan nu de update die we hebben gekregen!
Members only:
Alleen zichtbaar voor ingelogde gebruikers.
Inloggen
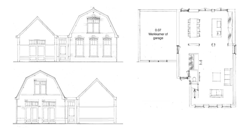
Wat is er aangepast?
Eerste schetsen van de zijgevels.
Achtergevel in luxere uitvoering, dan de vorige schets.
Garage is ingekort en breeder gemaakt.
Dubbele openslaande deuren in de achtergevel iets verbreed.
Tussenstuk verhoogt, het glas vervangen voor metselwerk en een houtendeur..
Dakapellen toegevoegd.
Openslaande deuren tussen keuken en woonkamer vervangen door ensuites.
De deur verplaatst die van de hal naar de keuken gaat, zodat er een grote kastenwand mogelijk wordt.
Wij twijfelen of het tussenlid de hoogte inbrengen wel een goede keuze was. Ook de architect is niet tevreden over het vooraanzicht en zal hier verder mee aan de slag gaan.
#VBW1905
Hier stond een link voor een Goldcard 1 jaar gratis + 20.000 punten.