Wij bouwen met SIPS in CPO vorm, afbouwgarantie via Woningborg en hypotheek bij Triodos. Was allemaal geen probleem.deejeebv schreef op zondag 23 augustus 2020 @ 11:55:
[...]
Hier ben ik ook tegenaan gelopen. Mijn bouwplan gaat uit van SIP panelen. De hypotheeknemer, Triodos eist een aannemingsovereenkomst en een afbouwgarantie als voorwaarde voor de hypotheek. Volgens mijn aannemer moet dit goed komen.
Heeft iemand tips of tricks als het gaat om het plaatsen van een woonunit. Ik begrijp inmiddels dat er ook leges in onze gemeente betaald moet worden voor het plaatsen van een woonunit op je eigen kavel. Echter er moeten ook aansluitingen gemaakt worden voor riool, water, stroom etc. Heel eerlijk ik ben best goed ingelezen in het bouwen van een huis en dit is er een beetje bij ingeschoten. Alle tips en ervaringen van mede-bouwers is erg welkom.
Wat wil je weten?JPruissen schreef op donderdag 27 augustus 2020 @ 00:27:
Heeft iemand tips of tricks als het gaat om het plaatsen van een woonunit. Ik begrijp inmiddels dat er ook leges in onze gemeente betaald moet worden voor het plaatsen van een woonunit op je eigen kavel. Echter er moeten ook aansluitingen gemaakt worden voor riool, water, stroom etc. Heel eerlijk ik ben best goed ingelezen in het bouwen van een huis en dit is er een beetje bij ingeschoten. Alle tips en ervaringen van mede-bouwers is erg welkom.
Als je kans ziet de fundering van het huis klaar te hebben voordat je woonunit betrekt, kun je er een tijdelijke meterkast opzetten, bespaar je xde kosten van een bouwaansluiting en heb je meteen fatsoenlijk (mits de faciliteiten in de wijk/straat er al liggen) internet.
Nu met 4G Dongle en geen ouderwetse tv is dát toch wel een beetje behelpen at en toe. Maargoed, hoort bij t campingsfeertje en je woont bijna gratis, dus echt zeuren kan ik er ook niet over.
Yep, wat wil je weten?JPruissen schreef op donderdag 27 augustus 2020 @ 00:27:
Heeft iemand tips of tricks als het gaat om het plaatsen van een woonunit. Ik begrijp inmiddels dat er ook leges in onze gemeente betaald moet worden voor het plaatsen van een woonunit op je eigen kavel. Echter er moeten ook aansluitingen gemaakt worden voor riool, water, stroom etc. Heel eerlijk ik ben best goed ingelezen in het bouwen van een huis en dit is er een beetje bij ingeschoten. Alle tips en ervaringen van mede-bouwers is erg welkom.
- Gas nodig voor de woonunit? Zet er een 1000 liter tank bij voor het gas. Geen gedoe met flessen.
- Sluit de woonunit aan op een aparte 3-fase groep in de bouwkast, met een verdeelkast in de woonunit.
- Sluit de woonunit met een tyleenslang aan in de bouwwaterput
- Gebruik een zeecontainer voor extra opslagruimte.
- Verkoop de woonuit pas, als je 100% zekerheid hebt over je verhuisdatum
- Laat een internetaansluiting naar je woonunit leggen. Wij hadden een glasvezelaansluiting in de woonunit. Verleggen naar de woning kostte maar een paar honderd eur.
- Laat een grondwerker een sleuf graven voor riool, water en mantelbuis (voor stroom en internet). Met een kraan met GPS ligt het riool meteen op het juiste afschot.
- Denk goed na over tijdelijke verharding. Het kan nogal modderig worden. Wij hebben het opgelost met kunststof rijplaten (1x3m). Die zijn, in tegenstelling tot hun stalen broertjes, wel met de hand te verleggen. Andere optie is een inrit van gebroken puin.
The choice is simple – do you do it in this life, or the next? In case of the former, why wait?
Dat van die eigen groep is wel een goede, liefst ook eigen aardlek of een alamat, dan zit je niet in het donker als de bouwvakkers weer aan t klooien zijn.Joris748 schreef op donderdag 27 augustus 2020 @ 09:55:
[...]
Yep, wat wil je weten?Beste tip:
- Gas nodig voor de woonunit? Zet er een 1000 liter tank bij voor het gas. Geen gedoe met flessen.
- Sluit de woonunit aan op een aparte 3-fase groep in de bouwkast, met een verdeelkast in de woonunit.
- Sluit de woonunit met een tyleenslang aan in de bouwwaterput
- Gebruik een zeecontainer voor extra opslagruimte.
- Verkoop de woonuit pas, als je 100% zekerheid hebt over je verhuisdatum
- Laat een internetaansluiting naar je woonunit leggen. Wij hadden een glasvezelaansluiting in de woonunit. Verleggen naar de woning kostte maar een paar honderd eur.
- Laat een grondwerker een sleuf graven voor riool, water en mantelbuis (voor stroom en internet). Met een kraan met GPS ligt het riool meteen op het juiste afschot.
- Denk goed na over tijdelijke verharding. Het kan nogal modderig worden. Wij hebben het opgelost met kunststof rijplaten (1x3m). Die zijn, in tegenstelling tot hun stalen broertjes, wel met de hand te verleggen. Andere optie is een inrit van gebroken puin.
HWA is ook nog wel een ding aangezien je dat vaak op eigen grond moet bergen tegenwoordig, wij hebben m gewoon op t riool aangesloten.
Als je een strenge (controlerende) gemeente hebt is dat ook nog iets om rekening mee te houden.
[ Voor 7% gewijzigd door bbbrumbrum op 27-08-2020 10:56 ]
Wij hebben het regenwater weg laten lopen op het kavel. Zoveel komt er niet af. Maar dat werkt alleen op zandgrond.
The choice is simple – do you do it in this life, or the next? In case of the former, why wait?
Kijk dat zijn tips waar ik wel heel gelukkig van wordt. Top tip!! Dankjewel. Het betreft een ruimte-voor-ruimte kavel waarbij de verkoper zorgt voor een aansluiting van stroom, water en glasvezel. We moeten zelf zorg dragen voor een rioolaansluiting of een IBA.bbbrumbrum schreef op donderdag 27 augustus 2020 @ 08:00:
[...]
Wat wil je weten?
Als je kans ziet de fundering van het huis klaar te hebben voordat je woonunit betrekt, kun je er een tijdelijke meterkast opzetten, bespaar je xde kosten van een bouwaansluiting en heb je meteen fatsoenlijk (mits de faciliteiten in de wijk/straat er al liggen) internet.
Nu met 4G Dongle en geen ouderwetse tv is dát toch wel een beetje behelpen at en toe. Maargoed, hoort bij t campingsfeertje en je woont bijna gratis, dus echt zeuren kan ik er ook niet over.
We hebben een sloot aan de achterzijde van de kavel, dus dat komt goed.bbbrumbrum schreef op donderdag 27 augustus 2020 @ 10:54:
[...]
Dat van die eigen groep is wel een goede, liefst ook eigen aardlek of een alamat, dan zit je niet in het donker als de bouwvakkers weer aan t klooien zijn.
HWA is ook nog wel een ding aangezien je dat vaak op eigen grond moet bergen tegenwoordig, wij hebben m gewoon op t riool aangesloten.
Als je een strenge (controlerende) gemeente hebt is dat ook nog iets om rekening mee te houden.
Hoe maken jullie eigenlijk de keuzes voor een hoop dingen zoals kozijnen, verlichting, badkamer/keuken onderdelen (kranen, douchekop, bad, etc), voordeur, vloer...
Is dat puur op prijs? Op aanraden van anderen? Eigen ervaring? Advies van de verkoper?
Zelf heb ik nog nooit een huis ge- of verbouwd, dus nooit over hoeven na te denken maar ik vind het erg lastig. Er zijn veel aanbieders van elk onderdeel, van sommige kan je redelijk wat vinden, zoals de grote/bekende merken maar die zijn vaak ook vrij prijzig. De goedkopere zijn niet altijd de beste kwaliteit of je kan er over een paar jaar niks meer van kopen.
Sommige dingen zijn makkelijk om te vergelijken, zoals U-waardes, of afmetingen, maar verder dan dat zou ik niet weten waar ik op moet letten bij een hoop dingen.
Is dat puur op prijs? Op aanraden van anderen? Eigen ervaring? Advies van de verkoper?
Zelf heb ik nog nooit een huis ge- of verbouwd, dus nooit over hoeven na te denken maar ik vind het erg lastig. Er zijn veel aanbieders van elk onderdeel, van sommige kan je redelijk wat vinden, zoals de grote/bekende merken maar die zijn vaak ook vrij prijzig. De goedkopere zijn niet altijd de beste kwaliteit of je kan er over een paar jaar niks meer van kopen.
Sommige dingen zijn makkelijk om te vergelijken, zoals U-waardes, of afmetingen, maar verder dan dat zou ik niet weten waar ik op moet letten bij een hoop dingen.
De belangrijkste reden waarom ik nu al maanden meelees in verschillende topics hier op Tweakers; ervaringen en keuzes van anderen horen. Naast dit topic ook het badkamer en keuken topic bijvoorbeeld.Sivvis schreef op vrijdag 28 augustus 2020 @ 17:21:
Hoe maken jullie eigenlijk de keuzes voor een hoop dingen zoals kozijnen, verlichting, badkamer/keuken onderdelen (kranen, douchekop, bad, etc), voordeur, vloer...
Is dat puur op prijs? Op aanraden van anderen? Eigen ervaring? Advies van de verkoper?
Wat voor ons veel rust geeft is dat we ons huis laten bouwen bij Groothuisbouw. Zij werken met standaard huizen, waar je zelf nog wel de nodige keuzes kunt maken. Het aantal keuzes is klein vergeleken met wanneer je een huis zelf laat ontwerpen.
Zo’n cataloguswoning moet dan natuurlijk wel net je smaak zijn, maar het scheelt een heleboel keuzes maken.
We gaan waarschijnlijk ook voor een badkamer bij de badkamerwinkel aanschaffen waar zij standaard mee werken. Dan is de keuze ook beperkt, maar dat scheelt ook weer veel keuzes maken.
Zo houd je energie over voor alle andere keuzes die je toch nog moet maken.
Daarnaast zijn we ook al op bezoek geweest bij vrienden die ook hun eigen huis hebben gebouwd. Heel leerzaam. En we hebben bijvoorbeeld met onze toekomstige buren gesproken die er al wonen. Zij hebben ook veel praktische tips om je te helpen met alle keuzes.
Photofacts; weblog over fotografie..
Hier de bouwkundige aspecten overgelaten aan de aannemer. Wij hebben een zelfbouw huis op basis van standaard woning. Indeling en uiterlijk met de architect afgestemd, maar daar waren we al snel over uit. Hierin zaten achteraf wel details in die vrij duur waren en ons niet werd verteld dat er andere keuzes te maken waren. De prijs was binnen onze initiële begroting, dus vanuit dat oogpunt prima.Sivvis schreef op vrijdag 28 augustus 2020 @ 17:21:
Hoe maken jullie eigenlijk de keuzes voor een hoop dingen zoals kozijnen, verlichting, badkamer/keuken onderdelen (kranen, douchekop, bad, etc), voordeur, vloer...
Is dat puur op prijs? Op aanraden van anderen? Eigen ervaring? Advies van de verkoper?
Achteraf hadden we aantal andere keuzes willen maken tijdens het hele proces. We dachten dat ons budget voor meerwerk ruim voldoende was, maar dat viel heel erg tegen
Zo kan ik me nog herinneren dat een van de laatste dingen de binnendeuren waren met hang en sluitwerk. Er waren deuren begroot in de bouw, maar na een belletje van de aannemer hebben we een bezoek gepland bij de deuren leverancier. Als je dan kunt kiezen tussen de standaard deuren (die ook prima waren) of toch een model die een hele hoge WAF heeft dan moest het HT budget maar omlaag. Wel nog concessies gedaan, want je kunt het echt zo duur maken als je wilt, maar met 14 deuren moest dat wel. Wij hebben de HT hoek nog steeds niet
PV: 27kWp | WP: Adlar Aurora II 6kw
Op zoek naar een schatting van de kosten voor het bouwen van een huis kwam ik deze site tegen:
http://www.watkostbouwen.nl/woningcalc.php
Lijkt betrouwbaar; gesteund door de Vereniging Eigen Huis kennelijk, en je kunt best veel details invullen.
Heeft iemand ervaring met deze site? Lijken de schattingen grosso modo realistisch?
http://www.watkostbouwen.nl/woningcalc.php
Lijkt betrouwbaar; gesteund door de Vereniging Eigen Huis kennelijk, en je kunt best veel details invullen.
Heeft iemand ervaring met deze site? Lijken de schattingen grosso modo realistisch?
Wij hebben gewoon onze wensen doorgegeven aan de aannemer, kozijnen was voor ons al vrij snel duidelijk dat we een regionale leverancier met productie in eigen land wilde hebben. Van kennissen die de kozijnen uit Slovenië hebben gehaald, (want 30% goedkoper) weten we nu dat die 30% besparing 100% ellende oplevert. Leverancier failliet, fabriek geeft niet thuis, en gerechtelijke stappen in het buitenland zijn duur en moeizaam.Elja schreef op zaterdag 29 augustus 2020 @ 10:19:
[...]
De belangrijkste reden waarom ik nu al maanden meelees in verschillende topics hier op Tweakers; ervaringen en keuzes van anderen horen. Naast dit topic ook het badkamer en keuken topic bijvoorbeeld.
Wat voor ons veel rust geeft is dat we ons huis laten bouwen bij Groothuisbouw. Zij werken met standaard huizen, waar je zelf nog wel de nodige keuzes kunt maken. Het aantal keuzes is klein vergeleken met wanneer je een huis zelf laat ontwerpen.
Zo’n cataloguswoning moet dan natuurlijk wel net je smaak zijn, maar het scheelt een heleboel keuzes maken.
We gaan waarschijnlijk ook voor een badkamer bij de badkamerwinkel aanschaffen waar zij standaard mee werken. Dan is de keuze ook beperkt, maar dat scheelt ook weer veel keuzes maken.
Zo houd je energie over voor alle andere keuzes die je toch nog moet maken.
Daarnaast zijn we ook al op bezoek geweest bij vrienden die ook hun eigen huis hebben gebouwd. Heel leerzaam. En we hebben bijvoorbeeld met onze toekomstige buren gesproken die er al wonen. Zij hebben ook veel praktische tips om je te helpen met alle keuzes.
Verder zijn we uitgegaan op ervaringen van ons zelf in onze oude woning. We wilde bijvoorbeeld absoluut geen Grohe kranen en andere armaturen van dit merk. (garantie tot de voordeur en slechte aftersales)
Waar we ook naar hebben gekeken is de grote van een merk, onze warmtepomp is van Vaillant, dat wordt hier praktisch op iedere straathoek verkocht. Onze aannemer bood echter een vaag merk aan (want goedkoper) alleen slechts 4 installateurs in het hele land die service en onderhoud kunnen bieden)
Zelfde trouwens voor de aannemers, we hebben bewust gekozen voor aannemers uit de regio. Waar zij vervolgens het personeel vandaan hebben gehaald staat er verder los van. Maar mocht je gezeur krijgen dan is het een stuk makkelijker als dat in je eigen taal kan. En een aannemer in de regio heeft ook een naam + reputatie. Vooral hier op het land en in een dorp wil je geen slechte ervaring achterlaten. Want dat zingt overal door. Van een aantal aannemers hangen de reclame borden nog op de gevel (we zijn nog niet klaar) en maandelijks belt er wel iemand aan om te vragen hoe onze ervaringen zijn.
(let op ik heb niet in 🇭🇺 gebouwd maar in 🇦🇹)
Kwaliteit, looks, duurzaamheid, prijs. En dan vooral inlezen en uitzoeken wat kwalitatief goed is. Daarnaast hebben wij echt het hele land door gereden om veel te bekijken (van Amsterdam, Breda en de achterhoek, wij wonen in Elst onder Arnhem). Ik vond vooral de badkamer lastig, veel van hetzelfde gezien overal. Die is uiteindelijk samengesteld met onderdelen van drie verschillende bedrijven.Sivvis schreef op vrijdag 28 augustus 2020 @ 17:21:
Hoe maken jullie eigenlijk de keuzes voor een hoop dingen zoals kozijnen, verlichting, badkamer/keuken onderdelen (kranen, douchekop, bad, etc), voordeur, vloer...
Is dat puur op prijs? Op aanraden van anderen? Eigen ervaring? Advies van de verkoper?
Qua deuren/deurkrukken staat er een stelpost in de overeenkomst, dus ik heb 2 deuren uitgezocht die daar ruim boven zitten (want mooi) en de andere deuren zitten ruim onder die prijs en daarmee is het totaal weer aardig in de buurt van de stelpost.Sivvis schreef op vrijdag 28 augustus 2020 @ 17:21:
Hoe maken jullie eigenlijk de keuzes voor een hoop dingen zoals kozijnen, verlichting, badkamer/keuken onderdelen (kranen, douchekop, bad, etc), voordeur, vloer...
Is dat puur op prijs? Op aanraden van anderen? Eigen ervaring? Advies van de verkoper?
Zelf heb ik nog nooit een huis ge- of verbouwd, dus nooit over hoeven na te denken maar ik vind het erg lastig. Er zijn veel aanbieders van elk onderdeel, van sommige kan je redelijk wat vinden, zoals de grote/bekende merken maar die zijn vaak ook vrij prijzig. De goedkopere zijn niet altijd de beste kwaliteit of je kan er over een paar jaar niks meer van kopen.
Sommige dingen zijn makkelijk om te vergelijken, zoals U-waardes, of afmetingen, maar verder dan dat zou ik niet weten waar ik op moet letten bij een hoop dingen.
Trappen heb ik overlegd met de trappenleverancier waar de aannemer me naartoe stuurde; ook de trappen komen behoorlijk in de buurt van de stelpost, heb ik niet de trap die ik het allerallerallermooist vond, maar wel ook prima is (2 dichte trappen waarbij we de keuze tussen eiken en mahonie nog moeten maken).
Badkamer weet ik precies wat ik hebben wil want eigenlijk wilden we ons oude huis verbouwen en hadden daarvoor al alles uitgezocht. Idem met de vloeren voor badkamer, toilet en keuken.
De overige vloeren hebben we deze week net uitgezocht en de bouw moet nog beginnen.
Qua kozijnen wordt het kunststof met aan beide zijden een houtstructuur, dat was de enige manier waarop ik aan de kunststof kozijnen wilde, de kleur heb ik daarvoor vrij simpel bepaald; ik wilde geen donkere kleur want dan zie je bij een openstaand raam altijd de witte binnenkant, en dus dat het een kunststof kozijn is, en dus wordt het Ral 9010.
Keuken is ook vrijwel bepaald. Schakelmateriaal wordt zoals het standaardspul dat de aannemer gebruikt (Jung serie nogwat, niet heel duur). Garagedeur wordt een elektrische sectionaaldeur waarvan de kleur nog bepaald moet worden.
Oh; bakstenen en dakpannen.... baksteen uitgezocht die iedere keer bleef trekken (Wienerberger Pollux), en de aannemer had een aantal standaardkeuzes qua dakpannen en daarvan een gekozen (Wienerberger Alegra 12 zwart edel-engobe)
Voordeur in principe gewoon een dichte deur, dus daar moet ik dan nog een kleur voor bepalen, die zal wel hetzelfde worden als de garagedeur, dan oogt dat nog een beetje aardig op een paar meter van elkaar.
Omdat ik zodra de bouw begint waarschijnlijk nog een miljoenmiljard keuzes moet maken nu al behoorlijk ver met de keuken en de vloeren bijvoorbeeld, dat is straks alleen een kwestie van bestellen.
De spullen voor de badkamer moeten nog uitgezocht worden (over 2 weken een afspraak), maar de belangrijkste zaken weet ik iig al. En wat ik nog niet weet zal een keuze worden die binnen smaak en budget valt.
Why be difficult when, with a bit of effort, you could be impossible?
Juist.. Maar hoe doe je dat is mijn vraag. Ik wil niet uit gemak of onkunde maar voor de duurdere merken gaan "omdat het dan wel goed zal zijn", maar ook de andere kant op wil ik niet de goedkoopste nemen met het risico dat de kwaliteit laag is. Als ik 2 aluminum kozijnen naast elkaar zie weet ik niet wat de beter is.CrashOne schreef op zaterdag 29 augustus 2020 @ 17:24:
[...]
Kwaliteit, looks, duurzaamheid, prijs. En dan vooral inlezen en uitzoeken wat kwalitatief goed is. Daarnaast hebben wij echt het hele land door gereden om veel te bekijken (van Amsterdam, Breda en de achterhoek, wij wonen in Elst onder Arnhem). Ik vond vooral de badkamer lastig, veel van hetzelfde gezien overal. Die is uiteindelijk samengesteld met onderdelen van drie verschillende bedrijven.
Ik ga in eigen beheer bouwen met een bouwbegeleider, die heeft natuurlijk de nodige ervaring ook met merken en methodes, maar die mannen en aannemers gaan soms wel erg hard van stapel en ik wil niet overrompeld worden, of een beslissing moeten nemen als ik er niet klaar voor ben.
Catalogusbouw heb ik naar gekeken, maar dat past niet bij mijn wensen. Bij een open huis van Groothuisbouw werd mij verteld dat ze erg druk zijn en eigenlijk geen aanpassingen kunnen accepteren op een paar standaard dingen na. Daar hoort dan weer een hoop uitzoekt werk bij, maar dat is meer vrijwillig omdat ik niet zomaar wil aannemen wat de aannemer mij wijs maken.
Qua wat een goed merk qua kozijnen is heb ik me helemaal niet mee bemoeid (en dat zegt wat, want ik bemoei me overal mee), ik ga er vanuit dat de aannemer daar een prima afweging in maakt en volgens mij zijn het dezelfde als ze daar op kantoor hebben, dus dan is het imho een product dat ze zelf ook kiezen.
Ik heb het huis aan de binnenkant zelf getekend binnen de standaard buitenmaten die zij hanteren en op basis van de looks van een huis waarvan ik wist dat ze het gebouwd hebben en wat ik mooi vind (alleen de indeling wat aangepast dus) lengte trouwens ook, maar nog wel binnen hun reeks van standaardmaten gebleven.
Aan de voorkant wordt ons huis vrijwel identiek, aan de zijkant wordt het al anders.
Ik heb het huis aan de binnenkant zelf getekend binnen de standaard buitenmaten die zij hanteren en op basis van de looks van een huis waarvan ik wist dat ze het gebouwd hebben en wat ik mooi vind (alleen de indeling wat aangepast dus) lengte trouwens ook, maar nog wel binnen hun reeks van standaardmaten gebleven.
Aan de voorkant wordt ons huis vrijwel identiek, aan de zijkant wordt het al anders.
Why be difficult when, with a bit of effort, you could be impossible?
Als ik dat zo lees is het voornamelijk de looks en prijs. Ik heb bijvoorbeeld bij Hörmann voordeuren bekeken, maar dan heb je 5 series waar je uit moet kiezen die allemaal in tig kleuren en vormen te krijgen zijn, en zo zijn er nog veel meer merken die vergelijkbaar zijn. Dat zijn allemaal in principe isoleren voordeuren, wat ik wel belangrijk vind, maar hoe ik uiteindelijk moet gaat kiezen tussen de merken..??Leandra66 schreef op zaterdag 29 augustus 2020 @ 21:12:
[...]
Qua deuren/deurkrukken staat er een stelpost in de overeenkomst, dus ik heb 2 deuren uitgezocht die daar ruim boven zitten (want mooi) en de andere deuren zitten ruim onder die prijs en daarmee is het totaal weer aardig in de buurt van de stelpost.
Trappen heb ik overlegd met de trappenleverancier waar de aannemer me naartoe stuurde; ook de trappen komen behoorlijk in de buurt van de stelpost, heb ik niet de trap die ik het allerallerallermooist vond, maar wel ook prima is (2 dichte trappen waarbij we de keuze tussen eiken en mahonie nog moeten maken).
Badkamer weet ik precies wat ik hebben wil want eigenlijk wilden we ons oude huis verbouwen en hadden daarvoor al alles uitgezocht. Idem met de vloeren voor badkamer, toilet en keuken.
De overige vloeren hebben we deze week net uitgezocht en de bouw moet nog beginnen.
Qua kozijnen wordt het kunststof met aan beide zijden een houtstructuur, dat was de enige manier waarop ik aan de kunststof kozijnen wilde, de kleur heb ik daarvoor vrij simpel bepaald; ik wilde geen donkere kleur want dan zie je bij een openstaand raam altijd de witte binnenkant, en dus dat het een kunststof kozijn is, en dus wordt het Ral 9010.
Keuken is ook vrijwel bepaald. Schakelmateriaal wordt zoals het standaardspul dat de aannemer gebruikt (Jung serie nogwat, niet heel duur). Garagedeur wordt een elektrische sectionaaldeur waarvan de kleur nog bepaald moet worden.
Oh; bakstenen en dakpannen.... baksteen uitgezocht die iedere keer bleef trekken (Wienerberger Pollux), en de aannemer had een aantal standaardkeuzes qua dakpannen en daarvan een gekozen (Wienerberger Alegra 12 zwart edel-engobe)
Voordeur in principe gewoon een dichte deur, dus daar moet ik dan nog een kleur voor bepalen, die zal wel hetzelfde worden als de garagedeur, dan oogt dat nog een beetje aardig op een paar meter van elkaar.
Omdat ik zodra de bouw begint waarschijnlijk nog een miljoenmiljard keuzes moet maken nu al behoorlijk ver met de keuken en de vloeren bijvoorbeeld, dat is straks alleen een kwestie van bestellen.
De spullen voor de badkamer moeten nog uitgezocht worden (over 2 weken een afspraak), maar de belangrijkste zaken weet ik iig al. En wat ik nog niet weet zal een keuze worden die binnen smaak en budget valt.
De aannemers kiezen vind ik dan nog redelijk makkelijk (zeg ik voorzichtig want mijn ervaring hiermee is beperkt tot praten met mensen) omdat je daar toch in zo''n klein dorp waar ik ga bouwen niet mee weg komt als je te duur bent of slechte kwaliteit levert. Bijna iedereen die ik tot n toe heb gesproken vraagt wie is je architect en die blijken elkaar al (goed) te kennen.
Keukens is ook nog enigszins makkelijk omdat daar HEEL veel meningen over zijn te vinden die in grote lijnen met elkaar eens zijn.
Ik wil eea wel graag in de buurt van het budget houden dus dan is het een kwestie van keuzes maken die binnen je smaak, eisen en het budget vallen.Sivvis schreef op zaterdag 29 augustus 2020 @ 21:42:
[...]
Als ik dat zo lees is het voornamelijk de looks en prijs. Ik heb bijvoorbeeld bij Hörmann voordeuren bekeken, maar dan heb je 5 series waar je uit moet kiezen die allemaal in tig kleuren en vormen te krijgen zijn, en zo zijn er nog veel meer merken die vergelijkbaar zijn. Dat zijn allemaal in principe isoleren voordeuren, wat ik wel belangrijk vind, maar hoe ik uiteindelijk moet gaat kiezen tussen de merken..??
De aannemers kiezen vind ik dan nog redelijk makkelijk (zeg ik voorzichtig want mijn ervaring hiermee is beperkt tot praten met mensen) omdat je daar toch in zo''n klein dorp waar ik ga bouwen niet mee weg komt als je te duur bent of slechte kwaliteit levert. Bijna iedereen die ik tot n toe heb gesproken vraagt wie is je architect en die blijken elkaar al (goed) te kennen.
Keukens is ook nog enigszins makkelijk omdat daar HEEL veel meningen over zijn te vinden die in grote lijnen met elkaar eens zijn.
Ik wilde bijvoorbeeld wel absoluut stompe deuren, en ook houten deuren, dus dat zijn al eisen die niet in de categorie heel goedkoop vallen.
Voor de twee deuren die op de hal uitkomen (deur van de WC en deur naar de woonkamer) heb ik daarom deuren genomen die ik erg mooi vond, de andere deuren (boven en de trapkast in de keuken) zijn het deuren geworden die er op lijken maar beduidend minder duur zijn, wel hout, wel 4 panelen, maar bijvoorbeeld geen facetrand.
Kijk, als ik helemaal los zou gaan op wat ik het allermooiste vind dan kunnen we alle stelposten wel verdubbelen en kom ik nog te kort, ik zou ook wel graag een Aston Martin in de garage willen maar met een Saab 9-5 NG ben ik ook heel blij, zeg maar.
Dus het equivalent van de Saab gekozen en ben daar heel tevreden mee, maar als ik onbeperkt budget had was het een AM geweest.
Er zijn maar een paar dingen waarbij ik echt absoluut keuzes maak die het hoe dan ook gaan worden, en als daardoor het budget opgerekt moet worden dan moet dat helaas maar.
Er komt dus een Bette Lux bad want kwaliteit en
Why be difficult when, with a bit of effort, you could be impossible?
Oh, en waar de grenzen van het budget bereikt of overschreden (dreigen te) worden maak ik de keuzes als volgt: dat wat makkelijk (goedkoop en/of zonder al te veel overlast) aangepast kan worden daar maak ik de goedkopere keuzes in, daar waar dat moeilijker is maak ik keuzes die dusdanig zijn dat je het niet over een aantal jaar toch wilt aanpassen omdat je baalt van de te goedkope keuze.
Badkamer verbouwen is duur plus je zit twee weken in de ellende; dus badkamer moet in één keer goed.
Keuken is relatief minder duur (want de kosten zitten minder in de arbeid en meer in de kasten en apparatuur), dus de keuken wordt nu niet de keuken zoals ik die het liefst zou hebben, maar weer wel met goede apparatuur.
Als de keuken dan vervangen moet worden als de apparatuur op is dan is dat ook geen probleem, het vervangen van een keuken is immers een veel minder overlastgevende aanpassing.
Zelfs de deurkrukken doe ik deels zo: voor een aantal deuren een deurkruk die ik echt heel
vind en de rest een die ik acceptabel vind, desnoods vervang ik de acceptabele deurkrukken door de jaren heen als daar wat ruimte voor is.
Badkamer verbouwen is duur plus je zit twee weken in de ellende; dus badkamer moet in één keer goed.
Keuken is relatief minder duur (want de kosten zitten minder in de arbeid en meer in de kasten en apparatuur), dus de keuken wordt nu niet de keuken zoals ik die het liefst zou hebben, maar weer wel met goede apparatuur.
Als de keuken dan vervangen moet worden als de apparatuur op is dan is dat ook geen probleem, het vervangen van een keuken is immers een veel minder overlastgevende aanpassing.
Zelfs de deurkrukken doe ik deels zo: voor een aantal deuren een deurkruk die ik echt heel
Why be difficult when, with a bit of effort, you could be impossible?
Lijkt mij redelijk realistisch als ik hem naast mijn eigen begroting neerleg. Enige wat ik mis is een keuze voor warmtepomp, dat maakt het plaatje wat duurder.Terpen Tijn schreef op zaterdag 29 augustus 2020 @ 13:19:
Op zoek naar een schatting van de kosten voor het bouwen van een huis kwam ik deze site tegen:
http://www.watkostbouwen.nl/woningcalc.php
Lijkt betrouwbaar; gesteund door de Vereniging Eigen Huis kennelijk, en je kunt best veel details invullen.
Heeft iemand ervaring met deze site? Lijken de schattingen grosso modo realistisch?
Inmiddels zijn we 4 maandjes verder en is het nodig weer tijd voor een update.
Nadat de heipalen en de fundering in april zijn aangebracht heeft de bouw 6 weken stilgelegen omdat de vloerplaten niet te leveren waren. De VBI fabriek draaide vanwege corona maar op 50%
Eind juni arriveerden ze gelukkig en kon de bouw worden hervat

een kleine 2 weken later waren de kalkzandstenen muren gemetseld en werd de breedtplaatvloer geleverd




In week 31 (eind juli). werd het prefab dak geleverd en in slechts 2 dagen geplaatst.




begin augustus zijn de metselaars begonnen met het metselen van buitengevel. Het trasraam word gemetseld met de mbi geostylistix in de kleur shaded charcoal en daarboven metselen ze verder met de shaded grey.



De shaded charcoal schijnt nogal gevoelig te zijn voor kalkuitbloei zoals ook op bovenstaande foto is te zien. Dit is volgens mbi gelukkig vrij gemakkelijk weer te verwijderen.
De aannemer is verder druk bezig met het dichtsmeren van alle kieren met een speciale vloeibare rubber. De woning word volledig luchtdicht gebouwd dus er worden heel wat emmertjes van dat spul verbruikt.

De installateur is ook volop bezig. Het meeste installatiewerk zit er in. volgende week donderdag (10 september) komt de cementdekvloer dus de aankomende week gaan ze met de vloerverwarming beginnen.
het dakleer op het platte dak (100m2) is aangebracht en aankomende week word de dakkapel met zink bekleed.

Afgelopen week zijn de aluminium kozijnen ook besteld. Levertijd 10 weken



ik ga proberen wat vaker een update te plaatsen.
@Clive erg leuk om zo gedetailleerd dit te kunnen volgen. Ik snap je frustratie over de 10 weken voor de kozijnen, maar zoals de aannemer het aanpakt met stelkozijnen zou mij ook wel weer een precies gevoel geven, minder kans op fouten.
@Clive ziet er goed uit! Leuk om de voortgang te zien, die overstek en puien zijn echt gaaf.
Ok, maar hier dus de crux van mijn vraag: stel ik weet voor mezelf dat ik massief houten deuren wil met een bepaald motief. Nou zijn er waarschijnlijk een flink aantal aanbieders die precies of nagenoeg precies die deur aanbieden. Hoe maken jullie dan de keuze? Als de deur kant en klaar is met kozijn en alles, word er dan gekeken naar de kwaliteit van de scharnieren? Algehele constructie kwaliteit? Dikte van de deur? Andere deur gerelateerde dingen waar ik nu niet vanaf weet?Leandra66 schreef op zaterdag 29 augustus 2020 @ 21:54:
[...]
Ik wil eea wel graag in de buurt van het budget houden dus dan is het een kwestie van keuzes maken die binnen je smaak, eisen en het budget vallen.
Ik wilde bijvoorbeeld wel absoluut stompe deuren, en ook houten deuren, dus dat zijn al eisen die niet in de categorie heel goedkoop vallen.
Voor de twee deuren die op de hal uitkomen (deur van de WC en deur naar de woonkamer) heb ik daarom deuren genomen die ik erg mooi vond, de andere deuren (boven en de trapkast in de keuken) zijn het deuren geworden die er op lijken maar beduidend minder duur zijn, wel hout, wel 4 panelen, maar bijvoorbeeld geen facetrand.
Mijn vraag is dus niet: hoe bepaal ik voor mezelf wat ik wil, maar mijn vraag is: hoe kies is tussen de verschillende aanbieders die aanbieden wat ik wil?
Dus stel:
Aanbieder A:
Voordeur 1: Thermo 65 U-waarde 0,87, Rc2 beveiliging, vleugeloverdekkende deur, € 1800
Voordeur 2: Thermosafe U-waarde 0,87 Rc3 beveiliging, kozijn ligt bijna vlak aan de binnenkant met de deur, €2700
Voordeur 2 is over het algemeen een wat betere deur. Net iets betere afdichtingen, wat dikker staal voor de stijfheid, mooiere kleuren/motieven/texturen verkrijgbaar, etc.
Aanbieder B: Nagenoeg gelijkwaardige deuren, een beetje beter hier, een beetje slechter daar. Prijzen ontlopen elkaar ook niet echt.
Met de kwaliteit van beide deuren ben ik niet bekend, behalve dat het op zich bekende merken zijn.
Hoe ik kies tussen voordeur 1 en 2 is puur aan mijn wensen en budget, maar kiezen tussen vergelijkbare deuren van verschillende aanbieders, vooral als de prijs ook redelijk gelijk is ...?
Hoe weet je dat Bette lux kwaliteit is, en hoe is dat vergeleken met andere aanbieders al dan niet in die prijsklasse?Leandra66 schreef op zaterdag 29 augustus 2020 @ 21:54:
[...]
Er zijn maar een paar dingen waarbij ik echt absoluut keuzes maak die het hoe dan ook gaan worden, en als daardoor het budget opgerekt moet worden dan moet dat helaas maar.
Er komt dus een Bette Lux bad want kwaliteit en![]()
![]()
, en ik denk ook een Bette Lux wastafel.
@Sivvis neem ook service, garantie en locatie van leverancier mee. Een leverancier relatief dichtbij zou voor mij een plus zijn want als er dan iets is kan je zo naar ze toe en verschuilen ze zich niet achter een lange afstand of geen tijd.
Gevoel ook niet vergeten, als je prettiger geholpen bent bij leverancier A en die is dan toevallig tientjes duurder per deur zou ik persoonlijk daarvoor kiezen. Maar een verschil van 200 per deur die er op het oog hetzelfde uitziet is dan gek natuurlijk.
Zaken als materiaalgebruik en hang en sluitwerk moet je ook zelf beoordelen en zien natuurlijk. Wat voor een ander belangrijk is hoeft voor jou natuurlijk helemaal niet belangrijk te zijn en wil je mogelijk dus ook geen geld aan uitgeven.
Gevoel ook niet vergeten, als je prettiger geholpen bent bij leverancier A en die is dan toevallig tientjes duurder per deur zou ik persoonlijk daarvoor kiezen. Maar een verschil van 200 per deur die er op het oog hetzelfde uitziet is dan gek natuurlijk.
Zaken als materiaalgebruik en hang en sluitwerk moet je ook zelf beoordelen en zien natuurlijk. Wat voor een ander belangrijk is hoeft voor jou natuurlijk helemaal niet belangrijk te zijn en wil je mogelijk dus ook geen geld aan uitgeven.
[ Voor 19% gewijzigd door GeeMoney op 30-08-2020 12:07 ]
Goed punt, daar hou ik ook absoluut rekening mee, maar dat was eigenlijk niet het punt van mijn vraag. Dat is ook deels de reden dat ik een bouwbegeleider gebruik, en mijn architect heeft zelf een bouwbedrijf gerunt tot de 2008 crisis, dus die heeft ook heel veel kennis en ervaring met producten, leveranciers en aannemersGeeMoney schreef op zondag 30 augustus 2020 @ 12:04:
@Sivvis neem ook service, garantie en locatie van leverancier mee. Een leverancier relatief dichtbij zou voor mij een plus zijn want als er dan iets is kan je zo naar ze toe en verschuilen ze zich niet achter een lange afstand of geen tijd.
Gevoel ook niet vergeten, als je prettiger geholpen bent bij leverancier A en die is dan toevallig tientjes duurder per deur zou ik persoonlijk daarvoor kiezen. Maar een verschil van 200 per deur die er op het oog hetzelfde uitziet is dan gek natuurlijk.
Zaken als materiaalgebruik en hang en sluitwerk moet je ook zelf beoordelen en zien natuurlijk. Wat voor een ander belangrijk is hoeft voor jou natuurlijk helemaal niet belangrijk te zijn en wil je mogelijk dus ook geen geld aan uitgeven.
Mijn punt is dat veel mensen zeggen te letten op kwaliteit, en net als @Leandra66 zegt dat bijvoorbeeld Bette Lux kwaliteit is ... hoe kom je daar achter wanneer het kwaliteit is?
Ik heb voor de binnendeuren degene bij wie ik de keuze moest maken gevraagd welk merk hij zou kiezen.Sivvis schreef op zondag 30 augustus 2020 @ 11:56:
[...]
Ok, maar hier dus de crux van mijn vraag: stel ik weet voor mezelf dat ik massief houten deuren wil met een bepaald motief. Nou zijn er waarschijnlijk een flink aantal aanbieders die precies of nagenoeg precies die deur aanbieden. Hoe maken jullie dan de keuze? Als de deur kant en klaar is met kozijn en alles, word er dan gekeken naar de kwaliteit van de scharnieren? Algehele constructie kwaliteit? Dikte van de deur? Andere deur gerelateerde dingen waar ik nu niet vanaf weet?
Mijn vraag is dus niet: hoe bepaal ik voor mezelf wat ik wil, maar mijn vraag is: hoe kies is tussen de verschillende aanbieders die aanbieden wat ik wil?
Dus stel:
Aanbieder A:
Voordeur 1: Thermo 65 U-waarde 0,87, Rc2 beveiliging, vleugeloverdekkende deur, € 1800
Voordeur 2: Thermosafe U-waarde 0,87 Rc3 beveiliging, kozijn ligt bijna vlak aan de binnenkant met de deur, €2700
Voordeur 2 is over het algemeen een wat betere deur. Net iets betere afdichtingen, wat dikker staal voor de stijfheid, mooiere kleuren/motieven/texturen verkrijgbaar, etc.
Aanbieder B: Nagenoeg gelijkwaardige deuren, een beetje beter hier, een beetje slechter daar. Prijzen ontlopen elkaar ook niet echt.
Met de kwaliteit van beide deuren ben ik niet bekend, behalve dat het op zich bekende merken zijn.
Hoe ik kies tussen voordeur 1 en 2 is puur aan mijn wensen en budget, maar kiezen tussen vergelijkbare deuren van verschillende aanbieders, vooral als de prijs ook redelijk gelijk is ...?
[...]
Hoe weet je dat Bette lux kwaliteit is, en hoe is dat vergeleken met andere aanbieders al dan niet in die prijsklasse?
En toen was het prijsverschil dusdanig klein dat ik idd voor dat merk gekozen heb.
Hij heeft die deuren dagelijks in handen, werkt al jaren bij het bedrijf en wordt ook de buurman 50 meter verderop
Bette verkoopt plaatstalen baden, daar zijn maar 2 merken van, het alternatief is Kaldewei.
Ik wilde hoe dan ook een stalen bad, dus dat beperkt de keuze al behoorlijk, en daarbij was Bette voor mij het merk dat kwaliteit, design en een goede prijs combineerde.
En ja, het is duurder dan een kunststof bad, en nee, dat is voor mij geen reden om een kunststof bad te nemen, doe mij maar lekker een Bette met 30 jaar garantie, want ik was niet van plan over 10 jaar de badkamer te vernieuwen.
Why be difficult when, with a bit of effort, you could be impossible?
Welk merk is het geworden?Leandra66 schreef op zondag 30 augustus 2020 @ 13:55:
[...]
Ik heb voor de binnendeuren degene bij wie ik de keuze moest maken gevraagd welk merk hij zou kiezen.
En toen was het prijsverschil dusdanig klein dat ik idd voor dat merk gekozen heb.
Top, dank je! De warmtepomp staat wel ergens onder de warmtevoorziening (20k als ik me niet vergis; alternatieven gas-CV of W/L warmtepomp).Tijgerhaai schreef op zondag 30 augustus 2020 @ 09:04:
[...]
Lijkt mij redelijk realistisch als ik hem naast mijn eigen begroting neerleg. Enige wat ik mis is een keuze voor warmtepomp, dat maakt het plaatje wat duurder.
Je hebt gelijk. Nu duurt het wachten iets langer maar weet je wel zeker dat alles straks perfect gaat passen..Fimke schreef op zondag 30 augustus 2020 @ 11:33:
@Clive erg leuk om zo gedetailleerd dit te kunnen volgen. Ik snap je frustratie over de 10 weken voor de kozijnen, maar zoals de aannemer het aanpakt met stelkozijnen zou mij ook wel weer een precies gevoel geven, minder kans op fouten.
Wij zijn bezig met het ontwerp van ons nieuwe huis. De architect heeft een mooie schets gemaakt, met een grote doorkijkhaard in de achtergevel. Ik kan dergelijke doorkijkhaarden echter nauwelijks vinden op internet, en al helemaal niet op hout (wat onze voorkeur zou hebben). Ook vraag ik me af hoe het met inbraakgevoeligheid zit. Iemand die me hier meer over kan vertellen of op weg kan helpen? In het huidige ontwerp speelt die doorkijkhaard wel een belangrijke rol...
.
[ Voor 99% gewijzigd door Deleon78 op 26-07-2021 16:18 ]
Goed punt. Raam is meerlaags glas, wellicht sterker dan van een haard? Ik heb serieus geen idee. Maar voor bijvoorbeeld het keurmerk Veilig Wonen worden toch eisen gesteld aan deuren en kozijnen? Zijn er ook eisen waaraan zo’n ‘binnen/buiten doorkijkhaard’ aan zou moeten voldoen?
Wat een supergave gevelsteen! Echt heel mooi!Clive schreef op zondag 30 augustus 2020 @ 11:18:
[...]
Inmiddels zijn we 4 maandjes verder en is het nodig weer tijd voor een update.
Nadat de heipalen en de fundering in april zijn aangebracht heeft de bouw 6 weken stilgelegen omdat de vloerplaten niet te leveren waren. De VBI fabriek draaide vanwege corona maar op 50%
Eind juni arriveerden ze gelukkig en kon de bouw worden hervat
[Afbeelding]
een kleine 2 weken later waren de kalkzandstenen muren gemetseld en werd de breedtplaatvloer geleverd
[Afbeelding]
[Afbeelding]
[Afbeelding]
[Afbeelding]
In week 31 (eind juli). werd het prefab dak geleverd en in slechts 2 dagen geplaatst.
[Afbeelding]
[Afbeelding]
[Afbeelding]
[Afbeelding]
begin augustus zijn de metselaars begonnen met het metselen van buitengevel. Het trasraam word gemetseld met de mbi geostylistix in de kleur shaded charcoal en daarboven metselen ze verder met de shaded grey.
[Afbeelding]
[Afbeelding][Afbeelding]
De shaded charcoal schijnt nogal gevoelig te zijn voor kalkuitbloei zoals ook op bovenstaande foto is te zien. Dit is volgens mbi gelukkig vrij gemakkelijk weer te verwijderen.
De aannemer is verder druk bezig met het dichtsmeren van alle kieren met een speciale vloeibare rubber. De woning word volledig luchtdicht gebouwd dus er worden heel wat emmertjes van dat spul verbruikt.
[Afbeelding]
De installateur is ook volop bezig. Het meeste installatiewerk zit er in. volgende week donderdag (10 september) komt de cementdekvloer dus de aankomende week gaan ze met de vloerverwarming beginnen.
het dakleer op het platte dak (100m2) is aangebracht en aankomende week word de dakkapel met zink bekleed.
[Afbeelding]
Afgelopen week zijn de aluminium kozijnen ook besteld. Levertijd 10 wekenDe aannemer wou eerst de stelkozijnen monteren zodat hij de exacte maten kon opnemen. Dit vanwege de enorme pui van 8 meter hoog aan de voorzijde en daarnaast nog een pui van 5 meter hoog en aan de achterzijde van de woning zit ook nog een pui van ruim 7 meter.
[Afbeelding]
[Afbeelding]
ik ga proberen wat vaker een update te plaatsen.
Wat zegt de architect ervan? Die tekent toch alleen dingen die je ook ergens kunt kopen neem ik aan?Peacefield78 schreef op maandag 31 augustus 2020 @ 21:38:
Wij zijn bezig met het ontwerp van ons nieuwe huis. De architect heeft een mooie schets gemaakt, met een grote doorkijkhaard in de achtergevel. Ik kan dergelijke doorkijkhaarden echter nauwelijks vinden op internet, en al helemaal niet op hout (wat onze voorkeur zou hebben). Ook vraag ik me af hoe het met inbraakgevoeligheid zit. Iemand die me hier meer over kan vertellen of op weg kan helpen? In het huidige ontwerp speelt die doorkijkhaard wel een belangrijke rol...
Veroordeel niet, verwonder u slechts
Wij hebben een Spartherm hoekhaard op hout met een schuifdeur van glas. Het glas is 4mm dik en kun het beste vergelijken met het glas van een Ceran kookveld ook wel keramiekglas genoemd. Inbraakwerend is het zeker niet. (en isolerend ook niet) Ik heb bij de mij bekende kachelofen- en kaminbouwers in Oostenrijk even gekeken en ik zie nergens een binnen/buitenhaard oplossing.Peacefield78 schreef op maandag 31 augustus 2020 @ 21:38:
Wij zijn bezig met het ontwerp van ons nieuwe huis. De architect heeft een mooie schets gemaakt, met een grote doorkijkhaard in de achtergevel. Ik kan dergelijke doorkijkhaarden echter nauwelijks vinden op internet, en al helemaal niet op hout (wat onze voorkeur zou hebben). Ook vraag ik me af hoe het met inbraakgevoeligheid zit. Iemand die me hier meer over kan vertellen of op weg kan helpen? In het huidige ontwerp speelt die doorkijkhaard wel een belangrijke rol...
Spartherm heeft wel van die doorkijk oplossingen, alleen geen idee of dat ook in een buitenmuur kan.
De schoorsteenveger komt voorlopig nog niet dus die kan ik het niet vragen of hij bekend is met deze oplossingen.
Mooie aannameNo Hands schreef op dinsdag 1 september 2020 @ 08:01:
[...]
Wat zegt de architect ervan? Die tekent toch alleen dingen die je ook ergens kunt kopen neem ik aan?
Met gestrekt been.
Hallo allen. Goed topic
. Heb al veel doorgelezen en zodoende een goed beeld gekregen hoe een nieuwbouwproces verloopt.
Ook wij willen (voor het eerst) een woning laten bouwen.
We hebben al een optie op een kavel in Enschede. Vanavond komt er een architect langs voor een eerste gesprek. Wat moeten we zeker bespreken? We hebben zelf al het volgende bedacht:
Onze lay-out/concept (kubusvorm, plat dak, 4 woonlagen incl. dakterras, veel glas op voor en achtergevel, inpandig garage, open woon-keuken en CLT bouw).
Zo min mogelijk keuze met oog op prijs/duurzaamheid. (We hoeven geen gouden krukken of zware deuren. Keep It Stupid Simple
)
We willen een goede begeleiding in het gehele traject en advies in geschikte bouwmaterialen: fundering, heipalen, gevelbekleding, kozijnen, deuren, trappen.
Technische eisen vanuit gemeente moet gecontroleerd en voldaan worden.
De woning moet een EPC hebben van <0. Luchtdicht. Energieneutraal of zelfs energiewinnend/leverend ipv kostend.
Financiering = +-450k
Kavelopp = 134m2 = 80k
Beoogde woonoppervlak +- 75m2 (x4).
Lees graag jullie tips, tops en nots
.
Ook wij willen (voor het eerst) een woning laten bouwen.
We hebben al een optie op een kavel in Enschede. Vanavond komt er een architect langs voor een eerste gesprek. Wat moeten we zeker bespreken? We hebben zelf al het volgende bedacht:
Onze lay-out/concept (kubusvorm, plat dak, 4 woonlagen incl. dakterras, veel glas op voor en achtergevel, inpandig garage, open woon-keuken en CLT bouw).
Zo min mogelijk keuze met oog op prijs/duurzaamheid. (We hoeven geen gouden krukken of zware deuren. Keep It Stupid Simple
We willen een goede begeleiding in het gehele traject en advies in geschikte bouwmaterialen: fundering, heipalen, gevelbekleding, kozijnen, deuren, trappen.
Technische eisen vanuit gemeente moet gecontroleerd en voldaan worden.
De woning moet een EPC hebben van <0. Luchtdicht. Energieneutraal of zelfs energiewinnend/leverend ipv kostend.
Financiering = +-450k
Kavelopp = 134m2 = 80k
Beoogde woonoppervlak +- 75m2 (x4).
Lees graag jullie tips, tops en nots
Ik heb hem even snel ingevuld met mijn huidige offertes en inschattingen en dit lijkt aardig overeen te komen (~5% afwijking)Terpen Tijn schreef op zaterdag 29 augustus 2020 @ 13:19:
Op zoek naar een schatting van de kosten voor het bouwen van een huis kwam ik deze site tegen:
http://www.watkostbouwen.nl/woningcalc.php
Lijkt betrouwbaar; gesteund door de Vereniging Eigen Huis kennelijk, en je kunt best veel details invullen.
Heeft iemand ervaring met deze site? Lijken de schattingen grosso modo realistisch?
Lux.Architectuur | Van Dromen tot Wonen | www.Lux-a.nl
Wil je 300m2 gaan bouwen voor €370K? Of 75m2 per woonlaag, dus 225m2 (dakterras is geen woonlaag)? Of 75m2 totaal?Gkhn schreef op dinsdag 1 september 2020 @ 10:55:
Hallo allen. Goed topic. Heb al veel doorgelezen en zodoende een goed beeld gekregen hoe een nieuwbouwproces verloopt.
Ook wij willen (voor het eerst) een woning laten bouwen.
We hebben al een optie op een kavel in Enschede. Vanavond komt er een architect langs voor een eerste gesprek. Wat moeten we zeker bespreken? We hebben zelf al het volgende bedacht:
Onze lay-out/concept (kubusvorm, plat dak, 4 woonlagen incl. dakterras, veel glas op voor en achtergevel, inpandig garage, open woon-keuken en CLT bouw).
Zo min mogelijk keuze met oog op prijs/duurzaamheid. (We hoeven geen gouden krukken of zware deuren. Keep It Stupid Simple)
We willen een goede begeleiding in het gehele traject en advies in geschikte bouwmaterialen: fundering, heipalen, gevelbekleding, kozijnen, deuren, trappen.
Technische eisen vanuit gemeente moet gecontroleerd en voldaan worden.
De woning moet een EPC hebben van <0. Luchtdicht. Energieneutraal of zelfs energiewinnend/leverend ipv kostend.
Financiering = +-450k
Kavelopp = 134m2 = 80k
Beoogde woonoppervlak +- 75m2 (x4).
Lees graag jullie tips, tops en nots.
De 'footprint' van de woning is +-75m2.CrashOne schreef op dinsdag 1 september 2020 @ 11:54:
[...]
Wil je 300m2 gaan bouwen voor €370K? Of 75m2 per woonlaag, dus 225m2 (dakterras is geen woonlaag)? Of 75m2 totaal?
(75 x 3) + Bovenste verdieping (master bedroom + dakterras = 45 + 30)
Totaal 300m2 dus idd
Dan wens ik je veel succes want dat is erg veel voor je geld!
Voor 270m2 zit je (in mijn recente ervaring) eerder rond de 550-600k. Dat is een flink verschil om te overbruggen.
Voor 270m2 zit je (in mijn recente ervaring) eerder rond de 550-600k. Dat is een flink verschil om te overbruggen.
Ik heb deze site destijds ook gebruikt en mijn hele woning ruimte voor ruimte ingevuld. Ik kwam destijds iets te laag uit, maar dat heeft er ook mee te maken dat ik ook nog niet wist wat er allemaal bij komt kijken bij het bouwen van een woning.Terpen Tijn schreef op zaterdag 29 augustus 2020 @ 13:19:
Op zoek naar een schatting van de kosten voor het bouwen van een huis kwam ik deze site tegen:
http://www.watkostbouwen.nl/woningcalc.php
Lijkt betrouwbaar; gesteund door de Vereniging Eigen Huis kennelijk, en je kunt best veel details invullen.
Heeft iemand ervaring met deze site? Lijken de schattingen grosso modo realistisch?
Voor het controleren van offertes en meerprijzen geeft het een goede referentie.
PV: 27kWp | WP: Adlar Aurora II 6kw
Dakterras heeft andere kosten dan een verblijfsruimte. Je wilt dus zo'n 270m2 bouwen. Ik denk (maar wij hebben in 2016 gebouwd) dat dat wel krap wordt.Gkhn schreef op dinsdag 1 september 2020 @ 12:06:
[...]
De 'footprint' van de woning is +-75m2.
(75 x 3) + Bovenste verdieping (master bedroom + dakterras = 45 + 30)
Totaal 300m2 dus idd. Of telt het dakterras niet mee? Dan is het 270m2.
Ik vind het ook een flinke woning op een erg krap kavel. Je houdt 59m2 aan niet bebouwd kavel over. Wil je een auto kwijt dan heb je nog maar 46m2 over. Denk dus goed na over hoe je dat wilt invullen. Mensen die ik ken die een soortgelijk dakterras hebben, maken daar in de praktijk amper gebruik van, dus je moet het waarschijnlijk van je overige buitenruimte hebben.
@Gkhn Vier woonlagen icm veel glas stelt ook behoorlijke eisen aan de constructie. Het wordt er ieder geval niet goedkoper van. Ben benieuwd hoe ver je kunt komen met je budget.
The choice is simple – do you do it in this life, or the next? In case of the former, why wait?
Ik maak vaker gebruik van mijn dakterras dan mijn tuin.CrashOne schreef op dinsdag 1 september 2020 @ 12:15:
[...]
Dakterras heeft andere kosten dan een verblijfsruimte. Je wilt dus zo'n 270m2 bouwen. Ik denk (maar wij hebben in 2016 gebouwd) dat dat wel krap wordt.
Ik vind het ook een flinke woning op een erg krap kavel. Je houdt 59m2 aan niet bebouwd kavel over. Wil je een auto kwijt dan heb je nog maar 46m2 over. Denk dus goed na over hoe je dat wilt invullen. Mensen die ik ken die een soortgelijk dakterras hebben, maken daar in de praktijk amper gebruik van, dus je moet het waarschijnlijk van je overige buitenruimte hebben.
Als ik op google 'bouwkosten per m2' intoets krijg ik
Omschrijving Kosten per m2
Zeer goedkope bouw € 872,-
Goedkope bouw € 1047,-
Normale bouw € 1221,-
Betere bouw € 1483,-
270*1221 = €329.670..
Vond het dus wel een reële plan.
Klopt idd dat we weinig tuin overhouden. Woning komt in een nieuwbouwwijk met veel openbaar groen.
De kavel ligt aan een gedeelde binnentuin met 14 andere woningen. Vandaar ook het idee van dakterras om alsnog in privacy de kids in een opblaasbad te kunnen laten dobberen. Dus dat dempt de pijn wel iets maar voorlopig is dat ook het enige hekelpunt waardoor we af kunnen zien van de bouw. Kijken wat de architect er van kan maken.
Maar niemand nog aandachtspunten waar we aan moeten denken? Hoe hebben jullie de architect gekozen? Puur op kostenplaatje of ook gevoel?
Omschrijving Kosten per m2
Zeer goedkope bouw € 872,-
Goedkope bouw € 1047,-
Normale bouw € 1221,-
Betere bouw € 1483,-
270*1221 = €329.670..
Vond het dus wel een reële plan.
Klopt idd dat we weinig tuin overhouden. Woning komt in een nieuwbouwwijk met veel openbaar groen.
De kavel ligt aan een gedeelde binnentuin met 14 andere woningen. Vandaar ook het idee van dakterras om alsnog in privacy de kids in een opblaasbad te kunnen laten dobberen. Dus dat dempt de pijn wel iets maar voorlopig is dat ook het enige hekelpunt waardoor we af kunnen zien van de bouw. Kijken wat de architect er van kan maken.
Maar niemand nog aandachtspunten waar we aan moeten denken? Hoe hebben jullie de architect gekozen? Puur op kostenplaatje of ook gevoel?
[ Voor 23% gewijzigd door Gkhn op 01-09-2020 13:14 ]
Wij hebben onze architect gekozen op basis van portfolio. Diverse brochures opgevraagd, en deze architect trof met zijn ontwerpen de sfeer die wij graag wilden. In brochure ook foto’s van precies het afwerkingsniveau en details die wij zochten. Hebben wel gesprekken gehad met in totaal 3 architecten/bouwers om ook te kijken naar prijs en klik.
@Gkhn je zit dus op een bruto kuub inhoud van ruim 700m3.
Als je daarmee de huidige prijzen pakt uit dit topic voor een normale afbouw dan zit je op €550 per m3. (Dan doe je dus niet gek met hele grote glazen puien)
Dat brengt het totaal (excl. leges, vergunningen, architecten, grond, constructieberekeningen etc. etc.) al op 385k. Dan heb je dus nog niet je dakterras welke wel goedkoper is als een volle verdieping maar reken ook op 60k dan zit je dus qua kale afbouw alleen al op een 445k.
Ik zou toch voorzichtig dit topic nog even doornemen
.
Als je daarmee de huidige prijzen pakt uit dit topic voor een normale afbouw dan zit je op €550 per m3. (Dan doe je dus niet gek met hele grote glazen puien)
Dat brengt het totaal (excl. leges, vergunningen, architecten, grond, constructieberekeningen etc. etc.) al op 385k. Dan heb je dus nog niet je dakterras welke wel goedkoper is als een volle verdieping maar reken ook op 60k dan zit je dus qua kale afbouw alleen al op een 445k.
Ik zou toch voorzichtig dit topic nog even doornemen
Oei dat wordt dan erg krap. Wellicht bovenste verdieping in een later stadium bouwen? We hebben nu nog maar 1 kind. In principe hebben we genoeg aan 3 kamers op de 2e verdieping. Of anders moeten we de hypotheek aanvraag verhogen.GeeMoney schreef op dinsdag 1 september 2020 @ 14:28:
@Gkhn je zit dus op een bruto kuub inhoud van ruim 700m3.
Als je daarmee de huidige prijzen pakt uit dit topic voor een normale afbouw dan zit je op €550 per m3. (Dan doe je dus niet gek met hele grote glazen puien)
Dat brengt het totaal (excl. leges, vergunningen, architecten, grond, constructieberekeningen etc. etc.) al op 385k. Dan heb je dus nog niet je dakterras welke wel goedkoper is als een volle verdieping maar reken ook op 60k dan zit je dus qua kale afbouw alleen al op een 445k.
Ik zou toch voorzichtig dit topic nog even doornemen.
@Gkhn ik sluit me aan bij de andere reacties vwb budget. EUR 550/m3 lijkt vrij gemiddeld op het moment (betalen wij overigens ook).
Uit interesse: ik ben wel benieuwd waarom je graag zelf wilt bouwen?
Gegeven de locatie in Oost NL heb je feitelijk een heel mooi budget om een fantastische bestaande woning op een heel ruim kavel te kopen. Waarom dan kiezen voor zelfbouw op een piepklein kaveltje waarbij je gegeven de huidige bouwkosten ook flink zal moeten toegeven op je wensen...?
En antwoord op je vraag vwb de architect: wij hebben gekeken of de stijl van het werk ons aansprak, de persoonlijke klik en een eerlijke prijs. Qua voorbereiding: vaststellen welke leefruimtes je wilt hebben en hoe groot ze ongeveer moeten worden. Verder helpt het natuurlijk als je een ruime set aan voorbeelden hebt van huizen met de stijl / stijlelementen die je ook graag terug wilt zien. Succes!
Uit interesse: ik ben wel benieuwd waarom je graag zelf wilt bouwen?
Gegeven de locatie in Oost NL heb je feitelijk een heel mooi budget om een fantastische bestaande woning op een heel ruim kavel te kopen. Waarom dan kiezen voor zelfbouw op een piepklein kaveltje waarbij je gegeven de huidige bouwkosten ook flink zal moeten toegeven op je wensen...?
En antwoord op je vraag vwb de architect: wij hebben gekeken of de stijl van het werk ons aansprak, de persoonlijke klik en een eerlijke prijs. Qua voorbereiding: vaststellen welke leefruimtes je wilt hebben en hoe groot ze ongeveer moeten worden. Verder helpt het natuurlijk als je een ruime set aan voorbeelden hebt van huizen met de stijl / stijlelementen die je ook graag terug wilt zien. Succes!
[ Voor 29% gewijzigd door onne op 01-09-2020 15:57 ]
Ja daar heb je zeker een punt en als het allemaal te lastig blijkt op voorhand gaan we dat ook zeker doen. Het blijft toch een kwestie van smaak en wens. We bekijken Funda dagelijks en niks spreekt ons aan met bouwjaar na 2010. Van mij persoonlijk is het altijd een droom geweest om zelf een huis te ontwerpen geheel naar eigen smaak die dan in vervulling gaat.onne schreef op dinsdag 1 september 2020 @ 15:51:
@Gkhn ik sluit me aan bij de andere reacties vwb budget. EUR 550/m3 lijkt vrij gemiddeld op het moment (betalen wij overigens ook).
Uit interesse: ik ben wel benieuwd waarom je graag zelf wilt bouwen?
Gegeven de locatie in Oost NL heb je feitelijk een heel mooi budget om een fantastische bestaande woning op een heel ruim kavel te kopen. Waarom dan kiezen voor zelfbouw op een piepklein kaveltje waarbij je gegeven de huidige bouwkosten ook flink zal moeten toegeven op je wensen...?
En antwoord op je vraag vwb de architect: wij hebben gekeken of de stijl van het werk ons aansprak, de persoonlijke klik en een eerlijke prijs. Qua voorbereiding: vaststellen welke leefruimtes je wilt hebben en hoe groot ze ongeveer moeten worden. Verder helpt het natuurlijk als je een ruime set aan voorbeelden hebt van huizen met de stijl / stijlelementen die je ook graag terug wilt zien. Succes!
We zijn nog jong (28) en ik zie het ergens ook als goede ervaring om op een latere leeftijd nog ruimer te bouwen op een ruimere kavel die meer secluded is.
Dat maakt wel nieuwsgierig. Wat vind je wel mooi om te bouwen?Gkhn schreef op dinsdag 1 september 2020 @ 19:10:
[...]
Ja daar heb je zeker een punt en als het allemaal te lastig blijkt op voorhand gaan we dat ook zeker doen. Het blijft toch een kwestie van smaak en wens. We bekijken Funda dagelijks en niks spreekt ons aan met bouwjaar na 2010. Van mij persoonlijk is het altijd een droom geweest om zelf een huis te ontwerpen geheel naar eigen smaak die dan in vervulling gaat.
We zijn nog jong (28) en ik zie het ergens ook als goede ervaring om op een latere leeftijd nog ruimer te bouwen op een ruimere kavel die meer secluded is.
Mag je vrijstaand bouwen op een kavel van 134m²Gkhn schreef op dinsdag 1 september 2020 @ 10:55:
Hallo allen. Goed topic. Heb al veel doorgelezen en zodoende een goed beeld gekregen hoe een nieuwbouwproces verloopt.
Ook wij willen (voor het eerst) een woning laten bouwen.
We hebben al een optie op een kavel in Enschede. Vanavond komt er een architect langs voor een eerste gesprek. Wat moeten we zeker bespreken? We hebben zelf al het volgende bedacht:
Onze lay-out/concept (kubusvorm, plat dak, 4 woonlagen incl. dakterras, veel glas op voor en achtergevel, inpandig garage, open woon-keuken en CLT bouw).
Zo min mogelijk keuze met oog op prijs/duurzaamheid. (We hoeven geen gouden krukken of zware deuren. Keep It Stupid Simple)
We willen een goede begeleiding in het gehele traject en advies in geschikte bouwmaterialen: fundering, heipalen, gevelbekleding, kozijnen, deuren, trappen.
Technische eisen vanuit gemeente moet gecontroleerd en voldaan worden.
De woning moet een EPC hebben van <0. Luchtdicht. Energieneutraal of zelfs energiewinnend/leverend ipv kostend.
Financiering = +-450k
Kavelopp = 134m2 = 80k
Beoogde woonoppervlak +- 75m2 (x4).
Lees graag jullie tips, tops en nots.
Edit: dat moet ergens een typfout zijn toch? 134m² voor 80K is € 597 per m² in Enschede??
[ Voor 3% gewijzigd door Leandra66 op 01-09-2020 20:50 ]
Why be difficult when, with a bit of effort, you could be impossible?
Je schrijft dat je in CLT gaat bouwen. Dan is het prettig als je een architect hebt met aantoonbare ervaring met massief hout, die kan het maximale uit het materiaal halen qua ontwerp en bouwkwaliteit. En hij of zij kent ook de houtconstructeurs en leveranciers op dit gebied. Ervaring met ontwerp voor particulieren zou ik ook op selecteren, dat is toch anders dan zo goedkoop mogelijk een serie sociale woningbouw neerzetten.Gkhn schreef op dinsdag 1 september 2020 @ 10:55:
Hallo allen. Goed topic. Heb al veel doorgelezen en zodoende een goed beeld gekregen hoe een nieuwbouwproces verloopt.
Ook wij willen (voor het eerst) een woning laten bouwen.
We hebben al een optie op een kavel in Enschede. Vanavond komt er een architect langs voor een eerste gesprek. Wat moeten we zeker bespreken? We hebben zelf al het volgende bedacht:
Onze lay-out/concept (kubusvorm, plat dak, 4 woonlagen incl. dakterras, veel glas op voor en achtergevel, inpandig garage, open woon-keuken en CLT bouw).
Zo min mogelijk keuze met oog op prijs/duurzaamheid. (We hoeven geen gouden krukken of zware deuren. Keep It Stupid Simple)
We willen een goede begeleiding in het gehele traject en advies in geschikte bouwmaterialen: fundering, heipalen, gevelbekleding, kozijnen, deuren, trappen.
Technische eisen vanuit gemeente moet gecontroleerd en voldaan worden.
De woning moet een EPC hebben van <0. Luchtdicht. Energieneutraal of zelfs energiewinnend/leverend ipv kostend.
Financiering = +-450k
Kavelopp = 134m2 = 80k
Beoogde woonoppervlak +- 75m2 (x4).
Lees graag jullie tips, tops en nots.
Wat vorige posters ook aangaven: niets is onmogelijk maar met dit oppervlak is je budget optimistisch. Zeker als je daar ook nog een deel afbouw mee moet financieren. Ik schat dat alleen het casco al snel richting de 100k+ gaat.
Ben ook met een CLT / luchtdicht / plushuis project bezig en ik denk dat je er kwa kosten heel ver naast zit als ik kijk naar de calculaties die ik nu heb. Ik hoop dat ik ongelijk heb, want dan is er voor mijn budget ook nog hoopGkhn schreef op dinsdag 1 september 2020 @ 10:55:
Hallo allen. Goed topic. Heb al veel doorgelezen en zodoende een goed beeld gekregen hoe een nieuwbouwproces verloopt.
Ook wij willen (voor het eerst) een woning laten bouwen.
We hebben al een optie op een kavel in Enschede. Vanavond komt er een architect langs voor een eerste gesprek. Wat moeten we zeker bespreken? We hebben zelf al het volgende bedacht:
Onze lay-out/concept (kubusvorm, plat dak, 4 woonlagen incl. dakterras, veel glas op voor en achtergevel, inpandig garage, open woon-keuken en CLT bouw).
Zo min mogelijk keuze met oog op prijs/duurzaamheid. (We hoeven geen gouden krukken of zware deuren. Keep It Stupid Simple)
We willen een goede begeleiding in het gehele traject en advies in geschikte bouwmaterialen: fundering, heipalen, gevelbekleding, kozijnen, deuren, trappen.
Technische eisen vanuit gemeente moet gecontroleerd en voldaan worden.
De woning moet een EPC hebben van <0. Luchtdicht. Energieneutraal of zelfs energiewinnend/leverend ipv kostend.
Financiering = +-450k
Kavelopp = 134m2 = 80k
Beoogde woonoppervlak +- 75m2 (x4).
Lees graag jullie tips, tops en nots.
Was advocaat maar vindt het juridische nog steeds leuk
Volgens mij ga je dit nooit redden voor dat geld. Die 450k heb je al minimaal nodig voor de bouwkosten. De vraag is überhaupt of je financiering gaat krijgen. Zo'n grote woning op zo'n klein kavel is buiten verhouding en waarschijnlijk onverkoopbaar voor de kostprijs. De bank zal daar ook naar kijken.Gkhn schreef op dinsdag 1 september 2020 @ 10:55:
Financiering = +-450k
Kavelopp = 134m2 = 80k
Beoogde woonoppervlak +- 75m2 (x4).
Lees graag jullie tips, tops en nots.
In de bewoonde wereld is dat heel goed verkoopbaar.deejeebv schreef op woensdag 2 september 2020 @ 08:06:
[...]
Volgens mij ga je dit nooit redden voor dat geld. Die 450k heb je al minimaal nodig voor de bouwkosten. De vraag is überhaupt of je financiering gaat krijgen. Zo'n grote woning op zo'n klein kavel is buiten verhouding en waarschijnlijk onverkoopbaar voor de kostprijs. De bank zal daar ook naar kijken.
Het gaat hier om Enschede, dat is iets ander dan de Randstad.xminator schreef op woensdag 2 september 2020 @ 10:55:
[...]
In de bewoonde wereld is dat heel goed verkoopbaar.
Kijk eens wat er in Enschede met deze perceel afmetingen te koop staat: https://www.funda.nl/koop...ceelopp/sorteer-prijs-af/
Bestemmingsplan ook bekeken? Altijd handig voordat je een kavel gaat kopenGkhn schreef op dinsdag 1 september 2020 @ 10:55:
Hallo allen. Goed topic. Heb al veel doorgelezen en zodoende een goed beeld gekregen hoe een nieuwbouwproces verloopt.
Ook wij willen (voor het eerst) een woning laten bouwen.
We hebben al een optie op een kavel in Enschede. Vanavond komt er een architect langs voor een eerste gesprek. Wat moeten we zeker bespreken? We hebben zelf al het volgende bedacht:
Onze lay-out/concept (kubusvorm, plat dak, 4 woonlagen incl. dakterras, veel glas op voor en achtergevel, inpandig garage, open woon-keuken en CLT bouw).
Zo min mogelijk keuze met oog op prijs/duurzaamheid. (We hoeven geen gouden krukken of zware deuren. Keep It Stupid Simple)
We willen een goede begeleiding in het gehele traject en advies in geschikte bouwmaterialen: fundering, heipalen, gevelbekleding, kozijnen, deuren, trappen.
Technische eisen vanuit gemeente moet gecontroleerd en voldaan worden.
De woning moet een EPC hebben van <0. Luchtdicht. Energieneutraal of zelfs energiewinnend/leverend ipv kostend.
Financiering = +-450k
Kavelopp = 134m2 = 80k
Beoogde woonoppervlak +- 75m2 (x4).
Lees graag jullie tips, tops en nots.
En hoe krijg je die woning van 75m2 op een kavel van 134m2? Bouwvlak bepaald?
't Vaneker in Enschede is een mooi nieuw plan met groen en hele mooie vrijstaande woningen. Zijn nog kavels vrij. Kosten +/- 350 de M2. Heb je een kavel van +/-900m2. Gemiddelde woning (800m3) die daar gebouwd wordt kost 400k. Zit je totaal op 715k.
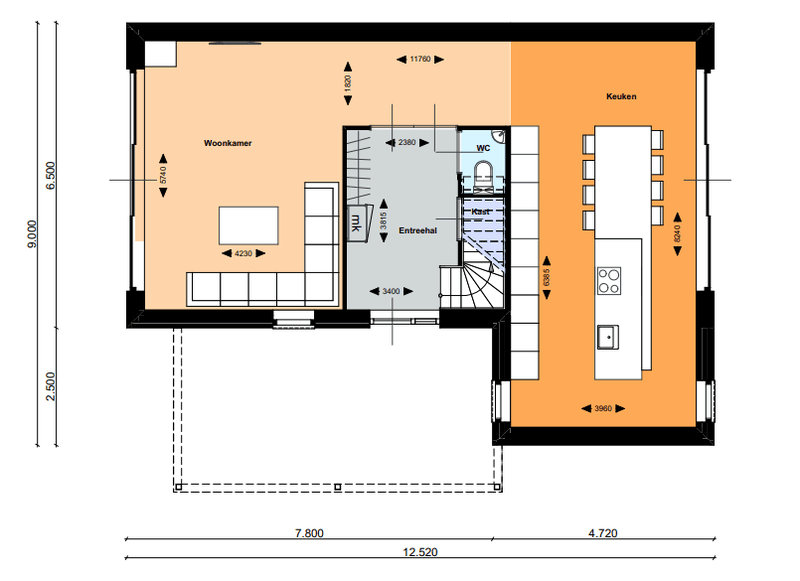
Hoi allemaal,
Hierbij een aangepast schetsontwerp. Ben benieuwd wat jullie hiervan vinden. Een specifiek punt waar wij al aan denken is om de twee slaapkamers op de eerste verdieping samen te voegen tot een slaapkamer.
/f/image/6ksjGQsmuBrxSeia0r0M1nlm.png?f=fotoalbum_large)
/f/image/qANbSjymxbMGSwjSjHFgVSpc.png?f=fotoalbum_large)
Hierbij een aangepast schetsontwerp. Ben benieuwd wat jullie hiervan vinden. Een specifiek punt waar wij al aan denken is om de twee slaapkamers op de eerste verdieping samen te voegen tot een slaapkamer.
/f/image/6ksjGQsmuBrxSeia0r0M1nlm.png?f=fotoalbum_large)
/f/image/qANbSjymxbMGSwjSjHFgVSpc.png?f=fotoalbum_large)
/f/image/4IBF7SZpL05UYVRUB4x3pzzy.png?f=fotoalbum_large)
[ Voor 27% gewijzigd door najim_el op 02-09-2020 21:35 . Reden: volgorde gewijzigd ]
Mwahh, dit staat te koop in Eindhoven: 1.680 m³ op een kavel van 549 m². De juiste architect krijgt 't wel voor elkaarbaronruud schreef op woensdag 2 september 2020 @ 11:10:
[...]
En hoe krijg je die woning van 75m2 op een kavel van 134m2? Bouwvlak bepaald?
:strip_exif()/f/image/pqWBBgZNrRsekkpz6loWx4sY.jpg?f=fotoalbum_large)
Funda
Mijn huis is slimmer dan ik...
Wat een gedrocht.Conrado schreef op woensdag 2 september 2020 @ 21:40:
[...]
Mwahh, dit staat te koop in Eindhoven: 1.680 m³ op een kavel van 549 m². De juiste architect krijgt 't wel voor elkaar![]()
[Afbeelding]
Funda
Sja, onze buren aan één zijde hebben een grote voor en achtertuin maar zijn nagenoeg nooit buiten, die hadden ook net zo goed een stadstuintje kunnen hebben. Het is maar wat je prefereert. Ik zou liever in 300m3 wonen op 20.000m2 grond dan in zoiets als in die situatie hierboven, bah
[ Voor 32% gewijzigd door Stefke op 03-09-2020 08:07 ]
De architect gesproken en was moedgevend. Hij had dit kavel al eens eerder voor anderen behandeld. Iig had hij al een aantal lopende projecten in CLT en een stagiaire onderzoek laten doen naar bouwen met CLT. Allemaal toevallig of verkooptrucje? Idk 
We mogen max 80% bouwen op de kavel. Hier ons ontwerp wat we mee hebben gegeven aan de architect. De vraag aan hem was om zoveel mogelijk privétuin te creëren. Te klein is voor de vrouw absoluut een no-go dus is spannend
.
Het ontwerp is gebaseerd op onze huidige woning waarbij de woonverdieping boven is en garage inpandig. Dat bevalt ons zeer goed en gezien de kleine kavel ideaal.
Architect vond het een uitdaging om het voor 450k voormekaar te krijgen, vooral omdat het installatietechnisch veel eisen heeft (gemeente stelt EPC <0) maar ging zijn best doen. Let's see.
We mogen max 80% bouwen op de kavel. Hier ons ontwerp wat we mee hebben gegeven aan de architect. De vraag aan hem was om zoveel mogelijk privétuin te creëren. Te klein is voor de vrouw absoluut een no-go dus is spannend
Members only:
Alleen zichtbaar voor ingelogde gebruikers.
Inloggen
Het ontwerp is gebaseerd op onze huidige woning waarbij de woonverdieping boven is en garage inpandig. Dat bevalt ons zeer goed en gezien de kleine kavel ideaal.
Architect vond het een uitdaging om het voor 450k voormekaar te krijgen, vooral omdat het installatietechnisch veel eisen heeft (gemeente stelt EPC <0) maar ging zijn best doen. Let's see.
[ Voor 18% gewijzigd door Gkhn op 03-09-2020 09:11 ]
@baronruud 't Vaneker kavels vanaf 3t en allemaal al verkocht of onder optie. 1M gaan we zeker niet krijgen aan hypotheek.
[ Voor 4% gewijzigd door Gkhn op 03-09-2020 09:07 ]
Ja, Vaneker was een algemeen voorbeeld.Gkhn schreef op donderdag 3 september 2020 @ 08:59:
De architect gesproken en was moedgevend. Hij had dit kavel al eens eerder voor anderen behandeld. Iig had hij al een aantal lopende projecten in CLT en een stagiaire onderzoek laten doen naar bouwen met CLT. Allemaal toevallig of verkooptrucje? Idk
We mogen max 80% bouwen op de kavel. Hier ons ontwerp wat we mee hebben gegeven aan de architect. De vraag aan hem was om zoveel mogelijk privétuin te creëren. Te klein is voor de vrouw absoluut een no-go dus is spannend.
***members only***
Het ontwerp is gebaseerd op onze huidige woning waarbij de woonverdieping boven is en garage inpandig. Dat bevalt ons zeer goed en gezien de kleine kavel ideaal.
Architect vond het een uitdaging om het voor 450k voormekaar te krijgen, vooral omdat het installatietechnisch veel eisen heeft (gemeente stelt EPC <0) maar ging zijn best doen. Let's see.
Maar, heb je ook ruimtelijkeplannen.nl gecheckt of dit mag?
Neem de ingeschatte prijzen van de architect met een flinke korrel zout. Er is in dit topic al meerdere malen naar voren gekomen dat de aannemerprijzen vaak een stuk hoger liggen, m.a.w. de architect is vaak wat optimistisch met inschatting van de kosten.Gkhn schreef op donderdag 3 september 2020 @ 08:59:
Architect vond het een uitdaging om het voor 450k voormekaar te krijgen, vooral omdat het installatietechnisch veel eisen heeft (gemeente stelt EPC <0) maar ging zijn best doen. Let's see.
Zover mijn kennis reikt, ja. De architect zal ook gaan waarborgen dat alles past binnen gestelde eisen van het syteembaronruud schreef op donderdag 3 september 2020 @ 09:22:
[...]
Ja, Vaneker was een algemeen voorbeeld.
Maar, heb je ook ruimtelijkeplannen.nl gecheckt of dit mag?
Yes gaan we zeker doen. We gaan ook offertes opvragen van meerdere architecten zodat het beeld duidelijker wordt. Iig zou met CLT evt kans op meerwerk kosten minder zijn volgens de architect omdat alles prefab en als lego inelkaar gezet wordt. Het ontwerp is dus erg van belang maar goed, gezien onze kubus en recht toe recht aan ontwerp verwacht ik persoonlijk ook weinig variatieDaan schreef op donderdag 3 september 2020 @ 09:34:
[...]
Neem de ingeschatte prijzen van de architect met een flinke korrel zout. Er is in dit topic al meerdere malen naar voren gekomen dat de aannemerprijzen vaak een stuk hoger liggen, m.a.w. de architect is vaak wat optimistisch met inschatting van de kosten.
Ik zou liever een toilet hebben op de woonverdieping dan op de begane grond eerlijk gezegd maar ik vermoed dat jullie daar wel over nagedacht hebben en dat dit past bij jullie wensen?Gkhn schreef op donderdag 3 september 2020 @ 08:59:
De architect gesproken en was moedgevend. Hij had dit kavel al eens eerder voor anderen behandeld. Iig had hij al een aantal lopende projecten in CLT en een stagiaire onderzoek laten doen naar bouwen met CLT. Allemaal toevallig of verkooptrucje? Idk
We mogen max 80% bouwen op de kavel. Hier ons ontwerp wat we mee hebben gegeven aan de architect. De vraag aan hem was om zoveel mogelijk privétuin te creëren. Te klein is voor de vrouw absoluut een no-go dus is spannend.
***members only***
Het ontwerp is gebaseerd op onze huidige woning waarbij de woonverdieping boven is en garage inpandig. Dat bevalt ons zeer goed en gezien de kleine kavel ideaal.
Architect vond het een uitdaging om het voor 450k voormekaar te krijgen, vooral omdat het installatietechnisch veel eisen heeft (gemeente stelt EPC <0) maar ging zijn best doen. Let's see.
Jep dat hebben we nu ook zo. Bevalt perfect. Blijft de stank beneden en een kleine workout als je naar de wc moetAdmiral Freebee schreef op donderdag 3 september 2020 @ 09:49:
[...]
Ik zou liever een toilet hebben op de woonverdieping dan op de begane grond eerlijk gezegd maar ik vermoed dat jullie daar wel over nagedacht hebben en dat dit past bij jullie wensen?
Grolsch schreef op donderdag 9 juli 2020 @ 23:22:
Wat een hoge grondprijzen zeg, dan is het toch niet meer grappig om een huis te bouwen.....
Hier (Buitengebied Twente) destijds 1750m2 gekocht voor 140K (80/m2) en toevallig vanavond bij de buurman geweest.
Zowel wij als de buurman rechts naast mij willen een nieuwe schuur/garage bouwen.
Nu loopt ons kavel wat scheef van achteren.
Beide percelen zijn 30 meter breed (totaal dus 60 meters).
Wat we graag wilden is de achterkant gelijk / recht / haaks trekken.
De buurman rechts naast mijn buurman bezit het weiland achter onze grond, en onder het genot van een LPG'tje (Lekker Potje Grolsch) eens gevraagd of hij die punt van in totaal zo'n 400m2 niet wil verkopen.
Situatie, ik woon dus rechts en "krijg" dus de grootste punt (zo'n 275m2)
[Afbeelding]
Hij vond het geen probleem, scheelde hem maaien, landbouwgrond doet zo'n 60~80K de hectare, dus 6 á 8 euro m2, dus 275*8, doe eens wild, 10 euro / m2, dan hebben we het over nog geen 3K![]()
Wat mij betreft een No-Brainer, ik ben aanzienlijk meer geld kwijt aan randzaken zoals kadaster, notaris, keerwanden, grondwerk, hek verzetten etc.
Members only:
Alleen zichtbaar voor ingelogde gebruikers.
Inloggen
Het is natuurlijk wel tuingrond hé, mag je niet vergelijken met bouwgrond, daar heb ik destijds € 80,00 /m2 voor betaald (1750m2)Gkhn schreef op donderdag 3 september 2020 @ 13:49:
[...]
20/m2 buitengebied vs 600/m2 hartje enschede. Wat een verschil hej

Oh dan niks gezegd (Grolsch schreef op donderdag 3 september 2020 @ 14:06:
[...]
Het is natuurlijk wel tuingrond hé, mag je niet vergelijken met bouwgrond, daar heb ik destijds € 80,00 /m2 voor betaald (1750m2)
Ik wil me wat verdiepen in de mogelijkheden in technische installaties om die EPC<0 te behalen. Is dat een geval van warmtepomp+zonnepanelen+luchtdicht+gasloos+isolatie buitenmuren = EPC<0 of komt er meer bij kijken?
Waarom wil je EPC <0Gkhn schreef op donderdag 3 september 2020 @ 14:09:
[...]
Oh dan niks gezegd ()
Ik wil me wat verdiepen in de mogelijkheden in technische installaties om die EPC<0 te behalen. Is dat een geval van warmtepomp+zonnepanelen+luchtdicht+gasloos+isolatie buitenmuren = EPC<0 of komt er meer bij kijken?
EPC is sowieso achterhaald, en naar mijn idee ook een achterlijk systeem bedacht voor commerciële belangen, tegenwoordig hebben ze het over BENG, en dat steekt beter in elkaar.
Ik zou gaan voor energierekening <0 tegen zo min mogelijk kosten.
Bij mij resulteerde dat in EPC 0,39, voldoende PV + WP en daardoor gasloos en bouwen conform de norm, maar zeker niet luchtdicht.
Totaalverbruik afgelopen energieperiode = +- 1000kWh wat resulteert in een jaarrekening van -/- € 80,00.
Khad al 20 p/m voorschot betaald, dus krijg nu € 320,00 terug
Wat mij betreft the most bang for the buck.
[ Voor 13% gewijzigd door Grolsch op 03-09-2020 14:21 ]
Eis vd gemeente. Vanaf 2021 moet alle nieuwbouw EPC<0 hebben.Grolsch schreef op donderdag 3 september 2020 @ 14:15:
[...]
Waarom wil je EPC <0Krijg je daar een bonus voor?
EPC is sowieso achterhaald, en naar mijn idee ook een achterlijk systeem bedacht voor commerciële belangen, tegenwoordig hebben ze het over BENG, en dat steekt beter in elkaar.
Ik zou gaan voor energierekening <0 tegen zo min mogelijk kosten.
Bij mij resulteerde dat in EPC 0,39, voldoende PV + WP en daardoor gasloos en bouwen conform de norm, maar zeker niet luchtdicht.
Totaalverbruik afgelopen energieperiode = +- 1000kWh wat resulteert in een jaarrekening van -/- € 80,00.
Khad al 20 p/m voorschot betaald, dus krijg nu € 320,00 terug
Wat mij betreft the most bang for the buck.
@Gkhn Heb je een kavel bij de melkhal? Dat wordt wel mooi 
Ik denk wel echt dat je je budget of eisen moet bijstellen. Je gaat nu echt niet 700+ kuub halen voor 350k. Als het je wel lukt dan gefeliciteerd, want dan heb je een mooi rendement gehaald. Je kan dat huis waarschijnlijk direct doorverkopen voor 3000 euro per m2.
Ik denk wel echt dat je je budget of eisen moet bijstellen. Je gaat nu echt niet 700+ kuub halen voor 350k. Als het je wel lukt dan gefeliciteerd, want dan heb je een mooi rendement gehaald. Je kan dat huis waarschijnlijk direct doorverkopen voor 3000 euro per m2.
Wij hebben een EPC van -0,01. Wij hebben echter nooit gestuurd op een EPC, maar meer op het geheel van de woning. Luchtdicht + goede isolatie zou bijvoorbeeld kunnen resulteren in een woning zonder warmtepomp voor verwarming omdat je veel minder warmte hoeft toe te voegen aan je woning. Waarschijnlijk is je EPC dan laag, maar het gaat uiteindelijk om je wooncomfort.Gkhn schreef op donderdag 3 september 2020 @ 14:09:
[...]
Oh dan niks gezegd ()
Ik wil me wat verdiepen in de mogelijkheden in technische installaties om die EPC<0 te behalen. Is dat een geval van warmtepomp+zonnepanelen+luchtdicht+gasloos+isolatie buitenmuren = EPC<0 of komt er meer bij kijken?
Een mooi voorbeeld: je EPC kun je enorm beïnvloeden met een paar extra zonnepanelen of een douche wtw. Vaak worden die toegevoegd aan een woning die op EPC vlak slecht presteert om zo de EPC te verlagen. Zodoende zegt een lage EPC weinig over hoe je huis écht in elkaar steekt.
Als je een super zuinig huis wilt zou ik aanraden iets te lezen over passiefhuizen. En laat vervolgens je ontwerp doorrekenen door een energieexpert om de beste balans te vinden tussen je schil (isolatie, glas, zonwering, luchtdichtheid) en technische installatie. Wij hebben dat niet gedaan, maar ik heb nu soms het gevoel dat we dubbel betalen voor een dure schil en veel dure installaties.
Janninkkwartier. Melkhal waren alleen nog de grootste kavels á 2-3t beschikbaar helaas.Greencap schreef op donderdag 3 september 2020 @ 14:26:
@Gkhn Heb je een kavel bij de melkhal? Dat wordt wel mooi
Ik denk wel echt dat je je budget of eisen moet bijstellen. Je gaat nu echt niet 700+ kuub halen voor 350k. Als het je wel lukt dan gefeliciteerd, want dan heb je een mooi rendement gehaald. Je kan dat huis waarschijnlijk direct doorverkopen voor 3000 euro per m2.
De bouw is bij ons ondertussen vol van start. Tijd voor een update:
Members only:
Alleen zichtbaar voor ingelogde gebruikers.
Inloggen
Ook mooi, ik twijfelde nog wel om daar naar toe te gaan. Qua prijzen kan je denk ik wel uit gaan van https://www.janninkcourtyard.nl/. De site is nu offline, maar de prijzen daar waren zo'n 600k voor huizen van ~200m2. Dus een stuk duurder voor een kleiner huis.Gkhn schreef op donderdag 3 september 2020 @ 14:33:
[...]
Janninkkwartier. Melkhal waren alleen nog de grootste kavels á 2-3t beschikbaar helaas.
Heh wat was dat dan? Enschede is echt booming. Ik wil dit huis er ook bouwen met oog op verkoop over 20-30 jaar en dan met de winst een villa met zwembad ergens gaan bouwenGreencap schreef op donderdag 3 september 2020 @ 14:43:
[...]
Ook mooi, ik twijfelde nog wel om daar naar toe te gaan. Qua prijzen kan je denk ik wel uit gaan van https://www.janninkcourtyard.nl/. De site is nu offline, maar de prijzen daar waren zo'n 600k voor huizen van ~200m2. Dus een stuk duurder voor een kleiner huis.
Dat is vlak bij jouw kavel en eigenlijk hetzelfde plan. Ze hadden een mooie tuin ontworpen (vandaar de naam jannink courtyard) met daar omheen projectbouw van 550-750k (casco) per huis (200-250m2 en kavels 100-150m2). Wel wat te duur (dat project is niet voor niets gereset), maar het geeft wel aan dat een huis van 270m2 voor 450k all-in bouwen lastig gaat worden.
Mooi om de vorderingen te zien, en een prachtige locatie zo te zien!EdwinV schreef op donderdag 3 september 2020 @ 14:42:
De bouw is bij ons ondertussen vol van start. Tijd voor een update:
***members only***
Waar in het land is dit ergens
Het mooiste stuk van het land: TwenteGrolsch schreef op donderdag 3 september 2020 @ 15:04:
[...]
Mooi om de vorderingen te zien, en een prachtige locatie zo te zien!
Waar in het land is dit ergens
EPC is er dan niet meer (planning nu). Dan is het BENG.Gkhn schreef op donderdag 3 september 2020 @ 14:25:
[...]
Eis vd gemeente. Vanaf 2021 moet alle nieuwbouw EPC<0 hebben.
EdwinV schreef op donderdag 3 september 2020 @ 15:05:
[...]
Het mooiste stuk van het land: TwenteEnschede om precies te zijn.
Is het daar een plan waar meer woningen gaan komen, of blijf je de enigste op dat plekje, want ik kan geen buren ontdekken op je foto's
En daarom ook de BENG volgend jaar.EdwinV schreef op donderdag 3 september 2020 @ 14:28:
[...]
Wij hebben een EPC van -0,01. Wij hebben echter nooit gestuurd op een EPC, maar meer op het geheel van de woning. Luchtdicht + goede isolatie zou bijvoorbeeld kunnen resulteren in een woning zonder warmtepomp voor verwarming omdat je veel minder warmte hoeft toe te voegen aan je woning. Waarschijnlijk is je EPC dan laag, maar het gaat uiteindelijk om je wooncomfort.
Een mooi voorbeeld: je EPC kun je enorm beïnvloeden met een paar extra zonnepanelen of een douche wtw. Vaak worden die toegevoegd aan een woning die op EPC vlak slecht presteert om zo de EPC te verlagen. Zodoende zegt een lage EPC weinig over hoe je huis écht in elkaar steekt.
We krijgen nog buren. De kavels zijn hier gelukkig ruim opgezet (minimaal 1900m2), dus erg veel last zullen we er niet van krijgen.Grolsch schreef op donderdag 3 september 2020 @ 15:10:
[...]
![]()
Ik had niet anders verwacht, waar is het anders zo mooi
![]()
![]()
Is het daar een plan waar meer woningen gaan komen, of blijf je de enigste op dat plekje, want ik kan geen buren ontdekken op je foto's
Members only:
Alleen zichtbaar voor ingelogde gebruikers.
Inloggen
Ik mis een technische ruimte en een bijkeuken.najim_el schreef op woensdag 2 september 2020 @ 21:34:
Hoi allemaal,
Hierbij een aangepast schetsontwerp. Ben benieuwd wat jullie hiervan vinden. Een specifiek punt waar wij al aan denken is om de twee slaapkamers op de eerste verdieping samen te voegen tot een slaapkamer.
[Afbeelding]
[Afbeelding]
[Afbeelding]
107EdwinV schreef op donderdag 3 september 2020 @ 15:16:
[...]
We krijgen nog buren. De kavels zijn hier gelukkig ruim opgezet (minimaal 1900m2), dus erg veel last zullen we er niet van krijgen.
***members only***
-
[ Voor 100% gewijzigd door Gkhn op 03-09-2020 15:23 ]
Dit topic is gesloten.
Let op:
Duurzame installaties en domotica hebben eigen fora met veel meer diepgang over dat onderwerp. Dit topic gaat over de perikelen omtrent het bouwen van een eigen woning.
Voor projectmatige woningbouw: Het (projectmatige) nieuwbouwwoning topic. Je tuin is natuurlijk ook iets wat moet gebeuren na de bouw. Zie Het grote tuinen, balkons en plantentopic
Duurzame installaties en domotica hebben eigen fora met veel meer diepgang over dat onderwerp. Dit topic gaat over de perikelen omtrent het bouwen van een eigen woning.
Voor projectmatige woningbouw: Het (projectmatige) nieuwbouwwoning topic. Je tuin is natuurlijk ook iets wat moet gebeuren na de bouw. Zie Het grote tuinen, balkons en plantentopic