Black Friday = Pricewatch Bekijk onze selectie van de beste Black Friday-deals en voorkom een miskoop.

Het (projectmatige) nieuwbouwwoning topic - Deel 1 Overzicht Volgende deel Laatste deel

Dit topic is onderdeel van een reeks. Ga naar het meest recente topic in deze reeks.

Pagina: 1 ... 62 ... 102 Laatste
Acties:
  • 1.038.636 views

  • frumper
  • Registratie: Februari 2008
  • Laatst online: 12-11 18:46
Señor Sjon schreef op woensdag 2 mei 2018 @ 10:46:
Ik heb beiden gehad en deuren ftw. Een schuifpui is altijd maar een halve opening t.o.v. de deuren, inbraakgevoeliger en je gebruikt hem veel minder snel als loopdeur omdat je telkens moet schuiven, inbraakbalk weghalen, etc. Nee, ik heb nu weer terrasdeuren en met een windhaak blijft je deur gewoon op zijn plek.
klopt, maar als je tuin maar 10 meter diep is, waar je 2.40 van kwijt bent met uitbouw, en je achteraan een schuurtje hebt blijft er effectief maar héél weinig ruimte over voor de tuinset als je openslaande deuren neemt.

Wat dat betreft snap ik de keuze voor een schuifpui heel goed... zelf vond ik het vooral de meerprijs die ze bij ons vroegen voor de openslaande deuren te zot voor woorden. imho zou ik dat zelfs beter achteraf kunnen laten doen, kostentechnisch gezien.

Life is what happens while you're busy making other plans


  • Snowhite0901
  • Registratie: Juni 2012
  • Laatst online: 10:12
Señor Sjon schreef op woensdag 2 mei 2018 @ 10:46:
Ik heb beiden gehad en deuren ftw. Een schuifpui is altijd maar een halve opening t.o.v. de deuren, inbraakgevoeliger en je gebruikt hem veel minder snel als loopdeur omdat je telkens moet schuiven, inbraakbalk weghalen, etc. Nee, ik heb nu weer terrasdeuren en met een windhaak blijft je deur gewoon op zijn plek.
Ik heb het pas uitgezocht maar dit schijnt achterhaald te zijn:
- zelfde inbraakklasse tegenwoordig en geen balk meer.
- als je een driedelige schuifpui neemt schuift het licht(er) en heb je een groter oppervlak dat open kan. (wij hadden twee hoge ramen naast de openslaande deuren die dan dus bij de schuifpui getrokken werden waardoor er effectief meer open kon).

daarnaast kan je een schuifpui ook op een kiertje zetten...dat gaat lastiger met openslaande deuren.

Dit gezegd hebbende...wij vonden het een (te) forse meerprijs tov gewone openslaande deuren die er bij ons al inzaten.

[ Voor 14% gewijzigd door Snowhite0901 op 02-05-2018 11:25 ]

12 x 385Wp op HD4000SolarEdge zuid 13° pvoutput


  • Señor Sjon
  • Registratie: Juli 2003
  • Laatst online: 10:08
https://www.praxis.nl/ger...aak-met-oog-160mm/5165371

:+

Werkt prima voor een kiertje.

Bij een driedelige pui (duur!) heb je het over 3 meter waarbij circa 1.8 meter openkan (de stijlen staan nog steeds tegen elkaar? Dat is hetzelfde als bij 2 openstaande deuren van 90cm/deur. Dan heb je nog de keuze om met zijlichten meer licht naar binnen te halen. Maar gevelopeningen boven de 2,8 meter hebben een geveldrager nodig, dus zo groot tref je ze niet snel aan.

This is my signature. There are many like it, but this one is mine.


  • ANdrode
  • Registratie: Februari 2003
  • Niet online
Señor Sjon schreef op woensdag 2 mei 2018 @ 11:26:
Bij een driedelige pui (duur!) heb je het over 3 meter waarbij circa 1.8 meter openkan (de stijlen staan nog steeds tegen elkaar? Dat is hetzelfde als bij 2 openstaande deuren van 90cm/deur. Dan heb je nog de keuze om met zijlichten meer licht naar binnen te halen. Maar gevelopeningen boven de 2,8 meter hebben een geveldrager nodig, dus zo groot tref je ze niet snel aan.
Bij een driedelige schuifpui kan je ook één heel brede deur hebben. Het is niet precies hetzelfde als twee deuren.

Je ziet toch wel driedelige schuifpuien – ook van > 4 meter breed. Hoe lost men dat op? T-profiel boven de schuifpui? In ieder geval lastiger dan kozijnen er in en klaar.

  • Señor Sjon
  • Registratie: Juli 2003
  • Laatst online: 10:08
Het gaat om de gevelopening. In de regel is 2800+mm openingsbreedte van het gehele kozijn = geveldrager. Die zijn een stuk duurder dan een simpele latei.
@ANdrode Je hebt toch nog steeds niet meer dan de helft van de opening als vrije doorgang bij een schuifpui. Om dezelfde doorgang als dubbel openslaande deuren te krijgen heb je een pui van minimaal 3,9 meter nodig (rekening houdend met de stijlen).

This is my signature. There are many like it, but this one is mine.


  • The Legend
  • Registratie: Mei 2000
  • Laatst online: 08:30

The Legend

*Plop*

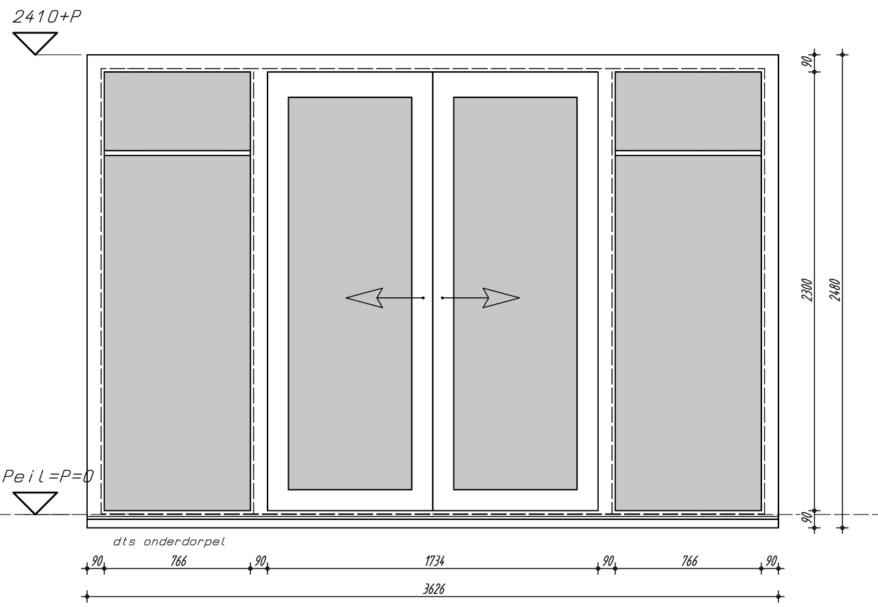
Wij hebben een dubbele schuifpui. Een deur schuift naar rechts en een deur schuift naar links. De opening is dus exact even groot als bij openslaande deuren. Wel de voordelen, maar niet de nadelen dus.

[edit]

Met tekening:

Afbeeldingslocatie: https://tweakers.net/ext/f/FMlCD9iLsr8kJX0HOOdizT2X/full.jpg

Afbeeldingslocatie: https://tweakers.net/ext/f/dsbmnUidTL77jSj7ChoVecLE/full.jpg

Geen idee hoe het zit met benodigde geveldragers overigens.

[ Voor 39% gewijzigd door The Legend op 02-05-2018 14:51 ]

Ik ben toch malle pietje niet!


  • Xtince
  • Registratie: Maart 2015
  • Laatst online: 19-06 07:24
Ik heb zelf straks achter zowel een schuifpui als een losse deur naar de tuin. Wilde de deur behouden en niet 1 grote schuifpui nemen ivm makkelijk in en uit gaan. Ik weet vanmezelf (hoekwoning) dat we vaker achterom lopen dan de voordeur pakken. Wil er dan wel makkelijk in en uit kunnen ipv klote met een schuifpui van buiten (blijft toch lastig vooral voor de kids).

  • Jheroun
  • Registratie: April 2002
  • Niet online
Het is dus vooral persoonlijk en situatie afhankelijk.

Wij hebben nu een schuifpui, niks mis mee, heeft gewoon een 3 punts sluiting met cilinder aan de buitenkant en zit netjes in het midden. In ons nieuwe huis hebben we op twee plekken toegang tot de tuin, die willen we uniform hebben en op een van de plekken past geen schuifpui omdat het te smal is, dus dat wordt twee maal openslaande deuren. We improviseren wel wat haakjes om hem gewoon wel op een kier te kunnen zetten.

  • Wimhaw
  • Registratie: Juni 2009
  • Laatst online: 11:28
@Xtince wij hebben sinds is 2006 een kunststof schuifpui met houtnerf in Ral9001. Ook hoekhuis en we komen zelf bijna altijd via de schuifpui binnen. Breedte is 360cm en bestaat uit 1 vastdeel en 1 schuifdeur. 2 grote glasdelen waarbij je het gevoel hebt dat je in de tuin zit. Beter als deuren, want dat hadden we hiervoor. Het schuif gedeelte heeft een grote hendel, die kleine kinderen makkelijk kunnen openen. Mijn dochters waren destijds 4 en 6 jaar. Totaal geen probleem ermee gehad. Kinderen kunnen veel meer dan dat je denkt. Dus dat zou geen probleem moeten zijn.

Fossielbrandstofloos huis en -vervoer vanaf november 2024


  • asdf25
  • Registratie: November 2016
  • Laatst online: 28-12-2024
TMC schreef op zondag 29 april 2018 @ 21:43:
Ik moet binnenkort de definitieve opties m.b.t. ruwbouw doorgeven. Ik twijfel over een uitbouw. Voor 1.2 m is dit €15.000 euro. Vind dat erg veel geld. Waarom hebben jullie wel of geen uitbouw genomen?
Uitbouw 1.20 was bij mij 8.500€ ex. btw
Uitbouw 2.40 was bij mij 12.500€ ex. btw

Heb gekozen voor 1.20meter uitbouw. Twijfelde ook erg tussen 1.20 en 2.40. In overleg met verkopende makelaar en doordat de buren geen uitbouw van 2.40 namen voor 1.20 gegaan. Krijg een tuin van ongeveer 18meter diep dus had ruimte genoeg, geld was ook niet echt het probleem.

Reden dat ik uiteindelijk niet voor een uitbouw van 2.40 ben gegaan is dat ik het verschil nooit weer krijg bij verkoop. Heb een hoekwoning gekocht VON 205.000€ met ongeveer 150m2 leefoppervlakte over 3verdiepingen. Met uitbouw (10.2k), keuken (10k), meer zonnepanelen (2,5k), carport/ schuur/ overkapping (5k) kom je als gauw tot een waarde richting de 240k. Bij verkoop moet mijn huis dan gaan concurreren met ruime 2^1 woningen hier in de omgeving. Makelaar gaf aan dat een koper dan altijd voor een 2^1 woning gaat als hij de keus heeft. Ik ben nu nog alleen maar als ik straks samenwoon wil ik graag wat voor mezelf bouwen, zie mezelf hier niet langer dan 10jaar wonen.

Moraal van het verhaal; verschilt denk ik per situatie. Als ik een vrouw/ vriendin had en bijvoorbeeld kinderen op de planning stonden had ik 100% zeker de uitbouw van 2,4m1 gekozen i.p.v. 1,2m1.

Succes met je kueze.

  • Sport_Life
  • Registratie: Mei 2002
  • Laatst online: 10:41

Sport_Life

Solvitur ambulando

@asdf25 Zou die 4.000 euro echt dat verschil overbruggen?

[ Voor 9% gewijzigd door Sport_Life op 02-05-2018 22:03 ]

PV: 9360 WP WZW/ONO | Warmtepomp: Toshiba Estia 8kW 3fase | A+++ | Zappi v2.1


  • Xtince
  • Registratie: Maart 2015
  • Laatst online: 19-06 07:24
Wimhaw schreef op woensdag 2 mei 2018 @ 19:14:
@Xtince wij hebben sinds is 2006 een kunststof schuifpui met houtnerf in Ral9001. Ook hoekhuis en we komen zelf bijna altijd via de schuifpui binnen. Breedte is 360cm en bestaat uit 1 vastdeel en 1 schuifdeur. 2 grote glasdelen waarbij je het gevoel hebt dat je in de tuin zit. Beter als deuren, want dat hadden we hiervoor. Het schuif gedeelte heeft een grote hendel, die kleine kinderen makkelijk kunnen openen. Mijn dochters waren destijds 4 en 6 jaar. Totaal geen probleem ermee gehad. Kinderen kunnen veel meer dan dat je denkt. Dus dat zou geen probleem moeten zijn.
Heb nog helaas geen ervaring gehad met een schuifpui achter het huis. Wilde de gok ook niet nemen, want als het tegen zou vallen zou balen zijn als ik geen deur zou hebben. Naar mijn gevoel is dat toch echt praktischer. Ben het overigens absoluut met je eens dat het uiteraard wel mooier staat een grote schuifpui. Daarnaast heb ik de keuken achterin en is het denk ik met boodschappen (wederom) praktischer. Maja risico dus maar niet genomen.

  • Señor Sjon
  • Registratie: Juli 2003
  • Laatst online: 10:08
The Legend schreef op woensdag 2 mei 2018 @ 14:43:
Wij hebben een dubbele schuifpui. Een deur schuift naar rechts en een deur schuift naar links. De opening is dus exact even groot als bij openslaande deuren. Wel de voordelen, maar niet de nadelen dus.

[edit]

Met tekening:

[afbeelding]

[afbeelding]

Geen idee hoe het zit met benodigde geveldragers overigens.
Daar zit een geveldrager boven bij een stenen gevel. Maar precies mijn punt. Voor een opening van twee openslaande deuren, heb je een 2x zo groot element nodig. Lang niet iedereen wil een bijna volledig glazen achtergevel. :)

This is my signature. There are many like it, but this one is mine.


Verwijderd

Bij ons konden we ook voor een schuipui kiezen. Meerprijs: 750 euro. Meest vreemde van alles dat het bouwbedrijf geen tekening of informatie kon laten zien van de schuifpui. Uiteindelijk niet gedaan.

Verwijderd

Verwijderd schreef op donderdag 3 mei 2018 @ 09:15:
Bij ons konden we ook voor een schuipui kiezen. Meerprijs: 750 euro. Meest vreemde van alles dat het bouwbedrijf geen tekening of informatie kon laten zien van de schuifpui. Uiteindelijk niet gedaan.
Vreemd maar ik snap het wel. Op voorhand tijdens de koperskeuze traject heb je als bouwbedrijf geen enkel idee hoe de schuifpui eruit zal zien en zijn de kozijnen nog lang niet aan de beurt qua engineering. Een simpele tekening zou voor de koper misschien wel volstaan maar als bouwer loop je er een risico op als de kozijnen later toch anders uitvallen en de kopers hier over beginnen te mekkeren.

  • asdf25
  • Registratie: November 2016
  • Laatst online: 28-12-2024
Sport_Life schreef op woensdag 2 mei 2018 @ 22:03:
@asdf25 Zou die 4.000 euro echt dat verschil overbruggen?
Het is vooral een optelsom (en, en en) of die 4000€ uiteindelijk het verschil maakt is natuurlijk lastig te zeggen. Woningen naast mij hebben een VON van ik dacht rond de 180/185k. Sommige hebben geen uitbouw. Als hun voor de rest al krap in het budget zitten en bijv. niet zoals mij energiebesparende maatregelen treffen of geen overkapping/ schuur maken dan schat ik dat prijs k.k. 205.000-209.000 wordt. Dit doen in de buurt liggende rijwoningen ook ongeveer. Verschil tussen het huis van de buren en die van mij is dan 30.000€, dat vind ik vrij fors, jij niet?

  • wantsome
  • Registratie: Juli 2012
  • Laatst online: 06-05-2024
Wat is jullie ervaring met stucwerk ipv renovlies? Een stucadoor raad zelfs af om renovlies te gebruiken omdat je daar alle oneffenheden doorheen ziet en je de problemen van scheuren verplaatst. Ze bieden een garantie dat als het gaat scheuren dat ze dat kosteloos opnieuw komen pleisteren. Een gewaagde garantie lijkt me?

Prijs zou uitkomen op €11 per m2 (ex btw). Lijkt me een prima prijs?

  • MadEgg
  • Registratie: Februari 2002
  • Laatst online: 07:17

MadEgg

Tux is lievvv

wantsome schreef op donderdag 3 mei 2018 @ 10:17:
Wat is jullie ervaring met stucwerk ipv renovlies? Een stucadoor raad zelfs af om renovlies te gebruiken omdat je daar alle oneffenheden doorheen ziet en je de problemen van scheuren verplaatst. Ze bieden een garantie dat als het gaat scheuren dat ze dat kosteloos opnieuw komen pleisteren. Een gewaagde garantie lijkt me?

Prijs zou uitkomen op €11 per m2 (ex btw). Lijkt me een prima prijs?
Dat is mij ook aangeraden. Stucwerk was bij de stucadoors die ik gesproken heb ook nog eens goedkoper dan renovlies omdat bij nieuwbouw maar een dun laagje nodig is om de oneffenheden weg te werken. Ik kreeg een prijsaanbod van €13 incl BTW, aardig vergelijkbaar dus.

Aangezien ik sowieso niet echt fan van behang ben wordt het bij ons hoogstwaarschijnlijk stucwerk.

Tja


  • MeltedForest
  • Registratie: Februari 2007
  • Laatst online: 10-10 00:00

MeltedForest

Lenny-t

Zie hier, de schuifpui discussie is weer terug :+
Señor Sjon schreef op woensdag 2 mei 2018 @ 10:46:
Ik heb beiden gehad en deuren ftw. Een schuifpui is altijd maar een halve opening t.o.v. de deuren, inbraakgevoeliger en je gebruikt hem veel minder snel als loopdeur omdat je telkens moet schuiven, inbraakbalk weghalen, etc. Nee, ik heb nu weer terrasdeuren en met een windhaak blijft je deur gewoon op zijn plek.
Je kan ook overdrijven, de schuifpuienmarkt zit ook niet stil. Mijn eerdere reactie:
MeltedForest schreef op dinsdag 2 januari 2018 @ 10:54:
Over de hele schuifpui discussie... wij hebben juist voor de schuifpui gekozen! Lekker veel glas, ruimtebesparend, mooi om te zien en makkelijk om een plisséhor in te zetten (al kost die wel bijna €600, iets om rekening mee te houden).

De schuifpuien van 20 jaar geleden die met één haakje vastzitten en met geweld schuiven bestaan niet meer. De moderne hebben gewoon 3 punts sluiting, je hebt een grote hefboom waarmee je de hele pui op rolletjes zet, en vervolgens kan je hem met twee vingers verplaatsen. Hefboom omhoog en je pui staat muurvast, dus ook op een kiertje luchten is geen probleem. Een balk/pin is absoluut niet meer nodig.
Ook voor kinderen geen probleem. En de kat blijft van de plisséhor af, dat scheelt ook weer :+

[ Voor 3% gewijzigd door MeltedForest op 03-05-2018 10:30 ]


  • Appie76
  • Registratie: Februari 2005
  • Laatst online: 06-11 11:15
Is renovlies o.i.d. trouwens ook toe te passen in een vochtige ruimte? Onze toemomstige badkamer is deels niet betegeld, daar komt stuc of glasvezelbehang, tenzij dat laatste niet kan. Mijn gevoel zegt dat glasvezel geen goed idee is in de badkamer, wie heeft er ervaring mee?

Ik heb geen signature


  • Kubusje
  • Registratie: Oktober 2009
  • Laatst online: 12-11 22:16
wantsome schreef op donderdag 3 mei 2018 @ 10:17:
Wat is jullie ervaring met stucwerk ipv renovlies? Een stucadoor raad zelfs af om renovlies te gebruiken omdat je daar alle oneffenheden doorheen ziet en je de problemen van scheuren verplaatst. Ze bieden een garantie dat als het gaat scheuren dat ze dat kosteloos opnieuw komen pleisteren. Een gewaagde garantie lijkt me?

Prijs zou uitkomen op €11 per m2 (ex btw). Lijkt me een prima prijs?
Ben zelf ook bezig met renovlies, bij welk bedrijf doen ze het voor €11 per m2 als ik vragen mag?

  • righthand
  • Registratie: December 2010
  • Laatst online: 11-11 17:30
wantsome schreef op donderdag 3 mei 2018 @ 10:17:
Wat is jullie ervaring met stucwerk ipv renovlies? Een stucadoor raad zelfs af om renovlies te gebruiken omdat je daar alle oneffenheden doorheen ziet en je de problemen van scheuren verplaatst. Ze bieden een garantie dat als het gaat scheuren dat ze dat kosteloos opnieuw komen pleisteren. Een gewaagde garantie lijkt me?

Prijs zou uitkomen op €11 per m2 (ex btw). Lijkt me een prima prijs?
Dit weekend nog een bevriende projectontwikkelaar over de vloer gehad voor een etentje. Wij worstelen ook met dezelfde afweging en vroegen hem wat verstandig was.

Hij was heel erg duidelijk: tenzij je echt alles volgens top specs gestuced wil hebben (en dan ben je niet klaar met 15 euro de m2) heeft hij ons (nieuwbouw met wanden van kalkzandstenen blokken) stellig geadviseerd om een goede renovliespartij te gaan zoeken.

Dat bevestigde eigenlijk wat ik al dacht. We gaan wel het plafond op de BG laten stuccen, want dat zijn schijnbaar betonplaten met minimale werking.

Trouwens scheuren repareren is 1 ding, maar telkens je kamer weer (gedeeltelijk) uitruimen om te sauzen, daar zie ik geen heil in. Niet met een druk gezinsleven.

Er was ook nog een andere goede overweging die hij meegaf; besef dat stuc kwetsbaar is voor stoten en dergelijke. Dus heb je (kleine) kinderen, dan heb je dikke kans dat je elk jaar weer de hoeken en dergelijke moet repareren.

  • YinYang
  • Registratie: April 2011
  • Laatst online: 11-11 19:24
In onze nieuwbouwwoning wil ik zorgen voor een perfect WiFi bereik. Ik heb daarom deze WiFi AP op het oog: pricewatch: Ubiquiti UniFi AP AC PRO (1-Pack)

Iemand deze al in gebruik? Ik twijfel namelijk of ik er aan 1 genoeg heb, welke ik dan op de overloop aan het plafond wil hangen of dat ik er 2 nodig heb (1 zolder, 1 woonkamer)


En iemand een goedkoop adresje voor inloop-/bouwkasten? Ikea is natuurlijk het goedkoopst, maar je zit dan aan standaard maten vast. Als goedkoopste alternatief komen wij tot nu toe nog uit op: gilokasten.nl/

Ben benieuwd of jullie betere alternatieven hebben :)

  • DeOS
  • Registratie: Oktober 2001
  • Laatst online: 11:00
YinYang schreef op donderdag 3 mei 2018 @ 13:43:
In onze nieuwbouwwoning wil ik zorgen voor een perfect WiFi bereik. Ik heb daarom deze WiFi AP op het oog: pricewatch: Ubiquiti UniFi AP AC PRO (1-Pack)

Iemand deze al in gebruik? Ik twijfel namelijk of ik er aan 1 genoeg heb, welke ik dan op de overloop aan het plafond wil hangen of dat ik er 2 nodig heb (1 zolder, 1 woonkamer)
Ga er maar van uit dat je er 2 nodig hebt. Zelf heb ik ook 1 in de meterkast en 1 op zolder. Ligt er ook aan of je overal perfect 5ghz bereik wilt hebben, dan zul je het met 2 ook niet redden. Verder is een PRO echt overkill voor een thuis situatie en zou ik geld besparen door een lite of LR te kopen.

Repeat after me: I Will Use Google Before Asking Stupid Questions


  • Tassadar32
  • Registratie: September 2006
  • Laatst online: 09-11 16:07
@YinYang wat @DeOS zegt klopt volledig. De pro is echt dikke overkill qua aantal clients, bereik word er niet groter van. Koop beter 3 ac-lites (een per verdieping), of op de begane grond een ac-lr voor meer 2.4 Ghz bereik (handig voor de tuin). Met ubiquity is het uitgangspunt niet om met een enkel AP alles te dekken maar om met meerdere access points goede coverage te creëeren. Werkt in mijn ervaring (2x ac-lr, 1x ac-lite zolder) uitstekend.

27x320Wp LG | 7.4 kW W/W warmtepomp | 2024 Model 3 Performance+FSD | 2019 Zoë 40kWh Star Wars edition


  • Jheroun
  • Registratie: April 2002
  • Niet online
MeltedForest schreef op donderdag 3 mei 2018 @ 10:29:
En de kat blijft van de plisséhor af, dat scheelt ook weer :+
Maar andere katten uit de buurt niet, en dat zijn er meestal meer ;) Onze plissehor aan de buitenkant is inmiddels gesloopt. In het nieuwe huis eens kijken hoe lang een hor aan de binnenkant van het huis mee gaat. Daar zijn minder katten ;)

  • wantsome
  • Registratie: Juli 2012
  • Laatst online: 06-05-2024
@MadEgg
Hmmm zelfde advies dus. Nu kan het natuurlijk ook zoiets zijn als wij van wc eend raden wc eend aan. Daarom dat ik hier benieuwd was naar ervaringen van mensen die hun nieuwbouwwoning gestuct hadden, want het is inderdaad zover ik weet ook nog eens goedkoper dan renovlies. Maar heb me er verder nog niet geheel in verdiept, ze zijn pas net begonnen met het heiwerk.

@Kubusje
Dat weet ik niet precies. Zag een berichtje voorbij komen op facebook. Ik heb het zojuist nagevraagd voor je en kom er op terug. Ze zitten in ieders geval in Ridderkerk, maar opereren landelijk.

@righthand
Dank voor het delen. Dit is dus precies waarom ze renovlies adviseren. Minder gevoelig voor stoten en zou zogezegd niet gevoelig zijn voor scheuren. Maar ook renovlies kan door werking niet altijd geheel netjes blijven zitten. Ik twijfel nog een beetje. Ook wij krijgen (gelukkig) kalkzandsteen buitenmuren. Maar het zal vast ook gevoeliger voor scheuren zijn dan beton.

Wacht nog even wat praktijk ervaringen met stucwerk af. En dan het liefst ook met kalkzandsteen. Met betonnen wanden geloof ik wel dat het kan.

  • YinYang
  • Registratie: April 2011
  • Laatst online: 11-11 19:24
@DeOS @Tassadar32 : dank voor de reacties! Wat jij noemt @Tassadar32 is inderdaad wel een goede setup! Wist zelf niet af van dat uitgangspunt. Eigenlijk hetzelfde als met Z-wave (domotca) :) Dus denk dat de domotica icm Ubiquiti perfect samen gaan! :)


Wat voor router heb je er zelf bij @Tassadar32 ? De Ubiquiti UniFi Security Gateway?

  • Tassadar32
  • Registratie: September 2006
  • Laatst online: 09-11 16:07
@YinYang Volledige Ubiquity setup hier. Gateway, switches, AP's en camera's. Let wel, z-wave werkt als een mesh waarbij iedere node ook data doorspeelt. Ubiquity AP's hebben ieder een netwerkkabel nodig, het is geen mesh netwerk.

Domotica is hier ook grotendeels (99%) z-wave: Aeonlabs, fibaro, benext en een Homey. Homey heeft een app voor zowel Ubiquity netwerk (aanwezigheidsdetectie) en Ubiquity camera's (beweging, opname starten/stoppen) echter is de stabiliteit van Homey met een wat groter z-wave netwerk (20+ devices in mijn geval) zeer matig met de huidige software, reden dat ik nu aan het kijken ben naar Hass als alternatief. De lead developer van Hass is overigens sinds kort bij Ubiquity in dienst als fulltime domotica developer.

27x320Wp LG | 7.4 kW W/W warmtepomp | 2024 Model 3 Performance+FSD | 2019 Zoë 40kWh Star Wars edition


  • Xtince
  • Registratie: Maart 2015
  • Laatst online: 19-06 07:24
Verwijderd schreef op donderdag 3 mei 2018 @ 09:15:
Bij ons konden we ook voor een schuipui kiezen. Meerprijs: 750 euro. Meest vreemde van alles dat het bouwbedrijf geen tekening of informatie kon laten zien van de schuifpui. Uiteindelijk niet gedaan.
Dat is echt zeer voordelig. Heb 2,3k betaald voor een schuifpui optie

Verwijderd

[b][message=54552069,noline]Erniebert schreef op zondag 11 maart 2018 @ 14:05[/

Top, dank voor deze tip. Ons project ook teruggevonden. Heb me vorig jaar juli ingeschreven voor het project Eemerald in Amersfoort. 36 apartementen in een klein complex. Het animo bij de presale was zo overweldigend dat er honderden malen meer inschrijvingen waren dan beschikbaar. Wonder boven wonder kwamen wij uit de inschrijvingen boven drijven. We hebben een optie op een prachtig apartement. Echter de vergunningen bleken nog verre van rond. Door de gekte op de woningmarkt en de vertraging in de realisatie van vergunningen etc. geconfronteerd met een tussentijds prijsverhoging van 6%. AKO nu gepland voor april. Start bouw september.
@Erniebert Wij hebben ook een optie op een van die appartementen. Heb je de nieuwe technische omschrijving al doorgenomen? Valt vies tegen... Niet alleen een prijsstijging maar ook een uitvoering beneden alle niveau. Wij hebben een bouwkundige onder de arm genomen om goed te snappen wat er nu wordt aangeboden. Hoe kijk jij er tegenaan?

Verwijderd

Verwijderd schreef op donderdag 3 mei 2018 @ 21:09:
[...]


@Erniebert Wij hebben ook een optie op een van die appartementen. Heb je de nieuwe technische omschrijving al doorgenomen? Valt vies tegen... Niet alleen een prijsstijging maar ook een uitvoering beneden alle niveau. Wij hebben een bouwkundige onder de arm genomen om goed te snappen wat er nu wordt aangeboden. Hoe kijk jij er tegenaan?
Een prijsstijging in deze tijd kan ik begrijpen. Gekke tijden in de markt zijn aangebroken en veel bouwers worstelen met vele prijsstijgingen van alle leveranciers en onderaannemers. Je moet het geluk nog maar hebben om partijen vast te leggen.

Ik vraag me alleen af wat je bedoelt met uitvoering beneden alle niveau. Ik ben zelf bouwkundig werkvoorbereider bij een grote aannemer en ben hier benieuwd naar. Hoe kan je als koper de uitvoering op voorhand, aan de hand van een technische omschrijving onder een bepaald niveau noemen?

  • Blauwschaap
  • Registratie: December 2012
  • Laatst online: 12-11 16:56
Wij zijn voor onze nieuwbouwwoning nog op zoek naar vloeren. Voor de begane grond willen we graag plavuizen en boven neigen we naar parket.

In onze huidige woning (bestaande bouw) hebben we dit een paar jaar geleden ook laten doen maar helaas zijn we erg teleurgesteld met het resultaat. Daarom vinden we het nu moeilijk om winkels te kiezen.

Heeft iemand goede ervaringen in de regio Den Haag - Rotterdam?

Verwijderd

@ADALJ De technische omschrijving die bij het koopcontract zit, is een uiterst magere uitvoering van deze die bij het optiecontract van acht maanden geleden zat. Werkelijk alles is in kwaliteit enorm gedaald: van kwaliteit glas tot de grootte van de badkamertegels, de uitvoering van de gemeenschappelijke ruimte, type binnendeuren van stomp naar opdek, stalen binnendeuren van kamerhoogte naar 2,20 m met bovenlicht, electrapunten geschrapt naar het minimale, de binnenwanden worden nu uitgevoerd in metal stuc met niet nader benoemde isolatielaag e.d., zonneschermen zijn geschrapt, en ja, ze leveren CV ketels als verwarming hoewel er stadsverwarming op het plein is aangelegd en aansluiting volgens de gemeente mogelijk is.

[ Voor 0% gewijzigd door Verwijderd op 03-05-2018 23:18 . Reden: Naam vergeten ]


  • TLer
  • Registratie: Mei 2004
  • Laatst online: 12-11 16:29
Voor dat laatste moet je ze dankbaar zijn. Stadsverwarming zou voor mij een no-go zijn. Vaste maandelijkse kosten zijn zeer hoog en kan je niet beïnvloeden.

  • Jheroun
  • Registratie: April 2002
  • Niet online
TLer schreef op donderdag 3 mei 2018 @ 23:43:
Voor dat laatste moet je ze dankbaar zijn. Stadsverwarming zou voor mij een no-go zijn. Vaste maandelijkse kosten zijn zeer hoog en kan je niet beïnvloeden.
Alsof een CV gratis en onderhoudsvrij is, of een warmtepomp. Ik heb de vergelijking nooit helemaal doorgerekend maar ik vraag me af of de verschillen nou echt zo belachelijk zijn als je alle kosten rond aanschaf, gebruik, verbruik en onderhoud naast elkaar zet.

Wij hebben nu een jaar of tien stadsverwarming en daar heb ik nog nooit enig probleem of gedoe mee gehad.

De enige reden om een warmtepomp te willen zou voor mij de mogelijkheid tot vloerkoelen in de zomer zijn. Dat zit helaas niet in ons nieuwe huis maar ik vind stadsverwarming echt fijner dan een CV. Alleen dat je niet zon ketel in de weg hebt hangen op je zolder al 😬

  • padoempats
  • Registratie: September 2017
  • Laatst online: 11-11 22:05
Jheroun schreef op vrijdag 4 mei 2018 @ 13:39:
[...]

Alsof een CV gratis en onderhoudsvrij is, of een warmtepomp. Ik heb de vergelijking nooit helemaal doorgerekend maar ik vraag me af of de verschillen nou echt zo belachelijk zijn als je alle kosten rond aanschaf, gebruik, verbruik en onderhoud naast elkaar zet.

Wij hebben nu een jaar of tien stadsverwarming en daar heb ik nog nooit enig probleem of gedoe mee gehad.

De enige reden om een warmtepomp te willen zou voor mij de mogelijkheid tot vloerkoelen in de zomer zijn. Dat zit helaas niet in ons nieuwe huis maar ik vind stadsverwarming echt fijner dan een CV. Alleen dat je niet zon ketel in de weg hebt hangen op je zolder al 😬
Het probleem met stadsverwarming is meer dat je praktisch geen keus hebt. Je moet er aan meedoen. Zonder stadsverwarming kan je zelf kiezen bij welke partij je de energie afneemt, met fikse kortingen tot gevolg. Met stadsverwarming weet je zeker dat je de hoofdprijs betaalt voor energie.

  • bonyuri
  • Registratie: December 2003
  • Laatst online: 09:56

bonyuri

Investigator!

Blauwschaap schreef op donderdag 3 mei 2018 @ 22:01:
Wij zijn voor onze nieuwbouwwoning nog op zoek naar vloeren. Voor de begane grond willen we graag plavuizen en boven neigen we naar parket.

In onze huidige woning (bestaande bouw) hebben we dit een paar jaar geleden ook laten doen maar helaas zijn we erg teleurgesteld met het resultaat. Daarom vinden we het nu moeilijk om winkels te kiezen.

Heeft iemand goede ervaringen in de regio Den Haag - Rotterdam?
Als je teleurgesteld bent, waarom kies je dan nu weer voor hetzelfde?
Ben je teleurgesteld over het materiaal, of over de manier van verwerken?

What Do You Call An Alligator In A Vest?


  • TLer
  • Registratie: Mei 2004
  • Laatst online: 12-11 16:29
Jheroun schreef op vrijdag 4 mei 2018 @ 13:39:
[...]

Alsof een CV gratis en onderhoudsvrij is, of een warmtepomp. Ik heb de vergelijking nooit helemaal doorgerekend maar ik vraag me af of de verschillen nou echt zo belachelijk zijn als je alle kosten rond aanschaf, gebruik, verbruik en onderhoud naast elkaar zet.

Wij hebben nu een jaar of tien stadsverwarming en daar heb ik nog nooit enig probleem of gedoe mee gehad.

De enige reden om een warmtepomp te willen zou voor mij de mogelijkheid tot vloerkoelen in de zomer zijn. Dat zit helaas niet in ons nieuwe huis maar ik vind stadsverwarming echt fijner dan een CV. Alleen dat je niet zon ketel in de weg hebt hangen op je zolder al 😬
Zonder een discussie wel of geen stadsverwarming (SV) te willen starten, wil ik hier toch kort op ingaan.

Vastrecht SV is per jaar 465,65 voor een CW-3 of CW-4 (Nuon gelderland)

vastrecht gas is per jaar 192,82 + 51 leveringskosten 243,82 euro per jaar.

Dit is dus een jaarrijksverschil van 221,83 euro in vaste lasten. Tel daarbij op dat je geen keuze hebt en dus ook geen welkomstbonussen en een te hoog tarief. Daarnaast kost het aansluiten op SV ook snel een 5000 tot 8000 euro (afhankelijk per regio) tegen nog geen 1000 euro voor gas. Eventuele eigen opwek is ook niet mogelijk en in de meeste voorwaarden is tegenwoordig zelfs opgenomen dat je niet eens een eigen warmteopwekker mag aansluiten zoals een Elga bijvoorbeeld. Je zit dus helemaal klem. Been there, done that! Not doing it again :+

Van het prijsverschil in vastrecht kan je elke 7 jaar een compleet nieuwe CV-ketel kopen a 1500 euro.

Een warmtepomp is ook niet gratis en zeker ook niet zaligmakend, maar voor alleen de aansluitkosten van SV kan je deze nu reeds kopen en dan kan je ook nog eens subsidie krijgen. Dan heb je alle vrijheid om te wisselen van elektra aanbieder en je kan de keuze maken om zelf op te wekken, of niet. Alle opties liggen open. En ja, dit kost je iets ruimte in de woning, maar de meeste warmtepompen hebben voldoende aan de plek van een wasmachine dus zo dramatisch is het ook weer niet. Zorg wel dat de woning wordt uitgerust met vloerverwarming en niet met radiatoren. Kostprijs is dit redelijk kosten neutraal.

Overigens werkt SV prima. Technisch is er echt niets mis mee, alles eromheen is het probleem. Er is een rede dat er vanuit het hele land groepen mensen vanaf proberen te komen. Niet aan beginnen is mijn advies.

  • Erniebert
  • Registratie: Mei 2017
  • Laatst online: 19-06 23:33
Verwijderd schreef op donderdag 3 mei 2018 @ 21:09:
[...]


@Erniebert Wij hebben ook een optie op een van die appartementen. Heb je de nieuwe technische omschrijving al doorgenomen? Valt vies tegen... Niet alleen een prijsstijging maar ook een uitvoering beneden alle niveau. Wij hebben een bouwkundige onder de arm genomen om goed te snappen wat er nu wordt aangeboden. Hoe kijk jij er tegenaan?
Ik heb je persoonlijk een berichtje gestuurd 😉

  • Erniebert
  • Registratie: Mei 2017
  • Laatst online: 19-06 23:33
Verwijderd schreef op donderdag 3 mei 2018 @ 21:46:
[...]


Een prijsstijging in deze tijd kan ik begrijpen. Gekke tijden in de markt zijn aangebroken en veel bouwers worstelen met vele prijsstijgingen van alle leveranciers en onderaannemers. Je moet het geluk nog maar hebben om partijen vast te leggen.

Ik vraag me alleen af wat je bedoelt met uitvoering beneden alle niveau. Ik ben zelf bouwkundig werkvoorbereider bij een grote aannemer en ben hier benieuwd naar. Hoe kan je als koper de uitvoering op voorhand, aan de hand van een technische omschrijving onder een bepaald niveau noemen?
Er is ons een appartement voorgesteld met een concept technische omschrijving/ afwerkniveau. Dat schept verwachtingen. Als dan zonder communicatie vooraf de definitieve omschrijving twee weken voor ondertekening van de AKO op de mat valt en alles is vwb afwerkniveau van binnen in de apartementen gestript of tot een minimum terug gebracht dan snap ik de verbazing wel. Bij ons kwam de rook uit onze oren. In de huidige markt is kennelijk alles maar toegestaan. Voor jou honderd anderen. En soms nog meer! Ze zijn de gekte voorbij.

  • Sport_Life
  • Registratie: Mei 2002
  • Laatst online: 10:41

Sport_Life

Solvitur ambulando

Blauwschaap schreef op donderdag 3 mei 2018 @ 22:01:
Wij zijn voor onze nieuwbouwwoning nog op zoek naar vloeren. Voor de begane grond willen we graag plavuizen en boven neigen we naar parket.

In onze huidige woning (bestaande bouw) hebben we dit een paar jaar geleden ook laten doen maar helaas zijn we erg teleurgesteld met het resultaat. Daarom vinden we het nu moeilijk om winkels te kiezen.

Heeft iemand goede ervaringen in de regio Den Haag - Rotterdam?
Waar heb je het destijds laten doen?
Qua parket let op of je lamel of multiplank hebt, het tweede is duurder en blijft langer goed, maar het scheelt zo 25 euro per m2.

[ Voor 22% gewijzigd door Sport_Life op 04-05-2018 20:05 ]

PV: 9360 WP WZW/ONO | Warmtepomp: Toshiba Estia 8kW 3fase | A+++ | Zappi v2.1


Verwijderd

Erniebert schreef op vrijdag 4 mei 2018 @ 17:19:
[...]


Er is ons een appartement voorgesteld met een concept technische omschrijving/ afwerkniveau. Dat schept verwachtingen. Als dan zonder communicatie vooraf de definitieve omschrijving twee weken voor ondertekening van de AKO op de mat valt en alles is vwb afwerkniveau van binnen in de apartementen gestript of tot een minimum terug gebracht dan snap ik de verbazing wel. Bij ons kwam de rook uit onze oren. In de huidige markt is kennelijk alles maar toegestaan. Voor jou honderd anderen. En soms nog meer! Ze zijn de gekte voorbij.
@Erniebert @Verwijderd

Dat een TO zo erg verandert is nieuw voor mij. Vandaag nog even met collega’s besproken en de mensen die wat langer in de bouw zitten hebben het nog niet meegemaakt.

Wel kan ik jullie het volgende meegeven.

In de acht maanden is de bouw he-le-maal omgeslagen.

Zelf zit ik nu op een project waar we twee onder een kap en eengezinswoningen realiseren. Onze begroting stamt uit begin 2017. Start heiwerk stond gepland op november 2017.

Bijna alle, maar dan ook alle elementen hebben we met een min moeten inkopen. De kosten kunnen we niet halen bij de kopers of de ontwikkelaar. We mogen blij zijn als dit project eindigt op een nul. Dan hebben we het echt SUPER gedaan. Voor de crisis konden alle offertes gestand tussen de begrotings en uitvoeringstraject blijven, nu is dat net even anders.

Het ergste waren de metselaars, van de vijf partijen die we aangevraagd hadden in de begrotingstraject hebben vier een prijsverhoging doorgevoerd. Varierend tussen de 10/20 procent. Dat is dik 40/80k waar je dag tegen zegt in ons geval. Gelukkig was er een metselaar die zijn prijzen gestand hield omdat ze heel graag met ons in aanraking wouden komen maar hij kwam uiteindelijk toch met allemaal bizzare toeslagen bij afwijkend metselwerk anders dan standaard steentjes leggen. Uiteindelijk toch een min van 31k.

Levertijden:

Heipalen wacht je gerust 30 weken op. Je moet nog geluk hebben om in die tijd een heistelling zien vast te leggen. En dat gaat zo maar door. Van de vloeren tot kozijnen. Allemaal levertijden die ongekend zijn. Onze voorkeursleveranciers staan zelfs vol t/m eind 2019. Geen ruimte meer. Dat het zo druk is betekent ook iets anders, alle partijen hebben weer werk zat en gaan prijzen verhogen. Dat gebeurt ook. PIR isolatie kan je niet meer krijgen. Als je het dan toch inkoopt, is het ongekend duur.

Zie volgende link:

https://www.cobouw.nl/won...rder-meegemaakt-101254716

Dit alles kan een indicatie zijn waarom de aannemer en ontwikkelaar er voor gekozen hebben om de afwerking terug te schroeven. Anders kan je het niet maken in deze tijd.

Voor jullie toch 100 anderen zoals je het al zelf zegt. Op deze manier blijft het toch van jullie, met een concessie, helaas een mindere afwerking.

[ Voor 8% gewijzigd door Verwijderd op 04-05-2018 20:36 ]


Verwijderd

Incidentele dubbele post. Excuses

[ Voor 97% gewijzigd door Verwijderd op 04-05-2018 20:32 ]


  • Erniebert
  • Registratie: Mei 2017
  • Laatst online: 19-06 23:33
Verwijderd schreef op vrijdag 4 mei 2018 @ 20:25:
[...]


@Erniebert @Verwijderd

Dat een TO zo erg verandert is nieuw voor mij. Vandaag nog even met collega’s besproken en de mensen die wat langer in de bouw zitten hebben het nog niet meegemaakt.

Wel kan ik jullie het volgende meegeven.

In de acht maanden is de bouw he-le-maal omgeslagen.

Zelf zit ik nu op een project waar we twee onder een kap en eengezinswoningen realiseren. Onze begroting stamt uit begin 2017. Start heiwerk stond gepland op november 2017.

Bijna alle, maar dan ook alle elementen hebben we met een min moeten inkopen. De kosten kunnen we niet halen bij de kopers of de ontwikkelaar. We mogen blij zijn als dit project eindigt op een nul. Dan hebben we het echt SUPER gedaan. Voor de crisis konden alle offertes gestand tussen de begrotings en uitvoeringstraject blijven, nu is dat net even anders.

Het ergste waren de metselaars, van de vijf partijen die we aangevraagd hadden in de begrotingstraject hebben vier een prijsverhoging doorgevoerd. Varierend tussen de 10/20 procent. Dat is dik 40/80k waar je dag tegen zegt in ons geval. Gelukkig was er een metselaar die zijn prijzen gestand hield omdat ze heel graag met ons in aanraking wouden komen maar hij kwam uiteindelijk toch met allemaal bizzare toeslagen bij afwijkend metselwerk anders dan standaard steentjes leggen. Uiteindelijk toch een min van 31k.

Levertijden:

Heipalen wacht je gerust 30 weken op. Je moet nog geluk hebben om in die tijd een heistelling zien vast te leggen. En dat gaat zo maar door. Van de vloeren tot kozijnen. Allemaal levertijden die ongekend zijn. Onze voorkeursleveranciers staan zelfs vol t/m eind 2019. Geen ruimte meer. Dat het zo druk is betekent ook iets anders, alle partijen hebben weer werk zat en gaan prijzen verhogen. Dat gebeurt ook. PIR isolatie kan je niet meer krijgen. Als je het dan toch inkoopt, is het ongekend duur.

Zie volgende link:

https://www.cobouw.nl/won...rder-meegemaakt-101254716

Dit alles kan een indicatie zijn waarom de aannemer en ontwikkelaar er voor gekozen hebben om de afwerking terug te schroeven. Anders kan je het niet maken in deze tijd.

Voor jullie toch 100 anderen zoals je het al zelf zegt. Op deze manier blijft het toch van jullie, met een concessie, helaas een mindere afwerking.
In ons geval is de projectontwikkelaar ook de aannemer. Dat de markt veranderd, overspannen is en weet ik al niet wat, is tot daaraan toe. Maar communiceer, wees transparant. We moeten nog beginnen met de bouw, maar het vertrouwen is door een aaneenschakeling van gekluns helaas geheel verdwenen.

  • MadEgg
  • Registratie: Februari 2002
  • Laatst online: 07:17

MadEgg

Tux is lievvv

We zijn vandaag weer op de bouwplaats wezen kijken, het gaat wel hard zeg.

Afbeeldingslocatie: https://www.bostulp.nl/img/2018-05-04/thumb/foto6.jpgAfbeeldingslocatie: https://www.bostulp.nl/img/2018-05-04/thumb/foto7.jpg
Afbeeldingslocatie: https://www.bostulp.nl/img/2018-05-04/thumb/foto8.jpgAfbeeldingslocatie: https://www.bostulp.nl/img/2018-05-04/thumb/foto4.jpg


De rechterhelft van de tweekapper waar de focus op ligt is van ons. Het rijtje huizen met nu twee verdiepingen erachter stond er vorige week nog niet, en twee weken geleden lag de vloer er net zo bij als dat het nu bij onze woning is. Ongelofelijk, in één week twee verdiepingen inclusief ramen, deuren en voordeuren in elkaar gehangen.

Ik maak me nog wel een klein beetje zorgen over de toegang tot de kruipruimte - de kopersbegeleider heeft mij verzekerd dat de kruipruimte vanuit de berging ook toegankelijk zou zijn. Nu zie ik bij onze eigen voordeur en ook bij de berging van de woning rechts van die van ons duidelijk een kruipluik, maar bij onze berging niet. Is dat iets wat ze er later nog in gaan boren? De kruipruimte onder de woning en de berging zijn niet met elkaar verbonden, en toegang was wel wenselijk ivm de aanleg van de leidingen voor de warmtepomp. Ik heb natuurlijk niets hierover zwart-op-wit staan, alleen wat de kopersbegeleiding mij mondeling toegezegd heeft. Ik zit een beetje te dubben of ik daar nu over aan de bel moet trekken of dat ik wat te voorbarig ben.

Tja


  • B152
  • Registratie: November 2017
  • Laatst online: 28-09 06:52
MadEgg schreef op vrijdag 4 mei 2018 @ 23:11:
We zijn vandaag weer op de bouwplaats wezen kijken, het gaat wel hard zeg.

[afbeelding][afbeelding]
[afbeelding][afbeelding]


De rechterhelft van de tweekapper waar de focus op ligt is van ons. Het rijtje huizen met nu twee verdiepingen erachter stond er vorige week nog niet, en twee weken geleden lag de vloer er net zo bij als dat het nu bij onze woning is. Ongelofelijk, in één week twee verdiepingen inclusief ramen, deuren en voordeuren in elkaar gehangen.

Ik maak me nog wel een klein beetje zorgen over de toegang tot de kruipruimte - de kopersbegeleider heeft mij verzekerd dat de kruipruimte vanuit de berging ook toegankelijk zou zijn. Nu zie ik bij onze eigen voordeur en ook bij de berging van de woning rechts van die van ons duidelijk een kruipluik, maar bij onze berging niet. Is dat iets wat ze er later nog in gaan boren? De kruipruimte onder de woning en de berging zijn niet met elkaar verbonden, en toegang was wel wenselijk ivm de aanleg van de leidingen voor de warmtepomp. Ik heb natuurlijk niets hierover zwart-op-wit staan, alleen wat de kopersbegeleiding mij mondeling toegezegd heeft. Ik zit een beetje te dubben of ik daar nu over aan de bel moet trekken of dat ik wat te voorbarig ben.
Gaan ze geen luik in maken. Bij ons idem. Ik wilde onder garage voor aanleg leidingen maar deze kruipruimte is niet bereikbaar. Gaten boren door de border kan maar je zit met het betonstaal waar je voor moet oppassen. Zelf een luik maken kan natuurlijk ook maar zou er zelf denk ik niet aan beginnen.

  • MadEgg
  • Registratie: Februari 2002
  • Laatst online: 07:17

MadEgg

Tux is lievvv

B152 schreef op vrijdag 4 mei 2018 @ 23:29:
[...]
Gaan ze geen luik in maken. Bij ons idem. Ik wilde onder garage voor aanleg leidingen maar deze kruipruimte is niet bereikbaar. Gaten boren door de border kan maar je zit met het betonstaal waar je voor moet oppassen. Zelf een luik maken kan natuurlijk ook maar zou er zelf denk ik niet aan beginnen.
Nou ja, het is me wel expliciet toegezegd, dus ik ga het er in ieder geval niet zo bij laten zitten. Uiteindelijk niets zwart-op-wit hierover, maar toegeven kan altijd nog - dan zal ik zelf voor het kruipluik moeten zorgen. Alle leidingen voor verwarming en warmwater moeten nog vanaf de berging naar de rest van de woning gelegd worden, dus geen toegang is geen optie.

Tja


  • B152
  • Registratie: November 2017
  • Laatst online: 28-09 06:52
MadEgg schreef op vrijdag 4 mei 2018 @ 23:54:
[...]


Nou ja, het is me wel expliciet toegezegd, dus ik ga het er in ieder geval niet zo bij laten zitten. Uiteindelijk niets zwart-op-wit hierover, maar toegeven kan altijd nog - dan zal ik zelf voor het kruipluik moeten zorgen. Alle leidingen voor verwarming en warmwater moeten nog vanaf de berging naar de rest van de woning gelegd worden, dus geen toegang is geen optie.
Ff als tip voor de meelezers, jij hebt er nu niet veel meer aan.

Ik zorg altijd dat alle telefonische gesprekken worden opgenomen en alle afspraken per mail worden nagestuurd. Ik stuur dan vaak zelf een overzicht en vraag om een bevestiging.

Succes in iedergeval. Als je een luikje gaat maken ben ik benieuwd naar je ervaringen. Vooral posten in het klussende tweakers topic dan :)

  • paul-s83
  • Registratie: Juni 2010
  • Laatst online: 10:38
MadEgg schreef op donderdag 3 mei 2018 @ 10:25:
[...]


Dat is mij ook aangeraden. Stucwerk was bij de stucadoors die ik gesproken heb ook nog eens goedkoper dan renovlies omdat bij nieuwbouw maar een dun laagje nodig is om de oneffenheden weg te werken. Ik kreeg een prijsaanbod van €13 incl BTW, aardig vergelijkbaar dus.

Aangezien ik sowieso niet echt fan van behang ben wordt het bij ons hoogstwaarschijnlijk stucwerk.
Heb dezelfde keuze moeten maken, vooral vanwege het kostenplaatje waarbij renovlies een pak goedkoper zou zijn. Heb een woning bekeken die was behandeld met renovlies, maar man, dat haalt het echt bij lang na niet bij fatsoenlijk stucwerk. Elke bobbel is te zien, en de structuur is bij lange na niet zo fijn als bij fatsoenlijk stucwerk. Dit moet je dus echt alleen doen als je budget het niet toelaat.

Daarnaast, laat je goed informeren hoe er gestuct gaat worden. Zoals ik jouw post lees kwakken ze er een klein laagje goudband tegenaan van enkele millimeters. Dat is heel wat anders dan de boel fatsoenlijk strak zetten met MP75...

Je kan wel de oneffenheden op de muur wegwerken, maar een muur is nooit 100% recht. Bij de eerste de beste plint die je monteert zal je zien dat er toch her en der wat flinke kieren te zien zijn :)

  • jacovn
  • Registratie: Augustus 2001
  • Nu online
Verwijderd schreef op vrijdag 4 mei 2018 @ 20:25:
[...]


nden is de bouw he-le-maal omgeslagen.

Zelf zit ik nu op een project waar we twee onder een kap en eengezinswoningen realiseren. Onze begroting stamt uit begin 2017. Start heiwerk stond gepland op november 2017.

Bijna alle, maar dan ook alle elementen hebben we met een min moeten inkopen. De kosten kunnen we niet halen bij de kopers of de ontwikkelaar. We mogen blij zijn als dit project eindigt op een nul. Dan hebben we het echt SUPER gedaan. Voor de crisis konden alle offertes gestand tussen de begrotings en uitvoeringstraject blijven, nu is dat net even anders.

Het ergste waren de metselaars, van de vijf partijen die we aangevraagd hadden in de begrotingstraject hebben vier een prijsverhoging doorgevoerd. Varierend tussen de 10/20 procent. Dat is dik 40/80k waar je dag tegen zegt in ons geval. Gelukkig was er een metselaar die zijn prijzen gestand hield omdat ze heel graag met ons in aanraking wouden komen maar hij kwam uiteindelijk toch met allemaal bizzare toeslagen bij afwijkend metselwerk anders dan standaard steentjes leggen. Uiteindelijk toch een min van 31k.

Levertijden:

Heipalen wacht je gerust 30 weken op. Je moet nog geluk hebben om in die tijd een heistelling zien vast te leggen. En dat gaat zo maar door. Van de vloeren tot kozijnen. Allemaal levertijden die ongekend zijn. Onze voorkeursleveranciers staan zelfs vol t/m eind 2019. Geen ruimte meer. Dat het zo druk is betekent ook iets anders, alle partijen hebben weer werk zat en gaan prijzen verhogen. Dat gebeurt ook. PIR isolatie kan je niet meer krijgen. Als je het dan toch inkoopt, is het ongekend duur.
Ligt hierin ook een reden dat meerwerk zo duur kan zijn ?
Om miscalculaties uit verleden goed te maken financieel..

Mijn aannemer kwam erachter dat hij toch wel de plat dak bedekking moet gaan maken terwijl hij dacht er €12.000 voor te kunnen rekenen.
Ik heb verder altijd verteld dat er VP panelen op komen dus het belastbaar en beloopbaar moet zijn. Kreeg al te horen dat dat misschien toch wel een meerprijs zou worden. Dat denk ik dus maar niet, dit wisten ze al voordat we contract tekenden.

8x330 NO12.5°, 8x330 ZW12.5°, 8x350 ZW60°, 8x325 NO10°, SE8K, P500. 6x410 ZW10° Enphase


  • Sport_Life
  • Registratie: Mei 2002
  • Laatst online: 10:41

Sport_Life

Solvitur ambulando

B152 schreef op zaterdag 5 mei 2018 @ 00:14:
[...]


Ff als tip voor de meelezers, jij hebt er nu niet veel meer aan.

Ik zorg altijd dat alle telefonische gesprekken worden opgenomen en alle afspraken per mail worden nagestuurd. Ik stuur dan vaak zelf een overzicht en vraag om een bevestiging.

Succes in iedergeval. Als je een luikje gaat maken ben ik benieuwd naar je ervaringen. Vooral posten in het klussende tweakers topic dan :)
Voordat ik de VON woning kocht heb ik 2 dingen gedaan: een app geinstalleerd die alle gesprekken opneemt en rechtsbijstand afgesloten :).

PV: 9360 WP WZW/ONO | Warmtepomp: Toshiba Estia 8kW 3fase | A+++ | Zappi v2.1


  • jip_86
  • Registratie: Juli 2004
  • Laatst online: 12-11 20:11
Zo dan was ik er net op tijd bij zo te zien. Woon nu een kleine maanden hier. Omdat het zo lang duurde is de prijs ook een paar duizend omhoog gegaan, maar vroege beslissers mochten nog voor de oude prijs mee doen. Er is ook weinig gesjoemeld met de initiële beschrijving. Zo te horen is het nu echt gekkenhuis dus nu :)

Verwijderd

Nog tips voor meerwerk waar je op zou kunnen besparen?
Bijvoorbeeld een buitenkraan kan je makkelijk vanuit de keuken/garage wateraansluiting aftappen.
Een dubbel stopcontact in de meterkast kost bij ons 165 euro terwijl je die makkelijk zelf kunt plaatsen.

Nog meer tips voor zoiets? We moeten woensdag al het meerwerk doorgegeven hebben.

Ons lijstje nu:

* uitbouw 1,20 m
* 3x loze leidingen naar slaapkamers/zolder
* mantelbuis naar garage
* 2x verplaatsen elektra leidingen
* isoleren vloer garage
* water en afvoer naar garage
* casco badkamer en toiletten oplevering

We komen op precies 10k uit aan meerwerkkosten en 2950 euro aan minderwerk.

  • MadEgg
  • Registratie: Februari 2002
  • Laatst online: 07:17

MadEgg

Tux is lievvv

Verwijderd schreef op zaterdag 5 mei 2018 @ 12:01:
Nog tips voor meerwerk waar je op zou kunnen besparen?
Bijvoorbeeld een buitenkraan kan je makkelijk vanuit de keuken/garage wateraansluiting aftappen.
Een dubbel stopcontact in de meterkast kost bij ons 165 euro terwijl je die makkelijk zelf kunt plaatsen.

Nog meer tips voor zoiets? We moeten woensdag al het meerwerk doorgegeven hebben.

Ons lijstje nu:

* uitbouw 1,20 m
* 3x loze leidingen naar slaapkamers/zolder
* mantelbuis naar garage
* 2x verplaatsen elektra leidingen
* isoleren vloer garage
* water en afvoer naar garage
* casco badkamer en toiletten oplevering

We komen op precies 10k uit aan meerwerkkosten en 2950 euro aan minderwerk.
Tsja. Alles wat niet met ruwbouw te maken heeft kun je financieel gezien beter zelf achteraf doen, zeker als je zelf een beetje handig bent. Uitbouwen en erkers zou ik aan de aannemer overlaten. Dakkapel varieert een beetje afhankelijk van de prijs die de aannemer ervoor vraagt.

PV-panelen hebben wij laten vervallen, garagedeur laten wij vervallen, verwarming laten wij vervallen. Schuur-isolatie en zolderindeling gaan we ook achteraf doen, de aannemer vroeg daar ook een veel te hoge prijs voor. Een hoop te doen na oplevering maar wel tegen betere prijzen.

Loze leidingen is ook veel te duur via de aannemer maar vanuit praktisch oogpunt wel besloten om dat wel te laten doen.

Tja


  • dbz1985
  • Registratie: November 2011
  • Laatst online: 12-11 22:16
Xtince schreef op donderdag 3 mei 2018 @ 19:19:
[...]


Dat is echt zeer voordelig. Heb 2,3k betaald voor een schuifpui optie
Bij ons was standaard openslaande deuren en we hebben gekozen voor schuifpui met een meerprijs van €924,-
Ook hebben we nu net 2 dagen geleden het volgende besteld 60 x 60 tegels 51m2 beneden voor €3000,- incl. Leggen en €691,- laminaat (zelf leggen) op de 1e verdieping 40m2...bouw is nog volop bezig, denk dat over 2 weken het dak erop zit. (Bouwproject van 7 woningen)

  • Appie76
  • Registratie: Februari 2005
  • Laatst online: 06-11 11:15
B152 schreef op zaterdag 5 mei 2018 @ 00:14:
[...]


Ff als tip voor de meelezers, jij hebt er nu niet veel meer aan.

Ik zorg altijd dat alle telefonische gesprekken worden opgenomen en alle afspraken per mail worden nagestuurd. Ik stuur dan vaak zelf een overzicht en vraag om een bevestiging.

Succes in iedergeval. Als je een luikje gaat maken ben ik benieuwd naar je ervaringen. Vooral posten in het klussende tweakers topic dan :)
Ik neem telefoongesprekken niet op, maar belangrijke afspraken/uitspraken/toezeggingen bevestig ik altijd per email: "Zoals zojuist telefonisch met Dhr Xyz besproken, aannemer zorgt voor Actie A tegen Prijs B etc etc..."

Ik heb geen signature


  • Blauwschaap
  • Registratie: December 2012
  • Laatst online: 12-11 16:56
bonyuri schreef op vrijdag 4 mei 2018 @ 16:03:
[...]


Als je teleurgesteld bent, waarom kies je dan nu weer voor hetzelfde?
Ben je teleurgesteld over het materiaal, of over de manier van verwerken?
We zijn teleurgesteld met de uitvoering van het leggen. Over de materialen zijn we meer dan tevreden.
Sport_Life schreef op vrijdag 4 mei 2018 @ 19:39:
[...]

Waar heb je het destijds laten doen?
Qua parket let op of je lamel of multiplank hebt, het tweede is duurder en blijft langer goed, maar het scheelt zo 25 euro per m2.
Ik noem liever geen namen. Als je het echt wil weten, stuur even een DM ;)

Op dit moment hebben we lamelparket. Ik heb het niet helemaal goed verwoord, we twijfelen nu tussen multiplank en massief hout.

[ Voor 40% gewijzigd door Blauwschaap op 05-05-2018 18:00 ]


  • frumper
  • Registratie: Februari 2008
  • Laatst online: 12-11 18:46
MadEgg schreef op zaterdag 5 mei 2018 @ 12:48:
[...]


Tsja. Alles wat niet met ruwbouw te maken heeft kun je financieel gezien beter zelf achteraf doen, zeker als je zelf een beetje handig bent. Uitbouwen en erkers zou ik aan de aannemer overlaten. Dakkapel varieert een beetje afhankelijk van de prijs die de aannemer ervoor vraagt.

PV-panelen hebben wij laten vervallen, garagedeur laten wij vervallen, verwarming laten wij vervallen. Schuur-isolatie en zolderindeling gaan we ook achteraf doen, de aannemer vroeg daar ook een veel te hoge prijs voor. Een hoop te doen na oplevering maar wel tegen betere prijzen.

Loze leidingen is ook veel te duur via de aannemer maar vanuit praktisch oogpunt wel besloten om dat wel te laten doen.
Wij hadden wel iets meer aan meerwerk dan 10k.
Met name aan stopcontacten, we hebben het aantal denk ik verdubbeld uiteindelijk, maar ook de dakkapel toch maar gedaan (zodat hij in de stijl van het huis past én we de garantie blijven behouden van het dak) en ook de zolderindeling laten wij wel doen. We krijgen de zolderindeling nu namelijk met betonnen wandjes en geen gipsmuurtjes. Een betonnen wand achteraf plaatsen gaat het namelijk niet worden ;)
Verder is het ook maar net waarvoor je kiest, wij willen er graag vlot in, dus na oplevering alleen keuken laten plaatsen nog, vloeren en wanden en klaar. Bespaart toch ook weer een maandje (minimaal) aan dubbele kosten denk ik als je alles na oplevering nog laat doen.

Deze week is men bij onze fase begonnen met heien, ben benieuwd hoe het er met een paar weken uitziet! Van de woningen die half maart begonnen zijn staan de muren van de benedenverdieping al. Dan gaat het ineens toch meer vorm krijgen!

Life is what happens while you're busy making other plans


  • MadEgg
  • Registratie: Februari 2002
  • Laatst online: 07:17

MadEgg

Tux is lievvv

frumper schreef op zaterdag 5 mei 2018 @ 20:43:
[...]


Wij hadden wel iets meer aan meerwerk dan 10k.
Met name aan stopcontacten, we hebben het aantal denk ik verdubbeld uiteindelijk, maar ook de dakkapel toch maar gedaan (zodat hij in de stijl van het huis past én we de garantie blijven behouden van het dak) en ook de zolderindeling laten wij wel doen. We krijgen de zolderindeling nu namelijk met betonnen wandjes en geen gipsmuurtjes. Een betonnen wand achteraf plaatsen gaat het namelijk niet worden ;)
Verder is het ook maar net waarvoor je kiest, wij willen er graag vlot in, dus na oplevering alleen keuken laten plaatsen nog, vloeren en wanden en klaar. Bespaart toch ook weer een maandje (minimaal) aan dubbele kosten denk ik als je alles na oplevering nog laat doen.
Wij ook hoor - ik zei alleen vanuit financieel oogpunt ;) Wij hebben dakkapel + uitbouw + erker voor 28k als de dure zaken. En dan nog heel veel kleinere zaken zoals loze leidingen door de hele woning, krachtgroep in berging, leidingwerk voor de keuken, een deur tussen keuken en berging en ga zo maar door. Door ook een aantal flinke minderwerkposten keuken, badkamer en dekvloer casco, geen gasaansluiting en geen PV-panelen komt het totaal op 26K aan meerwerk voor de aannemer uit.

Betonnen wanden kun je overigens ook prima zelf achteraf plaatsen, cellenbetonblokken kun je gewoon bij de bouwmarkt halen. Dat gaat bij ons ook geen gipswandje worden.

We gaan in ieder geval zeker een maand aan het klussen zijn, maar dat maandje dubbele lasten extra krijg je ook snel genoeg weer terugbetaald zodra onze oude woning overgedragen wordt. Die extra aflossing krijg je dan gelijk weer terug, minus de rente.

Tja


  • asdf25
  • Registratie: November 2016
  • Laatst online: 28-12-2024
Verwijderd schreef op zaterdag 5 mei 2018 @ 12:01:
Nog tips voor meerwerk waar je op zou kunnen besparen?
Bijvoorbeeld een buitenkraan kan je makkelijk vanuit de keuken/garage wateraansluiting aftappen.
Een dubbel stopcontact in de meterkast kost bij ons 165 euro terwijl je die makkelijk zelf kunt plaatsen.

Nog meer tips voor zoiets? We moeten woensdag al het meerwerk doorgegeven hebben.

Ons lijstje nu:

* uitbouw 1,20 m
* 3x loze leidingen naar slaapkamers/zolder
* mantelbuis naar garage
* 2x verplaatsen elektra leidingen
* isoleren vloer garage
* water en afvoer naar garage
* casco badkamer en toiletten oplevering

We komen op precies 10k uit aan meerwerkkosten en 2950 euro aan minderwerk.
Loze leiding in de zolder kan je wellicht laten vervallen omdat je schacht waarschijnlijk open is in de badkamer. Zodoende kun je eenvoudig zelf leidingen naar zolder leggen en boren naar de meterkast (welke er vaak onder zit).

  • Xtince
  • Registratie: Maart 2015
  • Laatst online: 19-06 07:24
asdf25 schreef op zaterdag 5 mei 2018 @ 23:32:
[...]


Loze leiding in de zolder kan je wellicht laten vervallen omdat je schacht waarschijnlijk open is in de badkamer. Zodoende kun je eenvoudig zelf leidingen naar zolder leggen en boren naar de meterkast (welke er vaak onder zit).
Zou je echt al dat werk doen voor dat extra beetje dat je moet betalen voor een loze leiding? Ik heb zelf 10 loze leidingen laten aanbrengen a €125 pst. Ga er echt geen spijt van krijgen als ik overal zeer goed wifi heb en zaken kan bekabelen.

  • Sport_Life
  • Registratie: Mei 2002
  • Laatst online: 10:41

Sport_Life

Solvitur ambulando

Xtince schreef op zondag 6 mei 2018 @ 08:57:
[...]


Zou je echt al dat werk doen voor dat extra beetje dat je moet betalen voor een loze leiding? Ik heb zelf 10 loze leidingen laten aanbrengen a €125 pst. Ga er echt geen spijt van krijgen als ik overal zeer goed wifi heb en zaken kan bekabelen.
datzelfde heb ik met casco badkamer en toiletten. Het kan goedkoper door het achteraf zelf te doen, maar bij oplevering een badkamer en toilet beschikbaar hebben is mij veel meer waard.

PV: 9360 WP WZW/ONO | Warmtepomp: Toshiba Estia 8kW 3fase | A+++ | Zappi v2.1


  • Xtince
  • Registratie: Maart 2015
  • Laatst online: 19-06 07:24
Sport_Life schreef op zondag 6 mei 2018 @ 09:10:
[...]
datzelfde heb ik met casco badkamer en toiletten. Het kan goedkoper door het achteraf zelf te doen, maar bij oplevering een badkamer en toilet beschikbaar hebben is mij veel meer waard.
Haha die heb ik dan wel weer casco genomen :$. Niet perse dat het veel goedkoper wordt, maar heb meer tijd om na te denken over het ontwerp. En wordt ook wel een 2/3k goedkoper. Het is idd wel meer werk achteraf. Wij wonen nu bij mijn ouders in, dus die ene maand extra klussen maakt ook geen verschil (qua dubbele lasten).

  • Sport_Life
  • Registratie: Mei 2002
  • Laatst online: 10:41

Sport_Life

Solvitur ambulando

Xtince schreef op zondag 6 mei 2018 @ 10:36:
[...]


Haha die heb ik dan wel weer casco genomen :$. Niet perse dat het veel goedkoper wordt, maar heb meer tijd om na te denken over het ontwerp. En wordt ook wel een 2/3k goedkoper. Het is idd wel meer werk achteraf. Wij wonen nu bij mijn ouders in, dus die ene maand extra klussen maakt ook geen verschil (qua dubbele lasten).
Dat is dan wel weer een voordeel. Hoewel ik gemerkt heb hoe langer je tijd hebt om na te denken hoe lastiger de keuze wordt :X ! Wij kunnen en willen niet bij ouders, dus keuze was er niet.

[ Voor 5% gewijzigd door Sport_Life op 06-05-2018 10:49 ]

PV: 9360 WP WZW/ONO | Warmtepomp: Toshiba Estia 8kW 3fase | A+++ | Zappi v2.1


  • asdf25
  • Registratie: November 2016
  • Laatst online: 28-12-2024
Sport_Life schreef op zondag 6 mei 2018 @ 09:10:
[...]
datzelfde heb ik met casco badkamer en toiletten. Het kan goedkoper door het achteraf zelf te doen, maar bij oplevering een badkamer en toilet beschikbaar hebben is mij veel meer waard.
Xtince schreef op zondag 6 mei 2018 @ 08:57:
[...]


Zou je echt al dat werk doen voor dat extra beetje dat je moet betalen voor een loze leiding? Ik heb zelf 10 loze leidingen laten aanbrengen a €125 pst. Ga er echt geen spijt van krijgen als ik overal zeer goed wifi heb en zaken kan bekabelen.
Aannemer voert er bij mij ook een paar uit, maar sommige (begane grond) doe ik zelf. Moest 150€ per extra loze leiding betalen. Op de begane grond heb ik dat snel terugverdient, even onder de vloer kruipen en kabeltje trekken, uurtje werk. Als je een loze leiding uit de muur wilt laten lopen wordt het natuurlijk een ander verhaal. Laat alleen een uitbouw uitvoeren door de aannemer. Badkamer, toilet, plafondafwerking, schuur, plinten etc. is allemaal minderwerk. Voor een paar dingen (zonnepanelen, groter raam, op zolder ramen die open kunnen ipv vast glas) nog een prijsopgave gevraagd maar schrok telkens behoorlijk van de prijs.

Badkamer en toilet kwam ik qua tegels op 3,6k meerwerk en sanitair ook 4,8k, daarbij zit er nog ongeveer 3k in voor de aannemer. Qua sanitair was het nog steeds de basis welke de aannemer had geselecteerd, dus allemaal goedkoop en degelijk spul niks bijzonders. Kom zelf op een begroting uit van de rond 7k. Probleem is ook dat ik er nog niet echt uit bent met mijn indeling en ik veel te snel moest beslissen, nu heb ik mooi alle ruimte nog. Ik ken tegelzetters en stukadoors die me willen helpen, moet enkel nog een loodgieter vinden.

Heb zelf het geluk dat ik nog thuis woon dus alle ruimte heb om straks te gaan klussen ik hoef er niet direct in. Als het een halfjaar later wordt is het nog geen probleem.

[ Voor 12% gewijzigd door asdf25 op 06-05-2018 11:11 ]


  • B152
  • Registratie: November 2017
  • Laatst online: 28-09 06:52
Als je een beetje klusser bent kun je naar mijn idee veel zelf doen. Uit praktische overwegingen heb ik wel alle loze leidingen die ik wil besteld. 10 in totaal, 150 e pst. Meer uit praktische overweging dat we snel aan de muren en vloeren kunnen beginnen.

Wat snel geld oplevert is zelf extra groepen installeren, die kosten 265 e pst. ik heb er/wil er 4 extra plus een krachtgroep (koken) en uitbreidingsmogelijkheden voor nog een 1 of 2 krachtgroepen (EV en garage). En dat stopcontact in de meterkast kan ook op de dinrails als je ruimte over hebt. zelf aanleggen dubbel stopcontact is ook zo gedaan uiteraard.

Zolderindeling ook prima zelf te doen, net als installatie keuken en egaliseren en leggen vloer(en). Buitenkraantje installeer ik ook zelf door deze vanuit de garage te halen. drainage tuin is ook prima zelf te doen en ga zo maar door :)

  • Xtince
  • Registratie: Maart 2015
  • Laatst online: 19-06 07:24
B152 schreef op zondag 6 mei 2018 @ 21:10:
Als je een beetje klusser bent kun je naar mijn idee veel zelf doen. Uit praktische overwegingen heb ik wel alle loze leidingen die ik wil besteld. 10 in totaal, 150 e pst. Meer uit praktische overweging dat we snel aan de muren en vloeren kunnen beginnen.

Wat snel geld oplevert is zelf extra groepen installeren, die kosten 265 e pst. ik heb er/wil er 4 extra plus een krachtgroep (koken) en uitbreidingsmogelijkheden voor nog een 1 of 2 krachtgroepen (EV en garage). En dat stopcontact in de meterkast kan ook op de dinrails als je ruimte over hebt. zelf aanleggen dubbel stopcontact is ook zo gedaan uiteraard.

Zolderindeling ook prima zelf te doen, net als installatie keuken en egaliseren en leggen vloer(en). Buitenkraantje installeer ik ook zelf door deze vanuit de garage te halen. drainage tuin is ook prima zelf te doen en ga zo maar door :)
Idd als je zelf wat kan klussen, dan is het beter om zaken achteraf zelf te doen. Heb twee linkerhanden, die alleen van pas komen voor zaken slopen. Helaas weinig te slopen in een nieuwbouwwoning :P. Dus ik zou toch altijd iemand moeten regelen, vandaar veel zaken door de aannemer laten doen (elektra, loze leidingen, uitbouw etc). Hoef ik alleen nog mannetjes te regelen voor de grotere zaken (stucen, vloer, badkamer, dakkapel, zolderindeling etc).

  • NLS_
  • Registratie: December 2009
  • Laatst online: 07-11 21:15
Wij laten ook alle leidingen en elektra in 1 keer goed door de aannemer plaatsen. toevallig net vorige week samen met de aannemer en elektricien alle wandcontactdozen en lichtpunten ingetekend. (wat ik rijkelijk laat vind aangezien er nog steeds wordt gesproken van een oplevering rondom de bouwvak). Maar wel weer fijn dat we alle punten die in het bestek staan zonder meerkosten mogen plaatsen waar we willen.

Wat ik mij nog afvraag. Ik wil op 1 punt buiten een beveiligingscamera plaatsen en wilde daar een stroompunt hebben. De aannemer gaf aan dat ik daar beter utp kon laten plaatsen omdat die camera's tegenwoordig hun stroom via utp krijgen, ik verwachtte via wifi een verbinding te maken met een camera. Is dat jullie ervaring ook?

  • jacovn
  • Registratie: Augustus 2001
  • Nu online
NLS_ schreef op maandag 7 mei 2018 @ 08:58:

Wat ik mij nog afvraag. Ik wil op 1 punt buiten een beveiligingscamera plaatsen en wilde daar een stroompunt hebben. De aannemer gaf aan dat ik daar beter utp kon laten plaatsen omdat die camera's tegenwoordig hun stroom via utp krijgen, ik verwachtte via wifi een verbinding te maken met een camera. Is dat jullie ervaring ook?
Utp trekken naar meterkast, en daar ofwel een switch met POE of een midspan (POE injector) gebruiken.

Want een beetje boef heeft een wifi en een GSM Blocker natuurlijk, en dan doet je camera niets meer.

8x330 NO12.5°, 8x330 ZW12.5°, 8x350 ZW60°, 8x325 NO10°, SE8K, P500. 6x410 ZW10° Enphase


  • ArCadE
  • Registratie: Januari 2000
  • Laatst online: 10:58

ArCadE

No banana available

jogaa schreef op vrijdag 4 mei 2018 @ 14:39:
[...]


Het probleem met stadsverwarming is meer dat je praktisch geen keus hebt. Je moet er aan meedoen. Zonder stadsverwarming kan je zelf kiezen bij welke partij je de energie afneemt, met fikse kortingen tot gevolg. Met stadsverwarming weet je zeker dat je de hoofdprijs betaalt voor energie.
Tegenwoordig kun je met stadsverwarming ook kiezen voor een andere leverancier.

  • d0s
  • Registratie: Augustus 2004
  • Laatst online: 12-11 22:54

d0s

sssst

Vandaag aangenaam verrast door de aannemer; aankondiging komt op de kopersportaal dat kopers een gespecificeerd overzicht gaan krijgen van de PV-installatie + werkzaamheden t.b.v. de BTW teruggaaf.

Daarnaast vorige week termijn 3 betaald: assemblage van de woning op de bouwplaats. Assemblage met recht: binnen 3 weken van fundering tot aan de kap erop :)

Verwachte oplevering is nu ná de bouwvak.

  • fmb
  • Registratie: Januari 2002
  • Laatst online: 10-11 22:18

fmb

d0s schreef op maandag 7 mei 2018 @ 14:45:
Vandaag aangenaam verrast door de aannemer; aankondiging komt op de kopersportaal dat kopers een gespecificeerd overzicht gaan krijgen van de PV-installatie + werkzaamheden t.b.v. de BTW teruggaaf.

Daarnaast vorige week termijn 3 betaald: assemblage van de woning op de bouwplaats. Assemblage met recht: binnen 3 weken van fundering tot aan de kap erop :)

Verwachte oplevering is nu ná de bouwvak.
Leuk!

En erg fijn van de BTW specificatie voor de zonnepanelen. Ik heb er nog niet om gevraagd, dus op dit moment moet ik hopen dat ik die ook ga krijgen.

WP: Remeha Elga Ace 6kW. PV: 14 x 310 wp Suntech + 10 x 380 wp Q-Cells, micro omvormers IQ7 & IQ7+ Enphase.


Verwijderd

d0s schreef op maandag 7 mei 2018 @ 14:45:
Vandaag aangenaam verrast door de aannemer; aankondiging komt op de kopersportaal dat kopers een gespecificeerd overzicht gaan krijgen van de PV-installatie + werkzaamheden t.b.v. de BTW teruggaaf.

Daarnaast vorige week termijn 3 betaald: assemblage van de woning op de bouwplaats. Assemblage met recht: binnen 3 weken van fundering tot aan de kap erop :)

Verwachte oplevering is nu ná de bouwvak.
Dus de standaard zonnepanelen die bij ons op dak gelegd worden daarvan zou ik dus nog een rekening kunnen opvragen om de btw af te kunnen trekken van ons nieuwbouwhuis?

  • d0s
  • Registratie: Augustus 2004
  • Laatst online: 12-11 22:54

d0s

sssst

Verwijderd schreef op maandag 7 mei 2018 @ 16:12:
[...]


Dus de standaard zonnepanelen die bij ons op dak gelegd worden daarvan zou ik dus nog een rekening kunnen opvragen om de btw af te kunnen trekken van ons nieuwbouwhuis?
Zeker. Sinds VEH zich ermee is gaan bemoeien lijkt dat overigens steeds makkelijker te gaan bij veel aannemers. Is vaak toch de moeite waard, je hebt het al snel over honderden euro's.

Het is overigens geen aftrek, maar een teruggaaf voor ondernemers (waar je als particulier ook nog van kan profiteren).

[ Voor 11% gewijzigd door d0s op 07-05-2018 17:59 ]


  • Hertogjan_666
  • Registratie: Oktober 2014
  • Laatst online: 11-11 22:42
Hallo allemaal..
Wij hebben in december 2016 getekend voor een nieuwbouw hoekwoning met garage in Gelderland. Kleinschalig ongeveer 30 woningen. Het was de planning te starten in april 2017.. Toen we ergens eind 1e kw 2017 met het kopers begeleiding team alles doornamen over opties etc vertelde ze nog bijna starten leuke tijd voor jullie...blabla.
Kwamen we thuis lag er een brief in de brievenbus van de bouwer met een leuke mededeling de bouw wordt 5 maanden uitgesteld en begint in september 2017!!!! Konden ze dat niet ff vertellen bij de kopersbegeleiding.

Al met al veel verschuiving zo met de plannen. Een geluk ons huis nog niet verkocht en dus zo laat mogelijk doen.. Voordeel wel nu prijsverhoging markt...
Veel geneuzel gehad met opties wat wel of niet kon.. Pffff. Maar veel zeuren deden ze met veel tegenzin toch specifieke wensen.
Standaard opties:
Uitbouw 2.40 zag prijzen in dit forum voorbij komen d8 dan is onze bouwer goedkoop.. 13k.
Schuifpui
Garage deur vervangen door dubbele deuren.. Opsplitsen garage. Van 2 slaapkamers 1 maken en nog enkele kleine aanpassingen cv, dakvenster vergroten badkamer, kraantje hier stopcontacten verplaatsen en loze leidingen etc..

Wij zijn nu ook 2 maanden bezig geweest om maar te achterhalen wat voor zonnepanelen er op komen... Offerte van de bouwer stond het niet op en 1000 euro per plaatje vonden wij wat teveel.. Zou ons 8k extra kosten.. Terwijl je het voor de helft kan doen... Is het bij jullie ook zo duur? Al met al voelen wij ons opgelicht met zulke prijzen na zelf wat rond te neuzen naar panelen...
We hopen nu nog voor de bouwvak ons huis opgeleverd te krijgen..... En op tijd nog wat te regelen met de panelen...

  • Xtince
  • Registratie: Maart 2015
  • Laatst online: 19-06 07:24
Hertogjan_666 schreef op maandag 7 mei 2018 @ 20:20:
Hallo allemaal..
Wij hebben in december 2016 getekend voor een nieuwbouw hoekwoning met garage in Gelderland. Kleinschalig ongeveer 30 woningen. Het was de planning te starten in april 2017.. Toen we ergens eind 1e kw 2017 met het kopers begeleiding team alles doornamen over opties etc vertelde ze nog bijna starten leuke tijd voor jullie...blabla.
Kwamen we thuis lag er een brief in de brievenbus van de bouwer met een leuke mededeling de bouw wordt 5 maanden uitgesteld en begint in september 2017!!!! Konden ze dat niet ff vertellen bij de kopersbegeleiding.

Al met al veel verschuiving zo met de plannen. Een geluk ons huis nog niet verkocht en dus zo laat mogelijk doen.. Voordeel wel nu prijsverhoging markt...
Veel geneuzel gehad met opties wat wel of niet kon.. Pffff. Maar veel zeuren deden ze met veel tegenzin toch specifieke wensen.
Standaard opties:
Uitbouw 2.40 zag prijzen in dit forum voorbij komen d8 dan is onze bouwer goedkoop.. 13k.
Schuifpui
Garage deur vervangen door dubbele deuren.. Opsplitsen garage. Van 2 slaapkamers 1 maken en nog enkele kleine aanpassingen cv, dakvenster vergroten badkamer, kraantje hier stopcontacten verplaatsen en loze leidingen etc..

Wij zijn nu ook 2 maanden bezig geweest om maar te achterhalen wat voor zonnepanelen er op komen... Offerte van de bouwer stond het niet op en 1000 euro per plaatje vonden wij wat teveel.. Zou ons 8k extra kosten.. Terwijl je het voor de helft kan doen... Is het bij jullie ook zo duur? Al met al voelen wij ons opgelicht met zulke prijzen na zelf wat rond te neuzen naar panelen...
We hopen nu nog voor de bouwvak ons huis opgeleverd te krijgen..... En op tijd nog wat te regelen met de panelen...
Wel balen zeg dat het allemaal zo lang duurt. Mijn aannemer loopt op schema en dat wat is aangegeven, wordt ook nageleefd (tot nu toe). Waar in Gelderland zit je?

Ja, prijzen van meerwerkopties verschillen idd heel erg per aannemer. Maar om nu te spreken over oplichting? Neem aan dat je niet verplicht bent alle opties bij de aannemer af te nemen. Als je denkt dat het achteraf goedkoper kan (en ook praktisch is om het achteraf te doen), kan je daar neem ik aan bewust voor kiezen.

Verwijderd

Groot nadeel van nieuwbouw is dat je lang moet wachten. Bij mijn eerste nieuwbouw heb ik 3 jaar moeten wachten vanaf moment dat ik bij de makelaar was geweest tot oplevering! Heel frustrerend!

Deze keer zijn we afgelopen februari bij de makelaar geweest en het lijkt erop dat ze nu gaan beginnen want de piketpaaltjes staan in de grond :) Moet wel zeggen dat we laat in het project gestapt zijn omdat er een woning vrij was gekomen in deze fase.

Afbeeldingslocatie: https://www.mupload.nl/img/y3drdkfic4d.jpg

  • Hertogjan_666
  • Registratie: Oktober 2014
  • Laatst online: 11-11 22:42
Xtince schreef op maandag 7 mei 2018 @ 21:28:
[...]


Wel balen zeg dat het allemaal zo lang duurt. Mijn aannemer loopt op schema en dat wat is aangegeven, wordt ook nageleefd (tot nu toe). Waar in Gelderland zit je?

Ja, prijzen van meerwerkopties verschillen idd heel erg per aannemer. Maar om nu te spreken over oplichting? Neem aan dat je niet verplicht bent alle opties bij de aannemer af te nemen. Als je denkt dat het achteraf goedkoper kan (en ook praktisch is om het achteraf te doen), kan je daar neem ik aan bewust voor kiezen.
Plaatsje Haaften... Zeker jet verplicht maar meer dan het dubbele vragen voor een paneel vind ik oplichting.. Nu weten we gelukkig de elektricien die het gast monteren alleen die mag ons geen offerte geven.. Zou makkelijk zijn als die het gelijk kon doen met het plaatsen van de standaard 4 stuks vanuit de bouw zelf ivm vergunning eis..

Hebben jullie nog een idee wat er aan uitbloei gedaan kan worden?

  • Bastien
  • Registratie: Augustus 2001
  • Niet online

Bastien

Probleemeigenaar

d0s schreef op maandag 7 mei 2018 @ 17:55:
[...]


Zeker. Sinds VEH zich ermee is gaan bemoeien lijkt dat overigens steeds makkelijker te gaan bij veel aannemers. Is vaak toch de moeite waard, je hebt het al snel over honderden euro's.

Het is overigens geen aftrek, maar een teruggaaf voor ondernemers (waar je als particulier ook nog van kan profiteren).
Ik heb het ook vorige week ontvangen van mijn aannemer. Duurde 2+ weken voor een reactie maar iedereen in het project heeft het nu gekregen (redelijk wat mensen hadden erom gevraagd, zal geholpen hebben), afhankelijk van het aantal (verplichte) panelen. Dus nu de BD maar lastig vallen en mijzelf alvast rijk rekenen. :P

En mijn hele huis is nu binnen gestuct wat betreft muren en plafonds. V groeven dicht laten maken en de boel glad gemaakt en gesausd. Resultaat ben ik zeer tevreden over. Geen enkele scheur te bekennen 4 dagen na de oplevering van het werk. :+

[ Voor 15% gewijzigd door Bastien op 07-05-2018 22:45 ]

Je privacy is voor het eerst geschonden bij de eerste echo. Daarna wordt het er de rest van je leven niet meer beter op.


  • Snowhite0901
  • Registratie: Juni 2012
  • Laatst online: 10:12
Op hoeveel staat zo'n offerte dan ongeveer? Vast niet dezelfde prijs als die ze voor extra panelen rekenen.

12 x 385Wp op HD4000SolarEdge zuid 13° pvoutput


  • EiT
  • Registratie: Februari 2010
  • Laatst online: 08:58

EiT

Hoe 'snel' kregen jullie koopbegeleiding?

Wij hebben nog een maand of 2 voor ze beginnen, bij vraag wanneer wij koopbegeleiding krijgen kregen we een reactie dat ze dit nog niet wist.

Wij hebben meerwerk, incl. badkamer/keuken, gecalculeerd op een ton, zou toch wel graag willen weten of we dingen kunnen bezuinigen. Speelkamer kost bijvoorbeeld 9000 euro, ik zou wel eens willen weten waar die kosten in zitten. Nu is een deur laten plaatsen door hun, 2000 euro, en zelf een gips wand zetten goedkoper. Maar wat mis ik buiten een stukje glas op deurlengte en wat ventilatie punten nog meer.. de extra zonnepaneel voor de EPC?
Komt er op neer dat we door bepaalde keuzes net iets anders te doen geld kunnen besparen en besteden aan andere zaken. Maar ik ben nu bang dat we alles in een keer heel snel moeten beslissen.

Keuken is ook een crime. We hebben een bepaalde smaak en die valt net buiten budget.

Druk en zetfouten voorbehouden.


  • Annuk
  • Registratie: Juli 2010
  • Laatst online: 11:31
asdf25 schreef op zondag 6 mei 2018 @ 11:10:
{Knip}
Aannemer voert er bij mij ook een paar uit, maar sommige (begane grond) doe ik zelf. Moest 150€ per extra loze leiding betalen. Op de begane grond heb ik dat snel terugverdient, even onder de vloer kruipen en kabeltje trekken, uurtje werk. Als je een loze leiding uit de muur wilt laten lopen wordt het natuurlijk een ander verhaal. Laat alleen een uitbouw uitvoeren door de aannemer. Badkamer, toilet, plafondafwerking, schuur, plinten etc. is allemaal minderwerk. Voor een paar dingen (zonnepanelen, groter raam, op zolder ramen die open kunnen ipv vast glas) nog een prijsopgave gevraagd maar schrok telkens behoorlijk van de prijs.
{Knip}
Zo zou ik het bij voorkeur ook doen, maar hoe wordt je woning verder op/afgeleverd?

Als je vv e.d. hebt kan je nog wel eens een klote klus hieraan hebben. Ga je ervan uit het ligt niet te dicht langs de muren (bv 15cm uit de wand), ligt er een buis langs de wand van een andere/2e lus in je woonkamer oid.
Of dat er onderlangs een elektra leiding ligt bv ivm. geschakelde wcd's en dat je erdoor heen boort.
Stukje been there done that.

Zorg iig dat je iemand achter de hand hebt die het snel voor je kan en wil fixen.

Zelfde geldt natuurlijk voor als je wanden gestuced worden opgeleverd en je zelf (nog) geen stucadoor hebt geregeld (duurt vrij lang op het moment voordat ze weer tijd hebben schijnt).

bovenstaande niet bedoeld om te bashen ofzo maar meer van wees er op verdacht.

Vake beej te bange! Maar soms beej oek te dapper! ;)
Zonder de agrariër ook geen eten voor de vegetariër!


  • DutchAddick
  • Registratie: December 2002
  • Laatst online: 04-11 14:21
Bastien schreef op maandag 7 mei 2018 @ 22:42:
[...]
Ik heb het ook vorige week ontvangen van mijn aannemer. Duurde 2+ weken voor een reactie maar iedereen in het project heeft het nu gekregen (redelijk wat mensen hadden erom gevraagd, zal geholpen hebben), afhankelijk van het aantal (verplichte) panelen. Dus nu de BD maar lastig vallen en mijzelf alvast rijk rekenen. :P

En mijn hele huis is nu binnen gestuct wat betreft muren en plafonds. V groeven dicht laten maken en de boel glad gemaakt en gesausd. Resultaat ben ik zeer tevreden over. Geen enkele scheur te bekennen 4 dagen na de oplevering van het werk. :+
Ik ben benieuwd naar jouw ervaringen met scheuren de komende maanden. Wij willen ook stucen, maar het is ons sterk afgeraden ivm de werking van het huis.

  • wantsome
  • Registratie: Juli 2012
  • Laatst online: 06-05-2024
Bastien schreef op maandag 7 mei 2018 @ 22:42:
[...]
Ik heb het ook vorige week ontvangen van mijn aannemer. Duurde 2+ weken voor een reactie maar iedereen in het project heeft het nu gekregen (redelijk wat mensen hadden erom gevraagd, zal geholpen hebben), afhankelijk van het aantal (verplichte) panelen. Dus nu de BD maar lastig vallen en mijzelf alvast rijk rekenen. :P

En mijn hele huis is nu binnen gestuct wat betreft muren en plafonds. V groeven dicht laten maken en de boel glad gemaakt en gesausd. Resultaat ben ik zeer tevreden over. Geen enkele scheur te bekennen 4 dagen na de oplevering van het werk. :+
Ben benieuwd hoe dit zich behoudt. Wij willen ook liefst stucwerk. Zijn je wanden van beton of kalkzandsteen?

  • Tassadar32
  • Registratie: September 2006
  • Laatst online: 09-11 16:07
@Verwijderd Wij hebben bij Wagemakers wel een gespecificeerde factuur voor zowel de zonnepanelen + installatie en warmtepomp + installatie gekregen maar hier moest flink om gezeurd worden. De trend lijkt wel te zijn dat dit steeds normaler word.

27x320Wp LG | 7.4 kW W/W warmtepomp | 2024 Model 3 Performance+FSD | 2019 Zoë 40kWh Star Wars edition


  • TKroon
  • Registratie: December 2006
  • Niet online
EiT schreef op maandag 7 mei 2018 @ 23:06:
Hoe 'snel' kregen jullie koopbegeleiding?

Wij hebben nog een maand of 2 voor ze beginnen, bij vraag wanneer wij koopbegeleiding krijgen kregen we een reactie dat ze dit nog niet wist.

Wij hebben meerwerk, incl. badkamer/keuken, gecalculeerd op een ton, zou toch wel graag willen weten of we dingen kunnen bezuinigen. Speelkamer kost bijvoorbeeld 9000 euro, ik zou wel eens willen weten waar die kosten in zitten. Nu is een deur laten plaatsen door hun, 2000 euro, en zelf een gips wand zetten goedkoper. Maar wat mis ik buiten een stukje glas op deurlengte en wat ventilatie punten nog meer.. de extra zonnepaneel voor de EPC?
Komt er op neer dat we door bepaalde keuzes net iets anders te doen geld kunnen besparen en besteden aan andere zaken. Maar ik ben nu bang dat we alles in een keer heel snel moeten beslissen.

Keuken is ook een crime. We hebben een bepaalde smaak en die valt net buiten budget.
Wij zitten 4 maanden voor de bouw, maar hebben wel al een eerste deadline van 18 mei voor de koperslijst van uitbouwen en gevelwijzigingen. De volgende deadline van de ruw- en afbouw ligt op 2 juli. Wij zijn van plan de keuken op een andere locatie dan de standaardlocatie te laten plaatsen, wat eigenlijk bij de ruw- en afbouw terugkomt. Navraag bij de contactpersoon bleek "dat hij het zo snel mogelijk, maar uiterlijk voor de eerste deadline van 18 mei wilde weten". Overal dus zelf achteraan gaan.... En ik doe alles per mail, dan heb ik het zwart op wit. Geen contactformulieren invullen (daar krijg je geen bewijs van), en telefonische toezeggingen heb ik ook niks aan.

Daikin Altherma 3 LT 8 kW + 14,2 kWp PV


  • d0s
  • Registratie: Augustus 2004
  • Laatst online: 12-11 22:54

d0s

sssst

Wij willen tussen onze woonkamer en garage een doorgang maken t.b.v. een deurkozijn.

De muur bestaat uit 10cm betonnen prefab spouwblad, 15 cm isolatie en 10 cm schoonmetselwerk. Ik heb bij diverse aannemers advies gevraagd en ze zeggen allemaal iets anders vwb het aanbrengen van aan latei in het prefab beton.

Overgrote deel geeft aan dat als de sparing maximaal een meter breed is er geen latei nodig is. Bij een volledig gemetselde muur zou het wel noodzakelijk zijn.

Iemand hier ervaring mee?

  • Bastien
  • Registratie: Augustus 2001
  • Niet online

Bastien

Probleemeigenaar

Snowhite0901 schreef op maandag 7 mei 2018 @ 22:45:
Op hoeveel staat zo'n offerte dan ongeveer? Vast niet dezelfde prijs als die ze voor extra panelen rekenen.
Dat verbaasde mij... de standaard panelen hebben op de factuur een hogere prijs dan de extra panelen. Ik klaag niet. :9
DutchAddick schreef op dinsdag 8 mei 2018 @ 07:11:
[...]


Ik ben benieuwd naar jouw ervaringen met scheuren de komende maanden. Wij willen ook stucen, maar het is ons sterk afgeraden ivm de werking van het huis.
wantsome schreef op dinsdag 8 mei 2018 @ 08:37:
[...]

Ben benieuwd hoe dit zich behoudt. Wij willen ook liefst stucwerk. Zijn je wanden van beton of kalkzandsteen?
Ik reken erop dat er vast wel scheurvorming zal komen. Maar als ik zie wat de stukadoor de afgelopen 3 weken heeft gedaan in huis, dan is dat niet iets wat je over een jaar of 3-5 alsnog wil laten doen. Je kunt echt je hele huis leeghalen, anders is alles achteraf wit. Hoe goed ze ook afplakken. Dan werk ik (of laat ik) liever over een jaar of twee wat scheuren dichtmaken en saus ik het (deels) opnieuw.

Ik heb het niet zo op die horror verhalen over dat je hele stucwerk uit elkaar valt want je huis is te nieuw. In mijn geval staan de binnenmuren er ook al 9 maanden (bouw ging niet echt snel) en liggen de vloerplaten er dus ook al zolang. Dus het heeft zich al best wat kunnen zetten. Het is binnen opgebouwd uit kalkzandsteen en geen prefab betonlego. En daarbij komt dat ik behang gewoon lelijk vindt, dus dat zal er bij mij niet snel opkomen.

Maar als je wilt gaan stuken, regel dan nu al iemand en hou die (te) vaak op de hoogte van de voortgang. Die mensen hebben het zo onwijs druk dat een project als een heel huis niet zomaar ingepland kan worden. Bij mij is het met passen en meten ingepland zodra ik de opleverdatum wist, maar dan nog moest ik wachten en duurde het werk volgens mij ook wat langer omdat er nog andere projecten liepen. En dan nog heb je geen garantie uiteraard over hoe snel na de oplevering ze kunnen beginnen. Het is echt gekkenwerk in de (af)bouwwereld zo onderhand.

[ Voor 13% gewijzigd door Bastien op 08-05-2018 09:57 ]

Je privacy is voor het eerst geschonden bij de eerste echo. Daarna wordt het er de rest van je leven niet meer beter op.


  • Tassadar32
  • Registratie: September 2006
  • Laatst online: 09-11 16:07
Hier ook alles glad gestuct. Na twee maanden alleen een paar kleine krimpscheurtjes bij de aanzet van de trap en onder een vensterbank, de V-naden zijn gewoon strak. Bij ons was de afweging ook dat stucen maar beter gedaan kan zijn. Glad is goed later bij te werken als het nodig mocht zijn.

27x320Wp LG | 7.4 kW W/W warmtepomp | 2024 Model 3 Performance+FSD | 2019 Zoë 40kWh Star Wars edition


  • wantsome
  • Registratie: Juli 2012
  • Laatst online: 06-05-2024
@Bastien

Wij krijgen ook kalkzandsteen (gelukkig). Verwacht wel dat dat eerder scheuren oplevert dan het prefab bouw lego beton. Gelukkig hebben wij ook breedplaatvloeren, scheelt de helft aan V naden ten opzichte van kanaalplaatvloeren. Toegegeven het zal wat minder snel gaan, maar toch hanteert onze bouwer dezelfde oplevertermijn dan de bouwer van fase 1 die wel met prefab beton en kanaalplaatvloeren werkt.

Bedankt voor je tip. Wil het inderdaad niet pas op het laatste moment regelen. Maar wacht even af tot we wat concreter weten wanneer onze woning opgeleverd wordt (zijn pas net begonnen). Dan hier en daar even wat offertes opvragen. Wat voor prijs per m2 had jij?

  • wantsome
  • Registratie: Juli 2012
  • Laatst online: 06-05-2024
Tassadar32 schreef op dinsdag 8 mei 2018 @ 10:03:
Hier ook alles glad gestuct. Na twee maanden alleen een paar kleine krimpscheurtjes bij de aanzet van de trap en onder een vensterbank, de V-naden zijn gewoon strak. Bij ons was de afweging ook dat stucen maar beter gedaan kan zijn. Glad is goed later bij te werken als het nodig mocht zijn.
Ook kalkzandsteen? Dan ben ik volledig overtuigd en gaan we ook stuccen :)
Wat heb je per m2 betaald?

  • Tassadar32
  • Registratie: September 2006
  • Laatst online: 09-11 16:07
@wantsome Inderdaad kalkzandsteen met betonnen kanaalplaten voor de ruwbouw. Onze stucadoor gaf een all-in prijs voor stucen en schilderen maar kon wel gelijk 4 van de 6 woningen in ons rijtje doen (en dus lekker doorwerken) dus ik heb geen m2 prijs voor je. We waren all-in zo'n € 5500 kwijt voor stucen muren + dichtzetten v-naden + stucen plafonds + alles sauzen. Resultaat is uitstekend, hij is nog een paar keer langs geweest om kosteloos schade van het verhuizen (wasmachine de trap op) te herstellen en heeft ons ook nog een extra coating gegeven in de keuken om deze schrobklasse 1 te maken (de rest is afwasbaar).

Woning is een 2-1 kap met 2.5m uitbouw.

27x320Wp LG | 7.4 kW W/W warmtepomp | 2024 Model 3 Performance+FSD | 2019 Zoë 40kWh Star Wars edition


  • headhunter1985
  • Registratie: December 2012
  • Laatst online: 07:08
d0s schreef op dinsdag 8 mei 2018 @ 09:17:
Wij willen tussen onze woonkamer en garage een doorgang maken t.b.v. een deurkozijn.

De muur bestaat uit 10cm betonnen prefab spouwblad, 15 cm isolatie en 10 cm schoonmetselwerk. Ik heb bij diverse aannemers advies gevraagd en ze zeggen allemaal iets anders vwb het aanbrengen van aan latei in het prefab beton.

Overgrote deel geeft aan dat als de sparing maximaal een meter breed is er geen latei nodig is. Bij een volledig gemetselde muur zou het wel noodzakelijk zijn.

Iemand hier ervaring mee?
Indien het een prefab betonnen wand is, dient er extra wapening te worden toegepast (in hoeverre het mogelijk is). Bij metselwerk kan dit makkelijker (middels latei) worden gerealiseerd.

Echter betwijfel ik ten zeerste als de aannemer hierin meegaat, aangezien voor prefab wanden een mal wordt gemaakt en deze voor het project (niet per woning) wordt gebruikt. Het toevoegen van een sparing zal een andere mal of een aanpassing van de bestaande mal betekenen. Als ze het toestaan, verwacht ik een forse meerprijs.

  • DutchAddick
  • Registratie: December 2002
  • Laatst online: 04-11 14:21
Stel ik heb een bouwdepot van 300K en daarvan is 100K inmiddels gebruikt voor het betalen van facturen aan de aannemer. Is het maandelijkse bedrag dat je betaalt voor de hypotheek dan 1/3 van het volledige maandelijkse hypotheekbedrag of het volledige maandelijkse hypotheekbedrag?

  • Ancent
  • Registratie: Juni 2017
  • Laatst online: 19-12-2023
DutchAddick schreef op dinsdag 8 mei 2018 @ 19:08:
Stel ik heb een bouwdepot van 300K en daarvan is 100K inmiddels gebruikt voor het betalen van facturen aan de aannemer. Is het maandelijkse bedrag dat je betaalt voor de hypotheek dan 1/3 van het volledige maandelijkse hypotheekbedrag of het volledige maandelijkse hypotheekbedrag?
100% van het hypotheek bedrag (rente, aflossing en premies) -/- 67% (2/3) aan creditrente over het hypotheekbedrag.

De creditrente op een bouwdepot is niet in alle gevallen gelijk aan de te betalen hypotheekrente.

  • MadEgg
  • Registratie: Februari 2002
  • Laatst online: 07:17

MadEgg

Tux is lievvv

Ter indicatie: Na de grondprijs en de eerste bouwtermijn (28 procent van het totaalbedrag) betalen wij 60 procent van het uiteindelijke volledige maandelijkse annuitaire hypotheekbedrag.

[ Voor 3% gewijzigd door MadEgg op 08-05-2018 19:26 ]

Tja


  • d0s
  • Registratie: Augustus 2004
  • Laatst online: 12-11 22:54

d0s

sssst

headhunter1985 schreef op dinsdag 8 mei 2018 @ 16:12:
[...]


Indien het een prefab betonnen wand is, dient er extra wapening te worden toegepast (in hoeverre het mogelijk is). Bij metselwerk kan dit makkelijker (middels latei) worden gerealiseerd.

Echter betwijfel ik ten zeerste als de aannemer hierin meegaat, aangezien voor prefab wanden een mal wordt gemaakt en deze voor het project (niet per woning) wordt gebruikt. Het toevoegen van een sparing zal een andere mal of een aanpassing van de bestaande mal betekenen. Als ze het toestaan, verwacht ik een forse meerprijs.
Ik wil het juist na oplevering laten doen. De aannemer bood de optie alleen aan ivm een stenen garage en die meerprijs was ons iets te gortig. De optie was er dus wel, maar niet icm de standaard houten garage.

  • inkie1
  • Registratie: November 2014
  • Laatst online: 12-11 17:47
MadEgg schreef op dinsdag 8 mei 2018 @ 19:25:
Ter indicatie: Na de grondprijs en de eerste bouwtermijn (28 procent van het totaalbedrag) betalen wij 60 procent van het uiteindelijke volledige maandelijkse annuitaire hypotheekbedrag.
Je begint direct met de aflossing van het volledige hypotheek bedrag en je betaalt rente over hetgeen je opneemt.

  • Proton_
  • Registratie: November 2011
  • Laatst online: 12-11 22:24

Proton_

Moderator Wonen & Mobiliteit 

Team Welles

De oplevering van mijn huis is uitgesteld wegens de planning van de nutsbedrijven.
Hierdoor zullen de werkbare dagen overschreden worden.
Is een deeloplevering realistisch, zodat ik alvast kan behangen/vloer leggen/...?

Het ik-wil-een-warmtepomp FAQ topic- '23 MG5, douchen met wtw en Auer Edel Eau, verwarming met Vaillant Arotherm Plus.

Pagina: 1 ... 62 ... 102 Laatste

Dit topic is gesloten.

Let op:
Dit topic is voor projectmatige woningbouw. Zelfbouw kan in [Ervaringen met het bouwen van een huis - Deel 2