WP: ME PUHZ-SW75YAA + ERSD-VM2D + EV-WP-TWS-1W 300; AC: ME MXZ-2F42VF + 2x MSZ-LN25VGV; PV: 14.08 kWp O/W + SMA STP 8.0; Vent: Zehnder Q600 ERV + Ubbink AirExcellent.
Ben benieuwd waar jij op uit gaat komen..!Marnix17 schreef op vrijdag 8 april 2022 @ 19:20:
@Gramser Thx, das om de hoek bijna, ga er achteraan.
Mooi. Alhoewel, een direct pompcontact had weer wat euro's gescheeld, maar misschien gaan de andere mogelijkheden later nog van pas komen. Als we VV in de badkamer aanleggen ofzo.Adriaan71 schreef op vrijdag 8 april 2022 @ 19:18:
[...]
Bij een buffer parallel ( hydraulische scheiding dus ) heb je de vr70 nodig met voeler in vat en een pompgroep voor je afgifte systeem.
Je kamer thermostaat stel je in op uitgebreid en dan heb je dus WAR regeling met je kamer thermostaat als referentie punt die het systeem ( dus je pomp ) aanstuurt.
Als je kamer op temperatuur is gaat je pompgroep uit en als de kamer thermostaat vraagt gaat hij aan.
Zo kan je ook meerder tijdszones maken met verschillende temperaturen.
De WAR regeling bepaald de temperatuur van je cv water welke je met stooktabel kan instellen en ook minimalen aanvoer temperatuur kan je vast zetten.
Nou het minimale vermogen wat die 75/6 doet is 2500 watt meen ik mij te herinneren, de 2 Jagas die ik in de woonkamer heb doen samen zo'n 2500w bij 55/45, en er zitten fans in, dus bij 35 graden zal ik dat ook nog wel kunnen halen. En dan nog een lusje vloerverwarming in de hal, en wat radiatoren die licht meedraaien als het boven erg koud is. Maar in deze tijd heb je het snel op temperatuur, en hoeft er niet continu 2500 watt in het huis warm te krijgen en warm te houden, dat valt dan hopelijk wat te dempen door het buffervat.Andrehj schreef op vrijdag 8 april 2022 @ 19:24:
[...]
Heb je al berekend hoe groot die buffer moet zijn om een beetje te helpen?
Want een WP verpompt zo'n 15 à 20 liter per minuut, zodat een gemiddelde buffer van 100 liter al na een minuut of 5 gevuld is met warm water....
Als je een buffer wilt die tegen pendelen helpt zul je iets van 1000+ liter moeten hebben, en daarvoor is in de meeste huizen geen plek.
[ Voor 31% gewijzigd door _ferry_ op 08-04-2022 19:44 ]
Het ik-wil-een-warmtepomp FAQ topic- '23 MG5, douchen met wtw en Auer Edel Eau, verwarming met Vaillant Arotherm Plus.
Laat ik zeker weten. Interessant om te vergelijken.
Ligt er aan wat allemaal eenvoudig uit te lezen isProton_ schreef op vrijdag 8 april 2022 @ 19:45:
@_ferry_ Wat ga je allemaal loggen? Als je dingen elke minuut opslaat kan je het pendelen goed in de gaten houden.
Sowieso 2x kWh meter, voor de WP en de naverwarmer, en ik heb nu al diverse DS18B20 temperatuur sensoren zitten die ik uitlees in HA. Dus daar kunnen er zonder problemen nog een heel stel bij om bijvoorbeeld de buffervulling en diverse aanvoer/retour temperaturen te monitoren.
[ Voor 3% gewijzigd door _ferry_ op 08-04-2022 19:58 ]
Ik snap ook wel waarom je een buffer wilt, maar probeer je uit te leggen dat dat met een vaatje van 100 liter (wat enkel als hydraulische scheiding werkt) niet gaat lukken. Dat vat moet voor jouw doel minimaal een factor 10 groter zijn._ferry_ schreef op vrijdag 8 april 2022 @ 19:41:
Nou het minimale vermogen wat die 75/6 doet is 2500 watt meen ik mij te herinneren, de 2 Jagas die ik in de woonkamer heb doen samen zo'n 2500w bij 55/45, en er zitten fans in, dus bij 35 graden zal ik dat ook nog wel kunnen halen. En dan nog een lusje vloerverwarming in de hal, en wat radiatoren die licht meedraaien als het boven erg koud is. Maar in deze tijd heb je het snel op temperatuur, en hoeft er niet continu 2500 watt in het huis warm te krijgen en warm te houden, dat valt dan hopelijk wat te dempen door het buffervat.
Jij beschrijft precies één van de twee problemen van een WP in combinatie met radiatoren: Je hebt voor een WP eigenlijk een dikke thermische buffer nodig. Ik heb voor verwarming in dit jaargetijde ook veel minder nodig dan het minimum vermogen van de WP, maar de vloeren bufferen dat makkelijk, zodat de WP slechts 1 run per dag maakt. Dat is met radiatoren veel lastiger voor elkaar te krijgen.
(Het andere probleem van radiatoren is de hogere watertemperatuur).
WP: ME PUHZ-SW75YAA + ERSD-VM2D + EV-WP-TWS-1W 300; AC: ME MXZ-2F42VF + 2x MSZ-LN25VGV; PV: 14.08 kWp O/W + SMA STP 8.0; Vent: Zehnder Q600 ERV + Ubbink AirExcellent.
De keuken en hal hebben wel VV, alleen een nogal grote h.o.h. afstand (aangelegd door vorige bewoner, doe het dan meteen goed zou je denken). Als we de keuken gaan vervangen pak ik dat wel aan.
Edit, 1e etage is overigens een mix van radiatoren en convectoren. De 2 kamers die ik al heb opgeknapt zijn voorzien van een ruim bemeten Jaga.
[ Voor 20% gewijzigd door _ferry_ op 08-04-2022 21:12 ]
Met een warmtepomp: hoe ga je dan om met verwarmen per ruimte?
Ik heb nu een CV met Honeywell Evohome met VV 11 groepen, 4 zones, en op de 1e verdieping 3 kamers met radiatoren met HR92 knoppen.
Ieder vertrek regelt zichzelf automatisch. Hoe stuur ik met een WP per vertrek?
16 x 455Wp & Enphase IQ7+ (7,3 kWp) - PVoutput.org
Het ik-wil-een-warmtepomp FAQ topic- '23 MG5, douchen met wtw en Auer Edel Eau, verwarming met Vaillant Arotherm Plus.
Verwijderd
De 6kW is specifiek bedoeld om nog stiller te werken waar dat echt nodig is, dit is een gereduceerde 7kW, dus grotere ventilator, verdamper etc waardoor deze stiller werkt en iets betere rendementen draait. Echter bij -10 zal de 5kW meer vermogen over houden, aangezien de compressor limieten de warmtepomp niet verder laten op toeren. Voor jouw situatie lijkt mij de 5kW al voldoende, hoewel ik niet alles weet over de specifieke situatie natuurlijk.Gramser schreef op donderdag 7 april 2022 @ 15:24:
Nou, ik heb zowaar m'n aanstaande zover dat ik offertes voor een warmtepompoplossing mag gaan vragen.
Ik denk dat ik al een groot gedeelte van de oplossing uitgedacht heb. Een aroTHERM Plus 55/6 in combinatie met een uniTOWER. Dat moet voldoende zijn om het huis warm te krijgen met een aanvoertemperatuur van pak 'm beet 35 graden, en uitgaande van koevlaas2-formule kom ik met een gemiddeld gasverbruik van 1200kuub (ruim genomen) over de laatste drie jaar uit op net geen 6kW. De unitower van 188 liter moet ons drieën met een waterverbruik van 75m3 op jaarbasis ook makkelijk kunnen voorzien van voldoende SWW.
Daarom dus de 55/6. Ik vraag me wel af wat nou het grote verschil is met de 65/6. Beide lijken nogal veel op elkaar alleen kan de 55/6 iets verder terug moduleren en heeft de 65/6 een iets betere COP bij verschillende aanvoertemperaturen en buitentemperaturen. Het max vermogen scheelt dan weer niet zoveel.
Plus dat in combinatie met een uniTOWER de 55/6 een buffertankje in de uniTOWER zelf geplaatst kjan worden, terwijl de 65/6 alweer een externe buffer van 45l aan de muur zou moeten hebben. Dan kom je al gauw goedkoper uit met de 55/6. Mocht-ie net tekort komen in de écht koude temperaturen, zijn daar wel oplossingen voor te verzinnen. De vraag aangaande de buffer is dan: heb ik met max 80m2 vloerverwarming zo'n buffer nodig? Ik heb nog één kleine badkamerradiator die meelift op de aanvoer van de vvw. Ik wil de mengverdeler vervangen door een pomploze variant.
Wie kan me hier nog een beetje op weg helpen met die verschillen tussen de twee verschillende warmtepompen? @Adriaan71 of @Proton_ of @Verwijderd misschien?
Installatie hoeft hier niet ingewikkeld te zijn - de warmtepomp komt tegen de muur waar de technische ruimte zich bevindt, dus leidingen en elektra kan direct door de muur. Aangezien het een monobloc betreft, is vermoedelijk een zo kort mogelijke aan- en afvoerleiding het beste. Maar als dit een meter of 4 is, langs de gevel of onder de grond langs die gevel zou dit ook wel moeten gaan, mits goed geïsoleerd?
Nog een laatste vraag - komt de uniTOWER ook op een aparte groep of kan die eventueel gebruik maken van een wasmachine-aansluiting (ik heb geen idee of er een stekker aan dat ding zit).
Nabrander: subsidie. Ik zie wel een subsidiebedrag voor de WP zelf, maar niet voor de uniTOWER. Wel voor de aroSTOR. Zit er wel subsidie op een uniTOWER..?
De uniTOWER kan op een een schone 230V groep, een reeds bezette (beperk dan z’n vermogen) of 400V.
Subsidie geldt enkel voor apparaten welke een warmtepomp hebben/zijn. Zo heeft de aroSTOR een klein warmtepompje en krijgt dus subsidie, en vandaar de uniTOWER niet.
Dan denk ik al wel een keus gemaakt te hebben in WP. Toch denk ik nog eens na over unitower of aroSTOR - ik zie de voordelen van beide oplossingen, maar aangezien de WPB bij ons in de bijkeuken zou komen, vraag ik me wel af hoeveel geluid een WPB maakt… meer dan een MV-box..? Want die hangt daar ook.
In het washok licht hinderlijk, maar een gipsen wandje en binnendeur dempt het geluid al. Ik weet niet hoeveel geluid de fan van de aroStor doet in geluidsbeleving.
Het ik-wil-een-warmtepomp FAQ topic- '23 MG5, douchen met wtw en Auer Edel Eau, verwarming met Vaillant Arotherm Plus.
Ik snap ‘m, ik weet alleen niet wat je met decoupeerzaagbehandelinh bedoeltProton_ schreef op zaterdag 9 april 2022 @ 12:43:
@Gramser mijn Auer Eau met decoupeerzaagbehandeling klinkt een beetje als een oude koelkast x 3.
In het washok licht hinderlijk, maar een gipsen wandje en binnendeur dempt het geluid al. Ik weet niet hoeveel geluid de fan van de aroStor doet in geluidsbeleving.
@WebsphinxieWebsphinxie schreef op vrijdag 8 april 2022 @ 21:55:
Ik zit vandaag plotseling een beetje in mijn oude denkpatroon.
Met een warmtepomp: hoe ga je dan om met verwarmen per ruimte?
Ik heb nu een CV met Honeywell Evohome met VV 11 groepen, 4 zones, en op de 1e verdieping 3 kamers met radiatoren met HR92 knoppen.
Ieder vertrek regelt zichzelf automatisch. Hoe stuur ik met een WP per vertrek?
Ik had tot voor kort hetzelfde: CV-ketel en evohome met 7 zones, verdeeld over 3 verdiepingen in huis.
De CV-ketel ging eruit en de WP kwam erin. En ertussen zit nu een 100 liter buffervat. De WP bewaakt het buffervat (WAR-gestuurd) en evohome stuurt de circulatiepomp van het secundaire circuit (van buffervat het huis in). Het contact van evohome dat anders de ketel (aan/uit) aanstuurt, stuurt nu die circulatiepomp.
Op deze manier behoud je alle functionaliteit. Als één van de ruimtes (zones) in huis vraagt, dan gaat de betreffende zoneklep open en gaat de circulatiepomp draaien. De zone krijgt z’n warmte uit het buffervat. De WP merkt nu dat het vat afkoelt en gaat meteen aan de slag. De WP wordt dus niet direct aangestuurd.
Zo heb ik deze winter gestookt en het werkt als een zonnetje!
Heb je hier wat aan?
Verdraagzaamheid is het hoogste gebod
en wie dat niet eert die schoppen we rot.
<John O`Mill>
Door een hoek uit de behuizing te zagen past hij beter onder het schuine dak.
Het ik-wil-een-warmtepomp FAQ topic- '23 MG5, douchen met wtw en Auer Edel Eau, verwarming met Vaillant Arotherm Plus.
Kan je hier nog je aansluit schema van laten zien. Vooral hoe je je secundaire pomp hebt aangesloten op je evohome.Hippe Lip schreef op zaterdag 9 april 2022 @ 13:18:
[...]
@Websphinxie
Ik had tot voor kort hetzelfde: CV-ketel en evohome met 7 zones, verdeeld over 3 verdiepingen in huis.
De CV-ketel ging eruit en de WP kwam erin. En ertussen zit nu een 100 liter buffervat. De WP bewaakt het buffervat (WAR-gestuurd) en evohome stuurt de circulatiepomp van het secundaire circuit (van buffervat het huis in). Het contact van evohome dat anders de ketel (aan/uit) aanstuurt, stuurt nu die circulatiepomp.
Op deze manier behoud je alle functionaliteit. Als één van de ruimtes (zones) in huis vraagt, dan gaat de betreffende zoneklep open en gaat de circulatiepomp draaien. De zone krijgt z’n warmte uit het buffervat. De WP merkt nu dat het vat afkoelt en gaat meteen aan de slag. De WP wordt dus niet direct aangestuurd.
Zo heb ik deze winter gestookt en het werkt als een zonnetje!
Heb je hier wat aan?
Dus als ik het goed begrijp als er een zone vragend is geeft die een signaal naar de evohome en die gooit de pomp aan voor warm water.
Dan heb je je pomp dus niet aangesloten op je VR70 of MEH of iets dergelijks. Dus allen pomp op de evohome?
En dan sluit je niet je opentherm aan uiteraard welke normaal je cv ketel stuurt. En door je hydraulische scheiding van je 100ltr vat kan je altijd je vermogen kwijt van je warmtepomp welke hij op temperatuur houd.
Zijn je runs van je warmtepomp niet te kort als er maar een paar zones open staan. De warmtepomp heeft de buffer zo op temperatuur namelijk.
[ Voor 15% gewijzigd door Adriaan71 op 09-04-2022 15:57 ]
Ik ben op zich tevreden met Evohome (behalve dat de thermische motortjes af en toe wel heel langzaam open gaan) en zou graag per zone/ruimte willen (blijven) aansturen. Die motortjes wil ik sowieso vervangen voor andere, snellere thermische motortjes. Die zijn er (niet van Honeywell maar een Duits merk, ben even de naam kwijt).
Ik ben overigens niet zo bang dat de WP snel gaat 'pendelen' of korte cycli heeft. De grootste ruimte heeft hier 70m2 oppervlak. Daar zit nogal wat meter leiding in en dus nogal wat debiet. Waar ik wel aan moet (en graag zelfs) is afscheid nemen van het mengblok voor de vloerverwarming wat we nu hebben. Een therminon 5000 mengblok met pomp die geschakeld wordt door Evohome. Dat mengen zit altijd te emmeren. Ik wil gewoon 'directe aanvoer' vanuit het buffervat. Geen gezeur meer met mengen, mengen, mengen, mengen. Ik zag de temperatuur vaak enorm schommelen met dat mengen.
Bij het plaatsen van de WP/vervangen mengblok laat ik ook gelijk de vloerverwarming doorspuiten. Ik heb het idee dat er twee/drie groepen wat dichtgeslibd zitten. Dat is dan hopelijk ook gelijk opgelost. (of ik doe het van de zomer zelf een keer met wat verloopjes/compressor/drukvat
[ Voor 6% gewijzigd door Websphinxie op 09-04-2022 16:40 ]
16 x 455Wp & Enphase IQ7+ (7,3 kWp) - PVoutput.org
Wat ik heb aangehouden:Marnix17 schreef op zaterdag 9 april 2022 @ 17:42:
Even een vraagje: ik probeer het aantal kWh te bepalen wat ik straks extra ga verbruiken bij aanschaf van een warmtepomp. Met ons huidige verbruik van 1260m3 gas kom ik volgens de bekende formule op 6,1 kW. Ik twijfel nog over een Vaillant VWL 55 of 75. Nu wil ik voor het extra gebruik zonnepanelen aanschaffen. Daarvoor moet ik het thermisch verbruik weten van de Vaillant en dat samen met de Cop geeft mij het aantal extra kWh. Kan iemand mij aangeven waar ik het thermische verbruik kan vinden van de genoemde warmtepompen.
1260m3*9=11340kWh (1m3 is eigenlijk iets van 9.8kWh, maar ook nog wat verlies?)
11340/Scop van 3,5=3240kWh elektrisch verbruik voor je WP. Maar correct me if im wrong, zou best eens kunnen zijn dat de COP jaarrond wat lager is dan 3.5
[ Voor 3% gewijzigd door _ferry_ op 09-04-2022 18:27 ]
Of hoger, met alleen vloerverwarming zit ik deze winter op 4.78._ferry_ schreef op zaterdag 9 april 2022 @ 18:24:
[...]
Wat ik heb aangehouden:
1260m3*9=11340kWh (1m3 is eigenlijk iets van 9.8kWh, maar ook nog wat verlies?)
11340/Scop van 3,5=3240kWh elektrisch verbruik voor je WP. Maar correct me if im wrong, zou best eens kunnen zijn dat de COP jaarrond wat lager is dan 3.5
Het ik-wil-een-warmtepomp FAQ topic- '23 MG5, douchen met wtw en Auer Edel Eau, verwarming met Vaillant Arotherm Plus.
Bij mij komt de aroSTOR (de VWL 150) ook in de bijkeuken. Volgens de specificaties is deze behoorlijk stil (Geluidvermogen A7/W55 EN 12102 dB(A) 45) en durf ik daarom de gok te wagen.Gramser schreef op zaterdag 9 april 2022 @ 12:09:
Helder verhaal @Verwijderd , dankjewel!
Dan denk ik al wel een keus gemaakt te hebben in WP. Toch denk ik nog eens na over unitower of aroSTOR - ik zie de voordelen van beide oplossingen, maar aangezien de WPB bij ons in de bijkeuken zou komen, vraag ik me wel af hoeveel geluid een WPB maakt… meer dan een MV-box..? Want die hangt daar ook.
De vraag zal misschien ook zijn: hoe vaak en hoe lang gaat de wpb aan het werk om het water te verwarmen? Uiteraard is dat ook afhankelijk van je gebruik.
Mijn Bosch wasmachine staat overigens ook in de bijkeuken. Deze is, ondanks zijn jonge leeftijd, ook niet echt stil te noemen maar heb ik nauwelijks last van. Hooguit een beetje als hij staat te centrifugeren terwijl we aan b.v. het lunchen zijn. Ik verwacht en hoop dat de wpb een stuk stiller is dan de centrifugerende wasmachine. Over een tijdje zal ik het weten.
Mocht de geluidsproductie van de wpb toch tegenvallen, dan heb ik op dit forum ook al wat mensen gezien die hem extra geisoleerd hebben. Dus die maatregel heb ik dan nog achter de hand. Ook kan ik het e.e.a. tunen door de wpb te laten draaien tijdens de uren dat ik doorgaans minder of niet in de keuken ben.
Als je je installatie goed inregelt en je afgifte is ook okee kan je wel een sCOP halen van rond de 4,5 en voor SWW 3,0._ferry_ schreef op zaterdag 9 april 2022 @ 18:24:
[...]
Wat ik heb aangehouden:
1260m3*9=11340kWh (1m3 is eigenlijk iets van 9.8kWh, maar ook nog wat verlies?)
11340/Scop van 3,5=3240kWh elektrisch verbruik voor je WP. Maar correct me if im wrong, zou best eens kunnen zijn dat de COP jaarrond wat lager is dan 3.5
Ik zit zelf nu voor 18 maanden op 4,9. Dus je verbruik zal zeker zuiniger zijn dan de berekening mer 3,5.
11340/4,5 = 2520 kWh
Dank, dat zijn mooie cijfers! Vroeg mij af of ik voor SWW eventueel met PV zou moeten willen laden of alleen WP. Heb ook nog een zonneboiler waarvan ik mij afvraag of die nog meerwaarde kan hebben of dat ik daar PV zou plaatsen.Adriaan71 schreef op zaterdag 9 april 2022 @ 21:57:
[...]
Als je je installatie goed inleggeld en je afgifte is ook okee kan je wel een sCOP halen van rond de 4,5 en voor SWW 3,0.
Ik zit zelf nu voor 18 maanden op 4,9. Dus je verbruik zal zeker zuiniger zijn dan de berekening mer 3,5.
11340/4,5 = 2520 kWh
Zolang je kan salderen zal ik gewoon laden met warmtepomp. Heb je zo en zo een gemiddeld cop van rond de 3. Met panelen laden via element is cop van 1. Zonde.Marnix17 schreef op zaterdag 9 april 2022 @ 22:09:
[...]
Dank, dat zijn mooie cijfers! Vroeg mij af of ik voor SWW eventueel met PV zou moeten willen laden of alleen WP. Heb ook nog een zonneboiler waarvan ik mij afvraag of die nog meerwaarde kan hebben of dat ik daar PV zou plaatsen.
Mocht salderen weg zijn dan kan je inderdaad je overschot in je vat duwen met element.
Maar dan nog kan je je vat laden overdag als het meeste zon schijnt op je panelen.
Klinkt logisch.Adriaan71 schreef op zaterdag 9 april 2022 @ 22:14:
[...]
Zolang je kan salderen zal ik gewoon laden met warmtepomp. Heb je zo en zo een gemiddeld cop van rond de 3. Met panelen laden via element is cop van 1. Zonde.
Mocht salderen weg zijn dan kan je inderdaad je overschot in je vat duwen met element.
Maar dan nog kan je je vat laden overdag als het meeste zon schijnt op je panelen.
Verwijderd
Hysterese valt altijd wel in te stellen, maar denk dat ik jouw vraag niet helemaal goed begrijp?Adriaan71 schreef op zaterdag 9 april 2022 @ 22:25:
@Verwijderd
Kan in trouwens ook mijn boiler Hysterese aanpassen van mijn 100 ltr boiler van mijn hydraulische scheiding? Dat is namelijk iets wat ik niet weet.

16 x 455Wp & Enphase IQ7+ (7,3 kWp) - PVoutput.org
Heb thuis hydraulische scheiding, dus of ik van die boiler ook de hysterese in kan stellen. Dus als mijn installatie uit is met bv nachtverlaging dat die boiler niet te ver afkoelt dan.Verwijderd schreef op zaterdag 9 april 2022 @ 22:57:
[...]
Hysterese valt altijd wel in te stellen, maar denk dat ik jouw vraag niet helemaal goed begrijp?
Die ga je nog gebruiken met je installatie.Websphinxie schreef op zondag 10 april 2022 @ 06:52:
Hysterese <<< wow...een woord dat ik sinds mijn middelbare school Natuurkunde niet meer had gehoord of gebruikt. Moest zelfs even opzoeken wat het ook weer betekende
Ook F1 kijken.
[ Voor 11% gewijzigd door Websphinxie op 10-04-2022 07:00 ]
16 x 455Wp & Enphase IQ7+ (7,3 kWp) - PVoutput.org
En met hoeveel personen gebruik je die 150L…? Ik probeer me een beetje een beeld te vormen over wat praktisch en haalbaar is.Franciesco schreef op zaterdag 9 april 2022 @ 20:51:
[...]
Bij mij komt de aroSTOR (de VWL 150) ook in de bijkeuken. Volgens de specificaties is deze behoorlijk stil (Geluidvermogen A7/W55 EN 12102 dB(A) 45) en durf ik daarom de gok te wagen.
De vraag zal misschien ook zijn: hoe vaak en hoe lang gaat de wpb aan het werk om het water te verwarmen? Uiteraard is dat ook afhankelijk van je gebruik.
Mijn Bosch wasmachine staat overigens ook in de bijkeuken. Deze is, ondanks zijn jonge leeftijd, ook niet echt stil te noemen maar heb ik nauwelijks last van. Hooguit een beetje als hij staat te centrifugeren terwijl we aan b.v. het lunchen zijn. Ik verwacht en hoop dat de wpb een stuk stiller is dan de centrifugerende wasmachine. Over een tijdje zal ik het weten.
Mocht de geluidsproductie van de wpb toch tegenvallen, dan heb ik op dit forum ook al wat mensen gezien die hem extra geisoleerd hebben. Dus die maatregel heb ik dan nog achter de hand. Ook kan ik het e.e.a. tunen door de wpb te laten draaien tijdens de uren dat ik doorgaans minder of niet in de keuken ben.
Je moet goed bekijken wat je verbruik is kwa warm water. Vergelijken met andere situaties gaat niet werken.Gramser schreef op zondag 10 april 2022 @ 07:41:
[...]
En met hoeveel personen gebruik je die 150L…? Ik probeer me een beetje een beeld te vormen over wat praktisch en haalbaar is.
Zo heb je andere uitstroomsnelheid en douche tijd.
Gewoon goed monitoren tijdsduur, douche beurten per dag en goed meten wat je uitstroom snelheid is met minuut.
Emmer , stopwatches en weegschaal
En als je al die gegevens hebt kan je gaan bekijken wat je nodig heb. Zo kan je een selectie maken.
Voorstel:
- VWL 105/5 AS 400V
- Vaillant sensoCOMFORT 720 systeemregelaar
- Vaillant VWZ elektrische naverwarmer
- 200 ltr buffervat ivm volledig naregeling
- uniSTOR RW300 boiler voor warmtepomp (300ltr voor warmwater)
- 1 menggroep
Totaal 19.942,- incl BTW
(naregeling zelf zit er niet bij, komt op 4070,- incl. BTW, dit betreft een Watts systeem)
Ben benieuwd naar meningen qua voorgestelde configuratie en qua prijs
Zit er aan te denken om naregeling eerst maar eens weg te laten, scheelt weer een dikke 4K, dan bespaar ik ook weer iets op het buffervat (als we het uiteindelijk toch willen realiseren kan dat relatief eenvoudig achteraf, mits de ruimte er is?).
Je hebt behoorlijk overcapaciteit, dus ook de naverwarmer kan je overwegen weg te laten.
Het ik-wil-een-warmtepomp FAQ topic- '23 MG5, douchen met wtw en Auer Edel Eau, verwarming met Vaillant Arotherm Plus.
Met een Split wordt het lastig om de naverwarmer weg te laten. Zit in de binnen module die je nodig hebt voor de split.Proton_ schreef op zondag 10 april 2022 @ 15:02:
@Batilan zonder naregeling bespaar je inderdaad op buffervat en menggroep.
Je hebt behoorlijk overcapaciteit, dus ook de naverwarmer kan je overwegen weg te laten.
Vaillant aroTHERM split VWL 105/5 AS lucht/waterwarmtepomp 400V
Vaillant Elektrisch naverwarmer 12kW VWL 127/5 IS
Vaste combi
[ Voor 14% gewijzigd door Adriaan71 op 10-04-2022 15:16 ]
Thx!, heb je die naverwarmer niet nodig voor SWW (legionella-run?)Proton_ schreef op zondag 10 april 2022 @ 15:02:
@Batilan zonder naregeling bespaar je inderdaad op buffervat en menggroep.
Je hebt behoorlijk overcapaciteit, dus ook de naverwarmer kan je overwegen weg te laten.
Zou een kleiner model dan ook kunnen volstaan?
De 105/5 heeft zo'n grote "dubbele" buitenunit, zou fijn zijn als ik die een beetje kan downscalen.
Bovendien overweeg ik ook Airco i.v.m. koeling / ontvochtiging in de zomer toe te passen, dan kan ik in geval de lagere capaciteit onvoldoende blijkt de airco erbij schakelen (wel even letten op een fatsoenlijke verwarmingscapaciteit bij -10). Alleen is de installateur daar geen fan van

EDIT:
Ah, OK, dus die is "verplicht", maar lijkt me ook een prettig idee qua capaciteit, al is 12 kW wel heel fors?Adriaan71 schreef op zondag 10 april 2022 @ 15:15:
[...]
Met een Split wordt het lastig om de naverwarmer weg te laten. Zit in de binnen module die je nodig hebt voor de split.
Vaillant aroTHERM split VWL 105/5 AS lucht/waterwarmtepomp 400V
Vaillant Elektrisch naverwarmer 12kW VWL 127/5 IS
Vaste combi
[ Voor 24% gewijzigd door Batilan op 10-04-2022 15:20 ]
Je kan hem met instelling zelf instellen hoeveel kw je wil gebruiken. Kan zelfs terug naar 3kwBatilan schreef op zondag 10 april 2022 @ 15:16:
[...]
Thx!, heb je die naverwarmer niet nodig voor SWW (legionella-run?)
Zou een kleiner model dan ook kunnen volstaan?
De 105/5 heeft zo'n grote "dubbele" buitenunit, zou fijn zijn als ik die een beetje kan downscalen.
Bovendien overweeg ik ook Airco i.v.m. koeling / ontvochtiging in de zomer toe te passen, dan kan ik in geval de lagere capaciteit onvoldoende blijkt de airco erbij schakelen (wel even letten op een fatsoenlijke verwarmingscapaciteit bij -10). Alleen is de installateur daar geen fan van
EDIT:
[...]
Ah, OK, dus die is "verplicht", maar lijkt me ook een prettig idee qua capaciteit, al is 12 kW wel heel fors?
En ook bij welke temperaturen hij moet bijspringen voor cv of SWW. Mar je kan hulp verwarming ook uitschakel voor beide en dus alleen gebruiken voor legionella run.
Maar voor verwarming heb je hem zo en zo niet nodig met je installatie
[ Voor 12% gewijzigd door Adriaan71 op 10-04-2022 15:23 ]
ik heb de handleiding van de warmtepomp en de thermostaat/regelaar doorgenomen maar ik twijfel toch even.
Wij kijken momenteel naar de Vaillant mono VWL 75/6. Het gaat om een nieuwbouwwoning.
ik lees in de diverse topics soms een beetje weerstand tegen mono - zijn er hier ook mensen die een vaillant mono bij een nieuwbouwwoning hebben gekozen?
Je kunt bij de Vaillant VWL 75/6 zo te lezen niet zelf een stooklijn maken, maar alleen kiezen uit een aantal voorgeprogrammeerde stooklijnen heb ik dat correct?
Je kunt ook niet kiezen voor een vaste aanvoertemperatuur als ik het goed heb - dit is dan op te lossen door een stooklijn te kiezen en de aanvoertemperatuur te maximaliseren heb ik dat correct?
Wel handig de Vaillant site, je kunt de thermostaten/regelaar zelfs uitproberen in een simulator.
Groet Kees
WP Vaillant VWL75/6 A 230V | Boiler VIH RW 300/3 MR | 27 x 405 ZZO= 10.935 op Solar Edge 9 kW 3 fasen omvormer | Vent: Zehnder Q600 ERV
Ik zat niet op te letten, 't is een split.Batilan schreef op zondag 10 april 2022 @ 15:16:
[...]
Thx!, heb je die naverwarmer niet nodig voor SWW (legionella-run?)
Zou een kleiner model dan ook kunnen volstaan?
De 105/5 heeft zo'n grote "dubbele" buitenunit, zou fijn zijn als ik die een beetje kan downscalen.
Bovendien overweeg ik ook Airco i.v.m. koeling / ontvochtiging in de zomer toe te passen, dan kan ik in geval de lagere capaciteit onvoldoende blijkt de airco erbij schakelen (wel even letten op een fatsoenlijke verwarmingscapaciteit bij -10). Alleen is de installateur daar geen fan van
Voor antilegionella zou ik zelf een element in het boilervat zelf doen, dan heb je gelijk een failsafe voor als een pomp, printplaat of driewegklep defect is.
De installateur snap ik wel, hij ziet de telefoontjes al komen
Als jij hem gerust kan stellen, is bijwarmen met de airco natuurlijk prima en dan kan een 7.5 kW unit het ook wel.
Het ik-wil-een-warmtepomp FAQ topic- '23 MG5, douchen met wtw en Auer Edel Eau, verwarming met Vaillant Arotherm Plus.
Het klopt dat de stooklijn niet vrij te kiezen is, maar in de praktijk is dat geen issue. Met de minimum en maximum aanvoertemperatuur kom je al een heel eind.
Het ik-wil-een-warmtepomp FAQ topic- '23 MG5, douchen met wtw en Auer Edel Eau, verwarming met Vaillant Arotherm Plus.
Beste Kees,Kees_frl schreef op zondag 10 april 2022 @ 15:28:
Goedemiddag,
ik heb de handleiding van de warmtepomp en de thermostaat/regelaar doorgenomen maar ik twijfel toch even.
Wij kijken momenteel naar de Vaillant mono VWL 75/6. Het gaat om een nieuwbouwwoning.
ik lees in de diverse topics soms een beetje weerstand tegen mono - zijn er hier ook mensen die een vaillant mono bij een nieuwbouwwoning hebben gekozen?
Je kunt bij de Vaillant VWL 75/6 zo te lezen niet zelf een stooklijn maken, maar alleen kiezen uit een aantal voorgeprogrammeerde stooklijnen heb ik dat correct?
Je kunt ook niet kiezen voor een vaste aanvoertemperatuur als ik het goed heb - dit is dan op te lossen door een stooklijn te kiezen en de aanvoertemperatuur te maximaliseren heb ik dat correct?
Wel handig de Vaillant site, je kunt de thermostaten/regelaar zelfs uitproberen in een simulator.
Groet Kees
Vaillant werkt inderdaad met een voorgeprogrammeerde stooktabel welke stapjes doen van 0,05.
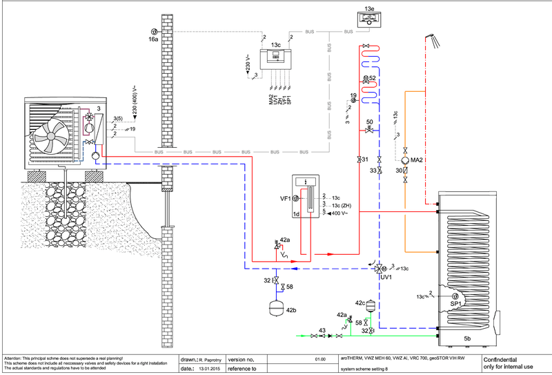
Hier een voorbeeld van wat de stapjes van de stooktabel doen met de temperaturen.
Je kan ook de minimalen temperatuur vast zetten
Je kan ook draaien zonder stooktabel en een vaste Ta invoeren. Dat is ook een mogelijkheid.
Als je ook nog in je VRC720 bij kamer bijschakeling uitgebreid inschakelen heb je precies je temperatuur in je reverentie ruimte wat je ingesteld hebt.
Dus er zijn mogelijkheden zat.
Zat zelf afgelopen winter op stooklijn 0.15 en minimalen Ta 27graden. En tijdsvenster met 3 schakelingen verdeelt over de dag en 1 graad nachtverlaging.
Ging perfect.
/f/image/XP2VHxGQDQE3G0E8NRyIB64x.png?f=fotoalbum_large)
Dank voor de adviezen en info in dit topic aan een ieder
Twijfel gehad tussen de unistor of losse 300L boiler en MEH 97, maar het meerwerk en meerprijs voor die 100L extra was het mij dan ook niet waard. Voor dat prijsverschil koop ik wel een Quooker
[ Voor 6% gewijzigd door _ferry_ op 10-04-2022 16:47 ]
Maar met een Quooker kan je niet langer douche._ferry_ schreef op zondag 10 april 2022 @ 16:46:
Zo, spullen besteld, week 24 staat er als levertijd voor de 75/6, daarbij gekozen voor de unistor. Die is wel op voorraad. Kan ik alvast wat plek gaan maken in de garage, gaskookplaat er uit, en extra groepen aanleggen.
Dank voor de adviezen en info in dit topic aan een ieder
Twijfel gehad tussen de unistor of losse 300L boiler en MEH 97, maar het meerwerk en meerprijs voor die 100L extra was het mij dan ook niet waard. Voor dat prijsverschil koop ik wel een Quooker
Die 150 liter boiler ga ik met twee personen gebruiken en we hebben geen bad.Gramser schreef op zondag 10 april 2022 @ 07:41:
[...]
En met hoeveel personen gebruik je die 150L…? Ik probeer me een beetje een beeld te vormen over wat praktisch en haalbaar is.
Eens met @Adriaan71: uitrekenen hoeveel warm water je (achter elkaar) nodig hebt a.d.h.v je douchegedrag en overig warm water verbruik is het beste om te bepalen of 150 liter wel/niet voldoende is.
Stel je boilerwater is 55 graden (wat heter is dan de meeste hier doorgaans instellen volgens mij): 192 x 0,69 (38/55)= 132,5 liter nodig (van 55 graden).
In bovenstaande situatie lijkt me de aroSTOR 150 aan de krappe kant (niet al het water is 55 graden).
Korter douchen en/of een spaardouche en/of het douchen spreiden over de dag kan er misschien voor zorgen dat het wel kan. Maar ik zou denk ik met 3 personen (zonder bad) ook wat meer zou willen hebben (180-200l).
Het is ook nog wel handig als je bv na het douchen nog wat warm water over hebt voor het scheren, de afwas ed.
Overigens ook goed te realiseren dat de kleine aroSTORs niet snel nieuw warm water kunnen maken: het wp gedeelte is slechts 400W en elektrisch element + wp gedeelte samen is 1600W. Dus als je denkt de boiler van 55 graden elke dag vrijwel leeg te maken, dan zal die puur op het wp gedeelte een groot gedeelte van de dag weer bezig zijn om op 55 graden te komen.
Een kleinere boiler is ook weer sneller warm, hoewel je met 150 liter toch wel aan meer dan een uur moet denken.
En je berekening gaat uit van koudwater van 0 graden. De mengverhouding warmwater is (Tmeng-Tkoud)/(TWarm-Tkoud). Bij 192 liter water van 38 graden, met 7 graden koud en 55 warm, heb je dus 192*(38-7)/(55-7)=124 liter uit de boiler nodig.
[ Voor 38% gewijzigd door Proton_ op 10-04-2022 20:58 ]
Het ik-wil-een-warmtepomp FAQ topic- '23 MG5, douchen met wtw en Auer Edel Eau, verwarming met Vaillant Arotherm Plus.
https://www.vaillant.nl/d...ember2021-b2c-2303965.pdf
/f/image/g0v9tn2zKg6aZxV7Af5ZLPrc.png?f=fotoalbum_large)
[ Voor 12% gewijzigd door Adriaan71 op 10-04-2022 20:55 ]
Goeie aanvulling, dank!Proton_ schreef op zondag 10 april 2022 @ 20:47:
@Franciesco @Gramser de compressor is 400W elektrisch, dus ca 1200W thermisch.
Een kleinere boiler is ook weer sneller warm, hoewel je met 150 liter toch wel aan meer dan een uur moet denken.
Een COP van 3 haal je met de VWL 150 alleen in hoog zomerse omstandigheden.
:strip_exif()/f/image/gIaYfeUvLvCajzpPwERBRA3I.jpg?f=fotoalbum_large)
Daarom is een groter vat ook beter. Hier haalde ik ook hartje "winter" nog >3 met een 300l vat op 47°C, zie de gepinde statistieken van @tomexergie in het algemene LW WP topic. (Maar dat is natuurlijk ook met een MitsubishiFranciesco schreef op zondag 10 april 2022 @ 21:07:
Goeie aanvulling, dank!
Een COP van 3 haal je met de VWL 150 alleen in hoog zomerse omstandigheden
WP: ME PUHZ-SW75YAA + ERSD-VM2D + EV-WP-TWS-1W 300; AC: ME MXZ-2F42VF + 2x MSZ-LN25VGV; PV: 14.08 kWp O/W + SMA STP 8.0; Vent: Zehnder Q600 ERV + Ubbink AirExcellent.
Andrehj schreef op zondag 10 april 2022 @ 21:18:
[...]
Daarom is een groter vat ook beter. Hier haalde ik ook hartje "winter" nog >3 met een 300l vat op 47°C, zie de gepinde statistieken van @tomexergie in het algemene LW WP topic. (Maar dat is natuurlijk ook met een Mitsubishi)




Ga misschien nog wel een keer testen. Heb nu mijn voeler in 1/3 in onderzijde van 300 WPS de Jong en op 53 graden. En haal nu een sCOP van 2.9.
Zal een een keer aanpassen naar jouw instellingen 1/3 van boven en 47 graden. Kijken wat we dan draaien.
[ Voor 30% gewijzigd door Adriaan71 op 10-04-2022 21:23 ]
Dat gaat ten koste van het verdamperoppervlak en luchtdebiet, beide kosten COP.
Mijn Auer haalt het hele jaar >4, maar die speelt vals
Het ik-wil-een-warmtepomp FAQ topic- '23 MG5, douchen met wtw en Auer Edel Eau, verwarming met Vaillant Arotherm Plus.
Zeker een klep geplaatst op je aanzuigingen en mixen met je binnen luchttemperatuur.Proton_ schreef op zondag 10 april 2022 @ 21:37:
@Andrehj de Arostor 150 is een 'probleemoplosser': compact, kleine geveldoorvoer nodig.
Dat gaat ten koste van het verdamperoppervlak en luchtdebiet, beide kosten COP.
Mijn Auer haalt het hele jaar >4, maar die speelt vals
Het ik-wil-een-warmtepomp FAQ topic- '23 MG5, douchen met wtw en Auer Edel Eau, verwarming met Vaillant Arotherm Plus.
Maar zo koelt is wel meer de retour water van je warmte circuit af wat weer ten kosten gaat van je cop van je warmtepomp. Zal niet giga zijn maar wel wat uiteraard.Proton_ schreef op zondag 10 april 2022 @ 21:52:
Nee, die pakt water van de vloerverwarming en heeft dus altijd een verdamper > 18 graden. In de winter dus de hoogste COP want dan helpt de Vaillant mee met zijn aanvoer opstoken.
[ Voor 4% gewijzigd door Adriaan71 op 10-04-2022 22:08 ]
Dat is voor mij niet zo relevant: ik zocht vanwege ruimtegebrek een compacte boiler die voldoende inhoud en een acceptabele opwarmtijd heeft voor mijn beperkt warm water verbruik. En daar lijkt (hij is nog niet in werking) de aroSTOR 150 prima aan te gaan voldoen.Andrehj schreef op zondag 10 april 2022 @ 21:18:
[...]
Daarom is een groter vat ook beter. Hier haalde ik ook hartje "winter" nog >3 met een 300l vat op 47°C, zie de gepinde statistieken van @tomexergie in het algemene LW WP topic. (Maar dat is natuurlijk ook met een Mitsubishi)
Over een tijd zal ik weten of het een goede keuze geweest is.
Ik lees juist weinig weerstand tegen mono: compacter, stiller en makkelijk zelf te doenKees_frl schreef op zondag 10 april 2022 @ 15:28:
Goedemiddag,
ik heb de handleiding van de warmtepomp en de thermostaat/regelaar doorgenomen maar ik twijfel toch even.
Wij kijken momenteel naar de Vaillant mono VWL 75/6. Het gaat om een nieuwbouwwoning.
ik lees in de diverse topics soms een beetje weerstand tegen mono - zijn er hier ook mensen die een vaillant mono bij een nieuwbouwwoning hebben gekozen?
Je kunt bij de Vaillant VWL 75/6 zo te lezen niet zelf een stooklijn maken, maar alleen kiezen uit een aantal voorgeprogrammeerde stooklijnen heb ik dat correct?
Je kunt ook niet kiezen voor een vaste aanvoertemperatuur als ik het goed heb - dit is dan op te lossen door een stooklijn te kiezen en de aanvoertemperatuur te maximaliseren heb ik dat correct?
Wel handig de Vaillant site, je kunt de thermostaten/regelaar zelfs uitproberen in een simulator.
Groet Kees
Ik dacht dat je wel wat kon spelen met de stooklijnen. Maar waarom verwacht je dat geen van de voorgeprogrammeerde stooklijnen bij jouw situatie gaat passen?
De manier van instellen is misschien anders dan bij een andere warmtepomp, maar het resultaat is hetzelfde.
3630Wp ZW 39° / 3950Wp NO 39° / 990Wp ZO 5° | Vaillant VWL75/5
Wat is de 'definitie' van lange afstanden? Ik heb een mogelijke opstelling waarbij de mono op ca 7/8 buis-meters komt. De buizen moet door de kruipruimte naar de stookruimte.Zwartoog schreef op maandag 11 april 2022 @ 08:15:
[...]
Ik lees juist weinig weerstand tegen mono: compacter, stiller en makkelijk zelf te doenIs alleen wat discussie geweest over bij het overbruggen van lange afstanden, of mono danwel split efficiënter werkt.
Ik dacht dat je wel wat kon spelen met de stooklijnen. Maar waarom verwacht je dat geen van de voorgeprogrammeerde stooklijnen bij jouw situatie gaat passen?
16 x 455Wp & Enphase IQ7+ (7,3 kWp) - PVoutput.org
Split units op propaan zou wel kunnen, maar volgens mij is er een maximum aan wat in een woning mag zijn, waardoor je dus met hele korte circuits en/of lage vermogens moet werken. De monoblock is juist ontworpen om daar een oplossing voor te bieden.
Het gebruikte koudemiddel is natuurlijk niet echt een voordeel voor de gebruiker... Maar het GWP van propaan is echt fors kleiner dan bijv. het 410A dat in de split-units wordt gebruikt. Als je het klimaat hoog in het vaandel hebt als argument om over te stappen, is een monoblock met R290 m.i. een veel 'duurzamer' keuze.
skoda enyaq 80 vw id.7 tourer pro s | holtkamper aero | fiscalist & techneut
Dat ging toen over 15/25 meter, maar de conclusie was sowieso onbepaald, voornamelijk omdat je geen 2 verschillende systemen 1:1 kunt vergelijken. Uiteindelijk komt het erop neer dat je bij beide types de leidingen goed moet isoleren, dan is het transportverlies minimaal.Websphinxie schreef op maandag 11 april 2022 @ 09:20:
[...]
Wat is de 'definitie' van lange afstanden? Ik heb een mogelijke opstelling waarbij de mono op ca 7/8 buis-meters komt. De buizen moet door de kruipruimte naar de stookruimte.
Voor monoblocs heb je dit soort kant-en-klare geïsoleerde grondleidingen: https://benem.nl/terrendi...t-duo-63-x-225-pe-xa.html
@Adriaan71 en @WebsphinxieAdriaan71 schreef op zaterdag 9 april 2022 @ 15:24:
Kan je hier nog je aansluit schema van laten zien. Vooral hoe je je secundaire pomp hebt aangesloten op je evohome.
Aansluitschema? Evohome kan een ketel met opentherm aansturen of met een aan/uit-relais. Ik had opentherm en heb dat vervangen door een BDR91. Die stuurt nu de circulatiepomp in het secundaire circuit aan.
Die pomp wordt dus niet door iets anders aangestuurd.
Klopt, evohome wordt gewoon gebruikt zoals die ontworpen is. Een thermostaat van een zone vraagt en evohome zet de klep(pen) van die zone open en stuurt de BDR91 aan.Dus als ik het goed begrijp als er een zone vragend is geeft die een signaal naar de evohome en die gooit de pomp aan voor warm water.
Dan heb je je pomp dus niet aangesloten op je VR70 of MEH of iets dergelijks. Dus allen pomp op de evohome?
Uiteraard. Met een BDR91. Niet elke gasketel wordt met opentherm aangestuurd en daarin voorziet evohome. Je gebruikt dan de BDR91 om de ketel met aan/uit aan te sturen.En dan sluit je niet je opentherm aan uiteraard welke normaal je cv ketel stuurt.
Ja. Het werkt prima. Het voordeel is dat de warmtepomp nu zelf bepaalt wanneer hij aan en weer uit gaat. Je leest nog wel eens van warmtepompen die door een thermostaat aangestuurd worden en dan te snel uitgeschakeld worden, waardoor die zijn warmte niet kwijt kan of zo. Dan krijgt de pomp een enorme opdonder en dat lijkt me niet bevorderlijk voor zijn levensduur.En door je hydraulische scheiding van je 100ltr vat kan je altijd je vermogen kwijt van je warmtepomp welke hij op temperatuur houd.
Nee, dat zie ik niet. Let wel op de kanttekening dat de WP WAR draait. Dat had ik in het begin niet, waardoor ik inderdaad korte runs kon krijgen. Nu hij in WAR draait gaat de temperatuur omlaag als dat nodig/haalbaar is, waardoor de runs ook niet te kort worden.Zijn je runs van je warmtepomp niet te kort als er maar een paar zones open staan. De warmtepomp heeft de buffer zo op temperatuur namelijk.
Een opmerking moet ik er hier wel bij vermelden en dat is dat ik dit heb in combinatie met een Nibe S1255 W/W-WP (mijn aroTHERM Plus heb ik voor mijn bijgebouw). Maar dat lijkt me in deze context nix uitmaken.
Het gaat er hier om dat je evohome helemaal de sturing van de zones voor zijn rekening laat nemen en niets wijzigt aan de opbouw en principes ervan. Alleen stuurt die de circulatiepomp in het secundaire circuit aan in plaats van een gasketel. En de WP moet zelfstandig draaien, dat wil zeggen weersafhankelijk en aan/uit gaan op basis van zijn eigen metingen in het buffervat. De WP dus niet aansturen met een thermostaat of wat dan ook.
Verdraagzaamheid is het hoogste gebod
en wie dat niet eert die schoppen we rot.
<John O`Mill>
Die 1PM heb ik in de voeding van de pomp opgenomen en zo kan ik de aansturing van die pomp in de gaten houden (loggen via Home Assistant). Zo kreeg ik snel een indruk van hoe lang die staat te draaien.
De drie sensoren zitten bij de T-aansluiting onderaan het buffervat, elk ca. 10cm van de T af zodat ze niet te makkelijk elkaars temperatuur meten. Met die informatie heb ik het toerental van de circulatiepomp ingesteld.
Als namelijk de buis naar de onderkant van het buffervat warmer wordt dan de retour uit huis, dan draait de pomp te langzaam; het buffervat neemt dan de temperatuur aan van de aanvoer uit de WP en de WP kan zijn warmte slecht kwijt.
Door nu stapje voor stapje de snelheid van de pomp op te voeren zie je wanneer dat verschijnsel verdwijnt. Dan zit je goed en is de boel in balans.
Een iets te hoge pompsnelheid lijkt me overigens niet erg. Dan krijg je bijmenging van retourwater. Het belangrijkste is dat de WP zijn warmte dan nog steeds goed kwijt kan.
Verdraagzaamheid is het hoogste gebod
en wie dat niet eert die schoppen we rot.
<John O`Mill>
Ik heb een paar jaar geleden voor de keuze gestaan om dergelijke leidingen te gebruiken naar een bijgebouw, ca. 25 meter achter het huis. Toen heb ik daar niet voor gekozen om twee redenen:Zwartoog schreef op maandag 11 april 2022 @ 09:36:
[...]
Voor monoblocs heb je dit soort kant-en-klare geïsoleerde grondleidingen: https://benem.nl/terrendi...t-duo-63-x-225-pe-xa.html
1. Als je met lage temperaturen werkt (en dat doe je met een WP) en rekening houdt met verliezen onderweg, dan houd je niet veel meer over aan het eind van die buis. Je zult dus warmer moeten gaan stoken en dat gaat dan ten koste van je COP. Plus dat je leidingverliezen onderweg hebt.
2. Dike buis is niet goedkoop. Ik stookte het bijgebouw toen nog met gas en die buis alleen al kostte net zoveel als een klein gasketeltje. Pas dus op als je zulke buis wilt gebruiken wat je eraan kwijt bent!
Verdraagzaamheid is het hoogste gebod
en wie dat niet eert die schoppen we rot.
<John O`Mill>
@WebsphinxieWebsphinxie schreef op zaterdag 9 april 2022 @ 16:37:
@Hippe Lip Fantastisch! Precies zoals ik het mij had voorgesteld![]()
Ik ben op zich tevreden met Evohome (behalve dat de thermische motortjes af en toe wel heel langzaam open gaan) en zou graag per zone/ruimte willen (blijven) aansturen. Die motortjes wil ik sowieso vervangen voor andere, snellere thermische motortjes. Die zijn er (niet van Honeywell maar een Duits merk, ben even de naam kwijt).
Ja, ik weet dat die dingen van Honeywell traag zijn. Daarover is al eens gesproken in het forum van Honeywell evohome. Kijk daar eens. Ik meen me te herinneren dat er daar een aantal kleppen en hun snelheden vergeleken werden.
Zelf heb ik er geen last van dat het langzaam gaat. Ik heb overal vloerverwarming en die is van zichzelf al traag. Bovendien heb ik het aantal schakelingen van evohome op 1 per uur staan, dus die ene minuut (of iets meer) dat die klep er over doet maakt dan vrijwel nix meer uit.
Een mengblok bij je vv-verdeler is met een WP sowieso een slecht idee. Door de lage temperaturen van de WP werkt dat niet goed. Ik had ze hier ook aanvankelijk, maar bij de ombouw van gas naar WP heb ik ze eruit laten halen en nu zijn het open (=pomploze) verdelers geworden. Dat werkt prima. De pomp van de WP of de extra pomp in het secundaire circuit (zie mijn verhaal hierboven) kunnen dat makkelijk aan.Ik ben overigens niet zo bang dat de WP snel gaat 'pendelen' of korte cycli heeft. De grootste ruimte heeft hier 70m2 oppervlak. Daar zit nogal wat meter leiding in en dus nogal wat debiet. Waar ik wel aan moet (en graag zelfs) is afscheid nemen van het mengblok voor de vloerverwarming wat we nu hebben. Een therminon 5000 mengblok met pomp die geschakeld wordt door Evohome. Dat mengen zit altijd te emmeren. Ik wil gewoon 'directe aanvoer' vanuit het buffervat. Geen gezeur meer met mengen, mengen, mengen, mengen. Ik zag de temperatuur vaak enorm schommelen met dat mengen.
Je weet dat daar schoonmaakmiddelen voor bestaan? Dan wordt er een vat waar dat middel in zit op je verdeler aangesloten en wordt de boel een tijdje rondgepompt.Bij het plaatsen van de WP/vervangen mengblok laat ik ook gelijk de vloerverwarming doorspuiten. Ik heb het idee dat er twee/drie groepen wat dichtgeslibd zitten. Dat is dan hopelijk ook gelijk opgelost. (of ik doe het van de zomer zelf een keer met wat verloopjes/compressor/drukvat
Je kunt het per verdeler doen, maar je kunt ook alle kleppen open zetten en het vanaf de ketelaansluiting doen. Dan heb je alle leidingen te pakken.
Verdraagzaamheid is het hoogste gebod
en wie dat niet eert die schoppen we rot.
<John O`Mill>
Ik dacht gelezen te hebben dat mono vaker wordt ingezet voor bestaande bouw en niet zozeer voor een nieuwbouw (BENG) woning.Zwartoog schreef op maandag 11 april 2022 @ 08:15:
[...]
Ik lees juist weinig weerstand tegen mono: compacter, stiller en makkelijk zelf te doenIs alleen wat discussie geweest over bij het overbruggen van lange afstanden, of mono danwel split efficiënter werkt.
Ik dacht dat je wel wat kon spelen met de stooklijnen. Maar waarom verwacht je dat geen van de voorgeprogrammeerde stooklijnen bij jouw situatie gaat passen?
Zit voor mezelf erg te twijfelen tussen de mitsu en de Vaillant.
Mitsu - hier veel kennis en past ook goed bij de woning. Minimale vermogen komt beter uit. Nadeel de aanleg, bedrijf dat alleen buitendeel en binnendeel plaatst en rest weer installateur van de bouw. En klinkt wat veiliger door split dus stroomuitval geen risico bevriezen en wat zuiniger omdat er geen pomp steeds even loopt?
Vaillant - mooi apparaat - zo te zien ook goede prestaties en wat hoger vermogen bij lage temperaturen. Kan geleverd worden door bedrijf waar mijn zwager werkt (wel gewoon normale prijs ofzo) dus wat meer 'grip' op alles.
Is gewoon lastig met duizenden dingen die komen kijken bij woning (geen projectbouw) laten bouwen. Duizelt op laatst beetje.
[ Voor 32% gewijzigd door Kees_frl op 11-04-2022 12:54 ]
WP Vaillant VWL75/6 A 230V | Boiler VIH RW 300/3 MR | 27 x 405 ZZO= 10.935 op Solar Edge 9 kW 3 fasen omvormer | Vent: Zehnder Q600 ERV
Was dit een willekeurig artikel of specifiek voor de Vaillant? Leidingdikte lijkt mij wat aan de grootte kant. Wat wordt er trouwens geadviseerd qua leiding dikte tussen de Buiten- en binnenunit?Zwartoog schreef op maandag 11 april 2022 @ 09:36:
[...]
Dat ging toen over 15/25 meter, maar de conclusie was sowieso onbepaald, voornamelijk omdat je geen 2 verschillende systemen 1:1 kunt vergelijken. Uiteindelijk komt het erop neer dat je bij beide types de leidingen goed moet isoleren, dan is het transportverlies minimaal.
Voor monoblocs heb je dit soort kant-en-klare geïsoleerde grondleidingen: https://benem.nl/terrendi...t-duo-63-x-225-pe-xa.html
32 of 40 mmAJA schreef op maandag 11 april 2022 @ 12:58:
[...]
Was dit een willekeurig artikel of specifiek voor de Vaillant? Leidingdikte lijkt mij wat aan de grootte kant. Wat wordt er trouwens geadviseerd qua leiding dikte tussen de Buiten- en binnenunit?
Vandaag aangelegd Rehau Rauthermex duo 40/126. Kan je zeggen was een heel gevecht om op zijn plek te krijgen.
Rede 40mm wanddikte 3,7mm omdat de aansluiting op monoblok ook 5/4 x 35 is en op de binnen unit ook 5/4 x 28 en dan meteen verlopen naar 28 x 5/4 en dan 5/4 x 40mm
En dan rvs 35 x 5/4 op monoblok
Maar 32mm is ook zeker genoeg.
Lekt nooit meer.
:no_upscale():strip_icc():fill(white):strip_exif()/f/image/ySxygcC32lZP9rgCo7toyCin.jpg?f=user_large)
:no_upscale():strip_icc():fill(white):strip_exif()/f/image/AAg93FAt5t3LqB1O0vD9ouo4.jpg?f=user_large)
:no_upscale():strip_icc():fill(white):strip_exif()/f/image/EUUsXihT4TKtZcP3zgGDw7yp.jpg?f=user_large)
:no_upscale():strip_icc():fill(white):strip_exif()/f/image/6GevvJHEvoSK8AstzgvNmdTh.jpg?f=user_large)
:no_upscale():strip_icc():fill(white):strip_exif()/f/image/jJYoZPUubnJWAmJWUAOpr0Xm.jpg?f=user_large)
[ Voor 7% gewijzigd door Adriaan71 op 11-04-2022 17:37 ]
Voor nu nog puur voor verwarming, later komt er een boilervat bij. Ik zal ook wat foto’s delen van de installatie tzt.
Willekeurig, je hebt deze in allerlei maten en uitvoeringen. Was meer ter illustratie.AJA schreef op maandag 11 april 2022 @ 12:58:
[...]
Was dit een willekeurig artikel of specifiek voor de Vaillant? Leidingdikte lijkt mij wat aan de grootte kant. Wat wordt er trouwens geadviseerd qua leiding dikte tussen de Buiten- en binnenunit?
Is de subsidie daar al vanaf?Marnix17 schreef op dinsdag 12 april 2022 @ 14:50:
Gisteren in gesprek met Vaillant installateur een grofe eerste indicatie gehad van de aanschaf prijs van een 6kW model en Arostor 150l: complete plaatje zo rond de 16k. Toch wel een flink bedrag en met het oog op termijn afbouw salderingsregeling en straks duur kopen van kW's om je huis te verwarmen nog wel een discussie. Ook als ik lees dat @koevlaas2 zelden een offerte van 15k uitschrijft.
Dat is best een heel flink bedrag. Dat verrast me wel moet ik eerlijk bekennen. Installatie (materiaal en arbeid) is dus nog een keer 9/10k. Fors.Marnix17 schreef op dinsdag 12 april 2022 @ 14:52:
Ja sorry vergat ik te melden maar inderdaad subsidie al verwerkt.
Lijkt wel of die installateur;
1) gewoon vraagt en kijkt wat je reactie is
2) geen idee heeft en nogal een forse risico marge hanteert
3) de opdracht liever niet wil maar voor een dot centen wel uit z'n nest komt.
[ Voor 25% gewijzigd door Websphinxie op 12-04-2022 15:19 ]
16 x 455Wp & Enphase IQ7+ (7,3 kWp) - PVoutput.org
Misschien dat @busscherski je kan helpen? Gaat hij bij mij ook doen.Marnix17 schreef op dinsdag 12 april 2022 @ 14:50:
Gisteren in gesprek met Vaillant installateur een grofe eerste indicatie gehad van de aanschaf prijs van een 6kW model en Arostor 150l: complete plaatje zo rond de 16k. Toch wel een flink bedrag en met het oog op termijn afbouw salderingsregeling en straks duur kopen van kW's om je huis te verwarmen nog wel een discussie. Ook als ik lees dat @koevlaas2 zelden een offerte van 15k uitschrijft.
Nee dit is wel compleet met installatie. Hij baseerde zich op zojuist uitgebrachte offertes bij andere klant met vergelijkbare situatie. Stelde zich wel op als kundige partij die gaan voor optimale inregeling, maar tegen een fors prijskaartje zo te horen.Websphinxie schreef op dinsdag 12 april 2022 @ 15:13:
[...]
Dat is best een heel flink bedrag. Dat verrast me wel moet ik eerlijk bekennen. Installatie (materiaal en arbeid) is dus nog een keer 9/10k. Fors.
Lijkt wel of die installateur;
1) gewoon vraagt en kijkt wat je reactie is
2) geen idee heeft en nogal een forse risico marge hanteert
3) de opdracht liever niet wil maar voor een dot centen wel uit z'n nest komt.
Ik bedoelde; warmtepomp + boiler (7/8k) - subsidie (2,5/3k) en daar weer 9-10k bovenop. Dan kom je dus op die 15/16/17k. Al met al een hoop geld.Marnix17 schreef op dinsdag 12 april 2022 @ 15:24:
[...]
Nee dit is wel compleet met installatie. Hij baseerde zich op zojuist uitgebrachte offertes bij andere klant met vergelijkbare situatie. Stelde zich wel op als kundige partij die gaan voor optimale inregeling, maar tegen een fors prijskaartje zo te horen.
Begrijp dat alle componenten geld kosten maar dit is best fors.
Laat het eens 60% aan componenten zijn dan is de arbeid over 2 dagen werk royaal (2 x 2 man = 4 man dagen werk). Iedereen mag geld verdienen maar dat is best gortig. Als ik dan lees dat installaties tegenwoordig door 2 man in een dag geplaatst worden (folder-praat) doe ik dat voor de realiteit maar even keer twee. Dan kom je dus op die 4 man dagen uit.
16 x 455Wp & Enphase IQ7+ (7,3 kWp) - PVoutput.org
Al met al ligt het er aan hoe het een en ander geïnstalleerd wordt, en wat voor materialen er gebruikt wordt.Marnix17 schreef op dinsdag 12 april 2022 @ 14:50:
Gisteren in gesprek met Vaillant installateur een grofe eerste indicatie gehad van de aanschaf prijs van een 6kW model en Arostor 150l: complete plaatje zo rond de 16k. Toch wel een flink bedrag en met het oog op termijn afbouw salderingsregeling en straks duur kopen van kW's om je huis te verwarmen nog wel een discussie. Ook als ik lees dat @koevlaas2 zelden een offerte van 15k uitschrijft.
Een monoblock met een stuk gardena slang eraan naar je verdeler en een besturing erop en een aan en uit thermostaat erop hoeft inderdaad niet veel te kosten. Kan ook binnen een dag met 2 man.
Wordt er weer gebouw volgens tekeningen van Vaillant wordt het weer een ander verhaal.
Een bedrag fictief zegt niks. Kijk wat je ervoor krijgt en wat voor materialen er gebruikt worden. En zeker de diameters die gebruikt worden. En kijk vooral de doorgang van de hulpstukken van het leiding systeem.
Kan je zeggen dat al die hulpstukken die je nodig hebt echt bizar duur zijn tegenwoordig. Zeker grote diameters.
Voorbeeld 2 schroefbussen 5/4 x 28 VHS inkoop € 21,85 ex. simpel voorbeeld.
Zit al een tijdje in de installatie wereld maar ik blijf me ook steeds verbazen wat het allemaal kost. Zeker de laatste tijd.
Geld trouwens voor alle bouwmaterialen
Volgens mij gaat het nog steeds gekker worden.
Anekdotisch bewijs dus moet het wel kloppen 😄
Absoluut waar, die inflatie krijg je er gratis bij. Maar ik haal koevlaas aan omdat hij ook in diezelfde installatiematerialen gekte zit en hij vast ook geen vriendenprijsjes rekent, de rekening moet ook aan het einde van de maand betaald.Adriaan71 schreef op dinsdag 12 april 2022 @ 16:48:
[...]
Al met al ligt het er aan hoe het een en ander geïnstalleerd wordt, en wat voor materialen er gebruikt wordt.
Een monoblock met een stuk gardena slang eraan naar je verdeler en een besturing erop en een aan en uit thermostaat erop hoeft inderdaad niet veel te kosten. Kan ook binnen een dag met 2 man.
Wordt er weer gebouw volgens tekeningen van Vaillant wordt het weer een ander verhaal.
Een bedrag fictief zegt niks. Kijk wat je ervoor krijgt en wat voor materialen er gebruikt worden. En zeker de diameters die gebruikt worden. En kijk vooral de doorgang van de hulpstukken van het leiding systeem.
Kan je zeggen dat al die hulpstukken die je nodig hebt echt bizar duur zijn tegenwoordig. Zeker grote diameters.
Voorbeeld 2 schroefbussen 5/4 x 28 VHS inkoop € 21,85 ex. simpel voorbeeld.
Zit al een tijdje in de installatie wereld maar ik blijf me ook steeds verbazen wat het allemaal kost. Zeker de laatste tijd.
Geld trouwens voor alle bouwmaterialen
Volgens mij gaat het nog steeds gekker worden.
Maar eerst maar eens de gedetailleerde offerte afwachten nadat het huisbezoek is geweest.
Ik dacht dat hij vooral Mitsubishi of Panasonic deed? Misschien zijn die al wat goedkoper en we weten natuurlijk niet exact wat hij wel en niet installeert. Dus inderdaad, offerte afwachten.Marnix17 schreef op dinsdag 12 april 2022 @ 17:23:
[...]
Absoluut waar, die inflatie krijg je er gratis bij. Maar ik haal koevlaas aan omdat hij ook in diezelfde installatiematerialen gekte zit en hij vast ook geen vriendenprijsjes rekent, de rekening moet ook aan het einde van de maand betaald.
Maar eerst maar eens de gedetailleerde offerte afwachten nadat het huisbezoek is geweest.
Eens met de dure bouwmaterialenAdriaan71 schreef op dinsdag 12 april 2022 @ 16:48:
[...]
Wordt er weer gebouw volgens tekeningen van Vaillant wordt het weer een ander verhaal.
Ik hoop dus dat Vaillant eenvoudiger tekeningen gaat maken waar minder spullen voor nodig zijn. Er staat er nu eentje in met een Flexotherm, meer van dat
De transitie gaat niet (alleen) over vrijstaande Duitse Mehrfamilienhäuser volgens passiefhuisnorm, waar de standaardschema's prima hun waarde hebben, maar ook over de jaren '60 rijtjeshuizen van 80-100 m², die met dikke radiatoren of vloerverwarming veel simpeler en goedkoper om kunnen dan dat nu leeft.
De uitnodiging voor uitleg over de meerwaarde van een buffervat in zo'n huis staat bijvoorbeeld nog steeds. Vier schroefbussen
Het ik-wil-een-warmtepomp FAQ topic- '23 MG5, douchen met wtw en Auer Edel Eau, verwarming met Vaillant Arotherm Plus.
De tekeningen die jij zoek die heb ik.Gewoon mono blok aan installatie.Proton_ schreef op dinsdag 12 april 2022 @ 17:34:
[...]
Eens met de dure bouwmaterialen
Ik hoop dus dat Vaillant eenvoudiger tekeningen gaat maken waar minder spullen voor nodig zijn. Er staat er nu eentje in met een Flexotherm, meer van dat
De transitie gaat niet (alleen) over vrijstaande Duitse Mehrfamilienhäuser volgens passiefhuisnorm, waar de standaardschema's prima hun waarde hebben, maar ook over de jaren '60 rijtjeshuizen van 80-100 m², die met dikke radiatoren of vloerverwarming veel simpeler en goedkoper om kunnen dan dat nu leeft.
De uitnodiging voor uitleg over de meerwaarde van een buffervat in zo'n huis staat bijvoorbeeld nog steeds. Vier schroefbussen, buffervat, pompgroep, stopcontact, paar uur arbeid... Dat moet een goed verhaal worden.
De reden waarom ze daar mee gestopt zijn is omdat er gewoon veel problemen zijn gekomen door mensen die niet nadenken wat ze bouwen. en op een geven moment toch veel gaan naregelen. Of te weinig waterflow.
De laatste tekeningen dateren uit 2015 zonder buffer. Daarom zijn ze ermee gestopt om een zekerheid in te bouwen dat een installatie altijd goed draait. Ongeacht wat mensen aanpassen aan de installatie.
Hier heb je er een van 2015
/f/image/zb1z2WGwoyiO7ohMwloNBORC.png?f=fotoalbum_large)
Edit: het is ook een misvatting dat een installatie met buffer en te weinig afgifte wél goed draait. Hij levert geen storingen op misschien, maar haalt ook zijn potentie niet. Operatie geslaagd, patiënt overleden.
Storingen geven juist goed aan dat er iets niet klopt. /Mening.
[ Voor 36% gewijzigd door Proton_ op 12-04-2022 18:33 ]
Het ik-wil-een-warmtepomp FAQ topic- '23 MG5, douchen met wtw en Auer Edel Eau, verwarming met Vaillant Arotherm Plus.
Zeg ook niet dat het ook niet kan.Proton_ schreef op dinsdag 12 april 2022 @ 18:29:
@Adriaan71 logisch, want in 2015 moduleerden de warmtepompen nog niet zo goed. Dat is nou net een belangrijke voorwaarde (en intussen standaard, Vaillant doet dat gewoon goed). De warmtepompen van nu zijn m.i. zo verbeterd dat het wel kan
Maar is zie regelmatig foto';s van installateur die nog geeneens weten hoe een perstang werkt . Laat staan dat ze moeten kijken en begrijpen wat ze bouwen en hoe het allemaal werkt.
En welke voorwaarden bepaalde dingen moeten voldoen.
Vaillant bouwt gewoon een veiligheid in voor de dummies hahahahah. Dat het altijd goed draait.
Tuurlijk helpt een buffer niet als je niet genoeg afgifte hebt. Een buffer is ook zo op temperatuur. Dus dat maakt niks uit.Proton_ schreef op dinsdag 12 april 2022 @ 18:29:
@Adriaan71 logisch, want in 2015 moduleerden de warmtepompen nog niet zo goed. Dat is nou net een belangrijke voorwaarde (en intussen standaard, Vaillant doet dat gewoon goed). De warmtepompen van nu zijn m.i. zo verbeterd dat het wel kan
Edit: het is ook een misvatting dat een installatie met buffer en te weinig afgifte wél goed draait. Hij levert geen storingen op misschien, maar haalt ook zijn potentie niet. Operatie geslaagd, patiënt overleden.
Storingen geven juist goed aan dat er iets niet klopt. /Mening.
Als je je minimalen vermogen al niet kwijt kan heb je al een verkeerde keuze gemaakt van warmtepomp.
Buffer zijn er voor 2 redenen.
Systeem inhoud vergroten.
Buffer serie.
Of grote naregeling dat je flow van je installatie vast kan lopen.
Buffer parallel.
Dat zijn de enigste 2 redenen om en buffer te plaatsen.
[ Voor 4% gewijzigd door Adriaan71 op 12-04-2022 18:41 ]
Ander voorbeeld:
Een goede 1" driewegklep is, voordat hij aan alle zijden aan 32mm pex vastzit, ook bijna €250. Dan moet de pex, thermometers e.d. er nog bij.
De aansluitset met muurdoorvoer van een Arostor is de helft.
Het ik-wil-een-warmtepomp FAQ topic- '23 MG5, douchen met wtw en Auer Edel Eau, verwarming met Vaillant Arotherm Plus.
Dat zijn keuzes die mensen maken hoe ze een installatie willen hebben. Ik wil en heb de ruimte niet voor een Arostor ivm geluid.Proton_ schreef op dinsdag 12 april 2022 @ 18:55:
@Adriaan71 precieser zijn goede redenen voor, maar 'hij staat op het standaardschema' is dat niet. En hij wordt alleen maar duurder. Dus om dat argument weg te nemen kan Vaillant meer simpele voorbeelden geven.
Ander voorbeeld:
Een goede 1" driewegklep is, voordat hij aan alle zijden aan 32mm pex vastzit, ook bijna €250. Dan moet de pex, thermometers e.d. er nog bij.
De aansluitset met muurdoorvoer van een Arostor is de helft.
Nu staat de 300 ltr boiler op zolderkamer cq kantoor naast slaapkamer van mijn dochter. Die maakt nu geen geluid.
De Arostor wel.
En de boiler is een stuk sneller op temperatuur. ( keuzes )
Er zijn zat mensen die echt niet voor het goedkoopste willen gaan en wat best wel wat mag kosten.
Kan je zeggen dat mijn water intergratie systeem in mijn tuin netter ligt dan dat ik sommige installatie's gezien heb hoe dingen zijn aangesloten.
Zeg niet dat het niet werkt maar het oog wil ook wat. Althans dat vind ik belangrijk.
Vooral een technische ruimte moet straks en geordend zijn. En niet allemaal aan elkaar geperst en niet beugelen.
Maar dat is mijn mening.
Welke regio?Marnix17 schreef op dinsdag 12 april 2022 @ 14:50:
Gisteren in gesprek met Vaillant installateur een grofe eerste indicatie gehad van de aanschaf prijs van een 6kW model en Arostor 150l: complete plaatje zo rond de 16k. Toch wel een flink bedrag en met het oog op termijn afbouw salderingsregeling en straks duur kopen van kW's om je huis te verwarmen nog wel een discussie. Ook als ik lees dat @koevlaas2 zelden een offerte van 15k uitschrijft.
7,945 kWp, Atlantic Explorer 3 270 coil, 5 kW Panasonic monobloc H serie, Tesla Model Y RWD (2024)
Voor standaard vragen zoals "Hoeveel kW heb ik nodig?" etc lees eerst eens Het ik-wil-een-warmtepomp FAQ topic