Ook bijzonder: ik had last van condenswater dat uit de voorkant van de wtw (Brink Flair) liep. Bleek dat de behuizing van de warmtewisselaar lek was waardoor het water er aan de zijkant uitliep. Als je weet waar je op moet letten was het duidelijk, maar ik had het zelf niet bedacht. Lof voor Brink overigens, ik heb tot nu toe erg goede ervaringen met hun service.
Dus je had wel trilling via de muur eerder?breinonline schreef op donderdag 23 februari 2023 @ 13:05:
[...]
Ik heb met vier bij vier balkjes zelf een beun geknutseld. Daarop vier nopjes (eigenlijk een soort meubelglijders) waarop de unit rust. Bevalt prima. Het geluid wat via de muur kwam is weg.
Enne... wat is een beun?
Ja via de muur kwam er gebrom de slaapkamer in.Rzaan schreef op donderdag 23 februari 2023 @ 15:39:
[...]
Dus je had wel trilling via de muur eerder?
Enne... wat is een beun?
:strip_exif()/f/image/ZRVmmFngdkxkCToSYt9sUESq.jpg?f=fotoalbum_large)
De buizen moet ik nog een keer fatsoeneren overigens.
WP: Mitsubishi Ecodan PUHZ-SHW112YAA, ERSC-VM2C, Procon ┃ PV: 4800Wp, SolarEdge SE5K, 15x JAM60S17/320, ZW 15º ┃ WTW: Zehnder Q600 ┃ SH: Home Assistant, Proxmox, Intel NUC 8i5 Mini
Hoe loopt je demper van wtw naar spiro btw?breinonline schreef op donderdag 23 februari 2023 @ 16:47:
[...]
Ja via de muur kwam er gebrom de slaapkamer in.
[Afbeelding]
De buizen moet ik nog een keer fatsoeneren overigens.
Eenvoudig + Goedkoop Mitsubishi Warmtepomp uitlezen/besturen met een ESP32
Ik gebruik vanwege de prijs geen sensor van Zehnder, maar vergeet niet dat een Zehnder WTW standaard altijd na een tijdje terug gaat naar stand 2. Dit kun je voorkomen door de weektimer te gebruiken en daarmee altijd stand 1 in te stellen.xoror schreef op donderdag 23 februari 2023 @ 08:04:
Ik heb een Q600 icm co2 sturing (1 sensor woonkamer en 1 sensor in master bedroom).
De sensor in de woonkamer doet de afgelopen tijd soms gek. Hij gaat uit zichzelf op "stand 2" staan, en bij de wtw zie ik dat hij 5.1v doorgeeft. De WTW gaat dan iets van 360m3/h afzuigen. De co2 sensor in de slaapkamer werkt verder normaal, en blijft op co2 stand staan.
De co2 was okay < 800 ppm (heb ook een andere co2 sensor in de huiskamer). Dit lijkt hij alleen "random" in de nacht te doen. Als ik hem op de co2 stand zet, keert het systeem weer terug in mijn "default" 220m3/h.
Is mijn sensor stuk of zorgt een van de programma's van de WTW hiervoor? In de handleiding staat dat de co2 lamp oranje/rood wordt als hij vanwege co2 meer ventilatie vraagt. Dus het lijkt iets anders omdat hij daadwerkelijk 2 groene stippen aangeeft.
Wat voor voltages geeft de co2 bij jullie door? volgens handleiding 0-2v is voor level < 400 ppm. hier geeft dat ding altijd 0v aan, ook bij 700ppm (andere sensor)...
[edit]
even met adem lopen blazen om de co2 te triggeren, hij gaat dan naar 2 stippen na een tijdje. Dus de co2 sensor lijkt off te zijn, moeten die dingen gecalibreerd worden na een tijdje? Want gisteren toen hij aansloeg was er niemand in de woonkamer namelijk...
Als dit niet helpt: Wat gebeurt er als je de sensoren gewoon als sensor instelt (met 0-10V uitgang, proportioneel aan de CO2-waarde) en de regelaar in de WTW gebruikt?
WP: ME PUHZ-SW75YAA + ERSD-VM2D + EV-WP-TWS-1W 300; AC: ME MXZ-2F42VF + 2x MSZ-LN25VGV; PV: 14.08 kWp O/W + SMA STP 8.0; Vent: Zehnder Q600 ERV + Ubbink AirExcellent.
Voor de speciale filters is zelfs een eigen topic:naftebakje schreef op donderdag 23 februari 2023 @ 12:31:
En ik gebruik de standaard filters, je kan ook betere filters gebruiken (eventueel enkel in het stookseizoen); maar je mag er altijd van uitgaan dat je met een typeD minder last hebt dan met type C want je filtert altijd aan de toevoerlucht.
Zoek ook eens in dit topic, ik dacht dat er waren met extra filterkasten om alle hourstookgeur 100% zeker weg te krijgen.
Goed gefilterde WTW installeren
Overigens zijn er voor diverse WTW's ook speciale koolstoffilters (zoals je die ook in je auto kunt installeren) verkrijgbaar. Ik heb er zo eentje als test besteld, en dat lijkt wel iets te schelen. Meer info in bovenstaand topic.
WP: ME PUHZ-SW75YAA + ERSD-VM2D + EV-WP-TWS-1W 300; AC: ME MXZ-2F42VF + 2x MSZ-LN25VGV; PV: 14.08 kWp O/W + SMA STP 8.0; Vent: Zehnder Q600 ERV + Ubbink AirExcellent.
Maar ik heb hem altijd in stand 2 staan, en dan automatic icm sensor ventilatie. In installer settings heb ik stand 2 gelijk gesteld aan 220 m3/h. Het lijkt erop dat stand 2 op de sensor een andere stand 2 is. Het is ook vrij random, afgelopen week 2x, maar daarvoor maanden niet.Andrehj schreef op donderdag 23 februari 2023 @ 17:38:
[...]
Ik gebruik vanwege de prijs geen sensor van Zehnder, maar vergeet niet dat een Zehnder WTW standaard altijd na een tijdje terug gaat naar stand 2. Dit kun je voorkomen door de weektimer te gebruiken en daarmee altijd stand 1 in te stellen.
Als dit niet helpt: Wat gebeurt er als je de sensoren gewoon als sensor instelt (met 0-10V uitgang, proportioneel aan de CO2-waarde) en de regelaar in de WTW gebruikt?
Ik zal de proportionele stand eens een keer proberen. Alhoewel ik denk dat het dan heel onrustig draait als hij op elke co2 wijziging gaat aanpassen.
■ SETPOINT: instellen van de gewenste waarde van de bedieningsmethode (standaard: 5 V).
■ PROPORTIONELE BAND: instellen van de proportionele waarde van de bedieningsmethode (standaard: 100%);
■ INTEGRERENDE TIJD: instellen van de integrerende waarde van de bedieningsmethode (standaard: 300 sec.).
Hij staat nu op die 5v. Heb het idee dat hij pas vanaf > 5v signaal geeft om extra af te voeren.
Eenvoudig + Goedkoop Mitsubishi Warmtepomp uitlezen/besturen met een ESP32
Ik heb geen demper.xoror schreef op donderdag 23 februari 2023 @ 16:53:
[...]
Hoe loopt je demper van wtw naar spiro btw?
WP: Mitsubishi Ecodan PUHZ-SHW112YAA, ERSC-VM2C, Procon ┃ PV: 4800Wp, SolarEdge SE5K, 15x JAM60S17/320, ZW 15º ┃ WTW: Zehnder Q600 ┃ SH: Home Assistant, Proxmox, Intel NUC 8i5 Mini
Dank voor je reactie, dit is nuttige input. Ik heb het topic al wel uitgebreid doorgenomen, al was dat destijds meer ter oriëntatie voor de keuze om voor een WTW systeem te gaan. Ik was nu vooral even op zoek naar een sanity check op de offerte. Qua leidingwerk gaat het volgens mij om verdeeldozen en flexibele leidingen van Zehnder.Andrehj schreef op woensdag 22 februari 2023 @ 20:21:
[...]
Mening:En lees dit topic even uitgebreid door. Het staat boordevol tips en ervaringen. Voor een uitgave van 17 k€ mag je daar best wel wat moeite in steken. Zeker gezien de overbodige meuk die je installateur je hierboven allemaal probeert aan te smeren.
- WTW units zijn de laatste jaren helaas waanzinnig duur geworden. Ik heb voor mijn Q600 incl comfoconnect box € 2549 betaald, en later nog eens € 840 voor een losse enthalpiewisselaar. Hier kun je verder niet zoveel aan doen, rest zal marge installateur zijn.
- Je vermeldt totaal niet welk merk en type leidingwerk er gebruikt gaat worden of hoeveel ventielen het betreft, dus daar is zo totaal niks van te zeggen. Maar vergis je niet in de kosten daarvan, hier heb ik al voor ca 2.7 k€ aan Ubbink spullen gebruikt, en daarnaast nog ca 1.5 k€ aan Spiro materiaal en dempers. Daarbij komen dan nog de afzuig- en inblaasventielen. Hier kostte het (zeer uitgebreide) ventilatiesysteem in totaal ca 10.5 k€ waarvan slechts zo'n 1.3 k€ arbeidsloon van installateur en aannemer was. Dat komt doordat ik er zelf enorm veel uren in heb gestopt. Alsnog meer dan 9 k€ aan materialen dus...
- CO2-sensoren zijn niet zo nodig als vaak wordt gezegd. Hier heb ik alleen zo'n sensor in de woonkamer. Dan gaat de unit met wat bezoek wat sneller draaien. Maar vaak vind ik dat regelgedrag te agressief, voornamelijk omdat je de integrator van de PID-regelaar niet kunt uitschakelen, dus dan zet ik de unit bij bezoek maar handmatig wat hoger. In een slaapkamer heb je ze sowieso niet nodig, je moet gewoon zorgen dat je daar altijd minimaal 25 m³/pppu ventileert. Bovendien zijn de sensoren van Zehnder zelf veel te duur. Hier kun je dus veel besparen.
- Wat is een comfoswitch? Die heb ik iig niet. Heb je dus niet nodig.
- Ik zou er wel een Comfoconnect Lan C bij doen, dan kan de WTW aan het netwerk en kun je hem met een app bedienen.
- Badkamerschakeling is ook niet nodig. Ten eerste omdat de WTW zelf al een vochtigheidsregeling heeft (gaat optoeren als de afgezogen lucht snel vochtiger wordt, dus bij douchen), en ten tweede omdat je badkamer op de standaard stand sowieso niet nat blijft. Hier staat de WTW op 220 m³/h en hij houdt daarmee probleemloos (en met uitgeschakelde vochtigheidsregeling) twee badkamers, twee toiletten en een bijkeuken reukloos en droog.
Huh. Nogmaal, tekening en fotos? Weinig zinnigs over te zeggen anders of die 9000 euro aan leidingwerk veel of weinig is, maar "officiële" kanaalwerk is altijd stukken duurder dan gewoon een paar dozen sonoconnect en andere leidingen die ik vaker heb besteld / verwerkt, of vaste starre leidingen (spiro).Aurelium schreef op donderdag 23 februari 2023 @ 19:40:
[...]
Dank voor je reactie, dit is nuttige input. Ik heb het topic al wel uitgebreid doorgenomen, al was dat destijds meer ter oriëntatie voor de keuze om voor een WTW systeem te gaan. Ik was nu vooral even op zoek naar een sanity check op de offerte. Qua leidingwerk gaat het volgens mij om verdeeldozen en flexibele leidingen van Zehnder.
Hierbij wat tekeningen. Woonoppervlakte is +/- 160 m2w00key schreef op donderdag 23 februari 2023 @ 21:32:
[...]
Huh. Nogmaal, tekening en fotos? Weinig zinnigs over te zeggen anders of die 9000 euro aan leidingwerk veel of weinig is, maar "officiële" kanaalwerk is altijd stukken duurder dan gewoon een paar dozen sonoconnect en andere leidingen die ik vaker heb besteld / verwerkt, of vaste starre leidingen (spiro).
/f/image/oh4FsQpyebBYyQby9SqYmqgY.png?f=fotoalbum_large)
/f/image/FsSxc8FGf5uNf99tAQiKLgRV.png?f=fotoalbum_large)
/f/image/rRie69He1I2n53yaN8wHCOBI.png?f=fotoalbum_large)
Waarom blaas je niet in in je leefruimtes of is dat blauw?
Heb het zelf niet getekend, maar mijn aanname is dat blauw de aanvoer is (koude lucht van buiten)Megalomania schreef op vrijdag 24 februari 2023 @ 08:01:
Waarom blaas je niet in in je leefruimtes of is dat blauw?
Ik zou even vragen welke diameters en ventielen ze voor ogen hebben
Voor wie er nieuwsgierig naar is, ons WTW-systeem (dat we dus zelf hebben aangelegd, zie mijn posts in dit topic voor de details) heeft zo'n 4500 euro gekost. Dan heb ik álles meegerekend: de dakdoorvoeren, de WTW unit, 1x een Brink MixFan, de buizen, beugels, dempers, ventielen, de hele omkasting met wat er bij hoort en de isolatie van de unit en de buizen die me nog teveel lawaai maakten, het gereedschap dat ik heel specifiek voor deze klus heb gekocht (diamantboren voor vloeren en muren, de anemometer voor het inregelen), de Wifi-module om hem aan Home Assistant te koppelen, alles.
Catch a smile out there!
Dat is een prima bedrag. Zeer netjes. Dat ga ik niet halen. Mijn WTW-unit (Zehnder Q600) kost al bijna € 3.500. Dan nog dakdoorvoeren € 420 en dan zit ik al bijna op € 4.000 en heb ik nog geen gat geboord.
@breinonline en anderen:
Ik heb de Zehnder ComfoAir Q600 luchttoevoer links met enthalpiewisselaar.
Als ik het goed begrijp het ik dan geen condens-afvoer nodig.
Dus ik zou in principe mijn unit gewoon op de vloer kunnen zetten, toch?
Ik vraag het omdat ik boven mijn unit nogal wat zooi zoals buizen, broekstukken, bochten en filters wil aanbrengen.
En daar is ruimte voor nodig.
Ik heb de Zehnder ComfoAir Q600 luchttoevoer links met enthalpiewisselaar.
Als ik het goed begrijp het ik dan geen condens-afvoer nodig.
Dus ik zou in principe mijn unit gewoon op de vloer kunnen zetten, toch?
Ik vraag het omdat ik boven mijn unit nogal wat zooi zoals buizen, broekstukken, bochten en filters wil aanbrengen.
En daar is ruimte voor nodig.
Zo'n enthalpiewisselaar, houdt die de luchtvochtigheid helemaal op peil? Want vaak wil je dat toch juist wat verlagen, vooral in badkamers.
Glenfiddich schreef op vrijdag 24 februari 2023 @ 11:51:
Voor wie er nieuwsgierig naar is, ons WTW-systeem (dat we dus zelf hebben aangelegd, zie mijn posts in dit topic voor de details) heeft zo'n 4500 euro gekost. Dan heb ik álles meegerekend: de dakdoorvoeren, de WTW unit, 1x een Brink MixFan, de buizen, beugels, dempers, ventielen, de hele omkasting met wat er bij hoort en de isolatie van de unit en de buizen die me nog teveel lawaai maakten, het gereedschap dat ik heel specifiek voor deze klus heb gekocht (diamantboren voor vloeren en muren, de anemometer voor het inregelen), de Wifi-module om hem aan Home Assistant te koppelen, alles.
offtopic:
kunnen we jou ook inhuren als installateur?
kunnen we jou ook inhuren als installateur?
Zoals ik het begrijp, zorgt deze wisselaar ervoor dat niet alle vocht het huis verlaat.hneel schreef op vrijdag 24 februari 2023 @ 12:37:
Zo'n enthalpiewisselaar, houdt die de luchtvochtigheid helemaal op peil? Want vaak wil je dat toch juist wat verlagen, vooral in badkamers.
Maar hij zal - denk ik - nog steeds een teveel aan vocht verwijderen.
Maar mijn vraag was dus meer of ik met een apparaat met enthalpiewisselaar, dit apparaat gewoon op de grond kan zetten.
@Rzaan ik heb hem op de montagestoel van Zehnder zelf staan. Is wel zo makkelijk kun je hem goed waterpas zetten.
@Rzaan Gelijk op de grond zetten gaat niet lukken. De Q serie(binnen het model) is over heel de lijn het zelfde alleen de versie met enthalpiewisselaar heeft dus een andere wisselaar en je krijgt er geen condens afvoer bij maar 2 doppen om de gaten de dichten. Deze doppen steken 1 a 2 centimeter uit waardoor hij niet op de vloer te zetten is. Je zal dus een verhoging moeten maken van 2cm.
Ja, die montagestoel, die ken ik.BlupWoofer schreef op vrijdag 24 februari 2023 @ 12:57:
@Rzaan ik heb hem op de montagestoel van Zehnder zelf staan. Is wel zo makkelijk kun je hem goed waterpas zetten.
Maar in plaats van € 160 uitgeven, dacht ik dat € 20 voor 2 rubberblokken ook wel aardig was.
Bedankt!SkullboyNL schreef op vrijdag 24 februari 2023 @ 13:06:
@Rzaan Gelijk op de grond zetten gaat niet lukken. De Q serie(binnen het model) is over heel de lijn het zelfde alleen de versie met enthalpiewisselaar heeft dus een andere wisselaar en je krijgt er geen condens afvoer bij maar 2 doppen om de gaten de dichten. Deze doppen steken 1 a 2 centimeter uit waardoor hij niet op de vloer te zetten is. Je zal dus een verhoging moeten maken van 2cm.
De mijne staat nog verpakt in de doos, dus dit kan ik nog niet zien.
Wellicht dat ik hem dan op Rubber stroken kan zetten.
Zoals je ook met een wasmachine soms doet.
Wasmachine is ook zwaarder, dus dat moet kunnen.
Zeer vereerd, maar ik heb hier zelf thuis nog genoeg te klussen de komende jarenmigchiell schreef op vrijdag 24 februari 2023 @ 12:40:
[...]
offtopic:
kunnen we jou ook inhuren als installateur?
Catch a smile out there!
Voor (vragen over) enthalpiewisselaars is er een eigen topic: Enthalpiewisselaar tbv WTW balansventilatiehneel schreef op vrijdag 24 februari 2023 @ 12:37:
Zo'n enthalpiewisselaar, houdt die de luchtvochtigheid helemaal op peil? Want vaak wil je dat toch juist wat verlagen, vooral in badkamers.
WP: ME PUHZ-SW75YAA + ERSD-VM2D + EV-WP-TWS-1W 300; AC: ME MXZ-2F42VF + 2x MSZ-LN25VGV; PV: 14.08 kWp O/W + SMA STP 8.0; Vent: Zehnder Q600 ERV + Ubbink AirExcellent.
Ik ben van plan in ons gekochte huis een WTW ventilatiesysteem aan te leggen. Ik volg dit topic al een tijdje en ik zie veel nuttige tips, oa daarmee heb ik een plan gemaakt voor onze woning.
Even wat algemene zaken
Bouwjaar 1996
Oppervlak 161 m2
Aantal personen gezin; 4
Ik kom zo'n beetje uit op een benodigde box van 400m3/h voor het huis. Ik ga nog even uit van een Duco box oid met spirobuizen, lijkt mij de meest economische en effectieve oplossing.
Ik wil zoveel mogelijk via de koof laten lopen en de slaapkamers vanuit de zolder ventileren om de hoeveelheid buizen/koven te beperken. Om zo min mogelijk te hoeven boren door de vloer (betonnen breedplaatvloeren) hoop ik per slaapkamer met één ventiel af te kunnen.
De woonkamer wil ik via één aanvoer leiding met 3 ventielen a 50m3/h ventileren. De afvoer gaat via de keuken 2 ventielen door een nog te maken koof en één ventiel boven de keukenkasten langs naar de bijkeuken (deze zoveel mogelijk knijpen gezien de ruimte boven de kasten beperkt is).
Kelder ook gelijk meegenomen omdat daar nog wel eens vochtissues zijn.
Ik hoop dat jullie wat tips hebben om het wat te verbeteren.:strip_exif()/f/image/A7W8t8sf8YnJz01Phz4YRHRs.jpg?f=fotoalbum_large)
:strip_exif()/f/image/iBOlYGgA7QzkLebwPYVAsag5.jpg?f=fotoalbum_large)
Even wat algemene zaken
Bouwjaar 1996
Oppervlak 161 m2
Aantal personen gezin; 4
Ik kom zo'n beetje uit op een benodigde box van 400m3/h voor het huis. Ik ga nog even uit van een Duco box oid met spirobuizen, lijkt mij de meest economische en effectieve oplossing.
Ik wil zoveel mogelijk via de koof laten lopen en de slaapkamers vanuit de zolder ventileren om de hoeveelheid buizen/koven te beperken. Om zo min mogelijk te hoeven boren door de vloer (betonnen breedplaatvloeren) hoop ik per slaapkamer met één ventiel af te kunnen.
De woonkamer wil ik via één aanvoer leiding met 3 ventielen a 50m3/h ventileren. De afvoer gaat via de keuken 2 ventielen door een nog te maken koof en één ventiel boven de keukenkasten langs naar de bijkeuken (deze zoveel mogelijk knijpen gezien de ruimte boven de kasten beperkt is).
Kelder ook gelijk meegenomen omdat daar nog wel eens vochtissues zijn.
Ik hoop dat jullie wat tips hebben om het wat te verbeteren.
:strip_exif()/f/image/A7W8t8sf8YnJz01Phz4YRHRs.jpg?f=fotoalbum_large)
:strip_exif()/f/image/iBOlYGgA7QzkLebwPYVAsag5.jpg?f=fotoalbum_large)
:strip_exif()/f/image/kKP8ij7lCDGaYTp9xvAdsfK2.jpg?f=fotoalbum_large)
Wat is de temperatuur in je kelder? Je geeft aan dat er vochtissues zijn, wat doet vermoeden dat het niet is geïsoleerd, klopt dat? Als je m gaat meenemen in je ventilatie ga je er effectief je ventilatielucht mee afkoelen (bij afzuiging) of verwarmen (bij aanvoer). Sowieso zou ik altijd afzuigen in een natte ruimte, maar op je tekening lijkt het alsof je aanvoer doet in de kelder?Job_ schreef op vrijdag 24 februari 2023 @ 17:42:
Kelder ook gelijk meegenomen omdat daar nog wel eens vochtissues zijn.
Als het 25m3 is valt het qua rendement op het totaaldebiet wel mee natuurlijk maar het is wel iets om in gedachten te houden. Luchtvochtigheid is altijd relatief ten opzichte van temperatuur, dus als je kelder een 'aardetempetaruur' heeft (10 graden?) kan dat in de zomer bij vochtig weer ook voor extra condens zorgen (groot temperatuurverschil).
Ah inderdaad zo had ik er nog niet over nagedacht.
De kelder is volgens mij wel geïsoleerd, ik vermoed dat het vocht probleem inderdaad komt doordat de warme lucht uit het huis condenseert in de kelder. De kelder toevoegen in het afvoerschema is wat lastig met de buizen, maar goed om even over na te denken.
De kelder is volgens mij wel geïsoleerd, ik vermoed dat het vocht probleem inderdaad komt doordat de warme lucht uit het huis condenseert in de kelder. De kelder toevoegen in het afvoerschema is wat lastig met de buizen, maar goed om even over na te denken.
Onlangs mocht ik bij een medeforumlid komen kijken hoe deze zijn installatie had uitgevoerd.
Zeer veel van geleerd.
Ook liet hij me horen wat het geluid was aan de uitblaaszijde.
Nauwelijks te horen in de normale stand.
Maar mijn istallatie zal iets harder blazen en ik woon dicht bij buren, en daar zit de uitblaaskant.
Daarom ben ik het volgende van plan:
Ik gebruik Zehnder ComfoPipe Plus buizen.
Omhoog richting plafond vanuit de WTW, dan een 90 graden bocht richtig uitblaas-dakdoorvoer.
Tussen bocht en dakdoorvoer moet ik nog ± 5 meter overbruggen.
Voor die 5 meter gebruiken ik 3 stuks ComfoPipe Plus van ± een meter.

De overblijvende ± 2 meter wordt opgevuld met Sonodec Akoestische en Thermisch geïsoleerde slang.

Die neem ik dan in de uitvoering Ø 250 mm.
Met deze maat kan ik hem over het 'mannetje' van de Comfopipe Plus schuiven. Die is iets van Ø 243 mm

Voordeel zijn dat de SonoDec precies passend te maken is, én ik heb meteen het geluid gedempt.
Ook ben ik iets goedkoper uit.
De isolatie van de SonoDec is wel wat minder dik, maar ik denk alsnog dat dit niet tot condensatie zal leiden.
Ook is de binnendoorsnede 5 cm groter dan de ComfoPipe, maar dat lijkt me geen probleem.
Zie ik iets over het hoofd?
Of is dit wel een plan dat zo werkt als ik hoop?
Zeer veel van geleerd.
Ook liet hij me horen wat het geluid was aan de uitblaaszijde.
Nauwelijks te horen in de normale stand.
Maar mijn istallatie zal iets harder blazen en ik woon dicht bij buren, en daar zit de uitblaaskant.
Daarom ben ik het volgende van plan:
Ik gebruik Zehnder ComfoPipe Plus buizen.
Omhoog richting plafond vanuit de WTW, dan een 90 graden bocht richtig uitblaas-dakdoorvoer.
Tussen bocht en dakdoorvoer moet ik nog ± 5 meter overbruggen.
Voor die 5 meter gebruiken ik 3 stuks ComfoPipe Plus van ± een meter.

De overblijvende ± 2 meter wordt opgevuld met Sonodec Akoestische en Thermisch geïsoleerde slang.

Die neem ik dan in de uitvoering Ø 250 mm.
Met deze maat kan ik hem over het 'mannetje' van de Comfopipe Plus schuiven. Die is iets van Ø 243 mm

Voordeel zijn dat de SonoDec precies passend te maken is, én ik heb meteen het geluid gedempt.
Ook ben ik iets goedkoper uit.
De isolatie van de SonoDec is wel wat minder dik, maar ik denk alsnog dat dit niet tot condensatie zal leiden.
Ook is de binnendoorsnede 5 cm groter dan de ComfoPipe, maar dat lijkt me geen probleem.
Zie ik iets over het hoofd?
Of is dit wel een plan dat zo werkt als ik hoop?
Ik ben me aan het oriënteren op het toepassen van WTW in onze jaren '30 woning. De aan- & afvoer zullen door de muur moeten. Daarvoor wil ik de gaten zelf gaan boren. Wat me opvalt in filmpjes is dat de gaten haaks op de muur lijken te worden geboord. Normaliter worden gaten door een muur iets aflopend (vanaf de binnenkant gezien) geboord, zodat regenwater niet naar binnen kan lopen. Wordt hier bij ventilatie op een andere manier in voorzien? Of zie ik iets over het hoofd?
Zou het niet zo zijn dat het gat helemaal perfect dicht gemaakt wordt en dan een kap erop die inregenen voorkomt?
Beetje minder haaks boren lijkt me ook geen probleem.
Er zijn in dit topic wel een aantal mensen die buizen op een muurdoorvoer hebben.
die kunnen je vast meer vertellen.
Beetje minder haaks boren lijkt me ook geen probleem.
Er zijn in dit topic wel een aantal mensen die buizen op een muurdoorvoer hebben.
die kunnen je vast meer vertellen.
Bij ons is luchtdichting inderdaad van belang dus kan er echt geen vocht bij komen. Daarnaast zit er natuurlijk een kap over die binnenkomend regenwater tegengaat. Maar niemand hout je tegen om hem onder een lichte hoek te boren. Enkel letten dat je de luchtdichting van je buizen systeem niet beinvloed doordat de kap waarschijnlijk onder 90 graden bevestigd moet worden.
Bedankt voor de reacties. Dan ga ik (ook al is het alleen maar voor de gemoedstoestand) voor een lichte hoek. Dit i.c.m. fatsoenlijke afdichting en inderdaad rekening houdend met de aansluiting op de kap die zich buiten bevindt. Goede tip.
Voor 160 m2, 350m3 / uur max, vind ik dit heel veel buizen.Aurelium schreef op vrijdag 24 februari 2023 @ 07:48:
[...]
Hierbij wat tekeningen. Woonoppervlakte is +/- 160 m2
[Afbeelding]
[Afbeelding]
[Afbeelding]
Ik heb hier 150 m2, de Q350 op 225 m3/uur ingeregeld, en op 150 m3/uur stand 2 haal ik makkelijk een prima CO2 waarde in een slaapkamer met 2 personen. Rest van het huis is beter. Dat met 4 plekken inblazen met dubbele ventielen, d.w.z. 1 buis 125 mm voedt met een T stuk 2x Zehnder ComfoValve S125. Deze halen makkelijk de benodigde 28 m3/uur per ventiel, en buis kan het ook makkelijk aan.
:strip_exif()/f/image/AzE0IyYIwTELY2RU0cc7ZFbR.jpg?f=fotoalbum_large)
Uit Lindab Duct Calculator:
De volle 350 m3/uur door een hoofdbuis van 180mm is 3.82m/s luchtsnelheid, 1 Pa/m verlies. Dit is de referentie, aangezien een Q350 op 1x 160-180mm aangesloten moet worden.
Een 125mm met 100 m3/uur flow (2x 50 m3/uur ventielen) is 2.26m/s, 0.7 Pa/m verlies.
Als je het op 80m3/uur hou (2x 40) is het 1.81m/s, 0.4 Pa/m.
Een 150mm met 100 m3/uur flow is 1.57 m/s, 0.3 Pa/m.
Dit gaat wel om ronde, starre stalen kanalen.
Concreet voor 2e verdieping: is prima zo.
Voor 1e verdieping:
1. Dat spaghetti in het midden is overbodig.
2. Blaas in of zuig af, niet beide in kamer links.
3. Rechtsonder: kan prima 1 buis zijn met een T erin voor 2 toevoer ventielen.
Voor begane grond:
Ik neem aan dat je hier iets van 4x 40 m3/uur toevoer wilt en flink wat afzuiging, ook 4x 40 m3/uur.
4. Rood: 2 buizen met elk 2 ventielen (4x 40 totaal). De ComfoValve E125 gaat tot 75 per stuk maar dan wordt de luchtsnelheid in een 125mm buis wat hoog. Of dikkere buizen gebruiken, 2 trekken, T erin, voor 4x 50-60.
5. Toevoer vooral rechts is buisverspilling. 1x 125mm kan 2x 40-50 m3/uur aan.
Maar dan lees ik iets over Zehnder luchtverdeelsysteem. Heb je daar specificaties van? Als het die platte plastic kanalen zijn: ik zou dat nooit installeren. Rond is ook tiny, buitendiameter 90mm.
Binnendiameter van 122x35mm bij 40 m3/uur, dus maar 1 ventiel, is al 2.6m/s en 2.4 Pa/m verlies. Dat is meer dan wat ik acceptabel acht, en dan wil je inderdaad een octopus, 1 buis 1 ventiel, meer red je niet. Het is equivalent aan een 73mm ronde buis, veel kleiner dan de standaard. En dan ~€300 per rol van 20 meter voor vragen...
Niet dat gewone 125 buizen heel goedkoop zijn, dat is ook 7,50 per meter, maar daar kan tenminste wel makkelijk 2 ventielen op, of wel 3 of 4 als je die 2.4 Pa/m okay vindt (125mm @ 200m3/uur = 2.2 Pa/m).
Ik heb ooit zelf ook een stukje rechthoekige kanaal aangelegd, met 220x55mm kanalen, equivalent aan 125mm rond voor de afzuiging, met een minimaal verlaagd plafond onder. Kanaal op maat slijpen met een slijptol (RVS schijf), aan elkaar maken en met een beugel vastmaken aan de betonnen plafond, dan gipsplaten met spots er onder.
Aangezien het maar een klein stukje is en een goede afzuigmotor 250+ Pa tegendruk geeft kan ik daar wel 5-600 m3/uur doorheen duwen. Voor WTW: deze voor 100 m3/uur max, net als een standaard 125mm rond kanaal, dus 2 ComfoValve E/S125's.
Prioriteit #1 van lucht verdelen is weerstand minimaliseren. Weerstand = meer vermogen = meer geluid, hier met dus 8x ~0.4 Pa/m x 2 meter verdeelkanaal, en de volle 225 m3/uur door een 160mm hoofdkanaal @ 0.8 Pa/m x kort stukje, daarna zakt snelheid terug, staat de Q350 op ~40% ventilatorvermogen.
Met jouw ingetekende buizenstelsel, de langste buis in de woonkamer is 10 meter x 2.4 Pa/m = 24 Pa, meer dan het hele systeem hier, en dan moet het nog naar boven. De hoofdkanalen zijn wel star 160/180mm toch? Niet Zehnder tube op tube verdelen en hopen dat het goed komt, we hebben gezien dat 1 ventiel al max is per tube.
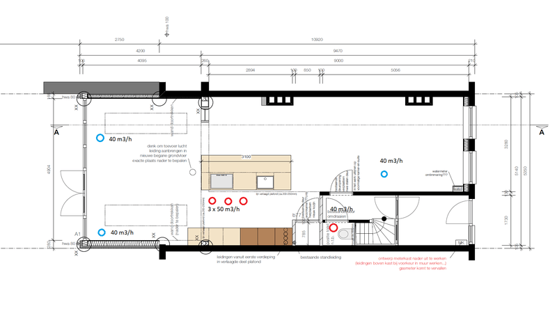
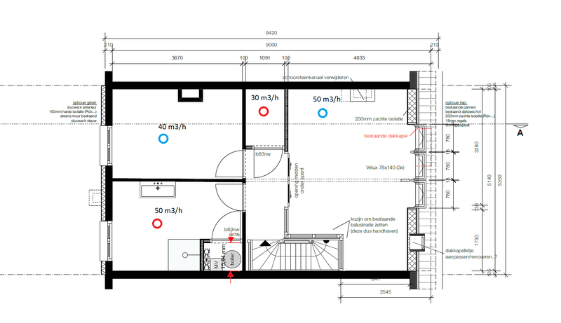
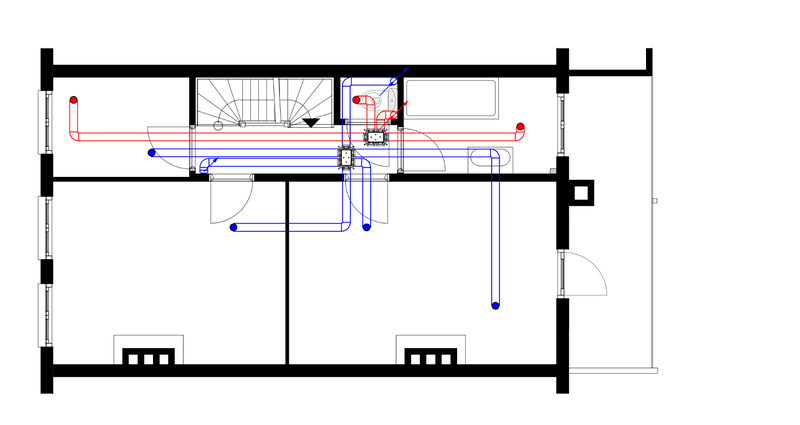
Ik lees al een tijdje mee op de achtergrond om informatie in te winnen voor een ventilatieplan. Binnenkort gaan we verhuizen naar een jaren 70 woning, waar op dit moment alleen natuurlijk geventileerd wordt. Ik zou dan de WTW-ventilatiebox op zolder plaatsen, met de invoer door de zij-gevel en de uitblaas door het dak/via de schoorsteen.
Het huis is 150m². Momenteel zijn we met z'n tweeën, maar ik wil het dimensioneren voor 4 personen.
Qua kanalen in huis zat ik te denken om twee buizen (aan- en afvoer) verticaal naar de begane grond te laten lopen, om daar te laten eindigen in een koof met roosters. De meeste aanvoeren voor de 1ste verdieping zullen vanaf de zolder komen. Ik heb nu ervoor gekozen om af te zuigen in de kastkamer, omdat dit eenvoudiger is met de afvoerbuis die erdoor loopt. We voorzien op dit moment niet dat deze kamer gebruikt gaat worden als slaapkamer. De zolder zelf zullen uit 2 kamers gaan bestaan en dan de technische ruimte.
Qua vragen die ik zelf heb:
:no_upscale():strip_icc():fill(white):strip_exif()/f/image/tryVlIdEqwmRFMtzeg25bm7w.jpg?f=user_large)
De zolder. De hobbykamer en de slaapkamer zullen 1 ruimte gaan worden. De hobbyruimte zal een slaapkamer gaan worden.
:strip_exif()/f/image/olYm1YpuXbgS1suhVBidLDxZ.jpg?f=fotoalbum_large)
De 1ste verdieping
:strip_exif()/f/image/bpQI6FsEUduuuDzIDDv7FNpj.jpg?f=fotoalbum_large)
De begane grond, waarbij ik in de woonkamer en keuken koven wil maken om de lucht te verspreiden.
Het huis is 150m². Momenteel zijn we met z'n tweeën, maar ik wil het dimensioneren voor 4 personen.
Qua kanalen in huis zat ik te denken om twee buizen (aan- en afvoer) verticaal naar de begane grond te laten lopen, om daar te laten eindigen in een koof met roosters. De meeste aanvoeren voor de 1ste verdieping zullen vanaf de zolder komen. Ik heb nu ervoor gekozen om af te zuigen in de kastkamer, omdat dit eenvoudiger is met de afvoerbuis die erdoor loopt. We voorzien op dit moment niet dat deze kamer gebruikt gaat worden als slaapkamer. De zolder zelf zullen uit 2 kamers gaan bestaan en dan de technische ruimte.
Qua vragen die ik zelf heb:
- Ik zit zelf nog een beetje te dubben over de diameter van de ventielen: kan ik niet beter 100mm als kleinste maat aanhouden ipv 80mm? Dit vooral met oog op geluid.
- Ook vraag ik me af hoe groot ik de ventilatiebox zelf moet nemen. Met de 415m²/h zit ik een beetje tussen maten in. Ga ik dan voor een 500m³/h?
- Nu heb ik voor de master bedroom een enkel 125mm ventiel voorzien voor 70m³/h. Gaat dit wel geruisloos worden?
- Raden jullie nog aan om kleppen in te bouwen? Momenteel zit ik te denken om aan de aanvoerkant 2 kleppen te plaatsen om een grove afstelling van het debiet naar de BG en de eerste verdieping te kunnen maken.
- Hebben jullie nog ander aanbevelingen of zaken die opvallen?
:no_upscale():strip_icc():fill(white):strip_exif()/f/image/tryVlIdEqwmRFMtzeg25bm7w.jpg?f=user_large)
De zolder. De hobbykamer en de slaapkamer zullen 1 ruimte gaan worden. De hobbyruimte zal een slaapkamer gaan worden.
:strip_exif()/f/image/olYm1YpuXbgS1suhVBidLDxZ.jpg?f=fotoalbum_large)
De 1ste verdieping
:strip_exif()/f/image/bpQI6FsEUduuuDzIDDv7FNpj.jpg?f=fotoalbum_large)
De begane grond, waarbij ik in de woonkamer en keuken koven wil maken om de lucht te verspreiden.
:no_upscale():strip_icc():fill(white):strip_exif()/f/image/aHpUMMyIsrdB96qzJXhmkqBo.jpg?f=user_large)
Dank voor je uitgebreide reactie. Als ik de strekking van je verhaal goed begrijp raad je eigenlijk het gebruik van luchtverdeelsystemen met die flexibele slangen af en zeg je zoveel mogelijk spirobuis te gebruiken. Alles om de luchtweerstand te minimaliseren.w00key schreef op maandag 27 februari 2023 @ 17:25:
[...]
Voor 160 m2, 350m3 / uur max, vind ik dit heel veel buizen.
Ik heb hier 150 m2, de Q350 op 225 m3/uur ingeregeld, en op 150 m3/uur stand 2 haal ik makkelijk een prima CO2 waarde in een slaapkamer met 2 personen. Rest van het huis is beter. Dat met 4 plekken inblazen met dubbele ventielen, d.w.z. 1 buis 125 mm voedt met een T stuk 2x Zehnder ComfoValve S125. Deze halen makkelijk de benodigde 28 m3/uur per ventiel, en buis kan het ook makkelijk aan.
[Afbeelding]
Uit Lindab Duct Calculator:
De volle 350 m3/uur door een hoofdbuis van 180mm is 3.82m/s luchtsnelheid, 1 Pa/m verlies. Dit is de referentie, aangezien een Q350 op 1x 160-180mm aangesloten moet worden.
Een 125mm met 100 m3/uur flow (2x 50 m3/uur ventielen) is 2.26m/s, 0.7 Pa/m verlies.
Als je het op 80m3/uur hou (2x 40) is het 1.81m/s, 0.4 Pa/m.
Een 150mm met 100 m3/uur flow is 1.57 m/s, 0.3 Pa/m.
Dit gaat wel om ronde, starre stalen kanalen.
Concreet voor 2e verdieping: is prima zo.
Voor 1e verdieping:
1. Dat spaghetti in het midden is overbodig.
2. Blaas in of zuig af, niet beide in kamer links.
3. Rechtsonder: kan prima 1 buis zijn met een T erin voor 2 toevoer ventielen.
Voor begane grond:
Ik neem aan dat je hier iets van 4x 40 m3/uur toevoer wilt en flink wat afzuiging, ook 4x 40 m3/uur.
4. Rood: 2 buizen met elk 2 ventielen (4x 40 totaal). De ComfoValve E125 gaat tot 75 per stuk maar dan wordt de luchtsnelheid in een 125mm buis wat hoog. Of dikkere buizen gebruiken, 2 trekken, T erin, voor 4x 50-60.
5. Toevoer vooral rechts is buisverspilling. 1x 125mm kan 2x 40-50 m3/uur aan.
Maar dan lees ik iets over Zehnder luchtverdeelsysteem. Heb je daar specificaties van? Als het die platte plastic kanalen zijn: ik zou dat nooit installeren. Rond is ook tiny, buitendiameter 90mm.
Binnendiameter van 122x35mm bij 40 m3/uur, dus maar 1 ventiel, is al 2.6m/s en 2.4 Pa/m verlies. Dat is meer dan wat ik acceptabel acht, en dan wil je inderdaad een octopus, 1 buis 1 ventiel, meer red je niet. Het is equivalent aan een 73mm ronde buis, veel kleiner dan de standaard. En dan ~€300 per rol van 20 meter voor vragen...
Niet dat gewone 125 buizen heel goedkoop zijn, dat is ook 7,50 per meter, maar daar kan tenminste wel makkelijk 2 ventielen op, of wel 3 of 4 als je die 2.4 Pa/m okay vindt (125mm @ 200m3/uur = 2.2 Pa/m).
Ik heb ooit zelf ook een stukje rechthoekige kanaal aangelegd, met 220x55mm kanalen, equivalent aan 125mm rond voor de afzuiging, met een minimaal verlaagd plafond onder. Kanaal op maat slijpen met een slijptol (RVS schijf), aan elkaar maken en met een beugel vastmaken aan de betonnen plafond, dan gipsplaten met spots er onder.
Aangezien het maar een klein stukje is en een goede afzuigmotor 250+ Pa tegendruk geeft kan ik daar wel 5-600 m3/uur doorheen duwen. Voor WTW: deze voor 100 m3/uur max, net als een standaard 125mm rond kanaal, dus 2 ComfoValve E/S125's.
Prioriteit #1 van lucht verdelen is weerstand minimaliseren. Weerstand = meer vermogen = meer geluid, hier met dus 8x ~0.4 Pa/m x 2 meter verdeelkanaal, en de volle 225 m3/uur door een 160mm hoofdkanaal @ 0.8 Pa/m x kort stukje, daarna zakt snelheid terug, staat de Q350 op ~40% ventilatorvermogen.
Met jouw ingetekende buizenstelsel, de langste buis in de woonkamer is 10 meter x 2.4 Pa/m = 24 Pa, meer dan het hele systeem hier, en dan moet het nog naar boven. De hoofdkanalen zijn wel star 160/180mm toch? Niet Zehnder tube op tube verdelen en hopen dat het goed komt, we hebben gezien dat 1 ventiel al max is per tube.
@Aurelium Ik denk wel dat er bij de opmerkingen van @w00key ten aanzien van de flexibele buizen een kanttekening geplaatst kan worden. w00key gaat uit van een buis per ventiel. De meesten die het met deze buizen aanleggen gebruiken twee buizen per ventiel. Dat dat in jouw situatie niet zou passen (wat wordt geïmpliceerd) lijkt me helemaal niet evident. Met twee buizen per ventiel wordt het natuurlijk een heel ander verhaal met stromingssnelheden en drukval. Je hebt wel veel buizen in je huis lopen, dat is zeker, en het kost ook wat. Maar in sommige situaties passen grotere buizen gewoon niet en is dit zeker een acceptabele oplossing. Er zijn in dit topic genoeg voorbeelden te vinden van mensen bij wie dit goed gaat (zoek bijvoorbeeld ook eens op Ubbink en Hybalans+).
Oh, ze raden 2 flex buizen per ventiel aan? Dat is helemaal een dure grap dan, dan snap ik wel dat het op €9000 aan leidingwerk uit komt.Anomi schreef op dinsdag 28 februari 2023 @ 22:38:
@Aurelium Ik denk wel dat er bij de opmerkingen van @w00key ten aanzien van de flexibele buizen een kanttekening geplaatst kan worden. w00key gaat uit van een buis per ventiel. De meesten die het met deze buizen aanleggen gebruiken twee buizen per ventiel. Dat dat in jouw situatie niet zou passen (wat wordt geïmpliceerd) lijkt me helemaal niet evident. Met twee buizen per ventiel wordt het natuurlijk een heel ander verhaal met stromingssnelheden en drukval. Je hebt wel veel buizen in je huis lopen, dat is zeker, en het kost ook wat. Maar in sommige situaties passen grotere buizen gewoon niet en is dit zeker een acceptabele oplossing. Er zijn in dit topic genoeg voorbeelden te vinden van mensen bij wie dit goed gaat (zoek bijvoorbeeld ook eens op Ubbink en Hybalans+).
Ik ben pro recht-toe-recht-aan staal, maar veel leveranciers werken liever met een schaar / mes / tape dan een slijptol, daar is plastic wel makkelijker in.
Ja of ze moeten iets gebruiken dat ik niet zo snel kan vinden op de Zehnder site, maar net als met computers, een 80mm fan maakt veel meer herrie dan een 120/140mm case fan die dezelfde hoeveelheid lucht verplaatst. Het lijkt veel, van ~55mm platte buis naar rond 100 / 125mm gaan, maar het is vergelijkbaar met de breedte van je telefoon vs hoogte; dichtbij lijkt het veel, maar als je toch een cove / plafond verlaagd, die 5 of 7 cm extra op een bouwhoogte van 240cm+ bij nieuwere huizen maakt maar weinig uit.Aurelium schreef op dinsdag 28 februari 2023 @ 22:23:
[...]
Dank voor je uitgebreide reactie. Als ik de strekking van je verhaal goed begrijp raad je eigenlijk het gebruik van luchtverdeelsystemen met die flexibele slangen af en zeg je zoveel mogelijk spirobuis te gebruiken. Alles om de luchtweerstand te minimaliseren.
Kleine buisjes die niet glad zijn zijn nog erger dan kleine gladde stalen buizen, bij professioneel spul zoals Combidec in dit geval vind je vaak een diagram waar je verlies kan aflezen:
:fill(white):strip_exif()/f/image/YX5VbtOkjqLCi7vxZUiR5JmE.png?f=user_large)
Ik ben fan van silent, maar hey, zoals je kan zien, een rond 102 ribbelkanaal kan 200+ m3/uur afvoeren als je genoeg druk er op zet, 8 Pa/meter in dit geval. En de Q350 kan op zich best veel druk geven
:fill(white):strip_exif()/f/image/UaGsgjOWkcRAAa2i5QAGom81.png?f=user_large)
/f/image/cnQcXrepkcUtdg3Sq5aqdRLJ.png?f=fotoalbum_large)
(correct me if I'm wrong) Ik geloof dat de bruikbare druk het verschil is tussen de onder en bovenkant van het grijs vlak, dus op 250 heb je ~150 Pa te verdelen, op 350 blijft er maar 100 over. De onderste 100 is de dynamische druk - kracht dat nodig is om lucht van 0 m/s naar de eindsnelheid te accelereren.
Dus een hele Q350 op 1x 127mm combidec aansluiten, dan mag je nog 12 meter aan kanaal hebben tot ie het opgeeft. Kleiner of langer = de Q350 gaat meer naar links, minder lucht = minder dynamische druk en minder statische druk per meter kanaal.
Hier draait de Q350 op stand 2 = 150 m3/uur op 20W vermogen. Dus net ietsje meer dan punt 1 op het diagram, totale tegendruk is dan iets boven 25 Pa. Stand 3 = 225 m3/uur met een verbruik van 48W, op het diagram dus ergens tussen 2 en 3, en net iets naar boven denk ik, er is nauwelijks sprake van tegendruk.
Toch vind ik hem luid genoeg, ik weet niet en zou niet willen weten hoe hij klinkt op punt 5/6 of nog erger, tegen de bovenkant aan bij 8/9/10.
[ Voor 5% gewijzigd door w00key op 01-03-2023 00:51 ]
Geen idee hoe je bij die kleine ventielafmetingen komt. Normaliter zijn de ventielen 125mm.yoshua schreef op maandag 27 februari 2023 @ 22:03:
• Ik zit zelf nog een beetje te dubben over de diameter van de ventielen: kan ik niet beter 100mm als kleinste maat aanhouden ipv 80mm? Dit vooral met oog op geluid.
Zehnder heeft een mooie Q450, maar ik schat dat je met een 350 (en veel overstroom) ook een eind komt.• Ook vraag ik me af hoe groot ik de ventilatiebox zelf moet nemen. Met de 415m²/h zit ik een beetje tussen maten in. Ga ik dan voor een 500m³/h?
Dat is te veel. Reken gewoon op 1 125mm ventiel pp. Dus in de master bedroom twee, en in de kinderslaapkamers eentje.• Nu heb ik voor de master bedroom een enkel 125mm ventiel voorzien voor 70m³/h. Gaat dit wel geruisloos worden?
Nee. Gewoon met de ventielen regelen.• Raden jullie nog aan om kleppen in te bouwen? Momenteel zit ik te denken om aan de aanvoerkant 2 kleppen te plaatsen om een grove afstelling van het debiet naar de BG en de eerste verdieping te kunnen maken.
WP: ME PUHZ-SW75YAA + ERSD-VM2D + EV-WP-TWS-1W 300; AC: ME MXZ-2F42VF + 2x MSZ-LN25VGV; PV: 14.08 kWp O/W + SMA STP 8.0; Vent: Zehnder Q600 ERV + Ubbink AirExcellent.
Ik ben zelf eens wat gaan rekenen op basis van de 350 m3/h.Aurelium schreef op vrijdag 24 februari 2023 @ 07:48:
[...]
Hierbij wat tekeningen. Woonoppervlakte is +/- 160 m2
[Afbeelding]
[Afbeelding]
[Afbeelding]
Nu even voor het gemak uitgegaan van Ubbink systeem met 2 x 90 mm leidingen en 125 mm ventielen. Wellicht voor het rommelhok op zolder overkill.
Aangezien het een oud huis betreft en zo'n luchtverdeelsysteem er wel eenvoudig te monteren uit ziet ben ik daar nu even voor gegaan.
Benieuwd naar jullie feedback / challenge.
/f/image/eZVuPUrf1qdhgHmuv8rpBc7o.png?f=fotoalbum_large)
/f/image/7ieRLnocffkthJGoCU0tzH7I.png?f=fotoalbum_large)
/f/image/36tw7yV3umoTtpcINsLjONv0.png?f=fotoalbum_large)
/f/image/UEvukdSNxS36JA3TdHrCGaYv.png?f=fotoalbum_large)
Netjes. Met 2x 90mm kom je een heel eind, de boxen wel aansluiten met 160mm kanalen, uit de Q350 komt inwendig 160mm namelijk, beter niet direct afknijpen.Aurelium schreef op woensdag 1 maart 2023 @ 14:07:
[...]
Ik ben zelf eens wat gaan rekenen op basis van de 350 m3/h.
Nu even voor het gemak uitgegaan van Ubbink systeem met 2 x 90 mm leidingen en 125 mm ventielen. Wellicht voor het rommelhok op zolder overkill.
Aangezien het een oud huis betreft en zo'n luchtverdeelsysteem er wel eenvoudig te monteren uit ziet ben ik daar nu even voor gegaan.
Benieuwd naar jullie feedback / challenge.
[Afbeelding]
[Afbeelding]
[Afbeelding]
[Afbeelding]
/f/image/W4a2VjoMa9DixXXecmAe0LcC.png?f=fotoalbum_large)
Schaf een goede CO2 datalogger aan, ik had 1 van Netatmo waar je terug kan kijken hoe het ontwikkelt in de nacht. Na inregelen blijkt dat stand 2 iets hoger moest voor de hoofd slaapkamer, daar ook de ventielen iets verder open gedraaid waarna het prima is. Ik ventileer 95% van de tijd dus op 150 m3/uur verdeeld over 150 m2, alleen bij douchen springt het apparaat naar max door de vochtsensor van 225. Je moet niet teveel, niet te weinig, maar precies genoeg ventileren, te veel is zonde van stroom en extra lawaai.
Drukverlies staat netjes in de pdf ook: https://www.ubbink.com/be...55SC-flexibele-kanaal.pdf
Als je hier minder dan 50m3/uur doorheen stuurt is het prima, hoef je niet perse dubbel te doen, afstand van verdeelbox naar ventiel is <= 10 meter. Alleen oppassen met bochten, grote radius = minder verlies, dat is logisch maar heel mooi dat ze Pa/bocht voor r=200 en r=400 hebben geplot.
Bedankt voor de feedback!:no_upscale():strip_icc():fill(white):strip_exif()/f/image/YxlyljtGRc2yGrLp4khvOSYj.jpg?f=user_large)
Maar ik zie inderdaad dat er met 125mm meer opties zijn. Ik zal alle ventielen aanpassen naar 125mm en nog eens kijken naar de buisdiameters
:strip_exif()/f/image/P05HJfjqho3EE8zAmT55XEiC.jpg?f=fotoalbum_large)
De kleinere ventielmaten had ik gewoon bij een grote online ventilatiewebwinkel gevonden:Andrehj schreef op woensdag 1 maart 2023 @ 13:37:
[...]
Geen idee hoe je bij die kleine ventielafmetingen komt. Normaliter zijn de ventielen 125mm.
:no_upscale():strip_icc():fill(white):strip_exif()/f/image/YxlyljtGRc2yGrLp4khvOSYj.jpg?f=user_large)
Maar ik zie inderdaad dat er met 125mm meer opties zijn. Ik zal alle ventielen aanpassen naar 125mm en nog eens kijken naar de buisdiameters
Zal kijken naar een kleiner model, maar dit gaat ook afhangen van de beschikbaarheid uiteraard. Oorspronkelijk had ik een offerte aangevraagd met een Vasco T500.[...]
Zehnder heeft een mooie Q450, maar ik schat dat je met een 350 (en veel overstroom) ook een eind komt.
Duidelijk, zal nog een gat laten boren in de master bedroom voor een 2e 125mm ventiel. Dan kom ik met buisdiameters een beetje zo uit:[...]
Dat is te veel. Reken gewoon op 1 125mm ventiel pp. Dus in de master bedroom twee, en in de kinderslaapkamers eentje.
:strip_exif()/f/image/P05HJfjqho3EE8zAmT55XEiC.jpg?f=fotoalbum_large)
Helder[...]
Nee. Gewoon met de ventielen regelen.
Hoe zit het eigenlijk met WTW en de keuken?
Onze woning (waar nog geen ventilatie in zit) heeft nu in de keuken een afzuigkap die de vuile lucht naar buiten blaast. Maar als we WTW zouden plaatsen, dan klopt de balans toch niet meer?
Hoe zit dat in nieuwe huizen met WTW? Gaat de vuile lucht uit de keuken dan via de WTW naar buiten? Raakt dat dan niet binnen de korste keren verstopt met vet?
Zeker als daar zo'n fijnmazig blok in zit wat de warmte moet overbrengen. Voor mijn gevoel kan dat toch nooit gaan, of zie ik dat verkeerd?
Onze woning (waar nog geen ventilatie in zit) heeft nu in de keuken een afzuigkap die de vuile lucht naar buiten blaast. Maar als we WTW zouden plaatsen, dan klopt de balans toch niet meer?
Hoe zit dat in nieuwe huizen met WTW? Gaat de vuile lucht uit de keuken dan via de WTW naar buiten? Raakt dat dan niet binnen de korste keren verstopt met vet?
Zeker als daar zo'n fijnmazig blok in zit wat de warmte moet overbrengen. Voor mijn gevoel kan dat toch nooit gaan, of zie ik dat verkeerd?
Gaat wel goed. Er ontstaat wat extra onderdruk in de woning waardoor de afvoerventilator van de wtw automatisch minder lucht verplaatst.hneel schreef op vrijdag 3 maart 2023 @ 22:54:
Hoe zit het eigenlijk met WTW en de keuken?
Onze woning (waar nog geen ventilatie in zit) heeft nu in de keuken een afzuigkap die de vuile lucht naar buiten blaast. Maar als we WTW zouden plaatsen, dan klopt de balans toch niet meer?
Hoe zit dat in nieuwe huizen met WTW? Gaat de vuile lucht uit de keuken dan via de WTW naar buiten? Raakt dat dan niet binnen de korste keren verstopt met vet?
Zeker als daar zo'n fijnmazig blok in zit wat de warmte moet overbrengen. Voor mijn gevoel kan dat toch nooit gaan, of zie ik dat verkeerd?
Enige consequentie is dat je thermisch rendement voor de periode dat de wasemkap aan is wat lager is.
If buying doesn’t mean ownership Then pirating isn’t stealing / iRacing Profiel
In nieuwe huizen wordt een recirculatie dampkap gebruikt. Die haalt de vuile lucht door een vetfilter en koolstoffilter en wordt daarna terug uitgeblazen in de keuken (of evt. andere locatie binnen het huis).hneel schreef op vrijdag 3 maart 2023 @ 22:54:
Hoe zit het eigenlijk met WTW en de keuken?
Onze woning (waar nog geen ventilatie in zit) heeft nu in de keuken een afzuigkap die de vuile lucht naar buiten blaast. Maar als we WTW zouden plaatsen, dan klopt de balans toch niet meer?
Hoe zit dat in nieuwe huizen met WTW? Gaat de vuile lucht uit de keuken dan via de WTW naar buiten? Raakt dat dan niet binnen de korste keren verstopt met vet?
Zeker als daar zo'n fijnmazig blok in zit wat de warmte moet overbrengen. Voor mijn gevoel kan dat toch nooit gaan, of zie ik dat verkeerd?
Zo veranderd er niks aan de balans tussen aanvoer/afvoer en zuig je geen warmte het huis uit.
30x Jinko JKM380M-6RL3 (11.4kWp) 12x oost 90° - 18x west 270°, 45° incl. | Marstek Venus 5.12kWh | Vaillant Arotherm 75/5 | Zehnder ComfoAir Q450 | Tesla Model 3 Performance 2025
Je kunt ook een klep installeren in de afzuiginstallatie die alleen open staat als je de afzuiger aan hebt.hneel schreef op vrijdag 3 maart 2023 @ 22:54:
Hoe zit het eigenlijk met WTW en de keuken?
Onze woning (waar nog geen ventilatie in zit) heeft nu in de keuken een afzuigkap die de vuile lucht naar buiten blaast. Maar als we WTW zouden plaatsen, dan klopt de balans toch niet meer?
Hoe zit dat in nieuwe huizen met WTW? Gaat de vuile lucht uit de keuken dan via de WTW naar buiten? Raakt dat dan niet binnen de korste keren verstopt met vet?
Zeker als daar zo'n fijnmazig blok in zit wat de warmte moet overbrengen. Voor mijn gevoel kan dat toch nooit gaan, of zie ik dat verkeerd?
Dan is op dat moment even de balans doorbroken.
Maar als je stopt met koken/afzuigen werkt de gewone balans-ventilatie weer.
Niet mijn eigen idee, maar gezien bij een mede-forumlid.
Wat ik gedaan heb:Broodro0ster schreef op zaterdag 4 maart 2023 @ 09:03:
[...]
In nieuwe huizen wordt een recirculatie dampkap gebruikt. Die haalt de vuile lucht door een vetfilter en koolstoffilter en wordt daarna terug uitgeblazen in de keuken (of evt. andere locatie binnen het huis).
Zo veranderd er niks aan de balans tussen aanvoer/afvoer en zuig je geen warmte het huis uit.
Ik wilde per sé om gezondheidsredenen het fijnstof van het koken naar buiten afvoeren. En niet via de WTW, want dat werd toen (en nu ook nog) door Zehnder met klem afgeraden, om vervuiling van die WTW te voorkomen.
Dus een 200mm PVC-leiding door de kruipruimte gemaakt en onder het keukenblok door de vloer laten komen. Daar is de Bora op aangesloten. Dit werkt goed.
Dan heb je nog twee problemen:
1. Luchtdichtheid van de woning.
Door de afvoer is er een enorm gat in de luchtdichting ontstaan. Om dat op te lossen heb ik (in de kruipruimte) een automatisch bediende klep gemaakt. Zodra de afzuiging van de kookplaat aan gaat, gaat die open. (De afzuiging heeft een eigen fase, en is dus mooi meetbaar door een meetrelais in de meterkast).
2. Luchttoevoer.
Lucht haal ik uit de garage (waar het enige kozijn met een ventilatierooster zit). Voordeel is dat die lucht al redelijk opgewarmd is en je dus niet een bak koude lucht je woning in trekt.
Ook dit wil ik nog met een automatisch bediende klep doen, maar die klus wacht nog steeds. Tot die tijd doen we gewoon de deur naar de garage op een kier.
Maar ook zonder die deur open doet de afzuiging wel iets. Blijkbaar is de woning (ondanks het doorstaan van een blowerdoortest) toch niet helemaal luchtdicht.
WP: ME PUHZ-SW75YAA + ERSD-VM2D + EV-WP-TWS-1W 300; AC: ME MXZ-2F42VF + 2x MSZ-LN25VGV; PV: 14.08 kWp O/W + SMA STP 8.0; Vent: Zehnder Q600 ERV + Ubbink AirExcellent.
Hier vorige zomer de brink flair 400 besteld…echter is de levertijd van half maart 2023 gewijzigd naar maart 2024…wat is nu een goed alternatief? Heb de buva 350 als voorstel gekregen maar denk dat bijvoorbeeld de zehnder q450 beter alternatief is aangezien die en duco box energy 325 als beste uit de bus komen samen brink 400 volgens google…ben benieuwd naar jullie antwoorden
Q450. Wordt langzaam weer leverbaar. Of zelfs de Q600, daar begint zelfs langzaam voorraad van te komen. Is wel een kleine 10% duurder dan de Q450.dbz1985 schreef op zaterdag 4 maart 2023 @ 17:50:
Hier vorige zomer de brink flair 400 besteld…echter is de levertijd van half maart 2023 gewijzigd naar maart 2024…wat is nu een goed alternatief? Heb de buva 350 als voorstel gekregen maar denk dat bijvoorbeeld de zehnder q450 beter alternatief is aangezien die en duco box energy 325 als beste uit de bus komen samen brink 400 volgens google…ben benieuwd naar jullie antwoorden
If buying doesn’t mean ownership Then pirating isn’t stealing / iRacing Profiel
Deze: https://www.amazon.nl/gp/product/B01N0XGRD9
[ Voor 6% gewijzigd door Andrehj op 04-03-2023 19:21 ]
WP: ME PUHZ-SW75YAA + ERSD-VM2D + EV-WP-TWS-1W 300; AC: ME MXZ-2F42VF + 2x MSZ-LN25VGV; PV: 14.08 kWp O/W + SMA STP 8.0; Vent: Zehnder Q600 ERV + Ubbink AirExcellent.
Wij zijn ook in de markt voor een nieuwe WTW.
Het huis is vanuit de bouw (2002) uitgevoerd met 2x een Stork WHR90;
1x BG met keuken, berging, toilet en gang a 175m3/u en
1x 1e+2e met woonkamer, 3x slaapkamer en badkamer a 210m3/u.
Omdat we afgelopen najaar een warmtepomp hebben geplaatst hebben we 1 van de units verwijderd om plaats te maken voor het boilervat.
Sindsdien draait het geheel op een unit en dat is net wat krap
Nu dus in de markt voor een unit van ca 400m3/u.
De Orcon MaxComfort 400 lijkt me wel een prima optie, omdat die ook op de al aanwezige perilex aangesloten kan worden en de prijs relatief gunstig is (ca 1700 eur).
Maar zoals zo veel opties is deze dus ook slecht verkrijgbaar.
2 vragen;
- deze unit lijkt ook niet zo goed leverbaar, dus is er een redelijk vergelijkbaar alternatief dat beter beschikbaar is? Op zich zitten we niet op hete kolen, dus wachten is mogelijk als het een prima keuze is.
- waarin verschilt deze unit van zeg een zehder q450 dat het een prijsverschil van zo'n 1200 a 1500 euro oplevert? (Of anders gezegd; is zo'n zehnder/ducobox/brink echt zoveel beter?
Qua specs vind ik het allemaal behoorlijk op elkaar lijken.
Een no-nonsense systeem is prima. We hebben niet echt behoefte aan een app. 3 standen is prima, want die kan ik ook via home assistant aansturen met een shelly2.1.
Het huis is vanuit de bouw (2002) uitgevoerd met 2x een Stork WHR90;
1x BG met keuken, berging, toilet en gang a 175m3/u en
1x 1e+2e met woonkamer, 3x slaapkamer en badkamer a 210m3/u.
Omdat we afgelopen najaar een warmtepomp hebben geplaatst hebben we 1 van de units verwijderd om plaats te maken voor het boilervat.
Sindsdien draait het geheel op een unit en dat is net wat krap
Nu dus in de markt voor een unit van ca 400m3/u.
De Orcon MaxComfort 400 lijkt me wel een prima optie, omdat die ook op de al aanwezige perilex aangesloten kan worden en de prijs relatief gunstig is (ca 1700 eur).
Maar zoals zo veel opties is deze dus ook slecht verkrijgbaar.
2 vragen;
- deze unit lijkt ook niet zo goed leverbaar, dus is er een redelijk vergelijkbaar alternatief dat beter beschikbaar is? Op zich zitten we niet op hete kolen, dus wachten is mogelijk als het een prima keuze is.
- waarin verschilt deze unit van zeg een zehder q450 dat het een prijsverschil van zo'n 1200 a 1500 euro oplevert? (Of anders gezegd; is zo'n zehnder/ducobox/brink echt zoveel beter?
Qua specs vind ik het allemaal behoorlijk op elkaar lijken.
Een no-nonsense systeem is prima. We hebben niet echt behoefte aan een app. 3 standen is prima, want die kan ik ook via home assistant aansturen met een shelly2.1.
Verdiep je vooral even in hoe de elektrische voorverwarming werkt. Ik heb de laatste tijd verhalen gelezen van verwarmingselementen die alleen maar volledig aan of volledig uit kunnen, waardoor je dus bij temperaturen onder het vriespunt met een enorm stroomverbruik wordt geconfronteerd.Diedo70 schreef op zaterdag 4 maart 2023 @ 23:15:
Wij zijn ook in de markt voor een nieuwe WTW.
Het huis is vanuit de bouw (2002) uitgevoerd met 2x een Stork WHR90;
1x BG met keuken, berging, toilet en gang a 175m3/u en
1x 1e+2e met woonkamer, 3x slaapkamer en badkamer a 210m3/u.
Omdat we afgelopen najaar een warmtepomp hebben geplaatst hebben we 1 van de units verwijderd om plaats te maken voor het boilervat.
Sindsdien draait het geheel op een unit en dat is net wat krap![]()
Nu dus in de markt voor een unit van ca 400m3/u.
De Orcon MaxComfort 400 lijkt me wel een prima optie, omdat die ook op de al aanwezige perilex aangesloten kan worden en de prijs relatief gunstig is (ca 1700 eur).
Maar zoals zo veel opties is deze dus ook slecht verkrijgbaar.
2 vragen;
- deze unit lijkt ook niet zo goed leverbaar, dus is er een redelijk vergelijkbaar alternatief dat beter beschikbaar is? Op zich zitten we niet op hete kolen, dus wachten is mogelijk als het een prima keuze is.
- waarin verschilt deze unit van zeg een zehder q450 dat het een prijsverschil van zo'n 1200 a 1500 euro oplevert? (Of anders gezegd; is zo'n zehnder/ducobox/brink echt zoveel beter?
Qua specs vind ik het allemaal behoorlijk op elkaar lijken.
Een no-nonsense systeem is prima. We hebben niet echt behoefte aan een app. 3 standen is prima, want die kan ik ook via home assistant aansturen met een shelly2.1.
Dat heb je bij Zehnder alvast niet, die doet dat modulerend (PWM), en kan het element ook nog in delen aansturen. Bovendien kan daar een enthalpiewisselaar in, dat is ook een enorme plus. Zou ik niet meer willen missen.
WP: ME PUHZ-SW75YAA + ERSD-VM2D + EV-WP-TWS-1W 300; AC: ME MXZ-2F42VF + 2x MSZ-LN25VGV; PV: 14.08 kWp O/W + SMA STP 8.0; Vent: Zehnder Q600 ERV + Ubbink AirExcellent.
+1 enthalpiewisselaar.
Vorige jaar stond de Sharp luchtwasser elke dag letterlijk liters te verdampen om de RH op 50% te houden in alleen de woonkamer. Na switchen van een gewone WTW naar Q350 ERV:
/f/image/OVPcqylF1C7f3mtLXWEWZPmc.png?f=fotoalbum_large)
Bijna 60% gemiddeld, alleen met douchen, koken en de was ophangen. Als het echt hard vriest dipt het ietjes, maar met 1 lading natte wasgoed is dat weer gefixd.
Vorige jaar stond de Sharp luchtwasser elke dag letterlijk liters te verdampen om de RH op 50% te houden in alleen de woonkamer. Na switchen van een gewone WTW naar Q350 ERV:
/f/image/OVPcqylF1C7f3mtLXWEWZPmc.png?f=fotoalbum_large)
Bijna 60% gemiddeld, alleen met douchen, koken en de was ophangen. Als het echt hard vriest dipt het ietjes, maar met 1 lading natte wasgoed is dat weer gefixd.
@w00key had je ook al last van lage luchtvochtigheid voordat je een wtw had? Hier is het rond de 60% met type C CO2 gestuurd.
Altijd al een WTW gehad, is bij de bouw van deze rijtjes voor gekozen. Vochtige huizen ventileren gewoon niet genoeg. Ook met mechanische ventilatie die niet 24/7 op 1 staat heb je dat gauw, maar mensen zetten het vaak laag doordat zo'n ding vaak open op zolder / bij de trap hangt en het maakt herrie, okay dan, dan niet.Megalomania schreef op zondag 5 maart 2023 @ 12:22:
@w00key had je ook al last van lage luchtvochtigheid voordat je een wtw had? Hier is het rond de 60% met type C CO2 gestuurd.
Bereken het zelf met: https://www.lenntech.com/...ity/relative-humidity.htm
KNMI meet nu 6.2° @ 79%, is gelijk aan 20° @ 33% na opwarmen. Om het binnen op 60% te houden heb je bij 150m3/uur ventileren dus 0,74 liter per uur nodig. Dat zijn behoorlijk wat liters.
Als het kouder is zit er nog minder H2O in lucht, met nog droger lucht als gevolg.
Als het te vochtig wordt binnen (ja het kan met een ERV), dwz lokaal 70%+ door volle wasrek + ventilator, dan zet ik de WTW in alleen afvoer plus raampje open wasr het nat is, snelste manier om wel 1L+ per uur kwijt te raken.
Bij douchen is het geen probleem, tot nu toe echt alleen bij fanatiek wassen en drogen.
Maar: met CO2 gestuurd kan je wel weg komen met veel minder dan 150m3/uur, zeker als het niet zo druk is in huis. Hoeveel ventileer je gemiddeld per dag? Met minder vochtverlies kan je genoeg hebben aan koken, douchen en plantjes.
[ Voor 8% gewijzigd door w00key op 05-03-2023 12:39 ]
Ik vraag me af hoe het warmteterugwinrendement is gedefinieerd. Even ervan uitgaande dat de hoeveelheid ingaande en uitgaande lucht gelijk is (in balans is). Stel het is binnen 20C en buiten 0C. Een ideale wtw zou de uitgaande lucht afkoelen tot 10C en de ingaande lucht opwarmen tot 10C. Het 'rendement' lijkt me dan 50%. Immers zijn de verliezen gehalveerd t.o.v. de situatie zonder wtw (10C ingaande lucht ipv 0C).
Echter lees dat het rendement van bijvoorbeeld de Zehnder ComfoAir Q350 is gespecificeerd op 85%. Dit zou betekenen een ingaande lucht van 17C en een uitgaande lucht van 3C wat theoretisch onmogelijk is. Of moet ik dit lezen als 85% van het maximaal te halen 50% rendement? Dan zou het 8.5C in zijn en 11.5C uit.
Is er hier een slimme tweaker die kan toelichten hoe het rendement wordt bepaald?
Echter lees dat het rendement van bijvoorbeeld de Zehnder ComfoAir Q350 is gespecificeerd op 85%. Dit zou betekenen een ingaande lucht van 17C en een uitgaande lucht van 3C wat theoretisch onmogelijk is. Of moet ik dit lezen als 85% van het maximaal te halen 50% rendement? Dan zou het 8.5C in zijn en 11.5C uit.
Is er hier een slimme tweaker die kan toelichten hoe het rendement wordt bepaald?
tvw
Je vergeet het tegenstroom principe. Met een oneindig lange, ideale, warmtewisselaar koelt de uitgaande lucht tot 0°C en in warmt de ingaande lucht op tot 20°C.iets schreef op zondag 5 maart 2023 @ 12:50:
Ik vraag me af hoe het warmteterugwinrendement is gedefinieerd. Even ervan uitgaande dat de hoeveelheid ingaande en uitgaande lucht gelijk is (in balans is). Stel het is binnen 20C en buiten 0C. Een ideale wtw zou de uitgaande lucht afkoelen tot 10C en de ingaande lucht opwarmen tot 10C.
It's time to play the music, it's time to light the lights
Ik zal wat betreft de voorverwarmer navragen of deze modulerend is. Zo niet klinkt dat eigenlijk alsof ik die liever niet zou hebben.Andrehj schreef op zondag 5 maart 2023 @ 10:07:
[...]
Verdiep je vooral even in hoe de elektrische voorverwarming werkt. Ik heb de laatste tijd verhalen gelezen van verwarmingselementen die alleen maar volledig aan of volledig uit kunnen, waardoor je dus bij temperaturen onder het vriespunt met een enorm stroomverbruik wordt geconfronteerd.
Dat heb je bij Zehnder alvast niet, die doet dat modulerend (PWM), en kan het element ook nog in delen aansturen. Bovendien kan daar een enthalpiewisselaar in, dat is ook een enorme plus. Zou ik niet meer willen missen.
Wat betreft de enthalpiewisselaar; ja op zich een mooie feature, maar qua prijzen gaat het dan toch wel snel over 3000 euro.
We hebben geen klachten op het moment behalve dat het op 1 unit van 225m3/u max te krap is, dus een verdubbeling van de kosten voor de voelt nu als too much voor een enthalpiewisselaar. Misschien weten we niet wat we missen
Dat is toch best belangrijk, want het basisprincipe van zo'n beetje elke warmtewisselaar.iets schreef op zondag 5 maart 2023 @ 13:26:
Bedankt, het tegenstroom principe daar had ik nog niet van gehoord.
WP: ME PUHZ-SW75YAA + ERSD-VM2D + EV-WP-TWS-1W 300; AC: ME MXZ-2F42VF + 2x MSZ-LN25VGV; PV: 14.08 kWp O/W + SMA STP 8.0; Vent: Zehnder Q600 ERV + Ubbink AirExcellent.
Sterker nog
Denk bijv. ook aan de kieuwen van een visAndrehj schreef op maandag 6 maart 2023 @ 17:40:
Dat is toch best belangrijk, want het basisprincipe van zo'n beetje elke warmte wisselaar.
Heb inmiddels de q450 besteld met enthalpiewisselaar en krijg ‘m vandaag binnen…nu wachten op onze monteur die eigenlijk de buizen had aangelegd voor de brink flair 400.
alexbl69 schreef op zaterdag 4 maart 2023 @ 18:45:
[...]
Q450. Wordt langzaam weer leverbaar. Of zelfs de Q600, daar begint zelfs langzaam voorraad van te komen. Is wel een kleine 10% duurder dan de Q450.
Ik bepaal het rendement door deze formule in esphome:iets schreef op zondag 5 maart 2023 @ 12:50:
Is er hier een slimme tweaker die kan toelichten hoe het rendement wordt bepaald?
YAML:
1
2
3
4
5
6
7
| - id: performance name: Rendement platform: template unit_of_measurement: "%" update_interval: 30s lambda: 'return ((id(temp_to_inside).state - id(temp_from_outside).state)/(id(temp_from_inside).state - id(temp_from_outside).state)*100);' # (temp_to_inside - temp_from_outside) / (temp_from_inside - temp_from_outside) |
Correct me if wrong.
![]() |
[ Voor 44% gewijzigd door AUijtdehaag op 09-03-2023 06:52 ]
Wij zijn op zolder in een beperkte ruimte een badkamer aan het realiseren. Nu loop ik aan tegen heel volgende.
Mijn aanvoer (buiten naar WTW) van de WTW unit moet achter een schot worden weg gewerkt met maximaal 150 mm ruimte. De WTW heeft een kanaal nodig van 150 tot 180mm. Ik dacht dus dat dat zou passen, maarrrr een WTW aanvoer moet geïsoleerd ivm condens vorming ( zeker bij een badkamer).
Daarmee past het niet.
Nu ben ik op zoek naar creatieve oplossingen of ovale buizen.... Hoe kan ik achter 150mm ruimte een geïsoleerde buis van 150mm ( binnen diameter) realiseren?
Opties waar ik zelf aan denk:
1. Een geïsoleerde slang kopen 125mm (https://www.ventilatiesho...-aluminium-125mm-3-meter/ voor het deel naast de badkamer (past natuurlijk ook nog net niet), de rest afwerken met 160mm slang. Hoe doe ik de overgang van 160mm naar 125mm en weer terug? Gewoon de slangen aan elkaar tapen?
2. Een geïsoleerde buis a 125mm https://www.ventilatielan...ter-125-mm-l-1000-mm.htmlaanbrengen, heeft deze minder weerstand dan een 125mm slang? Volgens mij is thermische en akoestische isolatie minder goed? Heeft het dan zin om op de plaatsen waar ik iets meer ruimte heb de buis extra te isoleren met bijvoorbeeld? https://www.ventilatiesho...ngte-2000mm/?sqr=Isolatie
3. Een flexibele geïsoleerde slang (https://www.ventilatielan...ilatieslang-10-meter.html kopen van 150mm (buitenmaat 200mm) en deze plat drukken.
Nadelen: risico op scheuren van de slang of isolatie en ovaal is de doorvoer minder dan rond - iemand ervaring met deze buizen? Als het makkelijk ovaal gaat kan ik zelfs 160mm bestellen om dezelfde inhoud te houden.
4. De leiding splitsen in 2 leidingen van 100mm ( volgens mijn berekening is 2x 100mm ongeveer gelijk aan 1x 150mm ) en dan 2 slangen van 100mm isodec onder elkaar laten lopen
Nadelen: hoe splits ik 150mm naar 2x 100mm en weer terug? Zijn hier de juiste hulpstukken voor?
5. zijn er ovale oplossingen die geïsoleerd zijn, of hebben jullie andere ideeën?
Mijn aanvoer (buiten naar WTW) van de WTW unit moet achter een schot worden weg gewerkt met maximaal 150 mm ruimte. De WTW heeft een kanaal nodig van 150 tot 180mm. Ik dacht dus dat dat zou passen, maarrrr een WTW aanvoer moet geïsoleerd ivm condens vorming ( zeker bij een badkamer).
Daarmee past het niet.
Nu ben ik op zoek naar creatieve oplossingen of ovale buizen.... Hoe kan ik achter 150mm ruimte een geïsoleerde buis van 150mm ( binnen diameter) realiseren?
Opties waar ik zelf aan denk:
1. Een geïsoleerde slang kopen 125mm (https://www.ventilatiesho...-aluminium-125mm-3-meter/ voor het deel naast de badkamer (past natuurlijk ook nog net niet), de rest afwerken met 160mm slang. Hoe doe ik de overgang van 160mm naar 125mm en weer terug? Gewoon de slangen aan elkaar tapen?
2. Een geïsoleerde buis a 125mm https://www.ventilatielan...ter-125-mm-l-1000-mm.htmlaanbrengen, heeft deze minder weerstand dan een 125mm slang? Volgens mij is thermische en akoestische isolatie minder goed? Heeft het dan zin om op de plaatsen waar ik iets meer ruimte heb de buis extra te isoleren met bijvoorbeeld? https://www.ventilatiesho...ngte-2000mm/?sqr=Isolatie
3. Een flexibele geïsoleerde slang (https://www.ventilatielan...ilatieslang-10-meter.html kopen van 150mm (buitenmaat 200mm) en deze plat drukken.
Nadelen: risico op scheuren van de slang of isolatie en ovaal is de doorvoer minder dan rond - iemand ervaring met deze buizen? Als het makkelijk ovaal gaat kan ik zelfs 160mm bestellen om dezelfde inhoud te houden.
4. De leiding splitsen in 2 leidingen van 100mm ( volgens mijn berekening is 2x 100mm ongeveer gelijk aan 1x 150mm ) en dan 2 slangen van 100mm isodec onder elkaar laten lopen
Nadelen: hoe splits ik 150mm naar 2x 100mm en weer terug? Zijn hier de juiste hulpstukken voor?
5. zijn er ovale oplossingen die geïsoleerd zijn, of hebben jullie andere ideeën?
[ Voor 15% gewijzigd door peter13579 op 10-03-2023 09:54 ]
Ik snap dit gedeelte niet.peter13579 schreef op vrijdag 10 maart 2023 @ 07:17:
maarrrr een WTW aanvoer moet geïsoleerd ivm condens vorming ( zeker bij een badkamer).
Welke aanvoer gaat het over?
Buiten > WTW?
WTW > badkamer?
Ik vraag het omdat je zegt dat een aanvoer geisoleerd moet worden (wat correct is bij Buiten > WTW) maar waarom noem je dan de badkamer?
Want die krijgt warme lucht uit de WTW.
Of bedoel je dat de luchtaanvoer Buiten > WTW deels door de badkamer loopt?
Je kunt ook Ø 150 vervangen door 220x90.
Zelfde oppervlakte.
En dan daarna met verloopstuk weer verder naar Ø 150

[ Voor 8% gewijzigd door Rzaan op 10-03-2023 08:55 ]
Dit inderdaad: dat de luchtaanvoer Buiten > WTW deels door de badkamer loopt (aangepast in de vraag)Rzaan schreef op vrijdag 10 maart 2023 @ 08:54:
[...]
Ik snap dit gedeelte niet.
Welke aanvoer gaat het over?
Buiten > WTW?
WTW > badkamer?
Ik vraag het omdat je zegt dat een aanvoer geisoleerd moet worden (wat correct is bij Buiten > WTW) maar waarom noem je dan de badkamer?
Want die krijgt warme lucht uit de WTW.
Of bedoel je dat de luchtaanvoer Buiten > WTW deels door de badkamer loopt?
Je kunt ook Ø 150 vervangen door 220x90.
Zelfde oppervlakte.
En dan daarna met verloopstuk weer verder naar Ø 150
[Afbeelding]
Is de rechthoekige buis te krijgen met isolatie?
Zelf doen met Armaflex of zoiets.peter13579 schreef op vrijdag 10 maart 2023 @ 09:02:
[...]
Dit inderdaad: dat de luchtaanvoer Buiten > WTW deels door de badkamer loopt
Is de rechthoekige buis te krijgen met isolatie?
Staan in dit topic of elders op Tweakers wel wat berichten over.
Heb me hier even in verdiept, klinkt als een briljant plan! Dank Rzaan!Rzaan schreef op vrijdag 10 maart 2023 @ 09:11:
[...]
Zelf doen met Armaflex of zoiets.
Staan in dit topic of elders op Tweakers wel wat berichten over.
Nog een rest vraag: beter stalen buizen en hulpstukken gebruiken of de kunststof variant? Ik wil er inderdaad 13mm armaflex opplakken.
Geen idee, maar ik zelf zie niet direct de noodzaak van metaal als het om 220x90 gaat.peter13579 schreef op vrijdag 10 maart 2023 @ 09:32:
[...]
Heb me hier even in verdiept, klinkt als een briljant plan! Dank Rzaan!
Nog een rest vraag: beter stalen buizen en hulpstukken gebruiken of de kunststof variant? Ik wil er inderdaad 13mm armaflex opplakken.
Is volgens mij een stuk duurder.
Maar wellicht hebben mensen die hier meer verstand van hebben een uitleg waarom dit óf dat.
Zelf gebruik ik voor mijn aanvoer Buiten > WTW kunststof buizen van Zehnder. Die zijn wel Ø200.
Maar ik zeg het alleen maar om aan te geven dat er niks mis is met kunststof.
Ik ga in een klein deel van mijn systeem ook 220x90 gebruiken van kunststof.
Dank je wel, ik heb de 220x90 met verloop stukken besteld. Daarbij 13mm Armaflex.Rzaan schreef op vrijdag 10 maart 2023 @ 09:53:
[...]
Geen idee, maar ik zelf zie niet direct de noodzaak van metaal als het om 220x90 gaat.
Is volgens mij een stuk duurder.
Maar wellicht hebben mensen die hier meer verstand van hebben een uitleg waarom dit óf dat.
Zelf gebruik ik voor mijn aanvoer Buiten > WTW kunststof buizen van Zehnder. Die zijn wel Ø200.
Maar ik zeg het alleen maar om aan te geven dat er niks mis is met kunststof.
Ik ga in een klein deel van mijn systeem ook 220x90 gebruiken van kunststof.
Bedenk wel dat slechts 13mm isolatie extreem dun is voor buitenisolatie. Door die buis stroomt gewoon buitenlucht, en je muren (en dak) isoleer je toch ook veel dikker dan dat?peter13579 schreef op vrijdag 10 maart 2023 @ 17:01:
Dank je wel, ik heb de 220x90 met verloop stukken besteld. Daarbij 13mm Armaflex.
WP: ME PUHZ-SW75YAA + ERSD-VM2D + EV-WP-TWS-1W 300; AC: ME MXZ-2F42VF + 2x MSZ-LN25VGV; PV: 14.08 kWp O/W + SMA STP 8.0; Vent: Zehnder Q600 ERV + Ubbink AirExcellent.
Dank voor je tip, dit realiseer ik me ook, ik zie echter ook standaard leidingen met 9mm. Mijn plan is om te zorgen dat dit goed past tussen de staanders en daarna plak ik het overgebleven isolatie materiaal waar ik nog bij kan, dan moet de muur met de badkamer bijna overal 2x13mm hebben.Andrehj schreef op vrijdag 10 maart 2023 @ 18:08:
[...]
Bedenk wel dat slechts 13mm isolatie extreem dun is voor buitenisolatie. Door die buis stroomt gewoon buitenlucht, en je muren (en dak) isoleer je toch ook veel dikker dan dat?
Zou het nog een optie zijn de rest van de ruimte achter het schot maximaal op te vullen met glaswol? Idd maximaal isoleren als daar koude buitenlucht doorgaat
Als je buiten de dampdichte isolatie nog een dikke laag van bijvoorbeeld glaswol gaat toevoegen, loop je (heel erg) de kans dat het dauwpunt in die glaswol komt te liggen, waardoor die dus in een paar jaar kletsnat is.johanPo schreef op vrijdag 10 maart 2023 @ 23:26:
Zou het nog een optie zijn de rest van de ruimte achter het schot maximaal op te vullen met glaswol? Idd maximaal isoleren als daar koude buitenlucht doorgaat
Het is erg belangrijk dat de dampdichte laag aan de warme kant van de isolatie zit!
WP: ME PUHZ-SW75YAA + ERSD-VM2D + EV-WP-TWS-1W 300; AC: ME MXZ-2F42VF + 2x MSZ-LN25VGV; PV: 14.08 kWp O/W + SMA STP 8.0; Vent: Zehnder Q600 ERV + Ubbink AirExcellent.
goed punt. Als je dus van midden naar buiten: leiding - glaswol - dampdichtfolie - schot plaatst zou je goed moeten zitten. (natuurlijk vervolgens niet het dampdichte folie doorboren bij terugplaatsen schot)Andrehj schreef op zaterdag 11 maart 2023 @ 09:13:
[...]
Als je buiten de dampdichte isolatie nog een dikke laag van bijvoorbeeld glaswol gaat toevoegen, loop je (heel erg) de kans dat het dauwpunt in die glaswol komt te liggen, waardoor die dus in een paar jaar kletsnat is.
Het is erg belangrijk dat de dampdichte laag aan de warme kant van de isolatie zit!
Door al het lezen in dit topic over onze WTW en problemen met de luchtvochtigheid ben ik er achter gekomen dat 1 van onze 3 slaapkamers helemaal geen verse lucht krijgt vanuit de WTW. De toevoer is simpelweg niet aanwezig. Nooit bij stil gestaan. Deze slaapkamer is onstaan door het splitsen van een oorspronkelijk veel grotere kamer in 2 slaapkamers. Dit is al gedaan bij de bouw van het appartement, volledig besproken met de aannemer.
We hebben duidelijk toen aangegeven dat dit een extra werk en logeerkamer moest worden en daar zoals altijd riant extra voor betaald. Op de bouwtekening is de ruimte onbenoemde ruimte genoemd, hier hebben wij toen niet stil bij gestaan. Wel wordt de kamer in de mail door de aannemer slaapkamer genoemd. Ook staat er in de overeenkomst een lijn over dat het aanpassen van de en m.v. installatie meegenomen is. Ga er vanuit dat dit voor mechanische ventilatie staat.
Mijn vrouw werkt in deze kamer en we hebben ook af en toe loges. Alhoewel niemand er bewust last van heeft gehad zit het ons toch niet lekker. Ik heb niet enorm veel verstand van hoe de aanvoerbuizen lopen, maar ik heb zo'n vermoeden dat dit in een nieuwbouw appartement niet of nauwelijks aan te passen is.
Voor zover ik het bouwbesluit goed begrijp is wat ze gedaan hebben niet in lijn met wat er nodig is voor ventilatie. Ben even benieuwd wat jullie hier van vinden op het gebied van gezondheidsrisicos en of dit achteraf aan te passen is. Juridisch advies ook welkom, maar dan gaan we denk ik wat off topic dus wellicht straks voor een ander forum of pm. Alvast bedankt!
We hebben duidelijk toen aangegeven dat dit een extra werk en logeerkamer moest worden en daar zoals altijd riant extra voor betaald. Op de bouwtekening is de ruimte onbenoemde ruimte genoemd, hier hebben wij toen niet stil bij gestaan. Wel wordt de kamer in de mail door de aannemer slaapkamer genoemd. Ook staat er in de overeenkomst een lijn over dat het aanpassen van de en m.v. installatie meegenomen is. Ga er vanuit dat dit voor mechanische ventilatie staat.
Mijn vrouw werkt in deze kamer en we hebben ook af en toe loges. Alhoewel niemand er bewust last van heeft gehad zit het ons toch niet lekker. Ik heb niet enorm veel verstand van hoe de aanvoerbuizen lopen, maar ik heb zo'n vermoeden dat dit in een nieuwbouw appartement niet of nauwelijks aan te passen is.
Voor zover ik het bouwbesluit goed begrijp is wat ze gedaan hebben niet in lijn met wat er nodig is voor ventilatie. Ben even benieuwd wat jullie hier van vinden op het gebied van gezondheidsrisicos en of dit achteraf aan te passen is. Juridisch advies ook welkom, maar dan gaan we denk ik wat off topic dus wellicht straks voor een ander forum of pm. Alvast bedankt!
[ Voor 10% gewijzigd door sjoerf op 11-03-2023 22:56 ]
Bestaan er eigenlijk systemen die met zones werken? Ik bedoel: meestal ben je bv 's nachts in je slaapkamer aanwezig en niet in de woonkamer en overdag andersom. Dan heeft het eigenlijk weinig zin om 's nachts de woonkamer te ventileren en overdag de slaapkamers. Daar verspil je dan dus eigenlijk energie / ventilatiecapaciteit mee. Je zou dus een systeem kunnen indenken wat kleppen open of dicht kan doen aan de hand van aanwezige co2 en luchgtvochtigheid. Bestaat zoiets?
We hebben een installateur op bezoek gehad voor de balansventilatie. Het advies was om een afzuigpunt aan te brengen in de badkamer, toilet, keuken en wasruimte. Daarnaast was het het idee om 1 toevoerpunt boven aan te brengen en dan zou de rest van de kamers in het huis via overdruk onder de deur door voldoende frisse lucht krijgen. Is dit mogelijk, de meeste berekeningen gaan uit via (meerdere) ventielen per ruimte?
Als de lucht in de kamer zonder ventiel onder de deur door moet, waar gaat de lucht in die kamer dan heen? Via roosters naar buiten? Lijkt me een vreemd advies 🤔. Normaal doe je inblazen in slaapkamers en woonkamer etc.. en idd afzuig in de badkamer, wc, wasruimte etc..Pieter2 schreef op zondag 12 maart 2023 @ 08:00:
We hebben een installateur op bezoek gehad voor de balansventilatie. Het advies was om een afzuigpunt aan te brengen in de badkamer, toilet, keuken en wasruimte. Daarnaast was het het idee om 1 toevoerpunt boven aan te brengen en dan zou de rest van de kamers in het huis via overdruk onder de deur door voldoende frisse lucht krijgen. Is dit mogelijk, de meeste berekeningen gaan uit via (meerdere) ventielen per ruimte?
Er zijn oplossingen die werken met minder buizen, maar dan wel met ventilatoren tussen hal en slaapkamers zodat ee echt lucht binnenstroomt. Wellixht bedoelt de imstallateur dat? Zie bijv Ervaringen met Brink Multi Air Supply WTW
Ik heb in alle bestaande ruimtes afzuigpunten gemaakt en blaas in op zolder.
Die ga ik nog eens verlengen naar het midden van het traphuis. (koof)
Mooier zou zijn 2 zones, snachts en overdag en dan 2 inblaaspunten.
Misschien niet ideaal allemaal maar voor mijn rijtjeshuis prima met een brink flair 300 (enthalpy)
Valt me trouwens op dat alle "extras" van die wtw fabrikanten een godsvermogen moeten kosten.
Maar is prima op te lossen met domotica, modbus, co2 sensor, dht22 en esp32 in eigen beheer.
Die ga ik nog eens verlengen naar het midden van het traphuis. (koof)
Mooier zou zijn 2 zones, snachts en overdag en dan 2 inblaaspunten.
Misschien niet ideaal allemaal maar voor mijn rijtjeshuis prima met een brink flair 300 (enthalpy)
Valt me trouwens op dat alle "extras" van die wtw fabrikanten een godsvermogen moeten kosten.
Maar is prima op te lossen met domotica, modbus, co2 sensor, dht22 en esp32 in eigen beheer.
[ Voor 24% gewijzigd door AUijtdehaag op 12-03-2023 10:39 ]
Dit klopt natuurlijk niet. Zo'n kamer hoort gewoon op de MV (is inderdaad mechanische ventilatie) aangesloten te zijn.sjoerf schreef op zaterdag 11 maart 2023 @ 22:22:
Door al het lezen in dit topic over onze WTW en problemen met de luchtvochtigheid ben ik er achter gekomen dat 1 van onze 3 slaapkamers helemaal geen verse lucht krijgt vanuit de WTW. De toevoer is simpelweg niet aanwezig. Nooit bij stil gestaan. Deze slaapkamer is onstaan door het splitsen van een oorspronkelijk veel grotere kamer in 2 slaapkamers. Dit is al gedaan bij de bouw van het appartement, volledig besproken met de aannemer.
We hebben duidelijk toen aangegeven dat dit een extra werk en logeerkamer moest worden en daar zoals altijd riant extra voor betaald. Op de bouwtekening is de ruimte onbenoemde ruimte genoemd, hier hebben wij toen niet stil bij gestaan. Wel wordt de kamer in de mail door de aannemer slaapkamer genoemd. Ook staat er in de overeenkomst een lijn over dat het aanpassen van de en m.v. installatie meegenomen is. Ga er vanuit dat dit voor mechanische ventilatie staat.
Mijn vrouw werkt in deze kamer en we hebben ook af en toe loges. Alhoewel niemand er bewust last van heeft gehad zit het ons toch niet lekker. Ik heb niet enorm veel verstand van hoe de aanvoerbuizen lopen, maar ik heb zo'n vermoeden dat dit in een nieuwbouw appartement niet of nauwelijks aan te passen is.
Voor zover ik het bouwbesluit goed begrijp is wat ze gedaan hebben niet in lijn met wat er nodig is voor ventilatie. Ben even benieuwd wat jullie hier van vinden op het gebied van gezondheidsrisicos en of dit achteraf aan te passen is. Juridisch advies ook welkom, maar dan gaan we denk ik wat off topic dus wellicht straks voor een ander forum of pm. Alvast bedankt!
Nu zal de lucht daar (als de deur dicht is) bijzonder ongezond worden.
Om aan te tonen hoe erg het is, kun je er een CO2 meter (liefst eentje met logging) plaatsen. En dan daarmee terug naar de aannemer.
Mogelijke oplossingen: Ventilatierooster plaatsen in het raam, raam op een ventilatiestand zetten of een decentraal WTW-systeem plaatsen.
WP: ME PUHZ-SW75YAA + ERSD-VM2D + EV-WP-TWS-1W 300; AC: ME MXZ-2F42VF + 2x MSZ-LN25VGV; PV: 14.08 kWp O/W + SMA STP 8.0; Vent: Zehnder Q600 ERV + Ubbink AirExcellent.
Dat werkt natuurlijk niet. Elke ruimte moet een aanvoer, en een afvoer hebben. Dus op een slaapkamer toevoeren door een ventiel, en dan afvoeren via de spleet onder de deur door.Pieter2 schreef op zondag 12 maart 2023 @ 08:00:
We hebben een installateur op bezoek gehad voor de balansventilatie. Het advies was om een afzuigpunt aan te brengen in de badkamer, toilet, keuken en wasruimte. Daarnaast was het het idee om 1 toevoerpunt boven aan te brengen en dan zou de rest van de kamers in het huis via overdruk onder de deur door voldoende frisse lucht krijgen. Is dit mogelijk, de meeste berekeningen gaan uit via (meerdere) ventielen per ruimte?
Gewoon inblazen op de overloop en dan hopen dat er vanzelf een trek onder de slaapkamerdeuren ontstaat getuigt van weinig inzicht in de materie.
Advies: Zoek een installateur die het wel snapt.
WP: ME PUHZ-SW75YAA + ERSD-VM2D + EV-WP-TWS-1W 300; AC: ME MXZ-2F42VF + 2x MSZ-LN25VGV; PV: 14.08 kWp O/W + SMA STP 8.0; Vent: Zehnder Q600 ERV + Ubbink AirExcellent.
Is dat niet precies hoe o.a. het Itho quality-flow systeem werkt?Andrehj schreef op zondag 12 maart 2023 @ 10:05:
[...]
Dat werkt natuurlijk niet. Elke ruimte moet een aanvoer, en een afvoer hebben. Dus op een slaapkamer toevoeren door een ventiel, en dan afvoeren via de spleet onder de deur door.
Gewoon inblazen op de overloop en dan hopen dat er vanzelf een trek onder de slaapkamerdeuren ontstaat getuigt van weinig inzicht in de materie.
Advies: Zoek een installateur die het wel snapt.
Dat het niet de voorkeur heeft moge duidelijk zijn maar het is nog altijd beter dan niet ventileren.
Zelf zou ik hier ook niet aan beginnen maar in situaties waar men niet anders kan...
Nee, die gaan afzuigen op de slaapkamers. (Wat imho een stom systeem is, als je toch die buizen al legt, kun je ze beter gebruiken om daar in te blazen)MzKzM73 schreef op maandag 13 maart 2023 @ 09:58:
Is dat niet precies hoe o.a. het Itho quality-flow systeem werkt?
WP: ME PUHZ-SW75YAA + ERSD-VM2D + EV-WP-TWS-1W 300; AC: ME MXZ-2F42VF + 2x MSZ-LN25VGV; PV: 14.08 kWp O/W + SMA STP 8.0; Vent: Zehnder Q600 ERV + Ubbink AirExcellent.
Kijk weer wat wijzer.Andrehj schreef op maandag 13 maart 2023 @ 10:10:
[...]
Nee, die gaan afzuigen op de slaapkamers. (Wat imho een stom systeem is, als je toch die buizen al legt, kun je ze beter gebruiken om daar in te blazen)
Nu was dat Itho systeem bij mij toch al afgevallen, ik ben voor in mijn nieuwe woning (1995, enkel natuurlijke ventilatie momenteel) aan het twijfelen tussen de Ducobox energy 325 en de Zehnder Comfoair Q350/450. De laatste heeft mijn voorkeur ivm de enthalpie-wisselaar mogelijkheid (en ik hoef geen afvoer te realiseren).
Ik ben me ervan bewust dat levertijden momenteel wat "onberekenbaar" zijn, met name voor de Zehnder dus ben ik ook in de landen om ons heen aan het kijken.
Nu zijn er Q450's met enthalpie wisselaar op voorraad in België maar deze heeft dan weer geen verwarmings-element. Naar wat ik in de diverse topics gelezen heb is dit echter ook niet nodig met de enthalpie-functie (of iig 99% niet).
Weet iemand of er verder nog meer verschillen zitten tussen de Belgische Comfoair Q450 ST-ERV (471502123) en de Nederlandse Qomfoair Q450 ST-RF-ERV (471502135)? Behalve de eerdergenoemde afwezigheid van de modulerende verwarming en het type stekker uiteraard.
Scheelt toch weer een paar honderd euro in prijs
In feite zou ik met de Q350 ook uit de voeten kunnen maar ik heb liever wat overcapaciteit om in de toekomst de garage wellicht bij de woning te betrekken. Bovendien hoop ik zo het geluid zo laag mogelijk te houden.
Beide in dezelfde ruimte mag natuurlijk, maar moet niet.Andrehj schreef op zondag 12 maart 2023 @ 10:05:
[...]Dat werkt natuurlijk niet. Elke ruimte moet een aanvoer, en OF een afvoer hebben....
@sjoerf Is er misschien een mogelijkheid om deze via doorstroom te ventileren (als die aan een bestaande slaapkamer grenst, de deur van de slaapkamer "luchtdicht" maken, en een doorvoer naar die werkkamer/logeerkamer maken). Op die manier worden beide ruimtes via hetzelfde ventiel met dezelfde flow doorlopen.
Is niet handig bij een continue gebruikte slaapkamer, maar wel ideaal voor een bureau of dressing; waar je toch niet bent als je aan het slapen bent.
Als de boer zijn koeien kust, zijn ze jarig wees gerust. Varkens op een landingsbaan, leiden nooit een lang bestaan. Als de boer zich met stront wast, zijn zijn hersens aangetast. Als het hooi is in de schuur, zit het wijf bij den gebuur.
Elke actief geventileerde ruimte moet wel degelijk een aan- EN afvoer hebben, alleen mag 1 daarvan "passief" zijn in de vorm van een spleet onder de deur. Je kunt geen lucht toevoeren in een kamer die verder luchtdicht is, dan zal door de oplopende tegendruk op een gegeven moment geen verse lucht meer worden toegevoerd. En voor afvoeren uit een verder luchtdichte ruimte geldt hetzelfde, maar dan door het vacuum.naftebakje schreef op maandag 13 maart 2023 @ 12:30:
[...]
Beide in dezelfde ruimte mag natuurlijk, maar moet niet.
@sjoerf Is er misschien een mogelijkheid om deze via doorstroom te ventileren (als die aan een bestaande slaapkamer grenst, de deur van de slaapkamer "luchtdicht" maken, en een doorvoer naar die werkkamer/logeerkamer maken). Op die manier worden beide ruimtes via hetzelfde ventiel met dezelfde flow doorlopen.
Is niet handig bij een continue gebruikte slaapkamer, maar wel ideaal voor een bureau of dressing; waar je toch niet bent als je aan het slapen bent.
Catch a smile out there!
Tja, ik ben zelf ook nog in de oriëntatiefase, en overweeg een WTW systeem op de bovenverdieping. Maar nu twijfel ik tussen 2 opties:Andrehj schreef op maandag 13 maart 2023 @ 10:10:
[...]
Nee, die gaan afzuigen op de slaapkamers. (Wat imho een stom systeem is, als je toch die buizen al legt, kun je ze beter gebruiken om daar in te blazen)
A. Inblazen op 3 slaapkamers een wegzuigen in de badkamer. Dat is de traditionele manier.
B. Inblazen in het trappenhuis, en wegzuigen in alle kamers (de 3 slaapkamers + badkamer).
Een reden dat ik neig naar B is dat in het trappenhuis ook een airco hangt die in principe de bovenverdieping van koele lucht moet voorzien. Die blaast nu als het ware van een afstandje de koele lucht de slaapkamers in. Maar als ik in die kamers dus wegzuig wordt die koele lucht een stuk beter naar die slaapkamers geleid. Bij optie A zou de lucht van de airco juist tegen de stroom in moeten gaan.
(PS, Als je denkt in elektonica termen is A eigenlijk een serie-schakeling en B een parallel-schakeling)
Zoals ik het lees is het met dat systeem alleen mogelijk om je huis in twee zones op te delen (woonzone en slaapzone), niet om de ventilatie echt per ruimte te regelen. Tegelijk kun je wel maximaal 8 CO2-meters plaatsen.
In mijn huis zouden we de woonkamer (op de begane) en twee werkkamers (op de eerste en tweede etage) overdag willen laten ventileren, en de slaapkamer (eerste etage) 's nachts. Dat lijkt met dit systeem in principe wel mogelijk, alleen moet je dan dus zorgen dat de kamers die overdag geventileerd moeten worden allemaal op één aanvoerleiding zitten en de kamers die 's nachts geventileerd moeten worden allemaal op een andere leiding. Eigenlijk dus twee circuits, met die klep ertussen.
Dat lijkt me, bouwkundig, nog ingewikkeld (afhankelijk van de indeling van je huis natuurlijk)... is er geen systeem dat gewoon uit één circuit bestaat, maar waarbij je toch per ruimte meer of minder kunt ventileren (al dan niet gestuurd door de CO2-meters?
Of kan dat sowieso als je CO2-meters in de verschillende ruimtes ophangt?
Ja, dat is wat Itho Qualityflow doet. De afvoeren hebben namelijk allemaal kleppen, die gestuurd worden door een CO2-meter. Probleem is alleen dat die kleppen nogal geluid schijnen te maken, en om de zoveel tijd (elke paar minuten meen ik me te herinneren?) klepperen om per ruimte even een meting te kunnen doen. Da's dus ook de reden dat ik zelf niet voor dat systeem gekozen heb.migchiell schreef op maandag 13 maart 2023 @ 14:25:
[...]
Zoals ik het lees is het met dat systeem alleen mogelijk om je huis in twee zones op te delen (woonzone en slaapzone), niet om de ventilatie echt per ruimte te regelen. Tegelijk kun je wel maximaal 8 CO2-meters plaatsen.
In mijn huis zouden we de woonkamer (op de begane) en twee werkkamers (op de eerste en tweede etage) overdag willen laten ventileren, en de slaapkamer (eerste etage) 's nachts. Dat lijkt met dit systeem in principe wel mogelijk, alleen moet je dan dus zorgen dat de kamers die overdag geventileerd moeten worden allemaal op één aanvoerleiding zitten en de kamers die 's nachts geventileerd moeten worden allemaal op een andere leiding. Eigenlijk dus twee circuits, met die klep ertussen.
Dat lijkt me, bouwkundig, nog ingewikkeld (afhankelijk van de indeling van je huis natuurlijk)... is er geen systeem dat gewoon uit één circuit bestaat, maar waarbij je toch per ruimte meer of minder kunt ventileren (al dan niet gestuurd door de CO2-meters?
Of kan dat sowieso als je CO2-meters in de verschillende ruimtes ophangt?
Catch a smile out there!
@migchiell Een systeem wat per ruimte de ventilatie kan bijsturen zal per definitie een complex ingewikkeld systeem worden, en door de hogere kostprijs ook weinig verkocht worden (dus je betaalt de hoofdprijs voor iets wat nog kinderziektes heeft).
Ga je gewoon via klassiek systeem in elke ruimte afzuigen; maar laat je dan de ventilatie optoeren als een willekeurige ruimte hogere CO² meet (vandaar meerdere CO² meters mogelijk, eventueel ook vochtmeter in badkamer); dan houd je een veel eenvoudiger (dus goedkoper en betrouwbaarder) systeem.
De "voordelen" van per kamer bijgestuurde ventilatie zijn ook enorm klein en wegen niet op tegen de hogere kostprijs en lagere betrouwbaarheid (ik denk dat je 1€ stookkosten kan besparen, maar wel 1500€ meerkosten hebt). Lees ook eens ervaringen met die itho Qualityflow; leek me erg veel problemen te geven toen ik het paar jaar geleden bekeek.
Ga je gewoon via klassiek systeem in elke ruimte afzuigen; maar laat je dan de ventilatie optoeren als een willekeurige ruimte hogere CO² meet (vandaar meerdere CO² meters mogelijk, eventueel ook vochtmeter in badkamer); dan houd je een veel eenvoudiger (dus goedkoper en betrouwbaarder) systeem.
De "voordelen" van per kamer bijgestuurde ventilatie zijn ook enorm klein en wegen niet op tegen de hogere kostprijs en lagere betrouwbaarheid (ik denk dat je 1€ stookkosten kan besparen, maar wel 1500€ meerkosten hebt). Lees ook eens ervaringen met die itho Qualityflow; leek me erg veel problemen te geven toen ik het paar jaar geleden bekeek.
Als de boer zijn koeien kust, zijn ze jarig wees gerust. Varkens op een landingsbaan, leiden nooit een lang bestaan. Als de boer zich met stront wast, zijn zijn hersens aangetast. Als het hooi is in de schuur, zit het wijf bij den gebuur.
Dan lijkt het me inderdaad comfortabeler om gewoon in alle kamers te ventileren... we hebben toch de kamerdeuren vaak open, dus dan wordt je hele huis vanzelf één grote zoneGlenfiddich schreef op maandag 13 maart 2023 @ 14:32:
[...]
Ja, dat is wat Itho Qualityflow doet. De afvoeren hebben namelijk allemaal kleppen, die gestuurd worden door een CO2-meter. Probleem is alleen dat die kleppen nogal geluid schijnen te maken, en om de zoveel tijd (elke paar minuten meen ik me te herinneren?) klepperen om per ruimte even een meting te kunnen doen. Da's dus ook de reden dat ik zelf niet voor dat systeem gekozen heb.
Idee is nu aanvoer in woonkamer, slaapkamers en werkkamers, en afvoer in keuken, badkamer en toiletten. Dat is een vrij klassieke indeling, toch?naftebakje schreef op maandag 13 maart 2023 @ 15:08:
@migchiell Een systeem wat per ruimte de ventilatie kan bijsturen zal per definitie een complex ingewikkeld systeem worden, en door de hogere kostprijs ook weinig verkocht worden (dus je betaalt de hoofdprijs voor iets wat nog kinderziektes heeft).
Ga je gewoon via klassiek systeem in elke ruimte afzuigen; maar laat je dan de ventilatie optoeren als een willekeurige ruimte hogere CO² meet (vandaar meerdere CO² meters mogelijk, eventueel ook vochtmeter in badkamer); dan houd je een veel eenvoudiger (dus goedkoper en betrouwbaarder) systeem.
De "voordelen" van per kamer bijgestuurde ventilatie zijn ook enorm klein en wegen niet op tegen de hogere kostprijs en lagere betrouwbaarheid (ik denk dat je 1€ stookkosten kan besparen, maar wel 1500€ meerkosten hebt). Lees ook eens ervaringen met die itho Qualityflow; leek me erg veel problemen te geven toen ik het paar jaar geleden bekeek.