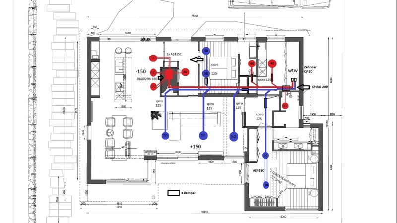
Sorry voor de bump, maar heeft iemand misschien tijd om naar het buizenplan te kijken? Ik ben benieuwd of er grote fouten in zitten. Ik heb nog eens naar een paar voorbeelden gekeken en zag in ieder geval dat de bochten van 90 graden naar de begane grond wel te oke zijn.hawlery schreef op woensdag 7 januari 2026 @ 18:05:
[...]
Het zou voldoende moeten zijn, ik heb ook handleidingen van andere fabrikanten gelezen en het belangrijkste is dat de lengte voldoende is. In mijn geval blijkt dat zo te zijn.
Ik kreeg zojuist een ingeving na een aantal pagina's van dit topic te lezen. Er zitten 100% ontwerpfouten in, maar ik doe heel erg mijn best om bestaande extractie leidingen te gebruiken en om geen koven te hoeven maken. In een huis met een plat dak (en geen zolder) is een koof niet weg te stoppen in een hoekje waar de ruimte al niet zo nuttig is.
Mijn vragen zijn:
1) Hoe dik moet de buis zijn die via de koof bij de trap naar beneden gaat om lucht toe te voeren aan 2 slaapkamers en de woonkamer/keuken?
2) Is het onhandig om de aanvoer in de slaapkamer links via de grond te laten lopen en dan omhoog te duwen? Dat zou een koof besparen in de slaapkamer daarboven. Als het niet dom is, dan zou ik dat ook voor de slaapkamer rechts kunnen doen.
3) De pulsie naar de woonkamer zou dus ook via 1 "hoofd" buis komen en dan verdeeld kunnen worden over 4 ventielen (ik heb er 3 getekend, maar er is ruimte voor nog 1. Het nadeel is wel dat dit allemaal via bochtjes van 90 graden zal gaan. Is dit oke?
[Afbeelding]
[Afbeelding]
[Afbeelding]
Ja, nu heb ik airco maar in het volgende huis niet. Ik hoop daar gewoon toe te kunnen met de L/W WP. Voor ons huidige huis woonden we in een appartement met WTW en WKO, vergelijkbaar dus qua mogelijkheid tot koelen en ventilatie. Dat was echter geen ERV aangezien het superdroog werd in de winter. Qua koelen werkte het goed (~24 oC in de woonkamer ondanks 40 oC buiten en veel glas pal op zuid met gordijnen open) en werd het ook nooit vervelend vochtig. Waar ik dus 'bang' voor ben is dat het met ERV wel erg vochtig kan worden/blijven.w00key schreef op zaterdag 10 januari 2026 @ 13:16:
[...]
Vocht is alleen lokaal een probleem - bijvoorbeeld in de badkamer of de slaapkamer waar een wasrek staat. Anders is het passief 9 van de 12 maanden gewoon ~60%. Alleen bij een koude of hittegolf gaat het richting 50%. Dus ventileren helpt tegen die lokale vochtpieken.
Lente en herfst wanneer het buiten ook super nat is na regen is een probleem. Ik zet dan of bypass aan of de airco als het haast heeft. Anders tikt het 70% aan en dat is toch net wat hoog.
Maar als ik je goed begrijp kan ik gewoon via de bypass de RV regelen? In het tussenseizoen is het verlies aan warmte toch verwaarloosbaar. Dit doe je zeker via home assistant oid? Of kan zo'n unit het ook zelf beslissen obv een vochtsensor?
Ik heb HA al dus als het zo moet is dat geen probleem maar ik ben wel benieuwd hoe jij het regelt
-=[Terminator]=- R3doxNL Anahka#2910 Specs. 16x LONGi LR4-72HPH-455M (7280 Wp) Oost/West (-85°/95°,13°) op 8x APS DS3-L. ID.3 First Plus. Zappi v2.1. Daikin 3MXM40A met CTXM15R, FTXM20R en FTXM35R.
Ah ik doe het handmatig, in de Q350, bypass, aan, 4-24 uur kiezen, okay.Termy schreef op zaterdag 10 januari 2026 @ 13:46:
[...]
Ja, nu heb ik airco maar in het volgende huis niet. Ik hoop daar gewoon toe te kunnen met de L/W WP. Voor ons huidige huis woonden we in een appartement met WTW en WKO, vergelijkbaar dus qua mogelijkheid tot koelen en ventilatie. Dat was echter geen ERV aangezien het superdroog werd in de winter. Qua koelen werkte het goed (~24 oC in de woonkamer ondanks 40 oC buiten en veel glas pal op zuid met gordijnen open) en werd het ook nooit vervelend vochtig. Waar ik dus 'bang' voor ben is dat het met ERV wel erg vochtig kan worden/blijven.
Maar als ik je goed begrijp kan ik gewoon via de bypass de RV regelen? In het tussenseizoen is het verlies aan warmte toch verwaarloosbaar. Dit doe je zeker via home assistant oid? Of kan zo'n unit het ook zelf beslissen obv een vochtsensor?
Ik heb HA al dus als het zo moet is dat geen probleem maar ik ben wel benieuwd hoe jij het regelt.
Dan dump je je natte lucht buiten en zolang het buiten dus kouder is dan binnen droogt het langzaam. Een andere poster heeft een mooie automation gemaakt in HA, dat kan ook. Maar de overlast is zo klein dat het gewoon handmatig kan, no big deal. Vaak alleen als ik fanatiek 2-3 wassen achter elkaar draai met bijvoorbeeld beddengoed.
De Q450 heeft een vochtterugwinning van 71%. 29% van het vocht wordt dus wel afgevoerd. Het vocht in de badkamer gaat dus voor 71% terug richting de kamers en leefruimte. De relatieve vochtigheid in de kamers zal dus licht stijgen. Deze toegevoerde lucht wordt dan weer afgevoerd via o.a. de badkamer waardoor luchtvochtigheid in de badkamer snel daalt. Het ventilatiesysteem zorgt er dus voor dat het vocht (en warmte) uit de badkamer verdeeld wordt over de andere kamers.Termy schreef op zaterdag 10 januari 2026 @ 13:06:
Hoe werkt het eigenlijk qua ontvochtigen met een ERV? Verlies je altijd wel wat aan vocht en daardoor daalt het alsnog na douchen oid of zit er dan een bypass op?
ERV en van vocht af komen lijkt een beetje een contradictie iig.
Dit zie je ook in de metingen (gele grafiek is badkamer)
:strip_exif()/f/image/AkyHEaLbRRZ6DiDqFLjZzuek.jpg?f=fotoalbum_large)
Wat het effect is van de enthalpiewisselaar op de relatieve vochtigheid in de woning is afhankelijk van:
1) hoeveel vocht er geproduceerd wordt (koken, douchen, ademen, wassen,...)
2) hoe dampdicht de gebouwschil is
3) de hoeveelheid toegevoerde lucht van buiten
4) de luchtdichtheid van het gebouw
5) ...
Logisch dus dat de ervaringen en meningen hier nogal uiteenlopen. In de winter bevat de buitenlucht weinig vocht waardoor de binnenlucht te droog wordt zonder ERV. Dus dan is het juist een meerwaarde om het vocht uit de badkamer niet af te voeren naar buiten maar te verdelen over de rest van het huis.
zeker goedbedoeld, maar niet de bedoeling, geen v&a op het forum. Voor dingen die niet goed in https://tweakers.net/aanbod/ passen hebben we Vraag & Aanbod overig
[ Voor 87% gewijzigd door teacher op 10-01-2026 16:36 ]
Je hebt helemaal gelijk als het gaat om de moeite die je erin wil steken.w00key schreef op zaterdag 10 januari 2026 @ 12:18:
Wat is het voordeel van minder ventileren? Voor die 30W hoef ik het niet te laten en ERV/WTW is al zo zuinig met warmte.
18° in, 20° uit x 200 m3/uur = 140W warmteverlies. Dat is 1 raampje ofzo, ik stook nu met 800W x ~3 COP = 2400W. Dus ventilatie helemaal uit is ~6% max bezuinigen op verwarming, laat maar dan.
Ik vind het wel fijn dat het beetje kan luchten ook als ik er niet ben, kan de kerrie / spek / whatever lucht ook er uit, of de nattigheid van wasrek lekker verspreiden / naar buiten (tijdens "koelen" met bypass). Luchtjes van de luieremmer geeft ook geen overlast, dat is in sommige huizen of zelfs openbare verschoonplekken wel anders. Ik zou er niet aan denken om bij minder CO2 af te schakelen naar 100 m3/uur of minder, en 200 naar 150 is zo'n minimaal verschil, dat is het regelen niet waard.
Ik kan het me alleen voorstellen als je op hoog toerental moet draaien, dan okay, beter wel terugregelen ivm geluid.
Moet het gewoon werken? dan is het simpel: inregelen en er niet maar aankomen.
Maar ja, dit is Tweakers.
Je wilt naar een soort van optimum van comfort en minimale energieverbruik.
En de hoeveelheid moeite die je er in steekt valt toch ook weer mee?
Mijn systeem draait nu een tijdje met een Ducobox D325 en werkt voorlopig top! Heb Co2 sensor in de woonkamer en zet hem ‘s nachts op stand 2 als ik alleen ben en stand 3 als we met 2 slapen.
Merk alleen dat het vocht % nu naar de 30-35% zakt, uiteraard geen enthalpiewisselaar. Wat zou ik hier nog in kunnen optimaliseren?
Merk alleen dat het vocht % nu naar de 30-35% zakt, uiteraard geen enthalpiewisselaar. Wat zou ik hier nog in kunnen optimaliseren?
Polestar 2 | SMSR | 19" | Pilot | Magnesium
Luchtbevochtiger neerzetten. Werkt ook prima, maar je moet wel elke dag paar liters erin gooien.Terrie schreef op zaterdag 10 januari 2026 @ 17:35:
Mijn systeem draait nu een tijdje met een Ducobox D325 en werkt voorlopig top! Heb Co2 sensor in de woonkamer en zet hem ‘s nachts op stand 2 als ik alleen ben en stand 3 als we met 2 slapen.
Merk alleen dat het vocht % nu naar de 30-35% zakt, uiteraard geen enthalpiewisselaar. Wat zou ik hier nog in kunnen optimaliseren?
Tweakers! ik lees al een tijdje aandachtig mee in dit topic
Wij zijn in delen onze woning uit 1938 aan het verduurzamen. De bg is redelijk klaar, vloerisolatie,vv, (supafill) spouwmuurisolatie en nieuwe kozijnen met hr++, wp + boiler, en we zijn nu bezig plannen te maken voor de zolder qua isolatie en nieuwe indeling
Eerder was ik van plan om voor een decentrale balans ventilatie te gaan m,aar na veel lezen ben ik overtuigd dat een centrale balansventilatie , the-way-t-go is. Helaas moet ik hierdoor wel een aantal zaken beneden weer aanpassen. Hopelijk met minimale ingreep.
Nu had ik mezelf wat tijd gegund om het goed uit te denken, maarrrrr eind deze maand worden de pannen & rachels vervangen en komt er een klimaatfolie aan de buitenkant onder de pannen. Dit is het moment om meteen de dakdoorvoer mee te nemen.
Dus versneld nu de berekening erbij gepakt van @p5hygo, waarvoor dank!
Voornaamste is dat ik nu moet gaan bepalen welke dakdoorvoer en de locatie van aan- en afvoer.
Daarvoor zou ik graag een paar extra ogen en hersens mee willen laten kijken/denken.
Situatie:
2-1 kap woning 1938, ongeveer 215m2 plus een kelder met wm en droger.
2 volwassen en 3 redelijk jonge kinderen.
Op zolder tot de nok toe open waar we een slaapkamer en douche willen. En de andere helft een kantoor en WTW ruimte (ingebouwd)
Er werkt altijd iemand thuis maar ook wel vaker met zijn 2-en.
Graag zou ik een Zhender als uitgangspunt willen.
Als de berekening klopt zou ik genoeg moeten hebben aan Zehnder Comfo air Q450
Gebruikt men hier als dakdoorvoer een Zehnder ComfoEdge? wat is dan de gebruikelijk diameter : Ø 160 mm of Ø 200 mm?
Onderstaand de berekening. Ik weet niet of ik de overflow 100% goed heb toegepast?
Alvast dank voor het meekijken
/f/image/qyBOtIdHfdPdYGbfRH4MB6Af.png?f=fotoalbum_large)
/f/image/5HeSe2jVLgFaXaC6RkvLcSCh.png?f=fotoalbum_large)
Wij zijn in delen onze woning uit 1938 aan het verduurzamen. De bg is redelijk klaar, vloerisolatie,vv, (supafill) spouwmuurisolatie en nieuwe kozijnen met hr++, wp + boiler, en we zijn nu bezig plannen te maken voor de zolder qua isolatie en nieuwe indeling
Eerder was ik van plan om voor een decentrale balans ventilatie te gaan m,aar na veel lezen ben ik overtuigd dat een centrale balansventilatie , the-way-t-go is. Helaas moet ik hierdoor wel een aantal zaken beneden weer aanpassen. Hopelijk met minimale ingreep.
Nu had ik mezelf wat tijd gegund om het goed uit te denken, maarrrrr eind deze maand worden de pannen & rachels vervangen en komt er een klimaatfolie aan de buitenkant onder de pannen. Dit is het moment om meteen de dakdoorvoer mee te nemen.
Dus versneld nu de berekening erbij gepakt van @p5hygo, waarvoor dank!
Voornaamste is dat ik nu moet gaan bepalen welke dakdoorvoer en de locatie van aan- en afvoer.
Daarvoor zou ik graag een paar extra ogen en hersens mee willen laten kijken/denken.
Situatie:
2-1 kap woning 1938, ongeveer 215m2 plus een kelder met wm en droger.
2 volwassen en 3 redelijk jonge kinderen.
Op zolder tot de nok toe open waar we een slaapkamer en douche willen. En de andere helft een kantoor en WTW ruimte (ingebouwd)
Er werkt altijd iemand thuis maar ook wel vaker met zijn 2-en.
Graag zou ik een Zhender als uitgangspunt willen.
Als de berekening klopt zou ik genoeg moeten hebben aan Zehnder Comfo air Q450
Gebruikt men hier als dakdoorvoer een Zehnder ComfoEdge? wat is dan de gebruikelijk diameter : Ø 160 mm of Ø 200 mm?
Onderstaand de berekening. Ik weet niet of ik de overflow 100% goed heb toegepast?
Alvast dank voor het meekijken
/f/image/qyBOtIdHfdPdYGbfRH4MB6Af.png?f=fotoalbum_large)
/f/image/5HeSe2jVLgFaXaC6RkvLcSCh.png?f=fotoalbum_large)
@Plint
Erg krap allemaal. Je wilt wellicht ook niet dat je unit altijd hoog moet draaien en ook co2 met logees, bezoek kunnen afvangen. Ik kom met mijn opmerkingen op ~495. Zou zelfs wat ruimer gaan zitten.
2e
Kantoor soms 2 man werken is daarop dimensioneren +45
10+45 = 55 overflow naar 1e
1e
Alle slaapkamerds 45 pulsie. Ze blijven niet klein en gaan op een gegeven moment huiswerk maken op die kamers. Ook al zijn het 3 personen, over die vier kamertjes weet je nooit hoe het over tien jaar slaapt met evtl aanhang/logees
85+5+5+10+10 = 115 overflow naar 0e.
0e
45 overflow van boven naar woonkamer.
25 naar toilet
45 overflow naar kelder
0 extractie garderobe. Door het debiet wat door de hal kruist zullen je jassen en schoenen echt wel meeluchten. Je verwarmt de hal?
4x45 pulsie woonkamer
225 extractie keuken
-1e
Kelder zou ik op een persoon dimensioneren. Sowieso goed om daar de flow structureel wat hoger te houden vanwege de RH en eventuele vochtdoorslag wanden. Je weet nooit hoe waterdicht zo'n kuip is. Wel over twee punten verdelen gezien er een wandje in staat (of heb je die doorgekrast?).
35 +10 = 45 van de 0e overflowen
En die doorvoeren kun je ook op een later moment maken. Pas als je pannen liggen en je unit binnen staat weet je uiteindelijk tot op de mm precies hoe je in- en uitvoerkanaal loopt. Wel zo mooi om tussen de rachels midden op een pan uit te komen, maar als dat binnen niet past dan is het gewoon hoe het is.
Edit: je hebt voor de badkamertjes precies genoeg aan deurspleet zo, fijn dat die toiletjes apart zitten en er een dubbele deur is op de 1e.
Wacht even nog de visie van anderen af.
Erg krap allemaal. Je wilt wellicht ook niet dat je unit altijd hoog moet draaien en ook co2 met logees, bezoek kunnen afvangen. Ik kom met mijn opmerkingen op ~495. Zou zelfs wat ruimer gaan zitten.
2e
Kantoor soms 2 man werken is daarop dimensioneren +45
10+45 = 55 overflow naar 1e
1e
Alle slaapkamerds 45 pulsie. Ze blijven niet klein en gaan op een gegeven moment huiswerk maken op die kamers. Ook al zijn het 3 personen, over die vier kamertjes weet je nooit hoe het over tien jaar slaapt met evtl aanhang/logees
85+5+5+10+10 = 115 overflow naar 0e.
0e
45 overflow van boven naar woonkamer.
25 naar toilet
45 overflow naar kelder
0 extractie garderobe. Door het debiet wat door de hal kruist zullen je jassen en schoenen echt wel meeluchten. Je verwarmt de hal?
4x45 pulsie woonkamer
225 extractie keuken
-1e
Kelder zou ik op een persoon dimensioneren. Sowieso goed om daar de flow structureel wat hoger te houden vanwege de RH en eventuele vochtdoorslag wanden. Je weet nooit hoe waterdicht zo'n kuip is. Wel over twee punten verdelen gezien er een wandje in staat (of heb je die doorgekrast?).
35 +10 = 45 van de 0e overflowen
En die doorvoeren kun je ook op een later moment maken. Pas als je pannen liggen en je unit binnen staat weet je uiteindelijk tot op de mm precies hoe je in- en uitvoerkanaal loopt. Wel zo mooi om tussen de rachels midden op een pan uit te komen, maar als dat binnen niet past dan is het gewoon hoe het is.
Edit: je hebt voor de badkamertjes precies genoeg aan deurspleet zo, fijn dat die toiletjes apart zitten en er een dubbele deur is op de 1e.
Wacht even nog de visie van anderen af.
[ Voor 4% gewijzigd door GudZ op 10-01-2026 20:28 ]
PV Output 1.350Wp ZWW 10°
Hoi Tweakers,
Een paar vragen over geluid en debiet.
We hebben recent de sleutel gekregen van onze nieuwbouw woning met een Zehnder ComfoAir Q 600, maar vinden hem toch wel erg veel geluid maken. Niet zozeer via de buizen, maar de unit zelf.
Hij wordt aangestuurd door een CO2 sensor in de woonkamer, en staat dan meestal gewoon in stand 2, maar het is een stuk meer geluid dan een wasmachine of vaatwasser.
Op de hoge stand is het eerder vergelijkbaar met een stofzuiger.
De unit staat op zolder op een frame in een zware houten kast. Helaas zitten er nog niet de goede deuren in, waardoor hij niet afsluit, wat mogelijk ook invloed heeft op het geluid.
Ik was daarnaast ook aan het kijken naar de ingestelde debieten, die staan als volgt:
Stand 1: 180 m3/h
Stand 2: 275 m3/h
Stand 3: 450 m3/h
De woning heeft een gebruiksoppervlak van 172 m2, een keuken, badkamer, 2x los toillet en 5 slaapkamers.
Nu kan ik wel via het bouwbesluit uitrekenen welke capaciteit ik minimaal moet hebben.
Maar wat ik me afvraag, is het de bedoeling dat wanneer we de woning normaal gebruiken ik er ook voor dien te zorgen dat ik constant daadwerkelijk zo veel lucht ververs? Of is dat het debiet dat ik minimaal moet kunnen halen, maar is het prima om onder normale omstandigheden een lager debiet te hebben? En hoe bepaal ik dan een goed debiet? Gewoon lager zetten en een paar dagen in alle ruimtes lucht kwaliteit meten?
Een paar vragen over geluid en debiet.
We hebben recent de sleutel gekregen van onze nieuwbouw woning met een Zehnder ComfoAir Q 600, maar vinden hem toch wel erg veel geluid maken. Niet zozeer via de buizen, maar de unit zelf.
Hij wordt aangestuurd door een CO2 sensor in de woonkamer, en staat dan meestal gewoon in stand 2, maar het is een stuk meer geluid dan een wasmachine of vaatwasser.
Op de hoge stand is het eerder vergelijkbaar met een stofzuiger.
De unit staat op zolder op een frame in een zware houten kast. Helaas zitten er nog niet de goede deuren in, waardoor hij niet afsluit, wat mogelijk ook invloed heeft op het geluid.
Ik was daarnaast ook aan het kijken naar de ingestelde debieten, die staan als volgt:
Stand 1: 180 m3/h
Stand 2: 275 m3/h
Stand 3: 450 m3/h
De woning heeft een gebruiksoppervlak van 172 m2, een keuken, badkamer, 2x los toillet en 5 slaapkamers.
Nu kan ik wel via het bouwbesluit uitrekenen welke capaciteit ik minimaal moet hebben.
Maar wat ik me afvraag, is het de bedoeling dat wanneer we de woning normaal gebruiken ik er ook voor dien te zorgen dat ik constant daadwerkelijk zo veel lucht ververs? Of is dat het debiet dat ik minimaal moet kunnen halen, maar is het prima om onder normale omstandigheden een lager debiet te hebben? En hoe bepaal ik dan een goed debiet? Gewoon lager zetten en een paar dagen in alle ruimtes lucht kwaliteit meten?
Is het geluid:
Trillingen voelbaar/hoorbaar in andere ruimtes?
Hoorbaar in de pulsie of extractie ventielen?
Bij de dakdoorvoeren te horen?
Hogere tonen? Lagere tonen?
Wat voor kast?
Welke dempers zijn er gebruikt op de aansluitingen en welke in de verdere kanalen?
Welllicht heb je bij je huis een ventilatieberekening en inregelrapport gekregen?
Foto's van de technische ruimte bij de wtw?
Trillingen voelbaar/hoorbaar in andere ruimtes?
Hoorbaar in de pulsie of extractie ventielen?
Bij de dakdoorvoeren te horen?
Hogere tonen? Lagere tonen?
Wat voor kast?
Welke dempers zijn er gebruikt op de aansluitingen en welke in de verdere kanalen?
Welllicht heb je bij je huis een ventilatieberekening en inregelrapport gekregen?
Foto's van de technische ruimte bij de wtw?
PV Output 1.350Wp ZWW 10°
Ik zal morgen even een paar foto's maken, en ga dan ook even goed naar het geluid luisteren om de vragen te beantwoorden, en wellicht ook gewoon even een paar seconden opnemen. Ik woon nog niet in het nieuwe huis.
In stand 1 en 2 komt het geluid niet zo zeer uit de ventielen, maar is het geluid dat van boven / zolder komt waar hij staat, dat gewoon door het hele geluid hoorbaar is via de open trap.
In stand 3 hoor je de ventielen wel ook.
Het inregelrapport:
:strip_exif()/f/image/QdepiiRtFxNWdu23ZRRVCcvA.jpg?f=fotoalbum_large)
Daarnaast zat ik ook even naar mijn stroomverbruik te kijken in home wizard:
:strip_exif()/f/image/B4o8d2oQZHpoDiSs1VCuXDul.jpg?f=fotoalbum_large)
Dit is realtime, dus de afgelopen 30 seconden ongeveer.
Die fluctuaties komen van de WTW, als ik de stekker er uit trek is het verbruik vlak (warmtepomp) maar een kwestie van seconden verschilt het stroomverbruik dus zo een paar honderd watt. Ik heb de indruk dat ik hem dat ook hoor doen.
In stand 1 en 2 komt het geluid niet zo zeer uit de ventielen, maar is het geluid dat van boven / zolder komt waar hij staat, dat gewoon door het hele geluid hoorbaar is via de open trap.
In stand 3 hoor je de ventielen wel ook.
Het inregelrapport:
:strip_exif()/f/image/QdepiiRtFxNWdu23ZRRVCcvA.jpg?f=fotoalbum_large)
Daarnaast zat ik ook even naar mijn stroomverbruik te kijken in home wizard:
:strip_exif()/f/image/B4o8d2oQZHpoDiSs1VCuXDul.jpg?f=fotoalbum_large)
Dit is realtime, dus de afgelopen 30 seconden ongeveer.
Die fluctuaties komen van de WTW, als ik de stekker er uit trek is het verbruik vlak (warmtepomp) maar een kwestie van seconden verschilt het stroomverbruik dus zo een paar honderd watt. Ik heb de indruk dat ik hem dat ook hoor doen.
Ik heb nog geen unit gekocht, maar ik dub nog tussen wel of geen voorverwarmer. Dat is een prijsverschil van 450 EUR. Woon echter in het Oosten van het land, waar over het algemeen de temperaturen wat lager liggen dan bijvoorbeeld aan de kust. Zo hebben we de afgelopen week meerdere malen -5 °C gehaald.Knopsje schreef op vrijdag 9 januari 2026 @ 22:33:
[...]
Lijkt gewoon te kunnen, al is het niet heel goedkoop: https://www.elektrobode.n...ice-prh-caq-pck-400502007
Hier kun je zien hoe je hem moet plaatsen: https://zehndernl.zendesk...de-voorverwarmer-wijzigen
Je kunt dus controleren of er plek voor is door de kap er af te halen. Bij een variant met ERV gaat de voorverwarmer wel pas aan bij -5° C, dus wel even afwegen of het de moeite is.
Dus ik neig er naar om nu gewoon een unit met voorverwarmer te nemen, ook al is het met een enthalpiewisselaar niet noodzakelijk.
@auditor86 de unit maakt geluid, maar ik begrijp dat je installateur een omkasting levert. Heel mooi, maar die kast doet natuurlijk heel weinig zonder goed sluitende deuren. Even afwachten dus.
Het lijkt me sterk dat de unit zoveel in toeren varieert dat je dit terugziet in de energiegrafiek, dan klopt er iets niet. Normaal varieert het verbruik met hooguit een paar Watt.
En ja, het is de bedoeling dat je unit altijd op stand 2 staat. Daar is het systeem op ontworpen. Ik gok dat je die vraag stelt omdat je veel herrie ervaart nu?
Als je in wilt spelen op de bezetting zou je een CO2 sensor kunnen toevoegen.
Het lijkt me sterk dat de unit zoveel in toeren varieert dat je dit terugziet in de energiegrafiek, dan klopt er iets niet. Normaal varieert het verbruik met hooguit een paar Watt.
En ja, het is de bedoeling dat je unit altijd op stand 2 staat. Daar is het systeem op ontworpen. Ik gok dat je die vraag stelt omdat je veel herrie ervaart nu?
Als je in wilt spelen op de bezetting zou je een CO2 sensor kunnen toevoegen.
12x 280Wp ZW, 12x 280Wp ZO, Zubadan SHW80YAA 8kW, Zehnder Q450 ERV
Stand 2 = 275m3. Wel heel veel
Ik heb een vergelijkbaar huis
Mijn Ubbink stand 2 = 180m3.( volgens ventilatie berekening). 3 = 300. 4= 400(max voor de flair 400)
Ik heb een vergelijkbaar huis
Mijn Ubbink stand 2 = 180m3.( volgens ventilatie berekening). 3 = 300. 4= 400(max voor de flair 400)
2-1 kap, 200m2, SUZ-SWM60VA+ Open Source ME+wtw
Ik heb de Comfoair Q ERV versie zonder voorverwarmer en heb tot nu toe nooit meegemaakt dat de Co2 opliep bij koud weer. In theorie zou die bij heel koud weer de toevoer moeten knijpen als vorstbeveiliging maar vanochtend toch wakker geworden en hij draait gewoon op normaal debiet.Paul Hewson schreef op zondag 11 januari 2026 @ 01:57:
[...]
Ik heb nog geen unit gekocht, maar ik dub nog tussen wel of geen voorverwarmer. Dat is een prijsverschil van 450 EUR. Woon echter in het Oosten van het land, waar over het algemeen de temperaturen wat lager liggen dan bijvoorbeeld aan de kust. Zo hebben we de afgelopen week meerdere malen -5 °C gehaald.
Dus ik neig er naar om nu gewoon een unit met voorverwarmer te nemen, ook al is het met een enthalpiewisselaar niet noodzakelijk.
Ik denk dat je bij nog veel kouder weer misschien een keertje de Co2 wat oploopt s' nachts, eens in de hee veel jaren. Geld zou ik dus op zak houden.
Dit is de eerste keer dat ik gezien heb dat de voorverwarmer van mijn Zehnder Q350 ERV aan was. Het is hier -9,7 graden geweest (en met 94-95% RLV ook vochtig).
De voorverwarmer ging aan toen het ca -8 graden was. Nu het ‘opgewarmd’ is naar -5 graden is de voorverwarmer weer uit. Het maximale vermogen van de voorverwarmer is ca 220 Watt geweest (~245 Watt totaal opgenomen vermogen van ventilatoren en voorverwarmer samen).
:strip_exif()/f/image/B65tyFAuzKubPzqgU1aCGNuV.jpg?f=fotoalbum_large)
De voorverwarmer ging aan toen het ca -8 graden was. Nu het ‘opgewarmd’ is naar -5 graden is de voorverwarmer weer uit. Het maximale vermogen van de voorverwarmer is ca 220 Watt geweest (~245 Watt totaal opgenomen vermogen van ventilatoren en voorverwarmer samen).
:strip_exif()/f/image/B65tyFAuzKubPzqgU1aCGNuV.jpg?f=fotoalbum_large)
Kijk op het display van de unit. Daar kan je precies uitlezen welke toerental de ventilatoren draaien (afzonderlijk voor toevoer en afvoer) en % van max vermogen, en ook watt opgenomen.auditor86 schreef op zaterdag 10 januari 2026 @ 22:12:
Ik zal morgen even een paar foto's maken, en ga dan ook even goed naar het geluid luisteren om de vragen te beantwoorden, en wellicht ook gewoon even een paar seconden opnemen. Ik woon nog niet in het nieuwe huis.
In stand 1 en 2 komt het geluid niet zo zeer uit de ventielen, maar is het geluid dat van boven / zolder komt waar hij staat, dat gewoon door het hele geluid hoorbaar is via de open trap.
In stand 3 hoor je de ventielen wel ook.
Het inregelrapport:
[Afbeelding]
Daarnaast zat ik ook even naar mijn stroomverbruik te kijken in home wizard:
[Afbeelding]
Dit is realtime, dus de afgelopen 30 seconden ongeveer.
Die fluctuaties komen van de WTW, als ik de stekker er uit trek is het verbruik vlak (warmtepomp) maar een kwestie van seconden verschilt het stroomverbruik dus zo een paar honderd watt. Ik heb de indruk dat ik hem dat ook hoor doen.
Maar een Q600 kan tot 60 dB produceren in de kast en 70 dB in de kanalen als je hem pusht. Dan gaat het wel echt herrie maken en plaatsen in een aparte ruimte is wel een must eigenlijk. Of een erg goede kast, maar die moet 20 dB dempen, geen makkelijk opgave. Volledig sealen, randjes kitten, deur volledig en 100% lucht dicht.
Als die lage m3/uur aangeeft met hele hoge ventilator power heb je te kleine buizen, dat is dan echt shit. Niet op te lossen behalve accepteren dat je lagere target m3 instelt voor minder geluid.
[ Voor 5% gewijzigd door w00key op 11-01-2026 10:55 ]
Thanks allemaal,
Ik heb vanmorgen even geluisterd, gemeten, foto's gemaakt en opname.
Geluid gemeten met mijn telefoon en een appje, niet gekallibreerd dus, maar beter dan niks
In stand 2
Geluid in de woonkamer (open trap naar boven)
-Midden in de kamer 35 dB
-Nabij inblaas ventiel 37 dB
-Nabij afzuig ventiel 37 dB
De unit zelf is hoorbaar via de trap, maar uit de ventielen is niet merkbaar iets te horen.
Geluid opgenomen vanaf de trap begane grond:
34 dB
Geluid van unit:
midden in de woonkamer 40 dB
nabij afzuig en inblaas ventiel: 42 dB
Op overloop / 1e verdieping 57 dB
Slaapkamer op zolder (deuren dicht) 43 dB
Nabij inblaas ventiel 46 dB
Voor de kast 57 dB
in de kast 63 dB
:strip_exif()/f/image/WpvV8eMuC5KyuWDfudzb9mF9.jpg?f=fotoalbum_large)
:strip_exif()/f/image/Ok4DnnfmwjfVRhZ4ZpbymJjm.jpg?f=fotoalbum_large)
:strip_exif()/f/image/GA1XWDJtfxV7stemAVGhYDSF.jpg?f=fotoalbum_large)
:strip_exif()/f/image/RE1KeDIV0p0dpxDsAm8wMoxH.jpg?f=fotoalbum_large)
:strip_exif()/f/image/mXPVIwvHl7u6NmD1Ul3HtL8m.jpg?f=fotoalbum_large)
:strip_exif()/f/image/VSYDxBH0pxw6Sc5FnvqMHp6F.jpg?f=fotoalbum_large)
:strip_exif()/f/image/XVzkGbqS8B3yv60M7IupYBe1.jpg?f=fotoalbum_large)
Maar goed wat ik er dus tot nu toe uit opmaak:
-De kast goed afsluiten is een must
-Mogelijk kan hij wat lager in stand 2
-Dat stroomverbruik dat schommelt is niet normaal. Ik ga even kijken of ik het ook in het menu zie gebeuren.
Ik heb vanmorgen even geluisterd, gemeten, foto's gemaakt en opname.
Geluid gemeten met mijn telefoon en een appje, niet gekallibreerd dus, maar beter dan niks
In stand 2
Geluid in de woonkamer (open trap naar boven)
-Midden in de kamer 35 dB
-Nabij inblaas ventiel 37 dB
-Nabij afzuig ventiel 37 dB
De unit zelf is hoorbaar via de trap, maar uit de ventielen is niet merkbaar iets te horen.
Geluid opgenomen vanaf de trap begane grond:
Members only:
Geluid op zolder in slaapkamer met deur dicht:
Alleen zichtbaar voor ingelogde gebruikers.
Inloggen
34 dB
Geluid van unit:
Members only:
In stand 3
Alleen zichtbaar voor ingelogde gebruikers.
Inloggen
midden in de woonkamer 40 dB
nabij afzuig en inblaas ventiel: 42 dB
Op overloop / 1e verdieping 57 dB
Slaapkamer op zolder (deuren dicht) 43 dB
Nabij inblaas ventiel 46 dB
Voor de kast 57 dB
in de kast 63 dB
Members only:
Het geluid beneden:
Alleen zichtbaar voor ingelogde gebruikers.
Inloggen
Members only:
Wat foto's van de kast en installatie:
Alleen zichtbaar voor ingelogde gebruikers.
Inloggen
:strip_exif()/f/image/WpvV8eMuC5KyuWDfudzb9mF9.jpg?f=fotoalbum_large)
:strip_exif()/f/image/Ok4DnnfmwjfVRhZ4ZpbymJjm.jpg?f=fotoalbum_large)
:strip_exif()/f/image/GA1XWDJtfxV7stemAVGhYDSF.jpg?f=fotoalbum_large)
:strip_exif()/f/image/RE1KeDIV0p0dpxDsAm8wMoxH.jpg?f=fotoalbum_large)
:strip_exif()/f/image/mXPVIwvHl7u6NmD1Ul3HtL8m.jpg?f=fotoalbum_large)
:strip_exif()/f/image/VSYDxBH0pxw6Sc5FnvqMHp6F.jpg?f=fotoalbum_large)
:strip_exif()/f/image/XVzkGbqS8B3yv60M7IupYBe1.jpg?f=fotoalbum_large)
Maar goed wat ik er dus tot nu toe uit opmaak:
-De kast goed afsluiten is een must
-Mogelijk kan hij wat lager in stand 2
-Dat stroomverbruik dat schommelt is niet normaal. Ik ga even kijken of ik het ook in het menu zie gebeuren.
De pvc buis linksvoor op de unit (supply naar woning) lijkt me maar 160mm? Dat past niet echt bij het maximale debiet van de unit (600m3/h), dan kom je uit op een luchtsnelheid van 8,3m/s met bijbehorende drukval. 200mm was beter op zijn plek geweest.
[ Voor 10% gewijzigd door P5ycho op 11-01-2026 14:13 ]
12x 280Wp ZW, 12x 280Wp ZO, Zubadan SHW80YAA 8kW, Zehnder Q450 ERV
Ha GudZ, dank voor je snelle en uitgebreide antwoord.GudZ schreef op zaterdag 10 januari 2026 @ 20:25:
@Plint
Erg krap allemaal. Je wilt wellicht ook niet dat je unit altijd hoog moet draaien en ook co2 met logees, bezoek kunnen afvangen. Ik kom met mijn opmerkingen op ~495. Zou zelfs wat ruimer gaan zitten.
Wacht even nog de visie van anderen af.
Met krap bedoel je de totale pulsie en extractie of ook het type Zehnder Q450?
Ik denk dat ik het overflow verhaal nog niet helemaal snap en verkeerd heb toegepast. Mag je de overflow niet in mindering brengen van de aanvoer/pulsie?
Als ik de pulsie overal aanpas volgens jouw input kom ik op Pulsie 620 (zonder overflow) en Extractie 500.
Om in balans te komen moet ik dus rond de 100 a 120 overflow toepassen?
Omdat de benedenverdieping klaar is, heb ik niet heel veel ruimte om de ventielen te plaatsen. Ik wil dus gebruik maken van overflow.
Mijn werkveld is het plafond van de BG; hal voordeur, garderobe, en wc. Daar zit een verlaagd plafond wat ik er nog uit kan halen en zo naar de keuken muurventielen kan plaatsen. De keuken zal dan lastig worden om 4 te plaatsen denk ik.
zolder: kantoor + 45 (mijn (verkeerde)gedachtegang was dat die +45 via overflow zou kunnen)
1e:
bg: bij garderobe zit de meterkast, ik had deze toegevoegd om in balans te komen.
kelder: alle wanden zijn eruit en ik heb alle muren opnieuw behandeld en waterdicht gemaakt.
Voor de dakdoorvoeren, zijn de eindstukken niet altijd die flexibele buizen?
@auditor86
Welke flow haal je maximaal in stand 3? Ik kan me niet voorstellen dat je in de buurt van de 600 m³/h komt.
Want ik heb net als @P5ycho het idee dat het leidingwerk niet bepaald optimaal is.
Het lijkt inderdaad 160 mm, en al die haakse aftakkingen maken het er ook niet beter op.
Je hoort met 45° aftakkingen te werken, en met stromende bochten met zo groot mogelijke radius, zoiets:
:strip_exif()/f/image/yQbsZti5LiCLez6o2MtmYLN9.jpg?f=fotoalbum_large)
En waarom met PVC? Dat is duurder dan spiro, en lastiger te verwerken. Ik begrijp daar niets van.
Bovendien kun je spiro nog eens los halen om het bijvoorbeeld schoon te maken, dat gaat je met verlijmd PVC nooit meer lukken....
En kun je het stroomverbruik meten?
Ter vergelijking. Ik meet op 220 m³/h een stroomverbruik van 31 Watt (gecalibreerde MID meter). De unit zelf geeft 25 W aan, maar dat is volgens mij enkel van de ventilatoren.
Welke flow haal je maximaal in stand 3? Ik kan me niet voorstellen dat je in de buurt van de 600 m³/h komt.
Want ik heb net als @P5ycho het idee dat het leidingwerk niet bepaald optimaal is.
Het lijkt inderdaad 160 mm, en al die haakse aftakkingen maken het er ook niet beter op.
Je hoort met 45° aftakkingen te werken, en met stromende bochten met zo groot mogelijke radius, zoiets:
:strip_exif()/f/image/yQbsZti5LiCLez6o2MtmYLN9.jpg?f=fotoalbum_large)
En waarom met PVC? Dat is duurder dan spiro, en lastiger te verwerken. Ik begrijp daar niets van.
Bovendien kun je spiro nog eens los halen om het bijvoorbeeld schoon te maken, dat gaat je met verlijmd PVC nooit meer lukken....
En kun je het stroomverbruik meten?
Ter vergelijking. Ik meet op 220 m³/h een stroomverbruik van 31 Watt (gecalibreerde MID meter). De unit zelf geeft 25 W aan, maar dat is volgens mij enkel van de ventilatoren.
[ Voor 25% gewijzigd door Andrehj op 11-01-2026 14:37 ]
WP: ME PUHZ-SW75YAA + ERSD-VM2D + EV-WP-TWS-1W 300; AC: ME MXZ-2F42VF + 2x MSZ-LN25VGV; PV: 14.08 kWp O/W + SMA STP 8.0; Vent: Zehnder Q600 ERV + Ubbink AirExcellent.
Die PVC bochten voor water hebben een kleinere draaicirkel dan stalen spirokanalen. Maar goed, je moet in de unit kijken waarop hij nu draait, dan kan je precies zien hoeveel gas die heeft voor hoeveel lucht.
Hoge power level x geen lucht = systeem shit aangelegd.
Hoge power level x geen lucht = systeem shit aangelegd.
Dubbel
[ Voor 94% gewijzigd door nessio op 11-01-2026 16:04 ]
2-1 kap, 200m2, SUZ-SWM60VA+ Open Source ME+wtw
Begrijp even niet hoe je dit terug kan zien op het display.w00key schreef op zondag 11 januari 2026 @ 15:43:
Ter vergelijking, de Q350 hier draait op 1503 rpm, 36%, 181 m3/uur, 32W. Ik vind hem al luid genoeg. Dat is nabij setpoint 2:
[Afbeelding]
Met de data op je display kan je uitzoeken waar je zit in de onderstaande grafiek:
[Afbeelding]
Punt 1-5 is heel goed aangelegd, 10, 11 en 12 betekent teveel weerstand.
Q350
51 watt op 280m3/h
83 watt op 350m3/h
Maar ik kan de Pa toch niet op het display terug vinden om te kijken waar je in de grafiek zit?
Hier stond een link voor een Goldcard 1 jaar gratis + 20.000 punten.
Op stand 3 staat hij ingesteld op 450 m3/hAndrehj schreef op zondag 11 januari 2026 @ 14:33:
@auditor86
Welke flow haal je maximaal in stand 3? Ik kan me niet voorstellen dat je in de buurt van de 600 m³/h komt.
Want ik heb net als @P5ycho het idee dat het leidingwerk niet bepaald optimaal is.
Het lijkt inderdaad 160 mm, en al die haakse aftakkingen maken het er ook niet beter op.
Je hoort met 45° aftakkingen te werken, en met stromende bochten met zo groot mogelijke radius, zoiets:
[Afbeelding]
En waarom met PVC? Dat is duurder dan spiro, en lastiger te verwerken. Ik begrijp daar niets van.
Bovendien kun je spiro nog eens los halen om het bijvoorbeeld schoon te maken, dat gaat je met verlijmd PVC nooit meer lukken....
En kun je het stroomverbruik meten?
Ter vergelijking. Ik meet op 220 m³/h een stroomverbruik van 31 Watt (gecalibreerde MID meter). De unit zelf geeft 25 W aan, maar dat is volgens mij enkel van de ventilatoren.
Ik heb het vermoeden dat ze origineel ook de Q450 wilde plaatsen, want dat staat op het inregelrapport maar is met pen aangepast in 600.
Standaard hebben de huizen in het project de E400 gekregen. Wij hebben de zolder laten verbouwen met 2 extra slaapkamers en kregen daarmee ook een grotere ventilatiebehoefte.
Ik vermoed alleen dat ze alles aangelegd hebben voor de 450 en daarna om wat voor reden dan ook de 600 geplaatst hebben. Misschien was de 450 niet op tijd leverbaar, de unit zat al in die kast ingebouwd samen met de warmtepomp en is zo het huis in gehesen voor het dak er op ging, dat moest natuurlijk allemaal via een strakke planning.
Ik ga het stroomverbruik deze week even kijken bij de unit, kijken welk vermogen hij daar aan geeft en of dat in lijn is. Wellicht ondertussen even de WTP uit zetten. Andere verbruikers zijn er nog niet echt.
@auditor86 Ik heb hier een Q450 hangen en dacht eerst ook dat het geluid in mijn slaapkamer direct van de unit kwam. Dat bleek achteraf indirect te zijn. Met name de uitgaande buis naar buiten gaf het geluid van de unit door. De inkomende buis van buiten doet dat niet. Ik heb om de uitgaande buis naar buiten een mdf kast getimmerd en nu heb ik totaal geen overlast meer.
Dus ga even heel goed na of je naast de kast niet ook de uitgaande buis naar buiten kan omkasten. Ik meen namelijk op de foto’s te kunnen zien dat deze vrij in de ruimte hangen.
Verder is het wel zo dat de pvc buis een hele gekke oplossing is. Comfopipe compact of en/of spiro is een veel beter keuze.
Dus ga even heel goed na of je naast de kast niet ook de uitgaande buis naar buiten kan omkasten. Ik meen namelijk op de foto’s te kunnen zien dat deze vrij in de ruimte hangen.
Verder is het wel zo dat de pvc buis een hele gekke oplossing is. Comfopipe compact of en/of spiro is een veel beter keuze.
Zelfinstallatie Vaillant Arotherm Plus 55/6 | Zehnder Q450 | Variotherm DWTW | Enphase Envoy S + IQ7x Panasonic 7x335WP
@auditor86 de Q450 en Q600 verschillen enkel en alleen aleen in het type ventilatormotor en firmware, verder zijn ze identiek. Ook voor 450m3/h debiet vind ik 160mm krap, maar dat is pas echt te beoordelen als je het hele buizenstelsel kunt overzien.
12x 280Wp ZW, 12x 280Wp ZO, Zubadan SHW80YAA 8kW, Zehnder Q450 ERV
Ons nieuwe huis (2^1 van 166 m2) komt met WTW. Er staat Brink Flair 300 in de TO maar dat is nog niet zeker (de bouw start pas over een paar maanden) en standaard is de zolder volledig onbenoemde ruimte maar we gaan voor de meerwerkoptie om er een slaapkamer in te hebben van zo'n 16 m2 dus mogelijk is er een grotere WTW nodig. Er komt een standaard dakdoorvoer voor de afvoer. Zo'n pijp met wind- en regenafscherming dat door het schuine dak steekt (40 graden helling).
Die dakdoorvoer zou ik achteraf graag willen vervangen door iets waar zonnepanelen overheen kunnen, zoals bv de Robé Interduct Dakdoorvoer Zonnepaneel uit deze brochure. Volgens de specs zou het moeten werken voor de afvoerkant van een 350 m3/h WTW. Enige issue is dat ik hem nergens echt te koop kan vinden.
Heeft iemand hier ervaring met zo'n afvoeroplossing onder zonnepanelen?
Die dakdoorvoer zou ik achteraf graag willen vervangen door iets waar zonnepanelen overheen kunnen, zoals bv de Robé Interduct Dakdoorvoer Zonnepaneel uit deze brochure. Volgens de specs zou het moeten werken voor de afvoerkant van een 350 m3/h WTW. Enige issue is dat ik hem nergens echt te koop kan vinden.
Heeft iemand hier ervaring met zo'n afvoeroplossing onder zonnepanelen?
-=[Terminator]=- R3doxNL Anahka#2910 Specs. 16x LONGi LR4-72HPH-455M (7280 Wp) Oost/West (-85°/95°,13°) op 8x APS DS3-L. ID.3 First Plus. Zappi v2.1. Daikin 3MXM40A met CTXM15R, FTXM20R en FTXM35R.
Als er intern in de WTW-unit een CO2 en vochtmeter zou zitten, kan hij toch prima zelf op en aftoeren zonder in iedere ruimte een sensor te plaatsen?P5ycho schreef op zaterdag 10 januari 2026 @ 11:17:
Het probleem is dat als je bezetting wilt meten adhv CO2, je elke ruimte moet voorzien van een sensor. Dat loopt heel hard op in de kosten.
Ik zie 3 scenario's:
1 CO2 sensor in woonkamer. Overdag regelen op CO2, minimale ventilatie wanneer niet thuis of meer ventilatie bij bezoek. In de nacht overschakelen op nominale ventilatie.
2. CO2 in woonkamer en hoofdslaapkamer. Altijd regelen op CO2, indien hoofdbewoners niet thuis maar andere slaapkamers wel bezet zijn, moet een manuele stand gezet worden in de nacht.
3. CO2 in woonkamer en alle slaapkamers. Regeling kiest debiet adhv hoogst gemeten CO2 over alle sensors, werkt ook bij uitzonderingen in bezetting.
Je moet ventileren om de ruimte met de hoogste CO2 te compenseren, en daarmee alle andere ruimtes te veel ventileert.
CO2 sensoren worden steeds goedkoper (zie bijvoorbeeld de nieuwe ikea alpstuga met een sensirion SEN63C sensor voor 30 euro(!)), dus het komt wel steeds dichterbij. Ik vind dat het bij Zehnder nog erg duur is voor wat je ermee wint.
Voordelen actief ventileren op sensoren zijn:
Vochtsensor: iets minder kans op schimmel en beslagen spiegels in de badkamer.
CO2 sensor: minder onnodig vochtverlies door overmatige ventilatie in de winter. Automatisch inspelen op veranderende bezetting.
In het voor- en najaar heb ik graag de ramen open thuis (ik woon buitenaf), van mij mag dan de unit ook wel uit. Hoe dan anderen dit? Als het bloedheet buiten is, staan nu ook nog de ramen 's nachts open om te koelen, dan is het wel lekker als je kan bypassen en er actief koele buitenlucht naar binnen wordt geblazen.
[ Voor 9% gewijzigd door RISL op 12-01-2026 10:14 ]
Vrijstaand 1914 | Extra vloer en muurisolatie | Triple glas | WTW: in aanmaak | WP: Nibe F2120-16 + VVM310 met SMO40 + RMU40 | CV wonen: vloerverwarming, slapen: Jaga Strada DHB Hybrid | Solar: Fronius west 7.0kVA | Accu 2x HomeWizard PiB
Het totale CO2 niveau zegt weinig over een specifieke ruimte, dus die vlieger gaat niet helemaal op. Als 8 man in de woonkamer zit is de lokale CO2 concentratie niet te onderscheiden van een meer verspreide bezetting van dezelfde personen als je op de wtw meet.
Als je huis een goede isolatieschil heeft en je de zon overdag goed buiten houden kunt heeft wordt het op een gegeven moment interessanter om de ramen dicht te houden.
Als je huis een goede isolatieschil heeft en je de zon overdag goed buiten houden kunt heeft wordt het op een gegeven moment interessanter om de ramen dicht te houden.
12x 280Wp ZW, 12x 280Wp ZO, Zubadan SHW80YAA 8kW, Zehnder Q450 ERV
Begrijp ik, maar als je wtw dan optoert, dan vang je die CO2 toch ook af?
Ja, ik wil ook de ramen dicht houden dan in de zomer. Maar ik was dus even benieuwd hoe men in het voor- en najaar omgaat met open ramen? Zet je dan je wtw uit?
Ja, ik wil ook de ramen dicht houden dan in de zomer. Maar ik was dus even benieuwd hoe men in het voor- en najaar omgaat met open ramen? Zet je dan je wtw uit?
Vrijstaand 1914 | Extra vloer en muurisolatie | Triple glas | WTW: in aanmaak | WP: Nibe F2120-16 + VVM310 met SMO40 + RMU40 | CV wonen: vloerverwarming, slapen: Jaga Strada DHB Hybrid | Solar: Fronius west 7.0kVA | Accu 2x HomeWizard PiB
De afzuiging van mijn WC beneden door de Q350, is helaas wegens ruimtegebrek uitgevoerd in 80mm spiro en wat bochten voor de laatste 5 meter. Nu klinkt het ventiel daar af en toe als een scheepstoeter
Is dat iets wat ik nog kan dempen met een 80mm panaflex?
Gelukkig zit je daar niet vaak en lang, maar vond het toch wel storend geluid.
Is dat iets wat ik nog kan dempen met een 80mm panaflex?
Gelukkig zit je daar niet vaak en lang, maar vond het toch wel storend geluid.
Op zich zou 25-30m3 moeten kunnen met 80mm. Weet je zeker dat het debiet klopt?
12x 280Wp ZW, 12x 280Wp ZO, Zubadan SHW80YAA 8kW, Zehnder Q450 ERV
Nu het toch wat kouder buiten is geweest, merk je toch dat een oude WTW (jaar 2000 +/-) tekort schiet mbt tocht en warmteverlies. Omdat ik redelijk beperkt ben in ruimte (max 40cm diep), ben ik benieuwd of mensen hier ervaring hebben met Orcon HRC OptiAir. Wat ik als positieve punten zie is dat je een constante debiet instelling hebt, een voorverwarmer en de afmeting natuurlijk. Ook lijkt me de prijs voor de specificaties echt mee te vallen (1400 bij elektramat). Enige waar ik beetje bang voor ben is dat het aansturen via HomeAssistant redelijk lastig kan zijn. Echter zie ik dat je een periplex stekker optie hebt wat je met een slimme relais (shelly) evt kan aansturen.
Ik heb ook een vraag over buisdiameters. Aangezien ik een bestaand systeem aan het optimaliseren ben, heb ik helaas weinig/geen keuze over de buisdiameters van het huis zelf. In de technische ruimte is het een paar jaar terug door een installateur aangelegd en ik denk dat daar nog wel wat te optimaliseren valt.
Het zit nu zo aangesloten:
Technische ruimter: wtw unit (orcon maxcomfort 500) -> 180 flexibele demper -> 180mm spiro -> 160mm flex -> bestaand systeem huis, de aansluiting lijkt op 160mm spiro
Ik heb vervolgens de sheet van @P5ycho erbij gepakt om de gewenste ventilatie uit te rekenen en dan kom ik uit op 410 m3/h wat door de hoofdleiding moet, ofwel ruim 5.66 m/s bij 160mm spiro en 6.9ms bij Flex 160mm (uitgaande van 145mm effectief).
Wat voor effect kan ik verwachten van die te hoge luchtsnelheid? En heeft het zin om die 160mm flex te vervangen door 180mm (semi-) flex? In principe zou vervangen door 180mm spiro (met een verloop naar 160mm) ook moeten kunnen, maar dat heeft wat meer voeten in de aarde. Is dat aan te raden?
Het zit nu zo aangesloten:
Technische ruimter: wtw unit (orcon maxcomfort 500) -> 180 flexibele demper -> 180mm spiro -> 160mm flex -> bestaand systeem huis, de aansluiting lijkt op 160mm spiro
Ik heb vervolgens de sheet van @P5ycho erbij gepakt om de gewenste ventilatie uit te rekenen en dan kom ik uit op 410 m3/h wat door de hoofdleiding moet, ofwel ruim 5.66 m/s bij 160mm spiro en 6.9ms bij Flex 160mm (uitgaande van 145mm effectief).
Wat voor effect kan ik verwachten van die te hoge luchtsnelheid? En heeft het zin om die 160mm flex te vervangen door 180mm (semi-) flex? In principe zou vervangen door 180mm spiro (met een verloop naar 160mm) ook moeten kunnen, maar dat heeft wat meer voeten in de aarde. Is dat aan te raden?
Je pakt dan 350 m3, de vertikale lijn, en vergelijkt dan met regel 6 en 10.Morpheusk schreef op zondag 11 januari 2026 @ 19:20:
[...]
Begrijp even niet hoe je dit terug kan zien op het display.
Q350
51 watt op 280m3/h
83 watt op 350m3/h
Maar ik kan de Pa toch niet op het display terug vinden om te kijken waar je in de grafiek zit?
6 is 100 Pa, 101W
10 is 200 Pa, 130W
Dus je zit onder 6, wat heel goed is, minder dan 100 Pa tegendruk en < 47 dB(A) behuizing.
En 280 m3, 51W is ergens rechts van 3, onder de grijze vlek, ~60 Pa, grof geschat, geen meetpunten op Qv=280
Nee.RISL schreef op maandag 12 januari 2026 @ 10:11:
Als er intern in de WTW-unit een CO2 en vochtmeter zou zitten, kan hij toch prima zelf op en aftoeren zonder in iedere ruimte een sensor te plaatsen?
CO2 moet je per ruimte meten. En niet gemiddeld van je hele woning. Maar zoals ik hiervoor al beschreven had, is één sensor in de woonkamer ruim voldoende. Voor de rest gewoon zorgen dat je minimale ventilatie op orde is.
Ik zou me daar niet teveel van voorstellen. Hier merk ik heel die bypass nauwelijks.In het voor- en najaar heb ik graag de ramen open thuis (ik woon buitenaf), van mij mag dan de unit ook wel uit. Hoe dan anderen dit? Als het bloedheet buiten is, staan nu ook nog de ramen 's nachts open om te koelen, dan is het wel lekker als je kan bypassen en er actief koele buitenlucht naar binnen wordt geblazen.
Koelen doen we met de L/W WP (voor de massa) en de airco (voor de zolderverdiepingen om de lucht te drogen). Stroom is in de zomer toch gratis.
Ramen gaan enkel nog open voor het schoonmaken. Ramen open gewoon niet meer nodig. En die WTW houdt ook mooi de vliegen, pollen etc buiten.
[ Voor 42% gewijzigd door Andrehj op 12-01-2026 19:37 ]
WP: ME PUHZ-SW75YAA + ERSD-VM2D + EV-WP-TWS-1W 300; AC: ME MXZ-2F42VF + 2x MSZ-LN25VGV; PV: 14.08 kWp O/W + SMA STP 8.0; Vent: Zehnder Q600 ERV + Ubbink AirExcellent.
Ik zou altijd (weer) kiezen voor een Zehnder Comfoair Q. Die is misschien een paar honderd euro duurder, maar die is zoveel beter afgewerkt. Lees in dit topic maar eens een stukje terug.Termy schreef op zondag 11 januari 2026 @ 22:55:
Ons nieuwe huis (2^1 van 166 m2) komt met WTW. Er staat Brink Flair 300 in de TO maar dat is nog niet zeker
WP: ME PUHZ-SW75YAA + ERSD-VM2D + EV-WP-TWS-1W 300; AC: ME MXZ-2F42VF + 2x MSZ-LN25VGV; PV: 14.08 kWp O/W + SMA STP 8.0; Vent: Zehnder Q600 ERV + Ubbink AirExcellent.
Zou je nog kunnen toelichten waarom dat beter is? Ik ben nog lerende hierin.Andrehj schreef op maandag 12 januari 2026 @ 19:31:
[...]
Nee.
CO2 moet je per ruimte meten. En niet gemiddeld van je hele woning. Maar zoals ik hiervoor al beschreven had, is één sensor in de woonkamer ruim voldoende. Voor de rest gewoon zorgen dat je minimale ventilatie op orde is.
Vrijstaand 1914 | Extra vloer en muurisolatie | Triple glas | WTW: in aanmaak | WP: Nibe F2120-16 + VVM310 met SMO40 + RMU40 | CV wonen: vloerverwarming, slapen: Jaga Strada DHB Hybrid | Solar: Fronius west 7.0kVA | Accu 2x HomeWizard PiB
Dan is je woning altijd goed geventileerd. Kom maar eens in een slaapkamer waar je met z'n tweeën de hele nacht hebt liggen ruften maar waar daarna de ventilatie op laag ging omdat er niemand in huis was. Dan is het daar gewoon niet fris. Hier draait de ventilatie de hele dag door op 220 m³/h (is ook een flinke woning) en de lucht is altijd fris binnen.RISL schreef op maandag 12 januari 2026 @ 19:36:
Zou je nog kunnen toelichten waarom dat beter is? Ik ben nog lerende hierin.
En de besparing van minder ventileren is nagenoeg niks.
WP: ME PUHZ-SW75YAA + ERSD-VM2D + EV-WP-TWS-1W 300; AC: ME MXZ-2F42VF + 2x MSZ-LN25VGV; PV: 14.08 kWp O/W + SMA STP 8.0; Vent: Zehnder Q600 ERV + Ubbink AirExcellent.
WTW kan gewoon aan blijven als iemand een raam open doet. Gaat prima. Maar als je eenmaal een WTW hebt hoeven die ramen nauwelijks meer open.RISL schreef op maandag 12 januari 2026 @ 10:45:
Ja, ik wil ook de ramen dicht houden dan in de zomer. Maar ik was dus even benieuwd hoe men in het voor- en najaar omgaat met open ramen? Zet je dan je wtw uit?
WP: ME PUHZ-SW75YAA + ERSD-VM2D + EV-WP-TWS-1W 300; AC: ME MXZ-2F42VF + 2x MSZ-LN25VGV; PV: 14.08 kWp O/W + SMA STP 8.0; Vent: Zehnder Q600 ERV + Ubbink AirExcellent.
Waarom zou je je WTW met HA aan willen sturen? Een goede WTW heeft dat helemaal niet nodig en houdt zelf je huis fris. Bovendien, mocht je je huis ooit willen verkopen, verkoop je dan HA er ook bij?RusFighter schreef op maandag 12 januari 2026 @ 16:30:
Nu het toch wat kouder buiten is geweest, merk je toch dat een oude WTW (jaar 2000 +/-) tekort schiet mbt tocht en warmteverlies. Omdat ik redelijk beperkt ben in ruimte (max 40cm diep), ben ik benieuwd of mensen hier ervaring hebben met Orcon HRC OptiAir. Wat ik als positieve punten zie is dat je een constante debiet instelling hebt, een voorverwarmer en de afmeting natuurlijk. Ook lijkt me de prijs voor de specificaties echt mee te vallen (1400 bij elektramat). Enige waar ik beetje bang voor ben is dat het aansturen via HomeAssistant redelijk lastig kan zijn. Echter zie ik dat je een periplex stekker optie hebt wat je met een slimme relais (shelly) evt kan aansturen.
WP: ME PUHZ-SW75YAA + ERSD-VM2D + EV-WP-TWS-1W 300; AC: ME MXZ-2F42VF + 2x MSZ-LN25VGV; PV: 14.08 kWp O/W + SMA STP 8.0; Vent: Zehnder Q600 ERV + Ubbink AirExcellent.
Omdat ik al meerdere (zigbee) co2 en vocht sensoren heb en daarop luchtdebiet wil sturen. Het is ook iets makkelijker dingen zoals vakanties en niemand thuis in te programmeren.Andrehj schreef op maandag 12 januari 2026 @ 19:48:
[...]
Waarom zou je je WTW met HA aan willen sturen? Een goede WTW heeft dat helemaal niet nodig en houdt zelf je huis fris. Bovendien, mocht je je huis ooit willen verkopen, verkoop je dan HA er ook bij?
@RISL Bij ons staan regelmatig ramen open in voor- en najaar maar wtw blijft gewoon aan.
2-1 kap, 200m2, SUZ-SWM60VA+ Open Source ME+wtw
Helaas zitten de buizen nagenoeg allemaal verstopt.P5ycho schreef op zondag 11 januari 2026 @ 22:42:
@auditor86 de Q450 en Q600 verschillen enkel en alleen aleen in het type ventilatormotor en firmware, verder zijn ze identiek. Ook voor 450m3/h debiet vind ik 160mm krap, maar dat is pas echt te beoordelen als je het hele buizenstelsel kunt overzien.
Het is hier een beetje te zien. De voorste / linker buis gaat naar de inblaas ventielen.
Het dunne stuk omhoog gaat naar de 2 slaapkamers op zolder, en zie je vervolgens ook op de 2e foto naar die kamers gaan.
De dikke aftakking van het T stuk gaat naar achter de WTW en maakt daar een bocht van 90 graden naar beneden. Het lijkt er op dat er daar ook een demper zit, recht achter de WTW dus. Vervolgens gaat die buis daar de grond in, verder naar beneden, door een leidingschacht naar de 1e verdieping en begane grond.
Parallel daar aan loopt de afzuigbuis, waarvan je ook nog 1 ventiel recht onder de WTW ziet.
Ik heb een melding gemaakt bij de aannemer dat ik de ventilatie erg luidruchtig vind. Woensdag is de monteur in de buurt en komt hij even langs.
:strip_exif()/f/image/VSYDxBH0pxw6Sc5FnvqMHp6F.jpg?f=fotoalbum_large)
:strip_exif()/f/image/Ok4DnnfmwjfVRhZ4ZpbymJjm.jpg?f=fotoalbum_large)
Helaas kunnen we niks kiezen en zijn we overgeleverd aan waar de aannemer voor kiest. Misschien als de keuze heel afgrijselijk blijkt te zijn dat we genoeg stennis kunnen schoppen om het veranderd te krijgen maar dat zal niet zomaar gaan.Andrehj schreef op maandag 12 januari 2026 @ 19:34:
[...]
Ik zou altijd (weer) kiezen voor een Zehnder Comfoair Q. Die is misschien een paar honderd euro duurder, maar die is zoveel beter afgewerkt. Lees in dit topic maar eens een stukje terug.
Members only:
Als laatste vraag ik me af in hoeverre we achteraf de ventielen kunnen laten vervangen (we hebben toch een aannemer nodig voor die muur en andere zaken) door instucbare ventielen zonder het hele systeem te ontregelen. Ik lees over het algemeen in dit topic dat het mogelijke debiet door die ventielen lager is dan standaard ventielen. Is dit een kwestie van tzt de berekening voor de WTW opvragen zodat ik kan zien hoeveel debiet welk ventiel aan moet kunnen?
Alleen zichtbaar voor ingelogde gebruikers.
Inloggen
-=[Terminator]=- R3doxNL Anahka#2910 Specs. 16x LONGi LR4-72HPH-455M (7280 Wp) Oost/West (-85°/95°,13°) op 8x APS DS3-L. ID.3 First Plus. Zappi v2.1. Daikin 3MXM40A met CTXM15R, FTXM20R en FTXM35R.
Debiet is niet echt ingesteld, meer op gevoel....P5ycho schreef op maandag 12 januari 2026 @ 16:12:
Op zich zou 25-30m3 moeten kunnen met 80mm. Weet je zeker dat het debiet klopt?
Jij denkt dat daar het probleem zit?
Moet sowieso alle ventielen nog nalopen, maar krijg niet echt iets gemaakt om op die PM6252A te zetten om die Luna ventielen te meten
Zit er zelfs aan te denken om maar een WTW monteur in te huren om het te laten afstellen.
[ Voor 4% gewijzigd door loyske op 13-01-2026 09:59 ]
Als het het ventiel is dat fluit, dan is het debiet vast te hoog voor het ventiel. Check de specs van het ventiel en het debiet met en zonder ventiel.
Een kartonnen doos met een gat of een plastic bloempot moet toch iets van te maken zijn voor de Luna's. Ik heb wat geprint daarvoor.
Een kartonnen doos met een gat of een plastic bloempot moet toch iets van te maken zijn voor de Luna's. Ik heb wat geprint daarvoor.
12x 280Wp ZW, 12x 280Wp ZO, Zubadan SHW80YAA 8kW, Zehnder Q450 ERV
Comfortverhogend?Andrehj schreef op maandag 12 januari 2026 @ 19:48:
[...]
Waarom zou je je WTW met HA aan willen sturen? Een goede WTW heeft dat helemaal niet nodig en houdt zelf je huis fris. Bovendien, mocht je je huis ooit willen verkopen, verkoop je dan HA er ook bij?
Iemand die dit doet is in ieder geval bewust(er) bezig met zijn ventilatiebeleid/luchtkwaliteit van de woning.
Ook kun je zeggen dat de huidige norm is gebaseerd op basis van m2 en niet op basis van gebruik en/of behoefte (personen en/of activiteit).
Daarnaast heeft elk ventilatiesysteem drie of vier standen, het is toch prettig dat de WTW automatisch in de juiste stand staat?
Wat betreft de verkoop van de woning.
Hier kun je rekening mee houden in het ontwerp van de aansturing.
Zie je het nut er niet van in?
Prima, niets meer aan doen.
Hier hangt de WTW ook aan Home Assistant, maar dat is voornamelijk om te monitoren: ik krijg netjes een melding als de filters vervangen moeten worden en ik kan de temperaturen, bypass, Co2 en debiet waardes zien.
Wat ik wel geautomatiseerd heb is dat de ventilatie naar standje max gaat op het moment dat de vochtigheid in de badkamer omhoog gaat. Daarnaast bedenk ik me nu ook dat ik de bypass ook via een eigen automatisering bedien; dat doe ik op basis van de daadwerkelijke temperatuur in huis (via een aparte temp sensor) en de buitentemperatuur.
Wat ik wel geautomatiseerd heb is dat de ventilatie naar standje max gaat op het moment dat de vochtigheid in de badkamer omhoog gaat. Daarnaast bedenk ik me nu ook dat ik de bypass ook via een eigen automatisering bedien; dat doe ik op basis van de daadwerkelijke temperatuur in huis (via een aparte temp sensor) en de buitentemperatuur.
@P5ycho
Kun je iets meer toelichten hoe om te gaan met de overflow in jouw calculatiesheet?
Ik heb mijn defintieve pulsiewaardes gekozen en ik wil graag de overflow van de slaapkamers gebruiken om de begane grond te circuleren en dus niet teveel daarin te brengen.
Maar hoe kies ik 'hoeveel' overflow ik heb voordat ik de extractieberekening doe? Dat gaat toch niet?
Bijv.: 1e verdieping op 3 slaapkamers pulsie en slechts 1 badkamer 1 extractie. Het gedeelte wat ik teveel heb aan 'pulsie' wordt toch overflow en dat gebruik ik op de begane grond?
Edit: om de vraag wat de verduidelijken. Vul ik bij overflow in wat er van de de pulsie overflowt naar een andere ruimte? Of vul ik bij overflow het deel in wat van een andere ruimte afkomt en door de ruimte van de regel stroomt? Ik kom er even niet uit.
Bedankt!
Om mijn vraag te verduidelijken:
Kun je iets meer toelichten hoe om te gaan met de overflow in jouw calculatiesheet?
Ik heb mijn defintieve pulsiewaardes gekozen en ik wil graag de overflow van de slaapkamers gebruiken om de begane grond te circuleren en dus niet teveel daarin te brengen.
Maar hoe kies ik 'hoeveel' overflow ik heb voordat ik de extractieberekening doe? Dat gaat toch niet?
Bijv.: 1e verdieping op 3 slaapkamers pulsie en slechts 1 badkamer 1 extractie. Het gedeelte wat ik teveel heb aan 'pulsie' wordt toch overflow en dat gebruik ik op de begane grond?
Edit: om de vraag wat de verduidelijken. Vul ik bij overflow in wat er van de de pulsie overflowt naar een andere ruimte? Of vul ik bij overflow het deel in wat van een andere ruimte afkomt en door de ruimte van de regel stroomt? Ik kom er even niet uit.
Bedankt!
Om mijn vraag te verduidelijken:
[ Voor 21% gewijzigd door RISL op 13-01-2026 13:46 ]
Vrijstaand 1914 | Extra vloer en muurisolatie | Triple glas | WTW: in aanmaak | WP: Nibe F2120-16 + VVM310 met SMO40 + RMU40 | CV wonen: vloerverwarming, slapen: Jaga Strada DHB Hybrid | Solar: Fronius west 7.0kVA | Accu 2x HomeWizard PiB
Ik zie homeassistant als additief iets, zonder werkt het ook nog, alleen dan zou je handmatig de 3 standen schakelaar moeten schakelen bij hoeveelheid co2/vocht. Als alternatief kan je alsnog orcon sensoren kopen om dit deels te automatiseren. Ook vind ik vaak de bovengrens waarbij de wtw harder gaat draaien bij co2 vaak aan de hoge kant (1100ppm+). Dit is vaak ook niet aan te passen. En zoals @GeleFles aangeeft, (lokale) notificaties kunnen ook handig zijn.
Ik heb een Duco Energie Comfort, 2 zones met CO2 regeling en een HR sensor in de box. Het houdt mijn huis perfect fris.Andrehj schreef op maandag 12 januari 2026 @ 19:48:
[...]
Waarom zou je je WTW met HA aan willen sturen? Een goede WTW heeft dat helemaal niet nodig en houdt zelf je huis fris. Bovendien, mocht je je huis ooit willen verkopen, verkoop je dan HA er ook bij?
Ik monitor mijn WTW met HA, bedien indien nodig de bypass met HA, en HA zet de WTW automatisch hoog na toiletbezoek.
Tevens stuur ik één setpoint aan: de RH setpointwaarde (relatieve vochtigheid).
Dat is het RH setpoint waarop de WTW begint op te toeren.
Dit is een vaste waarde van de WTW, instelbaar, defaultwaarde is 60%.
Echter bij hoge luchtvochtigheid buiten (regen/mist) wordt de RH binnen groter dan 60% en gaat deze onnodig en vaak langdurig (tot dagen afhankelijk van het weer) de WTW optoeren met hinderlijk geluid in de ventielen. Dit kan je oplossen door de HR setting hoger te zetten maar dan gaat de WTW niet meer optoeren als de douche wordt gebruikt.
Ik pas deze RH setpoint waarde aan met behulp van HA, in stappen van 5%, afhankelijk van de RH waarde van de woning om dit optoeren te vermijden.
En ja, homeautomatisering is een onderdeel van de woning (geworden), net zoals mijn later toegevoegde WTW. Mocht ik mijn huis verkopen dan mag de koper dit overnemen.
2/1-kap 1988 | Extra vloer en muurisolatie | HR++ glas | WTW: Duco Energie Comfort 325 2-zones | WP: Adlar II 6kW | CV wonen: Jaga Strada Hybrid DBH, slapen: traditionele radiatoren | Solar: Enphase oost/west/zuid 4.2kVA | Homeassistant
Je vult in de overflow kolom in welk deel van de toevoer niet uit een ventiel maar via overflow de kamer in komt. Dit wordt dan van het te leveren debiet via directe toevoer afgetrokken.RISL schreef op dinsdag 13 januari 2026 @ 12:02:
@P5ycho
Kun je iets meer toelichten hoe om te gaan met de overflow in jouw calculatiesheet?
Ik heb mijn defintieve pulsiewaardes gekozen en ik wil graag de overflow van de slaapkamers gebruiken om de begane grond te circuleren en dus niet teveel daarin te brengen.
Maar hoe kies ik 'hoeveel' overflow ik heb voordat ik de extractieberekening doe? Dat gaat toch niet?
Bijv.: 1e verdieping op 3 slaapkamers pulsie en slechts 1 badkamer 1 extractie. Het gedeelte wat ik teveel heb aan 'pulsie' wordt toch overflow en dat gebruik ik op de begane grond?
Edit: om de vraag wat de verduidelijken. Vul ik bij overflow in wat er van de de pulsie overflowt naar een andere ruimte? Of vul ik bij overflow het deel in wat van een andere ruimte afkomt en door de ruimte van de regel stroomt? Ik kom er even niet uit.
Bedankt!
Om mijn vraag te verduidelijken:
Bepalen van de overflow doe ik door eerst 50m3/h aan te houden voor de woonkamer, alle extractie behalve de keuken in te vullen, en daarna te spelen met de mogelijkheden op de plattegrond van de woning. De keuken is dan de plek waar de balans gecorrigeerd wordt.
12x 280Wp ZW, 12x 280Wp ZO, Zubadan SHW80YAA 8kW, Zehnder Q450 ERV
Kijk, de Zehnders doen dat veel slimmer. Die hebben de functie die jij omschrijft, maar die is niet bedoeld voor het inspelen op badkamergebruik, maar beschermen van de woning bij te hoge vochtigheid. Voor de badkamer kijkt de Zehnder namelijk naar de toename van vochtigheid over tijd ipv een vaste grens.marnie schreef op dinsdag 13 januari 2026 @ 12:49:
[...]
Ik heb een Duco Energie Comfort, 2 zones met CO2 regeling en een HR sensor in de box. Het houdt mijn huis perfect fris.
Ik monitor mijn WTW met HA, bedien indien nodig de bypass met HA, en HA zet de WTW automatisch hoog na toiletbezoek.
Tevens stuur ik één setpoint aan: de RH setpointwaarde (relatieve vochtigheid).
Dat is het RH setpoint waarop de WTW begint op te toeren.
Dit is een vaste waarde van de WTW, instelbaar, defaultwaarde is 60%.
Echter bij hoge luchtvochtigheid buiten (regen/mist) wordt de RH binnen groter dan 60% en gaat deze onnodig en vaak langdurig (tot dagen afhankelijk van het weer) de WTW optoeren met hinderlijk geluid in de ventielen. Dit kan je oplossen door de HR setting hoger te zetten maar dan gaat de WTW niet meer optoeren als de douche wordt gebruikt.
Ik pas deze RH setpoint waarde aan met behulp van HA, in stappen van 5%, afhankelijk van de RH waarde van de woning om dit optoeren te vermijden.
En ja, homeautomatisering is een onderdeel van de woning (geworden), net zoals mijn later toegevoegde WTW. Mocht ik mijn huis verkopen dan mag de koper dit overnemen.
Misschien heeft die Duco die setting stiekem ook?
12x 280Wp ZW, 12x 280Wp ZO, Zubadan SHW80YAA 8kW, Zehnder Q450 ERV
Jazeker, er zijn twee RH instellingen:P5ycho schreef op dinsdag 13 januari 2026 @ 15:42:
[...]
Kijk, de Zehnders doen dat veel slimmer. Die hebben de functie die jij omschrijft, maar die is niet bedoeld voor het inspelen op badkamergebruik, maar beschermen van de woning bij te hoge vochtigheid. Voor de badkamer kijkt de Zehnder namelijk naar de toename van vochtigheid over tijd ipv een vaste grens.
Misschien heeft die Duco die setting stiekem ook?
RH DELTA heb ik geprobeert, echter RH DELTA aanzetten geeft veel en onverwachte (= onnodige) veranderingen van het debiet. Vond ik niet bruikbaar. Vandaar mijn tweaken van de HR regeling met HA.• RH SETPOINT: Setpoint voor de eventueel aanwezige relatieve vochtigheidssensor (standaard = 60% - max. = 90%)
• RH DELTA: Mogelijkheid om een deltasturing te activeren (on/off – standaard = off). Deze deltasturing zorgt voor een verhoging van de ventilatie bij een bepaalde stijging van het vochtgehalte in een tijdsspanne (bv. 10% in 5 seconden). Omdat dit ervoor kan zorgen dat het ventilatiesysteem teveel reageert, staat dit standaard uit.
2/1-kap 1988 | Extra vloer en muurisolatie | HR++ glas | WTW: Duco Energie Comfort 325 2-zones | WP: Adlar II 6kW | CV wonen: Jaga Strada Hybrid DBH, slapen: traditionele radiatoren | Solar: Enphase oost/west/zuid 4.2kVA | Homeassistant
Inferieure implementatie dus, jammer!
Wel geniaal dat ze zelf ook vinden dat het voor geen meter werkt, en dus maar standaard uit staat.
Hier staat het standaard aan (Zehnder dus) en werkt feilloos bij verhoogd vocht in badkamer of keuken.
Wel geniaal dat ze zelf ook vinden dat het voor geen meter werkt, en dus maar standaard uit staat.
Hier staat het standaard aan (Zehnder dus) en werkt feilloos bij verhoogd vocht in badkamer of keuken.
[ Voor 84% gewijzigd door P5ycho op 13-01-2026 17:49 ]
12x 280Wp ZW, 12x 280Wp ZO, Zubadan SHW80YAA 8kW, Zehnder Q450 ERV
loyske schreef op maandag 12 januari 2026 @ 14:32:
De afzuiging van mijn WC beneden door de Q350, is helaas wegens ruimtegebrek uitgevoerd in 80mm spiro en wat bochten voor de laatste 5 meter. Nu klinkt het ventiel daar af en toe als een scheepstoeter![]()
Is dat iets wat ik nog kan dempen met een 80mm panaflex?
Gelukkig zit je daar niet vaak en lang, maar vond het toch wel storend geluid.
offtopic:
Een storend geluid op de wc? Nooit last van
Een storend geluid op de wc? Nooit last van
Tweakers.net 6 nostalgie! - Wayback Machine
Have you tried turning it off and on again?
Ik heb dat opgelost door de absolute vochtigheid (in g/m3) van binnen en buiten te berekenen. Ik stop met op stand 3 te ventileren als de absolute vochtigheid 10% in de badkamer hoger is dan een gewogen gemiddelde tussen binnen (woonkamer) en buiten. Dit werkt goed. Heb nog extra regel gemaakt dat als het in de woonkamer erg droog is (<50%, koud weer), dat stand 3 nog eerder stopt om het vocht in huis te houden.marnie schreef op dinsdag 13 januari 2026 @ 12:49:
[...]
...
Dit is een vaste waarde van de WTW, instelbaar, defaultwaarde is 60%.
Echter bij hoge luchtvochtigheid buiten (regen/mist) wordt de RH binnen groter dan 60% en gaat deze onnodig en vaak langdurig (tot dagen afhankelijk van het weer) de WTW optoeren met hinderlijk geluid in de ventielen. Dit kan je oplossen door de HR setting hoger te zetten maar dan gaat de WTW niet meer optoeren als de douche wordt gebruikt.
...
Hoe heb je deze aan HA gekoppeld? Zo’n connectivity board erin gezet?marnie schreef op dinsdag 13 januari 2026 @ 12:49:
[...]
Ik heb een Duco Energie Comfort, 2 zones met CO2 regeling en een HR sensor in de box. Het houdt mijn huis perfect fris.
Ik monitor mijn WTW met HA, bedien indien nodig de bypass met HA, en HA zet de WTW automatisch hoog na toiletbezoek.
Tevens stuur ik één setpoint aan: de RH setpointwaarde (relatieve vochtigheid).
Dat is het RH setpoint waarop de WTW begint op te toeren.
Dit is een vaste waarde van de WTW, instelbaar, defaultwaarde is 60%.
Echter bij hoge luchtvochtigheid buiten (regen/mist) wordt de RH binnen groter dan 60% en gaat deze onnodig en vaak langdurig (tot dagen afhankelijk van het weer) de WTW optoeren met hinderlijk geluid in de ventielen. Dit kan je oplossen door de HR setting hoger te zetten maar dan gaat de WTW niet meer optoeren als de douche wordt gebruikt.
Ik pas deze RH setpoint waarde aan met behulp van HA, in stappen van 5%, afhankelijk van de RH waarde van de woning om dit optoeren te vermijden.
En ja, homeautomatisering is een onderdeel van de woning (geworden), net zoals mijn later toegevoegde WTW. Mocht ik mijn huis verkopen dan mag de koper dit overnemen.
Polestar 2 | SMSR | 19" | Pilot | Magnesium
Misschien mis ik iets maar wat voor soort buizen zijn dit? PVC?auditor86 schreef op maandag 12 januari 2026 @ 21:55:
[...]
Helaas zitten de buizen nagenoeg allemaal verstopt.
Het is hier een beetje te zien. De voorste / linker buis gaat naar de inblaas ventielen.
Het dunne stuk omhoog gaat naar de 2 slaapkamers op zolder, en zie je vervolgens ook op de 2e foto naar die kamers gaan.
De dikke aftakking van het T stuk gaat naar achter de WTW en maakt daar een bocht van 90 graden naar beneden. Het lijkt er op dat er daar ook een demper zit, recht achter de WTW dus. Vervolgens gaat die buis daar de grond in, verder naar beneden, door een leidingschacht naar de 1e verdieping en begane grond.
Parallel daar aan loopt de afzuigbuis, waarvan je ook nog 1 ventiel recht onder de WTW ziet.
Ik heb een melding gemaakt bij de aannemer dat ik de ventilatie erg luidruchtig vind. Woensdag is de monteur in de buurt en komt hij even langs.
[Afbeelding]
[Afbeelding]
[Afbeelding]
diskeltische lurker
Nee, dat board werkt niet, de wat oudere communication print werkt wel. Zie marnie in "Duco energy comfort 325 icm Home Assistant"Terrie schreef op dinsdag 13 januari 2026 @ 23:42:
[...]
Hoe heb je deze aan HA gekoppeld? Zo’n connectivity board erin gezet?
In dat forum zijn ook esp ontwikkelingen.
2/1-kap 1988 | Extra vloer en muurisolatie | HR++ glas | WTW: Duco Energie Comfort 325 2-zones | WP: Adlar II 6kW | CV wonen: Jaga Strada Hybrid DBH, slapen: traditionele radiatoren | Solar: Enphase oost/west/zuid 4.2kVA | Homeassistant
De installateur is langs geweest en heeft wat aan de instellingen aangepast, waardoor hij in de automatische stand nu niet meer in constant in stand 2 staat, maar lager in stand 1, en alleen indien hij opregelt op basis van de CO2 sensor in de woonkamer.
Uiteraard, in lager debiet is hij stiller....
Bij even in de sensor ademen gaat hij inderdaad omhoog, dus dat werkt wel.
Ik ben benieuwd alleen nu dus wel benieuwd of bijvoorbeeld slaapkamers nu nog steeds voldoende frisse lucht krijgen, zeker ook omdat daar geen sensor hangt.
Zodra we in het huis wonen ga ik even een losse sensor in de slaapkamer plaatsen en kijken wat hij meet.
@technopeuter ja de buizen lijken PVC
Uiteraard, in lager debiet is hij stiller....
Bij even in de sensor ademen gaat hij inderdaad omhoog, dus dat werkt wel.
Ik ben benieuwd alleen nu dus wel benieuwd of bijvoorbeeld slaapkamers nu nog steeds voldoende frisse lucht krijgen, zeker ook omdat daar geen sensor hangt.
Zodra we in het huis wonen ga ik even een losse sensor in de slaapkamer plaatsen en kijken wat hij meet.
@technopeuter ja de buizen lijken PVC
@auditor86 De PVC ziet eruit als Dyka Air. Groot deel van de kanalen zal in de vloeren zijn ingestort neem ik dan aan? Op zich een gangbaar systeem, maar wel jammer dat de installateur T-stukken ipv beter stromende Y-stukken heeft toegepast.
Dat afzuigventiel in de kast zelf hebben ze wel leuk ingeregeld, maar als je de kast dicht doet doet die natuurlijk niets meer. Omdat de unit zichzelf op volume geregeld zal die harder moeten werken bij een dichte kast en dus meer geluid maken.
Als ik het goed begrijp is het nog niet opgeleverd? De aannemer is verantwoordelijk dat het voldoet aan de nieuwbouweisen, dus je zou om een geluidmeting kunnen vragen.
Dat afzuigventiel in de kast zelf hebben ze wel leuk ingeregeld, maar als je de kast dicht doet doet die natuurlijk niets meer. Omdat de unit zichzelf op volume geregeld zal die harder moeten werken bij een dichte kast en dus meer geluid maken.
Als ik het goed begrijp is het nog niet opgeleverd? De aannemer is verantwoordelijk dat het voldoet aan de nieuwbouweisen, dus je zou om een geluidmeting kunnen vragen.
Jawel het is al wel opgeleverd, vorige maand.Bromptonrijder schreef op woensdag 14 januari 2026 @ 14:04:
@auditor86 De PVC ziet eruit als Dyka Air. Groot deel van de kanalen zal in de vloeren zijn ingestort neem ik dan aan? Op zich een gangbaar systeem, maar wel jammer dat de installateur T-stukken ipv beter stromende Y-stukken heeft toegepast.
Dat afzuigventiel in de kast zelf hebben ze wel leuk ingeregeld, maar als je de kast dicht doet doet die natuurlijk niets meer. Omdat de unit zichzelf op volume geregeld zal die harder moeten werken bij een dichte kast en dus meer geluid maken.
Als ik het goed begrijp is het nog niet opgeleverd? De aannemer is verantwoordelijk dat het voldoet aan de nieuwbouweisen, dus je zou om een geluidmeting kunnen vragen.
We zijn nu nog druk met stucen, schilderen, vloeren leggen, gordijnen ophangen etc.
Ik heb het gemeld bij de aannemer, en de installateur is langs gekomen, maar goed die hebben gewoon de instelling aangepast waardoor hij nu standaard in een lagere stand draait.
De kast / techische ruimte waar de unit in hangt hebben ze alleen met de verkeerde deuren geleverd, die sluiten nog niet. Onder de deuren zit wel een ruimte van een CM of 2, dus daar onderdoor zal hij wel kunnen aanzuigen.
Ook is de kast aan de bovenkant, rondom de buizen niet volledig dicht, ook daar is ruimte voor lucht stroming uit de zolder.
Ik zou dan wel een opleverrapport/ventilatieberekening opvragen waaruit blijkt dat op stand 1 de slaapkamers voldoende lucht ingeblazen krijgen.auditor86 schreef op woensdag 14 januari 2026 @ 14:40:
[...]
Jawel het is al wel opgeleverd, vorige maand.
We zijn nu nog druk met stucen, schilderen, vloeren leggen, gordijnen ophangen etc.
Ik heb het gemeld bij de aannemer, en de installateur is langs gekomen, maar goed die hebben gewoon de instelling aangepast waardoor hij nu standaard in een lagere stand draait.
De kast / techische ruimte waar de unit in hangt hebben ze alleen met de verkeerde deuren geleverd, die sluiten nog niet. Onder de deuren zit wel een ruimte van een CM of 2, dus daar onderdoor zal hij wel kunnen aanzuigen.
Ook is de kast aan de bovenkant, rondom de buizen niet volledig dicht, ook daar is ruimte voor lucht stroming uit de zolder.
die heb ik:Vech schreef op woensdag 14 januari 2026 @ 15:07:
[...]
Ik zou dan wel een opleverrapport/ventilatieberekening opvragen waaruit blijkt dat op stand 1 de slaapkamers voldoende lucht ingeblazen krijgen.
Members only:
Maar wat ik me dus afvraag bij dat rapport, die waarde is dat wat de ventilatie altijd minimaal moet leveren in stand 1, of is dat de waarde die hij moet kunnen leveren in stand 3?
Alleen zichtbaar voor ingelogde gebruikers.
Inloggen
De berekende waarden zijn volgens bouwbesluit/bbl of iets hoger (voor de badkamer). Dat totaal is 360 m3/h dus gelijk aan stand 2. Dat is dus de stand waarin ook het geluid moet voldoen. Het gemeten debiet voor slaapkamer 3 voldoet dus niet. En het totaal gemeten debiet klopt niet met de bij stand 2 met pen vermelde 420 m3/h.auditor86 schreef op woensdag 14 januari 2026 @ 15:17:
[...]
die heb ik:
***members only***
Maar wat ik me dus afvraag bij dat rapport, die waarde is dat wat de ventilatie altijd minimaal moet leveren in stand 1, of is dat de waarde die hij moet kunnen leveren in stand 3?
De eis voor geluid is 30 dB bij stand 2 dus. Als je denkt dat het niet voldoet kun je de aannemer om een meting vragen. Als hij dat niet wil zou je zelf iemand kunnen inschakelen en als het niet voldoet die kosten bij een aannemer op kunnen voeren.
Techniekruimte afzuigen is verplicht?
2-1 kap, 200m2, SUZ-SWM60VA+ Open Source ME+wtw
Ik heb een offerte binnen voor het aanleggen van balansventilatie in m'n nieuwe woning.
De woning is uit 1992 en heeft nu nog type B ventilatie. De woning heeft 139m2 en 547m3.
De balansventilatie is stap 1 van mijn verduurzamingsplan, en tevens ook een van de stappen die ik had willen uitbesteden. Ik had gerekend op een offertebedrag van zo'n 9k, maar nu denk ik dat zelf doen toch meer loont dan ik had verwacht:
:strip_exif()/f/image/TTUNvT6hgZUB7mABYyn2LmZh.jpg?f=fotoalbum_large)
:strip_exif()/f/image/guLfZf5VHSByBglzJ9XviDj4.jpg?f=fotoalbum_large)
:strip_exif()/f/image/W18I0mz3GfieBpYK9duJbeSy.jpg?f=fotoalbum_large)
:strip_exif()/f/image/oyrcBX9Y8w1hD4GQGoF3MdOq.jpg?f=fotoalbum_large)
Op de zolder hangt in de slaapkamer een afzuiger waar alleen de badkamer op zit aangesloten.
In de nieuwe situatie zou ik de wtw/box graag tegen de muur links van de woning maken zodat ik door de gevel kan ipv het dak (meer ruimte voor pv). De zolder heeft knieschotten om bij de plafonds van de ondergelegen slaapkamers te komen. De kachel in de woonkamer gaat weg, en de ruimte van het rookkanaal wilde ik gebruiken voor traject inblaas woonkamer.
2 slaapkamers hebben koven voor doorvoor naar beneden (afzuiging keuken en wc).
*Grootste slaapkamer zou dan een extra doorvoer voor een inblaaskanaal krijgen, die in de woonkamer uitkomt en daar door de muur de uitbouw van de begane grond in loopt.
Wat vinden jullie van dit plan?
Hoe goed is dit te doen voor iemand met twee rechter handen maar weinig ervaring in de bouw?
Wat vinden jullie van de offerte? Ik lees hem zo: ik betaal 2x installatiekosten.
Past de bemeten unit (400m3/u) inderdaad bij mijn woning?
* Is dit nodig? Het wordt een TV-kamer voor de twee meiden.
De woning is uit 1992 en heeft nu nog type B ventilatie. De woning heeft 139m2 en 547m3.
De balansventilatie is stap 1 van mijn verduurzamingsplan, en tevens ook een van de stappen die ik had willen uitbesteden. Ik had gerekend op een offertebedrag van zo'n 9k, maar nu denk ik dat zelf doen toch meer loont dan ik had verwacht:
:strip_exif()/f/image/TTUNvT6hgZUB7mABYyn2LmZh.jpg?f=fotoalbum_large)
:strip_exif()/f/image/guLfZf5VHSByBglzJ9XviDj4.jpg?f=fotoalbum_large)
:strip_exif()/f/image/W18I0mz3GfieBpYK9duJbeSy.jpg?f=fotoalbum_large)
:strip_exif()/f/image/oyrcBX9Y8w1hD4GQGoF3MdOq.jpg?f=fotoalbum_large)
Op de zolder hangt in de slaapkamer een afzuiger waar alleen de badkamer op zit aangesloten.
In de nieuwe situatie zou ik de wtw/box graag tegen de muur links van de woning maken zodat ik door de gevel kan ipv het dak (meer ruimte voor pv). De zolder heeft knieschotten om bij de plafonds van de ondergelegen slaapkamers te komen. De kachel in de woonkamer gaat weg, en de ruimte van het rookkanaal wilde ik gebruiken voor traject inblaas woonkamer.
2 slaapkamers hebben koven voor doorvoor naar beneden (afzuiging keuken en wc).
*Grootste slaapkamer zou dan een extra doorvoer voor een inblaaskanaal krijgen, die in de woonkamer uitkomt en daar door de muur de uitbouw van de begane grond in loopt.
Wat vinden jullie van dit plan?
Hoe goed is dit te doen voor iemand met twee rechter handen maar weinig ervaring in de bouw?
Wat vinden jullie van de offerte? Ik lees hem zo: ik betaal 2x installatiekosten.
Past de bemeten unit (400m3/u) inderdaad bij mijn woning?
* Is dit nodig? Het wordt een TV-kamer voor de twee meiden.
@DaanTriple7 ik heb net mijn installatie af, om je een beeld te geven van de kosten:
Spirokanaalwerk: ~€2000
Unit (Orcon HRC-400-MAXComfort) €1650
Klein spul ~€100
Totaal: rond de €3800
Tijdens de verbouwing had mijn installateur het ook over zo'n 15k als hij het zou doen
Maar goed, hier zitten dan ook gigantisch veel eigen uren in, blij dat ik ze niet heb geteld
Voordeel is wel bij zelfaanleg dat je exact weet wat waar zit en hoe je het in de toekomst kunt aanpassen/finetunen.
En je kunt het in fases doen, wat op marktplaats halen, aanbiedingen afwachten etc.
Resultaat is een stil, zuinig en onderhoudbaar systeem! Mooiste compliment kwam nadat de unit voor het eerst een paar uur had gedraaid van mijn vriendin: "het lijkt wel of er een raam open staat, wat een frisse lucht!"
Hiervoor wil ik iedereen bedanken die een bijdrage heeft geleverd aan dit topic, maar speciale dank aan @P5ycho , @Andrehj en @w00key voor hun kennis en snelle reacties!
Spirokanaalwerk: ~€2000
Unit (Orcon HRC-400-MAXComfort) €1650
Klein spul ~€100
Totaal: rond de €3800
Tijdens de verbouwing had mijn installateur het ook over zo'n 15k als hij het zou doen
Maar goed, hier zitten dan ook gigantisch veel eigen uren in, blij dat ik ze niet heb geteld
Voordeel is wel bij zelfaanleg dat je exact weet wat waar zit en hoe je het in de toekomst kunt aanpassen/finetunen.
En je kunt het in fases doen, wat op marktplaats halen, aanbiedingen afwachten etc.
Resultaat is een stil, zuinig en onderhoudbaar systeem! Mooiste compliment kwam nadat de unit voor het eerst een paar uur had gedraaid van mijn vriendin: "het lijkt wel of er een raam open staat, wat een frisse lucht!"
Hiervoor wil ik iedereen bedanken die een bijdrage heeft geleverd aan dit topic, maar speciale dank aan @P5ycho , @Andrehj en @w00key voor hun kennis en snelle reacties!
Ging deze vraag over mijn huis waar we het hadden over de afzuiging in de technische ruimte?nessio schreef op woensdag 14 januari 2026 @ 17:35:
Techniekruimte afzuigen is verplicht?
Geen idee of het verplicht is, maar het is wel de enige afzuiging op zolder.
@auditor86 ja, inderdaad. Is daar ook de opstelplaats voor wasmachine / droger?
2-1 kap, 200m2, SUZ-SWM60VA+ Open Source ME+wtw
Dat vind ik echt waanzinnig (en eigenlijk onhaalbaar) goedkoop.Stanvv schreef op woensdag 14 januari 2026 @ 20:30:
Spirokanaalwerk: ~€2000
Unit (Orcon HRC-400-MAXComfort) €1650
Klein spul ~€100
Totaal: rond de €3800
Alleen aan Zehnder spullen ging ik daar in 2020 al overheen:
€ 2549 - Q600 + Comfoconnect lan C
€ 137 - Option box
€ 850 - Enthalpiewisselaar
€ 816 - Comfopipe+
Totaal al € 4352...
Daarbij nog alle Ubbink Air Excellent materialen die zijn ingestort in de betonvloeren, Spiro buizen voor het hoofdverdeelsysteem, geluidsdempers, alle ventielen, dakdoorvoer voor de afvoer, muurdoorvoer voor de aanvoerlucht, droogsifon etc.
In totaal heb ik € 9107 enkel aan materialen uitgegeven. En dan heb ik nog overal serieus aandacht besteed om (de beste materialen) zo goed koop mogelijk in te kopen.
Uren van aannemer en installateur waren maar € 1364, omdat ik het meeste werk zelf gedaan heb.
Het scheelt misschien ook dat ik elk bonnetje van materiaal wat aan de woning is besteed bijhou en uitsplits naar waar het voor gebruikt wordt. Zo tellen vele kleine posten (voor het ventilatieysteem zit ik al op 40 regels in mijn Excelletje) toch ongemerkt op naar een groot bedrag.
WP: ME PUHZ-SW75YAA + ERSD-VM2D + EV-WP-TWS-1W 300; AC: ME MXZ-2F42VF + 2x MSZ-LN25VGV; PV: 14.08 kWp O/W + SMA STP 8.0; Vent: Zehnder Q600 ERV + Ubbink AirExcellent.
Wasmachine en droger staan op de overloop/zolder zelf.nessio schreef op woensdag 14 januari 2026 @ 20:53:
@auditor86 ja, inderdaad. Is daar ook de opstelplaats voor wasmachine / droger?
Technische ruimte is een groot woord.....
Het is een afgesloten (als ik straks de goede deuren krijg) houten kast met de WTW en warmtepomp er in.
Tja toch zit hier alles in. Inclusief zelfgemaakte koof in de slaapkamer (gipsplaten, schroeven, regelwerk, steenwolvulling), dempers, afstandbediening, droogsifon, etc. Dakdoorvoer was niet nodig want ik had nog een bruikbare 180mm geveldoorvoer voor de aanvoer en schoorsteen (voorheen cv ketel) voor de afvoer. Nu scheelt het wel dat een ERV sowieso duurder is en Zehnder nog een stapje hoger is dan Orcon. Verder alles spiro uitgevoerd (zo'n 50m) en 12 ventielen. Woonoppervlakte zo'n 180 m2.Andrehj schreef op woensdag 14 januari 2026 @ 20:53:
[...]
Dat vind ik echt waanzinnig (en eigenlijk onhaalbaar) goedkoop.
Een kleine €4000 is inderdaad relatief weinig. Ik was totaal een kleine €7000 kwijt voor mijn systeem met Zehnder Q350 ERV met Ubbink Air Excellent (2024). Zie Franciesco in "Het centrale balansventilatie met warmteterugwinning topic"
Wat is de reden dat je alles in 180mm hebt op een 160mm unit?Franciesco schreef op woensdag 14 januari 2026 @ 22:31:
Een kleine €4000 is inderdaad relatief weinig. Ik was totaal een kleine €7000 kwijt voor mijn systeem met Zehnder Q350 ERV met Ubbink Air Excellent (2024). Zie Franciesco in "Het centrale balansventilatie met warmteterugwinning topic"
Ik denk dat ik ook zoiets kwijt was.Stanvv schreef op woensdag 14 januari 2026 @ 20:30:
@DaanTriple7 ik heb net mijn installatie af, om je een beeld te geven van de kosten:
Spirokanaalwerk: ~€2000
Unit (Orcon HRC-400-MAXComfort) €1650
Klein spul ~€100
Totaal: rond de €3800
Tijdens de verbouwing had mijn installateur het ook over zo'n 15k als hij het zou doen
Maar goed, hier zitten dan ook gigantisch veel eigen uren in, blij dat ik ze niet heb geteld![]()
Voordeel is wel bij zelfaanleg dat je exact weet wat waar zit en hoe je het in de toekomst kunt aanpassen/finetunen.
En je kunt het in fases doen, wat op marktplaats halen, aanbiedingen afwachten etc.
Resultaat is een stil, zuinig en onderhoudbaar systeem! Mooiste compliment kwam nadat de unit voor het eerst een paar uur had gedraaid van mijn vriendin: "het lijkt wel of er een raam open staat, wat een frisse lucht!"
Hiervoor wil ik iedereen bedanken die een bijdrage heeft geleverd aan dit topic, maar speciale dank aan @P5ycho , @Andrehj en @w00key voor hun kennis en snelle reacties!
Ducobox d325 1750,-
Spiro inclusief ventielen( dempers) etc rond de 1200,- kwijt. Dakdoorvoer was 100,- en wat comfopipe van 250,-..
Alle gaten zelf gemaakt met een diamantboor of normale boor en je komt al heel ver.
Het bedenken is het lastigst, maar dankzij de sheet wel te doen. Uiteraard zou je het axhteraf altijd ietsje anders doen, maar voorlopig werkt het perfect (en ik moet hem nog perfect afstellen). Zou alleen misschien nu wel voor een zehnder gegaan zijn met enthalpiewisselaar. Je kunt ook veel tijd besparen met kunstof/flexibele pijpen.
Polestar 2 | SMSR | 19" | Pilot | Magnesium
De weerstand en daarmee geluid en stroomverbruik minimaliseren. Dat is ook de reden waarom ik elk ventiel met een dubbele 90mm slang heb aangesloten.DaanTriple7 schreef op woensdag 14 januari 2026 @ 23:23:
[...]
Wat is de reden dat je alles in 180mm hebt op een 160mm unit?
Daarnaast vind ik 180mm meer toekomstbestendig mocht een volgende unit een grotere capaciteit hebben (die ook benut gaat worden).
Om dezelfde redenen heb ik ook beide dakdoorvoeren in 180/200mm uitgevoerd.
Versie 2:
Pulsie totaal: 525 m3/h
Extractie totaal: 530 m3/h
* Verschil 5 m3/h
* Overflow naar de woonkamer / eetkamer, zal via een muurrooster kunnen boven de deur.
* Badkamer 1ste verhoogd naar 2x 50 m3/h.
Ik hoor graag wat feedback of ik op de goede weg ben enof iets beter kan
*edit extratie aangepast in tabel
/f/image/n9bOjfpxTBJcAHq0Qzi4w7KL.png?f=fotoalbum_large)
/f/image/UmTk5VWLYfnef0PN59SlNxDL.png?f=fotoalbum_large)
Pulsie totaal: 525 m3/h
Extractie totaal: 530 m3/h
* Verschil 5 m3/h
* Overflow naar de woonkamer / eetkamer, zal via een muurrooster kunnen boven de deur.
* Badkamer 1ste verhoogd naar 2x 50 m3/h.
Ik hoor graag wat feedback of ik op de goede weg ben enof iets beter kan
*edit extratie aangepast in tabel
/f/image/n9bOjfpxTBJcAHq0Qzi4w7KL.png?f=fotoalbum_large)
/f/image/UmTk5VWLYfnef0PN59SlNxDL.png?f=fotoalbum_large)
[ Voor 8% gewijzigd door Plint op 15-01-2026 16:07 . Reden: extratie aangepast in tabel ]
Het moet sowieso in balans zijn dus dat moet je nog wat finetunen. Wat een (atypische?) mogelijkheid zou kunnen zijn is de aanvoer in de zolderslaapkamer weghalen. De schone lucht komt dan volledig van de overstroom uit de multifunctionele werkkamer. Scheelt 90 m3/h in maximaalstandPlint schreef op donderdag 15 januari 2026 @ 12:41:
Versie 2:
Pulsie totaal: 525 m3/h
Extractie totaal: 550 m3/h
* Verschil 25 m3/h
* Overflow naar de woonkamer / eetkamer, zal via een muurrooster kunnen boven de deur.
* Badkamer 1ste verhoogd naar 2x 50 m3/h.
Ik hoor graag wat feedback of ik op de goede weg ben enof iets beter kan![]()
[Afbeelding]
[Afbeelding]
[Afbeelding]
Dat kan wel, maar dan is het verschil nog groter --> Pulsie 435m3/h tegenover Extractie 550m3/h.Vech schreef op donderdag 15 januari 2026 @ 13:54:
[...]
Het moet sowieso in balans zijn dus dat moet je nog wat finetunen. Wat een (atypische?) mogelijkheid zou kunnen zijn is de aanvoer in de zolderslaapkamer weghalen. De schone lucht komt dan volledig van de overstroom uit de multifunctionele werkkamer. Scheelt 90 m3/h in maximaalstand
Of zou ik de keuken dan naar Extractie 150m3/h kunnen zetten en dan verder finetunen.
Hoe kun je meten hoeveel pulsie/extractie je nu hebt?
Dit lijkt een goed idee om de totale behoefte te verkleinen en is theoretisch een goede oplossing, maar...Vech schreef op donderdag 15 januari 2026 @ 13:54:
[...]
Het moet sowieso in balans zijn dus dat moet je nog wat finetunen. Wat een (atypische?) mogelijkheid zou kunnen zijn is de aanvoer in de zolderslaapkamer weghalen. De schone lucht komt dan volledig van de overstroom uit de multifunctionele werkkamer. Scheelt 90 m3/h in maximaalstand
Of die overstroom ook werkelijk mengt met de lucht in je slaapkamer vind ik lastig te beoordelen, aangezien de verdere overflowroute direct na de deur de trap af is.
Er is bekend dat de positie van een pulsieventiel in het plafond nauwelijks invloed heeft de lucht menging in de kamer, maar of dat met de deurspleet op de grond waarbij de lucht direct de hoek omgaat ook nog geldt?
Je zou een overstroom voorziening boven het plafond met in beide zolderkamers een ventiel kunnen maken om zeker te weten dat je overstroom die weg kiest.
Maar, voor al die moeite en met het idee in je achterhoofd dat je niet weet hoe de behoefte er over 10 jaar uit ziet: gewoon 90 en 90.
PV Output 1.350Wp ZWW 10°
De afzuiging in de badkamer trekt toch 100% zeker die 100 m3/h door de slaapkamer?GudZ schreef op donderdag 15 januari 2026 @ 15:22:
[...]
Dit lijkt een goed idee om de totale behoefte te verkleinen en is theoretisch een goede oplossing, maar...
Of die overstroom ook werkelijk mengt met de lucht in je slaapkamer vind ik lastig te beoordelen, aangezien de verdere overflowroute direct na de deur de trap af is.
Er is bekend dat de positie van een pulsieventiel in het plafond nauwelijks invloed heeft de lucht menging in de kamer, maar of dat met de deurspleet op de grond waarbij de lucht direct de hoek omgaat ook nog geldt?
Je zou een overstroom voorziening boven het plafond met in beide zolderkamers een ventiel kunnen maken om zeker te weten dat je overstroom die weg kiest.
Maar, voor al die moeite en met het idee in je achterhoofd dat je niet weet hoe de behoefte er over 10 jaar uit ziet: gewoon 90 en 90.
Edit; ik zie net in de berekening dat ik de badkamer 2e verd op 100 had staan ipv 80.
Als ik deze aanpas kom ik op Pulsie 525m3/h / Extractie 530m3/h. Dat is mooi binnen de marge van 10%.
Dat is dus zonder overstroom kantoor --> slaapkamer.
Als ik deze aanpas kom ik op Pulsie 525m3/h / Extractie 530m3/h. Dat is mooi binnen de marge van 10%.
Dat is dus zonder overstroom kantoor --> slaapkamer.
In het bouwbesluit rapport zie ik kierhoogtes voor de binnendeuren, varierend van 1.5 tot 2cm. Zou het veel uitmaken om meer richting de 1 tot 1.5 te gaan? Dit ivm het estetische. Ik lees her en der dat 1.5 minimaal is maar ik vraag me af of je het in de praktijk merkt als je een wat mindere hoogte toepast.
@auditor86 dan zal afzuiging ook voor wasmachine / droger zijn bedoeld.
2-1 kap, 200m2, SUZ-SWM60VA+ Open Source ME+wtw
Met deuren open, stijgt bij mij de CO2 concentratie in verste kamer als we ons in de woonkamer bevinden. Sluiten we de deur van de kamer dan zakt deze terug. De lucht in de woning mengt zich blijkbaar toch goed met deuren open.GudZ schreef op donderdag 15 januari 2026 @ 15:22:
Er is bekend dat de positie van een pulsieventiel in het plafond nauwelijks invloed heeft de lucht menging in de kamer, maar of dat met de deurspleet op de grond waarbij de lucht direct de hoek omgaat ook nog geldt?
Weet iemand of de Ubbink geisoleerde dakdoorvoer HR-WTW 125mm geschikt is voor aanvoer? Een Ventus 160mm lijkt me nogal overkill.
(In combinatie met een Brink Ease 200, die heeft ook 125mm aanslutingen).
(In combinatie met een Brink Ease 200, die heeft ook 125mm aanslutingen).
In het kader van mijn vraag hierboven kwam ik net dit tegen. Misschien is dit dan wel beschikbaarTermy schreef op maandag 12 januari 2026 @ 23:26:
[...]
Helaas kunnen we niks kiezen en zijn we overgeleverd aan waar de aannemer voor kiest. Misschien als de keuze heel afgrijselijk blijkt te zijn dat we genoeg stennis kunnen schoppen om het veranderd te krijgen maar dat zal niet zomaar gaan.
***members only***
Als laatste vraag ik me af in hoeverre we achteraf de ventielen kunnen laten vervangen (we hebben toch een aannemer nodig voor die muur en andere zaken) door instucbare ventielen zonder het hele systeem te ontregelen. Ik lees over het algemeen in dit topic dat het mogelijke debiet door die ventielen lager is dan standaard ventielen. Is dit een kwestie van tzt de berekening voor de WTW opvragen zodat ik kan zien hoeveel debiet welk ventiel aan moet kunnen?
Als iemand ervaring heeft met zo'n dakdoorvoer onder zonnepanelen met een WTW dan hoor ik het graag
-=[Terminator]=- R3doxNL Anahka#2910 Specs. 16x LONGi LR4-72HPH-455M (7280 Wp) Oost/West (-85°/95°,13°) op 8x APS DS3-L. ID.3 First Plus. Zappi v2.1. Daikin 3MXM40A met CTXM15R, FTXM20R en FTXM35R.
Heb zo’n klein dak dan?
En het kan alleen voor uitvoer.
Bij mij zit de aan en afvoer vrijwel onder de pannen via de voet van een aangepaste ubbink wp dakkast. Ik ben er klaar mee, zitten op gelijke hoogte en redelijk dicht bij elkaar. Er komt nml ook nog eens allemaal troep mee.
Voldoet ook niet aan bouwbesluit want afvoer moet hoger zitten dan aanvoer en verdunningsfactor.
Ik zou het nooit onder pannen plaatsen.
En het kan alleen voor uitvoer.
Bij mij zit de aan en afvoer vrijwel onder de pannen via de voet van een aangepaste ubbink wp dakkast. Ik ben er klaar mee, zitten op gelijke hoogte en redelijk dicht bij elkaar. Er komt nml ook nog eens allemaal troep mee.
Voldoet ook niet aan bouwbesluit want afvoer moet hoger zitten dan aanvoer en verdunningsfactor.
Ik zou het nooit onder pannen plaatsen.
[ Voor 111% gewijzigd door nessio op 16-01-2026 13:37 ]
2-1 kap, 200m2, SUZ-SWM60VA+ Open Source ME+wtw
Ik heb niet genoeg dakoppervlak om de WP en EV + rest van het huis in de winter op te wekken, nee, dus meer is altijd beter.nessio schreef op vrijdag 16 januari 2026 @ 13:29:
Heb zo’n klein dak dan?
En het kan alleen voor uitvoer.
Bij mij zit de aan en afvoer vrijwel onder de pannen via de voet van een aangepaste ubbink wp dakkast. Ik ben er klaar mee, zitten op gelijke hoogte en redelijk dicht bij elkaar. Er komt nml ook nog eens allemaal troep mee.
Voldoet ook niet aan bouwbesluit want afvoer moet hoger zitten dan aanvoer en verdunningsfactor.
Ik zou het nooit onder pannen plaatsen.
Het voordeel hier is dat de aanvoer op de zijgevel zit en de afvoer dus door het dak, dus dit probleem zou ik niet hebben. Wat ik wil is precies waar deze afvoer geschikt voor zou moeten zijn
-=[Terminator]=- R3doxNL Anahka#2910 Specs. 16x LONGi LR4-72HPH-455M (7280 Wp) Oost/West (-85°/95°,13°) op 8x APS DS3-L. ID.3 First Plus. Zappi v2.1. Daikin 3MXM40A met CTXM15R, FTXM20R en FTXM35R.
Ik heb 30 zonnepanelen maar van nov tm feb wek ik heel weinig op.
In die periode: Wp pak weg 2000, huis 1600 en auto heb ik het maar niet over.
Dat ene paneeltje dat je eventueel gaat missen is echt het verschil niet.
Terug naar topic
In die periode: Wp pak weg 2000, huis 1600 en auto heb ik het maar niet over.
Dat ene paneeltje dat je eventueel gaat missen is echt het verschil niet.
Terug naar topic
2-1 kap, 200m2, SUZ-SWM60VA+ Open Source ME+wtw
Vraagje: ik heb in mijn gerenoveerde woning van 165m2 een wtw installatie aangelegd met een debiet van 315m3/h (Duco energy premium 325).
Nu meet ik in een ruimte waar wij niet zijn geweest de hele dag toch nog 600ppm co2, heeft iemand daar een verklaring voor? Als ik de sensor uit het raam hang komt ie wel netjes rond de 425 uit
Nu meet ik in een ruimte waar wij niet zijn geweest de hele dag toch nog 600ppm co2, heeft iemand daar een verklaring voor? Als ik de sensor uit het raam hang komt ie wel netjes rond de 425 uit
/f/image/d8liwA7vWsuAR2JB51go4l9s.png?f=fotoalbum_large)
/f/image/FEwGzdehs6pAxvgSOGrIRoTk.png?f=fotoalbum_large)