Lucht/lucht warmtepomp om mee te verwarmen en te koelen Vorige deel Overzicht Laatste deel

Dit topic is onderdeel van een reeks. Ga naar het meest recente topic in deze reeks.

Pagina: 1 ... 27 ... 319 Laatste
Acties:
  • 2.384.186 views

  • Huttenkloas
  • Registratie: Augustus 2015
  • Laatst online: 07-09-2025
Ik ben nog op zoek naar koelleidingen voor bij mijn airco. Ik heb de volgende KeroKlima setup:

MXZ-3F68VF

MSZ-EF35VGKW

MSZ-EF50VGKW

1 leiding (3,5 kw) zal ongeveer 10m moeten overbruggen.
1 leiding (5 kw) zal ongeveer 4m moeten overbruggen.

Ik zat te denken aan de volgende koelleidingen:

Aircotube gecombineerde geïsoleerde koelleiding P2320 rol van 20 mtr 1/4 x 3/8.

Kan iemand mij bij praten omtrent het volgende:
1. Is een koelleidingset met flares aan te raden?
2. Wanneer heb je welke maten nodig, ik zie ook nog 3/8 x 5/8 en 1/4 x 1/2 als maten..

Installatie zal worden gedaan door een pro.

Dank alvast!

  • Trebbors
  • Registratie: Augustus 2000
  • Laatst online: 10:59

Trebbors

Failure is no option!

Vervangen de US bezitters hier het fotokatalytisch luchtzuiverings- en geurverdrijvingsfilter met KAF046A41of met onderdeel nummer 1840489? Geloof niet dat zo'n filter jaren mee kan. Stinkt geweldig dus zal best zijn werk gedaan hebben. Zie prijzen van €170,- voorbij komen...

  • mwk
  • Registratie: April 2015
  • Laatst online: 20-01 18:22

mwk

Tammo2 schreef op donderdag 25 maart 2021 @ 12:44:
[Afbeelding]

Dan spring mijn verbruik er wel bovenuit. Nou is t huis nog niet optimaal geïsoleerd, er mist nog spouwmuur en vloerisolatie.
Ik zit op 1869 Kwh dit jaar. Vrijstaand huis met 6 binnenunits.
Daarvan is het grootste deel van de woonkamer (1204 Kwh) volgens de app. Die neemt wel de hele benedenverdieping mee (woonkamer, open keuken, serre, af en toe de hal en speelkamer).

Maarten


  • rimave
  • Registratie: Oktober 2001
  • Laatst online: 18:01
Ik gebruik mijn Panasonic op het moment om te verwarmen en het apparaat gedraagt zich wat vreemd. Ik heb hem ingesteld op 21,5 graden. Ik zet hem vaak rond een uur of 3 in de middag aan. In de woonkamer is het dan ongeveer 16 graden (thermostaat staat op 15 graden max). De airco moet dan even opwarmen en slaat dan aan.

Echter soms zie ik in de app van de airco dat deze een binnentemp. van 18 of 20 graden meet terwijl de thermostaat voor de cv 16 graden meet. De airco slaat dan niet goed aan. Waar hij normaal hard blaast om het te verwarmen blaast hij dan heel zacht. Dit doet hij normaal ook als de ingestelde temperatuur bereikt is.

Vervelende is wel dat het niet aangenaam in de ruimte voelt. Voor mijn gevoel heeft de thermostaat de juiste temperatuur en de airco geeft een verkeerde ruimte temperatuur aan. Dat is wel op te lossen door de verwarmingstemp. van de airco naar 23 of 24 graden te zetten, maar dan moet ik hem later op de avond weer verlagen omdat het te warm wordt.

Ik vindt het vreemd dat de airco soms een andere temp. meet dan de thermostaat.
De airco zit tegen een buitenmuur die op het Noorden zit. De thermostaat hangt iets verderop op een andere muur die vol de zon pakt als deze door het raam voor naar binnen komt. De voorkant van het huis zit op het Zuiden.

The only thing better than a cow, is a human. Unless you need milk. Then you really need a cow.


  • HellStorm666
  • Registratie: April 2007
  • Laatst online: 22-03 14:56

HellStorm666

BMW S1000XR / Audi S6 Avant C7

Heej allemaal,

Even een vraagje.
Ik was/ben op zoek naar iemand die een airco kan en mag afmonteren (dus vullen ed).
Maar nu gaf iemand aan dat dit voor een nieuwe airco niet nodig is (dat vullen ed).

Ik wil dus zelf een Daikin FTXM35R met RXM35R gaan kopen en zelf gaan plaatsen.
Gezien de binnenunit op een buitenmuur komt waar ook direct de buitenunit kan komen (iets lager dan de binnenunit) moet het plaatsen niet veel voor stellen.
Leidinglengte zal denk ik 1,5m zijn ofzo.

Nu gaf iemand dus aan dat alles wat nodig is al meegeleverd wordt bij een nieuwe airco en het dus een kwestie is van aansluiten (en evt. inkorten van de leidingen) en met een inbus het ontluchten te doen is.
Vullen zou gebeuren door de buitenunit die hiervoor het spul al intern aanwezig heeft.

Wat klopt hier van? Kan ik inderdaad zonder STEK monteur deze Daikin zelf plaatsen en in bedrijf stellen?

Scientia Potentia Est
Xbox-Live GamerTag: H3llStorm666
19x Q.Cell G5 325wp op APsystems QS1


  • Speedfightserv
  • Registratie: September 2004
  • Laatst online: 27-03 08:42
Huttenkloas schreef op donderdag 25 maart 2021 @ 23:44:
Ik ben nog op zoek naar koelleidingen voor bij mijn airco. Ik heb de volgende KeroKlima setup:

MXZ-3F68VF

MSZ-EF35VGKW

MSZ-EF50VGKW

1 leiding (3,5 kw) zal ongeveer 10m moeten overbruggen.
1 leiding (5 kw) zal ongeveer 4m moeten overbruggen.

Ik zat te denken aan de volgende koelleidingen:

Aircotube gecombineerde geïsoleerde koelleiding P2320 rol van 20 mtr 1/4 x 3/8.

Kan iemand mij bij praten omtrent het volgende:
1. Is een koelleidingset met flares aan te raden?
2. Wanneer heb je welke maten nodig, ik zie ook nog 3/8 x 5/8 en 1/4 x 1/2 als maten..

Installatie zal worden gedaan door een pro.

Dank alvast!
Als de installatie wordt gedaan door een pro dan hoeven er geen flares er aan te zitten. De F-gassen monteur soldeert er namelijk STEK-koppelingen aan. Als je zelf ga knutselen kunnen we je hier helaas niet helpen. (zie voorwaarden in dit topic)

voor kleiner dan 5kw heb je 1/4x3/8 nodig. Daarboven groter maar check even de specs van de fabrikant, staat daar gewoon in namelijk.

30 x Trina 390wp Op SE en Solis. | MHI 3,5kw


  • Notna
  • Registratie: November 2002
  • Laatst online: 27-03 22:05

Notna

Moderator General Chat / Wonen & Mobiliteit

Where are you?®

Topicstarter
rimave schreef op vrijdag 26 maart 2021 @ 11:17:
Ik gebruik mijn Panasonic op het moment om te verwarmen en het apparaat gedraagt zich wat vreemd. Ik heb hem ingesteld op 21,5 graden. Ik zet hem vaak rond een uur of 3 in de middag aan. In de woonkamer is het dan ongeveer 16 graden (thermostaat staat op 15 graden max). De airco moet dan even opwarmen en slaat dan aan.

Echter soms zie ik in de app van de airco dat deze een binnentemp. van 18 of 20 graden meet terwijl de thermostaat voor de cv 16 graden meet. De airco slaat dan niet goed aan. Waar hij normaal hard blaast om het te verwarmen blaast hij dan heel zacht. Dit doet hij normaal ook als de ingestelde temperatuur bereikt is.

Vervelende is wel dat het niet aangenaam in de ruimte voelt. Voor mijn gevoel heeft de thermostaat de juiste temperatuur en de airco geeft een verkeerde ruimte temperatuur aan. Dat is wel op te lossen door de verwarmingstemp. van de airco naar 23 of 24 graden te zetten, maar dan moet ik hem later op de avond weer verlagen omdat het te warm wordt.

Ik vindt het vreemd dat de airco soms een andere temp. meet dan de thermostaat.
De airco zit tegen een buitenmuur die op het Noorden zit. De thermostaat hangt iets verderop op een andere muur die vol de zon pakt als deze door het raam voor naar binnen komt. De voorkant van het huis zit op het Zuiden.
Heb je de TS gelezen toevallig ? ;) Wat daar staat, is met de huidige buiten temperaturen nog eens iets extra vergroot.

Xbox Live ID:Notna8310


  • Speedfightserv
  • Registratie: September 2004
  • Laatst online: 27-03 08:42
HellStorm666 schreef op vrijdag 26 maart 2021 @ 11:42:
Heej allemaal,

Even een vraagje.
Ik was/ben op zoek naar iemand die een airco kan en mag afmonteren (dus vullen ed).
Maar nu gaf iemand aan dat dit voor een nieuwe airco niet nodig is (dat vullen ed).

Ik wil dus zelf een Daikin FTXM35R met RXM35R gaan kopen en zelf gaan plaatsen.
Gezien de binnenunit op een buitenmuur komt waar ook direct de buitenunit kan komen (iets lager dan de binnenunit) moet het plaatsen niet veel voor stellen.
Leidinglengte zal denk ik 1,5m zijn ofzo.

Nu gaf iemand dus aan dat alles wat nodig is al meegeleverd wordt bij een nieuwe airco en het dus een kwestie is van aansluiten (en evt. inkorten van de leidingen) en met een inbus het ontluchten te doen is.
Vullen zou gebeuren door de buitenunit die hiervoor het spul al intern aanwezig heeft.

Wat klopt hier van? Kan ik inderdaad zonder STEK monteur deze Daikin zelf plaatsen en in bedrijf stellen?
De airco kan en mag je zelf ophangen en de leidingen op de juiste plek leggen. Elektra mag je in principe ook zelf.
wat je NIET zelf mag is het vrijlaten van het gas in de leidingen(er zit al gas voorgevuld in de machine). Die moeten namelijk eerst gevacumeerd worden. Dit is voorbehouden aan een F-Gassen monteur.

even ontluchten is uit den boze.

Weet niet welke regio je zit maar er zijn vaak wel F-gassen monteurs die dit voor een x bedrag willen doen. Dat is in mijn regio ook. (amersfoort)

[ Voor 6% gewijzigd door Speedfightserv op 26-03-2021 11:50 ]

30 x Trina 390wp Op SE en Solis. | MHI 3,5kw


  • ron321
  • Registratie: November 2020
  • Laatst online: 26-03 11:42
niki_lauda schreef op dinsdag 23 maart 2021 @ 20:02:
Geluidseisen warmtepompen en airco’s worden aangescherpt

Nieuwsbericht | 23-03-2021 | 11:13

https://www.rijksoverheid...0%99s-worden-aangescherpt
https://www.rijksoverheid...warmte--en-koudeopwekking
Hier is een rekentool te vinden.

WPB Ariston Nuos Plus200, SE 4000H+8x Trina Solar 320Wp AB 185°/32°+6x Trina Solar 320Wp AB 185°/10°,APS EZM1+2x Trina Solar 325Wp AB 185°/32° ,2x APS QT2+8x Jinko 435Wp AB 5°/32°,ME MXZ-2F42VF+MSZ-EF35VGK-S+MLZ-KP25VF,WP Atag Energion M Light50


  • HellStorm666
  • Registratie: April 2007
  • Laatst online: 22-03 14:56

HellStorm666

BMW S1000XR / Audi S6 Avant C7

Speedfightserv schreef op vrijdag 26 maart 2021 @ 11:49:
[...]


De airco kan en mag je zelf ophangen en de leidingen op de juiste plek leggen. Elektra mag je in principe ook zelf.
wat je NIET zelf mag is het vrijlaten van het gas in de leidingen(er zit al gas voorgevuld in de machine). Die moeten namelijk eerst gevacumeerd worden. Dit is voorbehouden aan een F-Gassen monteur.

even ontluchten is uit den boze.

Weet niet welke regio je zit maar er zijn vaak wel F-gassen monteurs die dit voor een x bedrag willen doen. Dat is in mijn regio ook. (amersfoort)
Dat leek mij dus inderdaad ook al.
Ik heb 1 iemand hier in de buurt al gevraagd, maar die wil alleen de airco compleet doen. Dus leveren en plaatsen.

Weet jij iemand die het leidingen deel (aansluiten/vacumeren, enz) kan en wil doen en wat dit kost?
Regio zal t zelfde zijn aangezien ik in Barneveld woon.

Scientia Potentia Est
Xbox-Live GamerTag: H3llStorm666
19x Q.Cell G5 325wp op APsystems QS1


  • Droogtrommel90
  • Registratie: Augustus 2020
  • Laatst online: 09:44
mwk schreef op vrijdag 26 maart 2021 @ 10:44:
[...]


Ik zit op 1869 Kwh dit jaar. Vrijstaand huis met 6 binnenunits.
Daarvan is het grootste deel van de woonkamer (1204 Kwh) volgens de app. Die neemt wel de hele benedenverdieping mee (woonkamer, open keuken, serre, af en toe de hal en speelkamer).
Dit jaar of per jaar? Hoe worden de units gebruikt? (Hoofd)verwarming, koelen?

Welke setup qua binnen/buitenunits heb je? Onze situaties lijken op elkaar en ik ben wel benieuwd naar een indicatie van het jaarverbruik.

  • JB
  • Registratie: Mei 2002
  • Nu online

JB

Cédric roelt!

.

[ Voor 100% gewijzigd door JB op 26-03-2021 12:39 ]

Mijn boefje is liev!


  • RonJ
  • Registratie: December 2009
  • Nu online
JB schreef op vrijdag 26 maart 2021 @ 12:37:
En welke Sherlock is de Mercedes al aan het bestuderen?
verkeerde draadje...
Trebbors schreef op vrijdag 26 maart 2021 @ 10:29:
Vervangen de US bezitters hier het fotokatalytisch luchtzuiverings- en geurverdrijvingsfilter met KAF046A41of met onderdeel nummer 1840489? Geloof niet dat zo'n filter jaren mee kan. Stinkt geweldig dus zal best zijn werk gedaan hebben. Zie prijzen van €170,- voorbij komen...
Nee joh, dat is echt een 0 teveel. Ik zie ze voor 15-30 op internet staan. Heb er een paar jaar terug (inkoop) eur 5,71 ex btw voor betaald. Je kan m bij het jaarlijkse beurtje ook eerst even uitkoken en dan 30min in de oven op 80 graden leggen, dan doet ie t weer prima.

[ Voor 64% gewijzigd door RonJ op 26-03-2021 12:43 ]

All-electric.


  • FrankHe
  • Registratie: November 2008
  • Laatst online: 27-03 17:52
Woensdag aanvraag voor offertes de deur uit gedaan voor een multi-split 4 kW met drie units.

Een maal antwoord terug dat ze alleen complete installatie doen en niet zoals ik wil, zelf plaatsen en gecertificeerde monteur de boel in bedrijf laten stellen.

Twee offertes binnen die wel kunnen leveren wat ik wil, er zit een verschil van pakweg 1500 euro tussen de twee offertes.

Ik wacht nog op een derde of hopelijk nog een vierde offerte, ik neem aan dat bedrijven ook daadwerkelijk gaan reageren op mijn e-mail.

  • RonJ
  • Registratie: December 2009
  • Nu online
FrankHe schreef op vrijdag 26 maart 2021 @ 12:45:
Woensdag aanvraag voor offertes de deur uit gedaan voor een multi-split 4 kW met drie units.

Een maal antwoord terug dat ze alleen complete installatie doen en niet zoals ik wil, zelf plaatsen en gecertificeerde monteur de boel in bedrijf laten stellen.

Twee offertes binnen die wel kunnen leveren wat ik wil, er zit een verschil van pakweg 1500 euro tussen de twee offertes.

Ik wacht nog op een derde of hopelijk nog een vierde offerte, ik neem aan dat bedrijven ook daadwerkelijk gaan reageren op mijn e-mail.
Je bent ook wel rijkelijk laat. ;) Half NL wil nu ineens volgende week een airco hebben. Veel leveranciers zitten het komende jaar al helemaal volgeboekt. Als je het grotendeels zelf doet scheelt dat wel natuurlijk, maar het verbaast me niet dat je niet overal meteen reactie krijgt, het is topdrukte met installaties bij ze nu.

Heb je ook al gekeken naar NLse webshops? Veel webshops die ze los verkopen doen ook het in bedrijf stellen erbij. Daar maak je misschien meer kans.

All-electric.


  • FrankHe
  • Registratie: November 2008
  • Laatst online: 27-03 17:52
Heb inderdaad reactie ontvangen van een online winkel. De reden dat ik er nu pas mee aan de slag kan is omdat ik volgende week de nieuwe woning betrek en daardoor niet eerder in de gelegenheid ben om de goederen in ontvangst te nemen.

  • Impry
  • Registratie: September 2004
  • Laatst online: 26-03 16:26

Impry

Rallymedia.nl

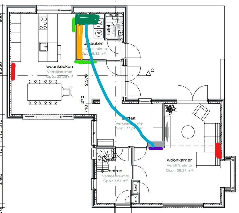
Afbeeldingslocatie: https://tweakers.net/i/BGG2Nrd_nV-k0vLJ0aNZyb6ajVc=/800x/filters:strip_icc():strip_exif()/f/image/VDi0CACNvZgSe9px6FgIoFrp.jpg?f=fotoalbum_large

Ik ben benieuwd hoe jullie over bovenstaande situatie denken.
Komende week start hier een grote verbouwing, de hele beganegrond vloer gaat er tot op het zand uit en zal opnieuw gestort worden. Hierbij heb ik ook de mogelijkheid om buizen mee te storten.
Hebben mensen ervaring met airco-buizen meestorten, zodat je met muurroosters (net als in hotels) kunt werken ipv zichtbare airco-units?

Even een toelichting op bovenstaande afbeelding:
Donkergroen: ruimte voor de airco installatie
Lichtgroen: 2 opties voor een rooster in de woonkeuken. Bij de onderste lichtgroene plek zou ik dan op de oranje lijn een koof maken.
Paars: het dikke grijze stuk is oude schoorsteen, dus ruimte om via dat stuk muur vanuit de grond omhoog te komen met een rooster wat in de woonkamer uit komt.
Lichtblauw: buis onder de vloer door richting uitgangspunt paars.
Rood: een simpeler alternatief, twee split-unit airco's, maar wel veel meer in het zicht.

Rallymedia op YouTube - Rallymedia Facebook


  • bie100
  • Registratie: September 2016
  • Nu online
RonJ schreef op vrijdag 26 maart 2021 @ 13:08:
[...]


Je bent ook wel rijkelijk laat. ;) Half NL wil nu ineens volgende week een airco hebben
heb vorige week gebeld 9 april komen ze de boel plaatsen ze zullen het niet overal druk hebben denk ik :)

  • RonJ
  • Registratie: December 2009
  • Nu online
FrankHe schreef op vrijdag 26 maart 2021 @ 13:36:
Heb inderdaad reactie ontvangen van een online winkel. De reden dat ik er nu pas mee aan de slag kan is omdat ik volgende week de nieuwe woning betrek en daardoor niet eerder in de gelegenheid ben om de goederen in ontvangst te nemen.
Het was ook geen verwijt hoor ;) Het is alleen zoals met alles rondom bouw/woningen momenteel compleet uit balans qua vraag en aanbod. Dus kijk niet raar op als er soms forse levertijden op zitten. Ook keukens, apparatuur, etc het duurt allemaal maan-den momenteel om te leveren. Dus als je deze zomer nog koud wilt zitten, zou ik zeker niet te lang wachten.

En er zullen ook aardig wat airco'tjes op of achter een zeker scheef gewaaid "bootje" staan momenteel :X
Impry schreef op vrijdag 26 maart 2021 @ 13:36:
[Afbeelding]

Ik ben benieuwd hoe jullie over bovenstaande situatie denken.
Komende week start hier een grote verbouwing, de hele beganegrond vloer gaat er tot op het zand uit en zal opnieuw gestort worden. Hierbij heb ik ook de mogelijkheid om buizen mee te storten.
Hebben mensen ervaring met airco-buizen meestorten, zodat je met muurroosters (net als in hotels) kunt werken ipv zichtbare airco-units?

Even een toelichting op bovenstaande afbeelding:
Donkergroen: ruimte voor de airco installatie
Lichtgroen: 2 opties voor een rooster in de woonkeuken. Bij de onderste lichtgroene plek zou ik dan op de oranje lijn een koof maken.
Paars: het dikke grijze stuk is oude schoorsteen, dus ruimte om via dat stuk muur vanuit de grond omhoog te komen met een rooster wat in de woonkamer uit komt.
Lichtblauw: buis onder de vloer door richting uitgangspunt paars.
Rood: een simpeler alternatief, twee split-unit airco's, maar wel veel meer in het zicht.
Zoek maar even op "kanaal" in dit en de vorige draadjes voor wat voorbeelden.

Dit kan prima, maar je hebt denk ik te weinig uitblaasroosters om deze hele ruimte goed te bedienen. Ik denk eerder aan 3-4x uitblaas in deze ruimte(s). En vergeet vooral de retour niet, de lucht moet in dezelfde hoeveelheden ook weer terug naar de kanaalunit.

All-electric.


  • mwk
  • Registratie: April 2015
  • Laatst online: 20-01 18:22

mwk

Impry schreef op vrijdag 26 maart 2021 @ 13:36:
[Afbeelding]

Ik ben benieuwd hoe jullie over bovenstaande situatie denken.
Komende week start hier een grote verbouwing, de hele beganegrond vloer gaat er tot op het zand uit en zal opnieuw gestort worden. Hierbij heb ik ook de mogelijkheid om buizen mee te storten.
Hebben mensen ervaring met airco-buizen meestorten, zodat je met muurroosters (net als in hotels) kunt werken ipv zichtbare airco-units?

Even een toelichting op bovenstaande afbeelding:
Donkergroen: ruimte voor de airco installatie
Lichtgroen: 2 opties voor een rooster in de woonkeuken. Bij de onderste lichtgroene plek zou ik dan op de oranje lijn een koof maken.
Paars: het dikke grijze stuk is oude schoorsteen, dus ruimte om via dat stuk muur vanuit de grond omhoog te komen met een rooster wat in de woonkamer uit komt.
Lichtblauw: buis onder de vloer door richting uitgangspunt paars.
Rood: een simpeler alternatief, twee split-unit airco's, maar wel veel meer in het zicht.
Als je met roosters wilt werken, dan zal je een kanaalunit bedoelen. Dan heb je geen leidingen maar luchtkanalen. Bedoel je dat het donkergroene een kanaalunit is die binnen zit en dat de buizen dan lucht transporteren? De buitenunit komt dan buiten tegen de bijkeuken aan?
Die buizen moeten toch een aardige doorsnee hebben dus of het verantwoord is die in een vloer te leggen zonder de sterkte van die vloer te beïnvloeden vraag ik mij af.
Als je hem voor verwarmen gebruikt is ook de vraag of het handig is om ze in- of onder de vloer te leggen.
Daar kan een kanaal best veel warmte verliezen lijkt me.

Maarten


  • roelzadh
  • Registratie: Februari 2008
  • Laatst online: 27-03 13:43
Wat zijn hier de ervaringen met MHI en domotica?

Kan je die makkelijk aan bijvoorbeeld homeassistant koppelen?

PUHZ-SW100YAA & 7440wp


  • Falcon
  • Registratie: Februari 2000
  • Laatst online: 21-11-2025

Falcon

DevOps/Q.A. Engineer

roelzadh schreef op vrijdag 26 maart 2021 @ 15:55:
Wat zijn hier de ervaringen met MHI en domotica?

Kan je die makkelijk aan bijvoorbeeld homeassistant koppelen?
Ik heb dit gedaan via Tado AC thermostaat (70 euries). Out-of-the-box heb ik geen idee of dit kan.

"We never grow up. We just learn how to act in public" - "Dyslexie is a bitch"


  • roelzadh
  • Registratie: Februari 2008
  • Laatst online: 27-03 13:43
Ok, bedoel met name bijvoorbeeld the dry mode activeren of de ventilatiesstand dimmen als we aanwezig zijn.

Geloof dat dit bij ME en Daikin allemaal wel mogelijk is.

PUHZ-SW100YAA & 7440wp


  • FrankHe
  • Registratie: November 2008
  • Laatst online: 27-03 17:52
De derde offerte is binnen en deze firma komt niet met de door mij gevraagde Daikin of vergelijkbare MHI, ME of Toshiba maar heeft de Remeha Diva multi-split op de offerte gezet.

Heeft iemand ervaring met de systemen van Remeha? Ik probeer even uit te vinden of er sprake is van een rebadge en welk merk het daadwerkelijk is.

Edit, even gekeken, bij die Remeha units zie ik een COP staan van rond de 3,5 daar waar de Daikin 4,8 tot 5 weet te behalen. Dat vind ik nogal een verschil.

[ Voor 19% gewijzigd door FrankHe op 26-03-2021 16:37 ]


  • Trebbors
  • Registratie: Augustus 2000
  • Laatst online: 10:59

Trebbors

Failure is no option!

RonJ schreef op vrijdag 26 maart 2021 @ 12:38:
[...]


verkeerde draadje...


[...]


Nee joh, dat is echt een 0 teveel. Ik zie ze voor 15-30 op internet staan. Heb er een paar jaar terug (inkoop) eur 5,71 ex btw voor betaald. Je kan m bij het jaarlijkse beurtje ook eerst even uitkoken en dan 30min in de oven op 80 graden leggen, dan doet ie t weer prima.
https://www.climasense.nl...urverdrijvingsfilter.html

Op welk nummer zoek jij?

Ik zal opnieuw zoeken, kreeg ze niet zo goedkoop als jij gevonden. Het uitkoken zal niet gaan, er zit een scheur in het filter. Heb je ergens de onderbouwing waarom uitkoken en langdurig opwarmen van een dergelijk filter optioneel is?

  • TigerXtrm
  • Registratie: Juni 2007
  • Laatst online: 09-03 09:23
Ik begin nu voor het eerst het pendel gedrag te merken waar het zo vaak over gaat hier, zou inderdaad een stuk minder irritant zijn als de binnen fan gewoon zou blijven blazen. Hebben Daikins daar een instelling voor of is dit het gewoon?

  • mwk
  • Registratie: April 2015
  • Laatst online: 20-01 18:22

mwk

Droogtrommel90 schreef op vrijdag 26 maart 2021 @ 12:28:
[...]


Dit jaar of per jaar? Hoe worden de units gebruikt? (Hoofd)verwarming, koelen?

Welke setup qua binnen/buitenunits heb je? Onze situaties lijken op elkaar en ik ben wel benieuwd naar een indicatie van het jaarverbruik.
Hoi. Dit is het verbruik dit jaar.

Ik heb een 4MXM68 met daaraan:
5KW begane grond hoofdverwarming
2Kw werkkamer Ega. Hoofdverwarming kantooruren
2Kw slaapamer kleinste. Verwarming van 19.30 tot 09.00 op 17 graden
Zolderkamer dochter. Setpoint 17 graden klokje rond.

Andere kant: 3MXM40 met daaraan:
2Kw slaapkamer, vrijwel niet gebruikt voor verwarmen
2Kw mijn werkkamer. Hoofdverwarming tijdens kantooruren en soms tijdens gamen.

Toen het hard vroor hebben we incidenteel de CV bijgeschakeld.

Maarten


  • mwk
  • Registratie: April 2015
  • Laatst online: 20-01 18:22

mwk

Heb even naar de tool gekeken. Wat een boel cijfertjes. Dus heb een andere tool ingezet. Whatsapp. "Hey buurman, heb je last van het geluid van onze airco?"
"Ehm, nee is me nog nog niet opgevallen...."

Einde test.

Maarten


  • mwk
  • Registratie: April 2015
  • Laatst online: 20-01 18:22

mwk

FrankHe schreef op vrijdag 26 maart 2021 @ 16:34:
De derde offerte is binnen en deze firma komt niet met de door mij gevraagde Daikin of vergelijkbare MHI, ME of Toshiba maar heeft de Remeha Diva multi-split op de offerte gezet.

Heeft iemand ervaring met de systemen van Remeha? Ik probeer even uit te vinden of er sprake is van een rebadge en welk merk het daadwerkelijk is.

Edit, even gekeken, bij die Remeha units zie ik een COP staan van rond de 3,5 daar waar de Daikin 4,8 tot 5 weet te behalen. Dat vind ik nogal een verschil.
Blijkbaar heel recent:
https://www.installatie.nl/nieuws/remeha-stapt-in-de-aircos/

Maarten


  • Rick.G
  • Registratie: Maart 2021
  • Laatst online: 22-08-2025
Dag allen!
Zoals zo te lezen half NL ben ik me aan voorbereiden op zomer ivm airco. Maar na toch zeker 3 uur zoeken hier en op Google kan weinig info vinden over de volgende soort setup:
Ik zoek een multi-split met 4 of 5 binnenunits voor slaapkamers.
Wie kan mij goede tips geven over merk (liefst met Google Assistent integratie), plek om te kopen/laten plaatsen, dingen om specifiek op te letten, prijsindicatie etc.
Jullie zijn helden!
Gr Rick

  • Impry
  • Registratie: September 2004
  • Laatst online: 26-03 16:26

Impry

Rallymedia.nl

RonJ schreef op vrijdag 26 maart 2021 @ 13:51:
Zoek maar even op "kanaal" in dit en de vorige draadjes voor wat voorbeelden.

Dit kan prima, maar je hebt denk ik te weinig uitblaasroosters om deze hele ruimte goed te bedienen. Ik denk eerder aan 3-4x uitblaas in deze ruimte(s). En vergeet vooral de retour niet, de lucht moet in dezelfde hoeveelheden ook weer terug naar de kanaalunit.
Dat is een betere zoekterm inderdaad.
Mbt de uitblaasroosters, in hoeverre werken die anders dan een losse unit? Heeft met name met het formaat uitblaasrooster te maken denk ik dan?
Afbeeldingslocatie: https://i.pinimg.com/564x/c7/5a/53/c75a5310118f52481eff19de5728aa0e.jpg
Zoiets heeft een behoorlijke capaciteit zou je zeggen?
En qua retour, stel dat je het dan met kleinere roosters doen (30 cm-formaat) dan heb je er bijv. 2 voor uitblaas en 2 voor retour oid?
mwk schreef op vrijdag 26 maart 2021 @ 14:48:
[...]
Als je met roosters wilt werken, dan zal je een kanaalunit bedoelen. Dan heb je geen leidingen maar luchtkanalen. Bedoel je dat het donkergroene een kanaalunit is die binnen zit en dat de buizen dan lucht transporteren? De buitenunit komt dan buiten tegen de bijkeuken aan?
Die buizen moeten toch een aardige doorsnee hebben dus of het verantwoord is die in een vloer te leggen zonder de sterkte van die vloer te beïnvloeden vraag ik mij af.
Als je hem voor verwarmen gebruikt is ook de vraag of het handig is om ze in- of onder de vloer te leggen.
Daar kan een kanaal best veel warmte verliezen lijkt me.
Donkergroene zal dan de kanaalunit zijn met inderdaad buiten tegen de bijkeukenmeur de buitenunit (die kan daar door de tuinindeling mooi uit het zicht staan)

Verwarmen was niet de eerste insteek, er komt vloerverwarming met later een all electric warmtepomp. Maar door de vloer zouden ze dan ook nog geïsoleerd moeten worden?
Sterkte van de vloer beïnvloeden vind ik wel een spannende, hoe achterhaal je zoiets? Heeft natuurlijk ook wel te maken met hoeveel buizen er moeten. Alleen die blauwe lijn zal de boel niet doen instorten/verzakken lijkt mij?

Rallymedia op YouTube - Rallymedia Facebook


  • Team-RiNo
  • Registratie: Mei 2006
  • Laatst online: 17:12
TigerXtrm schreef op vrijdag 26 maart 2021 @ 19:11:
Ik begin nu voor het eerst het pendel gedrag te merken waar het zo vaak over gaat hier, zou inderdaad een stuk minder irritant zijn als de binnen fan gewoon zou blijven blazen. Hebben Daikins daar een instelling voor of is dit het gewoon?
Enige manier om het te verminderen is fan op laagste stand + temp wat omhoog zodat hij het niet warm genoeg kan krijgen.

5440Wp O/W op plat dak | 3MXM52N2V1B8 i.c.m. 1xFTXM35M2V1B + 2xFTXM25M2V1B | RTX4090+7800X3D


  • Pixal
  • Registratie: Oktober 2001
  • Niet online

Pixal

Mijn poes popelt.

Sinds gisteren gelukkige eigenaar van airco units in onze 3 slaapkamers. Het gaat om 3x Mitsubishi SRK20 (en 25) ZS-W en een SCM60ZS-W voor buiten

Om enkele redenen kunnen bij ons de deuren\ramen niet open 's nachts dus eigenlijk alleen laten plaatsen voor de extreem warme dagen in het jaar. Maar zoals ik wel vaker doe, na aankoop en plaatsing een vergelijkend waren onderzoek starten :D en kwam ik er vandaag al thuiswerkend achter dat hiermee verwarmen ook prima gaat. Sterker nog, voor het eerst deze winter zonder dekentje kunnen werken. Beneden hangt de thermostaat van de CV en het is er met een paar uutjes stoken per dag al warm, maar boven is dat eigenlijk niet genoeg. Enfin, de radiatoren zijn inmiddels dichtgedraaid en de Mitsubishi heeft het prima op temperatuur gehouden. Wel begin ik langzaam wijzer te worden en is die 6kw buiten unit wellicht een beetje lomp...

Ik heb de binnen units inmiddels in Home Assistant staan met de intentie een en ander slim en duurzaam aan te gaan sturen, op basis van de bestaande bewegingssensoren en afwezigheidsdetectie etc. Ik weet nog niet zeker of het een blijvertje wordt want het voelt toch nog erg onwennig om een Airco aan te zetten om de kamers op temperatuur te houden en er kleven ook wel nadelen aan qua geluid etc. Hoe regelen jullie de temperatuur primair met airco's? Ik zat te denken aan het instellen van een minimum temperatuur van 17 graden per kamer en helemaal uit tijdens het slapen en de temperatuur tijdelijk verhogen als er beweging is overdag. Ik zit nu wel met het eeuwige dilemma, kies ik voor besparing of comfort. Maar ja, dat wordt weer eeuwig spelen en finetunen terwijl de vrouw des huizes er geen bal meer van snapt.

  • -Junkiexp-
  • Registratie: Juni 2011
  • Laatst online: 22-03 09:58
FrankHe schreef op vrijdag 26 maart 2021 @ 16:34:
De derde offerte is binnen en deze firma komt niet met de door mij gevraagde Daikin of vergelijkbare MHI, ME of Toshiba maar heeft de Remeha Diva multi-split op de offerte gezet.

Heeft iemand ervaring met de systemen van Remeha? Ik probeer even uit te vinden of er sprake is van een rebadge en welk merk het daadwerkelijk is.

Edit, even gekeken, bij die Remeha units zie ik een COP staan van rond de 3,5 daar waar de Daikin 4,8 tot 5 weet te behalen. Dat vind ik nogal een verschil.
Wat ik begreep is dat het gewoon een rebadge is, ik heb prijzen gezien bij mijn groothandel en daar kan Remeha het niet zelf voor maken.

3840 Wp pal op zuid zonder schaduw, Zuid-Holland zuid - Panasonic WH-MDC07J3E5 monoblock warmtepomp - Atlantic Explorer V4 200 liter coil warmtepompboiler - Technea Shower HR Tube 1-21 douchepijp-wtw - gasloos sinds 13-04-2024


  • Glashelder
  • Registratie: September 2002
  • Niet online

Glashelder

Anti Android

Topicstarter
@Pixal gewoon op een vaste temperatuur die unit boven. Hier staat die altijd op 20. Waarschijnlijk bespaar je sowieso al door met AC te verwarmen. Onderste uit de kan halen kan natuurlijk, maar dat deed je waarschijnlijk met je CV ook niet.

Comfort FTW. Vind het echt armoe als je ‘s nachts naar de WC moet en het is ijskoud in de badkamer.

PV 4915wp op oost, 2680 wp op west, 1900 wp op zuid. pvoutput - AUX 8 kW bi bloc


  • Pixal
  • Registratie: Oktober 2001
  • Niet online

Pixal

Mijn poes popelt.

Ik kreeg net de vraag over de integratie van Mitsubishi Heavy Industries met Home Assistant, ik plaats het antwoord hier ook even want integratie is makkelijk als de boel al hangt maar als je nog aan het shoppen bent is het wat lastiger te vinden. Ik heb de WiFi modules erbij genomen en die komen met een app Airconwithme, waar ik al bang voor was best wel een low budget app dus het enige wat ik daar doe is apparaten toevoegen en een naampje geven en dan hopen er nooit meer te hoeven komen.(Als je nog aan het shoppen bent, je kan de app installeren en uitproberen in de Demo modus). Airconwithme werkt via het cloud platform Intesishome (dus voor zover ik weet geen lokale aansturing). Je kan dat integreren via de configuration.yaml, zie hier.

Na herstarten van HA kan je een climate card aan je dashboard toevoegen waarin je de volgende opties hebt.

Van links naar rechts:

Auto (verwarmen/koelen), verwarmen, koelen, ontvochtigen, fan only, power.
Afbeeldingslocatie: https://tweakers.net/i/WPDnjwcpkLqkU-jK9YtNYJXx82s=/800x/filters:strip_icc():strip_exif()/f/image/S1kr8IizypecHJvgVK3g027V.jpg?f=fotoalbum_large

Ook qua fan snelheid kan je denk ik aardig uit de voeten, deze opties zie ik via de HA entity;

Afbeeldingslocatie: https://tweakers.net/i/LQYswdTmk3WhUliys_s9Wnbq9aM=/x800/filters:strip_icc():strip_exif()/f/image/2LtLMgrry5r5L09XnUEO3Stb.jpg?f=fotoalbum_large

[ Voor 6% gewijzigd door Pixal op 27-03-2021 07:49 ]


  • FrankHe
  • Registratie: November 2008
  • Laatst online: 27-03 17:52
Ok die ga ik niet doen dan. Grote kans op kinderziektes en de software is hoogstwaarschijnlijk nog niet uitontwikkeld. Daar pas ik voor, hoef geen proefkonijn te zijn.

  • A Lurker
  • Registratie: Juli 2004
  • Laatst online: 18:21
Ik ben ook aan het kijken voor een airco voor dit seizoen nog.

Het gaat om een single split voor de woonkamer. Plaatsing is eenvoudig; tegen de achtermuur aan, en buitenunit op de grond aan diezelfde muur. Twee offertes gekregen voor 3.5kw en en allebei rond de 2250 euro. Heb de airco's opgezocht en dan zie je dat je ze voor 600-700 euro kunt kopen.

Ik vind de totaalprijs wel erg hoog, zeker gezien er 0 meerprijs is ivm simpele plaatsing. Hoe is jullie ervaring? Zijn er goede alternatieven? Hoe moeilijk is het, en kan een CV monteur die zegt dat ie dit kan ook zonder problemen?

Ook overweeg ik om omwille van de prijs naar een 2.5kw uit te wijken. Ik vind het niet erg als het een half uurtje langer duurt voordat het koel is, lijkt me namelijk dat enkel het opstarten op vol vermogen gaat; zodra het behaaglijk is zal hij geen vol vermogen nodig hebben.

  • Paul!
  • Registratie: Augustus 2008
  • Laatst online: 17:00
Prijsverschil tussen 2,5 en 3,5 zal denk ik verwaarloosbaar zijn....

Alternatief: verder zoeken naar andere installateurs. Ik heb hier offertes liggen vanaf 1400 euro tot 2500 euro voor single split (3,5 kw). Soortgelijke situatie als jij, op binnen en buitenmuur de unit.

  • MarkV6
  • Registratie: Augustus 2009
  • Laatst online: 03-02 13:41
Batilan schreef op donderdag 25 maart 2021 @ 13:39:
Interessant artikeltje in Vakblad Warmtepompen over gebruik van propaan (R290) in kleine split-unit airco's
Dat zal eens tijd worden, ik vraag me al jaren af waarom we geen propaan of butaan gebruiken. Wellicht heb je het al in huis. De meeste koelkasten en vriezers gebruiken R600 of R290.
Denk alleen niet dat je nu zelf je split systeem zelf inbedrjif mag stellen. Er is een nieuwe diploma voor nodig om met brandbare gassen onder druk te werken.
Het gas kan je al lang kopen onder de naam perslucht, campinggas, soldeerbrander gas of tankstation: LPG
Ook voor in de auto zou dit een betere keuze zijn als Y1234a wat €100 per kilo is. Hier moet men voor kiezen want rondrijden met een paar 100 gram vloeibaar gas is door de EU niet toegestaan. Lobby van Honeywell?

RZAG71NY1 FBA71A /SRK ZS-S 2.5kW / Varme vt180 / S197 4.0L /Born 170kW / VanMoof S3


  • -Junkiexp-
  • Registratie: Juni 2011
  • Laatst online: 22-03 09:58
@A Lurker

Het is helemaal niet zo moeilijk, zeker in jouw geval niet.
Je moet nadenken waar je de elektra vandaan wilt halen.
Kan die door de kruipruimte heen wellicht?

Ivm garantie is het belangrijk dat het wordt geplaatst door iemand met een F-gassen certificaat.
Geen inbedrijfsstellingsrapport = geen garantie.
Een hoop koeltechnische bedrijven zitten hoog in prijs, er is veel vraag maar relatief weinig aanbod, zeker op korte termijn.

Ik heb aankomende week stek examen en heb nu al 10-12 opdrachten staan, om maar even een voorbeeld te geven.
Als de elektra niet te lastig is dan is het prijsverschil wel erg groot, ik zou 6 x 60 euro per uur rekenen + aansluitmateriaal.
Zou je rond € 500,- voor de montage kwijt moeten zijn, rest is dan marge op airco zelf als je opgezochte prijzen kloppen.
Ik vind dat verschil erg fors....

3840 Wp pal op zuid zonder schaduw, Zuid-Holland zuid - Panasonic WH-MDC07J3E5 monoblock warmtepomp - Atlantic Explorer V4 200 liter coil warmtepompboiler - Technea Shower HR Tube 1-21 douchepijp-wtw - gasloos sinds 13-04-2024


  • Glashelder
  • Registratie: September 2002
  • Niet online

Glashelder

Anti Android

Topicstarter
MarkV6 schreef op zaterdag 27 maart 2021 @ 15:57:
[...]
Ook voor in de auto zou dit een betere keuze zijn als Y1234a wat €100 per kilo is. Hier moet men voor kiezen want rondrijden met een paar 100 gram vloeibaar gas is door de EU niet toegestaan. Lobby van Honeywell?
Y1234a is ook zo brandbaar als wat. Sterker nog.. dat wordt een of ander giftig gas als het brand :+

PV 4915wp op oost, 2680 wp op west, 1900 wp op zuid. pvoutput - AUX 8 kW bi bloc


  • EnderQ
  • Registratie: Januari 2005
  • Laatst online: 18:34
FrankHe schreef op zaterdag 27 maart 2021 @ 08:25:
[...]

Ok die ga ik niet doen dan. Grote kans op kinderziektes en de software is hoogstwaarschijnlijk nog niet uitontwikkeld. Daar pas ik voor, hoef geen proefkonijn te zijn.
Let wel op soms/vaak gebruiken ze doordruk tech bijv siemens basis tech en dan kleine aanpassingen om het een remeha smaakje te geven.

  • Sandgroper
  • Registratie: December 2013
  • Laatst online: 18-02-2024
A Lurker schreef op zaterdag 27 maart 2021 @ 08:55:
Ik ben ook aan het kijken voor een airco voor dit seizoen nog.

Het gaat om een single split voor de woonkamer. Plaatsing is eenvoudig; tegen de achtermuur aan, en buitenunit op de grond aan diezelfde muur. Twee offertes gekregen voor 3.5kw en en allebei rond de 2250 euro. Heb de airco's opgezocht en dan zie je dat je ze voor 600-700 euro kunt kopen.

Ik vind de totaalprijs wel erg hoog, zeker gezien er 0 meerprijs is ivm simpele plaatsing. Hoe is jullie ervaring? Zijn er goede alternatieven? Hoe moeilijk is het, en kan een CV monteur die zegt dat ie dit kan ook zonder problemen?

Ook overweeg ik om omwille van de prijs naar een 2.5kw uit te wijken. Ik vind het niet erg als het een half uurtje langer duurt voordat het koel is, lijkt me namelijk dat enkel het opstarten op vol vermogen gaat; zodra het behaaglijk is zal hij geen vol vermogen nodig hebben.
2250 is inderdaad hoog.
Heb afgelopen weken ook verschillende offertes opgevraagd voor een mitsubishi 2.5kwh en de 5 offertes die ik ontving verschillende van 1600 tot 2400 euro en mijn installatie een stuk ingewikkelder. Dus gewoon meer offertes opvragen.

  • rupsen
  • Registratie: Juli 2008
  • Laatst online: 12-10-2025
MarkV6 schreef op zaterdag 27 maart 2021 @ 15:57:
[...]


Dat zal eens tijd worden, ik vraag me al jaren af waarom we geen propaan of butaan gebruiken. Wellicht heb je het al in huis. De meeste koelkasten en vriezers gebruiken R600 of R290.
Denk alleen niet dat je nu zelf je split systeem zelf inbedrjif mag stellen. Er is een nieuwe diploma voor nodig om met brandbare gassen onder druk te werken.
Het gas kan je al lang kopen onder de naam perslucht, campinggas, soldeerbrander gas of tankstation: LPG
Ook voor in de auto zou dit een betere keuze zijn als Y1234a wat €100 per kilo is. Hier moet men voor kiezen want rondrijden met een paar 100 gram vloeibaar gas is door de EU niet toegestaan. Lobby van Honeywell?
Sinds R32 werken we al met brandbare gassen onder hoge druk. Dit is ook nog lang niet zo gevaarlijk als ammoniak of nog gevaarlijker CO2.

Terwijl ammoniak bijvoorbeeld een van de beste (natuurlijke) koudemiddelen is.
Het aantal kJ/kg van ammoniak is bij een verdampingswarmte van 10 graden celsius 1225 tegenover propaan die maar 363 kJ/kg heeft bij 10 graden. CO2 heeft 197 en Isobutaan 346.

Ammoniak wordt alleen als heel gevaarlijk gezien terwijl bijvoorbeeld CO2 veel gevaarlijker is. Die ruik je immers niet en is bij inademen vrijwel direct fataal.

Bij auto's wordt 8 tot 10% verlies per jaar geaccepteerd wat gewoon absurd is als je er goed over nadenkt.

[ Voor 3% gewijzigd door rupsen op 28-03-2021 03:43 ]


  • Glashelder
  • Registratie: September 2002
  • Niet online

Glashelder

Anti Android

Topicstarter
rupsen schreef op zondag 28 maart 2021 @ 03:42:
[...]

Sinds R32 werken we al met brandbare gassen onder hoge druk. Dit is ook nog lang niet zo gevaarlijk als ammoniak of nog gevaarlijker CO2.

Terwijl ammoniak bijvoorbeeld een van de beste (natuurlijke) koudemiddelen is.
Het aantal kJ/kg van ammoniak is bij een verdampingswarmte van 10 graden celsius 1225 tegenover propaan die maar 363 kJ/kg heeft bij 10 graden. CO2 heeft 197 en Isobutaan 346.

Ammoniak wordt alleen als heel gevaarlijk gezien terwijl bijvoorbeeld CO2 veel gevaarlijker is. Die ruik je immers niet en is bij inademen vrijwel direct fataal.

Bij auto's wordt 8 tot 10% verlies per jaar geaccepteerd wat gewoon absurd is als je er goed over nadenkt.
CO2 is niet zó gevaarlijk hoor. CO, dat is de echte killer. CO bindt aan je rode bloedcellen en laat niet meer los (nooit niet). CO2 doet dat niet.

CO2 kan wel zuurstof verdrijven in een ruimte en dat maakt het wel dodelijk, maar vrijwel direct dodelijk: nee. Dan is ammoniak toch wel erger volgens mij :X Dat brand gelijk je longen weg.

PV 4915wp op oost, 2680 wp op west, 1900 wp op zuid. pvoutput - AUX 8 kW bi bloc


  • wizzopa
  • Registratie: September 2003
  • Laatst online: 19:09
Glashelder schreef op zondag 28 maart 2021 @ 09:37:
[...]

CO2 is niet zó gevaarlijk hoor. CO, dat is de echte killer. CO bindt aan je rode bloedcellen en laat niet meer los (nooit niet). CO2 doet dat niet.

CO2 kan wel zuurstof verdrijven in een ruimte en dat maakt het wel dodelijk, maar vrijwel direct dodelijk: nee. Dan is ammoniak toch wel erger volgens mij :X Dat brand gelijk je longen weg.
Ammoniak installaties zijn uitgerust met detectie, en alarmeren bij lekkage en zorgen er voor dat strategische geplaatste afsluiters sluiten en dat de in het systeem aanwezige ammoniak wordt terug gezogen naar de opslagtank.

Monteurs die aan deze installaties werken hebben altijd een detector bij zich, namelijk je eigen neus. Die ruikt minimale lekkages ver voor dat het detectie systeem dat doet.

PV- 8530Wp..... SWW- Atlantic 200….. WP- Daikin 3,5kW….. Foto’s.....


  • Speedfightserv
  • Registratie: September 2004
  • Laatst online: 27-03 08:42
Afbeeldingslocatie: https://tweakers.net/i/gV98sKNYr1H5wIM-8Fzz_-mdtxA=/x800/filters:strip_icc():strip_exif()/f/image/C4kRz4XzFLIEfC8Q6ASwwJTY.jpg?f=fotoalbum_large

30 x Trina 390wp Op SE en Solis. | MHI 3,5kw


  • vinom
  • Registratie: Augustus 2009
  • Laatst online: 17:30
@ChiMan Ben je nog verder gekomen met je met je 2MXM40M setup en de 0-40 cmpfreq als het op temp is?

  • rable
  • Registratie: Juni 2014
  • Laatst online: 21-03 10:27
Dag Tweakers,

Wij hebben recent een offerte ontvangen voor airconditioning van onze slaapkamers en ik wou jullie meningen ook eens horen. Om condenspompjes en ingewikkelde afvoer van condens te vermijden, kwam de verkoper met een systeem van een enkele binnenunit in de gang die de 3 slaapkamers zou koelen. De buitenunit kan dan gewoon aan de andere kan van de muur hangen en er is geen nood aan lange buizen.

Afbeeldingslocatie: https://tweakers.net/i/1XIiVE0l1lkIlfOeb-xaT31QA6Q=/full-fit-in/4000x4000/filters:no_upscale():fill(white):strip_exif()/f/image/ygl3fCKBJpQlwYplx6yNPXUf.png?f=user_large

Ik ben zelf wel gewonnen voor het systeem maar maak mij een beetje zorgen of dat de kamer met nummer 1 wel genoeg gekoeld zal worden. Volgens de verkoper zou het geen probleem zijn omdat het over een erg kleine kamer gaat (ongeveer 9m2). Ook zitten we met een peuter die overdag dutjes doet en dan kan de deur dus niet zomaar blijven openstaan.

Kostprijs voor dit systeem (Daikin toestellen + installatie): 3100 euro.

Alternatief is om toch in iedere kamer een aparte binnenunit te hangen met condenspomp. Kostprijs van dat systeem: 5800 euro.

Wat denken jullie van de prijzen? En van het systeem met de unit op de gang? Zal dat de kamers voldoende kunnen koelen?

[ Voor 4% gewijzigd door rable op 28-03-2021 12:46 ]


  • FrankHe
  • Registratie: November 2008
  • Laatst online: 27-03 17:52
rable schreef op zondag 28 maart 2021 @ 12:45:
Dag Tweakers,

Wij hebben recent een offerte ontvangen voor airconditioning van onze slaapkamers en ik wou jullie meningen ook eens horen. Om condenspompjes en ingewikkelde afvoer van condens te vermijden, kwam de verkoper met een systeem van een enkele binnenunit in de gang die de 3 slaapkamers zou koelen. De buitenunit kan dan gewoon aan de andere kan van de muur hangen en er is geen nood aan lange buizen.

[Afbeelding]

Ik ben zelf wel gewonnen voor het systeem maar maak mij een beetje zorgen of dat de kamer met nummer 1 wel genoeg gekoeld zal worden. Volgens de verkoper zou het geen probleem zijn omdat het over een erg kleine kamer gaat (ongeveer 9m2). Ook zitten we met een peuter die overdag dutjes doet en dan kan de deur dus niet zomaar blijven openstaan.

Kostprijs voor dit systeem (Daikin toestellen + installatie): 3100 euro.

Alternatief is om toch in iedere kamer een aparte binnenunit te hangen met condenspomp. Kostprijs van dat systeem: 5800 euro.

Wat denken jullie van de prijzen? En van het systeem met de unit op de gang? Zal dat de kamers voldoende kunnen koelen?
Aan welke kant schijnt de zon?

  • rable
  • Registratie: Juni 2014
  • Laatst online: 21-03 10:27
FrankHe schreef op zondag 28 maart 2021 @ 14:50:
[...]

Aan welke kant schijnt de zon?
Kamer 1 en 2 staan recht op het zuiden.

  • JJH82
  • Registratie: Januari 2007
  • Laatst online: 06-03 17:18
Wij zijn thuis ook aan het kijken naar het laten installeren van een airco voor op de slaapkamers op zolder en onze woonkamer. Inmiddels hebben we een offerte ontvangen met deze onderdelen:

Mitsubishi SCM-50 ZS-W buitenunit
Mitsubishi SRK-50 ZS-W binnenunit voor onze woonkamer van 115m3
2x een Mitsubishi SRK-25 ZS-W binnenunit voor de slaapkamers van 45m3 per kamer

Ik weet nog even niet hoe het zit op warme dagen als ik alledrie de units aan heb staan, dan kom ik boven de capaciteit van de buitenunit uit, wat op zich geen probleem hoeft te zijn denk ik als deze overbemeten zijn wat op zolder volgens mij in ieder geval zo is. Klopt dat ook of wordt dit een issue?

Daarnaast vroeg ik me af of hier iemand ervaring heeft met het aan laten tijdens een vakantieperiode. Ik heb in de huiskamer ook een zoutwater aquarium staan die eigenlijk niet veel warmer mag worden als 28 graden. Ik zou dus, ook als ik op vakantie ga, het liefst de airco laten koelen als het in de kamer warmer worden dan ongeveer 27 graden. Kan dat? Of moet ik dan het systeem op een of andere manier aansluiten op mijn apple home omgeving?

Had ik nou toch die koeltas maar gekocht.


  • Milas82
  • Registratie: Augustus 2015
  • Nu online
Ik kan het fout hebben maar volgens mij gaat jouw airco in defrost. Ik heb 3x een mhi en als het lampje gaat knipperen is dat bij mij defrost. Als het op temperatuur is valt de airco zo goed als stil en gaat de klep omhoog. De buitenunit gaat uit en maakt geen geluid.
koelkast schreef op donderdag 25 maart 2021 @ 14:43:
Sinds een paar weken een MHI srk 35 zs-w in gebruik in onze woonkamer/keuken, die goed bevalt. Totale inhoud is ongeveer 110 m3, hoekwoning met redelijke isolatie.
Nu gaat het ding niet lager dan 0,9 kW koelvermogen, en dat zie ik ook in het stroomverbruik terug van 200 W. Als de boel eenmaal op temperatuur is, gaat hij (dus) pendelen. Binnenunit stopt dan regelmatig (lampje gaat knipperen), en in de buitenunit hoor ik een lage brom die steeds hoger klinkt. Wordt er dan (weer) druk opgebouwd voor de volgende verwarmings'sessie'?

Raampjes een beetje open zorgt voor een beter klimaat en helpt voorkomen dat het ding te snel pendelt, maar met de hogere temperaturen van de komende week vrees ik dat je pendelen niet voorkomt:

[Afbeelding]

Volgens mij wel vrij normaal gedrag, maar wil toch even vragen hoe je er nog meer voor kunt zorgen dat 'ie minder snel pendelt? Is er een instelling op de remote controller? Op mijn CV ketel zit er een antipendelstand. MOet ik het setpoint hoger instellen (nu 21 graden, warm genoeg), of de binnenunit harder laten blazen?

  • Glashelder
  • Registratie: September 2002
  • Niet online

Glashelder

Anti Android

Topicstarter
JJH82 schreef op zondag 28 maart 2021 @ 16:09:
Daarnaast vroeg ik me af of hier iemand ervaring heeft met het aan laten tijdens een vakantieperiode. Ik heb in de huiskamer ook een zoutwater aquarium staan die eigenlijk niet veel warmer mag worden als 28 graden. Ik zou dus, ook als ik op vakantie ga, het liefst de airco laten koelen als het in de kamer warmer worden dan ongeveer 27 graden. Kan dat? Of moet ik dan het systeem op een of andere manier aansluiten op mijn apple home omgeving?
Geen probleem. Gewoon de temperatuur op 26/27 graden instellen

Hier draaien twee van de drie systemen 10 van de 12 maanden 24/7. Allemaal prima :). Die op zolder gebruik ik alleen om te koelen.

[ Voor 4% gewijzigd door Glashelder op 28-03-2021 16:38 ]

PV 4915wp op oost, 2680 wp op west, 1900 wp op zuid. pvoutput - AUX 8 kW bi bloc


  • FrankHe
  • Registratie: November 2008
  • Laatst online: 27-03 17:52
rable schreef op zondag 28 maart 2021 @ 15:29:
[...]

Kamer 1 en 2 staan recht op het zuiden.
Hoeveel glasoppervlak heb je op het zuiden en is er zonwering? Is het dak (na)geïsoleerd?

Omdat de deur van kamer 1 vaak dicht zal zijn is het logischer om daar een aparte binnenunit te installeren. Dan zou ik in kamer 2 een tweede unit monteren en met de deuren open zou je kamer 3 wellicht mee kunnen koelen.

In onderstaande tekening een idee om de leidingen langs de plint weg te werken. Zijaanzicht toegevoegd. Heeft als nadeel dat je een dikke plint krijgt maar het voordeel is dat je geen condenswaterpompen nodig hebt aangezien je het condenswater via natuurlijk verval kunt afvoeren.

Afbeeldingslocatie: https://tweakers.net/i/KxIg8WJ0bDiVhZGnwJLORBI8hFU=/full-fit-in/4000x4000/filters:no_upscale():fill(white):strip_exif()/f/image/0cq8JMRQXaEnSJHyOcZ9p6Vl.png?f=user_large

  • NeleDenny
  • Registratie: September 2017
  • Laatst online: 09-03-2022
Goeiemiddag,

Als een complete leek op dit gebied heb ik twee vragen.
Wij zijn offertes aan het opvragen ivm installatie airco voor onze woonkamer +-50m2 en slaapkamer +-12m2.
Nu is er een installateur van Daikin langsgekomen en stelt ons buitenunit 2MXM50M9 (R32 of R410) voor.
Maar hij vertelde erbij dat we hiermee niet tegelijk woonkamer en slaapkamer kunnen/mogen koelen. Ik vind het ergens wel logisch dat we dit niet tegelijk gaan doen, maar zijn hier ook nog andere nadelen aan verbonden?
Zijn hier mensen in deze situatie?
Daarnaast vroeg ik me ook af wat de R32 of R410 wou zeggen want hier heeft hij niets over gezegd bij zijn bezoek.
O ja, de offerte is 4478 euro voor twee perfera modellen.
We hebben nog geen andere installateurs gecontacteerd om te kunnen vergelijken.

Bedankt allemaal!
Nele

  • Theone098
  • Registratie: Februari 2015
  • Laatst online: 27-03 13:06
Waarschijnlijk is de capaciteit van de twee airco’s groter dan 5kw van de buiten unit.
Ik schat 3,5/4,2kw en 2kw perfera modellen.
Dat is meer dan de 5kw.

Waar heb je de offerte opgevraagd als ik vragen mag?

  • HarmoniousVibe
  • Registratie: September 2001
  • Laatst online: 16-03 14:13
NeleDenny schreef op zondag 28 maart 2021 @ 17:50:
Goeiemiddag,

Als een complete leek op dit gebied heb ik twee vragen.
Wij zijn offertes aan het opvragen ivm installatie airco voor onze woonkamer +-50m2 en slaapkamer +-12m2.
Nu is er een installateur van Daikin langsgekomen en stelt ons buitenunit 2MXM50M9 (R32 of R410) voor.
Maar hij vertelde erbij dat we hiermee niet tegelijk woonkamer en slaapkamer kunnen/mogen koelen. Ik vind het ergens wel logisch dat we dit niet tegelijk gaan doen, maar zijn hier ook nog andere nadelen aan verbonden?
Zijn hier mensen in deze situatie?
Daarnaast vroeg ik me ook af wat de R32 of R410 wou zeggen want hier heeft hij niets over gezegd bij zijn bezoek.
O ja, de offerte is 4478 euro voor twee perfera modellen.
We hebben nog geen andere installateurs gecontacteerd om te kunnen vergelijken.

Bedankt allemaal!
Nele
R32 is een "nieuwer", minder milieubelastend en efficiënter koelmiddel. Het complete plaatje ontbreekt een beetje (zoals welke binnenunits stelde hij voor?), maar het lijkt me echt lariekoek wat hij zei. Waarschijnlijk is de capaciteit van je twee binnenunits opgeteld groter dan de capaciteit van je buitenunit (5kW). Daar dat betekent niet dat je ze niet tegelijkertijd kunt of mag koelen. Ze zullen zeker in koelstand zelden beide op volle toeren draaien gok ik zo. En zelf dan, dan is het niet zo dat de zaak ontploft. De binnenunits zullen dan gewoon gelimiteerd worden door de buitenunit, waardoor het iets langer zal duren dat het koel is.

12 × LG 330Wp (Enphase) | Daikin FTXM-N 3,5+2,0+2,0kW | Panasonic KIT-WC03J3E5 3kW


  • FrankHe
  • Registratie: November 2008
  • Laatst online: 27-03 17:52
NeleDenny schreef op zondag 28 maart 2021 @ 17:50:
Goeiemiddag,

Als een complete leek op dit gebied heb ik twee vragen.
Wij zijn offertes aan het opvragen ivm installatie airco voor onze woonkamer +-50m2 en slaapkamer +-12m2.
Nu is er een installateur van Daikin langsgekomen en stelt ons buitenunit 2MXM50M9 (R32 of R410) voor.
Maar hij vertelde erbij dat we hiermee niet tegelijk woonkamer en slaapkamer kunnen/mogen koelen. Ik vind het ergens wel logisch dat we dit niet tegelijk gaan doen, maar zijn hier ook nog andere nadelen aan verbonden?
Zijn hier mensen in deze situatie?
Daarnaast vroeg ik me ook af wat de R32 of R410 wou zeggen want hier heeft hij niets over gezegd bij zijn bezoek.
O ja, de offerte is 4478 euro voor twee perfera modellen.
We hebben nog geen andere installateurs gecontacteerd om te kunnen vergelijken.

Bedankt allemaal!
Nele
Onzin. Het hele idee van multi-split is juist dat je het vermogen van de buitenunit kunt verdelen over meerdere binnenunits. R32 is volgens mij nu de gangbare koelvloeistof.

Het voordeel van een multi-split systeem is dat de installatie doorgaans minder gaat pendelen omdat het minimale vermogen per unit lager uitvalt. Wanneer de beoogde temperatuur in zicht komt dan regelt de inverteraansturing het vermogen van de compressor terug. Een compressor heeft altijd een bepaald minimaal vermogen, bijvoorbeeld 1,8 kW. Bij twee binnenunits komt dat neer op pakweg 0,9 kW per unit. Bij een enkele unit zal dat (gestelde) minimale vermogen van 1,8 kW ervoor zorgen dat de beoogde temperatuur sneller wordt bereikt waardoor de compressor zal worden uitgeschakeld. De ruimte zal dan een beetje opwarmen waarna de compressor weer wordt ingeschakeld. Dit zorgt voor temperatuurschommelingen en dat heet pendelen.

Wat is het bouwjaar van de woning, hoe staat het met de isolatie, liggen de woonkamer en slaapkamer op het zuiden, is er zonwering?

  • HarmoniousVibe
  • Registratie: September 2001
  • Laatst online: 16-03 14:13
Als je inderdaad doorgaans maar één ruimte tegelijkertijd koelt, dan is het qua pendelen beter om 2 single splits te nemen omdat je dan met een lager minimum afgiftevermogen zit.

12 × LG 330Wp (Enphase) | Daikin FTXM-N 3,5+2,0+2,0kW | Panasonic KIT-WC03J3E5 3kW


  • FrankHe
  • Registratie: November 2008
  • Laatst online: 27-03 17:52
HarmoniousVibe schreef op zondag 28 maart 2021 @ 18:13:
Als je inderdaad doorgaans maar één ruimte tegelijkertijd koelt, dan is het qua pendelen beter om 2 single splits te nemen omdat je dan met een lager minimum afgiftevermogen zit.
En als je meerdere ruimtes tegelijk gaat koelen dan is multi-split vaak juist weer een betere keuze. ;)

  • HarmoniousVibe
  • Registratie: September 2001
  • Laatst online: 16-03 14:13
FrankHe schreef op zondag 28 maart 2021 @ 18:15:
[...]

En als je meerdere ruimtes tegelijk gaat koelen dan is multi-split vaak juist weer een betere keuze. ;)
Ja, maar Nele gaf zelf al aan dat ze dat niet van plan waren.

12 × LG 330Wp (Enphase) | Daikin FTXM-N 3,5+2,0+2,0kW | Panasonic KIT-WC03J3E5 3kW


  • FrankHe
  • Registratie: November 2008
  • Laatst online: 27-03 17:52
HarmoniousVibe schreef op zondag 28 maart 2021 @ 18:16:
[...]

Ja, maar Nele gaf zelf al aan dat ze dat niet van plan waren.
Dat maakte ik er niet als zodanig uit op. Op een hete zomerse dag zou ik de slaapkamer gewoon de hele dag blijven koelen, dan voorkom je namelijk dat de warmte in de muren gaat zitten. Bijvoorbeeld overdag op 25-26 graden houden en dan 's avonds omlaag naar 21-22 graden. Dan verlies je overdag niet te veel energie en is het in de nacht behaaglijk omdat het plafond en de wanden niet al hun warmte naar je toe stralen.

Dat zou mijn persoonlijke keuze zijn.

  • HarmoniousVibe
  • Registratie: September 2001
  • Laatst online: 16-03 14:13
Ja dat is precies hoe ik het ook doe met mijn triple split.

12 × LG 330Wp (Enphase) | Daikin FTXM-N 3,5+2,0+2,0kW | Panasonic KIT-WC03J3E5 3kW


  • FrankHe
  • Registratie: November 2008
  • Laatst online: 27-03 17:52
HarmoniousVibe schreef op zondag 28 maart 2021 @ 18:27:
Ja dat is precies hoe ik het ook doe met mijn triple split.
Er is niets vervelender dan een airconditioning die om pakweg elf uur 's avonds wordt aangezet, vervolgens een uur staat te stampen om een ruimte koel te krijgen en je het vervolgens in de nacht nog steeds warm hebt vanwege de het bombardement aan infraroodstraling van plafond en muren die de hele dag de tijd hebben gehad om op te warmen.

  • Theone098
  • Registratie: Februari 2015
  • Laatst online: 27-03 13:06
Dan laat je de airco toch ‘s nachts aan staan? Of mis ik iets?

  • FrankHe
  • Registratie: November 2008
  • Laatst online: 27-03 17:52
Theone098 schreef op zondag 28 maart 2021 @ 18:39:
Dan laat je de airco toch ‘s nachts aan staan? Of mis ik iets?
De airconditioning koelt in de nacht de lucht maar je wordt nog steeds aangestraald door de constructie, plafond en muren die de nodige warmte bevatten.

Daarom is het wenselijk om een slaapkamer ook overdag te koelen, of in ieder geval in de namiddag en/of vooravond.

[ Voor 15% gewijzigd door FrankHe op 28-03-2021 18:53 ]


  • HarmoniousVibe
  • Registratie: September 2001
  • Laatst online: 16-03 14:13
Als het boven de 25 graden is overdag dan draait hij gewoon 24/7 hier. In ieder geval op de slaapkamer. Beneden in de woonkamer wil ik hem nog wel eens uitzetten, omdat ik daar sowieso veel meer glas en minder baksteen heb, en het sowieso koeler is daar.

12 × LG 330Wp (Enphase) | Daikin FTXM-N 3,5+2,0+2,0kW | Panasonic KIT-WC03J3E5 3kW


  • rupsen
  • Registratie: Juli 2008
  • Laatst online: 12-10-2025
Glashelder schreef op zondag 28 maart 2021 @ 09:37:
[...]

CO2 is niet zó gevaarlijk hoor. CO, dat is de echte killer. CO bindt aan je rode bloedcellen en laat niet meer los (nooit niet). CO2 doet dat niet.

CO2 kan wel zuurstof verdrijven in een ruimte en dat maakt het wel dodelijk, maar vrijwel direct dodelijk: nee. Dan is ammoniak toch wel erger volgens mij :X Dat brand gelijk je longen weg.
Een CO2 koelinstallatie kan al snel honderden kilo's CO2 bevatten.
De concentraties CO2 die vrij kunnen komen als er een koelinstallatie lekt in bijvoorbeeld een technische ruimte is vrijwel direct fataal, niet perse omdat je direct dood bent maar omdat je direct buiten bewustzijn raakt en op de grond valt.
Omdat CO2 zwaarder is dan lucht is de concentratie op grond hoger en ben je dus nog verder van huis.

In deze technische ruimtes hangen dan ook altijd CO melders. Bij een ammoniak lekkage heb je bijna geen melder nodig want dat ruik je direct.

Nog een bijkomend gevaar van CO2 is dat de maximale werkdruk ongeveer 120 bar is

https://www.wijbenga.nl/m...veilig-werken-met-co2.pdf

Op pagina 2 en 3 staat ook iets over hoe het lichaam reageert op zuurstof tekort door CO2 en wat het anders maakt dan zuurstof tekort door bijvoorbeeld een syntetisch koudemiddel

[ Voor 10% gewijzigd door rupsen op 28-03-2021 19:14 ]


  • Glashelder
  • Registratie: September 2002
  • Niet online

Glashelder

Anti Android

Topicstarter
@rupsen dat is waar, maar het gaat hier in dit topic over huisinstallaties en de toepassing van CO2 daar.

Volgens mij valt het dan wel mee? Het gaat dan vaak niet eens om een kilo :p

Er zijn niet veel gassen behalve zuurstof die niet dodelijk zijn als er honderden kilo’s van lekken in een gesloten ruimte :+ Zuurstof in die concentraties is dan weer gevaarlijk om een andere reden..

Interessant stuk :). Toch gaat 20% thuis niet snel lukken met de hoeveelheden in een eventuele thuisinstallatie denk ik. In een commerciële geloof ik het wel :). 1 liter vloeibare CO2 levert blijkbaar ongeveer 500 liter gas op. Een halve kuub. Dat zal de concentratie flink verhogen. Of het snel dodelijk is? Gegeven ook dat een huis niet lichtdicht is :)

[ Voor 40% gewijzigd door Glashelder op 28-03-2021 19:51 ]

PV 4915wp op oost, 2680 wp op west, 1900 wp op zuid. pvoutput - AUX 8 kW bi bloc


  • rable
  • Registratie: Juni 2014
  • Laatst online: 21-03 10:27
FrankHe schreef op zondag 28 maart 2021 @ 17:46:
[...]

Hoeveel glasoppervlak heb je op het zuiden en is er zonwering? Is het dak (na)geïsoleerd?

Omdat de deur van kamer 1 vaak dicht zal zijn is het logischer om daar een aparte binnenunit te installeren. Dan zou ik in kamer 2 een tweede unit monteren en met de deuren open zou je kamer 3 wellicht mee kunnen koelen.

In onderstaande tekening een idee om de leidingen langs de plint weg te werken. Zijaanzicht toegevoegd. Heeft als nadeel dat je een dikke plint krijgt maar het voordeel is dat je geen condenswaterpompen nodig hebt aangezien je het condenswater via natuurlijk verval kunt afvoeren.
Dank je om mee te denken! Het plan met verschillende binnenunits is om de leidingen door het plafond te laten gaan en langs de zolder naar buiten te gaan. Zo hangen ze niet in het zicht en moet er door minder muren geboord worden (plafonds zijn van hout dus eenvoudig door te boren). De afvoer die jij tekent gaat moeilijk omdat er boven de trap bv. geen plint is en kamer 3 zou door de badkamer moeten gaan, maar daar staan het bad en de douche tegen de buitenmuur (noordkant).

Op zich Heb ik niet zo'n heel groot probleem met de pompjes in het voorstel van de verschillende binnenunits van de verkoper. Ik ben vooral benieuwd naar jullie mening over de enkele unit in de gang omdat dat toch wel een forse kost zou besparen. Meer bepaald:

- Gaat de binnenunit in staat zijn 3 kamers + de gang te koelen? (Model FTXP71M, 7100 watt aan koelvermogen)
- Gaat kamer nummer 1 genoeg gekoeld worden in dit systeem, omdat hij niet mee in de airflow van de binnenunit zit?
- Zouden jullie dit systeem ook aanraden met een peuter die overdag dutjes moet doen en op die momenten de deur dus niet open kan staan? Ik ben er namelijk nog niet helemaal uit wanneer we de airconditioning best zouden aanzetten en wanneer niet (bv. 's avonds enkele uren en 's nachts niet, zodat we toch koel genoeg kunnen slapen?)

EDIT: ook nog antwoorden op je vragen:
De kamers liggen half onder het geïsoleerde dak en hebben dakramen van 1.30x1.40m met rolluiken die we sluiten op warme dagen. In de zomer loopt de temperatuur er op tot 26-27 graden, die zou dus maar enkele graden moeten zakken.

[ Voor 6% gewijzigd door rable op 28-03-2021 20:56 ]


  • PeepPeepPeep
  • Registratie: Juni 2002
  • Laatst online: 18:24

PeepPeepPeep

It’s all or nothing

HarmoniousVibe schreef op zondag 28 maart 2021 @ 18:59:
Als het boven de 25 graden is overdag dan draait hij gewoon 24/7 hier. In ieder geval op de slaapkamer. Beneden in de woonkamer wil ik hem nog wel eens uitzetten, omdat ik daar sowieso veel meer glas en minder baksteen heb, en het sowieso koeler is daar.
Ik denk dat er ook een verschil is of je naast je airco ook zonnepanelen hebt, dan maakt het niet uit of een airco in een slaapkamer waar je verder de hele dag niet komt, staat te draaien. Heb je (nog....) geen zonnepanelen dan zou het toch een andere keuze kunnen worden.

Daikin single split L/L woonkamer + dual split L/L in slaapkamer/zolder - WPB Vaillant 200 ltr - inductieoven -16 x 385Wp Bauer glas 12 x Z, 4 x O/W / Enphase IQ7+ / System Controler 3INT / 2x batterij 5P flex // sinds 2023 gasloos //


  • Pietje555
  • Registratie: September 2013
  • Laatst online: 26-03 14:20
Nee, dat maakt niets uit. Het gaat om de totale hoeveelheid warmte dat je af moet voeren en niet alleen tijdelijk de luchttemperatuur verlagen.
Zoals al door andere gezegd wordt de warmte opgeslagen in de wanden en meubels. Je zal dus `s avonds veel harder moeten koelen om deze warmte af te voeren. Doe je dit niet dan is het binnen een half uur weer net zo warm.
Kortom, wat binnen komt moet er ook uit en dat kan je doen door te zorgen dat het niet te warm wordt door de hele dag te koelen, of keihard te koelen 's avonds met comfortproblemen tot gevolg.
PV panelen zorgen alleen dat de kosten lager zijn omdat je verbruikt terwijl je opwekt.

SMA STP10000TL20 met 10440 Wp 35°Zuid, Intergas Xtreme36 met Remeha Elga Ace 6kW, 3x AUX C-serie


  • FrankHe
  • Registratie: November 2008
  • Laatst online: 27-03 17:52
Wanneer het salderen helemaal is afgeschaft dan doe je er als PV bezitter inderdaad verstandig aan om overdag te koelen en 's avonds het systeem uit te zetten.

  • FrankHe
  • Registratie: November 2008
  • Laatst online: 27-03 17:52
rable schreef op zondag 28 maart 2021 @ 20:45:
[...]

Dank je om mee te denken! Het plan met verschillende binnenunits is om de leidingen door het plafond te laten gaan en langs de zolder naar buiten te gaan. Zo hangen ze niet in het zicht en moet er door minder muren geboord worden (plafonds zijn van hout dus eenvoudig door te boren). De afvoer die jij tekent gaat moeilijk omdat er boven de trap bv. geen plint is en kamer 3 zou door de badkamer moeten gaan, maar daar staan het bad en de douche tegen de buitenmuur (noordkant).

Op zich Heb ik niet zo'n heel groot probleem met de pompjes in het voorstel van de verschillende binnenunits van de verkoper. Ik ben vooral benieuwd naar jullie mening over de enkele unit in de gang omdat dat toch wel een forse kost zou besparen. Meer bepaald:

- Gaat de binnenunit in staat zijn 3 kamers + de gang te koelen? (Model FTXP71M, 7100 watt aan koelvermogen)
- Gaat kamer nummer 1 genoeg gekoeld worden in dit systeem, omdat hij niet mee in de airflow van de binnenunit zit?
- Zouden jullie dit systeem ook aanraden met een peuter die overdag dutjes moet doen en op die momenten de deur dus niet open kan staan? Ik ben er namelijk nog niet helemaal uit wanneer we de airconditioning best zouden aanzetten en wanneer niet (bv. 's avonds enkele uren en 's nachts niet, zodat we toch koel genoeg kunnen slapen?)

EDIT: ook nog antwoorden op je vragen:
De kamers liggen half onder het geïsoleerde dak en hebben dakramen van 1.30x1.40m met rolluiken die we sluiten op warme dagen. In de zomer loopt de temperatuur er op tot 26-27 graden, die zou dus maar enkele graden moeten zakken.
In de tekening heb ik 'zijaanzicht' gezet, om te laten zien hoe de leiding langs de plint kan lopen. Via de zolder / het dak is inderdaad fraaier.

Omdat kamer 3 op het noorden is gericht zal deze naar verwachting een stuk minder warm worden dan kamers 1 en 2. Omdat de deur van kamer 1 geregeld dicht zal zitten is het verstandig om in kamers 1 en 2 een unit te plaatsen.

Een 7 kW unit in het trapgat vind ik geen fraaie oplossing. Maar daar zijn de meningen over verdeeld.

[ Voor 11% gewijzigd door FrankHe op 28-03-2021 22:12 . Reden: Aanvulling ]


  • HarmoniousVibe
  • Registratie: September 2001
  • Laatst online: 16-03 14:13
Qua hoeveelheid elektriciteit dat het kost is er geen éénduidig antwoord op te geven. Aan de ene kant is het zo dat koelte (of warmte) minder snel het huis verlaat bij een klein verschil dan bij een groot verschil.

Aan de andere kant is het zo dat warmtepompen op hun efficiëntst (hogere COP/EER) werken als ze niet op volle kracht hoeven te draaien.

Waar het kantelpunt ligt hangt van vele factoren af. De mate van isolatie speelt een grote rol. Hoe beter de isolatie, hoe sterker de business case om de WP 24/7 aan te houden.

12 × LG 330Wp (Enphase) | Daikin FTXM-N 3,5+2,0+2,0kW | Panasonic KIT-WC03J3E5 3kW


  • FrankHe
  • Registratie: November 2008
  • Laatst online: 27-03 17:52
offtopic:
Wellicht een beetje een zijstap met betrekking tot dit topic.

In de niet al te verre toekomst zullen we de eerste connected / smart grid achtige toepassingen gaan zien. Al dan niet in combinatie met kwartierbeprijzing. In beginsel zal dit worden toegepast voor het gestuurd laden van elektrische auto's. Wanneer er een overschot is aan elektriciteit (in de regio) dan krijgen laders van auto's de opdracht om meer te gaan laden. En bij een tekort zullen ze de opdracht krijgen om minder te laden of het laden tijdelijk geheel te staken. Er zijn zelf concepten in ontwikkeling waarbij de accu van een EV tijdelijk het net kan ondersteunen door elektriciteit terug te leveren. Op die manier kun je theoretisch bijna gratis rijden doordat je auto geld kan verdienen tijdens momenten dat de elektriciteitsprijs hoog is. Bijna gratis omdat zaken als netbeheerkosten natuurlijk wel gewoon blijven bestaan.

Het is voor mijn gevoel niet meer dan logisch dat warmtepompen de volgende apparaten zullen zijn waarvan de vermogensopname via smart grid beïnvloed kan gaan worden. Dat zal wat mij betreft op vrijwillige basis zijn. Je betaalt minder voor de energie wanneer het verbruik van je systemen door het net laat sturen. Dit kan bijvoorbeeld uitstekend door in huis de ruimte(s) waarin je op dat moment niet verblijft automatisch beschikbaar te stellen voor dynamische beïnvloeding. De woonkamer/werkkamer heeft overdag prioriteit maar de slaapkamers kunnen bijvoorbeeld prima meelopen met wat er op dat moment aan hoeveelheid energie beschikbaar is in het net. Zoals gewoonlijk stel je de streeftemperatuur in en als extra geef je aan welk temperatuurverschil je tolereert. Bijvoorbeeld -4 en +4 ten opzichte van de streeftemperatuur. Daarmee geef je het smart grid de kans om de energieopname van je systeem aan te passen naar aanleiding van de beschikbaarheid en de actuele prijs van elektriciteit.

Tot zover een kort blik in de toekomst. We zijn we nog lang niet maar dit is wel waar we naartoe gaan.

  • Speedfightserv
  • Registratie: September 2004
  • Laatst online: 27-03 08:42
rable schreef op zondag 28 maart 2021 @ 12:45:
Dag Tweakers,

Wij hebben recent een offerte ontvangen voor airconditioning van onze slaapkamers en ik wou jullie meningen ook eens horen. Om condenspompjes en ingewikkelde afvoer van condens te vermijden, kwam de verkoper met een systeem van een enkele binnenunit in de gang die de 3 slaapkamers zou koelen. De buitenunit kan dan gewoon aan de andere kan van de muur hangen en er is geen nood aan lange buizen.

[Afbeelding]

Ik ben zelf wel gewonnen voor het systeem maar maak mij een beetje zorgen of dat de kamer met nummer 1 wel genoeg gekoeld zal worden. Volgens de verkoper zou het geen probleem zijn omdat het over een erg kleine kamer gaat (ongeveer 9m2). Ook zitten we met een peuter die overdag dutjes doet en dan kan de deur dus niet zomaar blijven openstaan.

Kostprijs voor dit systeem (Daikin toestellen + installatie): 3100 euro.

Alternatief is om toch in iedere kamer een aparte binnenunit te hangen met condenspomp. Kostprijs van dat systeem: 5800 euro.

Wat denken jullie van de prijzen? En van het systeem met de unit op de gang? Zal dat de kamers voldoende kunnen koelen?
3100 euro voor een single split met minimale leiding lengte? Dat is makkelijk geld verdienen... veel en veel te duur.

Hoeveel kw hangt hij dan op?

30 x Trina 390wp Op SE en Solis. | MHI 3,5kw


  • rupsen
  • Registratie: Juli 2008
  • Laatst online: 12-10-2025
Glashelder schreef op zondag 28 maart 2021 @ 19:42:
@rupsen dat is waar, maar het gaat hier in dit topic over huisinstallaties en de toepassing van CO2 daar.

Volgens mij valt het dan wel mee? Het gaat dan vaak niet eens om een kilo :p

Er zijn niet veel gassen behalve zuurstof die niet dodelijk zijn als er honderden kilo’s van lekken in een gesloten ruimte :+ Zuurstof in die concentraties is dan weer gevaarlijk om een andere reden..

Interessant stuk :). Toch gaat 20% thuis niet snel lukken met de hoeveelheden in een eventuele thuisinstallatie denk ik. In een commerciële geloof ik het wel :). 1 liter vloeibare CO2 levert blijkbaar ongeveer 500 liter gas op. Een halve kuub. Dat zal de concentratie flink verhogen. Of het snel dodelijk is? Gegeven ook dat een huis niet lichtdicht is :)
Nee bij huis installaties zal dat wel meevallen :D . Net zoals het brandbare R32 en propaan of butaan wat in veel koelkasten zit.

Ammoniak zal dan ook niet zo'n probleem zijn in die kleine hoeveelheden

  • Pixal
  • Registratie: Oktober 2001
  • Niet online

Pixal

Mijn poes popelt.

Als mijn airco's de bovenverdieping met ongeveer een constante 300w op 19 C houden (wel wat pendelen), kan ik dan gewoon 300 X SCOP 4.6 doen en dan stellen dat het energieverlies van deze verdieping ongeveer 1.38kwh is? Uiteraard is dat bij een buitentemperatuur van 8 a 10 dus moet ik ook eens bij -10 bekijken.

  • ASW1
  • Registratie: Juni 2013
  • Laatst online: 18:19
Pixal schreef op maandag 29 maart 2021 @ 08:49:
Als mijn airco's de bovenverdieping met ongeveer een constante 300w op 19 C houden (wel wat pendelen), kan ik dan gewoon 300 X SCOP 4.6 doen en dan stellen dat het energieverlies van deze verdieping ongeveer 1.38kwh is? Uiteraard is dat bij een buitentemperatuur van 8 a 10 dus moet ik ook eens bij -10 bekijken.
Nee.
De COP bij 10 graden buitentemperatuur is significant hoger dan bij -10.
De SCOP is een gemiddelde.

  • mwk
  • Registratie: April 2015
  • Laatst online: 20-01 18:22

mwk

HarmoniousVibe schreef op zondag 28 maart 2021 @ 18:13:
Als je inderdaad doorgaans maar één ruimte tegelijkertijd koelt, dan is het qua pendelen beter om 2 single splits te nemen omdat je dan met een lager minimum afgiftevermogen zit.
Dat hangt erg af van merk en type. Zie mijn eerder post waar ik de Daikin multi vergelijk met de single.

Maarten


  • RonJ
  • Registratie: December 2009
  • Nu online
Trebbors schreef op vrijdag 26 maart 2021 @ 17:35:
[...]


https://www.climasense.nl...urverdrijvingsfilter.html

Op welk nummer zoek jij?

Ik zal opnieuw zoeken, kreeg ze niet zo goedkoop als jij gevonden. Het uitkoken zal niet gaan, er zit een scheur in het filter. Heb je ergens de onderbouwing waarom uitkoken en langdurig opwarmen van een dergelijk filter optioneel is?
Excuus, ik had gezocht op het nummer dat je erbij had gezet, de 8040489 en die kwam ook voor op een oude factuur van me. Maar volgens mij is dat dus het carbon filtertje van de Perfera (flexibel, groenig) en niet de US, dat is een ander type en idd een flink stukje duurder (grijskleurig, hard en metaal-achtig). Die heb ik zelf nog nooitt vervangen ook omdat ik m dus steeds regenereer. Ik kan deze wel weer vinden in o.a. italie en de VS voor rond de 70-80 euro incl verzenden op google, maar die had je denk ik zelf ook al gevonden inmiddels?

Het uitkoken en opwarmen is de "standaard" regenaratieprocedure voor koolstoffilters, dat doe ik voor de afzuigkap en de filters in mn luchtreiniger ook, conform het boekje. Of dat eigenlijk wel de bedoeling is voor deze van de US weet ik niet zeker, in de handleiding staat alleen dat je m moet vervangen. Maar voorlopig doe ik dit al een paar jaar en gaat het goed.
Impry schreef op vrijdag 26 maart 2021 @ 20:37:
[...]

Dat is een betere zoekterm inderdaad.
Mbt de uitblaasroosters, in hoeverre werken die anders dan een losse unit? Heeft met name met het formaat uitblaasrooster te maken denk ik dan?
[Afbeelding]
Zoiets heeft een behoorlijke capaciteit zou je zeggen?
En qua retour, stel dat je het dan met kleinere roosters doen (30 cm-formaat) dan heb je er bijv. 2 voor uitblaas en 2 voor retour oid?

[...]

Donkergroene zal dan de kanaalunit zijn met inderdaad buiten tegen de bijkeukenmeur de buitenunit (die kan daar door de tuinindeling mooi uit het zicht staan)

Verwarmen was niet de eerste insteek, er komt vloerverwarming met later een all electric warmtepomp. Maar door de vloer zouden ze dan ook nog geïsoleerd moeten worden?
Sterkte van de vloer beïnvloeden vind ik wel een spannende, hoe achterhaal je zoiets? Heeft natuurlijk ook wel te maken met hoeveel buizen er moeten. Alleen die blauwe lijn zal de boel niet doen instorten/verzakken lijkt mij?
Dit zijn inderdaad aardige roosters, daar kom je dan wel mee uit. Meestal zie je flink kleinere roosters van ˜30-15 cm, zoals ik ook in mijn setups heb gebruikt en dan heb je er wel meer nodig om aan de benodigde doorstroom-oppervlakte te komen en de lucht goed te verdelen. Dat laatste is de voornaamste reden dat ik liever meer kleinere roosters gebruik dan één hele grote is de verdeling van de lucht. Die roosters kunnen niet swingen zoals een airco binnenunit wel kan. Dus je moet zelf zorgen dat je de lucht goed verdeeld. Dan is het vaak makkelijker om meer kleinere uitblaasopeningen te maken dan dat je straks vanuit 1 opening op een heel hoge fansnelheid moet draaien (met alle geluid van dien) om toch de lucht voldoende te verdelen.

Retour kan je met dezelfde roosters doen, of 1-2 grotere. Tel de oppervlaktes bij elkaar op en dan moet het ongeveer hetzelfde zijn. Er zijn ook kant en klare roosters met een aanzuig-stoffilter er al in. De retour werkt in mijn ervaring het beste op heup-hoogte. Niet te laag zodat je stof vanaf de vloer gaat aanzuigen, maar ook niet te hoog zodat je kortsluiting krijgt met de aanvoer.

Als je kanalen instort hoef je ze niet te isoleren, maar verder moet dat wel (overal waar er lucht omheen kan), juist als je gaat koelen ermee, anders krijg je condens/vocht buitenop. Ik zou ze zelf iig onder de vloer door laten lopen ipv erdoorheen, dan heb je alleen een paar ronde of vierkante openingen in je vloer ipv een heel kanaal er dwars doorheen, daar verzwak je m behoorlijk mee en dan moet je hele vloer gelijk een stuk dikker of extra bewapend worden.

Als je 2x een 150-200mm gat hebt is dat veel makkelijker te versterken voor de bouwers. Vervolgens kan je gewoon ronde flexibele geisoleerde slangen gebruiken end-to-end, dat scheelt een hoop isolatiewerk en is ook veel goedkoper dan met vaste buizen te werken.

All-electric.


  • Maandag1987
  • Registratie: September 2012
  • Laatst online: 18:43
Maandag1987 schreef op zondag 21 februari 2021 @ 10:31:
Eind januari zijn bij ons twee airco's gehangen: Buitenunit MXZ-2F53VF icm MSZ-AP42VKG (begange grond) en MSZ-AP25VKG (zolder). Zie ook mijn eerdere post. Ik heb een Shelly plug er tussen gezet om het verbruik te monitoren.

Op de zolder werkt het perfect, de ruimte is snel warm en wordt makkelijk op temperatuur gehouden.
Over het verwarmen op de begane grond zijn we minder tevreden.
We merken dat tijdens koude dagen (temperaturen onder 7 graden). De airco de ruimte onvoldoende warm krijgt. We zetten dan CV aan. Dit vangt dan ook meteen de kou val bij de ramen op. Dit is voor ons geen probleem want we willen niet de airco's gebruiken om volledig van het gas af te gaan. Wel valt het me wat tegen dat de airco de ruimte niet geheel warm krijgt bij temperaturen onder de 7 graden. Vooral het opwarmen van de ruimte in de ochtend lukt niet zonder de CV aan te zetten. Wellicht moeten we nog wat meer testen welke instellingen werken.
Tijdens de sneeuwstorm (zondag t/m woensdag) heeft de airco uitgestaan omdat ik twijfelde of er schade kon ontstaan door de sneeuw. De dagen erna dat het stevig vroor (donderdag t/m zaterdag) heb ik geëxperimenteerd welke instellingen het beste werken (fan ventilatiestand en hoogte temperatuur). Daarvoor stond de fan op automatische stand en de temperatuur op 23 graden. Ik merk dat wanneer de ventilatie op stand 4 (van 5), de temperatuur op 24 graden en de CV de kou val bij de ramen opvangt, de ruimtetemperatuur behaaglijk is. Wel gebruikten we relatief veel gas (10-11m3 (incl SWW) toen de airco uitstond, 5-6m3 met airco aan).

Het grootste probleem wat we tot nu toe hebben ervaren is dat we op sommige momenten op de begange grond (en dus niet op zolder) een irritant bijgeluid horen. Dit is een soort van echoënd, ruizend geluid. Het lijkt wel of dit vanuit de leidingen komt. Vanuit de binnenunit op de begane grond lopen de leidingen door het plafond naar de kamer daarboven. Vanuit hier lopen de leidingen naar buiten naar de buitenunit. De buitenunit hangt op de 1e verdieping tegen de buitenmuur. Ook op deze kamer horen we dit geluid. Als ik het raam open zet en buiten luister, neem ik dit geluid bij de buitenunit niet waar. In eerste instantie dachten we dat dit de defrosts waren, alleen toen het zo koud was merkte we dat dan de lamellen omhoog gaan staan, het verbruik heel laag wordt en dit max 10 minuten duurt. Als de unit uit staat horen we het geluid niet meer. Ook is het geluid niet te horen op de zolder.

Het geluid is dusdanig irritant dat ik er vanochtend wakker van werd op onze slaapkamer, deze ligt naast de kamer waar de leidingen doorheen lopen (deuren staan open).
Heeft iemand een idee wat dit kan veroorzaken? Is dit normaal?

We hebben uiteraard de installateur al gemaild incl. geluidsbestanden. Tot op heden hebben we nog geen reactie ontvangen.
Vorige week is de installateur komen kijken naar het probleem. Het is momenteel erg druk dus eerder lukte niet, mede door onze eigen agenda. Het gat door de buitenmuur waar de leidingen het huis binnenkomen en het gat naar de begane grond waren niet dicht gemaakt met pur. Dit had wel moeten gebeuren en zijn de mannen vergeten te doen. De gedachte is dat hierdoor het geheel van buizen als klankkast (resonantie) wordt gebruikt door de buitenunit en het geluid hier vandaan komt. Beide gaten zijn nu alsnog dicht gemaakt met pur. Tot op heden hebben we de geluiden niet meer gehoord. De geluiden die we nu horen, kunnen we plaatsen en zijn van korte duur.

Qua verbruik gaan we deze maand ten opzichte van vorig jaar maart 100m3 minder gas verbruiken. Hier staat 250kwh verbruik voor de airco's tegenover. Ik heb hierbij niet gecorrigeerd voor de temperatuur buiten. Ook stoken we het nu op de begane grond een stuk warmer dan voorheen en werd de zolder vorig jaar maart niet gebruikt. Ik durf toch te concluderen dat we zuiniger en goedkoper verwarmen dan voorheen.

  • leecher
  • Registratie: December 2004
  • Laatst online: 17:08
Members only:
Alleen zichtbaar voor ingelogde gebruikers. Inloggen

[ Voor 9% gewijzigd door leecher op 29-03-2021 14:34 ]

Ik heb een betaalde 2025 WinRAR licentie (geen leugen)


  • FrankHe
  • Registratie: November 2008
  • Laatst online: 27-03 17:52
Speedfightserv schreef op zondag 28 maart 2021 @ 23:45:
[...]

3100 euro voor een single split met minimale leiding lengte? Dat is makkelijk geld verdienen... veel en veel te duur.

Hoeveel kw hangt hij dan op?
Er werd dacht ik 7 kW genoemd. Ik vind het geen fraaie oplossing, voelt als grote stappen snel thuis.

  • smashit
  • Registratie: Juni 2001
  • Laatst online: 24-03 21:59
Ik volg al een tijdje dit topic en wij zijn nu klaar om ons huis te laten koelen (en verwarmen) m.b.v. een airco.
Graag willen we een airco laten plaatsen in de woonkamer, 1ste verdieping en zolder. Het is goed om te weten dat twee tieners het grootste deel van de dag op zolder aanwezig zijn.

Nu is de eerste airco man op bezoek geweest en komt hij met de aanbeveling om 3 single split units te plaatsen. Echter heb ik mijn twijfels of 3 single split units om mijn garage dak een energie zuinige en geluidsarme oplossing is. Of dat ik toch beter voor een single split (woonkamer) i.c.m. een multi split moet gaan.

Graag advies. En zijn er ook mensen met meer dan twee single split units voor hun woning? Zo ja, wat is jullie ervaring?

Bedankt!

  • olafmol
  • Registratie: April 2002
  • Laatst online: 18:16
smashit schreef op maandag 29 maart 2021 @ 14:46:
Ik volg al een tijdje dit topic en wij zijn nu klaar om ons huis te laten koelen (en verwarmen) m.b.v. een airco.
Graag willen we een airco laten plaatsen in de woonkamer, 1ste verdieping en zolder. Het is goed om te weten dat twee tieners het grootste deel van de dag op zolder aanwezig zijn.

Nu is de eerste airco man op bezoek geweest en komt hij met de aanbeveling om 3 single split units te plaatsen. Echter heb ik mijn twijfels of 3 single split units om mijn garage dak een energie zuinige en geluidsarme oplossing is. Of dat ik toch beter voor een single split (woonkamer) i.c.m. een multi split moet gaan.

Graag advies. En zijn er ook mensen met meer dan twee single split units voor hun woning? Zo ja, wat is jullie ervaring?

Bedankt!
heeft de airco man er ook bijverteld WAAROM hij 3 single-split units de voorkeur geeft boven 1 single/2 dual of 1 multi-split unit?

  • smashit
  • Registratie: Juni 2001
  • Laatst online: 24-03 21:59
olafmol schreef op maandag 29 maart 2021 @ 14:59:
[...]


heeft de airco man er ook bijverteld WAAROM hij 3 single-split units de voorkeur geeft boven 1 single/2 dual of 1 multi-split unit?
Voornamelijk dat je iedere ruimte dan beter afzonderlijk kunt regelen (koelen/verwarmen) aangezien er meerdere verdiepingen leefruimtes zijn minder pendelen en dat het goedkoper is. Volgens mij is dit ook allemaal mogelijk met een single split icm een multi split m.u.v. kosten natuurlijk. Maar mijn grote zorg is voornamelijk de geluidsproductie buiten. Maar daarnaast is er ook onderhoud aan 3 buiten units nodig.

[ Voor 27% gewijzigd door smashit op 29-03-2021 15:04 ]


  • BigEagle
  • Registratie: Oktober 2000
  • Laatst online: 26-03 15:51
smashit schreef op maandag 29 maart 2021 @ 15:01:
[...]

Voornamelijk dat je iedere ruimte dan beter afzonderlijk kunt regelen (koelen/verwarmen) aangezien er meerdere verdiepingen leefruimtes zijn minder pendelen en dat het goedkoper is. Volgens mij is dit ook allemaal mogelijk met een single split icm een multi split m.u.v. kosten natuurlijk. Maar mijn grote zorg is voornamelijk de geluidsproductie buiten. Maar daarnaast is er ook onderhoud aan 3 buiten units nodig.
Apart advies. Ik krijg juist 1 multi-split buitenunit voor 4 inverters: 2 op de 1ste verdieping en andere 2 op zolder.
4 losse buitenunits is een stukje duurder...

Heb je nog meer offertes gehad van andere?

Met een hamer in je hand lijkt alles op een spijker...


  • smashit
  • Registratie: Juni 2001
  • Laatst online: 24-03 21:59
BigEagle schreef op maandag 29 maart 2021 @ 15:12:
[...]
Heb je nog meer offertes gehad van andere?
Nog niet. Morgen komt nummer 2 :) Eens kijken met wat voor advies deze persoon komt.

  • HarmoniousVibe
  • Registratie: September 2001
  • Laatst online: 16-03 14:13
smashit schreef op maandag 29 maart 2021 @ 14:46:
Ik volg al een tijdje dit topic en wij zijn nu klaar om ons huis te laten koelen (en verwarmen) m.b.v. een airco.
Graag willen we een airco laten plaatsen in de woonkamer, 1ste verdieping en zolder. Het is goed om te weten dat twee tieners het grootste deel van de dag op zolder aanwezig zijn.

Nu is de eerste airco man op bezoek geweest en komt hij met de aanbeveling om 3 single split units te plaatsen. Echter heb ik mijn twijfels of 3 single split units om mijn garage dak een energie zuinige en geluidsarme oplossing is. Of dat ik toch beter voor een single split (woonkamer) i.c.m. een multi split moet gaan.

Graag advies. En zijn er ook mensen met meer dan twee single split units voor hun woning? Zo ja, wat is jullie ervaring?

Bedankt!
Het is waar dat als je 3 single splits hebt, je ze onafhankelijker van elkaar kunt bedienen. Wat ik hiermee bedoel is dat als je een multisplit hebt, je zult moeten kiezen tussen koel/ventilatiemodus OF verwarmingsmodus. Je kunt niet de ene in koelmodus draaien en de andere binnenunit op dezelfde multisplit in verwarmingsmodus. Maar goed, hoe vaak komt dit nu voor?

Aangezien je aangeeft dat de tieners het grootste gedeelte van de dag op zolder zitten, en jullie naar ik aanneem op de begane grond, zou ik toch sneller geneigd zijn naar een multisplit. Dan kan een te kleine energievraag in de ene ruimte juist doorstromen naar één van de andere binnenunits. Hierdoor wordt het pendelgedrag juist minder.

Bij mag lag het omslagpunt qua aanschafkosten ook bij méér dan 2 binnenunits. Bij een duosplit was het nog goedkoper om 2 single splits te nemen. Vanaf een 3 binnenunits was het goedkoper om een multisplit te doen. Maar als je sowieso geen 3-split kunt of wilt, dan zouden 3 single splits inderdaad goedkoper kunnen zijn in de aanschaf.

12 × LG 330Wp (Enphase) | Daikin FTXM-N 3,5+2,0+2,0kW | Panasonic KIT-WC03J3E5 3kW


  • Speedfightserv
  • Registratie: September 2004
  • Laatst online: 27-03 08:42
FrankHe schreef op maandag 29 maart 2021 @ 11:59:
[...]

Er werd dacht ik 7 kW genoemd. Ik vind het geen fraaie oplossing, voelt als grote stappen snel thuis.
Veel en veel te zwaar. 2,5 Kw is voldoende, max 3,5.

Zoek maar een andere installateur :)

30 x Trina 390wp Op SE en Solis. | MHI 3,5kw


  • Pixal
  • Registratie: Oktober 2001
  • Niet online

Pixal

Mijn poes popelt.

Ik ben nu een paar dagen aan het monitoren en heb besloten het pendelen wat af te remmen met HA. :/

Gaat inmiddels best goed, we zullen zien of ik erg aan comfort moet inboeten, kan het zo aanpassen. Als pendelgedrag voorkomt gaat er een timer van 30 minuten aftellen, tijdens die timer worden alle airco's tegelijk uitgeschakeld. Wanneer de timer afloopt worden de temperaturen van de kamers bekeken en als er in minimaal 2 kamers behoefte is aan verwarmen worden de airco's daar weer ingeschakeld.

Ik denk gezien te hebben dat mijn airco een minimum heeft van 1.4 kw bij verwarmen maar dat is dus wat veel al, maar het is vandaag ook een randgevalletje met steeds één van de kamers heerlijk op de zon en voorzichtig richting de 18 graden.

Afbeeldingslocatie: https://tweakers.net/i/lSgC42vorrqhocAZzQcD-kRBnh4=/800x/filters:strip_exif()/f/image/4T6VMNuVcRapVihkNwOadNo8.png?f=fotoalbum_large

  • bie100
  • Registratie: September 2016
  • Nu online
mooi klote ik zou ff wachten met de rest betalen ;)

  • PentaClover
  • Registratie: September 2018
  • Laatst online: 09-03 20:49
FrankHe schreef op zondag 28 maart 2021 @ 23:31:
offtopic:
Wellicht een beetje een zijstap met betrekking tot dit topic.

Het is voor mijn gevoel niet meer dan logisch dat warmtepompen de volgende apparaten zullen zijn waarvan de vermogensopname via smart grid beïnvloed kan gaan worden.
Maak eens het sommetje hoeveel energie je in de lucht van een huis kan bufferen en hoeveel energie de lucht afgeeft aan zijn omgeving (meubels/muren/etc) met een lucht/lucht warmtepomp, ik denk dat de uitkomst je zal verrassen en dat gevoel als sneeuw voor de zon zal doen smelten.

3200 Wp OZO+10000 Wp ZZW+3200 Wp WNW - Daikin 4MXM68N + 3 x FTXM20M2V1B + FTXA50A2V1BT - Vaillant AroTherm 125/5 & Boiler VIH RW 300/3 MR


  • FrankHe
  • Registratie: November 2008
  • Laatst online: 27-03 17:52
Speedfightserv schreef op maandag 29 maart 2021 @ 16:35:
[...]

Veel en veel te zwaar. 2,5 Kw is voldoende, max 3,5.

Zoek maar een andere installateur :)
Deze:
@rable
rable schreef op zondag 28 maart 2021 @ 20:45:
[...]

- Gaat de binnenunit in staat zijn 3 kamers + de gang te koelen? (Model FTXP71M, 7100 watt aan koelvermogen)
- Gaat kamer nummer 1 genoeg gekoeld worden in dit systeem, omdat hij niet mee in de airflow van de binnenunit zit?
- Zouden jullie dit systeem ook aanraden met een peuter die overdag dutjes moet doen en op die momenten de deur dus niet open kan staan? Ik ben er namelijk nog niet helemaal uit wanneer we de airconditioning best zouden aanzetten en wanneer niet (bv. 's avonds enkele uren en 's nachts niet, zodat we toch koel genoeg kunnen slapen?)

EDIT: ook nog antwoorden op je vragen:
De kamers liggen half onder het geïsoleerde dak en hebben dakramen van 1.30x1.40m met rolluiken die we sluiten op warme dagen. In de zomer loopt de temperatuur er op tot 26-27 graden, die zou dus maar enkele graden moeten zakken.

  • fmrama
  • Registratie: Mei 2014
  • Laatst online: 17:39
Verzekering aanspreken. Als het bedrijf verzekerd is hiervoor Anders je eigen verzekering. Die gaat het dan wel verhalen op het bedrijf.
Pagina: 1 ... 27 ... 319 Laatste

Dit topic is gesloten.

Let op:
Een vraag over een offerte, plaatsing of uitzoeken van een L/L WP bij jou thuis hoort in een nieuw, eigen topic.
We respecteren elkaars keuzes over energiegebruik en verschillen in comfort.
Laat bij een 'snelle vraag' wel even weten wat je al gevonden hebt, dat voorkomt herhaling van zetten.
Veel relevante informatie en principes zijn ook te vinden in het Het ik-wil-een-warmtepomp FAQ topic , waar je ook een template kan vinden voor een nieuw adviestopic.
Voor MHI vind je veel tips en tweaks in MHI instellingen topic