Via de smart life app.Waah schreef op zondag 13 maart 2022 @ 19:52:
[...]
Hoe heb je het gekoppeld? Dat lijkt me wel uit te maken in de mogelijkheden.
Ben benieuwd hoe dat hier straks is na 2 weken, zou mooi zijn als bij mij de massa ook voldoende opgewarmd wordt. Verbruik valt mij echt mee, ik zit op 8-10 kWh per dag. Maar goed is ook geen kunst met deze milde buitentemperaturen. Heb er nu wel een beetje spijt van dat ik 1,5 jaar geleden een nieuwe cv ketel gekocht hebServee schreef op zondag 13 maart 2022 @ 20:07:
[...]
Kijk dat zijn de betere cijfers, en stuk goedkoper dan twee keer opstoken en niet goed warm krijgen met een hoger verbruik
Ik heb wat geëxperimenteerd met setpoint maar mijn huis is dusdanig goed geïsoleerd en twee weken de massa compleet doorverwamd met 24 uur stoken dat ik het nu niet voor elkaar krijg. Na de zomer ga ik het opnieuw proberen zodra het weer afgekoeld is, of we moeten nog een paar koude nachten krijgen. Setpoint is nu 19 graden met nu al paar nachten de airco uit (koelt amper een graad af snachts ) en het word en blijft 21 graden precies.
Toen heb ik mij nog niet genoeg in airco’s verdiept
Oef daar heb ik geen specifieke ervaring mee...
Enige wat ik kan bedenken vanuit een logica-standpunt:
Je hebt nu een range gekozen (18-23). Ik kan me voorstellen dat elke keer als de temperatuur een graad stijgt of daalt, de tuya app dat als een nieuwe waarde ziet en dus opnieuw de actie uitvoert.
Om dat te verminderen zou je kunnen doen:
>=16: verwarmen 21
=17: uitschakelen
=23: uitschakelen
=<24: koelen 19
Uitschakelen doet die dan dus niet bij 18-22 graden. Maar hij zal toch langs die 17 of 23 moeten om daar te komen....
Maar heb je nu sowieso niet het issue dat die gaat koelen bij 24 graden.... En zodra het dan 23 graden is dat die meteen uitschakelt? Of is de tuya app daar slim genoeg voor?
Maar waarom die range? Waarom niet richten op 1 temperatuur (21) en vervolgens enkel inschakelen bij >16 of <24?
[ Voor 10% gewijzigd door Waah op 13-03-2022 20:53 ]
Met deze buitentemperatuur is het denk ik zonde om 24 uur te stoken, maar dat is per huis verschillend natuurlijk, gewoon proberen wat voor jou het meest comfortabel is. Zolang de airco niet continue gaat pendelen kan het prima. Ik heb ook in juni 2020 een nieuwe Intergas gekocht die word nu amper meer gebruikt maar daarentegen gaat die ook weer langer meehenry84 schreef op zondag 13 maart 2022 @ 20:31:
[...]
Ben benieuwd hoe dat hier straks is na 2 weken, zou mooi zijn als bij mij de massa ook voldoende opgewarmd wordt. Verbruik valt mij echt mee, ik zit op 8-10 kWh per dag. Maar goed is ook geen kunst met deze milde buitentemperaturen. Heb er nu wel een beetje spijt van dat ik 1,5 jaar geleden een nieuwe cv ketel gekocht heb.
Toen heb ik mij nog niet genoeg in airco’s verdiept
Daikin FTXM35R/RXM35R
Een hoop vragen.Verwijderd schreef op zondag 13 maart 2022 @ 11:49:
Hopelijk ben ik niet de eerste met het volgende dilemma:
We gaan onze benedenverdieping verbouwen (100m2) en o.a. een nieuwe keuken (inductie) en vloer nemen. Onze woning uit 1979 is matig/redelijk geïsoleerd: HR++ en spouwmuur EPS parels in 2019. Geen vloerisolatie anders dan gebruikelijk in 1979 en het dak heeft EPS van een cm of 4 dik. Vloer en dak zijn dus niet na geïsoleerd. Woonkamer/keuken is 85m2 en wordt met convectorputten verwarmd. Die verdwijnen sowieso.
Verbruik gas ongeveer 1300m3. In de Corona jaren rond de 1700 ivm meer thuiswerken.
Voorkeursoplossing is overal vloerverwarming en een lucht/water warmtepomp maar dat gaan we om 2 redenen niet doen:
- compleet heropbouwen vloer inclusief vloerverwarming komt op ongeveer 25.000 euro
- door matige dakisolatie durf ik het niet aan om te gokken dat het met 50C aanvoer warm wordt
- de 50C test kan ik nu niet meer doen ivm warmte en omdat het huidige systeem verdwijnt (convectoren) is het ook geen logisch vergelijk, zeker omdat deze convectoren 70C aanvoer nodig hebben.
Er komen daarom Jaga Mini convectoren ipv de convectorputten beneden.
Ik zoek nu een "tussenoplossing"
- lucht/lucht en CV stookt alleen bij wanneer noodzakelijk
- hybride warmtepomp en CV stookt alleen bij wanneer noodzakelijk
Lucht/lucht oplossing
++ mogelijkheid tot koelen in zomer
++ losse oplossing (als CV uitvalt of gas te duur is) geeft onafhankelijkheid
++ gemakkelijker om van gas af te komen (mocht de CV nooit meerb ijspringen)
++ beter leverbaar
-- units in het zicht
-- geluid
-- 4 units nodig (2 beneden en 2 boven)
?? tochtgevoel/comfort beleving tegenover radiatoren/Jaga convectoren
Hybride warmtepomp oplossing
++ integrale oplossing geeft meer eenvoud in bijspringen CV
++ geen extra units in zicht
++ geen risico's op geluid
++ comfort beleving vergelijkbaar met met radiatoren/Jaga convectoren
-- geen onafhankelijk systeem (Als CV stuk is/gas te duur wordt)
Qua kosten zal het niet veel voor elkaar onderdoen qua oplossing. Ik neig naar de hybride warmtepomp oplossing maar dat is ook omdat dit dichter is bij wat ik al ken en de lucht/lucht meer onzekerheden met zich meebrengt zoals tocht, geluid en of de woonkamer (210m3) wel warm genoeg kan worden.
Jullie hebben allen voor de lucht/lucht oplossing gekozen en sommigen zullen vast de vergelijking met een hybride warmtepomp gemaakt hebben denk ik.
Wat is een doorslaggevende reden om voor 1 van deze oplossingen te kiezen?
(mijn vriendin wil liever de vloerverwarming maar ik vind 25000 euro vs ongeveer 10000 voor de Jaga en een warmtepomp wel een heel fors verschil).
Jammer dat je de 50 graden test niet hebt kunnen doen, maar eigenlijk is die onzin, je moet kijken of je het met 40 graden nog warm krijgt, 50 is te hoog om de overstap naar een WP aantrekkelijk te maken op dit moment.
Waarom gaan die convectorputten weg en neem je jaga's?
Er is een heel zelfbouwtopic om convectoren voor weinig geld om te bouwen voor lage temperatuur met ventilatoren, dat is in principe best geschikt.
Wanneer je een nieuwe vloer neemt is dat het moment om over te stappen naar vloerverwarming, waarom dat niet?
Het gasverbruik valt me redelijk mee wanneer het zo slecht geisoleerd is als je zegt, maar daar valt ongetwijfeld veel te verbeteren. Waarom concentreer je je daar niet eerst meer op zodat je de basis goed krijgt?
Ongeacht welke warmtebron je straks gaat gebruiken, isolatie is de 'no-regret' optie die je altijd besparing en comfortverhoging oplevert.
Verwijderd
@ASW1 De convectorputten trekken gigantisch veel stof en rommel aan en zitten op vervelende plekken, zoals onder de openslaande tuindeuren, waardoor er veel troep in gaat. Het ziet er slordig uit dus met de verbouwing een goed moment om te veranderen.
De vloerverwarming komt qua kosten richting de 25000 euro ivm het volledig opnieuw op moeten bouwen van de vloer door gebrek aan isolatie.
Daarom kijk ik naar deze 2 alternatieven (een pelletkachel kan ook) die de woonkamer ook grotendeels warm kunnen krijgen en een fractie van dit bedrag kosten.
Deze zomer wil ik de zoldervloer gaan isoleren, dat gaat in elk geval helpen.
Stom genoeg was er hier nooit een probleem. Comfortabel genoeg en prima gasverbruik. Kunnen het prima betalen. Alleen nu de gasprijs extreem stijgt (heb nog 3 jarig contract tegen 0.88 per m3) wil ik alvast een alternatief implementeren.
De vloerverwarming komt qua kosten richting de 25000 euro ivm het volledig opnieuw op moeten bouwen van de vloer door gebrek aan isolatie.
Daarom kijk ik naar deze 2 alternatieven (een pelletkachel kan ook) die de woonkamer ook grotendeels warm kunnen krijgen en een fractie van dit bedrag kosten.
Deze zomer wil ik de zoldervloer gaan isoleren, dat gaat in elk geval helpen.
Stom genoeg was er hier nooit een probleem. Comfortabel genoeg en prima gasverbruik. Kunnen het prima betalen. Alleen nu de gasprijs extreem stijgt (heb nog 3 jarig contract tegen 0.88 per m3) wil ik alvast een alternatief implementeren.
[ Voor 15% gewijzigd door Verwijderd op 13-03-2022 21:40 ]
Bedankt voor je reactie.Waah schreef op zondag 13 maart 2022 @ 20:52:
[...]
Oef daar heb ik geen specifieke ervaring mee...
Enige wat ik kan bedenken vanuit een logica-standpunt:
Je hebt nu een range gekozen (18-23). Ik kan me voorstellen dat elke keer als de temperatuur een graad stijgt of daalt, de tuya app dat als een nieuwe waarde ziet en dus opnieuw de actie uitvoert.
Om dat te verminderen zou je kunnen doen:
>=16: verwarmen 21
=17: uitschakelen
=23: uitschakelen
=<24: koelen 19
Uitschakelen doet die dan dus niet bij 18-22 graden. Maar hij zal toch langs die 17 of 23 moeten om daar te komen....
Maar heb je nu sowieso niet het issue dat die gaat koelen bij 24 graden.... En zodra het dan 23 graden is dat die meteen uitschakelt? Of is de tuya app daar slim genoeg voor?
Maar waarom die range? Waarom niet richten op 1 temperatuur (21) en vervolgens enkel inschakelen bij >16 of <24?
Het is de airco op de bovenverdieping die bedoeld is voor de winterdag of hete zomerdag. Vandaar de range en hoeft dus geen constante temperatuur te hebben.
Ik zal het eens testen op vaste waarden zoals je aangaf ipv boven of onder een bepaalde temperatuur.
De piep kan niet uit als je met IR bedient. Je kunt evt. wel de luidspreker fysiek onklaar maken, maar daar heb ik verder niet naar gekeken.hengelo30 schreef op zondag 13 maart 2022 @ 19:40:
Sinds deze week een tuya IR sensor aan de airco (mitsubishi airco srk 35 zs-w) gekoppeld.
Koppelen ging goed en nu het instellen.
Heb drie regels gemaakt.
Wanneer het kouder is dan 16° dan verwarmen met 21°.
Wanneer 18 - 23° dan airco uitschakelen.
Wanneer warmer dan 24°, koelen met 19°.
Nu blijft de airco bij bijvoorbeeld 19° steeds een signaal krijgen dat het moet uitschakelen en geeft de airco een piep signaal.
Hebben jullie een alternatief idee voor de regels of een idee hoe ik de piep van de airco kan uitschakelen?
Als je minder pieps wilt zul je je logica moeten aanpassen.
Maar als ik jou was dan zou ik een module kopen/maken die compatible is met https://github.com/absalom-muc/MHI-AC-Ctrl . Dan stuur je hem vervolgens met MQTT aan. Piept niet. Heeft alleen een paar andere dingen niet die met de afstandsbediening wel kunnen (deels technisch wel mogelijk).
Ik heb even een adviesvraag.
Er is n net een installateur over de vloer geweest voor de verwarming van onze werkkamer. Hij adviseerde mij om voor een 2,5kW (Mitsubishi Heavy) te gaan.
Situatie: Kamer is pal zuid gelegen, jaren-30 woning met spouwmuur isolatie (recent) en HR++ warmtewerend glas (vrij groot oppervlak). Totale inhoud is ~37m3 (lxbxh 3,8*3,9*2,5m).
Uit mijn eigen natte-vinger-berekening kwam een benodigd vermogen van 1,5-2 kW voor koelen, verwarmen kon ik zo even niet vinden, maar ga ervan uit dat dit vergelijkbaar is?
Is 2,5kW adequaat of is dit teveel gaat deze in mijn situatie dan veel pendelen?
Bij voorbaat dank!
Er is n net een installateur over de vloer geweest voor de verwarming van onze werkkamer. Hij adviseerde mij om voor een 2,5kW (Mitsubishi Heavy) te gaan.
Situatie: Kamer is pal zuid gelegen, jaren-30 woning met spouwmuur isolatie (recent) en HR++ warmtewerend glas (vrij groot oppervlak). Totale inhoud is ~37m3 (lxbxh 3,8*3,9*2,5m).
Uit mijn eigen natte-vinger-berekening kwam een benodigd vermogen van 1,5-2 kW voor koelen, verwarmen kon ik zo even niet vinden, maar ga ervan uit dat dit vergelijkbaar is?
Is 2,5kW adequaat of is dit teveel gaat deze in mijn situatie dan veel pendelen?
Bij voorbaat dank!
[ Voor 7% gewijzigd door nihilissimis op 14-03-2022 14:28 ]
Ik was eigenlijk wel gecharmeerd van de LG connectivity mogelijkheden maar via dit topic toch bezig met 2 MHI split units. De verkoper raad de wifi module niet aan ivm met weinig functionaliteit. Wat is jullie ervaring om ze aan te sluiten op domotica? (Domoticz). Wel de module nemen of straks kijken voor een goede oplossing via IR?
Daar speelt mee dat ik 6 binnenunits krijg, dus 6x wifi module is ook erg duur. (Eventueel kan ik er ook 2 nemen voor alleen beneden).
Ik wil vooral de samenwerking met CV goed regelen in de winter en verwacht dat ik flink zoet zal zijn met afstellen, vandaar de domotica. Op afstand aan uit zetten is leuk maar niet waar het voor mij om gaat.
Daar speelt mee dat ik 6 binnenunits krijg, dus 6x wifi module is ook erg duur. (Eventueel kan ik er ook 2 nemen voor alleen beneden).
Ik wil vooral de samenwerking met CV goed regelen in de winter en verwacht dat ik flink zoet zal zijn met afstellen, vandaar de domotica. Op afstand aan uit zetten is leuk maar niet waar het voor mij om gaat.
2,5 is prima. 2 kan vast ook maar is vaak hetzelfde model maar begrenst in de maximum warmtr/koeling.nihilissimis schreef op maandag 14 maart 2022 @ 14:27:
Ik heb even een adviesvraag.
Er is n net een installateur over de vloer geweest voor de verwarming van onze werkkamer. Hij adviseerde mij om voor een 2,5kW (Mitsubishi Heavy) te gaan.
Situatie: Kamer is pal zuid gelegen, jaren-30 woning met spouwmuur isolatie (recent) en HR++ warmtewerend glas (vrij groot oppervlak). Totale inhoud is ~37m3 (lxbxh 3,8*3,9*2,5m).
Uit mijn eigen natte-vinger-berekening kwam een benodigd vermogen van 1,5-2 kW voor koelen, verwarmen kon ik zo even niet vinden, maar ga ervan uit dat dit vergelijkbaar is?
Is 2,5kW adequaat of is dit teveel gaat deze in mijn situatie dan veel pendelen?
Bij voorbaat dank!
Voor pendelen is het minimum vooral belangrijk.
De MHI ZS bijvoorbeeld...
De 2.0kWh heeft een minimum van 0.9 en max 4.2
De 2.5kWh heeft een minimum van 0.9 en max 4.4
Etc.
De minimum is gelijk, 0.9kW aan warmte (verbruik is dus veel lager, want stroomverbruik X cop= kW warmte)
Pas vanaf de 5 kWh model gaat het minimum omhoog naar 1.6
@The_Woesh pssst: V&A aangeboden: Mitsubishi Heavy Industries (MHI) Airco WiFi controller (MQTT...
Geen ervaring zelf, maar veel mensen zijn erg tevreden. Ga zelf ook ééntje bestellen zodra ik daadwerkelijk toezegging heb van mijn aircoboer dat mijn unit geleverd kan worden (zou eind maart moeten binnen komen).
Werkt met MQTT welke je kan uitlezen in Domoticz gok ik (ben zelf een HA-man dus hoe en wat exact weet ik niet)
Geen ervaring zelf, maar veel mensen zijn erg tevreden. Ga zelf ook ééntje bestellen zodra ik daadwerkelijk toezegging heb van mijn aircoboer dat mijn unit geleverd kan worden (zou eind maart moeten binnen komen).
Werkt met MQTT welke je kan uitlezen in Domoticz gok ik (ben zelf een HA-man dus hoe en wat exact weet ik niet)
Ik zie hier weinig mensen met kanalen werken. Ik zou evt een kanaalunit op mijn eerste verdieping willen installeren. Ik heb daar 3 kleine ruimtes, en die zijn al via een 10cm buis voorzien van luchtaanvoer.
Nu zag ik hier een voorbeeld van iemand die ong. hetzelfde deed:
lemming_nl in "Lucht/lucht warmtepomp om mee te verwarmen en te koelen"
Ik kom echter niet uit hoe ik die kanaalunits nou precies moet aansluiten, ik kan bijv. voor een paar modellen (oa die genoemd in die post) geen goede foto's vinden, laat staan een bouw-/aansluitschema. De vragen zijn als volgt:
1. Waar sluit ik buizen aan? Ik zie steeds enkel een open kant, voor een rooster, maar het gaat me er juist om dat ik de bestaande buizen kan gebruiken. Hoe doe je dat?
2. Warme lucht naar de kamers, OK. Maar moet ik ook een retourbuis leggen? Zoja, hoe sluit ik die dan weer aan, ook op de kanaalunit?
Nu zag ik hier een voorbeeld van iemand die ong. hetzelfde deed:
lemming_nl in "Lucht/lucht warmtepomp om mee te verwarmen en te koelen"
Ik kom echter niet uit hoe ik die kanaalunits nou precies moet aansluiten, ik kan bijv. voor een paar modellen (oa die genoemd in die post) geen goede foto's vinden, laat staan een bouw-/aansluitschema. De vragen zijn als volgt:
1. Waar sluit ik buizen aan? Ik zie steeds enkel een open kant, voor een rooster, maar het gaat me er juist om dat ik de bestaande buizen kan gebruiken. Hoe doe je dat?
2. Warme lucht naar de kamers, OK. Maar moet ik ook een retourbuis leggen? Zoja, hoe sluit ik die dan weer aan, ook op de kanaalunit?
Humanist | Kernpower! | Determinist | Verken uw geest | Politiek dakloos
1. Google even op kanaal unit plenum. Voor 1 kamer kan je direct aansluiten op een rechthoekig rooster, voor ronde geïsoleerde buizen heb je een plenum nodig; en eventueel een multizone plenum die kleppen heeft voor regeling per kamer.Brent schreef op maandag 14 maart 2022 @ 16:05:
1. Waar sluit ik buizen aan? Ik zie steeds enkel een open kant, voor een rooster, maar het gaat me er juist om dat ik de bestaande buizen kan gebruiken. Hoe doe je dat?
2. Warme lucht naar de kamers, OK. Maar moet ik ook een retourbuis leggen? Zoja, hoe sluit ik die dan weer aan, ook op de kanaalunit?
2. Retour kan via deurroosters naar centrale ruimte zoals de gang, of gewoon wat grotere kier onder de deur zoals bij een badkamer afzuigng. Je hebt niet heel veel cm2 nodig voor een enkele ronde buis. 125mm rond is zelfde als 80cm breed x 1.5cm hoge kier onder de deur.
Ik heb net een set Daikins thuis, die heb ik eenvoudig in Home Assistant kunnen hangen.
Domoticz geen ervaring mee, MHI ook niet.
Op het eerste gezicht heb ik alle functies die de Daikin app of de afstandbediening ook heeft, alleen kan ik nu wel makkelijk automatiseren.
Jammer dat het wel via het cloud-account werkt, maar dat zou voor LG ook gelden geloof.
IR zou best kunnen werken, maar is inmiddels wel wat verouderd lijkt me.
Domoticz geen ervaring mee, MHI ook niet.
Op het eerste gezicht heb ik alle functies die de Daikin app of de afstandbediening ook heeft, alleen kan ik nu wel makkelijk automatiseren.
Jammer dat het wel via het cloud-account werkt, maar dat zou voor LG ook gelden geloof.
IR zou best kunnen werken, maar is inmiddels wel wat verouderd lijkt me.
The_Woesh schreef op maandag 14 maart 2022 @ 14:55:
Ik was eigenlijk wel gecharmeerd van de LG connectivity mogelijkheden maar via dit topic toch bezig met 2 MHI split units. De verkoper raad de wifi module niet aan ivm met weinig functionaliteit. Wat is jullie ervaring om ze aan te sluiten op domotica? (Domoticz). Wel de module nemen of straks kijken voor een goede oplossing via IR?
Daar speelt mee dat ik 6 binnenunits krijg, dus 6x wifi module is ook erg duur. (Eventueel kan ik er ook 2 nemen voor alleen beneden).
Ik wil vooral de samenwerking met CV goed regelen in de winter en verwacht dat ik flink zoet zal zijn met afstellen, vandaar de domotica. Op afstand aan uit zetten is leuk maar niet waar het voor mij om gaat.
Klopt kom ik nu ook achter. Ik zag IR controllers een paar jaar geleden in de mi home app. Dat is blijven hangen in mijn hoofd. Ik zie nu inderdaad dat het wat ouderwets is.Henkiejoo schreef op maandag 14 maart 2022 @ 20:58:
IR zou best kunnen werken, maar is inmiddels wel wat verouderd lijkt me.
[...]
Kan je met de originele MHI Wifi modules ook eea automatiseren in bijv. Domoticz?
Iemand een idee?
Iemand een idee?
@loyske : kijk hier even: Mitsubishi Airconwithme koppelen met Domoticz
Wel even opletten dat de Airconwithme (AM-MHI-01) tegenwoordig vervangen is met de Mitsubishi WF-RAC. Of die al ergens mee te koppelen zijn weet ik niet.
Ik woon sinds eind vorig jaar in mijn nieuw huis.
Alles op 1 verdiep, en kamerhoge deuren.
In de woonkamer hebben we een MSZ-LN35VG2W.
Beide slaapkamers hebben een MSZ-AP15VGK.
En de buitenunit is een MXZ-3F54VF3-E1.
Deze staat nu eigenlijk 24/7 op een vaste temperatuur ingesteld sinds vorig jaar November.
Ongeveer om de 2 à 3 weken heb ik de filters eruit gehaald en zuiver gemaakt.
We gebruiken eigenlijk enkel de binnenunit van de woonkamer, want op de slaapkamers zakt de temperatuur maar max enkele graden minder dan de woonkamer. En indien nodig, als we gewoon de deur open zetten, warmt deze op met de rest van het huis.
Het probleem is nu dat sinds deze week we een "elektronische piep" hebben.
Deze komt vanuit de binnen unit in de woonkamer.
Soms is deze piep enkele seconden en stopt dan weer.
Het is ook al een paar keer geweest dat deze minuten lang blijft, en we daarom het toestel gewoon uitgeschakeld hebben. Zodra toestel uit is de piep gedaan.
Gisteren had ik ook even de voorkant open gedaan toen het piepte. En toen stopte het ook direct.
Maar ik vermoed dat het toestel stopt met verwarmen zodra deze merkt dat die open staat.
Ben vandaag eens aan het verwarmen met het toestel van 1 van de slaapkamers. Maar tot nu toe hier nog niets gehoord.
Het gaat niet om een luide piep, maar wel luid genoeg om het te horen als je ook TV aan het kijken bent.
Iemand enig idee?
Iets anders vreemd dat ik ook al enkele keren gehoord heb - en mogelijk totaal ongerelateerd is.
Als we in bed liggen, lijkt het soms alsof iemand er fles water op ons dak leeg gooit.
Ook telkens maar paar seconden dit geluid. (En nee, geen regen op dat moment).
De binnenunit hangt exact boven ons hoofd.
De buitenunit is boven de technische ruimte van ons huis, vogelvlucht 10 meter verder.
Op het dak zelf, boven de slaapkamers zijn enkel doorvoer kabels naar binnenunit. En zonnepanelen.
Alles op 1 verdiep, en kamerhoge deuren.
In de woonkamer hebben we een MSZ-LN35VG2W.
Beide slaapkamers hebben een MSZ-AP15VGK.
En de buitenunit is een MXZ-3F54VF3-E1.
Deze staat nu eigenlijk 24/7 op een vaste temperatuur ingesteld sinds vorig jaar November.
Ongeveer om de 2 à 3 weken heb ik de filters eruit gehaald en zuiver gemaakt.
We gebruiken eigenlijk enkel de binnenunit van de woonkamer, want op de slaapkamers zakt de temperatuur maar max enkele graden minder dan de woonkamer. En indien nodig, als we gewoon de deur open zetten, warmt deze op met de rest van het huis.
Het probleem is nu dat sinds deze week we een "elektronische piep" hebben.
Deze komt vanuit de binnen unit in de woonkamer.
Soms is deze piep enkele seconden en stopt dan weer.
Het is ook al een paar keer geweest dat deze minuten lang blijft, en we daarom het toestel gewoon uitgeschakeld hebben. Zodra toestel uit is de piep gedaan.
Gisteren had ik ook even de voorkant open gedaan toen het piepte. En toen stopte het ook direct.
Maar ik vermoed dat het toestel stopt met verwarmen zodra deze merkt dat die open staat.
Ben vandaag eens aan het verwarmen met het toestel van 1 van de slaapkamers. Maar tot nu toe hier nog niets gehoord.
Het gaat niet om een luide piep, maar wel luid genoeg om het te horen als je ook TV aan het kijken bent.
Iemand enig idee?
Iets anders vreemd dat ik ook al enkele keren gehoord heb - en mogelijk totaal ongerelateerd is.
Als we in bed liggen, lijkt het soms alsof iemand er fles water op ons dak leeg gooit.
Ook telkens maar paar seconden dit geluid. (En nee, geen regen op dat moment).
De binnenunit hangt exact boven ons hoofd.
De buitenunit is boven de technische ruimte van ons huis, vogelvlucht 10 meter verder.
Op het dak zelf, boven de slaapkamers zijn enkel doorvoer kabels naar binnenunit. En zonnepanelen.
Ik heb deze setting gewijzigd in de afstandsbediening die zette de setpoint temperatuur op de afstandsbediening netjes omlaag dus kamer setpoint zou nu goed moeten zijn, zou de app hier ook mee overweg kunnen? Neem aan dat je hiermee de temperatuursensor op de print kalibreert dus dan zou de app dat ook moeten overnemen toch? Heb je dat toevallig uitgevonden? De unit draait nu op minimaal terwijl nog steeds setpoint in de app 20 (normaal 21,5 kamertemperatuur) en voor de wijziging blies deze harder.Lieuwe15 schreef op woensdag 24 november 2021 @ 10:31:
[...]
Het gedrag is heel erg te herleiden aan de daikin indoor temp. Ik snap echt niet waarom die temperatuursensor alleen maar per hele graad kan meten. Daardoor krijg je echt idioot gedrag.
Ik was nav bovenstaande op zoek naar de service manual en deze is bij daikintech.co.uk te verkrijgen en hierin stond een specifiek iets wat wel vaker naar voren is gekomen.
De Offset temperatuur voor heating. Deze is gewoon in te stellen!
[Afbeelding]
@mr_evil08 jij toevallig ervaring hiermee?
Daikin FTXM35R/RXM35R
Het lijkt erop dat de instelling ook effect heeft op de instelling in de app. Vannacht uitgezet en vanmorgen op 21 graden gezet. Blijft nu al 4 uur lang constant op 21 graden huiskamer temperatuur en de app staat ook op 21. Voorheen was 21 graden 22 tot 22,5.Servee schreef op dinsdag 15 maart 2022 @ 19:35:
[...]
Ik heb deze setting gewijzigd in de afstandsbediening die zette de setpoint temperatuur op de afstandsbediening netjes omlaag dus kamer setpoint zou nu goed moeten zijn, zou de app hier ook mee overweg kunnen? Neem aan dat je hiermee de temperatuursensor op de print kalibreert dus dan zou de app dat ook moeten overnemen toch? Heb je dat toevallig uitgevonden? De unit draait nu op minimaal terwijl nog steeds setpoint in de app 20 (normaal 21,5 kamertemperatuur) en voor de wijziging blies deze harder.
@mr_evil08 jij toevallig ervaring hiermee?
Daikin FTXM35R/RXM35R
Nog vergeten te vermelden maar enkele weken geleden kregen mijn FTXM-N units uit 2019 weer een firmware upgrade naar 1_14_58. De lokale API van mijn wificontrollers werkt nog gewoon. FYI.
12 × LG 330Wp (Enphase) | Daikin FTXM-N 3,5+2,0+2,0kW | Panasonic KIT-WC03J3E5 3kW
Dat is mooi. Ik durf het nooit aan om "zomaar" te updaten naar een nieuwe versie. M'n FTXA zit nog op 1_14_33.
Maar de cloud api via HA werkt volgens mij tegenwoordig ook al. Nu nog voor Domoticz (wat ik draai).
Maar de cloud api via HA werkt volgens mij tegenwoordig ook al. Nu nog voor Domoticz (wat ik draai).
Ik test het hier vaak met een unit die ik toch niet op schema of met sensor of wat dan ook inschakel.Lieuwe15 schreef op woensdag 16 maart 2022 @ 10:45:
Dat is mooi. Ik durf het nooit aan om "zomaar" te updaten naar een nieuwe versie. M'n FTXA zit nog op 1_14_33.
Maar de cloud api via HA werkt volgens mij tegenwoordig ook al. Nu nog voor Domoticz (wat ik draai).
12 × LG 330Wp (Enphase) | Daikin FTXM-N 3,5+2,0+2,0kW | Panasonic KIT-WC03J3E5 3kW
Dat zal wat lastiger worden. Ten minste die van mij met ingebouwde Wifi-unit is niet echt te koppelen aan Domoticz. De bestaande scripts werken alleen met de module die je achteraf kan inbouwen.Lieuwe15 schreef op woensdag 16 maart 2022 @ 10:45:
Dat is mooi. Ik durf het nooit aan om "zomaar" te updaten naar een nieuwe versie. M'n FTXA zit nog op 1_14_33.
Maar de cloud api via HA werkt volgens mij tegenwoordig ook al. Nu nog voor Domoticz (wat ik draai).
Ik wil dus zelf maar eens weg van Domoticz en naar HA, ook aangezien Domoticz nog steeds werkt en uitziet alsof het in 2006 gemaakt is, met alle respect voor de makers.
9800X3D - RX 6900XT - Volvo S40 T5 '10 - Kever '74
Ik woon in Groningen en we hadden een scheurtje in een binnenmuur waarvoor we een schadevergoeding hebben gekregen. Nu kunnen we ook gebruik maken van 4000 euro om ons huis te verduurzamen en gelukkig vallen split airco's hier ook onder. Dus ik ben even in dit topic gedoken en volgende week wordt er een MHI srk35zsx-w bij ons geïnstalleerd. Ik heb al een Shelly en een werkschakelaar in huis zodat ik van het weekend alvast de elektra voorziening kan installeren (bedankt voor de tips hier). In de unit komt een diy wifi module zodat ik mooi de kamertemperatuur van de thermostaat (via een OTGW) naar de airco kan sturen.
Nu heb ik nog een vraagje wat je COP betreft. In de documentatie heb ik de volgende tabel gevonden:
:fill(white):strip_exif()/f/image/9nOvsbITScPlryhgxB9xWadF.png?f=user_large)
Zijn dit de vermogens die de unit kan leveren terwijl deze 900 watt verbruikt? En zo ja, klopt dan de onderstaande tabel waar de COP het vermogen/0,9 is:
Nu heb ik nog een vraagje wat je COP betreft. In de documentatie heb ik de volgende tabel gevonden:
:fill(white):strip_exif()/f/image/9nOvsbITScPlryhgxB9xWadF.png?f=user_large)
Zijn dit de vermogens die de unit kan leveren terwijl deze 900 watt verbruikt? En zo ja, klopt dan de onderstaande tabel waar de COP het vermogen/0,9 is:
òÓ - MHI SRK-35-ZSX
Even offtopic, vraag dat even expliciet na bij het SNN dat een lucht-lucht warmtepomp onder deze regeling valt. Een jaar geleden kreeg ik hier nog een negatief antwoord op.
Omdat een "airco" meer een luxe product is en niet wordt gezien als verduurzaming (wat de reinste kolder is)
Omdat een "airco" meer een luxe product is en niet wordt gezien als verduurzaming (wat de reinste kolder is)
Ik ben verder de strijd niet aangegaan, gezien ik de subsidie verder gebruikt heb voor extra zonnepanelen.Hallo meneer,
Ik heb navraag gedaan binnen de organisatie, en helaas moet ik bij mijn standpunt blijven aangaande de lucht/lucht-warmtepompen. Deze zijn niet subsidiabel. Het komt er op neer dat dit airco-(koel)systemen met een warmtepomp technologie zijn, het is dus geen warmtepomp. Airco-(koel)systemen vallen niet onder de regeling, zie hiervoor het besluit Artikel 3. Daarnaast zou u in theorie meer energie kunnen verbruiken dan dat u bespaart. En deze regeling is natuurlijk bedoeld om Noord Nederland te verduurzamen.
U zou dus een andere maatregel moeten laten uitvoeren wil u aanspraak maken op de regeling waardevermeerdering.
Ik heb het gevraagd bij SNN en dit is de reactie die ik heb gekregen:
De rest van het bedrag gaan we besteden aan HR++ glas. We hebben een benedenwoning en zonnepanelen zijn helaas geen optie. We staan op de wachtlijst voor een postcoderoos project die al is opgeleverd.
edit:
Mijn vraag richting de SNN was als volgt:
Dus ik ga er van uit dat het goed komt.Dank voor uw mail. Een gewone airconditioner niet maar Airco Split Unit daarentegen is wel subsidiabel.
De rest van het bedrag gaan we besteden aan HR++ glas. We hebben een benedenwoning en zonnepanelen zijn helaas geen optie. We staan op de wachtlijst voor een postcoderoos project die al is opgeleverd.
edit:
Mijn vraag richting de SNN was als volgt:
Mocht het uiteindelijk niet goed komen dan verdienen we het alsnog vrij snel terug hoop ikHallo,
Is het ook mogelijk om subsidie te krijgen voor het plaatsen van een airco split unit? Of moet het een warmtepomp zijn die in deze lijst staat?
https://www.rvo.nl/sites/...%201%20januari%202022.pdf
Deze zouden we dan gebruiken als verwarming naast onze CV installatie.
Bijvoorbeeld deze installatie: Mitsubishi inverter airco SRK 35 ZS-S 3,5 kW
Met vriendelijke groet,
[ Voor 41% gewijzigd door Hartox op 16-03-2022 13:32 ]
òÓ - MHI SRK-35-ZSX
Waar heb je die handleiding gevonden want wou die andere parameters ook wel weten.Servee schreef op dinsdag 15 maart 2022 @ 19:35:
[...]
Ik heb deze setting gewijzigd in de afstandsbediening die zette de setpoint temperatuur op de afstandsbediening netjes omlaag dus kamer setpoint zou nu goed moeten zijn, zou de app hier ook mee overweg kunnen? Neem aan dat je hiermee de temperatuursensor op de print kalibreert dus dan zou de app dat ook moeten overnemen toch? Heb je dat toevallig uitgevonden? De unit draait nu op minimaal terwijl nog steeds setpoint in de app 20 (normaal 21,5 kamertemperatuur) en voor de wijziging blies deze harder.
@mr_evil08 jij toevallig ervaring hiermee?
Die instelling SU+7+x lijkt inderdaad invloed te hebben ik heb hem -1c gezet op moment.
Heb jij hem nou +1 gegeven of -1 ?
Ik heb de voeler 2 meter buiten de unit hangen omdat de binneunit (voeler) zich zelf ging opwarmen als er hogere warmtevraag was dan zag ik ineens 25 graden in de app... en duurde het opwarmen lang.
Deze periode van het jaar heb ik er sowieso geen last meer van gezien de woning niet meer zo ver afkoelt en de unit sowieso niet zoveel warmte meer geeft.
[ Voor 16% gewijzigd door mr_evil08 op 16-03-2022 12:39 ]
WP | SP, Daikin FTXM35M/RXM35M
Wat is volgens hun dan een "gewone" airconditioner? En wat is volgens hun een Airco Split Unit?Hartox schreef op woensdag 16 maart 2022 @ 11:51:
Ik heb het gevraagd bij SNN en dit is de reactie die ik heb gekregen:
[...]
Dus ik ga er van uit dat het goed komt.
De rest van het bedrag gaan we besteden aan HR++ glas. We hebben een benedenwoning en zonnepanelen zijn helaas geen optie. We staan op de wachtlijst voor een postcoderoos project die al is opgeleverd.
Beide zijn airco's en beide kunnen split units zijn.....beetje raar antwoord
Ik weet 100% zeker dat je op een lucht/lucht warmtepomp geen subsidie kan krijgen via de ISDE. Misschien dat SNN andere regels er op na houdt.
[ Voor 7% gewijzigd door rupsen op 16-03-2022 13:03 ]
@mr_evil08 ik vond de info hierboven, ik ga nog wel even op zoek naar de handleiding.Lieuwe15 schreef op woensdag 24 november 2021 @ 10:31:
[...]
Het gedrag is heel erg te herleiden aan de daikin indoor temp. Ik snap echt niet waarom die temperatuursensor alleen maar per hele graad kan meten. Daardoor krijg je echt idioot gedrag.
Ik was nav bovenstaande op zoek naar de service manual en deze is bij daikintech.co.uk te verkrijgen en hierin stond een specifiek iets wat wel vaker naar voren is gekomen.
De Offset temperatuur voor heating. Deze is gewoon in te stellen!
[Afbeelding]
Ik heb de temperatuur op -1 gezet dus -1 op basis van setpoint temperatuur. Afgelopen tijd als ik na een koude start 21 graden setpoint instelde was het in de ochtend rond de 22.
Gisteren heb ik de settings gewijzigd in de afstandsbediening, die stond op 19,5 en ging toen naar 18,5 maar die gebruik ik veder niet. De app bleef op 20 staan maar ging wel nog zachter draaien.
Vanmorgen toen ik wakker werd was tot mijn verbazing de temperatuur precies 21 graden dus het werkt wel, dit kan ook met Honeywell die temperatuur calibratie en blijkbaar hier dus ook.
Nu naar paar uur warmt ie wel iets door (21,3) maar dat komt door de iets te grote unit en buitentemperatuur maar tot nog toe verder prima.
Ik heb overigens (nog) geen last van te hoge temperatuur rond de unit maar in mijn geval klopte de setpoint gewoon niet, de unit hangt hier vrij met aan beide kanten 4 meter ruimte.
[ Voor 5% gewijzigd door Servee op 16-03-2022 13:15 ]
Daikin FTXM35R/RXM35R
Weet jij of de WF-RAC aan Homey of Home assist te koppelen is toevallig?eggiebert schreef op vrijdag 28 januari 2022 @ 20:01:
Vandaag de nieuwe wifi controller WF-RAC van MHI met Smart M-air app in mijn ZSX50 airco geplaatst en mee gespeeld. Eerste indruk is goed. Tov van mijn eerdere controllers (Airconwithme en dhz controller uit dit forum middels MQTT) vind ik deze een stuk beter werken. De app werkt redelijk soepel en controller is makkelijk in te bouwen en past precies boven de elektronica in de behuizing.
Meerwaarde is eindelijk :
- Instellen in halve graden!
- Instellen van alle richtingen boven/onder en links rechts.
- 3D auto optie is nu aanwezig.
- Energiemeting is nu ook aanwezig.
- Timerfuncties werken.
Enige minpuntje wat ik tot nu toe heb gevonden :
- Eco mode is niet aanwezig, deze blijft wel staan als je deze mode kiest op de normale afstandsbediening.
- Timerfuncties gaan via een server dus geen internet , geen timer start/stop.
Al met al voorlopig tevreden en hele verbetering met eerdere modules.
Ben in het bezit vd MHI SRK 25 en 50ZSX modellen.
Waar gaat dit fout? Ik dacht goedkoper uit te zijn door te verwarmen met een airco.
In juli 2021 heb ik een airco (LG PC12SQ) laten plaatsen. Zie hieronder het verbruik van 2021 volgens de airco:
:strip_exif()/f/image/40fOW9p7pfhqSKX4jQNDwVxQ.jpg?f=fotoalbum_large)
Hier zie je dat vanaf oktober 2021 de airco gebruikt is om te verwarmen. In december 2021 koste dat 110.75kWh.
In het overzicht van de energieleverancier zie je dit verbruik toenemen vanaf oktober, en komt redelijk overeen met wat de airco zelf meet:
:strip_exif()/f/image/KZkQMvWMZCdJH1N6uYmNG2Ba.jpg?f=fotoalbum_large)
Het gasverbruik is enorm afgenomen en wordt alleen gebruikt voor koken, douchen en warm water. Gemiddeld nu zo'n 8m3 per maand, waar dit vorige winter 18m3 per maand was:
:strip_exif()/f/image/eSCR7qW7qpRNRJXin624oCtc.jpg?f=fotoalbum_large)
Even een simpele rekensom:
1m3 gas = €1,44
1kwh stroom = €0,29
18m3 - 8m3 = 10m3 bespaard op gas
10m3 x €1,44 = €14,40 bespaard
110kwh extra energie verbruikt
110kwh x €0,29 = €31,90 extra energie verbruikt
Dus in de maand december heb ik €17,50 meer uitgegeven. Hoe komt dit?
Is stroom relatief duurder geworden dan gas? Is de airco inefficiënt? Kan ik kostentechnisch nu beter met gas verwarmen?
In juli 2021 heb ik een airco (LG PC12SQ) laten plaatsen. Zie hieronder het verbruik van 2021 volgens de airco:
:strip_exif()/f/image/40fOW9p7pfhqSKX4jQNDwVxQ.jpg?f=fotoalbum_large)
Hier zie je dat vanaf oktober 2021 de airco gebruikt is om te verwarmen. In december 2021 koste dat 110.75kWh.
In het overzicht van de energieleverancier zie je dit verbruik toenemen vanaf oktober, en komt redelijk overeen met wat de airco zelf meet:
:strip_exif()/f/image/KZkQMvWMZCdJH1N6uYmNG2Ba.jpg?f=fotoalbum_large)
Het gasverbruik is enorm afgenomen en wordt alleen gebruikt voor koken, douchen en warm water. Gemiddeld nu zo'n 8m3 per maand, waar dit vorige winter 18m3 per maand was:
:strip_exif()/f/image/eSCR7qW7qpRNRJXin624oCtc.jpg?f=fotoalbum_large)
Even een simpele rekensom:
1m3 gas = €1,44
1kwh stroom = €0,29
18m3 - 8m3 = 10m3 bespaard op gas
10m3 x €1,44 = €14,40 bespaard
110kwh extra energie verbruikt
110kwh x €0,29 = €31,90 extra energie verbruikt
Dus in de maand december heb ik €17,50 meer uitgegeven. Hoe komt dit?
Is stroom relatief duurder geworden dan gas? Is de airco inefficiënt? Kan ik kostentechnisch nu beter met gas verwarmen?
@Yvad pas je nachtverlaging toe zo ja hoeveel of stook je constant?
@Tazzios Eigenlijk het zelfde als met de CV; 's nachts uit.
Mijn vraag zou eigenlijk zijn, hoe hield jij je huis warm met 18-8=10 m3 gas in een wintermaand ?
[ Voor 11% gewijzigd door maharens op 16-03-2022 18:38 ]
Als je normaal gemiddeld 18m3 per maand verbruikt dat is al echt ontzettend weinig, dan is de overstap naar een airco niet heel groot dan wel misschien duurder. Bovenstaande rekensom had je beter kunnen maken voordat je de airco aanschafteYvad schreef op woensdag 16 maart 2022 @ 18:22:
Waar gaat dit fout? Ik dacht goedkoper uit te zijn door te verwarmen met een airco.
In juli 2021 heb ik een airco (LG PC12SQ) laten plaatsen. Zie hieronder het verbruik van 2021 volgens de airco:
[Afbeelding]
Hier zie je dat vanaf oktober 2021 de airco gebruikt is om te verwarmen. In december 2021 koste dat 110.75kWh.
In het overzicht van de energieleverancier zie je dit verbruik toenemen vanaf oktober, en komt redelijk overeen met wat de airco zelf meet:
[Afbeelding]
Het gasverbruik is enorm afgenomen en wordt alleen gebruikt voor koken, douchen en warm water. Gemiddeld nu zo'n 8m3 per maand, waar dit vorige winter 18m3 per maand was:
[Afbeelding]
Even een simpele rekensom:
1m3 gas = €1,44
1kwh stroom = €0,29
18m3 - 8m3 = 10m3 bespaard op gas
10m3 x €1,44 = €14,40 bespaard
110kwh extra energie verbruikt
110kwh x €0,29 = €31,90 extra energie verbruikt
Dus in de maand december heb ik €17,50 meer uitgegeven. Hoe komt dit?
Is stroom relatief duurder geworden dan gas? Is de airco inefficiënt? Kan ik kostentechnisch nu beter met gas verwarmen?
Daikin FTXM35R/RXM35R
Aantal m3 inhoud? Isolatie op orde? Aan je gasverbruik te zien woon je of heel klein of je zit elke dag in een mummie pak op de bankYvad schreef op woensdag 16 maart 2022 @ 18:34:
@Tazzios Eigenlijk het zelfde als met de CV; 's nachts uit.
Daikin FTXM35R/RXM35R
En misschien nog wel belangrijker; is je ruimte temperatuur exact gelijk?Servee schreef op woensdag 16 maart 2022 @ 18:42:
[...]
Aantal m3 inhoud? Isolatie op orde? Aan je gasverbruik te zien woon je of heel klein of je zit elke dag in een mummie pak op de bank
9040 Wp | Zendure 15,4 kWh | MHI SCM60/SCM40/SRC25
Ik woon inderdaad op 45m2 dus heel groot is het niet idd 
Woning uit 1930, muren en vloer geïsoleerd, dak niet. Berekening had ik eerder wel gemaakt (uiteraard nu niet meer te vinden). Daarin was de besparing niet groot, maar er was wel een besparing
. Ging er eigenlijk vanuit dat er altijd wel een besparing is.
Ach, hij is in ieder geval aangeschaft zodat ik in de zomer niet met 30 graden binnen zit (plat dak vol op de zon). Dus zeker niet gekocht voor enkel verwarmen haha!
Woning uit 1930, muren en vloer geïsoleerd, dak niet. Berekening had ik eerder wel gemaakt (uiteraard nu niet meer te vinden). Daarin was de besparing niet groot, maar er was wel een besparing
Ach, hij is in ieder geval aangeschaft zodat ik in de zomer niet met 30 graden binnen zit (plat dak vol op de zon). Dus zeker niet gekocht voor enkel verwarmen haha!
Ja dat is een feit, als je twee keer per dag opstookt of varieert in temperatuur dat kost meer stroom dan lekker laten draaien zeker als je steeds een koud huis moet opstoken.GermanPivo schreef op woensdag 16 maart 2022 @ 18:57:
[...]
En misschien nog wel belangrijker; is je ruimte temperatuur exact gelijk?
Daikin FTXM35R/RXM35R
Niet wakker om liggenYvad schreef op woensdag 16 maart 2022 @ 18:57:
Ik woon inderdaad op 45m2 dus heel groot is het niet idd
Woning uit 1930, muren en vloer geïsoleerd, dak niet. Berekening had ik eerder wel gemaakt (uiteraard nu niet meer te vinden). Daarin was de besparing niet groot, maar er was wel een besparing. Ging er eigenlijk vanuit dat er altijd wel een besparing is.
Ach, hij is in ieder geval aangeschaft zodat ik in de zomer niet met 30 graden binnen zit (plat dak vol op de zon). Dus zeker niet gekocht voor enkel verwarmen haha!
Daikin FTXM35R/RXM35R
Setpoint op CV en airco beide 21 graden. De winter zal wel niet exact gelijk zijn geweestGermanPivo schreef op woensdag 16 maart 2022 @ 18:57:
[...]
En misschien nog wel belangrijker; is je ruimte temperatuur exact gelijk?
18 m3 verbruik aan gas in december is onmogelijk.
Heb je een slimme meter of nog zo'n oudje? Heb je hem horizontaal liggen zodat die stilstaat?
Stel je hebt elke maand 18 m3 gas verbruikt dan is dat op jaarbasis 216 m3. Gemiddeld in Nederland is dat 1500 m3 per jaar.
Heb je een slimme meter of nog zo'n oudje? Heb je hem horizontaal liggen zodat die stilstaat?
Stel je hebt elke maand 18 m3 gas verbruikt dan is dat op jaarbasis 216 m3. Gemiddeld in Nederland is dat 1500 m3 per jaar.
Gemiddeld verbruikt een gezin 1.470 m3 aan gas. Ongeveer 80% (1.176 m3) daarvan wordt verbruikt voor de verwarming. 1 m3 gas staat gelijk aan met 9,77 kWh. Wanneer u voor het verwarmen op gas overgaat op elektrisch verwarmen heeft een gemiddeld huishouden 11.489,52 kWh per jaar aan vermogen nodig voor verwarming. Aangezien een airco warmtepomp 4 keer (* meer dan 4 keer) zoveel vermogen oplevert als dat het verbruikt, verbruikt een huishouden 2.872,38 kWh per jaar.
De gasprijs ligt op dit moment op € 0,79 per m3 gas. Stroom kost € 0,22 per kWh. Bij het afnemen van een nieuw energiecontract ligt de gasprijs op dit moment zelfs boven € 1,- per m3 gas.
Kosten verwarmen op gas:
Bij € 0,79 per m3: 1.176 (m3) * € 0,79 = € 929,04
Bij € 1,- per m3: 1.176 (m3) * € 1,00 = € 1.176,00
Kosten verwarmen met een airco:
2.872,38 (kWh) * € 0,22 = € 631,92
In dit rekenvoorbeeld wordt uitgegaan van een gelijke verwarming van het huishouden als met gas. Echter kan met een airco decentraal en binnen tien minuten een ruimte verwarmt worden waardoor je alleen energie verbruikt waar en wanneer het nodig is. D.m.v. tijdschakelaars die standaard in onze airco’s zitten en bediening op afstand via WiFi kan de verwarming weer op de gewenste momenten worden ingeschakeld. Het daadwerkelijke energieverbruik zal daarom in de praktijk nog een stuk lager liggen.
De gasprijs ligt op dit moment op € 0,79 per m3 gas. Stroom kost € 0,22 per kWh. Bij het afnemen van een nieuw energiecontract ligt de gasprijs op dit moment zelfs boven € 1,- per m3 gas.
Kosten verwarmen op gas:
Bij € 0,79 per m3: 1.176 (m3) * € 0,79 = € 929,04
Bij € 1,- per m3: 1.176 (m3) * € 1,00 = € 1.176,00
Kosten verwarmen met een airco:
2.872,38 (kWh) * € 0,22 = € 631,92
In dit rekenvoorbeeld wordt uitgegaan van een gelijke verwarming van het huishouden als met gas. Echter kan met een airco decentraal en binnen tien minuten een ruimte verwarmt worden waardoor je alleen energie verbruikt waar en wanneer het nodig is. D.m.v. tijdschakelaars die standaard in onze airco’s zitten en bediening op afstand via WiFi kan de verwarming weer op de gewenste momenten worden ingeschakeld. Het daadwerkelijke energieverbruik zal daarom in de praktijk nog een stuk lager liggen.
Ik gebruik 300m3 per jaar ongeveer, afgelopen jaar 254m3.Michel1978 schreef op woensdag 16 maart 2022 @ 19:43:
18 m3 verbruik aan gas in december is onmogelijk.
Heb je een slimme meter of nog zo'n oudje? Heb je hem horizontaal liggen zodat die stilstaat?
Stel je hebt elke maand 18 m3 gas verbruikt dan is dat op jaarbasis 216 m3. Gemiddeld in Nederland is dat 1500 m3 per jaar.
In de zomer gemiddeld 5m3 per maand.
Dus 200m3 aan verwarming in de winter. Afgelopen tijd was dat 3 maanden. Dus ik gebruik ~80m3 in een maand.
En dat is bizar weinig. Dus inderdaad. Hoe kan je met 18m3 in een maand je huis verwarmen?
Ik, met mijn 80m3 per winterverwarmende maand, zit in een nieuwbouwhuis met veel glas op zuid.
Yvad geeft aan op 46m2 te wonen. Ik woon op 110m2.
Ik zie wel in dat het mogelijk is nu ik die vierkante meters zie.
Enyaq iV 80 - 5135 Wp
Verwijderd
Wij gaan in de zomer verbouwen en dat moment wil ik aangrijpen om van het gas af te gaan. De woning wordt momenteel verwarmd met convectorputten beneden en radiatoren boven. Vloerverwarming is te duur omdat de bodem compleet opnieuw opgebouwd moet worden. Totaalkosten rond de 25.000 euro incl vloerverwarming. Bovendien zit ik dan nog steeds met een gas-oplossing. Een lucht/water oplossing zou er dan nog bovenop moeten. Alternatief is een hybride warmtepomp maar ook dan moet ik de 25.000 investeren.
Daarom kijk ik naar een lucht/lucht oplossing maar ik betwijfel of dit in ons huis goed gaat komen.
Specs:
- benedenverdieping 18.5C met oppervlak ongeveer 90m2
- bovenverdieping 3 slaapkamers en 1 werkkamer. Alleen licht verwarmen bij -10, verder uit. Ook 90m2.
- werkkamer verwarm ik met een losse elektrische radiator
- zolder wordt niet verwarmd
Gasverbruik 1300m3. Niet door isolatie maar door zuinig stoken.
Huis is uit 1979 en de spouw (EPS parels) en alle ramen (HR++) zijn in 2019 nageïsoleerd. Op de planning staat de zoldervloer isoleren. Open haard wordt vervangen voor een pelletkachel beneden. Ik ga nog onderzoeken of die ook via de schoorsteenpijp een split kan maken, dan zou deze ook de overloop kunnen verwarmen.
Hieronder de plattegrond inclusief aantekeningen.
Voor de woonkamer/keuken is het advies om 2 units te gebruiken en deze aan beide kanten van de woonkamer te plaatsen. Ik heb ze in de tekening blauw gemaakt. We hebben ook een speelkamer. Ik vrees dat daar een 3e unit zal moeten komen om het warm te krijgen. Deze heb ik rood gemaakt.
:strip_exif()/f/image/erqpxSwZWkZOTQl63p9mwPGQ.jpg?f=fotoalbum_medium)
Ik heb gelezen dat het lastig is om meerdere ruimtes te verwarmen met 1 unit (tenzij split) maar ik ben erg benieuwd wat er in de praktijk gebeurt. Het idee is:
:strip_exif()/f/image/QrHxfIyCoj5O426ilT7QnXlo.jpg?f=fotoalbum_medium)
Lucht komt op overloop binnen. Slaapkamer 1,2,3 zouden licht opgewarmd moeten worden zodat de echte kou er af is. Slaapkamer 4 is mijn werkkamer, die kan ik prima los verwarmen indien nodig.
Redenen waarom ik liever niet voor meerdere units boven ga:
- door de plaatsing van de ruiten is een split unit erg lastig zonder enorm lange lucht 'buizen'
- door de plaatsing van de ruiten moeten de airco's vrijwel exact op de plekken waar de bedden staan
- meerdere airco's en lucht buizen is niet bepaald mooi
- kosten: echt fors verwarmen boven hoeft niet
Hebben jullie een idee wat ik ongeveer kan verwachten beneden en boven door het op deze manier aan te pakken?
Daarom kijk ik naar een lucht/lucht oplossing maar ik betwijfel of dit in ons huis goed gaat komen.
Specs:
- benedenverdieping 18.5C met oppervlak ongeveer 90m2
- bovenverdieping 3 slaapkamers en 1 werkkamer. Alleen licht verwarmen bij -10, verder uit. Ook 90m2.
- werkkamer verwarm ik met een losse elektrische radiator
- zolder wordt niet verwarmd
Gasverbruik 1300m3. Niet door isolatie maar door zuinig stoken.
Huis is uit 1979 en de spouw (EPS parels) en alle ramen (HR++) zijn in 2019 nageïsoleerd. Op de planning staat de zoldervloer isoleren. Open haard wordt vervangen voor een pelletkachel beneden. Ik ga nog onderzoeken of die ook via de schoorsteenpijp een split kan maken, dan zou deze ook de overloop kunnen verwarmen.
Hieronder de plattegrond inclusief aantekeningen.
Voor de woonkamer/keuken is het advies om 2 units te gebruiken en deze aan beide kanten van de woonkamer te plaatsen. Ik heb ze in de tekening blauw gemaakt. We hebben ook een speelkamer. Ik vrees dat daar een 3e unit zal moeten komen om het warm te krijgen. Deze heb ik rood gemaakt.
:strip_exif()/f/image/erqpxSwZWkZOTQl63p9mwPGQ.jpg?f=fotoalbum_medium)
Ik heb gelezen dat het lastig is om meerdere ruimtes te verwarmen met 1 unit (tenzij split) maar ik ben erg benieuwd wat er in de praktijk gebeurt. Het idee is:
:strip_exif()/f/image/QrHxfIyCoj5O426ilT7QnXlo.jpg?f=fotoalbum_medium)
Lucht komt op overloop binnen. Slaapkamer 1,2,3 zouden licht opgewarmd moeten worden zodat de echte kou er af is. Slaapkamer 4 is mijn werkkamer, die kan ik prima los verwarmen indien nodig.
Redenen waarom ik liever niet voor meerdere units boven ga:
- door de plaatsing van de ruiten is een split unit erg lastig zonder enorm lange lucht 'buizen'
- door de plaatsing van de ruiten moeten de airco's vrijwel exact op de plekken waar de bedden staan
- meerdere airco's en lucht buizen is niet bepaald mooi
- kosten: echt fors verwarmen boven hoeft niet
Hebben jullie een idee wat ik ongeveer kan verwachten beneden en boven door het op deze manier aan te pakken?
[ Voor 3% gewijzigd door Verwijderd op 16-03-2022 19:56 ]
Vwb beneden prima oplossing lijkt me zo, boven gaat niet werken. De warmte/kou gaat zich ophopen in de hal, zal de kamers amper tot niet bereiken en de airco zal flink gaan pendelen vrees ik. De kou komt vanaf de ramen dus ik denk dat je dan een oncomfortabele situatie komt in de kamers als het kouder word.Verwijderd schreef op woensdag 16 maart 2022 @ 19:55:
Wij gaan in de zomer verbouwen en dat moment wil ik aangrijpen om van het gas af te gaan. De woning wordt momenteel verwarmd met convectorputten beneden en radiatoren boven. Vloerverwarming is te duur omdat de bodem compleet opnieuw opgebouwd moet worden. Totaalkosten rond de 25.000 euro incl vloerverwarming. Bovendien zit ik dan nog steeds met een gas-oplossing. Een lucht/water oplossing zou er dan nog bovenop moeten. Alternatief is een hybride warmtepomp maar ook dan moet ik de 25.000 investeren.
Daarom kijk ik naar een lucht/lucht oplossing maar ik betwijfel of dit in ons huis goed gaat komen.
Specs:
- benedenverdieping 18.5C met oppervlak ongeveer 90m2
- bovenverdieping 3 slaapkamers en 1 werkkamer. Alleen licht verwarmen bij -10, verder uit. Ook 90m2.
- werkkamer verwarm ik met een losse elektrische radiator
- zolder wordt niet verwarmd
Gasverbruik 1300m3. Niet door isolatie maar door zuinig stoken.
Huis is uit 1979 en de spouw (EPS parels) en alle ramen (HR++) zijn in 2019 nageïsoleerd. Op de planning staat de zoldervloer isoleren. Open haard wordt vervangen voor een pelletkachel beneden. Ik ga nog onderzoeken of die ook via de schoorsteenpijp een split kan maken, dan zou deze ook de overloop kunnen verwarmen.
Hieronder de plattegrond inclusief aantekeningen.
Voor de woonkamer/keuken is het advies om 2 units te gebruiken en deze aan beide kanten van de woonkamer te plaatsen. Ik heb ze in de tekening blauw gemaakt. We hebben ook een speelkamer. Ik vrees dat daar een 3e unit zal moeten komen om het warm te krijgen. Deze heb ik rood gemaakt.
[Afbeelding]
Ik heb gelezen dat het lastig is om meerdere ruimtes te verwarmen met 1 unit (tenzij split) maar ik ben erg benieuwd wat er in de praktijk gebeurt. Het idee is:
[Afbeelding]
Lucht komt op overloop binnen. Slaapkamer 1,2,3 zouden licht opgewarmd moeten worden zodat de echte kou er af is. Slaapkamer 4 is mijn werkkamer, die kan ik prima los verwarmen indien nodig.
Redenen waarom ik liever niet voor meerdere units boven ga:
- door de plaatsing van de ruiten is een split unit erg lastig zonder enorm lange lucht 'buizen'
- door de plaatsing van de ruiten moeten de airco's vrijwel exact op de plekken waar de bedden staan
- meerdere airco's en lucht buizen is niet bepaald mooi
- kosten: echt fors verwarmen boven hoeft niet
Hebben jullie een idee wat ik ongeveer kan verwachten beneden en boven door het op deze manier aan te pakken?
Daikin FTXM35R/RXM35R
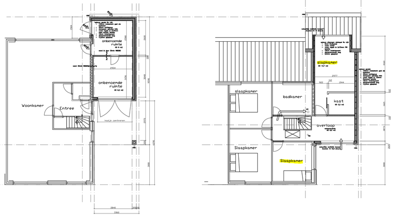
Na het afgelopen jaar al een aantal keer in dit topic rondgestruind te hebben nu toch ook maar even mijn voorleggen. Momenteel heb ik nog een garage naast het huis, maar hier komt een verdieping bovenop. Het liefst wil ik daarna die nieuwe kamer, en de andere kamer aan de zijkant van het huis (de zuidkant) voorzien van een split airco. Volgens mij is voor beide kamers 2,5 kW en een 4,0 kW buitenunit meer dan genoeg. Voor de nieuwe kamer is het de bedoeling ook te verwarmen. Ik zie echter een aantal problemen. Maar eerst de tekeningen:
/f/image/ZZ1Ma0MtTL1IGSlEj1CQNo6w.png?f=fotoalbum_large)
/f/image/yQccrQx795d5XkUC9beQSLV6.png?f=fotoalbum_large)
Probleem 1: De nieuwe kamer blokkeert de zijgevel volledig waardoor het pad tussen de plek waar ik de buitenunit wil plaatsen aan de achtergevel (gele blok op 2e plaatje) en de kamer aan de voorzijde geblokkeerd is. De meest directe routes zijn of via het dak van de nieuw te bouwen kamer, of via het bestaande dak en wellicht deels vliering. De vraag of of dat kan, en of je dat überhaupt moet willen.
Probleem 2: Het plafond is vrij laag (lager dan 2,3m), vooral in de bestaande kamer waar we airco willen is dat een probleem. Nu zijn er ook cassette units voor in het plafond. Boven de kamer is en vliering, dus dat is wellicht nog een optie. De langwerpige varianten leken nog wel aardig. Ik kan me echter niet herinneren dat iemand dit hier aangeschaft had. Volgens mij zijn de belangrijkste nadelen: meer lawaai (altijd condenspomp), duurder en wellicht iets mindere SCOP/SEER. Mis ik hier nog iets en moet je dit eigenlijk niet willen?
Probleem/vraag: in mijn wijk zijn (vrijwel) alle kozijnen en waterafvoeren bosgroen (RAL6009). Het liefst heb ik de airco en kanalen dus ook deze kleur, kan je dit achteraf zelf doen? Ik zag dat er helaas maar een beperkt aantal aanbieders is dat materiaal in deze kleur (sowieso anders dan wit) kan aanleveren.
De ideale situatie is wellicht split unit achter voor de kamer aan de achterzijde en de nieuwe kamer en split unit aan de voorzijde voor kamers aan de voorzijde en woonkamer. Helaas lijkt dat iets te begrotelijk i.c.m. de rest van de verbouwing.
/f/image/ZZ1Ma0MtTL1IGSlEj1CQNo6w.png?f=fotoalbum_large)
/f/image/yQccrQx795d5XkUC9beQSLV6.png?f=fotoalbum_large)
Probleem 1: De nieuwe kamer blokkeert de zijgevel volledig waardoor het pad tussen de plek waar ik de buitenunit wil plaatsen aan de achtergevel (gele blok op 2e plaatje) en de kamer aan de voorzijde geblokkeerd is. De meest directe routes zijn of via het dak van de nieuw te bouwen kamer, of via het bestaande dak en wellicht deels vliering. De vraag of of dat kan, en of je dat überhaupt moet willen.
Probleem 2: Het plafond is vrij laag (lager dan 2,3m), vooral in de bestaande kamer waar we airco willen is dat een probleem. Nu zijn er ook cassette units voor in het plafond. Boven de kamer is en vliering, dus dat is wellicht nog een optie. De langwerpige varianten leken nog wel aardig. Ik kan me echter niet herinneren dat iemand dit hier aangeschaft had. Volgens mij zijn de belangrijkste nadelen: meer lawaai (altijd condenspomp), duurder en wellicht iets mindere SCOP/SEER. Mis ik hier nog iets en moet je dit eigenlijk niet willen?
Probleem/vraag: in mijn wijk zijn (vrijwel) alle kozijnen en waterafvoeren bosgroen (RAL6009). Het liefst heb ik de airco en kanalen dus ook deze kleur, kan je dit achteraf zelf doen? Ik zag dat er helaas maar een beperkt aantal aanbieders is dat materiaal in deze kleur (sowieso anders dan wit) kan aanleveren.
De ideale situatie is wellicht split unit achter voor de kamer aan de achterzijde en de nieuwe kamer en split unit aan de voorzijde voor kamers aan de voorzijde en woonkamer. Helaas lijkt dat iets te begrotelijk i.c.m. de rest van de verbouwing.
Ik heb ook deze unit en het stroom gebruik gaat echt hoger dan 900 watt soms, als de unit op piekvermogen werkt. Ik zie wel eens 1600 - 1800 watt. Bij lagere binnentemperaturen of hogere buitentemperaturen is de efficiency beter en het stroomgebruik dus ook lager. Dus ik weet niet waar je de 900 watt vandaan hebt maar bij piekvermogen is het stroomgebruik meestal hoger.Hartox schreef op woensdag 16 maart 2022 @ 11:23:
Ik woon in Groningen en we hadden een scheurtje in een binnenmuur waarvoor we een schadevergoeding hebben gekregen. Nu kunnen we ook gebruik maken van 4000 euro om ons huis te verduurzamen en gelukkig vallen split airco's hier ook onder. Dus ik ben even in dit topic gedoken en volgende week wordt er een MHI srk35zsx-w bij ons geïnstalleerd. Ik heb al een Shelly en een werkschakelaar in huis zodat ik van het weekend alvast de elektra voorziening kan installeren (bedankt voor de tips hier). In de unit komt een diy wifi module zodat ik mooi de kamertemperatuur van de thermostaat (via een OTGW) naar de airco kan sturen.
Nu heb ik nog een vraagje wat je COP betreft. In de documentatie heb ik de volgende tabel gevonden:
[Afbeelding]
Zijn dit de vermogens die de unit kan leveren terwijl deze 900 watt verbruikt? En zo ja, klopt dan de onderstaande tabel waar de COP het vermogen/0,9 is:
[Afbeelding]
Weteringbrug ZO 9.900Wp — NW 6.270Wp — Totaal 16.170Wp — 5 x MHI L/L (SCM / SRK / ZSX)
Zijn er hier ook mensen die recent nieuwbouw hebben gedaan, of nog bezig zijn met ontwerp. We gaan een nieuwe woning bouwen, dus warmtepomp (waarschijnlijk lucht-water). Het wordt een vrij grote woning (ca. 1300m3 / 380m2). Binnenkort start de architect met BENG berekening, ondanks de nodige maatregelen als goede isolatie, triple glas, WTW, zoninval etc. verwachten we toch een flinke warmtepomp nodig te hebben.
Vanwege ervaringen met moderne woningen en oververhitting willen we graag direct Airco meenemen (dan is TO-juli ook maar geregeld
. Hoewel actief koelen natuurlijk ook met de LW-WP (+vloerkoeling) kan zijn we toch bang dat bij echt warme dagen we onvoldoende kunnen koelen i.v.m. hoger dauwpunt. Ik neem aan dat de meeste mensen in dit topic geen probleem hebben met de installatie van een Airco voor dit doel
Wat ik me nu afvraag is: in hoeverre kun je de verwarmingscapaciteit van je Airco mee laten tellen om aan je BENG norm te komen. Ik weet dat LL-WP's niet subsidiabel zijn, maar ik neem aan dat ze voor de benodigde verwarmings capaciteit gewoon meegerekend kunnen worden (met (S)COP gegevens t.b.v. BENG EP3). Idee is dan een (ietwat) onderbemeten LW-WP aangevuld met een Airco voor de echt koude dagen (natuurlijk wel letten op de COP bij lage temperaturen die bij sommige LL-WP's niet altijd heel goed uitpakt.
Waarom ietwat onderbemeten: minder grote LW-WP nodig (een "enkele buitenunit" zal nog steeds lastig worden met deze omvang). minder risico op pendelen (hoewel daar het kunnen terug-moduleren van de WP een belangrijker aspect is dan de max capaciteit van de WP).
Zijn er hier mensen met ervaring met een dergelijke combinatie en de benodigde BENG berekeningen?
Vanwege ervaringen met moderne woningen en oververhitting willen we graag direct Airco meenemen (dan is TO-juli ook maar geregeld
Wat ik me nu afvraag is: in hoeverre kun je de verwarmingscapaciteit van je Airco mee laten tellen om aan je BENG norm te komen. Ik weet dat LL-WP's niet subsidiabel zijn, maar ik neem aan dat ze voor de benodigde verwarmings capaciteit gewoon meegerekend kunnen worden (met (S)COP gegevens t.b.v. BENG EP3). Idee is dan een (ietwat) onderbemeten LW-WP aangevuld met een Airco voor de echt koude dagen (natuurlijk wel letten op de COP bij lage temperaturen die bij sommige LL-WP's niet altijd heel goed uitpakt.
Waarom ietwat onderbemeten: minder grote LW-WP nodig (een "enkele buitenunit" zal nog steeds lastig worden met deze omvang). minder risico op pendelen (hoewel daar het kunnen terug-moduleren van de WP een belangrijker aspect is dan de max capaciteit van de WP).
Zijn er hier mensen met ervaring met een dergelijke combinatie en de benodigde BENG berekeningen?
Hi allen, wij zitten er ook over na te denken om onze woning te verwarmen met een airco. Het huis heeft momenteel verouderde heteluchtverwarming, dus nergens radiatoren. Op onze benedenverdieping van 55 vierkante meter willen we vloerverwarming met PVC vloeren en tegels. Onze eerste etage en zolder zijn wat kleiner (er is beneden een uitbouw), in totaliteit zo'n 55 vierkante meter. We vragen ons nu af of we met een airco op de eerste etage kunnen aanbrengen om hiermee de eerste etage en (in mindere mate) de zolder te verwarmen, dus zonder vloerverwarming of radiatoren hier. De plattegrond van de eerste etage is hier te zien:
/f/image/o88Mk0Mw2protG69NSOYLY1e.png?f=fotoalbum_large)
De kamers rechtsonder en linksboven worden werkkamers. Die zijn voor ons belangrijk om fatsoenlijk op temperatuur te hebben in de winter. We wilden hoe dan ook graag een airco, dus dit kan een mooie twee vliegen in een klap zijn.
Ik vraag mij echter af of het realistisch is om met één airco de hele eerste etage te verwarmen, in combinatie met de vloerverwarming beneden? Of zouden we dan in iedere kamer een airco moeten plaatsen? Dan is het wel direct een stuk duurder.
Ook vraag ik mij af hoe het zit met lawaai. Maakt een buitenunit veel meer lawaai als je er 4 a 5 binnenunits op aansluit? We willen ook niet dat het de hele dag staat te loeien. Verder moeten de binnenunits ook stil zijn, aangezien dit ook onze werkruimtes zijn.
/f/image/o88Mk0Mw2protG69NSOYLY1e.png?f=fotoalbum_large)
De kamers rechtsonder en linksboven worden werkkamers. Die zijn voor ons belangrijk om fatsoenlijk op temperatuur te hebben in de winter. We wilden hoe dan ook graag een airco, dus dit kan een mooie twee vliegen in een klap zijn.
Ik vraag mij echter af of het realistisch is om met één airco de hele eerste etage te verwarmen, in combinatie met de vloerverwarming beneden? Of zouden we dan in iedere kamer een airco moeten plaatsen? Dan is het wel direct een stuk duurder.
Ook vraag ik mij af hoe het zit met lawaai. Maakt een buitenunit veel meer lawaai als je er 4 a 5 binnenunits op aansluit? We willen ook niet dat het de hele dag staat te loeien. Verder moeten de binnenunits ook stil zijn, aangezien dit ook onze werkruimtes zijn.
Als je even minimaal een aantal pagina’s terugleest vind je jouw antwoord. Deze vraag is denk ik al 150x beantwoord hier op het forum. Indien je alle muren eruit zou breken zou het prima kunnen met 1 3,5kw unitFelixForte schreef op donderdag 17 maart 2022 @ 14:56:
Hi allen, wij zitten er ook over na te denken om onze woning te verwarmen met een airco. Het huis heeft momenteel verouderde heteluchtverwarming, dus nergens radiatoren. Op onze benedenverdieping van 55 vierkante meter willen we vloerverwarming met PVC vloeren en tegels. Onze eerste etage en zolder zijn wat kleiner (er is beneden een uitbouw), in totaliteit zo'n 55 vierkante meter. We vragen ons nu af of we met een airco op de eerste etage kunnen aanbrengen om hiermee de eerste etage en (in mindere mate) de zolder te verwarmen, dus zonder vloerverwarming of radiatoren hier. De plattegrond van de eerste etage is hier te zien:
[Afbeelding]
De kamers rechtsonder en linksboven worden werkkamers. Die zijn voor ons belangrijk om fatsoenlijk op temperatuur te hebben in de winter. We wilden hoe dan ook graag een airco, dus dit kan een mooie twee vliegen in een klap zijn.
Ik vraag mij echter af of het realistisch is om met één airco de hele eerste etage te verwarmen, in combinatie met de vloerverwarming beneden? Of zouden we dan in iedere kamer een airco moeten plaatsen? Dan is het wel direct een stuk duurder.
Ook vraag ik mij af hoe het zit met lawaai. Maakt een buitenunit veel meer lawaai als je er 4 a 5 binnenunits op aansluit? We willen ook niet dat het de hele dag staat te loeien. Verder moeten de binnenunits ook stil zijn, aangezien dit ook onze werkruimtes zijn.
Daikin FTXM35R/RXM35R
Hallo ik heb een vraagje betreffende verschillende airco's van LG en Mitsubishi:
- LG 3.5 KW pc12sq, hier heb ik er nu 2 van hangen, 1 op zolder en 1 op de slaapkamer. Op zolder wordt er dagelijks mee verwarmd en in no time is de ruimte boven de ingestelde temperatuur.(te groot vermogen voor de ruimte en heel goed geïsoleerd) Op zich bevalt de lg prima.
- Mitsubishi 3.5 KW srk zsp
OF
- de LG Prestige serie 3.5 KW
- Mitsubishi ZSX serie 3.5 KW
Nou wil ik er één in de woonkamer plaatsen puur voor het verwarmen, de woonkamer is zo'n 40 m2 en 100 m3, goed geïsoleerd. Er zit een behoorlijk prijsverschil in boven genoemde airco's, nou gaat het plaatsen mij niet veel kosten. Het prijsverschil is zo'n beetje het dubbele voor de ZSX of de Prestige ten op zichtte van de LG of MHI srk zsp
De vraag is eigenlijk waarom zal ik voor de Prestige serie of MHI ZSX serie moeten kiezen behalve dat de COP waarde daarvan een stuk hoger ligt, en in hoeveel merk ik daarvan of scheelt dat in verbruik?
Ik heb zonnepanelen liggen, met hopelijk iets overschot dat moet nog blijken. Is het hoge rendement het enige voordeel of zijn er meer voordelen om voor de SRK, de LG Prestige of ZSX te gaan ten opzichte van de LG pc12q die ik nu heb?
En dan heb ik nog 2 opties waar de airco geplaatst kan worden, wat bevelen jullie aan? Optie 1 of optie 2?
- LG 3.5 KW pc12sq, hier heb ik er nu 2 van hangen, 1 op zolder en 1 op de slaapkamer. Op zolder wordt er dagelijks mee verwarmd en in no time is de ruimte boven de ingestelde temperatuur.(te groot vermogen voor de ruimte en heel goed geïsoleerd) Op zich bevalt de lg prima.
- Mitsubishi 3.5 KW srk zsp
OF
- de LG Prestige serie 3.5 KW
- Mitsubishi ZSX serie 3.5 KW
Nou wil ik er één in de woonkamer plaatsen puur voor het verwarmen, de woonkamer is zo'n 40 m2 en 100 m3, goed geïsoleerd. Er zit een behoorlijk prijsverschil in boven genoemde airco's, nou gaat het plaatsen mij niet veel kosten. Het prijsverschil is zo'n beetje het dubbele voor de ZSX of de Prestige ten op zichtte van de LG of MHI srk zsp
De vraag is eigenlijk waarom zal ik voor de Prestige serie of MHI ZSX serie moeten kiezen behalve dat de COP waarde daarvan een stuk hoger ligt, en in hoeveel merk ik daarvan of scheelt dat in verbruik?
Ik heb zonnepanelen liggen, met hopelijk iets overschot dat moet nog blijken. Is het hoge rendement het enige voordeel of zijn er meer voordelen om voor de SRK, de LG Prestige of ZSX te gaan ten opzichte van de LG pc12q die ik nu heb?
En dan heb ik nog 2 opties waar de airco geplaatst kan worden, wat bevelen jullie aan? Optie 1 of optie 2?
Is het heel veel werk om deze module te plaatsen? Ik heb wel een filmpje gevonden van de oude module, maar dan moet er van alles gedemonteerd worden.
https://www.chillair.nl/mitsubishi-wifi-module-wf-rac.html
https://www.chillair.nl/mitsubishi-wifi-module-wf-rac.html
In princinpe dezelfde handelingen als met de oude module - dat is trouwens echt niet heel ingewikkeld. Maar dacht dat ik ergens gelezen had dat de de nieuwe module in z'n geheel in de ZSX past, maar niet in de ZS. Iemand hier die dat kan bevestigen/ontkennen?maharens schreef op donderdag 17 maart 2022 @ 18:13:
Is het heel veel werk om deze module te plaatsen? Ik heb wel een filmpje gevonden van de oude module, maar dan moet er van alles gedemonteerd worden.
https://www.chillair.nl/mitsubishi-wifi-module-wf-rac.html
9040 Wp | Zendure 15,4 kWh | MHI SCM60/SCM40/SRC25
Die 35 ZSX heeft inderdaad een betere COP, maar kan vooral ook iets verder terug moduleren zodat je minder last hebt van pendelen, en de unit gewoon lekker rustig door kan blijven pruttelen. Ook heeft de ZSX iets meer comfort “waarde” omdat die iets beter regelt en iets stiller is. Als je er veel mee wilt verwarmen dan is die meerprijs het zeker wel waard imho.JFK88 schreef op donderdag 17 maart 2022 @ 16:49:
Hallo ik heb een vraagje betreffende verschillende airco's van LG en Mitsubishi:
- LG 3.5 KW pc12sq, hier heb ik er nu 2 van hangen, 1 op zolder en 1 op de slaapkamer. Op zolder wordt er dagelijks mee verwarmd en in no time is de ruimte boven de ingestelde temperatuur.(te groot vermogen voor de ruimte en heel goed geïsoleerd) Op zich bevalt de lg prima.
- Mitsubishi 3.5 KW srk zsp
OF
- de LG Prestige serie 3.5 KW
- Mitsubishi ZSX serie 3.5 KW
Nou wil ik er één in de woonkamer plaatsen puur voor het verwarmen, de woonkamer is zo'n 40 m2 en 100 m3, goed geïsoleerd. Er zit een behoorlijk prijsverschil in boven genoemde airco's, nou gaat het plaatsen mij niet veel kosten. Het prijsverschil is zo'n beetje het dubbele voor de ZSX of de Prestige ten op zichtte van de LG of MHI srk zsp
De vraag is eigenlijk waarom zal ik voor de Prestige serie of MHI ZSX serie moeten kiezen behalve dat de COP waarde daarvan een stuk hoger ligt, en in hoeveel merk ik daarvan of scheelt dat in verbruik?
Ik heb zonnepanelen liggen, met hopelijk iets overschot dat moet nog blijken. Is het hoge rendement het enige voordeel of zijn er meer voordelen om voor de SRK, de LG Prestige of ZSX te gaan ten opzichte van de LG pc12q die ik nu heb?
En dan heb ik nog 2 opties waar de airco geplaatst kan worden, wat bevelen jullie aan? Optie 1 of optie 2?
[Afbeelding]
Optie 1 lijkt me kwa montage het beste. Mooi midden in de ruimte zodat ie kan uitblazen naar beide kanten, afhankelijk van wat je prettig vind. Bij optie 2 kan het in de zithoek wat koeler aanvoelen op koude dagen als je wat verder van de warmte af zit.
Weteringbrug ZO 9.900Wp — NW 6.270Wp — Totaal 16.170Wp — 5 x MHI L/L (SCM / SRK / ZSX)
Ik zou optie 2 doen.
Bij optie 1 zit hij dicht bij de zithoek en dan wordt de zithoek lastiger warm + dat de airco dan dichtbij hangt en met bijvoorbeeld film kijken deze nadrukkelijker aanwezig is.
Met betrekking tot optie 2 zit deze wat verder weg en kan hij meer warmte de ruimte in krijgen met hetzelfde geluidsniveau op de zithoek.
Wat is de lengte van de lange wand? Is ook wel belangrijk.
Bij optie 1 zit hij dicht bij de zithoek en dan wordt de zithoek lastiger warm + dat de airco dan dichtbij hangt en met bijvoorbeeld film kijken deze nadrukkelijker aanwezig is.
Met betrekking tot optie 2 zit deze wat verder weg en kan hij meer warmte de ruimte in krijgen met hetzelfde geluidsniveau op de zithoek.
Wat is de lengte van de lange wand? Is ook wel belangrijk.
[ Voor 8% gewijzigd door Lieuwe15 op 17-03-2022 19:53 ]
De lange wand is circa 8 meter en de korte 6 meter. De reden dat ik ben gaan twijfelen naar inderdaad die zsx is omdat ik hier vaak iets lees over comfort en pendelen en dat deze dat beter doet. Ik vraag mij alleen af of dat het prijsverschil bijvoorbeeld waard is ten op zichte van de standaard MHI..
@JFK88
Voor die ruimte grootte zal optie 1 of 2 niet superveel uitmaken hoor. En als je vooral continu verwarmt dan zal de warmte toch wel in de hele ruimte zijn en het geluid ook wel laag.
Als je de unit veel gaat gebruiken en het budget hebt voor de ZSX zou ik niet twijfelen. Ik heb hier beide en de ZSX is toch wel iets stiller / efficienter en moduleerd verder. Bij voldoende gebruik verdiend deze meerprijs zichzelf al terug kwa efficiency en zijn het extra comfort en minder geluid de bonus
Voor die ruimte grootte zal optie 1 of 2 niet superveel uitmaken hoor. En als je vooral continu verwarmt dan zal de warmte toch wel in de hele ruimte zijn en het geluid ook wel laag.
Als je de unit veel gaat gebruiken en het budget hebt voor de ZSX zou ik niet twijfelen. Ik heb hier beide en de ZSX is toch wel iets stiller / efficienter en moduleerd verder. Bij voldoende gebruik verdiend deze meerprijs zichzelf al terug kwa efficiency en zijn het extra comfort en minder geluid de bonus
Weteringbrug ZO 9.900Wp — NW 6.270Wp — Totaal 16.170Wp — 5 x MHI L/L (SCM / SRK / ZSX)
18m3 gasverbruik per maand id winter vroeger dat kan gewoonweg niet. Ik heb trouwens dezelfde airco van LG als jou. Ik woon op een app van de jaren 50 en ik heb heel recente cv ketel van vaillant. Daarmee verbruik ik 2 tot 3m3 gas per dag id winter, dwz een buitentemp van 0 tot 5 graden overdag. Mijn ketel brandt dan van 10 tot 22u. Ik verwarm enkel mijn keuken en leefruimte, dus niet de gang of slaapkamers. Met airco verbruik ik 4kwh voor eenzelfde winterdag.Yvad schreef op woensdag 16 maart 2022 @ 18:22:
Waar gaat dit fout? Ik dacht goedkoper uit te zijn door te verwarmen met een airco.
In juli 2021 heb ik een airco (LG PC12SQ) laten plaatsen. Zie hieronder het verbruik van 2021 volgens de airco:
[Afbeelding]
Hier zie je dat vanaf oktober 2021 de airco gebruikt is om te verwarmen. In december 2021 koste dat 110.75kWh.
In het overzicht van de energieleverancier zie je dit verbruik toenemen vanaf oktober, en komt redelijk overeen met wat de airco zelf meet:
[Afbeelding]
Het gasverbruik is enorm afgenomen en wordt alleen gebruikt voor koken, douchen en warm water. Gemiddeld nu zo'n 8m3 per maand, waar dit vorige winter 18m3 per maand was:
[Afbeelding]
Even een simpele rekensom:
1m3 gas = €1,44
1kwh stroom = €0,29
18m3 - 8m3 = 10m3 bespaard op gas
10m3 x €1,44 = €14,40 bespaard
110kwh extra energie verbruikt
110kwh x €0,29 = €31,90 extra energie verbruikt
Dus in de maand december heb ik €17,50 meer uitgegeven. Hoe komt dit?
Is stroom relatief duurder geworden dan gas? Is de airco inefficiënt? Kan ik kostentechnisch nu beter met gas verwarmen?
In mijn huidig vast tarief contract van 2 jaar geleden is 4kwh gelijk aan 4kwh x 0,16176 euro/kwh = 0,65 euro om 1 dag te verwarmen, gas daarentegen was 2,2m3 voor 1 dag wat gelijk staat aan 2,2m3 x 0,86941 euro/m3 = 1,91 euro…dus ruim 2/3 goedkoper aan de oude prijzen….verschil zal nu, met stroomprijzen die verdubbeld en gasprijzen die verviervoudigd zijn, enkel groter geworden zijn.
Die 18m3 per maand! Dat is nog gene halve kube per dag, sorry maar is echt onzin 😂 als ik smiddag half uur kook en een korte douche neem zit ik al aan 0,3 kube….en jij gaat de hele dag je app verwarmen met een amper meer op een winterdag? Echt ongeloofwaardig. Ik zou even mijn cijfers opnieuw nakijken want er is ergens een fout ingeslopen, geloof me.
Die moet je toch op de SPC (?) Connector prikken op het moederbord? Ik heb deze niet maar een zelfbouw module.maharens schreef op donderdag 17 maart 2022 @ 18:13:
Is het heel veel werk om deze module te plaatsen? Ik heb wel een filmpje gevonden van de oude module, maar dan moet er van alles gedemonteerd worden.
https://www.chillair.nl/mitsubishi-wifi-module-wf-rac.html
Daarvoor moet de klep eraf geklikt worden en filters eruit. De onderkap en bovenkap los schroeven en klikken en dan nog een klepje losschroeven.
De eerste keer vond ik het wat gedoe omdat ik het semi blind moest doen in een trapgat waar ik er net niet goed bij kon. Met wat beleid en airco servicehandleiding prima gelukt.
Tweede keer was een eitje (als je een 16MB firmware op een 4MB chip flasht dan werkt de over the air update niet en mag je zelf nog een keer in de lucht hangen
Afgelopen woensdag tot grote tevredenheid in de woonkamer een MHI SRK ZSW 3.5 kw en in onze slaapkamer een 2.5 kw geplaatst.
In de woonkamer gebruiken we de airco ook voor verwarmen en dat werkt prima, maar heb nog wat vragen:
- Is het zinvol de 2 oranje filters te installeren (allergeen verwijderend filter en fotokatalytisch geurverdrijvend filter)?
- Ik wil de airco via Homey (en Home assistant dashboard) kunnen monitoren/ besturen en heb een Sensibo module aangeschaft, helaas is de 3D auto functie hier niet aanwezig, is hier een oplossing voor?
De nieuwe wifi module heeft dit wel in de app en zelfs afregelen op een halve graad en dat is super, maar wat ik kan vinden weer niet te integreren in Homey of HA….
- Welke stand is beter: 3D auto of gewoon een vaste instelling met fan speed op auto?
Verwarmen die ik 24/7 met tot nu toe een nachtverlaging van 1 graad.
Totale energie verbruik (gas/stroom) gisteren op de eerste hele dag met de airco afgenomen met 53%.
In de woonkamer gebruiken we de airco ook voor verwarmen en dat werkt prima, maar heb nog wat vragen:
- Is het zinvol de 2 oranje filters te installeren (allergeen verwijderend filter en fotokatalytisch geurverdrijvend filter)?
- Ik wil de airco via Homey (en Home assistant dashboard) kunnen monitoren/ besturen en heb een Sensibo module aangeschaft, helaas is de 3D auto functie hier niet aanwezig, is hier een oplossing voor?
De nieuwe wifi module heeft dit wel in de app en zelfs afregelen op een halve graad en dat is super, maar wat ik kan vinden weer niet te integreren in Homey of HA….
- Welke stand is beter: 3D auto of gewoon een vaste instelling met fan speed op auto?
Verwarmen die ik 24/7 met tot nu toe een nachtverlaging van 1 graad.
Totale energie verbruik (gas/stroom) gisteren op de eerste hele dag met de airco afgenomen met 53%.
Had je vorig jaar de verwarming wel aan gehad? of blokverwarming waardoor het niet via jouw eigen CV ging?Yvad schreef op woensdag 16 maart 2022 @ 18:22:
Waar gaat dit fout? Ik dacht goedkoper uit te zijn door te verwarmen met een airco.
In juli 2021 heb ik een airco (LG PC12SQ) laten plaatsen. Zie hieronder het verbruik van 2021 volgens de airco:
[Afbeelding]
Hier zie je dat vanaf oktober 2021 de airco gebruikt is om te verwarmen. In december 2021 koste dat 110.75kWh.
In het overzicht van de energieleverancier zie je dit verbruik toenemen vanaf oktober, en komt redelijk overeen met wat de airco zelf meet:
[Afbeelding]
Het gasverbruik is enorm afgenomen en wordt alleen gebruikt voor koken, douchen en warm water. Gemiddeld nu zo'n 8m3 per maand, waar dit vorige winter 18m3 per maand was:
[Afbeelding]
Even een simpele rekensom:
1m3 gas = €1,44
1kwh stroom = €0,29
18m3 - 8m3 = 10m3 bespaard op gas
10m3 x €1,44 = €14,40 bespaard
110kwh extra energie verbruikt
110kwh x €0,29 = €31,90 extra energie verbruikt
Dus in de maand december heb ik €17,50 meer uitgegeven. Hoe komt dit?
Is stroom relatief duurder geworden dan gas? Is de airco inefficiënt? Kan ik kostentechnisch nu beter met gas verwarmen?
18 m3 per maand is onrealistisch in een appartement want dat zou betekenen dat de CV verwarming vrijwel niet aan is geweest.
Je zou rond de 80-140 m3 gas per maand moeten zitten.
Voor warmwater zit ik al op 12 m3 per maand terwijl wij zuinig douchen....
Ik ken iemand die in een super geisolleerde klein appartement woont waarbij de onderburen flink stoken en zelfs hij red het niet met die getallen op gas verwarmen.
[ Voor 3% gewijzigd door mr_evil08 op 18-03-2022 08:54 ]
WP | SP, Daikin FTXM35M/RXM35M
Voor mijn appartement wil ik volgende maand een airco laten plaatsen, buiten unit komt aan de muur te hangen op ooghoogte.
Ik heb een airco nodig van zo,n 3,5Kw, aangezien wij ook van het gas af gaan waarschijnlijk lijkt het me met het oog op de toekomst handig om voor een unit te kiezen die ook goede verwarming specs heeft.
Ik wil wel een A merk toestel dan kom je volgens mij na wat ik heb gelezen uit op Daikin of Mitsubishi Electric / Industry.
Kunnen jullie aangeven waar nog op te letten en eventueel welk merk en type te kiezen, een Wifi optie is ook wel wenselijk.
Ik heb een airco nodig van zo,n 3,5Kw, aangezien wij ook van het gas af gaan waarschijnlijk lijkt het me met het oog op de toekomst handig om voor een unit te kiezen die ook goede verwarming specs heeft.
Ik wil wel een A merk toestel dan kom je volgens mij na wat ik heb gelezen uit op Daikin of Mitsubishi Electric / Industry.
Kunnen jullie aangeven waar nog op te letten en eventueel welk merk en type te kiezen, een Wifi optie is ook wel wenselijk.
Geen ervaring mee, maar als je nu nergens last van hebt, lijkt het me niet bijzonder zinvol. Als je geurtjes in huis hebt, kan je beter de oorzaak aanpakken dan ze wegfilteren.ralphkeb schreef op vrijdag 18 maart 2022 @ 08:48:
- Is het zinvol de 2 oranje filters te installeren (allergeen verwijderend filter en fotokatalytisch geurverdrijvend filter)?
Volgens mij is de 3D auto stand niets anders dan swing/horizontal/fan op auto. Althans, uit de documentatie kan ik geen verschil opmaken. Dus dat is met Sensibo ook wel te regelen, alleen kost je een paar commando's. Nieuwe module is npg niet te integreren in Homey helaas.- Ik wil de airco via Homey (en Home assistant dashboard) kunnen monitoren/ besturen en heb een Sensibo module aangeschaft, helaas is de 3D auto functie hier niet aanwezig, is hier een oplossing voor?
De nieuwe wifi module heeft dit wel in de app en zelfs afregelen op een halve graad en dat is super, maar wat ik kan vinden weer niet te integreren in Homey of HA….
Ligt helemaal aan de situatie; ik gebruik een vaste instelling met fan speed op 3 (dan regelt hij ook gewoon netjes terug), maar voor anderen werkt alles op auto ook prima.- Welke stand is beter: 3D auto of gewoon een vaste instelling met fan speed op auto?
9040 Wp | Zendure 15,4 kWh | MHI SCM60/SCM40/SRC25
Hi,
ik heb een offerte binnen voor een airco in de woonkamer en werkkamer.
Woonkamer heeft een oppervlakte van 60m2 (150m3) en daar zou een Daikin Perfera FTXM35R / RXM35R komen.
Werkkamer heeft een oppervlakte van 9m2 en daar zou een Daikin Comfora FTXP20M5V1B / RXP20M5V1B komen.
Woonkamer: stroomaanwezig, 3 meter leidinglengte, standaard montage
Werkkamer: stroom aanwezig, 3 meter leidinglengte, aanpgepaste montage
Is 3,5kw voor de woonkamer voldoende?
Totaal prijs 5200 euro (2900 + 2300) worden. Persoonlijk vind ik dat veel geld, Wat vinden jullie?
Ik wil de airco's vooral gebruiken om te verwarmen en in de zomer de werkkamer te koelen. Zit er veel verschil in het energieverbruik tussen Comfora en Perfera?
Hopelijk kunnen jullie me weer een stapje verder helpen.
Bedankt!
ik heb een offerte binnen voor een airco in de woonkamer en werkkamer.
Woonkamer heeft een oppervlakte van 60m2 (150m3) en daar zou een Daikin Perfera FTXM35R / RXM35R komen.
Werkkamer heeft een oppervlakte van 9m2 en daar zou een Daikin Comfora FTXP20M5V1B / RXP20M5V1B komen.
Woonkamer: stroomaanwezig, 3 meter leidinglengte, standaard montage
Werkkamer: stroom aanwezig, 3 meter leidinglengte, aanpgepaste montage
Is 3,5kw voor de woonkamer voldoende?
Totaal prijs 5200 euro (2900 + 2300) worden. Persoonlijk vind ik dat veel geld, Wat vinden jullie?
Ik wil de airco's vooral gebruiken om te verwarmen en in de zomer de werkkamer te koelen. Zit er veel verschil in het energieverbruik tussen Comfora en Perfera?
Hopelijk kunnen jullie me weer een stapje verder helpen.
Bedankt!
[ Voor 13% gewijzigd door Frank1981 op 18-03-2022 11:22 ]
Op basis van 150m3 ga je het niet redden met een 3,5 kw als hoofdverwarming. En als je het wel zou redden dan denk ik volgas in de winter wat niet bepaald efficiënt is. Een maatje groter zou denk ik in jouw geval beter zijn. Qua prijs op basis van de standaard montage is veel te hoog! Ik zou nog even verder kijken als ik jou was.Frank1981 schreef op vrijdag 18 maart 2022 @ 10:49:
Hi,
ik heb een offerte binnen voor een airco in de woonkamer en werkkamer.
Woonkamer heeft een oppervlakte van 60m2 en daar zou een Daikin Perfera FTXM35R / RXM35R komen.
Werkkamer heeft een oppervlakte van 9m2 en daar zou een Daikin Comfora FTXP20M5V1B / RXP20M5V1B komen.
Is 3,5kw voor de woonkamer voldoende?
Totaal prijs 5200 euro (2900 + 2300) worden. Persoonlijk vind ik dat veel geld, Wat vinden jullie?
Ik wil de airco's vooral gebruiken om te verwarmen en in de zomer de werkkamer te koelen. Zit er veel verschil in het energieverbruik tussen Comfora en Perfera?
Hopelijk kunnen jullie me weer een stapje verder helpen.
Bedankt!
[ Voor 21% gewijzigd door Servee op 18-03-2022 11:46 ]
Daikin FTXM35R/RXM35R
Prijs is wel erg hoog, afgelopen woensdag in de woonkamer een MHI 3.5 kwh en op zolder een MHI 2.5 kwh laten hangen incl. installatie voor 3000.Frank1981 schreef op vrijdag 18 maart 2022 @ 10:49:
Hi,
ik heb een offerte binnen voor een airco in de woonkamer en werkkamer.
Woonkamer heeft een oppervlakte van 60m2 (150m3) en daar zou een Daikin Perfera FTXM35R / RXM35R komen.
Werkkamer heeft een oppervlakte van 9m2 en daar zou een Daikin Comfora FTXP20M5V1B / RXP20M5V1B komen.
Woonkamer: stroomaanwezig, 3 meter leidinglengte, standaard montage
Werkkamer: stroom aanwezig, 3 meter leidinglengte, aanpgepaste montage
Is 3,5kw voor de woonkamer voldoende?
Totaal prijs 5200 euro (2900 + 2300) worden. Persoonlijk vind ik dat veel geld, Wat vinden jullie?
Ik wil de airco's vooral gebruiken om te verwarmen en in de zomer de werkkamer te koelen. Zit er veel verschil in het energieverbruik tussen Comfora en Perfera?
Hopelijk kunnen jullie me weer een stapje verder helpen.
Bedankt!
18 m3 per maand kan prima. Wij waren het niet eens met de huidige gasprijs en hebben de afgelopen maand zuinig gedoucht, gekookt en gestookt: 12 m3 in totaal (hoek-rijtjeshuis). Toegegeven, dat lukt alleen in een milde winter als deze.mr_evil08 schreef op vrijdag 18 maart 2022 @ 08:49:
[...]
Je zou rond de 80-140 m3 gas per maand moeten zitten.
Voor warmwater zit ik al op 12 m3 per maand terwijl wij zuinig douchen....
Ik ken iemand die in een super geisolleerde klein appartement woont waarbij de onderburen flink stoken en zelfs hij red het niet met die getallen op gas verwarmen.
Maar niet in DecemberMartin7182 schreef op vrijdag 18 maart 2022 @ 19:57:
[...]
18 m3 per maand kan prima. Wij waren het niet eens met de huidige gasprijs en hebben de afgelopen maand zuinig gedoucht, gekookt en gestookt: 12 m3 in totaal (hoek-rijtjeshuis). Toegegeven, dat lukt alleen in een milde winter als deze.
En dan kan je ook zuinig stoken met een airco.
In mijn hoekhuis kan ik 18m3 wel schudden. Tenzij ik enkel de kou eruit stook (dus als het onder de 14 graden komt).
18m3 per maand is gewoon extreem weinig. Dan zou je op jaarbasis misschien 100m3 nodig hebben (zomers stook je immers niet).
Niet een realistisch verbruik. En zeker niet "normaal".
Is hier trouwens nog wat uitgekomen?CyrielCC schreef op woensdag 19 januari 2022 @ 10:22:
[...]
Toshiba zegt trouwens dat het aan onze installatie ligt en de installateur zegt dat het aan de Toshiba unit ligtNiemand neemt de verantwoordelijkheid dus. We laten nu een installateur van Toshiba langskomen om ernaar te kijken, hopelijk gaat die iets vinden. Wordt vervolgd.
Heb hier sterk de indruk dat het fluiten in de loop der tijd veel minder is geworden, ik heb er geen enkele verklaring voor.
Hoe vinden jullie de warmtespreiding van de airco?
Ik vind dat het geen gemoedelijke warmte geeft.
De onderste 30cm blijft ook best wel koud.
Met de CV is een kamertemperatuur van 20graden voldoende en met de airco pas bij 23graden!
Ik vind dat het geen gemoedelijke warmte geeft.
De onderste 30cm blijft ook best wel koud.
Met de CV is een kamertemperatuur van 20graden voldoende en met de airco pas bij 23graden!
In december was dat ook wel gelukt. Wel realistisch maar niet normaal idd. We hebben ook dagelijks op gas eten gekookt. En water voor de afwas, thee e.d. Maar we kunnen vooral goed tegen kou.Waah schreef op vrijdag 18 maart 2022 @ 20:02:
[...]
Maar niet in December![]()
En dan kan je ook zuinig stoken met een airco.
In mijn hoekhuis kan ik 18m3 wel schudden. Tenzij ik enkel de kou eruit stook (dus als het onder de 14 graden komt).
18m3 per maand is gewoon extreem weinig. Dan zou je op jaarbasis misschien 100m3 nodig hebben (zomers stook je immers niet).
Niet een realistisch verbruik. En zeker niet "normaal".
Ontopic: airco komt eraan
Hier prima comfortabel, kan aan heel veel zaken liggen. Stookgedrag, lucht warmt de massa niet op in eerste instantie waardoor je vloer meubels ed koud blijven aanvoelen. Dat kun je compenseren door aantal uur van te voren op te stoken of 24 uur doorstoken dan ben je er vanaf.Ruud888 schreef op vrijdag 18 maart 2022 @ 21:49:
Hoe vinden jullie de warmtespreiding van de airco?
Ik vind dat het geen gemoedelijke warmte geeft.
De onderste 30cm blijft ook best wel koud.
Met de CV is een kamertemperatuur van 20graden voldoende en met de airco pas bij 23graden!
Wat ook kan dat je teveel lucht moet verplaatsen en dat kan ook comfort problemen geven, je moet het systeem zo inregelen dat het systeem zo laag mogelijk draait, wat betekent dat je systeem het meest efficiënt werkt en het minste geluid maakt, de ruimte dus voldoende is gevuld met warmte energie en heb je ook het meeste comfort.
Verder kan de grootte van de unit tov de ruimte verschil maken, als je steeds korte runs maakt word de massa ook niet warm zeker niet als je unit iets onderbemeten is.
Ik heb van oorsprong heteluchtverwarming en had elke dag koude voeten, sinds de airco geen last meer van. Ook was het binnen 20 minuten 21 graden in huis toch zat ik met koude handen op de bank omdat de massa koud bleef, ondanks een flinke cv ketel en een recent Brink luchtverwarmingsyteem dus het is inherent met verwarming met luchtverplaatsing.
Hier draait de unit hele dag rond 100/150 watt en heerlijke stabiele warmte.
[ Voor 21% gewijzigd door Servee op 18-03-2022 22:17 ]
Daikin FTXM35R/RXM35R
Ook dat ligt aan de ruimte. Wij merken qua comfort geen verschil met de CV (convectorputten + fans) en setpoint van de airco staat op 20 en resulteert in 21 graden. Weet niet welk merk je hebt, maar je kan eventueel de offset aanpassen.Ruud888 schreef op vrijdag 18 maart 2022 @ 21:49:
Hoe vinden jullie de warmtespreiding van de airco?
Ik vind dat het geen gemoedelijke warmte geeft.
De onderste 30cm blijft ook best wel koud.
Met de CV is een kamertemperatuur van 20graden voldoende en met de airco pas bij 23graden!
Overigens niet raar hoor dat je de airco anders in moet stellen; een airco registreert vaak z’n eigen uitgeblazen lucht waardoor je hem wat hoger moet zetten. Is hier vaker ter sprake gekomen.
9040 Wp | Zendure 15,4 kWh | MHI SCM60/SCM40/SRC25
Ik heb zelf een Qlima 3,5kw geplaatst met snelkoppelingen.Frank1981 schreef op vrijdag 18 maart 2022 @ 10:49:
Hi,
ik heb een offerte binnen voor een airco in de woonkamer en werkkamer.
Woonkamer heeft een oppervlakte van 60m2 (150m3) en daar zou een Daikin Perfera FTXM35R / RXM35R komen.
Werkkamer heeft een oppervlakte van 9m2 en daar zou een Daikin Comfora FTXP20M5V1B / RXP20M5V1B komen.
Woonkamer: stroomaanwezig, 3 meter leidinglengte, standaard montage
Werkkamer: stroom aanwezig, 3 meter leidinglengte, aanpgepaste montage
Is 3,5kw voor de woonkamer voldoende?
Totaal prijs 5200 euro (2900 + 2300) worden. Persoonlijk vind ik dat veel geld, Wat vinden jullie?
Ik wil de airco's vooral gebruiken om te verwarmen en in de zomer de werkkamer te koelen. Zit er veel verschil in het energieverbruik tussen Comfora en Perfera?
Hopelijk kunnen jullie me weer een stapje verder helpen.
Bedankt!
Incl een bruine leidinggoot was ik 850euro kwijt.
Omdat ik hem zelf geplaatst heb, heb ik geen garantie,maar dat risico wil ik wel nemen voor die prijs.
Je kan de leidingen ook laten aansluiten door een erkende monteur. Dan behoud je ook je garantie
QlimaGermanPivo schreef op vrijdag 18 maart 2022 @ 22:06:
[...]
Ook dat ligt aan de ruimte. Wij merken qua comfort geen verschil met de CV (convectorputten + fans) en setpoint van de airco staat op 20 en resulteert in 21 graden. Weet niet welk merk je hebt, maar je kan eventueel de offset aanpassen.
Overigens niet raar hoor dat je de airco anders in moet stellen; een airco registreert vaak z’n eigen uitgeblazen lucht waardoor je hem wat hoger moet zetten. Is hier vaker ter sprake gekomen.
SC5232 WiFi.
Ik zal het is nakijken.
2,5kw voor een heel huis? Dan moet je wel heel klein wonenMartin7182 schreef op vrijdag 18 maart 2022 @ 21:52:
[...]
In december was dat ook wel gelukt. Wel realistisch maar niet normaal idd. We hebben ook dagelijks op gas eten gekookt. En water voor de afwas, thee e.d. Maar we kunnen vooral goed tegen kou.
Ontopic: airco komt eraanIk denk dat we met 2.5kW ons hele huis heet gaan stoken. "heet" voor onze begrippen dan
Met dank aan wat advies van jullie en met behulp van een installateur ben ik nu tot een definitief plan gekomen.
ipv van 2x multisplit gaan we nu voor
2x single split (beneden en ouder slaapkamer)
1x triple split. (kinderkamers en kantoor)
Daarbij komen 2 buitenunits op de garage en 1 op het balkon.
:fill(white):strip_exif()/f/image/VPvdUmm3mWi0GztwFvlGNZSy.png?f=user_large)
:fill(white):strip_exif()/f/image/vZpR8v3rIUX99PDBqfR7yuwf.png?f=user_large)
Nu heb ik nog een paar laatste twijfels:
Beneden hebben wij gekozen voor de Mitsubishi SRK/SRC 71 ZR-W Single Split Wandmodel [7,1kW] alleen twijfel ik eigenlijk of ik niet de Mitsubishi SRK/SRC 60 ZSX-WB Single Split Wandmodel [6KW] moet nemen. Deze zal zowel verwarmen en koelen en heel vaak aan staan. Alleen twijfel ik of 6kW max wel voldoende zal zijn. Ik denk het wel, wij stoken maar 19 graden en ik wil vooral constante temp en niet heel hard opstoken/koelen als ik thuis kom.
Boven wil de installateur mij de SCM 50 ZS-W laten upgraden naar de 60 ZS-W. Dat lijkt mij persoonlijk dan weer niet nodig.
Boven zal alleen mijn kantoor veel koelen in de zomer. Dat is ook gelijk de kleinste kamer. Afgelopen 2 winters heeft boven de verwarming nooit aangestaan.
Bijgevoegd nog twee offerte. Ik doe er even geen naam bij omdat ik niet weet of dat mag op het forum.
1.:fill(white):strip_exif()/f/image/MWCcZi7DExB8auxZlbecRmVz.png?f=user_large)
2.:fill(white):strip_exif()/f/image/aUW61LJI7zqmmSMHDbaZpXhc.png?f=user_large)
Offerte twee is van een lokale stek monteur. Die is ook langsgekomen. 1. is van de winkel die de airco's verkoopt. Ik zal denk ik bij 1 gewoon ga kopen en 2. laten monteren. Dat leken mij wel flexibele gasten die meedenken en gewoon een vaste prijs incl materialen rekenen.
ipv van 2x multisplit gaan we nu voor
2x single split (beneden en ouder slaapkamer)
1x triple split. (kinderkamers en kantoor)
Daarbij komen 2 buitenunits op de garage en 1 op het balkon.
:fill(white):strip_exif()/f/image/VPvdUmm3mWi0GztwFvlGNZSy.png?f=user_large)
:fill(white):strip_exif()/f/image/vZpR8v3rIUX99PDBqfR7yuwf.png?f=user_large)
Nu heb ik nog een paar laatste twijfels:
Beneden hebben wij gekozen voor de Mitsubishi SRK/SRC 71 ZR-W Single Split Wandmodel [7,1kW] alleen twijfel ik eigenlijk of ik niet de Mitsubishi SRK/SRC 60 ZSX-WB Single Split Wandmodel [6KW] moet nemen. Deze zal zowel verwarmen en koelen en heel vaak aan staan. Alleen twijfel ik of 6kW max wel voldoende zal zijn. Ik denk het wel, wij stoken maar 19 graden en ik wil vooral constante temp en niet heel hard opstoken/koelen als ik thuis kom.
Boven wil de installateur mij de SCM 50 ZS-W laten upgraden naar de 60 ZS-W. Dat lijkt mij persoonlijk dan weer niet nodig.
Boven zal alleen mijn kantoor veel koelen in de zomer. Dat is ook gelijk de kleinste kamer. Afgelopen 2 winters heeft boven de verwarming nooit aangestaan.
Bijgevoegd nog twee offerte. Ik doe er even geen naam bij omdat ik niet weet of dat mag op het forum.
1.
:fill(white):strip_exif()/f/image/MWCcZi7DExB8auxZlbecRmVz.png?f=user_large)
2.
:fill(white):strip_exif()/f/image/aUW61LJI7zqmmSMHDbaZpXhc.png?f=user_large)
Offerte twee is van een lokale stek monteur. Die is ook langsgekomen. 1. is van de winkel die de airco's verkoopt. Ik zal denk ik bij 1 gewoon ga kopen en 2. laten monteren. Dat leken mij wel flexibele gasten die meedenken en gewoon een vaste prijs incl materialen rekenen.
Voor de multisplit is een 5 kW meer dan genoeg inderdaad. Zou voor de woonkamer zeker een maatje kleiner nemen; heeft ook nog een maximaal vermogen van 8.8 kW als het écht een keer nodig is. Maar als jij op 19 graden stookt en straks 24/7 draait, heb je daar echt wel (meer dan) genoeg aan. Minimale vermogen van de SRK/SRC 60 is 1 kW en van de 70 2 kW, dus met een 60 ook nog eens een stuk minder snel last van pendelen. Ik denk overigens dat je op ouderslaapkamer ook zat hebt aan een 2.5 kW. Ik doe een kamer van 20m2 (huis uit '79) met aan 3 kanten een buitenmuur met 2.5 kW en dat gaat echt al zonder moeite.The_Woesh schreef op zaterdag 19 maart 2022 @ 10:56:
Met dank aan wat advies van jullie en met behulp van een installateur ben ik nu tot een definitief plan gekomen.
ipv van 2x multisplit gaan we nu voor
2x single split (beneden en ouder slaapkamer)
1x triple split. (kinderkamers en kantoor)
Daarbij komen 2 buitenunits op de garage en 1 op het balkon.
[Afbeelding]
[Afbeelding]
Nu heb ik nog een paar laatste twijfels:
Beneden hebben wij gekozen voor de Mitsubishi SRK/SRC 71 ZR-W Single Split Wandmodel [7,1kW] alleen twijfel ik eigenlijk of ik niet de Mitsubishi SRK/SRC 60 ZSX-WB Single Split Wandmodel [6KW] moet nemen. Deze zal zowel verwarmen en koelen en heel vaak aan staan. Alleen twijfel ik of 6kW max wel voldoende zal zijn. Ik denk het wel, wij stoken maar 19 graden en ik wil vooral constante temp en niet heel hard opstoken/koelen als ik thuis kom.
Boven wil de installateur mij de SCM 50 ZS-W laten upgraden naar de 60 ZS-W. Dat lijkt mij persoonlijk dan weer niet nodig.
Boven zal alleen mijn kantoor veel koelen in de zomer. Dat is ook gelijk de kleinste kamer. Afgelopen 2 winters heeft boven de verwarming nooit aangestaan.
Bijgevoegd nog twee offerte. Ik doe er even geen naam bij omdat ik niet weet of dat mag op het forum.
1. [Afbeelding]
2. [Afbeelding]
Offerte twee is van een lokale stek monteur. Die is ook langsgekomen. 1. is van de winkel die de airco's verkoopt. Ik zal denk ik bij 1 gewoon ga kopen en 2. laten monteren. Dat leken mij wel flexibele gasten die meedenken en gewoon een vaste prijs incl materialen rekenen.
[ Voor 3% gewijzigd door GermanPivo op 19-03-2022 12:01 ]
9040 Wp | Zendure 15,4 kWh | MHI SCM60/SCM40/SRC25
Nee, de installateur zou 2 weken geleden langskomen maar toen moesten we in quarantaine.. ongelukkig. Maar inmiddels is het te warm buiten, dus ik denk dat de fluittoon pas weer in november gaat voorkomen. Dus wellicht in november weer de installateur laten langskomen. Ik hoop stilletjes dat het zichzelf oplost en dat we er volgende winter geen last meer van hebben.ASW1 schreef op vrijdag 18 maart 2022 @ 20:29:
[...]
Is hier trouwens nog wat uitgekomen?
Heb hier sterk de indruk dat het fluiten in de loop der tijd veel minder is geworden, ik heb er geen enkele verklaring voor.
Komt het niet gewoon door het warmere weer dat je de fluittoon minder hoort? Of merk je daadwerkelijk een verschil ook in kouder weer?
Als je toch zelf wil gaan kopen en laten installeren, zou ik ook eens kijken bij één van de vele bedrijven en/of importeurs die buitenlandse units leveren. kan je zomaar 2/3k schelen op de units.The_Woesh schreef op zaterdag 19 maart 2022 @ 10:56:
Offerte twee is van een lokale stek monteur. Die is ook langsgekomen. 1. is van de winkel die de airco's verkoopt. Ik zal denk ik bij 1 gewoon ga kopen en 2. laten monteren. Dat leken mij wel flexibele gasten die meedenken en gewoon een vaste prijs incl materialen rekenen.
Probleem was volgens mij dat de commando's hiervoor niet beschikbaar waren. Met de nieuwe wifi-module van MHI zelf (de WF-RAC) kan het wel. Voor de zelfbouw wifi-module zou ook iemand deze nog een keer moeten uitlezen zodat dit geïmplementeerd kan worden daarin: https://github.com/absalom-muc/MHI-AC-Ctrl/issues/77GermanPivo schreef op vrijdag 18 maart 2022 @ 09:31:
[...]
Volgens mij is de 3D auto stand niets anders dan swing/horizontal/fan op auto. Althans, uit de documentatie kan ik geen verschil opmaken. Dus dat is met Sensibo ook wel te regelen, alleen kost je een paar commando's. Nieuwe module is npg niet te integreren in Homey helaas.
@The_Woesh
Ik heb hier de SRK 71 ook hangen, en ik zou toch de 60 ZSX aanbevelen. Zoals genoemd heeft die een lager minimaal vermogen maar ook is het een iets stillere meer efficiente unit en als je de unit veel gaat gebruiken om te vewarmen, en vooral voor continu verbruik dan is de 60 ZSX toch wel de betere.
Inderdaad wel een iets lager maximaal vermogen. Als het wekenlang gaat vriezen met temperaturen van -20C of kouder dan zou je dat vermogen wel nodig zijn, maar dat verwacht ik niet snel meer eigenlijk
Bij vooral hogere temperaturen tegenwoordig is het mooi soepel draaien zonder pendelen wel belangrijk kwa comfort. Ik merk dat onze SRK 71 wel redelijk vaak pendeld en ik al wel vaak handmatig of de setpoint iets hoger zet om het gewoon continu te vewarmen als ik er weer warmpjes bij wil zitten, of ik de setpoint iets lager zet als ik er “wel weer even klaar mee ben”
En toch zo weer aan het werk ga of zo.
Ik heb hier de SRK 71 ook hangen, en ik zou toch de 60 ZSX aanbevelen. Zoals genoemd heeft die een lager minimaal vermogen maar ook is het een iets stillere meer efficiente unit en als je de unit veel gaat gebruiken om te vewarmen, en vooral voor continu verbruik dan is de 60 ZSX toch wel de betere.
Inderdaad wel een iets lager maximaal vermogen. Als het wekenlang gaat vriezen met temperaturen van -20C of kouder dan zou je dat vermogen wel nodig zijn, maar dat verwacht ik niet snel meer eigenlijk
Bij vooral hogere temperaturen tegenwoordig is het mooi soepel draaien zonder pendelen wel belangrijk kwa comfort. Ik merk dat onze SRK 71 wel redelijk vaak pendeld en ik al wel vaak handmatig of de setpoint iets hoger zet om het gewoon continu te vewarmen als ik er weer warmpjes bij wil zitten, of ik de setpoint iets lager zet als ik er “wel weer even klaar mee ben”
Weteringbrug ZO 9.900Wp — NW 6.270Wp — Totaal 16.170Wp — 5 x MHI L/L (SCM / SRK / ZSX)
@Gerco-M , @GermanPivo : bedankt voor het meedenken. Jullie bevestigen wat ik toch al denk.
Dan ben ik nu zo beetje rond.
@medal goed punt inderdaad.
Dan ben ik nu zo beetje rond.
@medal goed punt inderdaad.
Tot nu toe super blij met de MHI 3,5 kWh en met 24/7 verwarmen blijft de kamer goed op temperatuur.
Het enige wat mij dwars zit is dat hij vroeg in de ochtend en in de avond/nacht keurig op een laag pitje draait (variërend tussen 192 en 250 watt), maar eind van de ochtend en de middag pendelt hij als een gek (ong elke 10 minuten ofzo).
Temperatuur staat op 21 graden, fanspeed op laag.
Lamellen zowel op de hoogtste stand en laagste stand geprobeerd, maar dat maakt geen verschil.
Ook 3D auto heeft hij het.
Ruimt is ong 45 m2
Iemand nog tips en trics of moet ik het pendelen accepteren?
Het enige wat mij dwars zit is dat hij vroeg in de ochtend en in de avond/nacht keurig op een laag pitje draait (variërend tussen 192 en 250 watt), maar eind van de ochtend en de middag pendelt hij als een gek (ong elke 10 minuten ofzo).
Temperatuur staat op 21 graden, fanspeed op laag.
Lamellen zowel op de hoogtste stand en laagste stand geprobeerd, maar dat maakt geen verschil.
Ook 3D auto heeft hij het.
Ruimt is ong 45 m2
Iemand nog tips en trics of moet ik het pendelen accepteren?
Waarschijnlijk kan die door invallende zon en opggewarmde woning zijn warmte niet kwijt. Ik heb hem met de klok gewoon uitgezet en start na ongeveer 17:30 weer... En dat heb ik nu net omgezet naar 19:00
Ben ik nou zo dom, of is de rest zo slim?
We wonen niet klein (114m2) maar stoken vooral kleinTigerXtrm schreef op vrijdag 18 maart 2022 @ 22:52:
[...]
2,5kw voor een heel huis? Dan moet je wel heel klein wonenIk doe mijn 40m2 woonkamer met een 3,5kw. Op koude dagen wordt 2,5kw toch wel randje hoor.
Dat komt omdat je woning in de nacht afkoelt en de airco dus dan wel rustig kan doorpruttelen, je huis is door 24 uur stoken door en door verwarmd en overdag is je woning al snel 21+ en gaat dan pendelen.ralphkeb schreef op zaterdag 19 maart 2022 @ 18:49:
Tot nu toe super blij met de MHI 3,5 kWh en met 24/7 verwarmen blijft de kamer goed op temperatuur.
Het enige wat mij dwars zit is dat hij vroeg in de ochtend en in de avond/nacht keurig op een laag pitje draait (variërend tussen 192 en 250 watt), maar eind van de ochtend en de middag pendelt hij als een gek (ong elke 10 minuten ofzo).
Temperatuur staat op 21 graden, fanspeed op laag.
Lamellen zowel op de hoogtste stand en laagste stand geprobeerd, maar dat maakt geen verschil.
Ook 3D auto heeft hij het.
Ruimt is ong 45 m2
Iemand nog tips en trics of moet ik het pendelen accepteren?
Met deze relatief “warme” temperaturen overdag zou ik de unit uitzetten in de nacht en vroeg in de ochtend (2 a 3 uur vooraf) opstarten op 3D dan kan je unit veel langer doordraaien ook al zijn de nachten wat kouder. Zodra overdag ook kouder word kan je weer 24 uur doorstoken en zal de unit niet meer of minder pendelen.
Ook stand 1 vast is geen goede optie omdat je de unit dan “begrenst” op lucht hoeveelheid en dus warmere lucht gaat blazen omdat de ruimte meer warmtevraag heeft maar dit niet goed kan verdelen en je systeem hierop ingrijpt. Opstarten op 3d en overdag op auto stand laten staan dan gaat het een stuk langer goed. Hier pendelt de airco ook nu in de middag met tussenpozen van 2 tot 3 uur.
[ Voor 5% gewijzigd door Servee op 19-03-2022 20:09 ]
Daikin FTXM35R/RXM35R
[b]
[ Voor 96% gewijzigd door Servee op 19-03-2022 20:10 ]
Daikin FTXM35R/RXM35R
Ik draai normaal ook 24/7 maar met deze temperaturen is het in de ochtend een paar uurtjes en in de avond weer als het wat af begint te koelen.ralphkeb schreef op zaterdag 19 maart 2022 @ 18:49:
Tot nu toe super blij met de MHI 3,5 kWh en met 24/7 verwarmen blijft de kamer goed op temperatuur.
Het enige wat mij dwars zit is dat hij vroeg in de ochtend en in de avond/nacht keurig op een laag pitje draait (variërend tussen 192 en 250 watt), maar eind van de ochtend en de middag pendelt hij als een gek (ong elke 10 minuten ofzo).
Temperatuur staat op 21 graden, fanspeed op laag.
Lamellen zowel op de hoogtste stand en laagste stand geprobeerd, maar dat maakt geen verschil.
Ook 3D auto heeft hij het.
Ruimt is ong 45 m2
Iemand nog tips en trics of moet ik het pendelen accepteren?
5440Wp O/W op plat dak | 3MXM52N2V1B8 i.c.m. 1xFTXM35M2V1B + 2xFTXM25M2V1B | RTX4090+7800X3D
Afgelopen week is er bij ons een MHI Heavy systeem geïnstalleerd. 4.5kW buitenunit en twee 2.5kW binnenunits (SRK25ZS-W). 1 unit doet het prima maar de andere kan niet verwarmen, koelen doet ie wel goed.
Als de unit op verwarmen gezet wordt (andere unit staat dan uit of staat ook op verwarmen) gaan wel de lamellen open en komt er een klein beetje (geen warme) lucht uit. De fan instelling heeft geen effect. De installateur komt woensdag kijken maar heeft iemand dit eerder gezien?
De units zijn uitgerust met Wifi, in de App heb ik in het begin een keer E42 en later een E36 bij beide units gehad. Nu geen foutmeldingen in de App meer.
Als de unit op verwarmen gezet wordt (andere unit staat dan uit of staat ook op verwarmen) gaan wel de lamellen open en komt er een klein beetje (geen warme) lucht uit. De fan instelling heeft geen effect. De installateur komt woensdag kijken maar heeft iemand dit eerder gezien?
De units zijn uitgerust met Wifi, in de App heb ik in het begin een keer E42 en later een E36 bij beide units gehad. Nu geen foutmeldingen in de App meer.
Ik ben geen expert maar te weinig gas? Heeft de unit welke niet werkt meer leiding?BigSurf schreef op zondag 20 maart 2022 @ 10:33:
Afgelopen week is er bij ons een MHI Heavy systeem geïnstalleerd. 4.5kW buitenunit en twee 2.5kW binnenunits (SRK25ZS-W). 1 unit doet het prima maar de andere kan niet verwarmen, koelen doet ie wel goed.
Als de unit op verwarmen gezet wordt (andere unit staat dan uit of staat ook op verwarmen) gaan wel de lamellen open en komt er een klein beetje (geen warme) lucht uit. De fan instelling heeft geen effect. De installateur komt woensdag kijken maar heeft iemand dit eerder gezien?
De units zijn uitgerust met Wifi, in de App heb ik in het begin een keer E42 en later een E36 bij beide units gehad. Nu geen foutmeldingen in de App meer.
De unit die niet werkt heeft juist minder leiding. Ik weet niet of het per unit een afgesloten circuit is dan zou 1 unit te weinig gas kunnen hebben. Het vreemde is dat ie prima koelt.prakka schreef op zondag 20 maart 2022 @ 10:53:
[...]
Ik ben geen expert maar te weinig gas? Heeft de unit welke niet werkt meer leiding?
En bleef wat stil, omdat we de 1e offertes vrij hoog vonden zijn we verder gaan kijken.w00key schreef op zaterdag 26 februari 2022 @ 01:54:
[...]
Nieuwbouw of bestaand?
Ik zou voor boven heel snel kiezen voor een multizone kanaal unit, iets van 5kW (voorbeeld) en deze verdelen over de 4 kamers, 3.5 kW is misschien wat klein voor bijna 80 m2 aan kamers + vrijstaand.
[Afbeelding]
Je hangt een wand thermostaat in elke zone / kamer waar je de temperatuur meet en instel en met kleppen wordt de warmte naar de juiste zone gestuurd. Of simpele versie, alle 4 aan 1 thermostaat, dan gaat het net als bij de CV zonder slimme radiatorknop tegelijk aan of uit.
De bergzolder kan je daarvoor gebruiken, anders heb je een verlaagd plafond nodig of je moet wat koven bouwen waarin de luchtkanalen zitten (ipv koof voor koperen leidingen).
Hoe goed is het geïsoleerd? Voor bestaand: wat was je gasverbruik?
Het huis is van 2007, goed geïsoleerd, muren van +- 50cm dik.
Ik heb nu ook een partij die een offerte gaat maken voor een multizone kanaal unit. En nu ik er wat meer er naar gekeken heb vind ik het wel een hele mooie optie.
Het bedrijf kwam hier zelf mee omdat het netter lijkt en je bijvoorbeeld ook geen leidingen over de buitenmuren hebt behalve op 1 hoek van het huis.
Qua gasverbruik: dit jaar +- 1450m3 verwacht ik. Maar de CV ketel was nog niet goed afgesteld (stookte op 85 graden etc).
We hebben inderdaad een bergzolder, dus ruimte genoeg voor die buizen. Men leek nu uit te gaan van een systeem met alle 4 aan 1 bedienunit, maar er schijnt wel gemeten te worden per ruimte.
Maar hoe comfortabel in zo'n kanaal unit systeem? Het lijkt mij een heel mooi systeem namelijk.Wat zijn bijvoorbeeld de nadelen? En waarom worden in het algemeen multisplit unit systemen veel meer aangeboden?
En dat kanaalsysteem zou dan zijn voor de 4 slaapkamers boven. In de woonkamer en slaapkamer beneden komt dan een multisplit systeem.
Ruud888 schreef op vrijdag 18 maart 2022 @ 22:23:
[...]
Die hebben wij ook boven. Zelf geplaatst ook met de snelkoppelingen. Heeft hooguit 30 nachten gedraaid, maar moest afgelopen week wel met 240 gr bijgevuld worden. Op de 1 of andere manier krijg je hem zoals de monteur ook al zei niet goed gevacumeerd helaas.
Ik heb zelf een Qlima 3,5kw geplaatst met snelkoppelingen.
Incl een bruine leidinggoot was ik 850euro kwijt.
Omdat ik hem zelf geplaatst heb, heb ik geen garantie,maar dat risico wil ik wel nemen voor die prijs.
Je kan de leidingen ook laten aansluiten door een erkende monteur. Dan behoud je ook je garantie
Kan het kwaad om de buitenunit onder een overkapping te zetten die aan de zijkanten dicht is, maar aan de voorkant open?
Ik kan me voorstellen dat het broeikaseffect in de zomer niet zo best is voor het rendement.
Ik kan me voorstellen dat het broeikaseffect in de zomer niet zo best is voor het rendement.
Dit topic is gesloten.
![]()
Let op:
Een vraag over een offerte, plaatsing of uitzoeken van een L/L WP bij jou thuis hoort in een nieuw, eigen topic.
We respecteren elkaars keuzes over energiegebruik en verschillen in comfort.
Laat bij een 'snelle vraag' wel even weten wat je al gevonden hebt, dat voorkomt herhaling van zetten.
Veel relevante informatie en principes zijn ook te vinden in het Het ik-wil-een-warmtepomp FAQ topic , waar je ook een template kan vinden voor een nieuw adviestopic.
Voor MHI vind je veel tips en tweaks in MHI instellingen topic
Een vraag over een offerte, plaatsing of uitzoeken van een L/L WP bij jou thuis hoort in een nieuw, eigen topic.
We respecteren elkaars keuzes over energiegebruik en verschillen in comfort.
Laat bij een 'snelle vraag' wel even weten wat je al gevonden hebt, dat voorkomt herhaling van zetten.
Veel relevante informatie en principes zijn ook te vinden in het Het ik-wil-een-warmtepomp FAQ topic , waar je ook een template kan vinden voor een nieuw adviestopic.
Voor MHI vind je veel tips en tweaks in MHI instellingen topic