One thing's certain: the iPad seriously increases toilet time.. tibber uitnodigingscode: bqufpqmp
8.960 Wp - 16 kW Daikin L/W - 2 x MHI L/L - gasloos sinds 2017 - Loxone - SAP/IS-U/ABAP - rijdt nog LPG ;-)
Okay, het is al een stuk duidelijker.Appie Heijn schreef op maandag 21 januari 2019 @ 15:50:
[...]
Zou je even echt goed de tekst op de betreffende pagina's moeten lezen, heb ik zelf ook 3 keer gedaan.
1. bivalent point, vanaf welke buitentemperatuur mag de heater bijspringen. (bij mij staat ie op -8 of -5 volgens mij)
3. Proportional band bij hoeveel verschil mag de heater op 100% vermogen meedoen, de heater is 3 traps 1000W/2000W/3000W. In jouw geval gaat hij na een tijdje 3000W leveren indien de Ta =>6gr achterblijft.
5.Inter stage time = om de x(5) aantal minuten kijken of de heater hoger of lager moet qua trap.
Werkwijze:
-is de buitentemp lager dan "bivalent point" -->unlock heater
-Ta <2gr te laag (in vergelijking met ingestelde Ta) -->heater ON stand 1000W
-Ta >2gr maar <4gr te laag -->heater ON stand 2000W
-Ta >4gr te laag -->heater ON stand 3000W
Stel na een defrost is Ta 25gr terwijl 35gr gewenst is. Dan zal na 5 minuten de heater 1000W bijspringen. Na nog eens 5 minuten is de Ta bvb 27gr dan zal de heater 2000W gaan leveren, enz.... Wanneer de WP de Ta weer bereikt heeft gaat de heater ook uit.
De overige instellingen heb ik nog niet nodig gehad. Eigenlijk heb ik alleen het bivalent point ingesteld. Dit is afhankelijk van je huis/wp/afgiftesysteem bij welke Tb hij bivalent mag gaan.
Zie je de dat de WP de boel niet warm kan houden dan kan je:
1. Accepteren
2. Accepteren en op alternatieve wijze bijverwarmen
3. Isoleren/ventilatie optimaliseren
4. Met bovengenoemde instellingen gaan spelen. Dit verbruikt in verhouding niet eens zoveel meer, kan ik mij uit mijn Panasonic tijdperk herinneren.
Ik zit alleen nog te kijken naar de Supply Setting Offset, welke invloed heeft deze?
Schakelt de heater ON daar op i.pv. de Ta?
En de Waiting Time, wacht tijd waarvoor?
Itho WPU_5G. 3.5
Hoe het werkt weet ik ook niet, vandaag nog even wat van de monoblok enviline over gelezen. Bij -7 staan de vermogen specificaties bij lage temperaturen ta 6kw. Bij niet lage temperaturen 5kw vermogen. Wel een leuk verschil, vooral wanneer je er weinig voor hoeft te doen om net binnen de specificaties van lage temperaturen te vallen. Voor ons een extra radiator plaatsen, we zullen het zien volgend seizoen.Daannn1987 schreef op maandag 21 januari 2019 @ 12:32:
[...]
Dat is wel weer wat overdreven
Volgens mij is dat eerder al eens aangekaart, dat er WP's zijn met een zeer lage TA die een hoger vermogen leveren dan opgegeven voor het model.
Het zal er uiteraard niet op neerkomen dat het vermogen verdubbeld, maar slechts een marginaal verschil.
Maar ik kan het ook vout hebben hoor.. Dit is hoe het in mijn hoofd momenteel werkt en rijmt
Of kan iemand een RUWE schatting maken? Huis heeft een oppervlakte van 132m2, tussenwoning, vloerverwarming overal, gasloos huis, 2 volwassenen en 1 peuter. Als meer gegevens nodig zijn hoor ik het graag. Gaat niet om exacte wiskunde maar meer om een globaal idee te krijgen.
[ Voor 43% gewijzigd door power_user op 21-01-2019 19:32 ]
PSN: Oldzkoel
is het een 7KW
[ Voor 3% gewijzigd door Grolsch op 21-01-2019 19:22 ]
De Alpha Innotec R290 units zijn vrij efficient volgens de documentatie, maar jouw versie is wel aan/uit en niet modulerend (dat zou de LWDV zijn).
Ik gok dat je tussen de 1200 en 1700 kWh kwijt bent, eea afhankelijk van bouwkwaliteit, douchegedrag en ventilatie.
Het ik-wil-een-warmtepomp FAQ topic- '23 MG5, douchen met wtw en Auer Edel Eau, verwarming met Vaillant Arotherm Plus.
Ik stook me huis warm met een 7kw. 140m2 standaard radiatoren. Huis uit 1985. Heb zelfs vermogen over. Ik vindt 7kw erg veel voor een nieuwbouw Ik heb tot nu toe dit stook seizoen nog geen 1000kwh verbruikt. Verwacht dat jij ruim onder de 2000kwh blijftpower_user schreef op maandag 21 januari 2019 @ 19:00:
LDW70 A/RX + WWS202. Deze warmtepomp + warmwatervat nemen wij binnenkort in gebruik in onze nieuwbouwwoning als de oplevering over 5 weken zo ver is. Ik.kan online geen ervaringen vinden over dit model. Iemand hier ervaringen? Ben wel benieuwd naar het jaarlijkse stroomverbruik!
Of kan iemand een RUWE schatting maken? Huis heeft een oppervlakte van 132m2, tussenwoning, vloerverwarming overal, gasloos, huis, 2 volwassenen en 1 peuter. Als meer gegevens nodig zijn hoor ik het graag. Gaat niet om exacte wiskunde maar meer om een globaal idee te krijgen.
Veroordeel niet, verwonder u slechts
Binnen ons project zijn ook een aantal met de 7kW variant (wel modulered, gek dat je die niet krijgt...). Dit betreffen 160m2 huizen 2 onder 1 kap. 7kW lijkt mij ook wel aan de ruime kant voor een nieuwbouw tussenwoning. Koud ga je het niet hebben in ieder gevalpower_user schreef op maandag 21 januari 2019 @ 19:00:
LDW70 A/RX + WWS202. Deze warmtepomp + warmwatervat nemen wij binnenkort in gebruik in onze nieuwbouwwoning als de oplevering over 5 weken zo ver is. Ik.kan online geen ervaringen vinden over dit model. Iemand hier ervaringen? Ben wel benieuwd naar het jaarlijkse stroomverbruik!
Of kan iemand een RUWE schatting maken? Huis heeft een oppervlakte van 132m2, tussenwoning, vloerverwarming overal, gasloos, huis, 2 volwassenen en 1 peuter. Als meer gegevens nodig zijn hoor ik het graag. Gaat niet om exacte wiskunde maar meer om een globaal idee te krijgen.
Zo worden ze er bijgeleverd, we hadden er geen keuze in oid. 7,3KW volgens de documentatie inderdaad. Is het rendement hierdoor lager?Grolsch schreef op maandag 21 januari 2019 @ 19:10:
Ik schat max 2000kWh per jaar voor CV + SWW.
is het een 7KWLijkt mij erg fors voor een nieuwe tussenwoning.
Dankje. Dat is erg weinig zeg! Ik ging eigenlijk uit van 3000kWh voor alleen het jaarlijkse verbruik van de warmtepomp. Er liggen straks 3, 300WP en 18, 315WP zonnepanelen op ons dak. Misschien toch wat overcapaciteit danProton_ schreef op maandag 21 januari 2019 @ 19:15:
@power_user
De Alpha Innotec R290 units zijn vrij efficient volgens de documentatie, maar jouw versie is wel aan/uit en niet modulerend (dat zou de LWDV zijn).
Ik gok dat je tussen de 1200 en 1700 kWh kwijt bent, eea afhankelijk van bouwkwaliteit, douchegedrag en ventilatie.
De rest ook bedankt voor jullie inschattingen.
PSN: Oldzkoel
Moet zeggen dat ik de productsheets van warmtepompen erg lastig vind ten aanzien van het modulatie bereik
Als een 5kw net zo laag kan moduleren als een 7kw dan zou ik namelijk eerder voor de 7kw gaan, voor de kosten hoef je het niet te laten.
Vroemt met EV | 10.000WP | 14kWh Thuisaccu | 2x MHI SRK/SRC 35 ZS | LG-WH27s Boiler
Naar welk model kijk je? Was het beetje een nette offerte?revolution-nl schreef op maandag 21 januari 2019 @ 19:30:
Ik heb een offerte laten maken voor een warmtepomp voor onze nieuwbouw hoekwoning en ook daar kwam men met een 7kw. Ik denk toch dat ik een 5kw laat plaatsen.
Moet zeggen dat ik de productsheets van warmtepompen erg lastig vind ten aanzien van het modulatie bereik.
Als een 5kw net zo laag kan moduleren als een 7kw dan zou ik namelijk eerder voor de 7kw gaan, voor de kosten hoef je het niet te laten.
Panasonic Aquaera Mono 7kw - 7000 euro incl. installatie (+ afkoppelen stadsverwarming, exl buffervat).B152 schreef op maandag 21 januari 2019 @ 19:32:
[...]
Naar welk model kijk je? Was het beetje een nette offerte?
Wellicht dat dit nog een 5kw wordt, ik vind het net zo'n twijfelgeval..
Tap neem ik voorlopig nog van het warmtenet af gezien ik nog vastzit aan ennatuurlijk door een wurgcontract van 5 jaar (kreeg je gratis bij de woning
[ Voor 7% gewijzigd door revolution-nl op 21-01-2019 20:21 ]
Vroemt met EV | 10.000WP | 14kWh Thuisaccu | 2x MHI SRK/SRC 35 ZS | LG-WH27s Boiler
7 kW valt wel mee, ik maak nieuwbouw woningen mee die kleiner zijn dan mijn woning maar wel meer verstoken.Grolsch schreef op maandag 21 januari 2019 @ 19:10:
Ik schat max 2000kWh per jaar voor CV + SWW.
is het een 7KWLijkt mij erg fors voor een nieuwe tussenwoning.
Stiekem komt dit door mijn ventilatie WTW, die werkt met COP=30 wel erg goed.
13,1 kWp, Ecodan R32 7,5 , WTW ventilatie, Daikin FTXM35M(R) (5x), Doorstroomverwarmer, Douche WTW, Emco Novette Twin met LFP accu 51.2V 40Ah, Opel Vivaro DC L3H1 75kW (12-2022).
Hoe wil je het na die 5 jaar dan met tapwater gaan doen? Losse warmtepomp boiler? Beter nu, heb je nog subsidie, over 5 jaar niet. Weet natuurlijk niet wat je (variabele) kosten zijn voor SWW maar misschien interessant om toch even te vergelijken. Desnoods vul je die boiler met het warme water uit je wurgcontractrevolution-nl schreef op maandag 21 januari 2019 @ 19:36:
[...]
Tap nemen we voorlopig nog van het warmtenet af gezien ik nog vastzit aan ennatuurlijk door een wurgcontract van 5 jaar (kreeg je gratis bij de woning)
@koevlaas2 Kan het ook zijn dat nieuwbouw in eerste instantie nog veel vocht bevat en daardoor het eerste jaar aanzienlijk meer verstookt?
[ Voor 19% gewijzigd door B152 op 21-01-2019 19:47 ]
Ik heb al meegemaakt dat iemand zijn hele 12 kW warmtepomp weg ventileerde , in een bestaand huis BTW.B152 schreef op maandag 21 januari 2019 @ 19:41:
[...]
Hoe wil je het na die 5 jaar dan met tapwater gaan doen? Losse warmtepomp boiler?
@koevlaas2 Kan het ook zijn dat nieuwbouw in eerste instantie nog veel vocht bevat en daardoor het eerste jaar aanzienlijk meer verstookt?
Volgens mij valt dat bouwvocht verhaal wel mee, is meer in eerste instantie een blok aan het been om de vloer op te stoken. Maar na een weekje gaat het al veel beter.
13,1 kWp, Ecodan R32 7,5 , WTW ventilatie, Daikin FTXM35M(R) (5x), Doorstroomverwarmer, Douche WTW, Emco Novette Twin met LFP accu 51.2V 40Ah, Opel Vivaro DC L3H1 75kW (12-2022).
Variabelen kosten vallen met de douche WTW wel mee gok ik.. Ik vind het ook zonde om 5 jaar voor nop vastrecht te betalen, dan koop ik liever voor het geld wat ik nu uitspaar op de boiler wat extra PV.B152 schreef op maandag 21 januari 2019 @ 19:41:
[...]
Hoe wil je het na die 5 jaar dan met tapwater gaan doen? Losse warmtepomp boiler? Beter nu, heb je nog subsidie, over 5 jaar niet. Weet natuurlijk niet wat je (variabele) kosten zijn voor SWW maar misschien interessant om toch even te vergelijken
@koevlaas2 Kan het ook zijn dat nieuwbouw in eerste instantie nog veel vocht bevat en daardoor het eerste jaar aanzienlijk meer verstookt?
Hoe ik het over 5 jaar ga doen zie ik dan wel. Of een losse warmtepomp boiler of een boiler op de Aquarea.
Ik heb al een loze waterleiding naar zolder voorbereid voor een toekomstige boiler.
[ Voor 29% gewijzigd door revolution-nl op 21-01-2019 19:58 ]
Vroemt met EV | 10.000WP | 14kWh Thuisaccu | 2x MHI SRK/SRC 35 ZS | LG-WH27s Boiler
ik haat ennatuurlijk, (en hun mij ook ondertussenrevolution-nl schreef op maandag 21 januari 2019 @ 19:36:
[...]
Panasonic Aquaera Mono 7kw - 7000 euro incl. installatie (+ afkoppelen stadsverwarming, exl buffervat).
Wellicht dat dit nog een 5kw wordt, ik vind het net zo'n twijfelgeval..
Tap nemen ik voorlopig nog van het warmtenet af gezien ik nog vastzit aan ennatuurlijk door een wurgcontract van 5 jaar (kreeg je gratis bij de woning)
Gasloos sinds 2018.
Weinig tot geen uitleg gehad. "Ik wist er toch meer van aangezien ik een hoop via internet had uitgezocht".Chris_82 schreef op maandag 21 januari 2019 @ 11:20:
@Boeie en o.a. @stamppot
2-zone systeem en flow
Je bent een van de weinige hier op het forum met een 2-zone Loria. Heb je enige uitleg gekregen hoe het werkt als 2 zones, 2 verschillende aanvoertemperaturen willen? Wordt er retourwater bijgemengd om een lagere Ta te halen? (en dus moet de stooklijn van zone 1 altijd hoger of gelijk staan dan die van zone 2?)
De Loria 6008 heeft minimaal 10 L/min nodig, anders krijg je een flow storing. Zorg dus dat de groepen voldoende openstaan (alleen in Zone 1 (hoofdzone)) om deze flow te behalen. Wordt het te warm, dan stooklijn omlaag. Buffervat lijkt mij geen noodzaak.
Teveel geluid binnen kan betekenen teveel weerstand in de leidingen. In zone 1 zoveel mogelijk alle kranen open zetten. Als je voldoende flow hebt (>10 L/min) kan de pompstand lager voor minder geluid.
De werking is dat zone 1 altijd warmer moet zijn (dat is hij nu niet bij mij, valt mij nu op in onderstaand overzicht). Zone 2 wordt bijgemengd met retourwater idd.
Elec CV element nu ook uitgezet, overige parameters zie onderstaand. Stooklijn had de installateur niet aangepast, heb ik aangepast voorzichtig na opmerking Techneco.verbruik en stooklijn
Maak je geen zorgen over uitschieters in het verbruik van 30-40 kWh. Met mijn Loria 6010 zat ik voor zondag op 48.4kWh incl. SWW.
Als je geen koudeklachten hebt, schakel het elektrisch CV-element handmatig uit totdat het echt nodig is. Als deze actief meedoet, ja, dan mag je je wel zorgen gaan maken over het stroomgebruik!
Stooklijnen van 0.5 en 0.6 voor vloerverwarming is een beetje jammer, duidt op een installateur die op veilig gaat?
Mijn voorstel: p30 = 0.2, p31 = 5, p33 = 50%, p50 = 0.2, p21=5, p53 = 50%. Als het met koud weer niet helemaal lekker warm wordt, p30/p50 een klein stapje hoger (+0.1).
Heb geopteerd voor een Tado, maar dit mocht niet, want werd niet ondersteund door Techneco. Vind het een goede optie, jammer dat ik net 500 euro heb uitgegeven aan 2 T6R's...ruimtemodule/thermostaat
Helemaal mee eens, die standaard ruimtemodule is niks. Heb afgelopen najaar verschillende uitgeprobeerd. HCTM is een grote verbetering (of iSense). Draadloos vond ik de T6R ook geen succes, tado+extensiekit kan ik aanbevelen als draadloos alternatief.
De standaardregeling (WAR+RT) van de Loria heeft een best groot aantal graadminuten, waardoor de warmtepomp effectief een hysterese van +/-1 graad heeft om aan (-1) en uit (+1) te gaan. Je installateur kan dit aanpassen, of je kan zelf gaan spelen met de ketelinstellingen op de HCTM (p49 = 60 --> 50/40/30). Opvallend is dat de tado thermostaat deze hysterese weet te overrulen.
Zie ook onderstaand. Boiler is ruim voldoende voor ons. Laat hem op 55 staan.SWW programma
Ik mag er toch vanuit gaan dat de grootte van de boiler voldoende is voor dagelijks gebruik (xx personen douchen + afwasjes)? Dan heb je het eco-programma helemaal niet nodig (zet op 20 C?). De boiler behoudt zijn gelaagdheid en blijft warm genoeg, verliest bovenin maar een paar graden. Met het starten van een eco-SWW programma wordt de gelaagdheid verstoord, wat eigenlijk contra-productief is. Mocht het nodig zijn vanwege bovengemiddeld SWW gebruik, gebruik dan de SWW-boost functie.
Ondanks dat de Loria op vol gas SWW maakt verlies je toch veel tijd als je vaker op een dag SWW gaat maken.
Voor comfort en zekerheid (WAF) kun je er voor kiezen toch 55/45 te blijven gebruiken (of 2x comfort programma).
Ok, ik weet niet hoevaak dit voor moet komen namelijk, is natuurlijk ook afhankelijk van het weerDefrosts, weinig aan te doen, wees blij dat ze gebeuren. Hier ook vrijwel elk uur de laatste dagen.
Ok, op basis van bovenstaand verhaal de parameters naast elkaar gezet en de aanpassingen doorgevoerd.Boeie schreef op maandag 21 januari 2019 @ 11:32:
[...]
Ontzettend bedankt Chris! Ik ga er vanavond even mee aan de slag en zal je feedback geven. Heb ook een excel overzicht gemaakt met mijn parameterwaardes en wil dit op datum bijhouden om zo tot een goed overzicht te komen.
mbt SWW, 2 personen + 1 peuter. Voor WW in de keuken gebruik ik primair een quooker Combi+ voor.
En qua thermostaat, de tado mocht niet geinstalleerd worden, want die wordt niet ondersteund door Techneco...
Beneden kan ik een bedrade monteren, boven een draadloze nodig.
Mijn SWW staat gewoon op 55.
Thermostaat zone 1 vast op 20,5
Thermostaat zone 2 vast op 18
Alle groepen van zone 1 helemaal opengedraaid.
In dit overzicht staan de std waardes uit de Loria installateurshandleiding, de waardes waarop de installateur hem heeft ingesteld op 18-11 en de waardes die ik zelf in de loop van de tijd al iets had aangepast (1-12). Aanpassing 21-1 is van vandaag

We gaan het zien.
@Chris_82 nog 1 opmerking, wel de std. aanvoertemp laten staan? (dus std 50 en 45?) Dit was dan wel aangepast naar 35 voor beide. Of op 40/35 zetten?
Vergeten te vermelden dat er hier in huis ook nog een balansventilatie met WTW draait, Brink renovent Excellent 400, ingesteld std op 100m3 p/u en met co2 sturing (voeler in buis). Hier moet ik ook nog naar kijken hoe de parameters zijn ingesteld, maar dat is voor een ander topic. Ook hier weer discussie/meningsverschil gehad. Installateur geeft aan beide systemen moeten onafhankelijk van elkaar geregeld worden, maar hoe kan dat nou, ze bedienen dezelfde ruimtes, dus moet het in balans zijn...
[ Voor 14% gewijzigd door Boeie op 21-01-2019 20:29 ]
Het verschil tussen de 5 en de 7 is niet groot, met de 7 krijg je niet veel "extra", als ik moest kiezen zou het 5kW pana zijn of de 7,5 hitachi.revolution-nl schreef op maandag 21 januari 2019 @ 19:52:
Als ik de verhalen hier zo hoor over het wp vermogen toch maar eens bij panasonic navraag doen over het modulatie bereik 5kw versus 7kw, als je het achteraf niet warm krijgt is het ook zuur.
[...]
Variabelen kosten vallen met de douche WTW wel mee gok ik.. Ik vind het ook zonde om 5 jaar voor nop vastrecht te betalen, dan koop ik liever voor het geld wat ik nu uitspaar op de boiler wat extra PV.
Hoe ik het over 5 jaar ga doen zie ik dan wel. Of een losse warmtepomp boiler of een boiler op de Aquarea.
Ik heb al een loze waterleiding naar zolder voorbereid voor een toekomstige boiler.
Noord-Oost-Zuid-West 11640Wp Totaal Live, Netduino advanced pv logging
Ligt ook aan de bouwwijze, mijn huis is kalkzandsteen en heeft een dak zonder gaten (geen dakraam oid).
Sinds de dakplaten er op liggen is het binnen dus aan het drogen geweest en vanaf oplevering kurkdroog. Buren hadden een dakkapel en dus een winter lang een gat in het dak. Dat was niet goed voor de steenwol dakisolatie en hun huis is nu nog vochtiger.
Beton, zeker in het werk gestort, heeft meer water schijnt
@revolution-nl
Wat betreft modulatiebereik: in de installateurshandleiding staat vaak wel een grafiek of tabel van min/max thermisch en elektrisch vermogen versus buitenluchttemperatuur.

Voor de Pana heeft het design handbook de meeste info, maar er staat niet in wat je weten wil:
https://www.panasonicproc...A2W_2018_DesignManual.pdf
Het ik-wil-een-warmtepomp FAQ topic- '23 MG5, douchen met wtw en Auer Edel Eau, verwarming met Vaillant Arotherm Plus.
Om een reactie te geven ofdat warmte pompen het huis warm kunnen houden
En ofdat deze warmte pompen geld besparen
Dus tweakers grijp je kans, en reageer met jullie expertise
Dan kan je je aanmelden bij radar. Ben benieuwd of we weer alleen slechte verhalen te horen krijgen.
https://radar.avrotros.nl.../ervaring-met-warmtepomp/
Je was me net voorMurkmans schreef op maandag 21 januari 2019 @ 21:00:
Iemand nog tijd en zin om een tegengeluid te geven over alle negatieve geluiden uit de media over warmtepompen?
Dan kan je je aanmelden bij radar. Ben benieuwd of we weer alleen slechte verhalen te horen krijgen.
https://radar.avrotros.nl.../ervaring-met-warmtepomp/
32 kWp PV + 54kWh ESS+ 7.5 kW Mitsubishi Ecodan
Waar komt alle negativiteit dan vandaan? Ik had zojuist voor het eerst gepost hier met de vraag wat het verbruik van onze Alpha innotec LDW70 A/RX + WWS202 zou zijn en ik ben wel benieuwd waar de 'boeroepers' het over hebben.Murkmans schreef op maandag 21 januari 2019 @ 21:00:
Iemand nog tijd en zin om een tegengeluid te geven over alle negatieve geluiden uit de media over warmtepompen?
Dan kan je je aanmelden bij radar. Ben benieuwd of we weer alleen slechte verhalen te horen krijgen.
https://radar.avrotros.nl.../ervaring-met-warmtepomp/
Ik kan nog niet meepraten want over 9 weken woon ik pas in een huis met warmtepomp.
[ Voor 6% gewijzigd door power_user op 21-01-2019 21:12 ]
PSN: Oldzkoel
Aangemeld, niets te verliezenMurkmans schreef op maandag 21 januari 2019 @ 21:00:
Iemand nog tijd en zin om een tegengeluid te geven over alle negatieve geluiden uit de media over warmtepompen?
Dan kan je je aanmelden bij radar. Ben benieuwd of we weer alleen slechte verhalen te horen krijgen.
https://radar.avrotros.nl.../ervaring-met-warmtepomp/
21xDMEGC 440wp (9240) ||| Pana 9j
Ik ook, ik ga graag de discussie aan met lui die denken dat een warmtepomp niet werkt.
13,1 kWp, Ecodan R32 7,5 , WTW ventilatie, Daikin FTXM35M(R) (5x), Doorstroomverwarmer, Douche WTW, Emco Novette Twin met LFP accu 51.2V 40Ah, Opel Vivaro DC L3H1 75kW (12-2022).
Verandering zijn eng.. ik ben inmiddels helemaal moe van de verjaardagen waar jan en alleman alleen maar cynisch is over zonnepanelen, warmtepompen en elektrische auto's, alles moet het liefst blijven zoals het al jaren was want daar is men vertrouwt mee.power_user schreef op maandag 21 januari 2019 @ 21:07:
[...]
Waar komt alle negativiteit dan vandaan? Ik had zojuist voor het eerst gepost hier met de graag wat het verbruik van onze Alpha innotec LDW70 A/RX + WWS202 zou zijn en ik ben wel benieuwd waar de 'boeroepers' het over hebben.
Ik kan nog niet meepraten want over 9 weken woon ik pas in een huis met warmtepomp.
Ondertussen maar jammeren dat de energierekening de pan uit rijst.
Wat dat betreft vraag ik mij echt af hoelang het nog moet duren voordat de meute om is. We hebben nog een heeeeeeeeeeele lange weg te gaan
Vroemt met EV | 10.000WP | 14kWh Thuisaccu | 2x MHI SRK/SRC 35 ZS | LG-WH27s Boiler
Ik ook, wordt misschien wel een gezellig tweakers avondje
Ook aangemeld, maar omdat je geen extra toelichting kunt geven heb ik ingevuld dat ik mijn huis niet warm krijg en geen lagere energierekening heb.Murkmans schreef op maandag 21 januari 2019 @ 21:00:
Iemand nog tijd en zin om een tegengeluid te geven over alle negatieve geluiden uit de media over warmtepompen?
Dan kan je je aanmelden bij radar. Ben benieuwd of we weer alleen slechte verhalen te horen krijgen.
https://radar.avrotros.nl.../ervaring-met-warmtepomp/
Ik denk dat ik dan meer kans heb dat ze contact met mij opnemen en maak ik er dan alsnog een positief verhaal van
Waarbij het dan natuurlijk de vraag is of ze het dan nog wel uit willen zenden, want ja, een warmtepomp en een positief verhaal, dat past niet in het radar-concept
Edit: Overigens lieg ik ook nog niet eens met dit verhaal, de warmtepomp krijgt het met deze temperaturen niet warm, maar dat was met de ketel ook al zo, iets met oude vloerverwarming met te weinig afgiftevermogen. De energierekening is ook niet gedaald, maar min of meer gelijk gebleven, terwijl het 1 á 2 graden warmer is in huis. Dat is dus wel een netto-winst, maar daar vragen ze niet naar...
[ Voor 19% gewijzigd door Stoofie op 21-01-2019 21:24 ]
@Liander:Ja, ik snap dat jullie een probleem hebben, en nee, dat geeft jullie niet het recht ons op een ongeoorloofde manier geld af proberen te troggelen... Dank voor het crediteren van de onterechte factuur, nu de rest van Nederland nog...
Nog geen hele discussie dat "we" van het gas af moeten? Pas nog iemand, dat kan toch niet zomaar, dat is heel moeilijk. Als ik dan uitleg hoe het hier zit wordt het angstvallig stil.revolution-nl schreef op maandag 21 januari 2019 @ 21:13:
[...]
Verandering zijn eng.. ik ben inmiddels helemaal moe van de verjaardagen waar jan en alleman alleen maar cynisch is over zonnepanelen, warmtepompen en elektrische auto's, alles moet het liefst blijven zoals het al jaren was want daar is men vertrouwt mee.
Ondertussen maar jammeren dat de energierekening de pan uit rijst.![]()
Wat dat betreft vraag ik mij echt af hoelang het nog moet duren voordat de meute om is. We hebben nog een heeeeeeeeeeele lange weg te gaan
Noord-Oost-Zuid-West 11640Wp Totaal Live, Netduino advanced pv logging
Ik zie je al zitten op zo'n verjaardag: Ja dan zet je gewoon een zwembad warmtepomp op zolder.....Rol-Co schreef op maandag 21 januari 2019 @ 21:23:
[...]
Nog geen hele discussie dat "we" van het gas af moeten? Pas nog iemand, dat kan toch niet zomaar, dat is heel moeilijk. Als ik dan uitleg hoe het hier zit wordt het angstvallig stil.
13,1 kWp, Ecodan R32 7,5 , WTW ventilatie, Daikin FTXM35M(R) (5x), Doorstroomverwarmer, Douche WTW, Emco Novette Twin met LFP accu 51.2V 40Ah, Opel Vivaro DC L3H1 75kW (12-2022).
koevlaas2 schreef op maandag 21 januari 2019 @ 21:24:
[...]
Ik zie je al zitten op zo'n verjaardag: Ja dan zet je gewoon een zwembad warmtepomp op zolder.....
Verjaardagen doe ik niet aan. De zwp was een leuk begin, vaak meld ik alleen dat ik 440,- terug kreeg, de slimme komen dan met " dat ligt er aan wat je betaald hebt" en na het melden van 10,- per maand word het weer stil.
Noord-Oost-Zuid-West 11640Wp Totaal Live, Netduino advanced pv logging
@Oxellaar Vandaag hadden weer een hoge druk melding op het display van de carrier 60kw warmtepomp.
3 x 20 kw aan uit warmtepomp.
Nu zijn de afgelopen weken al een aantal onderdelen vervangen maar helaas lost dit niet veel op.
Nu vermoeden wij dat tijdens een defrost de carrier zijn vermogen niet kwijt kan en dat daarom een hoge druk melding komt.
Zou dit kunnen ?
Ik neem aan dat de elke warmtepomp op vermogen zijn ontdooi cyclus uitvoert, of kan dit ook met 20kw?
De negatieve reacties komen van mensen die zich niet inlezen, niet voorbereiden en niet stoken volgens het protocol etc.power_user schreef op maandag 21 januari 2019 @ 21:07:
[...]
Waar komt alle negativiteit dan vandaan? Ik had zojuist voor het eerst gepost hier met de vraag wat het verbruik van onze Alpha innotec LDW70 A/RX + WWS202 zou zijn en ik ben wel benieuwd waar de 'boeroepers' het over hebben.
Ik kan nog niet meepraten want over 9 weken woon ik pas in een huis met warmtepomp.
In een nieuwbouw woning zal je nagenoeg geen slechte ervaring hebben met een warmtepomp door de goede isolatie. Houd er wel rekening mee dat je geen/weinig nachtverlaging moet toepassen, maar juist lekker alles op 1 temperatuur kan houden
Hier vindt je wat meer documentatie van je model. https://www.nathan.nl/service-support/kennisbank/
https://www.nathan.nl/wp-...018/06/LWD_70A-RX-HTD.pdf
Je hebt ex. element nog 5,58kw over bij -7. Dat zou in jou situatie al voldoende zijn denk ik.
Als je rekening houdt met een verbruik van 2000kw is dat geen gekke gedachte denk ik.
Te ver ingevroren, defrost te laat of sensoren op de verkeerde plek?Ramon_1984 schreef op maandag 21 januari 2019 @ 21:33:
[Afbeelding]
@Oxellaar Vandaag hadden weer een hoge druk melding op het display van de carrier 60kw warmtepomp.
3 x 20 kw aan uit warmtepomp.
Nu zijn de afgelopen weken al een aantal onderdelen vervangen maar helaas lost dit niet veel op.
Nu vermoeden wij dat tijdens een defrost de carrier zijn vermogen niet kwijt kan en dat daarom een hoge druk melding komt.
Zou dit kunnen ?
Ik neem aan dat de elke warmtepomp op vermogen zijn ontdooi cyclus uitvoert, of kan dit ook met 20kw?
Noord-Oost-Zuid-West 11640Wp Totaal Live, Netduino advanced pv logging
24/7 21,5C beneden 20gr gemiddeld op de 1ste en 2de verdieping. Overal vvw.
Dit was mijn verbruik. Zaterdag de19de 29,5kWh en zondag 26,3kWh. Vandaag tot nu toe 26kWh.
Fossielbrandstofloos huis en -vervoer vanaf november 2024
Opgelost, blijkt dat de ingebouwde buiten temperatuur tijdens de defrostChip2710 schreef op maandag 21 januari 2019 @ 16:32:
[...]
Okay, het is al een stuk duidelijker.
Ik zit alleen nog te kijken naar de Supply Setting Offset, welke invloed heeft deze?
Schakelt de heater ON daar op i.pv. de Ta?
En de Waiting Time, wacht tijd waarvoor?
omhoog schiet, afhankelijk van de windrichting op dat moment. Hierdoor valt
de temp. buiten de bivalent ingestelde temp. Tijdelijk deze temp. omhoog
gezet en nu werkt het.
Moet dus een externe temp.voeler geplaatst worden.
Kan iemand mij aangeven welke externe voeler ik moet toepassen.
Itho WPU_5G. 3.5
Mmm, dat is een goed idee .Rol-Co schreef op maandag 21 januari 2019 @ 21:39:
[...]
Te ver ingevroren, defrost te laat of sensoren op de verkeerde plek?
Ga morgenochtend even kijken
Zou toch zonde zijn als ze die functie geschrapt hebben.
[ Voor 20% gewijzigd door godfriedd op 21-01-2019 21:49 ]
Misschien dat er nog wat te regelen is met je installateur, omruilen voor een HCTM? (Techneco/Anna/Loria al iets bekend?). Anders is MP je grote vriend.Boeie schreef op maandag 21 januari 2019 @ 20:20:
[...]
Heb geopteerd voor een Tado, maar dit mocht niet, want werd niet ondersteund door Techneco. Vind het een goede optie, jammer dat ik net 500 euro heb uitgegeven aan 2 T6R's...
'niet ondersteund' moet je heel letterlijk lezen, ze bieden er geen hulp voor aan omdat het teveel werk is alle thermostaten te kennen. Het werkt uitstekend, Slechts een heel enkele opentherm thermostaat is niet compatibel (waaronder de draadloze iSense en draadloze T4R).
Heb je al eens naar p6 (flow in L/min) in het info menu gekeken, wat doet dit bij de verschillende pompstanden?[...]
Thermostaat zone 1 vast op 20,5
Thermostaat zone 2 vast op 18
Alle groepen van zone 1 helemaal opengedraaid.
In dit overzicht staan de std waardes uit de Loria installateurshandleiding, de waardes waarop de installateur hem heeft ingesteld op 18-11 en de waardes die ik zelf in de loop van de tijd al iets had aangepast (1-12). Aanpassing 21-1 is van vandaag![]()
[Afbeelding]
We gaan het zien.
@Chris_82 nog 1 opmerking, wel de std. aanvoertemp laten staan? (dus std 50 en 45?) Dit was dan wel aangepast naar 35 voor beide. Of op 40/35 zetten?
Max aanvoertemperatuur kun je evt op 40 zetten als een soort beveiliging voor je vloerverwarmingsslangen, maar zul je met de lagere stooklijn niet snel bereiken.
14.4kWp, Loria Duo 6010, VWTW, DWTW, full-electric, MY RWD

Duidelijk tot zover
Maar wat mij opvalt en wat ik nog niet begrijp is dat het opgenomen vermogen minder is bij -15 vergeleken met -7 in de tabel, iemand een verklaring of uitleg?
Is Carrier hier zelf al bij geweest? Gaat een defrost niet veel te lang door? Want een droge condensor kan minder vermogen aan dan één vol ijs.Ramon_1984 schreef op maandag 21 januari 2019 @ 21:33:
[Afbeelding]
@Oxellaar Vandaag hadden weer een hoge druk melding op het display van de carrier 60kw warmtepomp.
3 x 20 kw aan uit warmtepomp.
Nu zijn de afgelopen weken al een aantal onderdelen vervangen maar helaas lost dit niet veel op.
Nu vermoeden wij dat tijdens een defrost de carrier zijn vermogen niet kwijt kan en dat daarom een hoge druk melding komt.
Zou dit kunnen ?
Ik neem aan dat de elke warmtepomp op vermogen zijn ontdooi cyclus uitvoert, of kan dit ook met 20kw?
Zelfs dan blijft het natuurlijk vreemd, want HD storing is vaak pas bij 42bar....
En een kant en klare chiller/warmtepomp heeft op elkaar afgestemde onderdelen, dus vermogen moet geen probleem zijn.
Als dat wel het geval is, dan zou koelen bij 35c buitenT een veel groter probleem zijn dan een defrost bij -5.
Maar met 20 of 40kW kun je ook een defrost doen, alleen dan duurt het natuurlijk veel langer.
Maar kan er geen log uit de machine gehaald worden van de laatste minuten/uren voor de storing?
Want ik verwacht niet dat het een vermogen probleem is, maar iets anders wat hapert ..... 4wegklep...?
Blijft lastig.
Veel ijs zou juist een lagere druk opleveren en juist meer vermogen vragenRol-Co schreef op maandag 21 januari 2019 @ 21:39:
[...]
Te ver ingevroren, defrost te laat of sensoren op de verkeerde plek?
En een sensor op een verkeerde plek, kan maar waarom alleen tijdens een defrost.
Maar het is morgen ideaal weer om de storing op te wekken...Sneeuw, koud...regen enz.
Gewoon monitoren via de AquaSmart (?) @Ramon_1984
[ Voor 14% gewijzigd door Oxellaar op 21-01-2019 21:58 ]
MG4 Luxury - Samsung A3050/AR7000 - Elga 3.0 - ME WSH-LN25I Diamond
Voor zover ik heb kunnen vinden (heb nogal wat uitgezocht hierover), kan dat wel. Maar had jij geen toegang tot een 75YAA? Dan zou je het makkelijk kunnen testen. Ben benieuwd.godfriedd schreef op maandag 21 januari 2019 @ 21:45:
Weet iemand hier of de nieuwe types van Mitsubishi (De VAA/YAA-types) ook kunnen worden uitgerust met het kabeltje om ze terug te regelen? Dat kabeltje heeft officieel artikelnummer pac-sc36na-e. Ik ben er erg blij mee bij mijn versie (SW75VHA) waar ik wissel tussen 50/75/100% maar in de handleidingen van de VAA/YAA is het hele hoofdstuk dat gaat over de low-noise-functies verdwenen (normaal staat dat in hoofdstuk 'speciale functies'). Bovendien staat in de omschrijving van dipswitch 7-1, die bij het oude model de functie activeert of deactiveert nu dat de dipswitch 'geen functie' meer heeft....
Stel nou trouwens dat de gebruikte JST connector (als het al een JST connector is, maar dat zou zomaar kunnen) een pin-pitch heeft van 2mm, dan heb ik vanavond een veel goedkopere variant van het dure kabeltje van Mitsubishi gevonden:
http://domoticx.nl/webwin...th=69_331&product_id=2465
Mocht het een andere pitch zijn (jij kunt die vast wel even meten toch? Wel even eerst de stroom uitschakelen, voordat je met een stalen schuifmaat kortsluiting op de print maakt), dan bied ik bij dezen aan om een passend en veel goedkoper kabeltje te zoeken.
Dit schema heb ik ooit gevonden:

En gezien het feit dat een 75YAA deze CNDM connector nog steeds heeft, lijkt het me alleszins het proberen waard.
@godfriedd Volgens mij heeft het kabeltje van Mitsubishi die ingebouwde weerstanden toch? Die moet je er bij een goedkoop kabeltje dan wel even zelf in solderen. Weet jij de waarde nog en in welke aders die moesten?
[ Voor 12% gewijzigd door Andrehj op 21-01-2019 22:07 ]
WP: ME PUHZ-SW75YAA + ERSD-VM2D + EV-WP-TWS-1W 300; AC: ME MXZ-2F42VF + 2x MSZ-LN25VGV; PV: 14.08 kWp O/W + SMA STP 8.0; Vent: Zehnder Q600 ERV + Ubbink AirExcellent.
Carrier is er bij geweest en heeft 3 relais vervangen, morgen maar eens defrosten creërenOxellaar schreef op maandag 21 januari 2019 @ 21:53:
[...]
Is Carrier hier zelf al bij geweest? Gaat een defrost niet veel te lang door? Want een droge condensor kan minder vermogen aan dan één vol ijs.
Zelfs dan blijft het natuurlijk vreemd, want HD storing is vaak pas bij 42bar....
En een kant en klare chiller/warmtepomp heeft op elkaar afgestemde onderdelen, dus vermogen moet geen probleem zijn.
Als dat wel het geval is, dan zou koelen bij 35c buitenT een veel groter probleem zijn dan een defrost bij -5.
Maar met 20 of 40kW kun je ook een defrost doen, alleen dan duurt het natuurlijk veel langer.
Maar kan er geen log uit de machine gehaald worden van de laatste minuten/uren voor de storing?
Want ik verwacht niet dat het een vermogen probleem is, maar iets anders wat hapert ..... 4wegklep...?
Blijft lastig.
[...]
Veel ijs zou juist een lagere druk opleveren en juist meer vermogen vragen![]()
En een sensor op een verkeerde plek, kan maar waarom alleen tijdens een defrost.
Maar het is morgen ideaal weer om de storing op te wekken...Sneeuw, koud...regen enz.
Gewoon monitoren via de AquaSnap (?) @Ramon_1984
Aquasnap , dat hebben wij op de technische dienst niet
Enige waar ik naar kan kijken is priva
Weet ik, maar je moet ze eens de kost geven die zeggen hogedruk storing maar is lage.
Ook de kou buiten kan een probleem zijn soms, maar dan heb ik het over koeling met pressostaten die kritisch staan.
Noord-Oost-Zuid-West 11640Wp Totaal Live, Netduino advanced pv logging
@godfriedd Staat op minder dan 20m afstand een YAA, je broer vindt het vast niet erg dat je 'm even open schroeft.
13,1 kWp, Ecodan R32 7,5 , WTW ventilatie, Daikin FTXM35M(R) (5x), Doorstroomverwarmer, Douche WTW, Emco Novette Twin met LFP accu 51.2V 40Ah, Opel Vivaro DC L3H1 75kW (12-2022).
Die YAA die bij mijn broer staat wil ik hier inderdaad ook mee uitrusten en die van mezelf heb ik ook gemaakt van een kabeltje dat ik nog had liggen van een RGB-ledstrip. Officieel hoort er in elke draad ook nog een 1,2 kOhm weerstand te zitten hoewel ik geen idee heb of er dingen kapot gaan als je die weg laat. Het is in ieder geval zonde om 30-40 euro voor zo'n kabeltje te betalen want het stelt werkelijk niets voor. Volgens mij was de pitch inderdaad 2 maar het kan ook 1,5 of 1,75 zijn.Andrehj schreef op maandag 21 januari 2019 @ 21:59:
[...]
Voor zover ik heb kunnen vinden (heb nogal wat uitgezocht hierover), kan dat wel. Maar had jij geen toegang tot een 75YAA? Dan zou je het makkelijk kunnen testen. Ben benieuwd.
Stel nou trouwens dat de gebruikte JST connector (als het al een JST connector is, maar dat zou zomaar kunnen) een pin-pitch heeft van 2mm, dan heb ik vanavond een veel goedkopere variant van het dure kabeltje van Mitsubishi gevonden:
http://domoticx.nl/webwin...th=69_331&product_id=2465
Mocht het een andere pitch zijn (jij kunt die vast wel even meten toch? Wel even eerst de stroom uitschakelen, voordat je met een stalen schuifmaat kortsluiting op de print maakt), dan bied ik bij dezen aan om een passend en veel goedkoper kabeltje te zoeken.
Dit schema heb ik ooit gevonden:
[Afbeelding: CNDM connector]
Ik vind het alleen een beetje tricky om het te gaan proberen als hij niet geschikt is voor dit nieuwe type warmtepomp. Heb jij het wel echt in een handleiding van de nieuwe types gevonden? Want als dat zo is durf ik het wel aan maar tot nog toe vind ik alleen info over low-noise en demand-functies in de handleidingen van de oude types...
Aquasnap is de bediening die.waarschijnlijk, op de unit zelf zit.Ramon_1984 schreef op maandag 21 januari 2019 @ 22:01:
[...]
Carrier is er bij geweest en heeft 3 relais vervangen, morgen maar eens defrosten creëren
Aquasnap , dat hebben wij op de technische dienst niet.
Enige waar ik naar kan kijken is priva
@Rol-Co Lage druk tijdens defrost...dat geeft, waterzijdige lage temperatuur meldingen op je verdamper. >3c water.
En ik denk niet dat deze machine nog de handmatig verstelbare pressostaten heeft. Ik begreep eerder al dat hij niet echt oud was....?
En...lage druk is vaak niet vergrendelend als storing, alleen blokkerend, herstelt dus vanzelf.
[ Voor 3% gewijzigd door Oxellaar op 21-01-2019 22:09 ]
MG4 Luxury - Samsung A3050/AR7000 - Elga 3.0 - ME WSH-LN25I Diamond
6 is nu 30.3 bij pompstand 3.Chris_82 schreef op maandag 21 januari 2019 @ 21:47:
[...]
Misschien dat er nog wat te regelen is met je installateur, omruilen voor een HCTM? (Techneco/Anna/Loria al iets bekend?). Anders is MP je grote vriend.
'niet ondersteund' moet je heel letterlijk lezen, ze bieden er geen hulp voor aan omdat het teveel werk is alle thermostaten te kennen. Het werkt uitstekend, Slechts een heel enkele opentherm thermostaat is niet compatibel (waaronder de draadloze iSense en draadloze T4R).
[...]
Heb je al eens naar p6 (flow in L/min) in het info menu gekeken, wat doet dit bij de verschillende pompstanden?
Max aanvoertemperatuur kun je evt op 40 zetten als een soort beveiliging voor je vloerverwarmingsslangen, maar zul je met de lagere stooklijn niet snel bereiken.
Aanvoer p3 23c
P4 29.5
Retour p5 24
Dat is niet goed dus, alhoewel het kan zijn dat hij stond te defrosten...
Pomp naar stand 2, 28.8 l/min
Aanvoer 26.5
Retour p5 23.4
P7 compressor 60% (was 52%)
Dit moet ik nog even beter bekijken als ik zeker weet dat hij niet defrost.
Dat laat ik graag aan andere Tweakers over, volgens mijn vrouw krijgen wij al voldoende WP bezoekers over de vloerMurkmans schreef op maandag 21 januari 2019 @ 21:00:
Iemand nog tijd en zin om een tegengeluid te geven over alle negatieve geluiden uit de media over warmtepompen?
Dan kan je je aanmelden bij radar. Ben benieuwd of we weer alleen slechte verhalen te horen krijgen.
https://radar.avrotros.nl.../ervaring-met-warmtepomp/
Bij mij werkt nachtverlaging van 1 graad juist fantastisch goed met die dikke betonnen vloeren.Murkmans schreef op maandag 21 januari 2019 @ 21:38:
[...]
In een nieuwbouw woning zal je nagenoeg geen slechte ervaring hebben met een warmtepomp door de goede isolatie. Houd er wel rekening mee dat je geen/weinig nachtverlaging moet toepassen, maar juist lekker alles op 1 temperatuur kan houden.
Gewoon 12 uur aan, 12 uur uit. Vanaf 's morgens 10:00 aan, en dan rustig low & slow in 12 uur tijd de vloer opwarmen, en daarna bevat de vloer zoveel energie dat de WP gewoon 12 uur uit kan.
In huidig stookseizoen slechts 2 x (gisteren en vandaag) gehad dat de WP eerder aanging als 10:00
24*7 zou wel kunnen, maar dan moet ik met zo'n lage Ta gaan werken dat de vloer kil wordt. Been there, done that, geen succes @huize Grolsch.
Machine is 1,5 jaar oud.Oxellaar schreef op maandag 21 januari 2019 @ 22:08:
[...]
Aquasnap is de bediening die.waarschijnlijk, op de unit zelf zit.
@Rol-Co Lage druk tijdens defrost...dat geeft, waterzijdige lage temperatuur meldingen op je verdamper. >3c water.
En ik denk niet dat deze machine nog de handmatig verstelbare pressostaten heeft. Ik begreep eerder al dat hij niet echt oud was....?
En...lage druk is vaak niet vergrendelend als storing, alleen blokkerend, herstelt dus vanzelf.
Morgen maar eens spelen met aquasnap
Ik meen mij te herinneren dat RUR ook eens het paard van Troje had zitten, ging over polygamie oid en toen zaten er een paar die deden alsof (Trollen).Stoofie schreef op maandag 21 januari 2019 @ 21:15:
[...]
Ook aangemeld, maar omdat je geen extra toelichting kunt geven heb ik ingevuld dat ik mijn huis niet warm krijg en geen lagere energierekening heb.
Ik denk dat ik dan meer kans heb dat ze contact met mij opnemen en maak ik er dan alsnog een positief verhaal van
Waarbij het dan natuurlijk de vraag is of ze het dan nog wel uit willen zenden, want ja, een warmtepomp en een positief verhaal, dat past niet in het radar-concept
Edit: Overigens lieg ik ook nog niet eens met dit verhaal, de warmtepomp krijgt het met deze temperaturen niet warm, maar dat was met de ketel ook al zo, iets met oude vloerverwarming met te weinig afgiftevermogen. De energierekening is ook niet gedaald, maar min of meer gelijk gebleven, terwijl het 1 á 2 graden warmer is in huis. Dat is dus wel een netto-winst, maar daar vragen ze niet naar...
13,1 kWp, Ecodan R32 7,5 , WTW ventilatie, Daikin FTXM35M(R) (5x), Doorstroomverwarmer, Douche WTW, Emco Novette Twin met LFP accu 51.2V 40Ah, Opel Vivaro DC L3H1 75kW (12-2022).
Daarom ook geen/weinigGrolsch schreef op maandag 21 januari 2019 @ 22:15:
[...]
Dat laat ik graag aan andere Tweakers over, volgens mijn vrouw krijgen wij al voldoende WP bezoekers over de vloerMaar als iemand van jullie in de uitzending komt graag ff melden
Voorlaats @Bram-Bos al mogen bewonderen
[...]
Bij mij werkt nachtverlaging van 1 graad juist fantastisch goed met die dikke betonnen vloeren.
Gewoon 12 uur aan, 12 uur uit. Vanaf 's morgens 10:00 aan, en dan rustig low & slow in 12 uur tijd de vloer opwarmen, en daarna bevat de vloer zoveel energie dat de WP gewoon 12 uur uit kan.
In huidig stookseizoen slechts 2 x (gisteren en vandaag) gehad dat de WP eerder aanging als 10:00
24*7 zou wel kunnen, maar dan moet ik met zo'n lage Ta gaan werken dat de vloer kil wordt. Been there, done that, geen succes @huize Grolsch.
Klopt, afhankelijk van type woning, type afgifte, soort vrouw, comfortwensen, geluid in de nacht wel of niet gewenst.Murkmans schreef op maandag 21 januari 2019 @ 22:22:
[...]
Daarom ook geen/weinigelk huisje heeft zo z'n kruisje zullen we maar zeggen. Voor elke woning is het spelen met de settings om de ideale situatie te creëren.
Maar het is een fabel dat je met een WP 24*7 MOET stoken omdat je anders de hut niet warm houdt. Onze (nieuwe) woning bewijst het tegendeel in ieder geval
Aan de andere kant als je woning in een nacht 5 graden afkoelt, dan zou ik weer geen nachtverlaging toepassen met een WP
[ Voor 13% gewijzigd door Grolsch op 21-01-2019 22:26 ]
Kijk, goeie info. 1.2 kOhm. Hoe kom je aan die waarde?godfriedd schreef op maandag 21 januari 2019 @ 22:08:
[...]
Die YAA die bij mijn broer staat wil ik hier inderdaad ook mee uitrusten en die van mezelf heb ik ook gemaakt van een kabeltje dat ik nog had liggen van een RGB-ledstrip. Officieel hoort er in elke draad ook nog een 1,2 kOhm weerstand te zitten hoewel ik geen idee heb of er dingen kapot gaan als je die weg laat. Het is in ieder geval zonde om 30-40 euro voor zo'n kabeltje te betalen want het stelt werkelijk niets voor. Volgens mij was de pitch inderdaad 2 maar het kan ook 1,5 of 1,75 zijn.
Ik vind het alleen een beetje tricky om het te gaan proberen als hij niet geschikt is voor dit nieuwe type warmtepomp. Heb jij het wel echt in een handleiding van de nieuwe types gevonden? Want als dat zo is durf ik het wel aan maar tot nog toe vind ik alleen info over low-noise en demand-functies in de handleidingen van de oude types...
Maar ik zou gewoon een kabeltje maken (mét weerstanden) en dan testen of het werkt. En dan kan er door die weerstanden ook niks stuk, want grote stromen kunnen er nooit lopen.
Bovendien gaat Mitsubishi nooit een kabeltje maken voor een CNDM connector die bij een andere WP iets stuk maakt. In het ergste geval heb je voor niets dat kabeltje gemaakt.
Of het werkt weet ik ook niet 100% zeker, maar dat leid ik af uit wat ik her en der heb gelezen.
Suc6 met testen! (en meet even wat de connector pitch is, dan kunnen andere Tweakers zelf ook zo'n kabeltje maken voor weinig)
WP: ME PUHZ-SW75YAA + ERSD-VM2D + EV-WP-TWS-1W 300; AC: ME MXZ-2F42VF + 2x MSZ-LN25VGV; PV: 14.08 kWp O/W + SMA STP 8.0; Vent: Zehnder Q600 ERV + Ubbink AirExcellent.
@koevlaas2 heeft toen dat kabeltje besteld voor mij, voor die paar tientjes wil ik niet zelf knooien, maar nu ben ik ook geen soldeer held
Ik zie hetzelfde bij mijn ouders. Mijn vader stookt liever met de pelletkachel dan dat hij de warmtepomp aanslingert. Iets met mannen en vuurtje stoken. Die draaien de warmtepomp vaak ook maar 12uur in hun 900m3 nieuwbouwhuis. Is het toch wat koud: extra pellets.Grolsch schreef op maandag 21 januari 2019 @ 22:25:
[...]
Klopt, afhankelijk van type woning, type afgifte, soort vrouw, comfortwensen, geluid in de nacht wel of niet gewenst.
Maar het is een fabel dat je met een WP 24*7 MOET stoken omdat je anders de hut niet warm houdt. Onze (nieuwe) woning bewijst het tegendeel in ieder geval
Aan de andere kant als je woning in een nacht 5 graden afkoelt, dan zou ik weer geen nachtverlaging toepassen met een WPff snel bijtrekken gaat je niet lukken met een WP.
Ik heb vannacht de mogelijkheden in ons appartement getest. Van 21:00 tot 9:00, 3m3 verbruikt. De gemiddelde temperatuur in deze periode was -6,9 bij ons. De kamertemperatuur bleef op 21,5 hangen met wateraanvoer van 45graden. Dus ik verwacht dat bij -7 gemiddeld, 6m3 verbruikt wordt x8=48kw per dag=2kw per uur.
Dus; iemand al ervaring met zon apparaat? http://www.duco.eu/nl-nl-...epompen/nl-nl-ducobox-eco. Een Inventum ecolution komt net te kort en een buitenunit is uitgesloten binnen de VvE (al te vaak geprobeerd aan te kaarten).
Wat is het bijkomend effect van r134a koelmiddel? De gegeven cop cijfers zijn zeer positief (te?). Ik zie deze vooral voorbij komen in warmtepomp boilers omdat het hogere temperaturen kan leveren.
[ Voor 7% gewijzigd door Murkmans op 21-01-2019 22:38 ]
Ik heb een schema van het kabeltje, daaruit kwam de info over 1.2 kohmAndrehj schreef op maandag 21 januari 2019 @ 22:28:
[...]
Kijk, goeie info. 1.2 kOhm. Hoe kom je aan die waarde?
Maar ik zou gewoon een kabeltje maken (mét weerstanden) en dan testen of het werkt. En dan kan er door die weerstanden ook niks stuk, want grote stromen kunnen er nooit lopen.
Bovendien gaat Mitsubishi nooit een kabeltje maken voor een CNDM connector die bij een andere WP iets stuk maakt. In het ergste geval heb je voor niets dat kabeltje gemaakt.
Of het werkt weet ik ook niet 100% zeker, maar dat leid ik af uit wat ik her en der heb gelezen.
Suc6 met testen! (en meet even wat de connector pitch is, dan kunnen andere Tweakers zelf ook zo'n kabeltje maken voor weinig)
13,1 kWp, Ecodan R32 7,5 , WTW ventilatie, Daikin FTXM35M(R) (5x), Doorstroomverwarmer, Douche WTW, Emco Novette Twin met LFP accu 51.2V 40Ah, Opel Vivaro DC L3H1 75kW (12-2022).
Ja, en hier beschreven; trouwens ik meen dat die R 1k is (x3)Grolsch schreef op maandag 21 januari 2019 @ 22:35:
Er was toch iemand in dit topic die deze kabeltjes zelf gemaakt heeft
@koevlaas2 heeft toen dat kabeltje besteld voor mij, voor die paar tientjes wil ik niet zelf knooien, maar nu ben ik ook geen soldeer held
[ Voor 9% gewijzigd door Naalroc op 21-01-2019 22:52 . Reden: plaatje toegevoegd ]
14kW ZubadanPUHZ-SHW140YHA+ERSC-VM2C, 200L boiler , 200L buffer, sinds 8/2018, gasloos
Zojuist maar weer eens met mijn soundmeter app gaan meten. Was ongeveer 47 a 48dB op ongeveer 1m voor het ding op ongeveer 1m hoogte aan de compressor kant. Dat was ongeveer gelijk aan laatst. Toen draaide hij op 60Hz, nu op 95Hz. Op 110Hz vond ik laatst dat hij niet echt meer lawaai maakte.Tomexergie schreef op maandag 21 januari 2019 @ 08:32:
De Toshiba buiten unit van de Elga maakt en ongelofelijke herrie bij -7C. Dit ondanks mijn extreem goede geluidsisolatie. Ik heb ook een Diakin L/L die echt veel veel minder geluid produceert, zeker acceptabel.
Mooie omstandigheden om het geluid van de WP's te testen. Ik denk dat dit een aardig item is voor de monitoring van januari. Welliswaar subjectief, maar een globale indruk is ook belangrijk.
Techneco had nooit in zee moeten gaan met de Toshiba. Onder de 0C eigenlijk niet toepasbaar.
Hoe zit het met b.v. de Nibe F2120 met zijn scoll compressor? @LangeFries . In de brochure staat dat het de meest geruisloze WP is???? Ik ben heel benieuwd.
Tijdens defrosts draait hij op 90Hz en heb je wat sis en fluitgeluiden. Met name het schakelen van de 4-weg klep geeft nogal een klap. Bij omschakelen naar koelen is de compressor nog aan het aftoeren terwijl hij dat doet, mogelijk dat dat ermee van doen heeft. Volgens mij stopt hij dan niet helemaal. Bij terugschakelen wel, maar echt maar heel even. Omdat de fan tijdens het ontdooien niet meebromt, klinkt het wel allemaal wat minder plezierig. Heb nog niet die dB's gemeten, maar de spec is 53dB, hij zal het vast een keer halen. Hij is wel stil maar zo heel stil is hij dus nu ook weer niet.
Trouwens ik krijg geen dampwolken, daar hij al weer een minuutje aan het werk is voor hij de fan weer aandoet. Dan zit er geen warme waterdamp meer in.
Nibe F2120-12,VVM320, 4440Wp LG NeonR 1425Wp Solarwatt ZZO
Bedankt voor uitgebreide reactieMurkmans schreef op maandag 21 januari 2019 @ 21:38:
[...]
De negatieve reacties komen van mensen die zich niet inlezen, niet voorbereiden en niet stoken volgens het protocol etc.
In een nieuwbouw woning zal je nagenoeg geen slechte ervaring hebben met een warmtepomp door de goede isolatie. Houd er wel rekening mee dat je geen/weinig nachtverlaging moet toepassen, maar juist lekker alles op 1 temperatuur kan houden.
Hier vindt je wat meer documentatie van je model. https://www.nathan.nl/service-support/kennisbank/
https://www.nathan.nl/wp-...018/06/LWD_70A-RX-HTD.pdf
Je hebt ex. element nog 5,58kw over bij -7. Dat zou in jou situatie al voldoende zijn denk ik.
Als je rekening houdt met een verbruik van 2000kw is dat geen gekke gedachte denk ik.
Alvast bedankt!
PSN: Oldzkoel
Nog 1x dan... en het is 1.2 kohm, maar met 1 kohm zal het ook wel werken, scheelt maar een kleine 20%Naalroc schreef op maandag 21 januari 2019 @ 22:44:
[...]
Ja, en hier beschreven; trouwens ik meen dat die R 1k is (x3)
13,1 kWp, Ecodan R32 7,5 , WTW ventilatie, Daikin FTXM35M(R) (5x), Doorstroomverwarmer, Douche WTW, Emco Novette Twin met LFP accu 51.2V 40Ah, Opel Vivaro DC L3H1 75kW (12-2022).
14kW ZubadanPUHZ-SHW140YHA+ERSC-VM2C, 200L boiler , 200L buffer, sinds 8/2018, gasloos
Ecodan 7,5kW Nibe F130 ventilatie warmtepomp, 300l RVS SWW, 8400wp zonnepanelen, LL airco/verwarming, 2 MARSTEK VENUS E firmware v153 BMS 215 combination CT003 v117 app v1.6.47
Ecodan 7,5kW Nibe F130 ventilatie warmtepomp, 300l RVS SWW, 8400wp zonnepanelen, LL airco/verwarming, 2 MARSTEK VENUS E firmware v153 BMS 215 combination CT003 v117 app v1.6.47
Hier ook min of meer dezelfde ervaring. Het ging heel lang goed maar nu met het koude(re) weer begint het toch op te vallen.corsat schreef op maandag 21 januari 2019 @ 23:00:
Mbt warmtepomp geluiden, zondagavond en vanmorgen stond de mitsu ongeveer 1,5 kW op te nemen en was er in het huis een brom te horen, vanaf zo,n1 kW ga je de wp steeds meer horen. Ik overweeg in het voorjaar om hem op dempers te zetten en de stekleidingen te voorzien van flexibele aansluiting om de resonantie richting huis tegen te gaan.
Hier staat een 9kW Panasonic monoblock op het dak van de bijkeuken.
Het dak is gemaakt van gasbeton platen en had gedacht dat dit wel enigszins mee zou vallen.
Staat op deze blokken:

Nu toch maar de overweging de wp te verplaatsen naar ergens in de tuin
Of in ieder geval op de grond. De overlast komt voornamelijk van de compressor.
De ventilator maakt een stuk minder hoorbaar geluid binnen.
Met het kabeltje op 75% begrenzen, dat scheelt enorm.corsat schreef op maandag 21 januari 2019 @ 23:00:
Mbt warmtepomp geluiden, zondagavond en vanmorgen stond de mitsu ongeveer 1,5 kW op te nemen en was er in het huis een brom te horen, vanaf zo,n1 kW ga je de wp steeds meer horen. Ik overweeg in het voorjaar om hem op dempers te zetten en de stekleidingen te voorzien van flexibele aansluiting om de resonantie richting huis tegen te gaan.
Bij mij draait ie nu ook in de nacht.
13,1 kWp, Ecodan R32 7,5 , WTW ventilatie, Daikin FTXM35M(R) (5x), Doorstroomverwarmer, Douche WTW, Emco Novette Twin met LFP accu 51.2V 40Ah, Opel Vivaro DC L3H1 75kW (12-2022).
Er kunnen nog dempers tussen de voeten en de WP, wellicht dat dat een hoop scheelt.JvdW schreef op maandag 21 januari 2019 @ 23:09:
[...]
Hier ook min of meer dezelfde ervaring. Het ging heel lang goed maar nu met het koude(re) weer begint het toch op te vallen.
Hier staat een 9kW Panasonic monoblock op het dak van de bijkeuken.
Het dak is gemaakt van gasbeton platen en had gedacht dat dit wel enigszins mee zou vallen.
Staat op deze blokken:
[Afbeelding]
Nu toch maar de overweging de wp te verplaatsen naar ergens in de tuin![]()
Of in ieder geval op de grond. De overlast komt voornamelijk van de compressor.
De ventilator maakt een stuk minder hoorbaar geluid binnen.
En anders idd in de tuin.
13,1 kWp, Ecodan R32 7,5 , WTW ventilatie, Daikin FTXM35M(R) (5x), Doorstroomverwarmer, Douche WTW, Emco Novette Twin met LFP accu 51.2V 40Ah, Opel Vivaro DC L3H1 75kW (12-2022).
Op basis daarvan heb ik hem inderdaad ook gemaakt. Ik weet niet meer of ik 1k of 1,2k heb gebruikt maar ik verwacht dat het allebei wel goed zal gaan. Ik vind het wel een beetje vreemd dat dit sparadisch in de documentatie staat en ook in de specificaties van het kabeltje staat ons model Ecodan niet vermeld maar het werkt uitstekend! Alleen veel uitzoekwerk. Ook omdat die beschreven kleuren van draden allemaal niet kloppen...koevlaas2 schreef op maandag 21 januari 2019 @ 22:52:
[...]
Nog 1x dan... en het is 1.2 kohm, maar met 1 kohm zal het ook wel werken, scheelt maar een kleine 20%
[Afbeelding]
Veervoeten gebruiken! Mijn warmtepomp staat op een houten dak van de aangebouwde garage staan en dat was vreselijk. Maar sinds ik deze veervoeten er onder heb is het in huis niet meer hoorbaar. Alleen in de garager als je er recht onder staat.
Ik heb zelf deze: https://www.klimate.nl/tr...en-veervoet-per-stuk.html
[ Voor 3% gewijzigd door Exigence op 21-01-2019 23:35 ]
Gelukkig kan je alle draden tegen elkaar houden en dan gaat er nog niets stuk.godfriedd schreef op maandag 21 januari 2019 @ 23:30:
[...]
Op basis daarvan heb ik hem inderdaad ook gemaakt. Ik weet niet meer of ik 1k of 1,2k heb gebruikt maar ik verwacht dat het allebei wel goed zal gaan. Ik vind het wel een beetje vreemd dat dit sparadisch in de documentatie staat en ook in de specificaties van het kabeltje staat ons model Ecodan niet vermeld maar het werkt uitstekend! Alleen veel uitzoekwerk. Ook omdat die beschreven kleuren van draden allemaal niet kloppen...
13,1 kWp, Ecodan R32 7,5 , WTW ventilatie, Daikin FTXM35M(R) (5x), Doorstroomverwarmer, Douche WTW, Emco Novette Twin met LFP accu 51.2V 40Ah, Opel Vivaro DC L3H1 75kW (12-2022).
Tijdens defrost? Nee bij invriezen tijdens draaien.Oxellaar schreef op maandag 21 januari 2019 @ 22:08:
[...]
Aquasnap is de bediening die.waarschijnlijk, op de unit zelf zit.
@Rol-Co Lage druk tijdens defrost...dat geeft, waterzijdige lage temperatuur meldingen op je verdamper. >3c water.
En ik denk niet dat deze machine nog de handmatig verstelbare pressostaten heeft. Ik begreep eerder al dat hij niet echt oud was....?
En...lage druk is vaak niet vergrendelend als storing, alleen blokkerend, herstelt dus vanzelf.
De unit hoeft niet oud te zijn voor die pressostaten hoor, worden anno 2018 nog geleverd op nieuwe units bij ons en de regelaar houd de ld vast als storing, niet zelf reset anders kan het dagen duren voordat je het een keer ziet.
Noord-Oost-Zuid-West 11640Wp Totaal Live, Netduino advanced pv logging
De omschrijving was dat er een HD storing optrad tijdens een defrost....Rol-Co schreef op dinsdag 22 januari 2019 @ 05:37:
[...]
Tijdens defrost? Nee bij invriezen tijdens draaien.
Voor het zoeken van een storing, is luisteren één van de belangrijkste dingen
Ja dat kan, maar dat was vast geen Carrier van ongeveer 60kWDe unit hoeft niet oud te zijn voor die pressostaten hoor, worden anno 2018 nog geleverd op nieuwe units bij ons en de regelaar houd de ld vast als storing, niet zelf reset anders kan het dagen duren voordat je het een keer ziet.
[ Voor 8% gewijzigd door Oxellaar op 22-01-2019 06:36 ]
MG4 Luxury - Samsung A3050/AR7000 - Elga 3.0 - ME WSH-LN25I Diamond
Resultaat is energietechnisch positief, hij staat immers uit en verbruikt niets. Negatief puntje is wel dat mijn kachel het nu niet doet
Wellicht ook aardig als Radar een keer uitzoekt waarom de inkoopprijzen van warmtepompen in Nederland duizenden euro's hoger liggen dan in de rest van Europa?Stoofie schreef op maandag 21 januari 2019 @ 21:15:
[...]
Ook aangemeld, maar omdat je geen extra toelichting kunt geven heb ik ingevuld dat ik mijn huis niet warm krijg en geen lagere energierekening heb.
Ik denk dat ik dan meer kans heb dat ze contact met mij opnemen en maak ik er dan alsnog een positief verhaal van
Waarbij het dan natuurlijk de vraag is of ze het dan nog wel uit willen zenden, want ja, een warmtepomp en een positief verhaal, dat past niet in het radar-concept
Edit: Overigens lieg ik ook nog niet eens met dit verhaal, de warmtepomp krijgt het met deze temperaturen niet warm, maar dat was met de ketel ook al zo, iets met oude vloerverwarming met te weinig afgiftevermogen. De energierekening is ook niet gedaald, maar min of meer gelijk gebleven, terwijl het 1 á 2 graden warmer is in huis. Dat is dus wel een netto-winst, maar daar vragen ze niet naar...
Het verschil is min of meer het subsidiebedrag
32 kWp PV + 54kWh ESS+ 7.5 kW Mitsubishi Ecodan
Maar laten we wel wezen, de reguliere eindgebruiker ziet gewoon een investering van 10k-15k wat zich niet zo snel terug verdient.
Circuit a low saturated suction temperature.
@Rol-Co temperatuur sensor zat inderdaad dicht tegen de condensor aan.
Even omgedraaid
[ Voor 36% gewijzigd door Ramon_1984 op 22-01-2019 07:59 ]
Dit is volgens mij zo'n eeuwig durende discussie, lastige is dat elke woning gewoon anders is. Jij hebt het voordeel van de vloerverwarming, die slaat lekker veel energie op en kan daardoor lekker lang na-ijlen. Maar heb je bijvoorbeeld ruimtes met radiatoren dan werkt dit weer een stuk slechter, radiatoren slaan niet erg veel energie op en kunnen dan ook in de nachtverlaging niet veel meer afgeven.Grolsch schreef op maandag 21 januari 2019 @ 22:15:
[...]
Dat laat ik graag aan andere Tweakers over, volgens mijn vrouw krijgen wij al voldoende WP bezoekers over de vloerMaar als iemand van jullie in de uitzending komt graag ff melden
Voorlaats @Bram-Bos al mogen bewonderen
[...]
Bij mij werkt nachtverlaging van 1 graad juist fantastisch goed met die dikke betonnen vloeren.
Gewoon 12 uur aan, 12 uur uit. Vanaf 's morgens 10:00 aan, en dan rustig low & slow in 12 uur tijd de vloer opwarmen, en daarna bevat de vloer zoveel energie dat de WP gewoon 12 uur uit kan.
In huidig stookseizoen slechts 2 x (gisteren en vandaag) gehad dat de WP eerder aanging als 10:00
24*7 zou wel kunnen, maar dan moet ik met zo'n lage Ta gaan werken dat de vloer kil wordt. Been there, done that, geen succes @huize Grolsch.
Ik zie dit bij mij thuis heel sterk, benedenverdieping heeft vloer verwarming, en daar verlies ik in de afgelopen dagen op een nacht ongeveer 1c, en geeft het dus geen enkel probleem, volgende dag gaat de boel weer aan en is het na een paar uurtjes weer recht getrokken.
Bovenverdieping is een heel ander verhaal, daar hebben we nog radiatoren / convectoren. Hier verliezen we op een nacht 2 tot 3 graden wat eigenlijk net teveel is (zitten dan op zo'n 18c in de ochtend, terwijl we liever 20 hebben), maar als ik de warmtepomp 's nachts zou door laten gaan dan zit hij alleen maar te pendelen want alleen de bovenverdieping is niet voldoende afgifte (hier moet ik nog aan werken).
Dus voor nu kies ik er voor om 's nachts alsnog nachtverlaging toe te passen vanaf 23:59 tot 08:00 's ochtends. Als het echt te gek wordt (lees, een Tb van ik denk lager dan -5) dan zal ik de nachtverlaging gaan inkorten zodat hij bijvoorbeeld vanaf 06:00 's ochtends aan gaat.
Als de Tb >= 1 dan kan ik de nachtverlaging weer laten ingaan om 22:00 's avonds.
Ik hou het nu elke dag in de gaten om zo een beetje te leren bij welke Tb er wat gebeurt.
Onze grootste fout was eigenlijk dat toen we er zijn gaan wonen we de vloer van de bovenverdieping volledig gedaan hebben maar nooit er bij stil hebben gestaan om er meteen vloerverwarming in te gooien, want er is wel een verdeler aanwezig op de boven verdieping maar dan voor de radiatoren.
Maar toen was het idee van een warmtepomp nog helemaal niet aanwezig bij ons, we hadden eerst focus op zonnepanel, warmte pomp dachten we pas een jaar later aan toen ik dit topic las.
Misschien dat we ooit in de toekomst nog eens vloerverwarming gaan doen, maar de vloer die er nu is is ons iets te kostbaar om weer open te breken.
3015 Wp-z 5360 Wp-nno op 2 x SMA-SB3600 TL-21, Warmtepomp: ERSC-VM2CR2 / PUHZ-SHW140 YHA, WTW Q350, EV Kia Ev6 GT-Line
"we hebben een nieuwe motor ontworpen! Doe er 1liter benzine in, en het loopt op 1:40 als het vriest, maar als de temperatuur boven de 0 graden is, dan kan het rijden 1:100 rijden! 4x efficienter dan de klassieke motor!"wervisser schreef op dinsdag 22 januari 2019 @ 07:28:
Ik denk persoonlijk dat de negatieve verhalen over de warmtepomp vooral onwetendheid van de massa is. De manier van verwarmen is simpelweg anders. De gedachte om even tegen de kachel aan te kruipen als je 'ziek-zwak-misselijk' bent is er gewoon niet bij. Even de kachel omhoog schroeven en verwachten dat het warmer wordt, werkt ook gewoon niet. We zijn met z'n allen natuurlijk verwend met deze ervaringen.
Maar laten we wel wezen, de reguliere eindgebruiker ziet gewoon een investering van 10k-15k wat zich niet zo snel terug verdient.
Ik denk dat er bij iedereen wel een BS-alarm gaat rinkelen als iemand beweert dat een machine 400% rendement kan leveren (COP4).
Zelfs met vloerverwarming kan het gekozen systeem sterk verschillen door massa en oppervlak.ronaldmathies schreef op dinsdag 22 januari 2019 @ 07:45:
[...]
Dit is volgens mij zo'n eeuwig durende discussie, lastige is dat elke woning gewoon anders is. Jij hebt het voordeel van de vloerverwarming, die slaat lekker veel energie op en kan daardoor lekker lang na-ijlen. Maar heb je bijvoorbeeld ruimtes met radiatoren dan werkt dit weer een stuk slechter, radiatoren slaan niet erg veel energie op en kunnen dan ook in de nachtverlaging niet veel meer afgeven.
Ik zie dit bij mij thuis heel sterk, benedenverdieping heeft vloer verwarming, en daar verlies ik in de afgelopen dagen op een nacht ongeveer 1c, en geeft het dus geen enkel probleem, volgende dag gaat de boel weer aan en is het na een paar uurtjes weer recht getrokken.
Bovenverdieping is een heel ander verhaal, daar hebben we nog radiatoren / convectoren. Hier verliezen we op een nacht 2 tot 3 graden wat eigenlijk net teveel is (zitten dan op zo'n 18c in de ochtend, terwijl we liever 20 hebben), maar als ik de warmtepomp 's nachts zou door laten gaan dan zit hij alleen maar te pendelen want alleen de bovenverdieping is niet voldoende afgifte (hier moet ik nog aan werken).
Dus voor nu kies ik er voor om 's nachts alsnog nachtverlaging toe te passen vanaf 23:59 tot 08:00 's ochtends. Als het echt te gek wordt (lees, een Tb van ik denk lager dan -5) dan zal ik de nachtverlaging gaan inkorten zodat hij bijvoorbeeld vanaf 06:00 's ochtends aan gaat.
Onze BG met ingegoten VVW is gisternacht 0,5C gedaald. De 1e met 11 groepen gefreesde VVW 1C. De zolder met slechts 3 groepen gefreesde VVW 1,5C.
[ Voor 46% gewijzigd door kmf op 22-01-2019 07:57 ]
One thing's certain: the iPad seriously increases toilet time.. tibber uitnodigingscode: bqufpqmp
Nope ik vroeg naar je setting ... op welke temp de unit geef jij wanneer hij mee mag doen?reneeke1970 schreef op maandag 21 januari 2019 @ 07:34:
[...]
Meer ongeduldig want kan er niet goed tegen als iets tien keer gezegd moet worden.
Ja dat was jou vraag, je probeert instellingen te vinden waardoor je element aan springt met een defrost.
Toch??
En je dT
zonneboiler, pelletkachel, 36 panels, Atlantic Wpb, pana 5 Kw H, Heishamon, Domoticz, Grafana, Solarmeters, PVO: https://pvoutput.org/list.jsp?id=15321&sid=19520
Wat mij betreft hoeft het geen discussie te zijn, als we het er met elkaar maar over eens zijn dat er niet 1 oplossing is voor verwarmen met een WP maar meerdere oplossingen.ronaldmathies schreef op dinsdag 22 januari 2019 @ 07:45:
[...]
Dit is volgens mij zo'n eeuwig durende discussie, lastige is dat elke woning gewoon anders is. Jij hebt het voordeel van de vloerverwarming, die slaat lekker veel energie op en kan daardoor lekker lang na-ijlen. Maar heb je bijvoorbeeld ruimtes met radiatoren dan werkt dit weer een stuk slechter, radiatoren slaan niet erg veel energie op en kunnen dan ook in de nachtverlaging niet veel meer afgeven.
Ik zie dit bij mij thuis heel sterk, benedenverdieping heeft vloer verwarming, en daar verlies ik in de afgelopen dagen op een nacht ongeveer 1c, en geeft het dus geen enkel probleem, volgende dag gaat de boel weer aan en is het na een paar uurtjes weer recht getrokken.
Bovenverdieping is een heel ander verhaal, daar hebben we nog radiatoren / convectoren. Hier verliezen we op een nacht 2 tot 3 graden wat eigenlijk net teveel is (zitten dan op zo'n 18c in de ochtend, terwijl we liever 20 hebben), maar als ik de warmtepomp 's nachts zou door laten gaan dan zit hij alleen maar te pendelen want alleen de bovenverdieping is niet voldoende afgifte (hier moet ik nog aan werken).
Dus voor nu kies ik er voor om 's nachts alsnog nachtverlaging toe te passen vanaf 23:59 tot 08:00 's ochtends. Als het echt te gek wordt (lees, een Tb van ik denk lager dan -5) dan zal ik de nachtverlaging gaan inkorten zodat hij bijvoorbeeld vanaf 06:00 's ochtends aan gaat.
Als de Tb >= 1 dan kan ik de nachtverlaging weer laten ingaan om 22:00 's avonds.
Ik hou het nu elke dag in de gaten om zo een beetje te leren bij welke Tb er wat gebeurt.
Onze grootste fout was eigenlijk dat toen we er zijn gaan wonen we de vloer van de bovenverdieping volledig gedaan hebben maar nooit er bij stil hebben gestaan om er meteen vloerverwarming in te gooien, want er is wel een verdeler aanwezig op de boven verdieping maar dan voor de radiatoren.
Maar toen was het idee van een warmtepomp nog helemaal niet aanwezig bij ons, we hadden eerst focus op zonnepanel, warmte pomp dachten we pas een jaar later aan toen ik dit topic las.
Misschien dat we ooit in de toekomst nog eens vloerverwarming gaan doen, maar de vloer die er nu is is ons iets te kostbaar om weer open te breken.
Elke situatie is anders, zoals warmteverlies van de woning, afgiftesysteem, type ventilatie, vermogen van de WP en comfortwensen.
Afhankelijk van de situatie moet je voor een oplossing kiezen. Bij de 1 is dat 24*7 verwarmen, bij de ander is dat nachtverlaging toepassen.
Zelf hebben wij wel vloerverwarming boven en setpoint slaapkamers staat op 18 graden, en de badkamer 21, maar zelfs met de matige / strenge vorst van afgelopen dagen is de verwarming op de slaapkamers niet aangeweest. Vanmorgen was het op alle slaapkamers 18,5 tot 19 graden. Mijn woning heeft meer last van wind als van kou.
En inderdaad een hagelnieuwe vloer eruit breken zie ik ook als kapitaal vernietiging.
Doelen waren iets bij gesteld en daarmee ook mijn stooklijn.. 21 graden....Grolsch schreef op maandag 21 januari 2019 @ 11:08:
[...]
Je ziet ook aan de Panasonic van @Dylantje2 dat bij temperaturen van -5 extra vermogen vrijgegeven wordt, maar bij temperaturen vanaf -4 en hoger dus niet
Je ziet rond 10.30 dat opgenomen vermogen van 1800 naar 1650Wh gaat, terwijl Ta nog steeds niet gehaald is en dus nog verder zakt.
@Dylantje2 ik denk dat je nu de ultieme test wel gehad hebt, het kan nog wel iets gekker maar de resultaten tot nu toe zijn dat je met deze vorst de ruimte niet op temperatuur kunt houden zoals gewenst (22 graden) en dus vermogen tekort komt.
Gevolg is dat de ruimtetemperatuur tot onder de 20 zakt, kun je oplossen door palletkachel aan te steken of met de vrouw onder de dekens te kruipen bij deze temperaturen![]()
Het toevoegen van extra afgifte zal dit probleem niet verhelpen, je kunt dan hooguit een wat lagere Ta hanteren wat iets beter zal zijn voor de COP, maar je krijgt niet minder warmteverlies bij meer afgifte.
Hier loopt de WP ook ff flink gas te geven, ik zie vermogens van rond de 5000Wh voorbij komen![]()
Test was ook met erg veel rijp/mist hier..
Had het wat zwaarder maar zijn verbruik was toch aardig volgens grafiek?
Als het goed is zit er nog meer vermogen in dus hoop dat het nog wat kouder wordt.
Bij deze temp. zijn ook plofketels die het zwaar hebben.
Afgifte is ook het enige wat ik in het voorjaar aan ga passen.. [ want lijkt me wel een + ]
Meer afgifte en en andere stooklijn, kunnen beste wat betekenen lijkt me..............
Ik blijf toch erg positief ..
Ik zit ondanks deze zwaardere periode niet ver van mijn graaddagen af.
1 ding wel, hij blaast aardig buiten, maar daar heb ik nog geen last van:-) [ buren ook niet ]
Afgelopen nacht valt me op dat er bij een setpiont oid... de dT "gewoon" vergroot wordt?
Is mijn verbruik zo extreem anders dan bij anderen? [ buiten mijn testen
Mijn leercurve is wat groter oké..
Ik had/heb me ook 3 jaar gegeven om alles te snappen. En tsja mijn eigen wijze brengt me soms iedere week tot andere inzichten.
Er is dan ook niets zo veranderlijk als..................
zonneboiler, pelletkachel, 36 panels, Atlantic Wpb, pana 5 Kw H, Heishamon, Domoticz, Grafana, Solarmeters, PVO: https://pvoutput.org/list.jsp?id=15321&sid=19520
Dat is weer een hele andere melding....Ramon_1984 schreef op dinsdag 22 januari 2019 @ 07:43:
@Oxellaar Vannacht weer uitgevallen.
Circuit a low saturated suction temperature.
@Rol-Co temperatuur sensor zat inderdaad dicht tegen de condensor aan.
Even omgedraaid
Niet genoeg energie om een defrost te doen....
Lage zuiggas temperatuur...
Je gaf aan een HD storing....Die worden gemeld door een drukschakelaar, niet door een temperatuur sensor.
En een temp van een defrost op de condensor, die zul je op de condensor moeten meten....
Waarom zat hij dan te dichtbij?
[ Voor 21% gewijzigd door Oxellaar op 22-01-2019 08:09 ]
MG4 Luxury - Samsung A3050/AR7000 - Elga 3.0 - ME WSH-LN25I Diamond
Hmm, kan dat komen door een ingevroren temperatuur sensor ?Oxellaar schreef op dinsdag 22 januari 2019 @ 08:06:
[...]
Dat is weer een hele andere melding....
Niet genoeg energie om een defrost te doen....
Lage zuiggas temperatuur...
Wel zag ik in priva dat de regelklep tijdens een defrost wordt dicht gestuurd, hij draait dus volledig over een klein circuit heen, buffervat staat op.
Aanvoer temperatuur van de warmtepomp staat op 32C, wat ik persoonlijk vrij laag vind.
[ Voor 28% gewijzigd door Ramon_1984 op 22-01-2019 08:10 ]
Gisteren was een hd fout, nu dus deze foutOxellaar schreef op dinsdag 22 januari 2019 @ 08:06:
[...]
Dat is weer een hele andere melding....
Niet genoeg energie om een defrost te doen....
Lage zuiggas temperatuur...
Je gaf aan een HD storing....Die worden gemeld door een drukschakelaar, niet door een temperatuur sensor.
En een temp van een defrost op de condensor, die zul je op de condensor moeten meten....
Waarom zat hij dan te dichtbij?
Temperatuur zit met tyrap vast
Nee, eigenlijk niet. Zuiggas kan diep onder 0 gaan, dus een beetje ijs moet daar geen effect geven.Ramon_1984 schreef op dinsdag 22 januari 2019 @ 08:08:
[...]
Hmm, kan dat komen door een ingevroren temperatuur sensor ?
MG4 Luxury - Samsung A3050/AR7000 - Elga 3.0 - ME WSH-LN25I Diamond
Fijn...t.oswald schreef op maandag 21 januari 2019 @ 11:12:
[...]
Dus een H7? De defrost kosten op deze manier bij mij ongeveer 450 W per keer. Na die 9 minuten zit ik weer op het verbruik van voor de defrost nu ik op advies van @Dylantje2 draai op stille modus 1. Daarvoor duurde het terug moduleren lijkt het inderdaad wat langer. Zijn experiment lijkt bij mij wat op te leveren.
Volgens mij heeft @koevlaas2 bij de installatie niets bijzonders gedaan met de instelling van de heater. Steeds dit beeld bij de defrost en via de groep waar de heater op is aangesloten en niet het stopcontact met de WP. Het stroomverbruik op het stopcontact loopt zodra de defrost begint sterk terug en dan weer langzaam op. Twee plaatjes van het totale verbruik op de slimme meter, de ene zonder stil 1 de ander met. Zowel aan het begin als aan het eind is er verschil @Dylantje2
[Afbeelding]
[Afbeelding]
Ik kan niet in sillent draaien met dit weer......dan kom ik echt te kort.
Maar het zou erg mooi zijn als er via de wifi module een optie is om de sillent te activeren.
En deze met een script oid te activeren.. of uit te zetten..
In denk dat ik sillent draaien tot 0 -2c daaronder moet ik over naar gewoon.
Als dit zou kunnen via de wifi module icm domotica.
Als dit dan dat, lijkt me dat er best veel winst is te halen, qua verbruik..
Kan iemand dit maken?
En diegene met een "over gedimensioneerde" H versie, zouden misschien wel altijd op S1 kunnen draaien.
Zou mooi zijn als er resultaten uit komen.
Als je ziet hoe mooi een defrost verloopt in sillent, en dat er minder DF zijn.
Lijkt me dit op lange termijn een goede besparing te zijn.
De pana gooit met energie na een DF, en in de Sillentmode regelt hij het erg netjes.
Vreemd.....
zonneboiler, pelletkachel, 36 panels, Atlantic Wpb, pana 5 Kw H, Heishamon, Domoticz, Grafana, Solarmeters, PVO: https://pvoutput.org/list.jsp?id=15321&sid=19520
@Ramon_1984 32c is idd vrij laag. En buffer bypass tijdens een defrost? Klopt dat?
[ Voor 31% gewijzigd door Oxellaar op 22-01-2019 08:28 ]
MG4 Luxury - Samsung A3050/AR7000 - Elga 3.0 - ME WSH-LN25I Diamond
Top heb de veervoeten en nog wat matjes ook besteld ben benieuwdExigence schreef op maandag 21 januari 2019 @ 23:33:
@JvdW @corsat
Veervoeten gebruiken! Mijn warmtepomp staat op een houten dak van de aangebouwde garage staan en dat was vreselijk. Maar sinds ik deze veervoeten er onder heb is het in huis niet meer hoorbaar. Alleen in de garager als je er recht onder staat.
Ik heb zelf deze: https://www.klimate.nl/tr...en-veervoet-per-stuk.html
21xDMEGC 440wp (9240) ||| Pana 9j
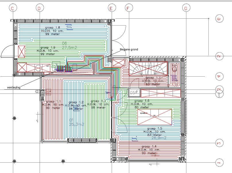
Heb ook nog even de VVW tekeningen opgezocht. Op advies van @Chris_82 dus de hele BG opengedraaid (groep 1.8 en 1.9 stonden helemaal dicht, want garage).
Nog een beetje toelichting, de deuren op de tekening (scheiding woonkamer/keuken) zitten er niet, 1 open ruimte.

De inhoud vd overloop 2.1 is iets kleiner omdat er boven de voordeur geen vvw ligt (is open).
Groep 2.2 staat bijna dicht, 2.3 en 2.4 helemaal dicht.
Groep 2.7 en 2.8 zouden de meeste warmte moeten pakken (koudste kamer + kamer van onze dochter).
Groep 2.9 heb ik ook helemaal open staan
Groep 1.10 (badkamer) zit op BG verdeler
Wat is jouw definitie van een "mooie defrost"Dylantje2 schreef op dinsdag 22 januari 2019 @ 08:14:
[...]
Fijn...
Ik kan niet in sillent draaien met dit weer......dan kom ik echt te kort.
Maar het zou erg mooi zijn als er via de wifi module een optie is om de sillent te activeren.
En deze met een script oid te activeren.. of uit te zetten..
In denk dat ik sillent draaien tot 0 -2c daaronder moet ik over naar gewoon.
Als dit zou kunnen via de wifi module icm domotica.
Als dit dan dat, lijkt me dat er best veel winst is te halen, qua verbruik..
Kan iemand dit maken?
En diegene met een "over gedimensioneerde" H versie, zouden misschien wel altijd op S1 kunnen draaien.
Zou mooi zijn als er resultaten uit komen.
Als je ziet hoe mooi een defrost verloopt in sillent, en dat er minder DF zijn.
Lijkt me dit op lange termijn een goede besparing te zijn.
De pana gooit met energie na een DF, en in de Sillentmode regelt hij het erg netjes.
Vreemd.....
Zelf vind ik dat een defrost zo kort mogelijk moet zijn, en dat de Ta z.s.m. weer op peil moet zijn. En ja dat geeft een piek in de grafiek zoals het naar mijn idee ook hoort, want je wilt nu eenmaal z.s.m. weer op setpoint Ta zitten.
En als je een wat grotere WP hebt zal deze vanzelf zakken tot een lagere frequentie als het afgenomen vermogen dat toelaat, daar heb je de modus Silent niet voor nodig.
Zoals ik het lees is de silent modus niets anders als een vermogensbeperking.
Wel bijzonder om te zien op je tekeningen dat er een meander is gebruikt in plaats van een slakkenhuis, dat is toch wat ouderwets?
Volgende stap wordt dan het waterzijdig inregelen
Oftewel met een (IR-)thermometer aan de slag om de retourtemperaturen van iedere groep per verdeler ongeveer gelijk te hebben. Daar is het nu prima weer voor.
Die met de grootste dT (laagste retour T) volledig open houden en die met de kleinste dT (hoogste retour T) met kleine stapjes gaan dichtdraaien.
[ Voor 11% gewijzigd door Chris_82 op 22-01-2019 09:05 ]
14.4kWp, Loria Duo 6010, VWTW, DWTW, full-electric, MY RWD
@Oxellaar Tijdens de defrost draait zover ik kan zien de carrier volledig over het buffervat, regelklep voor de verwarmings batterij gebeurt zover wij kunnen zien niks mee.Oxellaar schreef op dinsdag 22 januari 2019 @ 08:25:
@Dylantje2 silent mode regelt netjes? Een beperking opleggen aan de standaard regeling... Die in veel gevallen een minder rendement heeft, is dat netjes? Een stille modus wil je eigenlijk nooit gebruiken.
@Ramon_1984 32c is idd vrij laag. En buffer bypass tijdens een defrost? Klopt dat?
De stand van de klep verandert niet.
Wellicht had het allemaal wat beter gewerkt met een ontkoppelings buffer in het circuit.....
Ik ben benieuwd, soms zoek je te moeilijk maar is het iets simpels.Ramon_1984 schreef op dinsdag 22 januari 2019 @ 07:43:
@Oxellaar Vannacht weer uitgevallen.
Circuit a low saturated suction temperature.
@Rol-Co temperatuur sensor zat inderdaad dicht tegen de condensor aan.
Even omgedraaid
Noord-Oost-Zuid-West 11640Wp Totaal Live, Netduino advanced pv logging
Dat vroeg je niet aan mij maar aan ik dacht @t.oswald .Dylantje2 schreef op dinsdag 22 januari 2019 @ 07:55:
[...]
Nope ik vroeg naar je setting ... op welke temp de unit geef jij wanneer hij mee mag doen?
En je dT
Maar element voor defrost heeft geen instellingen hoor.
1 PVoutput . Dongen NB
We wachten de instalateur en carrier af.kijken waar zij mee komen.Rol-Co schreef op dinsdag 22 januari 2019 @ 09:18:
[...]
Ik ben benieuwd, soms zoek je te moeilijk maar is het iets simpels.
Dit topic is gesloten.
![]()