Wij hebben een optie op een kavel weten te krijgen en na ons al flink ingelezen te hebben, is de volgende stap nu om met het ontwerpbureau te gaan zitten om onze wensen te bespreken m.b.t. de woning en aansluitend zal het ontwerpbureau bij 3 lokale aannemers om een offerte vragen. Er wordt vervolgens ook een bouwteam gevormd.
Nu is het zo dat op deze locatie niet projectmatig gewerkt wordt, maar er wel een beeldkwaliteitsplan geldt. Daarbij geldt met name dat het één of twee woonlagen met kap moet zijn en de kap een grote overstek moet hebben van minstens 60cm. Als voorbeelden worden o.a. de typische jaren 30 woningen gegeven en de door Frank Lloyd Wright geïnspireerde woningstijl.
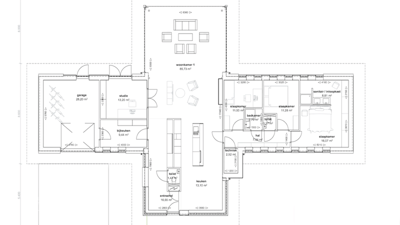
Onze voorkeur gaat uit naar zo'n laatste woning, het merendeel van wat er gerealiseerd is, is ook in deze stijl, maar een enkeling heeft ook voor de jaren 30 woning gekozen. Zoals wel vaker zal het budget hierin bepalend zijn en we begrepen in een eerst telefoongesprek al dat een jaren 30 woning wat goedkoper te realiseren is en daarom relatief wat meer oppervlak kan opleveren én je hebt de scheiding met BG woonkamer, keuken, eetkamer, garage, bijkeuken en op de verdieping slaapkamers en badkamer. De andere woningen zijn veelal gelijkvloers en hoewel ik mooie, speelse indelingen heb gezien, vraag ik me af of het niet meer doorslag van geluid geeft? Oftewel: bij een 'normale' woning is natuurlijk de verdiepingsvloer de voornaamste demper van geluid en die zijn erg dik. Terwijl je bij gelijkvloers in mijn ogen maar weinig geluidsbeperkende elementen hebt, of zou je tussen de woon/eetgedeelte en de 'vleugel' met slaapkamers/badkamer enerzijds en garage/evt. werkkamer/bijkeuken anderzijds ook veel dikkere, beter geïsoleerde muren kunnen gebruiken?
Verder zijn wij niet zoveel eisend als het op het ontwerp aankomt, in die zin dat we uiteindelijk wel nog willen gaan kijken waar elke deur en elk raam komt, de indeling zelf nog maken, maar hoe het er precies uit komt te zien zijn we flexibel in zeg maar. Is het dan heel ongebruikelijk om aan de ontwerper te vragen om van beide woningtypes een soort basis te hanteren en daar offertes voor op te vragen? Want stel beide in vergelijkbaar woonoppervlak schelen een ton, dan zijn wij heel praktisch ingesteld en zullen dan altijd voor de goedkopere optie gaan en eventueel qua uiterlijk de mooiere woning laten schieten, zodat we meer opties en een wat grotere woning kunnen realiseren. Wat zijn jullie adviezen hierin?
Als laatste is het zo dat we nu al in een erg nieuwe woning wonen, uit 2022, maar de locatie zijn we niet tevreden mee vandaar deze stap. Overigens hebben we deze niet (laten) bouwen, maar zijn we de 2e bewoners. Niet hetzelfde proces meegemaakt, maar we hebben wel geleerd van deze woning wat we wel en niet prettig vinden en wat we in de nieuwe woning anders of juist hetzelfde willen. Voor ons toch wel de belangrijkste verbeterpunten zijn: een WTW-installatie zodat géén roosters nodig zijn, en de warmtepomp niet meer op het platte dak van de garage/hal plaatsen maar losstaand in de tuin ivm toch wel enige doorslag van geluid. Idealiter gaan we overigens voor aardwarmte, maar als dat niet in het budget zou passen, dan is L/W ook goed genoeg.
Verder wat kleinere details: zo vinden we UTP aansluitingen door heel het huis geweldig, ook erg handig met PoE spul. En zijn we toch wel fan geworden van de Bora kookplaat, niet meer zo'n afzichtelijke afzuigkap. De kanaalplaten willen we ook niet meer met die lelijke gleuven op het hele plafond, maar we begrepen al dat icm WTW het sowieso beter is een ander type plafond te kiezen, maar wordt het ook wel duurder van.
Zijn er in dit stadium nog bepaalde must-haves die we mee moeten nemen in onze stap naar een ontwerp en offerte? We gaan er (wellicht onterecht?) vanuit dat we na een eerste ontwerp die hopelijk 90% van de kostenindicatie moet dekken daarna nog kunnen schuiven met indeling, exacte positie ramen en deuren, plekken van stopcontacten, UTP-dozen, etc.
Nu is het zo dat op deze locatie niet projectmatig gewerkt wordt, maar er wel een beeldkwaliteitsplan geldt. Daarbij geldt met name dat het één of twee woonlagen met kap moet zijn en de kap een grote overstek moet hebben van minstens 60cm. Als voorbeelden worden o.a. de typische jaren 30 woningen gegeven en de door Frank Lloyd Wright geïnspireerde woningstijl.
Onze voorkeur gaat uit naar zo'n laatste woning, het merendeel van wat er gerealiseerd is, is ook in deze stijl, maar een enkeling heeft ook voor de jaren 30 woning gekozen. Zoals wel vaker zal het budget hierin bepalend zijn en we begrepen in een eerst telefoongesprek al dat een jaren 30 woning wat goedkoper te realiseren is en daarom relatief wat meer oppervlak kan opleveren én je hebt de scheiding met BG woonkamer, keuken, eetkamer, garage, bijkeuken en op de verdieping slaapkamers en badkamer. De andere woningen zijn veelal gelijkvloers en hoewel ik mooie, speelse indelingen heb gezien, vraag ik me af of het niet meer doorslag van geluid geeft? Oftewel: bij een 'normale' woning is natuurlijk de verdiepingsvloer de voornaamste demper van geluid en die zijn erg dik. Terwijl je bij gelijkvloers in mijn ogen maar weinig geluidsbeperkende elementen hebt, of zou je tussen de woon/eetgedeelte en de 'vleugel' met slaapkamers/badkamer enerzijds en garage/evt. werkkamer/bijkeuken anderzijds ook veel dikkere, beter geïsoleerde muren kunnen gebruiken?
Verder zijn wij niet zoveel eisend als het op het ontwerp aankomt, in die zin dat we uiteindelijk wel nog willen gaan kijken waar elke deur en elk raam komt, de indeling zelf nog maken, maar hoe het er precies uit komt te zien zijn we flexibel in zeg maar. Is het dan heel ongebruikelijk om aan de ontwerper te vragen om van beide woningtypes een soort basis te hanteren en daar offertes voor op te vragen? Want stel beide in vergelijkbaar woonoppervlak schelen een ton, dan zijn wij heel praktisch ingesteld en zullen dan altijd voor de goedkopere optie gaan en eventueel qua uiterlijk de mooiere woning laten schieten, zodat we meer opties en een wat grotere woning kunnen realiseren. Wat zijn jullie adviezen hierin?
Als laatste is het zo dat we nu al in een erg nieuwe woning wonen, uit 2022, maar de locatie zijn we niet tevreden mee vandaar deze stap. Overigens hebben we deze niet (laten) bouwen, maar zijn we de 2e bewoners. Niet hetzelfde proces meegemaakt, maar we hebben wel geleerd van deze woning wat we wel en niet prettig vinden en wat we in de nieuwe woning anders of juist hetzelfde willen. Voor ons toch wel de belangrijkste verbeterpunten zijn: een WTW-installatie zodat géén roosters nodig zijn, en de warmtepomp niet meer op het platte dak van de garage/hal plaatsen maar losstaand in de tuin ivm toch wel enige doorslag van geluid. Idealiter gaan we overigens voor aardwarmte, maar als dat niet in het budget zou passen, dan is L/W ook goed genoeg.
Verder wat kleinere details: zo vinden we UTP aansluitingen door heel het huis geweldig, ook erg handig met PoE spul. En zijn we toch wel fan geworden van de Bora kookplaat, niet meer zo'n afzichtelijke afzuigkap. De kanaalplaten willen we ook niet meer met die lelijke gleuven op het hele plafond, maar we begrepen al dat icm WTW het sowieso beter is een ander type plafond te kiezen, maar wordt het ook wel duurder van.
Zijn er in dit stadium nog bepaalde must-haves die we mee moeten nemen in onze stap naar een ontwerp en offerte? We gaan er (wellicht onterecht?) vanuit dat we na een eerste ontwerp die hopelijk 90% van de kostenindicatie moet dekken daarna nog kunnen schuiven met indeling, exacte positie ramen en deuren, plekken van stopcontacten, UTP-dozen, etc.
/f/image/01wo8m9sPtZXYCp9YOWQvvYm.png?f=fotoalbum_large)
:strip_exif()/f/image/32iIEGAsRzkA8rcn80PKMOdC.jpg?f=fotoalbum_large)



:strip_exif()/f/image/21QeEtkKtu6fP5GPgJ2Dckv8.png?f=user_large)
:strip_exif()/f/image/ZOKWg0peuGRVJUh3DG1y0sBD.png?f=user_large)
:strip_exif()/f/image/vzSXNHIxo8EljvO6IVsasqkj.jpg?f=fotoalbum_large)
:strip_exif()/f/image/gdj2znFkcXHMi3EFCf8mHlDW.jpg?f=fotoalbum_large)
:strip_exif()/f/image/iRR1EbAVEODZx2SQOUwBFzdz.jpg?f=fotoalbum_large)
:strip_exif()/f/image/q6iAAKvUmIZfWeM69gdJJVJN.jpg?f=fotoalbum_large)
:strip_exif()/f/image/Jq40ohsGmV6jsMCTzdMY0eI9.jpg?f=fotoalbum_large)