Bedankt allemaal voor jullie reacties! Jullie antwoorden hebben me, tezamen met deze
publicatie van TNO uit 2011, weer een stukje op weg geholpen.

Inmiddels is mij duidelijk geworden dat de ventilatie-eisen per land verschillen. Niet een beetje, maar in verschillende gevallen erg veel. Het is allemaal niet zo zwart-wit als ik in eerste instantie dacht. De wetenschappelijke onderbouwing is bovendien niet zo stevig als ik had verwacht en gehoopt.
Tavru schreef op woensdag 19 oktober 2022 @ 15:01:
@
Squawk Ik kan uit je berekeningstabel niet halen wanneer die is opgesteld. Ik weet niet wie die kleurbalken in de tabel heeft gezet. Wanneer ik uitga van de tijd van leveringperiode van de WHR 930 was het voor het overgrote deel van de tijd zo dat werd uitgegaan dat de benodigde ventilatiecapaciteit werd geleverd op stand 3. Ik denk dat daarom ook bij "unit" in het onderste deel 100% is ingevoerd. Pas de laatste jaren is de standaard geworden om de capaciteit te leveren op stand 2. Stand 3 werd toen dus een soort "extra" capaciteit.
Je hebt je verdiept in het (naar mijn mening vrijwel onleesbare) Bouwbesluit. In je citaat staat het begrip verblijfsgebieden. Dit zijn niet jouw individuele kamers. Een verblijfsgebied is een gebied dat bestaat uit aan elkaar grenzende verblijfsRUIMTEN. En die verblijfsruimten zijn jouw (slaap-)kamers. De door jouw genoemde tekst is naar mijn idee in het leven geroepen om zone-geregelde systemen in te kunnen passen in het Bouwbesluit. De bedoeling is dat niet een systeem wordt aangelegd dat groot genoeg is om 1 verblijfsgebied te kunnen bedien maar te klein is om beide (of nog meer) verblijfsgebieden tegelijkertijd te kunnen bedienen. En als ik de tekst zo lees dan is het ook nog eens toegespitst op zone-regeling.
Kortom...die 70% slaat op de totale capaciteit over beide verblijfsruimten. Er mag dus in jouw geval geen installatie in die minder dan 70% van (55+35=) 90 l/s ofwel 63 l/s levert. En die mag dan overwegend in verblijfsgebied 1 of verblijfsgebied 2 worden toegevoerd dmv kleppen (=zone-regeling).
@
Rzaan Misschien is het voor iedereen een stuk duidelijker als je aangeeft wat de verschillen zijn tussen de Nederlandse en de Duitse regelgeving. Voordat iedere geïnteresseerde zich individueel gaat verdiepen in veelal onleesbare en (bijna) onbegrijpelijke teksten.
De berekening die ik in mijn vorige post had geplaatst is opgesteld in september 2006. De rode arceringen had ik zelf toegevoegd zodat direct duidelijk is hoe ik aan bepaalde waardes in mijn berekeningen kwam.
70 procent van de berekende 324 m3/uur (jouw 90 l/s) is 226,8 m3/uur (jouw 63 l/s). Daar zijn we het over eens. Als ik je goed begrijp zie jij V1 (= begane grond) als een verblijfsgebied en V2 (= verdieping) als een tweede verblijfsgebied. Dat klinkt logisch. In de berekening van de installateur wordt bovenaan het document bij de adresgegevens expliciet de term 'verblijfsgebied' vermeld. Deze is 76,7 m2. Dat is de woonkamer op de begane grond. Dit oppervlak wordt in de berekening vermenigvuldigd met 0,9 en daarmee komt de installateur tot 69 l/s.
:strip_exif()/f/image/kpnYOaQEXfXsW1zm1vCIPsXN.jpg?f=fotoalbum_large)
Theo schreef op woensdag 19 oktober 2022 @ 16:32:
[...]
Hier kan een heel simpel antwoord op worden gegeven; meten is pas echt weten helaas. Je ventilatie heb je vooral om de CO2 in huis af te voeren. Meet je de CO2 in huis dan weet je of een systeem dus afdoende werkt. Wanneer je met vier personen in huis bent dan lijkt het debiet gewoon te kloppen voor zowel overdag (4 man in de huiskamer) als 's nachts (4 man slapen in de slaapkamers)
Een marge van 0.7 kuub/uur is echt te verwaarlozen; dat is 0.3% in debiet, en dus ook in CO2. Wanneer je een CO2 in huis hebt van 800 ppm dan is de delta tussen binnen en buiten zo'n 350 ppm. Een 0.3% zachter/harder draaiende ventilatie zorgt dus ook voor een 0.3% verandering in de delta; dus zo'n 1 ppm.. Dat valt al amper te meten, laat staan dat je er iets van merkt.
Ik zou het systeem dus gewoon lekker op standje 2 laten staan. Die 0.7 kuub afwijking daar hoef je echt geen zorgen om te maken.
Ik zal op zoek gaan naar een CO2-meter, want schone lucht is inderdaad waar het uiteindelijk allemaal om draait. De WTW-unit en de vele regeltjes zijn daarbij slechts hulpmiddelen.
Zodra ik de lagers van mijn WHR 930 heb vervangen en een kap heb gemaakt op mijn anemometer, ga ik eerst de huidige situatie meten als 0-meting. Daarna ga ik de meting per ruimte vergelijken met de verschillende berekeningen die ik heb gemaakt op basis van de vereisten in het bouwbesluit en de verschillende vuistregels die in dit topic zijn genoemd. Zie ook mijn volgende reactie.
Rzaan schreef op woensdag 19 oktober 2022 @ 20:41:
[...]
De basis tussen de verschillen is in dit stukje tekst uitgelegd:
De vuistregel vanuit de Duitse Bouwbiologie zegt dat per persoon 30-60 m3 per uur lucht verse lucht nodig is. Het bouwbesluit in Nederland, geeft de ventilatiecapaciteit per m2 aan.
Als we bijvoorbeeld een tweepersoons slaapkamer van 3×4 m1 zouden nemen, komt dat neer op 38 m3 per uur.
Dus ca. 19 m3 per persoon.
Voor één persoon zou de slaapkamer dus nèt voldoen maar voor twee personen niet.
De slaapkamer voldoet wel aan het bouwbesluit maar niet aan de minimale waarden vanuit gezond bouwen.
Ook mee eens.
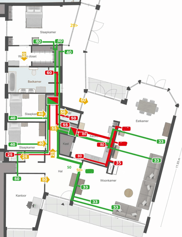
Voor mijzelf heb ik alvast een tabel gemaakt met alle verblijfsruimtes in huis die een toevoer- of afvoerventiel hebben. Per ruimte heb ik het vloeroppervlak berekend. Vervolgens heb ik volgens verschillende richtlijnen en vuistregels berekend wat per uur het aantal m3 toevoer en afvoer moet zijn. Hier voeg ik voor de volledigheid nog de data uit mijn 0-meting aan toe.
De totalen kan ik wel alvast delen en die zijn als volgt*:
- Volgens het bouwbesluit (met minimaal 2,52 m3 /uur per m2 vloeroppervlak) = 353,93 m3/uur
- Volgens de vuistregel 30 m3/uur per persoon per vertrek = 240 m3/uur**
- Berekening van installateur uit 2006 = 324 m3/uur
Kortom: de benodigde ventilatiecapaciteit volgens het bouwbesluit én de berekening van de installateur kan ik alleen behalen als de WHR930 op (bijna) 100% draait. Als ik uitga van 30 m3/uur per persoon, moet de WHR 930 op stand 2 op grofweg 69% draaien.
*De bijkeuken, inpandige garage en een extra vierde slaapkamer boven de garage worden niet geventileerd met behulp van de WTW-unit. Deze ruimtes hebben elk eigen ventilatieroosters in de ramen. Deze ruimtes zijn niet meegenomen in de berekening van de installateur en zal ik ook niet meenemen in mijn eigen berekeningen.
** Uitgaande van 4 personen in de woonkamer. Mijn vrouw en ik wonen hier met z’n tweeën en een hond, dus rekenen met 4 personen is al aan de ruime kant. Vanwege visite én om aan de gezonde kant te zitten, reken ik met 4 personen.