Lucht/Water warmtepomp om mee te verwarmen en te koelen #8 Vorige deel Overzicht Volgende deel Laatste deel

Dit topic is onderdeel van een reeks. Ga naar het meest recente topic in deze reeks.

Pagina: 1 ... 75 ... 126 Laatste
Acties:
  • 613.341 views

Acties:
  • 0 Henk 'm!

  • CreBa
  • Registratie: December 2018
  • Laatst online: 27-10 13:41
@Verwijderd De woning is ook volledig onderkelder, dus het beneden verdiep heeft een gemiddelde temperatuur van +-15 graden onder zich. Deze is ook wel goed geïsoleerd.
Thanks voor de input, de 5Kw lijkt me wat krapjes voor naar de toekomst +- 3jaar boven ook meer te verwarmen.
De uitdaging van 2x 5Kw pana’s lijkt me anders ook wel een leuk project...
Eventueel parallel over de volledige woning oftewel 1 per verdiep laten draaien.
Iemand hier ervaring mee?

Acties:
  • 0 Henk 'm!

  • lolle1212
  • Registratie: Juni 2011
  • Laatst online: 20-10 20:02
doek55 schreef op maandag 2 maart 2020 @ 13:13:
[...]

Waarom denk je dat de LG een COP van slechts 4,6 heeft op minimum vermogen? De Mitsubishi zit bij minimum vermogen op een COP van 7.
Ja potentieel goed punt inderdaad, ik had gewoon de LG COP spec gerekend, geen idee of deze veel stijgt.

Minimum vermogen is overigens niet het efficiëntste voor een doorsnee warmtepomp, heb je een link naar die Mitsu met een COP 7? Overigens kan COP natuurlijk wel iets hoger komen als men naar beneden afwijkt van de Ta 35 uit de specificaties van fabrikanten...

Acties:
  • +1 Henk 'm!

  • woger
  • Registratie: Mei 2005
  • Laatst online: 22-04-2024
Vraagje,
Ik ga vandaag of morgen de WP bestellen. Mijn geplande opstelling is deze:

Afbeeldingslocatie: https://internetional.nl/leidingwerk.jpg

WP wordt een LG monobloc 9kW. De boiler een 400L Austria Email .
De LG maakt gebruik van 25mm aansluitingen. Heeft het dan zin om 32mm leiding te gebruiken of is 26mm dan ook goed?
Er komt uiteraard ook nog een filter in de retour leiding naar de WP. Maar moet daar ook nog een pomp voor?
Bg heb ik straks 60m2 vvw en 1e verdieping ongeveer 55m2, daarnaast nog enkele radiatoren.. Heb ik dan ook een expansievat nodig?
Waar zouden we ongeveer afsluiters moeten komen?

Thanks. :)

Acties:
  • 0 Henk 'm!

  • Rimco
  • Registratie: Maart 2007
  • Laatst online: 18:38

Rimco

Lekker duurzaam, denk ik

@woger: Schema is in de basis ok, maar je moet wel de aanvoer/retour van de spiraal in de boiler omwisselen.

1 pomp (intern in de WP of extern in de retour) is voldoende. Sowieso een (wellicht klein) expansievat tenzij de WP deze al intern heeft. Afsluiters naar keuze zou ik zeggen, maar meer is altijd handig. Wel even opletten dat je genoeg veiligheidsventielen hebt zodat bij het afsluiten er geen problemen onstaan.

PV: 49 kWp | ZB: 8kWp | WPs: 3x Pana 7J + Pana 5J + Nibe Savent + Vaillant aroSTOR + Samsung DVM S (L/L) | ESS: 90kWh/24kW + 30kWh/12kW


Acties:
  • +1 Henk 'm!

Verwijderd

CreBa schreef op maandag 2 maart 2020 @ 13:58:
@Verwijderd De woning is ook volledig onderkelder, dus het beneden verdiep heeft een gemiddelde temperatuur van +-15 graden onder zich. Deze is ook wel goed geïsoleerd.
Thanks voor de input, de 5Kw lijkt me wat krapjes voor naar de toekomst +- 3jaar boven ook meer te verwarmen.
De uitdaging van 2x 5Kw pana’s lijkt me anders ook wel een leuk project...
Eventueel parallel over de volledige woning oftewel 1 per verdiep laten draaien.
Iemand hier ervaring mee?
2 maal 5kW waar 1 maal 5kW voldoende lijkt ? Ieder heeft zo zijn/haar uitdagingen kenneljk, die tweede erbij indien het nodig blijkt lijkt me dan een beter uitgangspunt, maar ieder zijn/haar ding uiteraard.

Acties:
  • 0 Henk 'm!

Verwijderd

woger schreef op maandag 2 maart 2020 @ 14:04:
Vraagje,
Ik ga vandaag of morgen de WP bestellen. Mijn geplande opstelling is deze:

[Afbeelding]

WP wordt een LG monobloc 9kW. De boiler een 400L Austria Email .
De LG maakt gebruik van 25mm aansluitingen. Heeft het dan zin om 32mm leiding te gebruiken of is 26mm dan ook goed?
Er komt uiteraard ook nog een filter in de retour leiding naar de WP. Maar moet daar ook nog een pomp voor?
Bg heb ik straks 60m2 vvw en 1e verdieping ongeveer 55m2, daarnaast nog enkele radiatoren.. Heb ik dan ook een expansievat nodig?
Waar zouden we ongeveer afsluiters moeten komen?

Thanks. :)
9kW op 115m2 vvw * max. 45W/m2 = 5.2kW ?

Acties:
  • 0 Henk 'm!

  • woger
  • Registratie: Mei 2005
  • Laatst online: 22-04-2024
@Rimco De LG HM091M.U43 heeft intern een klein expansievat en pomp. Afsluiters noem ik voornamelijk omdat ik hier regelmatig lees om die zoveel mogelijk aan te brengen :) . Waar zou je er zeker willen hebben?

Is er overigens kwalitatief verschil tussen bijv. Uponor en een goedkoper merk (maar met duitse goedkeuring)? En zijn deze onderling compatible? Kan ik bijv. uponor koppelingen op Henco leiding gebruiken?

Acties:
  • 0 Henk 'm!

  • woger
  • Registratie: Mei 2005
  • Laatst online: 22-04-2024
Verwijderd schreef op maandag 2 maart 2020 @ 14:22:
[...]

9kW op 115m2 vvw * max. 45W/m2 = 5.2kW ?
Ja, maar zitten ook nog een paar radiatoren bij en SWW.

Hoe kom je eigenlijk aan max 45W/m2 ?

[ Voor 8% gewijzigd door woger op 02-03-2020 14:24 ]


Acties:
  • 0 Henk 'm!

Verwijderd

woger schreef op maandag 2 maart 2020 @ 14:23:
[...]


Ja, maar zitten ook nog een paar radiatoren bij en SWW.
Heb je historische gasverbruiksgegevens ?

Acties:
  • +1 Henk 'm!

  • reneeke1970
  • Registratie: April 2015
  • Laatst online: 16:22
CreBa schreef op maandag 2 maart 2020 @ 13:58:
@Verwijderd De woning is ook volledig onderkelder, dus het beneden verdiep heeft een gemiddelde temperatuur van +-15 graden onder zich. Deze is ook wel goed geïsoleerd.
Thanks voor de input, de 5Kw lijkt me wat krapjes voor naar de toekomst +- 3jaar boven ook meer te verwarmen.
De uitdaging van 2x 5Kw pana’s lijkt me anders ook wel een leuk project...
Eventueel parallel over de volledige woning oftewel 1 per verdiep laten draaien.
Iemand hier ervaring mee?
Ik dacht dat het @annespruit1980 was die twee 5 kW heeft staan op één huis.
Tegen alle regels in heeft hij er eentje links aan huis gekoppeld en de andere rechts. Oftewel aan de twee uiteinden van zijn leiding werk. De twee aanvoeren pompen tegen elkaar in. Werkt dus uitstekend, geen probleem met ontdooien, de flow word niet beïnvloed per wp, en hij kan er ook gewoon eentje uit zetten, de andere blijft dan prima functioneren.

1 PVoutput . Dongen NB


Acties:
  • 0 Henk 'm!

  • doek55
  • Registratie: Februari 2010
  • Laatst online: 17:06
lolle1212 schreef op maandag 2 maart 2020 @ 14:03:
[...]


Ja potentieel goed punt inderdaad, ik had gewoon de LG COP spec gerekend, geen idee of deze veel stijgt.

Minimum vermogen is overigens niet het efficiëntste voor een doorsnee warmtepomp, heb je een link naar die Mitsu met een COP 7? Overigens kan COP natuurlijk wel iets hoger komen als men naar beneden afwijkt van de Ta 35 uit de specificaties van fabrikanten...
Het minimum vermogen is in de praktijk alleen relevant bij een lage Ta, liefst onder de 30°C. Daarom laat ik alleen deze Ta zien. De rest kun je vinden in het Mitsubishi Databook, maar dit meet ik ook in de praktijk met de Kamstrup en een Ta van 29°C.
Afbeeldingslocatie: https://i.imgur.com/q19WE8i.png

Acties:
  • 0 Henk 'm!

  • woger
  • Registratie: Mei 2005
  • Laatst online: 22-04-2024
Verwijderd schreef op maandag 2 maart 2020 @ 14:24:
[...]

Heb je historische gasverbruiksgegevens ?
Ja, 4300m3 maar... dat is inclusief zwembad verwarming en incl. verwarming bijgebouw. Daarnaast ga ik het huis nog isoleren (wand en vloer). Dus eigenlijk lager dan 4300m3 8) . Ik ga grof weg uit van ongeveer de helft.

Acties:
  • 0 Henk 'm!

  • Rimco
  • Registratie: Maart 2007
  • Laatst online: 18:38

Rimco

Lekker duurzaam, denk ik

woger schreef op maandag 2 maart 2020 @ 14:22:
@Rimco De LG HM091M.U43 heeft intern een klein expansievat en pomp. Afsluiters noem ik voornamelijk omdat ik hier regelmatig lees om die zoveel mogelijk aan te brengen :) . Waar zou je er zeker willen hebben?

Is er overigens kwalitatief verschil tussen bijv. Uponor en een goedkoper merk (maar met duitse goedkeuring)? En zijn deze onderling compatible? Kan ik bijv. uponor koppelingen op Henco leiding gebruiken?
In mijn planning zitten afsluiters om de WP af te koppelen, de pomp (extern) weg te halen, de buffers (CV water) af te sluiten van de rest en ook afsluiters tussen de uitgaande CV leidingen en de rest van het stookhok.
Het gaat er vooral om dat je niet een paar 100L weg moet laten stromen als er iets wilt doen met een klein gedeelte van de leidingen. Verder nog wat extra afsluiters indien er wat buiswerk is wat ik makkelijk weg wil kunnen halen om bijvoorbeeld ergens bij te kunnen.

PV: 49 kWp | ZB: 8kWp | WPs: 3x Pana 7J + Pana 5J + Nibe Savent + Vaillant aroSTOR + Samsung DVM S (L/L) | ESS: 90kWh/24kW + 30kWh/12kW


Acties:
  • 0 Henk 'm!

  • woger
  • Registratie: Mei 2005
  • Laatst online: 22-04-2024
Rimco schreef op maandag 2 maart 2020 @ 14:38:
[...]


In mijn planning zitten afsluiters om de WP af te koppelen, de pomp (extern) weg te halen, de buffers (CV water) af te sluiten van de rest en ook afsluiters tussen de uitgaande CV leidingen en de rest van het stookhok.
Het gaat er vooral om dat je niet een paar 100L weg moet laten stromen als er iets wilt doen met een klein gedeelte van de leidingen. Verder nog wat extra afsluiters indien er wat buiswerk is wat ik makkelijk weg wil kunnen halen om bijvoorbeeld ergens bij te kunnen.
OK, dat zijn dus simpele handmatige afsluiters.

En heb jij 32mm of 26mm van en naar de WP lopen?

Acties:
  • 0 Henk 'm!

  • lolle1212
  • Registratie: Juni 2011
  • Laatst online: 20-10 20:02
doek55 schreef op maandag 2 maart 2020 @ 14:27:
[...]


Het minimum vermogen is in de praktijk alleen relevant bij een lage Ta, liefst onder de 30°C. Daarom laat ik alleen deze Ta zien. De rest kun je vinden in het Mitsubishi Databook, maar dit meet ik ook in de praktijk met de Kamstrup en een Ta van 29°C.
[Afbeelding]
Dat ligt natuurlijk wel aan je afgifte systeem, met radiatoren ga je onder de 30 al snel last krijgen dat je afgifte te ver inzakt..

Maar ik zie dat je bij tBuiten 15 graden bedoelt.. dan snap ik de hogere COP wel ja, dat zal bij LG niet anders zijn denk ik.. maar dan heb ik de WP normaliter niet aan.

Acties:
  • +2 Henk 'm!

  • annespruit1980
  • Registratie: April 2017
  • Laatst online: 17-10 21:57
reneeke1970 schreef op maandag 2 maart 2020 @ 14:27:
[...]

Ik dacht dat het @annespruit1980 was die twee 5 kW heeft staan op één huis.
Tegen alle regels in heeft hij er eentje links aan huis gekoppeld en de andere rechts. Oftewel aan de twee uiteinden van zijn leiding werk. De twee aanvoeren pompen tegen elkaar in. Werkt dus uitstekend, geen probleem met ontdooien, de flow word niet beïnvloed per wp, en hij kan er ook gewoon eentje uit zetten, de andere blijft dan prima functioneren.
Klopt, werkt uitstekend zo. Staan wel naast elkaar op de grond, maar inderdaad aan beide zijdes van de leidingen.

Acties:
  • 0 Henk 'm!

  • Rimco
  • Registratie: Maart 2007
  • Laatst online: 18:38

Rimco

Lekker duurzaam, denk ik

woger schreef op maandag 2 maart 2020 @ 14:49:
[...]

OK, dat zijn dus simpele handmatige afsluiters.

En heb jij 32mm of 26mm van en naar de WP lopen?
Dat zijn inderdaad gewone kogelkranen met volle doorlaat. Buiswerk van de WP is 1" (34mm), maar na de eerste paar filters enzo gaat het over naar 1-1/4" (42mm) net als de 2 hoofdleidingen van de radiatoren. Dat is nog een voordeel van jaren 70 buiswerk, zeker met de max van 16kW.

PV: 49 kWp | ZB: 8kWp | WPs: 3x Pana 7J + Pana 5J + Nibe Savent + Vaillant aroSTOR + Samsung DVM S (L/L) | ESS: 90kWh/24kW + 30kWh/12kW


Acties:
  • 0 Henk 'm!

  • woger
  • Registratie: Mei 2005
  • Laatst online: 22-04-2024
Rimco schreef op maandag 2 maart 2020 @ 16:29:
[...]


Dat zijn inderdaad gewone kogelkranen met volle doorlaat. Buiswerk van de WP is 1" (34mm), maar na de eerste paar filters enzo gaat het over naar 1-1/4" (42mm) net als de 2 hoofdleidingen van de radiatoren. Dat is nog een voordeel van jaren 70 buiswerk, zeker met de max van 16kW.
1" is toch 25mm? en 1 1/4 dan 32mm? :?

Acties:
  • 0 Henk 'm!

  • Rimco
  • Registratie: Maart 2007
  • Laatst online: 18:38

Rimco

Lekker duurzaam, denk ik

@woger Het gaat om van die rare Engelse buismaten, waarbij 1" geen 25,4mm is, maar groter ;) Is altijd wat verwarrend.

PV: 49 kWp | ZB: 8kWp | WPs: 3x Pana 7J + Pana 5J + Nibe Savent + Vaillant aroSTOR + Samsung DVM S (L/L) | ESS: 90kWh/24kW + 30kWh/12kW


Acties:
  • 0 Henk 'm!

  • woger
  • Registratie: Mei 2005
  • Laatst online: 22-04-2024
Rimco schreef op maandag 2 maart 2020 @ 16:35:
@woger Het gaat om van die rare Engelse buismaten, waarbij 1" geen 25,4mm is, maar groter ;) Is altijd wat verwarrend.
Maar LG geeft aan dat de koppelingen op de WP in ieder geval 25mm zijn (gegevens)
Dus volgens mij heeft het weinig zin om daar dan 32mm leiding achter te hangen.

Acties:
  • 0 Henk 'm!

  • flippy
  • Registratie: December 2001
  • Niet online

flippy

Alle rechten voorbehouden.

woger schreef op maandag 2 maart 2020 @ 14:22:
@Rimco Is er overigens kwalitatief verschil tussen bijv. Uponor en een goedkoper merk (maar met duitse goedkeuring)? En zijn deze onderling compatible? Kan ik bijv. uponor koppelingen op Henco leiding gebruiken?
ik heb hier het "goedkopere merk met duitse goedkeuring" en het werkt goed. vind het zoizo fijner dan metalen leidingen.
woger schreef op maandag 2 maart 2020 @ 16:41:
[...]
Dus volgens mij heeft het weinig zin om daar dan 32mm leiding achter te hangen.
minder drukval in je leidingen en een lagere watersnelheid. dus minder werk voor de pomp. te dunne leiidng kan je heel makkelijk doen, te dik niet....

[ Voor 28% gewijzigd door flippy op 02-03-2020 16:50 ]

wat een geheim agent toch allemaal niet moet doen om incognito op zijn werk te verschijnen


Acties:
  • 0 Henk 'm!

  • Rimco
  • Registratie: Maart 2007
  • Laatst online: 18:38

Rimco

Lekker duurzaam, denk ik

@woger Als het gaat om een metertje (zoals bij mij met de filters enzo) kan je hetzelfde aanhouden als de WP. Als je echter meters wilt gaan maken kan je het beste de grootste diameter van je systeem aanhouden. Hoe langer de vernauwing is, hoe meer weerstand het zal bieden en hoe groter de kans dat het herrie maakt. Je kan de WP zelf zien als een vernauwing in je systeem als de rest van je hoofdleidingen groter zijn. Dan wil je dus die vernauwing zo kort mogelijk houden. Als de rest van je systeem (hoofdleidingen) dezelfde maat buis als je WP gebruikt kan je net zo goed alles hetzelfde houden.

PV: 49 kWp | ZB: 8kWp | WPs: 3x Pana 7J + Pana 5J + Nibe Savent + Vaillant aroSTOR + Samsung DVM S (L/L) | ESS: 90kWh/24kW + 30kWh/12kW


Acties:
  • +1 Henk 'm!

  • hrt
  • Registratie: Oktober 2010
  • Laatst online: 06-08 16:33

hrt

Rimco schreef op maandag 2 maart 2020 @ 16:35:
@woger Het gaat om van die rare Engelse buismaten, waarbij 1" geen 25,4mm is, maar groter ;) Is altijd wat verwarrend.
Niks verwarrend aan als je weet dat met dikwandige maten de binnen diameter bedoelt word. 8)

24x170SF, oost (105 graden), 25 graden, Steca3600/ 5D, 17-40, 24-105, 70-200/ WH-MDC05F3E5, 50L E-boiler, Gasloos per27-01-2017


Acties:
  • 0 Henk 'm!

  • woger
  • Registratie: Mei 2005
  • Laatst online: 22-04-2024
hrt schreef op maandag 2 maart 2020 @ 16:50:
[...]


Niks verwarrend aan als je weet dat met dikwandige maten de binnen diameter bedoelt word. 8)
Uhmm Ok, maar is die 1" of 25mm van de LG dan binnen of buiten maat? Als het binnenmaat is moet ik sowieso naar 32mm buis (26mm binnenmaat). De afstand naar de boiler en verwarmingsverdelers is ongeveer 7m.

Acties:
  • 0 Henk 'm!

  • Rimco
  • Registratie: Maart 2007
  • Laatst online: 18:38

Rimco

Lekker duurzaam, denk ik

@hrt Dat is waar, maar is alsnog een erg grove schatting. 1" is 33,7mm met tegenwoordig vaak 2 tot 3 mm wanddikte, dus dan hou je al gauw meer dan 27mm over :/

PV: 49 kWp | ZB: 8kWp | WPs: 3x Pana 7J + Pana 5J + Nibe Savent + Vaillant aroSTOR + Samsung DVM S (L/L) | ESS: 90kWh/24kW + 30kWh/12kW


Acties:
  • 0 Henk 'm!

  • hrt
  • Registratie: Oktober 2010
  • Laatst online: 06-08 16:33

hrt

Rimco schreef op maandag 2 maart 2020 @ 16:56:
@hrt Dat is waar, maar is alsnog een erg grove schatting. 1" is 33,7mm met tegenwoordig vaak 2 tot 3 mm wanddikte, dus dan hou je al gauw meer dan 27mm over :/
Maar het is wel de (okay oude dikwandige) aanduiding van de maatvoering en duims (1") is dus 2,54 mm (inwendig).
En dus geen grove "schatting".

24x170SF, oost (105 graden), 25 graden, Steca3600/ 5D, 17-40, 24-105, 70-200/ WH-MDC05F3E5, 50L E-boiler, Gasloos per27-01-2017


Acties:
  • 0 Henk 'm!

  • Rimco
  • Registratie: Maart 2007
  • Laatst online: 18:38

Rimco

Lekker duurzaam, denk ik

@hrt Het was inderdaad correct, enkel tegenwoordig is het een schatting omdat de wanddikte anders is geworden :)

PV: 49 kWp | ZB: 8kWp | WPs: 3x Pana 7J + Pana 5J + Nibe Savent + Vaillant aroSTOR + Samsung DVM S (L/L) | ESS: 90kWh/24kW + 30kWh/12kW


Acties:
  • +2 Henk 'm!

  • hrt
  • Registratie: Oktober 2010
  • Laatst online: 06-08 16:33

hrt

Rimco schreef op maandag 2 maart 2020 @ 17:02:
@hrt Het was inderdaad correct, enkel tegenwoordig is het een schatting omdat de wanddikte anders is geworden :)
Die zijn nog steeds hetzelfde, alleen heb je nu veel meer soorten, dunwandige precisie buis/slang enz, enz.
Dus nog steeds GEEN schatting.
I rest my case...

24x170SF, oost (105 graden), 25 graden, Steca3600/ 5D, 17-40, 24-105, 70-200/ WH-MDC05F3E5, 50L E-boiler, Gasloos per27-01-2017


Acties:
  • +1 Henk 'm!

  • Rimco
  • Registratie: Maart 2007
  • Laatst online: 18:38

Rimco

Lekker duurzaam, denk ik

@hrt Ik zal straks de binnenkant van die ouderwetse buis eens opmeten, ben wel benieuwd. Online lijkt die informatie enkel wat inconsistent, vandaar had ik het idee dat het niet meer altijd exact klopte.

PV: 49 kWp | ZB: 8kWp | WPs: 3x Pana 7J + Pana 5J + Nibe Savent + Vaillant aroSTOR + Samsung DVM S (L/L) | ESS: 90kWh/24kW + 30kWh/12kW


Acties:
  • +7 Henk 'm!

  • Naalroc
  • Registratie: Maart 2009
  • Laatst online: 26-10 22:55
@hrt heeft helemaal gelijk, en het is eenvoudig als je weet hoe dit historisch gegroeid is:
Een 1"buis had oorspronkelijk een doorlaat van 1 ", dus 25,4 mm; de buitenmaat was zo'n 32 mm en daaraan is de maat van de schroefdraad toen gekoppeld.
Destijds was de wanddikte ca 3,5 mm, maar door de vooruitgang in de techniek om die buizen te produceren, kon de wanddikte later teruggebracht worden.
Alle productie gereedschappen waren toen al jaren gestandaardiseerd, en daarom werd de buitenmaat bepalend, waardoor de binnenmaat wat groter werd gemaakt. Daardoor heeft een 1"buis nu dan ook een wat grotere binnendiameter dan 1"=25,4 mm.

De Duitsers gebruiken ook de binnenmaat in feite, als er gesproken wordt over een DN25 of een DN15.
Een DN25 wordt verwezen naar een buis binnendiameter van Nominaal 25 mm, (maar is in feite groter) en dat gaat dus weer samen met een gasdraad van 1"
En DN15 wordt dus 15 mm binnenmaat, en 1/2" schroefdraad maat.
In het grotere pijpwerk worden hier ook de flensmaten bepaald, alsmede het aantal en de diameters van de flensbouten en dergelijke.

In het algemeen is het volgens mij handig om, als buisdiameters worden gegeven hier, er gelijk bij te zetten wat de binnendiameters zijn, want , tenzij je een prof bent en elke dag met de verschillende merken en maten werkt, het voor de meesten niet haalbaar zal blijken om dat allemaal te onthouden, terwijl die binnenmaat in feite het enigst belangrijke is, als het gaat om de doorstroom capaciteit.

My two cents...

En ook op een ander gebied doen de Britten het iets anders, namelijk de sleutelmaat van bouten en moeren, en dus ook de gebruikte gereedschappen.
Een 1/2" WW bout heeft een steel van 12.7 mm, en een sleutelwijdte van ca. 17 mm, terwijl een 1/2" UNC/UNF(Amerikaans) een kop heeft van 12,7 (1/2") diameter, en dus een sleutelwijdte van 12,7 mm.

Was leuk in mijn militaire diensttijd, om te werken aan DAF trucks: 3 gereedschap sets nodig: Engels voor de Hercules motoren, Metrisch voor de ZF versnellingsbakken, en UNC/UNF (Amerikaans, gestandaardiseerd in de NAVO) voor de rest van de truck.
Maar ik dwaal af, geloof ik..... :X

[ Voor 3% gewijzigd door Naalroc op 02-03-2020 18:39 ]

14kW ZubadanPUHZ-SHW140YHA+ERSC-VM2C, 200L boiler , 200L buffer, sinds 8/2018, gasloos


Acties:
  • 0 Henk 'm!

  • TweakersOnly
  • Registratie: September 2000
  • Laatst online: 17:19
Even mezelf quoten met een update:
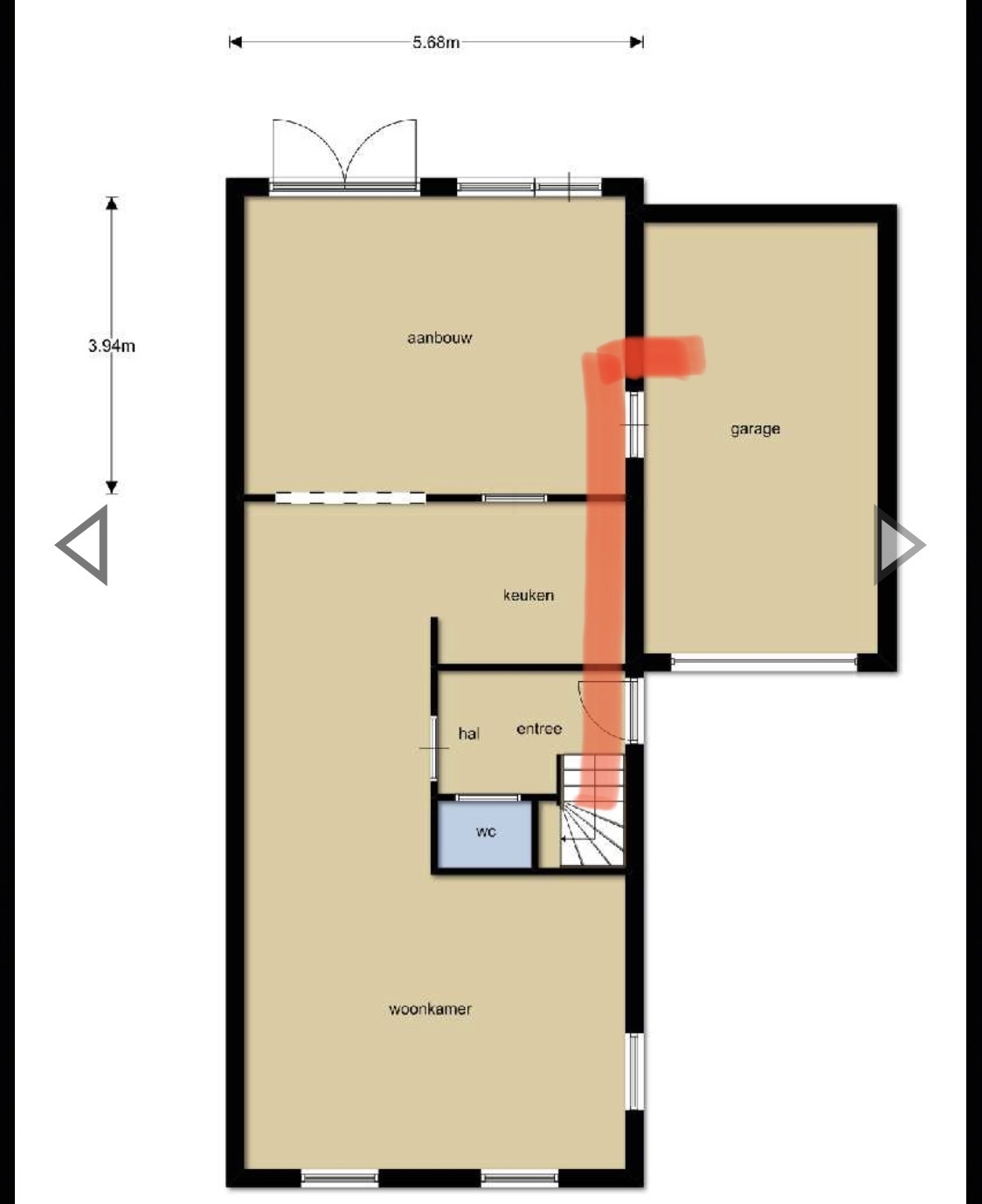
TweakersOnly schreef op zaterdag 29 februari 2020 @ 10:35:
[...]


De 16 mm leiding komt vanuit kruipruimte in de hal omhoog en gaat vervolgens via hal, keuken en aanbouw naar de verdeler in de garage. Zie plattegrond:

[Afbeelding: Plattegrond]

De leiding ligt bovengrond in de cementdekvloer, vooral omdat er in aanbouw geen kruipruimte is.

[Afbeelding: Leiding vloerverwarming]
Installatiebedrijf van de vloerverwarming is vandaag langsgekomen. Vloerverwarming is ontlucht en de beste monteur heeft gratis flowmeters op de groepen geplaatst.

Alle radiators staan dicht. Warmtepomp heeft dan een debiet van 15,5 liter per minuut. Daarvan blijft bij de vloerverwarming verdeler nog geen 7 liter over. Met moeite 1 liter per minuut per groep.

Is dat erg veel verlies, meer dan 50%?

Monteur gaf als oplossing om vvw pomp weer terug te zetten, maar dan ben ik terug bij af.

Acties:
  • 0 Henk 'm!

  • Rol-Co
  • Registratie: Maart 2004
  • Laatst online: 24-10 07:28

Rol-Co

3,8kWpZ 4,98kWpO-Z-W 2,86kWpN

TweakersOnly schreef op maandag 2 maart 2020 @ 18:19:
Even mezelf quoten met een update:


[...]


Installatiebedrijf van de vloerverwarming is vandaag langsgekomen. Vloerverwarming is ontlucht en de beste monteur heeft gratis flowmeters op de groepen geplaatst.

Alle radiators staan dicht. Warmtepomp heeft dan een debiet van 15,5 liter per minuut. Daarvan blijft bij de vloerverwarming verdeler nog geen 7 liter over. Met moeite 1 liter per minuut per groep.

Is dat erg veel verlies, meer dan 50%?

Monteur gaf als oplossing om vvw pomp weer terug te zetten, maar dan ben ik terug bij af.
Je zou het dubbele moeten hebben minimaal, 2 a 2,5 liter op de groepen.

Noord-Oost-Zuid-West 11640Wp Totaal Live, Netduino advanced pv logging


Acties:
  • 0 Henk 'm!

  • TweakersOnly
  • Registratie: September 2000
  • Laatst online: 17:19
Rol-Co schreef op maandag 2 maart 2020 @ 18:35:
[...]

Je zou het dubbele moeten hebben minimaal, 2 a 2,5 liter op de groepen.
Daar was ik al bang voor. Hele huis verbouwd dus even leidingen verzwaren is geen kleine klus. 😡

Acties:
  • 0 Henk 'm!

  • Rol-Co
  • Registratie: Maart 2004
  • Laatst online: 24-10 07:28

Rol-Co

3,8kWpZ 4,98kWpO-Z-W 2,86kWpN

TweakersOnly schreef op maandag 2 maart 2020 @ 18:38:
[...]

Daar was ik al bang voor. Hele huis verbouwd dus even leidingen verzwaren is geen kleine klus. 😡
Er is nog een oplossing. Draai eens 3 groepen de retour dicht! Wat hebben de overige 4 dan?

Noord-Oost-Zuid-West 11640Wp Totaal Live, Netduino advanced pv logging


Acties:
  • 0 Henk 'm!

  • TweakersOnly
  • Registratie: September 2000
  • Laatst online: 17:19
Rol-Co schreef op maandag 2 maart 2020 @ 18:41:
[...]

Er is nog een oplossing. Draai eens 3 groepen de retour dicht! Wat hebben de overige 4 dan?
Dan hebben de andere 4 groepen ongeveer 1,4 / 1,5 liter per minuut debiet

[ Voor 59% gewijzigd door TweakersOnly op 02-03-2020 18:45 ]


Acties:
  • 0 Henk 'm!

  • Rol-Co
  • Registratie: Maart 2004
  • Laatst online: 24-10 07:28

Rol-Co

3,8kWpZ 4,98kWpO-Z-W 2,86kWpN

TweakersOnly schreef op maandag 2 maart 2020 @ 18:44:
[...]

Dan hebben de andere 4 groepen ongeveer 1,4 / 1,5 liter per minuut debiet
Ok, dat is ook niet heel veel, je zou namelijk per 2 groepen kunnen schakelen voor x minuten als een looplicht.
5 min 2 open, na 5 min 2 andere open en eerste 2 dicht enz enz, dan krijgt alles warmte met redelijke flow.
Maar beter is de leiding groter of bochten anders maken, pomp in de wp verzwaren, of hulp pomp bij de vloer in een enkele (aanvoer) leiding die mee helpt.

Noord-Oost-Zuid-West 11640Wp Totaal Live, Netduino advanced pv logging


Acties:
  • 0 Henk 'm!

  • Dylantje2
  • Registratie: April 2007
  • Laatst online: 27-10 17:47

Dylantje2

sorry Bricklayere here :-)

TweakersOnly schreef op maandag 2 maart 2020 @ 18:19:
Even mezelf quoten met een update:


[...]


Installatiebedrijf van de vloerverwarming is vandaag langsgekomen. Vloerverwarming is ontlucht en de beste monteur heeft gratis flowmeters op de groepen geplaatst.

Alle radiators staan dicht. Warmtepomp heeft dan een debiet van 15,5 liter per minuut. Daarvan blijft bij de vloerverwarming verdeler nog geen 7 liter over. Met moeite 1 liter per minuut per groep.

Is dat erg veel verlies, meer dan 50%?

Monteur gaf als oplossing om vvw pomp weer terug te zetten, maar dan ben ik terug bij af.
Wat heb je voor een verdeler?
Foto graag

zonneboiler, pelletkachel, 36 panels, Atlantic Wpb, pana 5 Kw H, Heishamon, Domoticz, Grafana, Solarmeters, PVO: https://pvoutput.org/list.jsp?id=15321&sid=19520


Acties:
  • 0 Henk 'm!

  • Ramon_1984
  • Registratie: November 2016
  • Nu online
TweakersOnly schreef op maandag 2 maart 2020 @ 18:19:
Even mezelf quoten met een update:


[...]


Installatiebedrijf van de vloerverwarming is vandaag langsgekomen. Vloerverwarming is ontlucht en de beste monteur heeft gratis flowmeters op de groepen geplaatst.

Alle radiators staan dicht. Warmtepomp heeft dan een debiet van 15,5 liter per minuut. Daarvan blijft bij de vloerverwarming verdeler nog geen 7 liter over. Met moeite 1 liter per minuut per groep.

Is dat erg veel verlies, meer dan 50%?

Monteur gaf als oplossing om vvw pomp weer terug te zetten, maar dan ben ik terug bij af.
Meet je 15 liter bij de warmtepomp, en 7 bij de verdeler?
Dat kan toch haast niet, dan staat er nog iets open.

Acties:
  • 0 Henk 'm!

  • TweakersOnly
  • Registratie: September 2000
  • Laatst online: 17:19
Dylantje2 schreef op maandag 2 maart 2020 @ 18:56:
[...]


Wat heb je voor een verdeler?
Foto graag
Verdeler nieuw

Originele wilo pomp en thermostaatkraan zijn er tussenuit gehaald, leidingen vanuit warmtepomp nu direct aangesloten op de groepen. Er gaat 29-30 graden vloer in, meeste groepen komt 24 graden terug. Een groep komt maar 20 graden terug

Acties:
  • 0 Henk 'm!

  • TweakersOnly
  • Registratie: September 2000
  • Laatst online: 17:19
Ramon_1984 schreef op maandag 2 maart 2020 @ 19:00:
Meet je 15 liter bij de warmtepomp, en 7 bij de verdeler?
Dat kan toch haast niet, dan staat er nog iets open.
parameter op warmtepomp heeft debiet 15,5 liter per minuut. Alle radiatoren staan dicht en op de 7 vloerverwarming groepen haal ik met moeite 1 liter per minuut per groep

Acties:
  • +1 Henk 'm!
TweakersOnly schreef op maandag 2 maart 2020 @ 19:00:
[...]

[Afbeelding: Verdeler nieuw]

Originele wilo pomp en thermostaatkraan zijn er tussenuit gehaald, leidingen vanuit warmtepomp nu direct aangesloten op de groepen. Er gaat 29-30 graden vloer in, meeste groepen komt 24 graden terug. Een groep komt maar 20 graden terug
Als quick-win zou ik eerst eens beginnen om die vier lelijke haakse bochten voor de verdeler te verwijderen. Die zorgen voor veel onnodige weerstand.
Maar eigenlijk moeten je leidingdiameters omhoog...

WP: ME PUHZ-SW75YAA + ERSD-VM2D + EV-WP-TWS-1W 300; AC: ME MXZ-2F42VF + 2x MSZ-LN25VGV; PV: 14.08 kWp O/W + SMA STP 8.0; Vent: Zehnder Q600 ERV + Ubbink AirExcellent.


Acties:
  • 0 Henk 'm!

  • Ramon_1984
  • Registratie: November 2016
  • Nu online
TweakersOnly schreef op maandag 2 maart 2020 @ 19:02:
[...]
parameter op warmtepomp heeft debiet 15,5 liter per minuut. Alle radiatoren staan dicht en op de 7 vloerverwarming groepen haal ik met moeite 1 liter per minuut per groep
Heb je ergens een bypass open staan ?
@Rol-Co toch vreemd ?

Acties:
  • 0 Henk 'm!

  • TweakersOnly
  • Registratie: September 2000
  • Laatst online: 17:19
Rol-Co schreef op maandag 2 maart 2020 @ 18:56:
[...]

Ok, dat is ook niet heel veel, je zou namelijk per 2 groepen kunnen schakelen voor x minuten als een looplicht.
5 min 2 open, na 5 min 2 andere open en eerste 2 dicht enz enz, dan krijgt alles warmte met redelijke flow.
Maar beter is de leiding groter of bochten anders maken, pomp in de wp verzwaren, of hulp pomp bij de vloer in een enkele (aanvoer) leiding die mee helpt.
Kun je wat uitleg geven hoe ik zo’n loop kan maken over vloerverwarming groepen? En alsnog een pomp plaatsen in de aanvoerleiding naar de warmtepomp?

Acties:
  • 0 Henk 'm!

  • Dylantje2
  • Registratie: April 2007
  • Laatst online: 27-10 17:47

Dylantje2

sorry Bricklayere here :-)

TweakersOnly schreef op maandag 2 maart 2020 @ 19:00:
[...]

[Afbeelding: Verdeler nieuw]

Originele wilo pomp en thermostaatkraan zijn er tussenuit gehaald, leidingen vanuit warmtepomp nu direct aangesloten op de groepen. Er gaat 29-30 graden vloer in, meeste groepen komt 24 graden terug. Een groep komt maar 20 graden terug
Ligt eea eens to aub...
Ik zie bruine
Wat zie je aan temp?
En hoe weet je de flow?
Ik zie een pijpje?

zonneboiler, pelletkachel, 36 panels, Atlantic Wpb, pana 5 Kw H, Heishamon, Domoticz, Grafana, Solarmeters, PVO: https://pvoutput.org/list.jsp?id=15321&sid=19520


Acties:
  • 0 Henk 'm!

  • hrt
  • Registratie: Oktober 2010
  • Laatst online: 06-08 16:33

hrt

TweakersOnly schreef op maandag 2 maart 2020 @ 19:00:
[...]

[Afbeelding: Verdeler nieuw]

Originele wilo pomp en thermostaatkraan zijn er tussenuit gehaald, leidingen vanuit warmtepomp nu direct aangesloten op de groepen. Er gaat 29-30 graden vloer in, meeste groepen komt 24 graden terug. Een groep komt maar 20 graden terug
Weet je zeker dat er geen lucht in dat laatste stukje leiding, slang wat naar boven gaat en dan weer naar beneden gaat met die knieën? Anders komt er wel warm binnen maar koud retour uit de slang, dat duit op lucht namelijk. Beetje hobby bob aangesloten zo. Als je met leiding naar boven gaat mag je nooit meer naar beneden gaan, als er geen ontluchting zit.
Er kan namelijk wel iets warm water onder de luchtbel gaan, maar lang niet genoeg....
Maar misschien heb ik het mis.

24x170SF, oost (105 graden), 25 graden, Steca3600/ 5D, 17-40, 24-105, 70-200/ WH-MDC05F3E5, 50L E-boiler, Gasloos per27-01-2017


Acties:
  • 0 Henk 'm!

  • TweakersOnly
  • Registratie: September 2000
  • Laatst online: 17:19
Ramon_1984 schreef op maandag 2 maart 2020 @ 19:03:
[...]

Heb je ergens een bypass open staan ?
@Rol-Co toch vreemd ?
bypass op vvw verdeler staat dicht. Voor de rest zit er tussen warmtepomp en vvw verdeler geen andere bypass voor zover ik kan zien.

Acties:
  • 0 Henk 'm!

  • TweakersOnly
  • Registratie: September 2000
  • Laatst online: 17:19
Dylantje2 schreef op maandag 2 maart 2020 @ 19:07:
[...]


Ligt eea eens to aub...
Ik zie bruine
Wat zie je aan temp?
En hoe weet je de flow?
Ik zie een pijpje?
Monteur vloerverwarming heeft vandaag leidingen ontlucht en flowmeters op groepen geplaatst. Flowmeters staan niet op foto, geven 1 l/minuut. Met ir thermometer meet ik temperatuur van leidingen. Aanvoer 30 graden, retour 24 graden / 20 graden.
Debiet van warmtepomp is 15,5 liter/minuut

Acties:
  • 0 Henk 'm!

  • Ramon_1984
  • Registratie: November 2016
  • Nu online
TweakersOnly schreef op maandag 2 maart 2020 @ 19:12:
[...]

Monteur vloerverwarming heeft vandaag leidingen ontlucht en flowmeters op groepen geplaatst. Flowmeters staan niet op foto, geven 1 l/minuut. Met ir thermometer meet ik temperatuur van leidingen. Aanvoer 30 graden, retour 24 graden / 20 graden.
Debiet van warmtepomp is 15,5 liter/minuut
Loopt het door je CV ketel heen ofzo ?

Acties:
  • 0 Henk 'm!

Verwijderd

@TweakersOnly Waar blijft die 8,5l/m volgens 15,5 en minder dan 7l/m ????

Acties:
  • 0 Henk 'm!

  • MikeyMan
  • Registratie: Februari 2003
  • Nu online

MikeyMan

Vidi, Vici, Veni

@hrt wordt die eventuele lucht er niet doorheen geduwd door het water?

Acties:
  • +1 Henk 'm!
Dat kan inderdaad niet zonder bypass, flow kan niet verdampen ofzo.

PVOUPUT - 13.400WP - Twente


Acties:
  • 0 Henk 'm!

  • Stoofie
  • Registratie: Juni 2010
  • Laatst online: 26-10 07:59
Wat @hrt zegt, eerst zorgen dat je de lucht uit die torens op je verdeler kunt halen.
Dikke kans dat je flow dan een stuk beter wordt...

Edit: @MikeyMan: nee, dat ga je niet redden...

[ Voor 15% gewijzigd door Stoofie op 02-03-2020 19:18 ]

@Liander:Ja, ik snap dat jullie een probleem hebben, en nee, dat geeft jullie niet het recht ons op een ongeoorloofde manier geld af proberen te troggelen... Dank voor het crediteren van de onterechte factuur, nu de rest van Nederland nog...


Acties:
  • 0 Henk 'm!

  • Dylantje2
  • Registratie: April 2007
  • Laatst online: 27-10 17:47

Dylantje2

sorry Bricklayere here :-)

TweakersOnly schreef op maandag 2 maart 2020 @ 19:12:
[...]

Monteur vloerverwarming heeft vandaag leidingen ontlucht en flowmeters op groepen geplaatst. Flowmeters staan niet op foto, geven 1 l/minuut. Met ir thermometer meet ik temperatuur van leidingen. Aanvoer 30 graden, retour 24 graden / 20 graden.
Debiet van warmtepomp is 15,5 liter/minuut
Ontluchten moet je zowieso regelmatig blijven [ als je water hebt ] is mijn ervaring
Die flowmeters zeggen mij niets. Maar waar zitten die dan?
Wat zijn die knoppen dan op je verdeler?
Weet je zeker dat Alle groepen Ta en Tr goed zitten [ dus geen tr aan tr ]
retour 20-24 is niet goed in mijn ogen
Dat pijpje zit HEEEEL zeker dicht?
Heb je nergens iets anders dan je vvw?

Heb je debiet gemeten [ in de unit? ] of heb je naar je hex code gekeken/?


Dan die IR mter in de priullenbak
En een aantal china sensoren of 433 met losse sensoren erop hangen

zonneboiler, pelletkachel, 36 panels, Atlantic Wpb, pana 5 Kw H, Heishamon, Domoticz, Grafana, Solarmeters, PVO: https://pvoutput.org/list.jsp?id=15321&sid=19520


Acties:
  • 0 Henk 'm!

  • Ramon_1984
  • Registratie: November 2016
  • Nu online
@TweakersOnly kom maar op met de foto's van de aansluiting van de ketel en warmtepomp.
Hier zit iets niet helemaal goed

Acties:
  • +1 Henk 'm!

  • TweakersOnly
  • Registratie: September 2000
  • Laatst online: 17:19
Ik ben nu werken, maak vanavond even foto’s van alles

Acties:
  • 0 Henk 'm!

  • Ramon_1984
  • Registratie: November 2016
  • Nu online
TweakersOnly schreef op maandag 2 maart 2020 @ 19:32:
Ik ben nu werken, maak vanavond even foto’s van alles
Je hebt een hybride daikin toch ?

Acties:
  • 0 Henk 'm!

  • MikeyMan
  • Registratie: Februari 2003
  • Nu online

MikeyMan

Vidi, Vici, Veni

@Stoofie ik probeer de mechanica daarachter te begrijpen... Hoe kan een vrij massieve massa water onder druk die lucht niet door duwen. :?

Acties:
  • 0 Henk 'm!

  • Rol-Co
  • Registratie: Maart 2004
  • Laatst online: 24-10 07:28

Rol-Co

3,8kWpZ 4,98kWpO-Z-W 2,86kWpN

Ramon_1984 schreef op maandag 2 maart 2020 @ 19:03:
[...]

Heb je ergens een bypass open staan ?
@Rol-Co toch vreemd ?
Ja vreemd, je kan geen 15 bij de wp hebben en 7 op de verdeler, dan staat die bypass open of er zit nog iets anders korter op de wp die de flow weg trekt.

@TweakersOnly
Ja dat heeft nog wel wat voeten in aarde om een looplicht te maken met kleppen, maar het is niet onmogelijk hoor, een 7 kanaals looplicht met een relais board en je bent al een heel eind, de vraag is alleen of je met 2 groepen open wel 3 liter haalt?

Noord-Oost-Zuid-West 11640Wp Totaal Live, Netduino advanced pv logging


Acties:
  • 0 Henk 'm!

  • TweakersOnly
  • Registratie: September 2000
  • Laatst online: 17:19
Ramon_1984 schreef op maandag 2 maart 2020 @ 19:34:
[...]

Je hebt een hybride daikin toch ?
Nee, remeha Mercuria warmtepomp, hybride 6KW.

Acties:
  • +1 Henk 'm!

  • Naalroc
  • Registratie: Maart 2009
  • Laatst online: 26-10 22:55
Gaat dan het water wat niet door de vloer gaat, gewoon de makkelijkste weg, nl. door de CV?
Kan die niet even geheel afgesloten worden met een kogelkraan of zo?

14kW ZubadanPUHZ-SHW140YHA+ERSC-VM2C, 200L boiler , 200L buffer, sinds 8/2018, gasloos


Acties:
  • 0 Henk 'm!

  • hrt
  • Registratie: Oktober 2010
  • Laatst online: 06-08 16:33

hrt

MikeyMan schreef op maandag 2 maart 2020 @ 19:17:
@hrt wordt die eventuele lucht er niet doorheen geduwd door het water?
Jawel, alleen niet veel, dus hij word wel warm, omdat er iets instroomt, maar veeeel te weinig. Als het de slang uit komt is hij dus helemaal "koud".

24x170SF, oost (105 graden), 25 graden, Steca3600/ 5D, 17-40, 24-105, 70-200/ WH-MDC05F3E5, 50L E-boiler, Gasloos per27-01-2017


Acties:
  • +2 Henk 'm!

  • Stoofie
  • Registratie: Juni 2010
  • Laatst online: 26-10 07:59
MikeyMan schreef op maandag 2 maart 2020 @ 19:39:
@Stoofie ik probeer de mechanica daarachter te begrijpen... Hoe kan een vrij massieve massa water onder druk die lucht niet door duwen. :?
De lucht door een leiding duwen wil wel, alleen op het moment dat de lucht naar beneden moet lukt dat niet meer, daar is de pomp niet sterk genoeg voor. Dus op het moment dat er lucht in zit heb je óf geen flow, als er een hele grote luchtbel zit, óf maar heel weinig flow, omdat er alleen een klein beetje water onder de bel doorstroomt...

@Liander:Ja, ik snap dat jullie een probleem hebben, en nee, dat geeft jullie niet het recht ons op een ongeoorloofde manier geld af proberen te troggelen... Dank voor het crediteren van de onterechte factuur, nu de rest van Nederland nog...


Acties:
  • +1 Henk 'm!

  • hrt
  • Registratie: Oktober 2010
  • Laatst online: 06-08 16:33

hrt

MikeyMan schreef op maandag 2 maart 2020 @ 19:39:
@Stoofie ik probeer de mechanica daarachter te begrijpen... Hoe kan een vrij massieve massa water onder druk die lucht niet door duwen. :?
Jaren geleden op een beurs opstelling gezien, waar je zag dat de lucht zich op dat (hoogste) punt verzamelde en daarbij een zeer geringe flow van kreeg.
Was ter lering van hoe belangrijk een microbellen ontluchter was geloof ik.
Maar tevens de lucht NIET op die plaats uit de automatische ontluchter in kwam.
Leerzaam... :)

24x170SF, oost (105 graden), 25 graden, Steca3600/ 5D, 17-40, 24-105, 70-200/ WH-MDC05F3E5, 50L E-boiler, Gasloos per27-01-2017


Acties:
  • 0 Henk 'm!
Grolsch schreef op maandag 2 maart 2020 @ 19:17:
Dat kan inderdaad niet zonder bypass, flow kan niet verdampen ofzo.
Volgens mij is die 15.5 lpm de pompstand.
Die waarde zal overeenkomen met het verpompte volume zonder leidingweerstand. Omdat die weerstand er wel is, wordt de werkelijke flow dus een stuk minder.

WP: ME PUHZ-SW75YAA + ERSD-VM2D + EV-WP-TWS-1W 300; AC: ME MXZ-2F42VF + 2x MSZ-LN25VGV; PV: 14.08 kWp O/W + SMA STP 8.0; Vent: Zehnder Q600 ERV + Ubbink AirExcellent.


Acties:
  • 0 Henk 'm!

  • Rol-Co
  • Registratie: Maart 2004
  • Laatst online: 24-10 07:28

Rol-Co

3,8kWpZ 4,98kWpO-Z-W 2,86kWpN

TweakersOnly schreef op maandag 2 maart 2020 @ 19:00:
[...]

[Afbeelding: Verdeler nieuw]

Originele wilo pomp en thermostaatkraan zijn er tussenuit gehaald, leidingen vanuit warmtepomp nu direct aangesloten op de groepen. Er gaat 29-30 graden vloer in, meeste groepen komt 24 graden terug. Een groep komt maar 20 graden terug
Zo jammer van die installateur dat ie dat zo monteert, er lijken ontluchters te zitten (pijlen) maar dat is niet het hoogste punt dus waarom dan niet op die standpijpen, er bestaan knietjes met een ontluchter.
https://witway.nl/messing...hter-2-x-knel-22-mm-prod/


Ook had hij de leiding zo kunnen maken toch? Of had ie geen rechte aansluiting bij hem? Mijn ervaring is dat die fitters maar gewoon bouwen met wat ze hebben i.t.t bouwen met wat er tekoop is. (Mijn voorkeur)

Afbeeldingslocatie: https://www.mupload.nl/img/if7wurc.jpeg

Noord-Oost-Zuid-West 11640Wp Totaal Live, Netduino advanced pv logging


Acties:
  • 0 Henk 'm!

  • space-one
  • Registratie: Mei 2018
  • Laatst online: 03-07-2024
TweakersOnly schreef op maandag 2 maart 2020 @ 19:12:
[...]

Debiet van warmtepomp is 15,5 liter/minuut
Is die 15,5 liter een ingestelde waarde van de Mercuria of in de praktijk gemeten? Door de 16 mm aanvoer kan daar wel eens verschil in zitten.

Acties:
  • 0 Henk 'm!

  • TweakersOnly
  • Registratie: September 2000
  • Laatst online: 17:19
space-one schreef op maandag 2 maart 2020 @ 20:12:
[...]


Is die 15,5 liter een ingestelde waarde van de Mercuria of in de praktijk gemeten? Door de 16 mm aanvoer kan daar wel eens verschil in zitten.
Ik heb pompsnelheid van warmtepomp omhooggezet van 30% naar 80%.

Met alle radiatoren dicht is debiet 15,5 liter /minuut, onafhankelijk pompsnelheid. Zet ik radiator badkamer erbij open, dan stijgt debiet van 17 liter naar 20,5 liter /minuut. Debiet lees ik uit via parameter warmtepomp.

Acties:
  • 0 Henk 'm!

  • koevlaas2
  • Registratie: Januari 2015
  • Laatst online: 26-10 10:01
TweakersOnly schreef op maandag 2 maart 2020 @ 19:32:
Ik ben nu werken, maak vanavond even foto’s van alles
Ik denk dat het beste is als je de leidingen vergroot, kan je niet de kruipruimte in (recht naar beneden) en dan weer omhoog aan de andere kant ?
Ik had ooit eens een Panasonic op 16mm zitten (door omstandigheden) gaf mij mooi de kans te testen, het debiet met de pana pomp volgas was 13 L p/m. In een cv circuit haal je waarschijnlijk net de helft hiervan zoals je vloer nu aangesloten zit dus al je groepen krijgen bij elkaar 6.5 L p/m hetgeen jij ook afleest.

13,1 kWp, Ecodan R32 7,5 , WTW ventilatie, Daikin FTXM35M(R) (5x), Doorstroomverwarmer, Douche WTW, Emco Novette Twin met LFP accu 51.2V 40Ah, Opel Vivaro DC L3H1 75kW (12-2022).


Acties:
  • 0 Henk 'm!

  • space-one
  • Registratie: Mei 2018
  • Laatst online: 03-07-2024
hrt schreef op maandag 2 maart 2020 @ 19:53:
[...]

Jaren geleden op een beurs opstelling gezien, waar je zag dat de lucht zich op dat (hoogste) punt verzamelde en daarbij een zeer geringe flow van kreeg.
Was ter lering van hoe belangrijk een microbellen ontluchter was geloof ik.
Maar tevens de lucht NIET op die plaats uit de automatische ontluchter in kwam.
Leerzaam... :)
Een aantal jaren geleden zijn in onze cv installatie heimeier eclips kranen geplaatst naast problemen van geluid (pomp kon alleen 100%) ook opeens veel problemen om de lucht uit de installatie te krijgen. Ik heb toen contact gehad met de technische afdeling imi-hydronic (omdat de installateur het niet wilde oplossen). Om de microbellen en lucht uit de installatie heb je een goede ontluchter nodig. Ze geven ook geen garantie dat er geen geluid optreedt bij de eclips kranen als er geen goede ontluchter is geplaatst.

Wij hebben zins het vorig najaar een goede ontluchter in de installatie maar het werkt inderdaad beter dan de standaard ontluchter.

[ Voor 6% gewijzigd door space-one op 02-03-2020 20:36 ]


Acties:
  • 0 Henk 'm!

  • Dylantje2
  • Registratie: April 2007
  • Laatst online: 27-10 17:47

Dylantje2

sorry Bricklayere here :-)

TweakersOnly schreef op maandag 2 maart 2020 @ 20:30:
[...]

Ik heb pompsnelheid van warmtepomp omhooggezet van 30% naar 80%.

Met alle radiatoren dicht is debiet 15,5 liter /minuut, onafhankelijk pompsnelheid. Zet ik radiator badkamer erbij open, dan stijgt debiet van 17 liter naar 20,5 liter /minuut. Debiet lees ik uit via parameter warmtepomp.
Dan heb je meer ellende vrees ik.
Als 1 radiator dat veroorzaakt..


Maar ik snap het niet vrees ik.

Je zegt in direct eigenlijk dat je vvw systeem niet goed loopt?

zonneboiler, pelletkachel, 36 panels, Atlantic Wpb, pana 5 Kw H, Heishamon, Domoticz, Grafana, Solarmeters, PVO: https://pvoutput.org/list.jsp?id=15321&sid=19520


Acties:
  • 0 Henk 'm!

  • TweakersOnly
  • Registratie: September 2000
  • Laatst online: 17:19
koevlaas2 schreef op maandag 2 maart 2020 @ 20:31:
[...]


Ik denk dat het beste is als je de leidingen vergroot, kan je niet de kruipruimte in (recht naar beneden) en dan weer omhoog aan de andere kant ?
Ik had ooit eens een Panasonic op 16mm zitten (door omstandigheden) gaf mij mooi de kans te testen, het debiet met de pana pomp volgas was 13 L p/m. In een cv circuit haal je waarschijnlijk net de helft hiervan zoals je vloer nu aangesloten zit dus al je groepen krijgen bij elkaar 6.5 L p/m hetgeen jij ook afleest.
Vloerverwarming verdeler staat in garage, naast de aanbouw. Zowel in aanbouw als garage heb ik geen kruipruimte. Vandaar dat leidingen in de cementdekvloer liggen. Verzwaren zonder breekwerk gaat niet lukken

Acties:
  • 0 Henk 'm!

  • koevlaas2
  • Registratie: Januari 2015
  • Laatst online: 26-10 10:01
Binnenkort heb ik 4 van slangen voorziene heipalen, nu ben ik aan het uitzoeken hoe ik in de zomer mijn koude water zo moet bijmixen (liefst automatisch ) dat het cv water in mijn systeem niet < 17c gaat worden.
Een eerste draai aan google kan ik zo 123 niet een thermostatisch mengventiel voor koeling vinden, bestaan die überhaupt wel ?

@jerh
@Oxellaar

13,1 kWp, Ecodan R32 7,5 , WTW ventilatie, Daikin FTXM35M(R) (5x), Doorstroomverwarmer, Douche WTW, Emco Novette Twin met LFP accu 51.2V 40Ah, Opel Vivaro DC L3H1 75kW (12-2022).


Acties:
  • 0 Henk 'm!

  • Dylantje2
  • Registratie: April 2007
  • Laatst online: 27-10 17:47

Dylantje2

sorry Bricklayere here :-)

koevlaas2 schreef op maandag 2 maart 2020 @ 20:50:
Binnenkort heb ik 4 van slangen voorziene heipalen, nu ben ik aan het uitzoeken hoe ik in de zomer mijn koude water zo moet bijmixen (liefst automatisch ) dat het cv water in mijn systeem niet < 17c gaat worden.
Een eerste draai aan google kan ik zo 123 niet een thermostatisch mengventiel voor koeling vinden, bestaan die überhaupt wel ?

@jerh
@Oxellaar
Spannend
Heipalen met kernactivering? _/-\o_ _/-\o_
Nieuw huis dan?

Ben wel benieuwd, waarom je die ipv van je wp wilt gaan gebruiken.


en waarom niet een gewone kraan die je bedient met domotica?

zonneboiler, pelletkachel, 36 panels, Atlantic Wpb, pana 5 Kw H, Heishamon, Domoticz, Grafana, Solarmeters, PVO: https://pvoutput.org/list.jsp?id=15321&sid=19520


Acties:
  • 0 Henk 'm!

  • Naalroc
  • Registratie: Maart 2009
  • Laatst online: 26-10 22:55
Dylantje2 schreef op maandag 2 maart 2020 @ 20:57:


en waarom niet een gewone kraan die je bedient met domotica?
Ik denk dat koevlaas2 gewoon iets wil dat werkt en blijft werken, O-)

@koevlaas2 Is dit niet typisch een job voor een open verdeler, waarbij je warm en koud water mengt, en de temp. van het water in de vloer op een vaste temperatuur houdt?

Alleen weet ik niet of die thermostaat koppen zo laag kunnen regelen.

[ Voor 32% gewijzigd door Naalroc op 02-03-2020 21:11 ]

14kW ZubadanPUHZ-SHW140YHA+ERSC-VM2C, 200L boiler , 200L buffer, sinds 8/2018, gasloos


Acties:
  • 0 Henk 'm!

  • TweakersOnly
  • Registratie: September 2000
  • Laatst online: 17:19
Dylantje2 schreef op maandag 2 maart 2020 @ 20:35:
[...]


Dan heb je meer ellende vrees ik.
Als 1 radiator dat veroorzaakt..


Maar ik snap het niet vrees ik.

Je zegt in direct eigenlijk dat je vvw systeem niet goed loopt?
Vloerverwarming werkt niet goed, omdat er blijkbaar te weinig aanvoer was. Dat is ook waarschijnlijk de oorzaak dat warmtepomp een stuk onzuiniger dan verwacht is.

Acties:
  • +1 Henk 'm!

  • koevlaas2
  • Registratie: Januari 2015
  • Laatst online: 26-10 10:01
Dylantje2 schreef op maandag 2 maart 2020 @ 20:57:
[...]


Spannend
Heipalen met kernactivering? _/-\o_ _/-\o_
Nieuw huis dan?

Ben wel benieuwd, waarom je die ipv van je wp wilt gaan gebruiken.


en waarom niet een gewone kraan die je bedient met domotica?
Nieuwe schuur tbv teveel spullen >:) , kan ik hopelijk een beetje passief koelen.
Een soort thermostatisch ventiel ja daar ben ik naar opzoek, maar voor koeling is dit niet zo doorsnee volgens mij.

13,1 kWp, Ecodan R32 7,5 , WTW ventilatie, Daikin FTXM35M(R) (5x), Doorstroomverwarmer, Douche WTW, Emco Novette Twin met LFP accu 51.2V 40Ah, Opel Vivaro DC L3H1 75kW (12-2022).


Acties:
  • +1 Henk 'm!

  • koevlaas2
  • Registratie: Januari 2015
  • Laatst online: 26-10 10:01
Naalroc schreef op maandag 2 maart 2020 @ 20:59:
[...]

Ik denk dat koevlaas2 gewoon iets wil dat werkt en blijft werken, O-)

@koevlaas2 Is dit niet typisch een job voor een open verdeler, waarbij je warm en koud water mengt, en de temp. van het water in de vloer op een vaste temperatuur houdt?

Alleen weet ik niet of die thermostaat koppen zo laag kunnen regelen.
Koevlaas2 wil het liefst iets simpels en liefst bovengronds zonder dat er 230v aan te pas komt.

13,1 kWp, Ecodan R32 7,5 , WTW ventilatie, Daikin FTXM35M(R) (5x), Doorstroomverwarmer, Douche WTW, Emco Novette Twin met LFP accu 51.2V 40Ah, Opel Vivaro DC L3H1 75kW (12-2022).


Acties:
  • 0 Henk 'm!

  • Naalroc
  • Registratie: Maart 2009
  • Laatst online: 26-10 22:55
En een RTL dan?

En zónder 230 V?
Wil je dan niet pompen of zo, lijkt me wel een vereiste .

[ Voor 72% gewijzigd door Naalroc op 02-03-2020 21:30 ]

14kW ZubadanPUHZ-SHW140YHA+ERSC-VM2C, 200L boiler , 200L buffer, sinds 8/2018, gasloos


Acties:
  • 0 Henk 'm!

  • koevlaas2
  • Registratie: Januari 2015
  • Laatst online: 26-10 10:01
Naalroc schreef op maandag 2 maart 2020 @ 21:27:
En een RTL dan?

En zónder 230 V?
Wil je dan niet pompen of zo, lijkt me wel een vereiste .
RTL ventielen die ik vind zijn allemaal voor verwarmen.
Pompen doet de warmtepomp (zonder compressor).

13,1 kWp, Ecodan R32 7,5 , WTW ventilatie, Daikin FTXM35M(R) (5x), Doorstroomverwarmer, Douche WTW, Emco Novette Twin met LFP accu 51.2V 40Ah, Opel Vivaro DC L3H1 75kW (12-2022).


Acties:
  • 0 Henk 'm!

  • Dylantje2
  • Registratie: April 2007
  • Laatst online: 27-10 17:47

Dylantje2

sorry Bricklayere here :-)

ff test:
Is mijn systeem weer te zien via deze link?
https://snapshot.raintank...4EuuzStBtvnwqRljl9OnH632J

zonneboiler, pelletkachel, 36 panels, Atlantic Wpb, pana 5 Kw H, Heishamon, Domoticz, Grafana, Solarmeters, PVO: https://pvoutput.org/list.jsp?id=15321&sid=19520


Acties:
  • +1 Henk 'm!

  • Murkmans
  • Registratie: April 2018
  • Laatst online: 14:44
koevlaas2 schreef op maandag 2 maart 2020 @ 20:50:
Binnenkort heb ik 4 van slangen voorziene heipalen, nu ben ik aan het uitzoeken hoe ik in de zomer mijn koude water zo moet bijmixen (liefst automatisch ) dat het cv water in mijn systeem niet < 17c gaat worden.
Een eerste draai aan google kan ik zo 123 niet een thermostatisch mengventiel voor koeling vinden, bestaan die überhaupt wel ?

@jerh
@Oxellaar
Esbe heeft er een tussen de 10 en 30 graden. Is dat wat? VTA572
https://www.esbe.eu/es/en...xing-valves/vta370-vta570

Acties:
  • +1 Henk 'm!

  • pleio65
  • Registratie: April 2015
  • Laatst online: 18:08
Panel plugin not found: mxswat-separator-panel

Gasloos. Mitsubishi scr-m60v-200d-set. Zonnepanelen 5760wp. Marstek Venus E V2. 5,12 KWh


Acties:
  • +1 Henk 'm!

  • Daannn1987
  • Registratie: December 2012
  • Laatst online: 18:13
Dat is een snapshot..
Maar de reguliere link doet het weer hoor :)

http://143.176.124.13:300...moticz?orgId=1&refresh=1m

Goed gedaan Piet!

21xDMEGC 440wp (9240) ||| Pana 9j


Acties:
  • +2 Henk 'm!

  • reneeke1970
  • Registratie: April 2015
  • Laatst online: 16:22
Ja maar met rood balkje. Je oorspronkelijke link doet het ook hoor. Om te duizelen zoveel gegevens

1 PVoutput . Dongen NB


Acties:
  • 0 Henk 'm!

  • Rimco
  • Registratie: Maart 2007
  • Laatst online: 18:38

Rimco

Lekker duurzaam, denk ik

Naalroc schreef op maandag 2 maart 2020 @ 18:14:
@hrt heeft helemaal gelijk, en het is eenvoudig als je weet hoe dit historisch gegroeid is:
Een 1"buis had oorspronkelijk een doorlaat van 1 ", dus 25,4 mm; de buitenmaat was zo'n 32 mm en daaraan is de maat van de schroefdraad toen gekoppeld.
Ik ben het ook met je eens dat @hrt gelijk had dat het origineel 25,4mm binnendiameter was, ik probeerde enkel te zeggen dat door de variërende wanddikte het tegenwoordig enkel een schatting van de binnendiameter kan geven (afhankelijk van de wanddikte). In mijn geval geeft de schuifmaat bijvoorbeeld 27,8mm binnendiameter aan voor een 1" buis.

PV: 49 kWp | ZB: 8kWp | WPs: 3x Pana 7J + Pana 5J + Nibe Savent + Vaillant aroSTOR + Samsung DVM S (L/L) | ESS: 90kWh/24kW + 30kWh/12kW


Acties:
  • 0 Henk 'm!

  • Dylantje2
  • Registratie: April 2007
  • Laatst online: 27-10 17:47

Dylantje2

sorry Bricklayere here :-)

balkje snap ik niet

Snapshot werkte eerst niet meer.
En tsja die link met alle data, veel over te doen hahahaha

Heb nu weer andere bezigheden, aangezien hij imo bijna perfect loopt
E ik nu na hele discussies hier weet hoe het een beetje werkt..
hahahah


Nu toilet op de schop aangezien WAF dat wilt.
VVw er in dus zal weer een keer sensoren aan moeten passen, maar ach 2 jongens die ook willen sleutelen enz :-)
Magicmirror, sensorkraan, domotica, verschillende verlichting, urinoir, enz enz enz

Werk za..
Kast om de wp, ook nog, mijn WPB boiler afwerken hahah


En helaas niet echt een strenge winter, dus weer geen "bewijs"...
Op naar ...xxx

zonneboiler, pelletkachel, 36 panels, Atlantic Wpb, pana 5 Kw H, Heishamon, Domoticz, Grafana, Solarmeters, PVO: https://pvoutput.org/list.jsp?id=15321&sid=19520


Acties:
  • +2 Henk 'm!
TweakersOnly schreef op maandag 2 maart 2020 @ 20:59:
[...]

Vloerverwarming werkt niet goed, omdat er blijkbaar te weinig aanvoer was. Dat is ook waarschijnlijk de oorzaak dat warmtepomp een stuk onzuiniger dan verwacht is.
Wat is je definitie van onzuinig :? Een slechte COP kan een aantal oorzaken hebben, 1 = te weinig koude middel, 2 = Hoge Ta temperatuur, 3 = lage buitentemperatuur.

Wat jij hier schrijft kan gewoon niet. Als je bij de WP een flow hebt van 15,5 liter/minuut, dan moet die flow ergens blijven, het kan niet zo zijn dat er er bij de v.v. verdeler nog maar 7 liter over is, en dat de rest is "verdampt". Flow die erin gaat, die gaat er ook weer uit, het is een gesloten systeem.

Is het niet zo dat je ergens een open verdeler hebt, omdat je hybride met een CV ketel werkt :? Dat zou wel de gebruikelijke manier van aansluiten zijn.

Zoals aangegeven kun je met een 16mm leiding voor 7 v.v. groepen geen wonderen verwachten. Dat is echt een flow killer.

Maak om voor jezelf (en voor ons) e.e.a. duidelijker te maken eens een hydraulisch schema, hoe zit de boel aangesloten en welke componenten zijn er toegepast.

PVOUPUT - 13.400WP - Twente


Acties:
  • 0 Henk 'm!

  • Ramon_1984
  • Registratie: November 2016
  • Nu online
Grolsch schreef op maandag 2 maart 2020 @ 22:14:
[...]


Wat is je definitie van onzuinig :? Een slechte COP kan een aantal oorzaken hebben, 1 = te weinig koude middel, 2 = Hoge Ta temperatuur, 3 = lage buitentemperatuur.

Wat jij hier schrijft kan gewoon niet. Als je bij de WP een flow hebt van 15,5 liter/minuut, dan moet die flow ergens blijven, het kan niet zo zijn dat er er bij de v.v. verdeler nog maar 7 liter over is, en dat de rest is "verdampt". Flow die erin gaat, die gaat er ook weer uit, het is een gesloten systeem.

Is het niet zo dat je ergens een open verdeler hebt, omdat je hybride met een CV ketel werkt :? Dat zou wel de gebruikelijke manier van aansluiten zijn.

Zoals aangegeven kun je met een 16mm leiding voor 7 v.v. groepen geen wonderen verwachten. Dat is echt een flow killer.

Maak om voor jezelf (en voor ons) e.e.a. duidelijker te maken eens een hydraulisch schema, hoe zit de boel aangesloten en welke componenten zijn er toegepast.
Scherp @Grolsch , de binnenuit heeft inderdaad een open verdeler. ( Staat schematisch in de installateurs handleiding )
De flow over de vloerverwarming is gewoon niet hoger.

Acties:
  • 0 Henk 'm!
En als er een open verdeler tussen zit dan zal hij een secundaire pomp moeten hebben. De pomp (het water) van zijn WP zal de weg van de minste weerstand kiezen, en dat is niet zijn VV verdeler......

[ Voor 3% gewijzigd door Grolsch op 02-03-2020 22:23 ]

PVOUPUT - 13.400WP - Twente


Acties:
  • 0 Henk 'm!

  • Ramon_1984
  • Registratie: November 2016
  • Nu online
Grolsch schreef op maandag 2 maart 2020 @ 22:22:
En als er een open verdeler tussen zit dan zal hij een secundaire pomp moeten hebben. De pomp (het water) van zijn WP zal de weg van de minste weerstand kiezen, een dat is niet zijn VV verdeler......
Die zit in de retour van de binnen unit.
https://www.google.com/ur...Mfq-X&cshid=1583177587603

Acties:
  • 0 Henk 'm!
Welk installatie schema gebruikt hij dan?

PVOUPUT - 13.400WP - Twente


Acties:
  • 0 Henk 'm!

  • koevlaas2
  • Registratie: Januari 2015
  • Laatst online: 26-10 10:01
Murkmans schreef op maandag 2 maart 2020 @ 22:03:
[...]


Esbe heeft er een tussen de 10 en 30 graden. Is dat wat? VTA572
https://www.esbe.eu/es/en...xing-valves/vta370-vta570
Dat zou iets kunnen zijn en nog binnen budget, net iets over de € 100,- in DN25, thanks.
To be investegated.

13,1 kWp, Ecodan R32 7,5 , WTW ventilatie, Daikin FTXM35M(R) (5x), Doorstroomverwarmer, Douche WTW, Emco Novette Twin met LFP accu 51.2V 40Ah, Opel Vivaro DC L3H1 75kW (12-2022).


Acties:
  • 0 Henk 'm!

  • Ramon_1984
  • Registratie: November 2016
  • Nu online
Grolsch schreef op maandag 2 maart 2020 @ 22:26:
Welk installatie schema gebruikt hij dan?
Schema 1

Acties:
  • +1 Henk 'm!

  • Naalroc
  • Registratie: Maart 2009
  • Laatst online: 26-10 22:55
Ramon_1984 schreef op maandag 2 maart 2020 @ 22:20:
[...]

Scherp @Grolsch , de binnenuit heeft inderdaad een open verdeler. ( Staat schematisch in de installateurs handleiding )
De flow over de vloerverwarming is gewoon niet hoger.
Tja, daar kom je nu mee aan zakken; eerder suggereerde ik al dat het water via de CV ketel liep, geen idee dat er NOG een verdeler aanwezig zou zijn.... :(
Dat is een gesloten verdeler; is het niet #3?

[ Voor 16% gewijzigd door Naalroc op 02-03-2020 22:37 ]

14kW ZubadanPUHZ-SHW140YHA+ERSC-VM2C, 200L boiler , 200L buffer, sinds 8/2018, gasloos


Acties:
  • 0 Henk 'm!

  • Ramon_1984
  • Registratie: November 2016
  • Nu online
Naalroc schreef op maandag 2 maart 2020 @ 22:36:
[...]

Tja, daar kom je nu mee aan zakken; eerder suggereerde ik al dat het water via de CV ketel liep, geen idee dat er NOG een verdeler aanwezig zou zijn.... :(
Ja sorry.....
Zag het nu ook pas in de installateurs handleiding ;(

Acties:
  • 0 Henk 'm!

  • TweakersOnly
  • Registratie: September 2000
  • Laatst online: 17:19
Ik heb net de pdf doorgelezen. Alles is aangesloten volgens schema 1 in de handleiding.

Open vloerverwarming verdeler is ontmanteld: thermostaat en vvw pomp zijn er tussenuit gehaald (op advies van enkele tweakers hier). Daardoor komt er wel 30 graden in de aanvoerleidingen.

Ik ga zoals voorgesteld de onnodige bochten nog uit vvw aanvoer- retourleiding halen. Dat zal inderdaad iets schelen, weet niet of t echt een groot verschil zal zijn.

Acties:
  • +1 Henk 'm!

  • koevlaas2
  • Registratie: Januari 2015
  • Laatst online: 26-10 10:01
TweakersOnly schreef op maandag 2 maart 2020 @ 22:58:
[...]
Ik ga zoals voorgesteld de onnodige bochten nog uit vvw aanvoer- retourleiding halen. Dat zal inderdaad iets schelen, weet niet of t echt een groot verschil zal zijn.
Ik schat het effect op nihil.

13,1 kWp, Ecodan R32 7,5 , WTW ventilatie, Daikin FTXM35M(R) (5x), Doorstroomverwarmer, Douche WTW, Emco Novette Twin met LFP accu 51.2V 40Ah, Opel Vivaro DC L3H1 75kW (12-2022).


Acties:
  • +1 Henk 'm!

  • Murkmans
  • Registratie: April 2018
  • Laatst online: 14:44
koevlaas2 schreef op maandag 2 maart 2020 @ 22:28:
[...]


Dat zou iets kunnen zijn en nog binnen budget, net iets over de € 100,- in DN25, thanks.
To be investegated.
http://www.pumpen-heizung...sermischer-serie-vta.html net er onder bij de buren.

Edit:
Je zou het ook bij OEG kunnen opvragen, die leveren ook esbe. Kan je waarschijnlijk gelijk meer spul bijbestellen.

[ Voor 14% gewijzigd door Murkmans op 02-03-2020 23:07 ]


Acties:
  • 0 Henk 'm!

  • Naalroc
  • Registratie: Maart 2009
  • Laatst online: 26-10 22:55
TweakersOnly schreef op maandag 2 maart 2020 @ 22:58:
[...]

Ik heb net de pdf doorgelezen. Alles is aangesloten volgens schema 1 in de handleiding.

Open vloerverwarming verdeler is ontmanteld: thermostaat en vvw pomp zijn er tussenuit gehaald (op advies van enkele tweakers hier). Daardoor komt er wel 30 graden in de aanvoerleidingen.

Ik ga zoals voorgesteld de onnodige bochten nog uit vvw aanvoer- retourleiding halen. Dat zal inderdaad iets schelen, weet niet of t echt een groot verschil zal zijn.
Maar WAAR blijft dat water dat wel door de pomp gaat en niet door de vloer? Waar circuleert dat door? Alle radiators staan dicht....

14kW ZubadanPUHZ-SHW140YHA+ERSC-VM2C, 200L boiler , 200L buffer, sinds 8/2018, gasloos


Acties:
  • 0 Henk 'm!

  • TweakersOnly
  • Registratie: September 2000
  • Laatst online: 17:19
Naalroc schreef op maandag 2 maart 2020 @ 23:06:
[...]

Maar WAAR blijft dat water dat wel door de pomp gaat en niet door de vloer? Waar circuleert dat door? Alle radiators staan dicht....
Vanuit zolder gaat een 22mm leiding naar kruipruimte. Vandaar uit een splitsing naar radiatoren in woonkamer en naar vvw verdeler. Daar komt dus maar 7 liter aan.

Hoe kan ik controleren wat het debiet in de leiding naar kruipruimte is? Als dat al weinig is...
Pagina: 1 ... 75 ... 126 Laatste

Dit topic is gesloten.