Het ik-wil-een-warmtepomp FAQ topic- '23 MG5, douchen met wtw en Auer Edel Eau, verwarming met Vaillant Arotherm Plus.
mightym schreef op vrijdag 17 februari 2017 @ 17:06:
[...]
Voor die driewegklep zijn goedkopere varianten te vinden op https://magneetventielsho...-3-weg-230vac-relais.html
(ik weet uit mijn hoofd niet of dit het juiste type is)
Dat wifi beest kan je hier goedkoper halen: http://www.shopclima.it/e...per-sistemi-ecodan-c.html
Is de wifi module voor een externe thermostaat dezelfde als voor mcloud?
(heb ik hem ook vandaan)
Wellicht hebben ze daar ook de sensoren en bespaar je nog wat op verzendkosten. (heb ik nog niet naar gezocht)
Ik heb iets gevonden:
http://www.shopclima.it/e...electric-pac-th011tk.html
[ Voor 4% gewijzigd door corsat op 17-02-2017 23:31 ]
Ecodan 7,5kW Nibe F130 ventilatie warmtepomp, 300l RVS SWW, 8400wp zonnepanelen, LL airco/verwarming, 2 MARSTEK VENUS E firmware v153 BMS 215 combination CT003 v117 app v1.6.47
Het is niet dat niet werkt, het geeft aan dat afgifte systeem er ook bij moet passenProton_ schreef op vrijdag 17 februari 2017 @ 20:01:
Laten we Freemann's avontuur niet zien als bewijs dat het niet kán werken.
Als nu de gemiddelde maand temperatuur een graadje of 5 lager zou liggen, zal de verhouding ook anders liggen.
Dan zit mijn R410a Pana mono ook niet zo vaak meer met momentane COP in regio van 5 tot 7 en is het verschil met 2,5-3 van de Sanden ook stuk kleiner
Eilandbedrijf met netondersteuning , all-electric || Deye 12KSG04LP3 met 580Ah-LFP 51,2V (Seplos 3x48100-10C +48200-10E) || hulp-Deye 12k SG04LP3 met 280Ah-LFP 51,2V || 19.4 kWp PV || Zonneplan EPEX-klant
Druk is niet het grootste probleem, de lage efficiëntie bij hogere temperaturen weldegelijk. Dat is een eigenschap van het koudemiddel en dus niet te veranderen.Proton_ schreef op vrijdag 17 februari 2017 @ 20:01:
De hoge druk bij R744 is het probleem niet, er zijn goed werkende commerciële brine/water warmtepompen. Laten we Freemann's avontuur niet zien als bewijs dat het niet kán werken.
Net als de giftigheid van R717, voor het beetje dat je nodig hebt voor een monobloc buiten vervliegt het rap en je hoeft niet bang te zijn dat een lek onopgemerkt blijft
Voor propaan geldt... dat komt nu inderdaad uit de bodem, maar voor het beetje dat we voor grootschalige uitrol van warmtepompen nodig hebben is dat gewoon duurzaam te noemen.
Als je de giftigheid van ammoniak zo bagatelliseert, dan snap ik je probleem met R410a of R32 niet echt.
Ik wil niet zeggen dat we bij deze koudemiddelen moeten blijven, maar de oplossing is niet simpel
En je zegt: propaan komt nu uit de bodem, waar komt het straks dan vandaan?
MG4 Luxury - Samsung A3050/AR7000 - Elga 3.0 - ME WSH-LN25I Diamond
Verwijderd
Klopt. Voor een lucht/water warmtepomp in Nederland is R744 geen prettig koudemiddel.Oxellaar schreef op vrijdag 17 februari 2017 @ 20:24:
[...]
Druk is niet het grootste probleem, de lage efficiëntie bij hogere temperaturen weldegelijk. Dat is een eigenschap van het koudemiddel en dus niet te veranderen.
Dat snap ik. Anders waren we nooit aan de problematische koudemiddelen begonnenAls je de giftigheid van ammoniak zo bagatelliseert, dan snap ik je probleem met R410a of R32 niet echt.
Ik wil niet zeggen dat we bij deze koudemiddelen moeten blijven, maar de oplossing is niet simpel
Als ik een pagina als deze lees:
Dan durf ik wel anderhalve kilo in mijn tuin te zetten.[...]
De omgeving loopt gevaar als het om een heel zwaar ongeluk gaat. Er moet dan een groot deel van de inhoud van de installatie vrijkomen. We hebben het in dat geval over ruwweg duizend kilogram of meer. Woont of werkt u pal naast een bedrijf met een ammoniakkoelinstallatie, dan loopt natuurlijk al gevaar als er minder ammoniak vrijkomt. U moet dan denken aan afstanden van zo’n twintig à dertig meter van het bedrijfsgebouw en enkele honderden kilogrammen vrijgekomen ammoniak.
Desnoods Fischer-Tropsch met biogasEn je zegt: propaan komt nu uit de bodem, waar komt het straks dan vandaan?
Verbranden is zonde, in een warmtepomp zit je er veel langer warm van
Het ik-wil-een-warmtepomp FAQ topic- '23 MG5, douchen met wtw en Auer Edel Eau, verwarming met Vaillant Arotherm Plus.
Er zijn meer mogelijkheden bronnen voor R290 of (bio)LPG, het is voor paar procent een bijprodukt van NExBTL procesProton_ schreef op vrijdag 17 februari 2017 @ 22:04:
[...]
Desnoods Fischer-Tropsch met biogas
Verbranden is zonde, in een warmtepomp zit je er veel langer warm van
Eilandbedrijf met netondersteuning , all-electric || Deye 12KSG04LP3 met 580Ah-LFP 51,2V (Seplos 3x48100-10C +48200-10E) || hulp-Deye 12k SG04LP3 met 280Ah-LFP 51,2V || 19.4 kWp PV || Zonneplan EPEX-klant
Ik had de tekst geplakt.Rol-Co schreef op vrijdag 17 februari 2017 @ 18:25:
[...]
1) omdat R32 only is en R410 is een mengsel van R32 en R125
2) zie je dat als voordeel?
3) zelfde als 1
4) R410a ligt ergens in de buurt van 1950 en tot 2030 is alles onder de 2500 goed, tegen die tijd zijn er al weer een hoop units vervangen.
5) klopt
6) ligt geen installateur wakker van vermoed ik
7) omdat R410 nagenoeg het zelfde is, alleen een gas toegevoegd om de ontvlambaarheid te onderdrukken.
Toch zou ik liever R744 warmtepompen zien, die kunnen ook warmer dus ideaal voor sww.
Een nadeel kan ik noemen: de compressor zal harder moeten werken.
BJ 2022, Nibe F2050-6 (vh AMS 10-12), SMO S40. PV 9000 Wp plat dak 10xNO, 10xZW, 5xZO. Tesla MY SR 2026. Peblar Recharge label
Verwijderd
Ik wil hier nog even op terug komen als dat mag. Ik probeer te analyseren waarom jouw COP zo fraai is, op zoek naar het geheim van de smid. Je geeft hierboven op dat je Ta 27@-5 is. Echter in het maandelijkse overzicht staat bij jouw gegevens dat T2=28. Welke v.d. 2 klopt en is dat de waarde die de Panasonic op de AB laat zien of is het de Multical waarde welke ongeveer 3C hoger was meen ik me te herinneren. Sowieso denk ik dat je relatieve afgifte-oppervlak t.o.v. je te compenseren warmteverlies behoorlijk groot moet zijn.jaari schreef op woensdag 8 februari 2017 @ 18:01:
[...]
Heel simpel: relatie tussen de Tb en Ta is de stooklijn; 22@10 en 27@-5.
Kamertemperatuur is konstant 20,5C
Verschil tussen Ta en Tr is 2-4 C.
Ik heb alleen een plaatje van de stooklijn, nooit de behoefte gevoeld om meer lijnen erin te zetten. Kruisen van die lijnen bij een Tb is volgens mij erg afhankelijk van specifieke parameters zoals verwarmingssysteem (ik heb vloerverwarming) en warmteverlies/isolatie van je huis.
Nu hebben beide opties hun voordelen. Draaien rond 20% moduleren zal vanwege de constante basislast een lagere COP geven dan op hogere percentages, dus je verbruik is dan hoger. Daar staat weer tegenover dat hij dan minder slijt vanwege aan- en uitschakelen.
Hetzelfde geldt trouwens voor het op temperatuur brengen van de SWW boiler. Ook dat doet hij zo snel mogelijk. Ik kan me daar in de winter iets bij voorstellen, want je wil dan de verwarming niet te lang onderbreken. Maar in de zomer heeft het alleen maar het nadeel dat hij op 100% een kwartier lang wat hoorbaar wordt voor mensen die lekker in hun tuin zitten. Bij 50% zou er niet echt iets te horen zijn. Ook hier de vraag, zijn er parameters waarmee je dit kan veranderen in een rustiger gedrag?
Huidig huis: All electric 2023 Weheat Blackbird 8kW warmtepomp + 2020 38 kWh Hyundai Ioniq Electric. Vorig huis: All electric energieneutraal: 2013 8.6 kWp PV + 2013 14 kW Fujitsu warmtepomp + 2020 38 kWh Hyundai Ioniq Electric.
Volgens mij niet.corsat schreef op vrijdag 17 februari 2017 @ 20:18:
Ik heb een wifi adapter voor mijn tHermostaat, kan ik die ook voor melcloud gebruiken?
[...]
32 kWp PV + 54kWh ESS+ 7.5 kW Mitsubishi Ecodan
Op het sww gedeelte na heb ik precies het zelfde, op 1) loopt hij netjes met laag vermogen en op de kamer sensor 2) wil hij voor 1 graad volle bak aan het werk wat helemaal niet nodig is.Jan Treur schreef op zaterdag 18 februari 2017 @ 07:09:
Ik heb vorige maand (van 3 tot 7 januari) met mijn Fujitsu wat uitgeprobeerd om te vergelijken het regelen via de stooklijn en buitentemperatuur: (1) zonder een kamerthermostaat, en (2) met een kamerthermostaat. Bij (1) was het mogelijk om lange, zeg eindeloze perioden van constant draaien te krijgen, vaak met moduleren op 16 tot 25%. Bij (2) lijkt dat niet te kunnen lukken op die manier. Het lijkt dat het aanwezig zijn van de kamerthermostaat de WP automatisch in een soort gehaaste modus plaatst, waarbij een overschrijding van de setpoint voor de kamertemperatuur automatisch tot een in mijn ogen wat overtrokken reactie leidt, alsof hij denkt, o jee, dat moet zo snel mogelijk opgelost worden! En dan gaat hij hem naar een halve graad hoger brengen. Daarbij gaan de moduleerpercentages een stuk hoger dan bij (1). Ik vraag me af of je deze reactie op de kamerthermostaat ook kunt verzachten via bepaalde parameters.
Nu hebben beide opties hun voordelen. Draaien rond 20% moduleren zal vanwege de constante basislast een lagere COP geven dan op hogere percentages, dus je verbruik is dan hoger. Daar staat weer tegenover dat hij dan minder slijt vanwege aan- en uitschakelen.
Hetzelfde geldt trouwens voor het op temperatuur brengen van de SWW boiler. Ook dat doet hij zo snel mogelijk. Ik kan me daar in de winter iets bij voorstellen, want je wil dan de verwarming niet te lang onderbreken. Maar in de zomer heeft het alleen maar het nadeel dat hij op 100% een kwartier lang wat hoorbaar wordt voor mensen die lekker in hun tuin zitten. Bij 50% zou er niet echt iets te horen zijn. Ook hier de vraag, zijn er parameters waarmee je dit kan veranderen in een rustiger gedrag?
Zoals ik al eerder eens riep zou het mooi zijn als je de toerentallen zelf in kon stellen met een maximum bijvoorbeeld.
Bij een lagere Ta word dat wel beter, dus houd die zo laag mogelijk, nadeel wat daar weer aan hangt is dat de Ta vermogen lager kan zijn dan het vermogen van de Wp waardoor hij aan uit gedrag vertoont, dan zal je met de flow omhoog moeten of meer afname creëren doormiddel van dbe op je radiatoren. Ik heb dit gedrag bijv op 27 graden Ta met +5 graden of hoger buiten.
Noord-Oost-Zuid-West 11640Wp Totaal Live, Netduino advanced pv logging
Dus WAR of een vaste aanvoertemp. Dat laatste bevalt mij het beste.
BJ 2022, Nibe F2050-6 (vh AMS 10-12), SMO S40. PV 9000 Wp plat dak 10xNO, 10xZW, 5xZO. Tesla MY SR 2026. Peblar Recharge label
Huidig huis: All electric 2023 Weheat Blackbird 8kW warmtepomp + 2020 38 kWh Hyundai Ioniq Electric. Vorig huis: All electric energieneutraal: 2013 8.6 kWp PV + 2013 14 kW Fujitsu warmtepomp + 2020 38 kWh Hyundai Ioniq Electric.
Elga vertoont het zelfde gedrag. De regeling is niet instelbaar op de Elga dus heb ik een externe methode toegepast. De kamerthermostaat sensor (Die kun je apart aanluiten op de Honeywell Touch) heb ik in een RC kastje geplaatst. Nu moduleert Elgaatje redelijk en volgt toch de ruimtetemperatuur acceptabel. (geisoleerd kastje met massa erin RC tijd ongeveer 2 uur : MC/kA)Jan Treur schreef op zaterdag 18 februari 2017 @ 07:09:
Ik heb vorige maand (van 3 tot 7 januari) met mijn Fujitsu wat uitgeprobeerd om te vergelijken het regelen via de stooklijn en buitentemperatuur: (1) zonder een kamerthermostaat, en (2) met een kamerthermostaat. Bij (1) was het mogelijk om lange, zeg eindeloze perioden van constant draaien te krijgen, vaak met moduleren op 16 tot 25%. Bij (2) lijkt dat niet te kunnen lukken op die manier. Het lijkt dat het aanwezig zijn van de kamerthermostaat de WP automatisch in een soort gehaaste modus plaatst, waarbij een overschrijding van de setpoint voor de kamertemperatuur automatisch tot een in mijn ogen wat overtrokken reactie leidt, alsof hij denkt, o jee, dat moet zo snel mogelijk opgelost worden! En dan gaat hij hem naar een halve graad hoger brengen. Daarbij gaan de moduleerpercentages een stuk hoger dan bij (1). Ik vraag me af of je deze reactie op de kamerthermostaat ook kunt verzachten via bepaalde parameters.
Je maakt dus het corrigerend orgaan(WP) rustiger ten koste van de nauwkeurigheid van de ruimte temperatuur.
Ik doe het zo dat de temp in huis in de middag aangenaam is. In de avond en nacht zakt de temp wat omdat de verliezen toenemen en ook de WP harder moet werken. Ik compenseer dat niet. Daarom vaste Ta, die op het bedienpaneel getoond wordt en die dus ook met de pijltjes aan te passen is.Jan Treur schreef op zaterdag 18 februari 2017 @ 07:58:
Hoe doe je dan nachtverlaging? Met de hand elke dag?
Het op temperatuur houden werkt verreweg het beste voor een WP. Want de retourtemp is ook hoog dus de WP kan het makkelijk(er) bijsloffen.
BJ 2022, Nibe F2050-6 (vh AMS 10-12), SMO S40. PV 9000 Wp plat dak 10xNO, 10xZW, 5xZO. Tesla MY SR 2026. Peblar Recharge label
[ Voor 11% gewijzigd door Jan Treur op 18-02-2017 08:17 ]
Huidig huis: All electric 2023 Weheat Blackbird 8kW warmtepomp + 2020 38 kWh Hyundai Ioniq Electric. Vorig huis: All electric energieneutraal: 2013 8.6 kWp PV + 2013 14 kW Fujitsu warmtepomp + 2020 38 kWh Hyundai Ioniq Electric.
Het hangt allemaal van je huis af, je gezin, wie wanneer thuis.Jan Treur schreef op zaterdag 18 februari 2017 @ 08:13:
Voor mij gelden er op de meeste dagen (de weekdagen dat ik niet thuis werk) lange perioden van nachtverlaging: van 21:00 uur in de avond tot 13:00 uur de volgende dag, dus dan hoef je van de 24 uur alleen maar de 8 uur tussen 13:00 uur en 21:00 uur te verwarmen. Op dagen dat ik naar werk ga, hoef ik geen goed verwarmd huis te hebben als ik opsta en in een half uur weg ben. Zo'n lange verlaging van een aantal graden zet best zoden aan de dijk. En het weer op temperatuur krijgen om 13:00 uur gaat ook prima via het ingestelde programma; dan begint hij ruim een uur daarvoor. Je hebt dan ook nog het voordeel van vrijwel de hoogste dagtemperatuur buiten. Voor mij is dit reden om toch via een kamerthermostaat te werken.
Voor mij is dit continue verwarmen gek genoeg de beste variant.
BJ 2022, Nibe F2050-6 (vh AMS 10-12), SMO S40. PV 9000 Wp plat dak 10xNO, 10xZW, 5xZO. Tesla MY SR 2026. Peblar Recharge label
Hallo Jan,Jan Treur schreef op zaterdag 18 februari 2017 @ 07:09:
Ik heb vorige maand (van 3 tot 7 januari) met mijn Fujitsu wat uitgeprobeerd om te vergelijken het regelen via de stooklijn en buitentemperatuur: (1) zonder een kamerthermostaat, en (2) met een kamerthermostaat. Bij (1) was het mogelijk om lange, zeg eindeloze perioden van constant draaien te krijgen, vaak met moduleren op 16 tot 25%. Bij (2) lijkt dat niet te kunnen lukken op die manier. Het lijkt dat het aanwezig zijn van de kamerthermostaat de WP automatisch in een soort gehaaste modus plaatst, waarbij een overschrijding van de setpoint voor de kamertemperatuur automatisch tot een in mijn ogen wat overtrokken reactie leidt, alsof hij denkt, o jee, dat moet zo snel mogelijk opgelost worden! En dan gaat hij hem naar een halve graad hoger brengen. Daarbij gaan de moduleerpercentages een stuk hoger dan bij (1). Ik vraag me af of je deze reactie op de kamerthermostaat ook kunt verzachten via bepaalde parameters.
Nu hebben beide opties hun voordelen. Draaien rond 20% moduleren zal vanwege de constante basislast een lagere COP geven dan op hogere percentages, dus je verbruik is dan hoger. Daar staat weer tegenover dat hij dan minder slijt vanwege aan- en uitschakelen.
Hetzelfde geldt trouwens voor het op temperatuur brengen van de SWW boiler. Ook dat doet hij zo snel mogelijk. Ik kan me daar in de winter iets bij voorstellen, want je wil dan de verwarming niet te lang onderbreken. Maar in de zomer heeft het alleen maar het nadeel dat hij op 100% een kwartier lang wat hoorbaar wordt voor mensen die lekker in hun tuin zitten. Bij 50% zou er niet echt iets te horen zijn. Ook hier de vraag, zijn er parameters waarmee je dit kan veranderen in een rustiger gedrag?
Ik zit hier een beetje met hetzelfde. Heb sinds Januari hier een Fujitsu Waterstage staan, en ben nog steeds bezig een goede stooklijn in te stellen. Ik gebruik aanvoertemperatuur op WAR en een kamerthermostaat.
Je kunt een instelling veranderen zodat je de gevoeligheid meer of minder kunt maken van de kamerthermostaat. Misschien is dit een optie voor het CV gedeelte. SWW gedeelte gaat bij mij via de Calenta, die vraag weet ik niet.
Heb hier een dikke NL handleiding met alle Parametrering weet niet of jij die ook hebt?
PVOutput = Fujitsu Waterstage WC05 + 5700 Wp
Huidig huis: All electric 2023 Weheat Blackbird 8kW warmtepomp + 2020 38 kWh Hyundai Ioniq Electric. Vorig huis: All electric energieneutraal: 2013 8.6 kWp PV + 2013 14 kW Fujitsu warmtepomp + 2020 38 kWh Hyundai Ioniq Electric.
Is nogal een verschil.
GWP van R32 is wat dat betreft vele malen beter. Ik vraag me af wanneer de L/W WP's op de markt komen met dit koudemiddel.
Overigens is er ook een synthetisch koudemiddel met een GWP van 4; R1234.
Terechte vraag, ik vroeg me al af of die nog zou komenVerwijderd schreef op vrijdag 17 februari 2017 @ 23:43:
[...]
Ik wil hier nog even op terug komen als dat mag. Ik probeer te analyseren waarom jouw COP zo fraai is, op zoek naar het geheim van de smid. Je geeft hierboven op dat je Ta 27@-5 is. Echter in het maandelijkse overzicht staat bij jouw gegevens dat T2=28. Welke v.d. 2 klopt en is dat de waarde die de Panasonic op de AB laat zien of is het de Multical waarde welke ongeveer 3C hoger was meen ik me te herinneren. Sowieso denk ik dat je relatieve afgifte-oppervlak t.o.v. je te compenseren warmteverlies behoorlijk groot moet zijn.
In het maandelijkse overzicht staat de temperatuur die ik op de multical aflees. Dat is de meest accurate. De waarden van de stooklijn zijn dus te laag. Maar met het instellen van de stooklijn kijk je naar het effect op de kamertemperatuur en niet naar de absolute getallen op de AB.
Qua warmteafgifte heb ik ongeveer 100m2 vloerverwarming met iets van 850 meter slang (18mm) over 10 groepen verdeeld. Warmte verlies is Ca 4kW bij 0 graden.
zonnepit ; L/W WP Pana MDC05F3E5
Voor verwarming kring 1 parameter 750 staat standaard op 50%.Jan Treur schreef op zaterdag 18 februari 2017 @ 09:26:
Ja, die heb ik ook. Om welke parameters gaat het in dit geval?
Wanneer geen waarde ingevoerd, gebeurt de regeling zuiver op basis van de waterwet.
Wanneer parameter ingesteld is op 100% dan alleen op basis van de ruimtetemperatuur.
Voor verwarming kring 2 parameter 1050
Ik heb hem hier zelf op 5% staan, daarop is hij ingesteld door de monteur. Hij maakt hier lange runs, zoals je kunt zien bij pvoutput.
[ Voor 12% gewijzigd door Rene A op 18-02-2017 10:58 ]
PVOutput = Fujitsu Waterstage WC05 + 5700 Wp
Huidig huis: All electric 2023 Weheat Blackbird 8kW warmtepomp + 2020 38 kWh Hyundai Ioniq Electric. Vorig huis: All electric energieneutraal: 2013 8.6 kWp PV + 2013 14 kW Fujitsu warmtepomp + 2020 38 kWh Hyundai Ioniq Electric.
Verwijderd
Het duurt soms even voor de kwartjes vallen, de 'frustratie' van het niet begrijpen houdt het in de achtergrond processen van het probleem echter wel aan de gang en uiteindelijk valt het kwartje.jaari schreef op zaterdag 18 februari 2017 @ 09:52:
[...]
Terechte vraag, ik vroeg me al af of die nog zou komen![]()
In het maandelijkse overzicht staat de temperatuur die ik op de multical aflees. Dat is de meest accurate. De waarden van de stooklijn zijn dus te laag. Maar met het instellen van de stooklijn kijk je naar het effect op de kamertemperatuur en niet naar de absolute getallen op de AB.
Qua warmteafgifte heb ik ongeveer 100m2 vloerverwarming met iets van 850 meter slang (18mm) over 10 groepen verdeeld. Warmte verlies is Ca 4kW bij 0 graden.
Ik denk het te begrijpen en zoals meestal achteraf blijkt is het allemaal heel logisch/simpel. Enigszins vergelijkbaar te compenseren warmteverlies, globaal dubbele oppervlakte, afgiftebehoefte per m2 ongeveer de helft en daarvoor een zodanige lagere Ta nodig, dat met de Carnot formule waaruit blijkt dat een 5C lagere Ta een COP verbetering van 10% tot gevolg heeft.
Althans dat is wat ik er uit destileer. Heb ik het globaal begrepen ?
Ja kan er niet meer van maken, dit is de letterlijke tekst wat in mijn boekje staat.Jan Treur schreef op zaterdag 18 februari 2017 @ 10:59:
Ik zie het, die Parameter 750 staat bij mij op 5%. De parameter heet Room influence, maar de uitleg is dat die het mogelijk maakt de invloed van de buitentemperatuur aan te geven, en als hij op 100% staat alleen de buitentemperatuur invloed heeft. Dat lijkt nogal tegenstrijdig met de naamgeving en met jouw uitleg.
Misschien nog wat spelen met parameter 720 en 721. Deze werd hier afgeleverd met waardes van 1,24 en 0,5 ondertussen staan ze hier op 0,36 en 4.
Elke halve graad die je verhoogt op de kamerthermostaat heeft tot gevolg dat de aanvoertemperatuur met 1 graad naar boven gaat.
PVOutput = Fujitsu Waterstage WC05 + 5700 Wp
Die stooklijn parameters 720 en 721 staan bij bij inmiddels op 1.18 en 1.5, was bij installeren 1.26 en nog wat. Het lastige daarvan is dat je ze op meerdere manieren naar tevredenheid kunt instellen tijdens een bepaalde periode, maar dan zie je niet hoe goed dat werkt voor een andere periode. Voor je het weet zit je ze elke maand bij te stellen.
Huidig huis: All electric 2023 Weheat Blackbird 8kW warmtepomp + 2020 38 kWh Hyundai Ioniq Electric. Vorig huis: All electric energieneutraal: 2013 8.6 kWp PV + 2013 14 kW Fujitsu warmtepomp + 2020 38 kWh Hyundai Ioniq Electric.
Verwijderd
Alle waardes noteren/in een tabel zetten, welke correct zijn en er 'de uiteindelijke' stooklijn doortrekken, dat is althans waar ik de afgelopen periode mee bezig ben en het lijkt te gaan lukken.Jan Treur schreef op zaterdag 18 februari 2017 @ 11:28:
Als de uitleg in mijn handleiding fout is, dan kan ik voor meer invloed van de buitentemperatuur bijvoorbeeld van 5% naar 3% gaan.
Die stooklijn parameters 720 en 721 staan bij bij inmiddels op 1.18 en 1.5, was bij installeren 1.26 en nog wat. Het lastige daarvan is dat je ze op meerdere manieren naar tevredenheid kunt instellen tijdens een bepaalde periode, maar dan zie je niet hoe goed dat werkt voor een andere periode. Voor je het weet zit je ze elke maand bij te stellen.
Bij 0 graden heb ik minimale aanvoer van 32 nodig.
Heb hier zelf vloerverwarming beneden met radiatoren en boven stook ik niet / nauwelijks.
Ik weet niet wat je hebt in huis alleen radiatoren of vloerverwarming of combi.
Maar voor vloerverwarming vind ik persoonlijk de instellingen bij jou best hoog staan, bij 0 graden buiten stook je dan al met +/- 44 graden. Dan krijg je natuurlijk ook een sprint situatie als deze instellingen te hoog staan.
PVOutput = Fujitsu Waterstage WC05 + 5700 Wp
Vergeet ook niet de ligging aan de kust. Scheelt toch ook weer een paar graden buitentemperatuur.Verwijderd schreef op zaterdag 18 februari 2017 @ 11:07:
[...]
Het duurt soms even voor de kwartjes vallen, de 'frustratie' van het niet begrijpen houdt het in de achtergrond processen van het probleem echter wel aan de gang en uiteindelijk valt het kwartje.
Ik denk het te begrijpen en zoals meestal achteraf blijkt is het allemaal heel logisch/simpel. Enigszins vergelijkbaar te compenseren warmteverlies, globaal dubbele oppervlakte, afgiftebehoefte per m2 ongeveer de helft en daarvoor een zodanige lagere Ta nodig, dat met de Carnot formule waaruit blijkt dat een 5C lagere Ta een COP verbetering van 10% tot gevolg heeft.
Althans dat is wat ik er uit destileer. Heb ik het globaal begrepen ?
Verhuizen dus
zonnepit ; L/W WP Pana MDC05F3E5
Ja, bij vorst 40 graden of wat hoger, dat klopt. Ik heb in de woonkamer geen vloerverwarming maar Jaga convectoren zonder ventilatortjes. Verder in keuken, badkamer, toilet, slaapkamer e.d. alleen gewone radiatoren, dus een paar graden hoger komt daarvoor wel goed uit. Misschien ga ik nog wel eens wat lager proberen te komen.Rene A schreef op zaterdag 18 februari 2017 @ 11:40:
Ik heb in de koude periodes gekeken wat ik nodig heb om het huis warmer te krijgen.
Bij 0 graden heb ik minimale aanvoer van 32 nodig.
Heb hier zelf vloerverwarming beneden met radiatoren en boven stook ik niet / nauwelijks.
Ik weet niet wat je hebt in huis alleen radiatoren of vloerverwarming of combi.
Maar voor vloerverwarming vind ik persoonlijk de instellingen bij jou best hoog staan, bij 0 graden buiten stook je dan al met +/- 44 graden. Dan krijg je natuurlijk ook een sprint situatie als deze instellingen te hoog staan.
Ik zie trouwens nu dat hij op 1.16 staat, die 1.18 was een typefout.
[ Voor 52% gewijzigd door Jan Treur op 18-02-2017 12:29 ]
Huidig huis: All electric 2023 Weheat Blackbird 8kW warmtepomp + 2020 38 kWh Hyundai Ioniq Electric. Vorig huis: All electric energieneutraal: 2013 8.6 kWp PV + 2013 14 kW Fujitsu warmtepomp + 2020 38 kWh Hyundai Ioniq Electric.
Verwijderd
Ik begrijp dat het niet 100% sluitend is, maar de gevolgde redenering lijkt te kloppen ?jaari schreef op zaterdag 18 februari 2017 @ 12:19:
[...]
Vergeet ook niet de ligging aan de kust. Scheelt toch ook weer een paar graden buitentemperatuur.
Verhuizen dus
Je redenering klopt wel maar kan ik natuurlijk niet kwantitatief beoordelen.Verwijderd schreef op zaterdag 18 februari 2017 @ 12:41:
[...]
Ik begrijp dat het niet 100% sluitend is, maar de gevolgde redenering lijkt te kloppen ?
Ik vulde alleen de ligging aan de kust toe. Het is hier over het algemeen net effe minder koud. Scheelt zo een paar tiende COP met het binnenland.
zonnepit ; L/W WP Pana MDC05F3E5
Verwijderd
Klopt in het overzicht wordt De Bilt 1.6C als gemiddelde voor januari genoemd, Hoek v. Holland is 3C voor dezelfde maand.jaari schreef op zaterdag 18 februari 2017 @ 13:22:
[...]
Je redenering klopt wel maar kan ik natuurlijk niet kwantitatief beoordelen.
Ik vulde alleen de ligging aan de kust toe. Het is hier over het algemeen net effe minder koud. Scheelt zo een paar tiende COP met het binnenland.
- Ik heb twee verdelers voor mijn wandverwarming, een voor boven en een voor beneden. Verdeler boven heeft 5 groepen, verdeler beneden heeft 6 groepen.
- Als ik alle groepen open heb staan is de maximale flow (bij pompstand maximaal) 554 l/h
- Als ik alle vijf groepen voor boven dichtzet + alles beneden open houd ik nog 424 l/h flow over.
- Als ik alle zes groepen voor beneden dichtzet + alles boven open houd ik nog 418 l/h flow over.
- Als ik één groep boven open zet + alles beneden open, komt de flow op 460-470l/h (beetje wisselend per groep).
Ik weet dat de aanvoer- en retourleiding ook beperkend zijn, en wil die bij wijze van experiment vervangen door buizen met een groter debiet.
Mijn vraag is nu:
- Kan ik uit bovenstaande gegevens al logisch afleiden dat het de aanvoer- en retourleiding zijn die de flow beperken tot max 554 l/h?
- Ofwel: omdat de verdeler beneden afzonderlijk 424 l/h verstouwt, en de verdeler boven afzonderlijk 418 l/h, zou ik dan theoretisch (bij een niet-beperkte aanvoer en retourleiding) > 800 l/h moeten kunnen halen?
De aanvoer- en retourleidingen zijn nu Unipipe 16x2 mm + nog wat haakse bochten.
Ik heb hier nu restjes Henco Alupex 26x3 liggen als alternatief. Daar gaat in principe 2,78x meer water doorheen (pi-r2). Lijkt me ruim voldoende om deze weerstand op te heffen, zeker gezien het feit dat de Elga 22mm aansluitingen heeft. Klopt dat?
Wand-temperatie in een A+++-monument uit 1865 met een Pana Mono. Gasloos sinds juli 2017. De afsluitboete bestaat niet
Verwijderd
Mijn boerenverstand zegt me dat dat zou moeten kloppen, voor wat het waard is.Bram-Bos schreef op zaterdag 18 februari 2017 @ 14:13:
Omdat ik toch een volledige n00b ben op het gebied van hydraulica, hier maar even een vraag posten:
- Ik heb twee verdelers voor mijn wandverwarming, een voor boven en een voor beneden. Verdeler boven heeft 5 groepen, verdeler beneden heeft 6 groepen.
- Als ik alle groepen open heb staan is de maximale flow (bij pompstand maximaal) 554 l/h
- Als ik alle vijf groepen voor boven dichtzet + alles beneden open houd ik nog 424 l/h flow over.
- Als ik alle zes groepen voor beneden dichtzet + alles boven open houd ik nog 418 l/h flow over.
- Als ik één groep boven open zet + alles beneden open, komt de flow op 460-470l/h (beetje wisselend per groep).
Ik weet dat de aanvoer- en retourleiding ook beperkend zijn, en wil die bij wijze van experiment vervangen door buizen met een groter debiet.
Mijn vraag is nu:
- Kan ik uit bovenstaande gegevens al logisch afleiden dat het de aanvoer- en retourleiding zijn die de flow beperken tot max 554 l/h?
- Ofwel: omdat de verdeler beneden afzonderlijk 424 l/h verstouwt, en de verdeler boven afzonderlijk 418 l/h, zou ik dan theoretisch (bij een niet-beperkte aanvoer en retourleiding) > 800 l/h moeten kunnen halen?
De aanvoer- en retourleidingen zijn nu Unipipe 16x2 mm + nog wat haakse bochten.
Ik heb hier nu restjes Henco Alupex 26x3 liggen als alternatief. Daar gaat in principe 2,78x meer water doorheen (pi-r2). Lijkt me ruim voldoende om deze weerstand op te heffen, zeker gezien het feit dat de Elga 22mm aansluitingen heeft. Klopt dat?
Even opgezocht bij 569l/u heeft 16mm pex een drukverlies van zo'n 2,5kPa/m (stroomsnelheid 1,4m/s: voor verwarming liever faktor 3 lager houden i.v.m. stromingsgeluiden). Bij 25mm pex ruim 0,1kPa/m drukverlies, dus dat scheelt nogal...(dikkere buis heeft relatief minder wand; het water kan er trager doorheen stromen bij hetzelfde watervolume). Bij pex 25 kan er zo'n 750l/minuur door bij de optimale 0,5m/s (met minder dan 0,2kPa/m drukverlies).Bram-Bos schreef op zaterdag 18 februari 2017 @ 14:13:
Mijn vraag is nu:
- Kan ik uit bovenstaande gegevens al logisch afleiden dat het de aanvoer- en retourleiding zijn die de flow beperken tot max 554 l/h?
16mm voor aanvoer/retour is ongeschikt voor zoveel groepen LTV.
Die kleine versmalling van de aansluiting waar je het eerder over had valt volledig in het niet bij het drukverlies van de aanvoer/retourleidingen (dus aansluitingen van die 10mm buisjes gewoon laten zitten: daar zit het probleem niet).
Je kunt wel meer dan 750l/u er doorheen sturen, maar dan krijg je dus stromingsgeluiden en wordt relatief de pomp steeds zwaarder belast door exponentieel toenemende weerstand in de buis. Henco 26x3 is ietsje kleiner dan pex 25.
[ Voor 11% gewijzigd door joostmaas op 18-02-2017 15:23 ]
Super. Dat is helder.joostmaas schreef op zaterdag 18 februari 2017 @ 15:17:
[...]
Even opgezocht bij 569l/u heeft 16mm pex een drukverlies van zo'n 2,5kPa/m (stroomsnelheid 1,4m/s: voor verwarming liever faktor 3 lager houden i.v.m. stromingsgeluiden). Bij 25mm pex ruim 0,1kPa/m drukverlies, dus dat scheelt nogal...(dikkere buis heeft relatief minder wand; het water kan er trager doorheen stromen bij hetzelfde watervolume). Bij pex 25 kan er zo'n 750l/min door bij de optimale 0,5m/s (met minder dan 0,2kPa/m drukverlies).
16mm voor aanvoer/retour is ongeschikt voor zoveel groepen LTV.
Die kleine versmalling van de aansluiting waar je het eerder over had valt volledig in het niet bij het drukverlies van de aanvoer/retourleidingen (dus aansluitingen van die 10mm buisjes gewoon laten zitten: daar zit het probleem niet).
Ik zat namelijk nog te dubben of ik eerst experimenteel zou aanleggen, maar op grond hiervan denk ik dat ik maar gelijk definitief maak, en wat ga openbreken.
Wand-temperatie in een A+++-monument uit 1865 met een Pana Mono. Gasloos sinds juli 2017. De afsluitboete bestaat niet
Verstandig, lijkt me. die 750l/min moet natuurlijk 750l/u zijn...Bram-Bos schreef op zaterdag 18 februari 2017 @ 15:21:
[...]
Super. Dat is helder.
Ik zat namelijk nog te dubben of ik eerst experimenteel zou aanleggen, maar op grond hiervan denk ik dat ik maar gelijk definitief maak, en wat ga openbreken.
Pana WH-MDC05f3e5 / 2700Wp / Nefit gasketel 2000 voor SWW / Vermont Castings Encore
Ik heb twee houten balken van 8 cm dik waterpas gelegd en daar staat hij gewoon los op, geen probleem. Er kan wel paar cm ijs onder komen dus emmer zout erbij als langs loop pad is kan geen kwaadblauwemac schreef op zaterdag 18 februari 2017 @ 16:35:
Hoe degelijk hebben jullie je buiten-unit / monoblock geïnstalleerd, bij installatie in tuin? Volgens de gebruiksaanwijzing van de Pana Monoblock moet hij op een betonnen fundering komen te staan met een aansluiting op riool voor defrost-water. Doen jullie dat allemaal braaf of is dat een beetje overdreven? Ik begrijp dat de wp penibel horizontaal moet staan. Luistert dat echt zo precies? Ik heb de neiging om voor twee stapels tegels te gaan, of iets met stoepranden. Is dat vragen om problemen? Bijvoorbeeld als bij vorst water tussen de tegels komt en de wp dan niet meer horizontaal staat??
1 PVoutput . Dongen NB
niet té eigenwijs zijn Tweaker ; )blauwemac schreef op zaterdag 18 februari 2017 @ 16:35:
Hoe degelijk hebben jullie je buiten-unit / monoblock geïnstalleerd, bij installatie in tuin? Volgens de gebruiksaanwijzing van de Pana Monoblock moet hij op een betonnen fundering komen te staan met een aansluiting op riool voor defrost-water. Doen jullie dat allemaal braaf of is dat een beetje overdreven? Ik begrijp dat de wp penibel horizontaal moet staan. Luistert dat echt zo precies? Ik heb de neiging om voor twee stapels tegels te gaan, of iets met stoepranden. Is dat vragen om problemen? Bijvoorbeeld als bij vorst water tussen de tegels komt en de wp dan niet meer horizontaal staat??
Ik zou het degelijk maken. Genoeg ruimte als er 20 cm sneeuw ligt en waterpas aan alle kanten. Denk erom het moet zo stevig omdat de machine zwaar is en zichzelf zo de grond in trilt. Denk ook om nazakken.
De handleiding overdrijft niet.
BJ 2022, Nibe F2050-6 (vh AMS 10-12), SMO S40. PV 9000 Wp plat dak 10xNO, 10xZW, 5xZO. Tesla MY SR 2026. Peblar Recharge label
Bij mij staat hij ook gewoon los op een stel stoepranden.blauwemac schreef op zaterdag 18 februari 2017 @ 16:35:
Hoe degelijk hebben jullie je buiten-unit / monoblock geïnstalleerd, bij installatie in tuin? Volgens de gebruiksaanwijzing van de Pana Monoblock moet hij op een betonnen fundering komen te staan met een aansluiting op riool voor defrost-water. Doen jullie dat allemaal braaf of is dat een beetje overdreven? Ik begrijp dat de wp penibel horizontaal moet staan. Luistert dat echt zo precies? Ik heb de neiging om voor twee stapels tegels te gaan, of iets met stoepranden. Is dat vragen om problemen? Bijvoorbeeld als bij vorst water tussen de tegels komt en de wp dan niet meer horizontaal staat??
De 5kW Pana monoblock trilt nauwelijks. Hoe dat met andere merken zit weet ik niet maar voor dit type zou ik niet al te moeilijk doen. Ik heb wel een condenswater afvoer, maar toen het eenmaal begon te vriezen kreeg ik toch een ijsvloertje. Dus blijkbaar gaat met vorst alles weer net even anders dan je had gepland.
Volgens het installatiehandleiding moet je inderdaad een goede fundering toepassen.
zonnepit ; L/W WP Pana MDC05F3E5
De 6 kW trilt zo weinig, die krijgt geen worm omhoog haha
1 PVoutput . Dongen NB
Ik heb een 10 centimeter aarde uitgegraven, 4 hout geïmpregneerde palen van een 1.5 meter 10 cm uit de hoek in de grond geslagen, krimpnet, 1x cement, 1x kiezel, 3x zand....week laten harden....voila..... een werkvloer waar je op kan bouwen.....kosten,....45 euro.blauwemac schreef op zaterdag 18 februari 2017 @ 16:35:
Hoe degelijk hebben jullie je buiten-unit / monoblock geïnstalleerd, bij installatie in tuin? Volgens de gebruiksaanwijzing van de Pana Monoblock moet hij op een betonnen fundering komen te staan met een aansluiting op riool voor defrost-water. Doen jullie dat allemaal braaf of is dat een beetje overdreven? Ik begrijp dat de wp penibel horizontaal moet staan. Luistert dat echt zo precies? Ik heb de neiging om voor twee stapels tegels te gaan, of iets met stoepranden. Is dat vragen om problemen? Bijvoorbeeld als bij vorst water tussen de tegels komt en de wp dan niet meer horizontaal staat??
Ik ben mijzelf al enige tijd aan het inlezen in dit topic. Erg interessant wat er allemaal voorbij komt!
Wij gaan medio april starten met de bouw van onze nieuw woning. Conform de EPC eisen van tegenwoordig ontkom je er bijna niet meer aan, naast het bouwen van een bunker, om iets met zonnepalen, warmteterugwinning en/of een warmtepomp te doen. Met een flink wensenpakket hebben we inmiddels diverse offertes opgevraagd bij installateurs.
In het algemeen valt mij op dat het advies erg divers is. Er is ons 2x een volledig elektrische (lucht/water) waterpomp systeem (Nibe 12kW/Nefit 9kW) geadviseerd incl. 300l boiler. Echter is aan ons ook twee keer keer een hybride systeem in combinatie met een traditionele CV ketel geadviseerd. Wat mij daarnaast opvalt is dat installateurs forse bedragen vragen voor de apparatuur, in vergelijk met wat ik op internet aan prijzen kan vinden, en de installatie ook erg kostbaar kan zijn. Tot 15k€ voor een compleet systeem!
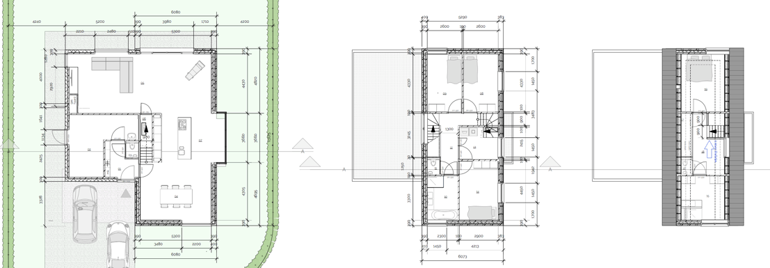
Ik zou graag gebruik willen maken van deze kennis van deze community om tot een besluit te komen. In de bijlage hieronder treffen jullie de tekeningen van onze nieuwe woning aan. Wat zouden jullie voor een configuratie aanbevelen? Privéberichten zijn ook welkom als ik mijn verzoek teveel off-topic is.
Onze uitgangspunten.
- 1.Comfort, 2.Prijs, 3.Duurzaamheid
- 9.720WP PV op oost-zuid-oost. Ook vanwege een elektrische auto op termijn.
- Technische ruimte in de berging op de begane grond of op zolder.
- Vloerverwarming op noppenisolatie op alle 3 de verdiepingen. De mogelijkheid om deze enigszins te kunnen regelen per verdieping zou fijn zijn.
- Wij hebben een gezin met 2 kleine kinderen. We zijn dol op uitgebreid badderen. 2 Douches.
- in de winter staat de thermostaat nu op 21 graden. Jaarverbruik gas (woning 2012) 1600m3.
- Een paar graden kunnen koelen in de zomer zou fijn zijn.
- Gasloos is geen must.
Gaston
1600 m3 gas gaat 3200-4000kwh per jaar worden aan kwh's (denk aan 7,5kw - 10kw warmtepomp)H4ldrz schreef op zaterdag 18 februari 2017 @ 21:05:
Hallo Allemaal,
Ik ben mijzelf al enige tijd aan het inlezen in dit topic. Erg interessant wat er allemaal voorbij komt!
Wij gaan medio april starten met de bouw van onze nieuw woning. Conform de EPC eisen van tegenwoordig ontkom je er bijna niet meer aan, naast het bouwen van een bunker, om iets met zonnepalen, warmteterugwinning en/of een warmtepomp te doen. Met een flink wensenpakket hebben we inmiddels diverse offertes opgevraagd bij installateurs.
In het algemeen valt mij op dat het advies erg divers is. Er is ons 2x een volledig elektrische (lucht/water) waterpomp systeem (Nibe 12kW/Nefit 9kW) geadviseerd incl. 300l boiler. Echter is aan ons ook twee keer keer een hybride systeem in combinatie met een traditionele CV ketel geadviseerd. Wat mij daarnaast opvalt is dat installateurs forse bedragen vragen voor de apparatuur, in vergelijk met wat ik op internet aan prijzen kan vinden, en de installatie ook erg kostbaar kan zijn. Tot 15k€ voor een compleet systeem!
Ik zou graag gebruik willen maken van deze kennis van deze community om tot een besluit te komen. In de bijlage hieronder treffen jullie de tekeningen van onze nieuwe woning aan. Wat zouden jullie voor een configuratie aanbevelen? Privéberichten zijn ook welkom als ik mijn verzoek teveel off-topic is.
Onze uitgangspunten.Ik ben erg benieuwd naar jullie reacties.
- 1.Comfort, 2.Prijs, 3.Duurzaamheid
- 9.720WP PV op oost-zuid-oost. Ook vanwege een elektrische auto op termijn.
- Technische ruimte in de berging op de begane grond of op zolder.
- Vloerverwarming op noppenisolatie op alle 3 de verdiepingen. De mogelijkheid om deze enigszins te kunnen regelen per verdieping zou fijn zijn.
- Wij hebben een gezin met 2 kleine kinderen. We zijn dol op uitgebreid badderen. 2 Douches.
- in de winter staat de thermostaat nu op 21 graden. Jaarverbruik gas (woning 2012) 1600m3.
- Een paar graden kunnen koelen in de zomer zou fijn zijn.
- Gasloos is geen must.
![]()
[afbeelding]
ik heb hybride auto en die trekt ook 1800 kwh per jaar
normaal gezinsverbruik 4700 kwh per jaar
conclusie: je pv kun je nog rustig verder opschroeven
warmtepomp wil je op de grond en niet op het dak ivm trillingen: mijn advies is dus op de grond zetten (dus technische ruimte beneden)
ketel + warmtepomp = best of both worlds, je hebt geen boiler nodig, je hebt altijd genoeg warmtecapaciteit, je kunt oneindig douchen, lekker elk jaar overstappen en je welkomstbonus valt weg tegens vastrecht van het gas. Ik zou wel altijd een douche wtw pakken, scheelt hier 50% in de gaskosten voor douchen
Anyway welkom bij de club
DWTW 2,3m, Ecodan 10kw, 13kWp (oost-west 12° Jinko Solar/Growatt), Rc >5, Hr++, Vera edge
Tja, wij zijn geen adviesbureau en kunnen alleen wat tips geven op basis van onze ervaring. De volgorde die hier gekozen wordt is woning>CVsysteem en dan pas keuze WP. Het energieverbruik van een nog te bouwen woning moet je eerst berekenen. Hoe kom je an 1600m3/jaar als de woning nog moet worden gebouwd?H4ldrz schreef op zaterdag 18 februari 2017 @ 21:05:
Hallo Allemaal,
Ik ben mijzelf al enige tijd aan het inlezen in dit topic. Erg interessant wat er allemaal voorbij komt!
Wij gaan medio april starten met de bouw van onze nieuw woning. Conform de EPC eisen van tegenwoordig ontkom je er bijna niet meer aan, naast het bouwen van een bunker, om iets met zonnepalen, warmteterugwinning en/of een warmtepomp te doen. Met een flink wensenpakket hebben we inmiddels diverse offertes opgevraagd bij installateurs.
In het algemeen valt mij op dat het advies erg divers is. Er is ons 2x een volledig elektrische (lucht/water) waterpomp systeem (Nibe 12kW/Nefit 9kW) geadviseerd incl. 300l boiler. Echter is aan ons ook twee keer keer een hybride systeem in combinatie met een traditionele CV ketel geadviseerd. Wat mij daarnaast opvalt is dat installateurs forse bedragen vragen voor de apparatuur, in vergelijk met wat ik op internet aan prijzen kan vinden, en de installatie ook erg kostbaar kan zijn. Tot 15k€ voor een compleet systeem!
Ik zou graag gebruik willen maken van deze kennis van deze community om tot een besluit te komen. In de bijlage hieronder treffen jullie de tekeningen van onze nieuwe woning aan. Wat zouden jullie voor een configuratie aanbevelen? Privéberichten zijn ook welkom als ik mijn verzoek teveel off-topic is.
Onze uitgangspunten.Ik ben erg benieuwd naar jullie reacties.
- 1.Comfort, 2.Prijs, 3.Duurzaamheid
- 9.720WP PV op oost-zuid-oost. Ook vanwege een elektrische auto op termijn.
- Technische ruimte in de berging op de begane grond of op zolder.
- Vloerverwarming op noppenisolatie op alle 3 de verdiepingen. De mogelijkheid om deze enigszins te kunnen regelen per verdieping zou fijn zijn.
- Wij hebben een gezin met 2 kleine kinderen. We zijn dol op uitgebreid badderen. 2 Douches.
- in de winter staat de thermostaat nu op 21 graden. Jaarverbruik gas (woning 2012) 1600m3.
- Een paar graden kunnen koelen in de zomer zou fijn zijn.
- Gasloos is geen must.
![]()
[afbeelding]
Tips zijn juist zeer welkom. Dat helpt enorm om mijn eigen advies te formuleren.Tomexergie schreef op zaterdag 18 februari 2017 @ 21:15:
[...]
Tja, wij zijn geen adviesbureau en kunnen alleen wat tips geven op basis van onze ervaring. De volgorde die hier gekozen wordt is woning>CVsysteem en dan pas keuze WP. Het energieverbruik van een nog te bouwen woning moet je eerst berekenen. Hoe kom je an 1600m3/jaar als de woning nog moet worden gebouwd?
1600m3 is het gasverbruik van onze huidige woning met een traditionele CV ketel. Bouwjaar 2012.
Hieronder het energieverbruik (MJ) nieuwe woning conform EPC. Voor wat het waard is
- Verwarming 34459
- Warm tapwater 21628
- Koeling 2050
- Ventilatoren 3233
- Verlichting 10313
Totaal 71682MJ
Don't shoot the messenger.
Gaston
Wow, 1950m3 gas kom ik op uit verwarmen en SWW, ik vind het zeer veel.H4ldrz schreef op zaterdag 18 februari 2017 @ 21:40:
[...]
Tips zijn juist zeer welkom. Dat helpt enorm om mijn eigen advies te formuleren.
1600m3 is het gasverbruik van onze huidige woning met een traditionele CV ketel. Bouwjaar 2012.
Hieronder het energieverbruik (MJ) nieuwe woning conform EPC. Voor wat het waard is![]()
- Verwarming 34459
- Warm tapwater 21628
- Koeling 2050
- Ventilatoren 3233
- Verlichting 10313
Totaal 71682MJ
Don't shoot the messenger.
Als deze berekening klopt dan verstookt je WP >5000 KWH per jaar.
Als je het doet doe het dan goed, dus geen gas laten aanleggen, dit scheelt ook ca. € 1000,- eenmalig en een cv ketel met jaarlijks onderhoud.
13,1 kWp, Ecodan R32 7,5 , WTW ventilatie, Daikin FTXM35M(R) (5x), Doorstroomverwarmer, Douche WTW, Emco Novette Twin met LFP accu 51.2V 40Ah, Opel Vivaro DC L3H1 75kW (12-2022).
Wat mij het meest verbaasd is toch wel de kWh die er uit geperst worden.
Bij aanvang wist ik dat het niet allemaal zou worden, in eerste instantie iig, zoals het hoort, en dan doel ik op: geen buffer (behalve de vloeren natuurlijk, welke niet geïsoleerd zijn), in gefreesde vloerverwarming (ligt nagenoeg onder de pvc vloerbedekking), 14 mm! slang (op 10cm) en dan ook nog een HT verdeler.
Misschien ga ik die verdeler nog veranderen, aanpassen of een nieuwe, welke mij 100 euri kost via de overbuurman.
Ben zeker blij met deze echt onverwachte resultaten!
Maar goed, ik ga nu ook met het lijstje mee doen. Mijn verbruik is sinds de warmtemeter er tussen zit 28 kWh in goed dagen met met een cop van 5.45. (Wel hogere buiten temperaturen natuurlijk)
Pomp nu ff op 1 gezet en resulteert in 650 liter.... stand 2 is 950 l/h met 2 graden verschil, wat is wijsheid.....
Edit: als de pomp draait op stand 1 810 l/h. Opstand 1 laten staan dus...?
[ Voor 7% gewijzigd door hrt op 18-02-2017 22:43 ]
24x170SF, oost (105 graden), 25 graden, Steca3600/ 5D, 17-40, 24-105, 70-200/ WH-MDC05F3E5, 50L E-boiler, Gasloos per27-01-2017
Mooi om te zien dat je resultaat ziet van je werkzaamheden.
Ik wil je nogmaals bedanken voor je gastvrijheid dat ik je Panasonic mocht beluisteren en aanschouwen.
Ondertussen geleerd dat blaffende honden niet bijten.
Vandaag tevens een bezoek gebracht aan Sibelius4 om zijn verbouwing te mogen aanschouwen waar voor ook hartelijk dank.
Op beide locatie's veel opgestoken. Elk huis zijn eigen oplossing omtrent Sww.
zelf wil ik kijken of ik een onze 500 liter zonneboiler met cv ondersteuning en met FWS kan combineren met de Panasonic. zodat we standaard 30 graden water op voorraad hebben in het winterseizoen waarbij een electrische doorstromer het verder opwarmt.
In iedergeval nog genoeg stof tot nadenken.
Vanmiddag met behulp van onze buurvrouw een franse mail verstuurd.
Ik kan het niet vaak genoeg herhalen, vanuit een epc rapport kun je niet het warmteverlies bepalen.koevlaas2 schreef op zaterdag 18 februari 2017 @ 21:48:
[...]
Wow, 1950m3 gas kom ik op uit verwarmen en SWW, ik vind het zeer veel.
Als deze berekening klopt dan verstookt je WP >5000 KWH per jaar.
Als je het doet doe het dan goed, dus geen gas laten aanleggen, dit scheelt ook ca. € 1000,- eenmalig en een cv ketel met jaarlijks onderhoud.
@halders
Laat aub voor 250 euro een warmteverlies/ transmissieberekening maken, dan weet je tenminste echt waar je het over hebt.
Ik ben het met Develdonk eens, een hybride WP/HR is rationeel gezien het beste, tebzij je aardgas vrij wilt zijn.H4ldrz schreef op zaterdag 18 februari 2017 @ 21:40:
[...]
Tips zijn juist zeer welkom. Dat helpt enorm om mijn eigen advies te formuleren.
1600m3 is het gasverbruik van onze huidige woning met een traditionele CV ketel. Bouwjaar 2012.
Hieronder het energieverbruik (MJ) nieuwe woning conform EPC. Voor wat het waard is![]()
- Verwarming 34459
- Warm tapwater 21628
- Koeling 2050
- Ventilatoren 3233
- Verlichting 10313
Totaal 71682MJ
Don't shoot the messenger.
Verwarming 34450=9572kWh met aardgas 1050 m3/jaar (bij -10 ongeveer 5kW vermogen nodig). Denk er aan dat het vermogen van de warmtepomp bij -10 ongever is gehalveerd.
Met een 5kW hybride warmtepomp dek je 92% van de warmte (bij vloerverwarming) en dus minder dan 100m3/j bijstoken. Daarnaast kun je de combiHR voor tapwater gebruiken en bovendien heb je een back-up voor de L/W warmtepomp. De warmtepomp trekt ongeveer 1700 kWh. Met 3000 kWh huidhoudelijk gebruik kun je gemakkelij 6kWpiek aan PV kwijt. Een mooie all-in hybride is b.v. de Daikin Altherma hybrid die je ook in 8kW uitvoering kunt krijgen.
Als je alles 100% elektrisch wilt doen ziet het plaatje er anders uit en kun je beter en WP nemen met en elektrische bijverwarming en boiler.
Ik zou stand 2 doen, zo rond 900-950 is best goed, zelf hier ook op 880-920 het veranderd nog al eens.hrt schreef op zaterdag 18 februari 2017 @ 22:08:
Warmte meter zit er nu 2 dagen tussen, fijn dat ik nu ook mijn flow WEET.
Wat mij het meest verbaasd is toch wel de kWh die er uit geperst worden.
Bij aanvang wist ik dat het niet allemaal zou worden, in eerste instantie iig, zoals het hoort, en dan doel ik op: geen buffer (behalve de vloeren natuurlijk, welke niet geïsoleerd zijn), in gefreesde vloerverwarming (ligt nagenoeg onder de pvc vloerbedekking), 14 mm! slang (op 10cm) en dan ook nog een HT verdeler.
Misschien ga ik die verdeler nog veranderen, aanpassen of een nieuwe, welke mij 100 euri kost via de overbuurman.![]()
Ben zeker blij met deze echt onverwachte resultaten!![]()
Maar goed, ik ga nu ook met het lijstje mee doen. Mijn verbruik is sinds de warmtemeter er tussen zit 28 kWh in goed dagen met met een cop van 5.45. (Wel hogere buiten temperaturen natuurlijk)
Pomp nu ff op 1 gezet en resulteert in 650 liter.... stand 2 is 950 l/h met 2 graden verschil, wat is wijsheid.....
Edit: als de pomp draait op stand 1 810 l/h. Opstand 1 laten staan dus...?
Noord-Oost-Zuid-West 11640Wp Totaal Live, Netduino advanced pv logging
Je kunt wel een warmte-verlies berekening laten maken maar de volgende zaken zou ik meenemen:
EPC niet via trukendoos naar beneden brengen maar zoveel mogelijk via echte technologie waar je wat aan hebt.
Dus isolatie zo goed mogelijk. Vloer naisoleren tijdens de bouw met gespoten pur. Dan heb je het luchtdicht. Kan ook bij de spouw interessant zijn.
Kies het juiste ventilatietype. Neem overal triple glas. Je kunt het maar 1x goed doen.
Doe je dit allemaal netjes dan is mijn stelling dat een 5-6 kW WP (kies gewoon lucht/water) de hut kan warmhouden. Ook vrijstaand en groot. Dat kan omdat je overal lage temp verwarming kan en moet aanleggen. En dankzij het triple glas is de schil dan al erg verliesarm.
WP boiler apart nemen.
Sowieso gasloos gaan. Gas moet je nu gewoon niet meer willen. Verwarmen en koken zonder vlammetjes het kan en het werkt veel fijner en veiliger!
Neem uiteraard zoveel mogelijk zonnepanelen. Ik zou daar voor gaan ipv budget steken in bijv. duurdere aardwarmte
[ Voor 8% gewijzigd door Knowbody op 19-02-2017 11:11 ]
BJ 2022, Nibe F2050-6 (vh AMS 10-12), SMO S40. PV 9000 Wp plat dak 10xNO, 10xZW, 5xZO. Tesla MY SR 2026. Peblar Recharge label
Bij gasloos willen zijn helemaal mee eens. Een warmtepomp is alleen maar een omzetter van elektriciteit naar warmte. Het paradoxale is dat hoe slechter de woning hoe beter het is voor de opbrengst van de warmtepomp en hoe rendabeler hij wordt. Bij oude woningen is het bijna onmogelijk om de thermische kwaliteit omlaag te brengen en dat scoort de WP zeer goed. Het is dan wel een vlag op een modderschip.Knowbody schreef op zondag 19 februari 2017 @ 11:05:
@halders
Je kunt wel een warmte-verlies berekening laten maken maar de volgende zaken zou ik meenemen:
EPC niet via trukendoos naar beneden brengen maar zoveel mogelijk via echte technologie waar je wat aan hebt.
Dus isolatie zo goed mogelijk. Vloer naisoleren tijdens de bouw met gespoten pur. Dan heb je het luchtdicht. Kan ook bij de spouw interessant zijn.
Kies het juiste ventilatietype. Neem overal triple glas. Je kunt het maar 1x goed doen.
Doe je dit allemaal netjes dan is mijn stelling dat een 5-6 kW WP (kies gewoon lucht/water) de hut kan warmhouden. Ook vrijstaand en groot. Dat kan omdat je overal lage temp verwarming kan en moet aanleggen. En dankzij het triple glas is de schil dan al erg verliesarm.
WP boiler apart nemen.
Sowieso gasloos gaan. Gas moet je nu gewoon niet meer willen. Verwarmen en koken zonder vlammetjes het kan en het werkt veel fijner en veiliger!
Neem uiteraard zoveel mogelijk zonnepanelen. Ik zou daar voor gaan ipv budget steken in bijv. duurdere aardwarmte
Bij nieuwbouw heb je de unieke mogelijkheid om de thermische kwaliteit zo te verbeteren(ook met ventilatieterugwinning) dat zelfs een warmtepomp niet zinvol meer is en je kunt overgaan op 100% elektrisch. Tenzij het om een groot huis gaat en de energietoevoer kwantitatief zo groot is, dat zo'n kleine herrieschopper zinvol wordt, zeker met DHW er bij.
Wat betreft herrieschopper stel je werkt met Ta=27 dan is de al WP best stil. Bovendien kun je bij nieuwbouw het ontwerp en plaatsing optimaliseren. En een geluidsomkasting meenemen (bijv die van Atlantis)
[ Voor 3% gewijzigd door Knowbody op 19-02-2017 12:28 ]
BJ 2022, Nibe F2050-6 (vh AMS 10-12), SMO S40. PV 9000 Wp plat dak 10xNO, 10xZW, 5xZO. Tesla MY SR 2026. Peblar Recharge label
Bovenstaande klopt op zich wel, maar er kunnen verschillende redenen zijn om niet voor balansventilatie en/of tripple glas te kiezen.Knowbody schreef op zondag 19 februari 2017 @ 11:05:
@halders
Je kunt wel een warmte-verlies berekening laten maken maar de volgende zaken zou ik meenemen:
EPC niet via trukendoos naar beneden brengen maar zoveel mogelijk via echte technologie waar je wat aan hebt.
Dus isolatie zo goed mogelijk. Vloer naisoleren tijdens de bouw met gespoten pur. Dan heb je het luchtdicht. Kan ook bij de spouw interessant zijn.
Kies het juiste ventilatietype. Neem overal triple glas. Je kunt het maar 1x goed doen.
Doe je dit allemaal netjes dan is mijn stelling dat een 5-6 kW WP (kies gewoon lucht/water) de hut kan warmhouden. Ook vrijstaand en groot. Dat kan omdat je overal lage temp verwarming kan en moet aanleggen. En dankzij het triple glas is de schil dan al erg verliesarm.
WP boiler apart nemen.
Sowieso gasloos gaan. Gas moet je nu gewoon niet meer willen. Verwarmen en koken zonder vlammetjes het kan en het werkt veel fijner en veiliger!
Neem uiteraard zoveel mogelijk zonnepanelen. Ik zou daar voor gaan ipv budget steken in bijv. duurdere aardwarmte
Bij ons had bovenstaande bijvoorbeeld minimaal 15K extra gekost, dan kun je in mijn ogen beter een WP met een hoger vermogen kopen tegen een meerprijs van 1 á 2 K.
Mijn transmissieberekening toont aan dat ik een warmteverlies heb van 18W/m3
Onze woning voldoet aan EPC 0,4, is goed geïsoleerd maar geen tripple glas en geen balansventilatie.
Ik denk dat als je wel tripple glas neemt en balansventilatie je op +- 10W/m3 uitkomt.
Ik kan de kuubs van Halders zo snel niet inschatten, maar ik denk 500
Dan zou inderdaad een 5KW WP voldoende zijn
Ik zou ook voor gasloos gaan als ik Halders was (sterker nog, ik bouw ook gasloos).
Zorg wel voor een backup mogelijkheid als je gasloos gaat m.b.v. een L/W WP. Juist bij koude temperaturen (ook al komt het maar 5 dagen in het jaar voor presteert een L/W WP het slechtste, dus juist wanneer je het nodig hebt), dus houtkachel, extra vermogen of electrische backup heater in de WP.
[ Voor 7% gewijzigd door Grolsch op 19-02-2017 12:50 ]
Als energie verbruik post
Als ik goed reken is dat 2860kWh en met ~100lumen/W is flink wat aan verlichting of wordt er meer dan enkel gebouw gebonden licht in zo'n groep samengevat?- Verlichting 10313 MJ
Ook met 100 lumen/W geven de lampen nog nodige warmte af binnen de gebouw schil.
Eilandbedrijf met netondersteuning , all-electric || Deye 12KSG04LP3 met 580Ah-LFP 51,2V (Seplos 3x48100-10C +48200-10E) || hulp-Deye 12k SG04LP3 met 280Ah-LFP 51,2V || 19.4 kWp PV || Zonneplan EPEX-klant
Verwijderd
Kun je die paradox nader uitleggen ? Ik dacht dat CO2 reductie een v.d. doelen was, dat doet een WP, liefst in combinatie met PV, ik begrijp je vlag/modderschuit opmerking niet. CO2. reductie bereikt, kostenverlaging bereikt, wat wil een mens nog meer ?Tomexergie schreef op zondag 19 februari 2017 @ 12:19:
[...]
Bij gasloos willen zijn helemaal mee eens. Een warmtepomp is alleen maar een omzetter van elektriciteit naar warmte. Het paradoxale is dat hoe slechter de woning hoe beter het is voor de opbrengst van de warmtepomp en hoe rendabeler hij wordt. Bij oude woningen is het bijna onmogelijk om de thermische kwaliteit omlaag te brengen en dat scoort de WP zeer goed. Het is dan wel een vlag op een modderschip.
Bij nieuwbouw heb je de unieke mogelijkheid om de thermische kwaliteit zo te verbeteren(ook met ventilatieterugwinning) dat zelfs een warmtepomp niet zinvol meer is en je kunt overgaan op 100% elektrisch. Tenzij het om een groot huis gaat en de energietoevoer kwantitatief zo groot is, dat zo'n kleine herrieschopper zinvol wordt, zeker met DHW er bij.
Verwijderd
M.b.t. warmteverlies berekeningen merkt een 'algemeen erkende WP deskundige', welke erbij geroepen wordt op het moment dat systemen niet doen wat ze geacht worden te doen, in het volgende artikel http://www.sbz-online.de/...OTAxMSZNSUQ9MTAxOTAy.html het volgende op over deze berekeningen:Grolsch schreef op zondag 19 februari 2017 @ 12:47:
[...]
Bovenstaande klopt op zich wel, maar er kunnen verschillende redenen zijn om niet voor balansventilatie en/of tripple glas te kiezen.
Bij ons had bovenstaande bijvoorbeeld minimaal 15K extra gekost, dan kun je in mijn ogen beter een WP met een hoger vermogen kopen tegen een meerprijs van 1 á 2 K.
Mijn transmissieberekening toont aan dat ik een warmteverlies heb van 18W/m3
Onze woning voldoet aan EPC 0,4, is goed geïsoleerd maar geen tripple glas en geen balansventilatie.
Ik denk dat als je wel tripple glas neemt en balansventilatie je op +- 10W/m3 uitkomt.
Ik kan de kuubs van Halders zo snel niet inschatten, maar ik denk 500
Dan zou inderdaad een 5KW WP voldoende zijn
Ik zou ook voor gasloos gaan als ik Halders was (sterker nog, ik bouw ook gasloos).
Zorg wel voor een backup mogelijkheid als je gasloos gaat m.b.v. een L/W WP. Juist bij koude temperaturen (ook al komt het maar 5 dagen in het jaar voor presteert een L/W WP het slechtste, dus juist wanneer je het nodig hebt), dus houtkachel, extra vermogen of electrische backup heater in de WP.
An anderer Stelle wies Hubacher darauf hin, dass in den Heizlastberechnungen bereits Sicherheiten in der Größenordnung von 20–25 % enthalten sind. Zusammen mit inneren Wärmegewinnen des Gebäudes und den üblichen Aufrundungen käme man oft auf eine 35%ige Überdimensionierung, selbst wenn man sich an die einschlägigen Normen halte.
Een terrechte opmerking want in elke berekening wordt een soort van "zekerheid percentage" meegenomen, neem een constructieberekening, sterkteberekening, etc."Verwijderd schreef op zondag 19 februari 2017 @ 14:04:
[...]
M.b.t. warmteverlies berekeningen merkt een 'algemeen erkende WP deskundige', welke erbij geroepen wordt op het moment dat systemen niet doen wat ze geacht worden te doen, in het volgende artikel http://www.sbz-online.de/...OTAxMSZNSUQ9MTAxOTAy.html het volgende op over deze berekeningen:
An anderer Stelle wies Hubacher darauf hin, dass in den Heizlastberechnungen bereits Sicherheiten in der Größenordnung von 20–25 % enthalten sind. Zusammen mit inneren Wärmegewinnen des Gebäudes und den üblichen Aufrundungen käme man oft auf eine 35%ige Überdimensionierung, selbst wenn man sich an die einschlägigen Normen halte.
Het is wel een berekening volgens een door de proffesionele markt geaccepteerde norm.
Wat wil je hier precies mee zeggen
Nee, een warmtepomp verplaatst warmte. Elektriciteit word niet omgezet in warmte, alleen het kleine beetje verlies van de elektromotor word afgegeven als warmte, maar dat zijn maar enkele procenten.Tomexergie schreef op zondag 19 februari 2017 @ 12:19:
[...]
Een warmtepomp is alleen maar een omzetter van elektriciteit naar warmte.
Wil je 25 a 30cm EPS nog na isoleren met PUR? Dat gaat wel heel ver, kun je beter luchtdicht bouwen. Daar is meer winst te halen.Knowbody schreef op zondag 19 februari 2017 @ 11:05:
@halders
Dus isolatie zo goed mogelijk. Vloer naisoleren tijdens de bouw met gespoten pur. Dan heb je het luchtdicht. Kan ook bij de spouw interessant zijn.
[ Voor 34% gewijzigd door Oxellaar op 19-02-2017 14:38 ]
MG4 Luxury - Samsung A3050/AR7000 - Elga 3.0 - ME WSH-LN25I Diamond
Verwijderd
Als ik het goed bereken betekent dat:H4ldrz schreef op zaterdag 18 februari 2017 @ 21:40:
[...]
Tips zijn juist zeer welkom. Dat helpt enorm om mijn eigen advies te formuleren.
1600m3 is het gasverbruik van onze huidige woning met een traditionele CV ketel. Bouwjaar 2012.
Hieronder het energieverbruik (MJ) nieuwe woning conform EPC. Voor wat het waard is![]()
- Verwarming 34459
- Warm tapwater 21628
- Koeling 2050
- Ventilatoren 3233
- Verlichting 10313
Totaal 71682MJ
Don't shoot the messenger.
Voor verwarming 10.000kWh = 2.850kWh input voor een WP, COP=3.5
Voor sww 6.000kWh = 2.400kWh input voor een WP, COP=2.5
Koeling en de rest 4.500kWh
Totaal nodig om de boel te voeden 9.750kWh.
SWW met gas doen betekent ongeveer 860m3, 7kWh warmte uit een m3, wat incl. vastrecht, capaciteitskosten en vastekosten van een gasaansluiting uberhaupt, dat gaat 860*0,80=688,00 kosten. Daarnaast vermijd je de eenmalige aansluitkosten.
Doe je SWW met een WP kost het 2.400kWh bij een kostprijs voor een kWh welke je zelf opwekt ongeveer 2.400*0.06=144.00. Jaarlijks bespaar je op deze manier 688-144=544.00
Van de opmerkingen dat de jaarlijkse bonus bij overstap al die vastrechtkosten dekt heb ik nog nooit een hard bewijs gezien. Dit is mijn mening en hoop dat ik geen reken fouten heb gemaakt en sta open voor kritiek m.b.t. deze berekening, vergissen is ten slotte menselijk.
Verwijderd
Bij constructie- en sterkteberekeningen, akkoord beetje extra materiaal heeft geen nadelige gevolgen behalve dat het een fractie duurder wordt.Grolsch schreef op zondag 19 februari 2017 @ 14:10:
[...]
Een terrechte opmerking want in elke berekening wordt een soort van "zekerheid percentage" meegenomen, neem een constructieberekening, sterkteberekening, etc."
Het is wel een berekening volgens een door de proffesionele markt geaccepteerde norm.
Wat wil je hier precies mee zeggen
Voor het optimaal draaien van een benzinemotor heeft bijv. een 30-35% grotere sproeier/injectie opening dan optimaal wel nadelige gevolgen. Evenals een steeksleutel van 15 op een moer van 12 niet zo'n fijne combinatie is. In sommige situaties is overdimensioneren prima, in andere zijn ze nadelig, dan is de 'passende' juist zeer gewenst.
Ik stoor me nog aan het brommend/zoemend geluid (wat doorgegeven wordt aan de behuizing) van de Grundfoss UPM2 15-70 130 in de binnenunit.
Na solid state relais ingebouwd te hebben in de binnenunit en een geluid uitblaas kast voor de buiten unit is dit weer een puntje...(wat een zeikerd ben ik ook he?)
De pomp krijgt een PWM signaal uit de binnenunit. Iemand tips voor een stillere pomp?
Pana kopen......AUijtdehaag schreef op zondag 19 februari 2017 @ 14:55:
Iemand al zijn waterpomp vervangen in de ecodan?
Ik stoor me nog aan het brommend/zoemend geluid (wat doorgegeven wordt aan de behuizing) van de Grundfoss UPM2 15-70 130 in de binnenunit.
Na solid state relais ingebouwd te hebben in de binnenunit en een geluid uitblaas kast voor de buiten unit is dit weer een puntje...(wat een zeikerd ben ik ook he?)
De pomp krijgt een PWM signaal uit de binnenunit. Iemand tips voor een stillere pomp?
1 PVoutput . Dongen NB
Wat is het nadeel van een wp die iets over gedimensioneerd isVerwijderd schreef op zondag 19 februari 2017 @ 14:45:
[...]
Bij constructie- en sterkteberekeningen, akkoord beetje extra materiaal heeft geen nadelige gevolgen behalve dat het een fractie duurder wordt.
Voor het optimaal draaien van een benzinemotor heeft bijv. een 30-35% grotere sproeier/injectie opening dan optimaal wel nadelige gevolgen. Evenals een steeksleutel van 15 op een moer van 12 niet zo'n fijne combinatie is. In sommige situaties is overdimensioneren prima, in andere zijn ze nadelig, dan is de 'passende' juist zeer gewenst.
http://www.aircon.panason...pening/beheer-op-afstand/AUijtdehaag schreef op zondag 19 februari 2017 @ 15:11:
[...]
Heeft geen melcloud wifi, anders was de keus zo gemaakt.
'AUijtdehaag schreef op zondag 19 februari 2017 @ 14:55:
Iemand al zijn waterpomp vervangen in de ecodan?
Ik stoor me nog aan het brommend/zoemend geluid (wat doorgegeven wordt aan de behuizing) van de Grundfoss UPM2 15-70 130 in de binnenunit.
Na solid state relais ingebouwd te hebben in de binnenunit en een geluid uitblaas kast voor de buiten unit is dit weer een puntje...(wat een zeikerd ben ik ook he?)
De pomp krijgt een PWM signaal uit de binnenunit. Iemand tips voor een stillere pomp?
Je zou hem kunnen vervangen voor een ump3 15-75,
iets zuinig. maar ook stiller?
Ik denk dat je dan beter de pomp op de laagste stand kan zetten.
38kw pv, 64kwh ev, 77kwh ev, 16kw ,12kw lg wp R290.Gasloos sinds 2018
Verwijderd
Daar heb ik/we het al vaker over gehad, ik laat het hierbij, ieder leest wat hij/zij wil lezen, dan wordt het ik vind/geloof/denk, dat zijn weinig vruchtbare sessies.Grolsch schreef op zondag 19 februari 2017 @ 15:19:
[...]
Wat is het nadeel van een wp die iets over gedimensioneerd is
Als ik mij niet vergis kan ik hierop eventueel een Youless koppelen om een en ander ook te monitoren in bijvoorbeeld Domoticz.
2x een 16A
1x een 20A
3x een kWh meter
Abb C11 is erg traag met S0. (uit mijn hoofd 200 imp/kWh)wervisser schreef op zondag 19 februari 2017 @ 15:44:
Ik ben even aan het kijken naar de groepenkast uitbreiding en denk erover om onderstaande kWh meters aan te sluiten. Eentje op elk van de 3 benodigde groepen.
Als ik mij niet vergis kan ik hierop eventueel een Youless koppelen om een en ander ook te monitoren in bijvoorbeeld Domoticz.
2x een 16A
1x een 20A
3x een kWh meter
Deze is 1000 imp/kWh. En dan youless met 2 draadjes op S0
[ Voor 5% gewijzigd door AUijtdehaag op 19-02-2017 15:55 ]
C11 is 100 imp/kWh, voor logging niet heel ideaal.AUijtdehaag schreef op zondag 19 februari 2017 @ 15:53:
[...]
Abb C11 is erg traag met S0. (uit mijn hoofd 200 imp/kWh)
Deze is 1000 imp/kWh. En dan youless met 2 draadjes op S0
Noord-Oost-Zuid-West 11640Wp Totaal Live, Netduino advanced pv logging
Gooi er in de binnenunit eens wat geluidisolatie foam omheen, missschien dat dit scheelt.AUijtdehaag schreef op zondag 19 februari 2017 @ 14:55:
Iemand al zijn waterpomp vervangen in de ecodan?
Ik stoor me nog aan het brommend/zoemend geluid (wat doorgegeven wordt aan de behuizing) van de Grundfoss UPM2 15-70 130 in de binnenunit.
Na solid state relais ingebouwd te hebben in de binnenunit en een geluid uitblaas kast voor de buiten unit is dit weer een puntje...(wat een zeikerd ben ik ook he?)
De pomp krijgt een PWM signaal uit de binnenunit. Iemand tips voor een stillere pomp?
Kijk of er een rubbertje tussen de bevestiging van de kast en de pomp kan om doorgegeven trilling te elimineren.
Ben blij dat ie bij mij in een apart hok hangt, ik heb er totaal geen last van.
13,1 kWp, Ecodan R32 7,5 , WTW ventilatie, Daikin FTXM35M(R) (5x), Doorstroomverwarmer, Douche WTW, Emco Novette Twin met LFP accu 51.2V 40Ah, Opel Vivaro DC L3H1 75kW (12-2022).
Iets teveel is geen probleem, is ook lekker kijk maar naar je auto met een V6 erin haal je toch makkelijker inVerwijderd schreef op zondag 19 februari 2017 @ 15:40:
[...]
Daar heb ik/we het al vaker over gehad, ik laat het hierbij, ieder leest wat hij/zij wil lezen, dan wordt het ik vind/geloof/denk, dat zijn weinig vruchtbare sessies.
Veel te veel teveel daarentegen is niet goed, veel en veel te weinig natuurlijk ook niet.
13,1 kWp, Ecodan R32 7,5 , WTW ventilatie, Daikin FTXM35M(R) (5x), Doorstroomverwarmer, Douche WTW, Emco Novette Twin met LFP accu 51.2V 40Ah, Opel Vivaro DC L3H1 75kW (12-2022).
Zojuist gedaan IN de binnenunit met geluidsisolerende foam platen.koevlaas2 schreef op zondag 19 februari 2017 @ 16:03:
[...]
Gooi er in de binnenunit eens wat geluidisolatie foam omheen, missschien dat dit scheelt.
Kijk of er een rubbertje tussen de bevestiging van de kast en de pomp kan om doorgegeven trilling te elimineren.
Ben blij dat ie bij mij in een apart hok hangt, ik heb er totaal geen last van.
Binnenunit hangt in een zelfgemaakte houten box, 18mm platen, en in de trapkast.
Maar 100% licht gezoem kom ik niet vanaf. (maar acceptabel nu met de trapkast dicht).
Zal eens kijken naar een UPM3 15-75.
Hier zijn ze nog een stukje goedkoper de kWh meterwervisser schreef op zondag 19 februari 2017 @ 15:44:
Ik ben even aan het kijken naar de groepenkast uitbreiding en denk erover om onderstaande kWh meters aan te sluiten. Eentje op elk van de 3 benodigde groepen.
Als ik mij niet vergis kan ik hierop eventueel een Youless koppelen om een en ander ook te monitoren in bijvoorbeeld Domoticz.
2x een 16A
1x een 20A
3x een kWh meter
PVOutput = Fujitsu Waterstage WC05 + 5700 Wp
Verwijderd
Lekker, is een 'lastig' begrip, de een houdt van ..... vul maar in, daar zijn de meningen zeer over verdeeld.koevlaas2 schreef op zondag 19 februari 2017 @ 16:05:
[...]
Iets teveel is geen probleem, is ook lekker kijk maar naar je auto met een V6 erin haal je toch makkelijker in
Veel te veel teveel daarentegen is niet goed, veel en veel te weinig natuurlijk ook niet.
Het kan nog goedkoper hoor!Rene A schreef op zondag 19 februari 2017 @ 16:14:
[...]
Hier zijn ze nog een stukje goedkoper de kWh meter
https://www.amazon.de/XCS...8-1&keywords=xcsource+kwh
(al hang ik daar niet mijn huis aan, chinese rommel
[ Voor 5% gewijzigd door AUijtdehaag op 19-02-2017 16:32 ]
Dream on, de niet chinese rommel is ook chineesAUijtdehaag schreef op zondag 19 februari 2017 @ 16:30:
[...]
Het kan nog goedkoper hoor!
https://www.amazon.de/XCS...8-1&keywords=xcsource+kwh
(al hang ik daar niet mijn huis aan, chinese rommel)
Al is er wel verschil tussen designed in EU of ook in China.
13,1 kWp, Ecodan R32 7,5 , WTW ventilatie, Daikin FTXM35M(R) (5x), Doorstroomverwarmer, Douche WTW, Emco Novette Twin met LFP accu 51.2V 40Ah, Opel Vivaro DC L3H1 75kW (12-2022).
Toch heb ik een beter gevoel bij een Finder van 59 euro, dan met een XCsource van 15,88 euro, als ik met 7250 watt weer onder de douche sta.
Misschien brand dan die xcsource wel een gat in mijn meterkast deur met 2000 imp/kWh ledje...
like a laser...
[ Voor 24% gewijzigd door AUijtdehaag op 19-02-2017 17:12 ]
Ik heb hier ook zo'n goedkoop metertje in de meterkast, vooralsnog gaat het goed.AUijtdehaag schreef op zondag 19 februari 2017 @ 17:06:
@koevlaas2
Toch heb ik een beter gevoel bij een Finder van 59 euro, dan met een XCsource van 15,88 euro, als ik met 7250 watt weer onder de douche sta.
13,1 kWp, Ecodan R32 7,5 , WTW ventilatie, Daikin FTXM35M(R) (5x), Doorstroomverwarmer, Douche WTW, Emco Novette Twin met LFP accu 51.2V 40Ah, Opel Vivaro DC L3H1 75kW (12-2022).
Ik bedoel op de trukendoos van @knowboy. Bij een thermisch slechte woning is de WP een lapmiddel.Verwijderd schreef op zondag 19 februari 2017 @ 13:29:
[...]
Kun je die paradox nader uitleggen ? Ik dacht dat CO2 reductie een v.d. doelen was, dat doet een WP, liefst in combinatie met PV, ik begrijp je vlag/modderschuit opmerking niet. CO2. reductie bereikt, kostenverlaging bereikt, wat wil een mens nog meer ?
Een warmtepomp is in feite een energieterugwinner en geen duurzame energie. De WP haalt de warmte die door de wanden verloren gaat weer terug via de verdamper en zet deze met elektrische energie(Exergie) weer om in bruikbare warmte die weer vedwijnt door de wanden en zo herhaalt zich de cyclus. Bij een slechte woning veel meer dan een zeer goed geisoleerde woning; dus bij de woning beginnen en niet de WP aanschaffen en daarna nog eens naar de woning gaan kijken. Dat was dacht ik de essentie van het verhaal. Uiteraard is een WP veel rendabeler bij een thermisch slechte woning dan bij een super geisoleerde woning en dat is de tegenstrijdigheid in het verhaal. Als elektriciteit in de toekomst 100% CO2 vrij zou zijn kun je beter een WP doen dan isoleren.
Verwijderd
Het cirkeltje zonlicht -> PV -> WP -> goede/slechte isolatie -> energie weer naar buiten.Tomexergie schreef op zondag 19 februari 2017 @ 17:21:
[...]
Ik bedoel op de trukendoos van @knowboy. Bij een thermisch slechte woning is de WP een lapmiddel.
Een warmtepomp is in feite een energieterugwinner en geen duurzame energie. De WP haalt de warmte die door de wanden verloren gaat weer terug via de verdamper en zet deze met elektrische energie(Exergie) weer om in bruikbare warmte die weer vedwijnt door de wanden en zo herhaalt zich de cyclus. Bij een slechte woning veel meer dan een zeer goed geisoleerde woning; dus bij de woning beginnen en niet de WP aanschaffen en daarna nog eens naar de woning gaan kijken. Dat was dacht ik de essentie van het verhaal. Uiteraard is een WP veel rendabeler bij een thermisch slechte woning dan bij een super geisoleerde woning en dat is de tegenstrijdigheid in het verhaal. Als elektriciteit in de toekomst 100% CO2 vrij zou zijn kun je beter een WP doen dan isoleren.
Of er goede of slechte isolatie is of minder of meer PV lijkt mij geen principieel verschil.
Kosten/Mogelijkheden van isolatie<->pv lijken mij de enige criteria. Het een is in mijn ogen niet noodzakelijk beter/slechter dan het andere. Prijstechnisch, WP v.a. 700,00 excl installatie, lijkt een WP mij een solide oplossing, uiteraard bij aanwezigheid van een adequaat afgiftesysteem.
[ Voor 5% gewijzigd door Verwijderd op 19-02-2017 17:36 ]
De Panasonic WH-MDC05F3E5 is een V6 voor mijn huis. Het gevolg is dat ie stationair al 150KM/h rijdt. Langzamer krijg ik de Panasonic niet. Tja, dan toch maar die 600 kg stenen achterin de auto gooien om uhm wat rustiger te laten optrekken. En alsnog gaat ie volgas naar de 150 KM/h om er een paar minuten later voorbij het setpoint te klimmen. Gevolg is dat de V6 weer uitgeschakeld wordt tot de volgende cyclus die begint met volgas tot het setpoint, en niet veel later uitschakelt omdat Ta (weer) te hoog is....koevlaas2 schreef op zondag 19 februari 2017 @ 16:05:
[...]
Iets teveel is geen probleem, is ook lekker kijk maar naar je auto met een V6 erin haal je toch makkelijker in
Veel te veel teveel daarentegen is niet goed, veel en veel te weinig natuurlijk ook niet.
Zeker bij hogere aanvoertemperaturen is het minimum vermogen hoog van de Panasonic. Minimum frequentie boven de 20 Hz (33 Hz ofzo). Een groter buffer zit ik niet op de wachten gezien het tragere opwarmen en energieverlies. Ik ben ervan overtuigt dat het regelgedrag van LTV een stuk beter is dan met HTV.
Wat is jou delta t ?Dre schreef op zondag 19 februari 2017 @ 17:37:
[...]
De Panasonic WH-MDC05F3E5 is een V6 voor mijn huis. Het gevolg is dat ie stationair al 150KM/h rijdt. Langzamer krijg ik de Panasonic niet. Tja, dan toch maar die 600 kg stenen achterin de auto gooien om uhm wat rustiger te laten optrekken. En alsnog gaat ie volgas naar de 150 KM/h om er een paar minuten later voorbij het setpoint te klimmen. Gevolg is dat de V6 weer uitgeschakeld wordt tot de volgende cyclus die begint met volgas tot het setpoint, en niet veel later uitschakelt omdat Ta (weer) te hoog is....
Zeker bij hogere aanvoertemperaturen is het minimum vermogen hoog van de Panasonic. Minimum frequentie boven de 20 Hz (33 Hz ofzo). Een groter buffer zit ik niet op de wachten gezien het tragere opwarmen en energieverlies. Ik ben ervan overtuigt dat het regelgedrag van LTV een stuk beter is dan met HTV.
Als je pomp te hard staat met hele lage delta t als gevolg blijft hij inderdaad gas geven want hij wil naar 2-3 graden verschil
1 PVoutput . Dongen NB
Verwijderd
Gedrag v.d. WPDre schreef op zondag 19 februari 2017 @ 17:37:
[...]
De Panasonic WH-MDC05F3E5 is een V6 voor mijn huis. Het gevolg is dat ie stationair al 150KM/h rijdt. Langzamer krijg ik de Panasonic niet. Tja, dan toch maar die 600 kg stenen achterin de auto gooien om uhm wat rustiger te laten optrekken. En alsnog gaat ie volgas naar de 150 KM/h om er een paar minuten later voorbij het setpoint te klimmen. Gevolg is dat de V6 weer uitgeschakeld wordt tot de volgende cyclus die begint met volgas tot het setpoint, en niet veel later uitschakelt omdat Ta (weer) te hoog is....
Zeker bij hogere aanvoertemperaturen is het minimum vermogen hoog van de Panasonic. Minimum frequentie boven de 20 Hz (33 Hz ofzo). Een groter buffer zit ik niet op de wachten gezien het tragere opwarmen en energieverlies. Ik ben ervan overtuigt dat het regelgedrag van LTV een stuk beter is dan met HTV.
De combi WP/WAR/LTV-ZLTV
vs
WP/WAR-RuimteThermostaat/HTV
dat is denk het criterium om de WP betrouwbaar/gegarandeeerd te laten doen waar deze voor ontworpen is.
reneeke1970 schreef op zondag 19 februari 2017 @ 17:42:
[...]
Wat is jou delta t ?
Als je pomp te hard staat met hele lage delta t als gevolg blijft hij inderdaad gas geven want hij wil naar 2-3 graden verschil

Duidelijk is te zien dat de Panasonic nog even wat extra gas bijgeeft bij hogere aanvoertemperaturen.
P.S.
In dit voorbeeld doet ie het redelijk netjes met 800 Watt (e) vermogen in het begin, maar als je boven de 50°C Ta uitkomt is het een pendelmachine.
Onder de 45°C lijkt me essentieel. Ik vraag me dan ook af of die zogenaamde HTV warmtepompen van 65°C een acceptabel regelgedrag hebben.Verwijderd schreef op zondag 19 februari 2017 @ 17:43:
[...]
Gedrag v.d. WP
De combi WP/WAR/LTV-ZLTV
vs
WP/WAR-RuimteThermostaat/HTV
dat is denk het criterium om de WP betrouwbaar/gegarandeeerd te laten doen waar deze voor ontworpen is.
Verwijderd
Het is toch een inverter ? Zou je verwachten dat een lage stand ook mogelijk moet zijn.Dre schreef op zondag 19 februari 2017 @ 17:37:
[...]
De Panasonic WH-MDC05F3E5 is een V6 voor mijn huis. Het gevolg is dat ie stationair al 150KM/h rijdt. Langzamer krijg ik de Panasonic niet. Tja, dan toch maar die 600 kg stenen achterin de auto gooien om uhm wat rustiger te laten optrekken. En alsnog gaat ie volgas naar de 150 KM/h om er een paar minuten later voorbij het setpoint te klimmen. Gevolg is dat de V6 weer uitgeschakeld wordt tot de volgende cyclus die begint met volgas tot het setpoint, en niet veel later uitschakelt omdat Ta (weer) te hoog is....
Zeker bij hogere aanvoertemperaturen is het minimum vermogen hoog van de Panasonic. Minimum frequentie boven de 20 Hz (33 Hz ofzo). Een groter buffer zit ik niet op de wachten gezien het tragere opwarmen en energieverlies. Ik ben ervan overtuigt dat het regelgedrag van LTV een stuk beter is dan met HTV.
5 KW is niet veel vermogen, blijkbaar is je huis dan erg goed geïsoleerd.
De boel hier start in iedergeval rustig op om vervolgens best gas te geven als de vloerpomp erin komt.
13,1 kWp, Ecodan R32 7,5 , WTW ventilatie, Daikin FTXM35M(R) (5x), Doorstroomverwarmer, Douche WTW, Emco Novette Twin met LFP accu 51.2V 40Ah, Opel Vivaro DC L3H1 75kW (12-2022).
Verwijderd
Nog even naar die grafieken kijkend valt me wat anders op. In ruim 1.5uur tijd loopt de Ta ongeveer 5C op. 5C Ta variatie treedt bij mij op als de Tb 10C lager wordt. Dit suggereert dat je niet op WAR stookt.Dre schreef op zondag 19 februari 2017 @ 18:00:
[...]
[afbeelding]
Duidelijk is te zien dat de Panasonic nog even wat extra gas bijgeeft bij hogere aanvoertemperaturen.
P.S.
In dit voorbeeld doet ie het redelijk netjes met 800 Watt (e) vermogen in het begin, maar als je boven de 50°C Ta uitkomt is het een pendelmachine.
[...]
Onder de 45°C lijkt me essentieel. Ik vraag me dan ook af of die zogenaamde HTV warmtepompen van 65°C een acceptabel regelgedrag hebben.
Zeker weten inverter. Lage stand kan ie wel, maar doet ie te weinig. Kijk hier maar naar het verschil in stijgsnelheid van de temperatuur: (tussentijds heb ik nog een beetje zitten experimenteren met de stooklijn-shift, en misschien was dit ook zonder buffer)koevlaas2 schreef op zondag 19 februari 2017 @ 18:09:
[...]
Het is toch een inverter ? Zou je verwachten dat een lage stand ook mogelijk moet zijn.
5 KW is niet veel vermogen, blijkbaar is je huis dan erg goed geïsoleerd.
De boel hier start in iedergeval rustig op om vervolgens best gas te geven als de vloerpomp erin komt.

OF volgas OF laaglast (20 Hz in dit geval). Liever had ik gezien dat ie altijd op laaglast liep.
De Ta loopt op omdat het minimum vermogen van de Panasonic meer warmte afgeeft dan ik kwijt kan. Het lijkt erop dat de stooklijn +/- 5°C wordt aangehouden. Dus 5°C erboven is uit, en -5°C eronder is weer aan. Maar ook vaak gaat de Panasonic uit bij een kleinere overschrijding. Het is lastig te begrijpen hoe de Panasonic werkt.Verwijderd schreef op zondag 19 februari 2017 @ 18:22:
[...]
Nog even naar die grafieken kijkend valt me wat anders op. In ruim 1.5uur tijd loopt de Ta ongeveer 5C op. 5C Ta variatie treedt bij mij op als de Tb 10C lager wordt. Dit suggereert dat je niet op WAR stookt.
Mijn Panasonic kan alleen op WAR stoken, met optioneel een aan/uit thermostaat (noodstop) erop. Het is geen OpenTherm thermostaat die slim kan moduleren. Al hoewel dat ook geen garantie is op goed regelgedrag (zie Elga modulatie problemen).
[ Voor 5% gewijzigd door Dre op 19-02-2017 18:48 ]
Mijne gaat uit zodra hij twee graden te hoog aan tikt. Wat voor afgifte systeem heb jij omdat je zo makkelijk richting 50 graden gaat?Dre schreef op zondag 19 februari 2017 @ 18:37:
[...]
Zeker weten inverter. Lage stand kan ie wel, maar doet ie te weinig. Kijk hier maar naar het verschil in stijgsnelheid van de temperatuur: (tussentijds heb ik nog een beetje zitten experimenteren met de stooklijn-shift, en misschien was dit ook zonder buffer)
[afbeelding]
OF volgas OF laaglast (20 Hz in dit geval). Liever had ik gezien dat ie altijd op laaglast liep.
[...]
De Ta loopt op omdat het minimum vermogen van de Panasonic meer warmte afgeeft dan ik kwijt kan. Het lijkt erop dat de stooklijn +/- 5°C wordt aangehouden. Dus 5°C erboven is uit, en -5°C eronder is weer aan. Maar ook vaak gaat de Panasonic uit bij een kleinere overschrijding. Het is lastig te begrijpen hoe de Panasonic werkt.
Mijn Panasonic kan alleen op WAR stoken, met optioneel een aan/uit thermostaat (noodstop) erop. Het is geen OpenTherm thermostaat die slim kan moduleren. Al hoewel dat ook geen garantie is op goed regelgedrag (zie Elga modulatie problemen).
1 PVoutput . Dongen NB
Verwijderd
Ik heb dezelfde Panasonic en zie dat gedrag niet, uitsluitend WAR en 24h stoken en Ta < 35C zorgt bij mij in ieder geval, met de ondertussen redelijk correcte stooklijn, voor een zeer gelijkmatige Ta. Wat is trouwens bij benadering de waterinhoud van je afgiftesysteem ?Dre schreef op zondag 19 februari 2017 @ 18:37:
[...]
Zeker weten inverter. Lage stand kan ie wel, maar doet ie te weinig. Kijk hier maar naar het verschil in stijgsnelheid van de temperatuur: (tussentijds heb ik nog een beetje zitten experimenteren met de stooklijn-shift, en misschien was dit ook zonder buffer)
[afbeelding]
OF volgas OF laaglast (20 Hz in dit geval). Liever had ik gezien dat ie altijd op laaglast liep.
[...]
De Ta loopt op omdat het minimum vermogen van de Panasonic meer warmte afgeeft dan ik kwijt kan. Het lijkt erop dat de stooklijn +/- 5°C wordt aangehouden. Dus 5°C erboven is uit, en -5°C eronder is weer aan. Maar ook vaak gaat de Panasonic uit bij een kleinere overschrijding. Het is lastig te begrijpen hoe de Panasonic werkt.
Mijn Panasonic kan alleen op WAR stoken, met optioneel een aan/uit thermostaat (noodstop) erop. Het is geen OpenTherm thermostaat die slim kan moduleren. Al hoewel dat ook geen garantie is op goed regelgedrag (zie Elga modulatie problemen).
Dit topic is gesloten.
![]()
Let op: gaat je post over warmtepompen? Post dan vooral verder!