We hebben voor de 2e keer een projectmatig nieuwbouw huis gekocht. De 1e keer (2014, crisis tijd) was er standaard een minderwerk als de buren ook een aanbouw optie kozen, dit was iets tussen de €1500 en €2000 uit mijn hoofd.
Deze keer wordt hier geheimzinnig over gedaan en moesten we er specifiek naar vragen. Nu staat het ook niet op de meer/minderwerk offerte vermeld dus ik ga hier nogmaals naar vragen.
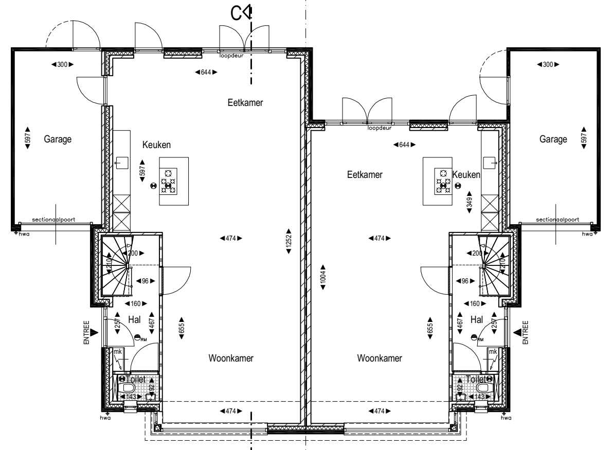
Onderstaand de optie voor de aanbouw van 2,40. Links de optie en recht de standaard woning (is een 2-onder-1 kap).
Wat scheelt zoiets nu voor de aannemer aan materiaal en arbeid om de 2-onder-1 kap te maken zoals in onderstaand plaatje, of om beide woningen van een aanbouw te voorzien en 1 rechte muur te kunnen maken. Waar zit de besparing voor de aannemer als beide woningen een aanbouw nemen?
Want gezien de logica: huizen duurder, want materiaal duurder, want veel meer vraag. Als materiaal duurder is (aanbouw kost ook €18.000), zou ik op zijn minst net zo'n bedrag terugverwachten als de besparing voornamelijk in materiaal zit.
Deze keer wordt hier geheimzinnig over gedaan en moesten we er specifiek naar vragen. Nu staat het ook niet op de meer/minderwerk offerte vermeld dus ik ga hier nogmaals naar vragen.
Onderstaand de optie voor de aanbouw van 2,40. Links de optie en recht de standaard woning (is een 2-onder-1 kap).
Wat scheelt zoiets nu voor de aannemer aan materiaal en arbeid om de 2-onder-1 kap te maken zoals in onderstaand plaatje, of om beide woningen van een aanbouw te voorzien en 1 rechte muur te kunnen maken. Waar zit de besparing voor de aannemer als beide woningen een aanbouw nemen?
Want gezien de logica: huizen duurder, want materiaal duurder, want veel meer vraag. Als materiaal duurder is (aanbouw kost ook €18.000), zou ik op zijn minst net zo'n bedrag terugverwachten als de besparing voornamelijk in materiaal zit.


