Hsb-3 schreef op woensdag 15 augustus 2018 @ 08:23:
@
kever678 ik denk dat het handig is om te weten waar je het precies voor gaat gebruiken. Wil je je auto echt in de garage zetten, of wordt dit een fietsen-/gereedschaphok? Of opbergrumte?
En de bijkeuken, je schrijft dat dit een soort tweede hal wordt, en je daar je kapstok ed inzet en toegang tot het huis. Is dat alles? Of waarvoor nog meer?
Wil je de hal dan helemaal niet meer gebruiken om het huis binnen te komen? Ook niet als je thuis komt na het werk? Waarom is dat? Hoe zie je de route dan vanuit de voortuin voor je?
De garage wordt een fietsen/gereedschaphok. Auto staat buiten en komt niet in de garage te staan. Ben dit gewend van 'vroeger' en mis het in mijn huidige woning: iedereen via de garage -> bijkeuken de woning in. Alleen 'onbekenden' komen via de voordeur naar binnen. Scheelt een hoop zooi in huis, helemaal met jonge kinderen.
Route vanaf de oprit: garage -> bijkeuken (schoenen en jas uit) en dan de woning binnen

D.deJong schreef op woensdag 15 augustus 2018 @ 10:26:
Optie 1 en dan de tussenwand als geïsoleerde wand, de wand tussen garage en huis is vast al geïsoleerd en de deur van keuken naar bijkeuken in de kwaliteit van een buitendeur. Een bijkeuken mag s’winters best wat kouder zijn als de rest van het huis maar ik zou daar wel een kleine radiator hangen.
Wordt het dak van de garage wel geïsoleerd door de aannemer? Wat voor deur komt er in de garage? Als het mogelijk is zou ik daar een gewone deur met dubbel glas nemen.
Garage is standaard helemaal niet geisoleerd. De deur is een 'standaard' garage deur: zit er nog wel aan te denken om deze te vervangen door een ander (mooier) model.
Jheroun schreef op woensdag 15 augustus 2018 @ 10:49:
@
kever678
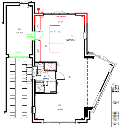
Ik zou sowieso die garage helemaal isoleren, dan hou je meer opties voor het gebruik over. Wij gaan ook iets dergelijks doen, onze woning heeft standaard die garage al, die standaard geïsoleerd is. Een deur tussen garage en woning is ook een standaardoptie. De auto gaat die garage nooit zien dus wij gaan van de garage de standaardentree/plek voor fietsen, vieze schoenen en onze eigen kapstok maken. De rest van die ruimte wordt berging/keukenvoorraad. Plaatje:
[afbeelding]
Wij gaan geen radiator oid in de garage plaatsen, koud is juist prettig voor een voorraadkamer en onze kopersbegeleider betwijfelde of het in een geïsoleerde garage ooit zou gaan vriezen. Daarnaast gaan wij er een paar wijnkoelkasten neerzetten, die genereren ook warmte

.
Ik zou persoonlijk liever minder maar grotere ruimtes hebben dan meer maar kleinere, maar dat hangt van je plannen af. Bij jouw schetsen vraag ik me wel af of die deuren allemaal zo kunnen. Wij wilden bv in eerste instantie de deur tussen garage en woning in de uitbouw hebben, die is 1m20, maar daar kon ivm constructieredenen de deur dus niet in gevrot worden. In het nieuwe ontwerp vinden wij overigens die deur tegenover dat raam aan de andere kant ook fraaier dan een deur die in een hoek zit.
Dit is inderdaad een van de opties waar we nu nog aan denken. Er zal wel een binnenmuur komen om enigzins onderscheid te maken tussen de garage en bijkeuken: wil in de bijkeuken de muren en vloer wat netter afwerken dan in de garage.
Geen idee of de deur in de aanbouw kan: dit is allemaal op voorbereiding van het gesprek met het bouwbedrijf. Hoop daar beslagen ten ijs te komen.
drfrisbee schreef op woensdag 15 augustus 2018 @ 16:02:
[...]
Ja, zoiets idd. De route bijkeuken als standaardroute is dan ook logischer en huis in vanuit de tuin via garage bij voor als je vies bent en door de keuken als je buiten eet oid. Je kan dan nog wat meer spelen met scheidingswand en deuren hal/bijkeuken en een keuken is gewoon de volgende tekenoefening

Zowel deze als 'optie 1' (bijkeuken in garage) zijn de mogelijkheden die nog over zijn. Denk dat we beide opties maar bespreken en kijken wat uiteindelijk het beste eruitkomt. Zal ze sowieso allebei nog eens (netjes) uitwerken en hierbij ook kijken naar o.a. de keukenopstelling.
Lastige is ook de budgettering.. we willen voor de 'kale bouw' graag onder de NHG grens blijven. (265k)
Optie 1: garage isoleren + bijkeuken in garage realiseren:
- Woning: €225000
- Garage: €19945
- Aanbouw 1,2m: €8337
- Isoleren garage + plaatsen deur naar woning: €7000
Totaal: €260282
Optie 2: garage (niet geïsoleerd), aanbouw van 2,4 meter en hier de bijkeuken in realiseren:
- Woning: €225000
- Garage: €19945
- Aanbouw 2,4m: €15700
Totaal: €260645 (komt deur van garage -> woning nog bij)
Wordt erg krap om dit binnen de €265k te houden voor de NHG grens.. loze leidingen/verplaatsen schakelaars etc etc. komt hier nog bij..