Wij hebben last van een vrij vochtige kruipruimte, daarom ben ik van plan om noppenfolie en bodemfolie te leggen alvorens ik de kruipruimte verder ga isoleren.
Mij lijkt deze noppenfolie geschikt:
https://www.noppenfolie.n...-grote-nop-15-x-50-m.html
en deze PE-folie:
https://www.epdmtotaal.nl/dampremmende-pe-folie-25x6-mtr
Deze folie is dampremmend, is dit geschikt?
Of kan ik beter een rol bodemfolie nemen?
https://www.luchtdichtsho...odemfolie-4x25m-030mm-56/
Voor het dichtplakken van de bodemfolie wil ik deze tape gaan gebruiken
https://shop.tonzon.nl/we...aste-tape-voor-bodemfolie
Voor de montage lijken mij pluggen van tonzon makkelijk
https://shop.tonzon.nl/webshop/foliepluggen-200-st
Moet de laag noppenfolie ook waterdicht worden geplakt of hoeft deze enkel een beetje te overlappen, en moet de noppenfolie ook langs de fundering worden vastgezet of hoeft dit enkel met de bodemfolie te gebeuren?
14x Canadian Solar CS6K-275 Black + SE3500HD PVOutput 3x Solar Frontier SF-160S + Soladin 600 PVOutput
waarom noppenfolie ? dampremmend is meer bedoelt voor "wanden" je wilt dampdicht hebben. op de bodemweasel schreef op zondag 24 februari 2019 @ 21:12:
Hallo
Wij hebben last van een vrij vochtige kruipruimte, daarom ben ik van plan om noppenfolie en bodemfolie te leggen alvorens ik de kruipruimte verder ga isoleren.
Mij lijkt deze noppenfolie geschikt:
https://www.noppenfolie.n...-grote-nop-15-x-50-m.html
en deze PE-folie:
https://www.epdmtotaal.nl/dampremmende-pe-folie-25x6-mtr
Deze folie is dampremmend, is dit geschikt?
Of kan ik beter een rol bodemfolie nemen?
https://www.luchtdichtsho...odemfolie-4x25m-030mm-56/
Voor het dichtplakken van de bodemfolie wil ik deze tape gaan gebruiken
https://shop.tonzon.nl/we...aste-tape-voor-bodemfolie
Voor de montage lijken mij pluggen van tonzon makkelijk
https://shop.tonzon.nl/webshop/foliepluggen-200-st
Moet de laag noppenfolie ook waterdicht worden geplakt of hoeft deze enkel een beetje te overlappen, en moet de noppenfolie ook langs de fundering worden vastgezet of hoeft dit enkel met de bodemfolie te gebeuren?
en tonzon = duur denk ik misschien bij bv hornbach eens binnenstappen of je voor minder het zelfde artikel kan krijgen ..
Tja vanalles
Heb je een weblink van wat je gaat gebruiken of hebt gebruikt? Ben ook aan het rondkijken.Cpt.Chaos schreef op donderdag 24 januari 2019 @ 03:27:Ik wil graag aluminium noppenfolie onder de vloer bevestigen.
Volgens deze site kan PE folie wel gebruikt worden als bodemfolie.vso schreef op zondag 24 februari 2019 @ 21:29:
[...]
waarom noppenfolie ? dampremmend is meer bedoelt voor "wanden" je wilt dampdicht hebben. op de bodem
en tonzon = duur denk ik misschien bij bv hornbach eens binnenstappen of je voor minder het zelfde artikel kan krijgen ..
De tonzon montagepluggen lijken me handig werken, ik heb bij een bouwmarkt nog nooit zoiets zien liggen.
@Chris12 Ik zag dat jij dezelfde PE folie hebt gebruikt, hoe bevalt deze, is de folie goed dampdicht?
14x Canadian Solar CS6K-275 Black + SE3500HD PVOutput 3x Solar Frontier SF-160S + Soladin 600 PVOutput
Zoek op isolatieplug ik vond er een aantal ..weasel schreef op zondag 24 februari 2019 @ 23:48:
[...]
Volgens deze site kan PE folie wel gebruikt worden als bodemfolie.
De tonzon montagepluggen lijken me handig werken, ik heb bij een bouwmarkt nog nooit zoiets zien liggen.
@Chris12 Ik zag dat jij dezelfde PE folie hebt gebruikt, hoe bevalt deze, is de folie goed dampdicht?
Je hebt , dampopen,dampremmend, en dampdicht folie .. en niks is 100% waterdicht (technisch gezien) maar het zegt wel iets over de vocht doorlatendheid.. en omdat je dampremmend zei leek het me wel handig erop te wijzen
Tja vanalles
van noppenfolie-online.nl of noppenfolie.nl, enkel gelamineerd met alu zijde naar de vloer toe, en dan vastnieten aan het eps, alleen weet ik niet of dat houdt, mensen die geprobeerd hebben ondersteboven wat folie op eps te tacken? Lange nietjes met een goede tacker dan piep je dat er zo in, maar of het houdt? Een klein beetje lucht tussen het EPS en de folie, minder dan 3cm dat wel.route99 schreef op zondag 24 februari 2019 @ 22:32:
[...]
Heb je een weblink van wat je gaat gebruiken of hebt gebruikt? Ben ook aan het rondkijken.
En dan rondom aftapen op de fundering en de banen onderling ook.
Maar het belangrijkste dus, houden nietjes in eps? Heb nog tijd zat om dat te bedenken omdat de kruipruimte nog een zwembad is. Zie er dus wel vanaf om op de bodem folie te leggen, als het van de zomer droog is dan onderkant vloer en klaar.
Tav de afstand adviseren ze meestal zo'n 2 cm om de reflectie goed te laten zijn. Je maakt dus een nieuwe spouw erbij van stilstaande lucht. Dat geldt eigenlijk dus voor al die folies met Alu als reflectie principe.
Als je die spouw met bolletjes folie nog een keer extra stil laat staan bereik je imho een nog hogere isolatie waarde. Want er hoeft anders binnen die spouw maar een kleine delta T zijn of je krijgt convectie en daarmee minder isolatie. Dat is vermoedelijk ook de reden dat je de naden en randen zo verdomd goed moet aftapen.
Bij de Tonzon kussens komt al helemaal erg precies.
https://publicaties.dsp-g...d_57-1992.pdf&dir=rapport
Dit blad komt uit 1992... toen maakte ze al reclame met "isolatie door reflectie", p29. Alkreflex is echter een stuk duurder dan de noppenfolie die jij gekocht hebt.
Zal toch bij hen eens een spec blad aanvragen of vond jij die net zo gedetailleerd als van Alkreflex? Heb je een link? Kon hem nog niet zelf vinden.
[ Voor 18% gewijzigd door route99 op 25-02-2019 04:33 ]
Of dit strak op het EPS?
Waar ik zelf tegenop zie op de rug liggend onder de vloer.....: een stukje van bijv 30x50 cm even plakken als je normaal in huis staat... van dat spul lijkt met te doen maar hoe handig is het om lange banen netjes te plakken zonder dat het "onderweg" ergens tegen aanplakt waar je het juist niet wilt hebben....op de rug liggend onder de vloer..? Wat is dan een handige aanbreng strategie? Anders heb je vermoedelijk veel verfrommeld afval van dit zelfklevende folie... das ook niet handig....
Het grootste probleem is de "kracht" om de kruipruimte in te gaan, en het voorwerk te doen, als 1maal de folie op de bodem ligt ben je al van het ergste af.route99 schreef op maandag 25 februari 2019 @ 06:08:
Die zelfklevende folie heb ik ook naar gekeken. Heeft die een transparante coating over de Alu heen ter bescherming tegen aantasting onder de vloer?
Waar ik zelf tegenop zie op de rug liggend onder de vloer.....: een stukje van bijv 30x50 cm even plakken als je normaal in huis staat... van dat spul lijkt met te doen maar hoe handig is het om lange banen netjes te plakken zonder dat het "onderweg" ergens tegen aanplakt waar je het juist niet wilt hebben....op de rug liggend onder de vloer..? Wat is dan een handige aanbreng strategie? Anders heb je vermoedelijk veel verfrommeld afval van dit zelfklevende folie... das ook niet handig....
je kan een plastic zak ofzo gebruiken om je rommel gaande weg te verzamelen.
de folie doe je vanaf het gat naar achteren, en je isolatie van achteren naar voren.
Zolang je onthoud dat je na je hele "actie" van de kruipruimte matenloos veel leefplezier gaat ondervinden zowel financieel als in comfort. maakt het een stuk dragelijker.
Tja vanalles
Dit alles omdat we graag willen investeren in vloerisolatie, maar de kruipruimte helaas niet kunne bereiken.
Wellicht kan je de kruipluik ergens anders aanbrengen, maar dat hangt af van hoe/wat de constructie is. Een kant en klare nieuw kruipluik met frame is niet de prijs denk ik .daanNL schreef op maandag 25 februari 2019 @ 21:27:
Wij hebben een houten vloer, zowel de draagconstructie als de leefvooer is van hout. Destijds blijkt de vloer over de kruipluiken heen gelegd te zijn. Heeft iemand ervaring met een bedrijf om alsnog kruipluiken (mooi afgewerkt) in eenhestaande vloer aan te brengen? We ontkomen er niet aan dat de luiken in het zicht komen te zitten.
Dit alles omdat we graag willen investeren in vloerisolatie, maar de kruipruimte helaas niet kunne bereiken.
Je kan ook een USB (otg?) endoscoop voor paar euro kopen mocht je "lukraak" een gat willen boren voor het nieuwe kruipluik.
Ik zou eerst kijken of je de huidige vloer makkelijk kan demonteren & eventueel makkelijk bij een de gewenste locatie(s) kan komen. Men start/stopt vaak in een hoek
Tja vanalles
Ik had het zelfde en ben als volgt te werk gegaan:daanNL schreef op maandag 25 februari 2019 @ 21:27:
Wij hebben een houten vloer, zowel de draagconstructie als de leefvooer is van hout. Destijds blijkt de vloer over de kruipluiken heen gelegd te zijn. Heeft iemand ervaring met een bedrijf om alsnog kruipluiken (mooi afgewerkt) in eenhestaande vloer aan te brengen? We ontkomen er niet aan dat de luiken in het zicht komen te zitten.
Dit alles omdat we graag willen investeren in vloerisolatie, maar de kruipruimte helaas niet kunne bereiken.
- bouwtekening (bekeken van jaren 30 huis)
- ingeschat waar de dwarsbalken lopen
- door middel van kloppen op de vloer gecontreleerd of het correct was.
- aan beide kanten voor de zekerheid 10cm oversized het parket uitgezaagd
- egalisatiemateriaal (soort zachtboard) weggesneden
- ondervloer uitgezaagd, midden op de balk
Aan de spijkers is te zien waar de balk loopt, ik heb net naast de spijkers gezaagd.
Ik denk dat elke parketlegger of timmerman dit kan.
Gelukkig bleek mijn inschatting redelijk te kloppen
Aiaiai... zeker met AI gedaan
Nu kruip ik er een kwartier nadat ze weg zijn doorheen en zie ik dat er 1 stuk alweer is losgelaten... grrr...
Even bellen en hopen dat ze het snel oplossen.
Ook hebben ze de ventilatie kanaaltjes (4) die vorige week zijn aangebracht dichtgespoten...
Toch altijd even goed checken, ook al wordt er netjes gewerkt en worden er geen bijzonderheden aangegeven...
[ Voor 18% gewijzigd door pentaw1nz op 27-02-2019 12:47 ]
PV: 13 x LG Solar 320N1K-A5 - NeON2 / WP: Adlar Aurora II 6kw / WPB: Atlantic Explorer 200l / jaren 70 woning gasloos sinds 10-2024 / Peblar business laadpaal / 25kw plugin hybride
Ja dit werkt prima. Kruipruimte is kurk droog geworden, geen bedompte lucht meer en temperatuur ruim 5gr lager en de vochtigheidsgraad rond de 60-70% ipv boven de 90% (na pir platen te hebben bevestigd).@Chris12 Ik zag dat jij dezelfde PE folie hebt gebruikt, hoe bevalt deze, is de folie goed dampdicht?
Ik heb de folie tegen de muur aan gezet middels stenen om de meter, en de folie circa 20-30cm omhoog dubbel gevouwen.
In een eerdere post zei je dat de beginsituatie als volgt was:Chris12 schreef op woensdag 27 februari 2019 @ 18:01:
[...]
Ja dit werkt prima. Kruipruimte is kurk droog geworden, geen bedompte lucht meer en temperatuur ruim 5gr lager en de vochtigheidsgraad rond de 60-70% ipv boven de 90% (na pir platen te hebben bevestigd).
Ik heb de folie tegen de muur aan gezet middels stenen om de meter, en de folie circa 20-30cm omhoog dubbel gevouwen.
Ik neem aan dat die 5-10cm grondwater er nog wel is, maar dat je daar nu helemaal geen last meer van hebt nu het geheel is afgesloten met bubbelfolie en dikke folie? Of is het grondwater ook echt verdwenen?Het eerste wat ik wil gaan doen is de bodem bedekken met folie, zodat het wat schoner werkt (bodem is constant nat, en er staat meestal 5-10cm grondwater in gedeelte van de kruipruimte), en dat dit ook gaat helpen om de luchtvochtigheid te verlagen
Hoeveel hoogte heb je nu trouwens over in je kruipruimte, ik kan dit niet goed zien op je foto's (waarvoor bedankt).
[ Voor 5% gewijzigd door Wolly op 27-02-2019 18:13 ]
Hoogte is 50-60cm na vastlijnen vd pir platen.
ligt het nou aan mij of is de dikte van de isolatie niet heel dun? als je nu al wat leidingen ziet?Nieksiero schreef op woensdag 27 februari 2019 @ 12:46:
Na een ochtend werk zijn de heren van Comfort Company net weer weg. Ze hebben de vloer geïsoleerd met jetspray. Netjes gewerkt en nadien ook alles netjes opgeruimd.
Nu kruip ik er een kwartier nadat ze weg zijn doorheen en zie ik dat er 1 stuk alweer is losgelaten... grrr...
Even bellen en hopen dat ze het snel oplossen.
Ook hebben ze de ventilatie kanaaltjes (4) die vorige week zijn aangebracht dichtgespoten...
Toch altijd even goed checken, ook al wordt er netjes gewerkt en worden er geen bijzonderheden aangegeven...
[Afbeelding]
Kruipruimteisolatie is vervelend, dat je deze zelf nog moet checken. Kan moeilijk met hun mee om in de gaten te houden...
One thing's certain: the iPad seriously increases toilet time.. tibber uitnodigingscode: bqufpqmp
Niet heel dun of wel heel dun?kmf schreef op donderdag 28 februari 2019 @ 13:44:
[...]
ligt het nou aan mij of is de dikte van de isolatie niet heel dun? als je nu al wat leidingen ziet?
Kruipruimteisolatie is vervelend, dat je deze zelf nog moet checken. Kan moeilijk met hun mee om in de gaten te houden...
Foto die ik had geplaatst is het deel waar de isolatie er dus eer vanaf is gevallen. De dikte is overal zo'n 15-18 cm gok ik. Dat geeft een Rc van ruim 3,5. Voor ons jaren 70 huis prima.
Inderdaad vrij klote dat je dit soort klussen moet controleren. Nu kan ik er hurkend doorheen, maar er zijn genoeg vloeren waar je jezelf onderdoor moet trekken al dan niet door de modder. Maar goed, als ik niet even zo nieuwsgierig was om te controleren had ik ook nooit gezien dat 1 gedeelte is losgelaten.
PV: 13 x LG Solar 320N1K-A5 - NeON2 / WP: Adlar Aurora II 6kw / WPB: Atlantic Explorer 200l / jaren 70 woning gasloos sinds 10-2024 / Peblar business laadpaal / 25kw plugin hybride
ziet er inderdaad erg dun uit...kmf schreef op donderdag 28 februari 2019 @ 13:44:
[...]
ligt het nou aan mij of is de dikte van de isolatie niet heel dun? als je nu al wat leidingen ziet?
Kruipruimteisolatie is vervelend, dat je deze zelf nog moet checken. Kan moeilijk met hun mee om in de gaten te houden...
Dan maar even een foto vanuit het kruipluik. Volgens mij een prima dikte zo. Eerst had ik om de maximale dikte van 21 cm gevraagd, maar gezien de hechting hebben ze 15 cm aangebracht.

Nog een vraag,
Zijn er hier mensen die ook de jetspray hebben laten aanbrengen en mij kunnen vertellen wat ik het beste kan doen met de zooi die er ligt? Omdat er ergens iets is afgevallen ligt er een bultje met de wol. verspreid over de vloer van de kruipruimte (zandgrond) ook natuurlijk.
Kan ik dit laten liggen? Ook omdat er misschien vocht intrekt o.i.d?
Zo ja, dan verspreid ik het denk ik gelijkmatig over de bodem. Zo nee, dan krijg ik een afvalcontainer vol met wol als ik alles weg haal.
Ervaringen?
[ Voor 4% gewijzigd door pentaw1nz op 01-03-2019 16:24 ]
PV: 13 x LG Solar 320N1K-A5 - NeON2 / WP: Adlar Aurora II 6kw / WPB: Atlantic Explorer 200l / jaren 70 woning gasloos sinds 10-2024 / Peblar business laadpaal / 25kw plugin hybride
Ik mag aannemen dat ze dat lekker zelf opruimen? Ze laten die kruipruimte toch achter hoe ze het aantroffen maar dan met isolatie aan de vloer vast.Nieksiero schreef op vrijdag 1 maart 2019 @ 16:22:
[...]
Dan maar even een foto vanuit het kruipluik. Volgens mij een prima dikte zo. Eerst had ik om de maximale dikte van 21 cm gevraagd, maar gezien de hechting hebben ze 15 cm aangebracht.
[Afbeelding]
Nog een vraag,
Zijn er hier mensen die ook de jetspray hebben laten aanbrengen en mij kunnen vertellen wat ik het beste kan doen met de zooi die er ligt? Omdat er ergens iets is afgevallen ligt er een bultje met de wol. verspreid over de vloer van de kruipruimte (zandgrond) ook natuurlijk.
Kan ik dit laten liggen? Ook omdat er misschien vocht intrekt o.i.d?
Zo ja, dan verspreid ik het denk ik gelijkmatig over de bodem. Zo nee, dan krijg ik een afvalcontainer vol met wol als ik alles weg haal.
Ervaringen?
[Afbeelding]
Veroordeel niet, verwonder u slechts
In je eerdere post zei je dat ze alles netjes hadden opgeruimdNieksiero schreef op vrijdag 1 maart 2019 @ 16:22:
[...]
Dan maar even een foto vanuit het kruipluik. Volgens mij een prima dikte zo. Eerst had ik om de maximale dikte van 21 cm gevraagd, maar gezien de hechting hebben ze 15 cm aangebracht.
[Afbeelding]
Nog een vraag,
Zijn er hier mensen die ook de jetspray hebben laten aanbrengen en mij kunnen vertellen wat ik het beste kan doen met de zooi die er ligt? Omdat er ergens iets is afgevallen ligt er een bultje met de wol. verspreid over de vloer van de kruipruimte (zandgrond) ook natuurlijk.
Kan ik dit laten liggen? Ook omdat er misschien vocht intrekt o.i.d?
Zo ja, dan verspreid ik het denk ik gelijkmatig over de bodem. Zo nee, dan krijg ik een afvalcontainer vol met wol als ik alles weg haal.
Ervaringen?
[Afbeelding]
Ik weet in elk geval welk bedrijf ik niet hoef te vragen voor Jetspray.
Odroid onderdelen over: Odroid H3 Type 1 behuizing, H4 Type 4, voedingsdapter 19V/7A. Stuur me een DM voor interesse.
Wolly
Jij doet dat toch gewoon zelfIk weet in elk geval welk bedrijf ik niet hoef te vragen voor Jetspray.
Maar OMG wat een bende hebben ze er van gemaakt
Jemig, had je ook om bodemisolatie gevraagd of zo?Nieksiero schreef op vrijdag 1 maart 2019 @ 16:22:
[...]
Dan maar even een foto vanuit het kruipluik. Volgens mij een prima dikte zo. Eerst had ik om de maximale dikte van 21 cm gevraagd, maar gezien de hechting hebben ze 15 cm aangebracht.
[Afbeelding]
Nog een vraag,
Zijn er hier mensen die ook de jetspray hebben laten aanbrengen en mij kunnen vertellen wat ik het beste kan doen met de zooi die er ligt? Omdat er ergens iets is afgevallen ligt er een bultje met de wol. verspreid over de vloer van de kruipruimte (zandgrond) ook natuurlijk.
Kan ik dit laten liggen? Ook omdat er misschien vocht intrekt o.i.d?
Zo ja, dan verspreid ik het denk ik gelijkmatig over de bodem. Zo nee, dan krijg ik een afvalcontainer vol met wol als ik alles weg haal.
Ervaringen?
[Afbeelding]
Hoe komt al dat spul op de grond? is dat er af gevallen (slecht) of is deze bij het spuiten de grond gekomen (ook slecht, want je betaalt voor volume waar je niks aan heb)
Ik zou het gewoon laten liggen, heb je een beetje bodemisolatie. Veel kwaad kan het in ieder geval niet. ziet er alleen absoluut niet netjes uit.
One thing's certain: the iPad seriously increases toilet time.. tibber uitnodigingscode: bqufpqmp
Bedankt voor de fotos, ziet er al stuk beter/dikker uit in vergelijking met eerdere foto.Nieksiero schreef op vrijdag 1 maart 2019 @ 16:22:
[...]
Dan maar even een foto vanuit het kruipluik. Volgens mij een prima dikte zo. Eerst had ik om de maximale dikte van 21 cm gevraagd, maar gezien de hechting hebben ze 15 cm aangebracht.
[Afbeelding]
Nog een vraag,
Zijn er hier mensen die ook de jetspray hebben laten aanbrengen en mij kunnen vertellen wat ik het beste kan doen met de zooi die er ligt? Omdat er ergens iets is afgevallen ligt er een bultje met de wol. verspreid over de vloer van de kruipruimte (zandgrond) ook natuurlijk.
Kan ik dit laten liggen? Ook omdat er misschien vocht intrekt o.i.d?
Zo ja, dan verspreid ik het denk ik gelijkmatig over de bodem. Zo nee, dan krijg ik een afvalcontainer vol met wol als ik alles weg haal.
Ervaringen?
[Afbeelding]
Ik kon ook weinig fotos op internet vinden hoe een kruipruimte eruit ziet na isolatie met jetspray.
Bedankt hiervoor, dit geeft een goed beeld.
Verschil van 15cm ipv de eerdere 21 cm scheelt je ook in isolatiewaarden.
Hebben ze ook gezegd hoeveel het bij 21cm zou zijn en hoeveel het nu ongeveer zou zijn ?
Word de jetspray ook hard of blijft dit zacht ?
Wat is de reden dat je voor jetspray gekozen hebt?
Voordat iedereen dit soort reacties plaatst : ik vraag bewust naast ervaringen van mensen en wat zij met het overschot hebben gedaan.Wolly schreef op vrijdag 1 maart 2019 @ 16:55:
[...]
In je eerdere post zei je dat ze alles netjes hadden opgeruimdHet had wel handig geweest als de grond schoon was gemaakt, dan kan je het ook zien als er weer ergens stukken loslaten wat blijkbaar al het geval is.
Ik weet in elk geval welk bedrijf ik niet hoef te vragen voor Jetspray.
Er is altijd verspilling bij dit soort werkzaamheden en geen enkele partij gaat na afloop je kruipruimte vegen. Kijk maar eens wat videos van jetspray. Sommige kruipruimtes zijn amper begaanbaar.
Er ligt overigens ook bouwpuin onder, dus het lijkt meer dan het is.
Op de foto is inderdaad een stuk dat is losgelaten en ze later hebben aangevuld.
Ik ga het misschien dan wel gelijkmatig verspreiden over de bodem.
Ik betaal overigens ook niet voor "volume" maar gewoon voor de m2. Dat het er af valt kost mij niets meer of minder.
Rc is nu 15cm 3.5 ipv 4.7 bij 21 cm. Maar ik heb nu ook wel meer dan 15 cm.
Prijs per m2 is overigens grofweg zo'n 40 euro
[ Voor 26% gewijzigd door pentaw1nz op 01-03-2019 21:53 ]
PV: 13 x LG Solar 320N1K-A5 - NeON2 / WP: Adlar Aurora II 6kw / WPB: Atlantic Explorer 200l / jaren 70 woning gasloos sinds 10-2024 / Peblar business laadpaal / 25kw plugin hybride
Na vloerisolatie nu ook bodemisolatie Ik heb alles zoveel mogelijk gelijkmatig verspreid. 1 compartiment lag gewoon erg veel omdat er daar een gedeelte van was afgevallen. Dat komen ze later verder uitsteken, opnieuw primer aanbrengen en dan weer aanvullen.
2e compartiment in de kruipruimte ligt aanzienlijk minder, maar vind het wel prima zo. de hopen zand en andere rommel zag er ook niet uit. Wellicht dat dit nog iets doet met het spul op de bodem, en anders kan ik er lekker op de blote voetjes over heen als het droog is. Lekker zacht.
[ Voor 7% gewijzigd door pentaw1nz op 02-03-2019 13:22 ]
PV: 13 x LG Solar 320N1K-A5 - NeON2 / WP: Adlar Aurora II 6kw / WPB: Atlantic Explorer 200l / jaren 70 woning gasloos sinds 10-2024 / Peblar business laadpaal / 25kw plugin hybride
Vraag: als je platen monteert dan is de kwaliteit makkelijk te meten, welke dikte is er gebruikt, naden goed dichtgemaakt, e.d.
Hoe is het voor jetspray vastgelegd wat de kwaliteitsnormen zijn?
Hopelijk beter dan alleen "op het oog" en/of "even de duimstok ernaast"? Hoe controleer je dat ze een homogeen verdeelde laag gespoten hebben, want dat bepaald in sterke mate de isolatiewaarde.
Hoe meten zij immers ook dat ze het zelf goed doen?
De meeste zekerheid heb je als je het zelf doet. Met PIR platen weet je gewoon wat je aanbrengt en hoe dik. Ik had alleen geen zin om in de kruipruimte te liggen knoeien en alles uitsnijden rondom tijdingen, riolering, kabels , etc etc etc. Toch 50 jaar ellende in de kruipruimte.route99 schreef op zaterdag 2 maart 2019 @ 17:29:
Apart spul met die jetspray...had het nog niet eerder bekeken.
Vraag: als je platen monteert dan is de kwaliteit makkelijk te meten, welke dikte is er gebruikt, naden goed dichtgemaakt, e.d.
Hoe is het voor jetspray vastgelegd wat de kwaliteitsnormen zijn?
Hopelijk beter dan alleen "op het oog" en/of "even de duimstok ernaast"? Hoe controleer je dat ze een homogeen verdeelde laag gespoten hebben, want dat bepaald in sterke mate de isolatiewaarde.
Hoe meten zij immers ook dat ze het zelf goed doen?
Met jetspray krijg je gewoon een offerte, vaak standaard 11 13 of 15 cm dikte, tot max 21. Voor iedere cm meer betaal je ook meer.
Als je 21 cm kiest, krijg je dan ook 21 cm? Vast wel op een aantal plekken en over de hele linie brengen ze het wat dikker aan, Maar je moet niet de illusie hebben dat het overal precies even dik is, dat is simpelweg niet te doen.
Ik heb steekproefsgewijs gecontroleerd en ben over het algemeen tevreden met de dikte. 2 plekjes zijn niet OK en dat komen ze nog oplossen. Ik heb een offerte van 15 cm jetspray, en heb plekken waar 18-19 zit en plekken waar die net aan de 15 zit. Wil je alles perfect? Dan zou ik het zelf doen en je er een paar weekenden even wild maken.
PV: 13 x LG Solar 320N1K-A5 - NeON2 / WP: Adlar Aurora II 6kw / WPB: Atlantic Explorer 200l / jaren 70 woning gasloos sinds 10-2024 / Peblar business laadpaal / 25kw plugin hybride
Hoeveel onderzoek is ernaar deze jetspray technologie gedaan, hebben jullie onafhankelijke recensies. Kan me niet herinneren dat bijv de CB het genoemd heeft en ook elder kan ik me weinig bronnen herinneren, vast nog niet op mijn ooglens gehad blijkbaar....
Grappig... gisteren is net het patent van Knauf afgelopen op die technologie...
https://patents.google.co...ssignee:(knauf)+jet+spray
Wellicht is jet spray puur een Knauf naam, want ik kom er bitter weinig algemene literatuur van tegen.2019-03-03 Application status is Expired - Lifetime
Wel ff de folder van hun technologie: bij de max dikte een R van 3.7 netjes maar ook geen top.
https://www.knaufinsulati...iles/BI-BWJS-DS_10-17.PDF
Ook in de wetenschappelijke database (Europese thesis/proefschriften), geen info daarover met de trefwoorden die ik gebruikt heb, daar kun je nog wat mee spelen, zal dat no eens doen.
http://www.dart-europe.eu...t+spray+energy+saving&f=n
[ Voor 47% gewijzigd door route99 op 04-03-2019 07:23 ]
De bedoeling is nog om een laag EPS er onder te plakken tzt.





The only thing better than a cow, is a human. Unless you need milk. Then you really need a cow.
Odroid onderdelen over: Odroid H3 Type 1 behuizing, H4 Type 4, voedingsdapter 19V/7A. Stuur me een DM voor interesse.
Correct, en het piepschuim sluit niet overal mooi aan op de balken._JGC_ schreef op maandag 4 maart 2019 @ 12:02:
@rimave Die extra laag eronder mag je zeker nog gaan doen, je hebt nu om de halve meter een dikke koudebrug over de hele breedte van je vloer.
The only thing better than a cow, is a human. Unless you need milk. Then you really need a cow.
Recent heb ik m'n zolder isolatie afgerond, en zijn er een maand geleden zonnepanelen geïnstalleerd op het dak.
Nu wil ik de kruipruimte gaan isoleren. Het gaat om een jaren 70 rijtjeswoning met betonnen broodjesvloer. De kruipruimte is zo'n 60cm hoog en redelijk droog. Alleen aan de gevelkant is het (zand) wat vochtig, en er hangen wat condensdruppels aan de waterleiding.
In de thread heb ik al een paar projecten voorbij zien komen met pir platen gemonteerd met montagekit van Action. Dit lijkt mij de meest aantrekkelijke optie. Heeft iemand al ervaring hoe degelijk zo'n bevestiging op lange termijn is?
Wat is zo'n beetje de sweetspot qua dikte voor een jaren 70 woning met spouwmuur- en zolder isolatie en dubbel glas (HR+ in woonkamer)?
Ik wil ook pe-folie leggen, maar zie veel prijsverschillen waarbij de goedkopere zo te zien een grote dikte tolerantie heeft. Is die te vermijden? En tapen jullie de folie ook nog af, of is dat niet nodig?
Als je wat rondsnuffelt op het web vind je een geadviseerde Rd-waarde van 3,5, dan heb je 8 cm PIR-platen nodig. Dikker isoleert beter natuurlijk, maar door hogere aanschafprijs gaat de terugverdientijd omhoog. Bij vloerverwarming wordt meen ik me te herinneren een wat hogere Rd-waarde geadviseerd. Bij folie de allergoedkoopste pakken, je gaat daar toch niet dagelijks overheen lopen neem ik aan. Bodemfolie aftapen is helemaal niet nodig.Daytona schreef op dinsdag 26 maart 2019 @ 21:08:
Wat is zo'n beetje de sweetspot qua dikte voor een jaren 70 woning met spouwmuur- en zolder isolatie en dubbel glas (HR+ in woonkamer)?
Ik wil ook pe-folie leggen, maar zie veel prijsverschillen waarbij de goedkopere zo te zien een grote dikte tolerantie heeft. Is die te vermijden? En tapen jullie de folie ook nog af, of is dat niet nodig?
De grootste stukken puin en troep opgeruimd en alvast 1 plaat vast gekit met de bekende Spectrum montagelijm. Morgen maar eens kijken of 'ie goed vast zit.
Ik merk inmiddels wel dat ik al een tijdje geen 18 meer ben. Blij dat ik het op 8cm heb gehouden. Die platen gaan nog net door het kruipluik, en dan hou ik nog een redelijke manoeuvreer ruimte over voor m'n stijve botten ;-)
Als de luchtvochtigheid aan de hoge kant is, kan het drogen wat langer duren. Bij mij soms wel 4 dagen...Daytona schreef op donderdag 28 maart 2019 @ 21:23:
Bedankt voor de reply, vanmorgen toevallig 8cm (b-keus) pir platen gehaald bij een toko in de buurt.
De grootste stukken puin en troep opgeruimd en alvast 1 plaat vast gekit met de bekende Spectrum montagelijm. Morgen maar eens kijken of 'ie goed vast zit.
Ik merk inmiddels wel dat ik al een tijdje geen 18 meer ben. Blij dat ik het op 8cm heb gehouden. Die platen gaan nog net door het kruipluik, en dan hou ik nog een redelijke manoeuvreer ruimte over voor m'n stijve botten ;-)
Ford Focus SW, Peugeot 106 Rallye (work-in-progress)
Gaat niks worden met uitgraven. Wil ik straks ~50 cm ruimte overhouden dan dien ik minimaal overal 15CM af te graven bij een dikte van 10 cm isolatie. Dit zal resulteren in 6 kuub zand afvoeren..... En dat allemaal door een gat van 30*50 cm.
Het laten wegzuigen is me veelte kostbaar gaat namelijk meer dan 2500 euro kosten voor een besparing van misschien 100 euro op jaar basis.... Dus dat geld gaat nu naar de nieuwe kozijnen met HR++(+) glas. Daar zal ik namelijk meer mee gaan besparen aangezien ik nu overal oud dubbel glas heb zitten.
Nieuwe plan is zorgen dat de kruipruimte gewoon helemaal droog wordt (is nu heel licht vochtig). Dus het volgend zal gebeuren.
- Voor en achter nieuwe ventilatie gaten boren.
- Alles uitvlakken
- Alle bouwpuin verwijderen (licht een hoop zooi onder het huis)
- Bubbelplastic en daar boven op een dikke laag plastic
[ Voor 7% gewijzigd door Jan-man op 31-03-2019 11:56 ]
Nu kun je m.i. folies op zich wel weer verwijderen, maar zie dat daarna maar weer goed luchtdicht vast te krijgen allemaal. Lijkt wel de makkelijkste en kostentechnisch meest interessante optie.
Wat Google-werk levert als alternatief: gaten maken en kruipruimte volstorten met isolerend schuimbeton. Dat ondersteund dan meteen de vloer. Maar vervolgens kom je nooit meer bij eventuele leidingen...
Iemand een betere optie?
www.opnaargasloos.nl: 9900Wp, 2x30HP 500l buffer, Atlantic WPB, Ravelli Alfa S, Panasonic monobloc J-series 5kW, Model 3 LR
Kwaaitaal eruit, fatsoenlijke vloer leggen. Doet ff financieel zeer, maar niet meer jarenlang die angst dat je door je vloer zakt, slechte isolatie, periodieke inspecties en scheve gezichten/prijsimpact bij verkoop. Goede nieuwe vloer met isolatie en vloerverwarming, in 1 keer klaar.lbreman schreef op maandag 1 april 2019 @ 12:44:
Iemand een betere optie?
Verwijderen van zooi onder je huis is imho volstrekt zinloos. Leuk als je er veel in wilt zijn, maar als je toch geen isolatie aanbrengt, ligt die zooi niemand in de weg.
@lbreman Volstorten met schuimbeton is soms mogelijk, maar sterk afhankelijk van de grondslag en huidige opbouw van de vloer.
ls de woning nog helemaal leeg is, dan is het verwijderen van de bestaande vloer en vol leggen met balkjes en geisoleerde broodjes niet eens zo'n slecht idee. Ligt natuurlijk ook erg aan de huidige situatie (dure parketvloer of kale beton, vloerverwarming of niet etc.)
Zijn allemaal stenen en beton met scherpe randen die eventueel het zeil kunnen kapot maken. En het opruimen is een uurtje of 2 werk dus das de moeite niet.blissard schreef op maandag 1 april 2019 @ 14:39:
@Jan-man Hoe diep is de kruipruimte nu dan? En ik zou beginnen met folie leggen. Dan is die extra ventilatie mogelijk niet eens nodig
Verwijderen van zooi onder je huis is imho volstrekt zinloos. Leuk als je er veel in wilt zijn, maar als je toch geen isolatie aanbrengt, ligt die zooi niemand in de weg.
@lbreman Volstorten met schuimbeton is soms mogelijk, maar sterk afhankelijk van de grondslag en huidige opbouw van de vloer.
ls de woning nog helemaal leeg is, dan is het verwijderen van de bestaande vloer en vol leggen met balkjes en geisoleerde broodjes niet eens zo'n slecht idee. Ligt natuurlijk ook erg aan de huidige situatie (dure parketvloer of kale beton, vloerverwarming of niet etc.)
Hoogste/laagste punt is 50 cm tot 45 cm ruimte nu. Ga ik 10CM eps/pir plaatsen dan hou ik ~30/40 cm over dus dan kom ik er niet meer fatsoenlijk onder.
Met die hoogte heb ik hier gewoon van achter naar voren de vloer geïsoleerd. Geen pretje, maar ook niet verschrikkelijk. Sommige hier hebben extremere dingen uitgehaald.Jan-man schreef op maandag 1 april 2019 @ 19:34:
[...]
Zijn allemaal stenen en beton met scherpe randen die eventueel het zeil kunnen kapot maken. En het opruimen is een uurtje of 2 werk dus das de moeite niet.
Hoogste/laagste punt is 50 cm tot 45 cm ruimte nu. Ga ik 10CM eps/pir plaatsen dan hou ik ~30/40 cm over dus dan kom ik er niet meer fatsoenlijk onder.
Disclaimer: zorg dat je voldoende ventileert en ga niet onder de vloer het eps snijden of zo. Veiligheid gaat voor.
https://www.cobouw.nl/bou...n-vloerisolatie-101272508
Sometimes you need to plan for coincidence
Ja, dat zie ik de isolatieboeren echt wel doen...
One thing's certain: the iPad seriously increases toilet time.. tibber uitnodigingscode: bqufpqmp
In het verleden heb ik in mijn kruipruimte een laagje piepschuim balletjes ("thermoparels") laten storten. Grote voordeel is dat het blijft drijven, aangezien we midden in de kruipruimte wel eens een 10-20cm water hebben staan.
Dit heeft een uitstekend effect op de luchtvochtigheid in de kruipruimte, die is nu kurkdroog terwijl voorheen er overal druppels aan de bovenkant hingen.
Dat heeft op zich al een stukje rendement-verbetering meegebracht, maar de onderkant van de vloer is nog niet geïsoleerd. Ondanks dat onze vloerverwarming op isolatiematten is gelegd gaat er toch nog wel wat warmte naar beneden. Ik ben dus plannen aan het maken om de onderkant van de vloer te gaan isoleren.
Het is een jaren 70 betonnen broodjesvloer, op basis van wat ik hier gelezen heb wil ik daar PIR-platen van 8-10cm tegenaan maken.
Eerst heb ik echter een andere uitdaging: die (piepschuim) ballenbak is niet heel comfortabel toegankelijk: die dingen kruipen overal tussen en als het een beetje statisch wordt plakken ze overal aan vast, je ziet niet waar je kruipt en als je iets laat vallen dan zakt het door de ballen heen naar de bodem. Oftewel: dat is niet werkbaar.
Ik denk er over om er eerst een laag grote noppenfolie op te leggen en dan nog iets van T200-folie of iets anders dat stevig genoeg is om op te kruipen. Zo blijven die piepschuim balletjes daar netjes onder (en als bonus kan ik de folie dan nog omhoog tegen de fundering aanleggen).
Kan iemand een inschatting maken of het daarmee voldoende begaanbaar/werkbaar wordt? Of een andere oplossing hoe je kunt werken in een piepschuim ballenzee?
Verder heb ik een lastige extra uitdaging: Er loopt een funderingsmuur van voor tot achter in mijn huis, zonder dat er een mangat vrij is gehouden. Ik heb nu alleen toegang tot het deel onder mijn gang en keuken. Ik wil eerst dit deel doen en pas als dat voldoende veel verschil maakt ga ik bedenken hoe ik in het deel onder de woonkamer kom (voorlopig heb ik nog geen andere theorie dan van buitenaf onder de fundering doorgraven, niet echt een klusje waar ik naar uitkijk, dus dan moet het wel serieus verschil maken....)
Voor nu wil ik dus eerst onder de gang/keuken aan de slag. Ik ben al wat aan het rondzoeken geweest, maar bijna overal waar ze noppen- en T200-folie verkopen krijg je meteen 50 meter of zo. Ik ben op zoek naar een plek waar ik ook per meter zou kunnen bestellen. Of een korter stukje van 10-15 meter lang of zo. Wel lijkt het me handig om in 1 keer de hele breedte te leggen, dat is 4 meter breed. Alternatief kun je natuurlijk ook twee helften overlappend neerleggen, maar ik ben bang dat dat niet zo mooi aansluit en er uiteindelijk toch weer balletjes tussendoor gaan komen.
Bij deze de resultaten van mijn metingen (van elke dag de minimale en de maximale waarde):HerkeLWD schreef op donderdag 6 september 2018 @ 13:29:
[...]
Dan blijf ik jou even volgen! ben benieuwd naar de gegevens van je temperaturen.
En ben benieuwd wat de temperatuur in de winter gaat doen.

Ik heb thermometers op het dunste deel van de broodjes (oranje), op de leggers waar de broodjes op liggen (paars), los in de ruimte (groen) en onder mijn piepschuim balletjes een paar cm in het zand (zwart)
Echt koud was het deze winter niet, maar je ziet wel duidelijk dat tijdens het stookseizoen de onderkant van de broodjes-vloer rond de 20 graden wordt. Gevolg daarvan is dat de kruipruimte zelf ook niet zo ver afkoelt als de ondergrond.
Een ander gevolg: De oorzaak noemde je al, de vloer lijkt idd slecht geïsoleerd. Je woont niet in de kruipruimte dus je hebt er wenig aan behalve extra kosten dat ie zo warm wordt.
Zo een dampremmend//dicht PE folie op de vloer lijkt me ook wel wat.
Piepschuim balletjes lijken me een echte ramp... wat je ook ons deelt.
Uit de buurt van Arnhem? Ik heb 50 meter op rol. 6 meter breed. 60mu.
Ik heb bij lange na niet alles nodig. Noppenfolie heb ik niet.
www.highflow.nl
Jammer. Als het >150 mu was gewest had ik wel interesse gehad, 50 mu is imho te dun.
https://www.foliewinkel.com/bouwfolie/dampremmende-folie
Heb je een link naar de winkel waar je het gekocht hebt om te zien wat voor specs zij opgeven? Het verschil 50-150 mu vind ik erg groot.
https://www.kelfort.nl/pr...55833/55834/55836/1525063route99 schreef op zaterdag 18 mei 2019 @ 14:38:
Als ik zo vrij mag zij.
Jammer. Als het >150 mu was gewest had ik wel interesse gehad, 50 mu is imho te dun.
https://www.foliewinkel.com/bouwfolie/dampremmende-folie
Heb je een link naar de winkel waar je het gekocht hebt om te zien wat voor specs zij opgeven? Het verschil 50-150 mu vind ik erg groot.
www.highflow.nl
Dank voor de link. Terwijl ik op die site aan het neuzen ben bedenk ik me net dat ik bovenop dat noppenfolie gewoon een afdekzeil kan leggen. Omdat al het vocht al onder de piepschuim balletjes blijft heb ik geen dampremmende folie nodig.route99 schreef op zaterdag 18 mei 2019 @ 14:38:
Jammer. Als het >150 mu was gewest had ik wel interesse gehad, 50 mu is imho te dun.
https://www.foliewinkel.com/bouwfolie/dampremmende-folie
Ik wil er vooral overheen kunnen kruipen. Dus dan eerst een laagje noppenfolie zodat het wat stabieler wordt en dan gewoon een afdekzeil eroverheen. Die dingen kosten geen drol op die site...
Helaas, Arnhem is een beetje ver uit de buurt, maar misschien iemand anders hier?BTS schreef op zaterdag 18 mei 2019 @ 13:38:
[...]
Uit de buurt van Arnhem? Ik heb 50 meter op rol. 6 meter breed. 60mu.
Ik heb bij lange na niet alles nodig. Noppenfolie heb ik niet.
Je moet een beetje die energie besparende sites vermijden daar betaal je de hoofdprijs, daar wordt het soms
als "nieuw " gepresenteerd, maar die zelfde folie wordt ook veel in de landbouw gebruikt, al veel meer dan 50 jaar.... dat kost veel minder...
Wel ff de specs checken....
@ocaj Helaas , geen gegevens wat het precies is behalve de dikte.
[ Voor 9% gewijzigd door route99 op 18-05-2019 15:09 ]
Rol die ik heb gehaald is van de praxis. Met 20% product korting. Ben hiervoor gegaan omdat ik de bodem met 1 heel stuk kan bedekken. Mijn huis is 5,30 breed dus 6 meter breed is voldoende voor de opstaande randen. Er waren ook duurdere op andere sites maar zie de meerwaarde niet van dikker dan dit. Ik kom nauwelijks in de kruipruimte dus stuklopen zal niet snel gebeuren.route99 schreef op zaterdag 18 mei 2019 @ 15:08:
Normaal folie is super goedkoop, en ook die 150 mu folie is niet duur.
Je moet een beetje die energie besparende sites vermijden daar betaal je de hoofdprijs, daar wordt het soms
als "nieuw " gepresenteerd, maar die zelfde folie wordt ook veel in de landbouw gebruikt, al veel meer dan 50 jaar.... dat kost veel minder...
Wel ff de specs checken....
@ocaj Helaas , geen gegevens wat het precies is behalve de dikte.
www.highflow.nl
https://www.gerritsen-industrie.nl/10470-2/
Ze hadden wel even netjes de eenheden erbij mogen zetten....PE folies zijn er in twee soorten
De nominaal folie meeste 0.15 of 0.20 dik is een werkelijke dikte folie. Met andere woorden een goede dampremmende folie met een behoorlijke dikte.
De tolerantiefolie ook wel type 100 of type 200 folie. Dit is een goedkope folie met een tolerantie op de dikte en verwaardigd uit geregenereerd kunststof.
De tolerantie folie is te gebruiken als afdekfolie maar niet als een constructieve dampremmer.
0.15 of 0.20 moet zijn 0.15 of 0.20mm dus 150-200 micro meter....
Bij nog zwaardere toepassingen begint de eis van de dikte zelfs bij 0.5 mm tot wel 2 mm .
https://www.kiwa.nl/upload/BRL/K538.pdf
Als je naar de permeabilitietswaarden kijkt (kun je meten...) dan wordt 0.2 mm ook als de grens genoemd die je wel moet hebben.
http://www.joostdevree.nl/shtmls/dampdiffusie.shtml
- PE-folie van 0,2 mm dik (= 0,0002 m) met een μ-waarde van 100.000 heeft een μd-waarde van 20 m (20 m of meer wordt als dampremmend beschouwd)
Dat is wel een hele mooie grafiek.ocaj schreef op zaterdag 18 mei 2019 @ 12:22:
[...]
Bij deze de resultaten van mijn metingen (van elke dag de minimale en de maximale waarde):
[Afbeelding]
Ik heb thermometers op het dunste deel van de broodjes (oranje), op de leggers waar de broodjes op liggen (paars), los in de ruimte (groen) en onder mijn piepschuim balletjes een paar cm in het zand (zwart)
Echt koud was het deze winter niet, maar je ziet wel duidelijk dat tijdens het stookseizoen de onderkant van de broodjes-vloer rond de 20 graden wordt. Gevolg daarvan is dat de kruipruimte zelf ook niet zo ver afkoelt als de ondergrond.
@Freemann iets voor bij de openings post ?
Een CV-Ketel is een vlamkoeler en een radiator is een waterkoeler. :) Debiet is vermogen en niet de temperatuur.
Grootste boosdoener van al het vocht in de kruipruimte is een gat van 12 cm doorsnee. Heb deze dichtgestopt en hoop dat dit voldoende is samen met het folie ervoor.
www.highflow.nl
Mijn kruipruimte is eindelijk een beetje begaanbaar en wil het op korte termijn gaan aanpakken.
Als de folie eenmaal ligt, kan je het dan nog makkelijk "heen en weer schuiven" zodat het goed in het midden ligt?
Weet iemand door de bomen het bos wat een beetje een goede prijs is voor platen (12€ / m2 voor 5ish RD)?
En zit er nou zo'n wezenlijk verschil tussen PIR en EPS?
Ja het komt op een rol en dan snij je het buiten de kruipruimte op lengte, dan opvouwen of oprollen en meenemen naar de kruipruimte.Deshmir schreef op woensdag 29 mei 2019 @ 14:30:
@BTS Komt het op rol en vouw je het uit, of hoe werkt dat?
Mijn kruipruimte is eindelijk een beetje begaanbaar en wil het op korte termijn gaan aanpakken.
Als de folie eenmaal ligt, kan je het dan nog makkelijk "heen en weer schuiven" zodat het goed in het midden ligt?
Beneden leg je het zo goed mogelijk neer en vouw je het helemaal uit. Ik kon het nog goed bewegen en in positie brengen.
www.highflow.nl
PIR heeft een hogere isolatiewaarde bij dezelfde dikte, bv. 8 cm PIR is vergelijkbaar met 13 cm EPS.Deshmir schreef op woensdag 29 mei 2019 @ 14:30:
En zit er nou zo'n wezenlijk verschil tussen PIR en EPS?
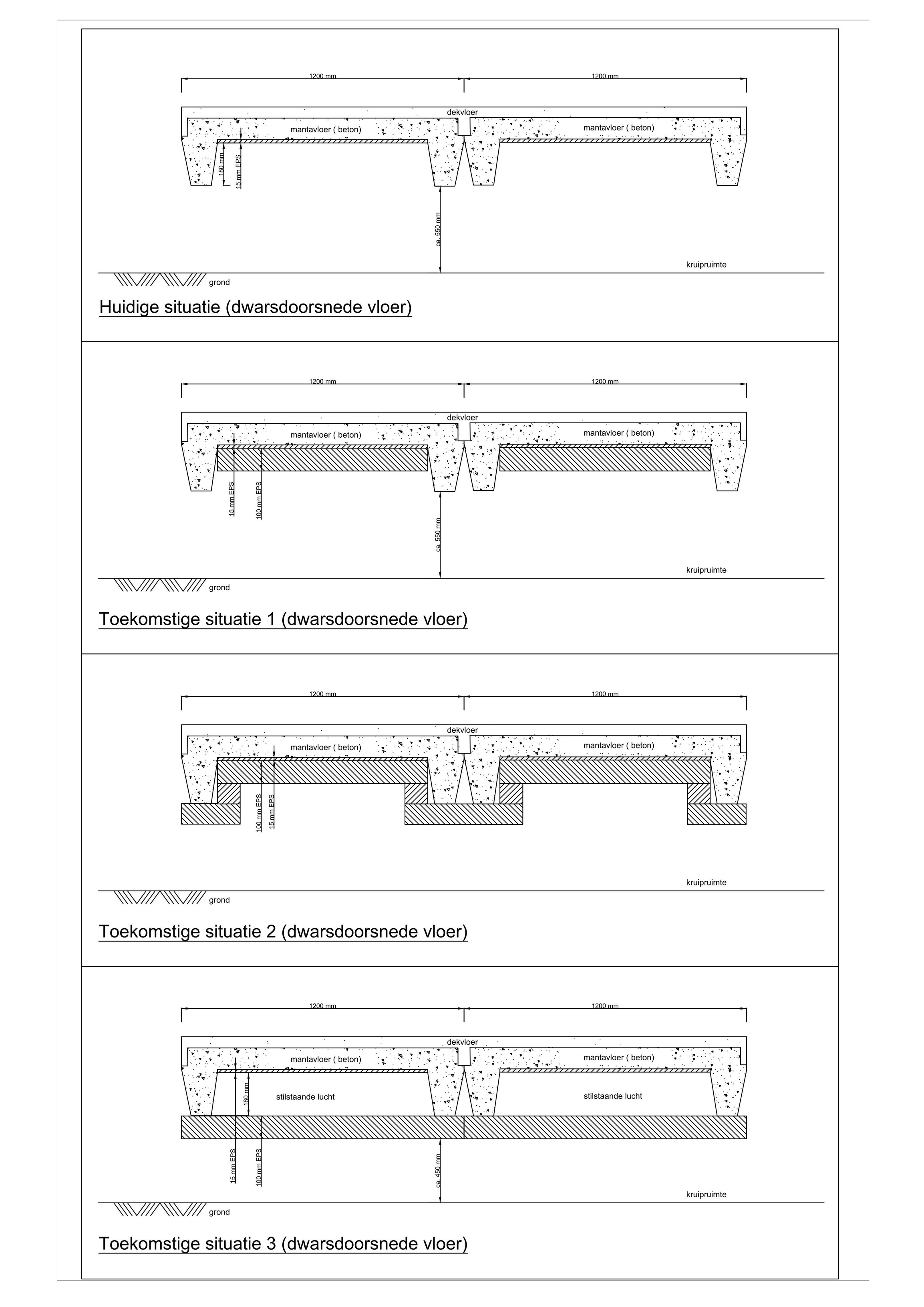
De vloer voelt echter in de winter ijskoud aan, wat niet echt comfortabel is. Dit probleem willen we oplossen door het infrezen van vloerverwarming in de keuken en de woonkamer (één ruimte). Zie de locaties voor de aan te brengen vloerverwarming in de plattegrond hieronder.
Omdat de vloer niet geheel vlak is aan de onderkant (door de liggers), is isoleren wat lastiger. Ik heb zelf drie opties uitgewerkt in schetsjes, zie hieronder.
Optie 1: aanbrengen isolatie tussen de liggers, rondom de liggers geen isolatie (=koudebrug?)
Optie 2: volledig "inpakken" van de vloer inclusief liggers (meeste werk van alle opties).
Optie 3: platen aanbrengen van ligger naar ligger en ruimtes tussen platen goed afdichten.
Van deze drie opties vond ik zelf optie drie het beste. Deze optie is het makkelijkste aan te brengen (platen van ligger naar ligger). Als ik de naden/kieren goed afdicht ontstaat een luchtdichte ruimte tussen de liggers. Theoretisch zou lucht een goede isolator moeten zijn, maar ik ben hier zelf niet heel bekend mee. Kan dit werken? Of krijg je alsnog circulatie in de ruimte met stilstaande lucht?
De kruipruimte is verder droog (grondwaterstand net onder de grond in de kruipruimte) en er zijn wat leidingen aanwezig. Verder is een ventilatie aanwezig door 2 roosters aan de voorzijde van het huis en 2 roosters aan de achterzijde van het huis.
Als isolatie wil ik 10 cm EPS aanbrengen (Rd waarde 3,5).
Samengevat ben ik van plan het onderstaande uit te voeren:
- Aanbrengen ledlampjes voor verlichting
- Leegruimen/egaliseren kruipruimte
- Aanbrengen landbouwplastic (via een vriend gratis verkrijgbaar, 0,15 mm dik) op de grond (voor optrekkend vocht)
- Aanbrengen isolatie aan onderzijde vloer
- Laten aanbrengen vloerverwarming
[ Voor 19% gewijzigd door hjs op 06-07-2019 20:36 ]
Verder ben ik niet jaloers, die kruipruimte ziet er wel erg laag uit. Ik heb hier met ~50-55cm al moeite om er door te komen (en hier is ie vlak, dus zonder de extra lage stukken onder de balken).En dan moet er nog isolatie in...
Bedankt voor je antwoord. Heb even gekeken voor PIR-platen met een Rd-waarde van 5,0, dan zit je met B-keus platen op een dikte van 110 millimeter. Kost zo'n 17 euro per m2.Steyn_E schreef op zondag 7 juli 2019 @ 14:44:
Ik zou, zeker bij vloerverwarming, voor een Rd van om-en-nabij de 5.0 gaan. Met 10-12cm PIR zit je daar al aan volgens mij, dus dat zou ik aanraden ipv EPS. Verder NIET de ventilatie naar buiten afsluiten, radon kan zich op gaan hopen. Het is niet voor niets dat elke kruipruimte geventileerd is. Je kruipruimte moet dus niet luchtdicht worden maar het huis moet moeilijk zijn warmte afgeven aan de kruipruimte (de kruipruimte wordt dus kouder dan ie nu is, niet warmer). Het plastic is dus niet voor luchtdichting maar om vocht tegen te houden. Verder niet alleen de delen tussen de betonbalken maar ook de betonbalken zelf inpakken (als dat enigszins mogelijk is ivm de hoogte), al is het een kwestie van zoveel mogelijk oppervlak inpakken, warmteverlies daalt ook bij een niet-sluitende schil (zoals ook bijvoorbeeld geldt voor extra zuinig glas).
Verder ben ik niet jaloers, die kruipruimte ziet er wel erg laag uit. Ik heb hier met ~50-55cm al moeite om er door te komen (en hier is ie vlak, dus zonder de extra lage stukken onder de balken).En dan moet er nog isolatie in...
https://www.isolatiemater...00x600x110mm-rd500-072m2/
Verder stel je voor om de balken zo goed mogelijk in te pakken, maar dat lukt volgens mij nooit helemaal goed aangezien de balken schuin aflopen. Dan krijg je enorm veel snijwerk om dat allemaal passend te maken. Kleine holtes zoals hieronder zijn niet heel erg toch? Als de platen goed aansluiten is dit stilstaande lucht.
Odroid onderdelen over: Odroid H3 Type 1 behuizing, H4 Type 4, voedingsdapter 19V/7A. Stuur me een DM voor interesse.
Ja nu alleen nog aanbrengenSteyn_E schreef op zondag 7 juli 2019 @ 17:08:
Jup, dat kan, maar gaat geen enorm verschil maken. Als je er maar voor zorgt dat de platen op elkaar luchtdicht aansluiten (geen tocht tussen de betonbalken en de isolatie) dan is dit zo goed als perfect. Dus vooral kieren tussen de platen dichten, de kieren tussen de platen en het beton zijn niet zo erg. En inderdaad, B-keus PIR lijkt me een prima optie. Houd je nog een beetje ruimte over om te kunnen kruipen (ten opzichte van EPS). Lekker warme voetjes komende winter!
De naden/kieren wil dichten met PUR zodat er één luchtdicht geheel ontstaat.
De platen wil ik verder vastmaken met kit (zoals de kit van de action door vele gebruikt hier).
Is het dan slim om per plaat een aantal dotten kit aan te brengen of toch een paar stroken kit. Iemand hier ervaring mee?
Een Manta-vloer heeft vergelijkbare issues/risico's als een kwaaitaalvloer (betonrot). Weet je zeker dat je die zo ver wilt inpakken dat hij niet meer inspecteerbaar is?MWZandwijk schreef op zaterdag 6 juli 2019 @ 19:47:
Mijn woning (1981) heeft op de begane grondvloer een betonnen Manta-vloer.
Als je na 30/40 jaar geen betonrot hebt, dan gaat die er ook niet meer komen...phYzar schreef op zondag 7 juli 2019 @ 19:27:
[...]
Een Manta-vloer heeft vergelijkbare issues/risico's als een kwaaitaalvloer (betonrot). Weet je zeker dat je die zo ver wilt inpakken dat hij niet meer inspecteerbaar is?
Ik heb een Mantavloer en bij mij staat ook nog op de to do lijst om de vloer te isoleren. Ik ga het met EPS/PIR doen.
Odroid onderdelen over: Odroid H3 Type 1 behuizing, H4 Type 4, voedingsdapter 19V/7A. Stuur me een DM voor interesse.
Dat heb ik inderdaad wel van te voren nagevraagd. Een kennis van mij werkt bij een civiel technisch bureau, waar ze regelmatig dergelijke inspecties/onderzoek uitvoeren aan deze vloeren. Ook hij gaf aan dat indien er na 40 jaar nog geen schade is, dit in de toekomst ook niet gaat gebeuren.phYzar schreef op zondag 7 juli 2019 @ 19:27:
[...]
Een Manta-vloer heeft vergelijkbare issues/risico's als een kwaaitaalvloer (betonrot). Weet je zeker dat je die zo ver wilt inpakken dat hij niet meer inspecteerbaar is?
Toch bedankt voor de waarschuwing.
Ik ga dan toch voor optie 2, het volledig inpakken van de vloer inclusief liggers. Zeker met het oog op vloerverwarming in de toekomst.
Nu is mijn vraag wat is beter/makkelijker om PIR platen te lijmen, met of zonder sponning ?
10 + 8cm EPS is ook Rd 5, kost ongeveer evenveel, maar is misschien wel makkelijker aanbrengen. Kan je de ruimte tussen de liggers helemaal opvullen en een strook over de ligger.MWZandwijk schreef op zondag 7 juli 2019 @ 16:41:
[...]
Bedankt voor je antwoord. Heb even gekeken voor PIR-platen met een Rd-waarde van 5,0, dan zit je met B-keus platen op een dikte van 110 millimeter. Kost zo'n 17 euro per m2.
Wanneer je 10+10cm tussen de liggers doet. kom je waarschijnlijk over de 40 platen.
Gasloos huis 9kW Panasonic WH-MDC09J3E5 | Atlantic Explorer V4 270L | 8715Wp @ SMA Tripower 6.0-3AV-40 (4150Wp NO, 4565Wp ZW)
Voor lijmen maakt het niet zoveel uit of je met of zonder sponning doet. Als je de keus hebt zou ik gaan voor met sponning. De aansluiting tussen de platen is dan net wat beter. Zelf heb ik dat ook gedaan. Qua prijs maakt het volgens mij ook weinig uit.Aad schreef op woensdag 10 juli 2019 @ 15:59:
Ik ben er uit, Ik ga mijn kruipruimte isoleren met PIR platen 1200x600x80. Er zijn meerdere soorten PIR platen te koop.
Nu is mijn vraag wat is beter/makkelijker om PIR platen te lijmen, met of zonder sponning ?
hmmz
Zelf ga ik van het weekend ook beginnen met pir platen te plakken in de vloer. Ik zit alleen te denken wat nu het verstandigst is. Recht tegen de muur plakken, of n kiertje er tussen laten en later opvullen. Maar dan ook weer dat opvullen, waarmee? Pur schuim lijkt me niet lekker in een kleine ruimte.DJ^ schreef op woensdag 10 juli 2019 @ 19:39:
[...]
Voor lijmen maakt het niet zoveel uit of je met of zonder sponning doet. Als je de keus hebt zou ik gaan voor met sponning. De aansluiting tussen de platen is dan net wat beter. Zelf heb ik dat ook gedaan. Qua prijs maakt het volgens mij ook weinig uit.
Hoe heb jij dit gedaan?
Standaard bouwmarkt EPS platen van 100x50cm gaan helaas niet zomaar passen, of er moet veel gesneden worden. Wat zijn goede alternatieven?
Beide varianten krijg je met pur prima dicht. Ik ben eerst begonnen met kier en daarna er strak tegenaan. Andere optie dan pur weet ik niet.ImpulZ_28 schreef op vrijdag 12 juli 2019 @ 10:52:
[...]
Zelf ga ik van het weekend ook beginnen met pir platen te plakken in de vloer. Ik zit alleen te denken wat nu het verstandigst is. Recht tegen de muur plakken, of n kiertje er tussen laten en later opvullen. Maar dan ook weer dat opvullen, waarmee? Pur schuim lijkt me niet lekker in een kleine ruimte.
Hoe heb jij dit gedaan?
@Ep Woody Pir platen zijn meestal 120cm lang. Bij mij zat er ook ruimte tussen. Pir platen met sponning geven meer steun tussen de platen. Zie mijn posts in dit topic voor meer info hoe ik het heb gedaan.
hmmz
heb je ook gemeten wat de afmetingen van je kruipluik zijn?Ep Woody schreef op vrijdag 12 juli 2019 @ 11:08:
Gisteravond even gemeten in mijn kruipruimte en de HoH afstand blijkt 120cm te zijn.
One thing's certain: the iPad seriously increases toilet time.. tibber uitnodigingscode: bqufpqmp
PIR is normaal gesproken 60x120CM. Dat zou in jouw geval een stuk praktischer zijn. Grote vraag is: is je kruipluik minstens 60 breed?Ep Woody schreef op vrijdag 12 juli 2019 @ 11:08:
Gisteravond even gemeten in mijn kruipruimte en de HoH afstand blijkt 120cm te zijn. Manta vloer? De vloer is al voorzien van een laagje EPS (5cm), maar dat wil ik gaan uitbreiden naar minimaal 15.
Standaard bouwmarkt EPS platen van 100x50cm gaan helaas niet zomaar passen, of er moet veel gesneden worden. Wat zijn goede alternatieven?
ik ben blij dat ik nog geen isolatie (lees bodem zeil) heb aangelegd .. (snik) .. maar dit zet me wel aan het denken hoe ik hiermee overweg kan gaan ..
ik denk dat ik een simple water sensors & vlotterschakelaars in de kruipruimte(s) installeer . water onder of boven het zeil = alarm (meerdere of een enkele)
de kans is 0,0001% wellicht dat ik er ooit last van heb maar het zal je maar gebeuren na al het werk.
[ Voor 4% gewijzigd door vso op 28-07-2019 02:14 ]
Tja vanalles
Veroordeel niet, verwonder u slechts
* vso wou dat het zo makkelijk wasNo Hands schreef op zondag 28 juli 2019 @ 08:00:
dan prik je een gat in je zeil en loopt het weg. plak je daarna het gat weer dicht.
Tja vanalles
Er is mij onlangs 50mm Kingspan Therma TF70 geadviseerd voor mijn vloer om een EPC van 0.7 te halen. Dit zou een Rc waarde van slechts 2,3 zijn. Ik snap dat meer isolatie beter is maar in dit geval moet het ook nog werkbaar zijn. Waarom adviseer je 5 in deze krappe situatie?Steyn_E schreef op zondag 7 juli 2019 @ 14:44:
Ik zou, zeker bij vloerverwarming, voor een Rd van om-en-nabij de 5.0 gaan.
i5-13600KF @ 6.0GHz || Domoticz on Pi3+Pi4 || PV: 14940 Wp || WP: 12kW LG
Als 5 past is dat een betere waarde.Cable_boy schreef op zondag 28 juli 2019 @ 10:54:
[...]
Er is mij onlangs 50mm Kingspan Therma TF70 geadviseerd voor mijn vloer om een EPC van 0.7 te halen. Dit zou een Rc waarde van slechts 2,3 zijn. Ik snap dat meer isolatie beter is maar in dit geval moet het ook nog werkbaar zijn. Waarom adviseer je 5 in deze krappe situatie?
Vergeet niet in de bouw doen ze / adviseren ze bijna altijd het minimale.
Daarom zitten wij nu al onze kruipruimtes op te waarderen ipv dat ze bij het bouw het goed hadden gedaan.
With so many things coming back in style, I can't wait till loyalty, intelligence and morals become a trend again.......
Verwijderd
Als het de distributieleiding van het nutsbedrijf was, kan je die iig voor de kosten aanspreken.vso schreef op zondag 28 juli 2019 @ 02:13:
leuk, in onze "straat" (eerder hofje) hadden we 300/400 Kuub water in de kruipruimte(niet alleen wij maar ook buren en die aantal liters zijn dus over alle buren heen gemeten) door een gebarste waterleiding ...
ik ben blij dat ik nog geen isolatie (lees bodem zeil) heb aangelegd .. (snik) .. maar dit zet me wel aan het denken hoe ik hiermee overweg kan gaan ..
ik denk dat ik een simple water sensors & vlotterschakelaars in de kruipruimte(s) installeer . water onder of boven het zeil = alarm (meerdere of een enkele)
de kans is 0,0001% wellicht dat ik er ooit last van heb maar het zal je maar gebeuren na al het werk.
De kosten voor mij persoonlijk zijn verwaarloosbaar (wat elektra voor het pompen) we waren er "op tijd" bij,Verwijderd schreef op zondag 28 juli 2019 @ 12:20:
[...]
Als het de distributieleiding van het nutsbedrijf was, kan je die iig voor de kosten aanspreken.
Het was voor de watermeter dus de "schade" is ook daar wel beperkt, echter voor de buurman was het vervelender (emotioneel voelde hij zich schuldig) wij ondersteunen hem
Maar goed de kans dat dit gebeurt is groot hier, (verzakkingen en leeftijd leiding werk) dus vandaar is het handig om hier rekening mee te houden .. overgens hoort dit hier ook thuis immers je bent bezig met isoleren.
Tja vanalles
Aan de andere kant is het fijn dat ze het minimale op de vloer hebben gedaan in plaats van de vloer extreem en de muren slechter.Cyberpope schreef op zondag 28 juli 2019 @ 11:03:
[...]
Als 5 past is dat een betere waarde.
Vergeet niet in de bouw doen ze / adviseren ze bijna altijd het minimale.
Daarom zitten wij nu al onze kruipruimtes op te waarderen ipv dat ze bij het bouw het goed hadden gedaan.
Ik ga de PIR optie even goed uitpluizen en kijken wat het prijsverschil is.
Invoeren door het grote kruipluik, ruimte gemaakt onder funderingsbalk, platen naar de verschillende compartimenten verdeeld.
Nu bezig met plakken. Platen passen niet helemaal perfect aangezien de hoh maat soms net wat groter is dan 60. Daarom over de breedte geplakt waardoor de platen altijd wel voldoende balkjes raken de volgende plaat heeft dan ook weer de sponning.
Verbaasde me hoe sterk die action lijm is.
Gebruikte XPS/roofmate platen van MP. Die hebben 5 jaar op een bedrijfshal gelegen, en kunnen prima onder de vloer geplakt als je ze even afstoft. Ik heb mijn halve huis er al een de buitenkant mee ingepakt voor 2 euro per plaat.Ep Woody schreef op zondag 28 juli 2019 @ 13:15:
[...]
Aan de andere kant is het fijn dat ze het minimale op de vloer hebben gedaan in plaats van de vloer extreem en de muren slechter.
Ik ga de PIR optie even goed uitpluizen en kijken wat het prijsverschil is.
Veroordeel niet, verwonder u slechts
Vorig jaar heb ik bovenstaande gedaan. Het folie is met pluggen om de halve meter aan de muur bevestigd (dubbelgevouwen met de vouw naar boven, einde folie tegen de muur). De bodem is gewoon droog, zoals dat het altijd geweest is. Wel zijn er plekken waar onder het folie condensdruppels hangen.DropjesLover schreef op zaterdag 3 november 2018 @ 23:52:
Fase 1: klaar
Tonzon bodemfolie gelegd. Morgenochtend vastzetten met foliepluggen.
zandbodem (met wortels overal lopend...) was overal gortdroog, maar bij de achtermuur wel sporen van gevallen druppels en vocht op de betonmuur, en condensdruppels aan de rioolleiding.
[Afbeelding] [Afbeelding]
[Afbeelding] [Afbeelding]
Later nog eens PIR platen ophangen.
Iemand enig idee wat normaal is in onze situatie? We hebben een 2-onder-1-kap met garage, en achter de garage nog een stuk woonkamer. De kruipruimte ligt niet onder de garage en dat deel woonkamer. Hoe kan ik de vloer daar alsnog isoleren?
Helaas is het nog steeds enorm vochtig in de kruipruimte. Niet alleen qua gevoel, maar ook volgens een goedkope Chinese radio weerstationnetje:

Volgende fase zou zijn om PIR platen te bevestigen. We hebben nog wat HRA teruggave over, dus dit zouden we mooi voor de winter kunnen doen.
Waar kan je goede PIR platen halen voor door een gat van 73cm breed?
BThGvNeOA
Bond Tegen het Gebruik van Nutteloze en Onbekende Afkortingen!
Gewoon uitschrijven wat je bedoelt is zo moeilijk niet... PR (persoonlijk record?), ICE/M/A (verbrandingsmotor?), kdv (kinderdagverblijf), DA (dierenarts?)etc...,
Even een praktisch vraagje: Uiteraard gaan de 120x60cm platen nooit precies passen.
Hoe kun je zo'n PIR of resol-plaat het beste op maat maken? Kun je dat spul gewoon met een handzaag of zo zagen, of valt het dan uit elkaar? Hoe maken jullie dat spul op maat?
Goed werken is ook veilig werken. Zeker als je naden gaat PURren dan is een masker een must.
Lees vooral:
route99 in "Kruipruimte vloer (na-)isoleren" &
route99 in "Kruipruimte vloer (na-)isoleren"