Omdat er praktisch gezien een nieuwe woning wordt gerealiseerd in een bestaande schil, dacht ik dat onze renovatie meer aanknopingspunten heeft met dit topic dan het (projectmatige) nieuwbouw-topic.
Ons project
Afgelopen zomer hebben we onze woonboerderij aangekocht en is er al een boel gesloopt (ik zit eraan te denken om dit bij te houden/rapporteren in een topic, ik heb al een concept geschreven maar wil dit nog aanvullen voor volledigheid. Daarin wil ik ook de kosten bijhouden.). We zitten nu in de onderzoeksfase en zijn in september begonnen om de plannen te visualiseren met een architect. Dit plan + voorlopige afwerkstaat gaat nu naar een aannemer om een kostenoverzicht te hebben.
Doel is om een woning te realiseren op nieuwbouw norm.
Indeling & aanbouw
De woonboerderij is (bijna) leeggehaald en enkel de gebinten, in goede staat, staan nog. De 'aanbouw' is nu ontworpen zodat deze in vorm ondergeschikt is aan de woning maar in stijl wel afsteekt van de woning om een contrast nieuw-oud te creëren. Enige alternatief die ik nog zie is een puntdak, wellicht kan ik daar hier nog adviezen in krijgen. Op basis van een sketchup bestand heb hier wat screenshots van gemaakt, deze zijn hieronder in de post te vinden. Aanbouw wordt aan de noordzijde geplaatst i.v.m. koelere locatie om te slapen en zit deze het minst in het zicht om recht te doen aan de woning (nog een halve meter breder kan, langer is nog ongeveer 1-1.5m mogelijk).
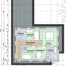
Waar ik nu nieuwsgierig naar ben is: hoe denken jullie over de
indeling, gebruik en grootte van de ruimtes. Alles is nú nog mogelijk qua indeling. Dat is hier natuurlijk maar alom bekend
Technische ruime
Is deze ruimte groot genoeg? Deze wordt tevens gebruikt als
wasruimte met WM + droger, droogrek. We willen hier kwijt de warmtepomp boiler, buffervat, een waterontharder. En misschien ook de WTW-box voor centrale balansventilatie. Uit bovenstaande posts haalde ik al dat een enthalpiewisselaar eigenlijk een must is. Evt zou de WTW-box, vanwege de afmetingen, ook geplaatst kunnen worden boven de hanenbalken in de berging/zolder. Dat wordt al een krappe ruimte, met een luik is deze dan nog bereikbaar om filters te kunnen wisselen, maar eenvoudig zal het niet zijn om daar nog onderhoudt te kunnen plegen. Een andere locatie is evt. de ruimte onder de puntdak-variant van de aanbouw.
Installaties
- Warmtepomp: omdat we alles op nieuwbouwnorm wensen is een logische keuze dan ook een all-electric warmtepomp. Er lijkt geen consensus te zijn welke optie wenselijker, de water/water of een lucht/water installatie. Deze keuze schuif ik nog even voor me uit, al houdt het me al aardig bezig. De lucht/water buitenunit zou dan geplaatst worden direct naast de aanbouw ter hoogte van badkamer/toilet. De benedenverdieping wordt vloerverwarming voorzien, op de verdieping niet. Mogelijk in de toekomst airco indien dit nodig blijkt.
Uit de warmtepomp-topic posts maak ik op dat zoneregeling, mogelijk, de efficiëntie van een WP drastisch onderuit kan halen. Deze nemen we dan ook niet op, goed besluit? - Zonnepanelen: op de woning zelf niet, mogelijk in de toekomst een veldopstelling i.c.m. een thuisaccu. Geen behoefte om hier nu direct in te pionieren, wel laat ik een mantelbuis (diameter?) aanleggen naar buiten. In de toekomst zou ik deze thuisaccu dan in een schuur willen plaatsen. De afstand tot de meterkast zal dan ongeveer 20-25 meter bedragen.
- WTW: In de posts hierboven las ik al dat een enthalpiewisselaar een zeer wenselijk element is om te voorkomen dat de woning te droog wordt, met lichamelijke klachten als gevolg.
- Airco: we nemen geen airco op in de woning, wel wil ik hier voorbereiding voor aanleggen indien later blijkt dat dit toch nodig is middels elektrapunten en mantelbuizen.
- Domotica: hier wil ik geen tweede baan van maken, daarvoor hebben we het thuis te druk. Haar vrees wanneer ik dit woord laat vallen is: ‘ik wil dat alles altijd ‘gewoon’ werkt’. Echter heb ik op dit vlak wel wensen en zal het een Home Assistant of Homey systeem worden. In de inbouwdozen wil ik de installateur vragen om met Z-wave te werken, dus diepere inbouwdozen (?). Een KNX systeem lijkt mij een te grote commitment. Graag wil ik alles op afstand kunnen monitoren (verbruik, bediening, camera/verlichting systeem buiten).
- Waterontharder: minder/geen kalkaanslag aan de apparatuur en hopelijk wat minder boenen in de badkamer.
/f/image/Eo64gVysOHz6pw3eiRSu72FM.png?f=fotoalbum_tile) | /f/image/rtMwIZ1IYq1JjZqAZGV1HJz0.png?f=fotoalbum_tile) |