Leuk huis, maar wat maakt dit een top locatie? Lekker centraal in Europa?MK_ schreef op zondag 7 juli 2024 @ 23:23:
Een oude boerderij... naar mijn inziens prachtig, en qua ligging ook een top locatie.
Ligging qua natuur.MeTooPV schreef op zondag 7 juli 2024 @ 23:29:
[...]
Leuk huis, maar wat maakt dit een top locatie? Lekker centraal in Europa?
Leven gaat door buiten een kantoorpand in de Randstad
12x SunPower X21-350-BLK @ Solar Edge SE3680H (4200Wp) | Dell Inspiron 15 7559 | OnePlus 9 Pro Stellar Black 12/256GB | Xbox Series X | LPG powered
Prachtig pand hoor, kan er bijna niks over zeggen.
Nou oké, een dingetje dan. Die rolluiken, de horror
Nou oké, een dingetje dan. Die rolluiken, de horror
Lenovo W520 - i7 2720QM - 8GB DDR3 1333Mhz - 1080p - Nvidia 1000M - 9 cell accu
Niet zichtbaar op de foto, wel te zien in de 360° foto. Dit ligt tussen je bed en de badkamer, wel zo handig als je 's nachts met een gebroken teen naar de wc wilt.kezzza schreef op zaterdag 6 juli 2024 @ 19:19:
Vrijstaande woning in Hoofddorp, van wel 39m2. Op de foto lijkt het net een schuur, maar het lijkt toch wel bewust als woning gebouwd te zijn.
De m2 prijs is meer in lijn met Amsterdam dan met Hoofddorp.
https://www.funda.nl/deta...n-berghlaan-325/43654561/
Het doet nu al pijn.marijn15 schreef op maandag 8 juli 2024 @ 03:07:
[...]
Niet zichtbaar op de foto, wel te zien in de 360° foto. Dit ligt tussen je bed en de badkamer, wel zo handig als je 's nachts met een gebroken teen naar de wc wilt.
[Afbeelding]
Dingen als Games & Music enzo | En 3D/AI/PS hier | CivitAI Models en Prompts
Echt mooie ligging, ik dacht lijkt wel een belgisch/frans huis, scheelt niet veel.MK_ schreef op zondag 7 juli 2024 @ 23:23:
Een oude boerderij... naar mijn inziens prachtig, en qua ligging ook een top locatie.
[Afbeelding]
[Afbeelding]
[Afbeelding]
[Afbeelding]
Of je het Moai scultuur er bij krijgt weet ik niet
259 m² wonen, 5.985 m² perceel, én gasloos met energielabel A.
€ 950.000 k.k. , het is dat ik het niet heb liggen...
https://www.funda.nl/deta...uis-het-einde-38/89021241
Dingen als Games & Music enzo | En 3D/AI/PS hier | CivitAI Models en Prompts
Hebben ze hier niet ooit iets opgenomen van The Voice of Holland?J_C_W schreef op zondag 7 juli 2024 @ 14:58:
Een soort tunnel dwars door je huis, wat zou het idee hierachter zijn?
Overheid: "We zijn van plan in de toekomst een weg over uw perceel te leggen"
Eigenaar: "Ik zal er rekening mee houden!"
[Afbeelding]
https://www.funda.nl/deta...ersveldseweg-131/43541467
Stond in 2020 trouwens voor ruim een miljoen meer te koop.
Edit: was blijkbaar al in 2018
Road-runner83 in "Wat er nou weer voor een pand te koop staat... - Deel 1"
Elsloo, top locatie? ReallyMK_ schreef op zondag 7 juli 2024 @ 23:23:
Een oude boerderij... naar mijn inziens prachtig, en qua ligging ook een top locatie.
[Afbeelding]
[Afbeelding]
[Afbeelding]
[Afbeelding]
Of je het Moai scultuur er bij krijgt weet ik niet
259 m² wonen, 5.985 m² perceel, én gasloos met energielabel A.
€ 950.000 k.k. , het is dat ik het niet heb liggen...
https://www.funda.nl/deta...uis-het-einde-38/89021241
Mooi pand, heel veel m2. Badkamer vernieuwen en naar Brabanrt verplaatsen :-)
[ Voor 4% gewijzigd door wvkreg op 08-07-2024 08:37 ]
En dan hebben ze niet eens een schommel opgehangenJ_C_W schreef op zondag 7 juli 2024 @ 14:58:
Een soort tunnel dwars door je huis, wat zou het idee hierachter zijn?
Overheid: "We zijn van plan in de toekomst een weg over uw perceel te leggen"
Eigenaar: "Ik zal er rekening mee houden!"
[Afbeelding]
https://www.funda.nl/deta...ersveldseweg-131/43541467
Stond in 2020 trouwens voor ruim een miljoen meer te koop.
Edit: was blijkbaar al in 2018
Road-runner83 in "Wat er nou weer voor een pand te koop staat... - Deel 1"
Wow!J_C_W schreef op zondag 7 juli 2024 @ 14:58:
Een soort tunnel dwars door je huis, wat zou het idee hierachter zijn?
Overheid: "We zijn van plan in de toekomst een weg over uw perceel te leggen"
Eigenaar: "Ik zal er rekening mee houden!"
[Afbeelding]
https://www.funda.nl/deta...ersveldseweg-131/43541467
Stond in 2020 trouwens voor ruim een miljoen meer te koop.
Edit: was blijkbaar al in 2018
Road-runner83 in "Wat er nou weer voor een pand te koop staat... - Deel 1"
Die tunnel maakt het huis wel 'af', archtectonisch dingetje. Dat de slaapkamers nu in de grond liggen maakt het ook een stuk energie zuiniger en koeler in de zomer periode. Als ik het geld had, had ik vandaag nog de makelaar een belletje gedaan, wat een pracht huis
Als ik er serieus op moet ingaan:wvkreg schreef op maandag 8 juli 2024 @ 08:35:
[...]
Elsloo, top locatie? Really
Mooi pand, heel veel m2. Badkamer vernieuwen en naar Brabanrt verplaatsen :-)
- Elsloo stond in de top 5 voor de verkieizing "Allermooiste dorp van Nederland" in de top 5
- Bereikbaarheid is prima: binnen 6 minuten ben je met de auto bij Knooppunt Kerensheide: daarmee kan je alle richtingen op (in totaal 9 min tot aan de Belgische grens/Westen, A2 richting Noord/Zuid en A76 richting Oost/DE)
- 2.9km tot het grootste overdekte winkelcentrum van Limburg (Makado), slechte 9 min met de fiets
- 4 min fietsen van een supermarkt (AH)
- Veel natuur, wandelroutes, etc
- Specifiek voor deze locatie (in het gehucht Catsop, ook al een mooi gehucht an sich): uitzicht
Brabant, really?
12x SunPower X21-350-BLK @ Solar Edge SE3680H (4200Wp) | Dell Inspiron 15 7559 | OnePlus 9 Pro Stellar Black 12/256GB | Xbox Series X | LPG powered
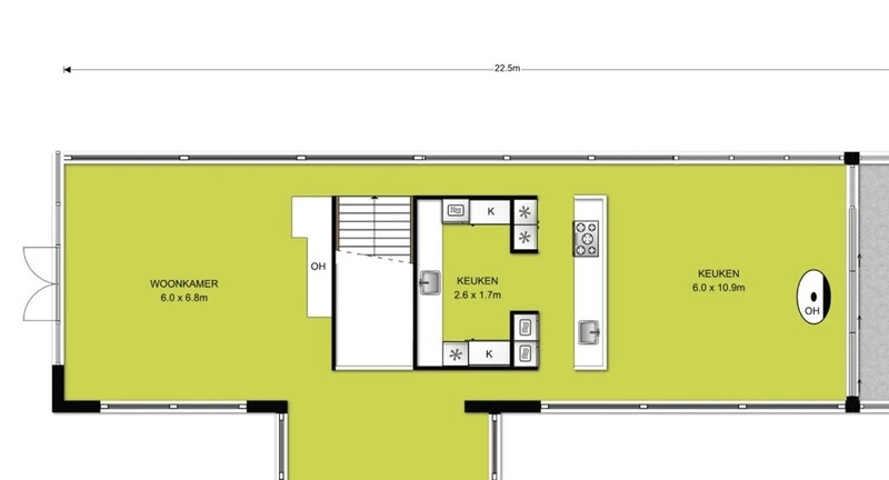
Ik vraag me dan af of die architect van het synchrone is met 2 afzuigkappen, 1 boven het fornuis en dan hangt die ook zo aan del inkerkant. Dan doen we er ook 1 aan de rechterkant boven de spoelbak (vind ik persoonlijk dan wel wat armoedig een enkele spoelbak):
[ Voor 6% gewijzigd door jongetje op 08-07-2024 09:01 ]
Zet je daar de frituur op met een plaat natuurlijk!jongetje schreef op maandag 8 juli 2024 @ 09:00:
[...]
Ik vraag me dan af of die architect van het synchrone is met 2 afzuigkappen, 1 boven het fornuis en dan hangt die ook zo aan del inkerkant. Dan doen we er ook 1 aan de rechterkant boven de spoelbak (vind ik persoonlijk dan wel wat armoedig een enkele spoelbak):
[Afbeelding]
Vond het het ook zo'n afbreuk hebben op het huis! Enkele spoelbak. 100% afknapper
Trotse vader x 2!| Profiel volspammen mag hier: Klik
Je mist de rest van de keuken, afgeschermd van het eiland. Ik vind dat een mooie oplossing. Dan heb je daar namelijk alle vaat, ovens, apparatuur en voorbereiding, en kun je het daadwerkelijke koken aan het eiland doen. De kleine spoelbak op het eiland is voldoende voor wat daar nog moet gebeuren, incl glas water tappen.jongetje schreef op maandag 8 juli 2024 @ 09:00:
[...] (vind ik persoonlijk dan wel wat armoedig een enkele spoelbak):
[Afbeelding]
Naast Chemelot, zou ik geen natuur noemenMK_ schreef op zondag 7 juli 2024 @ 23:41:
[...]
Ligging qua natuur.
Leven gaat door buiten een kantoorpand in de Randstad
Ja, dat kloptWoutR schreef op maandag 8 juli 2024 @ 08:15:
[...]
Hebben ze hier niet ooit iets opgenomen van The Voice of Holland?
Ik kom weleens langs dit pand. Door de lange oprijlaan kan je er heel anoniem wonen.
Oud maar leuk artikel over het huis: https://www.quotenet.nl/v...p-ludiek-landgoed-217923/
@Willem30 Flink afgenomen in prijs dan, als het eerst 5 miljoen moest kosten. Tussentijds verkocht geweest?
Hoeveel marmerlook kan je hebben in je huis zeg..!

https://www.funda.nl/deta...ssenaarstraat-26/89013574

https://www.funda.nl/deta...ssenaarstraat-26/89013574
[ Voor 19% gewijzigd door Dave1989 op 08-07-2024 11:44 ]
Sorry, volgende keer toch maar beter zoeken. Of gewoon topic doornemen, zag deze op vakantie. En had me voorgenomen dit direct hier te plaatsen.
Voor de damp van de kokendwaterkraan en/of afgieten van eten lijkt mij dat wel een prima (en nuttige) aanvulling. Uiteraard alleen als het geen recirculatie is...jongetje schreef op maandag 8 juli 2024 @ 09:00:
[...]
Ik vraag me dan af of die architect van het synchrone is met 2 afzuigkappen, 1 boven het fornuis en dan hangt die ook zo aan del inkerkant. Dan doen we er ook 1 aan de rechterkant boven de spoelbak (vind ik persoonlijk dan wel wat armoedig een enkele spoelbak):
[Afbeelding]
(En wat al gemeld is, er is ook nog een 'werk-spoelbak' aan de andere kant van de keuken, netjes uit het zicht.. Mooie oplossing.)
Lijken mij eerder screens.fonsoy schreef op maandag 8 juli 2024 @ 00:07:
Prachtig pand hoor, kan er bijna niks over zeggen.
Nou oké, een dingetje dan. Die rolluiken, de horror![]()
[Afbeelding]
beetje ver van het werk in de randstad...MK_ schreef op maandag 8 juli 2024 @ 08:55:
[...]
Als ik er serieus op moet ingaan:Dat het niet specifiek in jouw situatie past, dat kan zijn. Maar losstaand daarvan is het een top locatie met een goede balans tussen bereikbaarheid, rust en natuur
- Elsloo stond in de top 5 voor de verkieizing "Allermooiste dorp van Nederland" in de top 5
- Bereikbaarheid is prima: binnen 6 minuten ben je met de auto bij Knooppunt Kerensheide: daarmee kan je alle richtingen op (in totaal 9 min tot aan de Belgische grens/Westen, A2 richting Noord/Zuid en A76 richting Oost/DE)
- 2.9km tot het grootste overdekte winkelcentrum van Limburg (Makado), slechte 9 min met de fiets
- 4 min fietsen van een supermarkt (AH)
- Veel natuur, wandelroutes, etc
- Specifiek voor deze locatie (in het gehucht Catsop, ook al een mooi gehucht an sich): uitzicht
Brabant, really?
Screens hebben niet van dat soort diepe bakken.
Een toplocatie op een kilometer van Maastricht Airport, een meter of 200 tot de A2 en in Limburg. Tja, als je graag vlot op de snelweg bent en veel regionaal vliegt is het topMK_ schreef op zondag 7 juli 2024 @ 23:23:
Een oude boerderij... naar mijn inziens prachtig, en qua ligging ook een top locatie.
[Afbeelding]
[Afbeelding]
[Afbeelding]
[Afbeelding]
Of je het Moai scultuur er bij krijgt weet ik niet
259 m² wonen, 5.985 m² perceel, én gasloos met energielabel A.
€ 950.000 k.k. , het is dat ik het niet heb liggen...
https://www.funda.nl/deta...uis-het-einde-38/89021241
Buitenruimte is leuk, maar als er constant lawaai is (en zeker van 6.00 tot 23.00), dan pas ik.
[ Voor 4% gewijzigd door pagani op 08-07-2024 14:35 ]
Daarom gaf ik al aan:
Niet iedereen werkt in de RandstadDat het niet specifiek in jouw situatie past, dat kan zijn.
Omgevingslawaai van de autosnelweg en MAA is er praktisch niet. Ja, misschien hoor je eens iets, als een motor op de autosnelweg vol optrekt of als de wind juist staat. Het is niet alsof er constant lawaai is van 06:00 tot 23:00.pagani schreef op maandag 8 juli 2024 @ 14:34:
[...]
Een toplocatie op een kilometer van Maastricht Airport, een meter of 200 tot de A2 en in Limburg. Tja, als je graag vlot op de snelweg bent en veel regionaal vliegt is het top
Buitenruimte is leuk, maar als er constant lawaai is (en zeker van 6.00 tot 23.00), dan pas ik.
Wat reviews gelezen van de mini-camping dichtbij... op één review na schrijven ze dit:
Atlas Leefomgevingkaart:Ondanks in de buurt van het vliegveld Maastricht, hoor je vrijwel geen vliegverkeer.
:fill(white):strip_exif()/f/image/EjVSvzDTpkr67bNV2JU9HwOh.png?f=user_large)
Voor het adres staat op 52dB(A) wat hoger lijkt dan mijn ervaring van die plek, maar ok. En dat komt blijkbaar nieteens van de autosnelweg, maar het straatje zelf. Stomme wielertoeristen die een ijsje gaan eten, maken allemaal kabaal :(In Elsloo/Catsop merk je in ieder geval zo goed als niks van zowel de A2 als het vliegveld. Maar ja, het zal niet de allerstilste plek op aarde zijn.
Maar goed, het hoeft ook niet voor iedereen aan te spreken
12x SunPower X21-350-BLK @ Solar Edge SE3680H (4200Wp) | Dell Inspiron 15 7559 | OnePlus 9 Pro Stellar Black 12/256GB | Xbox Series X | LPG powered
Ik wil niet weten wat allemaal in die badkuip en sauna is gebeurd danWoutR schreef op maandag 8 juli 2024 @ 08:15:
[...]
Hebben ze hier niet ooit iets opgenomen van The Voice of Holland?
Je moet je ook afvragen wat zo'n kaart zegt, want wij zouden hier overdag op 58 zitten en 's nachts op 48, maar in de praktijk merk je er helemaal niks van. In de tuin hoor je het niet, eigenlijk alleen op zolder hoor je het als het 's avonds verder heel stil is.MK_ schreef op maandag 8 juli 2024 @ 15:06:
[...]
Atlas Leefomgevingkaart:
[Afbeelding]
Voor het adres staat op 52dB(A) wat hoger lijkt dan mijn ervaring van die plek, maar ok. En dat komt blijkbaar nieteens van de autosnelweg, maar het straatje zelf. Stomme wielertoeristen die een ijsje gaan eten, maken allemaal kabaal :(In Elsloo/Catsop merk je in ieder geval zo goed als niks van zowel de A2 als het vliegveld. Maar ja, het zal niet de allerstilste plek op aarde zijn.
Maar goed, het hoeft ook niet voor iedereen aan te spreken
52 is blijkbaar wat je overal hebt in een matig drukke straat (hoofdweg in een klein dorpje), dat is gewoon lekker rustig
fonsoy schreef op maandag 8 juli 2024 @ 00:07:
Prachtig pand hoor, kan er bijna niks over zeggen.
Nou oké, een dingetje dan. Die rolluiken, de horror![]()
[Afbeelding]
Uit de tekst van de makelaar:
Geen idee of compriband-resten beter te verwijderen zijn dan kitresten?[...]en op de gehele achterzijde zijn elektische (Somfy) bedienbare antraciete rolluiken aanwezig. De rolluiken zijn doordacht aangebracht en niet gekit, maar aangebracht met compriband om bij verwijdering geen kitresten achter te laten op de gevels.
Dit is toch precies waar je aan denkt bij het woord 'Villa'?Prachtig gelegen nabij het strand en de duinen van Katwijk, vindt u deze moderne en ruime villa aan de Sportlaan.

Zwaaien naar de buren

Sfeervolle tuin

Uitzicht op parkeerterrein en een camping

Deze villa staat te koop voor 1,5 Miljoen
https://www.funda.nl/deta...huis-sportlaan-4/43667764
Zou toch grappig zijn als je dat huis net gekocht hebt en er komen ineens mannetjes een spoor aanleggen.J_C_W schreef op zondag 7 juli 2024 @ 14:58:
Een soort tunnel dwars door je huis, wat zou het idee hierachter zijn?
Overheid: "We zijn van plan in de toekomst een weg over uw perceel te leggen"
Eigenaar: "Ik zal er rekening mee houden!"
[Afbeelding]
https://www.funda.nl/deta...ersveldseweg-131/43541467
Stond in 2020 trouwens voor ruim een miljoen meer te koop.
Edit: was blijkbaar al in 2018
Road-runner83 in "Wat er nou weer voor een pand te koop staat... - Deel 1"
Dingen als Games & Music enzo | En 3D/AI/PS hier | CivitAI Models en Prompts
Hoe zeg ik dat ik niet uit de bollenstreek kom, zonder te zeggen dat ik niet uit de bollenstreek kom.Kalentum schreef op maandag 8 juli 2024 @ 15:44:
[...]
Dit is toch precies waar je aan denkt bij het woord 'Villa'?
[Afbeelding]
Zwaaien naar de buren
[Afbeelding]
Sfeervolle tuin
[Afbeelding]
Uitzicht op parkeerterrein en een camping
[Afbeelding]
Deze villa staat te koop voor 1,5 Miljoen
https://www.funda.nl/deta...huis-sportlaan-4/43667764
2x vallen van het strand af. Is zo weg gok ik.
En je fietst vanaf je voordeur zo naar de Slag #cyclingJasper89 schreef op maandag 8 juli 2024 @ 15:58:
[...]
Hoe zeg ik dat ik niet uit de bollenstreek kom, zonder te zeggen dat ik niet uit de bollenstreek kom.
2x vallen van het strand af. Is zo weg gok ik.
Dat zwaaien naar de buren valt ook wel mee.. Zit niet veel ruimte tussen maar wel een 10-15 meter.Kalentum schreef op maandag 8 juli 2024 @ 15:44:
[...]
Dit is toch precies waar je aan denkt bij het woord 'Villa'?
[Afbeelding]
Zwaaien naar de buren
[Afbeelding]
Sfeervolle tuin
[Afbeelding]
Uitzicht op parkeerterrein en een camping
[Afbeelding]
Deze villa staat te koop voor 1,5 Miljoen
https://www.funda.nl/deta...huis-sportlaan-4/43667764
Verder wat een aparte tuin, er is geen deur naar de tuin, behalve de trap vanaf de kamer naast de keuken, geen deur vanuit de slaapkamers op de BG, heel apart.
Een frituurpan naast de kraan waarnee koud water in het vet kan spetteren lijkt mij geen goed idee.SideSwipe schreef op maandag 8 juli 2024 @ 09:22:
[...]
Zet je daar de frituur op met een plaat natuurlijk!
Vond het het ook zo'n afbreuk hebben op het huis! Enkele spoelbak. 100% afknapper
Gasloos huis 9kW Panasonic WH-MDC09J3E5 | Atlantic Explorer V4 270L | 8715Wp @ SMA Tripower 6.0-3AV-40 (4150Wp NO, 4565Wp ZW)
Compriband plak je met 1 kant aan de rolluiken vast. De andere kant is een schuimachtig iets dat uitzet en op die manier de boel afsluit. Er blijft dan inderdaad niets op de muur achter bij verwijdering van de luikenB64 schreef op maandag 8 juli 2024 @ 15:34:
Geen idee of compriband-resten beter te verwijderen zijn dan kitresten?
Je kan gewoon hard op de muur bonken want aan de andere kant zitten de buren aan je vast. Daarmee is het ook niet vrijstaand en dus geen villa volgens de definitie die Funda hanteert.iketot schreef op maandag 8 juli 2024 @ 16:03:
[...]
Dat zwaaien naar de buren valt ook wel mee.. Zit niet veel ruimte tussen maar wel een 10-15 meter.
Verder wat een aparte tuin, er is geen deur naar de tuin, behalve de trap vanaf de kamer naast de keuken, geen deur vanuit de slaapkamers op de BG, heel apart.
WP: Mitsubishi Ecodan PUHZ-SHW112YAA, ERSC-VM2C, Procon ┃ PV: 4800Wp, SolarEdge SE5K, 15x JAM60S17/320, ZW 15º ┃ WTW: Zehnder Q600 ┃ SH: Home Assistant, Proxmox, Intel NUC 8i5 Mini
Ging over de foto waarop je naar buiten kijkt en het huis van de buren ziet..breinonline schreef op maandag 8 juli 2024 @ 16:20:
[...]
Je kan gewoon hard op de muur bonken want aan de andere kant zitten de buren aan je vast. Daarmee is het ook niet vrijstaand en dus geen villa volgens de definitie die Funda hanteert.
Daaronder stond namelijk de comment "Lekker zwaaien naar de buren".
Klopt inderdaad dat dit zeker geen villa of vrijstaand is. Gewoon een 2 onder 1 kapper.
Zijn die Paaseiland-beelden zeg maar de nieuwe Boeddha-beelden?MK_ schreef op zondag 7 juli 2024 @ 23:23:
Een oude boerderij... naar mijn inziens prachtig, en qua ligging ook een top locatie.
[Afbeelding]
[Afbeelding]
[Afbeelding]
[Afbeelding]
Of je het Moai scultuur er bij krijgt weet ik niet
259 m² wonen, 5.985 m² perceel, én gasloos met energielabel A.
€ 950.000 k.k. , het is dat ik het niet heb liggen...
https://www.funda.nl/deta...uis-het-einde-38/89021241
Heb het idee dat ik ze steeds vaker zie opduiken namelijk.
Catch a smile out there!
Niet genoeg blijkbaar. Hier waren de tegels opDave1989 schreef op maandag 8 juli 2024 @ 11:43:
Hoeveel marmerlook kan je hebben in je huis zeg..!
[Afbeelding]
https://www.funda.nl/deta...ssenaarstraat-26/89013574
I mentioned it once, but I think I got away with it.
Mijn achterburen zijn 25m verwijderd en ik kan toch echt met gemak naar ze zwaaien hoor.iketot schreef op maandag 8 juli 2024 @ 16:37:
[...]
Ging over de foto waarop je naar buiten kijkt en het huis van de buren ziet..
Daaronder stond namelijk de comment "Lekker zwaaien naar de buren".
Klopt inderdaad dat dit zeker geen villa of vrijstaand is. Gewoon een 2 onder 1 kapper.
Goed dat er een maairobot de boel kort houdt. Stel je voor dat je een beetje biodiversiteit in je "tuin" hebt.Kalentum schreef op maandag 8 juli 2024 @ 15:44:
[...]
Dit is toch precies waar je aan denkt bij het woord 'Villa'?
[Afbeelding]
Zwaaien naar de buren
[Afbeelding]
Sfeervolle tuin
[Afbeelding]
Uitzicht op parkeerterrein en een camping
[Afbeelding]
Deze villa staat te koop voor 1,5 Miljoen
https://www.funda.nl/deta...huis-sportlaan-4/43667764
Gasloos huis 9kW Panasonic WH-MDC09J3E5 | Atlantic Explorer V4 270L | 8715Wp @ SMA Tripower 6.0-3AV-40 (4150Wp NO, 4565Wp ZW)
Ik meen zelfs dat ze pas na 7.00 mogen vliegen, en dan nog is het lawaai vaak de andere kant op, afhankelijk van de windrichting. In Geverik gaan de pannen van het dak, in Catsop niet.MK_ schreef op maandag 8 juli 2024 @ 15:06:
Omgevingslawaai van de autosnelweg en MAA is er praktisch niet. Ja, misschien hoor je eens iets, als een motor op de autosnelweg vol optrekt of als de wind juist staat. Het is niet alsof er constant lawaai is van 06:00 tot 23:00.
[ Voor 35% gewijzigd door VeertienKaVier op 09-07-2024 08:13 . Reden: te veel off-topic gemopper, had mijn koffie nog niet gehad. ]
Je hebt zelf geen gazon gok ik?timovd schreef op maandag 8 juli 2024 @ 19:03:
[...]
Goed dat er een maairobot de boel kort houdt. Stel je voor dat je een beetje biodiversiteit in je "tuin" hebt.
Daily driver | ’19 Ford Focus ST | Orange Fury
M.I.A.T.A. Is Always The Answer
voor de locatie zou ik het wel en juist niet doen.Kalentum schreef op maandag 8 juli 2024 @ 15:44:
[...]
Dit is toch precies waar je aan denkt bij het woord 'Villa'?
[Afbeelding]
Zwaaien naar de buren
[Afbeelding]
Sfeervolle tuin
[Afbeelding]
Uitzicht op parkeerterrein en een camping
[Afbeelding]
Deze villa staat te koop voor 1,5 Miljoen
https://www.funda.nl/deta...huis-sportlaan-4/43667764
Wel, want twee keer hinkelen en je zit op het strand. Als ik ergens het jaar rond door zou mogen brengen is het aan de kust/op het strand.
En juist niet omdat het echt overkomt als een industrieterrein. Daar is nog iets aan te doen door je achtertuin wat groener te maken en eventueel, als het mag, wat bomen neer te zetten. Maar verder vind ik het deprimerend.
En nog een algemeen ding: wat is het met televisies. In je huiskamer snap ik nog wel, maar ik zie echt emmers met huizen die soms in elke kamer een televisie hebben hangen. En vooral in slaapkamers. Persoonlijk vind ik slaapkamers om te slapen en om seks te hebben. En een televisie in de slaapkamer komt op mij altijd een beetje over dat het huwelijk in de slaapkamer een beetje mat geworden is.
My doctor says that I have a malformed public-duty gland and a natural deficiency in moral fibre and that I am therefore excused from saving the world
Jij hebt zeker geen puberende kinderen?YellowCube schreef op dinsdag 9 juli 2024 @ 08:57:
[...]
voor de locatie zou ik het wel en juist niet doen.
Wel, want twee keer hinkelen en je zit op het strand. Als ik ergens het jaar rond door zou mogen brengen is het aan de kust/op het strand.
En juist niet omdat het echt overkomt als een industrieterrein. Daar is nog iets aan te doen door je achtertuin wat groener te maken en eventueel, als het mag, wat bomen neer te zetten. Maar verder vind ik het deprimerend.
En nog een algemeen ding: wat is het met televisies. In je huiskamer snap ik nog wel, maar ik zie echt emmers met huizen die soms in elke kamer een televisie hebben hangen. En vooral in slaapkamers. Persoonlijk vind ik slaapkamers om te slapen en om seks te hebben. En een televisie in de slaapkamer komt op mij altijd een beetje over dat het huwelijk in de slaapkamer een beetje mat geworden is.
nog niet. En ook geen gazon
My doctor says that I have a malformed public-duty gland and a natural deficiency in moral fibre and that I am therefore excused from saving the world
Plankendragers verkeerd gemonteerd (zoals bijna iedereen). Het uiteinde hoort in een klein gaatje te vallen in de plank dus de drager zit er echt onder. Anders krijg je dat de hele plank zijwaarts bewogen kan worden.brama schreef op maandag 8 juli 2024 @ 16:55:
[...]
Niet genoeg blijkbaar. Hier waren de tegels op![]()
[Afbeelding]
Ken je dat gevoel dat je 's avonds keihard zit te bingen in je favoriete serie, en dat het ineens later is dan je had gedacht? Dat je dreigt in slaap te vallen en je eigenlijk niet meer de energie hebt om van de bank op te staan om de glazen op te ruimen en je tanden te poetsen? Hoe lekker zou het zijn als je dan dat laatste afleveringetje in bed had aan kunnen zetten..YellowCube schreef op dinsdag 9 juli 2024 @ 08:57:
[...]
voor de locatie zou ik het wel en juist niet doen.
Wel, want twee keer hinkelen en je zit op het strand. Als ik ergens het jaar rond door zou mogen brengen is het aan de kust/op het strand.
En juist niet omdat het echt overkomt als een industrieterrein. Daar is nog iets aan te doen door je achtertuin wat groener te maken en eventueel, als het mag, wat bomen neer te zetten. Maar verder vind ik het deprimerend.
En nog een algemeen ding: wat is het met televisies. In je huiskamer snap ik nog wel, maar ik zie echt emmers met huizen die soms in elke kamer een televisie hebben hangen. En vooral in slaapkamers. Persoonlijk vind ik slaapkamers om te slapen en om seks te hebben. En een televisie in de slaapkamer komt op mij altijd een beetje over dat het huwelijk in de slaapkamer een beetje mat geworden is.
Daily driver | ’19 Ford Focus ST | Orange Fury
M.I.A.T.A. Is Always The Answer
Als ik m'n gazon vier keer per jaar maai, is 't veel. Er groeit en bloeit van alles tussen de grassprieten, veel mooier dan zo'n saaie groene vlakte.
Ik wel, en die hebben geen tv op de slaapkamer. Wij zelf trouwens ook niet. Ik snap de verbazing van @YellowCube dus helemaal.
is seks dan alleen voor de slaapkamer of kan seks niet in ruimtes waar televisies hangen?YellowCube schreef op dinsdag 9 juli 2024 @ 08:57:
[...]
En nog een algemeen ding: wat is het met televisies. In je huiskamer snap ik nog wel, maar ik zie echt emmers met huizen die soms in elke kamer een televisie hebben hangen. En vooral in slaapkamers. Persoonlijk vind ik slaapkamers om te slapen en om seks te hebben. En een televisie in de slaapkamer komt op mij altijd een beetje over dat het huwelijk in de slaapkamer een beetje mat geworden is.
Veroordeel niet, verwonder u slechts
Het is ook te hopen dat die tennisvereniging in de achtertuin niet mee gaat doen aan de padel hype. Dat zit je ook niet meer lekker rustig te chillen bij je zwembad.Kalentum schreef op maandag 8 juli 2024 @ 15:44:
[...]
Dit is toch precies waar je aan denkt bij het woord 'Villa'?
[..]
https://www.funda.nl/deta...huis-sportlaan-4/43667764
droogworst - rookworst - leverworst - salamiworst - knakworst - bokworst - boterhammenworst
Een pareltje hier in Oss. Kijk vooral even de 360 graden foto's en dan de slaapkamer
https://www.funda.nl/deta.../huis-harnas-96/43667362/
https://www.funda.nl/deta...edia/360-foto/slaapkamer4
Prachtig bed, en prachtige hobbykamer.
https://www.funda.nl/deta.../huis-harnas-96/43667362/
https://www.funda.nl/deta...edia/360-foto/slaapkamer4
Prachtig bed, en prachtige hobbykamer.
[ Voor 7% gewijzigd door Family Guy op 09-07-2024 10:08 ]
Steam ID = Ackerfiets
Misschien houden ze van zeilen of zijn het padvindersFamily Guy schreef op dinsdag 9 juli 2024 @ 10:07:
Een pareltje hier in Oss. Kijk vooral even de 360 graden foto's en dan de slaapkamer![]()
https://www.funda.nl/deta.../huis-harnas-96/43667362/
https://www.funda.nl/deta...edia/360-foto/slaapkamer4
Prachtig bed, en prachtige hobbykamer.
Hahahahahah geniaal dit.Family Guy schreef op dinsdag 9 juli 2024 @ 10:07:
Een pareltje hier in Oss. Kijk vooral even de 360 graden foto's en dan de slaapkamer![]()
https://www.funda.nl/deta.../huis-harnas-96/43667362/
https://www.funda.nl/deta...edia/360-foto/slaapkamer4
Prachtig bed, en prachtige hobbykamer.
Hoe gaat dat dan met de makelaar, kom je eerste gesprek rondleiding door het huis..
En daarna de fotograaf die alles redelijk netjes uit beeld weet te houden tot die 360 graden foto 😅
Leuke straatnaam ook!
Haha, damn.. de kijkers zullen ook wel opkijken als ze niet van te voren de 360 graden foto goed hebben bekekenFamily Guy schreef op dinsdag 9 juli 2024 @ 10:07:
Een pareltje hier in Oss. Kijk vooral even de 360 graden foto's en dan de slaapkamer![]()
https://www.funda.nl/deta.../huis-harnas-96/43667362/
https://www.funda.nl/deta...edia/360-foto/slaapkamer4
Prachtig bed, en prachtige hobbykamer.
Nee, vind ik eigenlijk helemaal niet lekker. Ik ben al een slechte slaper en dan doe ik daarna geen oog meer dicht.Fanta schreef op dinsdag 9 juli 2024 @ 09:39:
[...]
Ken je dat gevoel dat je 's avonds keihard zit te bingen in je favoriete serie, en dat het ineens later is dan je had gedacht? Dat je dreigt in slaap te vallen en je eigenlijk niet meer de energie hebt om van de bank op te staan om de glazen op te ruimen en je tanden te poetsen? Hoe lekker zou het zijn als je dan dat laatste afleveringetje in bed had aan kunnen zetten..
Overigens ieder zijn ding verder natuurlijk.
Nou ja, in ieder geval wel met zwembad. De meeste luchtplaatsen zijn niet zo luxe uitgevoerd.
En dan de straatnaam, HarnasFamily Guy schreef op dinsdag 9 juli 2024 @ 10:07:
Een pareltje hier in Oss. Kijk vooral even de 360 graden foto's en dan de slaapkamer![]()
https://www.funda.nl/deta.../huis-harnas-96/43667362/
https://www.funda.nl/deta...edia/360-foto/slaapkamer4
Prachtig bed, en prachtige hobbykamer.
Haha, ik zat al te zoeken.Family Guy schreef op dinsdag 9 juli 2024 @ 10:07:
Een pareltje hier in Oss. Kijk vooral even de 360 graden foto's en dan de slaapkamer![]()
https://www.funda.nl/deta.../huis-harnas-96/43667362/
https://www.funda.nl/deta...edia/360-foto/slaapkamer4
Prachtig bed, en prachtige hobbykamer.
1e slaapkamer: Ehmm hier is niet zoveel vreemds toch?
2e slaapkamer: Hmm, bijzondere constructie boven het bed....
3e slaapkamer: Aaah.
En de wijknaam, zie het Google Maps kaartje onderaan, zou die voor het gemak maar als 'Het Gepeupel' worden uitgesproken daar in Brabant...?
Keep your wits sharp, your heart open and your gun loaded. And never mess with mother nature, mother in-laws and, mother freaking Ukrainians.
Ook aanduiden als ‘inloopkast’ 😂Family Guy schreef op dinsdag 9 juli 2024 @ 10:07:
Een pareltje hier in Oss. Kijk vooral even de 360 graden foto's en dan de slaapkamer![]()
https://www.funda.nl/deta.../huis-harnas-96/43667362/
https://www.funda.nl/deta...edia/360-foto/slaapkamer4
Prachtig bed, en prachtige hobbykamer.
Helaas doet Funda er niks aan.. Ik heb wel vaker dit soort woningen gerapporteerd want de term 'villa' is gewoon objectief gezien fout, maar ze blijven gewoon staanKalentum schreef op maandag 8 juli 2024 @ 15:44:
[...]
Dit is toch precies waar je aan denkt bij het woord 'Villa'?
[Afbeelding]
Zwaaien naar de buren
[Afbeelding]
Sfeervolle tuin
[Afbeelding]
Uitzicht op parkeerterrein en een camping
[Afbeelding]
Deze villa staat te koop voor 1,5 Miljoen
https://www.funda.nl/deta...huis-sportlaan-4/43667764
Ahh ik zie het ja, daar zal wel een "jockey" wonen.imoul schreef op dinsdag 9 juli 2024 @ 10:43:
[...]
Haha, ik zat al te zoeken.
1e slaapkamer: Ehmm hier is niet zoveel vreemds toch?
2e slaapkamer: Hmm, bijzondere constructie boven het bed....
3e slaapkamer: Aaah.![]()
![]()
Toch grappig hoe je zegt dat bijna iedereen het verkeerd doet, misschien dat je dan zelf even na moet gaan of jij het niet anders doet dan dat het "hoort"Vaevictis_ schreef op dinsdag 9 juli 2024 @ 09:35:
[...]
Plankendragers verkeerd gemonteerd (zoals bijna iedereen). Het uiteinde hoort in een klein gaatje te vallen in de plank dus de drager zit er echt onder. Anders krijg je dat de hele plank zijwaarts bewogen kan worden.
Hier een instructievideo van Duraline, verkoper van dit soort spul: YouTube: HOW TO: Duraline enkele rail, enkele drager en paneel monteren - Ned...
Het kan ook gewoon beide goed zijn. Om het randje heen als je planken heb die precies passen, of in een gaatje als je planken hebt die wat langer zijn. Waar natuurlijk het risico bestaat dat als je langer gaat, je niet teveel gewicht om het einde moet zetten omdat anders je hele plank naar beneden lazert.
blup
Ja ik dacht al, je gaat toch geen gaatjes in die plank boren en het is toch geen toeval dat al die beugels exact de standaard maten van planken hebben?sehnugr schreef op dinsdag 9 juli 2024 @ 11:52:
[...]
Toch grappig hoe je zegt dat bijna iedereen het verkeerd doet, misschien dat je dan zelf even na moet gaan of jij het niet anders doet dan dat het "hoort"
Hier een instructievideo van Duraline, verkoper van dit soort spul: YouTube: HOW TO: Duraline enkele rail, enkele drager en paneel monteren - Ned...
Veroordeel niet, verwonder u slechts
Helemaal waar, daarom de quotes om het woord hoort. Maar om dan te zeggen dat de planken verkeerd liggen terwijl dat tekstboek is hoe ze opgehangen moeten worden is een beetje raar.Bezulba schreef op dinsdag 9 juli 2024 @ 11:56:
Het kan ook gewoon beide goed zijn. Om het randje heen als je planken heb die precies passen, of in een gaatje als je planken hebt die wat langer zijn. Waar natuurlijk het risico bestaat dat als je langer gaat, je niet teveel gewicht om het einde moet zetten omdat anders je hele plank naar beneden lazert.
Een woning waar de wereld aan je voorbij raast 

https://www.funda.nl/deta...-herenstraat-173/43667259
Als je bankiert op de toekomst en je uiterst optimistisch bent kan je er wellicht aankopen om in de toekomst te "profiteren". Al is dit meer wensdenken dan realistisch.

https://www.funda.nl/deta...-herenstraat-173/43667259
Als je bankiert op de toekomst en je uiterst optimistisch bent kan je er wellicht aankopen om in de toekomst te "profiteren". Al is dit meer wensdenken dan realistisch.
Moet je wel heel jong en optimistisch zijn want de ondertunnelde aanleg van de N14 (Landscheidingsweg) heeft 60 jaar geduurd.Napo schreef op dinsdag 9 juli 2024 @ 12:29:
Een woning waar de wereld aan je voorbij raast
[Afbeelding]
https://www.funda.nl/deta...-herenstraat-173/43667259
Als je bankiert op de toekomst en je uiterst optimistisch bent kan je er wellicht aankopen om in de toekomst te "profiteren". Al is dit meer wensdenken dan realistisch.
Hoop doet leven, maar gevoelsmatig gaat die hoop je inderdaad niet zo lang in leven houden 😜synoniem schreef op dinsdag 9 juli 2024 @ 12:48:
[...]
Moet je wel heel jong en optimistisch zijn want de ondertunnelde aanleg van de N14 (Landscheidingsweg) heeft 60 jaar geduurd.
Handig voor als je ziek bent. Of als je partner/kinderen houden van sport kijken en jij daar een hekel aan hebt. Ik denk dat die tv in veel huishoudens ook niet echt van gebruikt wordt, maar toch wel zo af en toe.YellowCube schreef op dinsdag 9 juli 2024 @ 08:57:
[...]
En nog een algemeen ding: wat is het met televisies. In je huiskamer snap ik nog wel, maar ik zie echt emmers met huizen die soms in elke kamer een televisie hebben hangen. En vooral in slaapkamers. Persoonlijk vind ik slaapkamers om te slapen en om seks te hebben. En een televisie in de slaapkamer komt op mij altijd een beetje over dat het huwelijk in de slaapkamer een beetje mat geworden is.
Dat het op een gunstige locatie staat maakt het niet meteen tot een villa. Ik zie het huis zelf vooral als een middelmatige hoekwoning. Dat verandert niet als het op een steenworp van het strand ligtJasper89 schreef op maandag 8 juli 2024 @ 15:58:
[...]
Hoe zeg ik dat ik niet uit de bollenstreek kom, zonder te zeggen dat ik niet uit de bollenstreek kom.
2x vallen van het strand af. Is zo weg gok ik.
Eens, hier ook TV in de slaapkamer, en soms wel lekker, om in het weekend lekker ff in bed serie kijken ipv meteen naar beneden te gaan om daar te kijken. Of in de avond, nog even wat kijken voor 't slapen.Rubbergrover1 schreef op dinsdag 9 juli 2024 @ 13:25:
[...]
Handig voor als je ziek bent. Of als je partner/kinderen houden van sport kijken en jij daar een hekel aan hebt. Ik denk dat die tv in veel huishoudens ook niet echt van gebruikt wordt, maar toch wel zo af en toe.
(en er is ook nog gewoon seks in de slaapkamer
Helemaal geen tv meer of hooguit in de woonkamer. Huizen met tv's op de slaapkamer is voor mij een rode vlag.YellowCube schreef op dinsdag 9 juli 2024 @ 08:57:
En nog een algemeen ding: wat is het met televisies. In je huiskamer snap ik nog wel, maar ik zie echt emmers met huizen die soms in elke kamer een televisie hebben hangen. En vooral in slaapkamers. Persoonlijk vind ik slaapkamers om te slapen en om seks te hebben. En een televisie in de slaapkamer komt op mij altijd een beetje over dat het huwelijk in de slaapkamer een beetje mat geworden is.
You take the blue pill – the story ends and you believe whatever you want to. You take the orange pill – you stay in Wonderland, and I show you how deep the rabbit hole goes. Huis uit 1899
ja zonde dat Funda die filter optie niet heeftRefrag schreef op dinsdag 9 juli 2024 @ 14:01:
[...]
Helemaal geen tv meer of hooguit in de woonkamer. Huizen met tv's op de slaapkamer is voor mij een rode vlag.
Was er maar een makkelijke manier om een tv te verwijderen nadat je een huis gekocht hebt.... Volgens mij een gat in de marktMillie-ano schreef op dinsdag 9 juli 2024 @ 14:04:
[...]
ja zonde dat Funda die filter optie niet heeft
Canon R7 || RF 100-500mm F/4.5-7.1 L IS USM || 100-400mm F/4.5-5.6 L IS USM || EF-S 15-85mm F/3.5-5.6 IS USM || 50mm F1.4 USM || Speedlite 430EX II
Dan kom je nooit meer in dat huis of dan ban je de mensen uit dat huis uit je leven?Refrag schreef op dinsdag 9 juli 2024 @ 14:01:
[...]
Helemaal geen tv meer of hooguit in de woonkamer. Huizen met tv's op de slaapkamer is voor mij een rode vlag.
I could feel at the time There was no way of knowing Fallen leaves in the night Who can say where they're blowing As free as the wind And hopefully learning Why the sea on the tide Has no way of turning
Of een gat in de muur.rockhopper schreef op dinsdag 9 juli 2024 @ 14:11:
[...]
Was er maar een makkelijke manier om een tv te verwijderen nadat je een huis gekocht hebt.... Volgens mij een gat in de markt
Nee, ik match die data met de data van de gemeenteregister. Dan weet ik welke mensen er niet meer welkom zijn in Koninkrijk Bezulba wanneer ik onze onafhankelijkheid uitroep.Dinictus208 schreef op dinsdag 9 juli 2024 @ 14:13:
[...]
Dan kom je nooit meer in dat huis of dan ban je de mensen uit dat huis uit je leven?
blup
De makelaar heeft de foto offline gehaaldFamily Guy schreef op dinsdag 9 juli 2024 @ 10:07:
Een pareltje hier in Oss. Kijk vooral even de 360 graden foto's en dan de slaapkamer![]()
https://www.funda.nl/deta.../huis-harnas-96/43667362/
https://www.funda.nl/deta...edia/360-foto/slaapkamer4
Prachtig bed, en prachtige hobbykamer.
Waarom denk je dat het huis te koop staat?YellowCube schreef op dinsdag 9 juli 2024 @ 08:57:
[...]
En nog een algemeen ding: wat is het met televisies. In je huiskamer snap ik nog wel, maar ik zie echt emmers met huizen die soms in elke kamer een televisie hebben hangen. En vooral in slaapkamers. Persoonlijk vind ik slaapkamers om te slapen en om seks te hebben. En een televisie in de slaapkamer komt op mij altijd een beetje over dat het huwelijk in de slaapkamer een beetje mat geworden is.
Huwelijk kapot
Ik zag hem vanochtend ook al voorbij komen. Ben wel erg benieuwd of hier nu iemand woont die ik kenFamily Guy schreef op dinsdag 9 juli 2024 @ 10:07:
Een pareltje hier in Oss. Kijk vooral even de 360 graden foto's en dan de slaapkamer![]()
https://www.funda.nl/deta.../huis-harnas-96/43667362/
https://www.funda.nl/deta...edia/360-foto/slaapkamer4
Prachtig bed, en prachtige hobbykamer.
Zucht...
Wonen ook kinderen denk ik gezien de tekeningen in de hal. Leuk dat je die hobby hebt hoor, maar hierna kun je gewoonweg niet normaal meer over straat lopen (normaal ook al niet vanwege de pijn en de striemenSgtElPotato schreef op dinsdag 9 juli 2024 @ 14:29:
[...]
Ik zag hem vanochtend ook al voorbij komen. Ben wel erg benieuwd of hier nu iemand woont die ik ken
OK, zo'n huisje waarvan je je afvraagt of er ook wielen onder zitten. Nee dus, maar wel een flink souterrain. En het is een stuk groter dan je op het eerste gezicht zou denken. Binnen een saaie kale bende trouwens.

https://www.funda.nl/deta...gezichtslaan-53/43668474/

https://www.funda.nl/deta...gezichtslaan-53/43668474/
Keep your wits sharp, your heart open and your gun loaded. And never mess with mother nature, mother in-laws and, mother freaking Ukrainians.
Wat een agressieve straatnaam, ook al was die ooit anders bedoeld.
[ Voor 63% gewijzigd door trabant op 09-07-2024 15:06 ]
KPN is een drieletterwoord
Ik had toch wel makelaarsteksten verwacht als "Op steenworp afstand van NS station" en "Nabij uitvalswegen"Napo schreef op dinsdag 9 juli 2024 @ 12:29:
Een woning waar de wereld aan je voorbij raast
[Afbeelding]
https://www.funda.nl/deta...-herenstraat-173/43667259
Als je bankiert op de toekomst en je uiterst optimistisch bent kan je er wellicht aankopen om in de toekomst te "profiteren". Al is dit meer wensdenken dan realistisch.
Raad de auto'sFiber schreef op dinsdag 9 juli 2024 @ 14:49:
OK, zo'n huisje waarvan je je afvraagt of er ook wielen onder zitten. Nee dus, maar wel een flink souterrain. En het is een stuk groter dan je op het eerste gezicht zou denken. Binnen een saaie kale bende trouwens.![]()
[Afbeelding]
https://www.funda.nl/deta...gezichtslaan-53/43668474/
Buiten is het ook maar saai, maar qua bouwstijl kan ik dit wel enorm waarderen.
Even mijn blauwe maandag opleiding binnenhuisarchitectuur aanwenden, en er is flink wat van te maken.
Verwijderd
raar huis, lijkt meer op een typisch jaren 70 bungalowtje, maar ook op een soort van jaren 80 kantoor oid.Fiber schreef op dinsdag 9 juli 2024 @ 14:49:
OK, zo'n huisje waarvan je je afvraagt of er ook wielen onder zitten. Nee dus, maar wel een flink souterrain. En het is een stuk groter dan je op het eerste gezicht zou denken. Binnen een saaie kale bende trouwens.![]()
[Afbeelding]
https://www.funda.nl/deta...gezichtslaan-53/43668474/
maar dr is wel wat van te maken.
Het zal waarschijnlijk vooral komen doordat de inboedel al grotendeels verdeeld is/naar de kringloop is. Daardoor ziet het er nu kil en levenloos uit. Maar even de lokale Roos het interieur laten aanpakken en het is een heel ander gezicht.Verwijderd schreef op dinsdag 9 juli 2024 @ 16:47:
[...]
raar huis, lijkt meer op een typisch jaren 70 bungalowtje, maar ook op een soort van jaren 80 kantoor oid.
maar dr is wel wat van te maken.
Heb het idee dat de 360-foto in kwestie er niet meer bij staat? De gelinkte blijft zwart.Family Guy schreef op dinsdag 9 juli 2024 @ 10:07:
Een pareltje hier in Oss. Kijk vooral even de 360 graden foto's en dan de slaapkamer![]()
https://www.funda.nl/deta.../huis-harnas-96/43667362/
https://www.funda.nl/deta...edia/360-foto/slaapkamer4
Prachtig bed, en prachtige hobbykamer.
Kun je omschrijven wat het was, of is het dan gelijk in strijd met de policy?
ah * steveman kruist "iets met seks" aan op de bingokaart
[ Voor 5% gewijzigd door steveman op 09-07-2024 17:40 ]
"Take the risk of thinking for yourself. Much more happiness, truth, beauty, and wisdom will come to you that way." -Christopher Hitchens | In memoriam? 🏁 ipv kruis!
Iets met steigerbuizen, heel veel touwen en zweepjes...steveman schreef op dinsdag 9 juli 2024 @ 17:37:
[...]
Heb het idee dat de 360-foto in kwestie er niet meer bij staat? De gelinkte blijft zwart.
Kun je omschrijven wat het was, of is het dan gelijk in strijd met de policy?
Keep your wits sharp, your heart open and your gun loaded. And never mess with mother nature, mother in-laws and, mother freaking Ukrainians.
Nee, niet gezicht slaantrabant schreef op dinsdag 9 juli 2024 @ 15:02:
Wat een agressieve straatnaam, ook al was die ooit anders bedoeld.
Veroordeel niet, verwonder u slechts
en een gymtoestelFiber schreef op dinsdag 9 juli 2024 @ 17:38:
[...]
Iets met steigerbuizen, heel veel touwen en zweepjes...
Veroordeel niet, verwonder u slechts
O ja, die was ik vergeten, bokkie springen en paardje rijden...
Keep your wits sharp, your heart open and your gun loaded. And never mess with mother nature, mother in-laws and, mother freaking Ukrainians.
"Blikvanger - Gemoderniseerde villa, 22 zonnepanelen, gasvrij met praktijkruimte."

Gasvrij geeft mij het idee dat het een pré is en dat de isolatie ook op orde is zodat je zonder problemen van het gas af kan. Zeker bij een "gemoderniseerde villa".
In de praktijk kan het zo te zien ook betekenen dat het huis geen CV heeft gehad en dat het warm gehouden moet worden met elektrische kacheltjes en de haard uit de woonkamer. De tochtrol in de woonkamer voorspelt verder niet veel goeds

Lekker behangetje ook wel
Als ik de makelaar was dan had ik "gasvrij" achterwege gelaten, het komt eerder als een nadeel dan als een voordeel over!

Gasvrij geeft mij het idee dat het een pré is en dat de isolatie ook op orde is zodat je zonder problemen van het gas af kan. Zeker bij een "gemoderniseerde villa".
In de praktijk kan het zo te zien ook betekenen dat het huis geen CV heeft gehad en dat het warm gehouden moet worden met elektrische kacheltjes en de haard uit de woonkamer. De tochtrol in de woonkamer voorspelt verder niet veel goeds

Lekker behangetje ook wel
Als ik de makelaar was dan had ik "gasvrij" achterwege gelaten, het komt eerder als een nadeel dan als een voordeel over!
Haha, de meeste huizen in het oostblok zijn ook gasvrij, toekomstbestendig bezig daarControl-Shift schreef op dinsdag 9 juli 2024 @ 19:31:
"Blikvanger - Gemoderniseerde villa, 22 zonnepanelen, gasvrij met praktijkruimte."
[Afbeelding]
Gasvrij geeft mij het idee dat het een pré is en dat de isolatie ook op orde is zodat je zonder problemen van het gas af kan. Zeker bij een "gemoderniseerde villa".
In de praktijk kan het zo te zien ook betekenen dat het huis geen CV heeft gehad en dat het warm gehouden moet worden met elektrische kacheltjes en de haard uit de woonkamer. De tochtrol in de woonkamer voorspelt verder niet veel goeds![]()
[Afbeelding]
Lekker behangetje ook wel![]()
Als ik de makelaar was dan had ik "gasvrij" achterwege gelaten, het komt eerder als een nadeel dan als een voordeel over!
Dingen als Games & Music enzo | En 3D/AI/PS hier | CivitAI Models en Prompts
Vraag me af of daar een Lancer EVO bij zat
Dingen als Games & Music enzo | En 3D/AI/PS hier | CivitAI Models en Prompts
Een nieuwbouw appartement uit 2020 van bijna een miljoen, met 2 badkamers met beiden een douchegordijn:
:strip_exif()/f/image/1mZNRqYK9PFebR5LinRP33jT.jpg?f=fotoalbum_large)
https://www.funda.nl/deta...illinkgracht-283/43667523
:strip_exif()/f/image/1mZNRqYK9PFebR5LinRP33jT.jpg?f=fotoalbum_large)
https://www.funda.nl/deta...illinkgracht-283/43667523
Dit topic is gesloten.
![]()
Let op:
Neem aub ook de moeite om tenminste een foto bij jouw link te plaatsen. Anders worden er alleen eenvoudige linkdumps geplaatst en bij dit onderwerp horen nu eenmaal foto's.
Er zijn legio topics over nieuwe huizen kopen, bouwen, verbouwen, verkopen en de algehele staat van de woningmarkt. Bespreek dit dan ook daar en niet in dit topic. Er is ook Het Show your Home topic & De duurzame kroeg deel 5 & De energierekening - kroegtopic
Doorzoek het topic op de straatnaam van wat je wil posten, goede kans dat iets al eens gespot is.
Ben je je bericht kwijt? Dan was het waarschijnlijk te offtopic. Daar is inmiddels vaak genoeg voor gewaarschuwd.
Het afkraken/vergelijken/reviewen van regio's, steden dorpen, platteland etc heeft geen toegevoegde waarde voor dit topic, het gaat over de panden.
Neem aub ook de moeite om tenminste een foto bij jouw link te plaatsen. Anders worden er alleen eenvoudige linkdumps geplaatst en bij dit onderwerp horen nu eenmaal foto's.
Er zijn legio topics over nieuwe huizen kopen, bouwen, verbouwen, verkopen en de algehele staat van de woningmarkt. Bespreek dit dan ook daar en niet in dit topic. Er is ook Het Show your Home topic & De duurzame kroeg deel 5 & De energierekening - kroegtopic
Doorzoek het topic op de straatnaam van wat je wil posten, goede kans dat iets al eens gespot is.
Het afkraken/vergelijken/reviewen van regio's, steden dorpen, platteland etc heeft geen toegevoegde waarde voor dit topic, het gaat over de panden.