12x 280Wp ZW, 12x 280Wp ZO, Zubadan SHW80YAA 8kW, Zehnder Q450 ERV
Dat is een veels te simplistische weergave van een statisch gemiddelde. Ik zou er zo dan ook niet mee omgaan.P5ycho schreef op zaterdag 23 september 2023 @ 12:49:
En tata steel dat kost je 2 maanden.
Groet, Joris
Ons huis is opgeleverd in 2008, wij zijn 2e bewoner. De huidige wtw unit is een Brink Renovent 300 met 40% bypass optie. Buizenstelsel is 150mm met 125mm ventielen.
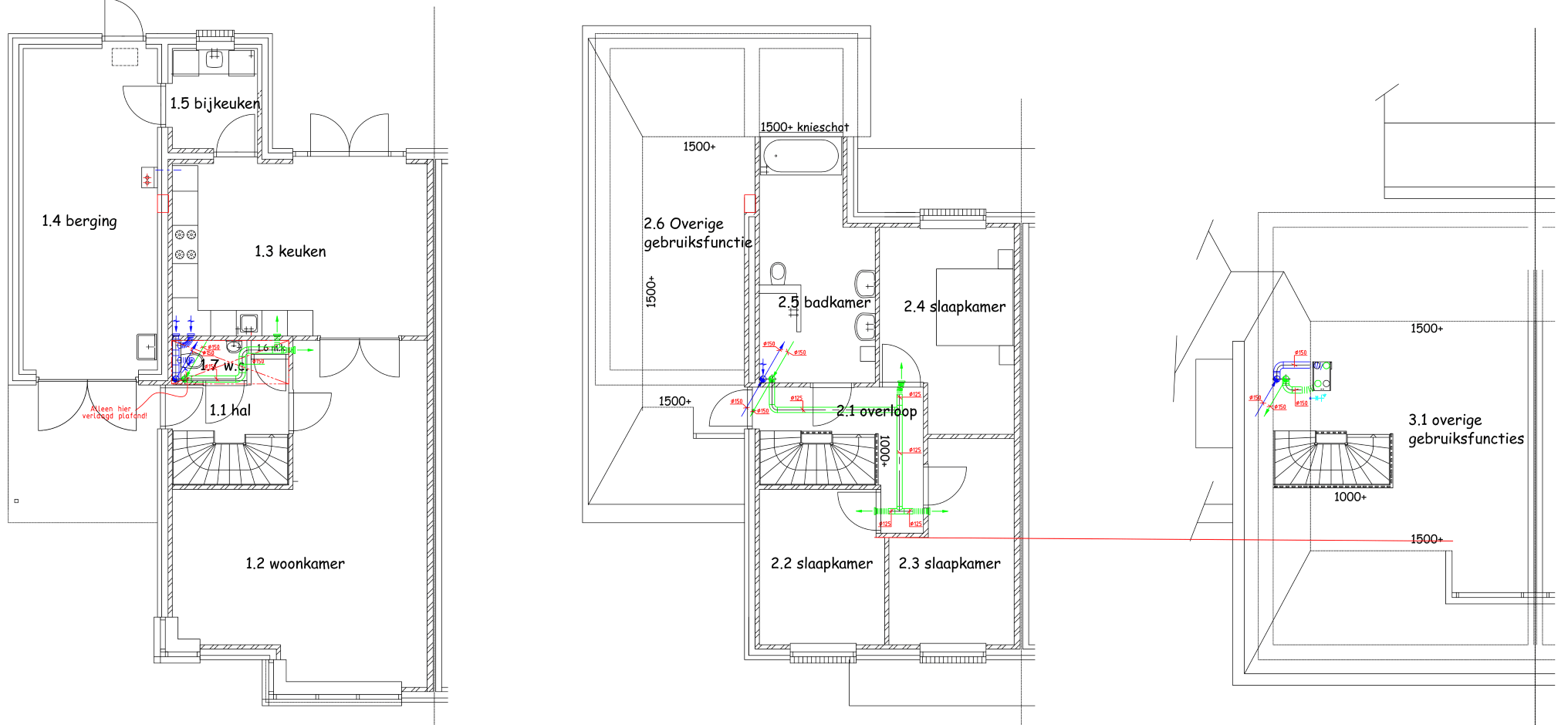
Ik heb alleen een tekening van het buizenplan van de installateur, geen berekeningen. Dat is dus waar ik moet beginnen.
Het originele aanlegplan van de installateur (de berekening heb ik niet):
:fill(white):strip_exif()/f/image/DhS93HmRvJpTpt0XtnWwOMs2.png?f=user_large)
Note: veel ruimtes zijn 'overige bestemming' en dus helemaal niet geventileerd. Lekker makkelijk EPC punten scoren!
.
Mijn berekening:
:fill(white):strip_exif()/f/image/gO0S52oU79aihsHyhp7c0cXQ.png?f=user_large)
Notes: heb berekend volgens bouwbesluit (pulsie bouwbesluit), pulsie per persoon, en pulsie definitief is wat uiteindelijk gebruikt gaat worden.
Het nieuwe balansplaatje:
:fill(white):strip_exif()/f/image/ZQpLbv3dgcRzkfjhWEJamBjS.png?f=user_large)
Notes:
30m3/h extra optioneel voor toekomstige zolderkamer.
Zolder wordt nu gebruikt als werkruimte. Ik vind zelf alleen afzuigen misschien wel prima, ik trek voornamelijk lucht uit lege slaapkamers naar zolder overdag.
Eventuele uitbouw van keuken in de toekomst heb ik nog geen rekening mee gehouden. Nu keuken uitbouw ook toegevoegd. Ik zou het zithoekje achter de keuken gelijk met de bijkeuken willen trekken, misschien.
Zouden jullie hier een oordeel over kunnen geven? Een kritische blik zou ik erg waarderen
[ Voor 8% gewijzigd door P5ycho op 23-09-2023 19:15 ]
12x 280Wp ZW, 12x 280Wp ZO, Zubadan SHW80YAA 8kW, Zehnder Q450 ERV
Voorlopig wonen we er met z'n tweeën maar willen het meteen goed doen zodat we er ook met 4/5 personen comfortabel wonen. Ik heb op basis van de ervaringen in dit topic een opzet gemaakt. Ik zou zo veel mogelijk met 150mm buizen willen werken en denk dat dat bijna overal zou passen, behalve waarschijnlijk de doorvoer in de badkamer. Daar zou misschien wel een ventilatiekanaal kunnen passen. Benieuwd naar jullie input!
/f/image/rdbPsd2v7pdSYzmMW1qbeX3u.png?f=fotoalbum_large)
Legenda: groen inblazen, oranje afzuigen. Outlines zijn doorvoeren van de verdieping erboven naar de verdieping beneden
Wij hebben op dit moment een Zehnder WHR90 met bypass, deze kan 200 m3/h verstouwen.
Maar wij merken dat in ons huis als alle 5 gezinsleden op dezelfde verdieping zijn, de CO2 waarden oplopen tot richting de 1600.
Onder 3x aanvoer woonkamer, 2x afvoer open keuken, 1x afvoer toilet.
Boven 3x aanvoer 1 per slaapkamer, 1x afvoer badkamer
Zolder niets
De WHR90 staat altijd op stand 3, liever frisse lucht dan energiebesparing.
Nu vroeg ik mij af hoe haalbaar het is om een klep in het systeem te bouwen die de flow van de onder- of bovenverdieping aanpast.
Dus bijvoorbeeld:
Tussen 7:00 - 22:00 -> klep zorgt dat de aanzuiging op de 1e verdieping maar 25% is en beneden 75%
Tussen 22:00 - 7:00 -> klep zorgt dat de aanzuiging op de 1e verdieping 75% is en beneden 25%
Ik heb ruimte om iets te plaatsen tussen de afvoer van de badkamer en de WTW.
Ik zat aan zoiets te denken:
https://schiltbedrijven.n...%20-%20Trox%20-%20TVR.pdf
Is dit haalbaar, of trekt dit de hele balans scheef?
Mijn hoop is dat als ik de afzuiging boven rem, er meer luchtverversing beneden optreedt.
Maar mijn vrees is dat ik gewoon flow krijg vanuit de slaapkamers naar het toilet via de open trap.
Misschien juist in de aanvoer een klep?
Een makkelijker oplossing is overflow van boven naar beneden, dus boven teveel inblazen en dat houdt ppm daar laag als iedereen slaapt. Beneden teveel afzuigen en je krijgt dan meer lucht via de trap en hal. Deel van ventilatie werkt dan voor beide zones tegelijk, zonder kleppen.
Goede tip over overflow van boven, ga ik even mee spelen.
Het kanalenstelsel lijkt inderdaad vrij karig uitgelegd, maar vervangen van je Brink Renovent 300 door een unit met een ruimer debiet zal desondanks meer ventilatie bij minder geluid opleveren verwacht ik. Die Renovent 300 heeft een beperkt debiet, met relatief kleine ventilatoren die op hoge toeren draaien en veel lawaai maken. Bij 250 m3/h vind ik het geluid van dat apparaat al niet meer acceptabel (al voldoet het technisch gezien vast aan de geldende normen). Je klachten verbazen mij dan ook niet.P5ycho schreef op zaterdag 23 september 2023 @ 14:28:
Zouden jullie hier een oordeel over kunnen geven? Een kritische blik zou ik erg waarderen.
Los daarvan is uitbreiden van het aantal inblaaspunten en/of debiet per inblaaspunt natuurlijk aan te raden, als dat kan (zonder al te veel hak- en breekwerk en zonder tocht te creeren). Wat daarin mogelijk is, is op afstand moeilijk in te schatten.
Bedankt voor je feedback. Karig is goed omschreven inderdaad. In de nieuwe berekening heb ik al nieuwe ventilatiepunten meegenomen. Ik kom niet helemaal weg met het een en ander omdat ik niet overal koven wil plaatsen, maar denk dat ik aan de debieten ga komen met wat compromissen. Daar ga ik later op terugkomen met specifieke voorbeelden, anders wordt het teveel per post. Hak- en breekwerk gaat het zeker wel worden.Dave_R schreef op maandag 25 september 2023 @ 22:19:
[...]
Het kanalenstelsel lijkt inderdaad vrij karig uitgelegd, maar vervangen van je Brink Renovent 300 door een unit met een ruimer debiet zal desondanks meer ventilatie bij minder geluid opleveren verwacht ik. Die Renovent 300 heeft een beperkt debiet, met relatief kleine ventilatoren die op hoge toeren draaien en veel lawaai maken. Bij 250 m3/h vind ik het geluid van dat apparaat al niet meer acceptabel (al voldoet het technisch gezien vast aan de geldende normen). Je klachten verbazen mij dan ook niet.
Los daarvan is uitbreiden van het aantal inblaaspunten en/of debiet per inblaaspunt natuurlijk aan te raden, als dat kan (zonder al te veel hak- en breekwerk en zonder tocht te creeren). Wat daarin mogelijk is, is op afstand moeilijk in te schatten.
Ik heb van het weekend de Brink Flair 400 Enthalpy en Zehnder Comfoair Q450 ERV naast elkaar gezet.
Dat was een interessante vergelijking.
De wensenlijst was:
- 365 m3/h
- enthalpiewisselaar
- modulerende heater
- geen afvoer ivm extra hoogte
- goed rendement
- 180/200mm buizen
- lage kastafstraling ivm open zolder (omkasting kan altijd nog, maar minder is beter)
- standje 2 ventilatie als standaard, alle kamers kamers altijd geventileerd
- bedrade of optioneel rf co2 sensor in woonkamer voor geleidelijk opschalen bij bezoek/koken
- opschalen bij vocht in badkamer, interne sensor is handig, wel optie voor externe sensor
- optie om op te schalen dmv relais afzuigkap als woonkamer co2 sensor te traag reageert
- domotica integratie
- sturing moet niet of beperkt afhankelijk worden van domotica
Ik ben uitgekomen op een Comfoair Q450 ERV. De lagere kastafstraling en standaardopties voor CO2 en vocht zijn doorslaggevend. De Flair heeft een USB stick RF extensie met sensoren, maar niet daadwerkelijk te koop en dat voelt allemaal hobbyBob. En hobbyBob dat kan ik zelf voor minder.
Ik heb de intentie om de Q450 te installeren zonder externe schakelaars. Ik wil dan via een ESP32 en ESPHome de CAN bus aansturen en de 3 standen introduceren in Home Assistant. Daarna de bestaande plugin verder mee ontwikkelen zodat ik ook CO2 sensors kan emuleren op de CAN bus. Mocht dat niet lukken dan kan ik alsnog een option box kopen en de Zehnder CO2 sensor met 0-10V aansluiten. Misschien is het ook handiger om een Zehnder sensor aan te sluiten en de bus te sniffen ipv het wiel opnieuw uit te vinden, maar dat zie ik dan wel.
Mocht iemand nog een tip hebben voor een goedkoop adres voor de Q450 L VV ST ERV - 471502064 dan houd ik me aanbevolen
12x 280Wp ZW, 12x 280Wp ZO, Zubadan SHW80YAA 8kW, Zehnder Q450 ERV
1: gedaan.rube schreef op donderdag 21 september 2023 @ 10:49:
[...]
Mijn plan:
1) een professionele leidingszoeker huren
2) bepalen waar de tralieliggers (wapening onderplaat) zit. Ik heb gevonden dat er vaak 4 tralieliggers in een plaat van 3 meter breed zitten. Dus het zou zonder al te veel problemen moeten lukken om te zorgen om die niet te doorboren.
3) bepalen waar de wapening in de bovenlaag zit. Dan kijken of ik dat geheel kan ontwijken in combinatie met punt 2. Lukt het niet om dat te ontwijken,.dan betekent dat de afstand van de wapening maximaal 200 mm is. Dan zorgen ik er voor dat ik door maximaal 1 wapening ga (105 mm links en 105 rechts van de wapening en niet dat ik exact door twee wapeningen heen ga). Bovendien, als er zoveel wapening inzit dat het maximaal 200 mm afstand zit, dan geloof ik ook wel dat het geen probleem voor de sterkte is.
4) uiteraard ook gelijk bepalen waar de electra loopt om die te ontwijken.
Dan aftekenen waar het moet komen en het gat laten boren. En hopen dat het goed gaat![]()
2: het lijkt er op dat in het onderste gedeelte van de breedplaat een wapeningsnet met een rooster van 15 x 15 cm, maar ik kan niet specifiek de tralieliggers vinden (tenzij die toch ook om de 15 cm zitten, maar dat lijkt me niet).
3: vanaf de bovenkant zie ik circa 10 cm diepte wapening om de 20-25 cm te zitten.
Echter, ik krijg ook heel veel andere meldingen waarvan het onduidelijk is of het nu wapening is of holtes, of wapening dat boven elkaar zit, eigenlijk is het haast niet te doen om de meest optimale plek te kiezen op basis van wapening die ik vanaf de onderkant zie en wapening die ik aan de bovenkant zie.
Wat ik denk ik wel redelijk veilig kan stellen is dat er behoorlijk wat wapening inzit. Zodanig veel dat als ik door wapening heen ga, wat ongetwijfeld gaat gebeuren, dat er vrij dicht links en rechts van het gat weer (veel) wapening zit. Verzwakking van de vloer zal dus heel beperkt zijn en eigenlijk alleen in de lijn van het gat - oplegging. Maar Aangezien er vrijwel geen belasting op de zoldervloer is (afgezien van eigen gewicht) zal dat geen probleem zijn.
edit / aanvuling wapening in beton dient vooral om trekkrachten op te vangen aangezien beton daar heel zwak in is. Beton zelf is juist weer goed in drukkrachten opvangen, waar wapening zelf slecht in is. Ik denk dat ik daarom maar ga concentreren op de wapening die ik vanaf de onderkant kan vinden (lees: zorgen dat ik door slechts 1 wapening heen ga en niet net 2 stuks ga raken) aangezien die belangrijk is om de trekkracht in het beton op te vangen. .
4: electra nog niet gevonden (wel bij 1 test rondom een centraaldoos, maar heb nog niet de buis kunnen volgen)
Komende dagen nog verder met meten van wapening, electra en posities voor boren van de gaten bepalen
[ Voor 8% gewijzigd door rube op 26-09-2023 17:05 ]
In eerste instantie heb ik nu echter contact opgenomen met een redelijk bekend landelijk bedrijf met de hoop dat ze met een acceptabele offerte kunnen komen om alles te regelen. Indien alles regelen (dus doorvoer, kanalen leggen, etc.) te prijzig gaat zijn, overweeg ik hen de decentrale WTW in de woonkamer en de WTW unit op zolder te laten plaatsen. Dan die lokale betonboorder benaderen voor de doorvoer naar de kamers en zelf maar de kanalen leggen. In theorie nemen ze binnen 4u contact op vanuit dat grote bedrijf, maar in praktijk zijn we nu weer twee dagen verder en nog niks gehoord. Morgen misschien maar eens bellen
Er zijn ook wel lokale installatiebedrijven die ventilatie regelen, maar dat komt altijd wat over als een "we doen alles" bedrijfje (CV, ventilatie, loodgieter werk, etc.) Dan twijfel ik een beetje over de kwaliteit bij uitvoeren specifiek gericht op ventilatie (maar is gewoon gutfeeling). Wat voor prijs moet ik aan denken waar ze bij jou mee kwamen, @rube? En was dat een klein lokaal bedrijf?
Ik heb een q350, met alleen de LAN box en een app. Alles gaat vanzelf, ik heb geen behoefte aan dure co2 sensoren of bedieningen van Zendher. Ik heb een losse aranet4 sensor die kan loggen en ik zit gemiddeld op 6 a 700 voor de co2. Unit draait zachtjes en bij douchen toert hij meteen op. Ik hou van simpel en als ik visite krijg en de co2 loopt te ver op kan ik hem zelf via de app wat harder zetten.P5ycho schreef op dinsdag 26 september 2023 @ 13:34:
[...]
Bedankt voor je feedback. Karig is goed omschreven inderdaad. In de nieuwe berekening heb ik al nieuwe ventilatiepunten meegenomen. Ik kom niet helemaal weg met het een en ander omdat ik niet overal koven wil plaatsen, maar denk dat ik aan de debieten ga komen met wat compromissen. Daar ga ik later op terugkomen met specifieke voorbeelden, anders wordt het teveel per post. Hak- en breekwerk gaat het zeker wel worden.
Ik heb van het weekend de Brink Flair 400 Enthalpy en Zehnder Comfoair Q450 ERV naast elkaar gezet.
Dat was een interessante vergelijking.
De wensenlijst was:
- 365 m3/h
- enthalpiewisselaar
- modulerende heater
- geen afvoer ivm extra hoogte
- goed rendement
- 180/200mm buizen
- lage kastafstraling ivm open zolder (omkasting kan altijd nog, maar minder is beter)
- standje 2 ventilatie als standaard, alle kamers kamers altijd geventileerd
- bedrade of optioneel rf co2 sensor in woonkamer voor geleidelijk opschalen bij bezoek/koken
- opschalen bij vocht in badkamer, interne sensor is handig, wel optie voor externe sensor
- optie om op te schalen dmv relais afzuigkap als woonkamer co2 sensor te traag reageert
- domotica integratie
- sturing moet niet of beperkt afhankelijk worden van domotica
Ik ben uitgekomen op een Comfoair Q450 ERV. De lagere kastafstraling en standaardopties voor CO2 en vocht zijn doorslaggevend. De Flair heeft een USB stick RF extensie met sensoren, maar niet daadwerkelijk te koop en dat voelt allemaal hobbyBob. En hobbyBob dat kan ik zelf voor minder.
Ik heb de intentie om de Q450 te installeren zonder externe schakelaars. Ik wil dan via een ESP32 en ESPHome de CAN bus aansturen en de 3 standen introduceren in Home Assistant. Daarna de bestaande plugin verder mee ontwikkelen zodat ik ook CO2 sensors kan emuleren op de CAN bus. Mocht dat niet lukken dan kan ik alsnog een option box kopen en de Zehnder CO2 sensor met 0-10V aansluiten. Misschien is het ook handiger om een Zehnder sensor aan te sluiten en de bus te sniffen ipv het wiel opnieuw uit te vinden, maar dat zie ik dan wel.
Mocht iemand nog een tip hebben voor een goedkoop adres voor de Q450 L VV ST ERV - 471502064 dan houd ik me aanbevolen
Heb hem overigens bij een installatie webshop beginnende met 123 vandaan. Goede prijs en behulpzaam over te telefoon.
Er zit op de bovenverdieping een afzuigventiel in de badkamer, nachthal en toilet. In de slaapkamers en bureau zit de aanvoer.
In de badkamer staat het ventiel vrij ver open en de zijn normaal ingemeten door de installateur. Vrijdag worden ze gekeurd, dus hopelijk komt er dan geen fout naar boven.
30x Jinko JKM380M-6RL3 (11.4kWp) 12x oost 90° - 18x west 270°, 45° incl. | Marstek Venus-E V2 + V3 | Vaillant Arotherm 75/5 | Zehnder ComfoAir Q450 | Tesla Model 3 Performance 2025
"buiten de wapening?" Hoe bedoel je dat, of bedoel je onafhankelijk waar de wapening zit, eventueel/desnoods er gewoon doorheen?Yaldair schreef op dinsdag 26 september 2023 @ 17:10:
@rube Ik heb de bouwtekeningen, maar als ik met zo'n leidingzoeker probeer te vinden waar wapening zit is hij eigenlijk continue aan het piepen. Ook op plekken waar niks zou moeten zitten. Ik zat te denken om te laten boren juist buiten de wapening, want volgens mij moet dat gewoon kunnen.
Ik kreeg 2 jaar geleden ramingen van minimaal 10K, op basis van afzuigen op bestaande kanalen en dan met een paar nieuwe kanalen inblaas en brink indoor mixfan op de slaapkamers. Ik was vooral niet tevreden/had geen vertrouwen over de technische oplossing(en) en verwachte continue gesuis, geen goede verdeling van de inblaas lucht e.d. Bedenk dat het een raming was, dus komt altijd hoger uit en dat het 2 jaar geleden was dus nu ook duurder.Wat voor prijs moet ik aan denken waar ze bij jou mee kwamen, @rube? En was dat een klein lokaal bedrijf?
Het was een lokaal bedrijf, de ander was groter en een dealer van Brink. Ik doe nu alles zelf (behalve gaten laten boren), heeeel veel werk maar technisch heel veel beter en dan kom ik met een WTW beneden en een WTW boven, nog steeds goedkoper uit (denk zo'n 8K totaal).
Zit de sensor in de unit zelf of in de badkamer? Indien in de unit, is de spleet onder de badkamer deur wel voldoende groot dat hij voldoende lucht kan aanzuigen als de deur dicht is?Broodro0ster schreef op dinsdag 26 september 2023 @ 20:07:
Heeft er iemand een idee waarom mijn Q450 pas optoert na het douchen als de badkamerdeur open gaat?
Waarschijnlijk wat @rube zegt, de badkamerdeur sluit waarschijnlijk volledig af. Dan is er geen toevoer en dus ook (bijna) geen afvoer.Broodro0ster schreef op dinsdag 26 september 2023 @ 20:07:
Heeft er iemand een idee waarom mijn Q450 pas optoert na het douchen als de badkamerdeur open gaat?
Er zit op de bovenverdieping een afzuigventiel in de badkamer, nachthal en toilet. In de slaapkamers en bureau zit de aanvoer.
In de badkamer staat het ventiel vrij ver open en de zijn normaal ingemeten door de installateur. Vrijdag worden ze gekeurd, dus hopelijk komt er dan geen fout naar boven.
Alonso over het inhalen in 2026: "it’s more of an evasive manoeuvre than an overtake.”
Ik gok op te weinig flow in de badkamer. De eerste verdachte is dan de toevoer. Zit er wel een spleet van minimaal 2 cm onder de deur?Broodro0ster schreef op dinsdag 26 september 2023 @ 20:07:
Heeft er iemand een idee waarom mijn Q450 pas optoert na het douchen als de badkamerdeur open gaat?
Er zit op de bovenverdieping een afzuigventiel in de badkamer, nachthal en toilet. In de slaapkamers en bureau zit de aanvoer.
In de badkamer staat het ventiel vrij ver open en de zijn normaal ingemeten door de installateur. Vrijdag worden ze gekeurd, dus hopelijk komt er dan geen fout naar boven.
Overigens is mijn ervaring dat je bij voldoende basisventilatie dat optoeren bij douchen helemaal niet nodig hebt. Ik heb die functie uit gezet en nooit beslagen spiegels.
WP: ME PUHZ-SW75YAA + ERSD-VM2D + EV-WP-TWS-1W 300; AC: ME MXZ-2F42VF + 2x MSZ-LN25VGV; PV: 14.08 kWp O/W + SMA STP 8.0; Vent: Zehnder Q600 ERV + Ubbink AirExcellent.
Als ik de tekeningen goed lees (als), dan heb ik per breedplaat soms een stuk onderwapening in de buurt van de muur. Ergens verder op dan bovenwapening, maar ook stukken waar geen wapening zit. Maar, nu twijfel ik of ik de tekeningen dan goed leesrube schreef op dinsdag 26 september 2023 @ 20:14:
[...]
"buiten de wapening?" Hoe bedoel je dat, of bedoel je onafhankelijk waar de wapening zit, eventueel/desnoods er gewoon doorheen?
[...]
Aanvulling: wellicht geven de tekeningen aan hoe de diverse wapening over de hele vloer liggen maar is het voor de duidelijkheid alleen gedeeltelijk weergegeven?
[ Voor 22% gewijzigd door rube op 26-09-2023 21:20 ]
Ja dat is correct.aaahaaap schreef op dinsdag 26 september 2023 @ 21:25:
Beetje domme vraag, maar ik neem aan dat iedereen die zowel balansventilatie als een droogtrommel heeft een condensdroger gebruiken en geen luchtafvoerdroger? Ik kan er niks over vinden, maar mij lijkt dat een luchtafvoerdroger net als een afzuigkap een hele hoop warme lucht zo naar buiten blaast wat natuurlijk niet wenselijk is. Is dat correct?
Sowieso is een luchtafvoerdroger enorm inefficiënt, dus gauw wegdoen.
Bosch 5800i 10, vloerverwarming & fancoils, Zehnder Q600
Hier recent de laatste whr90 vervangen door een orcon hrc400.FireAge schreef op zaterdag 23 september 2023 @ 23:17:
Even de haalbaarheid polsen van mijn idee.
Wij hebben op dit moment een Zehnder WHR90 met bypass, deze kan 200 m3/h verstouwen.
Maar wij merken dat in ons huis als alle 5 gezinsleden op dezelfde verdieping zijn, de CO2 waarden oplopen tot richting de 1600.
Onder 3x aanvoer woonkamer, 2x afvoer open keuken, 1x afvoer toilet.
Boven 3x aanvoer 1 per slaapkamer, 1x afvoer badkamer
Zolder niets
De WHR90 staat altijd op stand 3, liever frisse lucht dan energiebesparing.
Nu vroeg ik mij af hoe haalbaar het is om een klep in het systeem te bouwen die de flow van de onder- of bovenverdieping aanpast.
Dus bijvoorbeeld:
Tussen 7:00 - 22:00 -> klep zorgt dat de aanzuiging op de 1e verdieping maar 25% is en beneden 75%
Tussen 22:00 - 7:00 -> klep zorgt dat de aanzuiging op de 1e verdieping 75% is en beneden 25%
Ik heb ruimte om iets te plaatsen tussen de afvoer van de badkamer en de WTW.
Ik zat aan zoiets te denken:
https://schiltbedrijven.n...%20-%20Trox%20-%20TVR.pdf
Is dit haalbaar, of trekt dit de hele balans scheef?
Mijn hoop is dat als ik de afzuiging boven rem, er meer luchtverversing beneden optreedt.
Maar mijn vrees is dat ik gewoon flow krijg vanuit de slaapkamers naar het toilet via de open trap.
Misschien juist in de aanvoer een klep?
Aanvankelijk waren er 2x whr90 aanwezig, maar ivm plaatsing warmtepomp en boilervat nog ca 1 jaar op 1 unit blijven draaien. Hierdoor liepen de co2 waarden ook wel flink op in huis, of was er veel geluid en een hoog energieverbruik op stand 3.
Mijn ervaring: de nieuwe unit verbruikt minder energie en is significant stiller bij een ruim 2x zo hoog debiet.
De whr 90 draaide op ca 50% van de max 200m3, en de orcon is op 225m3 dus stiller en zuiniger.
Verder is het een vrij basic unit, maar het kostenplaatje is te overzien in vergelijking met bijvoorbeeld Brink zehnder en duco, en je vangt ook nog wat voor de oude unit op marktplaats.
Een regelklep heb ik ook overwogen, maar heb gekozen om het simpel te houden en overflow van slaapkamers te hebben.
Het is de sensor in de unit zelf. We hebben geen aparte sensor.rube schreef op dinsdag 26 september 2023 @ 20:16:
[...]
Zit de sensor in de unit zelf of in de badkamer? Indien in de unit, is de spleet onder de badkamer deur wel voldoende groot dat hij voldoende lucht kan aanzuigen als de deur dicht is?
alexbl69 schreef op dinsdag 26 september 2023 @ 20:31:
[...]
Waarschijnlijk wat @rube zegt, de badkamerdeur sluit waarschijnlijk volledig af. Dan is er geen toevoer en dus ook (bijna) geen afvoer.
Onder alle deuren zit dezelfde spleet. Ik heb de EPB man al gesproken en die zegt dat er 70cm2 vereist is onder de deuren. De deur is 73.5cm breed en de spleet is 16mm wat overeenkomt met ongeveer 117cm2 als doorgang voor de lucht. Aan de regels voldoet het dus wel, maar als het ook in de praktijk voldoende is...Andrehj schreef op dinsdag 26 september 2023 @ 20:44:
[...]
Ik gok op te weinig flow in de badkamer. De eerste verdachte is dan de toevoer. Zit er wel een spleet van minimaal 2 cm onder de deur?
Overigens is mijn ervaring dat je bij voldoende basisventilatie dat optoeren bij douchen helemaal niet nodig hebt. Ik heb die functie uit gezet en nooit beslagen spiegels.
Zou het kunnen dat het debiet op de unit te laag staat op stand 2? Dat is 205m3 voor een woning van 840m3. In onze slaapkamer en die van de zoon (bijna 2j) staat een Awair. Bij ons zitten we elke nacht rond de 1150ppm en bij de zoon rond 700ppm met de ramen en deuren gesloten. Zo'n kleine peuter ademt wellicht een minder co2 uit dan een volwasse dus dat zou wellicht ook richting de 1100ppm kunnen oplopen indien daar een volwassene zou slapen?
Zou het een idee zijn om het debiet met 20% te verhogen zodat we onder de 1000ppm tijdens de nacht uitkomen en dan hopelijk ook betere reactie hebben tijdens het douchen? Het zou fijn zijn als die sneller zou optoeren want soms beslaat de spiegel en de ramen wel.
30x Jinko JKM380M-6RL3 (11.4kWp) 12x oost 90° - 18x west 270°, 45° incl. | Marstek Venus-E V2 + V3 | Vaillant Arotherm 75/5 | Zehnder ComfoAir Q450 | Tesla Model 3 Performance 2025
Los van het totale volume is het ook wel belangrijk wat er ververst wordt qua lucht op jullie slaapkamer?Broodro0ster schreef op dinsdag 26 september 2023 @ 22:09:
[...]
Het is de sensor in de unit zelf. We hebben geen aparte sensor.
[...]
[...]
Onder alle deuren zit dezelfde spleet. Ik heb de EPB man al gesproken en die zegt dat er 70cm2 vereist is onder de deuren. De deur is 73.5cm breed en de spleet is 16mm wat overeenkomt met ongeveer 117cm2 als doorgang voor de lucht. Aan de regels voldoet het dus wel, maar als het ook in de praktijk voldoende is...
Zou het kunnen dat het debiet op de unit te laag staat op stand 2? Dat is 205m3 voor een woning van 840m3. In onze slaapkamer en die van de zoon (bijna 2j) staat een Awair. Bij ons zitten we elke nacht rond de 1150ppm en bij de zoon rond 700ppm met de ramen en deuren gesloten. Zo'n kleine peuter ademt wellicht een minder co2 uit dan een volwasse dus dat zou wellicht ook richting de 1100ppm kunnen oplopen indien daar een volwassene zou slapen?
Zou het een idee zijn om het debiet met 20% te verhogen zodat we onder de 1000ppm tijdens de nacht uitkomen en dan hopelijk ook betere reactie hebben tijdens het douchen? Het zou fijn zijn als die sneller zou optoeren want soms beslaat de spiegel en de ramen wel.
WP Vaillant VWL75/6 A 230V | Boiler VIH RW 300/3 MR | 27 x 405 ZZO= 10.935 op Solar Edge 9 kW 3 fasen omvormer | Vent: Zehnder Q600 ERV - Homewizard producten zijn niet aan te raden
Dit zijn bij mij de tekeningen:rube schreef op dinsdag 26 september 2023 @ 21:18:
@Yaldair grote stukken waar geen wapening zit kan eigenlijk niet, beton aan sich is dan niet voldoende sterk. Maar goed, ik heb jou tekeningen niet bovendien ben ik (in dit geval helaas) geen constructeur (maar heb wel WTB constructieleer gehad en enig interesse in bouwkunde).
Aanvulling: wellicht geven de tekeningen aan hoe de diverse wapening over de hele vloer liggen maar is het voor de duidelijkheid alleen gedeeltelijk weergegeven?
![]() | ![]() |
Eerste is de onderwapening, tweede bovenwapening. Dus als ik het goed heb zit hier een stuk waar niks lijkt te zitten (kamer linksboven, ongeveer in het midden). Vraag dan natuurlijk weer of het beter is om tussen de wapening door te boren, of in zo'n stuk waar niks zit (als daar daadwerkelijk niks zit).
[ Voor 4% gewijzigd door Yaldair op 26-09-2023 22:31 ]
Maar misschien hebben we hier iemand die beter is in het lezen van dergelijke tekeningen en uitsluitsel kan geven? @Señor Sjon kun toevallig iets zeggen over wapening in bovenstaande tekeningen? De wapening is maar voor een gedeelte op tekening aangegeven, maar dat kan toch niet maar op die gedeeltes in de vloer zitten?
5-150 idem, maar dan maas 150x150. Die liggen over het hele vloerveld. De losse staven zijn voor overspanningen, extra steunpunten, etc.
This is my signature. There are many like it, but this one is mine.
Ik heb helaas de spullen niet om dat na te meten.Kees_frl schreef op dinsdag 26 september 2023 @ 22:15:
[...]
Los van het totale volume is het ook wel belangrijk wat er ververst wordt qua lucht op jullie slaapkamer?
De berekeningen van de EPB studie heb ik wel, maar is op stand 3 die theoretisch 420m3/h is en in de praktijk 450m3/h is.
30x Jinko JKM380M-6RL3 (11.4kWp) 12x oost 90° - 18x west 270°, 45° incl. | Marstek Venus-E V2 + V3 | Vaillant Arotherm 75/5 | Zehnder ComfoAir Q450 | Tesla Model 3 Performance 2025
Je vertelde dat er vrijdag iemand komt keuren. Neem aan dat diegene ook een luchtmeting doet (per ventiel bepalen of de correcte hoeveelheid wordt afgezogen)? Dan kom je er vanzelf achter.Broodro0ster schreef op dinsdag 26 september 2023 @ 22:09:
[...]
Het is de sensor in de unit zelf. We hebben geen aparte sensor.
[...]
[...]
Onder alle deuren zit dezelfde spleet. Ik heb de EPB man al gesproken en die zegt dat er 70cm2 vereist is onder de deuren. De deur is 73.5cm breed en de spleet is 16mm wat overeenkomt met ongeveer 117cm2 als doorgang voor de lucht. Aan de regels voldoet het dus wel, maar als het ook in de praktijk voldoende is...
Zou het kunnen dat het debiet op de unit te laag staat op stand 2? Dat is 205m3 voor een woning van 840m3. In onze slaapkamer en die van de zoon (bijna 2j) staat een Awair. Bij ons zitten we elke nacht rond de 1150ppm en bij de zoon rond 700ppm met de ramen en deuren gesloten. Zo'n kleine peuter ademt wellicht een minder co2 uit dan een volwasse dus dat zou wellicht ook richting de 1100ppm kunnen oplopen indien daar een volwassene zou slapen?
Zou het een idee zijn om het debiet met 20% te verhogen zodat we onder de 1000ppm tijdens de nacht uitkomen en dan hopelijk ook betere reactie hebben tijdens het douchen? Het zou fijn zijn als die sneller zou optoeren want soms beslaat de spiegel en de ramen wel.
Wel de deuren (alle deuren) sluiten bij deze meting. Probleem kan natuurlijk ook bij een andere deur (een slaapkamerdeur) zitten.
Alonso over het inhalen in 2026: "it’s more of an evasive manoeuvre than an overtake.”
Kan het zijn dat je op die tekeningen alleen de extra bijlegwapening ziet?Yaldair schreef op dinsdag 26 september 2023 @ 20:58:
[...]
Als ik de tekeningen goed lees (als), dan heb ik per breedplaat soms een stuk onderwapening in de buurt van de muur. Ergens verder op dan bovenwapening, maar ook stukken waar geen wapening zit. Maar, nu twijfel ik of ik de tekeningen dan goed lees
Want normaliter liggen onderop de breedplaten altijd wapening-stangen op overgangen van de platen, zodat ze daardoor verbonden worden.
Bovenop liggen altijd netten over de hele vloer.
En daarbij komt dan nog lokaal extra wapening om speciale belastingen op te vangen, dus bijvoorbeeld boven of onder een draagmuur.
WP: ME PUHZ-SW75YAA + ERSD-VM2D + EV-WP-TWS-1W 300; AC: ME MXZ-2F42VF + 2x MSZ-LN25VGV; PV: 14.08 kWp O/W + SMA STP 8.0; Vent: Zehnder Q600 ERV + Ubbink AirExcellent.
Wij hebben hier twee deuren van 90 cm naar de badkamer (hoe voldoet een deur van 73 cm trouwens aan het bouwbesluitBroodro0ster schreef op dinsdag 26 september 2023 @ 22:09:
Onder alle deuren zit dezelfde spleet. Ik heb de EPB man al gesproken en die zegt dat er 70cm2 vereist is onder de deuren. De deur is 73.5cm breed en de spleet is 16mm wat overeenkomt met ongeveer 117cm2 als doorgang voor de lucht. Aan de regels voldoet het dus wel, maar als het ook in de praktijk voldoende is...
Die 205 m³/h zegt niks. Het gaat erom hoe het verdeeld is. Je hebt op een slaapkamer zeker 25 m³/h per persoon nodig (liever nog 30).Zou het kunnen dat het debiet op de unit te laag staat op stand 2? Dat is 205m3 voor een woning van 840m3. In onze slaapkamer en die van de zoon (bijna 2j) staat een Awair. Bij ons zitten we elke nacht rond de 1150ppm en bij de zoon rond 700ppm met de ramen en deuren gesloten. Zo'n kleine peuter ademt wellicht een minder co2 uit dan een volwasse dus dat zou wellicht ook richting de 1100ppm kunnen oplopen indien daar een volwassene zou slapen?
En op die badkamer wil je ook zeker dat debiet aan afzuiging hebben, maar liever wat meer.
Heb je wel twee inblaasventielen op de ouderslaapkamer (om te voorkomen dat je alle andere ventielen enorm moet knijpen) en zijn de werkelijke debieten al eens gemeten?
WP: ME PUHZ-SW75YAA + ERSD-VM2D + EV-WP-TWS-1W 300; AC: ME MXZ-2F42VF + 2x MSZ-LN25VGV; PV: 14.08 kWp O/W + SMA STP 8.0; Vent: Zehnder Q600 ERV + Ubbink AirExcellent.
Gaat dit om buizen of de ventielen? In eerste instantie las ik dit als niet meer dan 50m3/h per buis, waardoor ik in mijn plan ongeveer elk ventiel een eigen buis heb gegeven vanaf zolder. Nu ik er nog eens naar kijk zou dit ook over ventielen kunnen gaan waardoor het voor dezelfde ruimte wel mogelijk is een enkele buis vanaf zolder te trekken en er vervolgens wel 2 of 3 ventielen op aan te sluiten. Omdat 'ventielen' en 'kanalen' hier door elkaar wordt gebruik begrijp ik niet precies wat er bedoeld wordt.Ook belangrijk om over na te denken is de hoeveelheid ventielen die nodig is per ruimte. Hier is een basisrichtlijn dat je voor toevoerende kanalen maximaal 50 m3/h aan luchttoevoer wil hebben, terwijl je je afvoerende kanalen maximaal 75 m3/h aan luchtafvoer wil hebben. Als je dus een ruimte hebt waar je een debiet wilt hebben van 120 m3/h, zul je drie toevoerkanalen nodig
12x 280Wp ZW, 12x 280Wp ZO, Zubadan SHW80YAA 8kW, Zehnder Q450 ERV
Klopt, die doen metingen met de deuren gesloten maar wel op stand 3.alexbl69 schreef op woensdag 27 september 2023 @ 08:17:
[...]
Je vertelde dat er vrijdag iemand komt keuren. Neem aan dat diegene ook een luchtmeting doet (per ventiel bepalen of de correcte hoeveelheid wordt afgezogen)? Dan kom je er vanzelf achter.
Wel de deuren (alle deuren) sluiten bij deze meting. Probleem kan natuurlijk ook bij een andere deur (een slaapkamerdeur) zitten.
De waardes op stand 2 (automatisch) zal ik dan helaas niet weten.
Ik woon in België en hier is een deur van 80 of 90cm gewoon gangbaar. Beneden zijn ze 90cm en boven 80cm. Maar wat er nog overschiet van die 80cm tussen het smalste stuk van de deurstijlen is 73.5cm.Andrehj schreef op woensdag 27 september 2023 @ 09:15:
[...]
Wij hebben hier twee deuren van 90 cm naar de badkamer (hoe voldoet een deur van 73 cm trouwens aan het bouwbesluit) en onder beide zit 2 cm spleet. Dat voldoet in ieder geval wel, maar is met 360 cm² ook veel meer doorlaatoppervlak.
[...]
Die 205 m³/h zegt niks. Het gaat erom hoe het verdeeld is. Je hebt op een slaapkamer zeker 25 m³/h per persoon nodig (liever nog 30).
En op die badkamer wil je ook zeker dat debiet aan afzuiging hebben, maar liever wat meer.
Heb je wel twee inblaasventielen op de ouderslaapkamer (om te voorkomen dat je alle andere ventielen enorm moet knijpen) en zijn de werkelijke debieten al eens gemeten?
Volgens de berekeningen zou het debiet per kinderkamer 49m3 zijn als de ventilatie op 420m3 draait en de slaapkamer van de ouders 70m3.
De Belgische EPB wetgeving houdt voornamelijk rekening met oppervlakte van de kamers geloof ik...
30x Jinko JKM380M-6RL3 (11.4kWp) 12x oost 90° - 18x west 270°, 45° incl. | Marstek Venus-E V2 + V3 | Vaillant Arotherm 75/5 | Zehnder ComfoAir Q450 | Tesla Model 3 Performance 2025
Die verhouding (49 vs 70) is natuurlijk debiel en inderdaad de verklaring voor het hoge CO2-niveau op de ouderslaapkamer.Broodro0ster schreef op woensdag 27 september 2023 @ 21:50:
Volgens de berekeningen zou het debiet per kinderkamer 49m3 zijn als de ventilatie op 420m3 draait en de slaapkamer van de ouders 70m3.
De Belgische EPB wetgeving houdt voornamelijk rekening met oppervlakte van de kamers geloof ik...
Ik heb voor ons huis ook zo' n overzicht van ventilatiedebieten op basis van m2 (was onderdeel van de EPC-berekening) maar daar hebben we ons bij de bouw niks van aangetrokken en gewoon één ventiel per persoon geplaatst in de slaapkamers. En dat werkt een stuk beter dan de door ambtenaren verzonnen norm op basis van m2.
WP: ME PUHZ-SW75YAA + ERSD-VM2D + EV-WP-TWS-1W 300; AC: ME MXZ-2F42VF + 2x MSZ-LN25VGV; PV: 14.08 kWp O/W + SMA STP 8.0; Vent: Zehnder Q600 ERV + Ubbink AirExcellent.
In Amsterdam is het in sommige wijken niet ongebruikelijk dat 3 of 4 kinderen in een kamertje slapen van 10 m². Dat moeten de 'deskundigen' toch ook weten? Niet dat die huizen allemaal WTW of wat voor ventilatie dan ook hebben, maar toch.Andrehj schreef op donderdag 28 september 2023 @ 10:15:
En dat werkt een stuk beter dan de door ambtenaren verzonnen norm op basis van m2.
Vooral de koel capaciteit van 2500W en het effect ervan zoek ik. Ik heb op de eerste verdieping vloerkoeling maar door het platte dak krijg ik het niet onder de 24 graden bij een buiten temp van 30. Ik zoek dus nog wat koelcapaciteit en heb een Q600 hangen.
12x 280Wp ZW, 12x 280Wp ZO, Zubadan SHW80YAA 8kW, Zehnder Q450 ERV
Dat is wel een goeie.P5ycho schreef op vrijdag 29 september 2023 @ 18:39:
@DJR Ga je je kanalen isoleren dan? Als je 2500w aan koelcapaciteit toevoegt kun je nog wel eens condensproblemen krijgen namelijk.
Ik zal contact opnemen met de installateur om de haalbaarheid te bespreken. Ben wel nog steeds benieuwd of iemand van dit forum een ComfoClime heeft geïnstalleerd. Overigens lange levertijden..
[ Voor 14% gewijzigd door DJR op 29-09-2023 19:00 ]
Dit systeem is denk ik alleen interessant voor passiefhuizen, maar ik word graag verrast
12x 280Wp ZW, 12x 280Wp ZO, Zubadan SHW80YAA 8kW, Zehnder Q450 ERV
Jij slaat de spijker op zijn kop. Normaliter zit het ventilatiedebiet bij de meeste huizen rond de 200 m³/h.P5ycho schreef op vrijdag 29 september 2023 @ 19:10:
Ik ben bang dat je ook teleurgesteld gaat zijn als je uitrekent welke flow en temperatuur je moet voeren om die 2500W daadwerkelijk je huis in te krijgen.
Dit systeem is denk ik alleen interessant voor passiefhuizen, maar ik word graag verrast
Om bij dat debiet 2.5 kW kwijt te raken, heb je al een delta T van 35K nodig wat natuurlijk volkomen onhaalbaar is.
Maar ook als je de Q600 op een hoge flow van 400 m³/h zet (daar draaien ze bijna nooit op, zelfs met twee dempers in serie worden ze dan flink hoorbaar) moet je dus al zo'n 18 °C boven/onder de binnentemperatuur koelen of verwarmen.
Door dat grote temperatuurverschil wordt het rendement automatisch bar slecht. Volgens de documentatie zit de COP rond de drie... . Met een goede airco kun je zowel bij koelen als verwarmen gemakkelijk het dubbele halen.
Die airco is ook nog eens een factor 5 oid goedkoper dan zo'n comfoclime die maar liefst ca 5 k€
@DJR kan dus beter een airco ophangen. Die is stiller, veel zuiniger en veel goedkoper. En heeft bovendien in de praktijk veel meer capaciteit.
[ Voor 3% gewijzigd door Andrehj op 01-10-2023 09:42 ]
WP: ME PUHZ-SW75YAA + ERSD-VM2D + EV-WP-TWS-1W 300; AC: ME MXZ-2F42VF + 2x MSZ-LN25VGV; PV: 14.08 kWp O/W + SMA STP 8.0; Vent: Zehnder Q600 ERV + Ubbink AirExcellent.
Wat de rest al zegt; airco gaat je beter helpen.DJR schreef op vrijdag 29 september 2023 @ 17:30:
Heeft iemand ervaring over de ComfoClime Lucht/Lucht top box die op een Zehnder Q600 kan worden geplaatst?
Vooral de koel capaciteit van 2500W en het effect ervan zoek ik. Ik heb op de eerste verdieping vloerkoeling maar door het platte dak krijg ik het niet onder de 24 graden bij een buiten temp van 30. Ik zoek dus nog wat koelcapaciteit en heb een Q600 hangen.
Nog beter is een bronmaatregel; isolatie of groendak.
Als goedkope poging kun je nog kijken of je met een ventilator de koelcapaciteit van de vloer beter kunt benutten.
Bosch 5800i 10, vloerverwarming & fancoils, Zehnder Q600
ik zie in het overzicht voor onze WTW dat de totale m3/h op 440m/3 zit - ik heb echter begrepen dat dit de hoeveelheid is op stand drie 'maximale' .
Ook per kamer is aangegeven hoeveel lucht er ververst wordt. Gemiddeld zit dat op max 57m3/h per slaapkamer (ouder slaapkamer is weer meer)
We krijgen de Zehnder Q600 - normaal draait deze op stand twee. Is er dan te berekenen hoeveel lucht dit zal zijn? Ik weet dat ze dat natuurlijk kunnen instellen maar probeer terug te rekenen van de maximale hoeveelheid per kamer naar de hoeveelheid lucht in normale stand.
1. ik wil zelf kunnen meedenken in de hoeveelheden lucht per ruimte
2. ik begrijp dat de berekening is gemaakt op maximale hoeveelheden om rekening te houden qua ontwerp, echter draaien wij natuurlijk niet continu maximaal.
WP Vaillant VWL75/6 A 230V | Boiler VIH RW 300/3 MR | 27 x 405 ZZO= 10.935 op Solar Edge 9 kW 3 fasen omvormer | Vent: Zehnder Q600 ERV - Homewizard producten zijn niet aan te raden
In dit topic is dan ook al vaak het advies gegeven om zeker in de aanvoer altijd twee dempers (van minimaal 1 meter) in serie te gebruiken om dat geluid te verminderen.FreezingPixels schreef op zaterdag 30 september 2023 @ 09:56:
Goede notitie want hier hebben wij helaas ook wat last van. Tussen de wtw en en het 1e ventiel in onze slaapkamer zit ongeveer 2 meter, er zit een demper op maar we horen de wtw via het ventiel. Ook hebben we een co2 sensor op de slaapkamer dus snachts wilt t toerental nog wel eens variëren. Ik ga nu het installatie bedrijf vragen om er een extra demper tussen te zetten of de buis een stuk om te leggen zodat er meer lengte zit tussen de ventielen in de slaapkamer en de wtw.
En de WTW-unit hoort in een afgesloten ruimte te hangen, om geluid wat de kast uitstraalt niet door de hele woning te horen.
Van CO2-sensoren op de slaapkamer ben ik zeker geen voorstander. Als je gewoon zorgt dat er op de normaalstand minimaal 50 m³/h uit de ventielen op de ouderslaapkamer komt (en 25³/h uit die op de kinderslaapkamers) heb je die dure sensor helemaal niet nodig.
Alleen één sensor in de woonkamer voldoet dan om de WTW bij aanwezigheid van (veel) bezoek harder te laten draaien.
WP: ME PUHZ-SW75YAA + ERSD-VM2D + EV-WP-TWS-1W 300; AC: ME MXZ-2F42VF + 2x MSZ-LN25VGV; PV: 14.08 kWp O/W + SMA STP 8.0; Vent: Zehnder Q600 ERV + Ubbink AirExcellent.
Ai, ik heb in mijn berekening ( P5ycho in "Het centrale balansventilatie met warmteterugwinning topic" ) 30m3/h genomen als max ipv op normaalstand. Daar moet ik dus nog even naar kijken.Andrehj schreef op zaterdag 30 september 2023 @ 10:39:
Als je gewoon zorgt dat er op de normaalstand minimaal 50 m³/h uit de ventielen op de ouderslaapkamer komt (en 25³/h uit die op de kinderslaapkamers)...
12x 280Wp ZW, 12x 280Wp ZO, Zubadan SHW80YAA 8kW, Zehnder Q450 ERV
Dat moet je zeker even doen, want voor een persoon in rust heb je die 25m³/h wel nodig om onder de 1000 ppm CO2 te blijven. Ben je actiever dan verbruik je meer zuurstof (en produceer je dus meer CO2.)P5ycho schreef op zaterdag 30 september 2023 @ 13:25:
Ai, ik heb in mijn berekening ( P5ycho in "Het centrale balansventilatie met warmteterugwinning topic" ) 30m3/h genomen als max ipv op normaalstand. Daar moet ik dus nog even naar kijken.
Je WTW de hele nacht op standje max laten draaien wil je niet...
WP: ME PUHZ-SW75YAA + ERSD-VM2D + EV-WP-TWS-1W 300; AC: ME MXZ-2F42VF + 2x MSZ-LN25VGV; PV: 14.08 kWp O/W + SMA STP 8.0; Vent: Zehnder Q600 ERV + Ubbink AirExcellent.
De berekening tot zoverre kan ik volgen (en ik kwam ook gelijk uit). Maar het noodzakelijke verschil zal niet daadwerkelijk 35 of 18K zijn, omdat de koeling ook een flink stuk van z'n energie zal gebruiken om vocht uit de lucht te laten neerslaan. Ik verwacht, op basis van grafieken die ik ooit gezien heb, dat dit aandeel zeker de moeite is. Maar of 't dan over 20% of 50% gaat.. echt geen idee. (Iemand?)Andrehj schreef op zaterdag 30 september 2023 @ 10:05:
Jij slaat de spijker op zijn kop. Normaliter zit het ventilatiedebiet bij de meeste huizen rond de 200 m³/h.
Om bij dat debiet 2.5 kW kwijt te raken, heb je al een delta T van 35K nodig wat natuurlijk volkomen onhaalbaar is.
Maar ook als je de Q600 op een hoge flow van 400 m³/h zet (daar draaien ze bijna nooit op, zelfs met twee dempers in serie worden ze dan flink hoorbaar) moet je dus al zo'n 18 °C boven/onder de binnentemperatuur koelen of verwarmen.
Uiteraard. En de compressor zal ook lang niet altijd op vol vermogen draaien. Maar dat verandert niets aan de zeer hoge prijs, gecombineerd met een beroerde COP en beperkte capaciteit.Gwaihir schreef op zaterdag 30 september 2023 @ 18:34:
De berekening tot zoverre kan ik volgen (en ik kwam ook gelijk uit). Maar het noodzakelijke verschil zal niet daadwerkelijk 35 of 18K zijn, omdat de koeling ook een flink stuk van z'n energie zal gebruiken om vocht uit de lucht te laten neerslaan. Ik verwacht, op basis van grafieken die ik ooit gezien heb, dat dit aandeel zeker de moeite is. Maar of 't dan over 20% of 50% gaat.. echt geen idee. (Iemand?)
WP: ME PUHZ-SW75YAA + ERSD-VM2D + EV-WP-TWS-1W 300; AC: ME MXZ-2F42VF + 2x MSZ-LN25VGV; PV: 14.08 kWp O/W + SMA STP 8.0; Vent: Zehnder Q600 ERV + Ubbink AirExcellent.
En voel me zelf nu veel te daas om hier iets van te bakken.. alhoewel.. krijg al ideeën.. (maar nu is het etenstijd).
https://www.engineeringto...ting-equations-d_747.html
Ik ben gister aan de slag geweest met een module design gebaseerd op een esp32 die rechtstreeks op een comfonet can aansluiting aangesloten kan worden. Schema klaar, pcb aardig op weg.
Heeft er iemand een options box liggen die stof ligt te happen toevallig? Ik heb er een nodig om te sniffen wat het ding op de bus zet. Ik wil de options box emuleren zodat ik uiteindelijk sensordata vanuit home assistant kan doorsturen naar de wtw als zijnde co2, vocht, externe.trigger etc.
[ Voor 68% gewijzigd door P5ycho op 30-09-2023 18:59 ]
12x 280Wp ZW, 12x 280Wp ZO, Zubadan SHW80YAA 8kW, Zehnder Q450 ERV
Verwijderd
Ik heb 1 groot gat die van zolder rechtstreeks naar de woonkamer gaat, daarbij 2 slaapkamers op de 1e verd. te passeren. Verder zit er ook een 120-125mm gat in de badkamer. Mijn idee is om in de de slaapkamers en zolderkamers een 125mm ventiel te plaatsen, onze slaapkamer een 160mm ventiel voor 60m3 en in de woonkamer ook een 160mm ventiel (nu 2 pers, later hopelijk 4).
Dan wil ik voor de afvoer een 125mm ventiel in de badkamer hebben en 200mm op zolder op de overloop. Met alle ruimtes kom ik uit op een vraag van 270m3/h, dus zou ik met 75m3 in de badkamer nog 195m3 op zolder moeten hebben.
We hebben een open keuken, met een deur tussen de keuken en het trappengat die er uit kan. Dus dan zou het technisch gezien mogelijk zijn om alles op zolder af te zuigen lijkt mij?
Het liefst heb ik op elke verdieping een afvoer, maar in de woonkamer/keuken iets krijgen zonder daarbij flink te moeten verbouwen is niet mogelijk.
[ Voor 12% gewijzigd door P5ycho op 02-10-2023 09:47 ]
12x 280Wp ZW, 12x 280Wp ZO, Zubadan SHW80YAA 8kW, Zehnder Q450 ERV
Verwijderd
We hebben in de keuken wel een afzuigkap naar buiten. Die +-400m3/h zal dan wel sterk genoeg zijn om het niet naar boven te laten zuigen. Eventueel kan de tussendeur dan kort dicht als het toch naar boven zou gaan.P5ycho schreef op maandag 2 oktober 2023 @ 09:47:
Als het even kan in de keuken ook afzuigen ivm koken. Dan heb je ~100m3/h minder af te zuigen op zolder. Je wilt die vieze lucht niet door heel je huis naar zolder trekken.
Aanvoer is dan in de woonkamer en afvoer zou dan via de keuken door naar zolder moeten gaan.
[ Voor 7% gewijzigd door Verwijderd op 02-10-2023 10:41 ]
Heb je al bedacht waar die 400m3/h vandaan gaat komen?Verwijderd schreef op maandag 2 oktober 2023 @ 10:41:
[...]
We hebben in de keuken wel een afzuigkap naar buiten. Die +-400m3/h zal dan wel sterk genoeg zijn om het niet naar boven te laten zuigen. Eventueel kan de tussendeur dan kort dicht als het toch naar boven zou gaan.
Aanvoer is dan in de woonkamer en afvoer zou dan via de keuken door naar zolder moeten gaan.
All-electric.
Verwijderd
Raam van de bijkeuken op een kiertje. Die korte tijd dat de afzuigkap aan staat vind ik dat wel acceptabel warmteverlies. Onze afzuigkap is ook te gebruiken als recirculatie, maar ik heb toch liever dat het fijnstof het huis uit gaat.RonJ schreef op maandag 2 oktober 2023 @ 15:03:
[...]
Heb je al bedacht waar die 400m3/h vandaan gaat komen?
Deze optie komt toch gewoon beschikbaar als je de optie aanvinkt dat er een kachel in de woning staat?Audione0 schreef op woensdag 20 september 2023 @ 20:32:
[...]
Ja hoor dat heeft Zehnder wel, alleen zou ik niet weten hoe je het aan kunt zetten. De optie blijft grijs..
[Afbeelding]
De 'kachel'-optie staat wel achter de installateurs settings denk ik (paswoord 2468)
Ik heb in het weekend in onze nieuwbouw mijn Q350 geplaatst en wat in de instelling zitten spelen. Kan me precies toch herinneren dat ik beide opties heb...
Iemand ervaring met de actiefkool filter :filter
Ik bedoel dan voornamelijk helpen ze goed tegen geuren van buiten ( kachel van de buren)? Iemand een vergelijkende 'studie' gedaan met de gewone F7 VS. de actiefkool versie?
Ze kosten natuurlijk wel wat extra tov de gewone G4/F7 combo
[ Voor 18% gewijzigd door brogel op 03-10-2023 15:43 ]
wp:Pana 9H pv: 13.4kWp
Voor die filters is er een eigen topic: Goed gefilterde WTW installeren
Onder andere vanaf deze bijdrage: _Richie_ in "Goed gefilterde WTW installeren"
WP: ME PUHZ-SW75YAA + ERSD-VM2D + EV-WP-TWS-1W 300; AC: ME MXZ-2F42VF + 2x MSZ-LN25VGV; PV: 14.08 kWp O/W + SMA STP 8.0; Vent: Zehnder Q600 ERV + Ubbink AirExcellent.
Met veel interesse dit topic gelezen aangezien wij bezig zijn met nieuwbouw, en ook specifiek deze discussie. Al veel geleerd. V.w.b. de ComfoClime, het is natuurlijk geen topper qua prijs en efficiëntie, hij zal echter vooral ingezet worden tijdens hete zomers (in de winter is er vloerverwarming) dus dan is er ook veel goedkope stroom van zonnepanelen. Bovendien is met 1 airco natuurlijk een stuk lastiger om in een geheel huis te zorgen voor enige koeling, nog afgezien van de benodigde buiten-unit (lastiger in een bijna-passief huis, en niet echt mooi ofzo).Andrehj schreef op zaterdag 30 september 2023 @ 18:36:
[...]
Uiteraard. En de compressor zal ook lang niet altijd op vol vermogen draaien. Maar dat verandert niets aan de zeer hoge prijs, gecombineerd met een beroerde COP en beperkte capaciteit.
Nog een vraag: voor ons huis staat een Q450 en ComfoClime24 in de planning. Is het de moeite waard om die sowieso te laten vergroten naar Q600 en CC36, is dat altijd beter (afgezien van effect op bankrekening), of heeft vergroten van capaciteit nadelen? Is de Q600 bijv. stiller bij gelijk debiet?
Volgens de eigen geluidstabellen in de specificaties is het niet zo dat een grotere unit stiller werkt bij gelijk debiet en gelijke druk. (voorbeeld: 145m3/hr bij 100 Pa: 54 dBA voor q350, 150m3/hr bij 100 Pa: 54 dBA voor de q450)Joydashy schreef op dinsdag 3 oktober 2023 @ 17:51:
[...]
Is de Q600 bijv. stiller bij gelijk debiet?
Je zal een beetje een inschatting moeten maken van hoeveel weerstand je systeem zal hebben, en welk debiet wenselijk is op welk moment, maar dan kan je met bovenstaand document een schatting van de geluidsdruk maken. (en stroomverbruik). Ik zou daarbij ook goed nadenken hoe vervelend het is dat de ventilatie iets meer geluid maakt als je een woonkamer vol mensen hebt. (hint: tijdens een feestje hoor je de ventilatie toch niet dus ga je daar vooral geen zorgen om maken). Mijn analyse is dat er voornamelijk een sterk verband is tussen debiet en geluidsdruk. Bij gelijk debiet doen de verschillende machines het nagenoeg hetzelfde. Wel is goed om op te merken dat de kleinere machine eerder aan z'n limiet zit maar ook veel zachter zal kunnen dan een grotere machine. Als er situaties zijn waarin je de lower limit van de ventilatie opzoekt (bijvoorbeeld in je eentje thuiswerken) dan zal de kleinste machine het stilst in de ventilatiebehoefte voorzien.
Nu weet ik niet of dat laatste punt ook echt een praktisch bezwaar is. De Vasco DX6 (600m3/uur) die ik hier heb kan ik prima aansturen met 0-10v en op 60m3/uur (1000mV) is hij fluisterstil.Threbez schreef op dinsdag 3 oktober 2023 @ 19:03:
[...]
Volgens de eigen geluidstabellen in de specificaties is het niet zo dat een grotere unit stiller werkt bij gelijk debiet en gelijke druk. (voorbeeld: 145m3/hr bij 100 Pa: 54 dBA voor q350, 150m3/hr bij 100 Pa: 54 dBA voor de q450)
Je zal een beetje een inschatting moeten maken van hoeveel weerstand je systeem zal hebben, en welk debiet wenselijk is op welk moment, maar dan kan je met bovenstaand document een schatting van de geluidsdruk maken. (en stroomverbruik). Ik zou daarbij ook goed nadenken hoe vervelend het is dat de ventilatie iets meer geluid maakt als je een woonkamer vol mensen hebt. (hint: tijdens een feestje hoor je de ventilatie toch niet dus ga je daar vooral geen zorgen om maken). Mijn analyse is dat er voornamelijk een sterk verband is tussen debiet en geluidsdruk. Bij gelijk debiet doen de verschillende machines het nagenoeg hetzelfde. Wel is goed om op te merken dat de kleinere machine eerder aan z'n limiet zit maar ook veel zachter zal kunnen dan een grotere machine. Als er situaties zijn waarin je de lower limit van de ventilatie opzoekt (bijvoorbeeld in je eentje thuiswerken) dan zal de kleinste machine het stilst in de ventilatiebehoefte voorzien.
Op alles daarboven maakt hij nog steeds veel te veel lawaai en ik ben dus ook aan het overwegen om hem om te ruilen voor een alternatief.
Dankbaar gebruik kunnen maken van een test sessie bij @asjenietergvin waar een dx4 draaide. En daar was er al duidelijk minder overlast, wat denk ik komt door de smallere diameter buizen naar de verdeelbox en de extra lengte aan geluidsdemper. Daarna nog bij verschillende buren geluisterd (Duco) en die hadden op 300m3/uur ook substantieel minder motor geluid.
De q600 met enthalpie wisselaar zou dan interessant zijn voor mij omdat ik die dan op de grond kan zetten en overal nog 1m extra aan geluidsdemper kan plaatsen.
Nu de vraag of ik die wellicht kan beluisteren bij iemand? Ik ben dus vooral benieuwd naar het motor geluid. De kanalen leveren tot dusverre geen geluid op qua luchtstroom.
Zit jou wtw wel in een afgesloten ruimte? Op een open zolder maakt de kast van elke wtw volgens mij te veel geluid.
WP: ME PUHZ-SW75YAA + ERSD-VM2D + EV-WP-TWS-1W 300; AC: ME MXZ-2F42VF + 2x MSZ-LN25VGV; PV: 14.08 kWp O/W + SMA STP 8.0; Vent: Zehnder Q600 ERV + Ubbink AirExcellent.
Ja zelfs speciale zware deur met valdorpel voor goede kierdichting. De wtw zit gewoon in de technische ruimte.Andrehj schreef op dinsdag 3 oktober 2023 @ 20:55:
@walletje-w
Zit jou wtw wel in een afgesloten ruimte? Op een open zolder maakt de kast van elke wtw volgens mij te veel geluid.
Het is de frequentie van de motor die irritant is en het motor geluid gaat dus ook teveel door de kanalen. Er zit wel een goede starre geluidsdemper tussen maar ik wil dus nog een ruime meter aan flexibel er tussen kunnen stoppen en daar is nu geen ruimte voor.
[ Voor 33% gewijzigd door walletje-w op 03-10-2023 22:57 ]
Wij hebben vorig jaar nieuw gebouwd en voor het huis zou een Q450 volstaan volgens de berekening. In overleg met de installateur hebben we de Q600 aangeschaft. Reden: motor hoeft kinder hard te draaien = in theorie minder geluid. Ook biedt de Q600 betere uitbreiding mogelijkheden. Qua geluid: In de praktijk op stand 2 is er in de nacht geen overlast. Stand 3 (boost) is dat wel. Alleen na het douchen te horen, in bypass mode of als de CO2 meter in de woonkamer aanslaat als we een feestje geven.Joydashy schreef op dinsdag 3 oktober 2023 @ 17:51:
[...]
Met veel interesse dit topic gelezen aangezien wij bezig zijn met nieuwbouw, en ook specifiek deze discussie. Al veel geleerd. V.w.b. de ComfoClime, het is natuurlijk geen topper qua prijs en efficiëntie, hij zal echter vooral ingezet worden tijdens hete zomers (in de winter is er vloerverwarming) dus dan is er ook veel goedkope stroom van zonnepanelen. Bovendien is met 1 airco natuurlijk een stuk lastiger om in een geheel huis te zorgen voor enige koeling, nog afgezien van de benodigde buiten-unit (lastiger in een bijna-passief huis, en niet echt mooi ofzo).
Nog een vraag: voor ons huis staat een Q450 en ComfoClime24 in de planning. Is het de moeite waard om die sowieso te laten vergroten naar Q600 en CC36, is dat altijd beter (afgezien van effect op bankrekening), of heeft vergroten van capaciteit nadelen? Is de Q600 bijv. stiller bij gelijk debiet?
Ik denk na over ComfoClime als een add on op de vloerkoeling en het gemak van plaatsing. Plus dat iedere ruimte wat extra koeling kan krijgen. Ook al levert de unit geen airco prestaties.
[ Voor 8% gewijzigd door DJR op 04-10-2023 18:40 ]
Ik denk dat dat verschil lauter theoretisch is. In het document technische specificaties van Zehnder staat helaas maar één gemeenschappelijk meetpunt (450 m³ @ 200 Pa) en daar zijn de geluidswaarden (gemiddeld) precies gelijk.DJR schreef op woensdag 4 oktober 2023 @ 18:35:
Wij hebben vorig jaar nieuw gebouwd en voor het huis zou een Q450 volstaan volgens de berekening. In overleg met de installateur hebben we de Q600 aangeschaft. Reden: motor hoeft kinder hard te draaien = in theorie minder geluid
De ventilatoren van de Q600 zijn ook precies even groot als die van de 450. Er zitten in de 600 alleen iets andere motoren.
Kun je aangeven welke uitbreidingen een Q600 wel ondersteunt en een Q450 niet?. Ook biedt de Q600 betere uitbreiding mogelijkheden.
Ik zou voor aanschaf eens uitrekenen hoeveel Watt koeling je dat maximaal oplevert. En dat even afwegen tegen het kostenplaatje.Qua geluid: In de praktijk op stand 2 is er in de nacht geen overlast. Stand 3 (boost) is dat wel. Alleen na het douchen te horen, in bypass mode of als de CO2 meter in de woonkamer aanslaat als we een feestje geven.
Ik denk na over ComfoClime als een add on op de vloerkoeling en het gemak van plaatsing. Plus dat iedere ruimte wat extra koeling kan krijgen. Ook al levert de unit geen airco prestaties.
Bovendien moet je dan al je interne leidingwerk dampdicht isoleren, wat bij de meeste huizen een flinke klus is, en bij veel huizen überhaupt niet meer mogelijk...
[ Voor 6% gewijzigd door Andrehj op 04-10-2023 19:24 ]
WP: ME PUHZ-SW75YAA + ERSD-VM2D + EV-WP-TWS-1W 300; AC: ME MXZ-2F42VF + 2x MSZ-LN25VGV; PV: 14.08 kWp O/W + SMA STP 8.0; Vent: Zehnder Q600 ERV + Ubbink AirExcellent.
Maar heb het gevoel in de slaapkamer dat ik soms een beetje verse lucht te kort kom, nou zag ik dat een van de uitlaat ventielen best wel ver dicht zat, kan ik die een heel klein beetje opendraaien zodat er wat meer lucht uit komt?
Ja, al gaat dat niet bij alle ventielen even makkelijk of intuïtief. Maar ik zou eerst een CO2-meter kopen en dan aan het eind van een nacht kijken of je maximaal rond de 1000 ppm uit komt. Dan heb je tenminste een meting.NicoHF schreef op woensdag 4 oktober 2023 @ 19:40:
In m'n appartement zit een wtw balans systeem door het hele huis.
Maar heb het gevoel in de slaapkamer dat ik soms een beetje verse lucht te kort kom, nou zag ik dat een van de uitlaat ventielen best wel ver dicht zat, kan ik die een heel klein beetje opendraaien zodat er wat meer lucht uit komt?
WP: ME PUHZ-SW75YAA + ERSD-VM2D + EV-WP-TWS-1W 300; AC: ME MXZ-2F42VF + 2x MSZ-LN25VGV; PV: 14.08 kWp O/W + SMA STP 8.0; Vent: Zehnder Q600 ERV + Ubbink AirExcellent.
Misschien inderdaad wel handig om te meten.Andrehj schreef op woensdag 4 oktober 2023 @ 19:42:
[...]
Ja, al gaat dat niet bij alle ventielen even makkelijk of intuïtief. Maar ik zou eerst een CO2-meter kopen en dan aan het eind van een nacht kijken of je maximaal rond de 1000 ppm uit komt. Dan heb je tenminste een meting.
Bedankt voor de reactie! Dan ga ik proberen om die wat meer open te zetten.
Maar het kan dus geen kwaad ivm aanvoer/afvoer balansen? Was een beetje bang dat misschien dan de hele verhoudingen niet meer kloppen.
[ Voor 20% gewijzigd door NicoHF op 04-10-2023 19:57 ]
Ook voor CO2 meters is hier op Tweakers.net natuurlijk een eigen topic: CO2-meters voor in huisNicoHF schreef op woensdag 4 oktober 2023 @ 19:48:
Zou dit een goede meter zijn? kost maar €15
WP: ME PUHZ-SW75YAA + ERSD-VM2D + EV-WP-TWS-1W 300; AC: ME MXZ-2F42VF + 2x MSZ-LN25VGV; PV: 14.08 kWp O/W + SMA STP 8.0; Vent: Zehnder Q600 ERV + Ubbink AirExcellent.
Thanks. Heb het daar gevraagd.Andrehj schreef op woensdag 4 oktober 2023 @ 19:50:
[...]
Ook voor CO2 meters is hier op Tweakers.net natuurlijk een eigen topic: CO2-meters voor in huis
Noteer eerst even de oude stand van het ventiel. De balans is zeker belangrijk, en daar ga je mee aan de haal nu.NicoHF schreef op woensdag 4 oktober 2023 @ 19:48:
[...]
Misschien inderdaad wel handig om te meten.
Bedankt voor de reactie! Dan ga ik proberen om die wat meer open te zetten.
Maar het kan dus geen kwaad ivm aanvoer/afvoer balansen? Was een beetje bang dat misschien dan de hele verhoudingen niet meer kloppen.
De wtw zorgt wel voor gelijke flow, maar die wordt dan dus anders verdeeld.
Als het niet bevalt wil je naar de oude situatie terug kunnen.
En als het even kan eerst co2 meten voordat je ventielen aanpast.
12x 280Wp ZW, 12x 280Wp ZO, Zubadan SHW80YAA 8kW, Zehnder Q450 ERV
Co2 meting zit er wss niet in, goedkoopste optie is €70 tot nu toe volgens dat topic helaas.P5ycho schreef op woensdag 4 oktober 2023 @ 19:59:
[...]
Noteer eerst even de oude stand van het ventiel. De balans is zeker belangrijk, en daar ga je mee aan de haal nu.
De wtw zorgt wel voor gelijke flow, maar die wordt dan dus anders verdeeld.
Als het niet bevalt wil je naar de oude situatie terug kunnen.
En als het even kan eerst co2 meten voordat je ventielen aanpast.
Hoeveel zou ik het moeten uitdraaien denk je om een beetje meer flow te hebben?
De volgende ventielen heb:
Woonkamer 2x inlaat 2x uitlaat
Slaapkamer 2x uitlaat
Wc 1x inlaat
Badkamer 1x inlaat
Zehnder
ComfoAir E300
De ComfoCool uitbreidingsmodule kan alleen op een Q600 geplaatst worden, zal te maken hebben met de benodigde maximale capaciteit om het effect van de ComfoCool te voelen.Andrehj schreef op woensdag 4 oktober 2023 @ 19:20:
[...]
Kun je aangeven welke uitbreidingen een Q600 wel ondersteunt en een Q450 niet?
[...]
Je hebt dus niets aan overdimensioneren als je dat niet daadwerkelijk inzet met de comfoclime.
12x 280Wp ZW, 12x 280Wp ZO, Zubadan SHW80YAA 8kW, Zehnder Q450 ERV
OK. Dan zou ik voor aanschaf eens bij iemand gaan luisteren hoeveel geluid een Q600 eigenlijk maakt bij >500 m³/h....DJR schreef op donderdag 5 oktober 2023 @ 09:24:
De ComfoCool uitbreidingsmodule kan alleen op een Q600 geplaatst worden, zal te maken hebben met de benodigde maximale capaciteit om het effect van de ComfoCool te voelen.
Ik kan je nu al voorspellen dat een gewone airco vele malen stiller is, zeker op dezelfde capaciteit.
Daarbij komt nog dat een Q600 op die capaciteit ook serieus veel stroom verbruikt om al dat debiet door de leidingen te persen. Daar heeft een airco, die immers vrij uit kan blazen, geen last van. Ik vraag me af of dat wel in de (toch al beroerde) COP-cijfers van een comfoclime verwerkt is.
[ Voor 22% gewijzigd door Andrehj op 05-10-2023 12:33 ]
WP: ME PUHZ-SW75YAA + ERSD-VM2D + EV-WP-TWS-1W 300; AC: ME MXZ-2F42VF + 2x MSZ-LN25VGV; PV: 14.08 kWp O/W + SMA STP 8.0; Vent: Zehnder Q600 ERV + Ubbink AirExcellent.
Daar is geen antwoord op te geven zonder te meten. Een beetje open is een beetje meer flow.NicoHF schreef op woensdag 4 oktober 2023 @ 23:10:
[...]
Co2 meting zit er wss niet in, goedkoopste optie is €70 tot nu toe volgens dat topic helaas.
Hoeveel zou ik het moeten uitdraaien denk je om een beetje meer flow te hebben?
De volgende ventielen heb:
Woonkamer 2x inlaat 2x uitlaat
Slaapkamer 2x uitlaat
Wc 1x inlaat
Badkamer 1x inlaat
Zehnder
ComfoAir E300
Voor een paar tientjes heb je een anemometer, voor nog iets meer heb je ook een co2 meter.
12x 280Wp ZW, 12x 280Wp ZO, Zubadan SHW80YAA 8kW, Zehnder Q450 ERV
Sorry, ik kom toevallig dit topic binnenwaaien op zoek naar ervaringen tussen een Ducobox 325 en een Zehnder E 300 -- en wat beter zou zijn als vervanging van een Stork WH90R -- maar als voormalig hoofdconstructeur van een betonfabriek:Yaldair schreef op dinsdag 26 september 2023 @ 22:29:
[...]
Dit zijn bij mij de tekeningen:
[Afbeelding] [Afbeelding]
Eerste is de onderwapening, tweede bovenwapening. Dus als ik het goed heb zit hier een stuk waar niks lijkt te zitten (kamer linksboven, ongeveer in het midden). Vraag dan natuurlijk weer of het beter is om tussen de wapening door te boren, of in zo'n stuk waar niks zit (als daar daadwerkelijk niks zit).
Geen van beide tekeningen is een tekening van de wapening IN de platen. De V154 zijn voegnetten die op de naden van de platen liggen. De E-netten zijn bovenwapening -- je hebt een vloer die dunner is dan 250 mm, en dan heeft men meestal uit kostenbesparing alleen aan de randen wapening gelegd. In je plaat is in lijn met de pootjes van de tralieligger gelegd -- en staat hier niet aangegeven
MIO DIOS!!! ESTA CIENCIA ES DIABOLICO!!!
Je mag bij de Comfoair e300 aan de ventielen draaien, de toestel meet zelf het debiet. Minder weerstand = minder hard draaiende ventilatoren.
:strip_exif()/f/image/kJZHzYbR8lqQFINcqHeCl35a.jpg?f=fotoalbum_large)
Wat context: de dakdoorvoeren zitten vrij dicht bij elkaar, dit omdat de uitvoer over het platte dak loopt zodat we geen grote koof nodig hebben in de aanliggende kamer.
[ Voor 9% gewijzigd door Jaapf op 05-10-2023 21:57 . Reden: context ]
Jaapf schreef op donderdag 5 oktober 2023 @ 21:54:
Een installatiebedrijf is begonnen met het installeren van de installatie van de WTW (Zehnder Q600) en de kanalen. De kanalen komen op een T-stuk binnen (waarbij een deel omhoog gaat naar het plafond om naar ventielen te gaan op de tweede verdieping). Het lijkt me alleen wellicht niet optimaal om op een T-stuk in te blazen. Feedback welkom! (ze zijn nog bezig, dus er kan nog het een en ander aangepast worden eventueel).
[Afbeelding]
Wat context: de dakdoorvoeren zitten vrij dicht bij elkaar, dit omdat de uitvoer over het platte dak loopt zodat we geen grote koof nodig hebben in de aanliggende kamer.
- Dakdoorvoeren direct naast elkaar hoort idd niet. Geadviseerd wordt om die een flink stuk uit elkaar te plaatsen. (Google op "verdunningsfactor"). Toevoer vanaf een (plat) dak is een minder goed idee, omdat de lucht daarboven in de zomer de neiging heeft om veel te warm te worden.
- Inblazen op een T-stuk is idd niet optimaal. Beter vervangen door een 45° aftakking (plus een 90 en een 45° bocht).
- Je lijkt alles met spiro te gaan doen. Hou je wel rekening met overspraak tussen de ruimtes? (Zodat je niet de slaapkamergeluiden van een kamer door de rest van het huis kunt volgen...)
- Was het niet handig geweest om de muur links voor plaatsing van je WTW nog even te schilderen? Dat ziet er toch een stuk fraaier uit en achteraf kun je er een stuk lastiger bij.
- Zoek in dit topic even op dempers. Gezien de layout kun je aan de inblaaskant hooguit nog één flexibele demper toevoegen (als aansluiting op de WTW). De ervaring hier is dat dat niet voldoende is.
[ Voor 11% gewijzigd door Andrehj op 05-10-2023 22:20 ]
WP: ME PUHZ-SW75YAA + ERSD-VM2D + EV-WP-TWS-1W 300; AC: ME MXZ-2F42VF + 2x MSZ-LN25VGV; PV: 14.08 kWp O/W + SMA STP 8.0; Vent: Zehnder Q600 ERV + Ubbink AirExcellent.
En +1 op zoveel mogelijk starre of flexibele dempers. De Y stuk heet een broekstuk, is beter dan een T. Zie https://www.spirototaal.n...l/spiro/broekstuk-y-stuk/
De dempers was ik persoonlijk ook benieuwd naar, voordat ze kwamen installeren werd er verteld dat ze altijd dempers installeren, dus ik ben benieuwd hoe die hier aangesloten worden.
Ik heb wat gegoogled op overspraak, maar vooral wordt er aangeraden om genoeg afstand te hebben tussen de ventielen. Moeten er nog extra dempers tussen om dit te voorkomen. Zijn er specifiek dempers die goed zijn tegen overspraak?
We konden niet door de gevel omdat we dan te dicht bij een cv ketel uitlaat zitten, dus we moeten noodzakelijk door het platte dak, uitblazen gaat door de buis die op het dak ligt, dus die warmt de lucht niet op.Andrehj schreef op donderdag 5 oktober 2023 @ 22:14:
[...]
• Dakdoorvoeren direct naast elkaar hoort idd niet. Geadviseerd wordt om die een flink stuk uit elkaar te plaatsen. (Google op "verdunningsfactor"). Toevoer vanaf een (plat) dak is een minder goed idee, omdat de lucht daarboven in de zomer de neiging heeft om veel te warm te worden.
Net als vele anderen heb ook ik een WH90R. Die aangelegd is bij de bouw van het huis in 2002. Ofwel: het wordt wel eens tijd om een andere unti in te gaan zetten. Dus inderdaad, je gaat wat rondvragen en offertes opvragen et cetera.
Waar ik wat moeite mee heb is het vinden van een goede 1 op 1 vergelijk van verschillende units. Met de huidige unti hebben wij geen problemen met vochtophoping etc. Het is in de winter wel droog, maar niet overdreven zo, en de vochtigheid in de zomer is helemaal goed. Eigenlijk willen we dus niet meer dan een drop-in voor de huidige unit, maar dan wel met een bypass voor de zomer, en draadloze afstandsbedieningsunits (want de originele installatie heeft 1 vaste knop. Op zolder. Aan 2 draadjes -- don't ask)
Na wat opgevraagd te hebben sta ik nu te beslissen tussen een Zehnder E300 (RF versie) - zonder vochtsensor. En een Duco energy Comfort 325. Die in de machine zelf als optie een vochtsensor kan krijgen.
Waarom ik nu hier dit allemaal vertel: ik ben mij al een paar dagen suf aan het zoeken maar ik zie niet echt het verschil tussen beide units. Ja, ik zie wel dat de Duco half zo zwaar is, en de aan-afvoer voleldig softwarematig regelt. Maar echter diepgaande ervaringen met beide untis over tijd heen -- dat schijn ik nergens te kunnen vinden. En echt de verschillen tussen de 2 van (ervarings)experts die er onafhankelijk in staan: ik kijk er overheen waarschijnlijk.
Mijn vraag voor de bezoekers hier: wie kan mij op de ECHTE verschillen tussen de E300 en de D325 wijzen op basis waarvan ik een gefundeerde keuze kan maken? De offertes die ik gekregen heb hebben maar een verschil van ca 300 euro -- het gaat mij vooral om betrouwbaarheid, zoveel mogelijk niet naar om hoeven kijken behalve het standaard onderhoud, en welke unit van deze twee de "beste papieren" heeft zodat ik een wel afgewogen keuze kan maken in plaats van 2 tech sheets die niet 1 op 1 te vergelijken zijn (Oh ja -- vergeten te vermelden, de technische specificaties zijn ook nog eens niet 1 op 1 te vergelijken)
Om niet de standaard vraag: "wat is het beste" neer te pleuren -- is de vraag wat specifieker gemaakt in de hoop dat iemand mij wat aanvullend advies kan geven, of in ieder geval inzicht in ervaring met 1 (of beide) units
MIO DIOS!!! ESTA CIENCIA ES DIABOLICO!!!
Wat is dus de reden dat je 3k wilt uitgeven voor de vervanging van een werkend apparaat?
(Oprechte vraag, ik wil 'm zelf eigenlijk ook vervangen vooral vanwege het geluid, maar moet het nog even naar mezelf en de vrouw verantwoorden)
Panasonic 12J T-CAP | Atlantic Explorer 270L | 4 x MHI SRK24ZS-WF + SRF35ZS-W | 12.000 Wp Enphase | Home Assistant, Heishamon, Mhi-ctrl | Alfa Romeo Giulia Veloce
Ja daar ben ik een beetje terughoudend in. Vraag aan de verkoper waarom hij beter is dan de concurrent -- je krijgt er geen eerlijk antwoord bij (ik heb zelf ook als verkoper gestaan). Het was ook een longshot -- al was het maar een gebruikerservaring of iemand die de tech sheets iets beter kan interpreteren dan dat ik het kan. "Nee we weten het niet" is ook altijd een geldig antwoord natuurlijkw00key schreef op vrijdag 6 oktober 2023 @ 23:45:
Weinig mensen zullen eerstehands ervaring hebben met specifiek deze 2 WTW units. Misschien dat de verkopers er meer over kunnen vertellen?
Je zegt het zelf -- lawaai en niet zuinig. Daarnaast hebben de vorige bewoners een slaapkamer gemaakt op zolder -- hier zit geen ventilatiekanaal heen: die gaat gelijk mee. Daarbij: de unit is als 21 jaar oud, ruim voorbij de technische levensduur van 15 jaar. Ik zou niet zonder willen zitten, dus wachten tot hij er mee ophoudt heb ik geen trek in. Daarnaast heeft mijn uitvoering geen bypass -- en dat beginnen we nu, met de toenemende warmte in de zomer, zeer goed te merken (met constante temperaturen van 27+ in de zomer).ConQuestador schreef op zaterdag 7 oktober 2023 @ 07:22:
Mag ik vragen waarom je de whr90 nu wilt vervangen? Ik heb er zelf ook 1, en hij zal inderdaad niet de zuinigste, efficiëntste en stilste zijn. Maar hij doet het wel.
Wat is dus de reden dat je 3k wilt uitgeven voor de vervanging van een werkend apparaat?
(Oprechte vraag, ik wil 'm zelf eigenlijk ook vervangen vooral vanwege het geluid, maar moet het nog even naar mezelf en de vrouw verantwoorden)
Daarnaast hadden we van te voren al het idee om de unit te vernieuwen toen we het huis kochten in 2020 -- en hebben we een apart potje aan de kant gezet die we nu gaan aanbreken.
Dus ja -- deels emotie (we willen het graag vernieuwen) en deels wat argumenten om het oude aan de kant te zetten
MIO DIOS!!! ESTA CIENCIA ES DIABOLICO!!!
@Andrehj Ik ben hier dus even naar aan het kijken, maar voor mijn gevoel loopt het volume totaalsommetje op 100% nu wel heel hard op...Andrehj schreef op zaterdag 30 september 2023 @ 14:03:
[...]
Dat moet je zeker even doen, want voor een persoon in rust heb je die 25m³/h wel nodig om onder de 1000 ppm CO2 te blijven. Ben je actiever dan verbruik je meer zuurstof (en produceer je dus meer CO2.)
Je WTW de hele nacht op standje max laten draaien wil je niet...
Als ik 30m3/h aanhoud en de vertrekken die nu niet geventileerd zijn of misschien in de toekomst gebouwd worden erbij tel dan explodeert de totaalsom:
:fill(white):strip_exif()/f/image/ebZqCRTZfesFjfgckT8fbOla.png?f=user_large)
En dan heb ik alleen de slaapvertrekken aangepast. De woonkamer + keuken samen voldoen nog niet eens aan 30m3/h voor 4 personen bij stand 2 (66%)
Heb ik dit nu zo onderschat? Ik kan nu nog van een Q450 naar een Q600 wisselen als het moet, maar iets zegt met dat er iets niet klopt?
12x 280Wp ZW, 12x 280Wp ZO, Zubadan SHW80YAA 8kW, Zehnder Q450 ERV
Ik begrijp weinig van jouw sheetje (wat is bijvoorbeeld pulsieberP5ycho schreef op zondag 8 oktober 2023 @ 11:52:
[...]
@Andrehj Ik ben hier dus even naar aan het kijken, maar voor mijn gevoel loopt het volume totaalsommetje op 100% nu wel heel hard op...
Als ik 30m3/h aanhoud en de vertrekken die nu niet geventileerd zijn of misschien in de toekomst gebouwd worden erbij tel dan explodeert de totaalsom:
[Afbeelding]
En dan heb ik alleen de slaapvertrekken aangepast. De woonkamer + keuken samen voldoen nog niet eens aan 30m3/h voor 4 personen bij stand 2 (66%).
Heb ik dit nu zo onderschat? Ik kan nu nog van een Q450 naar een Q600 wisselen als het moet, maar iets zegt met dat er iets niet klopt?
Ook in een woonkamer zou je door slim gekozen overstroom veel lucht via de gang kunnen toevoeren.
[/quote]
[ Voor 4% gewijzigd door Andrehj op 08-10-2023 12:46 ]
WP: ME PUHZ-SW75YAA + ERSD-VM2D + EV-WP-TWS-1W 300; AC: ME MXZ-2F42VF + 2x MSZ-LN25VGV; PV: 14.08 kWp O/W + SMA STP 8.0; Vent: Zehnder Q600 ERV + Ubbink AirExcellent.
Je antwoord is in de quote beland trouwens.
Ik heb simpelweg alles berekend volgens bouwbesluit en volgens 'personen per ruimte'. Daar per ruimte de hoogste van de twee gepakt.
Volgens mij mag ik de helft uit de woonkamer meerekenen, maar moet ook de helft in de keuken aangevoerd worden.
YouTube: Training 'WTW ventilatie installeren' - Zehnder en Rensa
Dubbele deuren zijn 1833mm breed maar kunnen wel dicht, en dat doen we soms ook.
Minimaal 50% van de toevoer lucht van een verblijfsgebied/ruimte dient rechtstreeks van buiten te komen volgens het bouwbesluit. Daar kan ik alleen aan voldoen als ik 50m3/h onder de gesloten deuren door laat komen en de rest rechtstreeks aanvoer.
Plaatje begane grond:
/f/image/mGXkAO3NdEJluEXr0p7e5eW7.png?f=fotoalbum_medium)
Dat klinkt interessant, maar zie ik nog niet helemaal voor me. Deze berekening heeft op het moment meer aanvoer dan afvoer wat ik compenseer door flink af te zuigen op zolder. Het zou super zijn als ik dat fixen kan.Andrehj schreef op zondag 8 oktober 2023 @ 12:01:
Ook in een woonkamer zou je door slim gekozen overstroom veel lucht via de gang kunnen toevoeren.
[ Voor 17% gewijzigd door P5ycho op 08-10-2023 12:24 ]
12x 280Wp ZW, 12x 280Wp ZO, Zubadan SHW80YAA 8kW, Zehnder Q450 ERV
Van die regel heb ik mij precies niets aangetrokken. Ik kan toch niet tegelijk in de woonkamer en in de slaapkamer zijn.P5ycho schreef op zondag 8 oktober 2023 @ 12:20:
pulsieber: pulsie = aanvoer, ber. = berekening. Hopelijk helpt dat.
Je antwoord is in de quote beland trouwens.
Ik heb simpelweg alles berekend volgens bouwbesluit en volgens 'personen per ruimte'. Daar per ruimte de hoogste van de twee gepakt.
Volgens mij mag ik de helft uit de woonkamer meerekenen, maar moet ook de helft in de keuken aangevoerd worden.
YouTube: Training 'WTW ventilatie installeren' - Zehnder en Rensa
Dubbele deuren zijn 1833mm breed maar kunnen wel dicht, en dat doen we soms ook.
Minimaal 50% van de toevoer lucht van een verblijfsgebied/ruimte dient rechtstreeks van buiten te komen volgens het bouwbesluit. Daar kan ik alleen aan voldoen als ik 50m3/h onder de gesloten deuren door laat komen en de rest rechtstreeks aanvoer.
Als je die extra afzuiging die je nu (nutteloos) op zolder doet verplaatst naar de keuken en ervoor zorgt dat die luchtstroom via de woonkamer loopt is je probleem waarschijnlijk voor het grootste deel opgelost.Plaatje begane grond:
[Afbeelding]
[...]
Dat klinkt interessant, maar zie ik nog niet helemaal voor me. Deze berekening heeft op het moment meer aanvoer dan afvoer wat ik compenseer door flink af te zuigen op zolder. Het zou super zijn als ik dat fixen kan.
Hier loopt door slim gekozen overstroomopeningen de luchttoevoer van twee toiletten, een badkamer en de bijkamer allemaal via de woonkamer. Zo heb ik daar zoveel mogelijk flow, zonder dat daar waanzinnig veel extra toevoerventielen nodig zijn.
Toevoer gebeurt hoofdzakelijk op de slaapkamers.
WP: ME PUHZ-SW75YAA + ERSD-VM2D + EV-WP-TWS-1W 300; AC: ME MXZ-2F42VF + 2x MSZ-LN25VGV; PV: 14.08 kWp O/W + SMA STP 8.0; Vent: Zehnder Q600 ERV + Ubbink AirExcellent.
Laat jij je slaapkameraangevoerde lucht dan door je woonkamer lopen voordat je deze afzuigt?Andrehj schreef op zondag 8 oktober 2023 @ 12:50:
[...]
Van die regel heb ik mij precies niets aangetrokken. Ik kan toch niet tegelijk in de woonkamer en in de slaapkamer zijn.
De enige manier waarop ik slaapkamerlucht kan hergebruiken en de woonkamer in kan krijgen is door vloerroosters in de slaapkamers rechtstreeks door de kanaalplaatvloer naar de woonkamer te maken. Dat is wel geniaal eigenlijk, maar niet helemaal handig qua geluidsoverdracht.
Daar ga ik even mee puzzelen, wordt vervolgd.Als je die extra afzuiging die je nu (nutteloos) op zolder doet verplaatst naar de keuken en ervoor zorgt dat die luchtstroom via de woonkamer loopt is je probleem waarschijnlijk voor het grootste deel opgelost.
Hier loopt door slim gekozen overstroomopeningen de luchttoevoer van twee toiletten, een badkamer en de bijkamer allemaal via de woonkamer. Zo heb ik daar zoveel mogelijk flow, zonder dat daar waanzinnig veel extra toevoerventielen nodig zijn.
Toevoer gebeurt hoofdzakelijk op de slaapkamers.
Thanks!
PS Heb je je berekening en/of plan ergens gedeeld staan toevallig? Zou als inspiratie kunnen dienen wellicht.
12x 280Wp ZW, 12x 280Wp ZO, Zubadan SHW80YAA 8kW, Zehnder Q450 ERV
Het grootste deel wel.P5ycho schreef op zondag 8 oktober 2023 @ 14:01:
Laat jij je slaapkameraangevoerde lucht dan door je woonkamer lopen voordat je deze afzuigt?
Alleen de badkamer op de 1e verdieping krijgt zijn lucht uit de slaapkamer + de overloop.
De rest gaat via het trappenhuis naar beneden.
De bijkeuken zit achter de woonkamer, dus dat gaat vanzelf goed.
Vanuit de woonkamer stroomt er lucht via de trapkast naar het toilet. Deur van toilet naar gang is dus zo luchtdicht mogelijk.
Vanuit de woonkamer/keuken stroomt er weer lucht omhoog via doorlaten in het plafond naar mijn technische ruimte. Vanuit die technische ruimte worden dan het toilet op de 1e verdieping en de badkamer op de 2e verdieping belucht. Zo voorkom ik ook oververhitting van de technische ruimte, waar mijn SWW-vat en PV-omvormer voor nogal wat opwarming zorgen.
Verder heeft de woonkamer ook nog twee eigen toevoerventielen.
3D plaatje is hier al een aantal maal gepost:De enige manier waarop ik slaapkamerlucht kan hergebruiken en de woonkamer in kan krijgen is door vloerroosters in de slaapkamers rechtstreeks door de kanaalplaatvloer naar de woonkamer te maken. Dat is wel geniaal eigenlijk, maar niet helemaal handig qua geluidsoverdracht.
WP: ME PUHZ-SW75YAA + ERSD-VM2D + EV-WP-TWS-1W 300; AC: ME MXZ-2F42VF + 2x MSZ-LN25VGV; PV: 14.08 kWp O/W + SMA STP 8.0; Vent: Zehnder Q600 ERV + Ubbink AirExcellent.
Ik heb al wat ideeen, zal ze uitwerken en posten binnenkort.
12x 280Wp ZW, 12x 280Wp ZO, Zubadan SHW80YAA 8kW, Zehnder Q450 ERV
Dat idee dat lucht uit een leefruimte vies is, is bedacht door ambtenaren achter een bureau. Ik denk liever wat praktischer.P5ycho schreef op zondag 8 oktober 2023 @ 14:35:
Het hele 'lucht uit een leefruimte is vies' heb je inderdaad helemaal overboord gegooid. Wat nou bouwbesluit.
Voordeel van je eigen huis ontwerpen is dat grote delen van het nieuwbouwbesluit niet voor je gelden, en dat de rest toch niet wordt gecontroleerd.
Er leven in dit huis meestal maar vier personen (overdag uiteraard meestal veel minder), en die kunnen maar op één plek tegelijk zijn. Dus ik zou niet weten wat het probleem is van het in de woonkamer hergebruiken van lucht die in een slaapkamer is ingeblazen.
CO2-niveaus geven dat ook aan trouwens.
Vandaag zijn we het grootste deel van de dag met z'n 4-en thuis, en de CO2-sensor in de woonkamer staat nu op 620 ppm (bij continu 220 m³/h ventileren). Prima dus.
WP: ME PUHZ-SW75YAA + ERSD-VM2D + EV-WP-TWS-1W 300; AC: ME MXZ-2F42VF + 2x MSZ-LN25VGV; PV: 14.08 kWp O/W + SMA STP 8.0; Vent: Zehnder Q600 ERV + Ubbink AirExcellent.
:strip_exif()/f/image/j1cpm9xH07QRxSPkQkh7Nhop.jpg?f=fotoalbum_tile)
:strip_exif()/f/image/CCqWdX6CFUgYmknrLRX9S6Jl.jpg?f=fotoalbum_tile)
:strip_exif()/f/image/qCnmBZb3kAoPFMUcIqvGOVMZ.jpg?f=fotoalbum_medium)