Rtificial schreef op vrijdag 9 juni 2017 @ 10:31:
[...]
@
Señor Sjon ziet er op zich goed doordacht uit. Alle dwarsdoorsneden lijken me wat overkill, maar heeft niets met het ontwerp te maken natuurlijk
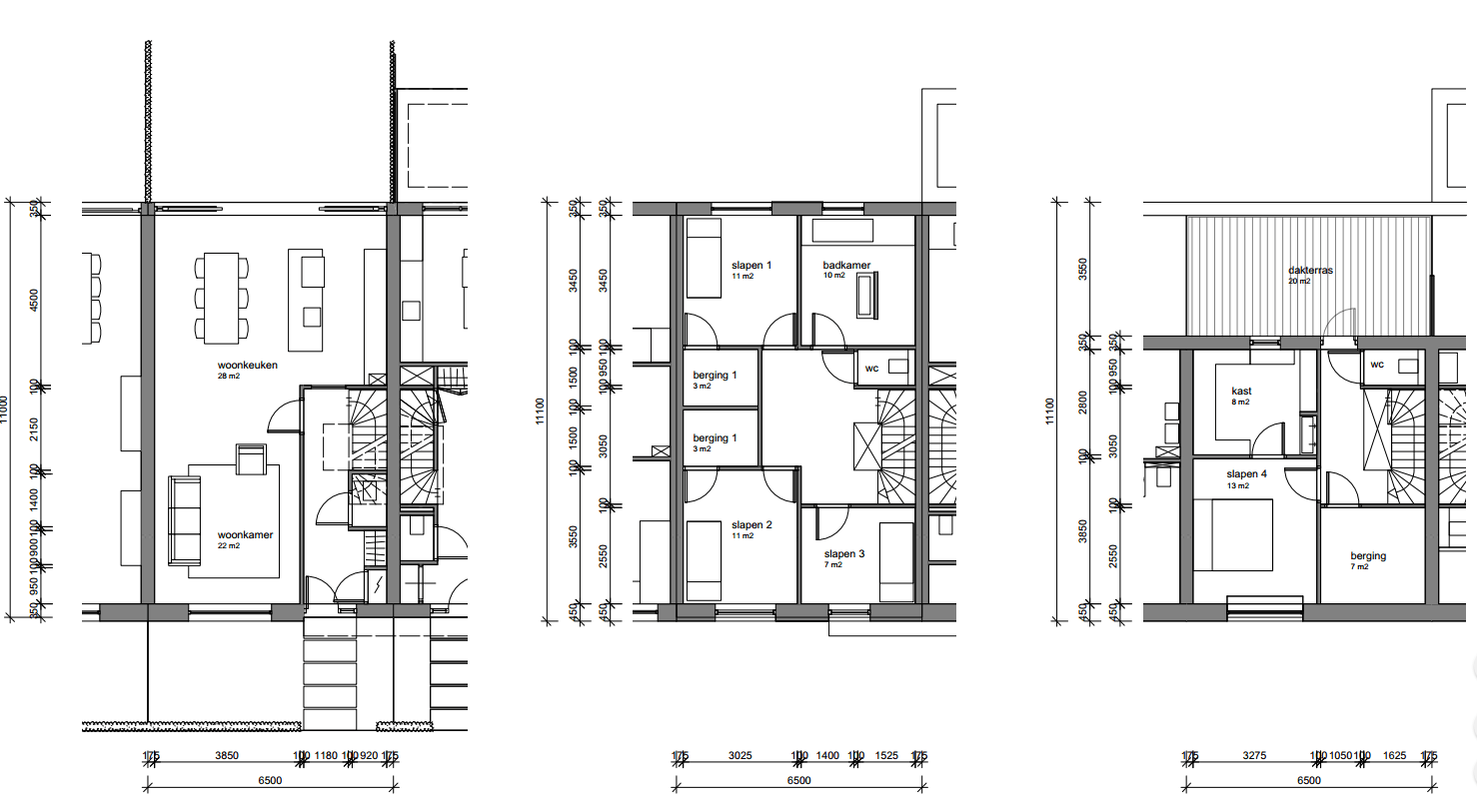
De doorgang naar de werkkamer vanuit de hal is wat mij betreft weinig relevant als je er een poolbiljart zet. In dat geval zou ik die deur weghalen, de garderobe een kwartslag draaien, en de hal net iets korter maken, en daarmee de ruimte geven aan de woonkamer, hoewel die in feite al groot genoeg is. Dus, ik zou dan eigenlijk het ontwerp nog iets compacter maken.
Boven ook, prima ontwerp, voldoende badkamers, maar ook erg ruime kamers. Ik zou me niet schamen om het net iets compacter te maken.
Maar eigenlijk is het muggenziften, ziet er goed uit.
De woning was eerst groter, hij is al verkleind.

Eerst waren alle plafonds 2.6, maar later heb ik dit veranderd naar 3,0-2,4-2,4 omdat ik beneden het meeste leef en daar de hoogte erg mooi vind. Het oude stramien was 4,5-4-4,5 en nu 3x 4,2. Kleiner wil ik niet vanwege de begane grond. Dat kamers boven meegroeien... so be it.

De pooltafel is een geintje, ik wil gewoon dat dat zeker past.

De deur vanuit de hal is om werken vanuit huis wat makkelijker mogelijk te maken. Dan hoeft bezoek niet het hele huis door.
Dwarsdoorsneden? Die 'excel'stroken zijn het stramienplan. Ik ben uitgegaan van 2,1m voor het hoofdgebouw.
Wailing_Banshee schreef op vrijdag 9 juni 2017 @ 10:49:
@
Señor Sjon ik zou een andere cabrio nemen! Die stoelen achterin zijn helemaal niet nodig!
En er past geen bureau in je werkkamer.
Maar even serieus. Die tv kamer, zou je die niet willen afsluiten van de woonkamer/keuken ruimte? Bijv. door middel van schuifdeuren.
(en vierkante panelen van 165x100? of lees ik dat verkeerd?)
De pooltafel had ik nog ergens in CAD staan, dus die moest sowieso passen. Dan past er altijd een bureau in.

De TV-hoek had ik eerst afgesloten, maar ik ben door de modelwoning van Groothuis heengelopen en als open ruimte voelt het een stuk beter aan, zeker i.c.m. hoge plafonds en veel daglicht.
De panelen lijken vierkant. De projectie in het horizontale vlak is bijna vierkant door de dakhelling.
Grolsch schreef op vrijdag 9 juni 2017 @ 10:49:
[...]
Zie er goed uit! Je hebt er ook al een tijdje over nagedacht
Ga je echt auto's in de garage zetten

Want dan kun je die ruimte nergens anders meer voor gebruiken.
Waar ga je met je fietsen (kinderspeelgoed indien van toepassing), werkbank, gereedschap, tuinmachines naar toe
Dit geef ik aan omdat ik dit nu praktisch tegenkom in onze woning.
Bij ons staan staan de auto's dus niet in de garage, maar ik heb het idee dat ik nu al ruimte tekort kom

Het wordt wel beter als alles is opgeruimd, maar als je de auto's echt binnen gaat zetten ga je daar problemen mee krijgen.
En de ruimte voor je WP gedeelte (2x0,9 meter

) is ook zeker te krap

Je moet v.v. verdeler kwijt, WP binnenunit, buffervat, boilervat, drukvat, en alle leidingen.
Ook daar ben ik zelf achtergekomen, eigenlijk is die bij ons ook te krap, het past uiteindelijk, maar ideaal is het niet, ik zou dat de volgende keer anders doen
De diepte van je veranda vindt ik ook wat krap om droog te zetten. 2,2 meter? kun je niet normaal een tafel onderzetten en aan beide kanten van de tafel droog zitten als het regent.
En heb je nu nog een zithoekje gecreëerd voor de open haard

Nu heb je in je keuken/kamer in totaal 4 gedeeltes (keuken, eettafel, zithoekje open haard, zithoekje met TV.
Persoonlijk zou ik zithoek open haard en zithoek TV combineren tot 1 geheel, maar dat is een kwestie van smaak

Auto's zijn placeholder

Er zal denk ik ooit een hobbycabrio inkomen en de rest door fietsen, motoren, etc gevuld worden. Stellingen zijn niet ingetekend en tegen de tijd dat dit gerealiseerd is, zijn de kinderen wel aan het spelen op hun eigen kamer toe. Ook is het kavel wat ik op het oog heb groot genoeg voor een tuinhuisje elders op het terrein.
Voor de WP-onderdelen ben ik uitgegaan van de handleidingen en de installatieruimte die ze willen hebben. E.e.a. kan ook in de hoogte en de installateur mag ook wel een beetje zweten.

In principe is de hoek waar het past groot genoeg. Verdelers zijn overigens al getekend.
Veranda is 2,5m diep. Dieper gaat teveel daglicht kosten. De loungeset hebben we al, en daar kan je droog zitten. Je kan ook nog de boel in de hoek bij de garage kwijt als je meer luwte wil. Ik wil voorkomen dat de veranda enorm wordt.
De openhaard is bewust los van de TV-hoek gekozen. Zo kan je optimaal films kijken. Bij een haardvuur denk ik eerder aan loungen met een borreltje en/of vrienden erbij. Het kunnen ook zomaar een paar relaxfauteuils voor de open haard worden.

Dan heb je een wat opener living.
[
Voor 18% gewijzigd door
Señor Sjon op 09-06-2017 11:29
]
This is my signature. There are many like it, but this one is mine.