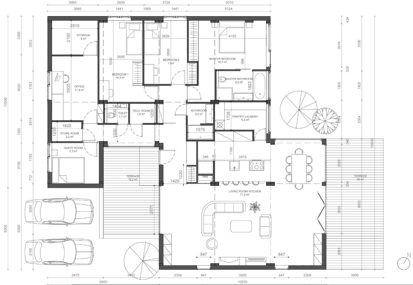
Dit is inderdaad inherent aan de bouwstijl, badkamers en wc moeten in een unit zitten (2,5 x 3,5) omdat ze vanaf de fabriek al betegelt worden. Badkamer is prima te doen, hebben we al in 3d doorheen gelopen

We hebben daar overigens nu gewoon een bad van 1,8m in en een inloop douche plus een dubbele wastafel en wc.
De overige badkamer heeft een dubbele wastafel en een inloop douche.
De kleine storage ruimte heeft de architect als bezemkast bedoeld, maar ga ik bij de office betrekken denk, kan daar altijd nog kasten in plaatsen en geeft iets meer mogelijkheden met de office
Wc kan niet op een andere plek, dan kruist de wc meerdere units. Omdraaien kan misschien, maar de technische ruimte moet eigenlijk in het midden van de woning zitten ivm de leidingen die niet te lang kunen zijn (afschot etc).
Als je goed kijkt kun je zien waar de kolommen zitten op de bouwtekening, deze zijn iets dikker in de muren getekend. We zijn dus gelimiteerd qua bouw maar ook qua kavel, daar dit al over het bouwvolume heengaat maar we kunnen gelukkig een deel vergunningsvrij bouwen.
Maar hou wel rekening met het feit dat dit ongeveer de helft kost van alle andere bouwers die we benaderd hebben, anders hadden we dit niet kunnen/willen betalen. Kosten zitten op 1295/m2 vs 2000/m2. En deze prijs is sleutelklaar, dus incl keuken, vloeren, wanden geschilderd, inbouwkasten, etc.
En ik geloof heel erg in visie dat een huis volledig neutraal/sustainable kan zijn, zowel qua leefkosten als materialen.
De wc gaan we nog wel even navragen bij de architect of dat nog anders kan