Is het momenteel nog koud in huis? Kan zijn dat je warmtepomp nu op volle toeren draait terwijl dat later zelden het geval zal zijn. Als hij op het dak zit en je kamers zijn net onder het dak, ga je niet zo heel veel kunnen doen vrees ik.De zytholoog schreef op donderdag 12 februari 2026 @ 22:43:
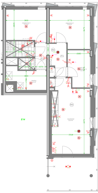
Vandaag hadden wij de vooroplevering van onze woning. Over het algemeen is er super netjes gewerkt, dus daar zijn we erg tevreden over. Van één punt zijn we alleen behoorlijk geschrokken: de buitenunit van de warmtepomp veroorzaakt zoveel lawaai (met name trillingen) dat één kamer eigenlijk onbruikbaar is. Het gaat om de zolderslaapkamer.
We hebben gekozen voor de dure meerwerkoptie ‘zolderindeling’, volledig ingericht als slaapkamer (al noemen ze het formeel nog “onbenoemde ruimte”), inclusief ventilatie en vloerverwarming. Ze gaan er nog naar kijken, maar stel dat dit binnen de normen valt: wat kun je dan nog doen om trillingen/geluid te verminderen? De buitenunit staat in een soort schoorsteen op het dak (met scharnierkap).
Tweede vraag: we hebben dus een flinke meerwerkoptie afgenomen en dit is hoe het is afgewerkt (zie foto). Zelfs in de garage is alles netjes inbouw en ook de technische ruimte is strak afgewerkt. Dit steekt daar echt bij af. Wat vinden jullie hiervan?[Afbeelding]
Zeker, het was 11 graden binnen en ook nog erg vochtig. Ze hadden de warmtepomp ook pas net aangezet. Ik hoop dat dit het probleem isDanferno schreef op vrijdag 13 februari 2026 @ 08:55:
[...]
Is het momenteel nog koud in huis? Kan zijn dat je warmtepomp nu op volle toeren draait terwijl dat later zelden het geval zal zijn. Als hij op het dak zit en je kamers zijn net onder het dak, ga je niet zo heel veel kunnen doen vrees ik.
We hebben er geen specifieke afspraken over gemaakt, maar het valt zoals gezegd uit de toon bij hoe de rest van de woning is afgewerkt. Ik vrees ook dat we er niks mee kunnen verder omdat het op tekening altijd een onbenoemde ruimte is gebleven.Draakje5 schreef op vrijdag 13 februari 2026 @ 07:15:
[...]
Kwa afwerking alles staat of valt met wat je afspreekt. Heb je bijv. afgesproken dat leidingen ingebouwd worden?
Het afwerkniveau van een onbenoemde ruimte is gewoon zeer beperkt. Daar voldoet de foto prima aan, het kan en mag namelijk nog stukken slechter.
Ga er maar niet van uit. Als die wp ook je warmwater regelt bijvoorbeeld zal hij ook gaan stampen.De zytholoog schreef op vrijdag 13 februari 2026 @ 09:22:
[...]
Zeker, het was 11 graden binnen en ook nog erg vochtig. Ze hadden de warmtepomp ook pas net aangezet. Ik hoop dat dit het probleem is!
Of bij koude nachten.
Als een apparaat teveel herrie maakt bij de 1e keer aanzetten zou ik niet hopen dat het meevalt.
Ik vrees dat je er niet zoveel mee kan. Hier een soortgelijke constructie, maar dan valt de schoorsteen met warmtepomp precies in de technische ruimte wat een aparte kamer is die, voor zover mogelijk met de huidige normen, ook extra isolatie rondom de deur bevat tegen het geluid. Wat dan wel ironisch is want tegenwoordig zitten er aanzienlijke kieren onder de deur (type D woning).
Typisch dat ze dit niet anders geconstrueerd hebben en dat de schoorsteen niet in een aparte ruimte valt met eventueel gelijk de technische installaties, al is dat laatste een beetje afhankelijk van je indeling en type woning.
Typisch dat ze dit niet anders geconstrueerd hebben en dat de schoorsteen niet in een aparte ruimte valt met eventueel gelijk de technische installaties, al is dat laatste een beetje afhankelijk van je indeling en type woning.
Het is een beetje dubbel, een warmtepomp is nooit stil, dus je gaat hem altijd blijven horen. Maar bvb bij ons staat hij op het (uitstekende) plat dak boven de woonkamer en als hij gewoon normaal draait (1kW vermogen) dan horen we dat eigenlijk niet meer, en ik ben er best gevoelig voor.De zytholoog schreef op vrijdag 13 februari 2026 @ 09:22:
[...]
Zeker, het was 11 graden binnen en ook nog erg vochtig. Ze hadden de warmtepomp ook pas net aangezet. Ik hoop dat dit het probleem is!
Het is anders als hij het warm water maakt (3-4kW), dan hoor je het echt wel, maar persoonlijk stoort het me niet meer. Waarschijnlijk is jouw warmtepomp nu ook op volle kracht aant draaien om het verwarmingswater van 11 naar 27 graden te krijgen.
Weet je het model van de WP? Als je niet 24/7 op die zolderkamer zit kan je waarschijnlijk wel een tijdsschema instellen om de last te minimaliseren, bv is het een slaapkamer dan kan je nachtverlaging doen of hem zelfs uitzetten (kost je wat efficientie, maar valt goed mee), is het een studeerkamer dan misschien eerder omgekeerd. Warmwater duurt normaal maar 30-45 minuten, dus dat kan je ergens op de middag laten gebeuren (ook beter voor je zelfverbruik als je zonnepanelen hebt)
Bedankt voor de tips, krijg de indruk dat we het in ieder geval kunnen beperken en dat geeft rust. Ik heb bij de vooroplevering gezien dat het een Mitshubishi Ecodan is.Danferno schreef op vrijdag 13 februari 2026 @ 11:31:
[...]
Het is een beetje dubbel, een warmtepomp is nooit stil, dus je gaat hem altijd blijven horen. Maar bvb bij ons staat hij op het (uitstekende) plat dak boven de woonkamer en als hij gewoon normaal draait (1kW vermogen) dan horen we dat eigenlijk niet meer, en ik ben er best gevoelig voor.
Het is anders als hij het warm water maakt (3-4kW), dan hoor je het echt wel, maar persoonlijk stoort het me niet meer. Waarschijnlijk is jouw warmtepomp nu ook op volle kracht aant draaien om het verwarmingswater van 11 naar 27 graden te krijgen.
Weet je het model van de WP? Als je niet 24/7 op die zolderkamer zit kan je waarschijnlijk wel een tijdsschema instellen om de last te minimaliseren, bv is het een slaapkamer dan kan je nachtverlaging doen of hem zelfs uitzetten (kost je wat efficientie, maar valt goed mee), is het een studeerkamer dan misschien eerder omgekeerd. Warmwater duurt normaal maar 30-45 minuten, dus dat kan je ergens op de middag laten gebeuren (ook beter voor je zelfverbruik als je zonnepanelen hebt)
Ik denk dat dat de meest gedocumenteerde warmtepomp op tweakers moet zijn: 876 paginas aan leesplezierDe zytholoog schreef op vrijdag 13 februari 2026 @ 14:14:
[...]
Bedankt voor de tips, krijg de indruk dat we het in ieder geval kunnen beperken en dat geeft rust. Ik heb bij de vooroplevering gezien dat het een Mitshubishi Ecodan is.
Hallo,
Wij hebben mogelijk incorrecte waarden in het BENG rapport geconstateerd.
In het BENG rapport staat op het voorblad dat de luchtwarmtepomp een COP heeft van 6,05.
Dit betreft de :
Mitsubishi Electric (Alklima) Ecodan Cylinderunit 6 kW SUZ- SWM60VA2 met E(H/R)ST30D-xxxD (300 liter boiler)
Ingevoerd als productspecifiek. Geen BCRG code op voorblad vermeld, enkel een bijlage. WIj zijn geen bouwkundige dus kunnen niet goed het tabel lezen, maar zover wij dat wel kunnen, constateren wij dat het niet klopt.
Is hier iemand die dat wel kan/weet?
Wij hebben mogelijk incorrecte waarden in het BENG rapport geconstateerd.
In het BENG rapport staat op het voorblad dat de luchtwarmtepomp een COP heeft van 6,05.
Dit betreft de :
Mitsubishi Electric (Alklima) Ecodan Cylinderunit 6 kW SUZ- SWM60VA2 met E(H/R)ST30D-xxxD (300 liter boiler)
Ingevoerd als productspecifiek. Geen BCRG code op voorblad vermeld, enkel een bijlage. WIj zijn geen bouwkundige dus kunnen niet goed het tabel lezen, maar zover wij dat wel kunnen, constateren wij dat het niet klopt.
Is hier iemand die dat wel kan/weet?
Een gemiddelde COP van 6 voor een luchtwarmtepomp lijkt mij hoog. Heb je de warmtepomp al uitgelezen via de interface of een app? Vaak kun je de live waarden en gemiddelde historische waarden voor de COP inzien in de installatie.The Fons schreef op zaterdag 14 februari 2026 @ 08:29:
Hallo,
Wij hebben mogelijk incorrecte waarden in het BENG rapport geconstateerd.
In het BENG rapport staat op het voorblad dat de luchtwarmtepomp een COP heeft van 6,05.
Dit betreft de :
Mitsubishi Electric (Alklima) Ecodan Cylinderunit 6 kW SUZ- SWM60VA2 met E(H/R)ST30D-xxxD (300 liter boiler)
Ingevoerd als productspecifiek. Geen BCRG code op voorblad vermeld, enkel een bijlage. WIj zijn geen bouwkundige dus kunnen niet goed het tabel lezen, maar zover wij dat wel kunnen, constateren wij dat het niet klopt.
Is hier iemand die dat wel kan/weet?
“But all history has taught us the grim lesson that no nation has ever been successful in avoiding the terrors of war by refusing to defend its rights – by attempting to placate aggression.”
Als je de COP wil weten is het schermpje van de fabrikant niet altijd betrouwbaar. Zo rondt Panasonic intern zaken af waardoor de COP vaak hoger wordt gepresenteerd.Drum schreef op zondag 15 februari 2026 @ 09:12:
[...]
Een gemiddelde COP van 6 voor een luchtwarmtepomp lijkt mij hoog. Heb je de warmtepomp al uitgelezen via de interface of een app? Vaak kun je de live waarden en gemiddelde historische waarden voor de COP inzien in de installatie.
Je kan wel de datasheet bekijken, daar zal dit stukje van de BENG immers op gebaseerd zijn.
Ik haal dat wel eens met de ecodan in onze nieuwbouwwoning 2025. Maar heb dan wel soms extreem lage aanvoertemperatuur ingesteld staan. Het is overgens verre van een gemiddelde.The Fons schreef op zaterdag 14 februari 2026 @ 08:29:
Hallo,
Wij hebben mogelijk incorrecte waarden in het BENG rapport geconstateerd.
In het BENG rapport staat op het voorblad dat de luchtwarmtepomp een COP heeft van 6,05.
Dit betreft de :
Mitsubishi Electric (Alklima) Ecodan Cylinderunit 6 kW SUZ- SWM60VA2 met E(H/R)ST30D-xxxD (300 liter boiler)
Ingevoerd als productspecifiek. Geen BCRG code op voorblad vermeld, enkel een bijlage. WIj zijn geen bouwkundige dus kunnen niet goed het tabel lezen, maar zover wij dat wel kunnen, constateren wij dat het niet klopt.
Is hier iemand die dat wel kan/weet?
Kun je een filmpje maken of een geluidsopname van het geluid? Als het buitendeel zonder veren/dempers gemonteerd is en echt het geluid van een Dakota produceert (wat mij niet vreemd over zou komen, heb het vaker gehoord) dan is er zeker wel wat aan te doen. Als het gewoon goed gemonteerd is met goeie dempers, dan heb je een lastigere zaak want een beetje geluid hoort altijd. Echter, vanuit het bouwbesluit mag installatiegeluid maximaal 30dB(A) zijn dus daar zal het sowieso aan moeten voldoen.De zytholoog schreef op vrijdag 13 februari 2026 @ 09:22:
[...]
Zeker, het was 11 graden binnen en ook nog erg vochtig. Ze hadden de warmtepomp ook pas net aangezet. Ik hoop dat dit het probleem is!
Dag allemaal,
Vandaag heeft de aannemer de vloerverwarming in mijn nieuwbouwwoning aangelegd. Nu is de vloerverwarming ook in de douche doorgelegd (zie foto). De aannemer heeft eerder wel aangegeven dat dit niet doorgelegd zou worden in de douche. De badkamer wordt casco opgeleverd maar wel met cementdekvloer, waarbij het douchegedeelte vrij blijft. In de douche komen vloertegels. Ik voorzie nu o.a. problemen met de easydrain welk ik wil gaan plaatsen i.v.m. uitdroging. Ook wordt de plaatsing nu een stuk uitdagender..
Ik ben benieuwd of iemand ervaring heeft met vloerverwarming in het douchegebied, bevalt dat? Neig erna de aannemer te laten weten dat ik dit aangepast wil hebben, maar ben wel benieuwd wat er hier de ervaringen zijn. Alvast bedankt.
Vandaag heeft de aannemer de vloerverwarming in mijn nieuwbouwwoning aangelegd. Nu is de vloerverwarming ook in de douche doorgelegd (zie foto). De aannemer heeft eerder wel aangegeven dat dit niet doorgelegd zou worden in de douche. De badkamer wordt casco opgeleverd maar wel met cementdekvloer, waarbij het douchegedeelte vrij blijft. In de douche komen vloertegels. Ik voorzie nu o.a. problemen met de easydrain welk ik wil gaan plaatsen i.v.m. uitdroging. Ook wordt de plaatsing nu een stuk uitdagender..
Ik ben benieuwd of iemand ervaring heeft met vloerverwarming in het douchegebied, bevalt dat? Neig erna de aannemer te laten weten dat ik dit aangepast wil hebben, maar ben wel benieuwd wat er hier de ervaringen zijn. Alvast bedankt.
Vloerverwarming in de douche lijkt me onzinnig en kan alleen maar een risico vormen in de toekomst bij eventuele de- en montage van tegels. Die lus bij je douchegoot zou ik absoluut laten weghalen.
Plus hoe ga je afschot regelen en vloerverwarming wordt altijd afgeraden in het douchedeel volgens mij o.a. vanwege kalkaanslag door overmatig snel verdampen van douchewater.
Vorige keer gaf ik inderdaad aan dat kalkaanslag een issue kan zijn (onder meer obv posts lang geleden), maar daar was men het universeel niet mee eens. Voordat deze mythe blijft leven: dat lijkt dus niet te kloppenDraakje5 schreef op maandag 16 februari 2026 @ 21:37:
Plus hoe ga je afschot regelen en vloerverwarming wordt altijd afgeraden in het douchedeel volgens mij o.a. vanwege kalkaanslag door overmatig snel verdampen van douchewater.
mb
Probleem is vooral dat het water in het stankslot van de drain verdampt en je alle fijne luchtjes in je badkamer gaat ruikenDeleon78 schreef op maandag 16 februari 2026 @ 22:01:
[...]
Vorige keer gaf ik inderdaad aan dat kalkaanslag een issue kan zijn (onder meer obv posts lang geleden), maar daar was men het universeel niet mee eens. Voordat deze mythe blijft leven: dat lijkt dus niet te kloppen
mb
Misschien ben ik gek, maar het feit dat je waterleidingen beide naar boven lopen is ook wel bijzonder toch? Als je je douchstang wilt ophangen moet je wel heel goed mikken om er niet in te boren...?Coleman schreef op maandag 16 februari 2026 @ 18:16:
Dag allemaal,
Vandaag heeft de aannemer de vloerverwarming in mijn nieuwbouwwoning aangelegd. Nu is de vloerverwarming ook in de douche doorgelegd (zie foto). De aannemer heeft eerder wel aangegeven dat dit niet doorgelegd zou worden in de douche. De badkamer wordt casco opgeleverd maar wel met cementdekvloer, waarbij het douchegedeelte vrij blijft. In de douche komen vloertegels. Ik voorzie nu o.a. problemen met de easydrain welk ik wil gaan plaatsen i.v.m. uitdroging. Ook wordt de plaatsing nu een stuk uitdagender..
Ik ben benieuwd of iemand ervaring heeft met vloerverwarming in het douchegebied, bevalt dat? Neig erna de aannemer te laten weten dat ik dit aangepast wil hebben, maar ben wel benieuwd wat er hier de ervaringen zijn. Alvast bedankt.
[Afbeelding]
Voordeel van casco is dan wel dat de gene die de tegels zet meestal ook het sanitair installeert. Verder wel aparte keuze om dit niet van onder te doen, inderdaad.wesleyroy12 schreef op dinsdag 17 februari 2026 @ 09:42:
[...]
Misschien ben ik gek, maar het feit dat je waterleidingen beide naar boven lopen is ook wel bijzonder toch? Als je je douchstang wilt ophangen moet je wel heel goed mikken om er niet in te boren...?
Bedankt voor alle adviezen.
Ik ga de lus bij de drain weg laten halen en als het kan de leidingen bij de drain er wat meer vanaf laten plaatsen zodat het risico op een lege sifon verminderd. Mocht het toch problemen geven zou ik de Dryphon sifon van Easydrain nog kunnen overwegen.
Ik ga de lus bij de drain weg laten halen en als het kan de leidingen bij de drain er wat meer vanaf laten plaatsen zodat het risico op een lege sifon verminderd. Mocht het toch problemen geven zou ik de Dryphon sifon van Easydrain nog kunnen overwegen.
Ging er ook vanuit dat de waterleidingen via de vloer zou lopen. Echter lopen de waterleidingen wel schuin weg (net niet te zien op de foto), dat geeft dus geen problemen met de douchestang gelukkig.wesleyroy12 schreef op dinsdag 17 februari 2026 @ 09:42:
[...]
Misschien ben ik gek, maar het feit dat je waterleidingen beide naar boven lopen is ook wel bijzonder toch? Als je je douchstang wilt ophangen moet je wel heel goed mikken om er niet in te boren...?
Ik ben geen expert, maar hoe ga je nu het water van de easy drain weg laten lopen? Want de easydrain voert het water naar voren af. Dan zul je naar beneden moeten met bochten. De gehele vloerverwarming moet dan toch weg in het douchegebied? Idem voor de elekraleidingen?Coleman schreef op dinsdag 17 februari 2026 @ 10:04:
Bedankt voor alle adviezen.
Ik ga de lus bij de drain weg laten halen en als het kan de leidingen bij de drain er wat meer vanaf laten plaatsen zodat het risico op een lege sifon verminderd. Mocht het toch problemen geven zou ik de Dryphon sifon van Easydrain nog kunnen overwegen.
[...]
Ging er ook vanuit dat de waterleidingen via de vloer zou lopen. Echter lopen de waterleidingen wel schuin weg (net niet te zien op de foto), dat geeft dus geen problemen met de douchestang gelukkig.
Na oplevering willen wij graag onze berging uitbouwen en daarbij een deur (groen) tussen keuken en berging plaatsen. Ik had zelf de draairichting van die deur bedacht zoals in onderstaande afbeelding. Ik zou graag jullie meningen willen horen wat betreft de draairichting van die deur en of een andere draairichting misschien praktischer is.
Alvast bedankt.
Alvast bedankt.
Een deur draait nagenoeg altijd de verblijfsruimte in. Ik kom het ook wel eens anders tegen en dat gaat dan toch altijd tegen je gevoel in.GerardBouw schreef op dinsdag 17 februari 2026 @ 13:32:
Na oplevering willen wij graag onze berging uitbouwen en daarbij een deur (groen) tussen keuken en berging plaatsen. Ik had zelf de draairichting van die deur bedacht zoals in onderstaande afbeelding. Ik zou graag jullie meningen willen horen wat betreft de draairichting van die deur en of een andere draairichting misschien praktischer is.
Alvast bedankt.
[Afbeelding]
In principe zou je dan de draairichting dus kunnen omdraaien, zodat de deur de keuken in zwaait.
Let er trouwens wel op dat je de aanbouw goed isolleert om de koudebruggen - zo veel mogelijk - te voorkomen.
Of een geïsoleerde (buiten) deur gebruiken tussen keuken en berging.ChillPascal schreef op dinsdag 17 februari 2026 @ 13:56:
[...]
Een deur draait nagenoeg altijd de verblijfsruimte in. Ik kom het ook wel eens anders tegen en dat gaat dan toch altijd tegen je gevoel in.
In principe zou je dan de draairichting dus kunnen omdraaien, zodat de deur de keuken in zwaait.
Let er trouwens wel op dat je de aanbouw goed isolleert om de koudebruggen - zo veel mogelijk - te voorkomen.
Het wordt de Easydrain Multi TAF/Wall. Deze heeft een draaibaar sifon, waardoor de afvoerleiding in de leidingsleuf kan liggen. De drain komt ook iets verdiept in de leidingsleuf te liggen. Verder wordt de rest van de badkamer natuurlijk voorzien van een cementdekvloer van ~8cm, het afschot naar de drain zal ~1,5cm bedragen.ruudheijden schreef op dinsdag 17 februari 2026 @ 13:30:
[...]
Ik ben geen expert, maar hoe ga je nu het water van de easy drain weg laten lopen? Want de easydrain voert het water naar voren af. Dan zul je naar beneden moeten met bochten. De gehele vloerverwarming moet dan toch weg in het douchegebied? Idem voor de elekraleidingen?
Dit was ook ons plan inderdaad. In de berging is (voor alsnog) geen verwarming en zal voornamelijk als garage functioneren.Janpietertje89 schreef op dinsdag 17 februari 2026 @ 13:58:
Of een geïsoleerde (buiten) deur gebruiken tussen keuken en berging.
Welke kant zou je dan de deur op laten draaien? Richting de achtergevel of richting de keuken?ChillPascal schreef op dinsdag 17 februari 2026 @ 13:56:
[...]
Een deur draait nagenoeg altijd de verblijfsruimte in. Ik kom het ook wel eens anders tegen en dat gaat dan toch altijd tegen je gevoel in.
In principe zou je dan de draairichting dus kunnen omdraaien, zodat de deur de keuken in zwaait.
Ik denk richting de achtergevel. Ik kan alleen niet goed zien of dat een daadwerkelijke deur is in de achtergevel of een deur. Verder zou ik ook even goed kijken naar de schakelaar in de keuken. Ik kan me voorstellen als je in het donker weggaat of binnenkomt je de schakelaar niet achter een openslaande deur wilt hebben.GerardBouw schreef op dinsdag 17 februari 2026 @ 14:20:
[...]
Welke kant zou je dan de deur op laten draaien? Richting de achtergevel of richting de keuken?
Ik zou het scharnier links(boven in de tekening) laten plaatsen en de deur dan naar de woonkamer/keuken laten draaien. dan vernaggel je geen ruimte midden in de aanbouw en in dat hoekje van de woonkamer/keuken doe je waarschijnlijk toch weinig.GerardBouw schreef op dinsdag 17 februari 2026 @ 13:32:
Na oplevering willen wij graag onze berging uitbouwen en daarbij een deur (groen) tussen keuken en berging plaatsen. Ik had zelf de draairichting van die deur bedacht zoals in onderstaande afbeelding. Ik zou graag jullie meningen willen horen wat betreft de draairichting van die deur en of een andere draairichting misschien praktischer is.
Alvast bedankt.
[Afbeelding]
Goede tip, bedankt!ChillPascal schreef op dinsdag 17 februari 2026 @ 14:29:
[...]
Ik denk richting de achtergevel. Ik kan alleen niet goed zien of dat een daadwerkelijke deur is in de achtergevel of een deur. Verder zou ik ook even goed kijken naar de schakelaar in de keuken. Ik kan me voorstellen als je in het donker weggaat of binnenkomt je de schakelaar niet achter een openslaande deur wilt hebben.
In de achtergevel zit een deur die naar buiten draait richting het HWA punt.
Gaan jullie straks ook (regelmatig) via de aanbouw/berging naar binnen, of zal dit via de keukendeur zijn?GerardBouw schreef op dinsdag 17 februari 2026 @ 14:39:
[...]
Goede tip, bedankt!
In de achtergevel zit een deur die naar buiten draait richting het HWA punt.
Als je regelmatig naar binnen gaat via de nieuw te maken deur in de aanbouw, zou ik de deur zo laten, voor de doorstroming.
Ik zou het zo laten zoals je het nu ingetekend hebt. Zo hebben wij het ook. Wij gaan veel vaker van keuken naar berging als van berging naar keuken (gescheiden afval, voorraad, etc). Dat loopt net wat makkelijker met spullen in je hand. Ook makkelijker om zo in 1 loop van de keuken naar buiten te gaan in de zomer.GerardBouw schreef op dinsdag 17 februari 2026 @ 13:32:
Na oplevering willen wij graag onze berging uitbouwen en daarbij een deur (groen) tussen keuken en berging plaatsen. Ik had zelf de draairichting van die deur bedacht zoals in onderstaande afbeelding. Ik zou graag jullie meningen willen horen wat betreft de draairichting van die deur en of een andere draairichting misschien praktischer is.
Alvast bedankt.
[Afbeelding]
Ons huis is nog in aanbouw. Wij hebben enkel het voorblad van het BENG rapport en de bijlage.Drum schreef op zondag 15 februari 2026 @ 09:12:
[...]
Een gemiddelde COP van 6 voor een luchtwarmtepomp lijkt mij hoog. Heb je de warmtepomp al uitgelezen via de interface of een app? Vaak kun je de live waarden en gemiddelde historische waarden voor de COP inzien in de installatie.
Aanvoertemperatuur staat op 35 graden.ruudheijden schreef op zondag 15 februari 2026 @ 15:48:
[...]
Ik haal dat wel eens met de ecodan in onze nieuwbouwwoning 2025. Maar heb dan wel soms extreem lage aanvoertemperatuur ingesteld staan. Het is overgens verre van een gemiddelde.
Wolly schreef op zondag 15 februari 2026 @ 09:26:
[...]
Als je de COP wil weten is het schermpje van de fabrikant niet altijd betrouwbaar. Zo rondt Panasonic intern zaken af waardoor de COP vaak hoger wordt gepresenteerd.
Je kan wel de datasheet bekijken, daar zal dit stukje van de BENG immers op gebaseerd zijn.
Ik dacht dat ik al een reactie had achtergelaten ,maar die zie ik niet meer. Ik heb hierboven een verklaring toegevoegd en een stukje uit het beng rapportruudheijden schreef op zondag 15 februari 2026 @ 15:48:
[...]
Ik haal dat wel eens met de ecodan in onze nieuwbouwwoning 2025. Maar heb dan wel soms extreem lage aanvoertemperatuur ingesteld staan. Het is overgens verre van een gemiddelde.
[ Voor 9% gewijzigd door The Fons op 18-02-2026 12:38 ]
Wij zitten momenteel in de ruwbouwfase van onze nieuwbouwwoning. De leidingen liggen nu op de fundering klaar, maar voordat de vloer gestort wordt, viel me iets op waar ik graag even jullie kritische blik op wil werpen. Ik heb het idee dat er wat leidingen ontbreken.
:strip_exif()/f/image/Z1hDaKjiq19a85DOTQB4Z7Dq.jpg?f=fotoalbum_large)
Situatie 1: de berging
Op deze eerste foto zie je de locatie van de toekomstige berging. Binnen komt hier de wasmachine te staan, en op de buitengevel (op dezelfde locatie) komt een warm/koud water mengkraan.
Zoals je ziet komt er naast de afvoer echter slechts één blauwe (koud water) leiding uit de vloer.
:strip_exif()/f/image/3OhHmtuK58s9NHNirT1KJW9Z.jpg?f=fotoalbum_large)
Situatie 2: de keuken & toilet
Op de tweede foto zie je aan de linkerkant de aansluitingen voor de toekomstige keuken. Ook hier zie ik naast de PVC afvoer alleen blauwe leidingen liggen.
Aan de rechterkant zie je de voorbereiding voor het toilet, waar wél duidelijk meerdere (ook rode) leidingen samenkomen.
Klopt mijn aanname dat er simpelweg een rode leidingen ontbreken?
Of zie ik iets over het hoofd en kan/wordt dit later in het proces (bijv. in de dekvloer of muur) nog opgelost met een bepaalde verdeler of aftakking?
Ik trek liever nu aan de bel bij de aannemer dan wanneer het beton er al in ligt, maar wil wel zeker weten dat ik geen onzin uitkraam. 😉
Alvast enorm bedankt voor het meedenken!
:strip_exif()/f/image/Z1hDaKjiq19a85DOTQB4Z7Dq.jpg?f=fotoalbum_large)
Situatie 1: de berging
Op deze eerste foto zie je de locatie van de toekomstige berging. Binnen komt hier de wasmachine te staan, en op de buitengevel (op dezelfde locatie) komt een warm/koud water mengkraan.
Zoals je ziet komt er naast de afvoer echter slechts één blauwe (koud water) leiding uit de vloer.
:strip_exif()/f/image/3OhHmtuK58s9NHNirT1KJW9Z.jpg?f=fotoalbum_large)
Situatie 2: de keuken & toilet
Op de tweede foto zie je aan de linkerkant de aansluitingen voor de toekomstige keuken. Ook hier zie ik naast de PVC afvoer alleen blauwe leidingen liggen.
Aan de rechterkant zie je de voorbereiding voor het toilet, waar wél duidelijk meerdere (ook rode) leidingen samenkomen.
Klopt mijn aanname dat er simpelweg een rode leidingen ontbreken?
Of zie ik iets over het hoofd en kan/wordt dit later in het proces (bijv. in de dekvloer of muur) nog opgelost met een bepaalde verdeler of aftakking?
Ik trek liever nu aan de bel bij de aannemer dan wanneer het beton er al in ligt, maar wil wel zeker weten dat ik geen onzin uitkraam. 😉
Alvast enorm bedankt voor het meedenken!
Geen boiler in de keuken?dv2 schreef op woensdag 18 februari 2026 @ 13:15:
Wij zitten momenteel in de ruwbouwfase van onze nieuwbouwwoning. De leidingen liggen nu op de fundering klaar, maar voordat de vloer gestort wordt, viel me iets op waar ik graag even jullie kritische blik op wil werpen. Ik heb het idee dat er wat leidingen ontbreken.
[Afbeelding]
Situatie 1: de berging
Op deze eerste foto zie je de locatie van de toekomstige berging. Binnen komt hier de wasmachine te staan, en op de buitengevel (op dezelfde locatie) komt een warm/koud water mengkraan.
Zoals je ziet komt er naast de afvoer echter slechts één blauwe (koud water) leiding uit de vloer.
[Afbeelding]
Situatie 2: de keuken & toilet
Op de tweede foto zie je aan de linkerkant de aansluitingen voor de toekomstige keuken. Ook hier zie ik naast de PVC afvoer alleen blauwe leidingen liggen.
Aan de rechterkant zie je de voorbereiding voor het toilet, waar wél duidelijk meerdere (ook rode) leidingen samenkomen.
Klopt mijn aanname dat er simpelweg een rode leidingen ontbreken?
Of zie ik iets over het hoofd en kan/wordt dit later in het proces (bijv. in de dekvloer of muur) nog opgelost met een bepaalde verdeler of aftakking?
Ik trek liever nu aan de bel bij de aannemer dan wanneer het beton er al in ligt, maar wil wel zeker weten dat ik geen onzin uitkraam. 😉
Alvast enorm bedankt voor het meedenken!
Dat is een boiler.
Ik vermoed dat ze óf een doorstromer plaatsen in je schuur óf nog een warmwater leiding trekken van je quooker naar de schuur.
Warmwater naar je keuken zal niet nodig zijn als je een quooker hebt, scheelt de aannemer weer geld.
Ah dat wist ik niet, ik dacht dat een Quooker alleen kokend water is, maar het fungeert dus ook gewoon als boiler voor je warmwater kraan? (eerste keer dat we een Quooker krijgen haha). Maar dat zou het kunnen verklaren, mysterie 1 opgelost!Wolly schreef op woensdag 18 februari 2026 @ 13:44:
[...]
Dat is een boiler.
Ik vermoed dat ze óf een doorstromer plaatsen in je schuur óf nog een warmwater leiding trekken van je quooker naar de schuur.
Warmwater naar je keuken zal niet nodig zijn als je een quooker hebt, scheelt de aannemer weer geld.
Wat betreft de berging/buitenkraan: inmiddels ligt de ribcassettevloer er al op, en zijn de leidingen bij de berging daarvoor niet meer gewijzigd. Er steekt daar door de nieuwe vloer dus nog steeds maar één blauwe leiding omhoog:
:strip_exif()/f/image/mPlq8uK57SxMiPVjKu8PFtGc.jpg?f=fotoalbum_large)
De suggesties die je doet (een extra doorstromer in de schuur of een lange leiding trekken vanuit de Quooker) klinken voor mij namelijk best wel als houtje-touwtje oplossingen voor een compleet nieuwe woning waar je gewoon een warmwaterleiding vanaf de verdeler zou verwachten.
Hoe wordt zoiets normaal gesproken in de nieuwbouw opgelost nu de ruwbouwvloer al dicht ligt? Gaan ze alsnog gaten boren in de ribcassettevloer om een rode leiding vanuit de kruipruimte/meterkast te trekken? Of proberen ze je in dit stadium inderdaad vaak af te schepen met een lokaal boilertje in de schuur (en moet ik daar dan wel of niet mee akkoord gaan)?
Ik ga sowieso morgen de aannemer bellen, maar ik ben heel benieuwd wat jullie ervaringen zijn met dit soort herstelwerkzaamheden nu de vloer er al ligt. Thanks!
Welke Quooker krijg je? Als het een combi(+) is dan kan hij ook normaal warm water, is het de quooker pro3, die kan enkel kokend en heeft slechts een 3l buffer. Verschil tussen de combi en combi plus is dat de combi plus ook op de warmwaterleiding aangesloten kan worden. Dat is met een warmtepomp wel handig, die warmt namelijk iets zuiniger op dan de quooker.dv2 schreef op woensdag 18 februari 2026 @ 13:54:
[...]
Ah dat wist ik niet, ik dacht dat een Quooker alleen kokend water is, maar het fungeert dus ook gewoon als boiler voor je warmwater kraan? (eerste keer dat we een Quooker krijgen haha). Maar dat zou het kunnen verklaren, mysterie 1 opgelost!
We hebben de pro3, dus die zou sowieso niet kunnen dienen als warmwater boiler? En als ik jouw reactie goed begrijp zou het sowieso beter zijn om een warmwaterleiding te hebben zodat je deels kunt opwarmen met de warmetepomp (in combinatie met een quooker combi plus).svenie3000 schreef op woensdag 18 februari 2026 @ 14:00:
[...]
Welke Quooker krijg je? Als het een combi(+) is dan kan hij ook normaal warm water, is het de quooker pro3, die kan enkel kokend en heeft slechts een 3l buffer. Verschil tussen de combi en combi plus is dat de combi plus ook op de warmwaterleiding aangesloten kan worden. Dat is met een warmtepomp wel handig, die warmt namelijk iets zuiniger op dan de quooker.
@dv2 Waar komt het binnendeel van je WP te staan? SWW komt uit het buffervat van de WP en staat meestal op zolder of in de berging. In dat geval hoeven de warm water leidingen natuurlijk niet door de vloer omdat deze of van boven komen of al in de berging beginnen als het buffervat daar opgesteld staat.
HD4Life @ Full-HD
Klopt, op de quooker website zie je een mooi tabje waar je dmv een paar vragen de beste boiler te zien krijgt: https://www.quooker.nl/flex-flex-1.html?finish=217dv2 schreef op woensdag 18 februari 2026 @ 14:12:
[...]
We hebben de pro3, dus die zou sowieso niet kunnen dienen als warmwater boiler? En als ik jouw reactie goed begrijp zou het sowieso beter zijn om een warmwaterleiding te hebben zodat je deels kunt opwarmen met de warmetepomp (in combinatie met een quooker combi plus).
kopje: Kies het juiste reservoir
Welk reservoir past bij mij?
Dan zie je dat ze aanraden om voor de combi te gaan als je warmwaterleiding meer dan 6m is, en anders voor de combi plus te gaan.
je hebt helemaal gelijk: de techniek ruimte bevindt zich bij ons op de zolder. Daar staan de WP en de BO (boiler) ingetekend.Davidshadow13 schreef op woensdag 18 februari 2026 @ 14:20:
@dv2 Waar komt het binnendeel van je WP te staan? SWW komt uit het buffervat van de WP en staat meestal op zolder of in de berging. In dat geval hoeven de warm water leidingen natuurlijk niet door de vloer omdat deze of van boven komen of al in de berging beginnen als het buffervat daar opgesteld staat.
Dat zou het dus kunnen verklaren. Het koude water komt natuurlijk direct vanuit de meterkast op de begane grond via de fundering/kruipruimte (vandaar die ene blauwe buis uit de vloer). Maar het warme water zou dan vanuit de zolder via een leidingschacht oid naar beneden komen en hoogstwaarschijnlijk via het plafond of de binnenmuur naar de berging en keuken worden geleid?
Zijn de andere rode leidingen die wel uit de vloer komen dan wellicht voor de vloerverwarming oid? Zie foto waarbij er rode leidingen bij de meterkast (midden), de VV (rechts) en toilet (links) uitkomen:
Een quooker (met boiler) maakt ook gebruik van de warm water leiding. Deze combineert je afgekoelde warm water leiding met de boiler, waarna het warm water uit je warm waterleiding verder doorstroomt en het verbruik uit je boiler stopt.
Los daarvan, als je quooker ooit verwijderd wil je evt ook gewoon een normale kraan kunnen aansluiten.
De buitenkraan moet je altijd van binnenuit (meestal meterkast) kunnen afsluiten. Als dezelfde leiding gebruikt wordt voor je wasmachine lijkt me dit niet heel handig.dv2 schreef op woensdag 18 februari 2026 @ 13:54:
[...]
Ah dat wist ik niet, ik dacht dat een Quooker alleen kokend water is, maar het fungeert dus ook gewoon als boiler voor je warmwater kraan? (eerste keer dat we een Quooker krijgen haha). Maar dat zou het kunnen verklaren, mysterie 1 opgelost!
Wat betreft de berging/buitenkraan: inmiddels ligt de ribcassettevloer er al op, en zijn de leidingen bij de berging daarvoor niet meer gewijzigd. Er steekt daar door de nieuwe vloer dus nog steeds maar één blauwe leiding omhoog:
[Afbeelding]
De suggesties die je doet (een extra doorstromer in de schuur of een lange leiding trekken vanuit de Quooker) klinken voor mij namelijk best wel als houtje-touwtje oplossingen voor een compleet nieuwe woning waar je gewoon een warmwaterleiding vanaf de verdeler zou verwachten.
Hoe wordt zoiets normaal gesproken in de nieuwbouw opgelost nu de ruwbouwvloer al dicht ligt? Gaan ze alsnog gaten boren in de ribcassettevloer om een rode leiding vanuit de kruipruimte/meterkast te trekken? Of proberen ze je in dit stadium inderdaad vaak af te schepen met een lokaal boilertje in de schuur (en moet ik daar dan wel of niet mee akkoord gaan)?
Ik ga sowieso morgen de aannemer bellen, maar ik ben heel benieuwd wat jullie ervaringen zijn met dit soort herstelwerkzaamheden nu de vloer er al ligt. Thanks!
Die dikke geisoleerde buizen rood en blauw zijn inderdaad voor je VV.dv2 schreef op woensdag 18 februari 2026 @ 14:33:
[...]
je hebt helemaal gelijk: de techniek ruimte bevindt zich bij ons op de zolder. Daar staan de WP en de BO (boiler) ingetekend.
Dat zou het dus kunnen verklaren. Het koude water komt natuurlijk direct vanuit de meterkast op de begane grond via de fundering/kruipruimte (vandaar die ene blauwe buis uit de vloer). Maar het warme water zou dan vanuit de zolder via een leidingschacht oid naar beneden komen en hoogstwaarschijnlijk via het plafond of de binnenmuur naar de berging en keuken worden geleid?
Zijn de andere rode leidingen die wel uit de vloer komen dan wellicht voor de vloerverwarming oid? Zie foto waarbij er rode leidingen bij de meterkast (midden), de VV (rechts) en toilet (links) uitkomen:
[Afbeelding]
De rode buis bij de meterkast is voor de NUTS. Rood is electra, Blauw is water, Grijs zal voor glasvezel of iets dergelijks zijn, al wordt ook vaak groen gebruikt.
Geel ga je niet meer zien, was / is gas
Geel ga je niet meer zien, was / is gas
+ Warmwater zal misschien van boven komen (als het vat van de warmtepomp daar staat). Als dat zo is, leggen ze die leidingen in een latere fase
Tegenwoordig worden veel keukens alleen uitgerust met een kw leiding, quooker zorgt dan voor kokend en warm water.Draakje5 schreef op woensdag 18 februari 2026 @ 14:34:
[...]
Een quooker (met boiler) maakt ook gebruik van de warm water leiding. Deze combineert je afgekoelde warm water leiding met de boiler, waarna het warm water uit je warm waterleiding verder doorstroomt en het verbruik uit je boiler stopt.
Los daarvan, als je quooker ooit verwijderd wil je evt ook gewoon een normale kraan kunnen aansluiten.
Die leiding kunnen ze al leggen en in de koof laten uitsteken om vervolgens met een knelkoppeling te werken.ruudheijden schreef op woensdag 18 februari 2026 @ 15:11:
+ Warmwater zal misschien van boven komen (als het vat van de warmtepomp daar staat). Als dat zo is, leggen ze die leidingen in een latere fase
Al helemaal als de vloer er nu al op ligt en er geen kruipluik is.
Grijs is CAI en groen is glasvezel.Chielioj schreef op woensdag 18 februari 2026 @ 14:55:
De rode buis bij de meterkast is voor de NUTS. Rood is electra, Blauw is water, Grijs zal voor glasvezel of iets dergelijks zijn, al wordt ook vaak groen gebruikt.
Geel ga je niet meer zien, was / is gas
Het is wel een vorstvrije buitenkraan, is dit dan nog steeds het geval?Draakje5 schreef op woensdag 18 februari 2026 @ 14:35:
[...]
De buitenkraan moet je altijd van binnenuit (meestal meterkast) kunnen afsluiten. Als dezelfde leiding gebruikt wordt voor je wasmachine lijkt me dit niet heel handig.
Thanks weer voor de aanvullingen! Het klinkt logisch dat de warmwaterleiding in een latere fase van boven naar beneden wordt getrokken.Draakje5 schreef op woensdag 18 februari 2026 @ 15:33:
[...]
Die leiding kunnen ze al leggen en in de koof laten uitsteken om vervolgens met een knelkoppeling te werken.
Al helemaal als de vloer er nu al op ligt en er geen kruipluik is.
Maar dat roept bij mij wel meteen de vraag op over hoe ze dit in de volgende bouwfase gaan doen. Als die leiding straks van boven komt (bijvoorbeeld via een koof), hoe brengen ze die dan netjes naar de buitenkraan bij de berging en de keuken?
Worden die flexibele leidingen dan vanuit de koof horizontaal over de muur gelegd en vervolgens in de binnenmuur van de berging gefreesd?
Of leggen ze zoiets over het plafond voordat het plafond wordt afgewerkt/gespoten?
Aangezien de ribcassettevloer er al ligt en we inderdaad geen kruipluik hebben in de berging, ben ik erg benieuwd hoe dit leidingwerk normaal gesproken 'onzichtbaar' naar zo'n tappunt op de gevel wordt geleid.
Nee dan hoeft het niet en word het ook niet zo gedaan.dv2 schreef op woensdag 18 februari 2026 @ 17:35:
[...]
Het is wel een vorstvrije buitenkraan, is dit dan nog steeds het geval?
13480 Wp solar | 2x Panasonic 7j met 1x 300l sww | (Laadpaal) installateur, pb voor een offerte
Bij ons is de kraan af te sluiten aan de binnenkant in de meterkast. Geeft toch wat extra zekerheid tijdens strenge vorst en zo voorkom ik ook dat de kraan gebruikt wordt als we dat niet willen en bijv. Op vakantie zijn.Makrolon schreef op woensdag 18 februari 2026 @ 18:02:
[...]
Nee dan hoeft het niet en word het ook niet zo gedaan.
Ik dacht dat het verplicht was, maar wellicht alleen bij niet vorsvrije kranen dan of helemaal niet. Bij ons was de afsluiting standaard in beide nieuwbouwwoningen die we gehad hebben.
[ Voor 5% gewijzigd door Draakje5 op 18-02-2026 18:37 ]
Ja ik zou er ook altijd een afsluiter tussen willen, maar helaas gebeurt dat bij nieuwbouw vaak niet.Draakje5 schreef op woensdag 18 februari 2026 @ 18:35:
[...]
Bij ons is de kraan af te sluiten aan de binnenkant in de meterkast. Geeft toch wat extra zekerheid tijdens strenge vorst en zo voorkom ik ook dat de kraan gebruikt wordt als we dat niet willen en bijv. Op vakantie zijn.
Ik dacht dat het verplicht was, maar wellicht alleen bij niet vorsvrije kranen dan of helemaal niet. Bij ons was de afsluiting standaard in beide nieuwbouwwoningen die we gehad hebben.
13480 Wp solar | 2x Panasonic 7j met 1x 300l sww | (Laadpaal) installateur, pb voor een offerte
De bovenverdieping van onze nieuwbouwwoning wordt een puntdak met nokhoogte van ca. 4,3 m. Binnenzijde dak en knieschotten worden opgeleverd als 'onbehandelde spaanplaat'. Niet dragende tussenwanden worden gibo-blokken.
Nu vraag ik mij af: wat is hier de meest kwalitatieve en/of kostenefficiënte afwerking? De tussenwanden zullen we laten stucen, maar wat is praktisch voor de schuine kap? De hele boel afwerken met stucplaten en ook stucen, of zijn hier andere goede methodes voor? Ik maak me vooral wat zorgen over de kosten i.v.m. de enorme nokhoogte (en dus noodzaak voor een flinke steiger etc).
Nu vraag ik mij af: wat is hier de meest kwalitatieve en/of kostenefficiënte afwerking? De tussenwanden zullen we laten stucen, maar wat is praktisch voor de schuine kap? De hele boel afwerken met stucplaten en ook stucen, of zijn hier andere goede methodes voor? Ik maak me vooral wat zorgen over de kosten i.v.m. de enorme nokhoogte (en dus noodzaak voor een flinke steiger etc).
Hier met Wijzonol Wijzotex Mat (ademende latexverf) afgewerkt. Eerst de gaatjes dichtgezet, licht opgeschuurd en daarna geverfd.
Ziet er mijns ziens (voor de 100€ dat het kostte voor 20L) prima uit
Met stucplaten en stuclaag maak je het aan de onderziijde (ofwel, de breedte van de zolder) toch weer een stukje smaller.
Ziet er mijns ziens (voor de 100€ dat het kostte voor 20L) prima uit
Met stucplaten en stuclaag maak je het aan de onderziijde (ofwel, de breedte van de zolder) toch weer een stukje smaller.
Ja ik twijfel ook of het niet 'too much' is. Niet zozeer vanwege ruimteverlies, meer voor tijd en kosten.Source90 schreef op woensdag 18 februari 2026 @ 22:29:
Hier met Wijzonol Wijzotex Mat (ademende latexverf) afgewerkt. Eerst de gaatjes dichtgezet, licht opgeschuurd en daarna geverfd.
Ziet er mijns ziens (voor de 100€ dat het kostte voor 20L) prima uit![]()
Met stucplaten en stuclaag maak je het aan de onderziijde (ofwel, de breedte van de zolder) toch weer een stukje smaller.
Zou je een foto van het eindresultaat willen delen? Eventueel via PM?
Hier sigmatex superlatex matt gebruikt. Toevallig gister nog de laatste laag op een dakhelft.
Ook ademend. Vooraf nog een ademende witte primer gebruikt en de gaten gevuld en geschuurd en randen gekit.
Ik zou niet aan gipsplaten op je kap beginnen.
Ook ademend. Vooraf nog een ademende witte primer gebruikt en de gaten gevuld en geschuurd en randen gekit.
Ik zou niet aan gipsplaten op je kap beginnen.
[ Voor 16% gewijzigd door Draakje5 op 18-02-2026 23:05 ]
Dat van ons zit er al 5 jaar opBBBrt schreef op woensdag 18 februari 2026 @ 22:35:
[...]
Ja ik twijfel ook of het niet 'too much' is. Niet zozeer vanwege ruimteverlies, meer voor tijd en kosten.
Zou je een foto van het eindresultaat willen delen? Eventueel via PM?
Ik wil nog wel even op je eerste post inhaken. Daarin geef je aan dat dit jouw eerste nieuwbouwhuis is en ik kan mij voorstellen dat dit spannend is. Wij zitten in hetzelfde schuitje namelijk. Maar het is niet de eerste nieuwbouwwoning van je aannemer. Ik wil je adviseren om voor jouw eigen gemoedstoestand wat naar achteren te leunen en gewoon te genieten dat je jullie huis voor je neus gebouwd ziet worden. Wees uiteraard kritisch op punten die je ziet zodra je een formeel kijkmoment hebt. Je gaat jezelf daarmee zoveel meer plezier gunnen dan de paniek die ik bij je zie als ik je berichten lees.dv2 schreef op woensdag 18 februari 2026 @ 17:35:
[...]
Het is wel een vorstvrije buitenkraan, is dit dan nog steeds het geval?
BBBrt schreef op woensdag 18 februari 2026 @ 22:35:
[...]
Ja ik twijfel ook of het niet 'too much' is. Niet zozeer vanwege ruimteverlies, meer voor tijd en kosten.
Zou je een foto van het eindresultaat willen delen? Eventueel via PM?
:strip_exif()/f/image/u5kEyD73cT3ELeqm0F5WQb1t.jpg?f=fotoalbum_large)
:strip_exif()/f/image/QnjjdZ4DnEnRS1GqCv15MaFf.jpg?f=fotoalbum_large)
Wij hebben gekozen voor airless spuiten. Eerst alle gaten dicht geplamuurd en de randen gekit. Erg tevreden over het resultaat. Alleen de zijkanten van de latjes zijn erg poreus, hier niet helemaal perfect dekkend. Volgende keer denk ik eerst even behandelen met een randsealer.BBBrt schreef op woensdag 18 februari 2026 @ 22:21:
De bovenverdieping van onze nieuwbouwwoning wordt een puntdak met nokhoogte van ca. 4,3 m. Binnenzijde dak en knieschotten worden opgeleverd als 'onbehandelde spaanplaat'. Niet dragende tussenwanden worden gibo-blokken.
Nu vraag ik mij af: wat is hier de meest kwalitatieve en/of kostenefficiënte afwerking? De tussenwanden zullen we laten stucen, maar wat is praktisch voor de schuine kap? De hele boel afwerken met stucplaten en ook stucen, of zijn hier andere goede methodes voor? Ik maak me vooral wat zorgen over de kosten i.v.m. de enorme nokhoogte (en dus noodzaak voor een flinke steiger etc).
:strip_exif()/f/image/fBmGDNSTiy4XAlYpmC9Za7cT.jpg?f=fotoalbum_large)
Dank voor de voorbeelden en tips! Als ik het zo zie, dan gaan we maar niet de moeite nemen van alles nog eens van platen voorzien. Dus de tussenwanden stucen, en alle spaanplaat goed plamuren, kitten, sealen en spuiten maar!
Geen idee waar ze die COP 6 vandaan halen, dat ga je echt niet halen, zeker niet met 35° aanvoer. Zelfs op de datasheet durft mitsubishi dat niet te zetten. Het overgrote meerendeel van je warmtevraag is in de winter en zelfs bij 7 graden buiten (wat het al ff niet meer geweest is) haal je met 35° water maar een COP van 5.25. Bij 2° buiten zak je al tot COP 4 en dan ga je er al vanuit dat de WP niet op volle kracht moet draaien.
Ook nog een vraagje over de ruimte achter de knieschotten: hoe zijn jullie daar mee omgegaan? Bij ons wordt de dekvloer aangebracht tot aan de knieschotten (wat me vrij standaard lijkt?). Maar wat doen je dan met de vloer erachter?Mitch101 schreef op donderdag 19 februari 2026 @ 09:22:
[...]
Wij hebben gekozen voor airless spuiten. Eerst alle gaten dicht geplamuurd en de randen gekit. Erg tevreden over het resultaat. Alleen de zijkanten van de latjes zijn erg poreus, hier niet helemaal perfect dekkend. Volgende keer denk ik eerst even behandelen met een randsealer.
[Afbeelding]
[Afbeelding]
Het hoeft natuurlijk niet supermooi te zijn, maar het lijkt mij wel fijn om daar in ieder geval íets uit te vlakken en af te werken. Ook zodat je lekker makkelijk met bakken en dozen kunt schuiven.
Vloerbedekking? OSB-plaat? Gieten? Coaten?
Bij ons was de vloer redelijk vlak. Hier al het puin wat er lag afgevoerd, met de stofzuiger erdoor en daarna bij een kluswinkel tapijt gehaald met rubber onderkant (niet dat vilt).BBBrt schreef op donderdag 19 februari 2026 @ 10:31:
[...]
Ook nog een vraagje over de ruimte achter de knieschotten: hoe zijn jullie daar mee omgegaan? Bij ons wordt de dekvloer aangebracht tot aan de knieschotten (wat me vrij standaard lijkt?). Maar wat doen je dan met de vloer erachter?
Het hoeft natuurlijk niet supermooi te zijn, maar het lijkt mij wel fijn om daar in ieder geval íets uit te vlakken en af te werken. Ook zodat je lekker makkelijk met bakken en dozen kunt schuiven.
Vloerbedekking? OSB-plaat? Gieten? Coaten?
![]() | ![]() |
Is (bij ons) toch geheel uit het zicht. Ligt er na 4 jaar nog steeds prima in en er zijn al aardig wat dozen overheen gegaan. Ook de reserve tegels (badkamer, woonkamer) heb ik hierachter gelegd.
[ Voor 21% gewijzigd door Source90 op 19-02-2026 11:42 ]
Fermacel egalisatiekorrels om het mee te egaliseren en daarop fermacelplaten.BBBrt schreef op donderdag 19 februari 2026 @ 10:31:
[...]
Ook nog een vraagje over de ruimte achter de knieschotten: hoe zijn jullie daar mee omgegaan? Bij ons wordt de dekvloer aangebracht tot aan de knieschotten (wat me vrij standaard lijkt?). Maar wat doen je dan met de vloer erachter?
Het hoeft natuurlijk niet supermooi te zijn, maar het lijkt mij wel fijn om daar in ieder geval íets uit te vlakken en af te werken. Ook zodat je lekker makkelijk met bakken en dozen kunt schuiven.
Vloerbedekking? OSB-plaat? Gieten? Coaten?
De zolderplaten heb ik zelf gespoten nadat ik alle "rattige" latjes eraf gehaald heb en vervangen voor dunnere vuren. Ziet er allemaal prima uit, scheuren ga je sowieso krijgen bij elke naad van de plaat.
Ik heb bij mijn nieuwbouw woning destijds gevraagd de knieschotten open te houden en de dekvloer door te smeren achter de schotten als optie.BBBrt schreef op donderdag 19 februari 2026 @ 10:31:
[...]
Ook nog een vraagje over de ruimte achter de knieschotten: hoe zijn jullie daar mee omgegaan? Bij ons wordt de dekvloer aangebracht tot aan de knieschotten (wat me vrij standaard lijkt?). Maar wat doen je dan met de vloer erachter?
Het hoeft natuurlijk niet supermooi te zijn, maar het lijkt mij wel fijn om daar in ieder geval íets uit te vlakken en af te werken. Ook zodat je lekker makkelijk met bakken en dozen kunt schuiven.
Vloerbedekking? OSB-plaat? Gieten? Coaten?
Was top, en echt een aanrader.
Hier was achter de knieschotten niet bepaald vlak. Ook liepen er leidingen en zaten er grote stalen ankers. Heb alles goed schoongemaakt, houten balkjes gelijmd en daar OSB platen op geschroefd. In de toekomst misschien nog een keer vloerbedekking, maar voor nu is het prima zo.BBBrt schreef op donderdag 19 februari 2026 @ 10:31:
[...]
Ook nog een vraagje over de ruimte achter de knieschotten: hoe zijn jullie daar mee omgegaan? Bij ons wordt de dekvloer aangebracht tot aan de knieschotten (wat me vrij standaard lijkt?). Maar wat doen je dan met de vloer erachter?
Het hoeft natuurlijk niet supermooi te zijn, maar het lijkt mij wel fijn om daar in ieder geval íets uit te vlakken en af te werken. Ook zodat je lekker makkelijk met bakken en dozen kunt schuiven.
Vloerbedekking? OSB-plaat? Gieten? Coaten?
Hier foto van toen ik halverwege was om een beeld te geven:
Maar als ik het goed begrijp ben je met de pro3 toch altijd zuiniger uit voor warm water dan met de combi+? Bij de pro3 gebruik je namelijk altijd warm water van je warmtepomp dat zuinig opgewarmd is, de mengkraan is immers gewoon aangesloten op je warmwaterleiding. Dan hoeft de cooker nooit (COP1) bij te springen voor warm water en enkel een klein voorraadje te houden voor kokend water, kokend water is qua volumes verbruik natuurlijk ook veel lager dan warm water.svenie3000 schreef op woensdag 18 februari 2026 @ 14:00:
[...]
Welke Quooker krijg je? Als het een combi(+) is dan kan hij ook normaal warm water, is het de quooker pro3, die kan enkel kokend en heeft slechts een 3l buffer. Verschil tussen de combi en combi plus is dat de combi plus ook op de warmwaterleiding aangesloten kan worden. Dat is met een warmtepomp wel handig, die warmt namelijk iets zuiniger op dan de quooker.
[ Voor 4% gewijzigd door Janpietertje89 op 19-02-2026 13:15 ]
Klopt, bij quooker raden ze aan om voor de combi plus te gaan als je warmwaterleiding meer dan 6 meter is, maar ik kan me voorstellen dat ze daarbij geen rekening houden met cv-ketel VS warmtepomp.Janpietertje89 schreef op donderdag 19 februari 2026 @ 13:14:
[...]
Maar als ik het goed begrijp ben je met de pro3 toch altijd zuiniger uit voor warm water dan met de combi+? Bij de pro3 gebruik je namelijk altijd warm water van je warmtepomp dat zuinig opgewarmd is, de mengkraan is immers gewoon aangesloten op je warmwaterleiding. Dan hoeft de cooker nooit (COP1) bij te springen voor warm water en enkel een klein voorraadje te houden voor kokend water, kokend water is qua volumes verbruik natuurlijk ook veel lager dan warm water.
Ik ging er vanuit dat wij onze zolder platen nog moesten afwerken en was van plan deze te laten latex spuiten, maar bij de 1e kijkdag zag ik dat de platen al voorzien zijn van een witte (gladde) afwerking. Dit geldt ook voor de knieschotten, dus dat scheelt weer.
Nog geen blik achter de knieschotten kunnen werpen, aangezien er (nog?) geen inspectieluik aanwezig was.
Wat betreft de Quooker, wij zijn voor de Combi+ gegaan aangezien deze 7 liter kokend water en onbeperkt warm water kan geven. Aangezien wij stadsverwarming krijgen zou een Combi waarschijnlijk voordeliger zijn, maar we kiezen in dit geval voor comfort.
Nog geen blik achter de knieschotten kunnen werpen, aangezien er (nog?) geen inspectieluik aanwezig was.
Wat betreft de Quooker, wij zijn voor de Combi+ gegaan aangezien deze 7 liter kokend water en onbeperkt warm water kan geven. Aangezien wij stadsverwarming krijgen zou een Combi waarschijnlijk voordeliger zijn, maar we kiezen in dit geval voor comfort.
[ Voor 25% gewijzigd door Dj-sannieboy op 19-02-2026 14:15 ]
Het staat vermeld in het beng rapport. Ze rekenen met die waarde. Volgens de EP adviseur omdat er een verklaring is. Ik zal de verklaring hieronder zetten. Wij snappen er echt niks van, dus wellicht kan jij even kijken?Danferno schreef op donderdag 19 februari 2026 @ 09:45:
[...]
Geen idee waar ze die COP 6 vandaan halen, dat ga je echt niet halen, zeker niet met 35° aanvoer. Zelfs op de datasheet durft mitsubishi dat niet te zetten. Het overgrote meerendeel van je warmtevraag is in de winter en zelfs bij 7 graden buiten (wat het al ff niet meer geweest is) haal je met 35° water maar een COP van 5.25. Bij 2° buiten zak je al tot COP 4 en dan ga je er al vanuit dat de WP niet op volle kracht moet draaien.
[Afbeelding]
:strip_exif()/f/image/RHFgL1cxAqzqbtSCDH5lVpBd.png?f=user_large)
Het maakt mij niet uit wat zuiniger is, ik wil gewoon niet langer dan 3 seconden wachten op warm water. Die paar euro die je evt. bespaart zijn mij dat 200% waard.Janpietertje89 schreef op donderdag 19 februari 2026 @ 13:14:
[...]
Maar als ik het goed begrijp ben je met de pro3 toch altijd zuiniger uit voor warm water dan met de combi+? Bij de pro3 gebruik je namelijk altijd warm water van je warmtepomp dat zuinig opgewarmd is, de mengkraan is immers gewoon aangesloten op je warmwaterleiding. Dan hoeft de cooker nooit (COP1) bij te springen voor warm water en enkel een klein voorraadje te houden voor kokend water, kokend water is qua volumes verbruik natuurlijk ook veel lager dan warm water.
Vanuit bouwbesluit is de wachttijd maximaal 35 seconden voor warm water
Wij hebben nu een Pro3 met stadsverwarming en het duurt echt wel 5-8 seconden voordat het water warmer begint te worden (beneden), in de badkamer op de 1e verdieping duurt het nog een keer zo lang. Wij hebben in ons nieuwe huis de boiler op de 3e verdieping staan, dus ook voor de Combi+ gekozen voor het comfort.Wolly schreef op donderdag 19 februari 2026 @ 15:37:
[...]
Het maakt mij niet uit wat zuiniger is, ik wil gewoon niet langer dan 3 seconden wachten op warm water. Die paar euro die je evt. bespaart zijn mij dat 200% waard.
Vanuit bouwbesluit is de wachttijd maximaal 35 seconden voor warm water
Pvc vloerzeil van de hornbach in gelegd. Kun je mooi op maat laten snijden en glijdt soepel met dozen enz. En kruipt ook gemakkelijk zonder dat je knieen of handen auw doen...BBBrt schreef op donderdag 19 februari 2026 @ 10:31:
[...]
Ook nog een vraagje over de ruimte achter de knieschotten: hoe zijn jullie daar mee omgegaan? Bij ons wordt de dekvloer aangebracht tot aan de knieschotten (wat me vrij standaard lijkt?). Maar wat doen je dan met de vloer erachter?
Het hoeft natuurlijk niet supermooi te zijn, maar het lijkt mij wel fijn om daar in ieder geval íets uit te vlakken en af te werken. Ook zodat je lekker makkelijk met bakken en dozen kunt schuiven.
Vloerbedekking? OSB-plaat? Gieten? Coaten?
Wel wat obstakels zoals een elektraleiding, maar om daar het hele knieschot nu 5cm voor te verhogen vond ik niet nodig.
[ Voor 3% gewijzigd door Draakje5 op 19-02-2026 19:15 ]
Ik heb er egaline overheen gegoten, ideaal, goedkoop en mooi vlak daardoor. Wel eerst even nalopen dat er geen (grote) gaten meer in zitten.BBBrt schreef op donderdag 19 februari 2026 @ 10:31:
[...]
Ook nog een vraagje over de ruimte achter de knieschotten: hoe zijn jullie daar mee omgegaan? Bij ons wordt de dekvloer aangebracht tot aan de knieschotten (wat me vrij standaard lijkt?). Maar wat doen je dan met de vloer erachter?
Het hoeft natuurlijk niet supermooi te zijn, maar het lijkt mij wel fijn om daar in ieder geval íets uit te vlakken en af te werken. Ook zodat je lekker makkelijk met bakken en dozen kunt schuiven.
Vloerbedekking? OSB-plaat? Gieten? Coaten?
Maar je hebt met een warmtepomp toch al een warm water buffervat? Warm water hoeft dan toch helemaal niet "warm te worden" zoals bij een gasketel in eco stand.Wolly schreef op donderdag 19 februari 2026 @ 15:37:
[...]
Het maakt mij niet uit wat zuiniger is, ik wil gewoon niet langer dan 3 seconden wachten op warm water. Die paar euro die je evt. bespaart zijn mij dat 200% waard.
Vanuit bouwbesluit is de wachttijd maximaal 35 seconden voor warm water
Een buffervat is voor de verwarming. Voor het warme water heb je gewoon een boilervat. Maar het water moet wel via de leiding naar de kraan, dat kost tijd omdat het water in de leiding afgekoeld is.Janpietertje89 schreef op donderdag 19 februari 2026 @ 21:09:
[...]
Maar je hebt met een warmtepomp toch al een warm water buffervat? Warm water hoeft dan toch helemaal niet "warm te worden" zoals bij een gasketel in eco stand.
Hoe lang duurt dat dan in jullie ervaring? Dacht dat het leidingwerk in moderne projectbouw redelijk geoptimaliseerd is en echt geen tientallen meters in allerlei bochten loopt. Als het inderdaad rond de 30 seconden duurt ga ik ook nog een wisseling naar de combi+ overwegen.deejeebv schreef op donderdag 19 februari 2026 @ 21:18:
[...]
Een buffervat is voor de verwarming. Voor het warme water heb je gewoon een boilervat. Maar het water moet wel via de leiding naar de kraan, dat kost tijd omdat het water in de leiding afgekoeld is.
Dit ligt ook weer aan de kraan die je gebruikt. Ik merk bij onze wastafel kraan in de badkamer dat deze duidelijk minder water doorlaat. Het duurt veel langer voordat het water warm wordt dan wanneer ik de badkraan aanzet.Janpietertje89 schreef op donderdag 19 februari 2026 @ 22:03:
[...]
Hoe lang duurt dat dan in jullie ervaring? Dacht dat het leidingwerk in moderne projectbouw redelijk geoptimaliseerd is en echt geen tientallen meters in allerlei bochten loopt. Als het inderdaad rond de 30 seconden duurt ga ik ook nog een wisseling naar de combi+ overwegen.
Dat is inderdaad afhankelijk van de afstand van boiler tot kraan en de leidingdiameter. In de badkamer spoel ik een liter of 2 weg voor het water warm is, dat duurt denk ik 10 to 20 seconden.Janpietertje89 schreef op donderdag 19 februari 2026 @ 22:03:
[...]
Hoe lang duurt dat dan in jullie ervaring? Dacht dat het leidingwerk in moderne projectbouw redelijk geoptimaliseerd is en echt geen tientallen meters in allerlei bochten loopt. Als het inderdaad rond de 30 seconden duurt ga ik ook nog een wisseling naar de combi+ overwegen.
De maximumtijd is 35s, ik heb niet gezegd dat het een gemiddelde is.Janpietertje89 schreef op donderdag 19 februari 2026 @ 22:03:
[...]
Hoe lang duurt dat dan in jullie ervaring? Dacht dat het leidingwerk in moderne projectbouw redelijk geoptimaliseerd is en echt geen tientallen meters in allerlei bochten loopt. Als het inderdaad rond de 30 seconden duurt ga ik ook nog een wisseling naar de combi+ overwegen.
Maar je hebt nieuwbouw waar een hotfill boiler bij de badkamer wordt geplaatst omdat die norm niet gehaald wordt.
Trust me, als je kleine kinderen hebt ben je blij dat je geen 35sec hoeft te wachten op warm water voor het flesje
Zou dan altijd kiezen voor een combi+. Zeker als je een vrouw/vriendin hebt die de warmwaterkraan nogal eens veel gebruikt en je maar een 200l vat hebt op zolder.
Misschien dat ze er in het L/W warmtepomp of het Mitsubishi topic iets van kunnen maken?The Fons schreef op donderdag 19 februari 2026 @ 15:35:
[...]
Het staat vermeld in het beng rapport. Ze rekenen met die waarde. Volgens de EP adviseur omdat er een verklaring is. Ik zal de verklaring hieronder zetten. Wij snappen er echt niks van, dus wellicht kan jij even kijken?
[Afbeelding]
[Afbeelding]
De echte hack is je kinderen van het begin water op kamertemperatuur te geven, dat is ook makkelijker op reis. Maar dat terzijderuudheijden schreef op vrijdag 20 februari 2026 @ 08:46:
Trust me, als je kleine kinderen hebt ben je blij dat je geen 35sec hoeft te wachten op warm water voor het flesjeZou dan altijd kiezen voor een combi+. Zeker als je een vrouw/vriendin hebt die de warmwaterkraan nogal eens veel gebruikt en je maar een 200l vat hebt op zolder.
Voorschouw gehad afgelopen week. We hadden een bouwkundige mee, maar dat was achteraf niet echt nodig, gelukkig maar. Ik vond het al heel positief dat de aannemer een “onafhankelijke” had ingeschakeld hiervoor. Die man was op sommige momenten nog kritischer dan onze eigen technicus.
Over twee weken ontvangen we de sleutels en kunnen we aan de gang met klussen. Ik heb vaker in dit topic gepost, maar al met al zeker een half jaar vertraging ivm netaansluiting dat op zich liet wachten, gelukkig konden we levering eigen woning ietwat uitstellen bij de kopers
Over twee weken ontvangen we de sleutels en kunnen we aan de gang met klussen. Ik heb vaker in dit topic gepost, maar al met al zeker een half jaar vertraging ivm netaansluiting dat op zich liet wachten, gelukkig konden we levering eigen woning ietwat uitstellen bij de kopers
Ik heb een vraag over de draairichting van onze voordeur. Deze gaat worden zoals op onderstaande foto die ik van Funda geplukt heb. De deur opent dus niet richting de trap, wat ik standaard zie, maar richting de andere kant. Bij ons izit straks recht tegenover de trap de deur naar de bijkeuken (direct naast een smal raam naast de voordeur)
Ik zie op foto's normaal gesproken alleen deuren die de andere kant op draaien, met opening naar de trap. Ik heb ook echt moeten zoeken naar een foto zoals het bij ons wordt. Dit voelt voor mij als onlogisch.. ik vroeg de aannemer dit te wijzigen, maar volgens hem klopt dit. Wat vinden jullie? Is dit logisch? Welke nadelen kan dit hebben? Ik dnek dan bijvoorbeeld aan verhuizen straks, je kunt niet met grote spullen direct door de voordeur de trap op.
Ik zie op foto's normaal gesproken alleen deuren die de andere kant op draaien, met opening naar de trap. Ik heb ook echt moeten zoeken naar een foto zoals het bij ons wordt. Dit voelt voor mij als onlogisch.. ik vroeg de aannemer dit te wijzigen, maar volgens hem klopt dit. Wat vinden jullie? Is dit logisch? Welke nadelen kan dit hebben? Ik dnek dan bijvoorbeeld aan verhuizen straks, je kunt niet met grote spullen direct door de voordeur de trap op.
Bij ons is dit ook zo.Eva-Luna74 schreef op zondag 22 februari 2026 @ 11:07:
Ik heb een vraag over de draairichting van onze voordeur. Deze gaat worden zoals op onderstaande foto die ik van Funda geplukt heb. De deur opent dus niet richting de trap, wat ik standaard zie, maar richting de andere kant. Bij ons izit straks recht tegenover de trap de deur naar de bijkeuken (direct naast een smal raam naast de voordeur)
Ik zie op foto's normaal gesproken alleen deuren die de andere kant op draaien, met opening naar de trap. Ik heb ook echt moeten zoeken naar een foto zoals het bij ons wordt. Dit voelt voor mij als onlogisch.. ik vroeg de aannemer dit te wijzigen, maar volgens hem klopt dit. Wat vinden jullie? Is dit logisch? Welke nadelen kan dit hebben? Ik dnek dan bijvoorbeeld aan verhuizen straks, je kunt niet met grote spullen direct door de voordeur de trap op. [Afbeelding]
Reden weet ik niet, ik dacht wellicht met brandveiligheid en zonder obstructie bij de meterkast te kunnen.
Het is vooral met verhuizen onhandig, verder geen last van.
In uitvoering draait je deur dan voor het glas. Als bouwer zou ik dit ook zo uitvoeren. Dan is de ‘hang zijde’ van de deur aan aan de muur gehangen.
Gevoelsmatig is het dan ook steviger
Zo ver ik weet is er geen verplichting ergens welke kant het op koet, zolang een voordeur maar naar binnen draait.
Gevoelsmatig is het dan ook steviger
Zo ver ik weet is er geen verplichting ergens welke kant het op koet, zolang een voordeur maar naar binnen draait.
Iemand hier die meer snapt van energielabels, het bouwbesluit en BENG? Afgelopen week oplevering van mijn nieuwbouwwoning gehad...Geen grote restpunten en vlot opgeleverd (zijn begonnen eind Maart '25)....
Maar ik kreeg mijn definitief energielabel en de score daarin voor de ramen is significant slechter dan in het voorlopige energielabel...In het voorlopige label hadden de ramen een score van 1.3 en in het definitieve label een waarde van 1.8
Mijn 1990 kozijnen met HR++ glas scoren ook 1.8? Ik lees her en der dat het gemiddelde van alle ramen/deuren niet boven de 1.65 mag uitkomen volgens het bouwbesluit...Is er hier toevallig iemand die beter weet hoe dat zit?
Maar ik kreeg mijn definitief energielabel en de score daarin voor de ramen is significant slechter dan in het voorlopige energielabel...In het voorlopige label hadden de ramen een score van 1.3 en in het definitieve label een waarde van 1.8
Mijn 1990 kozijnen met HR++ glas scoren ook 1.8? Ik lees her en der dat het gemiddelde van alle ramen/deuren niet boven de 1.65 mag uitkomen volgens het bouwbesluit...Is er hier toevallig iemand die beter weet hoe dat zit?
De boosdoener is dan de kozijnen. HR++ an sich zou al 1,1 halen, maar het gaat om het totale raam. Dat zou wel echt jammer zijn als die werkelijk 1,8 zijn.nooberke schreef op maandag 23 februari 2026 @ 10:09:
Iemand hier die meer snapt van energielabels, het bouwbesluit en BENG? Afgelopen week oplevering van mijn nieuwbouwwoning gehad...Geen grote restpunten en vlot opgeleverd (zijn begonnen eind Maart '25)....
Maar ik kreeg mijn definitief energielabel en de score daarin voor de ramen is significant slechter dan in het voorlopige energielabel...In het voorlopige label hadden de ramen een score van 1.3 en in het definitieve label een waarde van 1.8
Mijn 1990 kozijnen met HR++ glas scoren ook 1.8? Ik lees her en der dat het gemiddelde van alle ramen/deuren niet boven de 1.65 mag uitkomen volgens het bouwbesluit...Is er hier toevallig iemand die beter weet hoe dat zit?
Let op:
Dit topic is voor projectmatige woningbouw. Zelfbouw kan in Ervaringen met het bouwen van een eigen huis - Deel 3
Discussie over master - slave installatie en het bouwbesluit mag in Master - slave in nieuwbouw en het bouwbesluit
To kookgroep or not to kookgroep. Discussie staat hier: Het grote kookplaat aansluiten topic Je hebt minder kans om het aan te laten passen dan je denkt.
Dit topic is voor projectmatige woningbouw. Zelfbouw kan in Ervaringen met het bouwen van een eigen huis - Deel 3
Discussie over master - slave installatie en het bouwbesluit mag in Master - slave in nieuwbouw en het bouwbesluit
To kookgroep or not to kookgroep. Discussie staat hier: Het grote kookplaat aansluiten topic Je hebt minder kans om het aan te laten passen dan je denkt.
:strip_exif()/f/image/FNGEdjr6n00ZViX0V3ieVggN.jpg?f=fotoalbum_large)
:strip_exif()/f/image/xHrhJPx175u3tj5D9kyLG2eq.jpg?f=fotoalbum_large)
:strip_exif()/f/image/wJllEXU0R4y2hqDT571XlHWC.jpg?f=fotoalbum_tile)
:strip_exif()/f/image/CGLiGPBu2YTcUM0tTfGBpCL3.jpg?f=fotoalbum_tile)