WP: ME PUHZ-SW75YAA + ERSD-VM2D + EV-WP-TWS-1W 300; AC: ME MXZ-2F42VF + 2x MSZ-LN25VGV; PV: 14.08 kWp O/W + SMA STP 8.0; Vent: Zehnder Q600 ERV + Ubbink AirExcellent.
Dan is het niet te weinig.
Ik vind de rest door de ongebruikelijke vorm ook moeilijk beoordelen. Heb je niet een echt kaartje? Of de speelkamer en hobbykamer een probleem zijn zo met afzuiging erin hangt ook wel een beetje af van de vorm van de gang en positie in de ruimte van de ventielen.
[ Voor 32% gewijzigd door Puntenwolk op 10-03-2025 18:24 ]
/f/image/TnMY2kXHiQX4wWgak7uJfZHr.png?f=fotoalbum_large)
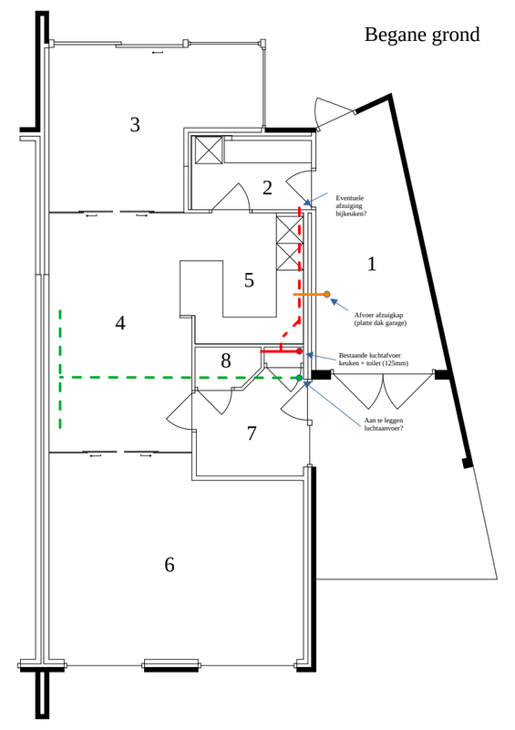
1. Garage / 2. Bijkeuken / 3. Serre / 4. Eethoek / 5. Keuken / 6. Zithoek (deuren tussen eethoek en zithoek zijn er niet) / 7. Hal / 8. WC
/f/image/GvHemmJZowDjj8VhLqHQCk5L.png?f=fotoalbum_large)
9. Overloop / 10. Slaapkamer 1 (ouderslaapkamer) / 11. Slaapkamer 2 / 12. Hobbykamer / 13. Badkamer
/f/image/2rpTRbdzxBGKF1M5T4Cth88s.png?f=fotoalbum_large)
14. Overloop (met waslijnen) / 15. Slaapkamer 3 / 16. Speelkamer
Je was hangt in en verkeersruimte, die geur gaat dan toch het hele huis door, afvoerventiel of niet.
De afvoer op de overloop zou ik daarom liever weghalen en verdelen over badkamer, toilet en keuken.
Edit: 3 posts gemist. Beetje spuit elf nu.
[ Voor 4% gewijzigd door P5ycho op 10-03-2025 18:57 ]
12x 280Wp ZW, 12x 280Wp ZO, Zubadan SHW80YAA 8kW, Zehnder Q450 ERV
Edit: post nog wat verbeterd met advies van @P5ycho
P5ycho in "Het centrale balansventilatie met warmteterugwinning topic"
1- Neem de tijd en denk aan je veiligheid.
2- Bepalen locatie doorvoer (één dakpan eruit en checken of de opening groot genoeg is voor de doorvoer). Mocht de ruimte te smal zijn, dan moet er iets van de naastgelegen dakpannen af. Ik heb één cm van de rechter dakpan gehaald.
3- Aftekenen hart van de buis op onderdak (niet op panlat zoals ik deed, en dan 3 stappen verder de panlat wegzagen:)
4- Plaatsen zwarte plastic 'sprietjes' op onderste panlat (in hart buis).
5- Extra panlat plaatsen tussen twee panlatten.
6- Stuk bestaande panlat weghalen met multitool (t.p.v buisopening).
7- Gat onderdak aanbrengen (folie/beschot).
8- Los verloopstuk van ovaal naar rond in doorvoer schuiven. Deze heb ik extra met siliconenkit vastgezet.
9- Aanbrengen dakdoorvoer waarbij onderste sprieten door één van de drie gaten moeten, afhankelijk van bolling dakpan. Zorg ervoor dat de flexibele flap ongeveer in het verlengde van de pan zit en niet eerst steil omhoog moet om over de dakpannen heen te komen.
10- Aan bovenkant met twee schroeven vastzetten op nieuwe panlat.
11- Pannen links terug leggen (als het goed is gaat dit precies langs de doorvoer).
12- Pan boven de doorvoer ca. 5cm inkorten met haakse slijper.
13- Zachte rubber stroken aan rechterzijde dakdoorvoer wegsnijden. Dit zit precies op de plek waar de bolling van pan tegen het dak aan komt en door deze stroken komt de pan te ver omhoog.
14- Eventueel linkerkant van rechter pan weghalen. Bij mij heb ik 1 cm strook weggehaald om mooi langs de doorvoer te lopen. Aan achterzijde de nok verwijderen.
15- Omdat de nok verwijderd is een ruim gat boren ter hoogte van de panlat en deze vastzetten. Eventueel nog extra kit aanbrengen. Bij mij is dit nog zichtbaar en ga ik binnenkort nog aanpassen zodat deze onder de bovenste dakpan valt.
16- Onderzijde flexibele flap vastplakken op dak (moet schoon & droog zijn, met schuurspons en ontvetter) en evt. extra borgen met meegeleverde schroefjes.
17- Het laatste deel: vastzetten van het design opzetstuk. Hiervoor heb ik eerst een dikke laag kit in de rand gespoten en daarna aangebracht. Met 4 schroeven op de 'hoeken' vastgezet.
18- Meegeleverde passtukken voor het gat in het onderdak heb ik niet gebruikt. Mijn onderdak is gewoon folie. Op YT zie je dat ze dan een frame inlijmen, maar bij de levering zaten er in de doos alleen twee halve cirkels die je volgens de handleiding op maat zou moeten maken. Deze zijn echter veels te groot en sluiten helemaal niet aan op de invoerbuis. Heb ze maar weg gelaten en het gat in de folie afgewerkt met folietape. Dat frame op YT zit waarschijnlijk bij de 160mm Renson meegeleverd.
:strip_exif()/f/image/w56glvr6Fu9Qu8yseQrj9i6p.jpg?f=fotoalbum_large)
[ Voor 5% gewijzigd door Redlum999 op 10-03-2025 22:02 ]
Zijn die schroeven echt om de flap te borgen? Ik heb er 6 in de kraag zitten, nul in de flap
Die halve cirkels zijn bij mij ook in de ton beland. Compleet nutteloos spul.
Misschien dat je de youtube links er nog bij kunt plaatsen?
[ Voor 48% gewijzigd door P5ycho op 10-03-2025 20:31 ]
12x 280Wp ZW, 12x 280Wp ZO, Zubadan SHW80YAA 8kW, Zehnder Q450 ERV
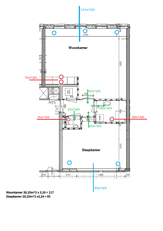
Zeker. Ik vat hier ook even input van de rest samen, want inderdaad zegt iedereen unaniem niet op de overloop afvoeren en wel aanvoeren op de hobby en speelkamers. Daarnaast zou ik langs de lijn die Andrehj suggereert een systeem maken dat maximaal afvoert op de benedenverdieping, door je bestaande 125mm buis, die nog best wel wat aankan.marcgk schreef op maandag 10 maart 2025 @ 15:41:Zijn er mogelijkheden om te totale ventilatie verder te verlagen of effectiever te ventileren? Is er nog beter gebruik te maken van overstroom? Of zou ik toch moeten kijken naar zonering?
Probeer eens dit (alles normaalstand)
- Ouder, hobby- en speelkamer +60, twee kleine slaapkamers +30, totaal +240
- Badkamer -80, WC -20, totaal -100
- 240-100 = 140 afvoeren in de woonkamer, met WC erbij in totaal 160 door de 125mm buis. Ik zou dat zelf nog wel aandurven. Dan geen extra buizen naar beneden dus! Deze 140 afvoer kun je naar wens verdelen over keuken en bijkeuken. Bijvoorbeeld 100 en 40.
- Je hebt wel een doorstroomvoorziening nodig, want meer dan 100 past niet onder een normale deur door van hal naar woonkamer. Of toevallig toch een hippe taatsdeur tussen hal en woonkamer (zo eentje met flinke kieren rondom). Anders iets als een Lindab Muurdoorvoer tussen hal en woonkamer. Vanwege de centrale positie van de hal tov de woonkamer denk ik dat de verdeling van lucht geen issue is. Als je het zekere voor het onzekere wil nemen kan je de muurdoorvoer aan de kant van de zithoek aanleggen, dan moet de lucht eerst het hoekje om richting de keuken en mengt het daardoor.
Ja, daar zijn ze voor.Ik zag dat er ook geluids- en lichtdempende roosters zijn voor in de deur. Ik vroeg me af of dat misschien dan een betere oplossing is dan zo'n groter kier?
Je keukenventilatie voldoet wel aan het bouwbesluit, want het bouwbesluit regelt de minimale eisen aan de maximale capaciteit. Je hebt je systeem op normaalstand ingetekend. Als je "hoog" stand theoretisch de 75 m3/h aankan, en dat is zeker wel het geval tenzij je standen heel raar inregelt, voldoe je dus ook aan het bouwbesluit.Zoals ik het nu getekend heb is de ventilatie van de keuken te laag (die zou 75m3/h moeten zijn volgens bouwbesluit), maar zou dat in de praktijk een groot probleem zijn?
Goed gezien, dit is inderdaad zo. Voor je beperkende 125mm buis op de benedenverdieping bijvoorbeeld, is het standaard advies uit de TS dat onder de 1Pa/m geruisloos is, voor een spirobuis is dat ongeveer 3m/s en ongeveer 130m3/h. Maar voor de afvoer zou je probleemloos t/m 5 m/s door zo'n buis moeten kunnen doen, ofwel 220 m3/h. Ik zou dat wel ook echt de max maken op hoog stand, dus met 50% tussen normaal en hoog kom je dan op max 220/1.5 = 150m3/h uit. 160 kan ook nog wel.Maakt voor het geluid dat wordt opgewekt in een buis het nog uit of deze buis aanvoer of afvoer is? Ik kan me voorstellen dat als de buis afvoer is, dat het geluid meebeweegt in de richting van de ventilatieunit en dat je er dan minder last van hebt dan wanneer het geluid bij een aanvoerbuis meebeweegt in de richting van het ventiel. Klinkt dit logisch of is dit niet zo? Ik zie bij ventielen vaak een voor afvoer een groter maximaal debiet staan dan voor aanvoer. Heeft dat hiermee te maken?
Ik heb nog één ander punt dat ik nog niet zag, namelijk om nog eens goed na te denken over de 36 m3/h pp. Uit de bronnen die we hier kennen volgen waardes tussen 20 en 40pp, zie de TS. De bron die je aanhaalt gebruikt dit getal van precies 36 volgens mij vooral omdat de grofweg afgeronde 10l/s precies 36 m3/h is. We gebruiken hier meestal 30, en tot nu toe niemand horen klagen dat dit te weinig was. Sommigen gebruiken zelfs 25 zonder problemen. Met 30 ga je ipv 800ppm stabiele waarde naar iets meer (ik heb eerder eens 967 berekend, maar dat is obv 17l/u CO2 en jouw bron gebruikte een veel lagere 13.6 l/u CO2). Daar zit ook één praktisch punt bij: voor enkele veelgebruikte onderdelen werkt dat lekker. Bijvoorbeeld Ubbink Air Excellent buizen 75mm binnendiameter, daarmee kun je tot 30m3/h met één buis per ventiel toe, daarboven eigenlijk niet heel goed meer.
De woning is volledig ontkeldert, en gelukkig loopt daar een schoorsteenmantel recht door de woning heen. We zijn er nog niet uit of we die wel of niet willen behouden (voor een inzethaard oid), maar ik zou er vrij eenvoudig een koof naast kunnen plaatsen om daar in ieder geval 2 grote buizen in te kunnen laten lopen voor de aan en afvoer.
Ik heb de boel nog niet doorgerekend, eerst maar eens de sleutels krijgen, maar ik vraag me eigenlijk een aantal dingen hoofdzakelijk af:
1. Kan de WTW unit ook in de kelder komen te staan/hangen? Qua wegwerken heb ik daar meer opties, maar dan lijkt het mij dat het buizenwerk sowieso verticaal door de woning moet gaan, en ik dan waarschijnlijk het beste af ben met aanvoer/afvoer buizen vanuit de kelder naar buiten te brengen. Omdat je anders 4 buizen door de woning moet laten lopen (toch?). Voelt minder ideaal.
2. Op de zolder is zelfs nog een klein vertrek gemaakt met dakraampje, leuk voor de kids of een telescoop, maar daar zou de unit natuurlijk ook perfect kunnen staat. Moet ik me dan echter zorgen maken om resonatie/geluid etc. in de nog in te delen slaapkamer eronder?
3. Langs een houten balkenvloer een buis laten lopen is natuurlijk eenvoudig, maar wat wordt er doorgaans gedaan als je moet kruizen om bij een andere kamer te komen? Houdt dat dan sowieso in dat er ~10cm aan verlaagd plafond geplaatst moet worden?
4. Ik heb nu een zeer kort door de bocht schetsje staan, en vroeg mij vooral af of het wenselijk is in de gangen nog extra afvoer te plaatsen.
Excuses als ik iets over het hoofd gezien heb, er komt nogal een hoop bij kijken dus ik blijf geduldig doorlezen!
/f/image/oVTB5QTao4vMZOtD7lAoROYO.png?f=fotoalbum_large) 
                    2, De herrie blijft vooral in de ruimte zelf. Maar rekening houden met (het voorkomen van) resonantie is sowieso goed.
3, Ja dan zul je het plafond moeten verlagen of met een koof aan de gang moeten. Je vloerbalk doorboren is niet een heel strak plan meestal
4, Afvoer in de gangen is meestal niet nodig, zonde van de lucht. Maar pak even de Excel uit de ts erbij en ga daar eens op studeren.
[ Voor 9% gewijzigd door ZonnigY op 10-03-2025 20:59 ]
Bosch 5800i 10, vloerverwarming & fancoils, Zehnder Q600
[ Voor 99% gewijzigd door ZonnigY op 10-03-2025 20:58 . Reden: Quote ipv aanpassing ]
Bosch 5800i 10, vloerverwarming & fancoils, Zehnder Q600
Ik heb de YT- linkjes toegevoegd.P5ycho schreef op maandag 10 maart 2025 @ 20:28:
Goede tutorial!
Zijn die schroeven echt om de flap te borgen? Ik heb er 6 in de kraag zitten, nul in de flap
Die halve cirkels zijn bij mij ook in de ton beland. Compleet nutteloos spul.
Misschien dat je de youtube links er nog bij kunt plaatsen?
En die schroeven?…. In de handleiding staat dat wel zo (in mijn herinnering). Je ziet ook twee ‘gaatjes’ in de flap waar ze moeten komen. Nu dacht ik eigenwijs te zijn en ze achterwege te laten, maar bij mij is één flap toch losgekomen. Waarschijnlijk omdat het te koud was bij montage…
:strip_exif()/f/image/M0lcFfzDi6XkpTp39ZWHuzUk.jpg?f=fotoalbum_large) 
                                                /f/image/gP3ZYyW40wbfGEBY9Pt8vvII.png?f=fotoalbum_large)
Ik las nog wel ergens in de eisen van het bouwbesluit geloof ik dat minimaal de helft van de lucht vers aangevoerd moet worden, en ik ging er van uit dat ze daarmee bedoelden dat je maximaal de helft mag aanvoeren via overstroming, en de rest zou dan rechtstreeks via ventielen moeten. Klopt het dat het dat betekent?
[ Voor 9% gewijzigd door marcgk op 10-03-2025 22:16 ]
Ik heb de handleiding maar gelaten voor wat het is. Toch iets verder moeten lezen dus...Redlum999 schreef op maandag 10 maart 2025 @ 21:25:
[...]
Ik heb de YT- linkjes toegevoegd.
En die schroeven?…. In de handleiding staat dat wel zo (in mijn herinnering). Je ziet ook twee ‘gaatjes’ in de flap waar ze moeten komen. Nu dacht ik eigenwijs te zijn en ze achterwege te laten, maar bij mij is één flap toch losgekomen. Waarschijnlijk omdat het te koud was bij montage…
[Afbeelding]
Mijn flappen zitten nog prima gelukkig.
Schroeven in een betonnen pan werkt sowieso niet, dus ik heb er niet heel veel vertrouwen in dat het wat toevoegt eigenlijk.
Ik heb de pannen voor het plakken van de flap goed schoongeschrobd met een schuurspons en ontvet, misschien is dat nog een tip voor anderen.
Mijn installatiepics staan hier:
P5ycho in "Het centrale balansventilatie met warmteterugwinning topic"
[ Voor 12% gewijzigd door P5ycho op 10-03-2025 21:52 ]
12x 280Wp ZW, 12x 280Wp ZO, Zubadan SHW80YAA 8kW, Zehnder Q450 ERV
Eens met wat ZonnigY zegt, daarboven op nog op dit punt: de best mogelijke manier om ongewenste verlaagde plafonds te voorkomen is vaak een extra verticale schacht te maken. Als je bijvoorbeeld op de begane grond liever geen verlaagd plafond wil ivm hoogte, kun je ook de “traverse” maken op zolder of de kelder en dan met een aparte buis weer naar de begane grond. Vaak is een verticaal koofje in een slaapkamer een stuk beter weg te werken (bijv inbouwkast) dan verlaagd plafond in de woonkamer.Spherix schreef op maandag 10 maart 2025 @ 20:49:
3. Langs een houten balkenvloer een buis laten lopen is natuurlijk eenvoudig, maar wat wordt er doorgaans gedaan als je moet kruizen om bij een andere kamer te komen? Houdt dat dan sowieso in dat er ~10cm aan verlaagd plafond geplaatst moet worden?
Dat was bewust. Let op dat die 30 en ook 36 m3/h uitgaan van een slapende volwassene. Een actieve volwassene stoot veel meer CO2 uit dan een slapende. Als je hobby enigszins fysiek inspannend is - zelfs al is het printplaatjes solderen - zou ik voor meer kiezen dan 30.marcgk schreef op maandag 10 maart 2025 @ 21:26:
Bedankt voor de input tot nu toe. Ik heb het schema aangepast aan de waardes zoals beschreven door Puntenwolk. Alleen de +60 voor de hobbykamer heb ik verlaagd, omdat dat maar een klein kamertje is (ik ben er van uitgegaan dat die +60 een vergissing was of was dat wel heel bewust?) Daarmee heb ik ook de afzuiging in de badkamer iets verlaagd om beneden in ieder geval nog 120 over te houden.
[Afbeelding]
Ik las nog wel ergens in de eisen van het bouwbesluit geloof ik dat minimaal de helft van de lucht vers aangevoerd moet worden, en ik ging er van uit dat ze daarmee bedoelden dat je maximaal de helft mag aanvoeren via overstroming, en de rest zou dan rechtstreeks via ventielen moeten. Klopt het dat het dat betekent?
Het klopt dat je benedenverdieping zo niet aan het bouwbesluit voldoet. Het is wel een goed ventilatiesysteem!
Heb je advies toegevoegd, dank! Doorvoer ziet er ook netjes uit bij jou.P5ycho schreef op maandag 10 maart 2025 @ 21:38:
[...]
Ik heb de handleiding maar gelaten voor wat het is. Toch iets verder moeten lezen dus...
Mijn flappen zitten nog prima gelukkig.
Schroeven in een betonnen pan werkt sowieso niet, dus ik heb er niet heel veel vertrouwen in dat het wat toevoegt eigenlijk.
Ik heb de pannen voor het plakken van de flap goed schoongeschrobd met een schuurspons en ontvet, misschien is dat nog een tip voor anderen.
Mijn installatiepics staan hier:
P5ycho in "Het centrale balansventilatie met warmteterugwinning topic"
Het schroeven in een betonnen pan was voor mij ook exact de reden om het achterwege te laten. Achteraf dus misschien beter wel kunnen doen. Nou ja, binnenkort het dak weer op om de flap vast te zetten. Nu met schuurspons en ontvetter
Heel helder, dank!ZonnigY schreef op maandag 10 maart 2025 @ 20:57:
1, Ja dat kan prima. Ik heb hem ook in het soutterain. Zeker met enthalpiewisselaar omdat je dan geen condensafvoer nodig hebt, en anders met een condenspompje.
2, De herrie blijft vooral in de ruimte zelf. Maar rekening houden met (het voorkomen van) resonantie is sowieso goed.
3, Ja dan zul je het plafond moeten verlagen of met een koof aan de gang moeten. Je vloerbalk doorboren is niet een heel strak plan meestal.
4, Afvoer in de gangen is meestal niet nodig, zonde van de lucht. Maar pak even de Excel uit de ts erbij en ga daar eens op studeren.
Ook dit is een hele fijnd aanvulling waar ik nog niet over nagedacht had. Thanks!Puntenwolk schreef op maandag 10 maart 2025 @ 21:54:
[...]
Eens met wat ZonnigY zegt, daarboven op nog op dit punt: de best mogelijke manier om ongewenste verlaagde plafonds te voorkomen is vaak een extra verticale schacht te maken. Als je bijvoorbeeld op de begane grond liever geen verlaagd plafond wil ivm hoogte, kun je ook de “traverse” maken op zolder of de kelder en dan met een aparte buis weer naar de begane grond. Vaak is een verticaal koofje in een slaapkamer een stuk beter weg te werken (bijv inbouwkast) dan verlaagd plafond in de woonkamer.
Ik ga weer door met lezen.
Waar ben je bang voor?
Zelfinstallatie Vaillant Arotherm Plus 55/6 | Zehnder Q450 | Variotherm DWTW | Enphase Envoy S + IQ7x Panasonic 7x335WP
Niet ergens bang voor, maar vroeg me af of er problemen zouden kunnen optreden doordat ze inderdaad elkaar tegen gaan werken of dat je de luchtstroom gaat voelen.bensss schreef op dinsdag 11 maart 2025 @ 10:31:
Ja, dat heb ik gedaan omdat het mooier en beter te installeren was. Tot nu toe helemaal geen probleem. Het enige risico is een beetje stofvorming. Maar ze werken elkaar absoluut niet tegen of iets dergelijks.
Waar ben je bang voor?
Maar ik heb genoeg aan je antwoord en laat ze fijn 50cm hoh van elkaar boren voor de gaten!
Ik heb een Zehnder manueel ingesteld voor de standen maar deze draaien nu op slechts 60% daarvan. Ik dacht dat hij gewoon harder zou gaan blazen bij meer weerstand.
ComfoControl app geeft "Weerstandsbescherming MANUEEL" aan op het home menu.
You take the blue pill – the story ends and you believe whatever you want to. You take the orange pill – you stay in Wonderland, and I show you how deep the rabbit hole goes. Huis uit 1910
Met stoffige klussen kun je beter je WTW even uitzetten ja, dat kost je filters en vervuiling in je kanalen.Refrag schreef op dinsdag 11 maart 2025 @ 16:45:
Is het normaal dat het debiet terugzakt als filters ouder worden? Recent door het klussen is het flink stoffig geweest, denk dat de filters het zwaarder te verduren hebben.
Ik heb een Zehnder manueel ingesteld voor de standen maar deze draaien nu op slechts 60% daarvan. Ik dacht dat hij gewoon harder zou gaan blazen bij meer weerstand.
ComfoControl app geeft "Weerstandsbescherming MANUEEL" aan op het home menu.
Veroordeel niet, verwonder u slechts
Ik was hem ook vergeten uit te zetten met klussen waardoor ook de filters verstopte. Ik zag wel degelijk dat de vermogen en fan RPM omhoog gingen zodat het debiet gelijk bleef. (ik heb een Q350)Refrag schreef op dinsdag 11 maart 2025 @ 16:45:
Is het normaal dat het debiet terugzakt als filters ouder worden? Recent door het klussen is het flink stoffig geweest, denk dat de filters het zwaarder te verduren hebben.
Ik heb een Zehnder manueel ingesteld voor de standen maar deze draaien nu op slechts 60% daarvan. Ik dacht dat hij gewoon harder zou gaan blazen bij meer weerstand.
ComfoControl app geeft "Weerstandsbescherming MANUEEL" aan op het home menu.
Of is er een andere manier?
wie van vissen houdt, houdt niet van vissen
Zoek op MP of zoek in dit topic eens op mantelbuis.soepah schreef op woensdag 12 maart 2025 @ 09:25:
Iemand toevallig nog wat Ubbink 75mm buitenmaat flex ter overname? anders moet ik voor ca 10 meter een hele nieuwe rol kopen van 50 meter.
Of is er een andere manier?
Panasonic J 7kW WP, boiler & HeishaMon, 6022 Wp PV, Enphase+ST GW, SOLAX SK-SU3000E 13kWh BESS, ITHO Qualityflow WTW, Elvi Smart Charging+ laadpunt, Kia EV6 84kWh EA MY25, gasloos '23
Door klussen binnen zal vooral het afvoerfilter vies zijn geworden. En uiteraard merkt de WTW dat. Maar dan trek je dat filter er toch even uit en blaas / klop / zuig je die (buiten) toch even schoon?Refrag schreef op dinsdag 11 maart 2025 @ 16:45:
Is het normaal dat het debiet terugzakt als filters ouder worden? Recent door het klussen is het flink stoffig geweest, denk dat de filters het zwaarder te verduren hebben.
Ik heb een Zehnder manueel ingesteld voor de standen maar deze draaien nu op slechts 60% daarvan. Ik dacht dat hij gewoon harder zou gaan blazen bij meer weerstand.
ComfoControl app geeft "Weerstandsbescherming MANUEEL" aan op het home menu.
Eerlijk gezegd snap ik niet dat je dat zelf niet bedenkt...
WP: ME PUHZ-SW75YAA + ERSD-VM2D + EV-WP-TWS-1W 300; AC: ME MXZ-2F42VF + 2x MSZ-LN25VGV; PV: 14.08 kWp O/W + SMA STP 8.0; Vent: Zehnder Q600 ERV + Ubbink AirExcellent.
12x 280Wp ZW, 12x 280Wp ZO, Zubadan SHW80YAA 8kW, Zehnder Q450 ERV
No Hands schreef op dinsdag 11 maart 2025 @ 16:56:
Met stoffige klussen kun je beter je WTW even uitzetten.
SkullboyNL schreef op woensdag 12 maart 2025 @ 09:22:
Ik was hem ook vergeten uit te zetten met klussen waardoor ook de filters verstopte. Ik zag wel degelijk dat de vermogen en fan RPM omhoog gingen zodat het debiet gelijk bleef. (ik heb een Q350)
Ja, ik ben regelmatig stof aan het maken maar niet op de verdieping waar de wtw actief is. De app laat volgens mij het vermogen en RPM niet zien, die lees je zelf uit? Denk dat hij hier zelf een bescherming limiet heeft ingesteld.P5ycho schreef op woensdag 12 maart 2025 @ 10:41:
Bouwstof is echt funest voor de performance van een wtw filter.
Had al wel een keer de stofzuiger bij gehouden maar bood nauwelijks soelaas. Heb er nu een met blaasfunctie en dat werkt wel als een tierelier. Debiet is weer prima, maar denk dat ik dit setje al kan afschrijven.
[ Voor 8% gewijzigd door Refrag op 12-03-2025 12:03 ]
You take the blue pill – the story ends and you believe whatever you want to. You take the orange pill – you stay in Wonderland, and I show you how deep the rabbit hole goes. Huis uit 1910
Ja ik gebruik een ESP32 om de WTW uit te lezen en aan te sturen. Kleine schaamteloze zelf promotieRefrag schreef op woensdag 12 maart 2025 @ 11:58:
De app laat volgens mij het vermogen en RPM niet zien, die lees je zelf uit?
SkullboyNL schreef op woensdag 12 maart 2025 @ 14:36:
[...]
Ja ik gebruik een ESP32 om de WTW uit te lezen en aan te sturen. Kleine schaamteloze zelf promotiev&a aangeboden: Zehnder ComfoAir Q Home Assistant module
In de woonkamer + open keuken is het plan om 180m3/h op maximaal stand afzuigen. Er loopt nu al een buis van zolder, waar de WTW unit zou komen, naar de keuken. Deze komt rechts boven in de hoek uit van een 'nis' van iets meer dan 3m breed. In deze nis komt een kastenwand van de keuken met kastjes die vrijwel tot het plafond zullen lopen.
Nu kwam één van de keuken leveranciers met de suggestie om tussen het plafond (waar de buis dus rechts boven uit komt) en de bovenste kastjes een spleet te houden van een paar centimeter, zodat deze spleet als het ware een heel groot ventiel zou worden. Op de buis zou ik dan verder geen ventiel doen en daar kan je dan dus eigenlijk ook nooit meer normaal bij, zonder een keukenkastje van de muur te halen. Op zolder zou ik eventueel een regelklep oid kunnen plaatsen die toegankelijk blijft, zodat ik de hoeveelheid lucht door de buis kan afstellen.
Als ik in Vent Tools kijk en daar een speet van 30x1500mm invul, equivalent aan 15x3000, maar VentTools laat je niet lager dan 30 gaan, met een airflow van 180 m3/h, dan kom ik uit op een snelheid van 1,11 m/s , oppervlakte van 0,04m2 en een drukval van 0,52 Pa/m.
Ik zie hier niet direct een probleem in. Zie ik iets over het hoofd?
/f/image/MZ9gpdIUCcVyzoe9kUm3foIX.png?f=fotoalbum_large)
En dan nog een vervolgvraag. Als ik kijk naar de info uit de TS:
Dan zou obv de into uit VentTools (zie hieronder) een Spiro 160 buis dus voldoende zijn.Een vuistregel is dat je met een kanaalweerstand van meer dan 1 Pa per meter het stromingsgeluid begint te horen. Op basis hiervan kan je de meeste spirobuizen afhankelijk van de diameter tot 2 á 3 m/s geruisloos noemen.
/f/image/7DI5Wep1UCj3SQfwFwYX0D1Q.png?f=fotoalbum_large)
Samengevat dus 2 vragen:
- Ziet iemand problemen om de kier tussen kastjes en plafond als ventiel te gebruiken om 180m3/h (op max) af te zuigen?
- Kan ik zonder problemen een Spiro 160mm buis gebruiken om de 180m3/h (op max) in de keuken af te zuigen?
[ Voor 23% gewijzigd door _kilian_ op 13-03-2025 10:36 ]
1- Nee, juist een heel goed oplossing. Waarschijnlijk is het leidingtraject naar de keuken ook de langste. Dus daar zou je een eventueel ventiel ook zo open mogelijk zetten. Dus met een ruimte spleet zit je daar goed, de drukval voor de 180m3/h wordt dan volledig door het leidingtraject bepaald. Zoals je met een volledig open ventiel ook zou doen. De oplossing is ook nog eens esthetisch optimaal lijkt me en het scheelt je geknutsel met buizen naar individuele ventielen._kilian_ schreef op donderdag 13 maart 2025 @ 10:26:
Samengevat dus 2 vragen:
- Ziet iemand problemen om de kier tussen kastjes en plafond als ventiel te gebruiken om 180m3/h (op max) af te zuigen?
- Kan ik zonder problemen een Spiro 160mm buis gebruiken om de 180m3/h (op max) in de keuken af te zuigen?
EDIT: nog even een klein aandachtspunt, je gaat wel relatief vieze lucht aanzuigen naar de spleet en dat geeft viezigheid op witte plafonds. Ik zou er daarom voor kiezen om de spleet niet tegen het plafond te maken maar eerder tegen het kastjes zodat je het makkelijker schoon kan houden.
2- Lijkt me wel, ik zie daar geen enkel probleem.
[ Voor 14% gewijzigd door bensss op 13-03-2025 10:52 ]
Zelfinstallatie Vaillant Arotherm Plus 55/6 | Zehnder Q450 | Variotherm DWTW | Enphase Envoy S + IQ7x Panasonic 7x335WP
12x 280Wp ZW, 12x 280Wp ZO, Zubadan SHW80YAA 8kW, Zehnder Q450 ERV
Mooie oplossing met die spleet, dat ga ik hier ook proberen te maken!
Hou je ons op de hoogte van de voortgang?
Is het überhaupt nodig om een ventiel op het einde van een buis te doen, of doe je dit alleen om de luchtstroom te kunnen regelen, wat ik dan dus op zolder ga doen, zodat ik erbij kan. Het ventiel zou zodra de keuken geplaatst is niet meer toegankelijk zijn.
Ze vertelden dat ze vaak graag een sleet van 1 a 2 centimeter aanhouden tussen plafond en de bovenkant van de kastjes, zodat ze hiermee onregelmatigheden in het plafond minder goed zou zien. Als het er bijna overal strak tegenaan zit, valt het wel op als er ergens een kier is van 0,5cm. Terwijl dit minder goed zichtbaar zou zijn als dit onderdeel is van de spleet van 1 a 2 cm. De spleet wordt dus gevormd door de ruimte tussen het plafond en de bovenkant van de kastjes. Daar is volgens mij niet heel veel aan te doen, behalve dus indien nodig het plafond eens schoonmaken of opnieuw verven.
@P5ycho bedankt voor de tip. Ik ga er wel vanuit dat de kastjes gewoon afgewerkt zijn, maar zal hier extra op letten.
@loyske bedankt. Mocht het gat nu al 150 zijn is het de overweging waard om het zo te laten. Dat gaan we dus zien wanneer alles open gaat. Ben nu bezig met de voorbereiding van een complete verbouwing. Het gaat dus nog wel eventjes duren voordat ik hier echt iets kan delen. Als het zover is zal ik dat zeker doen.
Hieronder nog een tekening van de keuken. De gele streep is dus waar de kier/spleet zou komen, door die kastjes dus niet strak tegen het plafond te hangen. De rode streep geeft aan dat in die hoek de buis vanuit zolder uitkomt. De komt dan als het ware achter in dat kastje binnen.
:strip_exif()/f/image/1DGy40EKTx5eQq1dlvjACnyJ.jpg?f=fotoalbum_large) 
                                                Spleet zou niet moeten hoeven. Keukenboer, tegelvloer legger en stukadoor plafond hebben er gezamenlijk voor gezorgd dat alles van boven tot onder op 3 wanden keurig aansluit. Geen 5mm en geen 1mm spleet, gewoon door vakmensen laten doen._kilian_ schreef op donderdag 13 maart 2025 @ 22:52:
Ze vertelden dat ze vaak graag een sleet van 1 a 2 centimeter aanhouden tussen plafond en de bovenkant van de kastjes, zodat ze hiermee onregelmatigheden in het plafond minder goed zou zien. Als het er bijna overal strak tegenaan zit, valt het wel op als er ergens een kier is van 0,5cm. Terwijl dit minder goed zichtbaar zou zijn als dit onderdeel is van de spleet van 1 a 2 cm. De spleet wordt dus gevormd door de ruimte tussen het plafond en de bovenkant van de kastjes. Daar is volgens mij niet heel veel aan te doen, behalve dus indien nodig het plafond eens schoonmaken of opnieuw verven.
Voor de zekerheid: er komt wél eerst een plank/plaat tegen het plafond in zelfde kleur als de kastjes en dan 2cm daaronder de daadwerkelijke kastjes? Of komt die plank er niet? Ik ben toevallig ook bezig voor een evt. nieuwe keuken en zat ook aan deze oplossing te denken._kilian_ schreef op donderdag 13 maart 2025 @ 22:52:
@bensss Weet niet of het het afzuigpunt met het langste traject zal zijn. Denk dat de keuken, badkamer en toilet qua leidinglengte vergelijkbaar gaan zijn.
Is het überhaupt nodig om een ventiel op het einde van een buis te doen, of doe je dit alleen om de luchtstroom te kunnen regelen, wat ik dan dus op zolder ga doen, zodat ik erbij kan. Het ventiel zou zodra de keuken geplaatst is niet meer toegankelijk zijn.
Ze vertelden dat ze vaak graag een sleet van 1 a 2 centimeter aanhouden tussen plafond en de bovenkant van de kastjes, zodat ze hiermee onregelmatigheden in het plafond minder goed zou zien. Als het er bijna overal strak tegenaan zit, valt het wel op als er ergens een kier is van 0,5cm. Terwijl dit minder goed zichtbaar zou zijn als dit onderdeel is van de spleet van 1 a 2 cm. De spleet wordt dus gevormd door de ruimte tussen het plafond en de bovenkant van de kastjes. Daar is volgens mij niet heel veel aan te doen, behalve dus indien nodig het plafond eens schoonmaken of opnieuw verven.
@P5ycho bedankt voor de tip. Ik ga er wel vanuit dat de kastjes gewoon afgewerkt zijn, maar zal hier extra op letten.
@loyske bedankt. Mocht het gat nu al 150 zijn is het de overweging waard om het zo te laten. Dat gaan we dus zien wanneer alles open gaat. Ben nu bezig met de voorbereiding van een complete verbouwing. Het gaat dus nog wel eventjes duren voordat ik hier echt iets kan delen. Als het zover is zal ik dat zeker doen.
Hieronder nog een tekening van de keuken. De gele streep is dus waar de kier/spleet zou komen, door die kastjes dus niet strak tegen het plafond te hangen. De rode streep geeft aan dat in die hoek de buis vanuit zolder uitkomt. De komt dan als het ware achter in dat kastje binnen.
[Afbeelding]
Idd, de ventielen zijn nodig om te voorkomen dat je bijvoorbeeld op het toilet te veel afzuigt tov de keuken/woonkamer. Eigenlijk is een ventiel (mits alles goed ingeregeld) dus helemaal niet nodig op het traject met de meeste drukval. In jouw geval is het risico dat je in de badkamer mogelijk niet genoeg zou afvoeren omdat je keuken teveel afvoert omdat de trajecten even lang zijn en . Maar ik vermoed dat je daar we iets aan kan doen met het afstellen van het ventiel van de badkamer (vol open). Of bij het maken van de kier in de keuken toch iets van speling aan te houden zodat je de afvoer iets kan knijpen (kan heel makkelijk met afdekken van een deel van de spleet. Als het goed is kan je trouwens alle drukval prima berekenen en kom je erachter welke van de bovenstaande opties je kan toepassen._kilian_ schreef op donderdag 13 maart 2025 @ 22:52:
@bensss Weet niet of het het afzuigpunt met het langste traject zal zijn. Denk dat de keuken, badkamer en toilet qua leidinglengte vergelijkbaar gaan zijn.
Is het überhaupt nodig om een ventiel op het einde van een buis te doen, of doe je dit alleen om de luchtstroom te kunnen regelen, wat ik dan dus op zolder ga doen, zodat ik erbij kan. Het ventiel zou zodra de keuken geplaatst is niet meer toegankelijk zijn.
Ze vertelden dat ze vaak graag een sleet van 1 a 2 centimeter aanhouden tussen plafond en de bovenkant van de kastjes, zodat ze hiermee onregelmatigheden in het plafond minder goed zou zien. Als het er bijna overal strak tegenaan zit, valt het wel op als er ergens een kier is van 0,5cm. Terwijl dit minder goed zichtbaar zou zijn als dit onderdeel is van de spleet van 1 a 2 cm. De spleet wordt dus gevormd door de ruimte tussen het plafond en de bovenkant van de kastjes. Daar is volgens mij niet heel veel aan te doen, behalve dus indien nodig het plafond eens schoonmaken of opnieuw verven.
@P5ycho bedankt voor de tip. Ik ga er wel vanuit dat de kastjes gewoon afgewerkt zijn, maar zal hier extra op letten.
@loyske bedankt. Mocht het gat nu al 150 zijn is het de overweging waard om het zo te laten. Dat gaan we dus zien wanneer alles open gaat. Ben nu bezig met de voorbereiding van een complete verbouwing. Het gaat dus nog wel eventjes duren voordat ik hier echt iets kan delen. Als het zover is zal ik dat zeker doen.
Hieronder nog een tekening van de keuken. De gele streep is dus waar de kier/spleet zou komen, door die kastjes dus niet strak tegen het plafond te hangen. De rode streep geeft aan dat in die hoek de buis vanuit zolder uitkomt. De komt dan als het ware achter in dat kastje binnen.
[Afbeelding]
Voor wat betreft de kier. Ik zou dat toch niet doen wat de keukenboer voorstelt. Straks heb je idd een kier die er netjes uitziet de eerste paar weken. Maar dan heb je na een paar maanden een heel vies plafond in die hoek. Dan zou ik eerder gaan voor een nette spleet in die plank. Of een rond gat, of een andere figuurzaag creatie. Je kan ook werken met een blinde spleet. Hoe leg ik dit uit?
Zelfinstallatie Vaillant Arotherm Plus 55/6 | Zehnder Q450 | Variotherm DWTW | Enphase Envoy S + IQ7x Panasonic 7x335WP
Zo kun je ook altijd nog een klep achter de plank verwerken, mocht het nodig zijn
12x 280Wp ZW, 12x 280Wp ZO, Zubadan SHW80YAA 8kW, Zehnder Q450 ERV
Zelfinstallatie Vaillant Arotherm Plus 55/6 | Zehnder Q450 | Variotherm DWTW | Enphase Envoy S + IQ7x Panasonic 7x335WP
Ik sta op het punt om mijn oude WHR91 te vervangen uit 2003. Ik heb wat rondgekeken en kom er toch op uit dat de Orcon HRC300 de beste koop lijkt. Deze verdien ik in nog geen 5 jaar terug. Een DucoBox Energy Premium verdien ik terug in net geen 7 jaar en de Q350 in ruim 8 jaar.
Ik wil graag een vochtsensor en 1 CO2 sensor voor op de slaapkamer.
De Orcon is er met en zonder voorverwarmer. De voorverwarmer kan alleen aan of uit heb ik begrepen uit dit topic en kost dus een hoop stroom. Ik neig daarom om de versie zonder verwarmer te nemen, die is sowieso goedkoper en heb je dus geen hoog stroom verbruik in koude dagen. Mij is alleen onduidelijk hoe het apparaat dan werkt in koude dagen? Schakelijkt hij helemaal uit? Of alleen de toevoer?
Zijn er andere redenen te bedenken om toch voor de Zehnder of Duco te gaan? Of eventueel nog een ander merk?
Nick
Terugverdienen (waarschijnlijk op basis van veel minder elektriciteitsgebruik) is natuurlijk meegenomen maar ik zou vooral zorgen dat je 't comfort en leefklimaat in huis op orde houdt/krijgt of zelfs verbetert. Na +20 jaar zit de economische levensduur er wel op en dan moet je net als voor alle apparatuur er een keer rekening mee houden dat 't vervangen moet worden.nickvdruit schreef op vrijdag 14 maart 2025 @ 10:34:
Hi all,
Ik sta op het punt om mijn oude WHR91 te vervangen uit 2003. Ik heb wat rondgekeken en kom er toch op uit dat de Orcon HRC300 de beste koop lijkt. Deze verdien ik in nog geen 5 jaar terug. Een DucoBox Energy Premium verdien ik terug in net geen 7 jaar en de Q350 in ruim 8 jaar.
Ik wil graag een vochtsensor en 1 CO2 sensor voor op de slaapkamer.
De Orcon is er met en zonder voorverwarmer. De voorverwarmer kan alleen aan of uit heb ik begrepen uit dit topic en kost dus een hoop stroom. Ik neig daarom om de versie zonder verwarmer te nemen, die is sowieso goedkoper en heb je dus geen hoog stroom verbruik in koude dagen. Mij is alleen onduidelijk hoe het apparaat dan werkt in koude dagen? Schakelijkt hij helemaal uit? Of alleen de toevoer?
Zijn er andere redenen te bedenken om toch voor de Zehnder of Duco te gaan? Of eventueel nog een ander merk?
Nick
Panasonic J 7kW WP, boiler & HeishaMon, 6022 Wp PV, Enphase+ST GW, SOLAX SK-SU3000E 13kWh BESS, ITHO Qualityflow WTW, Elvi Smart Charging+ laadpunt, Kia EV6 84kWh EA MY25, gasloos '23
Je hebt dan dus of een slechter binnenklimaat of minder rendement, wat zich vertaalt in hogere stookkosten en hoger benodigd piekvermogen. Dus moet je je toekomstige ook warmtepomp een maatje groter aanschaffen omdat die dat rendementsverlies moet compenseren, wat meer kost dan die voorverwarmer waarschijnlijk.
De Zehnder Q heeft een ingebouwde vochtsensor.
CO2 sensor op de slaapkamer zou ik niet doen. De bezetting is daar elke nacht hetzelfde, dus 1x afstellen en niet meer aanzitten.
CO2 sensor in de woonkamer zou je kunnen gebruiken om overdag naar bezetting te ventileren, en in de avond op vast debiet als je gaat slapen.
12x 280Wp ZW, 12x 280Wp ZO, Zubadan SHW80YAA 8kW, Zehnder Q450 ERV
Dat zou ik even aan Orcon zelf vragen. Er zijn ook toestellen die dan alleen nog gaan afvoeren.nickvdruit schreef op vrijdag 14 maart 2025 @ 10:34:
De Orcon is er met en zonder voorverwarmer. De voorverwarmer kan alleen aan of uit heb ik begrepen uit dit topic en kost dus een hoop stroom. Ik neig daarom om de versie zonder verwarmer te nemen, die is sowieso goedkoper en heb je dus geen hoog stroom verbruik in koude dagen. Mij is alleen onduidelijk hoe het apparaat dan werkt in koude dagen? Schakelijkt hij helemaal uit? Of alleen de toevoer?
Waardoor je dus op de momenten dat je de WTW het hardst nodig hebt en ze het meeste comfort toevoegen er niks aan hebt.... En alsnog voor in de winter tochtroosters in je kozijnen moet maken... Ik moet er niet aan denken. Beter iets goeds kopen.
WP: ME PUHZ-SW75YAA + ERSD-VM2D + EV-WP-TWS-1W 300; AC: ME MXZ-2F42VF + 2x MSZ-LN25VGV; PV: 14.08 kWp O/W + SMA STP 8.0; Vent: Zehnder Q600 ERV + Ubbink AirExcellent.
Ondanks een mooi kantel raam met ventilatiestand zit alles meestal potdicht avonds/s nachts ( want een puber en is koud...)
in de deur van de kamer zit wel een rooster van ca 60x10 cm , dat heb ik er een paar jaar geleden ingezet.
maar dat doet niet veel voor de ventilatie in de kamer.
Ik ga nu een gat in het plafond laten boren voor een aansluiting op de centrale afzuiging (Zehnder ComfoFan) later wil ik evt. een WTW plaatsen met lucht inlaat via het trappenhuis/overloop.
Wat is de beste plek voor de afzuiging? zie tekening. tegen de muur "B" of midden voor het raam "A"?
ik kan niet meer naar het midden van de kamer daar ik dan verkeerd uit kom boven op zolder (A en B zitten onder het knieschot)
:strip_exif()/f/image/fxgguEMUDaLGeq8H7pHsPRRv.jpg?f=fotoalbum_large) 
                    Dank voor je reactie. In de handleiding staat het volgende: ''Om dit te voorkomen zal de HRC op tijd de wisselaar verwarmen met behulp van de warme binnenlucht uit uw woning. Het toestel zal hiervoor tijdelijk de afvoerventilator harder laten draaien dan de toevoerventilator''. Je zal dus in die tijd inderdaad kou van buiten halen i.v.m. de onderdruk in de woning.P5ycho schreef op vrijdag 14 maart 2025 @ 12:32:
@nickvdruit Die voorverwarmer zit er niet voor niets natuurlijk. Als je deze niet neemt wordt warme lucht teruggemengd of de ventilatie teruggeschroefd. Ik weet zo niet welke van de 2 van toepassing is op de Orcon, dat kun je zelf even opzoeken.
Je hebt dan dus of een slechter binnenklimaat of minder rendement, wat zich vertaalt in hogere stookkosten en hoger benodigd piekvermogen. Dus moet je je toekomstige ook warmtepomp een maatje groter aanschaffen omdat die dat rendementsverlies moet compenseren, wat meer kost dan die voorverwarmer waarschijnlijk.
De Zehnder Q heeft een ingebouwde vochtsensor.
CO2 sensor op de slaapkamer zou ik niet doen. De bezetting is daar elke nacht hetzelfde, dus 1x afstellen en niet meer aanzitten.
CO2 sensor in de woonkamer zou je kunnen gebruiken om overdag naar bezetting te ventileren, en in de avond op vast debiet als je gaat slapen.
Dus jij raad aan dan toch de voorverwarmer te nemen?
Bij een WTW systeem is uitgezocht door een onderzoek van TU Eindhoven (zie TS) dat de positie van ventielen binnen een ruimte niet uitmaakt. Verder is dit geen centrale balans ventilatie met WTW vraag, dus misschien past een ander topic beter?Kaaschef schreef op vrijdag 14 maart 2025 @ 23:34:
Hoi, ik ben benieuwd wat de beste plek is voor een nieuw te maken afzuiging in de slaapkamer van mijn zoon.
Ondanks een mooi kantel raam met ventilatiestand zit alles meestal potdicht avonds/s nachts ( want een puber en is koud...)
in de deur van de kamer zit wel een rooster van ca 60x10 cm , dat heb ik er een paar jaar geleden ingezet.
maar dat doet niet veel voor de ventilatie in de kamer.
Ik ga nu een gat in het plafond laten boren voor een aansluiting op de centrale afzuiging (Zehnder ComfoFan) later wil ik evt. een WTW plaatsen met lucht inlaat via het trappenhuis/overloop.
Wat is de beste plek voor de afzuiging? zie tekening. tegen de muur "B" of midden voor het raam "A"?
ik kan niet meer naar het midden van de kamer daar ik dan verkeerd uit kom boven op zolder (A en B zitten onder het knieschot)
[Afbeelding]
Ik begreep dat door het huis heen flexibel een no-go is vanwege flow restricties. Ik heb momenteel alles open liggen en is voor mij het ontwerpen met normale spirobuis bijna makkelijk dan verdeelboxen, dus dat wil ik gaan doen.
Er gaat 2x 160 spiro naar de zolder, vanaf daar kan ik alle slaapkamers toevoer geven. Deze spiro wordt onderweg afgetakt naar de woonkamer om ook 2 ventielen in te laten blazen. Dan loop er een kanaal ter afzuiging paralel naar de zolder welke vanaf daar direct de badkamer en toilet ernaast af kan zuigen. Daarna loopt deze over de zolder heen richting de keuken door de kast.
Moet ik perse het diamater van de buizen laten afnemen? Ik heb namelijk de ruimte om dit op 160 te laten zijn tot de ventielen, het enige nadeel is misschien overspraak indien ik niet genoeg dempers plaats?
Polestar 2 | SMSR | 19" | Pilot | Magnesium
Slecht idee. Die systemen (Itho Quality flow bijvoorbeeld) zijn niet voor niets nagenoeg uit de markt verdwenen. Omdat ze geen gebruik maken van overstroom heb je veel meer debiet nodig, een onnodig hoog ventilatieverlies, vaak te weinig ventilatie op de slaapkamers (die moet je overdag ook ventileren) etc.Kaaschef schreef op vrijdag 14 maart 2025 @ 23:34:
Hoi, ik ben benieuwd wat de beste plek is voor een nieuw te maken afzuiging in de slaapkamer van mijn zoon.
Ondanks een mooi kantel raam met ventilatiestand zit alles meestal potdicht avonds/s nachts ( want een puber en is koud...)
in de deur van de kamer zit wel een rooster van ca 60x10 cm , dat heb ik er een paar jaar geleden ingezet.
maar dat doet niet veel voor de ventilatie in de kamer.
Ik ga nu een gat in het plafond laten boren voor een aansluiting op de centrale afzuiging (Zehnder ComfoFan) later wil ik evt. een WTW plaatsen met lucht inlaat via het trappenhuis/overloop.
Gewoon gebruik maken van de standaard, dus inblazen op de slaapkamers en nog wat in de woonkamer en dan afzuigen in badkamer / wc / (bij)keuken is echt verreweg het beste idee.
Over de plek van ventilatieroosters is in dit topic al veel geschreven. Ik zou ze altijd zo ver mogelijk van de deur plaatsen, zodat de ruimte mooi doorstroomd wordt, maar er zijn ook studies die aantonen dat het niet veel uitmaakt (zolang de ruimte niet te groot is).
WP: ME PUHZ-SW75YAA + ERSD-VM2D + EV-WP-TWS-1W 300; AC: ME MXZ-2F42VF + 2x MSZ-LN25VGV; PV: 14.08 kWp O/W + SMA STP 8.0; Vent: Zehnder Q600 ERV + Ubbink AirExcellent.
Het grootste nadeel van een systeem als quality flow is de afwezigheid van overstroom, verder zitten er m.i. veel voordelen aan, zeker in een renovatieproject waarbij je met flexibele buizen kan werken en die dan ook nog eens alleen voor afvoer worden gebruikt. Minimale afvoer per ruimte instellen en de rest laten bepalen op basis van CO₂ niveau (en RH voor badkamer(s)) werkt prima en zuinig; er wordt niet meer afgezogen dan noodzakelijk.Andrehj schreef op zaterdag 15 maart 2025 @ 09:47:
[...]
Slecht idee. Die systemen (Itho Quality flow bijvoorbeeld) zijn niet voor niets nagenoeg uit de markt verdwenen. Omdat ze geen gebruik maken van overstroom heb je veel meer debiet nodig, een onnodig hoog ventilatieverlies, vaak te weinig ventilatie op de slaapkamers (die moet je overdag ook ventileren) etc.
Gewoon gebruik maken van de standaard, dus inblazen op de slaapkamers en nog wat in de woonkamer en dan afzuigen in badkamer / wc / (bij)keuken is echt verreweg het beste idee.
Over de plek van ventilatieroosters is in dit topic al veel geschreven. Ik zou ze altijd zo ver mogelijk van de deur plaatsen, zodat de ruimte mooi doorstroomd wordt, maar er zijn ook studies die aantonen dat het niet veel uitmaakt (zolang de ruimte niet te groot is).
Panasonic J 7kW WP, boiler & HeishaMon, 6022 Wp PV, Enphase+ST GW, SOLAX SK-SU3000E 13kWh BESS, ITHO Qualityflow WTW, Elvi Smart Charging+ laadpunt, Kia EV6 84kWh EA MY25, gasloos '23
Dit.blb4 schreef op zaterdag 15 maart 2025 @ 12:42:
[...]
Het grootste nadeel van een systeem als quality flow is de afwezigheid van overstroom, verder zitten er m.i. veel voordelen aan, zeker in een renovatieproject waarbij je met flexibele buizen kan werken en die dan ook nog eens alleen voor afvoer worden gebruikt. Minimale afvoer per ruimte instellen en de rest laten bepalen op basis van CO₂ niveau (en RH voor badkamer(s)) werkt prima en zuinig; er wordt niet meer afgezogen dan noodzakelijk.
Plus... Als de unit op zolder staat is het natuurlijk een koud kunstje om (deels) op de zolderkamers in te blazen en op die manier ook nog eens te profiteren van overstroom.
Grootste manco is de kwetsbaarheid van sensoren, kleppen, regeltechniek. Daarbovenop komt de de beruchte Itho 'service'.
Gevalletje goed idee (ik ben er nog steeds wel van gecharmeerd), jammer van de uitvoering.
Bosch 5800i 10, vloerverwarming & fancoils, Zehnder Q600
Dat inblazen op zolder moet ik idd nog eens verder uitzoeken, bij mij nu alles via plafond overloop. Bij mij draait het nu 6 jaar zonder problemen, d’r zit idd wel een hoop in wat mis zou kunnen gaan.ZonnigY schreef op zaterdag 15 maart 2025 @ 13:44:
[...]
Dit.
Plus... Als de unit op zolder staat is het natuurlijk een koud kunstje om (deels) op de zolderkamers in te blazen en op die manier ook nog eens te profiteren van overstroom.
Grootste manco is de kwetsbaarheid van sensoren, kleppen, regeltechniek. Daarbovenop komt de de beruchte Itho 'service'.
Gevalletje goed idee (ik ben er nog steeds wel van gecharmeerd), jammer van de uitvoering.
Panasonic J 7kW WP, boiler & HeishaMon, 6022 Wp PV, Enphase+ST GW, SOLAX SK-SU3000E 13kWh BESS, ITHO Qualityflow WTW, Elvi Smart Charging+ laadpunt, Kia EV6 84kWh EA MY25, gasloos '23
Maar je moet toch al buizen aanleggen naar de slaapkamers. Waarom zou je daar dan afzuigen ipv het veel logischer inblazen? Dan gebruik je de lucht twee keer en bovendien wordt dan overdag je slaapkamer veel beter geventileerd.blb4 schreef op zaterdag 15 maart 2025 @ 12:42:
Het grootste nadeel van een systeem als quality flow is de afwezigheid van overstroom, verder zitten er m.i. veel voordelen aan, zeker in een renovatieproject waarbij je met flexibele buizen kan werken en die dan ook nog eens alleen voor afvoer worden gebruikt. Minimale afvoer per ruimte instellen en de rest laten bepalen op basis van CO₂ niveau (en RH voor badkamer(s)) werkt prima en zuinig; er wordt niet meer afgezogen dan noodzakelijk.
WP: ME PUHZ-SW75YAA + ERSD-VM2D + EV-WP-TWS-1W 300; AC: ME MXZ-2F42VF + 2x MSZ-LN25VGV; PV: 14.08 kWp O/W + SMA STP 8.0; Vent: Zehnder Q600 ERV + Ubbink AirExcellent.
Ik heb het schema aangepast aan jouw opzet:Puntenwolk schreef op maandag 10 maart 2025 @ 22:01:
[...]
Dat was bewust. Let op dat die 30 en ook 36 m3/h uitgaan van een slapende volwassene. Een actieve volwassene stoot veel meer CO2 uit dan een slapende. Als je hobby enigszins fysiek inspannend is - zelfs al is het printplaatjes solderen - zou ik voor meer kiezen dan 30.
Het klopt dat je benedenverdieping zo niet aan het bouwbesluit voldoet. Het is wel een goed ventilatiesysteem!
/f/image/RAR3MbwwhM3JmaurxczFSAlI.png?f=fotoalbum_large)
Ik zit nog wel te dubben met de plaatsing van de afzuigventielen in de woonkamer/serre/keuken. Gevoelsmatig zou er in de serre ook een (afvoer)ventiel moeten zitten (het is een uithoek van de benedenverdieping en is ook nog eens af te sluiten met schuifdeuren van de rest). Onderzoek zou echter uitwijzen dat de positie van de ventielen in een ruimte niet zo veel uitmaken voor de luchtkwaliteit. De serre is met buizen/slangen lastig bereikbaar, omdat er in het verlaagde plafond een stalen balk loopt waar ik niet doorheen kan. Voor een ventiel in de serre zal ik dus een stukje onder het plafond door moeten (dat kan later echter wel weggewerkt worden in een vaste kast of stukje koof). Wat is slim? Wel een ventiel daar of is het echt overbodig?
Hetzelfde geldt een beetje voor de zithoek, maar zoal Puntenwolk eerder al voorstelde zou ik daar ook met een muurdoorvoer kunnen werken om de lucht het hoekje om te krijgen.
Dit schema is dus bedacht in de normaalstand.
Wat zou ik aan moeten houden voor de maximale capaciteit van de WTW-unit? Op basis van de oppervlakte van de woonkamer etc. (ca. 65 m2) zou ik die volgens bouwbesluit met minimaal 210 m3/h moeten kunnen ventileren. Dat is 1,5 keer de hoeveelheid die nu voor de normaalstand bepaald is. Zou dan de totale capaciteit van de WTW-unit 240 x 1,5 = 360 m3/h moeten zijn?
Ik zat zelf te denken aan een Zehnder Q WTW met enthalpiewisselaar. De Q350 zou dan net wat te krap zijn, de Q450 lijkt zeker in de normaalstand ruim voldoende. Is er nog meerwaarde om eventueel nog een stap hoger te gaan en voor de Q600 te gaan (misschien nog stiller omdat hij ontworpen is voor hogere debieten, misschien hoger rendement?)
En nog een vraagje over de plaatsing van ventielen bij muren en plafonds:
Ik lees steeds dat ventielen zoveel centimeter van de muur of het plafond moeten zitten. Op sommige plekken ontkom ik er niet aan ze dichter bij plafond of muur te plaatsen. Wat is hier het nadeel van omdat ze anders adviseren?
[ Voor 3% gewijzigd door marcgk op 17-03-2025 11:40 . Reden: Fout in afbeelding ]
Ok, . ik heb echt wat gemist blijkbaar. het hele principe is dus eigenlijk omgedraaid mbt aan/afvoeren van lucht. Nu kan ik dat allemaal prima aanpassen. dus ga ik zeker mee aan de slag.Andrehj schreef op zaterdag 15 maart 2025 @ 09:47:
[...]
Slecht idee. Die systemen (Itho Quality flow bijvoorbeeld) zijn niet voor niets nagenoeg uit de markt verdwenen. Omdat ze geen gebruik maken van overstroom heb je veel meer debiet nodig, een onnodig hoog ventilatieverlies, vaak te weinig ventilatie op de slaapkamers (die moet je overdag ook ventileren) etc.
Gewoon gebruik maken van de standaard, dus inblazen op de slaapkamers en nog wat in de woonkamer en dan afzuigen in badkamer / wc / (bij)keuken is echt verreweg het beste idee.
12x 280Wp ZW, 12x 280Wp ZO, Zubadan SHW80YAA 8kW, Zehnder Q450 ERV
Los van de berekening.marcgk schreef op zondag 16 maart 2025 @ 15:05:
[...]
Ik heb het schema aangepast aan jouw opzet:
[Afbeelding]
Ik zit nog wel te dubben met de plaatsing van de afzuigventielen in de woonkamer/serre/keuken. Gevoelsmatig zou er in de serre ook een (afvoer)ventiel moeten zitten (het is een uithoek van de benedenverdieping en is ook nog eens af te sluiten met schuifdeuren van de rest). Onderzoek zou echter uitwijzen dat de positie van de ventielen in een ruimte niet zo veel uitmaken voor de luchtkwaliteit. De serre is met buizen/slangen lastig bereikbaar, omdat er in het verlaagde plafond een stalen balk loopt waar ik niet doorheen kan. Voor een ventiel in de serre zal ik dus een stukje onder het plafond door moeten (dat kan later echter wel weggewerkt worden in een vaste kast of stukje koof). Wat is slim? Wel een ventiel daar of is het echt overbodig?
Hetzelfde geldt een beetje voor de zithoek, maar zoal Puntenwolk eerder al voorstelde zou ik daar ook met een muurdoorvoer kunnen werken om de lucht het hoekje om te krijgen.
Dit schema is dus bedacht in de normaalstand.
Wat zou ik aan moeten houden voor de maximale capaciteit van de WTW-unit? Op basis van de oppervlakte van de woonkamer etc. (ca. 65 m2) zou ik die volgens bouwbesluit met minimaal 210 m3/h moeten kunnen ventileren. Dat is 1,5 keer de hoeveelheid die nu voor de normaalstand bepaald is. Zou dan de totale capaciteit van de WTW-unit 240 x 1,5 = 360 m3/h moeten zijn?
Ik zat zelf te denken aan een Zehnder Q WTW met enthalpiewisselaar. De Q350 zou dan net wat te krap zijn, de Q450 lijkt zeker in de normaalstand ruim voldoende. Is er nog meerwaarde om eventueel nog een stap hoger te gaan en voor de Q600 te gaan (misschien nog stiller omdat hij ontworpen is voor hogere debieten, misschien hoger rendement?)
En nog een vraagje over de plaatsing van ventielen bij muren en plafonds:
Ik lees steeds dat ventielen zoveel centimeter van de muur of het plafond moeten zitten. Op sommige plekken ontkom ik er niet aan ze dichter bij plafond of muur te plaatsen. Wat is hier het nadeel van omdat ze anders adviseren?
De 600 is een prima apparaat.
Als je de LAN kastje mee besteld,, kun je hem helemaal inregelen zoals je zelf wenst.
Mocht je een kabel van boven naar beneden hebben naar je thermostaat dan kun je zelfs kiezen voor de 0-10V regeling. Geheel traploos.
Verder zou ik zorgen dat je in de keuken en woonkamer voldoen afzuiging hebt. Je leeft daar het meest, dus CO2 gaat daar het makkelijkst omhoog.
Dat merk je al als je met drie mensen benenden bent
[ Voor 3% gewijzigd door koningen op 17-03-2025 08:07 ]
Zorg wel dat de flexibele buis thermisch geïsoleerd is in verband met condens.Terrie schreef op zaterdag 15 maart 2025 @ 08:59:
Ik ben bezig met de berekening van het buizenstelsel in mijn woning. Nu vroeg ik me af; mag de aanzuiging van koude lucht richting de WTW wel met FLexibele buis gedaan worden? zoals; https://www.123installati...alen/flexibel-luchtkanaal
Ik begreep dat door het huis heen flexibel een no-go is vanwege flow restricties. Ik heb momenteel alles open liggen en is voor mij het ontwerpen met normale spirobuis bijna makkelijk dan verdeelboxen, dus dat wil ik gaan doen.
Er gaat 2x 160 spiro naar de zolder, vanaf daar kan ik alle slaapkamers toevoer geven. Deze spiro wordt onderweg afgetakt naar de woonkamer om ook 2 ventielen in te laten blazen. Dan loop er een kanaal ter afzuiging paralel naar de zolder welke vanaf daar direct de badkamer en toilet ernaast af kan zuigen. Daarna loopt deze over de zolder heen richting de keuken door de kast.
Moet ik perse het diamater van de buizen laten afnemen? Ik heb namelijk de ruimte om dit op 160 te laten zijn tot de ventielen, het enige nadeel is misschien overspraak indien ik niet genoeg dempers plaats?
Qua diameter is het nadeel inderdaad overspraak, maar een voordeel is de lage luchtsnelheid.
Thanks!Sefa schreef op maandag 17 maart 2025 @ 10:54:
[...]
Zorg wel dat de flexibele buis thermisch geïsoleerd is in verband met condens.
Qua diameter is het nadeel inderdaad overspraak, maar een voordeel is de lage luchtsnelheid.
Het wordt gewoon Ubbink Aerofoam voor aan en afvoer. Nu zit ik alleen met de plek.
:strip_exif()/f/image/07pFX340ZNsLP0MduK16cPum.jpg?f=fotoalbum_large)
Kan ik zo dicht bijelkaar aan en afvoeren? Zo niet dat moet ik wellicht met de aanvoer buis naar de voorkant van de garage, maar is misschien voor de WTW minder efficient.
Wellicht dat ik de aanzuiger door de muur en dan boven het dak kan laten uitkomen. Direct door het garagedak zie ik niet zo zitten omdat ik dan weer een dakdekker moet laten komen. (of zelf dichtbranden, maar daar heb ik ook niet perse zin in en meer kans op lekkages).
[ Voor 7% gewijzigd door Terrie op 17-03-2025 11:27 ]
Polestar 2 | SMSR | 19" | Pilot | Magnesium
Er moet een minimale afstand tussen de aan en afvoer zitten. afstand dacht 1,5 meter hoogte verschil of zoveel meter horizontaalTerrie schreef op maandag 17 maart 2025 @ 11:26:
[...]
Thanks!
Het wordt gewoon Ubbink Aerofoam voor aan en afvoer. Nu zit ik alleen met de plek.
[Afbeelding]
Kan ik zo dicht bijelkaar aan en afvoeren? Zo niet dat moet ik wellicht met de aanvoer buis naar de voorkant van de garage, maar is misschien voor de WTW minder efficient.
Wellicht dat ik de aanzuiger door de muur en dan boven het dak kan laten uitkomen. Direct door het garagedak zie ik niet zo zitten omdat ik dan weer een dakdekker moet laten komen. (of zelf dichtbranden, maar daar heb ik ook niet perse zin in en meer kans op lekkages).
OOK moet de afvoer (meen 3 meter) van een open kunnende raam zitten.! ( let op dit is wel belangrijk met velux ramen b.v.)
Bij zadeldak is beide op verschillende dakvlakken kortere lengtes mogelijk.
[ Voor 5% gewijzigd door koningen op 17-03-2025 12:18 ]
12x 280Wp ZW, 12x 280Wp ZO, Zubadan SHW80YAA 8kW, Zehnder Q450 ERV
Thanks. Toevoer via de gevel en afvoer via het platte dak lijkt het meest optimaal volgens de berekeningtool.
Het liefst zou ik aan de voorkant van de schuur aanzuigen, maar dat zijn waarschijnlijk dingen die qua luchtstroom bijna niks uitmaken.
Aangezien mijn hele huis open ligt is het makkelijker om met Spiro 160 naar boven te gaan. Kan ik dan het beste vertakken richting de ventielen met een Y naar 125? https://www.ventilatiesho...htingsrubber-160mm-160mm/ en dan een https://www.ventilatiesho...-125mm-afdichtingsrubber/ en dan de juiste bocht om tot een plek te komen waar het ventiel komt?
Op zolder wil ik eigenlijk ook spiro 160 plaatsen en dan aftakken richting de slaapkamers met 125 en dan 2 ventielen na elkaar. Ik zie volgens de berekeningen dat ook een mogelijkheid is om 160 te laten doorlopen en gewoon 1 groot 160 ventiel te plaatsen, maar als ik het goed meen is dit qua overspraak geen strak plan.
Kan ik op de spiro buis ook gewoon een T stuk plaatsen waar dan het ventiel direct naar beneden komt? (dit is dan het einde van de buis) https://www.ventilatiesho...htingsrubber-160mm-125mm/
Polestar 2 | SMSR | 19" | Pilot | Magnesium
125 mm naar en van ventielen is prima.Terrie schreef op maandag 17 maart 2025 @ 15:43:
[...]
Thanks. Toevoer via de gevel en afvoer via het platte dak lijkt het meest optimaal volgens de berekeningtool.
Het liefst zou ik aan de voorkant van de schuur aanzuigen, maar dat zijn waarschijnlijk dingen die qua luchtstroom bijna niks uitmaken.
Aangezien mijn hele huis open ligt is het makkelijker om met Spiro 160 naar boven te gaan. Kan ik dan het beste vertakken richting de ventielen met een Y naar 125? https://www.ventilatiesho...htingsrubber-160mm-160mm/ en dan een https://www.ventilatiesho...-125mm-afdichtingsrubber/ en dan de juiste bocht om tot een plek te komen waar het ventiel komt?
Op zolder wil ik eigenlijk ook spiro 160 plaatsen en dan aftakken richting de slaapkamers met 125 en dan 2 ventielen na elkaar. Ik zie volgens de berekeningen dat ook een mogelijkheid is om 160 te laten doorlopen en gewoon 1 groot 160 ventiel te plaatsen, maar als ik het goed meen is dit qua overspraak geen strak plan.
Kan ik op de spiro buis ook gewoon een T stuk plaatsen waar dan het ventiel direct naar beneden komt? (dit is dan het einde van de buis) https://www.ventilatiesho...htingsrubber-160mm-125mm/
Zodra ze samen komen zul je moeten vergroten.
Ik zelf heb gekozen voor alles 180 mm tussen plenums en zendher, vanaf zendher naar buiten rond 200 mm
Dus mogelijk is de 160 net even te kort.
Afhankelijk van hoeveel je gaat blazen./zuigen
Zelf ben ik ook bezig met het aanleggen van een WTW en heb ik mij verdiept in de posities van de aanvoer en afvoer van de buitenlucht.
Echter betekent dit dat in mijn geval de afvoer van de wtw unit naar buiten ongeveer 3 meter is maar en aanvoer van buitenlucht naar de unit heeft een leidinglengte van 8 meter.
Weet iemand of deze lengte van 8 meter aanvoer buitenlucht nadelig is voor de werking? Er zullen ongeveer 4 bochten in zitten.
alvast bedankt.
Met een ducobox D325, totale berekening zit op 325 met 100% belasting. Dit is echt overkill voor wat ik in mijn situatie ga gebruiken (ben alleen, maar het huis heeft gewoon meer capaciteit nodig mocht dit later anders worden bewoond.koningen schreef op maandag 17 maart 2025 @ 16:16:
[...]
125 mm naar en van ventielen is prima.
Zodra ze samen komen zul je moeten vergroten.
Ik zelf heb gekozen voor alles 180 mm tussen plenums en zendher, vanaf zendher naar buiten rond 200 mm
Dus mogelijk is de 160 net even te kort.
Afhankelijk van hoeveel je gaat blazen./zuigen
Daarom ga ik dus met spiro 160 vanaf de ventilatieunit naar boven, want de aansluiting op de box is ook 160.
Polestar 2 | SMSR | 19" | Pilot | Magnesium
Voor 350 is 160 voldoende.Terrie schreef op maandag 17 maart 2025 @ 16:22:
[...]
Met een ducobox D325, totale berekening zit op 325 met 100% belasting. Dit is echt overkill voor wat ik in mijn situatie ga gebruiken (ben alleen, maar het huis heeft gewoon meer capaciteit nodig mocht dit later anders worden bewoond.
Daarom ga ik dus met spiro 160 vanaf de ventilatieunit naar boven, want de aansluiting op de box is ook 160.
Hier heb ik een 600
Dat ligt aan de drukval over deze buizen, en de marge die je in de rest van je systeem hebt. Dit kun je opzoeken in de datasheet van de te gebruiken buizen. Als de drukval tegenvalt, dan kun je de buizen overdimensioneren. Het type bocht maakt natuurlijk ook veel uit. Ook daar even kijken naar de datasheet.Dutcharjan schreef op maandag 17 maart 2025 @ 16:16:
Goedemiddag kenners,
Zelf ben ik ook bezig met het aanleggen van een WTW en heb ik mij verdiept in de posities van de aanvoer en afvoer van de buitenlucht.
Echter betekent dit dat in mijn geval de afvoer van de wtw unit naar buiten ongeveer 3 meter is maar en aanvoer van buitenlucht naar de unit heeft een leidinglengte van 8 meter.
Weet iemand of deze lengte van 8 meter aanvoer buitenlucht nadelig is voor de werking? Er zullen ongeveer 4 bochten in zitten.
alvast bedankt.
Los van het berekenen zou ik zeggen dat 8 meter en 4 bochten reden is om er voldoende aandacht aan te besteden. Ook isolatie is belangrijk voor het rendement met zoveel lengte.
12x 280Wp ZW, 12x 280Wp ZO, Zubadan SHW80YAA 8kW, Zehnder Q450 ERV
Ik heb inmiddels de unit in huis (Brink renovent 180). En sta wilde hem op de vliering installeren door hem daar aan de muur te hangen. Nu vertelde iemand mij echter dat die muur waarschijnlijk niet stevig genoeg zou zijn en dat het qua geluidsisolatie ook beter was om een plank tegen de muur aan de schroeven en de unit daar op te bevestigen. Tussen de plank en muur dan rubbers rond de schroeven plaatsen en de ruimte opvullen met steenwol. Ik vrees toch dat je dan vooral een klankkast creëert. Wat denken jullie hierover?
12x 280Wp ZW, 12x 280Wp ZO, Zubadan SHW80YAA 8kW, Zehnder Q450 ERV
Als het kan is het slim om de handleiding precies volgen, maar soms is een alternatief ook gewoon goed.
Zelfinstallatie Vaillant Arotherm Plus 55/6 | Zehnder Q450 | Variotherm DWTW | Enphase Envoy S + IQ7x Panasonic 7x335WP
[ Voor 12% gewijzigd door P5ycho op 18-03-2025 14:32 ]
12x 280Wp ZW, 12x 280Wp ZO, Zubadan SHW80YAA 8kW, Zehnder Q450 ERV
Zelfinstallatie Vaillant Arotherm Plus 55/6 | Zehnder Q450 | Variotherm DWTW | Enphase Envoy S + IQ7x Panasonic 7x335WP
Dat denk ik ookVerstapel schreef op dinsdag 18 maart 2025 @ 14:09:
Ha allen,
Ik heb inmiddels de unit in huis (Brink renovent 180). En sta wilde hem op de vliering installeren door hem daar aan de muur te hangen. Nu vertelde iemand mij echter dat die muur waarschijnlijk niet stevig genoeg zou zijn en dat het qua geluidsisolatie ook beter was om een plank tegen de muur aan de schroeven en de unit daar op te bevestigen. Tussen de plank en muur dan rubbers rond de schroeven plaatsen en de ruimte opvullen met steenwol. Ik vrees toch dat je dan vooral een klankkast creëert. Wat denken jullie hierover?
Op op vaste grond, of een vaste wand.
Vaak staat dat wel in de beschrijving dat de achter/ondergrond min 200 kg massa per m2 moet hebben.
(of iets dergelijks) om resonantie te voorkomen.
Ik had 6 cm gipsblokken en heb daar wel 2 hele dikke houten balken op de muur geschroefd (ter hoogte alleen van de ophang strip bij de Q350) omdat mijn unit een paar cm van de muur moest komen, maar zeker geen flauwekul doen met rubbers of isolatie dat is echt nergens voor nodig. Fotos staan eerder in het topic.
[ Voor 12% gewijzigd door Lollercopter op 18-03-2025 20:11 ]
Bestaande woning, 1930.
Voor de 2e en 1 verdieping zie ik al mogelijkheden om buizen voor toevoer te plaatsen, door deze op de bovenliggende verdieping te plaatsen:
Vanaf de zolder, door de vloer, en zo in het plafond van de 2e verdieping.
Vanaf de 2e verdieping, achter de kopschotten door de vloer, tot in de plafonds op de 1e verdieping.
Op de begane grond wordt het lastiger. Op de 1e verdieping verstop ik niet zomaar de buizen, en boor ik niet zomaar door de (houten)vloer naar beneden.
Maar: De volledige beganegrond vloer gaat er mogelijk wel helemaal uit. Is het een idee om de invoer voor de WTW Balansventilatie niet via plafond of muren te laten lopen,.. maar via de vloer?
Ik heb eens een jaren 80 woning gezien met luchtverwarming (Brink), waarbij het gehele huis verwarmd werd via luchtcirculatie: Ventielen in de plafonds op de verdiepingsvloer, en op de begane grond roosters in de vloer.
De huidige houten vloer en radiatoren gaan eruit, en er komt een geisoleerde betonvloer met vloerverwarming in. Ik zou hier spiraliet buizen in kunnen laten storten (al dan niet geisoleerd??) met de woonkamer via 1 of 2 vloerroosters kunnen beluchten..
(Als ik deze buizen naar de kelder kan laten lopen, kan ik via de kelder weer naar een schacht toe werken die naar de zolder loopt, waar ik bijvoorbeeld en Zehnder unit kan plaatsen)
Iemand ervaring mee/tips of juist negatieve adviezen? Ik zit te denken aan een Zehnder systeem met ComfoFond mogelijkheid: We willen een grondboring voor een W/W Warmtepomp, dus eventueel is koeling met deze glycolbron-loop mogelijk, maar koude lucht die via de vloer wordt toegevoerd; levert dat geen problemen op?
To change something insignificant to significant - adding love and compassion - Tweaker
Een huis uit 1930 heeft meestal schoorstenen (gehad), is er via die weg geen route te maken? Heb ik in mijn huis uit 1950 ook gedaan. Wel wat gedoe en wat consessies, maar werkt prima. Daarbij niet vergeten om de bovenzijde van de schoorsteen binnenin dicht te maken. (Zie anders mijn bijdragen over mijn huis en ventilatie)
Zie Jannibal23 in "Het centrale balansventilatie met warmteterugwinning topic" voor een voorbeeld voor de aanvoer door de vloer. Heb het in onze uitbouw met platte Ubbink AE buizen gedaan, binnen de geïsoleerde schil. Ben nog bezig met de afbouw, maar volgens onze theorie zou het goed moeten gaan werken.JayPe schreef op woensdag 19 maart 2025 @ 22:08:
[...]
Maar: De volledige beganegrond vloer gaat er mogelijk wel helemaal uit. Is het een idee om de invoer voor de WTW Balansventilatie niet via plafond of muren te laten lopen,.. maar via de vloer?
Ik heb eens een jaren 80 woning gezien met luchtverwarming (Brink), waarbij het gehele huis verwarmd werd via luchtcirculatie: Ventielen in de plafonds op de verdiepingsvloer, en op de begane grond roosters in de vloer.
[...]
Iemand ervaring mee/tips of juist negatieve adviezen? Ik zit te denken aan een Zehnder systeem met ComfoFond mogelijkheid: We willen een grondboring voor een W/W Warmtepomp, dus eventueel is koeling met deze glycolbron-loop mogelijk, maar koude lucht die via de vloer wordt toegevoerd; levert dat geen problemen op?
[ Voor 22% gewijzigd door Jannibal23 op 20-03-2025 10:46 ]
De keuken is achteraan het huis aangebouwd: Er is alleen een gat door het platte dak voor de afzuigkap, en roosters boven twee ramen. Door het plafond naar het huis is (waarschijnlijk) geen optie, want er zijn al consesies gedaan in bouwhoogte van de aanbouw, versus een draagbalk om het verlies van de oude gevel op te vangen.Puntenwolk schreef op woensdag 19 maart 2025 @ 22:44:
In theorie lijkt me daar niets mee mis. Waarom kan je eigenlijk niet door de houten verdiepingsvloer heen boren? Maar dit is een situatie waar we toch graag een kaartje en berekening bekijken voor je allemaal kanalen instort in beton. Misschien heb je niet eens aanvoer nodig op de begane grond en kan je alles met overstroom doen. Je hebt wel een afvoerkanaal nodig in de keuken.
Vandaar dat ik, omdat de vloer er waarschijnlijk toch in zijn geheel uitgaat, aan verversing via de vloer zat te denken. De badkamer en keuken genereren nog de meeste warmte (en vocht), Zo'n warmte wisselaar moet wel ergens warmte vandaan halen. Ik dacht (voor ik dit topic las) dat je afzuigt en inblaast in dezelfde ruimte. maar inblazen doe je in de verblijfsruimtes zoals slaap en woonkamers, afzuigen in gebruiksruimten zoals keuken en badkamer
Jep. Zit vol met (in onbruik geraakte) kanalen, die er allemaal uit gaan. Eén kanaal kan misschien wel hergebruikt, vermits dit geen grove gemetseld kanaal blijft, maar een koof wordt rondom alle leidingen. De schoorstenen op het dak wilde ik zelfs gaan gebruiken voor de afvoer ( de mandelige schoorsteen met de buren ) en aanvoer (de schoorsteen op de gevel die het verst van de buren staat). Ik wil liefst géén pijpjes door het pannendak overhouden. Dus CV inlaat combinatie => Weg. Afzuiging van badkamer => Weg. -> Naar de WTW En dan is er nog een onbekende: mogelijk de ontlasting van het riool? Aangesloten op een ontluchting?Acadiane schreef op donderdag 20 maart 2025 @ 10:37:
In of onder de vloer kan denk ik wel, ik voorzie wel een condensatierisico waar je goed over na moet denken. De buizen zullen sowieso in de geisoleerde schil moeten liggen of zelf heel goed geisoleerd moeten zijn om condensatie te voorkomen.
Een huis uit 1930 heeft meestal schoorstenen (gehad), is er via die weg geen route te maken? Heb ik in mijn huis uit 1950 ook gedaan. Wel wat gedoe en wat consessies, maar werkt prima. Daarbij niet vergeten om de bovenzijde van de schoorsteen binnenin dicht te maken. (Zie anders mijn bijdragen over mijn huis en ventilatie)
Benieuwd! Ik ga zo kijken.Jannibal23 schreef op donderdag 20 maart 2025 @ 10:44:
[...]
Zie Jannibal23 in "Het centrale balansventilatie met warmteterugwinning topic" voor een voorbeeld voor de aanvoer door de vloer. Heb het in onze uitbouw met platte Ubbink AE buizen gedaan, binnen de geïsoleerde schil. Ben nog bezig met de afbouw, maar volgens onze theorie zou het goed moeten gaan werken.
To change something insignificant to significant - adding love and compassion - Tweaker
Doordat ik eerder met de CV tuning ben bezig geweest, met enig succes overigens, kwam ik ook langs de ventilatie topics ivm verder comfort, met name geluid/tocht/luchtvochtigheid e.d. (echt kurkdroog hier vooral in de winter)
Na metingen met een anemometer (PM6252A), kom ik tot conclusie dat met name de benodigde afvoer capaciteit (obv bouwbesluit) alleen gehaald wordt vanaf ongeveer 70% van de wtw, met de daarbij horende flinke luchtstromen en herrie, en daarbij kom ik dan ook nog 32m^3/h afvoer tekort. (en zou het dus nóg harder ergens moeten)
Qua benodigde capaciteit afgaande op ongeveer 30m^3/h per persoon, zou dat een stuk lager kunnen.
Ik ben alleenstaand dus laat we zeggen max 2 personen in normale situatie is ruim voldoende, ik heb nauwelijks bezoek.
Maar als ik daarvan uitga met toevoer en dat in balans wil brengen kom ik in de badkamer veel te laag uit, dat ligt volgens mij ook vooral aan dat de (open)keuken afvoer héél kort op de wtw zit. die kan ik niet los regelen dus als ik die lager wil dan gaan de badkamer en wc mee, óf ik moet juist de keukenventielen gaan smoren met weer herrie tot gevolg.
Qua CO2 zit ik onder de 800ppm in zowel woon/slaapkamer, wel merk ik dat op de slaapkamer het in de vroege ochtend soms net over de 800 ga, ondanks dat ik daar maar alleen slaap. (Metingen met Netatmo Weaterstation base + additioneel binnenunit)
Het gaat hier om een (sociale) huurappartement ik kan dus niets aan de installatie wijzigen en alleen met de ventielen en wtw instellingen afregelen. (wellicht andere ventielen zou ik nog wel bereid zijn zelf te regelen)
Wat is jullie advies welke kant de boel op te regelen?
NB. Ik wil graag voorkomen lucht uit de gang de woonkamer in te trekken want "koud"
- WTW: Optifor OT-V max 275m^3/h, 3 Standen met aan/afvoer individueel op percentage in te regelen.
- Plattegrond met ingetekend de stromen volgens bouwbesluit; blauw in, rood uit, groen overstroom.
NB ingetekende ventielen niet op schaal ;-)
- Tabbeletje met huidige instellingen en metingen.
- Ventielen (JE Stork model) staan max open, behalve die in de keuken en wc.
- Gaten: Woon/Slaapkamer 125mm, badkamer/wc 110mm
Plattegrond met stromen volgens bouwbesluit:
/f/image/sFqBlfHn6WfgtyeNp76aMBaE.png?f=fotoalbum_large)
Huidige instellingen + metingen.
/f/image/m7IV4Q2UoUzcjyDMOm3CfwlE.png?f=fotoalbum_large) 
                    12x 280Wp ZW, 12x 280Wp ZO, Zubadan SHW80YAA 8kW, Zehnder Q450 ERV
Als je gaat inregelen:
- De 25-30 m3/h/pp wordt over het algemeen aangehouden bij normaalstand. Inregelen doe je op maximaal, dus in de 100% herrie. Dan zou het circa 40-45m3/h/pp moeten zijn.
- Ik zou geen overstroom van de woonkamer naar de hal willen.
Ik zou inregelen op twee personen: 90 m3/h inblazen in de slaapkamer en dan nog 75 (90 - 15, overstroom vanuit de hal) in de woonkamer inblazen, 90 afzuigen in de keuken.
Bosch 5800i 10, vloerverwarming & fancoils, Zehnder Q600
De meetmethode heb ik uit het Inregelen wtw met anemometer topic en komt goed overeen met de te verwachten waarden, er zijn in dat topic wat verschillen in de genoemde oppervlaktes van de fan, maar die heb ik zelf nagemeten en waar nodig aangepast in de berekening.Weet je zeker dat je meetmethode klopt? Die goedkope anemometers zijn niet de beste, en er zweven nogal wat methoden rond op het forum.
Wat de CO2 betreft dat is bij de huidige standen, en piekt net over de 800 richting 900, nog lang niet in de buurt van 1000+ en zakt al weer snel nadat ik ben opgestaan, daar maak ik me verder ook geen zorgen over, maar viel me wel op.
Inregelen op de max stand dus, de standen zijn individueel in te regelen, ik kan stand 2 bv maximaal op (stand 3 -1%) zetten. (en zo ook stand 1) dus wat maak ik daar dan van.
De Optifor handleiding raadt aan in stand 2 60% van de ingestelde max aan te houden, daar ga ik eens mee aan de slag
Waar ik vooral op zat te malen waren de badkamer/wc en keuken "eisen", then again als ik douche of kook gaat de afzuiging alsnog toch op max.
Waarom niet overstroom uit de woonkamer de gang in? Mijn gedachte is, de slaapkamer en gang zijn een stuk koeler, dat wil ik juist niet de woonkamer in die ik op temperatuur houd (en ook al iets koelere lucht krijgt van de aanvoer) hmmm maar straks weer in de zomer misschien juist wel weer fijn.ZonnigY schreef op donderdag 20 maart 2025 @ 14:21:
- Ik zou geen overstroom van de woonkamer naar de hal willen.
Ik zou inregelen op twee personen: 90 m3/h inblazen in de slaapkamer en dan nog 75 (90 - 15, overstroom vanuit de hal) in de woonkamer inblazen, 90 afzuigen in de keuken.
Kooklucht wil je zsm t huis uit, niet de gang op. 15m3/h (op standje max) gaat je waarschijnlijk geen voelbare afkoeling geven, dus daar zou ik t niet voor laten.Dieks77 schreef op donderdag 20 maart 2025 @ 17:36:
[...]
...
Waarom niet overstroom uit de woonkamer de gang in? Mijn gedachte is, de slaapkamer en gang zijn een stuk koeler, dat wil ik juist niet de woonkamer in die ik op temperatuur houd (en ook al iets koelere lucht krijgt van de aanvoer) hmmm maar straks weer in de zomer misschien juist wel weer fijn.
Bosch 5800i 10, vloerverwarming & fancoils, Zehnder Q600
(en mooi meegenomen dat die niet harder draait dan nodig ivm eventueel stroomverbruik, maar daar meet ik momenteel toch niet op)
Wat de vochtigheid betreft, het is vooral in de winter kurkdroog, als ik niet continue bevochtig dan valt het zo onder de 30, mét houd ik het net op de 40. Mijn gedachte was dat wellicht te veel/snel lucht word aan/afgevoerd en dat extra invloed heeft op de vochtigheidgraad.
Daarbij voelde ik met name afgelopen winterseizoen regelmatig een frisse tocht, terwijl de woonkamertemeratuur toch, voor mij fijn, 20-21 was. Meer dan voorgaande jaren.
Wat de kooklucht betreft, daarvoor heb ik 2 afvoer ventielen direct boven het keukenblok, daar gaat dan meer uit dan de overstroom, helaas nog geen kap boven de plaat, maar dat is sowieso ook een dingetje nog vanwege de wtw afzuiging en zal dan motorloos moeten zijn.
En gezegd mag best, ik realiseer me dat het nu opzich prima is, van een kleine hyperfocus is hier dan ook wel sprake hoor, ik zoek dus aan de ene kant naar bevestiging dat ik op de juiste weg zit of juist "waar ben je mee bezig zet het gewoon zo en klaar"
Geluid lijkt op de huidige stand geen problem.
Je zou geen voelbare tocht moeten hebben met een dergelijke opstelling. 25 m3/h per ventiel door een ventiel opstelling als de jouwe is geen voelbare luchtstroom. Het is waarschijnlijker dat tocht komt door iets anders, een koudebrug ergens in de isolatie of zo. Zeker als je het alleen in de winter voelt.
Vocht verlies heeft wel een relatie met de ventilatie, maar is niet te voorkomen tenzij je een unit met enthalpiewisselaar neemt. Helaas is dat bij jou niet mogelijk zonder een cadeautje van €2k aan je verhuurder te doen, want dan moet je een andere unit kopen. Je moet dus altijd bevochtigen in de winter. Dat is normaal bij de meeste huizen in Nederland met systeem C of systeem D zonder enthalpiewisselaar.
Je zou eventueel vocht verlies in de winter ietsje kunnen beperken door een stand “afwezig” te programmeren op de unit, waarbij deze op de helft van de normale stand draait als je op je werk bent doordeweeks. Mocht je op kantoor werken en niet thuis.
Ik ga van het weekend wel nog even aan de slag met de standen afstelling en dan houd ik het daarbij.
Bevochtigen is helaas een feit inderdaad, en een van de weinige nadelen van 99,9999% thuiswerken, een afwezigheid stand heeft hier weinig zin.
Heb uitgebreid de trainingsfilm van Zehnder gevolgd ( YouTube: Training 'WTW ventilatie installeren' - Zehnder en Rensa ) en de adviezen uit de startpost geprobeerd te gebruiken. Ben begonnen met bouwbesluit minima en heb in de tekeningen een aantal inblaas punten vergroot naar het aantal mensen in de ruimte.
Heb in dit topic gezocht op een aantal steekwoorden, maar niet de antwoorden kunnen vinden.
Mijn vragen:
- We wonen er straks met zijn drieën, maar ga uit van vier personen in bijvoorbeeld de woonkamer en woonkeuken. Is het praktisch om al in te regelen voor 4 personen?
- Het kantoor wordt door 1 persoon gebruikt, maar is qua toekomst (slaapkamer beneden) op 2 personen ingericht. Is het praktisch in te regelen voor 2 personen?
- Wat is een acceptabele kierhoogte voor een deur? Zijn er nog andere nette oplossingen behalve een (lelijk) rooster?
- Woonkamer zit 1 punt (rechtsonder) boven een bank. Merken we dat?
- Slaapkamer 1 heeft nu een +33 debiet. Is het beter om daar twee punten van te maken?
- Heb een totaal debiet van 472 m3. Van belang is dat we het systeem niet horen of voelen. Is een Zehnder ComfoAir Q600 de beste keuze?
[ Voor 2% gewijzigd door peer1979 op 21-03-2025 11:47 . Reden: Gezocht in topic op steekwoorden ]
12x 280Wp ZW, 12x 280Wp ZO, Zubadan SHW80YAA 8kW, Zehnder Q450 ERV
Als je netjes de aanvoer wilt inmengen met de bestaande lucht is het toch wel wenselijk om een ventiel flush met het plafond te laten inmengen mbv het coanda-effect. Ik zou dan eerder een 160mm ventiel gebruiken dan een zichtbaar t-stuk met 2 ventielen, omdat alle voordelen van een ventiel verdwijnen als hij los in de lucht zweeft, haaks op het plafond.
12x 280Wp ZW, 12x 280Wp ZO, Zubadan SHW80YAA 8kW, Zehnder Q450 ERV
Ik zie dat je keihard gezocht hebt, dus dan maar de antwoorden geven:peer1979 schreef op vrijdag 21 maart 2025 @ 11:30:
Voor onze nieuwbouw casco woning ben ik bezig met het WTW plan.
Heb uitgebreid de trainingsfilm van Zehnder gevolgd ( YouTube: Training 'WTW ventilatie installeren' - Zehnder en Rensa ) en de adviezen uit de startpost geprobeerd te gebruiken. Ben begonnen met bouwbesluit minima en heb in de tekeningen een aantal inblaas punten vergroot naar het aantal mensen in de ruimte.
Heb in dit topic gezocht op een aantal steekwoorden, maar niet de antwoorden kunnen vinden.
Mijn vragen:***members only***
- We wonen er straks met zijn drieën, maar ga uit van vier personen in bijvoorbeeld de woonkamer en woonkeuken. Is het praktisch om al in te regelen voor 4 personen?
- Het kantoor wordt door 1 persoon gebruikt, maar is qua toekomst (slaapkamer beneden) op 2 personen ingericht. Is het praktisch in te regelen voor 2 personen?
- Wat is een acceptabele kierhoogte voor een deur? Zijn er nog andere nette oplossingen behalve een (lelijk) rooster?
- Woonkamer zit 1 punt (rechtsonder) boven een bank. Merken we dat?
- Slaapkamer 1 heeft nu een +33 debiet. Is het beter om daar twee punten van te maken?
- Heb een totaal debiet van 472 m3. Van belang is dat we het systeem niet horen of voelen. Is een Zehnder ComfoAir Q600 de beste keuze?
Ja, ja, 2cm, nee, ja, ja.
12x 280Wp ZW, 12x 280Wp ZO, Zubadan SHW80YAA 8kW, Zehnder Q450 ERV
Vraag me wel af waarom je tweemaal deze toon gebruikt? Heb ontzettend veel gelezen over dit onderwerp en bekeken in verschillende filmpjes. Er zitten heel wat uren/dagen in de berekeningen (het was voor mij nieuw) en waar alles moet komen. Dit was er nog over qua vragen. En de niet gestelde vraag was eigenlijk; ziet iemand nog iets raars of fout?
Heb van dit topic verschillende pagina's gelezen, maar het is voor mij ondoenlijk om alles te lezen. Vond dat je gelijk had met het doorzoeken van dit topic; dat heb ik dus ook gedaan.
Vind je 'aanname' / 'toon' onterecht, maar ik wil je wel bedanken voor je antwoorden.
[ Voor 1% gewijzigd door peer1979 op 22-03-2025 16:20 . Reden: Duidelijkere conclusie ]
Het zijn wel simpele vragen die echt wel in het topic regelmatig voorbij komen, maar het topic is heel groot ondertussen.
Soms zou ik graag wat meer zelfredzaamheid zien, op een gegeven moment zie je elke x weken dezelfde vragen voorbij komen. Dat is gewoon het nadeel van een forum tov een wiki pagina.
Je hebt echt je werk wel gedaan verder
Je zou met overflow nog wat kunnen spelen, maar de enkele deur tussen woonkamer en keuken maakt dat wat lastiger.
Balans per verdieping hoeft ook niet perse. Ik zou de afzuiging op de overloop liever weghalen bijvoorbeeld.
Als je echt zou willen zou je met en Q450 af kunnen, maar voor de grootte van de woning is een Q600 een prima keuze. Het enige verschil tussen deze 2 is de motor, de kast is verder identiek.
12x 280Wp ZW, 12x 280Wp ZO, Zubadan SHW80YAA 8kW, Zehnder Q450 ERV
Ik zie afzuiging in 1 van de 2 zolderkamers, wat is de redenatie daarvan? Als deze allebei als slaapkamer gebruikt (gaan) worden is daar niet genoeg verse lucht zou ik denken.
Ik zie ook heel specifieke toevoer/afvoer op sommige plekken, +33, -32, -31. Waarom is dit niet allemaal gewoon 30? Ik denk ook niet dat het zo nauwkeurig in te regelen is.
Wat betreft inregelen, dit zou mogelijk ook op de huidige situatie gedaan kunnen worden, en als de situatie verandert kan het opnieuw ingeregeld worden(al zit er niet zo veel nadeel aan te veel ventileren natuurlijk).
Wat betreft het horen van de ventilatie is het vooral belangrijk om geluiddemping na de WTW unit te gebruiken. De Q600 is een goede keuze, maar geluiddemping heb je zeker nodig.
Voor het voelen van de ventilatie kan het interessant zijn om te kijken naar het type ventiel. Als deze gebruikmaakt van het coanda effect zou je het sowieso niet moeten voelen (al is het waarschijnlijk sowieso niet zo'n probleem).
Verder is het goed om te kijken naar overspraak, dat het geluid van de ene kamer niet naar de andere kamer komt.
De keuken en huiskamer zijn gescheiden door een deur? Is er wat mogelijk om overstroom te realiseren van huiskamer naar keuken? Een rooster in deur/muur bijvoorbeeld? Dat zou kunnen schelen in de afvoer in woonkamer en toevoer in keuken.
Silence is better than unmeaning words. ~Pythagoras
Waarom zou je deze weghalen? Had die meneer van Zehnder gevolgd en mijn zones over de verdiepingen verdeeldP5ycho schreef op zaterdag 22 maart 2025 @ 17:21:
Balans per verdieping hoeft ook niet perse. Ik zou de afzuiging op de overloop liever weghalen bijvoorbeeld.
Zolderkamer 2 ( de bovenste kamer) is een ruimte voor verschillende doeleinden, waaronder logeren voor max 2 personen. Die onderste zolderkamer hangt straks de was en is daarnaast bedoeld voor opslag.pythagorasABC schreef op zondag 23 maart 2025 @ 14:49:
@peer1979
Ik zie afzuiging in 1 van de 2 zolderkamers, wat is de redenatie daarvan? Als deze allebei als slaapkamer gebruikt (gaan) worden is daar niet genoeg verse lucht zou ik denken.
Dat komt uit de berekeningen van het bouwbesluit. Moet in die slaapkamer rechtsboven minimaal +33 hebben. Vanuit dat Zehnder filmpje herinner ik me dat je maximaal 5% mag afwijken bij het uiteindelijke inregelen.pythagorasABC schreef op zondag 23 maart 2025 @ 14:49:
@peer1979
Ik zie ook heel specifieke toevoer/afvoer op sommige plekken, +33, -32, -31. Waarom is dit niet allemaal gewoon 30? Ik denk ook niet dat het zo nauwkeurig in te regelen is.
[...]
Probeer eerst een zo stil mogelijk systeem neer te zetten. Daarna inderdaad kijken of er nog geluidsdemping nodig is. Of adviseer je om dat direct te doen?
Keuken en huiskamer inderdaad gescheiden met een deur. Daar heb ik inderdaad nu nog een probleem met een enorme kier. Een rooster zou kunnen, maar dan zit je wellicht met geuren / geluiden vanuit de keuken?
[ Voor 64% gewijzigd door peer1979 op 23-03-2025 17:19 ]
/u/58527/crop598f55cf0092d_cropped.png?f=community) 
            /u/985969/crop6612ea6d8e405.png?f=community) 
            :strip_icc():strip_exif()/u/431369/crop6503097e1a776_cropped.jpg?f=community) 
            /u/747887/crop581a4b4491fc7_cropped.png?f=community) 
            :strip_icc():strip_exif()/u/298236/avatar2.jpg?f=community) 
            :strip_icc():strip_exif()/u/200845/crop6707a73aa05be_cropped.jpg?f=community) 
            :strip_icc():strip_exif()/u/2183216/crop678beb7ce697f_cropped.jpg?f=community) 
            :strip_exif()/u/1009013/crop5c88cd129b2df_cropped.gif?f=community) 
            :strip_icc():strip_exif()/u/422163/crop631af7911f7d8_cropped.jpg?f=community) 
            /u/325654/crop60e320b591e7c_cropped.png?f=community) 
            /u/257007/driehoek.png?f=community)