QWERTY.ASDF schreef op vrijdag 14 februari 2025 @ 23:32:
Ik ben een leek op het gebied van WTW, maar dit topic helpt me in ieder geval wel goed om het concept te begrijpen. Nu heb ik recent de ventilatietekening gekregen van mijn nieuwbouwwoning en daarbij zag ik dat ik in mijn woonkamer/keuken de toevoer- en afvoerpunten krijg in een rechte lijn onder elkaar. Dit is de eerste keer dat ik dit op deze manier zie en ik vroeg me af of hier voor- of nadelen aan zitten. Waarom heeft de installateur/architect dit zo gedaan?
Geen idee, maar ik vind het logischer om in de zithoek aan te voeren en in de keuken af te voeren. Ook vanwege overflow vanuit de gang, die er nu niet is.
Als ik het goed begrijp van de topicstarter is het niet wenselijk om toevoer en afvoer in dezelfde ruimte te hebben. Is dat de reden waarom je “normaliter” de afvoerpunten in de keuken aan de ene kant van de open ruimte hebt, en de toevoerbuizen in de woonkamer aan de andere kant van de open ruimte?
Dat is niet wenselijk omdat het onnodig extra buiswerk oplevert en minder efficient is.
De woonkamer met open keuken is een grote ruimte. In de zithoek wordt geademd en in de keuken wordt vieze lucht geproduceerd. Het spreekt voor zich dat daar wel aanvoer alsook afvoer aanwezig is. het mooist is als de verse lucht langs de verbruikers stroomt en op de weg naar buiten ook nog even de kookluchtjes meeneemt.
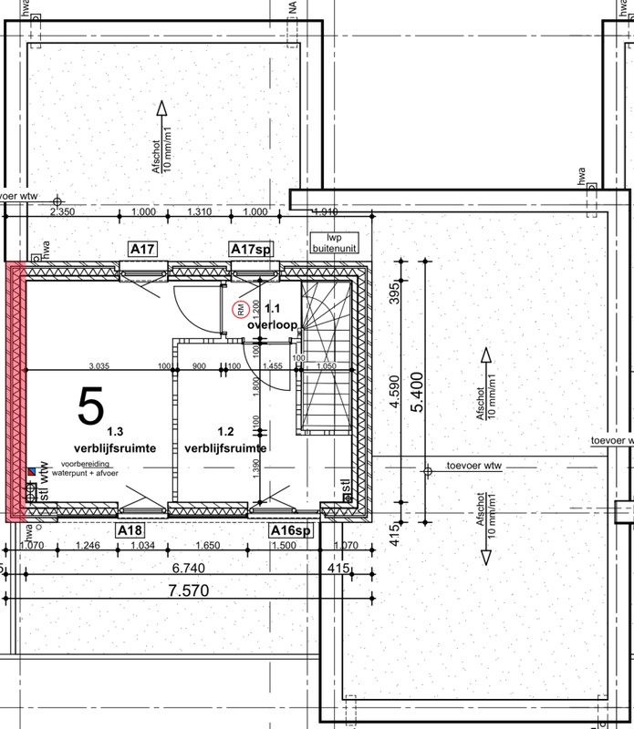
Nu is mijn woning ~10 meter lang en de ruimte tussen de deur en en de muur op het smalle punt is ~4 meter. De toevoerpunten zitten zitten meer dan een meter uit elkaar. De afvoerpunten zitten denk ik net 2 meter van de toevoerpunten vandaan.
De getallen naast de ventilatietekening is het aantal dm3/s.
Ja, ik vind dat niet zo heel handig. op zich vermengt de verse lucht altijd wel met de aanwezige lucht, maar het kan geen kwaad om de vermenging een handje te helpen door de ventielen slim te plaatsen.
Normaal houden we 50m3/h aanvoer en 75m3/h afvoer aan. 16 dm3/s is meer dan 50 m3/h. Of je geluidsproblemen krijgt is hier een beetje afhankelijk van de (drukval over de) ventielen
Wat vinden jullie hiervan? En zijn er op- of aanmerkingen over de rest van de tekening? Ik sta open voor alle feedback.
Klassieke balansopzet zonder overflow. Met wat goed puzzelen kan dit wel beter denk ik ja.
ruimte 1.2 heeft geen afvoer nodig.
wasruimte heeft minder afvoer nodig.
Berging kan ook minder eventueel.
Pas op dat de aanvoer van buiten op een gevel aan de noordkant komt, en niet op een platdak. Je trekt onnodig warme lucht naar binnen anders.
Overige vraag: is het altijd beter om twee toevoerpunten in een ruimte te plaatsen? Ik vermoed niet dat de aannemer open staat om toevoerpunten toe te voegen in de slaapkamer en werkkamer, maar ik kan het altijd proberen als dit echt meerwaarde biedt.
Een ventiel per persoon is een goede richtlijn, dus dat heeft zeker nut. Minimaal 2 voor de master bedroom.
Als ik jou was zou ik een schaduwcalculatie maken en zelf eens intekenen hoe we het hier normaliter opzetten. De calculatiesheet staat in de TS.
Als je de installateur wilt overtuigen zul je een beter ontwerp moeten maken

.