Acties:
  • +1 Henk 'm!

  • P5ycho
  • Registratie: Januari 2000
  • Laatst online: 22:19
thys schreef op dinsdag 1 oktober 2024 @ 20:20:
Mijn woning is bij de bouw in 2006 al voorzien van een WTW-balansventilatiesysteem. De meeste buizen lopen verscholen door de kanaalplaatvloeren of door een koof. De spirobuizen die zichtbaar zijn die zijn netjes van isolatie voorzien. Nu heb ik recent voor heel iets anders één koof toegangkelijk gemaakt en het viel mij op dat de spirobuis daar helemaal niet geïsoleerd is. Ook niet de afvoerbuis naar het dak. Los van kans op wat condensatie lijkt mij dat dit een groot deel van het rendement weer teniet zal doen doordat de afgekoelde afvoerlucht in de 6m buis weer opgewarmt zal worden alvorens het dak te bereiken. Lijkt mij dus zeer slordig.

Moet ik dit gaan na-isoleren of zal het verlies meevallen?
Buizen tussen wtw en buitenlucht moeten geisoleerd. En ja, dat maakt zeker wat uit voor het rendement. Zoek maar eens in dit topic naar 'enkelglas' voor een voorbeeld.

12x 280Wp ZW, 12x 280Wp ZO, Zubadan SHW80YAA 8kW, Zehnder Q450 ERV


Acties:
  • 0 Henk 'm!

  • Fedde
  • Registratie: Augustus 2009
  • Laatst online: 01:53
Ons huis wordt met een paar weken opgeleverd, maar we hebben al wel het meetrapport van de ventilatie gehad. Nou heb ik hier een paar twijfels bij, namelijk dat de toevoer en retour niet in balans is, en dat er best wel een afwijking is op de ontwerpcondities. Nou is mijn vraag, klopt dit, mag dit?

Afbeeldingslocatie: https://tweakers.net/i/iOiGUu7SHpnozEH_NYZdLIpLfHc=/800x/filters:strip_exif()/f/image/2kabHPST4hRzFp7aFKfM3iXo.png?f=fotoalbum_large

Acties:
  • 0 Henk 'm!

  • Puntenwolk
  • Registratie: Oktober 2017
  • Laatst online: 20-10 09:35
JeffreyH-8 schreef op dinsdag 1 oktober 2024 @ 20:36:
Naar aanleiding van alle feedback heb ik mijn ventilatieplan aangepast en ben ik eigenlijk best tevreden.
De totale ventilatiebehoefte is iets omhooggegaan naar 375m3/h, maar past denk ik ook beter bij een woonoppervlakte van 200m2. Elke kamer heeft nu iets van ventilatie en in de woonkamer heb ik nu ook ruim voldoende ventilatie voor de aanwezigheid van 4 personen. Graag zou ik jullie feedback nogmaals horen om de puntjes op de i te zetten en anders ga ik bezig met mijn buizenstelsel te ontwerpen. Alvast bedankt.

[Afbeelding]

[Afbeelding]

[Afbeelding]

[Afbeelding]
Lijkt me prima zo. Ik ben het eens met ZonnigY dat aanvoeren op de zolder als optie voor de toekomst goed is om in gedachten te houden als je de buizen aanlegt. Dan kan je daar eenvoudig een slaapkamer van maken. Maar ik zou het niet al nu zo aanleggen, in jouw geval lijken me de nadelen (ofwel suboptimale woonkamer ventilatie, ofwel het hele systeem nog weer 50 groter maken) groter dan de voordelen.

Acties:
  • 0 Henk 'm!

  • Mr.Viper
  • Registratie: Oktober 2005
  • Laatst online: 19:43

Mr.Viper

Tja... iets met Dodge Vipers

Fedde schreef op woensdag 2 oktober 2024 @ 08:11:
Ons huis wordt met een paar weken opgeleverd, maar we hebben al wel het meetrapport van de ventilatie gehad. Nou heb ik hier een paar twijfels bij, namelijk dat de toevoer en retour niet in balans is, en dat er best wel een afwijking is op de ontwerpcondities. Nou is mijn vraag, klopt dit, mag dit?

[Afbeelding]
Ik zie ITHO en nieuwbouw met ongeveer 300 m3/h en denk dan direct aan onze situatie met HRU300 Eco DuoZone. Dus dan zou je 2 co2 kastjes in je woning hebben en dan zou de verdeling op basis van co2 kunnen veranderen omdat er dan 2 kleppen komen op de aanvoer die dit verdeeld naar de beneden- en de bovenverdieping.

|| System Specs || 36° ONO-WZW 4875Wp ||


Acties:
  • 0 Henk 'm!

  • Fedde
  • Registratie: Augustus 2009
  • Laatst online: 01:53
Mr.Viper schreef op woensdag 2 oktober 2024 @ 08:42:
[...]


Ik zie ITHO en nieuwbouw met ongeveer 300 m3/h en denk dan direct aan onze situatie met HRU300 Eco DuoZone. Dus dan zou je 2 co2 kastjes in je woning hebben en dan zou de verdeling op basis van co2 kunnen veranderen omdat er dan 2 kleppen komen op de aanvoer die dit verdeeld naar de beneden- en de bovenverdieping.
Wij hebben de HRU400, maar volgens mij niet met zonering.

Acties:
  • +1 Henk 'm!

  • JeffreyH-8
  • Registratie: Mei 2010
  • Laatst online: 21:51
@ZonnigY en @Puntenwolk, bedankt voor jullie reactie.
De zolder zal de komende jaren eerder een rommelzolder worden en hok om de was te drogen. Ik begrijp jullie redenen, maar ik denk dat het voor ons niet veel uitmaakt of er afgezogen of ingeblazen wordt. Misschien is afzuigen wel beter vanwege de was die er komt te staan. Daarbij komt de unit op zolder te hangen dus makkelijk om voor de toekomst te wisselen op zolder tussen afzuigen en inblazen.

Acties:
  • 0 Henk 'm!

  • M4inDC
  • Registratie: Februari 2021
  • Laatst online: 20:46
Ben van plan om voor een Q450 van die comfopipe plus pijpen in Belgie te halen voor naar buiten, ik neem aan dat ik gewoon de 180mm variant kan halen ivm de 180 maat van aansluitingen? Of kan ik ook 200 halen, en gaat dat uberhaupt passen?

En voor naar binnen, ik heb een plan gemaakt met 200mm buizen voor in het huis. Gelezen dat dat wel zoden aan de dijk zet voor wat betreft geluid.

Acties:
  • +1 Henk 'm!

  • bensss
  • Registratie: September 2020
  • Laatst online: 00:34
M4inDC schreef op woensdag 2 oktober 2024 @ 15:48:
Ben van plan om voor een Q450 van die comfopipe plus pijpen in Belgie te halen voor naar buiten, ik neem aan dat ik gewoon de 180mm variant kan halen ivm de 180 maat van aansluitingen? Of kan ik ook 200 halen, en gaat dat uberhaupt passen?

En voor naar binnen, ik heb een plan gemaakt met 200mm buizen voor in het huis. Gelezen dat dat wel zoden aan de dijk zet voor wat betreft geluid.
De 200 Comfopipe plus valt mooi over de aansluiting heen, je moet er dan wel een klein randje afsnijden omdat het middenstuk ietsjes hoger is. Voor de buitenaansluiting heb ik de adapter gebruikt daar past 200mm ook mooi op.

Bedenk ook hoe je het verdere systeem binnen gaan aanleggen. Spirosafe verbindingen vind ik wel handig als je de binnenaansluitingen met spiro doet. De spirosafe moffen in 180 sluiten mooi aan om comfopipe 180 en de 200 logiserwijs ook. Eerst foto is 200 comfopipeplus waar dan het linker randje af moet. En de tweede foto is een 180-200 spirosafe mof.

Afbeeldingslocatie: https://tweakers.net/i/B0VVcSyyZx74HiXR6OFqFFVS8zM=/x800/filters:gifsicle():strip_exif()/f/image/DsKNuHcwewvmSOCIxuqBmFkZ.gif?f=fotoalbum_large

Afbeeldingslocatie: https://tweakers.net/i/Y0SZsm_CVKr0b_mt4JpyJ6I9Et0=/x800/filters:gifsicle():strip_exif()/f/image/43bKUsrNr2RH98m51uRelqzr.gif?f=fotoalbum_large

Zelfinstallatie Vaillant Arotherm Plus 55/6 | Zehnder Q450 | Variotherm DWTW | Enphase Envoy S + IQ7x Panasonic 7x335WP


Acties:
  • +3 Henk 'm!

  • Puntenwolk
  • Registratie: Oktober 2017
  • Laatst online: 20-10 09:35
Fedde schreef op woensdag 2 oktober 2024 @ 08:11:
Ons huis wordt met een paar weken opgeleverd, maar we hebben al wel het meetrapport van de ventilatie gehad. Nou heb ik hier een paar twijfels bij, namelijk dat de toevoer en retour niet in balans is, en dat er best wel een afwijking is op de ontwerpcondities. Nou is mijn vraag, klopt dit, mag dit?

[Afbeelding]
Het lijkt bijna een tikfout voor de WC (25 gemeten 52 ingevuld?). Dat zou ook de hele onbalans verklaren. Alle andere afwijkingen lijken me binnen de marges hiervoor.

Acties:
  • 0 Henk 'm!

  • Audione0
  • Registratie: April 2009
  • Laatst online: 22:37

Audione0

Strijdt der titanen

Ik heb een vraag mbt de filterset g4/F7 voor onze q350.

Aan welke kant moet nu precies het ePM1 F7 filter? Aan de kant waar de aanzuigbuis buiten op de unit zit (dus de kant waar alle muggen en vliegjes tegen gehouden moeten worden) of juist aan de kamerkant?

[ Voor 3% gewijzigd door Audione0 op 02-10-2024 17:28 ]

Ryzen 9 7950x3d / Asus Strixx x670E-E / Noctua NH-DH15 / 64GB Corsair Dominator 6000 / Crucial M500 – Samsung 990pro / MSI RTX 4070TI Super Gaming X Slim / Corsair RM1000x / Alles in een Fractal Define 7 Black gepropt


Acties:
  • +1 Henk 'm!

  • P5ycho
  • Registratie: Januari 2000
  • Laatst online: 22:19
Ga je filteren voor je binnenklimaat of voor de vogels? :)
Hij moet op de plek waar je ook alle muggen tegenhoudt.

ePM1 heeft nog een percentage nodig trouwens. Meestal is een F7 filter ePM1 50 - 65 %.

Is het een originele filterset?

[ Voor 34% gewijzigd door P5ycho op 02-10-2024 18:49 ]

12x 280Wp ZW, 12x 280Wp ZO, Zubadan SHW80YAA 8kW, Zehnder Q450 ERV


Acties:
  • 0 Henk 'm!

  • Kees_frl
  • Registratie: Januari 2009
  • Laatst online: 17:29
Ik heb ook paar weken gedraaid met een F7 filter, viel me wel tegen hoeveel extra energie het verbruikt.

WP Vaillant VWL75/6 A 230V | Boiler VIH RW 300/3 MR | 27 x 405 ZZO= 10.935 op Solar Edge 9 kW 3 fasen omvormer | Vent: Zehnder Q600 ERV


Acties:
  • +1 Henk 'm!
M4inDC schreef op woensdag 2 oktober 2024 @ 15:48:
Ben van plan om voor een Q450 van die comfopipe plus pijpen in Belgie te halen voor naar buiten, ik neem aan dat ik gewoon de 180mm variant kan halen ivm de 180 maat van aansluitingen? Of kan ik ook 200 halen, en gaat dat uberhaupt passen?
Voor de 200 (die ik overigens wel zou aanraden, want minder leidingweerstand) moet je een speciale adapter (nr 990328723) gebruiken:
Afbeeldingslocatie: https://afbeeldingen.vanoirschot.be/assets/product/lg/zehnder/990328723.webp
Anders past het inderdaad niet.

WP: ME PUHZ-SW75YAA + ERSD-VM2D + EV-WP-TWS-1W 300; AC: ME MXZ-2F42VF + 2x MSZ-LN25VGV; PV: 14.08 kWp O/W + SMA STP 8.0; Vent: Zehnder Q600 ERV + Ubbink AirExcellent.


Acties:
  • 0 Henk 'm!

  • itsjohan
  • Registratie: Januari 2001
  • Laatst online: 23:26
is dat omdat de pijpen niet naast elkaar passen? ik heb net op een Q450 twee 200mm Thermoduct buizen gebruikt (Spiro met 13mm isolatie); dat past prima. Comfopipe is 15mm EPP zo te zien, zou dat beter zijn dan de thermoduct met 13mm EP foam?

Acties:
  • +1 Henk 'm!
@itsjohan Dit gaat over de plus-versie, die ipv alleen een heel dun laagje anticondensisolatie een beetje redelijke thermische isolatie (van 43 mm) heeft.
En 2x200 + 4x43 is groter dan de diepte van de unit, dus die adapter heb je echt nodig.

WP: ME PUHZ-SW75YAA + ERSD-VM2D + EV-WP-TWS-1W 300; AC: ME MXZ-2F42VF + 2x MSZ-LN25VGV; PV: 14.08 kWp O/W + SMA STP 8.0; Vent: Zehnder Q600 ERV + Ubbink AirExcellent.


Acties:
  • 0 Henk 'm!

  • J_star
  • Registratie: Mei 2005
  • Laatst online: 22:42
Puntenwolk schreef op dinsdag 1 oktober 2024 @ 20:35:
[...]

Hoi, goed dat je de vraag nog verduidelijkt, maar ik had de vraag inderdaad ook zo begrepen (samen met de context van zones als alternatief en 75mm buizen die je al noemde).

Dit is echter niet goed te beantwoorden zonder verdere informatie over jouw situatie. P5cho noemt twee mogelijke bezwaren, en ik kan ook nog meer voor- en nadelen bedenken. Koude voeten bijvoorbeeld.

Maar vloerroosters bestaan en worden wel degelijk gebruikt, voornamelijk in heteluchtverwarmingsystemen en soms in de utiliteitsbouw. Je kunt ze gewoon bestellen op de gebruikelijke webshops. Of het in jouw situatie past, daar hebben we alleen meer informatie over nodig. Het maakt nogal uit of je in het midden van je woonkamer gaat inblazen of dat je dit voor de afzuiging in de keuken wil.
We hebben het idee om een WTW te plaatsen - maar de toevoer is een enorme uitdaging (om het nog enigszins mooi te houden). We overwegen daarom om twee zones te bouwen, waardoor geen aanvoer en afvoer gerealiseerd hoeft te worden vanuit de zolder naar beneden. De aan- afvoer gebeurd dan vanuit de garage voor de begaande grond, en de zolder voor de etages.

Wel krijg je dan uitdagingen met 'balans' en zijn we waarschijnlijk een onnodige hoeveelheid lucht aan het rondpompen. De Excel sheet is gemaakt op basis van een unit, maar deze heb ik al eens eerder ingevuld (die nu dus niet klopt voor twee zones).

We hebben nu dus twee opties:
1. Aanvoer via de vloer, naar de hoek van de woning, een koof aanbrengen met drie of vier ventielen op het plafond.
2. Aanvoer via de vloer naar de lange muur van de woning (paars), uitblazen via roosters in de vloer.
3. Aanvoer via de vloer naar de lange muur van de woning (paars), uitblazen op 30 cm hoogte. Deze vind ik extra lastig omdat we dan via de fundering moeten kappen naar de muur. Dit lijkt me te risicovol.

Het is vrij ontmoedigend om dit te installeren in een renovatie project, maar het moment is nu wel daar nu alles openligt. Het makkelijkste lijkt uitblazen via de vloer, maar het is niet echt mooi om een nieuwe vloer te plaatsen met van die witte roosters. Keuzes keuzes.

Afbeeldingslocatie: https://tweakers.net/i/3zo-NHxTefDW6DMB6owzGvFuJZA=/232x232/filters:strip_icc():strip_exif()/f/image/FpwMTsvdg4jURuvrP4B54KLE.jpg?f=fotoalbum_tileAfbeeldingslocatie: https://tweakers.net/i/PsFVHk4IrZO4n-2qN6Q4fsMOulU=/232x232/filters:strip_exif()/f/image/UNG3NtG9hevgaxeY3lvRPGHu.png?f=fotoalbum_tileAfbeeldingslocatie: https://tweakers.net/i/MEsAxsDOBNiGFHfGT8croTj6m7g=/232x232/filters:strip_icc():strip_exif()/f/image/6cVMSlMivCwNGM5wU8YSsLi2.jpg?f=fotoalbum_tile
Afbeeldingslocatie: https://tweakers.net/i/NxFsAVtTK3IRVZ_IASVEbwp5cQw=/232x232/filters:strip_icc():strip_exif()/f/image/Lfq3ymA1bvGY4wWCGQHlrDY1.jpg?f=fotoalbum_tileAfbeeldingslocatie: https://tweakers.net/i/CpKPlRk4qrtGxJ_haFIqNqcZlKw=/232x232/filters:strip_icc():strip_exif()/f/image/9t1uQeaniYsx6Lvzl4y6geXC.jpg?f=fotoalbum_tile

Acties:
  • 0 Henk 'm!

  • Audione0
  • Registratie: April 2009
  • Laatst online: 22:37

Audione0

Strijdt der titanen

P5ycho schreef op woensdag 2 oktober 2024 @ 18:36:

ePM1 heeft nog een percentage nodig trouwens. Meestal is een F7 filter ePM1 50 - 65 %.

Is het een originele filterset?
Ja het betreft een originele set.

Ryzen 9 7950x3d / Asus Strixx x670E-E / Noctua NH-DH15 / 64GB Corsair Dominator 6000 / Crucial M500 – Samsung 990pro / MSI RTX 4070TI Super Gaming X Slim / Corsair RM1000x / Alles in een Fractal Define 7 Black gepropt


Acties:
  • 0 Henk 'm!

  • bensss
  • Registratie: September 2020
  • Laatst online: 00:34
Andrehj schreef op woensdag 2 oktober 2024 @ 21:56:
@itsjohan Dit gaat over de plus-versie, die ipv alleen een heel dun laagje anticondensisolatie een beetje redelijke thermische isolatie (van 43 mm) heeft.
En 2x200 + 4x43 is groter dan de diepte van de unit, dus die adapter heb je echt nodig.
Ja, dat kan ik bevestigen, ik was dat bij mn eerdere post vergeten te checken of ze ook achter elkaar passen. Dat gaat dus niet zonder dat je ze moet insnijden. Maar insnijden is denk ik wel een mogelijkheid om het passend te krijgen. Ik gebruik voor buiten aan en afvoer trouwens ook de genoemde adapter, is het makkelijkste.

Zelfinstallatie Vaillant Arotherm Plus 55/6 | Zehnder Q450 | Variotherm DWTW | Enphase Envoy S + IQ7x Panasonic 7x335WP


Acties:
  • +2 Henk 'm!

  • P5ycho
  • Registratie: Januari 2000
  • Laatst online: 22:19
Ik heb de comfopipe plus ingesneden, dat werkt alleen als je met bochten weggaat in 2 richtingen. Als de buizen parallel lopen dan wil het niet. Ik heb mijn adapter uiteindelijk dus niet gebruikt om hoogte te besparen. Er staat wel een plaatje in dit topic, ff zoeken.

12x 280Wp ZW, 12x 280Wp ZO, Zubadan SHW80YAA 8kW, Zehnder Q450 ERV


Acties:
  • +1 Henk 'm!

  • Puntenwolk
  • Registratie: Oktober 2017
  • Laatst online: 20-10 09:35
J_star schreef op woensdag 2 oktober 2024 @ 21:56:
[...]


We hebben het idee om een WTW te plaatsen - maar de toevoer is een enorme uitdaging (om het nog enigszins mooi te houden). We overwegen daarom om twee zones te bouwen, waardoor geen aanvoer en afvoer gerealiseerd hoeft te worden vanuit de zolder naar beneden. De aan- afvoer gebeurd dan vanuit de garage voor de begaande grond, en de zolder voor de etages.

Wel krijg je dan uitdagingen met 'balans' en zijn we waarschijnlijk een onnodige hoeveelheid lucht aan het rondpompen. De Excel sheet is gemaakt op basis van een unit, maar deze heb ik al eens eerder ingevuld (die nu dus niet klopt voor twee zones).

We hebben nu dus twee opties:
1. Aanvoer via de vloer, naar de hoek van de woning, een koof aanbrengen met drie of vier ventielen op het plafond.
2. Aanvoer via de vloer naar de lange muur van de woning (paars), uitblazen via roosters in de vloer.
3. Aanvoer via de vloer naar de lange muur van de woning (paars), uitblazen op 30 cm hoogte. Deze vind ik extra lastig omdat we dan via de fundering moeten kappen naar de muur. Dit lijkt me te risicovol.

Het is vrij ontmoedigend om dit te installeren in een renovatie project, maar het moment is nu wel daar nu alles openligt. Het makkelijkste lijkt uitblazen via de vloer, maar het is niet echt mooi om een nieuwe vloer te plaatsen met van die witte roosters. Keuzes keuzes.

[Afbeelding][Afbeelding][Afbeelding]
[Afbeelding][Afbeelding]
Ik snap het nu beter, maar dit is niet zo’n hele unieke situatie en velen in dit topic zijn je voor gegaan. Niemand is daarbij uiteindelijk voor een vloerrooster of decentrale optie gegaan (wat je noemt is geen zone regeling, maar twee verschillende WTW units: een decentrale WTW). Maar zeg nooit nooit.

Eerste optie: ik snap nog niet helemaal waarom je niet gewoon door je plafond heen een ventiel aanlegt in je woonkamer, gewoon recht naar beden vanaf zolder met koofjes in de slaapkamers. Dan heb je niets lelijks in de woonkamer. Of is je esthetische beperking dat je geen koofjes in de slaapkamers op de 1e wil? Is er echt geen geplande kast of zo daar waar je achterlangs of doorheen kan?

Tweede optie: stel er is iets waardoor bovenstaande absoluut niet kan (wel graag even toelichten). Dan was er laatst ook iemand met een wenteltrap. Wat een leuke optie zou zijn is een driehoekig koofje in de “oksel” van de wenteltrap helemaal naar beneden. Die kan dan in de woonkamer uitkomen op een wandrooster in het kleine tussenmuurtje dat dichtbaar is op de foto. Een mooi strak lang lijnrooster bijvoorbeeld, daar kan niemand esthetisch over vallen.

Acties:
  • +1 Henk 'm!

  • P5ycho
  • Registratie: Januari 2000
  • Laatst online: 22:19
Audione0 schreef op woensdag 2 oktober 2024 @ 22:21:
[...]


Ja het betreft een originele set.
De reden dat ik het vraag is omdat er nogal wat kwaliteitsverschil is, er zit ook rotzooi tussen.

12x 280Wp ZW, 12x 280Wp ZO, Zubadan SHW80YAA 8kW, Zehnder Q450 ERV


Acties:
  • +1 Henk 'm!

  • ZonnigY
  • Registratie: Mei 2022
  • Laatst online: 16:44
J_star schreef op dinsdag 1 oktober 2024 @ 19:15:
[...]

Ik vraag enkel de ervaring met ventilatieroosters in de vloer (begaande grond)? Ik kan hierover niks vinden of daar technische bezwaren tegen zijn.
Wij hebben vloerroosters op de bovenste verdieping voor de inblaas. Je voelt zo iets meer en ze lijken meer weerstand te geven dan de ventielen in het plafond. De plafondventielen hebben we dus behoorlijk moeten knijpen. Maar het werkt gewoon.

Ze hoeven niet wit trouwens:Afbeeldingslocatie: https://tweakers.net/i/tG6WNA4M4qvMdi3qLPEETqsd7Ls=/800x/filters:strip_icc():strip_exif()/f/image/w0WCB8cSLuIpsX4tOhLiZwFt.jpg?f=fotoalbum_large

Bosch 5800i 10, vloerverwarming & fancoils, Zehnder Q600


Acties:
  • 0 Henk 'm!

  • Gijs007
  • Registratie: Februari 2008
  • Laatst online: 19-10 11:32
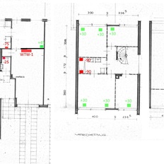
Hoe overstroom correct in te regelen?

Situatie: Heb een paar jaar terug een nieuwbouw woning gekocht (160m2), met een WTW (e400 van Zehnder).
Twee persoon huishouden.
  • In de woonkamer/open keuken is de ventilatie (meer dan) voldoende.
  • Op de verdieping, in de twee kleinere slaapkamers, is de CO2 veel te hoog (1000+ppm). Om dit wat tegen te gaan moet de WTW momenteel handmatig op een hogere stand worden gezet. Maar zit dan nog rond de ~800 ppm
  • De zolder is stoffig van zichzelf (ruwbouw), en ruikt ook wat muf.
    n.b. Wil hier in de toekomst extra slaapkamers maken, maar er is alleen een afzuig ventiel aanwezig.
Doelen/aanpak:
  1. Ik wil dit gaan bijregelen door met overstroom te gaan werken vanuit de slaapkamers, en de afzuiging op zolder te verhogen, ten kosten van de aan/afvoer in de woonkamer/keuken.
    Maar weet niet zeker of dit de beste manier is voor een rijtjeswoning met meerdere verdiepingen.
  2. Ook weet ik niet hoe ik de ventielen correct afstel. Wil natuurlijk nog wel voldoende ventilatie in de keuken, en geen suboptimale situatie door weerstand, met meer geluid/energieverbruik tot gevolg.
    Immers als ik ergens een ventiel aanpas, dan zal dit op de overige ventielen een tegenovergesteld effect hebben?
  3. Verder zou ik het geluid van de afzuig ventielen terug willen brengen. Als de WTW op stand 2 of 3 draait, dan is de luchtstroom goed te horen (voornamelijk bij de afzuigventielen in de keuken).
Technische informatie:
  • Het huis heeft een open keuken, in de woonkamer/keuken is de ventilatie altijd op orde, zelfs als er veel bezoek is of gekookt wordt.
  • De woonkamer is het grootste deel van de tijd niet in gebruik.
    Hier hangt wel een CO2 sensor van Zehnder, waarop de WTW automatisch wordt gestuurd. In de praktijk doet deze CO2 sensor echter weinig, en draait de WTW bijna altijd in de laagste modus, behalve als er veel bezoek is.
  • De keuken is voorzien van een recirculatiekookplaat met plasma filter.
  • Slaapkamer 1 wordt gebruikt als kantoor.
  • De zolder heeft alleen een ventilatie afzuig ventiel, op het meetrapport staat deze als "wasmachine ruimte" omschreven.
  • Gebruikte ventielen zijn Zehnder STC voor afzuiging, en Zehnder S125 voor aanvoer
Bouwtekeningen:
n.b De cirkels met pijltjes geven de locatie van de ventielen aan, afzuiging (pijlen naar binnen), aanvoer (pijlen naar buiten).

Afbeeldingslocatie: https://tweakers.net/i/eeQjE8cuAijkNumJ9rnZHzh9r0s=/x800/filters:strip_exif()/f/image/d0XlrQq721MpEavgjk7ENQVT.png?f=fotoalbum_large

Afbeeldingslocatie: https://tweakers.net/i/IH3xYPhagcVC2HgdrvEkzDr0DIc=/x800/filters:strip_exif()/f/image/4P69DPa3ln779rUyK922KQrt.png?f=fotoalbum_large

Afbeeldingslocatie: https://tweakers.net/i/94_Q51qVb8TuCXOljhfZhYg-_NA=/full-fit-in/4000x4000/filters:no_upscale():fill(white):strip_exif()/f/image/pEu2Ge66KZiOEzsSxGwTAhnc.png?f=user_large

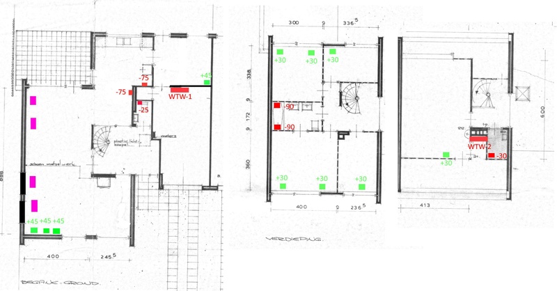
Meetrapport en oorspronkelijke afstelling:
Afbeeldingslocatie: https://tweakers.net/i/srYhKPZxioEwZOIm-lDu9g4IjAI=/x800/filters:strip_exif()/f/image/GCduMTkQ05HAAwbf1mQgSRLd.png?f=fotoalbum_large

Als ik de TS mag geloven dan is 250m3/h in stand 2 (150m3/h in de laagste stand) eigenlijk behoorlijk aan de hoge kant voor een twee persoons huishouden? Betreft wel een rijtjes woning van 160m2 oppervlak.

Wat ik reeds heb gedaan:
  • Afzuigingen op de zolder afgesteld van 15mm > naar 25mm (een na hoogste stand).
  • Beide afzuigingen in de keuken van 15mm naar 10mm aangepast.
  • Aanvoer woonkamer van 3x25 naar 3x20.
Dit lijkt nog geen effect te hebben op de CO2 in de slaapkamers.

Wellicht is het beter om:
1. De aanvoer in de woonkamer terug op 3x25 te zetten, zodat er minder weerstand is? Gezien deze het verst van de WTW af zitten, zullen ze (vermoedelijk) als laatste aftakking gemonteerd zijn.
2. Ik zou dan de aanvoer ventielen op de slaapkamers verder open kunnen zetten?

Ik ben nu sowieso een beetje blind met de ventielen aan het spelen, hoe bereken ik de juiste/optimale instellingen?
Immers als ik ergens een ventiel aanpas, dan zal dit op de overige ventielen een tegenovergesteld effect hebben? Wellicht ontstaat er hierdoor ook meer weerstand in het systeem, met meer geluid en energieverbruik tot gevolg?

[ Voor 11% gewijzigd door Gijs007 op 04-10-2024 15:25 ]

AMD Ryzen 7 9800X3D | Corsair H150i Elite LCD | GIGABYTE X670E AORUS XTREME | G.Skill Trident Z F5-7800J3646H16GX2-TZ5RK | Inno3D GeForce RTX 4090 iCHILL X3 | Corsair HX1000i | Crucial T700 4TB | Intel Optane 905P 1.5TB | MP600 NH 8TB | Corsair iCUE 5000T


Acties:
  • +1 Henk 'm!

  • roltor
  • Registratie: Juni 2013
  • Laatst online: 16:54
Gijs007 schreef op vrijdag 4 oktober 2024 @ 12:03:
Hoe overstroom correct in te regelen?

Situatie: Heb een paar jaar terug een nieuwbouw woning gekocht (160m2), met een WTW (e400 van Zehnder).
Twee persoon huishouden.
  • In de woonkamer/open keuken is de ventilatie (meer dan) voldoende.
  • Op de verdieping, in de twee kleinere slaapkamers, is de CO2 veel te hoog (1000+ppm). Om dit wat tegen te gaan moet de WTW momenteel handmatig op een hogere stand worden gezet. Maar zit dan nog rond de ~800 ppm
  • De zolder is stoffig van zichzelf (ruwbouw), en ruikt ook wat muf.
    n.b. Wil hier in de toekomst extra slaapkamers maken, maar er is alleen een afzuig ventiel aanwezig.
Doelen/aanpak:
  1. Ik wil dit gaan bijregelen door met overstroom te gaan werken vanuit de slaapkamers, en de afzuiging op zolder te verhogen, ten kosten van de aan/afvoer in de woonkamer/keuken.
    Maar weet niet zeker of dit de beste manier is voor een rijtjeswoning met meerdere verdiepingen.
  2. Ook weet ik niet hoe ik de ventielen correct afstel. Wil natuurlijk nog wel voldoende ventilatie in de keuken, en geen suboptimale situatie door weerstand, met meer geluid/energieverbruik tot gevolg.
    Immers als ik ergens een ventiel aanpas, dan zal dit op de overige ventielen een tegenovergesteld effect hebben?
  3. Verder zou ik het geluid van de afzuig ventielen terug willen brengen. Als de WTW op stand 2 of 3 draait, dan is de luchtstroom goed te horen (voornamelijk bij de afzuigventielen in de keuken).
Technische informatie:
  • Het huis heeft een open keuken, in de woonkamer/keuken is de ventilatie altijd op orde, zelfs als er veel bezoek is of gekookt wordt.
  • De woonkamer is het grootste deel van de tijd niet in gebruik.
    Hier hangt wel een CO2 sensor van Zehnder, waarop de WTW automatisch wordt gestuurd. In de praktijk doet deze CO2 sensor echter weinig, en draait de WTW bijna altijd in de laagste modus, behalve als er veel bezoek is.
  • De keuken is voorzien van een recirculatiekookplaat met plasma filter.
  • Slaapkamer 1 wordt gebruikt als kantoor.
  • De zolder heeft alleen een ventilatie afzuig ventiel, op het meetrapport staat deze als "wasmachine ruimte" omschreven.
  • Gebruikte ventielen zijn Zehnder STC voor afzuiging, en Zehnder S125 voor aanvoer
Bouwtekeningen:
n.b De cirkels met pijltjes geven de locatie van de ventielen aan, afzuiging (pijlen naar binnen), aanvoer (pijlen naar buiten).

[Afbeelding]

[Afbeelding]

[Afbeelding]

Meetrapport en oorspronkelijke afstelling:
[Afbeelding]

Als ik de TS mag geloven dan is 250m3/h in stand 2 (150m3/h in de laagste stand) eigenlijk behoorlijk aan de hoge kant voor een twee persoons huishouden? Betreft wel een rijtjes woning van 160m2 oppervlak.

Wat ik reeds heb gedaan:
  • Afzuigingen op de zolder afgesteld van 15mm > naar 25mm (een na hoogste stand).
  • Beide afzuigingen in de keuken van 15mm naar 10mm aangepast.
  • Aanvoer woonkamer van 3x25 naar 3x20.
Dit lijkt nog geen effect te hebben op de CO2 in de slaapkamers.

Wellicht is het beter om:
1. De aanvoer in de woonkamer terug op 3x25 te zetten, zodat er minder weerstand is? Gezien deze het verst van de WTW af zitten, zullen ze (vermoedelijk) als laatste aftakking gemonteerd zijn.
2. Ik zou dan de aanvoer ventielen op de slaapkamers verder open kunnen zetten?

Ik ben nu sowieso een beetje blind met de ventielen aan het spelen, hoe bereken ik de juiste/optimale instellingen?
Immers als ik ergens een ventiel aanpas, dan zal dit op de overige ventielen een tegenovergesteld effect hebben? Wellicht ontstaat er hierdoor ook meer weerstand in het systeem, met meer geluid en energieverbruik tot gevolg?
Lastig, ik heb hier in huis ook flink lopen proberen met de ventielen. Ik zou dat i.c.m. meten van CO2 vooral blijven doen, een relatief eenvoudige manier om het te optimaliseren. Als het toch niet bevalt, weet je ook hoe je het weer in moet stellen om bij je beginsituatie uit te komen.

M.i. zijn er een aantal zaken die ervoor zorgen dat de CO2 waarden op de slaapkamers te hoog wordt.

-de kleine slaapkamers zijn afgesteld op 1 persoon. Deze kamers hebben 1 ventiel. Het kantoor heeft er 2.
Omdat je de kamers anders gebruikt, 'klopt' deze afstelling in de praktijk niet.
Wat ik hier aan zou doen: als het kantoor in de praktijk door 1 persoon wordt gebruikt, zou ik 1 ventiel helemaal dicht draaien, om te voorkomen dat hier te veel wordt ingeblazen.
De ventielen in de slaapkamers zou ik helemaal open zetten. Hier is de CO2 waarde het hoogste, dus om op een zo laag mogelijke stand van de ventilatie unit toch voldoende verse lucht daar te krijgen, zou ik ze helemaal opendraaien. Om meer lucht hier in te blazen, zou ik ook de ventielen in de woonkamer meer dichtdraaien.
-de CO2 sensor in de woonkamer wordt onvoldoende 'getriggerd', omdat daar vaak niemand is. Hierdoor draait het hele systeem (te) vaak op een te lage stand.
Wat ik zou doen: Kijken of je de unit permanent op handmatige stand kunt zetten, en dan stand 2. Dan kun je waarschijnlijk het debiet op die stand omlaag doen.
Bij mij stond het ook op 250m3 per uur, inmiddels omlaag naar 200. Dat scheelt enorm in geluid en verbruik tov 250m3. Inmiddels staat het hier bijna altijd op stand 2 en nooit CO2 problemen (ik meet in alle kamers).

Kortom, ik zou beginnen in de kamers met meeste 'problemen', die ventielen helemaal open zetten. Dan in de overige ruimten de ventielen meer dicht draaien, zodat die niet te veel verse lucht krijgen.
Overal meten of de CO2 waardes goed blijven. Overigens is dit ook subjectief, 800 ppm lijkt mij prima in een ruimte waar mensen langdurig verblijven. Ik probeer onder de 1000 te blijven. Enige manier om dat voor elkaar te krijgen was de unit op maximaal debiet zetten in de nacht. Of de deur op een kiertje zetten.
Tenslotte kun je ook spelen met het debiet van de unit. Zet hem zo laag mogelijk, zonder dat het ten koste gaat van de luchtkwaliteit.

Als je het echt grondig aan wil pakken, kun je een meetapparaat kopen die meet per ventiel hoeveel er uit komt. Dat heb ik maar gelaten, als de CO2 waardes goed zijn, ben ik tevreden.

Acties:
  • 0 Henk 'm!

  • Gijs007
  • Registratie: Februari 2008
  • Laatst online: 19-10 11:32
Thanks voor de feedback en het meedenken.

De CO2 sensor wordt ook niet getriggerd als er wel mensen beneden zitten, waarschijnlijk omdat de ventilatie, zelfs in de laagste stand, gewoon relatief hoog is, voor het aantal mensen dat er meestal is.
Heb de laagste stand van de unit daarom maar verhoogd, maar dat is natuurlijk niet energiezuinig.

Ben de ventielen idd op basis van CO2 metingen, en gevoel, aan het bij regelen.
Ik mis alleen het inzicht in wat de gevolgen op andere plekken dan zijn, en wat nu eigenlijk de theorie/best practices zijn, voor deze situatie.

Ik las zojuist ook het e.a. over de anemometers, zijn op zich de kosten niet en een kap er op knutselen is ook wel te doen.
Wat problematischer is, is dat er best wel een aantal mensen aangaven dat de meetwaardes niet kloppen. Dus weet nu eigenlijk niet of ik daar wel iets mee opschiet. Als de inzichten niet kloppen, dan ga ik sturen op basis van verkeerde info.

AMD Ryzen 7 9800X3D | Corsair H150i Elite LCD | GIGABYTE X670E AORUS XTREME | G.Skill Trident Z F5-7800J3646H16GX2-TZ5RK | Inno3D GeForce RTX 4090 iCHILL X3 | Corsair HX1000i | Crucial T700 4TB | Intel Optane 905P 1.5TB | MP600 NH 8TB | Corsair iCUE 5000T


Acties:
  • 0 Henk 'm!

  • Jeweetje
  • Registratie: Oktober 2010
  • Laatst online: 21-10 08:36
@Gijs007 stel je vraag beter in https://gathering.tweakers.net/forum/list_messages/1985332.
Ook al zit er wat afwijking in het gemeten debiet met de anemometer, zolang dit consequent is en je aanpassingen opvolgt met een co2 meter kom je een heel eind.
Hou voor slaapkamers ca 30 m3/u aan per persoon.

Acties:
  • 0 Henk 'm!

  • M4inDC
  • Registratie: Februari 2021
  • Laatst online: 20:46
bensss schreef op woensdag 2 oktober 2024 @ 16:33:
[...]


De 200 Comfopipe plus valt mooi over de aansluiting heen, je moet er dan wel een klein randje afsnijden omdat het middenstuk ietsjes hoger is. Voor de buitenaansluiting heb ik de adapter gebruikt daar past 200mm ook mooi op.

Bedenk ook hoe je het verdere systeem binnen gaan aanleggen. Spirosafe verbindingen vind ik wel handig als je de binnenaansluitingen met spiro doet. De spirosafe moffen in 180 sluiten mooi aan om comfopipe 180 en de 200 logiserwijs ook. Eerst foto is 200 comfopipeplus waar dan het linker randje af moet. En de tweede foto is een 180-200 spirosafe mof.
Die adapter en dan met comfopipe plus buizen naar buitenaansluitingen ga ik dan sowieso doen, ik zag dat Andrehj daar ook een mooie oplossing voor had om dat in de gevel uit te laten komen.

Voor binnen ga ik dan ook die spirosafe spullen gebruiken, dat lijkt me idd erg handig. Heb je dan nog die alutape nodig of dichten die rubbers genoeg af?
Gebruik je dan nog ergens binnen die comfopipe, of waarom is het handig dat die comfopipe over je aansluiting heen valt als je voor de buitenaansluiting die adapter hebt?

Acties:
  • +1 Henk 'm!

  • P5ycho
  • Registratie: Januari 2000
  • Laatst online: 22:19
Jeweetje schreef op vrijdag 4 oktober 2024 @ 19:08:
@Gijs007 stel je vraag beter in https://gathering.tweakers.net/forum/list_messages/1985332.
Ook al zit er wat afwijking in het gemeten debiet met de anemometer, zolang dit consequent is en je aanpassingen opvolgt met een co2 meter kom je een heel eind.
Hou voor slaapkamers ca 30 m3/u aan per persoon.
Dat moet 45 ipv 30 zijn.

12x 280Wp ZW, 12x 280Wp ZO, Zubadan SHW80YAA 8kW, Zehnder Q450 ERV


Acties:
  • 0 Henk 'm!

  • M4inDC
  • Registratie: Februari 2021
  • Laatst online: 20:46
Misschien dat er toch nog mensen mijn plan willen bekritiseren / bevestigen?

Afbeeldingslocatie: https://tweakers.net/i/vdxpUKHKLkzCEWPvnwENRNA6NfI=/800x/filters:strip_icc():strip_exif()/f/image/YTvmRB5GtYO48MKAjoHZuWGy.jpg?f=fotoalbum_large

Ik heb de berekening met 45m3/h in @P5ycho's sheet ingevuld, deze gegevens daarna ingetekend door ventielen in de ruimtes te plaatsen, rekening houdend max 50 toevoer en max 75 afvoer per ventiel. Imaginair 125 worden de ventielen.

BGG:
Woonkamer vindt ik lastig, maar is dit wat:
- met 150m3/h toevoer, wil ik dit over 4 ventielen verdelen, die dan elk 37.5m3/h verwerken
- de 3 aan de onderkant kan ik met spiro makkelijk tussen de balken door doen (150mm van boven, en na de eerste kun je naar 125mm gaan)
- en dan de bovenste vanuit een luchtverdeelkast van 1e verdieping
Afbeeldingslocatie: https://tweakers.net/i/zIidRYsPWNk2IR1-zYULuFAZNBA=/800x/filters:strip_icc():strip_exif()/f/image/BDhzMrJU87ZbxdmwspxqqaBA.jpg?f=fotoalbum_large

1e verdieping:
Hier komt een spiro150 van zolder door een valse wand naar beneden om de 3 onderste toevoer ventielen te voeden, en iets verderop in de inloopkast/berging komt een spiro150 naar een verdeelkast (nog uitzoeken welke), deze voed met 2x 90 flex de slaapkamer ernaast (45m3/h), en met 2x 90 flex een van de woonkamer ventielen beneden. Ik kan via plafond of valse wand een andere ruimte in balkenlaag bereiken.
Verder nog een enkel ventiel in die berging gevoed door een enkele flexbuis.
Afbeeldingslocatie: https://tweakers.net/i/LAqmALtZuefZpUzW8GBKVX7dKe8=/800x/filters:strip_icc():strip_exif()/f/image/x6vDBAwuJfINtS2qgBg6381C.jpg?f=fotoalbum_large

Zolder:
Afvoer kan volledig via onderkant tekening, toevoer gesplitst.
Toevoer:
- bovenkant splitst hij in toevoer voor die ruimte en tak die doorloopt voor toevoer van slaapkamers er onder.

Afvoer:
- takt een keer af voor afvoer van de douche rechtsonder, maar gaat vrijwel direct door naar beneden.
Afbeeldingslocatie: https://tweakers.net/i/_jODZ7fowOG9B4VhQc0tIMgG_R4=/800x/filters:strip_icc():strip_exif()/f/image/HWPcfEaEszTPJifdbsSFtITg.jpg?f=fotoalbum_large

Acties:
  • 0 Henk 'm!

  • .Frank
  • Registratie: Februari 2001
  • Laatst online: 14:27

.Frank

Frank.

Hier is inmiddels m'n Zehnder Q350 binnen, het project is van start!

Wel meteen 'n tegenvaller: ik had gehoopt om de verbindingen vanaf de WTW naar buiten volledig uit te voeren in Thermoduct. Helaas gaat dat niet passen, want er blijkt te weinig ruimte boven de unit te zijn. Hier even 'n foto:

Afbeeldingslocatie: https://tweakers.net/i/cXT-yhtXo6-Fk6cCllWi1zFBcjA=/x800/filters:strip_icc():strip_exif()/f/image/0IUxkUzP60J4woOWkNgLPDVk.jpg?f=fotoalbum_large

De blauwe outline op de muur is waar de bevestigingsbeugel komt. Die kan niet lager, want dan kom ik aan de onderkant in de problemen met de leidingen die daar lopen. Hij kan ook niet verder naar links (om zo meer ruimte aan de bovenkant te creëren), want dan steekt de unit uit in het trapgat.

Wat meetwerk laat nu helaas zien dat de Thermoduct-combinatie op de foto (koppelstuk 160 --> 180mm + verbindingsmof 180mm + 45-gradenbocht) dermate hoog boven de unit uitkomt dat dit helemaal niet past. Een 90-gradenbocht evenmin, en bovendien kom ik daarmee dan alweer te dicht bij de dakdoorvoer voor de afvoer (boven in beeld). Die kan overigens nog korter worden afgezaagd, maar ook dan zou dit niet passen.

De enige andere optie die ik zie is om met Isodec te werken. Heeft dat nadelen anders dan meer weerstand?

Dat zou dan worden een 160mm --> 180mm spiro verloopstuk in de Zehnder (die 160mm binnendiameter heeft), met daar overheen een verbindingsmof 180mm waar ik zo'n Isodec aan vast tape. Ik neem aan dat dat dermate flexibel is dat ik dit wel passend krijg. Een snelle search in dit topic leert me echter twee dingen:
Puntenwolk schreef op dinsdag 30 juli 2024 @ 22:24:
[...]

Je zou kunnen overwegen om het kanaal van de unit naar de dakdoorvoer van de afvoer te vervangen door een flexibele dampdichte slang zoals Isodec.
@Puntenwolk schetst hier precies dit scenario (dus mijn gedachte passed the scrubcheck), maar @w00key zegt hier:
w00key schreef op donderdag 7 september 2023 @ 23:17:
Geen isodec voor hoofdkanaal, dat kan niet tegen onderdruk en gaat kapot bij de aanzuig leiding. Voor een aftakking naar een ventiel met low flow durf ik dat wel aan maar niet met paar honderd m3/uur.
In mijn scenario gaat er zeker wel een paar honderd kuub per uur door, maar zou het wel kunnen omdat het geen aanzuig betreft? Dan doet zich wel een vervolgvraag voor: want ook bij de aanvoer vanuit buiten heb ik gegeven deze ruimteproblematiek waarschijnlijk een stukje Isodec nodig naar de WTW toe. Als dat niet kan, dan valt dit plan in duigen...

Hoe doen mensen dit, als er geen plek voor Comfopipe/Thermoduct boven hun unit is?

Dutch StarCraft League | Campzone Tapijtrugby-kampioen (I've got the scars to prove it)


Acties:
  • +1 Henk 'm!

  • w00key
  • Registratie: Januari 2011
  • Laatst online: 22:29
@.Frank Van de maker van Isodec, Sonodec etc: https://www.decinternatio...nfo_negative_pressure.pdf

Voor naar buiten toe: afvoer is prima, aanvoer is 🤷‍♂️, ze geven geen garanties / grenswaardes af waarop het nog werkt. Maar als je geen keuze hebt - dan moet het maar.

Acties:
  • +1 Henk 'm!

  • bensss
  • Registratie: September 2020
  • Laatst online: 00:34
.Frank schreef op zondag 6 oktober 2024 @ 10:46:
Hier is inmiddels m'n Zehnder Q350 binnen, het project is van start!

Wel meteen 'n tegenvaller: ik had gehoopt om de verbindingen vanaf de WTW naar buiten volledig uit te voeren in Thermoduct. Helaas gaat dat niet passen, want er blijkt te weinig ruimte boven de unit te zijn. Hier even 'n foto:
Kan je niet de wtw naar voren plaatsen op een frame zodat hij kort boven de wasmachine komt te staan. Dan heb je wellicht net wat meer ruimte.

Zelfinstallatie Vaillant Arotherm Plus 55/6 | Zehnder Q450 | Variotherm DWTW | Enphase Envoy S + IQ7x Panasonic 7x335WP


Acties:
  • +1 Henk 'm!

  • .Frank
  • Registratie: Februari 2001
  • Laatst online: 14:27

.Frank

Frank.

Dank @w00key, erg informatief. Ik ga het proberen en we gaan het zien.

@bensss Interessante suggestie - zegmaar 'stapelen' boven de wasmachine verder uit de muur. Daar wil ik toch ook niet aan: dat lijkt me 'n minder duurzame bevestiging met zo'n centrifugerende wasmachine eronder, al maak je nog zo'n stevig frame. Liever goed bevestigd aan de muur. Maar ik houd deze wel even in m'n achterhoofd.

Dutch StarCraft League | Campzone Tapijtrugby-kampioen (I've got the scars to prove it)


Acties:
  • 0 Henk 'm!

  • bensss
  • Registratie: September 2020
  • Laatst online: 00:34
.Frank schreef op zondag 6 oktober 2024 @ 12:47:
Dank @w00key, erg informatief. Ik ga het proberen en we gaan het zien.

@bensss Interessante suggestie - zegmaar 'stapelen' boven de wasmachine verder uit de muur. Daar wil ik toch ook niet aan: dat lijkt me 'n minder duurzame bevestiging met zo'n centrifugerende wasmachine eronder, al maak je nog zo'n stevig frame. Liever goed bevestigd aan de muur. Maar ik houd deze wel even in m'n achterhoofd.
Je kan ook nog met wat multiplex een ‘valse wand’ maken zodat je de wtw zo laag mogelijk voor de wasmachine aansluiting kan hangen aan de beugel. Je kan dan alsnog een frame plaatsen voor de stevigheid en dan hangt hij ook nog aan de valse wand.

Zelfinstallatie Vaillant Arotherm Plus 55/6 | Zehnder Q450 | Variotherm DWTW | Enphase Envoy S + IQ7x Panasonic 7x335WP


Acties:
  • 0 Henk 'm!

  • J_star
  • Registratie: Mei 2005
  • Laatst online: 22:42
Puntenwolk schreef op woensdag 2 oktober 2024 @ 23:20:
[...]

Ik snap het nu beter, maar dit is niet zo’n hele unieke situatie en velen in dit topic zijn je voor gegaan. Niemand is daarbij uiteindelijk voor een vloerrooster of decentrale optie gegaan (wat je noemt is geen zone regeling, maar twee verschillende WTW units: een decentrale WTW). Maar zeg nooit nooit.

Eerste optie: ik snap nog niet helemaal waarom je niet gewoon door je plafond heen een ventiel aanlegt in je woonkamer, gewoon recht naar beden vanaf zolder met koofjes in de slaapkamers. Dan heb je niets lelijks in de woonkamer. Of is je esthetische beperking dat je geen koofjes in de slaapkamers op de 1e wil? Is er echt geen geplande kast of zo daar waar je achterlangs of doorheen kan?

Tweede optie: stel er is iets waardoor bovenstaande absoluut niet kan (wel graag even toelichten). Dan was er laatst ook iemand met een wenteltrap. Wat een leuke optie zou zijn is een driehoekig koofje in de “oksel” van de wenteltrap helemaal naar beneden. Die kan dan in de woonkamer uitkomen op een wandrooster in het kleine tussenmuurtje dat dichtbaar is op de foto. Een mooi strak lang lijnrooster bijvoorbeeld, daar kan niemand esthetisch over vallen.
Optie 1: Uiteraard is dit mogelijk - alleen kom je dan in het esthetisch vlak waar we eerder de standleidingen hebben verwijderd dat deze nu terug komt met een koof. Niet bezwaarlijk om het niet te doen. Wel hebben we een kozijn die redelijk dicht bij de muur staat en het origineel plan was om daar met de toekomstige airco naar buiten te gaan.

Afbeeldingslocatie: https://tweakers.net/i/vRN8VJO1W7PpV633Qz-NHgmPgis=/x800/filters:strip_icc():strip_exif()/f/image/teQUtJZFoXWOvzvbFhOIX9VX.jpg?f=fotoalbum_large

Wat mij dan niet duidelijk is, hoe ga je de afzuiging realiseren? Er zal dan denk ik een ringleiding naar de kleinste kamer moeten en vanuit daar naar beneden. Vervolgens moet je dan een forse afzuiging maken in die kamer (op een ventiel)? Het aanleggen van een koof in de gang is niet gewenst. Hier komt namelijk een enorme raam te zitten die dan totaal teniet wordt gedaan door hier een kolom te plaatsen. Ook kan je dan niet inblazen in het nieuwe 'kantoor' langs de keuken.

Afbeeldingslocatie: https://tweakers.net/i/A48rRIuTOfO_E52ZkT_K4SRnyoc=/800x/filters:strip_icc():strip_exif()/f/image/FpwMTsvdg4jURuvrP4B54KLE.jpg?f=fotoalbum_large

Optie 2: Deze was meer gewenst vanwege het gemak dat nu de vloer open ligt en dus geen koofjes gemaakt hoeft te worden.

Acties:
  • 0 Henk 'm!

  • jasperjansen
  • Registratie: Augustus 2018
  • Laatst online: 12-05 11:30
Hallo iedereen,

ik ben begonnen aan een totale renovatie van een woning uit 1906 en aangezien ik flink wat isolatie zal gaan toevoegen zal er ook een ventilatiesysteem moeten komen. Na delen van dit topic doorgenomen te hebben en de topicstart een eerste poging gewaagd aan de berekening voor de ventilatiebehoefte en een opzet van het ventilatieplan.

Voor mijn gevoel ben ik alles nu nog te erg aan het overdimensioneren. Uit de berekening volgt een ventilatiebehoefte van 475m3/h voor een oppervlak van circa 140m2, wat mij vrij fors lijkt vergeleken met andere plannen in dit topic.

Kunnen jullie mij feedback geven op welke punten ik dit ontwerp efficiënter of effectiever kan krijgen? Alvast bedankt!

Note: de ensuite deuren tussen voor- en achterkamer zullen 99% van de tijd vol open staan, ik denk dat dit als geheel dan als 1 ruimte kan worden beschouwd?

Afbeeldingslocatie: https://tweakers.net/i/W_3liZgnwWQb8vwlYFNuk-_CuYI=/800x/filters:strip_exif()/f/image/rpFV7m6zSye3OzRGF3LEUULK.png?f=fotoalbum_large

Afbeeldingslocatie: https://tweakers.net/i/QT8ixm69ROPjz6i45pUqPp9hW-w=/800x/filters:strip_exif()/f/image/ET5RPYjlco8SHVKfZGDHcmQp.png?f=fotoalbum_large

Acties:
  • 0 Henk 'm!

  • Puntenwolk
  • Registratie: Oktober 2017
  • Laatst online: 20-10 09:35
J_star schreef op zondag 6 oktober 2024 @ 20:00:
[...]


Optie 1: Uiteraard is dit mogelijk - alleen kom je dan in het esthetisch vlak waar we eerder de standleidingen hebben verwijderd dat deze nu terug komt met een koof. Niet bezwaarlijk om het niet te doen. Wel hebben we een kozijn die redelijk dicht bij de muur staat en het origineel plan was om daar met de toekomstige airco naar buiten te gaan.

[Afbeelding]

Wat mij dan niet duidelijk is, hoe ga je de afzuiging realiseren? Er zal dan denk ik een ringleiding naar de kleinste kamer moeten en vanuit daar naar beneden. Vervolgens moet je dan een forse afzuiging maken in die kamer (op een ventiel)? Het aanleggen van een koof in de gang is niet gewenst. Hier komt namelijk een enorme raam te zitten die dan totaal teniet wordt gedaan door hier een kolom te plaatsen. Ook kan je dan niet inblazen in het nieuwe 'kantoor' langs de keuken.

[Afbeelding]

Optie 2: Deze was meer gewenst vanwege het gemak dat nu de vloer open ligt en dus geen koofjes gemaakt hoeft te worden.
Je plattegrond is niet helemaal duidelijk voor me in de context van de uitleg (kleinste kamer? Kantoor? Welke kamers zijn dat?) omdat de kamers niet gelabeld zijn. Maar waarom met een koofje aan de raamzijde van de slaapkamers moeilijk doen? Je kan toch ook aan de achterwand van de slaapkamers dat maken?

Voor het geval dit je keuze beïnvloedde: het maakt weinig uit waar je in de woonkamer gaat inblazen. Je kan prima in het midden van de woonkamer een ventiel maken, of toevalligerwijze op de plek waar het op de 1e verdieping handig is de doorvoer te realiseren.

Acties:
  • 0 Henk 'm!

  • bensss
  • Registratie: September 2020
  • Laatst online: 00:34
jasperjansen schreef op zondag 6 oktober 2024 @ 20:30:
Hallo iedereen,

ik ben begonnen aan een totale renovatie van een woning uit 1906 en aangezien ik flink wat isolatie zal gaan toevoegen zal er ook een ventilatiesysteem moeten komen. Na delen van dit topic doorgenomen te hebben en de topicstart een eerste poging gewaagd aan de berekening voor de ventilatiebehoefte en een opzet van het ventilatieplan.

Voor mijn gevoel ben ik alles nu nog te erg aan het overdimensioneren. Uit de berekening volgt een ventilatiebehoefte van 475m3/h voor een oppervlak van circa 140m2, wat mij vrij fors lijkt vergeleken met andere plannen in dit topic.

Kunnen jullie mij feedback geven op welke punten ik dit ontwerp efficiënter of effectiever kan krijgen? Alvast bedankt!

Note: de ensuite deuren tussen voor- en achterkamer zullen 99% van de tijd vol open staan, ik denk dat dit als geheel dan als 1 ruimte kan worden beschouwd?

[Afbeelding]

[Afbeelding]
Het is vrij gemakkelijk, als je alle onnodige afzuiging uit de gang/overloop weghaalt dan zit je op een veel lagere totale afzuiging. Dan hoef je in de woonkamer ook veel minder toe te voeren.

Zelfinstallatie Vaillant Arotherm Plus 55/6 | Zehnder Q450 | Variotherm DWTW | Enphase Envoy S + IQ7x Panasonic 7x335WP


Acties:
  • 0 Henk 'm!

  • Puntenwolk
  • Registratie: Oktober 2017
  • Laatst online: 20-10 09:35
jasperjansen schreef op zondag 6 oktober 2024 @ 20:30:
Hallo iedereen,

ik ben begonnen aan een totale renovatie van een woning uit 1906 en aangezien ik flink wat isolatie zal gaan toevoegen zal er ook een ventilatiesysteem moeten komen. Na delen van dit topic doorgenomen te hebben en de topicstart een eerste poging gewaagd aan de berekening voor de ventilatiebehoefte en een opzet van het ventilatieplan.

Voor mijn gevoel ben ik alles nu nog te erg aan het overdimensioneren. Uit de berekening volgt een ventilatiebehoefte van 475m3/h voor een oppervlak van circa 140m2, wat mij vrij fors lijkt vergeleken met andere plannen in dit topic.

Kunnen jullie mij feedback geven op welke punten ik dit ontwerp efficiënter of effectiever kan krijgen? Alvast bedankt!

Note: de ensuite deuren tussen voor- en achterkamer zullen 99% van de tijd vol open staan, ik denk dat dit als geheel dan als 1 ruimte kan worden beschouwd?

[Afbeelding]

[Afbeelding]
Afvoer op beide overlopen en in de voorkamer kan weg, alles wat je daarmee bespaart minder toevoeren in de woonkamer.

Acties:
  • 0 Henk 'm!

  • Puntenwolk
  • Registratie: Oktober 2017
  • Laatst online: 20-10 09:35
w00key schreef op zondag 6 oktober 2024 @ 11:58:
@.Frank Van de maker van Isodec, Sonodec etc: https://www.decinternatio...nfo_negative_pressure.pdf

Voor naar buiten toe: afvoer is prima, aanvoer is 🤷‍♂️, ze geven geen garanties / grenswaardes af waarop het nog werkt. Maar als je geen keuze hebt - dan moet het maar.
Interessant leesvoer! Ik heb hier zelf isodec 200 liggen als aanvoer. Dat lijkt me dus in dit licht best risicovol. Hoewel ik dus begrijp dat het risico vooral is dat ze slang vervormt / “inklapt” door de onderdruk. Dat lijkt me in mijn specifieke erg bochtige voorbeeld weinig kansrijk omdat de slang in bochten heel stug wordt.

Maar ik studeerde toch al op een betere aan- en afvoer met vaste thermoduct kanalen om andere redenen (moeilijkheid de aansluitingen flex slangen perfect isolerend te krijgen bij aansluitingen op de unit). Dus nog een reden om hier aan de sleutelen t.z.t.

Acties:
  • 0 Henk 'm!

  • jasperjansen
  • Registratie: Augustus 2018
  • Laatst online: 12-05 11:30
Bedankt voor de feedback @bensss en @Puntenwolk!

Ik heb de layout aangepast door de afvoeren op de overloop en voorkamer weg te halen, dit zorgt er voor dat er een groter debiet via de trap van boven naar beneden gaat. Kan dit problemen geven (als bijvoorbeeld slaapkamerdeuren dicht zitten)?

Verder heb ik 1 extra afvoer in de keuken geplaatst omdat ik anders zo goed als geen aanvoer in de woonkamers kon plaatsen en het systeem nog in balans rekenen. Zit ik nu alsnog niet erg laag met aanvoer in de woonkamers?

Afbeeldingslocatie: https://tweakers.net/i/EV81iX2zdOnnEW9vIXxWQqYRBMo=/800x/filters:strip_exif()/f/image/iA5YDcUNOi78bg7Bq2PBOdiW.png?f=fotoalbum_large

Afbeeldingslocatie: https://tweakers.net/i/Y-oxtCl026OV2f29T0w6KnxctuI=/800x/filters:strip_exif()/f/image/pf9fOHk033aQIjML0S9TB13u.png?f=fotoalbum_large

Excuses als dit domme vragen zijn, maar dit hele onderwerp is nieuw voor mij :') .

Acties:
  • +3 Henk 'm!

  • Puntenwolk
  • Registratie: Oktober 2017
  • Laatst online: 20-10 09:35
Dit ziet er prima uit. 100 is zo’n beetje de grens van wat onder een gebruikelijke spleet onder één deur door kan. Voor de slaapkamers naar de overloop dus geen probleem. Overloop bg naar woonkamer op de grens. Meet de ruimte onder je deuren wel even op als je daar niet zeker van bent.

Ik zou allebei de aanvoeren in voor/achterkamer in de voorkamer plaatsen naast elkaar. De precieze richting van overstroom kan onvoorspelbaar zijn met meerdere deuren tussen twee ruimtes. Je zou bijvoorbeeld kunnen zien dat alles overloop - achterkamer - keuken gaat omdat daar ze afvoer zit, en dan de voorkamer te weinig geventileerd wordt als je er met meerdere mensen zit. Andersom heb je dit probleem niet omdat het dan overloop- voorkamer - achterkamer - keuken waait, en alles dan alsnog geventileerd wordt.

Acties:
  • 0 Henk 'm!

  • ZonnigY
  • Registratie: Mei 2022
  • Laatst online: 16:44
In de achterkamer gaat het goed, daar heb je sowieso 3*66 m3/h luchtverversing. In de voorkamer is het onzeker: Omdat je twee deuren hebt naar de beiden woonkamers ben je nu afhankelijk van de stand van de deuren of er voldoende geventileerd wordt in de voorkamer. Ik zou daarom de aanvoer van de achterkamer naar de in ieder geval naar de voorkamer verplaatsen.

edit: wat puntenwolk zegt dus...

[ Voor 61% gewijzigd door ZonnigY op 07-10-2024 12:06 ]

Bosch 5800i 10, vloerverwarming & fancoils, Zehnder Q600


Acties:
  • +1 Henk 'm!

  • Franciesco
  • Registratie: Januari 2021
  • Laatst online: 22:00
.Frank schreef op zondag 6 oktober 2024 @ 10:46:
Hoe doen mensen dit, als er geen plek voor Comfopipe/Thermoduct boven hun unit is?
Wat je kan overwegen is een stukje 180mm Ubbink Aerfoam of een Aerfoam 180mm bocht kopen en die direct op de Q350 zetten. Dat is denk ik minder hoog dan wat je nu hebt. De binnenmaat van die Aerfoam is weliswaar iets kleiner dan de buitenmaat van de Q350 aansluitingen, maar er zit voldoende rek in de Aerfoam om dat voor elkaar te krijgen.
Vervolgens dan vanaf de Aerfoam bocht verder werken met het materiaal van je keuze. Spiro van 180mm kun je b.v. ook in de 180mm Aerfoam krijgen als overgangsmateriaal.
Bij de buitenaansluitingen uiteraard er voor zorgen dat het traject helemaal geisoleerd is, dus eventuele "overgangsmateriaal" ook.

Acties:
  • 0 Henk 'm!

  • Threbez
  • Registratie: Maart 2010
  • Laatst online: 04-09 17:21
gewoon de eerste meter(s) met een kleinere kanaaldiameter werken. Ik heb het volgende gedaan:
Van/naar buiten:
Direct op de unit deze verbinding:
https://www.ventilatielan...uis-diameter-160mm/19470/
op die verbinding heb ik een bocht geplaatst en die bocht nog een flink stuk ingekort. (zorg wel dat het verbindingsstuk en de knik elkaar niet in de weg zitten.)
https://www.ventilatiesho...gsysteem-bocht-45-o160mm/
Van/naar binnen:
https://www.ventilatielan...50mm-voor-spirobuis/7496/
2x https://www.ventilatiesho...cht-90-graden-rond-150mm/
Verderop in het systeem probeer ik 'harde' 90graden bochten wel zoveel mogelijk te voorkomen en zorg ik voor een lagere luchtsnelheid.
Direct na de machine is de luchtflow sowieso turbulent dus gekke vormen maken daar niet veel uit. Verder restricten naar een (veel) kleinere diameter is niet verstandig maar ik ben zelf naar 150 mm pvc gegaan en dat gaat prima. Zorg dat de luchtsnelheid laag is in de laatste paar meter naar het ventiel. In je hoofdleiding maakt het niet zoveel uit (zolang de totale kanaalweerstand niet uit de hand loopt).
Het lastige aan stromingsleer is dat niets lineair is. Geen enkele designregel is dus 'hard' want het hangt altijd van je complete systeem en eisenlijstje af. Het goeie nieuws is dat je met de handvatten die je hier hoort een prachtig systeem kan maken en als je dan een klein beetje smokkelt waar je ruimtegebrek hebt is het nog steeds een heel goed systeem.

Acties:
  • 0 Henk 'm!

  • Biggg
  • Registratie: April 2007
  • Laatst online: 22:48
P5ycho schreef op zaterdag 1 juni 2024 @ 17:25:
[...]

Ik zie alleen maar verbeteringen, top d:)b.
Je vraag over de overflow is een terechte, boven de 50m3/h (=2cm deurspleet, groter is niet zo mooi meer) kun je een andere voorziening treffen om die flow de woonkamer in te krijgen.
Dit kan via een rooster in de muur (bijvoorbeeld Lindab OLC of OLR-A)

Met overflow maak je op de meest efficiente manier gebruik van je ventilatiedebiet.

Als je dat niet ziet zitten zou je een extra afvoerventiel in de hal kunnen maken. Normaal zou ik die op de begane grond in de grote ruimte doen, maar als je niet in beton wilt boren dan kan dat ook in de hal natuurlijk. Je moet dan wel je unit een beetje groter kiezen waarschijnlijk.
Is er hier iemand die daadwerkelijk zo'n Lindab OLR heeft? En dus weet waar je deze kan kopen?

Ik heb gezocht naar een OLR 500mm, maar is me nog niet gelukt om iets te vinden, of een soortgelijk product.

Acties:
  • 0 Henk 'm!

  • Delhi
  • Registratie: December 1999
  • Niet online
P5ycho schreef op donderdag 22 augustus 2024 @ 21:24:
Je kunt een stalen instortkanaal met breedte naar keuze pakken en inpakken met armaflex. Dan kom je net uit. Zit je alleen nog met de verloopstukken.
Dank voor je hulp! Ik ga het zo uitvoeren in de komende paar weken. Ik zit alleen met de armaflex te twijfelen. Je hebt 13 of 9mm. Waar heb je voldoende aan zonder condensatie risico?

Acties:
  • 0 Henk 'm!

  • Biggg
  • Registratie: April 2007
  • Laatst online: 22:48
Biggg schreef op vrijdag 11 oktober 2024 @ 09:34:
[...]


Is er hier iemand die daadwerkelijk zo'n Lindab OLR heeft? En dus weet waar je deze kan kopen?

Ik heb gezocht naar een OLR 500mm, maar is me nog niet gelukt om iets te vinden, of een soortgelijk product.
Is er niemand die mij hiermee kan helpen? Er wordt toch wel vaker hier overflow van trappenhuis/hal naar de woonkamer geadviseerd, ook via voor volumes die niet echt onder een deur door passen.

Maar ik kan geen goede optie voor een mooi muurrooster vinden (dat ook het geluid nog een een beetje tegen houdt).

Acties:
  • 0 Henk 'm!

  • P5ycho
  • Registratie: Januari 2000
  • Laatst online: 22:19
Warmteservice kan alles wat de nederlandse distributeur aanbiedt (r-vent en co) leveren. Even mailen/bellen naar je lokale filiaal.

12x 280Wp ZW, 12x 280Wp ZO, Zubadan SHW80YAA 8kW, Zehnder Q450 ERV


Acties:
  • 0 Henk 'm!

  • Biggg
  • Registratie: April 2007
  • Laatst online: 22:48
P5ycho schreef op dinsdag 15 oktober 2024 @ 09:45:
Warmteservice kan alles wat de nederlandse distributeur aanbiedt (r-vent en co) leveren. Even mailen/bellen naar je lokale filiaal.
Dat heb ik al gedaan. Die kunnen het rooster of een soortgelijk alternatief niet aanbieden :/.

Ik moet zo'n 80m3/h aan overflow de woonkamer in krijgen op stand 2. Het gaat dan waarschijnlijk een Duco Doorvent worden icm een extra spleet onder de deur. Tenzij iemand hier nog een ander idee heeft.

Acties:
  • 0 Henk 'm!

  • P5ycho
  • Registratie: Januari 2000
  • Laatst online: 22:19
Wandroosters zijn in een hoop maten te vinden, opk on varianten met demping. Voldoet dat ook niet?

Had je geinformeerd voor OLR, OLC, of beiden?

[ Voor 20% gewijzigd door P5ycho op 15-10-2024 10:00 ]

12x 280Wp ZW, 12x 280Wp ZO, Zubadan SHW80YAA 8kW, Zehnder Q450 ERV


Acties:
  • 0 Henk 'm!

  • Biggg
  • Registratie: April 2007
  • Laatst online: 22:48
P5ycho schreef op dinsdag 15 oktober 2024 @ 10:00:
Wandroosters zijn in een hoop maten te vinden, opk on varianten met demping. Voldoet dat ook niet?

Had je geinformeerd voor OLR, OLC, of beiden?
Ik heb naar de OLR of een soortgelijk alternatief gevraagd. Ik kan ook zelf niks vinden op diverse sites.

Acties:
  • 0 Henk 'm!

  • Frenkie567917
  • Registratie: September 2002
  • Laatst online: 22:51
Bij mijn (orienterende) zoektocht naar de akoustische (deur)roosters kwam ik de volgende producten tegen (overigens geen ervaring met de producten zelf) :

https://www.storax.nl/producten/akoestisch/
https://www.barcol-air.nl/producten/type-gge-ggg
https://www.gavo.net/nl/p...roosters/product-274.html
https://nedco.nl/nl/catal...ters/groups/pr+g+c+a+view

Acties:
  • 0 Henk 'm!

  • pythagorasABC
  • Registratie: Maart 2008
  • Laatst online: 17-10 23:17

pythagorasABC

A²+B²=C²

Ik ben aan het onderzoeken of ik balansventilatie kan installeren, en ik zit met twee vragen waar ik geen antwoord op kan vinden:

Voor de afzuiging in de badkamer wordt er gesproken over 10 maal de inhoud van de badkamer. Dit komt neer op zo'n 125 m3/h voor mij. Als ik hier rondkijk wat er een beetje berekend wordt lijkt dat veel meer rond de 50-75 te liggen. Wat is de reden van dit verschil? Is 75 meer dan genoeg voor mij? (5 m2 badkamer, 12 m3)

Ook vraag ik me af of ventilatie op zolder mogelijk is ter hoogte van de vloer. Ik zou max op zo'n 10-20cm hoogte idealiter de ventilatie willen plaatsen, maar ik kan niet vinden of dit goed werkt. (Het is een zolder met schuin dak, dus in het plafond is niet heel makkelijk te doen)

Silence is better than unmeaning words. ~Pythagoras


Acties:
  • +1 Henk 'm!

  • ZonnigY
  • Registratie: Mei 2022
  • Laatst online: 16:44
@pythagorasABC
De lucht in een badkamer wordt niet sneller vies als de badkamer groter wordt, uitgaande dat je er niet met 4 tegelijk wilt douchen tenminste... Ik zou dus bouwbesluit aanhouden. Dat is die 75 m3/h.

Ik heb roosters in de vloer op de bovenverdieping. Het werkt gewoon. Wel kans op tochtgevoel volgens de installateur, maar daar merk ik nog weinig van (woon er sinds mei weer in).

Bosch 5800i 10, vloerverwarming & fancoils, Zehnder Q600


Acties:
  • 0 Henk 'm!

  • Speedfight
  • Registratie: Januari 2003
  • Niet online
Speedfight schreef op zaterdag 5 oktober 2024 @ 16:14:
[...]

Nog volop in verbouwing, maar hij hangt inmiddels!
[Afbeelding]
Inmiddels is er de afgelopen week gestuct en zit er sinds een paar dagen glas in de aanbouw waardoor het wind en waterdicht is. De vloerverwarming mag nog niet aan vanwege uitharden van de dekvloer. Temperatuur is momenteel 15,2 graden met een luchtvochtigheid van 73%.

De wtw is sinds afgelopen week in bedrijf gesteld (al moet afstellen van de luchtdebieten nog gebeuren).

Nu het glas erin zit, is er echter sprake van condensvorming op de ongeisoleerde spiro buis van de aanvoer van verse lucht in de ruimte.

Volgens de installateur komt dit omdat er geen voorverwarming in de wtw zit en de binnentemperatuur nog te laag is. Kan dat inderdaad de oorzaak zijn?

Vaillant aroTHERM plus VWL55/6, Zehnder WHR 930 WTW, Itho Daalderop douche-WTW, SolarEdge SE6K 6610Wp, SE3000H 3160Wp, Kia EV6 GT-line RWD


Acties:
  • 0 Henk 'm!

  • rikkkurd
  • Registratie: Maart 2011
  • Laatst online: 17:18
Natuurlijk kan dat, hoe koud is het in huis? kan de wtw al warmte terugwinnen? of is binnen en buiten temperatuur bijna gelijk?

Acties:
  • 0 Henk 'm!

  • Speedfight
  • Registratie: Januari 2003
  • Niet online
rikkkurd schreef op woensdag 16 oktober 2024 @ 09:25:
Natuurlijk kan dat, hoe koud is het in huis? kan de wtw al warmte terugwinnen? of is binnen en buiten temperatuur bijna gelijk?
Het is 15,2 graden binnen en 73% luchtvochtigheid. Buiten is het 13,7 graden en 100% luchtvochtigheid.
(al heb ik de WTW gisterenavond uitgezet om verdere condensvorming te voorkomen, nu natuurlijke ventilatie met twee ramen op kiepstand).

Vaillant aroTHERM plus VWL55/6, Zehnder WHR 930 WTW, Itho Daalderop douche-WTW, SolarEdge SE6K 6610Wp, SE3000H 3160Wp, Kia EV6 GT-line RWD


Acties:
  • 0 Henk 'm!

  • rikkkurd
  • Registratie: Maart 2011
  • Laatst online: 17:18
hmm, geen groot temperatuurverschil en warme lucht kan meer vocht vasthouden, dus als die dan weer afkoelt op het raam krijg je condens.

aangezien het best vochtig is in je huis en je nu ook de luchtvochtigheid omlaag kunt krijgen met de 100% luchtvochtigheid buiten, verwacht ik wel dat dit zichzelf gaat oplossen.

misschien interessant om even hiermee te spelen. Geeft wellicht wat inzicht
https://www.lenntech.nl/c...relatieve-vochtigheid.htm

Acties:
  • 0 Henk 'm!

  • Speedfight
  • Registratie: Januari 2003
  • Niet online
Dank @rikkkurd ik ga er eens induiken. Ps op advies van de installateur heb ik hem vandaag weer aangezet ivm warm weer buiten. Luchtvochtigheid is inmiddels alleen 81% binnen. Ik ga de condensvorming weer even in de gate houden.

Ook geeft de WTW nog de fout “afzuigmotor is gestopt met draaien of draait te langzaam: verhoog de minimale stand”.

Bij het instellen van de stand kan ik hem wel harder laten draaien, maar in de automatische modus gaat hij weer langzamer draaien met de foutmelding tot gevolg. Zelf denk ik dat dit wellicht komt dat de ruimte nog zo koud is dat hij de binnenlucht niet wil gebruiken en daarom de betreffende ventilator bijna uitzet.

Vaillant aroTHERM plus VWL55/6, Zehnder WHR 930 WTW, Itho Daalderop douche-WTW, SolarEdge SE6K 6610Wp, SE3000H 3160Wp, Kia EV6 GT-line RWD


Acties:
  • 0 Henk 'm!

  • Cbr
  • Registratie: Augustus 2012
  • Laatst online: 23:27

Cbr

Speedfight schreef op woensdag 16 oktober 2024 @ 19:01:

Bij het instellen van de stand kan ik hem wel harder laten draaien, maar in de automatische modus gaat hij weer langzamer draaien met de foutmelding tot gevolg. Zelf denk ik dat dit wellicht komt dat de ruimte nog zo koud is dat hij de binnenlucht niet wil gebruiken en daarom de betreffende ventilator bijna uitzet.
Toevallig een Duco?

Acties:
  • 0 Henk 'm!

  • Speedfight
  • Registratie: Januari 2003
  • Niet online
Het is een (wat onbekendere) S&P Energisava 250: https://www.solerpalau.co...nergisava-250-2636-serie/

Vaillant aroTHERM plus VWL55/6, Zehnder WHR 930 WTW, Itho Daalderop douche-WTW, SolarEdge SE6K 6610Wp, SE3000H 3160Wp, Kia EV6 GT-line RWD


Acties:
  • 0 Henk 'm!

  • Cbr
  • Registratie: Augustus 2012
  • Laatst online: 23:27

Cbr

Dan geen idee. De Duco van de verhuurder deed iets soortgelijks bij de auto-stand. De oplossing was een dag- of weekprogramma instellen.
Werkt dat?

Acties:
  • 0 Henk 'm!

  • Speedfight
  • Registratie: Januari 2003
  • Niet online
Cbr schreef op woensdag 16 oktober 2024 @ 19:49:
[...]

Dan geen idee. De Duco van de verhuurder deed iets soortgelijks bij de auto-stand. De oplossing was een dag- of weekprogramma instellen.
Werkt dat?
Dank voor het meedenken, zo geavanceerd is deze unit (helaas) niet. Kent alleen standje automatisch of boost. Geen tijdschema’s of andere instellingen…

Vaillant aroTHERM plus VWL55/6, Zehnder WHR 930 WTW, Itho Daalderop douche-WTW, SolarEdge SE6K 6610Wp, SE3000H 3160Wp, Kia EV6 GT-line RWD


Acties:
  • 0 Henk 'm!

  • nl2dav
  • Registratie: Juni 2001
  • Laatst online: 19:28
Franciesco schreef op zondag 25 augustus 2024 @ 20:17:
In navolging van de eerder door @Puntenwolk gemaakte benchmark van dempers is onderstaande misschien interessant. Ik heb namelijk

[..]

Ik heb trouwens ook de Panflex Semi flexibele demper. Die staat nu in serie met 1,5 meter flexibele Panflex (toevoer). Mooie demper wat mij betreft.
Lijkt mooi maar bedenk wel dat je nu minerale wol met kunsthars in aanraking laat komen met verse lucht wat dan dus geen verse lucht meer wordt.

Ik heb inmiddels de jute(n) versie over laten komen uit Duitsland (aka mineralfaserfrei).

Acties:
  • 0 Henk 'm!

  • WeerNsKlussers
  • Registratie: Maart 2024
  • Laatst online: 22:44
Weet iemand of er van die Amerikaans gekkigheid black friday deals worden verwacht voor WTW systemen? Wij hebben ondertussen ons systeem uitgewerkt, kanalen besteld, kanalen gedeeltelijk geinstalleerd. Maar we hoeven de puntjes nog niet op de i te zetten. Als het gunstig is om nog een maandje te wachten doen we dat liever.

Daarnaast zitten we nog met een puntje. Onze unit komt onder een plat dak te hangen. We kunnen vanaf daar recht omhoog voor dakdoorvoer 1 (dit wordt dan de aanzuig). Binnenshuis is echt 0.0 plek om te verplaatsen voor de andere dakdoorvoer. Hoogteverschil kan ook niet, want we hebben ook nog een schoorsteen van een open haard.

Waar ik zelf aan zat te denken zijn dakdoorvoer met 160mm spirobuis (geisoleerd), 90 graden bocht (geisoleerd), 2m 160mm spirobuis (niet geisoleerd), roostertje en klaar. Rubbermatten + stoeptegels (of montage balken; eens zien wat er uit ons tuintje komt) voor de beugeltjes. Eventueel met een licht afschot richting het roostertje zodat de natuurkunde ook meehelpt tegen een drupje condens.

Acties:
  • 0 Henk 'm!

  • Franciesco
  • Registratie: Januari 2021
  • Laatst online: 22:00
nl2dav schreef op donderdag 17 oktober 2024 @ 04:47:
[...]


Lijkt mooi maar bedenk wel dat je nu minerale wol met kunsthars in aanraking laat komen met verse lucht wat dan dus geen verse lucht meer wordt.

Ik heb inmiddels de jute(n) versie over laten komen uit Duitsland (aka mineralfaserfrei).
Kun je dit toelichten? Wat gebeurt er precies in de reguliere flexibele dempers zoals die van mijn bericht? En waarom is het gebruik hiervan slecht/ongezond of zorgt dit er voor dat de (volgens jouw bericht) verse lucht geen verse lucht meer is?

Acties:
  • +1 Henk 'm!
WeerNsKlussers schreef op donderdag 17 oktober 2024 @ 09:11:
Daarnaast zitten we nog met een puntje. Onze unit komt onder een plat dak te hangen. We kunnen vanaf daar recht omhoog voor dakdoorvoer 1 (dit wordt dan de aanzuig). Binnenshuis is echt 0.0 plek om te verplaatsen voor de andere dakdoorvoer. Hoogteverschil kan ook niet, want we hebben ook nog een schoorsteen van een open haard.
Je weet dat het aanzuigen van lucht van boven een plat dak een slecht idee is omdat vlak boven een plat dak (als dat in de zon ligt tenminste) de lucht in de zomer ontzettend heet wordt?

[ Voor 20% gewijzigd door Andrehj op 17-10-2024 11:05 ]

WP: ME PUHZ-SW75YAA + ERSD-VM2D + EV-WP-TWS-1W 300; AC: ME MXZ-2F42VF + 2x MSZ-LN25VGV; PV: 14.08 kWp O/W + SMA STP 8.0; Vent: Zehnder Q600 ERV + Ubbink AirExcellent.


Acties:
  • +1 Henk 'm!

  • WeerNsKlussers
  • Registratie: Maart 2024
  • Laatst online: 22:44
Andrehj schreef op donderdag 17 oktober 2024 @ 11:00:
[...]

Je weet dat het aanzuigen van lucht van boven een plat dak een slecht idee is omdat vlak boven een plat dak (als dat in de zon ligt tenminste) de lucht in de zomer ontzettend heet wordt?
Ja, maar da's nou eenmaal hoe het huis is gebouwd. :+ We hebben na de verbouwing nog maar zo'n 1.2 vierkante meter pannendak over & daar krijgen we ook geen buizen heen.

Ons huis werd (door leveranciers) aangemerkt als ongeschikt voor zonnepanelen aangezien de buren hoger zijn dan wij en hun huis nog een stukje verder doorloopt naar het zuiden. Daarnaast hebben we een flinke schoorsteen. De inzuig wil ik in het "V"tje gecreeerd door de buren en onze schoorsteen plaatsen. Volgens de zonnepanelen verkopers is daar nauwelijks tot geen zon. (Volgens mij ook niet, en anders ga ik het dak wel wit verven; of even berekenen of kiezels kunnen.)

Acties:
  • 0 Henk 'm!

  • fujiphoto
  • Registratie: September 2015
  • Laatst online: 20-10 18:41
Goedemiddag.

Ik heb een berekening gemaakt voor mijn woning. Lijkt dit een beetje oke?

Afbeeldingslocatie: https://tweakers.net/i/7CWiUnPTpnr8-dSESU2a0bkoan4=/full-fit-in/4000x4000/filters:no_upscale():fill(white):strip_exif()/f/image/tWZuSr5kpV6p1GR20ZjnwUKL.png?f=user_large

Afbeeldingslocatie: https://tweakers.net/i/FMefsJsKoyOi3O2LR2jdXT0raFg=/full-fit-in/4000x4000/filters:no_upscale():fill(white):strip_exif()/f/image/SQtWDqIWz5XqmFsFhojnhqQB.png?f=user_large

Afbeeldingslocatie: https://tweakers.net/i/iTXwfn8FRGQC8cXcuu2yyInGcBA=/full-fit-in/4000x4000/filters:no_upscale():fill(white):strip_exif()/f/image/y2BJh5j9z4IkZWvXbl0Q9yyg.png?f=user_large

Acties:
  • 0 Henk 'm!

  • P5ycho
  • Registratie: Januari 2000
  • Laatst online: 22:19
Standaardvragen:
- Is dit bij nominaal of maximaal debiet? (advies is intekenen op maximaal debiet)
- Heb je een balanscalculatie gemaakt? Ik heb geen zin om het na te rekenen namelijk :+. Plaats die even.

Verder:
Afzuigen op de overloop is onrendabel.
Aanvoeren in het trapgat is onlogisch
afzuigen i de keuken met 30/30/60 is onhandig, maak daar dan 40/40/40 van.
Probeer overflow te gebruiken via het trapgat, of geef dit duidelijker aan in de tekening.

12x 280Wp ZW, 12x 280Wp ZO, Zubadan SHW80YAA 8kW, Zehnder Q450 ERV


Acties:
  • 0 Henk 'm!

  • fujiphoto
  • Registratie: September 2015
  • Laatst online: 20-10 18:41
@P5ycho

Ik heb het aangepast en de balanscalculatie toegevoegd.
Nu ingetekend op maximaal debiet

Afbeeldingslocatie: https://tweakers.net/i/90gGqfCvnbFZC8bYeChLj2NdJLs=/232x232/filters:strip_exif()/f/image/2r8l8QeZUkDlUlNgyzpEAgzj.png?f=fotoalbum_tileAfbeeldingslocatie: https://tweakers.net/i/cFUMnsqadUQ2CVa40x8J2PFFALs=/232x232/filters:strip_exif()/f/image/4BT4dH0HGOTxHy9xnDLCsWNu.png?f=fotoalbum_tileAfbeeldingslocatie: https://tweakers.net/i/7L7mgAjMQBikeHQ4D_YQMkMtU_0=/232x232/filters:strip_exif()/f/image/o7eSX4vOsfhnjT8FfTM1Zc08.png?f=fotoalbum_tile


Afbeeldingslocatie: https://tweakers.net/i/dfH2ydF01alNONerc4ogwfW87xg=/800x/filters:strip_exif()/f/image/lFkaOm8RgOqyTxlY60vvQCEh.png?f=fotoalbum_large

[ Voor 20% gewijzigd door fujiphoto op 17-10-2024 15:50 ]


Acties:
  • 0 Henk 'm!

  • Henkie-Jan
  • Registratie: Mei 2005
  • Laatst online: 23:32
Er zit al langere tijd in mijn huur appartement een Soler & Palau Energisava 250 WTW. Na onderhoud enige tijd terug blijkt er niet eens een bypass klep in te zitten? Of althans er lijkt niets op de stekker aangesloten of een mechanische klep in te zitten. Daarnaast schakelt de WTW pas naar summer bypass bij 25 graden celsius. Contact over beide dingen opgenomen met de fabrikant. Zeggen dat er altijd een klep in zit voor de bypass en om de summer bypass in te schakelen de afstandbediening verstandig is te gebruiken. Echter die heb ik nooit ontvangen. Na weer contact te hebben gehad met de fabrikant zeggen ze dat die altijd bijgeleverd wordt. Na qweer contact met de verhuurder te hebben gehad blijkt dat ze die weigeren te geven aan de huurders omdat er anders te veel geprutst mee zou worden... Blijktbaar achter ze dat al hun huurders een iq van een pannenkoek hebben... Ik gebruik de live schakel functie nu maar met een relais voor boost et cetera maar kan daar niet de bypass doen als ie bestaat.

Iemand enige idee of je anders extern met een buis een bypass kan creeeren of iets?

Zonnepanelen: 800Wp op oost 80 graden aan balkon met schaduw


Acties:
  • 0 Henk 'm!

  • P5ycho
  • Registratie: Januari 2000
  • Laatst online: 22:19
De bypass schakelen bij een vaste temperatuur kan verkeerd uitpakken in herft en lente als je de temperatuur te laag zet. Je wtw draait dan bijvoorbeeld overdag in bypass, terwijl je de afgevoerde warmte in de nacht weer bij moet stoken. Daarom staat een 'domme' bypass regeling normaal wat hoger dan de gewenste binnentemperatuur. Een betere manier om dit te regelen is kijken naar de gemiddelde buitentemp over langere periode, als je unit dat ondersteunt.

Ik snap heel goed dat de verhuurder de gebruiker niet met de unit wil laten spelen. Daar valt niet zoveel te winnen namelijk. Als de bypass klep compleet mist, dan is dat wel raar. Je moet overigens geen airco-achtige performance verwachten van een bypass, het scheelt hooguit een paar honderd Watt.

12x 280Wp ZW, 12x 280Wp ZO, Zubadan SHW80YAA 8kW, Zehnder Q450 ERV


Acties:
  • 0 Henk 'm!

  • P5ycho
  • Registratie: Januari 2000
  • Laatst online: 22:19
fujiphoto schreef op donderdag 17 oktober 2024 @ 15:48:
@P5ycho

Ik heb het aangepast en de balanscalculatie toegevoegd.
Nu ingetekend op maximaal debiet

[Afbeelding][Afbeelding][Afbeelding]


[Afbeelding]
De opzet is goed. Studie, Makeup en zolder zijn wel ietwat wat ondergedimensioneerd. Daar kan maar 2/3e persoon slapen :+. Als het even kan zou ik daar wel uit gaan van 1 compleet persoon indien mogelijk. Als je dat niet ziet gebeuren, dan kun je het ook zo laten.

12x 280Wp ZW, 12x 280Wp ZO, Zubadan SHW80YAA 8kW, Zehnder Q450 ERV


Acties:
  • 0 Henk 'm!

  • fujiphoto
  • Registratie: September 2015
  • Laatst online: 20-10 18:41
P5ycho schreef op donderdag 17 oktober 2024 @ 17:25:
[...]

De opzet is goed. Studie, Makeup en zolder zijn wel ietwat wat ondergedimensioneerd. Daar kan maar 2/3e persoon slapen :+. Als het even kan zou ik daar wel uit gaan van 1 compleet persoon indien mogelijk. Als je dat niet ziet gebeuren, dan kun je het ook zo laten.
Probleem waar ik dan mee zit is dat ik niet genoeg extractie krijg. Hoe ik los ik dat op?

Acties:
  • 0 Henk 'm!

  • P5ycho
  • Registratie: Januari 2000
  • Laatst online: 22:19
Ja, dat is het lastige. Nog meer flow naar de woonkamer, of het debiet in badkamer en wc nog een beetje verhogen. Ik doe 90+35 respectievelijk.

12x 280Wp ZW, 12x 280Wp ZO, Zubadan SHW80YAA 8kW, Zehnder Q450 ERV


Acties:
  • +1 Henk 'm!

  • nl2dav
  • Registratie: Juni 2001
  • Laatst online: 19:28
Franciesco schreef op donderdag 17 oktober 2024 @ 09:25:
[...]


Kun je dit toelichten? Wat gebeurt er precies in de reguliere flexibele dempers zoals die van mijn bericht? En waarom is het gebruik hiervan slecht/ongezond of zorgt dit er voor dat de (volgens jouw bericht) verse lucht geen verse lucht meer is?
dat had ik al toegelicht, in dit soort buizen wordt kunsthars toegepast als bindmiddel voor minerale wol. Echter zie ik nu dat Panflex 'Ecose' gebruikt voor hun 'cleanroomsafe' producten mèt gewoven afschermdoek. Er is echter ook een niet-'cleanroomsafe' variant om raadselachtige redenen met een onbekende glaswol variant, dat zou ik niet willen promoten, we hebben al teveel patiënten met zware luchtwegallergieën/eosinofilie zoals ik.

Je bent je er toch wel van bewust dat standaard dempers honderden kleine gaatjes bevatten met direct daarachter minerale wol?

Dat ziet er zo uit, maar dan de gewone minerale wol variant;

Afbeeldingslocatie: https://www.mauerkasten.de/media/catalog/product/cache/1/image/9df78eab33525d08d6e5fb8d27136e95/s/c/schalld_mpfer_mineralfaserfrei_ventilationnord_1_.jpg

Acties:
  • 0 Henk 'm!

  • Lord Anubis
  • Registratie: Juni 2009
  • Laatst online: 16:58
Heb wat vragen over overflow en de temperatuur ervan.
Zelf is hier zelden de verwarming aan gezet in de badkamer en in de slaapkamers alleen in de kinderkamer. Wil in de toekomstige woning wel de mogelijkheid hebben om in de badkamer de verwarming te kunnen regelen. De warmte uit de slaapkamers zal 18° zijn, gaat een tussen hal in, en kan dan afgezogen worden via de tweede hal, toilet en badkamer; via overflow dus. Beetje zal ook de woonkamer in kunnen.

Hoe gaan jullie hiermee om om de temperatuur op te warmen geschikt voor de badkamer? Of in een vergelijkbare situatie naar een woonkamer?

Tweede vraag. Ik lees vooral over de woonkamer met (open)keuken als twee ruimtes maar in het bouwbesluit wordt deze combinatie een verblijfsgebied, wat meerdere verblijfsruimten kan omvatten binnen een woning. Als de keuken en woonkamer in één open ruimte zijn gecombineerd, vallen dus onder deze overkoepelende term. Deze heeft zijn eigen waarden en heeft dus zowel toevoer als afvoer. Maar lees niets over deze combinatie hier. How come?

Acties:
  • 0 Henk 'm!

  • Melniek
  • Registratie: Juni 2005
  • Laatst online: 19:25
Ik heb ook vragen over overflow:

Wij zijn bezig met het ontwerp van een woning en hebben een master bedroom met inloopkast en ensuite badkamer. Op basis van de rekenhulp zou je uitkomen op 90 m³/h toevoer in het slaapvertrek en 75m³/h afvoer via de badkamer. Vanuit de afvoer op de badkamer zou je ook overflow kunnen creëren vanuit de overloop via de slaapkamer. Is het af te raden toevoer naar de slaapkamer deels af te vangen via overflow?

De overweging hierachter is de overflow vanuit de zolder. Hierin zijn twee ruimten die ik in verband met de flexibiliteit qua toevoer beide als tweepersoons slaapkamer wil dimensioneren. In de praktijk zal de komende jaren echter maar één ruimte gebruikt worden als slaapkamer en alleen door één persoon. Hierdoor ontstaat een grote overflow (180 m³/h) vanuit zolder van semi-frisse lucht.

Om te voorkomen dat al die overstroom vanuit zolder onder de deur van de woonkamer door moet, dacht ik dat het verstandig kon zijn die af te romen via de master bedroom door daar de afvoer te vergroten of de toevoer te verkleinen. Is dit een verstandige overweging of moet ik dit laten varen?

Acties:
  • 0 Henk 'm!

  • Franciesco
  • Registratie: Januari 2021
  • Laatst online: 22:00
nl2dav schreef op donderdag 17 oktober 2024 @ 19:08:
[...]


dat had ik al toegelicht, in dit soort buizen wordt kunsthars toegepast als bindmiddel voor minerale wol. Echter zie ik nu dat Panflex 'Ecose' gebruikt voor hun 'cleanroomsafe' producten mèt gewoven afschermdoek. Er is echter ook een niet-'cleanroomsafe' variant om raadselachtige redenen met een onbekende glaswol variant, dat zou ik niet willen promoten, we hebben al teveel patiënten met zware luchtwegallergieën/eosinofilie zoals ik.

Je bent je er toch wel van bewust dat standaard dempers honderden kleine gaatjes bevatten met direct daarachter minerale wol?

Dat ziet er zo uit, maar dan de gewone minerale wol variant;

[Afbeelding]
Het werkingsprincipe van de dempers is me bekend. Maar waar kan ik lezen over de invloed van de kunsthars op de luchtkwaliteit?

Acties:
  • 0 Henk 'm!

  • Puntenwolk
  • Registratie: Oktober 2017
  • Laatst online: 20-10 09:35
Lord Anubis schreef op donderdag 17 oktober 2024 @ 19:50:
Hoe gaan jullie hiermee om om de temperatuur op te warmen geschikt voor de badkamer? Of in een vergelijkbare situatie naar een woonkamer?
Bij de kleine debieten waar het hier in de woonhuis context over gaat (75 max / 50 normaal) is het temperatuur effect verwaarloosbaar als de verschillen niet heel groot zijn. Oftewel: als de badkamer 20 graden is en moet blijven, en er komt max 75 m3 lucht per uur van 18 graden binnen, doet dat niet merkbaar iets met je verwarmingscapaciteit. Je handdoekradiator moet een heel klein beetje harder draaien.
Tweede vraag. Ik lees vooral over de woonkamer met (open)keuken als twee ruimtes maar in het bouwbesluit wordt deze combinatie een verblijfsgebied, wat meerdere verblijfsruimten kan omvatten binnen een woning. Als de keuken en woonkamer in één open ruimte zijn gecombineerd, vallen dus onder deze overkoepelende term. Deze heeft zijn eigen waarden en heeft dus zowel toevoer als afvoer. Maar lees niets over deze combinatie hier. How come?
Je leest hier niets over omdat er hier geen bouwbesluit juristen zijn maar Tweakers die houden van frisse lucht. En dan is het voor een leefruimte zoals een woonkeuken vrij simpel, zoals in de TS staat beschreven: hoeveel mensen maken er gewoonlijk gebruik van en vermenigvuldig dat met circa 30 in de normaalstand. Deze luchtverversing realiseer je voor een woonkeuken meestal door de afvoer in het keukendeel voor het totaal vereiste debiet in te tekenen, en dan voorbode aanvoer een combinatie van overflow en aanvoerventielen in het woonkamer deel.

Acties:
  • 0 Henk 'm!

  • Puntenwolk
  • Registratie: Oktober 2017
  • Laatst online: 20-10 09:35
Melniek schreef op donderdag 17 oktober 2024 @ 20:56:
Ik heb ook vragen over overflow:

Wij zijn bezig met het ontwerp van een woning en hebben een master bedroom met inloopkast en ensuite badkamer. Op basis van de rekenhulp zou je uitkomen op 90 m³/h toevoer in het slaapvertrek en 75m³/h afvoer via de badkamer. Vanuit de afvoer op de badkamer zou je ook overflow kunnen creëren vanuit de overloop via de slaapkamer. Is het af te raden toevoer naar de slaapkamer deels af te vangen via overflow?

De overweging hierachter is de overflow vanuit de zolder. Hierin zijn twee ruimten die ik in verband met de flexibiliteit qua toevoer beide als tweepersoons slaapkamer wil dimensioneren. In de praktijk zal de komende jaren echter maar één ruimte gebruikt worden als slaapkamer en alleen door één persoon. Hierdoor ontstaat een grote overflow (180 m³/h) vanuit zolder van semi-frisse lucht.

Om te voorkomen dat al die overstroom vanuit zolder onder de deur van de woonkamer door moet, dacht ik dat het verstandig kon zijn die af te romen via de master bedroom door daar de afvoer te vergroten of de toevoer te verkleinen. Is dit een verstandige overweging of moet ik dit laten varen?
Ik heb zelf een soortgelijke situatie waarbij een slaapkamer volledig geventileerd wordt door overflow via afzuiging van de en suite WC. Dit is wel vanaf de woonkamer (geen overloop) waar verder geen slaapkamers over doorstromen. Daarom is dit in de nacht altijd 100% frisse lucht.

Je zou even moeten rekenen met de verdunningsfactoren om precies te kijken hoe “semi fris” jouw frisse lucht uitkomt in dit geval. 180 op 1 persoon klinkt prima, maar naast CO2 heb je ook te maken met geuren en dergelijke.

Een kaartje en ventilatieberekening zou helpen om een completer antwoord te geven, misschien zijn er creatieve oplossingen mogelijk met valdorpels en muurdoorvoeren.

Acties:
  • 0 Henk 'm!

  • ZonnigY
  • Registratie: Mei 2022
  • Laatst online: 16:44
fujiphoto schreef op donderdag 17 oktober 2024 @ 17:56:
[...]


Probleem waar ik dan mee zit is dat ik niet genoeg extractie krijg. Hoe ik los ik dat op?
Wat je zou kunnen doen is minder inblazen in de woonkamer. Je bent of in de slaapkamers of in de woonkamer namelijk, maar zelden tegelijk ;)

Hou er rekening mee dat activiteiten als werken of studeren meer ventilatie vragen dan slapen. Als het even kan zou ik die dus ook naar 45 trekken.

Bosch 5800i 10, vloerverwarming & fancoils, Zehnder Q600


Acties:
  • +1 Henk 'm!

  • nl2dav
  • Registratie: Juni 2001
  • Laatst online: 19:28
Franciesco schreef op donderdag 17 oktober 2024 @ 21:32:
[...]


Het werkingsprincipe van de dempers is me bekend. Maar waar kan ik lezen over de invloed van de kunsthars op de luchtkwaliteit?
Niet alleen kunsthars maar ook de minerale vezels zelf zijn een risico (WHO Fibers, WHO fasern). Veel artikelen zijn in het Duits. Nederlanders doen slecht of helemaal geen onderzoek maar je kan toch zelf ook wel bedenken dat je met een forse luchtstroom langs een meter onbeschermde minerale vezels allerlei nanodeeltjes in je luchtstroom krijgt en uiteindelijk in de longen. Volgens mij hoef je daar niet voor gestudeerd te hebben.

Acties:
  • +3 Henk 'm!

  • P5ycho
  • Registratie: Januari 2000
  • Laatst online: 22:19
nl2dav schreef op vrijdag 18 oktober 2024 @ 00:48:
[...]


Niet alleen kunsthars maar ook de minerale vezels zelf zijn een risico (WHO Fibers, WHO fasern). Veel artikelen zijn in het Duits. Nederlanders doen slecht of helemaal geen onderzoek maar je kan toch zelf ook wel bedenken dat je met een forse luchtstroom langs een meter onbeschermde minerale vezels allerlei nanodeeltjes in je luchtstroom krijgt en uiteindelijk in de longen. Volgens mij hoef je daar niet voor gestudeerd te hebben.
Angst zaaien zonder bewijsvoering kan ik niet waarderen. Zolang je niet met concreet bewijs komt, maar met 'je kunt zelf toch ook wel bedenken' als argument, zet ik deze voor mezelf even in het wappie-hokje. Je kan best wel eens gelijk hebben, maar kom dan met minimaal 1 onderzoek dat je verhaal ondersteunt? Dat zal zo moeilijk niet zijn.

En ja, daar moet dus iemand op gestudeerd hebben.

12x 280Wp ZW, 12x 280Wp ZO, Zubadan SHW80YAA 8kW, Zehnder Q450 ERV


Acties:
  • +3 Henk 'm!

  • breinonline
  • Registratie: Juni 2001
  • Laatst online: 20:46

breinonline

Are you afraid to be known?

Leesvoer over minierale vezels en binnenklimaat bij het RIVM.

WP: Mitsubishi Ecodan PUHZ-SHW112YAA, ERSC-VM2C, Procon ┃ PV: 4800Wp, SolarEdge SE5K, 15x JAM60S17/320, ZW 15º ┃ WTW: Zehnder Q600 ┃ SH: Home Assistant, Proxmox, Intel NUC 8i5 Mini


Acties:
  • +1 Henk 'm!

  • Lord Anubis
  • Registratie: Juni 2009
  • Laatst online: 16:58
P5ycho schreef op vrijdag 18 oktober 2024 @ 06:52:
[...]

Angst zaaien zonder bewijsvoering kan ik niet waarderen. Zolang je niet met concreet bewijs komt, maar met 'je kunt zelf toch ook wel bedenken' als argument, zet ik deze voor mezelf even in het wappie-hokje. Je kan best wel eens gelijk hebben, maar kom dan met minimaal 1 onderzoek dat je verhaal ondersteunt? Dat zal zo moeilijk niet zijn.

En ja, daar moet dus iemand op gestudeerd hebben.
Beetje apart om deze gedachte van je hier nu te lezen.

Heeft niets met angst zaaien te maken, en voor mij is er geen bewijs nodig dat het in je longen kan komen. Ik weet en heb het gezien dat als ik in de zomer bij een stapel glaswol een draaiende ventilator heb staan dat er veel vezels zijn die de lucht in gaan; je ziet ze zweven in het zonlicht.
In zo’n koker zal het na verloop van tijd wel minderen maar het is er wel.
Bij een familielid tijdens de aanleg van een ventilatiesysteem hadden we een pijp voor naar een andere ruimte even met een theedoek afgesloten. De installatie was in werking en blies door de doek heen; als je ziet wat er na enkele dagen er op zat was best onverwacht.
Misschien filters bij de uitblaas openingen.

Acties:
  • +3 Henk 'm!

  • Puntenwolk
  • Registratie: Oktober 2017
  • Laatst online: 20-10 09:35
Het is toch best een bekend verhaal dat glaswol en minerale wol inademen een slecht idee is? Daarom zijn bij de verwerking daarvan persoonlijke beschermingsmiddelen verplicht.

Hierom zie je ook dat kwalitatief goede dempers een laagje hebben om de isolatiewol af te schermen van de luchtstroom. Mijn Panflex ISO master AKS “ is voorzien van een dunne non-woven binnenslang van polyester, die voorkomt dat glaswoldeeltjes in de luchtstroom terecht komen”.

In de specificaties van de starre dempers van ventilatieland (die daar als eigen merk verkocht worden maar volgens mij gewoon van DEC zijn) staat ook keurig “Een tussenlaag voorkomt dat er stukjes wol in het kanalensysteem terecht komen.“

Dat er ook Chinese meuk op de markt is die alle veiligheidsnormen in de wind slaat verbaast me ook niets, en dat je een eng plaatje kan maken door zo een door te zagen ook niet.

Dus waar hebben we het precies over? “Wist je dat je zonder autogordel in een auto-ongeluk je flink kan bezeren?”

Acties:
  • +3 Henk 'm!

  • P5ycho
  • Registratie: Januari 2000
  • Laatst online: 22:19
Lord Anubis schreef op vrijdag 18 oktober 2024 @ 08:34:
[...]

Beetje apart om deze gedachte van je hier nu te lezen.

Heeft niets met angst zaaien te maken, en voor mij is er geen bewijs nodig dat het in je longen kan komen. Ik weet en heb het gezien dat als ik in de zomer bij een stapel glaswol een draaiende ventilator heb staan dat er veel vezels zijn die de lucht in gaan; je ziet ze zweven in het zonlicht.
In zo’n koker zal het na verloop van tijd wel minderen maar het is er wel.
Bij een familielid tijdens de aanleg van een ventilatiesysteem hadden we een pijp voor naar een andere ruimte even met een theedoek afgesloten. De installatie was in werking en blies door de doek heen; als je ziet wat er na enkele dagen er op zat was best onverwacht.
Misschien filters bij de uitblaas openingen.
Dat glasvezels niet goed voor je zijn weet ik, en als ik met glaswolproducten werk neem ik daar passende maatregelen. Dit gaat dan om isolatiematerialen en dergelijke.
Als we nu specifiek naar de toepassing in ventilatiesystemen kijken, dan gebruiken we deze materialen voornamelijk in geluidsdempers. Deze dempers met glaswolvulling zijn voorzien van een scheidende laag aan de binnenzijde. Dat kan een woven/nonwoven stoffen laag zijn, soms gecombineerd met een geperforeerde aluminium binnenbuis. Blijkbaar zijn er specifieke zaken die slecht voor je kunnen zijn volgens @nl2dav . Ik zou dus graag een onderzoek willen zien dat dit aantoont.
Als je met zulke opmerkingen komt dan wil ik ook een bronverwijzing zien. Als je dat niet doet en eigenlijk 'do your own research' zegt, dan is dat wel erg makkelijk en kan onnodige onrust zaaien.

Voor je het weet zijn we ipv wcrollen of water inslaan allemaal onze dempers aan het vervangen.

Ik weet dat het zo'n vaart allemaal niet zal lopen met de paniek, maar er is tegenwoordig genoeg nodeloos drama door ongefundeerde uitspraken van roeptoeterende influencers, en dat trek ik niet zo goed :$.

Dus, @nl2dav, verwijs even naar een relevant Duits onderzoek dat dit aanhaalt, dan kunnen we er allemaal even naar kijken.

[ Voor 7% gewijzigd door P5ycho op 18-10-2024 10:02 ]

12x 280Wp ZW, 12x 280Wp ZO, Zubadan SHW80YAA 8kW, Zehnder Q450 ERV


Acties:
  • +1 Henk 'm!

  • Franciesco
  • Registratie: Januari 2021
  • Laatst online: 22:00
nl2dav schreef op vrijdag 18 oktober 2024 @ 00:48:
[...]


Niet alleen kunsthars maar ook de minerale vezels zelf zijn een risico (WHO Fibers, WHO fasern). Veel artikelen zijn in het Duits. Nederlanders doen slecht of helemaal geen onderzoek maar je kan toch zelf ook wel bedenken dat je met een forse luchtstroom langs een meter onbeschermde minerale vezels allerlei nanodeeltjes in je luchtstroom krijgt en uiteindelijk in de longen. Volgens mij hoef je daar niet voor gestudeerd te hebben.
Gezien de stelligheid waarmee je zei dat "dat je nu minerale wol met kunsthars in aanraking laat komen met verse lucht wat dan dus geen verse lucht meer wordt" had ik op zijn minst een rapport of iets dergelijks verwacht die dit aantoont en de mogelijke risico's beschrijft.

Want blijkbaar zijn de diverse maatregelen die de fabrikanten met de reguliere dempers nemen om schadelijke stoffen in de luchtstroom te voorkomen of te minimaliseren niet voldoende? En dan eigenlijk nog specifiek de Panflex Master ISO AKS en de semi flexibele demper en de DEC Sonodek uit mijn eerdere bericht omdat je daarop reageerde.

Dat een mineraalvezelvrije variant in deze zin beter kan zijn betwist ik niet, maar enige nuance en bewijs had ik gewaardeerd.

Acties:
  • 0 Henk 'm!

  • naftebakje
  • Registratie: Februari 2002
  • Laatst online: 14:40
nl2dav schreef op vrijdag 18 oktober 2024 @ 00:48:
[...]Niet alleen kunsthars maar ook de minerale vezels zelf zijn een risico (WHO Fibers, WHO fasern). Veel artikelen zijn in het Duits. Nederlanders doen slecht of helemaal geen onderzoek maar je kan toch zelf ook wel bedenken dat je met een forse luchtstroom langs een meter onbeschermde minerale vezels allerlei nanodeeltjes in je luchtstroom krijgt en uiteindelijk in de longen. Volgens mij hoef je daar niet voor gestudeerd te hebben.
Je weet dat je bij scheetlucht ook daadwerkelijk poepdeeltjes binnenademt? Je weet dat in een stofvrije ruimte de grootste vervuiling de mensen zijn (die strooien gigantisch veel dode huidcellen, haartjes, ... af)? Je weet dat "gezonde buitenlucht" vol zit met bacteriën, virussen, pollen, stofdeeltjes van allerhande oorsprong, ....? Dat zuurstof ademen erg ongezond is (vrije radicalen die onstaan bij stofwisseling beschadigen je DNA); maar niet ademen is ook wel best moeilijk?

Ik denk dat we het er over eens zijn dat geen ventilatie ongezond is. Maar dat dempers gegarandeerd de lucht vervuilen, én dat deze vervuiling ook schade zal toebrengen aan mensen, dat is best wel een stevige claim om te maken.
Zeker als er bij komt "maar met deze dempers met stoffige organische vezels krijg je geen minerale vezels binnen O-) ", dan ben je met verkoopspraatjes aan het leuren (en dat wil ik wel bewijs zien dat die kokosvezels niet schadelijker zijn dan glaswol of rotswol).

Wellicht kan je beter een apart topic starten, waarin je je claims ondersteunt met enige wetenschappelijke evidentie.

[ Voor 3% gewijzigd door naftebakje op 18-10-2024 12:22 ]

Als de boer zijn koeien kust, zijn ze jarig wees gerust. Varkens op een landingsbaan, leiden nooit een lang bestaan. Als de boer zich met stront wast, zijn zijn hersens aangetast. Als het hooi is in de schuur, zit het wijf bij den gebuur.


Acties:
  • 0 Henk 'm!

  • WeerNsKlussers
  • Registratie: Maart 2024
  • Laatst online: 22:44
Ik denk dat je die dempers het best gewoon kan installeren zoals ze uit de fabriek komen, heb ze net zelf besteld (flexibele voor achter de machine en indien nodig zet ik er nog een starre achter). Ik vond dat er behoorlijk wat maten verkrijgbaar zijn en de noodzaak om ze in te korten ontgaat mij ook een beetje. Verder verwacht ik dat producten bestemd voor de EU markt veilig genoeg zijn.

Maar om nog eens een balletje op te gooien waar ik zelf nog geen antwoord voor heb. Wat vinden we ook alweer van een WTW + recirculatie afzuiging voor koken. Koken levert tegenwoordig de meeste fijnstof blootstelling op en de pieken blijven het langst hangen (bron; https://www.tno.nl/nl/duu...it%20van%2075%20m3%2Fuur. ).

Ik wil zelf wel een recirculatie afzuiging gebruiken, want staat mooier. Onze ventielen komen redelijk dicht in de buurt van de kookplaat te hangen (maar uiteraard wel verder weg dan de afzuiging van de recirculatie). Ik verwacht dat met tijdig schoonmaken/vervangen van de filters in WTW & in afzuiging het goed moet gaan. Als zo'n kap het iets minder goed doet dan een afzuigkap naar buiten, verwacht ik dat de WTW het goed ververst, waardoor we onszelf toch niet teveel blootstellen.

Heeft iemand hier ervaring mee?

Acties:
  • 0 Henk 'm!

  • ZonnigY
  • Registratie: Mei 2022
  • Laatst online: 16:44
@WeerNsKlussers
Wat ik hoor is dat het behoorlijk goed lijkt te werken. en ik zeg bewust 'lijkt te werken', want in hoeverre kun je daarin vertrouwen op het gevoel wat mensen ergens bij hebben? Fijnstof zie en ruik je niet. Het effect is op een mensenleven (nog) niet aan te tonen en eea wordt nog eens gecompliceerd doordat er nog vele andere fijnstof- en vervuilingsbronnen zijn.

Het zal 100x beter zijn dan geen afzuiging gebruiken in ieder geval.

Ik heb vanuit het voorzorgsprincipe mijn afzuiging wel naar buiten laten aanleggen. Maar dan weer geen fijnstoffilter op de aanvoer van mijn wtw en ben dus ook maar een beetje halfslachtig erin.

Bosch 5800i 10, vloerverwarming & fancoils, Zehnder Q600


Acties:
  • 0 Henk 'm!

  • naftebakje
  • Registratie: Februari 2002
  • Laatst online: 14:40
WeerNsKlussers schreef op vrijdag 18 oktober 2024 @ 12:58:
... Wat vinden we ook alweer van een WTW + recirculatie afzuiging voor koken....
Als het op gas is, no-go.
Op inductie is het te overwegen (sta je vaak flink te grillen, dat de rook in de keuken staat, of ben je 20 minuten max bezig). Zelf heb ik inductie, en de mogelijkheid om naar buiten af te voeren, maar draai voorlopig op recirculatie. De afzuiging is flink stiller zonder de recirculatiefilters, en je bent wel vaak bezig deze uit te wassen en te vervangen. Ik denk dat we nog overschakelen naar afvoer naar buiten, ook handig als er iets aangebrand is of flink geurt want dat blijft met circulatie best wel even hangen (ook met de ventilatie op max).

Als de boer zijn koeien kust, zijn ze jarig wees gerust. Varkens op een landingsbaan, leiden nooit een lang bestaan. Als de boer zich met stront wast, zijn zijn hersens aangetast. Als het hooi is in de schuur, zit het wijf bij den gebuur.


Acties:
  • 0 Henk 'm!

  • WeerNsKlussers
  • Registratie: Maart 2024
  • Laatst online: 22:44
We gaan wel naar inductie inderdaad!
ZonnigY schreef op vrijdag 18 oktober 2024 @ 13:36:
@WeerNsKlussers
Het zal 100x beter zijn dan geen afzuiging gebruiken in ieder geval.

Ik heb vanuit het voorzorgsprincipe mijn afzuiging wel naar buiten laten aanleggen. Maar dan weer geen fijnstoffilter op de aanvoer van mijn wtw en ben dus ook maar een beetje halfslachtig erin.
Ja, halfslachtig beter dan niks zou ik zeggen. Wij zijn ook bezig met een renovatie (waarschijnlijk veel van de mensen hier). Als we het helemaal perfect volgens het boekje wilden doen hadden we een 160 jaar nieuwer huis moeten kopen. (Onze 1980 huurwoning is er overigens nog het ergst aan toe; gas/geen afzuiging/geen ventilatie :+ )

Maar dan gok ik dat het voor ons wel een oplossing kan zijn, we gaan de keuken pas over 1-2 maanden bestellen. Dus nog even tijd om na te denken.

Acties:
  • 0 Henk 'm!

  • ramzero
  • Registratie: Maart 2018
  • Laatst online: 24-09 23:03
Ik ben de ventilatie aan het plannen, in twee plekken wil ik de luchtstroom uit de wand hebben

Ik ben op zoek naar wand ventilatie roosters van ongeveer:

- 100*50mm voor achter een gipsplaat wand
- 200*100mm voor door een muur van 10cm.

De grootste wordt gevoed door een 125mm spirobuis, de kleinere door een 100mm spirobuis.

Weet iemand of ik dit soort roosters kan vinden en of het mogelijk is om ze aan te sluiten op de spiro?

Acties:
  • 0 Henk 'm!

  • P5ycho
  • Registratie: Januari 2000
  • Laatst online: 22:19
Je kunt gewoon een ventiel grbruiken voor beiden. Waarom wil je een rooster?

12x 280Wp ZW, 12x 280Wp ZO, Zubadan SHW80YAA 8kW, Zehnder Q450 ERV


Acties:
  • 0 Henk 'm!

  • Lord Anubis
  • Registratie: Juni 2009
  • Laatst online: 16:58
@WeerNsKlussers @ZonnigY
Had wat testjes gedaan met afzuiging en steenkooltjes; werkt zeer goed (ook voor wc pot afzuiging) maar maakt idd meer lawaai vanwege de terugval van de luchtstroom.
Maar ga toch proberen om direct naar buiten af te voeren. Enige is dat ik door 3 onderkasten moet naast de inductie, twee onderkasten naar rechts en dan door een hoge kast naar boven het dak door. Totaal 9m. Gelukkig zijn alle kasten diep. Zit te denken aan een ventilator aan het eind van de pijp. De rest van de open keuken via de standaard WTW. Twijfel alleen of de WTW dan op dat moment minder mag/kan afvoeren maar dat is voor te bereiden en latere zorg.


@P5ycho terzijde er zaten buizen vergelijkbaar met bovenstaande foto’s tussen. Vonden het echt tegenvallen; of beter gezegd “niet verwacht”. Geloof niet dat iemand er echt last van gaat krijgen.

Acties:
  • 0 Henk 'm!

  • Lord Anubis
  • Registratie: Juni 2009
  • Laatst online: 16:58
Puntenwolk schreef op vrijdag 18 oktober 2024 @ 09:00:

Dat er ook Chinese meuk op de markt is die alle veiligheidsnormen in de wind slaat verbaast me ook niets, en dat je een eng plaatje kan maken door zo een door te zagen ook niet.
Er is in Nederland meer Nederlands meuk dan Chinees meuk.
Pagina: 1 ... 69 ... 99 Laatste