S1255PC6 - ComfoAir Q350 ERV - 40x435Wp - GW12K-SDT-20 - Ratio io6
Ja, precies. Gewoon een simpel roostertje of twee afzuigventielen als je dat mooier vindt. Of iets van hout knutselen. Ik hoor iedereen over roosters en suskasten in deuren en muren, maar dat vind ik heel erg lelijk. Als je het in het plafond kan wegwerken dan heeft het veel voordelen.H.A.B. schreef op woensdag 31 december 2025 @ 13:20:
[...]
Ah, dat kan natuurlijk ook. Plafond ligt nog open ja. En dan gewoon een beide kanten een plafond ventiel gedaan? Niet echt nodig om te knijpen natuurlijk, dus dan beter goedkoper roostertje vinden ofzo. Maar dat zou ik dan moeten doen voor de badkamer deur. Maar ook de masterbedroom heeft max 90m3/h debiet, dan dan zou 't daar ook kunnen als 'extra' en dan deurspleet gelijk (2 cm ofzo) houden met andere slaapkamers.
Zelfinstallatie Vaillant Arotherm Plus 55/6 | Zehnder Q450 | Variotherm DWTW | Enphase Envoy S + IQ7x Panasonic 7x335WP
P5ycho schreef op woensdag 31 december 2025 @ 13:54:
[...]
Ik heb ook een verhoogde vloer in de badkamer, heb een rooster in de deur gezet samen met een lullige 1cm onder deur en langs de dorpel.
In de slaapkamer heb ik al een tijdje een te kleine spleet (1cm) ovm geplande nieuwr vlooer, geen zin om 2x te zagen. Als ik daar de deur dicht doe dan suist het onder de deur door, daar is die 1cm wel te weinig. Ik vermoed dat het met 2cm wel zou kunnen. Ik zou het daarmee iig proberen, meer dan 2cm is lelijk. Altijd toch weer nuttig wat van gedachten te wisselen hier!
Ok top, daar kan ik wel iets mee. Ga denk ik 2cm aanhouden voor alle deuren, de badkamer deuren op gelijke hoogte houden en daar dan dus een apart overloop kanaaltje voor maken. Masterbedroom dank ook extra overloopje in het plafond.bensss schreef op woensdag 31 december 2025 @ 15:30:
[...]
Ja, precies. Gewoon een simpel roostertje of twee afzuigventielen als je dat mooier vindt. Of iets van hout knutselen. Ik hoor iedereen over roosters en suskasten in deuren en muren, maar dat vind ik heel erg lelijk. Als je het in het plafond kan wegwerken dan heeft het veel voordelen.
Hoezo niet? Het gaat toch gewoon om de daadwerkelijke opening die je naar buiten toe hebt? Het kozijn valt aan beide kant 1.5cm ofzo in de sponning, dus is je breedte 3cm minder.P5ycho schreef op woensdag 31 december 2025 @ 13:54:
De kozijnen hoef je niet van de breedte af te trekken volgens de rekenregels.
De toevoer in de kinderkamer is erg hoog. Dit gebruiken als overflow voor de woonkamer lijkt me een erg goed idee, maar dit zal niet onder een deur door passen. Was je plan om roosters te plaatsen boven de deur?siem123 schreef op dinsdag 30 december 2025 @ 22:35:
In navolging van m'n eerdere topic (Verbouwing in spé, wie denkt er mee?); ben ik ook aan het kijken naar balansventilatie.
Qua verbouwing;
Woning nu 140 m2, 2 woonlagen, geen zolder. Huis uit 2005. Dus typisch vloer, wand en dak isolatie;Type A ventilatie.
Woning straks 250 m2, nog steeds geen zolder en aan de linker kant een blinde muur waar geen ramen kunnen, dus ook geen ventilatie. Daar is de wens geboren voor WTW.
We zijn met 6 personen thuis.
Alles berekend op 100%, in de praktijk op 66% instellen.
De vaste gegevens:
Pulsie =
5x slaapkamer = 6x45 = 270
Kinderkamer 4x45 nodig = 180
Woonkamer 6x45 nodig = 270
Extractie =
Badkamer = 60
Badkamer ensuite = 60
WC = 30 (3x)
Waskamer (other) =60
Keuken = (minimaal) 75 --> nu gezet op 120 ivm onbalansDit zorgt ook voor een grote onbalans.
[Afbeelding] [Afbeelding] [Afbeelding]
Ik heb er al een paar avonden op zitten puzzelen, maar ik kom er simpelweg niet uit. Het punt is namelijk, de woonkamer/keuken is een bestaande kanaalplaatvloer. Liever beun ik hier geen 8 (ofzo) ventielen in.
- Ik wil dus eigenlijk max 2 aanvoer en 2 afvoer ventielen in de woonkamer/keuken.
- De overflow van de kinderkamer en van boven wil ik dus gebruiken voor de woonkamer.
Maar wat ik ook doe, ik blijf onbalans houden.
Als ik bijvoorbeeld 120 extra in de keuken afzuig, dan verdwijnt mn overflow van boven, en haal ik mn 270 in de woonkamer niet. Ergo; meer toevoegen; meer onbalans.
Wie heeft er een goed idee?
Wat misschien ook een goed idee is is om een rooster te plaatsen tussen kinderkamer en woonkamer. Dan komt het ook meteen op een betere plek terecht.
Als je niet meer ventielen wilt/kunt plaatsen in de keuken is het misschien een idee om te kijken of er wel extra ventielen in de opslag/hal kunnen. Dan zou ik wel goed kijken naar de overflow van de eerste verdieping, als die direct van de trap naar de hal gaat heb je er geen profijt van.
Silence is better than unmeaning words. ~Pythagoras
Is er een reden dat je nu twee ventielen hebt ingetekend voor de +45 in de slaapkamers. +45 in een kamer op max zou prima met een enkel ventiel moeten kunnen. Ik zou dus 2 ventielen doen in Slaapkamer 1 en dan 1 ventiel in het kantoor en slaapkamers 2 t/m 4. Badkamer zou ik inderdaad 2 ventielen doen als je er 100 wilt afzuigen. Ik zou overwegen om het kantoor ook gewoon op +45 te zetten. Je bent tijdens het werken toch wel wat actiever dan als je slaapt.steineken schreef op dinsdag 30 december 2025 @ 19:45:
[...]
Bedankt voor de reactie!
Ik heb een nieuwe berekening gemaakt. De dingen waar ik mee zit; ik zit met heel veel overflow vanuit boven naar beneden maar ik heb geen optie om boven minder toe te voeren.
Dus ik zit met twee opties.
1. Zoals ik het nu heb in het onderstaande en dan een ventilatierooster in de muur plaatsen om die overflow van 145 van boven naar de woonkamer te krijgen.
2. Boven extra afzuiging maken om iets meer balans boven te krijgen en dan in de woonkamer meer aanvoeren.
Ik neig eigenlijk naar optie 2 maar dan ga ik wel richting veel meer luchtverplaatsing ten opzichte van optie 1. Was is hierin wijsheid?
[Afbeelding]
[Afbeelding]
[Afbeelding]
Ik kom trouwens maar op een overflow van 155 van boven naar beneden (90+45+45+45+30-100=155) zoals het nu in het plaatje staat.
Paar vragen/ideeën:
- Volgens het overstroom idee zou ook lucht van de entree de speelkamer in kunnen laten gaan. Wanneer je dat via een doorgang richting de keuken daar kan afzuigen scheelt dat lucht die je via de entree de woonkamer in moet krijgen en ook is de afzuiging in de speelkamer dan niet nodig. Het totale debiet gaat er ook mee omlaag.
- Wellicht dus de afzuiging in de speelkamer weglaten
- Wellicht een idee om een doorvoer van de speelkamer richting de keuken te maken?
- Zou je via de muur waar de trap tegen aan staat een doorvoer voor de overflow de woonkamer in kunnen maken?
Wat je opties betreft. Zou ook kijken naar wat er te doen is. Wat is de optie die het makkelijkste te realiseren is? Kan je overal buizen/kokers naar toe krijgen?
Je aangepaste plaatje ziet er al een stuk beter uit! Als de overloop helemaal open is, dan wordt daar dus lucht aangevoerd die in de slaapkamer op zolder wordt ingeblazen. Daar heb je dan dus niet per se direct een extra ventiel nodig in de toekomst.kv1992 schreef op dinsdag 30 december 2025 @ 20:43:
[...]
Ik heb eea aangepast. De overloop van de zolder zal niet direct een bestemming hebben, wellicht komt hier op termijn een werkplek.
Klopt het waar ik van ben uitgegaan? En is er een manier om de overflow richting de woonkamer lager te krijgen?
[Afbeelding]
[Afbeelding]
[Afbeelding]
Zou dan inderdaad in Slaapkamer 1 en de slaapkamer op zolder 2 ventielen ontwerpen.
Laten we het plaatje eens in tekst gieten. Ik vind het zelf altijd het makkelijkste om van boven naar beneden te werken in een typisch huis, waar de slaapkamers op de hogere verdiepingen liggen en de keuken op de onderste verdieping.
In jou geval zouden we dan 2x45 aanvoeren op de slaapkamer op zolder. Deze 90 kuub gaat dan de trap af naar de 1e verdieping. Hierdoor is er dus al 90 toevoer op de 1e verdieping. Daar komt de 2x45 toevoer uit slaapkamer 1 bij voor een totaal van 180. Tel daar voor slaapkamer 2 en 3 elke nog eens 45 bij en we zitten op 270. Met een afvoer van 25 en 100 van de badkamer en toilet gaat er dus 145 kuub de trap af van de eerste naar de begane grond.
Ik neem even aan dat de trap van de begane naar de 1e in de Gang zit. Daar komt dus de 145 van de eerste uit. Met daarbij de 45 toevoer in het kantoor. Op die manier gaat er dus 220 van de gang de woonkamer in. Dit is trouwens behoorlijk wat en zal niet zomaar door een kier onder de deur gaan. Die 190 is al genoeg voor 4 personen. Afhankelijk van op hoeveel personen je het ontwerpt moet je nog wat toevoeren in de woonkamer. Laten we zeggen dat we het op 6 personen ontwerpen. Met 6x45=270 zouden we dus nog een extra 80 willen aanvoeren in de woonkamer zodat er daar 270 kuub verse lucht beschikbaar is. Je hebt er nu wat minder staan. Deze 270 moeten dan nog afgezogen worden via de keuken, technische ruimte en WC.
Paar ideeen/opmerkingen:
- Als je voor 6 personen ontwerpt zou ik iets meer toevoer in de woonkamer toevoegen. En dan dus wat extra afzuiging in de keuken.
- Je zou eventueel ook kunnen kijken of het mogelijk is om het kantoor lucht via de gang toe te voeren en dan via een doorgang van het kantoor naar de keuken af te voeren. Daarmee wordt het totale benodigde debiet lager en ook de hoeveelheid lucht die via de gang naar de woonkamer moet.
Hoop dat dit nu duidelijk(er) is.
Iemand die hier nog feedback op heeft? Lang verhaal kort:_kilian_ schreef op maandag 29 december 2025 @ 18:45:
Wil de dakdoorvoeren voor mijn project gaan bestellen. Zit nu te kijken naar de Renson Design dakdoorvoer Flex XL. Deze kom ik hier in het topic ook veel tegen. Vind het mooier ogen dan al die pijpen die verticaal uit het dak steken. Volgens hun eigen documentatie is de doorvoer voor zowel toevoer als afvoer te gebruiken. Volgens mij moet ik de flex variant hebben, omdat ik een dak met sneldek dakpannen heb. Zie ik hier nog wat over het hoofd?
Het plan is nu om de toevoer op het dakvlak aan de voorkant te plaatsen. Dit dakvlak ligt op het Noord-Oosten. De afvoer komt dan ongeveer een halve meter hoger op het dakvlak aan de achterkant. Deze ligt op het Zuid-Westen. Ik kom daarmee op een verdunningsfactor van 0.00819 volgens de tool van Itho. Deze verdunningsfactor is obv 450m3/h, het kan zijn dat ik nog voor een unit kies die max 350m3/h kan. Dan wordt de verdunningsfactor nog lager.
Hieronder wat plaatjes. Alle feedback is welkom
[Afbeelding]
[Afbeelding]
[Afbeelding]
[Afbeelding]
Wat zie je hier? Het idee is om de toevoer vanaf buiten naar de unit met een klein stukje geïsoleerde flexbuis van de Renson op de WTW unit aan te sluiten. De afvoer kan dan langs de muur met de buren, door het trapgat naar de hoger gelegen afvoer. Dit ook met flexibele, geïsoleerde buis.
De afvoer van lucht van de woning naar de unit is relatief eenvoudig, deze loopt ook richting de muur met de buren. Vertakt daar naar beneden toe en naar het trapgat. De buis beneden tak in de vloer af richting de badkamer. Het andere deel komt in het toilet beneden uit. Het andere deel gaat via het trapgat en gaat dan naar beneden om in de keuken uit te komen.
De toevoer wordt wat ingewikkelder. Deze moet een stukje omhoog, dan richting de muur met de buren. Een deel gaat dan (links) via het trapgat naar de andere kant van de woning, om daar in de vloer uit te komen, zodat er verse lucht in de slaapkamers op de eerste verdieping ingeblazen kan worden. Het andere deel gaat achter de WTW unit langs en via de muur ook weer de vloer in. Deze voorziet de slaapkamers op de eerste verdieping aan de andere kant van het huis van verse lucht en loopt via de andere muur met de buren naar beneden, door een slaapkamer om in de woonkamer uit te komen en zo ook daar lucht in te kunnen blazen.
De schuin gearceerde delen zijn flexibele buizen/dempers.
Het met puntjes gearceerde deel is een starre demper om overspraak te dempen. Hier zichtbaar tussen de woonkamer en slaapkamer.
- Is de Renson Design dakdoorvoer Flex XL een veilige keus?
- Iemand nog feedback op de plaatsing van de dakdoorvoeren en het verdere verloop van de buizen in het huis? (zie de plaatjes en beschrijvende tekst)
Het is een vuistregel, geen flow simulationH.A.B. schreef op woensdag 31 december 2025 @ 15:44:
Hoezo niet? Het gaat toch gewoon om de daadwerkelijke opening die je naar buiten toe hebt? Het kozijn valt aan beide kant 1.5cm ofzo in de sponning, dus is je breedte 3cm minder.
Elke kamer via een verlaagd plafond laten afvoeren vind ik ook nog wel wat, daar ga ik nog even over nadenken. Ik zou dat ook nog kunnen doen hier, met een beetje geluk compleet onzichtbaar. De boel ligt toch nog open.
Het verlaagde plafond op de overloop zou dan een verkeerspunt worden, waar alleen de overflow weer uit het verlaagd plafond komt vallen. Best wel een mooi idee!
12x 280Wp ZW, 12x 280Wp ZO, Zubadan SHW80YAA 8kW, Zehnder Q450 ERV
Ja, die heb ik. Je had het over sneldekpannen, die heb ik ook. Ik heb echter geen flex genomen. Even zoeken in dit topic, ik heb meerdere posts met foto's geplaatst eerder. De flex zal vast wel passen, maar de 'normale' is misschien handiger._kilian_ schreef op woensdag 31 december 2025 @ 16:33:
[...]
Iemand die hier nog feedback op heeft? Lang verhaal kort:
- Is de Renson Design dakdoorvoer Flex XL een veilige keus?
- Iemand nog feedback op de plaatsing van de dakdoorvoeren en het verdere verloop van de buizen in het huis? (zie de plaatjes en beschrijvende tekst)
Ik zou ook aanraden om de rensons niet exact boven elkaar te plaatsen, ik ruik hier soms de tostigeur door het huis via buiten omdat de uitvoer het voor elkaar krijgt om 2 meter naar beneden te blazen, tegen de invoer aan.
Niet direct op jou van toepassing. Maar misschien nuttig voor anderen die de Renson overwegen.
Je hebt erg weinig ruimte boven je wtw voor al dat buiswerk, dat kan nog weleens tegenvallen in de praktijk.
[ Voor 25% gewijzigd door P5ycho op 31-12-2025 16:51 ]
12x 280Wp ZW, 12x 280Wp ZO, Zubadan SHW80YAA 8kW, Zehnder Q450 ERV
En denk dat ik inderdaad met de locatie van de doorvoeren wel goed zit. De verdunningsfactor zit onder de norm van 0,01. Aan en afvoer zitten op verschillende dakvlakken en blazen dus allebei van elkaar af.
Het buizenwerk boven de unit maak ik me inderdaad wel een beetje zorgen over. Heb daar niet heel veel speelruimte... Denk (en hoop) dat het allemaal moet gaan passen, maar het zal wel een aardig gepuzzel en wat gevloek gaan worden ben ik bang.
Kon het niet laten om jou voorbeeld ook door de tool van Itho heen te halen en daar zeggen ze dus dat het voldoet! waardevolle feedback dus. Je ziet wel dat de tool er vanuit gaat dat de lucht verticaal naar buiten/binnen gaat. Daarbij zal het gedrag van de Renson dus inderdaad wel behoorlijke impact hebben.
https://platform.ithodaalderop.nl/verdunningsfactor
Als ik ze op mijn schuin dak (30 graden) zou zetten, dan geeft een verloop van 2 meter over het schuine dak een hoogte verschil van 1m. Wanneer we dat invullen op 125 [dm³/s] / 450 [m³/h] en situatie 6 kiezen waarbij de afvoer dus boven de toevoer ligt, komt er een Verdunningsfactor van 0.0086 uit wat in principe dus goed zou zijn, maar in jou geval dus met tosti lucht
[ Voor 53% gewijzigd door _kilian_ op 31-12-2025 17:10 ]
180 m3 op een kamer van 16 m2 lijkt mij wat overdreven, als je dat realiseert dan zitten de kinderen in de tocht. De helft lijkt mij een veel logischer uitgangspunt en eigenlijk al vrij royaal.siem123 schreef op dinsdag 30 december 2025 @ 22:35:
In navolging van m'n eerdere topic (Verbouwing in spé, wie denkt er mee?); ben ik ook aan het kijken naar balansventilatie.
Qua verbouwing;
Woning nu 140 m2, 2 woonlagen, geen zolder. Huis uit 2005. Dus typisch vloer, wand en dak isolatie;Type A ventilatie.
Woning straks 250 m2, nog steeds geen zolder en aan de linker kant een blinde muur waar geen ramen kunnen, dus ook geen ventilatie. Daar is de wens geboren voor WTW.
We zijn met 6 personen thuis.
Alles berekend op 100%, in de praktijk op 66% instellen.
De vaste gegevens:
Pulsie =
5x slaapkamer = 6x45 = 270
Kinderkamer 4x45 nodig = 180
Woonkamer 6x45 nodig = 270
Even gezocht:
P5ycho in "Het centrale balansventilatie met warmteterugwinning topic"
12x 280Wp ZW, 12x 280Wp ZO, Zubadan SHW80YAA 8kW, Zehnder Q450 ERV
Ik zou persoonlijk dat gewoon doen, tenzij je een andere mooie oplossing hebt (anders dan gleuven van 4 cm).
Hooguit zou ik in de douche nog wat extra nemen omdat je daar wel echt voldoende wil verversen in de hoge stand.
[ Voor 22% gewijzigd door Cbr op 31-12-2025 21:20 ]
Je moet toch gewoon een max luchtsnelheid kiezen die acceptabel is (Ik zie dat ik in mijn eerdere berekeningen 0.83 heb gebruikt, maar geen idee meer waar dat vandaan komtP5ycho schreef op woensdag 31 december 2025 @ 16:44:
[...]
Het is een vuistregel, geen flow simulation.
[quote]
Wat heb je precies in je hoofd, hoe ga je dat onzichtbaar doen? Ik zou ook nog zoiets kunnen doen. Overloop slang van 4 kamers op de overloop bij elkaar laten komen en via 1 groot ventiel op de overloop eruit of zoiets?Elke kamer via een verlaagd plafond laten afvoeren vind ik ook nog wel wat, daar ga ik nog even over nadenken. Ik zou dat ook nog kunnen doen hier, met een beetje geluk compleet onzichtbaar. De boel ligt toch nog open.
Het verlaagde plafond op de overloop zou dan een verkeerspunt worden, waar alleen de overflow weer uit het verlaagd plafond komt vallen. Best wel een mooi idee!
Heel erg bedankt weer voor het meedenken._kilian_ schreef op woensdag 31 december 2025 @ 16:09:
[...]
Is er een reden dat je nu twee ventielen hebt ingetekend voor de +45 in de slaapkamers. +45 in een kamer op max zou prima met een enkel ventiel moeten kunnen. Ik zou dus 2 ventielen doen in Slaapkamer 1 en dan 1 ventiel in het kantoor en slaapkamers 2 t/m 4. Badkamer zou ik inderdaad 2 ventielen doen als je er 100 wilt afzuigen. Ik zou overwegen om het kantoor ook gewoon op +45 te zetten. Je bent tijdens het werken toch wel wat actiever dan als je slaapt.
Ik kom trouwens maar op een overflow van 155 van boven naar beneden (90+45+45+45+30-100=155) zoals het nu in het plaatje staat.
Paar vragen/ideeën:
- Volgens het overstroom idee zou ook lucht van de entree de speelkamer in kunnen laten gaan. Wanneer je dat via een doorgang richting de keuken daar kan afzuigen scheelt dat lucht die je via de entree de woonkamer in moet krijgen en ook is de afzuiging in de speelkamer dan niet nodig. Het totale debiet gaat er ook mee omlaag.
- Wellicht dus de afzuiging in de speelkamer weglaten
- Wellicht een idee om een doorvoer van de speelkamer richting de keuken te maken?
- Zou je via de muur waar de trap tegen aan staat een doorvoer voor de overflow de woonkamer in kunnen maken?
Wat je opties betreft. Zou ook kijken naar wat er te doen is. Wat is de optie die het makkelijkste te realiseren is? Kan je overal buizen/kokers naar toe krijgen?
- Volgens het overstroom idee zou ook lucht van de entree de speelkamer in kunnen laten gaan. Wanneer je dat via een doorgang richting de keuken daar kan afzuigen scheelt dat lucht die je via de entree de woonkamer in moet krijgen en ook is de afzuiging in de speelkamer dan niet nodig. Het totale debiet gaat er ook mee omlaag.
- Goed plan, die ga ik uitwerken.
- Wellicht dus de afzuiging in de speelkamer weglaten.
- Wellicht een idee om een doorvoer van de speelkamer richting de keuken te maken?
- Ik ga denk een deel van de overflow voor de speelkamer gebruiken en dan meer inblazen in de woonkamer. Dat is makkelijker te maken met buizenwerk.
- Zou je via de muur waar de trap tegen aan staat een doorvoer voor de overflow de woonkamer in kunnen maken?
- Dat is zeker mogelijk, ik zal eens narekenen wat ik dan voor ruimte nodig heb.
Flow in de kinderkamer kan wel minder, had nog niet stil gestaan bij de beperking van flow onder de deur. Een rooster is suboptimaal, omdat we juist ook t geluid willen beperken tussen beide kamers. Helemaal als de kids straks groter zijn.pythagorasABC schreef op woensdag 31 december 2025 @ 15:57:
[...]
De toevoer in de kinderkamer is erg hoog. Dit gebruiken als overflow voor de woonkamer lijkt me een erg goed idee, maar dit zal niet onder een deur door passen. Was je plan om roosters te plaatsen boven de deur?
Wat misschien ook een goed idee is is om een rooster te plaatsen tussen kinderkamer en woonkamer. Dan komt het ook meteen op een betere plek terecht.
Als je niet meer ventielen wilt/kunt plaatsen in de keuken is het misschien een idee om te kijken of er wel extra ventielen in de opslag/hal kunnen. Dan zou ik wel goed kijken naar de overflow van de eerste verdieping, als die direct van de trap naar de hal gaat heb je er geen profijt van.
Ik zou wel extra afvoer kunnen plaatsen, maar dan is mn overflow ook minder. Dat betekent dus ook dat er extra aanvoer in de woonkamer nodig is. Daarmee is mn onbalans nog steeds hetzelfde. Dat is hetgeen waar ik vooral mee stoei.
Ok, ok. Fair point. Zal dit aanpassen.Oilman schreef op woensdag 31 december 2025 @ 17:25:
[...]
180 m3 op een kamer van 16 m2 lijkt mij wat overdreven, als je dat realiseert dan zitten de kinderen in de tocht. De helft lijkt mij een veel logischer uitgangspunt en eigenlijk al vrij royaal.
Zijn er nog andere opties? Ik zit er dan maar aan te denken de afvoerventilator te vervangen maar daar zit toch niet zoveel meer op dat het probleem dan ineens wel opgelost is.
Aanvullend: vorig jaar had ik ook dat het maximale afvoerdebiet tijdens koude periodes veel lager was. Als het weer warmer werd herstelde zich dat weer..
[ Voor 12% gewijzigd door Flatisa op 01-01-2026 17:05 ]
Het bouwbesluit gaat uit van een bepaalde benodigde kierhoogte bij een drukverschil van 2Pa. Dat is een basisformule, vuistregel, rekenhulp, hoe je het ook wilt noemen. Als je die hanteert zit je aardig goed qua drukverschil, maar de praktijk kan afwijken.H.A.B. schreef op donderdag 1 januari 2026 @ 13:17:
[...]
Je moet toch gewoon een max luchtsnelheid kiezen die acceptabel is (Ik zie dat ik in mijn eerdere berekeningen 0.83 heb gebruikt, maar geen idee meer waar dat vandaan komt) en dan op basis van debiet en grootte van het 'kanaal' (breedte x lengte deurspleet) terugrekenen hoe hoge spleet nodig is? Wat is de vuistregel waar je op doelt?
Deze formule gaat waarschijnlijk niet op als je een spleet van 2mm hebt (relatief hogere drukval), of een vierkant gat met dezelfde oppervlakte (relatief lagere drukval).
Als je bij onze zuiderburen gaat kijken, dan staan die drukverschillen tot 10Pa toe in doorstrroomopeningen (dus niet specifiek kieren onder deuren), zolang minstens een van de twee vertrekken directe mechanische aan- of afvoer heeft en geen residentiele bestemming heeft, zie:
https://www.vlaanderen.be...teem/doorstroomopening-do
Geeft mij aan dat er ruimte is voor interpretatie.
Ik heb zitten spelen met het plaatsen van verlaagde plafonds in oa. slaapkamers, met betere verlichting, koof met ledstrip, etc. Ik zou tussen slaapkamers en overloop een verbinding kunnen leggen die in het verlaagde plafond zit weggewerkt, met het rooster/doorgang verstopt in de ledstrip-koof bijvoorbeeld. De wens van 2Pa drukverschil wordt wel een interessante daarin.Wat heb je precies in je hoofd, hoe ga je dat onzichtbaar doen? Ik zou ook nog zoiets kunnen doen. Overloop slang van 4 kamers op de overloop bij elkaar laten komen en via 1 groot ventiel op de overloop eruit of zoiets?
12x 280Wp ZW, 12x 280Wp ZO, Zubadan SHW80YAA 8kW, Zehnder Q450 ERV
Zucht, er toch ingetrapt: filters van de woonaansluitingen zaten vol. Die checkte ik minder omdat de aansluitingen naar buiten veel sneller vervuild raken. Nu werkt het weer prima en met de nieuwe lagers een stuk stiller.Flatisa schreef op donderdag 1 januari 2026 @ 17:04:
Ik heb de lagers van de afvoerventilator van mijn Comforair Q450 vervangen. Het geluid is minder maar nog veel te veel. Toevoer doet 35%, afvoer zit op 56% bij mij 120 m3/h. Behoorlijk verschil. Bij dergelijke debieten zou weerstand in kanalen niet veel moeten uitmaken. De mid-sensor had ik eerder omgewisseld maar dat maakte niets uit, dus daar zit het niet in.
Zijn er nog andere opties? Ik zit er dan maar aan te denken de afvoerventilator te vervangen maar daar zit toch niet zoveel meer op dat het probleem dan ineens wel opgelost is.
Aanvullend: vorig jaar had ik ook dat het maximale afvoerdebiet tijdens koude periodes veel lager was. Als het weer warmer werd herstelde zich dat weer..
Nog een aanvullende handleiding voor het vervangen van de lagers : https://www.bouwinfo.be/b...tilator-vervangen.396374/ . Hier staan net wat meer foto's dan in de links die recent voorbijkwamen.
Ik ben ook met de gepostte excelsheet balansventilatie rekenhulp bezig en heb het idee dat ik nu redelijk begin te snappen wat de bedoeling is maar ik heb toch even een paar vragen.
1. Als ik het goed begrijp bij Zehnder, zou het idee eigenlijk dus zijn alleen maar inblazen in verblijfsruimtes en in de andere ruimtes alleen afzuigen. Zou de uitkomst van beide sommen precies in balans moeten zijn of zou er net iets meer moeten worden toegevoegd of afgezogen?
2.Ik zit nu ook te stoeien met de deurspleten en wat daar dan aan m3/h doorheen kan, maar dit mikt dan toch vrij nauw hoe dit uiteindelijk wordt uitgevoerd? Stel je geef de badkamer eigenlijk een te grote kier zou de lucht dan niet de weg van minste weerstand zoeken en bijv. slechter de weg vinden naar andere ruimtes? Of breng je dit in balans met afstellen van de ventielen?
3.Zijn er (hier) duidelijke voorkeuren voor bepaalde merken? Onze vaste installateur van andere zaken heeft namelijk een voorkeur voor Duco ivm slechte ervaringen met een paar andere merken (verder nog niet naar gevraagd) maar anderzijds lijkt het forum niet al te positief richting Duco te zijn.
4. Deze woning zal uiteindelijk waarschijnlijk een vakantiewoning voor de verhuur zijn terwijl we er nu (voorlopig) met zijn 3en zullen wonen. Nu wordt het een houtskeletbouw woning en heb ik vanwege de layout in principe ruimte zat voor een royaal spirobuizenstelsel dus is het wijs om dan alles maar iets royaler te dimensioneren zodat er ruimte in het leidingstelsel zit voor meer capaciteit? Ook ivm stromingsgeluid. Dan zou ik wellicht ook extra ventielen of overbemeten (meer geknepen of deels dichte ventielen moeten voorzien?)
5. Dempers, na de ventilatie box toevoerleidingen en altijd tussen elke ruimte voorzien? Ook weer terugkomend op de voorgaande vraag als ik dan iets royalere buizen zou hebben dan is er misschien weer iets meer ricico of geluid uit andere ruimtes?
Alvast bedankt!
Een andere optie zou misschien kunnen zijn om de buis direct vanuit de kinderkamer naar een ventiel in de muur naar de woonkamer te laten gaan. Ventielen direct in de woonkamer zou natuurlijk een stuk netter zijn, maar als dat echt geen optie is, is dit misschien een mogelijkheid.siem123 schreef op donderdag 1 januari 2026 @ 15:11:
[...]
Flow in de kinderkamer kan wel minder, had nog niet stil gestaan bij de beperking van flow onder de deur. Een rooster is suboptimaal, omdat we juist ook t geluid willen beperken tussen beide kamers. Helemaal als de kids straks groter zijn.
Ik zou wel extra afvoer kunnen plaatsen, maar dan is mn overflow ook minder. Dat betekent dus ook dat er extra aanvoer in de woonkamer nodig is. Daarmee is mn onbalans nog steeds hetzelfde. Dat is hetgeen waar ik vooral mee stoei.
Wat bedoel je precies met dat je overflow minder wordt als je extra afvoer plaatst? De aanvoer en afvoer moet gelijk zijn, dus afvoer moet je er sowieso bij plaatsen. En als je afvoer in de keuken er bij plaatst, dan lijkt het me dat de overflow in de woonkamer/keuken alleen maar hoger kan worden?
Als je de 90 van de kinderkamer verplaatst naar de woonkamer en 120 extra afvoert ben je in balans toch? Als je de 90 weg laat, en 30 extra afvoer hebt in de keuken ben je ook in balans, maar wellicht niet genoeg ventilatie in de woonkamer.
Silence is better than unmeaning words. ~Pythagoras
Ik zal proberen je wat op weg te helpen. Je vragen zijn allemaal al ruimschoots aan bod gekomen in dit topic, dus lees je vooral verder in.MJM88 schreef op donderdag 1 januari 2026 @ 19:34:
Hallo allen, ik ben mij druk aan het inlezen over het hele balansventilatie verhaal voor mijn nieuw te bouwen woning, hier in het topic en zat net ook bij Zehnder te lezen over overstroom.
Ik ben ook met de gepostte excelsheet balansventilatie rekenhulp bezig en heb het idee dat ik nu redelijk begin te snappen wat de bedoeling is maar ik heb toch even een paar vragen.
1. Als ik het goed begrijp bij Zehnder, zou het idee eigenlijk dus zijn alleen maar inblazen in verblijfsruimtes en in de andere ruimtes alleen afzuigen. Zou de uitkomst van beide sommen precies in balans moeten zijn of zou er net iets meer moeten worden toegevoegd of afgezogen?
2.Ik zit nu ook te stoeien met de deurspleten en wat daar dan aan m3/h doorheen kan, maar dit mikt dan toch vrij nauw hoe dit uiteindelijk wordt uitgevoerd? Stel je geef de badkamer eigenlijk een te grote kier zou de lucht dan niet de weg van minste weerstand zoeken en bijv. slechter de weg vinden naar andere ruimtes? Of breng je dit in balans met afstellen van de ventielen?
3.Zijn er (hier) duidelijke voorkeuren voor bepaalde merken? Onze vaste installateur van andere zaken heeft namelijk een voorkeur voor Duco ivm slechte ervaringen met een paar andere merken (verder nog niet naar gevraagd) maar anderzijds lijkt het forum niet al te positief richting Duco te zijn.
4. Deze woning zal uiteindelijk waarschijnlijk een vakantiewoning voor de verhuur zijn terwijl we er nu (voorlopig) met zijn 3en zullen wonen. Nu wordt het een houtskeletbouw woning en heb ik vanwege de layout in principe ruimte zat voor een royaal spirobuizenstelsel dus is het wijs om dan alles maar iets royaler te dimensioneren zodat er ruimte in het leidingstelsel zit voor meer capaciteit? Ook ivm stromingsgeluid. Dan zou ik wellicht ook extra ventielen of overbemeten (meer geknepen of deels dichte ventielen moeten voorzien?)
5. Dempers, na de ventilatie box toevoerleidingen en altijd tussen elke ruimte voorzien? Ook weer terugkomend op de voorgaande vraag als ik dan iets royalere buizen zou hebben dan is er misschien weer iets meer ricico of geluid uit andere ruimtes?
Alvast bedankt!
1. Als aanvoer en afvoer niet in balans zijn, waar komt de resterende lucht dan vandaan?
2. Je gebruikt de ventielen om het debiet af te stellen. De deurspleten zijn zo gedomensioneerd dat ze een minimaal effect hebben op het debiet.
3. Er zijn voorkeuren idd, dit zijn de mijne:
Zehnder is degelijk.
Brink is ook goed. Maar wat minder mooi geengineerd.
Duco koop ik niets van omdat ze het opstellen van een nieuw bouwbesluit gefrustreerd hebben om maar zo lang mogelijk hun raamroosters te kunnen verkopen ipv superieure balansventilatie.
Itho is goedkoop, en dat merk je aan alles.
4. Je moet dimensioneren voor een normale bezetting. Als je maar 2.slaapkamers hebt dan zou dat 3, mensen zijn bijvoorbeeld. Overdimensioneren heeft weinig zin als het luchtvolume niet ingeademd wordt.
5. Buizenstelsel kan oo vele manieren. Allereerst altijd goede flexdempers (master iso aks) op aanvoer en afvoer naar woning (ees ook eens een installatiehandleiding van bijv een Zehnder). Als je alles in serie met spirobuizen gaat aanleggen dan is geluid tussen slaapkamers een risico, je kunt dan dempers toepassen. Gebruik geen inzetdempers die los in de kanalen geplaatst worden.
Kunststof buizen zoals Ubbink Excellent is ook een goed alternatief.
12x 280Wp ZW, 12x 280Wp ZO, Zubadan SHW80YAA 8kW, Zehnder Q450 ERV
:strip_exif()/f/image/sGA0SIwIiZOO8axksW4oHP47.jpg?f=fotoalbum_large)
:strip_exif()/f/image/8ewU1BBeM6dvGapdWjkN9SA3.jpg?f=fotoalbum_large)
:strip_exif()/f/image/CrgODxuJrXqhF9d1GaMYRQAu.jpg?f=fotoalbum_large)
Als in het kantoor een telefoongesprek gevoerd wordt, dan hoor ik dat in woonkamer terug uit de aanvoerventielen. Als we in de woonkamer een gesprek voeren dan is dat terug te horen in de aanvoerventielen in de slaapkamers.
Nu kom ik van Zehnder, de SGD 2-125 overspraakdempers tegen. Dit zijn vrij dure stukjes schuim (20 eur ps) waarbij aangegeven wordt dat deze de flow niet beinvloeden en dus geen nieuwe inregeling noodzakelijk is.
Moet ik nu in elk ventiel een dergelijke SGD 2-125 aanbrengen of bijvoorbeeld alleen in de ruimtes waar het gesprek "veroorzaakt" wordt?
WP: ME PUHZ-SW75YAA + ERSD-VM2D + EV-WP-TWS-1W 300; AC: ME MXZ-2F42VF + 2x MSZ-LN25VGV; PV: 14.08 kWp O/W + SMA STP 8.0; Vent: Zehnder Q600 ERV + Ubbink AirExcellent.
De demping werkt 2 kanten op, dus stel je brengt er een aan in je kantoor, dan hoort heel je huis je telefoongesprek minder, maar je kantoor is tegelijkertijd ook meer geisoleerd van alle andere geluiden.
Als je elk ventiel zou voorzien van zo'n demper heb je er dus effectief 2 tussen elk ventiel zitten. Met wat slim proberen kun je misschien met een paar al veel bereiken.
12x 280Wp ZW, 12x 280Wp ZO, Zubadan SHW80YAA 8kW, Zehnder Q450 ERV
Bedankt voor de feedback._kilian_ schreef op woensdag 31 december 2025 @ 16:29:
[...]
Je aangepaste plaatje ziet er al een stuk beter uit! Als de overloop helemaal open is, dan wordt daar dus lucht aangevoerd die in de slaapkamer op zolder wordt ingeblazen. Daar heb je dan dus niet per se direct een extra ventiel nodig in de toekomst.
Zou dan inderdaad in Slaapkamer 1 en de slaapkamer op zolder 2 ventielen ontwerpen.
Laten we het plaatje eens in tekst gieten. Ik vind het zelf altijd het makkelijkste om van boven naar beneden te werken in een typisch huis, waar de slaapkamers op de hogere verdiepingen liggen en de keuken op de onderste verdieping.
In jou geval zouden we dan 2x45 aanvoeren op de slaapkamer op zolder. Deze 90 kuub gaat dan de trap af naar de 1e verdieping. Hierdoor is er dus al 90 toevoer op de 1e verdieping. Daar komt de 2x45 toevoer uit slaapkamer 1 bij voor een totaal van 180. Tel daar voor slaapkamer 2 en 3 elke nog eens 45 bij en we zitten op 270. Met een afvoer van 25 en 100 van de badkamer en toilet gaat er dus 145 kuub de trap af van de eerste naar de begane grond.
Ik neem even aan dat de trap van de begane naar de 1e in de Gang zit. Daar komt dus de 145 van de eerste uit. Met daarbij de 45 toevoer in het kantoor. Op die manier gaat er dus 220 van de gang de woonkamer in. Dit is trouwens behoorlijk wat en zal niet zomaar door een kier onder de deur gaan. Die 190 is al genoeg voor 4 personen. Afhankelijk van op hoeveel personen je het ontwerpt moet je nog wat toevoeren in de woonkamer. Laten we zeggen dat we het op 6 personen ontwerpen. Met 6x45=270 zouden we dus nog een extra 80 willen aanvoeren in de woonkamer zodat er daar 270 kuub verse lucht beschikbaar is. Je hebt er nu wat minder staan. Deze 270 moeten dan nog afgezogen worden via de keuken, technische ruimte en WC.
Paar ideeen/opmerkingen:
- Als je voor 6 personen ontwerpt zou ik iets meer toevoer in de woonkamer toevoegen. En dan dus wat extra afzuiging in de keuken.
- Je zou eventueel ook kunnen kijken of het mogelijk is om het kantoor lucht via de gang toe te voeren en dan via een doorgang van het kantoor naar de keuken af te voeren. Daarmee wordt het totale benodigde debiet lager en ook de hoeveelheid lucht die via de gang naar de woonkamer moet.
Hoop dat dit nu duidelijk(er) is.
We zijn momenteel met zijn tweeën, dus ik zou liever o.b.v. vier personen willen dimensioneren. Mijn ontwerp is nu zoals te zien op de screenshots.
Een aantal overwegingen/twijfels die ik hier wil delen:
1) Afzuigventiel op de overloop zolder om overstroom naar eerste verdieping te verlagen?
2) Levert het problemen op als overstroom 90m3/h is en de kier onder de deur dit niet faciliteert?
Ik plaats liever zo min mogelijk roosters in deuren en/of muren. In de deur van de overloop naar de badkamer is acceptabel. Van de hal naar de woonkamer of kantoor naar keuken zou eventueel ook nog kunnen. Maar verder wil ik eigenlijk geen roosters toevoegen.
:strip_exif()/f/image/e9wvkhu3ve99L2dBNyWW0h2I.jpg?f=fotoalbum_large)
:strip_exif()/f/image/Sgcaj4nBOK9JZYZ8hm2s3B4D.jpg?f=fotoalbum_large)
Ik heb deze nog nooit gebruikt, best practice is een lindab lrca of lrcna. Daar moet je wel op plannen en is lastiger achteraf.Borne schreef op vrijdag 2 januari 2026 @ 12:57:
Ik vind het niet zo erg om eenmalig wat meer uit te geven en wat van die dingen bestellen maar misschien dat er een best practice was voor de toepassing.
12x 280Wp ZW, 12x 280Wp ZO, Zubadan SHW80YAA 8kW, Zehnder Q450 ERV
Bedankt voor dit topic, er zit genoeg informatie in om zelf te starten en een opzetje te maken! Vooral de excel sheet van P5ycho is super handig, dank daarvoor.
Ik probeer het even opnieuw, mijn vorig ontwerp was onuitvoerbaar.
[ Voor 87% gewijzigd door hawlery op 03-01-2026 19:33 ]
[ Voor 29% gewijzigd door JT op 02-01-2026 17:57 ]
3600wp@115° oost | 825wp panels/750wp inv@13°/115° oost | 1475wp panels/1250wp inv@27°/205° graden zuid
Ecodan warmtepomp
Repo's: HA-Solar-control | HA-heatpump-planning | NR-HueTapDial-NextLevel
2-1 kap, 200m2, SUZ-SWM60VA+ Open Source ME+wtw
12x 280Wp ZW, 12x 280Wp ZO, Zubadan SHW80YAA 8kW, Zehnder Q450 ERV
Gewoon.
3600wp@115° oost | 825wp panels/750wp inv@13°/115° oost | 1475wp panels/1250wp inv@27°/205° graden zuid
Ecodan warmtepomp
Repo's: HA-Solar-control | HA-heatpump-planning | NR-HueTapDial-NextLevel
2-1 kap, 200m2, SUZ-SWM60VA+ Open Source ME+wtw
[ Voor 3% gewijzigd door JT op 02-01-2026 19:40 ]
3600wp@115° oost | 825wp panels/750wp inv@13°/115° oost | 1475wp panels/1250wp inv@27°/205° graden zuid
Ecodan warmtepomp
Repo's: HA-Solar-control | HA-heatpump-planning | NR-HueTapDial-NextLevel
Anders zouden ze wel 1 strip boven monteren met 1 gleuf.
Ik zou die heatsink( voorverwarmer) er uithalen(1 schroefje) en schoonmaken.
Idem de ventilatoren( eruitkantelen)
Anders handleiding van internet downloadener
[ Voor 27% gewijzigd door nessio op 02-01-2026 20:00 ]
2-1 kap, 200m2, SUZ-SWM60VA+ Open Source ME+wtw
Je hebt gelijk, dan is het het wel in balans. Ik zou dan 1 of 2 ventielen in de opslag plaatsen ipv in de keuken, dan komt de overflow van boven ook beter terecht in de woonkamer.pythagorasABC schreef op donderdag 1 januari 2026 @ 22:49:
[...]
Als je de 90 van de kinderkamer verplaatst naar de woonkamer en 120 extra afvoert ben je in balans toch? Als je de 90 weg laat, en 30 extra afvoer hebt in de keuken ben je ook in balans, maar wellicht niet genoeg ventilatie in de woonkamer.
Ik zit dan nog wel met een *veel* te lage afzuiging in de badkamers (12%). Om dit recht te trekken voeg ik 2x 60 toe. Maar dan ben ik mn overflow vanaf boven kwijt. Dan krijg ik weer heel erg veel ventielen in de woonkamer / keuken. Precies wat ik niet wil/kan.
/f/image/4WeOE6JQ0rYE4qDVGH1EXOrM.png?f=fotoalbum_large)
Als ik 5x aanvoer en 4x afvoer (of 2) in mn kanaalplaten moet gaan maken, dan wordt de praktische uitvoerbaarheid wel erg lastig. Dit doet mij het hele WTW-project te overwegen.
Is dit nou gewoon een lastige casus, of snap ik er te weinig van?
Zubadan 11,2, 50x170Wp SF, WTW Orcon HRC400, Douche WTW Qblue v6, Wijas POW lcd multi doorstromer
Bah:
3600wp@115° oost | 825wp panels/750wp inv@13°/115° oost | 1475wp panels/1250wp inv@27°/205° graden zuid
Ecodan warmtepomp
Repo's: HA-Solar-control | HA-heatpump-planning | NR-HueTapDial-NextLevel
@JT maar hoe komt dat ding zo vies dan? zijn je filters zo slecht of is het schimmel?
[ Voor 13% gewijzigd door P5ycho op 03-01-2026 10:50 ]
12x 280Wp ZW, 12x 280Wp ZO, Zubadan SHW80YAA 8kW, Zehnder Q450 ERV
Groot genoeg voor 2 hoofdletters
Zodra er daadwerkelijk iets inhoudelijk verandert rondom eisen aan balansventilatie dan wil ik de sheet met alle liefde updaten.
We staan al 20+ jaar stil, ik ben niet zo onder de indruk van een naamswijziging zonder nieuwe inhoud
Disclaimer: ik heb ze niet naast elkaar gelegd en het is ook niet mijn vakgebied, dus ik kan zeker wat gemist hebben.
[ Voor 14% gewijzigd door P5ycho op 03-01-2026 08:31 ]
12x 280Wp ZW, 12x 280Wp ZO, Zubadan SHW80YAA 8kW, Zehnder Q450 ERV
Overigens ben ik ook 2/3 uur bezig geweest.
Met warm water afspoelen met zacht wasmiddel in bad staat zelfs op een filmpje van zehnder. Zo heb ik het ook gedaan.
2-1 kap, 200m2, SUZ-SWM60VA+ Open Source ME+wtw
Beste wensen nog voor het nieuwe jaar!
Wij zijn bezig met een complete verbouwing van onze verbouwing en zijn nu zo ver dat we toegekomen zijn aan de leidingplannen en uiteraard bijhorend de ventilatie!
Hierbij de visie betreft de montageplekken van de ventielen, Benedenverdieping kunnen we in principe alle kanten op. enkel zitten er een hele boel spotjes in het plafond, vandaar deze plekken. De bovenverdieping is wat moeilijker. Het plafond loopt overal direct schuin omhoog tot de nok. Dit willen we graag zo houden en wil dus vanaf de technische ruimte kant gaan werken. De leidingen kunnen wel achter een knieschot langs.
Enkel zit ik met enkele vragen betreft de ventilatie.
1. Tussen de woonkamer/keuken gedeelte komt een schuifdeur. Deze zal eigenlijk altijd open staan, maar juist bij veel gezelschap in de keuken, dicht. Juist dan zitten er meerdere mensen aan de keukentafel en wil je hier juist meer verse lucht. (Uitgaande van 1,5cm speling geheel rondom de schuifdeuren (1,95*2,60) kan hier maar (x0,3m3/1cm2) 4m3 per uur door) Hierdoor lijkt het mij niet overbodig om 1 ventiel juist aan deze zijde van de deur te plaatsen.
2. Betreft aanvulling op vraag 2. in de tabel kom ik dus ook niet helemaal uit wat ik exact met de overflow moet invullen/ of dit op dit moment klopt.
3. Het dak is een gording dak met hierop dakplaten. Het gaat hierbij om Unidek Aero RC6.3 met hieronder gordingen welke op 1,5m1 overspanning geplaats zijn. Volgens de technische sheet kunnen de platen een overspanning van 5m1hebben. Het dak is totaal 6,5m1 lang. Kort verhaal lang, deze balken kunnen wij rustig wat gaten in boren. Volgens de berekening in de tabel heb ik voor bijv. slaapkamer 1, 2x sprio 125mm nodig welke dan op een luchtflow van 1,02 m/2. Waar ik mee zit is dat dit vrij grote gaten zijn tegenover balken van 220mm. Nu kan ik ook kiezen voor 4x 90 mm flexibel, met luchtflow van 1,41m/s. Enkel ben ik bijna allergisch voor geluidjes en wil ik wel zeker weten dat we dit niet horen.
/f/image/SgWHW273BNpg2463olP2ceIB.png?f=fotoalbum_large)
/f/image/ptBjAIXnXJ8U90y9583BeAtp.png?f=fotoalbum_large)
/f/image/L7o2NbV8YK4doZZrPXITT4mr.png?f=fotoalbum_large)
Graag hoor ik jullie tips en tricks! Alvast thanx!
Enkele beginnersvragen waar ik niet meteen een antwoord op kan vinden. Mocht iemand anders nog een Zehnder installatie hebben gedaan en tips hebben, top
Boor je best de gaten waar de plenums doorgaan met 140/142mm zoals in de handleiding staat of kan het ook kleiner uit met 132? Vul je de ruimte tussen plenum en boorgat het beste met (low expansion) PUR?
Als je een wand ventiel wil maken in een voorzetwand, is de minimale lengte van het plenum dan 13cm? Dus je wand moet 13cm extra naar voor?
Hoe maak je de verbinding tussen het binnen luchtverdeelsysteem (ComfoPipe Compact 200) en de dakdoorvoer? Ik denk hierbij aan de Unnink Ventus 200? Kan dat gewoon met een ComfoPipe Compact mof?
Ja ok, ik t hoeft natuurlijk niet perse automatisch, kan ook een gewoon een schakelaar zijn.P5ycho schreef op vrijdag 2 januari 2026 @ 23:22:
@siem123 Het percentage bij de badkamer staat daar omdat Zehnder aangeeft dat je een minimum percentage in de badkamer af moet zuigen als je de automatische vochtdetectie goed wilt laten werken. 120 is erg veel voor een badkamer, meer dan ik hier normaal voorbij zie komen.
Ik zou dan uitkomen op +150 in de woonkamer en -120 in de keuken.
Ik zou dan willen werken met een luchtverdeelsysteem, (keuze is nog niet gemaakt), maar ik heb nog geen gevoel bij het drukverlies bij 60 m3/uur/ventiel. Voor jou gevoel, zou ik het redden om dit fatsoenlijk aan te leggen met 60 m3/uur?
Ik dacht zelf om het sloopwerk te minimaliseren door enkel een gat te maken aan de onderzijde en de houten vloer van de 2e verdieping en een flexibele aluminium slang van 125 er doorheen te trekken. Bij de woonkamer zal een aanvoer komen van 100 m3/h. Mijn vraag nu, is dit een goed idee? De buis zal 2,5 meter los verticaal in de halfsteens gemetselde schacht komen. Gaat dit goed of gaat de buis straks herrie maken omdat hij los door de schacht zit.
Nou, automatisch is toch wel heel fijn hoor. Schakelaars worden altijd vergeten.siem123 schreef op zaterdag 3 januari 2026 @ 14:53:
[...]
Ja ok, ik t hoeft natuurlijk niet perse automatisch, kan ook een gewoon een schakelaar zijn.![]()
Ik zou dan uitkomen op +150 in de woonkamer en -120 in de keuken.
Ik zou dan willen werken met een luchtverdeelsysteem, (keuze is nog niet gemaakt), maar ik heb nog geen gevoel bij het drukverlies bij 60 m3/uur/ventiel. Voor jou gevoel, zou ik het redden om dit fatsoenlijk aan te leggen met 60 m3/uur?
60m3/h afvoer kan altijd wel. Je kunt de datasheets van de ventielen lezen om af te leiden welke debieten er bij welke geluidsgrens mogelijk zijn.
Ik heb de teat van je plan niet goed bekeken (ben zelf druk met klussen) maar ik zou verwachten dat je meer afzuigt in de keuken dan in de badkamers. Kan ook aan je indeling liggen.
12x 280Wp ZW, 12x 280Wp ZO, Zubadan SHW80YAA 8kW, Zehnder Q450 ERV
Wij wisselen netjes filters op de aangegeven momenten en we hebben van die filters die zelfs fijnstof uit de lucht halen. Dus daar zal het niet aan liggen. Misschien heb ik te lang gewacht met 4 jaar. Ik had ook niet verwacht dat het zo vies zou zijn vanwege de filters, maar nu ik weet dat de ventilator ongefilterde lucht naar binnen lijkt te trekken (filter zit in het bovenste compartiment, ventilator onderste). Ik weet niet of het schimmel was, er zat wel wat wittigs, maar het stof langs de naden van de behuizing van de ventilator is ook licht van kleur. Ik wil hem nu gewoon jaarlijks even open maken.P5ycho schreef op vrijdag 2 januari 2026 @ 23:22:
@JT maar hoe komt dat ding zo vies dan? zijn je filters zo slecht of is het schimmel?
Ja zag ik. Alleen had ik ergens gelezen dat je de wisselaar idealiter minstens een paar uur maar liefst een hele dag eruit moest laten om te drogen, toen besloot ik hem maar niet helemaal onder te dompelen. Ik denk dat ik het volgend jaar zomer doe, dan droogt het een stuk sneller en druk ik hem ook in bad.nessio schreef op zaterdag 3 januari 2026 @ 09:59:
@JT goed bezig geweest. Wtw was wel heel erg vies bij jou.
Overigens ben ik ook 2/3 uur bezig geweest.
Met warm water afspoelen met zacht wasmiddel in bad staat zelfs op een filmpje van zehnder. Zo heb ik het ook gedaan.
Jaar of 4.perslucht schreef op zaterdag 3 januari 2026 @ 10:32:
@JT Bedankt voor de foto's. Hoeveel jaar heeft hij staan draaien voordat je hem hebt schoongemaakt?
3600wp@115° oost | 825wp panels/750wp inv@13°/115° oost | 1475wp panels/1250wp inv@27°/205° graden zuid
Ecodan warmtepomp
Repo's: HA-Solar-control | HA-heatpump-planning | NR-HueTapDial-NextLevel
De reden was dat ik nu ook een enthalpiewisselaar heb. Die heb ik er toen ingezet. De gewone gaat er het voorjaar weer in. Ik heb de gewone dus in de 2e douche uit laten lekken.
Overigens zit de viezigheid voor de filters
Maar onze wtw was lang niet zo vies
Ik gebruik ook een F7 en een G4 filter
[ Voor 18% gewijzigd door nessio op 03-01-2026 15:50 ]
2-1 kap, 200m2, SUZ-SWM60VA+ Open Source ME+wtw
Wat zou het nut zijn van de wisselaar laten drogen? Ik kan me daar niets bij voorstellen; het is 1 blok metaal (aluminium?). Ik heb de wisselaar er wel eens uitgehaald op een koude dag en dan stroomt het water er aan alle kanten uit. Lijkt me dan weinig toevoegen om hem helemaal droog terug te stoppen. Enige uitzondering zou misschien zijn als je daarna de wtw langere tijd uit zou laten staan.JT schreef op zaterdag 3 januari 2026 @ 15:36:
[...]
Alleen had ik ergens gelezen dat je de wisselaar idealiter minstens een paar uur maar liefst een hele dag eruit moest laten om te drogen, toen besloot ik hem maar niet helemaal onder te dompelen. Ik denk dat ik het volgend jaar zomer doe, dan droogt het een stuk sneller en druk ik hem ook in bad.
[ Voor 34% gewijzigd door itsjohan op 03-01-2026 15:57 ]
2-1 kap, 200m2, SUZ-SWM60VA+ Open Source ME+wtw
Wat een beetje jammer is: ik heb de oude filters net weggegooid dus ik kan het niet meer checken. Van de week nog maar eens doen dus.nessio schreef op zaterdag 3 januari 2026 @ 17:33:
Waar de muggen en vliegen zitten op het filter is de buitenlucht kant
Vervolgvraag: kan het kwaad om aan beide kanten de F7 te gebruiken?
Ik heb de F7 inderdaad rechts zitten en daar zitten inderdaad ook de motten.posttoast schreef op zaterdag 3 januari 2026 @ 17:31:
Ik heb hier een Orcon EcoMax 400 maar heb opeens sterk twijfels of de filters er wel goed in zitten. Ik heb een G4 en F7 filter. Als ik het goed begrepen heb, is het F7 filter bedoeld voor de buitenlucht. Maar... de buitenlucht zou aan de rechterkant binnen moeten komen toch (bij de geïsoleerde buizen)? Bij mij zit mijn F7 filter aan de linkerzijde (zo zat ie er vanaf de bouw in, en dat heb ik altijd aangehouden):
[Afbeelding]
Overigens kan een Orcon in beide richtingen aangesloten worden volgens mij, dus ook via links naar buiten. Dus dan is het een kwestie van even de buizen volgen.
[ Voor 9% gewijzigd door balfnl op 03-01-2026 17:49 ]
Bij brink hebben ze diverse uitvoeringen.
Ik heb bijv links boven buiten en rechts onder binnen.
Of bij orco dat ook kan weet ik niet
[ Voor 54% gewijzigd door nessio op 03-01-2026 19:16 ]
2-1 kap, 200m2, SUZ-SWM60VA+ Open Source ME+wtw
Misschien wel mogelijk met spiro kanalen: zie willem7q in "Het centrale balansventilatie met warmteterugwinning topic" en de daaropvolgende vragen/antwoorden.Rensebrink schreef op zaterdag 3 januari 2026 @ 14:54:
Ik heb wat destructief onderzoek gedaan in huis en een mooie ongebruikte loze verticale schacht gevonden op de eerste verdieping van ongeveer 300*300mm direct naast de oude schoorsteen. Hier kan ik dus mooi de aanvoer voor de woonkamer in kwijt.
Ik dacht zelf om het sloopwerk te minimaliseren door enkel een gat te maken aan de onderzijde en de houten vloer van de 2e verdieping en een flexibele aluminium slang van 125 er doorheen te trekken. Bij de woonkamer zal een aanvoer komen van 100 m3/h. Mijn vraag nu, is dit een goed idee? De buis zal 2,5 meter los verticaal in de halfsteens gemetselde schacht komen. Gaat dit goed of gaat de buis straks herrie maken omdat hij los door de schacht zit.
[Afbeelding]
Ik denk dat jouw casus niet per se heel lastig is, maar wel iets lastiger dan de meest simpele casus.siem123 schreef op zaterdag 3 januari 2026 @ 14:53:
[...]
Ja ok, ik t hoeft natuurlijk niet perse automatisch, kan ook een gewoon een schakelaar zijn.![]()
Ik zou dan uitkomen op +150 in de woonkamer en -120 in de keuken.
Ik zou dan willen werken met een luchtverdeelsysteem, (keuze is nog niet gemaakt), maar ik heb nog geen gevoel bij het drukverlies bij 60 m3/uur/ventiel. Voor jou gevoel, zou ik het redden om dit fatsoenlijk aan te leggen met 60 m3/uur?
Volgens mij is je grootste probleem nog het automatisch afzuigen in de badkamers? Ik denk dat dit in feite komt omdat je wat meer kamers heb dan de meeste huizen. Misschien is dit op te lossen door een vochtsensor te plaatsen in de badkamer en zo de ventilatie op te schalen?
Misschien is het ook een idee om te kijken hoe andere installaties met vergelijkbare grootte dit doen (ik zou het zelf niet weten, maar mogelijk wat te vinden in dit topic).
Silence is better than unmeaning words. ~Pythagoras
Automatisch heeft ook wel mn voorkeur, maar dat maakt eea wel lastig, Met een debiet van 510 m3 kom ik uit op 12% voor de badkamers.P5ycho schreef op zaterdag 3 januari 2026 @ 15:09:
[...]
Nou, automatisch is toch wel heel fijn hoor. Schakelaars worden altijd vergeten.
60m3/h afvoer kan altijd wel. Je kunt de datasheets van de ventielen lezen om af te leiden welke debieten er bij welke geluidsgrens mogelijk zijn.
Ik heb de teat van je plan niet goed bekeken (ben zelf druk met klussen) maar ik zou verwachten dat je meer afzuigt in de keuken dan in de badkamers. Kan ook aan je indeling liggen.
Als ik dat naar minimaal 15% wil hebben, kom ik op 570 uit. Met 240 afvoer in de keuken en 210 toevoer in de woonkamer. Totaal dus 8 ventielen.
/f/image/P0HHEhW0LpUPVKpgsyRxuQu1.png?f=fotoalbum_large)
Als ik kijk naar bv Vent-Axia 125, dan zie ik dat er 15 pa drukval is bij 60 m3 en 25 decibel. 9https://www.ventilatieland.nl/static/uploads/pictures/original/other/productblad-uniflexplus-rv-ventilatie-ventiel-vent-axia_5070011351078.pdf) Als ik dan in de OP lees dat je ongeveer 100pa "luchtweerstandbudget" hebt, dan zit ik daar met deze 8 ventielen al aan. Klopt dat?
De ventielen staan parallel, dus dat is niet zo. Bovendien zijn de ventielen instelbaar en hebben dus geen vaste drukval. Wel een minimale, afhankelijk van het debiet.
Het budget gaat op aan:
Dakdoorvoer
Buizen
Wtw
Demper
Buizenstelsel
Ventiel
In die volgorde.
Deze componenten hebben allemaal een weerstand, en dus drukval.
12x 280Wp ZW, 12x 280Wp ZO, Zubadan SHW80YAA 8kW, Zehnder Q450 ERV
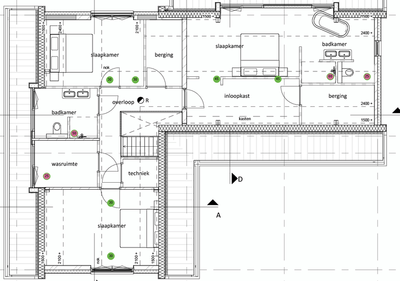
Zou iemand hier zijn licht nog even op willen laten schijnen? Benieuwd naar jullie bevindingen over de laatste versie van mijn ontwerp en overwegingen.kv1992 schreef op vrijdag 2 januari 2026 @ 13:27:
[...]
Bedankt voor de feedback.
We zijn momenteel met zijn tweeën, dus ik zou liever o.b.v. vier personen willen dimensioneren. Mijn ontwerp is nu zoals te zien op de screenshots.
Een aantal overwegingen/twijfels die ik hier wil delen:
1) Afzuigventiel op de overloop zolder om overstroom naar eerste verdieping te verlagen?
2) Levert het problemen op als overstroom 90m3/h is en de kier onder de deur dit niet faciliteert?
Ik plaats liever zo min mogelijk roosters in deuren en/of muren. In de deur van de overloop naar de badkamer is acceptabel. Van de hal naar de woonkamer of kantoor naar keuken zou eventueel ook nog kunnen. Maar verder wil ik eigenlijk geen roosters toevoegen.[Afbeelding]
[Afbeelding]
[Afbeelding]
:strip_exif()/f/image/e9wvkhu3ve99L2dBNyWW0h2I.jpg?f=fotoalbum_large)
:strip_exif()/f/image/Sgcaj4nBOK9JZYZ8hm2s3B4D.jpg?f=fotoalbum_large)
[ Voor 22% gewijzigd door kv1992 op 04-01-2026 12:18 ]
Je overstroom van 1e->0e is 50 maar je hebt 15 ingetekend op de 1e.kv1992 schreef op zondag 4 januari 2026 @ 12:17:
[...]
Zou iemand hier zijn licht nog even op willen laten schijnen? Benieuwd naar jullie bevindingen over de laatste versie van mijn ontwerp en overwegingen.[Afbeelding]
[Afbeelding]
[Afbeelding]
Pulsie gang 0e heb je niet nodig. +50 woonkamer zodat je niet 95 hoeft over te stromen door de gangdeur, dat is namelijk een gigantische deurspleet of overstroom voorziening.
Die +50 in de woonkamer kun je prima ook rechts doen, maar je kunt overwegen om die dichter bij de techniek te plaatsen zodat je minder kans hebt om je keukenluchtjes naar de techniek te voeren.
PV Output 1.350Wp ZWW 10°
Bedankt voor je reactie.GudZ schreef op zondag 4 januari 2026 @ 14:21:
[...]
Je overstroom van 1e->0e is 50 maar je hebt 15 ingetekend op de 1e.
Pulsie gang 0e heb je niet nodig. +50 woonkamer zodat je niet 95 hoeft over te stromen door de gangdeur, dat is namelijk een gigantische deurspleet of overstroom voorziening.
Die +50 in de woonkamer kun je prima ook rechts doen, maar je kunt overwegen om die dichter bij de techniek te plaatsen zodat je minder kans hebt om je keukenluchtjes naar de techniek te voeren.
De 15 verwijst naar de overstroom van de 2e->1e.
Ik overweeg een rooster te maken in de muur van de gang naar de woonkamer of van het kantoor naar de keuken. Hierdoor zou ik de overstroom via de deurkier van de hal naar de woonkamer op max. 50 kunnen beperken. Is het geen probleem als het rooster bijvoorbeeld achter een plint (boven kastenwand keuken) komt te zitten?
En verder dus wel in grote lijnen eens met dit ontwerp?
Ik heb het al eerder aangegeven. Ik ben 95% zeker dat in bypass mode de extractielucht niet via de filter gaat. Het is de extractieventilator die vuil ziet. Dus op zich niet zo erg maar het is natuurlijk wel leuker om niet te moeten reinigen. De pulsieventilator zal wel OK zijn veronderstel ik. De filter van de extractielucht zit er dus hoofdzakelijk voor je WTW en niet voor de ventilator.JT schreef op zaterdag 3 januari 2026 @ 15:36:
[...]
Wij wisselen netjes filters op de aangegeven momenten en we hebben van die filters die zelfs fijnstof uit de lucht halen. Dus daar zal het niet aan liggen. Misschien heb ik te lang gewacht met 4 jaar. Ik had ook niet verwacht dat het zo vies zou zijn vanwege de filters, maar nu ik weet dat de ventilator ongefilterde lucht naar binnen lijkt te trekken (filter zit in het bovenste compartiment, ventilator onderste). Ik weet niet of het schimmel was, er zat wel wat wittigs, maar het stof langs de naden van de behuizing van de ventilator is ook licht van kleur. Ik wil hem nu gewoon jaarlijks even open maken.
Vorig jaar met de kou ging de WTW unit in storing; de voorverwarmer zou niet werken. De voorverwarmer gaat normaal gesproken aan als het onder 0 word, en moet de lucht voorverwarmen zodat er geen(/minder) risico op bevriezen of condensvorming is. Ik heb in februari de voorverwarmer vervangen, maar daarna is het niet meer onder 0 geweest, dus de unit heeft het hele jaar zonder problemen gedraaid.
Dit weekend was het natuurlijk weer koud, en helaas schiet de unit weer opnieuw in dezelfde storing. Zodra de buitentemperatuur 0 of lager word, stopt de ventilator een kwartier met draaien, om daarna weer aan te gaan. dit houdt ie een paar minuten vol, tot weer de lage temperatuur gedetecteerd word, en de ventilator weer stopt.
Omdat ik de voorverwarmer vorig jaar al vervangen heb, vermoed ik dat het probleem ergens anders zit, maar ik kan geen bijzondere dingen vinden: Alles lijkt correct aangesloten, ik zie ook geen glaszekeringen op het moederbord die mogelijk doorgebrand kunnen zijn.
Het enige wat mij opvalt is dat de buitentemperatuur flipt nadat de ventilator is gestopt (dus het lijkt een gevolg, geen oorzaak), die geeft dan een waarde rond 65535. Ik lees dat uit via modbus, ik weet nog niet of dat ook in de interface van de flair 300 die waarde heeft.
PV Output 1.350Wp ZWW 10°
Voor jou nu misschien te laat, maar tip voor anderen:GeleFles schreef op maandag 5 januari 2026 @ 13:05:
Iemand ervaring met het troubleshooten van een Brink Flair 300?
Vorig jaar met de kou ging de WTW unit in storing; de voorverwarmer zou niet werken. De voorverwarmer gaat normaal gesproken aan als het onder 0 word, en moet de lucht voorverwarmen zodat er geen(/minder) risico op bevriezen of condensvorming is. Ik heb in februari de voorverwarmer vervangen, maar daarna is het niet meer onder 0 geweest, dus de unit heeft het hele jaar zonder problemen gedraaid.
Dit weekend was het natuurlijk weer koud, en helaas schiet de unit weer opnieuw in dezelfde storing. Zodra de buitentemperatuur 0 of lager word, stopt de ventilator een kwartier met draaien, om daarna weer aan te gaan. dit houdt ie een paar minuten vol, tot weer de lage temperatuur gedetecteerd word, en de ventilator weer stopt.
Omdat ik de voorverwarmer vorig jaar al vervangen heb, vermoed ik dat het probleem ergens anders zit, maar ik kan geen bijzondere dingen vinden: Alles lijkt correct aangesloten, ik zie ook geen glaszekeringen op het moederbord die mogelijk doorgebrand kunnen zijn.
Het enige wat mij opvalt is dat de buitentemperatuur flipt nadat de ventilator is gestopt (dus het lijkt een gevolg, geen oorzaak), die geeft dan een waarde rond 65535. Ik lees dat uit via modbus, ik weet nog niet of dat ook in de interface van de flair 300 die waarde heeft.
Voordat je willekeurig onderdelen gaat vervangen even een stukje diagnose doen.
Een verwarmingselement laat zich vrij gemakkelijk doormeten, en een defect kan net zo goed in de bedrading zitten, de aansturing, of de detectie van de werking.
Ook in de zomer is de werking eenvoudig te controleren: Omring de buitentemperatuursensor met een zakje ijsblokjes en monitor de uitgang van de voorverwarmer.
Voor jou: Kun je de voorverwarmer niet helemaal in het menu uitschakelen zodat de WTW als een WTW zonder voorverwarmer gaat functioneren? Dat is ook niet fantastisch, maar beter dan niets, en dan kun je rustig proberen de storing te verhelpen.
WP: ME PUHZ-SW75YAA + ERSD-VM2D + EV-WP-TWS-1W 300; AC: ME MXZ-2F42VF + 2x MSZ-LN25VGV; PV: 14.08 kWp O/W + SMA STP 8.0; Vent: Zehnder Q600 ERV + Ubbink AirExcellent.
De voorverwarmer is helaas niet uit te schakelen via het menu. Ik ga vanavond of morgen even kijken of ik het verwarmingselement kan doormeten. Ik zie dat er ook 2 ‘overspanningsbeveiligers’ in de kabel zitten, die zal ik ook even doormeten. (Maar volgens mij heb ik die bij het vervangen van het element ook al vervangen)Andrehj schreef op maandag 5 januari 2026 @ 18:49:
[...]
Voor jou nu misschien te laat, maar tip voor anderen:
Voordat je willekeurig onderdelen gaat vervangen even een stukje diagnose doen.
Een verwarmingselement laat zich vrij gemakkelijk doormeten, en een defect kan net zo goed in de bedrading zitten, de aansturing, of de detectie van de werking.
Ook in de zomer is de werking eenvoudig te controleren: Omring de buitentemperatuursensor met een zakje ijsblokjes en monitor de uitgang van de voorverwarmer.
Voor jou: Kun je de voorverwarmer niet helemaal in het menu uitschakelen zodat de WTW als een WTW zonder voorverwarmer gaat functioneren? Dat is ook niet fantastisch, maar beter dan niets, en dan kun je rustig proberen de storing te verhelpen.
Ok, maar wat ik dan niet helemaal snap is dat we hele goede filters gebruiken voor de inlaat - hoe kan de afvoerventilator dan zo smerig zijn? Sinds we die goede inlaatfilters gebruiken zit er ook nog amper wat in het afvoerfilter. Ook in de winter wanneer we de bypass niet gebruiken.TomVH2 schreef op maandag 5 januari 2026 @ 12:31:
[...]
Ik heb het al eerder aangegeven. Ik ben 95% zeker dat in bypass mode de extractielucht niet via de filter gaat. Het is de extractieventilator die vuil ziet. Dus op zich niet zo erg maar het is natuurlijk wel leuker om niet te moeten reinigen. De pulsieventilator zal wel OK zijn veronderstel ik. De filter van de extractielucht zit er dus hoofdzakelijk voor je WTW en niet voor de ventilator.
3600wp@115° oost | 825wp panels/750wp inv@13°/115° oost | 1475wp panels/1250wp inv@27°/205° graden zuid
Ecodan warmtepomp
Repo's: HA-Solar-control | HA-heatpump-planning | NR-HueTapDial-NextLevel
65535 lijkt me niet zo gek als je die als ruwe data uitleest, dat is namelijk -1 in 16 bit 2-complement notatie dus dat klinkt wel logisch bij deze temperaturen.GeleFles schreef op maandag 5 januari 2026 @ 13:05:
Iemand ervaring met het troubleshooten van een Brink Flair 300?
Vorig jaar met de kou ging de WTW unit in storing; de voorverwarmer zou niet werken. De voorverwarmer gaat normaal gesproken aan als het onder 0 word, en moet de lucht voorverwarmen zodat er geen(/minder) risico op bevriezen of condensvorming is. Ik heb in februari de voorverwarmer vervangen, maar daarna is het niet meer onder 0 geweest, dus de unit heeft het hele jaar zonder problemen gedraaid.
Dit weekend was het natuurlijk weer koud, en helaas schiet de unit weer opnieuw in dezelfde storing. Zodra de buitentemperatuur 0 of lager word, stopt de ventilator een kwartier met draaien, om daarna weer aan te gaan. dit houdt ie een paar minuten vol, tot weer de lage temperatuur gedetecteerd word, en de ventilator weer stopt.
Omdat ik de voorverwarmer vorig jaar al vervangen heb, vermoed ik dat het probleem ergens anders zit, maar ik kan geen bijzondere dingen vinden: Alles lijkt correct aangesloten, ik zie ook geen glaszekeringen op het moederbord die mogelijk doorgebrand kunnen zijn.
Het enige wat mij opvalt is dat de buitentemperatuur flipt nadat de ventilator is gestopt (dus het lijkt een gevolg, geen oorzaak), die geeft dan een waarde rond 65535. Ik lees dat uit via modbus, ik weet nog niet of dat ook in de interface van de flair 300 die waarde heeft.
Is er wellicht een service-menu om de voorverwarmer te testen?
28x 430Wp ZW | Ecoforest EcoGeo 1-9 kW | Zehnder Q450 ERV
Of is misschien de 45m3/h uit het kantoor, of een deel er van, bruikbaar naar de keuken i.p.v naar de hal? Minder tocht en minder koude lucht de woonkamer in. Wat zou daar op tegen zijn?GudZ schreef op zondag 4 januari 2026 @ 14:21:
[...]
Je overstroom van 1e->0e is 50 maar je hebt 15 ingetekend op de 1e.
Pulsie gang 0e heb je niet nodig. +50 woonkamer zodat je niet 95 hoeft over te stromen door de gangdeur, dat is namelijk een gigantische deurspleet of overstroom voorziening.
Die +50 in de woonkamer kun je prima ook rechts doen, maar je kunt overwegen om die dichter bij de techniek te plaatsen zodat je minder kans hebt om je keukenluchtjes naar de techniek te voeren.
Lijkt me dus een sw ontwerp fout. Als deze waarde serieus is dan is er geen waarde onder nul mogelijk?peeter123 schreef op dinsdag 6 januari 2026 @ 09:29:
[...]
65535 lijkt me niet zo gek als je die als ruwe data uitleest, dat is namelijk -1 in 16 bit 2-complement notatie dus dat klinkt wel logisch bij deze temperaturen.
Is er wellicht een service-menu om de voorverwarmer te testen?
Dat is een juist normale manier om waardes onder de nul te noteren.Lord Anubis schreef op dinsdag 6 januari 2026 @ 10:56:
[...]
Lijkt me dus een sw ontwerp fout. Als deze waarde serieus is dan is er geen waarde onder nul mogelijk?
Standaard 10.
Minimaal 7
Bij staat mij staat de voorverwarmer op: uit ( account). Maar ik kan m niet op bijv: auto zetten.
[ Voor 28% gewijzigd door nessio op 06-01-2026 13:50 ]
2-1 kap, 200m2, SUZ-SWM60VA+ Open Source ME+wtw
Inmiddels draait de Q450 in ons verbouwde huis. Erg prettig wonen met een balansventilatie en blij dat ik het heb gedaan. Nu nog een anonemeter vinden om precies in te regelen en dan ben ik content.
Nu met het koude weer (-2) had ik verwacht dat de voorverwarmer in mijn Zehnder ComfoAir Q450 NL L VV ST ERV zou aanslaan. Dat zie ik echter niet op de uitlezing/verbruik. Mijn vermoeden is dat dit komt doordat ik in de Zehnder heb aangegeven dat het een ERV-variant is. Kan dat?
Ik heb het warmteprofiel op 'warm' ingesteld waarbij ik juist nog eerder effect zou verwachten, maar dat blijft dus allemaal uit helaas.
Het vriest misschien niet hard genoeg?
Zelfinstallatie Vaillant Arotherm Plus 55/6 | Zehnder Q450 | Variotherm DWTW | Enphase Envoy S + IQ7x Panasonic 7x335WP
Klopt!Mats007 schreef op dinsdag 6 januari 2026 @ 11:30:
Nu met het koude weer (-2) had ik verwacht dat de voorverwarmer in mijn Zehnder ComfoAir Q450 NL L VV ST ERV zou aanslaan. Dat zie ik echter niet op de uitlezing/verbruik. Mijn vermoeden is dat dit komt doordat ik in de Zehnder heb aangegeven dat het een ERV-variant is. Kan dat?
O ja? Het idee dat men daar 65535 als een negatieve waarde voorstelt, of moet gaan voorstellen is iets die tot fouten leidt. Een unsigned integer is per definitie alleen voor positieve getallen. Het gaan herinterpretateren is uit den boze. Dat het gebruikt wordt staat los van hoe het hoort.Cbr schreef op dinsdag 6 januari 2026 @ 10:57:
[...]
Dat is een juist normale manier om waardes onder de nul te noteren.
Als je 65535 als "min één" gebruikt, werkt je code op het ene systeem misschien, maar op een ander niet. Een x86-processor kan het anders interpreteren dan een ARM-MCU. Ook compilers gaan er verschillend mee om. Om dat getal te gebruiken als ‘buiten bereik’ en dan daar onder nul van te maken (interpretatie) of gebruiken is erg knullig.
Dit is geen normale programmeerpraktijk, maar een fout die code onbetrouwbaar en moeilijk te debuggen maakt. Negatieve getallen horen thuis in signed types – zo simpel is het.
integer types
int16_t signed16bit = -32768; // -32,768 tot 32,767
uint16_t unsigned16bit = 65535; // 0 tot 65,535
Idem voor float en double
Ze zullen in uint16 bit ruimte zat hebben om positieve als negatieve temperaturen te plaatsen.
1e keer gewoon stekker eruit en opengemaakt en toen stonden de bypasskleppen omhoog (niet tegen wisselaar aan). KReeg alleen geen beweging in wisselaar dus boekje gelezen en daar stond "zet in service stand zodat de bypass kleppen goed staat".
Zo gezegd zo gedaan, servicemodus aangezet maar toen stonden de bypass kleppen opeens tegen de wisselaar. Dat is toch vreemd? Kreeg weer geen beweging in de wisselaar iig.
:strip_exif()/f/image/AowcykqGHdN9zrXfNl9oGO3c.jpg?f=fotoalbum_large)
[ Voor 17% gewijzigd door laurens0619 op 06-01-2026 11:50 ]
CISSP! Drop your encryption keys!
Akkoord, maar de waarde komt naar boven bij het uitlezen via modbus, niet op een schermpje van het apparaat zelf.
Bij modbus uitlezen schrik ik niet van deze waarde, en dit zegt ook niet hoe het apparaat verder omgaat met deze waardes.
Ah, ok, dan moet de Voorverwarmer dus WEL aanspringen als ik de setting aanpas? Ik weet alleen even niet of dit wel verstandig is voor de performance/gebruik van de unit? Kan dit ook niet helemaal rijmen met de opmerking van @bensss waarbij hij niet aanspringt en hij geen ERV heeft? @bensss , staat je setting wel goed?
Die twee overzichten rijmen inderdaad niet helemaal met elkaar nee. Wel fijn dat ie dan toch aanspringt! Wellicht is het verbruik van de voorverwarmer in een aparte entity te zien?bensss schreef op dinsdag 6 januari 2026 @ 12:17:
Het lijkt erop dat de voorverwarmer toch is aangesprongen (grafiekje 1) maar gekke is dat ik dat niet in het verbruik zie (grafiekje 2) [Afbeelding]
[Afbeelding]
Nu moet ik zelf nog even weten of ik de setting kan wijzigen/of dat nodig is met de ERV geïnstalleerd. Wil er natuurlijk nog lang plezier van hebben.
Wel listig, dan lijkt het alsof het heel zuinig draait terwijl de voorverwarmer stilletje energie slurpt.
Zelfinstallatie Vaillant Arotherm Plus 55/6 | Zehnder Q450 | Variotherm DWTW | Enphase Envoy S + IQ7x Panasonic 7x335WP
Niemand heeft gezegd dat dit een unsigned integer was. De wtw stuurt via Modbus bits over de lijn, hoe je dit moet interpreteren wordt bepaald door Brink. Een 16bit signed integer in 2's complement notatie en MSB een 1 is een negatief getal, zoals @Cbr al aangaf.Lord Anubis schreef op dinsdag 6 januari 2026 @ 11:39:
[...]
O ja? Het idee dat men daar 65535 als een negatieve waarde voorstelt, of moet gaan voorstellen is iets die tot fouten leidt. Een unsigned integer is per definitie alleen voor positieve getallen. Het gaan herinterpretateren is uit den boze. Dat het gebruikt wordt staat los van hoe het hoort.
Als je 65535 als "min één" gebruikt, werkt je code op het ene systeem misschien, maar op een ander niet. Een x86-processor kan het anders interpreteren dan een ARM-MCU. Ook compilers gaan er verschillend mee om. Om dat getal te gebruiken als ‘buiten bereik’ en dan daar onder nul van te maken (interpretatie) of gebruiken is erg knullig.
Dit is geen normale programmeerpraktijk, maar een fout die code onbetrouwbaar en moeilijk te debuggen maakt. Negatieve getallen horen thuis in signed types – zo simpel is het.
integer types
int16_t signed16bit = -32768; // -32,768 tot 32,767
uint16_t unsigned16bit = 65535; // 0 tot 65,535
Idem voor float en double
Ze zullen in uint16 bit ruimte zat hebben om positieve als negatieve temperaturen te plaatsen.
Binair 1111 1111 1111 1111 op de lijn is dus -1 na interpretatie als signed 2's complement 16bit int, maar 65535 als unsigned int.
12x 280Wp ZW, 12x 280Wp ZO, Zubadan SHW80YAA 8kW, Zehnder Q450 ERV
Dit is het verbruik van alleen de ventilatoren, niet het totale systeemverbruik. Als je dat wilt weten moet je aan de stekker meten.bensss schreef op dinsdag 6 januari 2026 @ 12:17:
Het lijkt erop dat de voorverwarmer toch is aangesprongen (grafiekje 1) maar gekke is dat ik dat niet in het verbruik zie (grafiekje 2) [Afbeelding]
[Afbeelding]
[ Voor 5% gewijzigd door P5ycho op 06-01-2026 13:01 ]
12x 280Wp ZW, 12x 280Wp ZO, Zubadan SHW80YAA 8kW, Zehnder Q450 ERV
Blijft dan toch weer bijzonder. Unit met tig sensoren erin en dan meten ze niet het stroomverbuik van alle componenten. Nja, dan maar een powerplug ertussen.P5ycho schreef op dinsdag 6 januari 2026 @ 13:00:
[...]
Dit is het verbruik van alleen de ventilatoren, niet het totale systeemverbruik. Als je dat wilt weten moet je aan de stekker meten.
Ik ben bezig met het buizenplan voor mijn huis. Ik heb niet veel ruimte om de WTW unit ergens kwijt te kunnen, aangezien ik geen zolder heb. Ik heb een ruimte gevonden, maar ik twijfel of dat wel groot genoeg is. De ruimte is 85x110cm. Is dit te krap? De ruimte deelt ook een muur (van gips) met een slaapkamer. Gaat dat geluidsoverlast geven?
/f/image/HqZDAceSajO6zfGY7Oormj4b.png?f=fotoalbum_large)
Het alternatief is een verdieping eronder (waar de huidige mechanische ventilatie (afvoer) unit staat), maar dan moet ik dus 4 gaten maken door de verdiepingsvloer. Ik weet ook niet of het voor de constructie zo handig is om zoveel gaten te maken op een redelijk klein oppervlakte?
Ik zou hem niet op een woon of slaapverdieping willen hebben.
Eensch. Zeker als je op hogere debieten draait hoor je hem wel.Borne schreef op dinsdag 6 januari 2026 @ 16:19:
Ik heb een Zehnder Q450 die op zolder staat maar ik ben ook blij dat hij daar staat. Je kunt hem best goed horen.
Ik zou hem niet op een woon of slaapverdieping willen hebben.
Als je de ruimte afsluit en de unit van de wand houdt kan dat prima. Ik ga er vanuit dat het gipswandje gevuld is, anders eventueel wat geluidsdempend materiaal aanbrengen in die ruimte.
In een eigen afgesloten ruimte op de verdieping is beter dan op een open zolder zonder ombouw, ben het dus niet eens met bovenstaand.
12x 280Wp ZW, 12x 280Wp ZO, Zubadan SHW80YAA 8kW, Zehnder Q450 ERV
Ligt eraan of je de performance van de unit wilt meten (ventilatorverbruik vs debiet zegt iets over weerstand van het systeem) of je energieverbruik in totaal. Dat laatste is leuke statistiek, maar het eerste wordt daadwerkelijk gebruikt om te bepalen of de unit slechter presteert dan tijdens ingebruikname: hij gaat dan in geluidsreducerende modus en verlaagt zijn debiet om comfort te behouden.Mats007 schreef op dinsdag 6 januari 2026 @ 14:24:
[...]
Blijft dan toch weer bijzonder. Unit met tig sensoren erin en dan meten ze niet het stroomverbuik van alle componenten. Nja, dan maar een powerplug ertussen.
12x 280Wp ZW, 12x 280Wp ZO, Zubadan SHW80YAA 8kW, Zehnder Q450 ERV
De muur waar ik het op zou monteren is stevig. Die verdieping moet ook nog gebouwd worden, dus ik kan rekening houden met geluidsisolerende muren. In de andere ruimte zou het ook grenzen aan slaapkamers. Ik heb simpelweg geen andere mogelijkheid dan het te laten grenzen aan slaapkamers. Het liefst zet ik het dus boven op de nieuwe verdieping, maar ik weet nog steeds niet zeker of 85x110cm genoeg is om alles netjes te installeren en om ook bijv. filters te vervangen.P5ycho schreef op dinsdag 6 januari 2026 @ 16:34:
@hawlery Op een betonnen vloer opstellen, of ophangen aan een muur met genoeg massa, zie installatiehandleiding.
Als je de ruimte afsluit en de unit van de wand houdt kan dat prima. Ik ga er vanuit dat het gipswandje gevuld is, anders eventueel wat geluidsdempend materiaal aanbrengen in die ruimte.
In een eigen afgesloten ruimte op de verdieping is beter dan op een open zolder zonder ombouw, ben het dus niet eens met bovenstaand.
Voor de maten kun je even de installatiehandleiding lezen, daar staat in hoeveel ruimte je vrij moet houden.
[ Voor 19% gewijzigd door P5ycho op 06-01-2026 18:12 ]
12x 280Wp ZW, 12x 280Wp ZO, Zubadan SHW80YAA 8kW, Zehnder Q450 ERV
De wisselaar zelf zit soms wat vast, dan moet je even wat harder rukken en wat prutsen om die uit de unit getrokken te krijgen.
@Mats007 Met een ERV-wisselaar gaat de voorverwarmer pas bij erg lage temperaturen aan, afhankelijk volgens mij ook van je debiet. Hier was het vanochtend rond 5 uur even -4°, en toen is de voorverwarmer ook niet aan geweest (bij 220 m³/h).
[ Voor 21% gewijzigd door Andrehj op 06-01-2026 19:51 ]
WP: ME PUHZ-SW75YAA + ERSD-VM2D + EV-WP-TWS-1W 300; AC: ME MXZ-2F42VF + 2x MSZ-LN25VGV; PV: 14.08 kWp O/W + SMA STP 8.0; Vent: Zehnder Q600 ERV + Ubbink AirExcellent.
[ Voor 49% gewijzigd door laurens0619 op 06-01-2026 20:13 ]
CISSP! Drop your encryption keys!
in huis produceer je toch ook stof (kleding en etc)? Dus bij jou blijven de extractieventielen proper? Ik moet ze hier toch jaarlijks reinigen ondanks F7 filter in aanvoerlucht. En de G4 filter van de afgevoerde lucht zit ook goed vol na 6 maand.JT schreef op maandag 5 januari 2026 @ 21:21:
[...]
Ok, maar wat ik dan niet helemaal snap is dat we hele goede filters gebruiken voor de inlaat - hoe kan de afvoerventilator dan zo smerig zijn? Sinds we die goede inlaatfilters gebruiken zit er ook nog amper wat in het afvoerfilter. Ook in de winter wanneer we de bypass niet gebruiken.
/f/image/weXju4iQlluqNkOcE8O0ykHA.png?f=fotoalbum_large)
/f/image/aOOuSwwhy4S0wQs5q1jOfeSk.png?f=fotoalbum_large)