Lieve mede-tweakers,
Met veel plezier lees ik al lang op het bouwen en klussen forum, maar nu staan we zelf op de vooravond van een redelijke verbouwing en ik zou graag jullie gedachten 'picken' over enkele zaken.
TLDR;
Ik zoek een goede indeling voor de badkamer en de 2 slaapkamers (+/- 9m2) boven. Ik zoek ook een oplossing om de was te drogen in een ruimte zonder natuurlijke ventilatie. Verder sta ik open voor verdere tips/valkuilen.
-
- huidige woning is 140 m2 woonoppervlak, origineel gebouwd in 1930, compleet herbouwd in 2005 (lees; de voorgevel is alleen blijven staan, de rest is nieuw, zelf aangeschaft in 2017)
- gezin met 4 kids (nu 6, 7, 8, en 9).
- 2 woonlagen, geen zolder, wel 2x entresol op voorste slaapkamers.
-
- Aanbouw zetten van 55 m2, 2 verdiepingen, totaal 110 m2 erbij.
- Tekeningen zijn gemaakt, de welstand is akkoord. Officiële bouwaanvraag is ingediend.
- Meerdere offertes zijn aangevraagd, aannemer is geselecteerd. Details van de (niet getekende) offerte staan nog open. Aannemer mag het casco opleveren (muv badkamer).
- Planning is dat de aannemer voor de bouwvak 2026 klaar is.
- huidige oprit wordt volgebouwd, via de andere buren creëren we een nieuwe achterom.
- Voor boven is de wens 5 volledige slaapkamers en meer opslag
- voor beneden is de wens een speelkamer (later chill hok) een washok (nouja, meer een drooghok) en een berging.
Goed om te weten:
- links van de aanbouw staat een loods, hierdoor kunnen daar geen ramen geplaatst worden.
Tekening aanbouw, alles in het blauwe vak komt erbij.
:strip_exif()/f/image/4FZuvgxkAKmsgSfbc888vcNM.png?f=user_large)
-
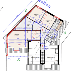
- Badkamer komt onder de schuine kap.
- Voorste kamers blijven (grotendeels) gelijk.
- Indeling van de badkamer blijft lastig. Wie heeft er een goed idee?
- graag zouden de we de 2 slaapkamers achter groter hebben, maar ik krijg t niet ingedeeld. Onder andere door (de deur van) de badkamer. Wie heeft er een goed idee?
-
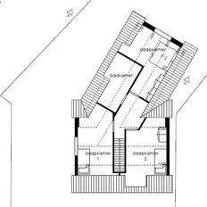
- Speelkamer is nu nog te klein getekend, deze gaan we nog vergroten.
:strip_exif()/f/image/GWitRuPYXFkvr1JXN9Uf4Z2s.png?f=user_large)
-
- airco met split unit komen in slaapkamers en (waarschijnlijk) woonkamer.
- Zonnepanelen komen op t platte dak.
- Vloerverwarming beneden
- (Voorbereiding voor) radiatoren boven. We houden niet van droge lucht door verwarmen met airco.
- Huis is rondom geïsoleerd, dus dit komt in de aanbouw ook.
Met veel plezier lees ik al lang op het bouwen en klussen forum, maar nu staan we zelf op de vooravond van een redelijke verbouwing en ik zou graag jullie gedachten 'picken' over enkele zaken.
TLDR;
Ik zoek een goede indeling voor de badkamer en de 2 slaapkamers (+/- 9m2) boven. Ik zoek ook een oplossing om de was te drogen in een ruimte zonder natuurlijke ventilatie. Verder sta ik open voor verdere tips/valkuilen.
-
Huidige situatie
;- huidige woning is 140 m2 woonoppervlak, origineel gebouwd in 1930, compleet herbouwd in 2005 (lees; de voorgevel is alleen blijven staan, de rest is nieuw, zelf aangeschaft in 2017)
- gezin met 4 kids (nu 6, 7, 8, en 9).
- 2 woonlagen, geen zolder, wel 2x entresol op voorste slaapkamers.
-
Verbouwplannen
:- Aanbouw zetten van 55 m2, 2 verdiepingen, totaal 110 m2 erbij.
- Tekeningen zijn gemaakt, de welstand is akkoord. Officiële bouwaanvraag is ingediend.
- Meerdere offertes zijn aangevraagd, aannemer is geselecteerd. Details van de (niet getekende) offerte staan nog open. Aannemer mag het casco opleveren (muv badkamer).
- Planning is dat de aannemer voor de bouwvak 2026 klaar is.
- huidige oprit wordt volgebouwd, via de andere buren creëren we een nieuwe achterom.
- Voor boven is de wens 5 volledige slaapkamers en meer opslag
- voor beneden is de wens een speelkamer (later chill hok) een washok (nouja, meer een drooghok) en een berging.
Goed om te weten:
- links van de aanbouw staat een loods, hierdoor kunnen daar geen ramen geplaatst worden.
Tekening aanbouw, alles in het blauwe vak komt erbij.
:strip_exif()/f/image/4FZuvgxkAKmsgSfbc888vcNM.png?f=user_large)
-
Huidige plannen/overwegingen boven
![]() | ![]() |
- Voorste kamers blijven (grotendeels) gelijk.
- Indeling van de badkamer blijft lastig. Wie heeft er een goed idee?
- graag zouden de we de 2 slaapkamers achter groter hebben, maar ik krijg t niet ingedeeld. Onder andere door (de deur van) de badkamer. Wie heeft er een goed idee?
-
Overwegingen beneden
- Beneden komt een washok (nouja meer drooghok), maar hier kan geen raam/natuurlijke ventilatie in komen. Wie heeft er een goed (ongeveer duurzame) oplossing voor het regelen van de vochtigheid? Airco kan ontvochtigen, maar dit werkt niet (fatsoenlijk) in de winter. Ontvochtiger is ook sub-optimaal.- Speelkamer is nu nog te klein getekend, deze gaan we nog vergroten.
:strip_exif()/f/image/GWitRuPYXFkvr1JXN9Uf4Z2s.png?f=user_large)
-
Duurzaamheid
- Geen wens voor D systeem- airco met split unit komen in slaapkamers en (waarschijnlijk) woonkamer.
- Zonnepanelen komen op t platte dak.
- Vloerverwarming beneden
- (Voorbereiding voor) radiatoren boven. We houden niet van droge lucht door verwarmen met airco.
- Huis is rondom geïsoleerd, dus dit komt in de aanbouw ook.
/f/image/iFjiK4bWb8XfGCWoaKNRXtPm.png?f=fotoalbum_tile)
/f/image/gftbmpUiNHCo4lUEDxwsWpDJ.png?f=fotoalbum_tile)
/f/image/9Sxqo9fHeDgmV3SDb3PDGFoA.png?f=fotoalbum_large)
/f/image/dbl5OO2iR9eM2RnDjvIzMH6Q.png?f=fotoalbum_large)