Vanuit mijn zoekactie kwam ik vooral op een nee uit. Het mengen van 24v bij 230v draden mag niet. Bij een kabel zou het mogen maar dat zal niet passen. DALI mag dan weer wel maar moet ook behandeld worden als netspanning.brammh schreef op dinsdag 7 november 2023 @ 22:16:
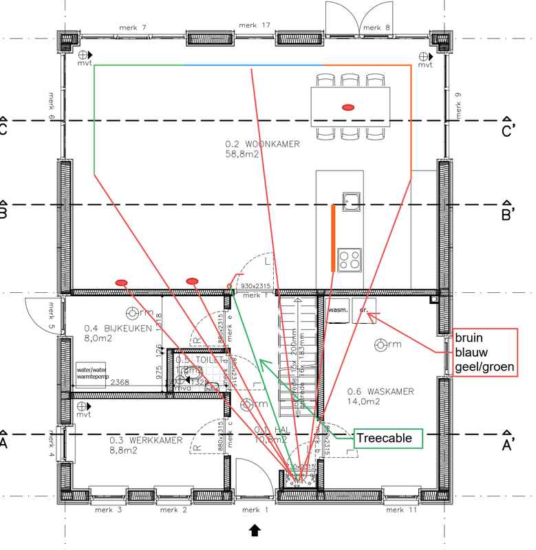
Ik wil een 'standaard' 4x 0,8mm2 masieve signaal kabel gebruiken voor het tree / 24v DC signaal naar aanwezigheids sensor en touch schakelaar.
Mag ik deze samen met 3x 2,5mm2 VD kabels (230V AC) in 1 19mm / 3/4 buis stoppen?
ik begrijp dat het bij 16mm niet mag. Hoor verschillende verhalen over 19mm
Ik zit ook met een tekort aan leidingen vanuit ons project en zal een 24v inbouw voeding toepassen met Air producten. Dan heb je draadloos maar in ieder geval geen geklooi met batterijen.
[ Voor 13% gewijzigd door ThePsycho op 07-11-2023 22:29 ]
ID.3 Pro 58 kWh | Ede | 5740 Wp | PVOutput
/f/image/wUXW1BKf0kf5NCEhLdy8rPWT.png?f=fotoalbum_large)
:fill(white):strip_exif()/f/image/LuE5jfgHTmmZXOeIvMdrKKC5.png?f=user_large)
:fill(white):strip_exif()/f/image/vEegrDD6kx53m7E9tKVPV2ZI.png?f=user_large)
/f/image/W7IOGrz7kupqIQL7NDTRHlxX.png?f=fotoalbum_large)
:strip_exif()/f/image/WAmnCVV3LesyilK1b3HKeHYg.jpg?f=fotoalbum_large)
:strip_exif()/f/image/diFrhEoDy50XYSCBAm9oCTFl.jpg?f=fotoalbum_large)
:strip_exif()/f/image/2P6mZ5fd3yQSSEim8dt8Rm7z.jpg?f=fotoalbum_large)
:strip_exif()/f/image/H3P2vmFnqNDGXAIEeL331q8d.jpg?f=fotoalbum_large)
:fill(white):strip_exif()/f/image/vwHTtUqssyNoCdbPpYiT9jfT.png?f=user_large)
/f/image/HTtj5pLVSl6TIaX4Awd08hLM.png?f=fotoalbum_large)
/f/image/IgPDfReKvpP2jLa9PqZJjSya.png?f=fotoalbum_large)
:fill(white):strip_exif()/f/image/VQK1PqsU62J1sbLYBKhQit4j.png?f=user_large)
:strip_exif()/f/image/fLqOzUNWJqZtSHiM5LdpvIRe.jpg?f=fotoalbum_large)
/f/image/HVfwKt07ZKDD0LNhpxedvY88.png?f=fotoalbum_large)
:fill(white):strip_exif()/f/image/MkIouBq1jwoIzAV32YmEfWiu.png?f=user_large)
:fill(white):strip_exif()/f/image/7quFMr7x3gUMfp81z6O70G2e.png?f=user_large)