• Vestaxis
  • Registratie: Januari 2021
  • Laatst online: 20-02 11:53
Ik heb hier een tijdje geleden mijn plan beschreven: Vestaxis in "Het centrale balansventilatie met warmteterugwinning topic"

We gaan bijna de kanalen leggen en nu heb ik bedacht dat ik in de woonkamer helemaal geen toevoer ga maken maar de toevoer die ik in de woonkamer wilde plaatsen (totaal 130 m3/h) via de vide naar beneden laat stromen samen met de overflow uit de andere ruimtes op de bovenverdieping. Ik plaats dus ventielen aan de bovenkant van de vide en er komt overflow naar beneden vanuit de andere ruimtes boven. De vide is ca 4m bij 1.5m. Zie ik iets over het hoofd of moet dat gewoon kunnen?

Alvast bedankt.
@Vestaxis De uitdaging met zoveel overflow is hoe je dat van de gang in de woonkamer krijgt
Wij hebben hier twee taatsdeuren (met flinke spleet rondom) tussen hal en woonkamer, dan gaat het gemakkelijk, maar dat heeft niet iedereen.
Edit: of heeft die Vide een open verbinding met de overloop boven?

[ Voor 12% gewijzigd door Andrehj op 03-08-2025 19:27 ]

WP: ME PUHZ-SW75YAA + ERSD-VM2D + EV-WP-TWS-1W 300; AC: ME MXZ-2F42VF + 2x MSZ-LN25VGV; PV: 14.08 kWp O/W + SMA STP 8.0; Vent: Zehnder Q600 ERV + Ubbink AirExcellent.


  • Vestaxis
  • Registratie: Januari 2021
  • Laatst online: 20-02 11:53
Dank voor je reactie @Andrehj. De vide heeft inderdaad een open verbinding met de woonkamer. Er zit geen deur tussen de verdieping en de begane grond. Via de vide en de trap kan er heel veel lucht stromen.

  • roaldvdmeer
  • Registratie: Maart 2010
  • Laatst online: 03-04 20:49
Afbeeldingslocatie: https://tweakers.net/i/nRoM8VmZECe7J_XhDaRhxgSOlTw=/800x/filters:strip_exif()/f/image/1mkJgnjgjhzqrVamTsLBmsUM.png?f=fotoalbum_large

Beste tweakers, ben de kanalen voor mijn wtw ventilatiesysteem aan het leggen. Voor het luchtafvoerrkanaal van mijn badkamer moet ik een klein stukje onder een dragende balk door, waardoor je een soort U krijgt. Zou dit problemen geven met vocht wat zich in het kanaal kan gaan ophopen? De kanalen lopen door het plafond van ruimtes binnen de verwarmde/geisoleerde schil van het huis, dus condens valt wellicht mee?

Hoe doen jullie dit over het algemeen? Alle kanalen op afschot leggen naar de ventielen oid? De WTW unit staat zoals bij velen op zolder, dus afschot naar de unit toe lijkt me meestal niet mogelijk. Bedankt!

  • P5ycho
  • Registratie: Januari 2000
  • Laatst online: 12:39
Je krijgt alleen vocht als je buizen door een koude ruimte lopen en het vocht uit de lucht gedwongen wordt. Zolang je binnen de geisoleerde schil van je huis blijft is er dus niets aan de hand.
De U bocht is dus ook geen probleem.

[ Voor 8% gewijzigd door P5ycho op 04-08-2025 18:28 ]

12x 280Wp ZW, 12x 280Wp ZO, Zubadan SHW80YAA 8kW, Zehnder Q450 ERV


  • woekele
  • Registratie: Juni 2002
  • Niet online

woekele

woekele

In onze nieuwe woning heb ik tijdelijk zelf de WTW in gebruik genomen, zonder inregelen. Dit moet nog gaan gebeuren door de installateur. Daarom zat ik alvast te kijken hoe ze het op papier gepland hebben. Ik lees in dit topic veel over overstroom en zie dat dat in ons ventilatie-plan eigenlijk amper/niet toegepast is. We komen ook vrij hoog uit qua ventilatie-behoefte die misschien niet nodig is.

Samengevat de kamers met ventilatie in het plan van de installateur (allen komen via 1 deur uit op 2 centrale overlopen en een gang, een soort trappenhuis, dus maximaal 2 deuren tussen alle ruimtes):

Zolder: 2 slaapkamers met beide 36 inblaas. En een badkamer met 64 afvoer.
Eerste verdieping: master bedroom met 2x43 inblaas. En 2 kinderkamers met elk 45 inblaas. Daarnaast 2 badkamers met elk 65 afvoer. En nog een toilet met 36 afvoer.
Begane grond: Woonkamer/eetkamer met 4x 53 inblaas. Keuken met 3x67 afvoer. En een toilet met 29 afvoer.
Totaal 460 inblaas en afvoer.

Mijn plan zou zijn:
Zolder: 2 slaapkamers met beide 45 inblaas. En een badkamer met 50 afvoer.
Eerste verdieping: master bedroom met 2x45 inblaas. En 2 kinderkamers met elk 45 inblaas. Daarnaast 2 badkamers met elk 55 afvoer. En nog een toilet met 25 afvoer.
Begane grond: Woonkamer/eetkamer met 4x 37.5 inblaas. Keuken met 3x60 afvoer. En een toilet met 30 afvoer. Daarnaast zou ik graag nog 25 afvoeren uit een soort techniekruimte, ligt naast het toilet, wellicht kunnen ze nog een buis doortrekken hier naartoe. Het toilet heeft een nog open verlaagd plafond, dus misschien mogelijk dacht ik...

Totaal is dan 420 inblaas en afvoer. Dat is een 'besparing' van 40 t.o.v. hun plan, terwijl de techniekruimte als bonus actief ververst gaat worden. Het zou nog iets strakker kunnen door de badkamers op 1e verdieping op 50 te zetten i.p.v. 55. En toilet begane grond zou naar 25 kunnen. Dan kom je nog eens 15m3/h lager uit, op 405. Klinkt dit inderdaad als een beter plan, of verzin ik gekke dingen? :)

PS: mocht de extra buis naar de techniekruimte niet mogelijk zijn, dan kan de inblaas in de woon/eetkamer naar 125 i.p.v. 150 en komt het totaal op 380m3/h.

[ Voor 4% gewijzigd door woekele op 04-08-2025 22:00 ]


  • pythagorasABC
  • Registratie: Maart 2008
  • Laatst online: 05-04 22:09

pythagorasABC

A²+B²=C²

@woekele Een overzicht in het excelbestand zou makkelijker te begrijpen zijn, maar dat het beter zou kunnen klinkt wel aannemelijk.
Wat wel goed om te checken is, is of de getallen om 100% vermogen gaan of niet.
36 inblaas voor een slaapkamer is wel erg weinig als dat 100% is inderdaad, maar wat betreft de badkamer is een afvoer van 50 juist aan de lage kant.

Silence is better than unmeaning words. ~Pythagoras


  • Franciesco
  • Registratie: Januari 2021
  • Laatst online: 13:59
@woekele de waardes van het oorsponkelijke plan voor de zolder en 1e verdieping vind ik mooi mits deze de maximaalwaardes zijn. Daar zou ik zelf niet veel aan willen veranderen. Als je daar toch iets wilt bezuinigen hooguit iets minder afvoer in de badkamer. Maar dat zou dan niet veel verschil geven (misschien 55-60 per badkamer op max stand, maar minder zou ik niet doen).
Een toilet max op 36m3/h vind ik vrij weinig. Ik zou streven naar ca 30m3/h op de normaal stand, wat dan vaak rond de 45m3/h op max is.

Uit de tekst valt niet op te maken waar de huidige overstroom (18m3/h van zolder+1e verdieping samen) heen gaat: komt die de woonkamer binnen? Een tekening helpt.

Bedenk ook dat iets minder ventilatiedebiet niet heel veel gaat doen in energiebesparing met een moderne wtw unit: het verminderde elektrische verbruik van de unit met een 40m3/h lager debiet zal vermoedelijke rond de 4 Watt liggen. Het thermische verlies zal door het hoge wtw rendement ook erg beperkt zijn.
Oftwel mijn visie: bezuinig niet te veel, focus vooral op een adequate ventilatie.

  • woekele
  • Registratie: Juni 2002
  • Niet online

woekele

woekele

Momenteel draait het systeem in totaal meestal op 250-300m3/h (ben nog wat aan het experimenteren en het is dus niet ingeregeld, sommige ventielen zitten er niet eens in), en daarmee blijft de lucht prima. Dus ik hoop dat de getallen gaan over 100% vermogen en niet over de normaalstand. Want met continu > 400m3/h gaan we wel naar de regionen waar je het systeem beter kunt horen. We hebben trouwens CO2-sensors in de woonkamer en slaapkamers, dus in theorie kan ik 'm ook standaard op 150m3/h zetten en dan zou hij vanzelf moeten gaan optoeren als 't nodig is. Maar die sensors worden pas actief bij 1050ppm, dat vind ik wat laat, dus ben ze liever beetje voor (de sensors anders instellen zou trouwens ook moeten kunnen door de sensors als 'sensor' in te stellen i.p.v. 'regelaar', dan kan je handmatig een setpoint en regeling bepalen op de wtw-unit zelf, maar ik laat ze liever even default voor nu).

De overstroom van 18m3/h vanaf de zolder/1e verdieping is niet getekend door ze, maar ik kan niet anders dan concluderen dat het samen met de 11 overstroom van de woon/eetkamer naar het toilet op de begane grond gaat (alle ruimtes zitten aan hetzelfde 'trappenhuis' met telkens 1 deur).

Anyway, dank voor jullie tips so far!

[ Voor 19% gewijzigd door woekele op 05-08-2025 12:10 ]


  • RobinCollie
  • Registratie: Maart 2018
  • Laatst online: 03-04 11:45
Na heel wat gepuzzel weer een stap verder in mijn ontwerp, heb alle feedback meegenomen en het is denk ik een goede verbetering (voorgaande: RobinCollie in "Het centrale balansventilatie met warmteterugwinning topic"). Met het nieuwe ontwerp voldoe ik (buiten de begane grond in de huidige situatie) in iedere ruimte aan de 45m³/h per persoon voor het beoogde aantal personen, is de afvoer voor alle natte ruimtes ruim voldoende als ik van de waardes uit de sheet van P5ycho uitga en komt 25% van de toevoer via overflow. Totaal debiet van 580m³/h, waarvan 435m³/h.

Afbeeldingslocatie: https://tweakers.net/i/vBZSzsilIhva5gc2VbeA7HkxjsU=/800x/filters:strip_exif()/f/image/N8mOwuN6NbJF6TqTbPNxSNj9.png?f=fotoalbum_large


Met de bovenste verdieping:
Afbeeldingslocatie: https://tweakers.net/i/rGFQ--oD7OL-pszaoxQj5BBfV3Q=/x800/filters:strip_exif()/f/image/ArIYLldwCsXWBaaP714203Cm.png?f=fotoalbum_large
middenverdieping:
Afbeeldingslocatie: https://tweakers.net/i/5Kkm35gjaMCcpO_iQS5bm97TxEU=/x800/filters:strip_exif()/f/image/tG5PFGYI30fadqzEWzwv9Hzn.png?f=fotoalbum_large
begane grond:
Afbeeldingslocatie: https://tweakers.net/i/ZAN9dOWa11E8r8g2eE0mFrjtxx4=/x800/filters:strip_exif()/f/image/N5SyQ5tGyGGu1cDdoaYXsFoI.png?f=fotoalbum_large


Relevant is ook de wens om over 3-5 jaar een stuk op de begane grond uit te bouwen, waarbij de keuken & woonkamer een grote ruimte worden. Effectief maakt het vrij minimaal verschil in de opzet, maar voor de volledigheid ook dit uitgewerkt (hier voldoe ik wel aan de 45m³/h per persoon):
Afbeeldingslocatie: https://tweakers.net/i/NJbu8l4flJoTFT8lRipTDjf6IY8=/x800/filters:strip_exif()/f/image/xRKWR26QFZYKnmNkO1rZbIlX.png?f=fotoalbum_large

Afbeeldingslocatie: https://tweakers.net/i/qxvqG1xXaSZn1cv31QGT4sN5Gro=/800x/filters:strip_exif()/f/image/BdP5siIR1ghJD0JIyNfocVKT.png?f=fotoalbum_large

Sidenote: kamer die aangegeven staat als waskamer zal mogelijk een 2e badkamer + waskamer worden, vandaar de 50m³/h afvoer


Her en der zou ik wellicht nog met 5m³/h kunnen plussen of minnen. Maar tenzij ik in de natte ruimtes minder ga afvoeren (en daar zit ik volgens mij al redelijk scherp) lijkt me dit het best haalbare.Is dit een acceptabele opzet of laat ik toch kansen liggen?

  • svenvv2
  • Registratie: April 2010
  • Laatst online: 04-04 22:21
Momenteel ben ik in de beginfase van het ontwerp om ventilatie aan te leggen omdat de Co2 waarden wel erg hoog worden na het plaatsen van nieuw glaswerk en isolatie (2000+ ppm in de slaapkamer). Het bestaande systeem bestaat uit een raampje op het toilet.....

Nu komt de 1e verdieping wel goed aangezien ik vanuit de vliering alles kan bereiken. Het oorspronkelijke idee was dan ook om een WTW te plaatsen alleen voor de 1e verdieping en dan voor de woonkamer met een decentrale unit te werken.

De enige route naar beneden is die schuine wand van de trap (hoe heet dat?), die in de trapkast uitkomt. Hier is een bestaande buis aanwezig van de afzuigkap (ongebruikt), maar helaas krijg ik geen extra buis helemaal naar beneden. Nu speel ik met het idee om de hele 'holte' als toevoerleiding te gebruiken (aan de bovenkant afgedicht) en er een regelklep voor te zetten. Lucht stroomt dan naar beneden de trapkast in, waar een roostertje boven de deur zit naar de woonkamer. Afzuigen kan dan via de keuken door de bestaande buis te hergebruiken.

Afbeeldingslocatie: https://tweakers.net/i/Ua4ogw1CuOgQXhjDGa96gD4y9_o=/x800/filters:strip_icc():strip_exif()/f/image/IVRiamFbgEjS8hYdKRvz4OqJ.jpg?f=fotoalbum_large

Ik snap dat het niet bepaald volgens het boekje is, maar denken jullie dat dit het proberen waard is? Of ontregel ik met zo'n frats gelijk het hele systeem?

  • GudZ
  • Registratie: Maart 2010
  • Nu online
RobinCollie schreef op woensdag 6 augustus 2025 @ 12:03:
Na heel wat gepuzzel weer een stap verder in mijn ontwerp, heb alle feedback meegenomen en het is denk ik een goede verbetering (voorgaande: RobinCollie in "Het centrale balansventilatie met warmteterugwinning topic"). Met het nieuwe ontwerp voldoe ik (buiten de begane grond in de huidige situatie) in iedere ruimte aan de 45m³/h per persoon voor het beoogde aantal personen, is de afvoer voor alle natte ruimtes ruim voldoende als ik van de waardes uit de sheet van P5ycho uitga en komt 25% van de toevoer via overflow. Totaal debiet van 580m³/h, waarvan 435m³/h.

[Afbeelding]


Met de bovenste verdieping:
[Afbeelding]
middenverdieping:
[Afbeelding]
begane grond:
[Afbeelding]


Relevant is ook de wens om over 3-5 jaar een stuk op de begane grond uit te bouwen, waarbij de keuken & woonkamer een grote ruimte worden. Effectief maakt het vrij minimaal verschil in de opzet, maar voor de volledigheid ook dit uitgewerkt (hier voldoe ik wel aan de 45m³/h per persoon):
[Afbeelding]

[Afbeelding]

Sidenote: kamer die aangegeven staat als waskamer zal mogelijk een 2e badkamer + waskamer worden, vandaar de 50m³/h afvoer


Her en der zou ik wellicht nog met 5m³/h kunnen plussen of minnen. Maar tenzij ik in de natte ruimtes minder ga afvoeren (en daar zit ik volgens mij al redelijk scherp) lijkt me dit het best haalbare.Is dit een acceptabele opzet of laat ik toch kansen liggen?
Op basis van je plattegrond zie ik nog kansen:
2e->1e pulsie 150, extractie 50, overflow uit 100. Klopt.
1e->0e pulsie 185, extractie 150, overflow in 100, overflow uit 135, klopt
0e pulsie 100, extractie 235, overflow in 135, klopt.

Vragen: kun je die 90 extractie uit de speelkamer verwijderen en plannen met overflow van de 2e naar de 0e?
Met een muurrooster door dat wandje achter de trap naar de woonkamer.

In combinatie met die aanpassing nog een ding voor je nog te realiseren uitbouw: 45 extractie in de keuken ten opzichte van 135 in de uitbouw zou ik omdraaien. Zeker als je dat muurrooster voor elkaar krijgt.

Zou wel altijd 1 ventiel voorin de woonkamer monteren, voor als er kortsluiting ontstaat bij het openen van ramen oid.

PV Output 1.350Wp ZWW 10°


  • Bouwertje
  • Registratie: Februari 2023
  • Laatst online: 08:46
Goedemorgen mede tweakers,

Wat is in een badkamer de beste plek om het ventiel te plaatsen zonder dat je tocht onder de douche voelt en toch goed afzuigt. Ik zal proberen een plaatje van mijn indeling te posten.

Afbeeldingslocatie: https://tweakers.net/i/2OmljzU8TOD5YRjUtFnmcK3T5VQ=/800x/filters:strip_exif()/f/image/CkMYHU627q6gz5QPNAes7LHg.png?f=fotoalbum_large

Graag jullie ervaringen of meningen.

Nog even erbij vermelden dat het boven het bad een schuin dak is.

[ Voor 5% gewijzigd door Bouwertje op 07-08-2025 09:01 ]


  • Cbr
  • Registratie: Augustus 2012
  • Laatst online: 14:23

Cbr

svenvv2 schreef op woensdag 6 augustus 2025 @ 14:13:
Nu speel ik met het idee om de hele 'holte' als toevoerleiding te gebruiken (aan de bovenkant afgedicht) en er een regelklep voor te zetten. Lucht stroomt dan naar beneden de trapkast in, waar een roostertje boven de deur zit naar de woonkamer.

Ik snap dat het niet bepaald volgens het boekje is, maar denken jullie dat dit het proberen waard is? Of ontregel ik met zo'n frats gelijk het hele systeem?
Zolang je redelijk zeker weet dat de lucht niet op een andere plaats naar buiten komt kan dat prima.

  • Acadiane
  • Registratie: Maart 2023
  • Laatst online: 05-04 11:47
Die hoek van de trap wordt ook wel lepe hoek genoemd.

De lepe hoek van trap gebruiken als toevoer zou ik zelf niet zo snel doen, dat is moeilijk luchtdicht te krijgen en er gaat veel stof in zitten (uche). Als afvoer zou het eventueel wel kunnen.

  • svenvv2
  • Registratie: April 2010
  • Laatst online: 04-04 22:21
Cbr schreef op donderdag 7 augustus 2025 @ 09:42:
[...]
Zolang je redelijk zeker weet dat de lucht niet op een andere plaats naar buiten komt kan dat prima.
Acadiane schreef op donderdag 7 augustus 2025 @ 11:19:
Die hoek van de trap wordt ook wel lepe hoek genoemd.

De lepe hoek van trap gebruiken als toevoer zou ik zelf niet zo snel doen, dat is moeilijk luchtdicht te krijgen en er gaat veel stof in zitten (uche). Als afvoer zou het eventueel wel kunnen.
Ondertussen ben ik een paar tientallen pagina's leesvoer op dit topic verder en zie ik dit nu eigenlijk als een soort verkapte overflow.

De trap komt direct in de woonkamer uit, dus als ik het nu goed begrijp zou het niet eens nodig hoeven zijn als ik boven wat 'royaler' inblaas. Volgens de berekeningen is beneden zo'n 125m3/h nodig. edit: hier zit waarschijnlijk ergens een denk/rekenfout in, toch nog eens in de materie duiken.

Eerst nog maar eens een poging doen om de lepe hoek open te breken ter hoogte van het obstakel en kijken of ik er toch geen (100mm) spiro doorheen krijg. Stof is inderdaad wel een dingetje, maar inblazen boven de recirculatiekap lijkt me nou ook geen strak plan?

[ Voor 4% gewijzigd door svenvv2 op 07-08-2025 11:45 ]


  • P5ycho
  • Registratie: Januari 2000
  • Laatst online: 12:39
Als je trap in de woonkamer uitkomt en je wilt 100% overflow gebruiken, dan zou je ook wat extra aan kunnen voeren op de overloop boven, of zelfs in de slaapkamers zelf.

Als het goed is zuig je alleen af in de buurt van je recirculatiekap.

[ Voor 8% gewijzigd door P5ycho op 07-08-2025 11:52 ]

12x 280Wp ZW, 12x 280Wp ZO, Zubadan SHW80YAA 8kW, Zehnder Q450 ERV


  • Franciesco
  • Registratie: Januari 2021
  • Laatst online: 13:59
Bouwertje schreef op donderdag 7 augustus 2025 @ 09:00:
Goedemorgen mede tweakers,

Wat is in een badkamer de beste plek om het ventiel te plaatsen zonder dat je tocht onder de douche voelt en toch goed afzuigt. Ik zal proberen een plaatje van mijn indeling te posten.

[Afbeelding]

Graag jullie ervaringen of meningen.

Nog even erbij vermelden dat het boven het bad een schuin dak is.
Mijn badkamer indeling is hetzelfde m.u.v. het bad (die heb ik niet).
En bij mij zit zoals laatst ook aangegeven het afzuigventiel in de douche. Waarbij de doucheruimte aan de bovenkant open is (iets van 30-40cm tussen douchemuurtje/douchedeur en plafond). Ook zitten er smalle kiertjes tussen de verticale zijdes van de douchedeur en de wanden en tussen de onderste deurrand en de vloer.
Ik ervaar geen tocht als ik sta te douchen, ook niet als er met 75m3/h afgezogen wordt.

Edit: met Zehnder ComfoValve Luna E125 afvoerventiel

  • The__Virus
  • Registratie: Januari 2005
  • Laatst online: 13:38
Franciesco schreef op donderdag 7 augustus 2025 @ 13:51:
[...]


Mijn badkamer indeling is hetzelfde m.u.v. het bad (die heb ik niet).
En bij mij zit zoals laatst ook aangegeven het afzuigventiel in de douche. Waarbij de doucheruimte aan de bovenkant open is (iets van 30-40cm tussen douchemuurtje/douchedeur en plafond). Ook zitten er smalle kiertjes tussen de verticale zijdes van de douchedeur en de wanden en tussen de onderste deurrand en de vloer.
Ik ervaar geen tocht als ik sta te douchen, ook niet als er met 75m3/h afgezogen wordt.

Edit: met Zehnder ComfoValve Luna E125 afvoerventiel
Doe je 75m³ op 1 ventiel? Geeft dat geen geluidsoverlast?

  • Franciesco
  • Registratie: Januari 2021
  • Laatst online: 13:59
@The__Virus ja, de badkamer wordt met 1 ventiel afgezogen op max 75m3/h. Voor afzuiging kan dat doorgaans prima omdat dat m.i. geen ruimtes zijn waar absolute stilte belangrijk is. Bv omdat tijdens het douchen het watergeklater toch al het nodige geluid geeft. En het lichte ruisje van het afzuigventiel op 75m3/h daarmee voor mij totaal niet storend is.

Voor toevoer heb ik max 50m3/h per ventiel aangehouden in mijn ontwerp. En daarmee blijft mijn systeem ook op de max stand mooi stil (ook door de ruime dimensionering van de slangen en de nodige dempers).

  • MWDKing
  • Registratie: Januari 2011
  • Laatst online: 05-04 12:49
Beste tweakers,

Een temperatuursensor van een Duco Energy Premium is defect. Ik wil een nieuwe sensor installeren conform de instructies van Duco, maar anders dan op de video zitten er helaas geen doppen aan de achterzijde om de sensoren uit te nemen.

Iemand ervaring hiermee en welke werkwijze te hanteren voor het vervangen van de sensor?

  • Kakola
  • Registratie: Juli 2014
  • Laatst online: 14:11
Ik wil Aerfoam buizen verbinden met klassieke (ingebouwde) spirobuizen. Er komt een mof uit de muur met een rubberen ring. Schuif ik zo'n Aerfoam buis er gewoon over? Heb ik dit koppelstuk nodig of nog iets anders (een metalen klemband)?
(diameter 125mm verder niet relevant)
Afbeeldingslocatie: https://i.imgur.com/BixQg6U.png

[ Voor 25% gewijzigd door Kakola op 14-08-2025 09:58 ]


  • Franciesco
  • Registratie: Januari 2021
  • Laatst online: 13:59
@Kakola Een Aerfoam kan daar waarschijnlijk gewoon over heen. En doordat het redelijk flexibel materiaal is en de rubberen ring zal het luchtdicht zijn verwacht ik.

Komt de luchtstroom uit de spiro en gaat het dan de Aerfoam in? Of andersom?
Wanneer de luchtstroom vanuit de Aerfoam door de spiro gaat, dan heb je wel een opstaande rand als je de Aerfoam er over heen schuift. Dat geeft wat extra weerstand en ook een plek waar stof kan ophopen. In dat geval zou ik toch liever een mof gebruiken.
The__Virus schreef op donderdag 7 augustus 2025 @ 19:18:
Doe je 75m³ op 1 ventiel? Geeft dat geen geluidsoverlast?
Geluidsoverlast zal in een badkamer niet het grootste probleem zijn.
Wat meestal wél een probleem is, is dat wanneer je bij slechts één afzuigventiel een dergelijk hoog debiet wilt, je alle andere ventielen moet knijpen om dat hoge debiet bij dat ene ventiel voor elkaar te krijgen.
En dat zorgt ervoor dat je ventilator harder moet werken → meer geluid uit alle afzuigventielen en een hoger stroomverbruik.
Het is echt handiger om alle afzuigventielen in je ontwerp min of meer hetzelfde debiet te geven, net als bij de inblaasventielen. Als dan de leidingweerstand ook nog ongeveer gelijk is, hoef je nagenoeg niets aan de ventielen af te stellen.
Als je deze regel aanhoudt, plaats je dus (o.a.) in een badkamer twee afzuigventielen, en in de master bedroom twee inblaasventielen.

WP: ME PUHZ-SW75YAA + ERSD-VM2D + EV-WP-TWS-1W 300; AC: ME MXZ-2F42VF + 2x MSZ-LN25VGV; PV: 14.08 kWp O/W + SMA STP 8.0; Vent: Zehnder Q600 ERV + Ubbink AirExcellent.


  • Tinkerer84
  • Registratie: November 2019
  • Laatst online: 09:11
Ik heb niet zo veel ruimte om van zolder helemaal naar de begane grond te komen. Daarom ben ik van plan om voor afzuiging van in totaal 180m3/u een 160mm spiro buis te gebruiken, maar dan komt de luchtsnelheid op 2,49 m/s uit.

Is dit nog acceptabel of kan ik beter proberen om toch een 180mm spirobuis te plaatsen?

  • P5ycho
  • Registratie: Januari 2000
  • Laatst online: 12:39
Dat is helemaal prima, de hoofdleidingen mogen best tot 4m/s.

12x 280Wp ZW, 12x 280Wp ZO, Zubadan SHW80YAA 8kW, Zehnder Q450 ERV


  • H.A.B.
  • Registratie: Januari 2024
  • Laatst online: 05-04 10:15
Ben nog eens dit hele topic van voor-naar-achter aan het doorlezen om mijn ontwerp af te maken en spullen te bestellen. Paar vragen over de doorvoeren die me toch nog niet helemaal duidelijk zijn.

Ik ga een Zehnder Q450 of Q600 aanschaffen, denk in combinatie met de Zehnder ComfoPipe Plus 200mm voor aanvoer / afvoer lucht.

Afvoer
- Ik wil de Renson Design XL terra gebruiken voor de afvoer. Er staat de opmerking bij "Deze zijn enkel greschikt voor hele vlakke pannen, ze zijn niet geschikt voor sneldekkers'. Maar er staat ook 'Compatibel met meeste types dakpannen'. Er is ook een 'flex' versie (https://www.ventilatiesho...ije-flexibele-slab-zwart/), maar dat lijkt mij minder mooi. We hebben deze dakpan op het huis (https://www.bmigroup.com/...akpannen%2Fvh-variabel%2F. Iemand uit ervaring een idee of deze combinatie prima gaat werken, of dat ik toch de 'flex' versie moet kopen?
- Heeft iemand de ComfoEdge 200 wel eens toegepast? Duur en lastig beschikbaar, maar verder interessant. Niet gelezen dat iemand die ooit al heeft gebruikt.

Aanvoer
- Aanvoer gaat via de gevel met houten gevel bekleding. Kan iets minder terugvinden in dit topic wat voor muur roosters men gebruikt (wel iets), benieuwd wat jullie hebben toegepast. Ben op zoek naar een witte. Heb de weerstandswaardes van wat roosters vergeleken met de waardes in deze post (aaahaaap in "Het centrale balansventilatie met warmteterugwinning topic"), maar bij sommige viel me op dat de weerstand hoger is dan verwacht. Iemand die van Zehnder wel eens toegepast? https://www.zehnder.nl/nl...der-comfoedge-muurrooster

Dempers
- Afvoer: bij de afvoer naar buiten (na de WTW) moet een demper komen om geluidsoverlast aan de buitenkant te voorkomen. Welke type nog niet uitgezocht, advies is welkom. Maar moet er nou ook nog een damper tussen de WTW en de afzuigkanalen die vanuit de kamers naar de WTW lopen?
- Aanvoer: na de WTW in de pijpen naar de kamers ga ik proberen een flexibele + starre demper toe te passen op basis van adviezen in dit topic. Maar het is me onduidelijk of er nog een demper in de luchtaanvoer voor de WTW toegepast moet worden (dus in de pijp van buiten naar de WTW). Heeft dat zin/nut?

  • Kakola
  • Registratie: Juli 2014
  • Laatst online: 14:11
Emmie111 schreef op maandag 22 januari 2024 @ 09:51:
[...]

toch voor de zekerheid: ik heb positieve ervaring met Ubbink Aerfoam kanalen m.b.t. overspraak en geluid van CV ketel door kanalen. Hiervoor heb je wel koppelstukken nodig tussen de losse stukken i.t.t. jouw link. Overgang van Spiro naar Aerfoam is met een Spiro SAFE verbinding, al dan niet ondersteund met een slangklem luchtdicht.
https://www.123installati.../ubbink-wtw-aerfoam-160mm
Hiervoor zocht ik bevestiging :-)

  • Kakola
  • Registratie: Juli 2014
  • Laatst online: 14:11
Franciesco schreef op donderdag 14 augustus 2025 @ 12:01:
@Kakola Een Aerfoam kan daar waarschijnlijk gewoon over heen. En doordat het redelijk flexibel materiaal is en de rubberen ring zal het luchtdicht zijn verwacht ik.

Komt de luchtstroom uit de spiro en gaat het dan de Aerfoam in? Of andersom?
De lucht wordt gezogen. Komt van de aerfoam naar de spiro en naar de kamer. Is dit goed of slecht nieuws?

  • P5ycho
  • Registratie: Januari 2000
  • Laatst online: 12:39
@H.A.B. Er staan verschillende voorbeelden van de Renson XL met sneldekpannen on dit topic, inclusief mijn dak met 35gr hellingshoek.

Je wilt dempers aan de huiszijde in zowel aanvoer als afvoer, anders hoor je de wtw in huis. Let op dat je een goede flexibele demper koopt.

Dempers aan de aan/afvoer van/naar buiten is nergens voor nodig.

12x 280Wp ZW, 12x 280Wp ZO, Zubadan SHW80YAA 8kW, Zehnder Q450 ERV

P5ycho schreef op donderdag 14 augustus 2025 @ 15:58:
Dempers aan de aan/afvoer van/naar buiten is nergens voor nodig.
Daar ben ik het niet helemaal mee eens.
Als mijn Q600 boven de 300 kuub/s komt, dan is ie in de tuin (via de dakdoorvoer voor de afvoer) best hoorbaar. (Zonder afvoerdemper.)
Gelukkig komt dat maar weinig voor, en wonen de buren ver genoeg weg, maar als dat bij iemand noet het geval is, dan zou ik zo'n demper wel aanraden.

WP: ME PUHZ-SW75YAA + ERSD-VM2D + EV-WP-TWS-1W 300; AC: ME MXZ-2F42VF + 2x MSZ-LN25VGV; PV: 14.08 kWp O/W + SMA STP 8.0; Vent: Zehnder Q600 ERV + Ubbink AirExcellent.


  • P5ycho
  • Registratie: Januari 2000
  • Laatst online: 12:39
Ik hoor hem buiten niet op 400m3/h, en heb in dit topic alleen problemen gezien met een Duco unit als ik het me goed herinner.
Misschien komt het omdat ik 225gr aan bochten in de uitvoer heb zitten?

Rekening houden met dempers op de uitvoer naar buten kan natuurlijk, maar ik zou het eerst aankijken. Toevoegen kan altijd nog.

12x 280Wp ZW, 12x 280Wp ZO, Zubadan SHW80YAA 8kW, Zehnder Q450 ERV


  • H.A.B.
  • Registratie: Januari 2024
  • Laatst online: 05-04 10:15
P5ycho schreef op donderdag 14 augustus 2025 @ 16:21:
Ik hoor hem buiten niet op 400m3/h, en heb in dit topic alleen problemen gezien met een Duco unit als ik het me goed herinner.
Misschien komt het omdat ik 225gr aan bochten in de uitvoer heb zitten?

Rekening houden met dempers op de uitvoer naar buten kan natuurlijk, maar ik zou het eerst aankijken. Toevoegen kan altijd nog.
Kan op zich in route verloop er ruimte voor houden en later toevoegen indien nodig, maar dat wordt dan wel lastig bijkomen. Dus dan kan ik het beter meteen meenemen toch als er verder geen nadelen aan zitten? Als ik er al een demper tussen stop, dan zeker beter een starre ivm de lage 'brom' van de WTW waar een starre geloof ik beter voor werkt?

De afvoer kan op zich een heel kort pijpje naar buiten worden, maar misschien dat 2 extra bochtjes erin juist helpen ivm geluid.
Andrehj schreef op donderdag 14 augustus 2025 @ 16:06:
[...]

Daar ben ik het niet helemaal mee eens.
Als mijn Q600 boven de 300 kuub/s komt, dan is ie in de tuin (via de dakdoorvoer voor de afvoer) best hoorbaar. (Zonder afvoerdemper.)
Maar zit er dus alleen 'lawaai' in de afvoer leiding? Dus op de invoer leiding hoeft sowieso niks (geloof dat de ventilator na de warmtewisselaar zit bij de Zehnder)?
P5ycho schreef op donderdag 14 augustus 2025 @ 15:58:
@H.A.B. Er staan verschillende voorbeelden van de Renson XL met sneldekpannen on dit topic, inclusief mijn dak met 35gr hellingshoek.
Ok, dus niet de flex versie? Zal nog eens een keer beter zoeken op de voorbeelden dan.
Je wilt dempers aan de huiszijde in zowel aanvoer als afvoer, anders hoor je de wtw in huis. Let op dat je een goede flexibele demper koopt.
Ok helder, ook nuttig op de retour een starre + flexibele in serie te zetten zoals bij de aanvoer?

[ Voor 3% gewijzigd door H.A.B. op 14-08-2025 16:44 ]

H.A.B. schreef op donderdag 14 augustus 2025 @ 16:42:
Maar zit er dus alleen 'lawaai' in de afvoer leiding? Dus op de invoer leiding hoeft sowieso niks (geloof dat de ventilator na de warmtewisselaar zit bij de Zehnder)?
Ja. Maar bij mij is de aanvoerleiding ook veel langer (meter of 5) dan de afvoerleiding van ca 1 meter, die boven de unit direct door het schuine dak gaat. Als er al wat demping in dat schuimkunststof kanaal zit (zal niet veel zijn), zal dat er ook voor zorgen dat de inlaat wat meer gedempt wordt als de uitlaat.

WP: ME PUHZ-SW75YAA + ERSD-VM2D + EV-WP-TWS-1W 300; AC: ME MXZ-2F42VF + 2x MSZ-LN25VGV; PV: 14.08 kWp O/W + SMA STP 8.0; Vent: Zehnder Q600 ERV + Ubbink AirExcellent.


  • P5ycho
  • Registratie: Januari 2000
  • Laatst online: 12:39

12x 280Wp ZW, 12x 280Wp ZO, Zubadan SHW80YAA 8kW, Zehnder Q450 ERV


  • H.A.B.
  • Registratie: Januari 2024
  • Laatst online: 05-04 10:15
Andrehj schreef op donderdag 14 augustus 2025 @ 16:46:
[...]

Ja. Maar bij mij is de aanvoerleiding ook veel langer (meter of 5) dan de afvoerleiding van ca 1 meter, die boven de unit direct door het schuine dak gaat. Als er al wat demping in dat schuimkunststof kanaal zit (zal niet veel zijn), zal dat er ook voor zorgen dat de inlaat wat meer gedempt wordt als de uitlaat.
Bij mij is de aanvoer niet zo lang, dus een demper zou sowieso al proppen worden, maar niet helemaal onmogelijk als het wel nuttig zou zijn.
Ah top, was nog steeds het topic aan het doorploegen. Die foto's zijn nuttig. Ik ga het er gewoon op wagen denk ik en dan zien we het wel.

Nog aanvullende vraag. Ik kan voor de afvoer kiezen voor de NW zijde (korte route) of ZO zijde (paar meter langer, makkelijker demper te installeren). Bij de ZO optie kan ik deze ook vlak boven een plat dak plaatsen, wat installatie wel veel eenvoudiger maakt natuurlijk. Is er nog enig nadeel aan de afvoer op de zon-kant boven plat dak te plaatsen? Kan zo snel niet iets verzinnen. Moet nog wel even verdunningsfactor berekening doen.

Update: heb een uurtje gestudeerd op die verdunningsfactor. Op zich niet zo ingewikkeld, behalve dan dat ik niet 1 van de 17 situaties vreemd genoeg vind aansluiten op mijn situatie - die op zichzelf niet zo bijzonder is toch? Alleen situaties 15/16 behandelen gevels die > 180 graden in het horizontale vlak verschillen, maar dat gaat dan weer niet om dakvlakken.

Afbeeldingslocatie: https://tweakers.net/i/9WAdeC-xc-TtNIC4thvdu_7yRvc=/800x/filters:strip_icc():strip_exif()/f/image/fFU0AEfOr04ZRnFeLBOCL5Fx.jpg?f=fotoalbum_large

[ Voor 9% gewijzigd door H.A.B. op 14-08-2025 18:35 ]


  • Franciesco
  • Registratie: Januari 2021
  • Laatst online: 13:59
Kakola schreef op donderdag 14 augustus 2025 @ 15:57:
[...]

De lucht wordt gezogen. Komt van de aerfoam naar de spiro en naar de kamer. Is dit goed of slecht nieuws?
Dan zal de afgevoerde lucht dus ‘botsen’ tegen de rand/de dikte van de spirobuis als je Aerfoam er over heen schuift. Dat zal iets extra weerstand opleveren en een plek zijn waar stof kan verzamelen. Gezien het een redelijk dunne rand is zal dat m.i. waarschijnlijk niet ernstig zijn. Maar een verloopstuk is wel mooier.

Ik heb zelf ook ergens Aerfoam over een spirobuis geschoven, maar dat was dan wel in de andere luchtstroomrichting. En dus zonder het genoemde “probleem”.

  • Kakola
  • Registratie: Juli 2014
  • Laatst online: 14:11
Volgens mij zal het toch net niet botsen? De lucht komt eerst van de spiro en dan naar de Aerfoam die erover zit.. Ik heb het wellicht slecht uitgelegd.

Zuigunit <----- Aerfoam <-------- Spiro <------ kamer

  • Franciesco
  • Registratie: Januari 2021
  • Laatst online: 13:59
Dan heb ik je verkeerd begrepen. Zoals je het hier boven schets zou ik geen verloop nemen maar Aerfoam over de spiro heen schuiven. En met een slangenklem extra vastzetten.

  • MWDKing
  • Registratie: Januari 2011
  • Laatst online: 05-04 12:49
MWDKing schreef op zondag 10 augustus 2025 @ 18:45:
Beste tweakers,

Een temperatuursensor van een Duco Energy Premium is defect. Ik wil een nieuwe sensor installeren conform de instructies van Duco, maar anders dan op de video zitten er helaas geen doppen aan de achterzijde om de sensoren uit te nemen.

Iemand ervaring hiermee en welke werkwijze te hanteren voor het vervangen van de sensor?
Terugkomend op mijzelf zodat iemand in de toekomst hier ook wat aan heeft. De werkwijze was:
  1. Alle popnagels van de achterplaat wegboren en de achterplaat verwijderen (Duco gaf aan dat dit de enige mogelijkheid is)
  2. Sensor vervangen
  3. Gaten gemaakt in de achterplaat en afgedicht met tape (hoeft niet luchtdicht, dat is niet de functie van de plaat)
  4. De plaat er weer terug opgezet met popnagels.
Afbeeldingslocatie: https://tweakers.net/i/2hQPfHAhRobOYHzzRK0K22FJPDs=/232x232/filters:strip_icc():strip_exif()/f/image/jCCnQLIPwQR91pnsXUFBPrGc.jpg?f=fotoalbum_tileAfbeeldingslocatie: https://tweakers.net/i/N3HgyifUUVjKh7SbeGL3yAm4Fdw=/232x232/filters:strip_icc():strip_exif()/f/image/dTrQd4qVnwmWPCuXxOAyzlOO.jpg?f=fotoalbum_tileAfbeeldingslocatie: https://tweakers.net/i/TofRRl5rTbDH7LPzTnIvDDcG1ws=/232x232/filters:strip_icc():strip_exif()/f/image/9nHUh0GvJMdd9S6gO0nqJjT7.jpg?f=fotoalbum_tile
Afbeeldingslocatie: https://tweakers.net/i/EgWlznqCE50J8LmpBGfBMCtn3GQ=/232x232/filters:strip_icc():strip_exif()/f/image/QNSrxsr332pmkSiHCk5DuwMe.jpg?f=fotoalbum_tile


En volgende keer hoef ik alleen de tape weg te halen. Duco heeft gelukkig bij de nieuwe types dus het ontwerp aangepast en standaard doppen achterop.

  • P5ycho
  • Registratie: Januari 2000
  • Laatst online: 12:39
Mooi staaltje design for repairability dus... |:( Dat is de meest moeilijk te vervangen temperatuursensor die ik ooit gezien heb.

12x 280Wp ZW, 12x 280Wp ZO, Zubadan SHW80YAA 8kW, Zehnder Q450 ERV


  • Terrie
  • Registratie: November 2013
  • Laatst online: 12:36

Terrie

Titelspecialist Tweakers Partners
Ik wil mijn WTW in werking gaan stellen. Het gehel systeem zit er nu al een tijdje, maar kom in de fase dat alles bijna gestuct en klaar is! Spijtig genoeg is er toch veel stof in de buizen gekomen en bijvoorbeeld gips, doordat ik de gaten somsuitgezaagd heb met de gipsplaat tegen de alu buis aan.

Is dit gewoon gevalletje WTW op 100% en daarna de filters schoonmaken?

Polestar 2 | SMSR | 19" | Pilot | Magnesium


  • Bromptonrijder
  • Registratie: Oktober 2024
  • Laatst online: 05-04 21:53
H.A.B. schreef op donderdag 14 augustus 2025 @ 17:24:
[...]

Update: heb een uurtje gestudeerd op die verdunningsfactor. Op zich niet zo ingewikkeld, behalve dan dat ik niet 1 van de 17 situaties vreemd genoeg vind aansluiten op mijn situatie - die op zichzelf niet zo bijzonder is toch? Alleen situaties 15/16 behandelen gevels die > 180 graden in het horizontale vlak verschillen, maar dat gaat dan weer niet om dakvlakken.

[Afbeelding]
Basisprincipe is afvoer altijd hoger dan aanvoer. Afvoerlucht is bijna altijd warmer dan buitenlucht en stijgt dus op. Situatie 1 sluit dan aan bij de hoger gelegen afvoer in het dak op het NW
MWDKing schreef op vrijdag 15 augustus 2025 @ 07:05:
Terugkomend op mijzelf zodat iemand in de toekomst hier ook wat aan heeft. De werkwijze was:
  1. Alle popnagels van de achterplaat wegboren en de achterplaat verwijderen (Duco gaf aan dat dit de enige mogelijkheid is)
  2. Sensor vervangen
  3. Gaten gemaakt in de achterplaat en afgedicht met tape (hoeft niet luchtdicht, dat is niet de functie van de plaat)
  4. De plaat er weer terug opgezet met popnagels.
OMG! Je vergeet nog erbij te vermelden dan je eerst ook de complete WTW uit moet bouwen, en alle aansluitingen los moet koppelen, omdat je bij de achterplaat moet...
En volgende keer hoef ik alleen de tape weg te halen. Duco heeft gelukkig bij de nieuwe types dus het ontwerp aangepast en standaard doppen achterop.
Daarmee is het maar iets minder ruk, want je moet nog steeds heel die WTW uitbouwen om een simpele sensor te vervangen.

Voor Tweakers die de keuze nog moeten maken:
Bij Zehnder gaan die sensoren ook stuk, maar daar pak je zonder de WTW eerst uit te bouwen zo de hele voorkant er af (drie schroefjes losdraaien), trek je de warmtewisselaar eruit en vervang je de sensor. De hoeveelheid werk is daarmee ca 1% van die bij een Duco....

WP: ME PUHZ-SW75YAA + ERSD-VM2D + EV-WP-TWS-1W 300; AC: ME MXZ-2F42VF + 2x MSZ-LN25VGV; PV: 14.08 kWp O/W + SMA STP 8.0; Vent: Zehnder Q600 ERV + Ubbink AirExcellent.


  • MWDKing
  • Registratie: Januari 2011
  • Laatst online: 05-04 12:49
Andrehj schreef op vrijdag 15 augustus 2025 @ 11:37:
[...]

OMG! Je vergeet nog erbij te vermelden dan je eerst ook de complete WTW uit moet bouwen, en alle aansluitingen los moet koppelen, omdat je bij de achterplaat moet...

[...]

Daarmee is het maar iets minder ruk, want je moet nog steeds heel die WTW uitbouwen om een simpele sensor te vervangen.

Voor Tweakers die de keuze nog moeten maken:
Bij Zehnder gaan die sensoren ook stuk, maar daar pak je zonder hem eerst uit te bouwen zo de hele voorkant er af (drie schroefjes losdraaien), trek je de warmtewisselaar eruit en vervang je de sensor. De hoeveelheid werk is daarmee ca 1% van die bij een Duco....
Ja het ontwerp van Duco is echt kansloos slecht mbt onderhoudbaarheid. Dus sensoren hadden net zo goed aan de voorzijde van de achterplaat kunnen zitten waardoor ze vanaf de voorkant kon vervangen...

  • H.A.B.
  • Registratie: Januari 2024
  • Laatst online: 05-04 10:15
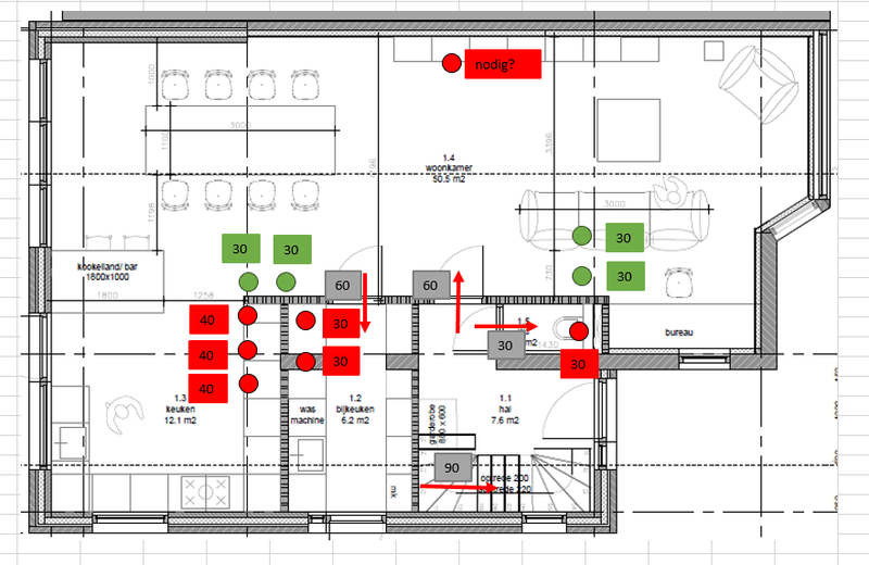
Al een jaar geleden een eerste ontwerp gemaakt, maar de verbouwing is nu zo ver dat het tijd wordt te finetunen en spullen te gaan bestellen! Voordat ik alle pijpen ga dimensioneren en intekenen, benieuwd naar jullie feedback.

Uitgangspunten:
- Oppervlakte: 165m2, netto volume (dus zonder tussenmuren/plafonds/etc.): 450m3
- Ingetekende debieten zijn voor de normaalstand met 4 personen, dus niet max.
- Berekende benodigde flow in normaalstand: 360m3/h. Wil Zehnder Q450 of wellicht Q600 kopen als dat minder geluid oplevert?
- Wil alles met spirobuizen doen

Twijfels
- We weten nog niet waar we de was gaan drogen en daar komt altijd veel vocht vanaf. Wellicht in een van de slaapkamers op de 1e, maar kan ook op slaapkamer 5 (zolder) of een overloop zijn. Wat is jullie ervaring, aangezien je in principe alleen inblaast in de slaapkamers, maar je vocht eigenlijk direct wil afzuigen? In slaapkamer 5 heb ik wel 2 inblaasventielen, dus dacht misschien wat harder af te zuigen in de douche ernaast, dan trekt die het vocht van slaapkamer 5 ook mee - maar een deel gaat ook de trap af... Of beter toch ook een afzuigventiel plaatsen in een van de slaapkamers of de hal? Slaapkamer 5 is logeerkamer voor 2 personen / werkkamer. Dus standaard daar 2*30 inblazen is normaal gesproken ook teveel. Douche op de zolder zal de eerste jaren niet zoveel gebruikt worden, 2 afzuig ventielen te veel?

- Technische ruimte op zolder staat alleen de W2W (warmtepomp boiler staat op overloop 1e verdieping). Wil hier ook luchtverversing, maar ivm geluid geen spleet onder de deur. Daarom daar nu een aanvoer+afvoer ingetekend. Nodig of achterwege laten?

- Is er een voorkeursplek voor ventiel locatie in de badkamer of maakt dat niet zoveel uit?

- Bij een aantal slaapkamers is de makkelijkste invoerplek direct bij de deur, dat maakt de aanvoer lengtes van de buizen makkelijker en korter. Ik ben bekend met het onderzoek dat de locatie niet zoveel uitmaakt, maar toch voelt dit niet zo lekker. Verplaatsen of niet?

- Aan en afvoer locaties in de woonkamer nog niet helemaal uit, ook ivm pijp routes. Aanvoer punten naast de keuken liever wat verder van de afvoerpunten in de keuken, maar weet niet of dat opweegt tegen langere en lastigere pijp routes.

- Is een extra afvoerpunt halverwege de woonkamer nog zinnig?

- Eigenlijk is ’t debiet in de woonkamer nu iets te hoog, maar kan ik wat lager regelen en als ik nog 30m3 extra afzuig in de douche op zolder valt het wel mee (30m3 ipv 60m3 overflow dan). – minder dan 4 inblaasventielen leek me ook niet juist voor de grootte van de ruimte

- Twijfel of 60m3/h afvoer in de bijkeuken te veel is, staat wel wasmachine / droger, schoenen, jassen en misschien ook wel natte was.

Afbeeldingslocatie: https://tweakers.net/i/CxM7VIWcXe4QfAZpXdrZ3QP4XTI=/fit-in/4000x4000/filters:no_upscale():strip_exif()/f/image/WQTnMlIc5K8iaUGYzvm3klD4.png?f=user_large
Afbeeldingslocatie: https://tweakers.net/i/_LvA5wyR-Hh9hF4p2Udhmq0NOoY=/800x/filters:strip_exif()/f/image/skAbX5xb3u1q2mfsmNpkMyYS.png?f=fotoalbum_large
Afbeeldingslocatie: https://tweakers.net/i/Xq8eMXSDT_dK2MQeLC4Ej3gqozE=/800x/filters:strip_exif()/f/image/mTWoOD9f5Vel9RMvRojr8cWA.png?f=fotoalbum_large

  • woekele
  • Registratie: Juni 2002
  • Niet online

woekele

woekele

Weet niet of het toeval is... maar sinds ik vloerkoeling eergisteren heb ingeschakeld van de lucht/water-warmtepomp, loopt de CO2-concentratie op de begane grond veel meer op dan eerder (zowel volgens de CO2-sensor van de WTW als een eigen 'onafhankelijke' sensor). En dus gaat de WTW veel harder draaien. Dat deed hij de afgelopen tijd eerder nooit, met dezelfde instellingen en zelfde aantal personen etc. Doordat de ventielen nog niet goed ingeregeld zijn of zelfs ontbreken (vooral boven), lijkt het harder draaien overigens niet zoveel te helpen, hij lijkt vooral op de boven-verdiepingen het debiet toe te passen. De luchtvochtigheid is ook erg hoog beneden, wellicht komt het daar door, dat het de CO2-meting beinvloedt, of de lucht van boven minder makkelijk overstroomt naar beneden? Voor nu de WTW maar op de handmatige stand gezet, niet te hard draaien i.v.m. het geluid tijdens het slapen, in de slaapkamers is het CO2-niveau nog prima, dus daar hoeven we het niet voor te doen.

Oh ja, heb behalve de vloerkoeling ook nog eventjes de luchtzuiverings-functie van de airco ingeschakeld gehad. Werkt met ionen wat ik zo snel las. Zouden die de CO2-metingen kunnen beïnvloeden eventueel? Heb het idee die soort van binnen de airco-unit blijven, dus zou niet moeten, maar wie weet...

@master1104 : ramen/deuren stonden en staan dicht.

[ Voor 14% gewijzigd door woekele op 15-08-2025 23:48 ]


  • master1104
  • Registratie: Februari 2003
  • Laatst online: 09:13
Open deur wellicht (pun intended), maar je hebt niet de ramen en deuren nu dicht i.v.m dat je de koeling aan hebt gezet? Dat maakt enorm verschil op je ventilatie en dus CO2 weet ik uit onze sensordata.

Verder zag ik de CO2 bij ons ‘s nachts ook altijd 50-100ppm oplopen van alle drie de verschillende type meters in verschillende ruimtes terwijl we destijds op vakantie waren. Dat was een duidelijke relatie met de temperatuur, dus lagere temperatuur geeft hogere offset van CO2 uitlezing, tot het moment dat de sensor weer een calibratie van het nulpunt doet (~430ppm voor de meeste sensoren).

  • Morpheusk
  • Registratie: April 2008
  • Laatst online: 12:57
P5ycho schreef op zaterdag 14 december 2024 @ 12:05:
[...]

Dit is de ESPHome + Home Assistant integratie die hier te vinden is:
https://github.com/yoziru/esphome-zehnder-comfoair/
ingredienten:
M5stack Atom S3 Lite + Mini CAN Unit TJA1051T (26 euro incl shipping bij Tinytronics.nl)

Met de comfoconnect en Home Assistant zou je ook zo'n plaatje moeten kunnen maken.
echthard schreef op dinsdag 17 december 2024 @ 14:04:
[...]

Ik heb een Q600 en ik heb nog niet eerder met microcontrollers en andere componenten gespeeld. Begrijp ik goed dat ik enkel dit hoef te bestellen?
  1. https://www.tinytronics.n...ck-mini-can-unit-tja1051t
  2. https://www.tinytronics.n...e-afgeschermde-kabel-0.2m
  3. https://www.tinytronics.n...sp32-s3-development-board
Dan krijgen de controller en de can unit stroom van de Q600 en dan gaat de data via wi-fi naar Home Assistant?

Maakt de firmware nog uit? Want je kunt denk alleen updaten met de ComfoConnect LAN C en niet met dit systeem toch?

Ik heb firmware 1.8.0 volgens mij.
Ik kwam bij mijn zoektocht ook deze kant-en-klare oplossing tegen van @SkullboyNL v&a aangeboden: Zehnder ComfoAir Q Home Assistant module. Je moet alleen nog een afgeknipte UTP-kabel toevoegen? En dit volgens mij voor een hele schappelijke prijs.

Volgens mij zit er verder geen verschil in de hardware? Qua software is mij ook niet echt helder wat de verschillen zijn tussen de repo’s.
https://github.com/SkullboyNL/esphome-zehnder-comfoair en
https://github.com/yoziru/esphome-zehnder-comfoair/

De volgende repo lijkt ook CO2 e.d. uit te lezen. Dit zie ik dan weer niet terug bij bovenstaande. https://github.com/vekexasia/comfoair-esp32

Hier stond een link voor een Goldcard 1 jaar gratis + 20.000 punten.


  • SkullboyNL
  • Registratie: April 2009
  • Laatst online: 02-04 06:00
master1104 schreef op vrijdag 15 augustus 2025 @ 23:46:
Open deur wellicht (pun intended), maar je hebt niet de ramen en deuren nu dicht i.v.m dat je de koeling aan hebt gezet? Dat maakt enorm verschil op je ventilatie en dus CO2 weet ik uit onze sensordata.

Verder zag ik de CO2 bij ons ‘s nachts ook altijd 50-100ppm oplopen van alle drie de verschillende type meters in verschillende ruimtes terwijl we destijds op vakantie waren. Dat was een duidelijke relatie met de temperatuur, dus lagere temperatuur geeft hogere offset van CO2 uitlezing, tot het moment dat de sensor weer een calibratie van het nulpunt doet (~430ppm voor de meeste sensoren).
Alleen een kant en klare rj45 kabel (internet) toevoegen is voldoende. De kabel prikt zo in de wtw en dan in de esp32 module. Als je dat niet hebt kan ik wel een kabel voor je maken. (Rest maar even via pb)

En de overige vragen kijk ik na het weekend even naar. (Ben Lowlands dus niet echt tijd/mogelijkheid om het na te kijken)

iRacing Profiel


  • MWDKing
  • Registratie: Januari 2011
  • Laatst online: 05-04 12:49
MWDKing schreef op vrijdag 15 augustus 2025 @ 07:05:
[...]

Terugkomend op mijzelf zodat iemand in de toekomst hier ook wat aan heeft. De werkwijze was:
  1. Alle popnagels van de achterplaat wegboren en de achterplaat verwijderen (Duco gaf aan dat dit de enige mogelijkheid is)
  2. Sensor vervangen
  3. Gaten gemaakt in de achterplaat en afgedicht met tape (hoeft niet luchtdicht, dat is niet de functie van de plaat)
  4. De plaat er weer terug opgezet met popnagels.
[Afbeelding][Afbeelding][Afbeelding]
[Afbeelding]


En volgende keer hoef ik alleen de tape weg te halen. Duco heeft gelukkig bij de nieuwe types dus het ontwerp aangepast en standaard doppen achterop.
De saga continues. Blijkbaar heeft de installateur destijds eerste de unit geplaatst en toen de dakdoorvoer buis erin geschoven die best wel stug is... Gevolg; onmogelijk om met 2 man (want anders krijg je dit ding überhaupt niet getild) de unit zo precies omhoog te duwen dat de buis weer in de uitgang steeks. Plan is nu; klein stukje flexibele buis ertussen zodat ik kan aansluiten zodra de unit hangt de buis koppelen.
En dat allemaal voor een sensor vervangen... |:(
Afbeeldingslocatie: https://tweakers.net/i/jzj3xxSTNwmDfykV76TEBcQpoJo=/x800/filters:strip_icc():strip_exif()/f/image/EsZ7shNpesRQiiDkcMtuP76q.jpg?f=fotoalbum_large

  • H.A.B.
  • Registratie: Januari 2024
  • Laatst online: 05-04 10:15
Kun je de unit niet rustig op z'n plaats manoeuvreren en omhoog duwen met 2 van die handheffers? Eerst op wat blokken en een plaat zetten en dan 't laatste stukje met van die montagehulpen? Zoiets: https://www.toolstation.n...-duopack-tradelift/p89755 Heb je ook goedkope versies van (bijv https://www.hbm-machines....-snelverstelling-0-115-mm)

[ Voor 13% gewijzigd door H.A.B. op 18-08-2025 07:59 ]


  • koningen
  • Registratie: Mei 2023
  • Laatst online: 15-03 17:23
MWDKing schreef op zaterdag 16 augustus 2025 @ 20:15:
[...]

De saga continues. Blijkbaar heeft de installateur destijds eerste de unit geplaatst en toen de dakdoorvoer buis erin geschoven die best wel stug is... Gevolg; onmogelijk om met 2 man (want anders krijg je dit ding überhaupt niet getild) de unit zo precies omhoog te duwen dat de buis weer in de uitgang steeks. Plan is nu; klein stukje flexibele buis ertussen zodat ik kan aansluiten zodra de unit hangt de buis koppelen.
En dat allemaal voor een sensor vervangen... |:(
[Afbeelding]
beetje vasaline doet vast wonderen
proberen waard?

  • H.A.B.
  • Registratie: Januari 2024
  • Laatst online: 05-04 10:15
Vriend van me heeft een Q600 WTW systeem geinstalleerd, maar geen afzuiging op de zolder (3 woonlagen incl. BG). Alleen aanvoer en dan via overflow door trapgat naar beneden. Hij geeft aan dat het in de praktijk toch lastig blijkt om voldoende lucht 'omlaag' te kunnen zuigen en op zolder blijft het eerder muf / geurtjes. Zijn theorie is dat warme lucht opstijgt en dat door dit schoorsteen effect in het trappengat het toch niet goed lukt alles af te zuigen van de zolder naar beneden.

Wat is jullie mening over deze theorie? Ik vind er wel wat inzitten, dus vraag me toch af of het niet verstandig is ook wat meer op de zolder af te zuigen in mijn ontwerp?
H.A.B. schreef op maandag 18 augustus 2025 @ 16:04:
Vriend van me heeft een Q600 WTW systeem geinstalleerd, maar geen afzuiging op de zolder (3 woonlagen incl. BG). Alleen aanvoer en dan via overflow door trapgat naar beneden. Hij geeft aan dat het in de praktijk toch lastig blijkt om voldoende lucht 'omlaag' te kunnen zuigen en op zolder blijft het eerder muf / geurtjes. Zijn theorie is dat warme lucht opstijgt en dat door dit schoorsteen effect in het trappengat het toch niet goed lukt alles af te zuigen van de zolder naar beneden.

Wat is jullie mening over deze theorie? Ik vind er wel wat inzitten, dus vraag me toch af of het niet verstandig is ook wat meer op de zolder af te zuigen in mijn ontwerp?
Ik heb ook geen afzuiging op zolder (en daar wel twee slaapkamers met 27 m³/h inblaas) en dat werkt probleemloos. Ook bij een schoorsteeneffect (warme lucht stijgt op) in het trappenhuis zou dat geen problemen moeten geven. De WTW duwt immers nog altijd frisse lucht de zolder op. Dat zakt echt wel via het trapgat naar beneden. Als de zolder muf is of blijft, zal hij daar mee lucht in moeten blezen.

WP: ME PUHZ-SW75YAA + ERSD-VM2D + EV-WP-TWS-1W 300; AC: ME MXZ-2F42VF + 2x MSZ-LN25VGV; PV: 14.08 kWp O/W + SMA STP 8.0; Vent: Zehnder Q600 ERV + Ubbink AirExcellent.


  • P5ycho
  • Registratie: Januari 2000
  • Laatst online: 12:39
Misschien is die zolder matig luchtdicht, wordt er lucht vanuit de spouw gelekt. Vele mogelijkheden tot muffe zolders, bouwers zijn nooit zo gemotiveerd om luchtdicht te bouwen tenzij er concrete afspraken gemaakt worden.

12x 280Wp ZW, 12x 280Wp ZO, Zubadan SHW80YAA 8kW, Zehnder Q450 ERV


  • H.A.B.
  • Registratie: Januari 2024
  • Laatst online: 05-04 10:15
Ok, bij jullie geen probleem dus in de praktijk. Goed punt dat de koude lucht natuurlijk ook naar beneden zou moeten zakken ja. Misschien dat 't in de hete zomers nog zou kunnen helpen wat warme lucht af te voeren vanuit de nok...?

Hij heeft een paar jaar oud nieuwbouwhuis dat luchtdicht gebouwd is en hij zelf nog tijdens de bouw extra luchtdicht heeft gemaakt, dus muffe lucht komt denk ik niet uit spouw of omdat het een 'oud' huis is - maar je weet 't nooit. Dus misschien dan te weinig lucht toevoer ja.

Ik vroeg het nu vooral vanuit mijn eigen ontwerpperspectief of ik toch nog extra afzuiging op zolder moet voorzien - maar jullie denken dus van niet. Ook niet in het kader van mijn eerdere vraag ( H.A.B. in "Het centrale balansventilatie met warmteterugwinning topic" ) over het drogen van de natte was op de zolder?

  • fabudop
  • Registratie: Oktober 2022
  • Laatst online: 02-04 21:21
Voor Tweakers die de keuze nog moeten maken:
Bij Zehnder gaan die sensoren ook stuk, maar daar pak je zonder de WTW eerst uit te bouwen zo de hele voorkant er af (drie schroefjes losdraaien), trek je de warmtewisselaar eruit en vervang je de sensor. De hoeveelheid werk is daarmee ca 1% van die bij een Duco....
Klopt, vervangen van temperatuur sensor in de Zehnder was een eitje. Maar voor ik zover was... Mijn unit reageerde nergens meer op, het scherm was uit, alleen een power ledje brandde nog. Ik dacht, dat zal de hoofdprint dan wel zijn. Nieuwe besteld, geïnstalleerd, zelfde probleem!. Bleek na lang puzzelen dat een kapotte temperatuur sensor de hoofdprint liet vastlopen. Temperatuur sensor vervangen, en de 'kapotte' hoofdprint deed het weer. Misschien dat iemand hier iets aan heeft...

  • fabudop
  • Registratie: Oktober 2022
  • Laatst online: 02-04 21:21
H.A.B. schreef op maandag 18 augustus 2025 @ 16:04:
Vriend van me heeft een Q600 WTW systeem geinstalleerd, maar geen afzuiging op de zolder (3 woonlagen incl. BG). Alleen aanvoer en dan via overflow door trapgat naar beneden. Hij geeft aan dat het in de praktijk toch lastig blijkt om voldoende lucht 'omlaag' te kunnen zuigen en op zolder blijft het eerder muf / geurtjes. Zijn theorie is dat warme lucht opstijgt en dat door dit schoorsteen effect in het trappengat het toch niet goed lukt alles af te zuigen van de zolder naar beneden.

Wat is jullie mening over deze theorie? Ik vind er wel wat inzitten, dus vraag me toch af of het niet verstandig is ook wat meer op de zolder af te zuigen in mijn ontwerp?
Ik ben sceptisch over die theorie. Als je op zolder toevoert en op begane grond afzuigt, dan stroomt de lucht gemiddeld van boven naar beneden, dat kan niet anders. Wat misschien wel kan is dat de verse lucht op zolder niet goed mengt voordat het naar beneden stroomt.

Ik heb heb het zelf andersom gedaan, en met een andere reden: afzuigen op zolder (en badkamers) en toevoer naar alle slaapkamers. De reden is dat de leidingen naar de slaapkamers lang zijn en meerdere bochten maken en dus eigenlijk niet te reinigen zijn. Leidingen waar je niet goed bij kan komen kunnen volgens mij beter in de toevoer zitten, want die lucht is gefilterd in de WtW en blijven dus schoon. De aangezogen lucht van de ruimtes is niet gefilterd.

  • P5ycho
  • Registratie: Januari 2000
  • Laatst online: 12:39
H.A.B. schreef op maandag 18 augustus 2025 @ 19:20:
Ok, bij jullie geen probleem dus in de praktijk. Goed punt dat de koude lucht natuurlijk ook naar beneden zou moeten zakken ja. Misschien dat 't in de hete zomers nog zou kunnen helpen wat warme lucht af te voeren vanuit de nok...?

Hij heeft een paar jaar oud nieuwbouwhuis dat luchtdicht gebouwd is en hij zelf nog tijdens de bouw extra luchtdicht heeft gemaakt, dus muffe lucht komt denk ik niet uit spouw of omdat het een 'oud' huis is - maar je weet 't nooit. Dus misschien dan te weinig lucht toevoer ja.

Ik vroeg het nu vooral vanuit mijn eigen ontwerpperspectief of ik toch nog extra afzuiging op zolder moet voorzien - maar jullie denken dus van niet. Ook niet in het kader van mijn eerdere vraag ( H.A.B. in "Het centrale balansventilatie met warmteterugwinning topic" ) over het drogen van de natte was op de zolder?
Ik droog de was op een slaapkamer met alleen aanvoer, geen problemen door. Uiteindelijk komt dat vocht allemaal wel in huis, en wordt daar gehouden door de enthalpiewisselaar. Ik ga de volgende zomer dan ook condenserend koelen om dat onder controle te krijgen.

12x 280Wp ZW, 12x 280Wp ZO, Zubadan SHW80YAA 8kW, Zehnder Q450 ERV


  • MWDKing
  • Registratie: Januari 2011
  • Laatst online: 05-04 12:49
H.A.B. schreef op maandag 18 augustus 2025 @ 07:57:
Kun je de unit niet rustig op z'n plaats manoeuvreren en omhoog duwen met 2 van die handheffers? Eerst op wat blokken en een plaat zetten en dan 't laatste stukje met van die montagehulpen? Zoiets: https://www.toolstation.n...-duopack-tradelift/p89755 Heb je ook goedkope versies van (bijv https://www.hbm-machines....-snelverstelling-0-115-mm)
Goed idee, ik had ze helaas niet voorhanden. Morgen komt wat ventilatie materiaal, o.a. flexbuis, binnen en als ik het daarmee kan doen zonder de luchtstroom te belemmeren, doe ik dat.

Ik hoop ook dat dat een beetje het geluidsproblemen oplost, want je hoort vanuit buiten de ventilatie wel duidelijk.

  • H.A.B.
  • Registratie: Januari 2024
  • Laatst online: 05-04 10:15
P5ycho schreef op maandag 18 augustus 2025 @ 20:26:
[...]

Ik droog de was op een slaapkamer met alleen aanvoer, geen problemen door. Uiteindelijk komt dat vocht allemaal wel in huis, en wordt daar gehouden door de enthalpiewisselaar. Ik ga de volgende zomer dan ook condenserend koelen om dat onder controle te krijgen.
Ok, dank je. Voordeel bij een lage luchtvochtigheid buiten en nadeel bij hoge luchtvochtigheid. :-)

Condenserend koelen met warmtepomp staat bij mij ook op de planning, maar eerst dit puzzeltje nu maar eens afmaken.

  • blinded
  • Registratie: Maart 2009
  • Laatst online: 04-04 22:11
Weet iemand met welke kabel je de zhender comfo q moet verbinden met een Comfoconnect LAN C?
En hoe je de draadjes vastzet in de gaatjes van de module?

  • woekele
  • Registratie: Juni 2002
  • Niet online

woekele

woekele

Ik heb UTP gepakt, 4 adertjes gebruikt (wel stukje gestript, zodat koper zichtbaar is). Ze moeten in het zwarte gaatje. Het witte puntje druk je in terwijl je hem erin stopt en laat je los als hij erin zit. Uiteraard zorgen dat volgorde van aders aan beide uiteinden hetzelfde is...

[ Voor 15% gewijzigd door woekele op 19-08-2025 00:08 ]


  • blinded
  • Registratie: Maart 2009
  • Laatst online: 04-04 22:11
woekele schreef op dinsdag 19 augustus 2025 @ 00:05:
Ik heb UTP gepakt, 4 adertjes gebruikt (wel stukje gestript, zodat koper zichtbaar is). Ze moeten in het zwarte gaatje. Het witte puntje druk je in terwijl je hem erin stopt en laat je los als hij erin zit. Uiteraard zorgen dat volgorde van aders aan beide uiteinden hetzelfde is...
Bedankt!

  • koningen
  • Registratie: Mei 2023
  • Laatst online: 15-03 17:23
H.A.B. schreef op maandag 18 augustus 2025 @ 19:20:
Ok, bij jullie geen probleem dus in de praktijk. Goed punt dat de koude lucht natuurlijk ook naar beneden zou moeten zakken ja. Misschien dat 't in de hete zomers nog zou kunnen helpen wat warme lucht af te voeren vanuit de nok...?

Hij heeft een paar jaar oud nieuwbouwhuis dat luchtdicht gebouwd is en hij zelf nog tijdens de bouw extra luchtdicht heeft gemaakt, dus muffe lucht komt denk ik niet uit spouw of omdat het een 'oud' huis is - maar je weet 't nooit. Dus misschien dan te weinig lucht toevoer ja.

Ik vroeg het nu vooral vanuit mijn eigen ontwerpperspectief of ik toch nog extra afzuiging op zolder moet voorzien - maar jullie denken dus van niet. Ook niet in het kader van mijn eerdere vraag ( H.A.B. in "Het centrale balansventilatie met warmteterugwinning topic" ) over het drogen van de natte was op de zolder?
Ik zou dat persoonlijk wel doen. Het kan ontzettend warm worden als de zon er schijnt.
Verder als er geleegd wordt moet je de CO2 afzuigen(verversen van lucht). Als iemand er niet woont zal het allemaal wel meevallen maar als je er leeft (kinderen bv) dan is dat noodzakelijk.
De CO2 waarde zal snel stijgen. dat merk je pas als je gaat meten of een automatische installatie hebt.

Wij regelen op CO2 en als er twee mensen of meer in huis zijn schakelt hij al snel omhoog.
Ook wij hebben een WTW 600 Zenhder.

Dus als je de mogelijkheden hebt , dan gewoon doen. Krijg je spijt van als je het niet doet.

  • P5ycho
  • Registratie: Januari 2000
  • Laatst online: 12:39
Warmte op zolder haal je niet weg met afzuiging. Dat doet echt heel heel weinig. Bovendien doet de wtw zijn uiterste best om deze warmte juist binnen te houden, rendement van >90%.

12x 280Wp ZW, 12x 280Wp ZO, Zubadan SHW80YAA 8kW, Zehnder Q450 ERV


  • Chabio
  • Registratie: Oktober 2015
  • Laatst online: 05-04 21:46
Hier na bijna 3 jaar is de toevoerventilator stuk gegaan. Deze is vervangen door Itho (na veel gebel en gewijs naar (onder)aannemer/installateur), ben wel klaar met die club. Ellende is alleen dat we 3 jaar geleden alles perfect hebben laten instellen door een Itho monteur, die destijds op bezoek was wegens een ander issue. Nu zijn de fabrieksinstellingen terug gezet. Daarom drie vragen hier, want ik heb eerlijk gezegd t liefst zo min mogelijk contact met die gasten: 1. Wat hebben jullie als settings in het bypass instellingen menu? Dit is default: Afbeeldingslocatie: https://tweakers.net/i/jLWjy3lzaOrF75D13ZkBNgjeOXk=/x800/filters:strip_icc():strip_exif()/f/image/cBw8aubC3hFFhSfzxCsQwb0Y.jpg?f=fotoalbum_large

2. Mijn badkamer rft zender werkt niet goed. Kan ik die zelf opnieuw connecten?

3. Eén van de maatwerk instellingen was dat de badkamer afzuiging via die rft extra hard was, zodat het vocht lekker snel weg was. Maar ik zie de settings daarvoor niet terug in de app.

  • assje
  • Registratie: Maart 2007
  • Laatst online: 13:27
P5ycho schreef op dinsdag 19 augustus 2025 @ 18:53:
Bovendien doet de wtw zijn uiterste best om deze warmte juist binnen te houden, rendement van >90%.
Daar is de bypass voor.

[ Voor 14% gewijzigd door assje op 19-08-2025 19:54 ]

“The greatest threat to our planet is the belief that someone else will save it.” [quote by Robert Swan, OBE]


  • P5ycho
  • Registratie: Januari 2000
  • Laatst online: 12:39
Dat snap ik, maar ook dat zet echt geen zoden aan de dijk. De implementatie verschilt nogal per fabrikant, en de bypass wordt gestuurd op de gemiddelde afvoertemp. Als je een warme zolder hebt kan het best zijn dat het daar al 25grC is, terwijl de gemiddelde temp nog geen bypass triggert.

12x 280Wp ZW, 12x 280Wp ZO, Zubadan SHW80YAA 8kW, Zehnder Q450 ERV

Chabio schreef op dinsdag 19 augustus 2025 @ 19:53:
Hier na bijna 3 jaar is de toevoerventilator stuk gegaan. Deze is vervangen door Itho.
Heb jij dat type met de toevoerventilator vóór het inlaatfilter en de warmtewisselaar waardoor die ventilator vies wordt en is ie daardoor stuk gegaan?

WP: ME PUHZ-SW75YAA + ERSD-VM2D + EV-WP-TWS-1W 300; AC: ME MXZ-2F42VF + 2x MSZ-LN25VGV; PV: 14.08 kWp O/W + SMA STP 8.0; Vent: Zehnder Q600 ERV + Ubbink AirExcellent.


  • Chabio
  • Registratie: Oktober 2015
  • Laatst online: 05-04 21:46
Het gaat om de hru400. De ventilator zag er enorm smerig uit dus dat zou goed kunnen. Heb alleen een foto gezien was niet thuis tijdens de reparatie.

  • big bang
  • Registratie: November 2012
  • Laatst online: 13:31
Andrehj schreef op dinsdag 19 augustus 2025 @ 20:11:
[...]

Heb jij dat type met de toevoerventilator vóór het inlaatfilter en de warmtewisselaar waardoor die ventilator vies wordt en is ie daardoor stuk gegaan?
Dat is de hru300. Daar kun je aan de inlaat je hand gewoon in de fan steken. Die heeft echter een dubbele fan voor in/uit dus die zal niet snel slechts één kant kapot hebben.

Itho heeft één belangrijke USP: de prijs.

(Vooral de HRU350 is dermate scherp geprijsd dat dat in verschillende, mij bekende, gevallen het verschil maakte tussen type C of D met wtw. En ik heb liever een Itho WTW dan type C ventilatie)

[ Voor 16% gewijzigd door big bang op 20-08-2025 09:58 ]

It's time to play the music, it's time to light the lights

big bang schreef op woensdag 20 augustus 2025 @ 09:55:
Dat is de hru300. Daar kun je aan de inlaat je hand gewoon in de fan steken. Die heeft echter een dubbele fan voor in/uit dus die zal niet snel slechts één kant kapot hebben.

Itho heeft één belangrijke USP: de prijs.
Maar als bij de HRU 400 de fan ná het inlaatfilter zit, hoe kan die fan dan zo vies worden? :? Bij mijn Zehnder zit de toevoerfan ook na het filter (en de warmtewisselaar), maar die fan blijft gewoon schoon.

WP: ME PUHZ-SW75YAA + ERSD-VM2D + EV-WP-TWS-1W 300; AC: ME MXZ-2F42VF + 2x MSZ-LN25VGV; PV: 14.08 kWp O/W + SMA STP 8.0; Vent: Zehnder Q600 ERV + Ubbink AirExcellent.


  • big bang
  • Registratie: November 2012
  • Laatst online: 13:31
Andrehj schreef op woensdag 20 augustus 2025 @ 09:57:
[...]

Maar als bij de HRU 400 de fan ná het inlaatfilter zit, hoe kan die fan dan zo vies worden? :? Bij mijn Zehnder zit de toevoerfan ook na het filter (en de warmtewisselaar), maar die fan blijft gewoon schoon.
Dunno. Misschien heeft die het zelfde probleem als de 300, maar dat hadden we nog niet geconstateerd. Misschien onderhoud jij je systeem en filters wel beter?

It's time to play the music, it's time to light the lights


  • The__Virus
  • Registratie: Januari 2005
  • Laatst online: 13:38
Wij hebben een bestaand huis op het oog wat we willen verduurzamen. Een WTW staat als must op mijn lijstje, omdat ik nu tweemaal een huis zonder heb gehad en altijd de luchtkwaliteit een probleem vindt.

Nu was ik wat aan het tekenen en zie ik dat ik eigenlijk aan beide uiteinden van het huis wil aan- en afvoeren (bungalowwoning met BG en 1 verdieping (een kelder met ruimte stahoogte)). Hierdoor zie ik enerzijds dat ik gemakkelijk leidingen aan de voorkant kan doen, maar ook dus twee keer (aan- en afvoer) eerst helemaal naar achteren moet laten gaan. Is het dan niet verstandiger wellicht om twee WTW's te plaatsen, eentje vooraan en eentje achteraan? En dan te zorgen dat elk van deze in balans is? Of zou dan evt. met onbalans ook kunnen werken, zolang het geheel maar in balans is? Dat eerste heeft de voorkeur en moet denk ik ook wel lukken. Het idee is enigszins om beneden aan de achterzijde met name aan te voeren en vooraan af te voeren. En op de BG andersom. Dat moet wss wel gebalanceerd lukken, ook per apparaat.

Aan de achterzijde zou deze dan in de kelder komen. Daar komen wel doorvoeren naar buiten, maar die zouden dan enigszins boven elkaar komen, eentje bijv. hoog en de ander laag. Zou dat een probleem zijn?

[ Voor 7% gewijzigd door The__Virus op 22-08-2025 08:15 ]


  • H.A.B.
  • Registratie: Januari 2024
  • Laatst online: 05-04 10:15
Ik probeer uit te vogelen of ik spiro buizen met ventiel aftakkingen tussen m'n balkenlaag krijg, maar kan sommige afmetingen niet online vinden (of mijn google skills zijn te matig) en ze hebben hier in de buurt niet alle hulpstukken of voorraad om te meten. Misschien heeft iemand nog wat stukken liggen of het ook zo gedaan?

Ik heb 225mm ruimte tussen mijn balken, daar komen nog 22mm rachels en 12,5mm gips en 5mm stuc bij - die afstand is dan totaal 264,5mm.

Is het mooist om een 45 graden T-stuk te gebruiken voor de flow - maar niet noodzakelijk lijkt me.

- Hoe hoog is een 90 graden T-stuk (160-125) in totaal? Dus tot aan onderkant van het 125mm stuk. (optie 1)
- Hoe hoog is een 45 graden T-stuk (160-125) - met daaraan nog een 45 graden bocht? (optie 2)
- Bestaan er T-stukken die aan de aftakkingskant meteen de buismaat hebben zodat je het ventiel er meteen in kan schuiven? Dat bestaat wel bij korte 90 graden bochten (zie optie 2), kon ze niet vinden voor 45 graden.
- Instucbaar ventiel neemt ook meer ruimte in lijkt me, maar wel mooier. Weet niet of prestatie hetzelfde is als bijv Luna125S. Iemand de Noshow gebruikt? Hoeveel van de 58mm instuchoogte moet in de spirobuis vallen? Staat niet in de datasheet / tekening. Als ik voor de Luna125S ga, tot hoe ver laat moet je spiro buis dan naar onder steken?

En anders maar wat spullen bestellen eerst en dan tetrissen :)

Afbeeldingslocatie: https://tweakers.net/i/kPOYuadXOddQDrLjoego-_rKtsM=/800x/filters:strip_exif()/f/image/1hNn6oNKAPLM9x9gBZR8FWbF.png?f=fotoalbum_large

Afbeeldingslocatie: https://tweakers.net/i/eWszUiN0nU6aiC_LJOSUpNK6VQk=/800x/filters:strip_exif()/f/image/NRP4K9uK0reLNWRB1XhttBgd.png?f=fotoalbum_large

  • Jannibal23
  • Registratie: Oktober 2003
  • Laatst online: 09:01
Dat T stuk kan toch ook plat liggen? Hoeft niet per se naar beneden te wijzen.

Flow verbeteren met 45 graden bochten lijkt mij zelf wat overdreven, het is geen riolering maar lucht.

Dus een korte 90 graden bocht op een plat T stuk past sowieso. En dan heb je de goedkoopste oplossing volgens mij met directe aansluiting voor een ventiel.

Edit: Heb hier alleen nog bochten liggen, geen T stuk. Dus kan je niet helpen met maatvoering.

[ Voor 12% gewijzigd door Jannibal23 op 23-08-2025 08:48 ]


  • fenrir
  • Registratie: Januari 2002
  • Niet online

fenrir

——-

Ik zou juist wel van die 45 graden bochten gebruiken omdat het lucht is. Uiteindelijk gaat het allemaal om de weerstand in de buis die bepaald hoeveel moeite de unit moet doen om de lucht er overal uit de duwen. Hoe minder weerstand hoe beter (want minder stroom).

Voor het inregelen is het waarschijnlijk nog mooier als je voor elk ventiel zo goed als dezelfde weerstand hebt. In de praktijk zal dit niet haalbaar zijn als je geen gebruik maakt van een centrale verdeel unit en vervolgens ook nog eens overal dezelfde buis lengte weet te gebruiken.

Van klussen krijg je grijze haren


  • GhandiHarder
  • Registratie: Februari 2003
  • Laatst online: 05-04 15:55
Ik weet dat het eigenlijk niet de bedoeling is, maar ik hoop dat de modjes lief voor mij zijn. Ik heb enorm veel aan dit topic gehad en hoop nu een mede Tweaker blij te kunnen maken. Dus ben je net begonnen, of ga je binnenkort beginnen met je installatie: https://gathering.tweakers.net/forum/list_messages/2309406

  • H.A.B.
  • Registratie: Januari 2024
  • Laatst online: 05-04 10:15
Jannibal23 schreef op zaterdag 23 augustus 2025 @ 08:47:
Dat T stuk kan toch ook plat liggen? Hoeft niet per se naar beneden te wijzen.
Goed punt, had ik niet aan gedacht 8)7
fenrir schreef op zaterdag 23 augustus 2025 @ 15:40:
Ik zou juist wel van die 45 graden bochten gebruiken omdat het lucht is. Uiteindelijk gaat het allemaal om de weerstand in de buis die bepaald hoeveel moeite de unit moet doen om de lucht er overal uit de duwen. Hoe minder weerstand hoe beter (want minder stroom).

Voor het inregelen is het waarschijnlijk nog mooier als je voor elk ventiel zo goed als dezelfde weerstand hebt. In de praktijk zal dit niet haalbaar zijn als je geen gebruik maakt van een centrale verdeel unit en vervolgens ook nog eens overal dezelfde buis lengte weet te gebruiken.
Ik heb in het ontwerp in ieder geval alle debieten van de ventielen hetzelfde gehouden (30m3/h normaal stand). De weerstand hetzelfde houden is niet/lastig te doen met alles alleen spiro. Maar probeer nu eerst als uitgangspunt aan te houden 1 ventiel op 125mm, 2 ventielen op 160mm, 3 op 180mm en 4 op 200mm, zodat de weerstand wel varieert met lengte en aantal bochten, maar debieten per pijp diameter gelijk zijn. Maar misschien juist ventielen die vlakbij de WTW zitten op 80mm aansluiten om te zorgen die die weerstand iets hoger wordt en dan vergelijkbaarder isweerstand op eind van de leidingen, zodat ik de dichtbij-ventielen niet helemaal dicht hoef te knijpen? Vind dat puzzeltje nog wat lastig, want het heel modelleren is nogal wat werk als je nog niet precies als je pijp routes weet.

  • Cbr
  • Registratie: Augustus 2012
  • Laatst online: 14:23

Cbr

H.A.B. schreef op zondag 24 augustus 2025 @ 17:07:
[...]

Goed punt, had ik niet aan gedacht 8)7


[...]


Ik heb in het ontwerp in ieder geval alle debieten van de ventielen hetzelfde gehouden (30m3/h normaal stand). De weerstand hetzelfde houden is niet/lastig te doen met alles alleen spiro. Maar probeer nu eerst als uitgangspunt aan te houden 1 ventiel op 125mm, 2 ventielen op 160mm, 3 op 180mm en 4 op 200mm, zodat de weerstand wel varieert met lengte en aantal bochten, maar debieten per pijp diameter gelijk zijn. Maar misschien juist ventielen die vlakbij de WTW zitten op 80mm aansluiten om te zorgen die die weerstand iets hoger wordt en dan vergelijkbaarder isweerstand op eind van de leidingen, zodat ik de dichtbij-ventielen niet helemaal dicht hoef te knijpen? Vind dat puzzeltje nog wat lastig, want het heel modelleren is nogal wat werk als je nog niet precies als je pijp routes weet.
Weinig mis met knijpen met het ventiel zelf toch?

Ik zou niet 80 mm pakken, tenzij het ergens anders handig voor is. Je hebt inderdaad wel wat meer flexibiliteit om kleinere diameters te pakken dan jouw 'standaard' bij kortere afstanden.

Ik heb trouwens het idee (kan iemand vast bevestigen) dat twee ventielen van 30m³/uur (normaalstand) prima op 125 mm kan, ik zou zelf pas bij drie ventielen naar 150 of 160 mm diameter gaan. Misschien met uitzondering van het ventiel die het verste weg zit. Juist bij dat ventiel wil je zo min mogelijk weerstand.

[ Voor 3% gewijzigd door Cbr op 24-08-2025 17:13 ]


  • H.A.B.
  • Registratie: Januari 2024
  • Laatst online: 05-04 10:15
Cbr schreef op zondag 24 augustus 2025 @ 17:12:
[...]

Weinig mis met knijpen met het ventiel zelf toch?

Ik zou niet 80 mm pakken, tenzij het ergens anders handig voor is. Je hebt inderdaad wel wat meer flexibiliteit om kleinere diameters te pakken dan jouw 'standaard' bij kortere afstanden.

Ik heb trouwens het idee (kan iemand vast bevestigen) dat twee ventielen van 30m³/uur (normaalstand) prima op 125 mm kan, ik zou zelf pas bij drie ventielen naar 150 of 160 mm diameter gaan. Misschien met uitzondering van het ventiel die het verste weg zit. Juist bij dat ventiel wil je zo min mogelijk weerstand.
Nou, als je ventielen heel erg moet knijpen, dan is je WTW in principe te hard aan het werk met onnodig geluid en energieverbruik. Dus mooier is volgens mij zo weinig mogelijk knijpen.

Ja, kan volgens mij ook wel. Maar als ik dit weggewerkt krijg, houd ik dit wel aan om lagere snelheden in m'n buizen te hebben. Dat kan sowieso geen kwaad. Als ik niet uitkom, kan ik altijd nog een maatje omlaag.

[ Voor 9% gewijzigd door H.A.B. op 24-08-2025 19:01 ]


  • Cbr
  • Registratie: Augustus 2012
  • Laatst online: 14:23

Cbr

H.A.B. schreef op zondag 24 augustus 2025 @ 18:58:
[...]


Nou, als je ventielen heel erg moet knijpen, dan is je WTW in principe te hard aan het werk met onnodig geluid en energieverbruik. Dus mooier is volgens mij zo weinig mogelijk knijpen.
Klopt. Maar je gaf aan dat je een systeem wil maken waarbij alle ventielen evenveel debiet 'leveren'.

Je weerstand wordt dan bepaald door het ventiel die helemaal openstaat (het ventiel met de meeste weerstand in de kanalen zal uiteraard helemaal openstaan).

Dat is dan de weerstand die alle ventielen gaan krijgen, zodat ze allemaal evenveel leveren. Je slechtst geplaatste ventieel bepaalt dus voor het gehele systeem de weerstand.

Vandaar dat ik me in mijn ontwerp vooral druk maak om de ventielen aan de andere kant van het huis, waar ik alleen met meerdere bochten kan komen.

Of je die weerstand nu maakt door er een paar meter 80 mm doorsnee buis tussen te zetten of door het ventiel verder dicht te draaien maakt echt niet uit.

80 mm buis heeft wel een voordeel: het kan tegenspraak tegengaan. Let wel op dat je geen geruis krijgt. De spreadsheet in de topicstart heeft mij sterk geholpen.

[ Voor 31% gewijzigd door Cbr op 24-08-2025 19:57 ]


  • fenrir
  • Registratie: Januari 2002
  • Niet online

fenrir

——-

H.A.B. schreef op zondag 24 augustus 2025 @ 18:58:
[...]


Nou, als je ventielen heel erg moet knijpen, dan is je WTW in principe te hard aan het werk met onnodig geluid en energieverbruik. Dus mooier is volgens mij zo weinig mogelijk knijpen.

Ja, kan volgens mij ook wel. Maar als ik dit weggewerkt krijg, houd ik dit wel aan om lagere snelheden in m'n buizen te hebben. Dat kan sowieso geen kwaad. Als ik niet uitkom, kan ik altijd nog een maatje omlaag.
Idd zo min mogelijk knijpen. Zoals hierboven ook beschreven is, zal uiteindelijk de langste buis bepalend gaan zijn voor je hele systeem. Dus als deze dit niet is, dan is plaatsen wat past/beschikbaar is waarschijnlijk allemaal prima. Dit om het praktisch te houden.

Van klussen krijg je grijze haren


  • Ro123
  • Registratie: Augustus 2021
  • Laatst online: 30-03 12:10
Andrehj schreef op woensdag 20 augustus 2025 @ 09:57:
[...]

Maar als bij de HRU 400 de fan ná het inlaatfilter zit, hoe kan die fan dan zo vies worden? :? Bij mijn Zehnder zit de toevoerfan ook na het filter (en de warmtewisselaar), maar die fan blijft gewoon schoon.
HRU400 heeft het toevoerfilter (ook) NA de motor. Hier begon deze na 2 jaar draaien "woeiii" geluiden te maken. Gedemonteerd en schoongemaakt en hij was weer rustig. De gaasopening was zo'n 50% verstopt. Hij ligt er wel zo uit in in, dat dan weer wel.
De HRU400 heeft ook, vergeleken met andere units, een erg laag toevoergeluid, als je de dB tabellen mag geloven.
Maar ja, als ie na 2 jaar gaat "woeiiii"en, dan wil je dat dus voorkomen, dus wat, elk jaar schoonmaken? Leg dat eens uit aan iemand aan wie je je woning verkoopt...

  • walletje-w
  • Registratie: November 2007
  • Laatst online: 05-04 22:11
Ro123 schreef op maandag 25 augustus 2025 @ 16:16:
[...]
Maar ja, als ie na 2 jaar gaat "woeiiii"en, dan wil je dat dus voorkomen, dus wat, elk jaar schoonmaken? Leg dat eens uit aan iemand aan wie je je woning verkoopt...
Dat schoonmaken is bij iedere WTW. Ik heb in m'n todolijst staan dat ik om de 3 maanden de filters moet stofzuigen en dan bepaal ik ook of er nieuwe in moeten. De filters aan de buitenkant moeten ook schoon gemaakt worden en de buizen ook eens in de 5 jaar (even controleren met een goedkope endoscoop of het echt nodig is.) En de kogellagers zullen ook wel eens vervangen moeten worden.

Dus zo gek vind ik dit niet. Het voor en nadeel van woningeigenaar zijn.
walletje-w schreef op maandag 25 augustus 2025 @ 17:57:
Dat schoonmaken is bij iedere WTW. Ik heb in m'n todolijst staan dat ik om de 3 maanden de filters moet stofzuigen en dan bepaal ik ook of er nieuwe in moeten. De filters aan de buitenkant moeten ook schoon gemaakt worden
Wat bedoel je met filters aan de buitenkant?
Ik heb er maar twee in mijn WTW, een toevoerfilter (uiteraard helemaal vooraan, dus vóór de voorverwarmer, warmtewisselaar en ventilator) en een afvoerfilter, wat enkel dient om de warmtewisselaar schoon te houden.
Beide zitten in de WTW. Aan de buitenkant zitten geen filters.

WP: ME PUHZ-SW75YAA + ERSD-VM2D + EV-WP-TWS-1W 300; AC: ME MXZ-2F42VF + 2x MSZ-LN25VGV; PV: 14.08 kWp O/W + SMA STP 8.0; Vent: Zehnder Q600 ERV + Ubbink AirExcellent.


  • walletje-w
  • Registratie: November 2007
  • Laatst online: 05-04 22:11
Andrehj schreef op maandag 25 augustus 2025 @ 19:30:
[...]

Wat bedoel je met filters aan de buitenkant?
Ik heb er maar twee in mijn WTW, een toevoerfilter (uiteraard helemaal vooraan, dus vóór de voorverwarmer, warmtewisselaar en ventilator) en een afvoerfilter, wat enkel dient om de warmtewisselaar schoon te houden.
Beide zitten in de WTW. Aan de buitenkant zitten geen filters.
Ik bedoel de filters buiten het huis. Daar zitten spinnenwebben op die dan weer “vol” lopen met stof en pluisjes.

  • TomVH2
  • Registratie: Mei 2012
  • Laatst online: 07:50
H.A.B. schreef op donderdag 14 augustus 2025 @ 15:35:
Ben nog eens dit hele topic van voor-naar-achter aan het doorlezen om mijn ontwerp af te maken en spullen te bestellen. Paar vragen over de doorvoeren die me toch nog niet helemaal duidelijk zijn.

Ik ga een Zehnder Q450 of Q600 aanschaffen, denk in combinatie met de Zehnder ComfoPipe Plus 200mm voor aanvoer / afvoer lucht.

Afvoer


Dempers
- Afvoer: bij de afvoer naar buiten (na de WTW) moet een demper komen om geluidsoverlast aan de buitenkant te voorkomen. Welke type nog niet uitgezocht, advies is welkom. Maar moet er nou ook nog een damper tussen de WTW en de afzuigkanalen die vanuit de kamers naar de WTW lopen?
- Aanvoer: na de WTW in de pijpen naar de kamers ga ik proberen een flexibele + starre demper toe te passen op basis van adviezen in dit topic. Maar het is me onduidelijk of er nog een demper in de luchtaanvoer voor de WTW toegepast moet worden (dus in de pijp van buiten naar de WTW). Heeft dat zin/nut?
ik heb een Q450 95% van de tijd op 200m³/h. Daar hoor je niets buiten (spirobuizen 200 geïsoleerd met lamellendekens). Maar op 350m³/h hoor je de afvoer (buiten) wel.
Voor geluid kan je ook zelf eens rekenen met Dimsilencer software van Lindab. Gratis. Geeft je iets of wat meer voeling (voor mij althans). Ik heb daarom aan toevoer en afvoer (warme kant) elk een demper van D200 x1200 met 10cm isolatie. Dus 2 dempers van van 400x1200. En dan in 2 kamers nog een demper van 125x900 met 50mm isolatie. In de 3 de kamer heb ik bewust geen demper gestoken (als test). Bij 200m³/h hoor ik nergens iets, behalve in de 3de kamer (zonder demper) hoor je wel iets als je echt een goed gehoor hebt (zeker niet storend). Bij 350m³/h hoor ik in de eerste 2 kamers niets maar in de 3 de kamer is het geluid dan echt echt storend.
In de keuken (waar ik tot 250m³/h afzuig via een standaard ventiel D160) hoor ik niets bij 350m³/h (behalve het toestel zelf dan dat ernaast staat in de technische berging). Hou dus zeker (ook) rekening met het "kastgeluid" van het toestel zelf (en spleten onder de deur waar het geluid zo door kan).
Hier draait het toestel aan 25W bij 200m³/h en aan 33W indien bypass actief is (wat in indicatie is van leidingweerstand en dus ook geluid).
Als ik opnieuw zou beginnen, zou ik terug 2 dempers (1200x200 100mm isolatie) plaatsen aan het toestel maar ook in elke kamer een demper (900x125 50mm isolatie).

De beleving klopt met het resultaat uit dimsilencer.

en hier heb ik ook veel nuttige ontwerp info gevonden. Wel niet gratis.

Misschien heb je hier iets aan.

  • H.A.B.
  • Registratie: Januari 2024
  • Laatst online: 05-04 10:15
TomVH2 schreef op maandag 25 augustus 2025 @ 22:55:
[...]

ik heb een Q450 95% van de tijd op 200m³/h. Daar hoor je niets buiten (spirobuizen 200 geïsoleerd met lamellendekens). Maar op 350m³/h hoor je de afvoer (buiten) wel.
Dank voor je feedback. Ter referentie, hoeveel m2 en m3 is jouw huis?
Als ik opnieuw zou beginnen, zou ik terug 2 dempers (1200x200 100mm isolatie) plaatsen aan het toestel maar ook in elke kamer een demper (900x125 50mm isolatie).
Bedoel je 2 dempers in de aanvoer en 2 in de afvoer of 1 in de aanvoer en 1 in de afvoer (2 in totaal) - want dat heb je nu toch al? Wilde nu proberen 1 starre + 1 flexibele achter elkaar te zetten in de aanvoer in ieder geval. Afvoer weet ik niet of het ook nodig is dat dubbel te doen.
walletje-w schreef op maandag 25 augustus 2025 @ 22:34:
Ik bedoel de filters buiten het huis. Daar zitten spinnenwebben op die dan weer “vol” lopen met stof en pluisjes.
Aha.
Ik heb alleen een rooster voor de inlaat, met gaten zo groot dat het alleen vogels en muizen (als die zo hoog op de muur zouden lopen) tegen houdt. Voor de uitlaat (op het dak) zit niks. Maar in beide gevallen zit er geen filter.

[ Voor 3% gewijzigd door Andrehj op 26-08-2025 08:34 ]

WP: ME PUHZ-SW75YAA + ERSD-VM2D + EV-WP-TWS-1W 300; AC: ME MXZ-2F42VF + 2x MSZ-LN25VGV; PV: 14.08 kWp O/W + SMA STP 8.0; Vent: Zehnder Q600 ERV + Ubbink AirExcellent.


  • TomVH2
  • Registratie: Mei 2012
  • Laatst online: 07:50
H.A.B. schreef op dinsdag 26 augustus 2025 @ 07:51:
[...]

Dank voor je feedback. Ter referentie, hoeveel m2 en m3 is jouw huis?

[...]

Bedoel je 2 dempers in de aanvoer en 2 in de afvoer of 1 in de aanvoer en 1 in de afvoer (2 in totaal) - want dat heb je nu toch al? Wilde nu proberen 1 starre + 1 flexibele achter elkaar te zetten in de aanvoer in ieder geval. Afvoer weet ik niet of het ook nodig is dat dubbel te doen.
170m². We maken hier wel gebruik van "recirculatielucht". Ik heb gerekend aan 25m³/h per persoon. Dus 3 kamers boven waar elk 50m³/h (in de kinderkamers zou je eventueel naar 25 kunnen gaan) wordt aangevoerd en een bureau waar 50m³/h wordt aangevoerd (totaal 200m³/h). In de keuken wordt 135m³/h afgevoerd. In de woonkamer komt de "verse" lucht van bureau en kamers via 2 deuren (spleet) binnen en wordt afgezogen in de keuken.

Inderdaad zoals nu uitgevoerd. 1 demper aan pulsie EN 1 demper aan extractie. De 3de kamer heeft nu geen demper maar daar zou ik nu wel een plaatsen. Dus zoals nu maar dan wel een demper in de 3de kamer.

Ik heb geen ervaring met de flexibels.

In extractie is een 2de demper, naar mijn ervaring, niet nodig. De platenwisselaar fungeert als demper. MAAR natuurlijk is de ene demper de andere niet. Daarom heb ik dimsilencer gebruikt.

Eigenlijk hangt alles af van het ontwerp waaruit de "normale" stand volgt. Hoe hoger het debiet, hoe hoger het geluid en verbruik. Van hieruit bepaal je de benodigde dempers.

  • walletje-w
  • Registratie: November 2007
  • Laatst online: 05-04 22:11
Andrehj schreef op dinsdag 26 augustus 2025 @ 08:32:
[...]

Aha.
Ik heb alleen een rooster voor de inlaat, met gaten zo groot dat het alleen vogels en muizen (als die zo hoog op de muur zouden lopen) tegen houdt. Voor de uitlaat (op het dak) zit niks. Maar in beide gevallen zit er geen filter.
Ik heb het verkeerd verwoord, het is bij mij ook een rooster. Maar wel dusdanig fijn dat de spinnenwebben en stofjes samenkomen en de luchtstroom beinvloeden. Gelukkig kan ik er makkelijk bij en is het 1x per jaar voldoende.

En dat deed me besluiten het dus maar weer eens schoon te maken en dit was van zojuist. De gaaswijdte is 1x1cm.
Afbeeldingslocatie: https://tweakers.net/i/EEag-6spUZxSN80N6KUDwrYzMAE=/232x232/filters:strip_icc():strip_exif()/f/image/zDS9vkNJ30f3KgmBJ1K2bgIX.jpg?f=fotoalbum_tileAfbeeldingslocatie: https://tweakers.net/i/YSoWefkj6mAU_5uf2KTDtL6ZoSU=/232x232/filters:strip_icc():strip_exif()/f/image/WT6iCwpitljeU4OVmrI296Zi.jpg?f=fotoalbum_tile

  • Barleone
  • Registratie: Maart 2009
  • Laatst online: 14:11
Vraagje: ik heb de wens voor centrale WTW ventilatie, hoewel de woning feitelijk af is. Ik kan dus geen buizen wegwerken. Zijn er onder de meelezers die dit toch hebben aangelegd, dus bijvoorbeeld pontificaal in het zicht in de woonkamer? Of zichtbare buizen in slaapkamers? Ik zou daar graag wat plaatjes van zien en inspiratie opdoen. Wie o wie

[ Voor 5% gewijzigd door Barleone op 27-08-2025 22:42 ]

Tweakers.net 6 nostalgie! - Wayback Machine
Have you tried turning it off and on again?


  • Franciesco
  • Registratie: Januari 2021
  • Laatst online: 13:59
@Barleone afhankelijk van je smaak en stijl woning kan het best passen. Zelf denk ik dan aan een industriële stijl waar (zwarte) buizen en ventielen in het zicht zitten. In kantoorpanden en restaurants zie je dat ook wel eens.

Googlen of eens op Pinterest zoeken naar afbeeldingen?

  • Ro123
  • Registratie: Augustus 2021
  • Laatst online: 30-03 12:10
walletje-w schreef op maandag 25 augustus 2025 @ 17:57:
[...]

Dat schoonmaken is bij iedere WTW. Ik heb in m'n todolijst staan dat ik om de 3 maanden de filters moet stofzuigen en dan bepaal ik ook of er nieuwe in moeten. De filters aan de buitenkant moeten ook schoon gemaakt worden en de buizen ook eens in de 5 jaar (even controleren met een goedkope endoscoop of het echt nodig is.) En de kogellagers zullen ook wel eens vervangen moeten worden.

Dus zo gek vind ik dit niet. Het voor en nadeel van woningeigenaar zijn.
Ga je nou het schoonmaken/vervangen van de filters vergelijken met de motoren schoonmaken?
Dat is toch wat anders he.

  • RvV1979
  • Registratie: Januari 2018
  • Laatst online: 25-02 21:24
RvV1979 schreef op maandag 27 januari 2025 @ 08:50:
[...]
Bedankt; ik ga dan denk ik die LRCA's bestellen bij Ventilatory (want elders erg duur). Wat bedoel je precies met 0.5cm? Of bedoelde je een halve meter? Ik dacht zelf aan 1000mm lengte omdat ik er op zich de plek voor heb.
Hierbij nog even een update. Inmiddels hebben we drie lindab LRCA's van 1m lengte laten plaatsen en geen enkele last meer van overspraak. Die dingen werken dus echt goed. Eerder had de installateur Inno geluiddempers geplaatst maar die hielpen helemaal niets.
walletje-w schreef op dinsdag 26 augustus 2025 @ 11:59:
Ik heb het verkeerd verwoord, het is bij mij ook een rooster. Maar wel dusdanig fijn dat de spinnenwebben en stofjes samenkomen en de luchtstroom beinvloeden. Gelukkig kan ik er makkelijk bij en is het 1x per jaar voldoende.

En dat deed me besluiten het dus maar weer eens schoon te maken en dit was van zojuist. De gaaswijdte is 1x1cm.
Hm, je triggert me. Net maar eens gekeken, en dit is de staat van ons inlaatrooster (met openingen ca 2x2 cm) na 5 jaar (nog nooit schoon gemaakt). Maar eens kijken of hoe ik daar bij kom (het rooster hangt op dik 6 meter boven de grond...)
Afbeeldingslocatie: https://tweakers.net/i/qXXe1_aTZEYFFV44h3WNcrIfgro=/fit-in/4920x3264/filters:max_bytes(3145728):no_upscale():strip_icc():strip_exif()/f/image/SuNDuyw0L3WQsVXVEZuGJDzu.jpg?f=user_large

WP: ME PUHZ-SW75YAA + ERSD-VM2D + EV-WP-TWS-1W 300; AC: ME MXZ-2F42VF + 2x MSZ-LN25VGV; PV: 14.08 kWp O/W + SMA STP 8.0; Vent: Zehnder Q600 ERV + Ubbink AirExcellent.


  • TomVH2
  • Registratie: Mei 2012
  • Laatst online: 07:50
Barleone schreef op woensdag 27 augustus 2025 @ 22:41:
Vraagje: ik heb de wens voor centrale WTW ventilatie, hoewel de woning feitelijk af is. Ik kan dus geen buizen wegwerken. Zijn er onder de meelezers die dit toch hebben aangelegd, dus bijvoorbeeld pontificaal in het zicht in de woonkamer? Of zichtbare buizen in slaapkamers? Ik zou daar graag wat plaatjes van zien en inspiratie opdoen. Wie o wie
Wij hebben hiervoor gekozen. Zelf ontworpen en uitgevoerd. Je kan ook wat spelen met locatie van rooster om minder buizen zichtbaar te hebben. In onze woonruimte zit zowel pulsie als extractie op dezelfde gevel.

Ik persoonlijk zou het niet meer adviseren. Je steekt ongelofelijk veel tijd in het ontwerp. Kanaalroosters bestaan enkel maar voor spirobuizen vanaf diameter 160. Dus ook voor 50m³/h moet je een rooster monteren in een kanaal van D160. En als je werkt met muurrooster dan moet je die in een plenum steken en die worden dan weer op maat gemaakt. En nog de moeilijkste factor is iemand te vinden dit het systeem kan opmeten. Het eenvoudigste is als je zelf overal dezelfde roosters plaatst. Zo kan je met een hittedraadsensor alles relatief eenvoudig zelf inregelen. Maar in belgie is deze meetmethode niet toegelaten voor huisinstallaties. Dan moet je overal tijdelijke platen monteren. En de tegendruk is zo laag dat ze enkel kunnen meten met toestel met nuldrukcompensatie (flowfinder)....

En de installatie is ook niet eenvoudig omdat je maar kan installeren na het schilderen van de muren. Het is onbegonnen werk om achter de buizen ...

muurroosters kan je krijgen bij ventilatieland en die werken samen met grada voor de plenums.

Als je het echt wil en je hebt tijd dan lukt het.

Afbeeldingslocatie: https://tweakers.net/i/QNwamyAHq4YrfmKpWxgdwtvkbi4=/800x/filters:strip_icc():strip_exif()/f/image/vK8nwPKeNQ7VDpsAsEbKjSMe.jpg?f=fotoalbum_large

Afbeeldingslocatie: https://tweakers.net/i/elluIhOguQ-UWBYZyHPKhI4Qzkw=/800x/filters:strip_icc():strip_exif()/f/image/UZOdWf6UOzysJrQzxe9lwxFs.jpg?f=fotoalbum_large

Afbeeldingslocatie: https://tweakers.net/i/Jf4R9Rd83m2kU2b4lBA89_t-BgE=/800x/filters:strip_icc():strip_exif()/f/image/rX1hVPHLRrNv3iirN7SCFxT1.jpg?f=fotoalbum_large

[ Voor 4% gewijzigd door TomVH2 op 28-08-2025 21:11 ]

Pagina: 1 ... 95 ... 112 Laatste