Ik denk dat ie er gewoon geen zin in heeft.wkeulers schreef op zondag 11 september 2022 @ 12:00:
Simpele vraag denk ik voor de meesten van jullie:
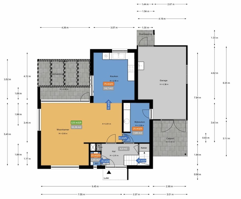
Wij hebben een nieuwbouwwoning (bouwjaar 2022). Er zit een WTW installatie in. Maar 1 kamer die eigenlijk als “onbepaalde ruimte” ingetekend was gaan wij gebruiken als slaapkamer voor 1 persoon. In die kamer zit echter geen WTW ventiel. De bouwer wil dat ook niet aanbrengen omdat “de WTW unit zijn maximale capaciteit bereikt heeft”. Nu lijkt mij het aanbrengen van 1 inblaasventiel in een slaapkamer niet zo’n complexe zaak. Ik kan er ook gemakkelijk bij etc. Kan ik simpelweg een aftakking maken vanaf de buis waar de andere inblaasventielen op aangesloten zijn? Of is dat niet zo eenvoudig?
Denk aan de demping voor overspraak (geluid). Maar draait de unit nu voluit dan? Dat zal toch niet. Ik zou me er verder niet zo druk over maken.
Wel een aandachtspunt is de afregeling. Als je een extra ventiel toevoegt, krijgen andere ventielen minder lucht. Wat ik zou doen is dat ventiel gewoon toevoegen en dezelfde afstelling geven als die in de andere slaapkamers, en dan de unit wat hoger instellen.
Wat is trouwens de logica van zo'n aannemer om een bruikbare kamer niet van een WTW-ventiel te voorzien?
WP: ME PUHZ-SW75YAA + ERSD-VM2D + EV-WP-TWS-1W 300; AC: ME MXZ-2F42VF + 2x MSZ-LN25VGV; PV: 14.08 kWp O/W + SMA STP 8.0; Vent: Zehnder Q600 ERV + Ubbink AirExcellent.
:no_upscale():strip_icc():fill(white):strip_exif()/f/image/WWToUbkFfiqjzPs1nmptz4Qf.jpg?f=user_large)
:strip_exif()/f/image/y5rlCCXo5sJJAfscIcebdBMs.jpg?f=fotoalbum_large)
:strip_exif()/f/image/GQo20LqrpYmbCnb3tdVXxYb3.jpg?f=fotoalbum_large)
:strip_exif()/f/image/TZxr5dKLJVifqIKTkKCcvBXy.jpg?f=fotoalbum_large)
:strip_exif()/f/image/XbLjnzStzvbZXwPFN8LDmKec.jpg?f=fotoalbum_large)
:strip_exif()/f/image/XB4XmC7erN436HDKJ97fpceU.jpg?f=fotoalbum_large)
:no_upscale():strip_icc():fill(white):strip_exif()/f/image/UBNuB9YxNn7dPDOZ769pgx8m.jpg?f=user_large)
:strip_exif()/f/image/jB4ABLCDsKnhVcC2iQt6fyr8.jpg?f=fotoalbum_large)
:strip_exif()/f/image/pNSeDsgtxD5P8xmkQcotteHl.jpg?f=fotoalbum_large)
:fill(white):strip_exif()/f/image/NGo8SX3UcUIuBmunUvLyZvuI.png?f=user_large)
:fill(white):strip_exif()/f/image/0Rhq0t7uzYSFFyiwU5fbZcbp.png?f=user_large)
:fill(white):strip_exif()/f/image/uodpVUSxVkPkb284QNaFBcfM.png?f=user_large)
:strip_exif()/f/image/bLfkUlJJvjEgF2QQD5h7hrjw.jpg?f=fotoalbum_large)
:strip_exif()/f/image/SMm99VjgajKl6OkIwdKFedzu.jpg?f=fotoalbum_large)
:no_upscale():strip_icc():fill(white):strip_exif()/f/image/YbauBkfvWNYvT6y7nQ4wtZtp.jpg?f=user_large)
:strip_exif()/f/image/xWd3t2xd6EA93P38Od0FnjS5.jpg?f=fotoalbum_large)
/f/image/jBKUDX95RgFOKBcvP4B6vaV2.png?f=fotoalbum_large)
:fill(white):strip_exif()/f/image/FYencjwgcROHHJRq7cug1cbU.png?f=user_large)

