Dat het kan klopt zeker, maar je bent ook gebonden aan de ruimte van je woonkamer. Zelden een woonkamer gezien waarin er ineens op een andere wand de tv staat. En jouw oplossing vind ik eigenlijk ook niet ideaal. Heb het liefst een lan verbinding op de tv en hardware dat er op aan gesloten moet wordenReinier schreef op woensdag 9 augustus 2017 @ 19:54:
[...]
Eergisteren mijn woonkamer 180 graden gedraaid. Aansluitpunten? Televisie kijk ik met de Ziggo app plus een Chromecast en m'n htpc en andere apparaten doen het nu draadloos met een extra router in media bridge mode
Ik heb op drie locaties in de woonkamer een CAI+UTP aansluiting.Verwijderd schreef op woensdag 9 augustus 2017 @ 18:22:
[...]
Hoevaak verander jij wel niet van locatie, volgens mij 0. Je bent gebonden aan je aansluitpunten in de woonkamer. Je inrichting is wat anders. En ik neem aan dat je weloverwogen nadenkt voordat je een kabelgoot in de muur laten frezen. Beetje een soort van je verstand gebruiken. Maar misschien doe jij dingen eerst voordat je het uitwerkt.
Grappig, ik woon ook in appartement uit 1964. Mijn onderburen maken zoveel lawaai. En dan bedoel ik schreeuwen, met deuren slaan, fluiten, dat ik nu opteer voor een zwaardere subwoofer. Hoe meer het trilt en bonkt hoe beter. De REL S5 lijkt me wel watpro_6or schreef op maandag 7 augustus 2017 @ 21:04:
Subwoofer in een appartement vind ik echt not done, heb zelf een rel q200 (netjes opgeborgen tot ik vrijstaand woon)
Keek ooit the perfect storm, liet de film lopen en ging even beneden (woonde toen nog thuis) een zak chips halen, nou dat was dus echt niet normaal wat een gedreun. Dat mijn ouders dat altijd prima vonden was heel lief van ze maar dat kan je je buren niet aandoen imho.
Ik houd van de vrijheid. En het verschil tussen ophangen en neerzetten op een meubel is designtechnsich nihil.Verwijderd schreef op woensdag 9 augustus 2017 @ 18:22:
[...]
Hoevaak verander jij wel niet van locatie, volgens mij 0. Je bent gebonden aan je aansluitpunten in de woonkamer. Je inrichting is wat anders. En ik neem aan dat je weloverwogen nadenkt voordat je een kabelgoot in de muur laten frezen. Beetje een soort van je verstand gebruiken. Maar misschien doe jij dingen eerst voordat je het uitwerkt.
Aansluitpunten zijn zó 1990. Wie gebruikt zijn coax kabel nog?
Ik heb drie pvc buizen in de vloer voor netwerkkabel en speakerkabel. Dus als ik de boel 180 graden wil draaien dan kan dat zonder dat ik met een gehavende muur en kabelgoot blijf zitten
Netwerkkabel en speakerkabel? Die zijn in 2010 toch uitgefaseerd?Nyarlathotep schreef op woensdag 9 augustus 2017 @ 23:05:
[...]
Ik houd van de vrijheid. En het verschil tussen ophangen en neerzetten op een meubel is designtechnsich nihil.
Aansluitpunten zijn zó 1990. Wie gebruikt zijn coax kabel nog?
Ik heb drie pvc buizen in de vloer voor netwerkkabel en speakerkabel. Dus als ik de boel 180 graden wil draaien dan kan dat zonder dat ik met een gehavende muur en kabelgoot blijf zitten
Stroom ook?
Ik frees niets in de wanden, want het is een huurhuis. Toch hangt onze TV aan de muur met zo'n uberlelijk kabelgootgeval van tv naar de plint. Het heeft ooit aan de andere wand die er tegenover staat gehangen en het waren alleen 4 boutgaten dichtsmeren en helemaal schilderen. Want je wilt toch weer een nette muur zonder kleurverschil.
Ik frees niets in de wanden, want het is een huurhuis. Toch hangt onze TV aan de muur met zo'n uberlelijk kabelgootgeval van tv naar de plint. Het heeft ooit aan de andere wand die er tegenover staat gehangen en het waren alleen 4 boutgaten dichtsmeren en helemaal schilderen. Want je wilt toch weer een nette muur zonder kleurverschil.
[ Voor 93% gewijzigd door Viking Kvinne op 10-08-2017 09:23 ]
Na 12 jaar afscheid genomen van men Pioneer Plasma.
Hier is mijn nieuwe setup . Blij met de LG OLED C7.
Kwa beeld heeft de wereld niet stilgestaan. 4K is gewoon geweldig.
http://imgur.com/UN2ermU
setup:
LG OLED 55C7V
DENON AVR - X2300W
KEF centerspeaker SP3747
Wharefedale 5.1 speakerset
Nvidea shield
Vogel's Wall 2225
USB RGBW ledverlichting 2x90+2x50 cm op 2 tv usbpoort
Nog te doen 2 x usb led 80 cm op linker en rechterspeaker via usbpoort Denon
en nieuwe 4k dvd player.
Hier is mijn nieuwe setup . Blij met de LG OLED C7.
Kwa beeld heeft de wereld niet stilgestaan. 4K is gewoon geweldig.
http://imgur.com/UN2ermU
setup:
LG OLED 55C7V
DENON AVR - X2300W
KEF centerspeaker SP3747
Wharefedale 5.1 speakerset
Nvidea shield
Vogel's Wall 2225
USB RGBW ledverlichting 2x90+2x50 cm op 2 tv usbpoort
Nog te doen 2 x usb led 80 cm op linker en rechterspeaker via usbpoort Denon
en nieuwe 4k dvd player.
Verwijderd
Ziet er netjes uit. Ook leuk dat je de kabelgoot dezelfde kleur hebt gegeven als de muur.
Kan ik ergens een +5 gevenNeWSJuNK schreef op woensdag 9 augustus 2017 @ 22:13:
[...]
Grappig, ik woon ook in appartement uit 1964. Mijn onderburen maken zoveel lawaai. En dan bedoel ik schreeuwen, met deuren slaan, fluiten, dat ik nu opteer voor een zwaardere subwoofer. Hoe meer het trilt en bonkt hoe beter. De REL S5 lijkt me wel wat
Zomenteen ook maar eens mijn setup neerplempen na een jaar verbouwen.. Is overigens nog niet klaar..
Eerst koffie
[ Voor 12% gewijzigd door Audione0 op 10-08-2017 13:41 ]
Ryzen 9 7950x3d / Asus Strixx x670E-E / Noctua NH-DH15 / 64GB Corsair Dominator 6000 / Crucial M500 – Samsung 990pro / MSI RTX 4070TI Super Gaming X Slim / Corsair RM1000x / Alles in een Fractal Define 7 Black gepropt
herkenbaar, maar dan andersom (ik onder, buurman boven).NeWSJuNK schreef op woensdag 9 augustus 2017 @ 22:13:
[...]
Grappig, ik woon ook in appartement uit 1964. Mijn onderburen maken zoveel lawaai. En dan bedoel ik schreeuwen, met deuren slaan, fluiten, dat ik nu opteer voor een zwaardere subwoofer. Hoe meer het trilt en bonkt hoe beter. De REL S5 lijkt me wel wat
Mijn sub kan zonder problemen alles laten trillen, maar dan trilt alles van de planken
Panasonic 55FZ804 | Marantz Cinema 30 | nvidia shield | Panasonic dp-ub424 | 2x Klipsch RF82 | 4x RP-140SA | 2x RB61 | 2xRB51 | RC52 Mk2 | SVS PB-1000 |
https://drive.google.com/...g3nzulNq4lbS1ESzFpMHBNMW8
Wat jullie zien:
LG Smart Tv 109cm
Onkyo receiver
B&S Fronts
Center weet ik zo niet, maar is wel een gebruikte, gekregen van kameraad
Philips Subwoofertje
Wat jullie zien:
LG Smart Tv 109cm
Onkyo receiver
B&S Fronts
Center weet ik zo niet, maar is wel een gebruikte, gekregen van kameraad
Philips Subwoofertje
Als je een TV ophangt is het gebruikelijk de voet/steun er af te halen.
| Me = M'n of Mijn | Is = Eens | Hun = Zij | Waar om doen men sen al die on nodig e spa ties over al tus sen ? | Hè = Heh? | Hé = Hey!
Je bent wel duidelijk voor de studentenhuis- look gegaan. 
- Stekkerdozen in beeld
- Kabelhaspel bovenop de speaker
- Foto half achter de TV
- Samengeraapte speakerset
- Stekkerdozen in beeld
- Kabelhaspel bovenop de speaker
- Foto half achter de TV
- Samengeraapte speakerset
[ Voor 50% gewijzigd door Jaap-Jan op 10-08-2017 15:07 ]
| Last.fm | "Mr Bent liked counting. You could trust numbers, except perhaps for pi, but he was working on that in his spare time and it was bound to give in sooner or later." -Terry Pratchett
Hindert me niet.CeesKees schreef op donderdag 10 augustus 2017 @ 15:01:
Als je een TV ophangt is het gebruikelijk de voet/steun er af te halen.
Haha ja zoiets.Jaap-Jan schreef op donderdag 10 augustus 2017 @ 15:03:
Je bent wel duidelijk voor de studentenhuis- look gegaan.
Heb je nou de tv met voet opgehangen?Jeroentjuh82 schreef op donderdag 10 augustus 2017 @ 14:54:
https://drive.google.com/...g3nzulNq4lbS1ESzFpMHBNMW8
Wat jullie zien:
LG Smart Tv 109cm
Onkyo receiver
B&S Fronts
Center weet ik zo niet, maar is wel een gebruikte, gekregen van kameraad
Philips Subwoofertje
Verder nette setup, alleen Mn OCD wordt wel getriggered door al die kabels.
Zeg dan gewoon dat je het over het hoofd hebt gezien
Er hangt volgens mij nu ook een schilderij'tje half acher?
[ Voor 13% gewijzigd door Martinusz op 10-08-2017 15:21 ]
Float like a butterfly, sting like a bee.
Ben niet vaak negatief in dit topic maar wat een bij elkaar geraapt zooitje, met als dieptepunt de voetjes onder de tv en kabelmanagement.Jeroentjuh82 schreef op donderdag 10 augustus 2017 @ 14:54:
https://drive.google.com/...g3nzulNq4lbS1ESzFpMHBNMW8
Wat jullie zien:
LG Smart Tv 109cm
Onkyo receiver
B&S Fronts
Center weet ik zo niet, maar is wel een gebruikte, gekregen van kameraad
Philips Subwoofertje
Omdat ik nog weleens wil wisselen dat ie wel op kastje komt te staan heb ik de voeten eraan gelaten. Je OCD?Terrz schreef op donderdag 10 augustus 2017 @ 15:18:
[...]
Heb je nou de tv met voet opgehangen?
Verder nette setup, alleen Mn OCD wordt wel getriggered door al die kabels.
Ik kan ze niet mooi wegwerken want de vloer is zo afgemaakt dat ik t anders moet gaan lostrekken op 1 of andere manier.
Nee, ik heb de tv gewoon zo gelijk van het kastje gehaald en er zo aan gehangen. Ik wist al dat sommige hier daarop zouden reageren, maar mij boeit het niet als ik er naar kijk. Kan ze dr nog altijd afhalen, maar zie bovenstaande reactie. Ik heb dat kleine schilderijtje daar neergezet voor ik de tv daar weer neerhing dus nu weer weghalen.Martinusz schreef op donderdag 10 augustus 2017 @ 15:20:
[...]
Zeg dan gewoon dat je het over het hoofd hebt gezien![]()
Er hangt volgens mij nu ook een schilderij'tje half acher?
Ook al ga ik het ff uittesten: op hoeveel meter kan ik het beste de afstand instellen vd rears in de Onkyo?staat nu op 1m.
Kabels wegwerken heb ik nog geen oplossing zo voor omdat er laminaat ligt en dat is wel zo goed afgewerkt. Dan wordt het aardig lostrekken vermoed ik.Jinge schreef op donderdag 10 augustus 2017 @ 15:28:
[...]
Ben niet vaak negatief in dit topic maar wat een bij elkaar geraapt zooitje, met als dieptepunt de voetjes onder de tv en kabelmanagement.
Je kan het ook iets subtieler brengen dan op deze manier. Deze toon slaat mijns inziens nergens op.Jinge schreef op donderdag 10 augustus 2017 @ 15:28:
[...]
Ben niet vaak negatief in dit topic maar wat een bij elkaar geraapt zooitje, met als dieptepunt de voetjes onder de tv en kabelmanagement.
Op de afstand hoe veel meter de speakers achter je hangen/staan. De receiver berekent hier namelijk een delay op.Jeroentjuh82 schreef op donderdag 10 augustus 2017 @ 15:28:
[...]
Ook al ga ik het ff uittesten: op hoeveel meter kan ik het beste de afstand instellen vd rears in de Onkyo?staat nu op 1m.
[ Voor 35% gewijzigd door FeaR op 10-08-2017 15:46 ]
Some people just need a high-five.... In the face.... With a chair.
Wat je heel goedkoop kan doen is bijvoorbeeld de stekkerdozen (en eventueel de router) achterop je tv meubel plakken met dubbelzijdig tape. Dat scheelt al een berg denk ik. Daarnaast kun je kijken naar plak kabelgoten die je op of boven de plint kan plakken.Jeroentjuh82 schreef op donderdag 10 augustus 2017 @ 15:32:
[...]
Kabels wegwerken heb ik nog geen oplossing zo voor omdat er laminaat ligt en dat is wel zo goed afgewerkt. Dan wordt het aardig lostrekken vermoed ik.
Maar als het je niet stoort zou ik het lekker zo laten. Al waren dit soort reacties natuurlijk wel te verwachten in een topic waar allemaal OCD-ers zitten die het liefst geen enkele kabel/stekker/stekkerdoos etc zien.
Tijdje weer weg geweest maar ik volg het topicnog altijd wel wat. Veel veranderd hier. M'n B&W set helaas weg gedaan twee jaar geleden met als idee er kleinere speakers voor terug te kopen. Echter overleed mijn TV daarna en toen over gegaan op een Bravia 50 inch (KDL-50W805C). Ik heb toen als korte termijn oplossing er maar een soundbar bij gekocht met draadloze sub (HT-CT380) om het gemis van de B&W's wat op te vangen. Deze combi is er nog steeds mede doordat we kort geleden ook een nieuw huis gekocht hebben. De komende tijd moeten er nog wat dingen aangeschaft worden (nieuwe eetkamer stoelen bijvoorbeeld) en dan.......moet er weer een tijd komen dat ik kan sparen voor een nieuwe 5.1 set
Punt is een beetje dat we een erg strakke woonkamer hebben gekregen waar less-is-more een beetje overheerst en ik weet nog niet helemaal hoe ik hier ooit een 5.1 set in kan verwerken zonder afbreuk te doen aan de huidige indeling. TV heb ik neer gehangen waar de vorige bewoner hem ook had en de soundbar er onder (Vogel Thin-345 en Vogel Sound 3450 beugels).
Lijkt wel erg strak maar qua geluid is het niet te vergelijken met m'n B&W set hiervoor. Tijd gaat het leren want het zal vanzelf wel weer eens gaan kriebelen. Kleine sneak hoe het nu is:
*uch....* Photobucket laat het niet meer toe om plaatjes te linken...
Lijkt wel erg strak maar qua geluid is het niet te vergelijken met m'n B&W set hiervoor. Tijd gaat het leren want het zal vanzelf wel weer eens gaan kriebelen. Kleine sneak hoe het nu is:
*uch....* Photobucket laat het niet meer toe om plaatjes te linken...
Zo zoals eerder gezegd even mijn setup neerplempen
Wat je ziet:
Cambridge audio meuk..
651R
650BD
651A
651C
Dacmagic
Speakers..
Boston M350
Boston M250
Boston M Surround aan het plafond
B&W HTM61 (Boston M center niet meer tekoop, al een hele tijd niet meer..)
Beeld..
Panasonic PTAE4000
Ivisions HD series
Apple TV laatste generatie
PS 4
Pics, hoe t was:

En nu:

HT:








Wat er allemaal nog veranderd gaat worden:
Rol spanscherm, UHD beamer (ben ik nu voor aan het sparen), kastenwand zelfbouw met Dominica oplossing. Deels al gerealiseerd, met stem besturen.. "Hee siri bioscoop stand" en dan transfomeert het huis automatisch naar biosstand.. Gaan de gordijnen automatisch dicht, lichten dempen naar gewenste stand en komt het scherm naar beneden etc etc
Aoustiek oplissingen, defusers, kleed, het kinkt nog een beetje hol, maar prima te doen nu! [
Wat je ziet:
Cambridge audio meuk..
651R
650BD
651A
651C
Dacmagic
Speakers..
Boston M350
Boston M250
Boston M Surround aan het plafond
B&W HTM61 (Boston M center niet meer tekoop, al een hele tijd niet meer..)
Beeld..
Panasonic PTAE4000
Ivisions HD series
Apple TV laatste generatie
PS 4
Pics, hoe t was:

En nu:

HT:








Wat er allemaal nog veranderd gaat worden:
Rol spanscherm, UHD beamer (ben ik nu voor aan het sparen), kastenwand zelfbouw met Dominica oplossing. Deels al gerealiseerd, met stem besturen.. "Hee siri bioscoop stand" en dan transfomeert het huis automatisch naar biosstand.. Gaan de gordijnen automatisch dicht, lichten dempen naar gewenste stand en komt het scherm naar beneden etc etc
Aoustiek oplissingen, defusers, kleed, het kinkt nog een beetje hol, maar prima te doen nu! [
[ Voor 24% gewijzigd door Audione0 op 10-08-2017 17:33 ]
Ryzen 9 7950x3d / Asus Strixx x670E-E / Noctua NH-DH15 / 64GB Corsair Dominator 6000 / Crucial M500 – Samsung 990pro / MSI RTX 4070TI Super Gaming X Slim / Corsair RM1000x / Alles in een Fractal Define 7 Black gepropt
sounds nice ,maar kan fotos niet zien ,,,,Audione0 schreef op donderdag 10 augustus 2017 @ 17:13:
Zo zoals eerder gezegd even mijn setup neerplempen
Wat je ziet:
Cambridge audio meuk..
651R
650BD
651A
651C
Dacmagic
Speakers..
Boston M350
Boston M250
Boston M Surround aan het plafond
B&W HTM61 (Boston M center niet meer tekoop, al een hele tijd niet meer..)
Beeld..
Panasonic PTAE4000
Ivisions HD series
Apple TV laatste generatie
PS 4
Pics, hoe t was:
[afbeelding]
En nu:
[afbeelding]
HT:
[afbeelding]
[afbeelding]
[afbeelding]
[afbeelding]
[afbeelding]
[afbeelding]
[afbeelding]
[afbeelding]
[afbeelding]
[afbeelding]
[afbeelding]
Wat er allemaal nog veranderd gaat worden:
Rol spanscherm, UHD beamer (ben ik nu voor aan het sparen), kastenwand zelfbouw met Dominica oplossing. Deels al gerealiseerd, met stem besturen.. "Hee siri bioscoop stand" en dan transfomeert het huis automatisch naar biosstand.. Gaan de gordijnen automatisch dicht, lichten dempen naar gewenste stand en komt het scherm naar beneden etc etc
Aoustiek oplissingen, defusers, kleed, het kinkt nog een beetje hol, maar prima te doen nu!
thanks!haaymaan schreef op donderdag 10 augustus 2017 @ 17:20:
[...]
sounds nice ,maar kan fotos niet zien ,,,,
Als het goed is nu wel
Ryzen 9 7950x3d / Asus Strixx x670E-E / Noctua NH-DH15 / 64GB Corsair Dominator 6000 / Crucial M500 – Samsung 990pro / MSI RTX 4070TI Super Gaming X Slim / Corsair RM1000x / Alles in een Fractal Define 7 Black gepropt
Kruipt je Bluray speler altijd vanzelf onder de versterker en er weer bovenop? 
Ziet er erg goed uit. Welke beugels zijn dat voor je rears? Ik moet ook zoiets hebben voor mijn toekomstige Atmos speakers
Ziet er erg goed uit. Welke beugels zijn dat voor je rears? Ik moet ook zoiets hebben voor mijn toekomstige Atmos speakers
@Mikayu Scherp! 
@peteraudi In een less-is-more-inrichting zou je bijv. 5.1 speakers zoals deze kunnen overwegen: https://www.focal.com/en/...ck-51-5-dome-flax-sub-air. Net iets groter dan de kleinste melkpakjes, maar wel esthetisch verantwoord. (Smaak bepaald natuurlijk.)
@peteraudi In een less-is-more-inrichting zou je bijv. 5.1 speakers zoals deze kunnen overwegen: https://www.focal.com/en/...ck-51-5-dome-flax-sub-air. Net iets groter dan de kleinste melkpakjes, maar wel esthetisch verantwoord. (Smaak bepaald natuurlijk.)
Your Friendly Neighborhood Moderator
Zo te zien heeft hij aparte setups voor video en audio.Mikayu schreef op donderdag 10 augustus 2017 @ 17:47:
Kruipt je Bluray speler altijd vanzelf onder de versterker en er weer bovenop?
Inclusief kattenluik in de muur(!) achter de sub.SD5k schreef op donderdag 10 augustus 2017 @ 20:29:
[...]
Zo te zien heeft hij aparte setups voor video en audio.
Bedankt voor de tip! Speakers zijn gewoon niet altijd mooi maar als het klein moet dan vind ik dit ontwerp helemaal niet zo gek. Zag hier laatst ook nog iemand posten die witte speakers had in een fraaie woonkamer (met een houten vloer) en een glazen wand rechts van de tv. Die waren wel iets groter dan wat jij nu post maar dat zou nog kunnen.Jorgen schreef op donderdag 10 augustus 2017 @ 18:17:
@Mikayu Scherp!
@peteraudi In een less-is-more-inrichting zou je bijv. 5.1 speakers zoals deze kunnen overwegen: https://www.focal.com/en/...ck-51-5-dome-flax-sub-air. Net iets groter dan de kleinste melkpakjes, maar wel esthetisch verantwoord. (Smaak bepaald natuurlijk.)
Heb nog een foto gemaakt van hoe het nu is. Wil je echt een mooie setup dan moet de achterste bank eruit en daar dan een setup plaatsen. Er staan nu twee bankstellen, de rechter is voor tv kijken. De tv staat nu gedraaid naar de keuken/eettafel en kan dan omgedraaid worden. We vinden het eigenlijk wel fijn zo, de andere bank is om even lekker afgeschermd een boek of krant te lezen. Wat vinden jullie er van?

Het valt me nu op dat de speaker niet helemaal strak tegen de TV zit. Zal dit vanavond nog even verstellen. Had dat gedaan om nog bij het knopje te kunnen maar in principe gaat de speaker altijd aan via de AB van de TV dus nog bij het knopje kunnen is eigenlijk niet nodig.
[ Voor 9% gewijzigd door DypFrys op 11-08-2017 09:55 ]
@peteraudi
Wat een smaakvol interieur! Erg mooi. Eigenlijk ben ik nu wel benieuwd naar de rest.. zou je nog meer foto's van je interieur willen uploaden?
Wat een smaakvol interieur! Erg mooi. Eigenlijk ben ik nu wel benieuwd naar de rest.. zou je nog meer foto's van je interieur willen uploaden?
Jemig, daar is flink wat gebeurd! Wel gaaf om een soort mini bioscoop in je woonkamer te hebben.Audione0 schreef op donderdag 10 augustus 2017 @ 17:13:
Zo zoals eerder gezegd even mijn setup neerplempen
Wat je ziet:
Cambridge audio meuk..
651R
650BD
651A
651C
Dacmagic
Speakers..
Boston M350
Boston M250
Boston M Surround aan het plafond
B&W HTM61 (Boston M center niet meer tekoop, al een hele tijd niet meer..)
Beeld..
Panasonic PTAE4000
Ivisions HD series
Apple TV laatste generatie
PS 4
Wat er allemaal nog veranderd gaat worden:
Rol spanscherm, UHD beamer (ben ik nu voor aan het sparen), kastenwand zelfbouw met Dominica oplossing. Deels al gerealiseerd, met stem besturen.. "Hee siri bioscoop stand" en dan transfomeert het huis automatisch naar biosstand.. Gaan de gordijnen automatisch dicht, lichten dempen naar gewenste stand en komt het scherm naar beneden etc etc
Aoustiek oplissingen, defusers, kleed, het kinkt nog een beetje hol, maar prima te doen nu! [
Begrijp ik nu goed dat je tv kijkt vanuit de taupe bank waarbij je over een gedeelte van de bank heen moet kijken? Of draait de tv helemaal de hoek om?peteraudi schreef op vrijdag 11 augustus 2017 @ 09:51:
[...]
Bedankt voor de tip! Speakers zijn gewoon niet altijd mooi maar als het klein moet dan vind ik dit ontwerp helemaal niet zo gek. Zag hier laatst ook nog iemand posten die witte speakers had in een fraaie woonkamer (met een houten vloer) en een glazen wand rechts van de tv. Die waren wel iets groter dan wat jij nu post maar dat zou nog kunnen.
Heb nog een foto gemaakt van hoe het nu is. Wil je echt een mooie setup dan moet de achterste bank eruit en daar dan een setup plaatsen. Er staan nu twee bankstellen, de rechter is voor tv kijken. De tv staat nu gedraaid naar de keuken/eettafel en kan dan omgedraaid worden. We vinden het eigenlijk wel fijn zo, de andere bank is om even lekker afgeschermd een boek of krant te lezen. Wat vinden jullie er van?
[afbeelding]
Het valt me nu op dat de speaker niet helemaal strak tegen de TV zit. Zal dit vanavond nog even verstellen. Had dat gedaan om nog bij het knopje te kunnen maar in principe gaat de speaker altijd aan via de AB van de TV dus nog bij het knopje kunnen is eigenlijk niet nodig.
Float like a butterfly, sting like a bee.
Dankje! We zijn er ook erg blij mee. We wonen er dus nog maar net en gaan nog wat spullen vervangen. De rechter bank zou eerst helemaal niet mee maar nu hij er staat is het eigenlijk wel fijn, de kinderen kunnen op deze bank nog eens wat morsen, op de andere bank is dat verbodenrGz schreef op vrijdag 11 augustus 2017 @ 10:01:
@peteraudi
Wat een smaakvol interieur! Erg mooi. Eigenlijk ben ik nu wel benieuwd naar de rest.. zou je nog meer foto's van je interieur willen uploaden?
Ik heb nog niet heel veel foto's en op de meeste die ik gemaakt heb staan mensen en die zullen het vast niet waarderen als ik ze op tweakers plaats
Misschien geeft dit een beter beeld.Martinusz schreef op vrijdag 11 augustus 2017 @ 10:16:
[...]
Begrijp ik nu goed dat je tv kijkt vanuit de taupe bank waarbij je over een gedeelte van de bank heen moet kijken? Of draait de tv helemaal de hoek om?

De TV draait dan naar die bank toe, je kijkt dus wel een beetje scheef maar dat is niet storend. We zitten beide graag met de beentjes languit en door de L vorm van de bank kun je dan prima kijken.
Ohja, nu zie ik het. Ze lijken niet eens op elkaarSD5k schreef op donderdag 10 augustus 2017 @ 20:29:
[...]
Zo te zien heeft hij aparte setups voor video en audio.
Zo, nu is het toch klaar, de sound update.
Vroegah:

Nu:

En zonder doekjes (maar zitten er eigenlijk toch altijd op voor wat meer rust en minder afleiding
) :

Wat je ziet:
- B&W CM8 S2 White
- NAD C368
- Sonos Connect met netwerk naar de NAS voor muziek, Digital Coax verbonden naar de NAD
- Ziggo box met Digital Optical naar de NAD
- Samsung tv die eind 17 of begin 18 zal worden vervangen door een 55" Qled/Oled
Achter de schermen:
- Sonos Boost
- MiniX voor films vanaf de NAS en Digital Optical verbonden met de NAD
- Synology
- Ru Connected kabels, The Arctic speaker kabel
Vroegah:
Nu:
En zonder doekjes (maar zitten er eigenlijk toch altijd op voor wat meer rust en minder afleiding
Wat je ziet:
- B&W CM8 S2 White
- NAD C368
- Sonos Connect met netwerk naar de NAS voor muziek, Digital Coax verbonden naar de NAD
- Ziggo box met Digital Optical naar de NAD
- Samsung tv die eind 17 of begin 18 zal worden vervangen door een 55" Qled/Oled
Achter de schermen:
- Sonos Boost
- MiniX voor films vanaf de NAS en Digital Optical verbonden met de NAD
- Synology
- Ru Connected kabels, The Arctic speaker kabel
|| Solar 7.4kwp oostwest + 850wp zuid + Deye 12K-SG04LP3-EU + 50kWh LiFePo4 || EHVX08S23EJ9W + ERGA06EAV3H ||
Verwijderd
Misschien de speakers proberen iets meer van het meubel af te zetten en iets proberen in te draaien voor het geluid. Mits je natuurlijk een beetje een vaste plek hebt op de bank.
Vet!Audione0 schreef op donderdag 10 augustus 2017 @ 17:13:
Zo zoals eerder gezegd even mijn setup neerplempen
Wat je ziet:
Cambridge audio meuk..
651R
650BD
651A
651C
Dacmagic
Speakers..
Boston M350
Boston M250
Boston M Surround aan het plafond
B&W HTM61 (Boston M center niet meer tekoop, al een hele tijd niet meer..)
Beeld..
Panasonic PTAE4000
Ivisions HD series
Apple TV laatste generatie
PS 4
Pics, hoe t was:
[afbeelding]
En nu:
[afbeelding]
HT:
[afbeelding]
[afbeelding]
[afbeelding]
[afbeelding]
[afbeelding]
[afbeelding]
[afbeelding]
[afbeelding]
Wat er allemaal nog veranderd gaat worden:
Rol spanscherm, UHD beamer (ben ik nu voor aan het sparen), kastenwand zelfbouw met Dominica oplossing. Deels al gerealiseerd, met stem besturen.. "Hee siri bioscoop stand" en dan transfomeert het huis automatisch naar biosstand.. Gaan de gordijnen automatisch dicht, lichten dempen naar gewenste stand en komt het scherm naar beneden etc etc
Aoustiek oplissingen, defusers, kleed, het kinkt nog een beetje hol, maar prima te doen nu! [
Heel mooi! Prachtige speakersPCJR schreef op zaterdag 12 augustus 2017 @ 15:24:
Zo, nu is het toch klaar, de sound update.
Vroegah:
[afbeelding]
Nu:
[afbeelding]
En zonder doekjes (maar zitten er eigenlijk toch altijd op voor wat meer rust en minder afleiding) :
[afbeelding]
Wat je ziet:
- B&W CM8 S2 White
- NAD C368
- Sonos Connect met netwerk naar de NAS voor muziek, Digital Coax verbonden naar de NAD
- Ziggo box met Digital Optical naar de NAD
- Samsung tv die eind 17 of begin 18 zal worden vervangen door een 55" Qled/Oled
Achter de schermen:
- Sonos Boost
- MiniX voor films vanaf de NAS en Digital Optical verbonden met de NAD
- Synology
- Ru Connected kabels, The Arctic speaker kabel
Persoonlijk zie ik zelf graag altijd zwevende meubels, dat past hier heel mooi bij. en ook een witte of zwarte muebel, dat donkere hout kleur is jammer, past niet bij vloer en ook niet bij muur
Idd, zeer mooi interieur!peteraudi schreef op vrijdag 11 augustus 2017 @ 09:51:
[...]
Bedankt voor de tip! Speakers zijn gewoon niet altijd mooi maar als het klein moet dan vind ik dit ontwerp helemaal niet zo gek. Zag hier laatst ook nog iemand posten die witte speakers had in een fraaie woonkamer (met een houten vloer) en een glazen wand rechts van de tv. Die waren wel iets groter dan wat jij nu post maar dat zou nog kunnen.
Heb nog een foto gemaakt van hoe het nu is. Wil je echt een mooie setup dan moet de achterste bank eruit en daar dan een setup plaatsen. Er staan nu twee bankstellen, de rechter is voor tv kijken. De tv staat nu gedraaid naar de keuken/eettafel en kan dan omgedraaid worden. We vinden het eigenlijk wel fijn zo, de andere bank is om even lekker afgeschermd een boek of krant te lezen. Wat vinden jullie er van?
[afbeelding]
Het valt me nu op dat de speaker niet helemaal strak tegen de TV zit. Zal dit vanavond nog even verstellen. Had dat gedaan om nog bij het knopje te kunnen maar in principe gaat de speaker altijd aan via de AB van de TV dus nog bij het knopje kunnen is eigenlijk niet nodig.
Allen bedankt voor de complimenten.. Het huis is echter nog redelijk kaal.. gelukkig komt vouwlief (gelukkig na bouw bioscoop erbij gekomen, dus die kan niet meer zeuren om WAF
) de rest van het huis knusser maken..
Katten luikje klopt indd, kattenbak staat in de garage, en scheelt echt een hoop rommel enzo. Tip van een maat.
Audio en video zijn indd apart, maar de stereo versterker en cd speler gaan de verkoop in binnenkort. Ik hoor op de surround versterker geen verschil. Dus overbodig vind ik. Of voor in de slaapkamer, zou ook nog kunnen...
https://www.allekabels.nl/searchresult.php?keyword=1155493
Katten luikje klopt indd, kattenbak staat in de garage, en scheelt echt een hoop rommel enzo. Tip van een maat.
Audio en video zijn indd apart, maar de stereo versterker en cd speler gaan de verkoop in binnenkort. Ik hoor op de surround versterker geen verschil. Dus overbodig vind ik. Of voor in de slaapkamer, zou ook nog kunnen...
Zijn deze, zijn er ook in het zwart.. De lengte kan ook aangepast worden en voor t geld een no brainerMikayu schreef op donderdag 10 augustus 2017 @ 17:47:
Welke beugels zijn dat voor je rears? Ik moet ook zoiets hebben voor mijn toekomstige Atmos speakers
https://www.allekabels.nl/searchresult.php?keyword=1155493
[ Voor 30% gewijzigd door Audione0 op 12-08-2017 20:00 ]
Ryzen 9 7950x3d / Asus Strixx x670E-E / Noctua NH-DH15 / 64GB Corsair Dominator 6000 / Crucial M500 – Samsung 990pro / MSI RTX 4070TI Super Gaming X Slim / Corsair RM1000x / Alles in een Fractal Define 7 Black gepropt
Voor in de slaapkamer dus. Omdat het kan 
* The Eagle op de slaapkmer een setje met timer staan, beats any alarm clock radio
* The Eagle op de slaapkmer een setje met timer staan, beats any alarm clock radio
Al is het nieuws nog zo slecht, het wordt leuker als je het op zijn Brabants zegt :)
Ik wil jullie even op de hoogte brengen van de voortgang.
Even een test gedaan met de Io2 aan het plafond. Zonder kap ervoor is de tweeter goed zichtbaar

Met kap ervoor is de Io2 wel erg lastig te zien. Dan maar de flits gebruiken.

En het eindresultaat van de voorbereidingen

Zal de dagen aftellen tot vrijdag, want dan worden ze geïnstalleerd en afgesteld...
Even een test gedaan met de Io2 aan het plafond. Zonder kap ervoor is de tweeter goed zichtbaar

Met kap ervoor is de Io2 wel erg lastig te zien. Dan maar de flits gebruiken.

En het eindresultaat van de voorbereidingen

Zal de dagen aftellen tot vrijdag, want dan worden ze geïnstalleerd en afgesteld...
CA Electronics • CineMike • PS Audio • Denon • Marantz • ALR/Jordan • Cabasse • Velodyne • JVC • Stewart • inakustik • Furutech
Jarenlang heb ik gedroomd van een eigen cinema kamer. Bij mijn ouders thuis ging het niet gebeuren en ook de jaren erna toen ik mijzelf ging wonen was er de ruimte en/of het budget niet.
In 2015 heb ik samen met mijn vrouw een huis gekocht. Achter in de tuin staat een behoorlijke schuur die het formaat van een garage heeft. Afgelopen oktober ben ik dan echt begonnen om van deze ruimte een cinema te maken.

Dat bleek nog een hele klus, vooral omdat ik twee linker handen heb. In je hoofd kun je van alles willen, maar willen de handjes niet meewerken. Het eerste dat me belangrijk leek is om het plafond nog wat beter te isoleren. Ik heb dikke schuimblokken tussen de balken geplaatst. Daarna heb ik een regelwerk geplaatst om later de gipsplaten tegenaan te zetten. Ook heb ik achterin de ruimte een tussenwandje gemaakt om nog wat "rotzooi" kwijt te kunnen.

Nadat het plafond voorzien was met gipsplaten, heb ik dit ook bij de muren gedaan. Dit heeft me veel tijd gekost, omdat mijn onhandigheid mij vaak in de weg zat evenals tijdsgebrek.

Gelukkig kan ik beter overweg met een verfkwast en roller. Hierdoor kon al gauw het eerste laagje blauw op de muur. Van iedereen kreeg ik al snel te horen "Jeetje... dat is wel heeeeel blauw". Exact wat ik wilde
. Met een bijnaam als The Marine, moet het ook behoorlijk blauw worden.

Het leggen van de vloerbedekking heb ik wel laten doen, want dit leek me echt te lastig. Nadat alles geverfd was en de vloerbedekking ook lag was het tijd om het scherm te maken.
Uiteindelijk was het tijd om alles te gaan aansluiten en te gaan afstellen en natuurlijk om te gaan genieten. Na de foto's heb ik de ramen nog voorzien van limousine folie waardoor ik eigenlijk geen last meer heb van binnenvallend licht.






Er blijft altijd wat te wensen over en 'The Marine' is niet perfect... maar hij is wel van mijzelf.
Wat staat er allemaal?
- Scherm: 120 inch DIY scherm
- Beamer: Benq W1070+
- Versterker: Denon AVR X2000
- Mediaspeler: HTPC met Celeronnetje G1610 6TB HDD, Kodi etc.
- Blu-Ray: Sony BDP-S350
- Fronts: Mission 733
- Center: Mission M7C1i
- Surrounds M+A: Mission 760
- Subwoofer:Mordaunt Short MS308
Wellicht een de toekomst een ander scherm en een andere sub, maar voor het overgrote deel ben ik hier heel erg tevreden mee en dat is wat telt natuurlijk. Vooral omdat ik nog andere dure hobby's heb zoals reizen
.
Vanavond maar weer een filmpje pakken
In 2015 heb ik samen met mijn vrouw een huis gekocht. Achter in de tuin staat een behoorlijke schuur die het formaat van een garage heeft. Afgelopen oktober ben ik dan echt begonnen om van deze ruimte een cinema te maken.
Dat bleek nog een hele klus, vooral omdat ik twee linker handen heb. In je hoofd kun je van alles willen, maar willen de handjes niet meewerken. Het eerste dat me belangrijk leek is om het plafond nog wat beter te isoleren. Ik heb dikke schuimblokken tussen de balken geplaatst. Daarna heb ik een regelwerk geplaatst om later de gipsplaten tegenaan te zetten. Ook heb ik achterin de ruimte een tussenwandje gemaakt om nog wat "rotzooi" kwijt te kunnen.
Nadat het plafond voorzien was met gipsplaten, heb ik dit ook bij de muren gedaan. Dit heeft me veel tijd gekost, omdat mijn onhandigheid mij vaak in de weg zat evenals tijdsgebrek.
Gelukkig kan ik beter overweg met een verfkwast en roller. Hierdoor kon al gauw het eerste laagje blauw op de muur. Van iedereen kreeg ik al snel te horen "Jeetje... dat is wel heeeeel blauw". Exact wat ik wilde
Het leggen van de vloerbedekking heb ik wel laten doen, want dit leek me echt te lastig. Nadat alles geverfd was en de vloerbedekking ook lag was het tijd om het scherm te maken.
Uiteindelijk was het tijd om alles te gaan aansluiten en te gaan afstellen en natuurlijk om te gaan genieten. Na de foto's heb ik de ramen nog voorzien van limousine folie waardoor ik eigenlijk geen last meer heb van binnenvallend licht.
Er blijft altijd wat te wensen over en 'The Marine' is niet perfect... maar hij is wel van mijzelf.
Wat staat er allemaal?
- Scherm: 120 inch DIY scherm
- Beamer: Benq W1070+
- Versterker: Denon AVR X2000
- Mediaspeler: HTPC met Celeronnetje G1610 6TB HDD, Kodi etc.
- Blu-Ray: Sony BDP-S350
- Fronts: Mission 733
- Center: Mission M7C1i
- Surrounds M+A: Mission 760
- Subwoofer:Mordaunt Short MS308
Wellicht een de toekomst een ander scherm en een andere sub, maar voor het overgrote deel ben ik hier heel erg tevreden mee en dat is wat telt natuurlijk. Vooral omdat ik nog andere dure hobby's heb zoals reizen
Vanavond maar weer een filmpje pakken
Ik zou die speakers aan de zijkant naar beneden laten richten. Nu weerkaatst het tegen de andere muur.
Gasloos huis 9kW Panasonic WH-MDC09J3E5 | Atlantic Explorer V4 270L | 8715Wp @ SMA Tripower 6.0-3AV-40 (4150Wp NO, 4565Wp ZW)
Helaas is daar aan de kant van de ramen niet de ruimte voor. Aan de andere kant heb ik ze met dezelfde beugels bevestigd. Vind het best zotimovd schreef op maandag 14 augustus 2017 @ 15:14:
Ik zou die speakers aan de zijkant naar beneden laten richten. Nu weerkaatst het tegen de andere muur.
[ Voor 14% gewijzigd door Steefmeister op 14-08-2017 16:21 ]
Hij bedoelt ook niet de speakers lager hangen, maar naar beneden kantelen / draaien / richten, hoe je het wilt noemenSteefmeister schreef op maandag 14 augustus 2017 @ 16:16:
[...]
Helaas is daar aan de kant van de ramen niet de ruimte voor. Aan de andere kant heb ik ze met dezelfde beugels bevestigd. Vind het best zo. De ruimte wordt soms ook gebruikt om eens een feestje te houden. Nu hangen ze hoog genoeg om je hoofd niet te stoten
Verder, leuk gedaan hoor! En alles wat je zelf maakt beleef je veel meer plezier aan. Viel me wel op dat de rolgordijnen 'verkeerd om' hangen, dus met de rol aan de binnenkant. Hierdoor ontstaat een kier tussen het rolgordijn en het raam en je dus licht naar binnen krijgt. Had weer folie plakken gescheeld
Nice!! Vraagje; hoe heb je het scherm gedo-it yourselfd?Steefmeister schreef op maandag 14 augustus 2017 @ 13:01:
Jarenlang heb ik gedroomd van ..... ... met mijn vrouw ... ...Dat bleek nog een hele klus, vooral omdat ik ... balken .... "rotzooi" ........ .. Exact wat ik wilde .... genieten....dure hobby's ... pakken
Kantelen gaat niet daar is ook bij het raam de ruimte niet voor helaas. Voor wat betreft de rolgordijnen: deze staat gek genoeg wel juist gemonteerd. De andere zijde heeft namelijk een reflecterende laag (zilver) dat voor meer koelte zou moeten zorgen. Had ze ook idd liever naar de binnenzijde gehad, maar dit werkt ookBloederig schreef op maandag 14 augustus 2017 @ 17:39:
[...]
Hij bedoelt ook niet de speakers lager hangen, maar naar beneden kantelen / draaien / richten, hoe je het wilt noemen.
Verder, leuk gedaan hoor! En alles wat je zelf maakt beleef je veel meer plezier aan. Viel me wel op dat de rolgordijnen 'verkeerd om' hangen, dus met de rol aan de binnenkant. Hierdoor ontstaat een kier tussen het rolgordijn en het raam en je dus licht naar binnen krijgt. Had weer folie plakken gescheeld
Ik denk dat je het rolgordijn helemaal ten einde laat lopen als je ze naar beneden doet je ze langs de andere kant terug omhoog kan laten gaan.
Koop simpele speaker foam pads om de speakers iets naar beneden te richten.
En inderdaad even de rolgordijnen helemaal uitrollen en doorrollen totdat ze weer opgerold zijn.
En inderdaad even de rolgordijnen helemaal uitrollen en doorrollen totdat ze weer opgerold zijn.
Gasloos huis 9kW Panasonic WH-MDC09J3E5 | Atlantic Explorer V4 270L | 8715Wp @ SMA Tripower 6.0-3AV-40 (4150Wp NO, 4565Wp ZW)
Hier een paar plaatjes van hoe het er bij mij uitziet.




Setup:
Samsung 55 Inch F7000
Fronts: Dynaudio Emit M20
Center: Dynaudio Emit M15c
Subwoofer: Dali E-12F
Versterker: Denon X-2000
Gamepc-zelfbouw
In de toekomst:
Tv vervangen voor 4K Oled model




Setup:
Samsung 55 Inch F7000
Fronts: Dynaudio Emit M20
Center: Dynaudio Emit M15c
Subwoofer: Dali E-12F
Versterker: Denon X-2000
Gamepc-zelfbouw
In de toekomst:
Tv vervangen voor 4K Oled model
[ Voor 85% gewijzigd door giedo555 op 17-08-2017 09:52 ]
Wil je het rolgordijn goed hebben dan moet je deze helemaal af rollen en dan gewoon door blijven rollen, op deze manier rolt hij zich op de goede manier opSteefmeister schreef op maandag 14 augustus 2017 @ 19:11:
[...]
Kantelen gaat niet daar is ook bij het raam de ruimte niet voor helaas. Voor wat betreft de rolgordijnen: deze staat gek genoeg wel juist gemonteerd. De andere zijde heeft namelijk een reflecterende laag (zilver) dat voor meer koelte zou moeten zorgen. Had ze ook idd liever naar de binnenzijde gehad, maar dit werkt ook
Ik hoop wel dat je in de toekomst geen vocht problemen gaat krijgen. Zo te zien heb je geen dampremmende en of doorlatende folie in je wanden / plafond zitten.Steefmeister schreef op maandag 14 augustus 2017 @ 13:01:
Jarenlang heb ik gedroomd van een eigen cinema kamer. Bij mijn ouders thuis ging het niet gebeuren en ook de jaren erna toen ik mijzelf ging wonen was er de ruimte en/of het budget niet.
[afbeelding]
Dat bleek nog een hele klus, vooral omdat ik twee linker handen heb. In je hoofd kun je van alles willen, maar willen de handjes niet meewerken. Het eerste dat me belangrijk leek is om het plafond nog wat beter te isoleren. Ik heb dikke schuimblokken tussen de balken geplaatst. Daarna heb ik een regelwerk geplaatst om later de gipsplaten tegenaan te zetten. Ook heb ik achterin de ruimte een tussenwandje gemaakt om nog wat "rotzooi" kwijt te kunnen.
[afbeelding]
Nadat het plafond voorzien was met gipsplaten, heb ik dit ook bij de muren gedaan. Dit heeft me veel tijd gekost, omdat mijn onhandigheid mij vaak in de weg zat evenals tijdsgebrek.
Is de ruimte geventileerd ?
Wel heel gaaf om te zien en erg netjes afgewerkt.
Morgen is een spannende dag, want dan gaan de Cabasse Io2's aan het plafond en als het goed is komt er ook nog geluid uit.
Ik heb blijkbaar al een aantal Blu-rays met Dolby Atmos, dus we kunnen meteen genieten. Ik krijg hulp van de dealer en die heeft bovendien nog een aantal Auro-3D schijven.
Ik heb er veel zin in...
Ik heb er veel zin in...
CA Electronics • CineMike • PS Audio • Denon • Marantz • ALR/Jordan • Cabasse • Velodyne • JVC • Stewart • inakustik • Furutech
Wrijf het er even in jeHTip schreef op donderdag 17 augustus 2017 @ 20:24:
Morgen is een spannende dag, want dan gaan de Cabasse Io2's aan het plafond en als het goed is komt er ook nog geluid uit.Ik heb blijkbaar al een aantal Blu-rays met Dolby Atmos, dus we kunnen meteen genieten. Ik krijg hulp van de dealer en die heeft bovendien nog een aantal Auro-3D schijven.
Ik heb er veel zin in...
Panasonic 55FZ804 | Marantz Cinema 30 | nvidia shield | Panasonic dp-ub424 | 2x Klipsch RF82 | 4x RP-140SA | 2x RB61 | 2xRB51 | RC52 Mk2 | SVS PB-1000 |
Ik wil het best voor me houden hoor. Zeg het maar
CA Electronics • CineMike • PS Audio • Denon • Marantz • ALR/Jordan • Cabasse • Velodyne • JVC • Stewart • inakustik • Furutech
Wat kosten de premiere tickertsHTip schreef op donderdag 17 augustus 2017 @ 23:07:
[...]
Ik wil het best voor me houden hoor. Zeg het maar
Hahahaha
Als alles goed gaat komt er vandaag geluid uit de manen van Jupiter. Er is voldoende materiaal om de 3 geluidsformaten te testen. Hopelijk gaat de installatie voorspoedig en kunnen we snel gaan genieten. In dat licht zou je kunnen zeggen dat vandaag de premiére is. Helaas is die besloten
CA Electronics • CineMike • PS Audio • Denon • Marantz • ALR/Jordan • Cabasse • Velodyne • JVC • Stewart • inakustik • Furutech
Werkt dat, je sub in je tv meubel? Lijkt me niet ideaal, gaat je meubel niet meeresoneren? Ziet er netjes uit verdergiedo555 schreef op woensdag 16 augustus 2017 @ 13:59:
Hier een paar plaatjes van hoe het er bij mij uitziet.
[afbeelding]
[afbeelding]
[afbeelding]
[afbeelding]
Setup:
Samsung 55 Inch F7000
Fronts: Dynaudio Emit M20
Center: Dynaudio Emit M15c
Subwoofer: Dali E-12F
Versterker: Denon X-2000
Gamepc-zelfbouw
In de toekomst:
Tv vervangen voor 4K Oled model
Als ik het goed bekijk zit er in dat kastje geen bodem. Dus de sub lijkt op de grond te staan, dat scheelt al een hoop denk ikBartske schreef op vrijdag 18 augustus 2017 @ 12:13:
[...]
Werkt dat, je sub in je tv meubel? Lijkt me niet ideaal, gaat je meubel niet meeresoneren? Ziet er netjes uit verder
What seems to be the officer, problem?
@giedo555
Vraagje met je setup. Hoe stuur je de TV en apparaten aan? Heb je een IR repeater in de kast?
Vraagje met je setup. Hoe stuur je de TV en apparaten aan? Heb je een IR repeater in de kast?
Het is niet goed te zien maar het lijkt er op dat hij er wit speakerdoek op heeft zitten, dus dan zou een IR extender niet nodig zijn.Witte8 schreef op vrijdag 18 augustus 2017 @ 13:14:
@giedo555
Vraagje met je setup. Hoe stuur je de TV en apparaten aan? Heb je een IR repeater in de kast?
Zie het laatste plaatje, volgens mij zie ik nietjes zitten :-)
[ Voor 8% gewijzigd door Equazor_ op 18-08-2017 14:06 ]
In de kast waar de sub staat heb ik boven en onder een gat gemaakt dus hij staat los van de kast. Wel dempers eronder voor de buren.
De kastdeurtjes heb ik uitgezaagd en speakerdoek voor gespannen. Ir receiver niet nodig, het werkt perfect
De kastdeurtjes heb ik uitgezaagd en speakerdoek voor gespannen. Ir receiver niet nodig, het werkt perfect
Verwijderd


mijn (Man cave)
Versterker : Marantz M-CR511
Speakers : Teufel Ultima 20
Versterker : Pioneer SA-330
CD speler : Sony CDP-XE220
Platenspeler : Marantz TT5005
Speakers : B&W DM4
Speakers : B&W DM310
Hoofdtelefoon : P5 met draad
Hoofdtelefoon : P5 zonder draad
De combinatie DM4 en DM310 stereo werk beter als verwacht zo als ze nu staan
[ Voor 4% gewijzigd door Verwijderd op 18-08-2017 19:00 ]
Niet zo mooi, uitgebreid of fantastisch als de meeste hier, maar ben er wel blij mee:

Wat je ziet:
LG 49UB850V Zwart
Bose Soundtouch 300 Soundbar
Sony PlayStation 4 500GB Zwart
Logitech Harmony Hub
Wat je ziet maar wat weg gaat (vervangen door Bose Soundtouch):
Philips HTB3510
Wat er wel is maar je niet ziet:
Logitech Harmony Touch
Lenovo ThinkPad T430 (N1XH2MH) (gebruik ik al HTPC)
Zelfbouw NAS waar allerlei films en series opstaan
Philips SHD8600UG (Zwart)
Nu dus van een 5.1 oplossing naar enkel een soundbar. Maar wat een geluid komt er uit dat ding, ongelofelijk zeg. In de winkel dacht ik dat er ook andere boxen aangesloten waren. Nu thuis kan ik soms ook niet geloven dat al dat geluid uit één zo'n soundbar komt
Wel geinig, je kunt een of ander apparaat op je hoofd zetten en dan op de 5 plekken gaan zitten waar je het meest luistert, de soundbar maakt dan allemaal vage geluiden (soort vleermuisachtig radar geluid of zo) en dan wordt hij dus gekalibreerd op de akoestiek van de kamer waar hij in staat. Dit heb ik trouwens met Sonos ook gedaan, maar dan doet hij het met de microfoon van je telefoon (Trueplay heet dat daar geloof ik).
Zelf nog even getwijfeld tussen Heos, Sonos en deze, maar Heos vind ik gewoonweg extreem lelijk, de Sonos Playbar vond ik ook niet echt mooi en het geluid was echt een stuk minder. Aan de ene kant onhandig, aangezien ik al het e.e.a. van Sonos in huis heb, en nu dus een losse app heb om muziek af te spelen voor de Bose Soundtouch, maar die zal toch voornamelijk voor films en series gebruikt worden.
Ik ga trouwens over niet al te lange tijd verhuizen en dan komt er sowieso een ander tv meubel dan dit lelijke ding, maar daar wacht ik mee tot ik verhuisd ben

Wat je ziet:
LG 49UB850V Zwart
Bose Soundtouch 300 Soundbar
Sony PlayStation 4 500GB Zwart
Logitech Harmony Hub
Wat je ziet maar wat weg gaat (vervangen door Bose Soundtouch):
Philips HTB3510
Wat er wel is maar je niet ziet:
Logitech Harmony Touch
Lenovo ThinkPad T430 (N1XH2MH) (gebruik ik al HTPC)
Zelfbouw NAS waar allerlei films en series opstaan
Philips SHD8600UG (Zwart)
Nu dus van een 5.1 oplossing naar enkel een soundbar. Maar wat een geluid komt er uit dat ding, ongelofelijk zeg. In de winkel dacht ik dat er ook andere boxen aangesloten waren. Nu thuis kan ik soms ook niet geloven dat al dat geluid uit één zo'n soundbar komt
Wel geinig, je kunt een of ander apparaat op je hoofd zetten en dan op de 5 plekken gaan zitten waar je het meest luistert, de soundbar maakt dan allemaal vage geluiden (soort vleermuisachtig radar geluid of zo) en dan wordt hij dus gekalibreerd op de akoestiek van de kamer waar hij in staat. Dit heb ik trouwens met Sonos ook gedaan, maar dan doet hij het met de microfoon van je telefoon (Trueplay heet dat daar geloof ik).
Zelf nog even getwijfeld tussen Heos, Sonos en deze, maar Heos vind ik gewoonweg extreem lelijk, de Sonos Playbar vond ik ook niet echt mooi en het geluid was echt een stuk minder. Aan de ene kant onhandig, aangezien ik al het e.e.a. van Sonos in huis heb, en nu dus een losse app heb om muziek af te spelen voor de Bose Soundtouch, maar die zal toch voornamelijk voor films en series gebruikt worden.
Ik ga trouwens over niet al te lange tijd verhuizen en dan komt er sowieso een ander tv meubel dan dit lelijke ding, maar daar wacht ik mee tot ik verhuisd ben
[ Voor 3% gewijzigd door miicker op 18-08-2017 17:59 ]
I haven’t slept for three days, because that would be too long.
Misschien niet.... Maar wel beter dan 99% van de bevolkingmiicker schreef op vrijdag 18 augustus 2017 @ 17:58:
Niet zo mooi, uitgebreid of fantastisch als de meeste hier, maar ben er wel blij mee:
[afbeelding]
Als je eenmaal gewend bent aan wat voor externe speakers dan ook... Kan je stapel idioot worden van het geluid dat uit de tv zelf komt
De woonkamer zoals die voorlopig blijft. In het najaar een ander tv meubel. (Besta waarschijnlijk)



Wat is er te zien;
Tv: Sony Bravia KD-49X8505
Recieven: Marantz 1506
Satelliet decoder: Xtrend ET8000
Platenspeler: Dual CS505-2
Phono versterker: Cambridge CP1 (net nieuw
)
Luidsprekers: 2x Qacoustics 3050 zuilen en 3090C centerspeaker (2x 3020 surroundspeakers niet zichtbaar)
Subwoofer: XTZ 12.17
Verder aankleding zoals vosje, flamingo lamp (heerlijk fout
), plantje enzovoorts.
In de afgelopen jaren bij elkaar gespaard. Eerst tv en satelliet decoder, toen speakers en reciever. Vervolgens subwoofer, daarna platenspeler en als laatste de phono versterker dus.
In de toekomst de tv een keer vervangen voor een OLED model. Dan kan deze naar de slaapkamer



Wat is er te zien;
Tv: Sony Bravia KD-49X8505
Recieven: Marantz 1506
Satelliet decoder: Xtrend ET8000
Platenspeler: Dual CS505-2
Phono versterker: Cambridge CP1 (net nieuw
Luidsprekers: 2x Qacoustics 3050 zuilen en 3090C centerspeaker (2x 3020 surroundspeakers niet zichtbaar)
Subwoofer: XTZ 12.17
Verder aankleding zoals vosje, flamingo lamp (heerlijk fout
In de afgelopen jaren bij elkaar gespaard. Eerst tv en satelliet decoder, toen speakers en reciever. Vervolgens subwoofer, daarna platenspeler en als laatste de phono versterker dus.
In de toekomst de tv een keer vervangen voor een OLED model. Dan kan deze naar de slaapkamer
MacBook Air 13.6” M4 16 Gb Sky Blue iPad Pro 12.9” M1 iPhone Air Cloud White Apple Watch Ultra 2 Black Apple TV 4K HDR & 4K & HD HomePods & HomePods Mini’s AirPods Max & Pro MagSafe HomeKit CarPlay
Verwijderd
ziet er zeer strak uit en de platenspeler maakt het afTheKerremenke schreef op vrijdag 18 augustus 2017 @ 18:33:
De woonkamer zoals die voorlopig blijft. In het najaar een ander tv meubel. (Besta waarschijnlijk)
[afbeelding]
[afbeelding]
[afbeelding]
Wat is er te zien;
Tv: Sony Bravia KD-49X8505
Recieven: Marantz 1506
Satelliet decoder: Xtrend ET8000
Platenspeler: Dual CS505-2
Phono versterker: Cambridge CP1 (net nieuw)
Luidsprekers: 2x Qacoustics 3050 zuilen en 3090C centerspeaker (2x 3020 surroundspeakers niet zichtbaar)
Subwoofer: XTZ 12.17
Verder aankleding zoals vosje, flamingo lamp (heerlijk fout), plantje enzovoorts.
In de afgelopen jaren bij elkaar gespaard. Eerst tv en satelliet decoder, toen speakers en reciever. Vervolgens subwoofer, daarna platenspeler en als laatste de phono versterker dus.
In de toekomst de tv een keer vervangen voor een OLED model. Dan kan deze naar de slaapkamer
Danke. Mijn vriendin is ook blij met de lichte kleur van de speakers. Zijn ze minder aanwezig door.
Van de platenspeler zal ik binnenkort de kap eens polijsten. Zitten wat krassen op, waar ik me aan begin te irriteren.
Van de platenspeler zal ik binnenkort de kap eens polijsten. Zitten wat krassen op, waar ik me aan begin te irriteren.
MacBook Air 13.6” M4 16 Gb Sky Blue iPad Pro 12.9” M1 iPhone Air Cloud White Apple Watch Ultra 2 Black Apple TV 4K HDR & 4K & HD HomePods & HomePods Mini’s AirPods Max & Pro MagSafe HomeKit CarPlay
Paar foto's van mijn project !






Na 2 jaar verbouwen ziet het er nu zo uit !
Ik mag hier graag een filmpje kijken of muziek luisteren.
Wat je ziet :
Sony KDL65W955 tv
Yamaha Aventage RX-A850 av
Yamaha BD-S673 blu-ray
Yamaha NS-C445 centerspeaker
Yamaha NS-F700 fronts
B&W 685 S2 rears
Yamaha NS-SW300 sub
iptv kastje van xs4all
Samsung View 18.4 tab
Achter de schermen :
Fritzbox 7490 glas 500/500
PS4
Mycloud NAS
Het kabelwerk word verzorgt door oehlbach en audioquest.






Na 2 jaar verbouwen ziet het er nu zo uit !
Ik mag hier graag een filmpje kijken of muziek luisteren.
Wat je ziet :
Sony KDL65W955 tv
Yamaha Aventage RX-A850 av
Yamaha BD-S673 blu-ray
Yamaha NS-C445 centerspeaker
Yamaha NS-F700 fronts
B&W 685 S2 rears
Yamaha NS-SW300 sub
iptv kastje van xs4all
Samsung View 18.4 tab
Achter de schermen :
Fritzbox 7490 glas 500/500
PS4
Mycloud NAS
Het kabelwerk word verzorgt door oehlbach en audioquest.
Ik wist niet dat het IR signaal daar doorheen kon. Is dat 100% werkend? Als ik bij de schrijnwerker een meubel op maat laat maken, wilde ik wel even zeker zijn. Vind meubel met gesloten deurtjes mooier, maar moet mijn apparatuur wel kunnen bedienen zonder enige issue. Vandaar deze vragen.giedo555 schreef op vrijdag 18 augustus 2017 @ 15:27:De kastdeurtjes heb ik uitgezaagd en speakerdoek voor gespannen. Ir receiver niet nodig, het werkt perfect
Bij mij werkt het 100% goed. Heb zelfs het doek 2laags eromheen gespannen. Ik vind het ook wel mooi staan.
Een andere reden waarom ik het heb, is dat het de apparatuur soort van ventilatie geeft
Een andere reden waarom ik het heb, is dat het de apparatuur soort van ventilatie geeft
Leuk om te zien dat jij de XTZ 12.17 ook hebt. Die zie ik niet zo vaak langs komen. Zelf heb ik hem op de gok gekocht omdat er niet zo veel subs in mat wit te koop zijn. Zelf ben ik er erg van onder de indruk. Mijn hele kamer trilt op een fractie van het vermogen. Met muziek doet hij het ook veel beter dan mijn oude Harman Kardon.TheKerremenke schreef op vrijdag 18 augustus 2017 @ 18:33:
Tv: Sony Bravia KD-49X8505
Recieven: Marantz 1506
Satelliet decoder: Xtrend ET8000
Platenspeler: Dual CS505-2
Phono versterker: Cambridge CP1 (net nieuw)
Luidsprekers: 2x Qacoustics 3050 zuilen en 3090C centerspeaker (2x 3020 surroundspeakers niet zichtbaar)
Subwoofer: XTZ 12.17
Hier heb ik toen dezelfde keuze gemaakt. Puur op basis van enkele reviews (de sub was toen net verkrijgbaar) en de kleur wit.
Heb nog een tijdlang getwijfeld over de Svs sb1000. Maar die was niet met een zwarte speakercover verkrijgbaar. En ik wilde lager Hz krijgen. Wat met een ported beter lukt.
Ben zeer tevreden over de lage tonen die eruit komen.
Heb nog een tijdlang getwijfeld over de Svs sb1000. Maar die was niet met een zwarte speakercover verkrijgbaar. En ik wilde lager Hz krijgen. Wat met een ported beter lukt.
Ben zeer tevreden over de lage tonen die eruit komen.
MacBook Air 13.6” M4 16 Gb Sky Blue iPad Pro 12.9” M1 iPhone Air Cloud White Apple Watch Ultra 2 Black Apple TV 4K HDR & 4K & HD HomePods & HomePods Mini’s AirPods Max & Pro MagSafe HomeKit CarPlay
Mooi! Je speakers (zowel front als rear) lijken wel érg ingedraaid... zou je eens mee moeten spelen!Grandisimo schreef op vrijdag 18 augustus 2017 @ 22:26:
Paar foto's van mijn project !
Na 2 jaar verbouwen ziet het er nu zo uit !
Ik mag hier graag een filmpje kijken of muziek luisteren.
Wat je ziet :
Sony KDL65W955 tv
Yamaha Aventage RX-A850 av
Yamaha BD-S673 blu-ray
Yamaha NS-C445 centerspeaker
Yamaha NS-F700 fronts
B&W 685 S2 rears
Yamaha NS-SW300 sub
iptv kastje van xs4all
Samsung View 18.4 tab
Achter de schermen :
Fritzbox 7490 glas 500/500
PS4
Mycloud NAS
Het kabelwerk word verzorgt door oehlbach en audioquest.
Dank je.Thierr86 schreef op zaterdag 19 augustus 2017 @ 15:39:
[...]
Mooi! Je speakers (zowel front als rear) lijken wel érg ingedraaid... zou je eens mee moeten spelen!
Ik moet inderdaad nog is kritisch gaan kijken naar het indraaien en het afstellen.
Maar het klinkt nu al erg goed.
Mijn IR extender zit ook achter het speakerdoek van mijn centerspeaker. Werkt perfect.Witte8 schreef op vrijdag 18 augustus 2017 @ 22:35:
[...]
Ik wist niet dat het IR signaal daar doorheen kon. Is dat 100% werkend? Als ik bij de schrijnwerker een meubel op maat laat maken, wilde ik wel even zeker zijn. Vind meubel met gesloten deurtjes mooier, maar moet mijn apparatuur wel kunnen bedienen zonder enige issue. Vandaar deze vragen.
Ik heb wel wat koeling voor mijn Denon versterker dmv deze fans https://images-na.ssl-ima...I/61SRbqxfBuL._SX522_.jpg die aan en uit gaan via de Denons 12V trigger output.
Ik heb sinds kort een Spectral Scala hangen, waarvan de klep ook met stof bespannen is. IR gaat daar probleemloos doorheen, want ik heb alles (Spectral BRA2, Ziggo tuner, Sony Blu-ray) in die kast staan en gebruik geen ir extenders oid.
3120WP Solax, 4825WP SolarEdge, Nibe S2125-8 met een VVMS320, 11,52 kWh Zendure 2400AC
Voor de mensen met beamers hier, wat zijn jullie ervaringen met het projecteren op een muur?
Ik wil liever geen scherm neerhangen omdat ik het lelijk vind maar vraag mij af hoe ik het dan oplos.
Werkt een vlakgestucte muur ook goed?
Overigens zou ik alles graag onzichtbaar willen zien wanneer ik het niet gebruik.
Andere vraag is tot welke lengte hdmi 2.0 blijft werken.
Ik wil liever geen scherm neerhangen omdat ik het lelijk vind maar vraag mij af hoe ik het dan oplos.
Werkt een vlakgestucte muur ook goed?
Overigens zou ik alles graag onzichtbaar willen zien wanneer ik het niet gebruik.
Andere vraag is tot welke lengte hdmi 2.0 blijft werken.
[ Voor 22% gewijzigd door icecreamfarmer op 21-08-2017 14:39 ]
ik zie ik zie wat jij niet ziet
Ik kan je bij je eerste vraag niet helpen vrees ik.icecreamfarmer schreef op maandag 21 augustus 2017 @ 14:27:
Voor de mensen met beamers hier, wat zijn jullie ervaringen met het projecteren op een muur?
Ik wil liever geen scherm neerhangen omdat ik het lelijk vind maar vraag mij af hoe ik het dan oplos.
Werkt een vlakgestucte muur ook goed?
Overigens zou ik alles graag onzichtbaar willen zien wanneer ik het niet gebruik.
Andere vraag is tot welke lengte hdmi 2.0 blijft werken.
Ik heb ooit wel een HDMI kabel van 25 meter van mijn PC naar een TV gehad, dit werkte zonder problemen.
Op welke resolutie en wat stuurde je er nog meer overheen? Lengte is één aspect, hoe veel data er verstuurd wordt een tweede.Loei123 schreef op maandag 21 augustus 2017 @ 14:49:
[...]
Ik kan je bij je eerste vraag niet helpen vrees ik.
Ik heb ooit wel een HDMI kabel van 25 meter van mijn PC naar een TV gehad, dit werkte zonder problemen.
Some people just need a high-five.... In the face.... With a chair.
HDMI 2.0? Ga je 4K projecteren? Dat zou ik dat zeker niet op een muur doen; verlies van detail..icecreamfarmer schreef op maandag 21 augustus 2017 @ 14:27:
Voor de mensen met beamers hier, wat zijn jullie ervaringen met het projecteren op een muur?
Ik wil liever geen scherm neerhangen omdat ik het lelijk vind maar vraag mij af hoe ik het dan oplos.
Werkt een vlakgestucte muur ook goed?
Overigens zou ik alles graag onzichtbaar willen zien wanneer ik het niet gebruik.
Andere vraag is tot welke lengte hdmi 2.0 blijft werken.
En een elektrisch projectiescherm? Die kun je wellicht goed wegwerken.
Ik zelf heb draadloos HDMI en dat is geen probleem voor full HD
Ik projecteer zelf op de muur. Eerst renovlies er tegenaan (is er zonder patroon) en daarna grondverf en 3 lagen zeer lichtgrijze verf. Werkt echt super IMHO. Zorg alleen wel dat de verf niet gaat vlekken of dat je er tegenaan slaat met iets (htc vive bijvoorbeeldicecreamfarmer schreef op maandag 21 augustus 2017 @ 14:27:
Voor de mensen met beamers hier, wat zijn jullie ervaringen met het projecteren op een muur?
Ik wil liever geen scherm neerhangen omdat ik het lelijk vind maar vraag mij af hoe ik het dan oplos.
Werkt een vlakgestucte muur ook goed?
Overigens zou ik alles graag onzichtbaar willen zien wanneer ik het niet gebruik.
Andere vraag is tot welke lengte hdmi 2.0 blijft werken.
Waarom zou dat detailverlies geven? Een projectiescherm heeft geen pixels ofzo.... het is enkel een wit vlak waar je licht op schijnt. Als je dat op een strakke muur doet heb je evenveel detail als op een projectiescherm.Hulliee schreef op maandag 21 augustus 2017 @ 15:15:
[...]
HDMI 2.0? Ga je 4K projecteren? Dat zou ik dat zeker niet op een muur doen; verlies van detail..
En een elektrisch projectiescherm? Die kun je wellicht goed wegwerken.
Ik zelf heb draadloos HDMI en dat is geen probleem voor full HD
De hoeveelheid licht is wel verschillend. Daar zijn projectieschermen vaak een stuk beter in ja. Lichtverlies klopt, maar in een niet heel lichte kamer ga je daar geen problemen mee ondervinden (zelf kijk ik altijd in het donker, dus geen enkel probleem)
[ Voor 5% gewijzigd door Waah op 21-08-2017 15:23 ]
Detailverlies is wat ongelukkig uitgedrukt. Als de muur niet glad is en een structuur heeft, lijkt mij dat een strakke lijn, niet geheel strak wordt weergegeven (op 4K dan, full HD zal dat minder zijn)Waah schreef op maandag 21 augustus 2017 @ 15:19:
[...]
...
Waarom zou dat detailverlies geven? Een projectiescherm heeft geen pixels ofzo.... het is enkel een wit vlak waar je licht op schijnt. Als je dat op een strakke muur doet heb je evenveel detail als op een projectiescherm.
De hoeveelheid licht is wel verschillend. Daar zijn projectieschermen vaak een stuk beter in ja. Lichtverlies klopt, maar in een niet heel lichte kamer ga je daar geen problemen mee ondervinden (zelf kijk ik altijd in het donker, dus geen enkel probleem)
Dat klopt deels. Als de muur niet recht is kan je bij rechte lijnen vervorming zien. Maar projectieschermen zijn ook vrij lastig 100% strak te krijgen. En de muur moet flink scheef zijn wil dit zichtbaar zijn in films.Hulliee schreef op maandag 21 augustus 2017 @ 15:29:
[...]
Detailverlies is wat ongelukkig uitgedrukt. Als de muur niet glad is en een structuur heeft, lijkt mij dat een strakke lijn, niet geheel strak wordt weergegeven (op 4K dan, full HD zal dat minder zijn)
Kwa structuur: daarom glasvlies, en niet glasvezel. Glasvlies is strak. En renovlies is speciaal gemaakt om oneffenheden weg te werken. Zo had ik een betonnen wand vol gaatjes. Maar renovlies erover en daar zie je niets meer van.
Projectiescherm heeft zeker voordelen. Maar ik ben zelf zeer tevreden over projecteren op de muur. Zit je ook minder met afmetingen. Zelf heb ik nu een 120" scherm. Groter kon niet ivm met het dak (puntdak)
Ok, overtuigt met een zeer gladde muur met glasvlies!Waah schreef op maandag 21 augustus 2017 @ 15:37:
[...]
Dat klopt deels. Als de muur niet recht is kan je bij rechte lijnen vervorming zien. Maar projectieschermen zijn ook vrij lastig 100% strak te krijgen. En de muur moet flink scheef zijn wil dit zichtbaar zijn in films.
Kwa structuur: daarom glasvlies, en niet glasvezel. Glasvlies is strak. En renovlies is speciaal gemaakt om oneffenheden weg te werken. Zo had ik een betonnen wand vol gaatjes. Maar renovlies erover en daar zie je niets meer van.
Projectiescherm heeft zeker voordelen. Maar ik ben zelf zeer tevreden over projecteren op de muur. Zit je ook minder met afmetingen. Zelf heb ik nu een 120" scherm. Groter kon niet ivm met het dak (puntdak)
Welke kleur dan? Alles 9010 wit? Of heb je een vlak op de muur welke wit is?
Ik heb het ook overwogen maar mijn muur is niet wit, maar een lichte grijstint. Hierdoor nam de lichtopbrengst wel erg af.
@Hulliee deze kleur:

Het is vrij lichte kleur grijs. Gekozen omdat ik toch in het donker kijk, en dan zorgt lichtgrijs voor wat beter contrast heb ik mij destijds laten vertellen.
En in actie:

Het is vrij lichte kleur grijs. Gekozen omdat ik toch in het donker kijk, en dan zorgt lichtgrijs voor wat beter contrast heb ik mij destijds laten vertellen.
En in actie:
Ziet er uit als een mooi formaatje! Wat is ongeveer de diagonaal?Waah schreef op maandag 21 augustus 2017 @ 15:49:
@Hulliee deze kleur:
[afbeelding]
Het is vrij lichte kleur grijs. Gekozen omdat ik toch in het donker kijk, en dan zorgt lichtgrijs voor wat beter contrast heb ik mij destijds laten vertellen.
En in actie:
[afbeelding]
The devil is in the details.
Ziet er goed uit! Ideaal ook met een zwart plafond.Waah schreef op maandag 21 augustus 2017 @ 15:49:
@Hulliee deze kleur:
[afbeelding]
Het is vrij lichte kleur grijs. Gekozen omdat ik toch in het donker kijk, en dan zorgt lichtgrijs voor wat beter contrast heb ik mij destijds laten vertellen.
En in actie:
[afbeelding]
Op termijn wel de bedoeling idd. Ik heb zelf nu ook een full HD wireless kastje zodat ik mijn pc overal kan neerzetten. Handig is echter anders en de kwaliteit is minder (dithering)Hulliee schreef op maandag 21 augustus 2017 @ 15:15:
[...]
HDMI 2.0? Ga je 4K projecteren? Dat zou ik dat zeker niet op een muur doen; verlies van detail..
En een elektrisch projectiescherm? Die kun je wellicht goed wegwerken.
Ik zelf heb draadloos HDMI en dat is geen probleem voor full HD
Er zit nu korrelpleister op dat is te ruw voor renovlies gok ik. Nog speciale verf gebruikt?
Een elektrische scherm hangt aan het plafond en dan zit ik ook met een onwenselijke koof.
Het komt echt in de woonkamer.
Ik zal straks een plattegrond uploaden
[ Voor 22% gewijzigd door icecreamfarmer op 21-08-2017 17:57 ]
ik zie ik zie wat jij niet ziet
Ik heb deze wireless HDMI:icecreamfarmer schreef op maandag 21 augustus 2017 @ 17:52:
[...]
Op termijn wel de bedoeling idd. Ik heb zelf nu ook een full HD wireless kastje zodat ik mijn pc overal kan neerzetten. Handig is echter anders en de kwaliteit is minder (dithering)
Er zit nu korrelpleister op dat is te ruw voor renovlies gok ik. Nog speciale verf gebruikt?
Een elektrische scherm hangt aan het plafond en dan zit ik ook met een onwenselijke koof.
Het komt echt in de woonkamer.
Ik zal straks een plattegrond uploaden
https://www.beamerwebwinkel.com/dvdo-air3c.html
Geen last van dithering en juist erg handig. Waarom vind jij het onhandig dan?
Dit is zo als het scherm er nu bij hangt.

Zal vanavond een foto uploaden met alles in actie.
Max 1920 bij 1860 en dithering.Hulliee schreef op maandag 21 augustus 2017 @ 18:14:
[...]
Ik heb deze wireless HDMI:
https://www.beamerwebwinkel.com/dvdo-air3c.html
Geen last van dithering en juist erg handig. Waarom vind jij het onhandig dan?
Dit is zo als het scherm er nu bij hangt.
[afbeelding]
Zal vanavond een foto uploaden met alles in actie.
Ik heb nu deze
pricewatch: Iogear Wirelessly stream HD 1080p
ik zie ik zie wat jij niet ziet
120". Groot genoeg zeg maar. En plafond heb ik chocolade kleur gedaan. Zwart maakt het wel een erg donker hol. Het grote dakraam is prima volledig te verduisterenHahn schreef op maandag 21 augustus 2017 @ 15:51:
[...]
Ziet er uit als een mooi formaatje! Wat is ongeveer de diagonaal?
Dat kan ik allemaal niet doen. Nog speciale projector verf gebruikt?Waah schreef op maandag 21 augustus 2017 @ 19:45:
[...]
120". Groot genoeg zeg maar. En plafond heb ik chocolade kleur gedaan. Zwart maakt het wel een erg donker hol. Het grote dakraam is prima volledig te verduisteren
ik zie ik zie wat jij niet ziet
Nope. Maar een volgende keer neem ik wel veegvaste verf/schrobber verf. Heb gewoon matte verf gebruikt. Ben je voor een paar tientjes klaar, en als het tegen valt kan je dan altijd nog investeren in een beamer scherm of speciale verf....icecreamfarmer schreef op maandag 21 augustus 2017 @ 19:56:
[...]
Dat kan ik allemaal niet doen. Nog speciale projector verf gebruikt?
[ Voor 18% gewijzigd door Waah op 21-08-2017 20:12 ]
Welke kleur heb je gebruikt?Waah schreef op maandag 21 augustus 2017 @ 20:12:
[...]
Nope. Maar een volgende keer neem ik wel veegvaste verf/schrobber verf. Heb gewoon matte verf gebruikt. Ben je voor een paar tientjes klaar, en als het tegen valt kan je dan altijd nog investeren in een beamer scherm of speciale verf....
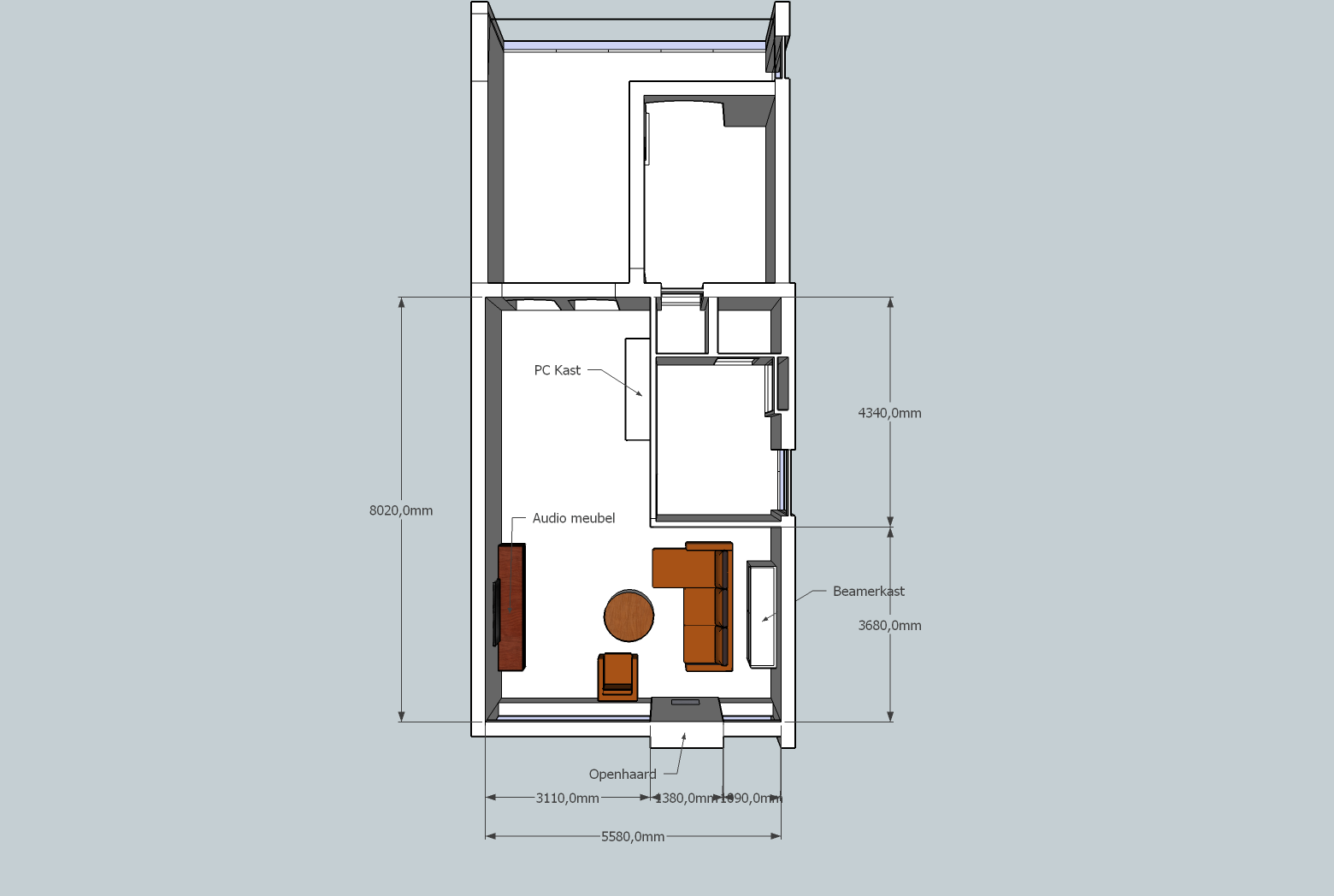
Andere oplossing is gewoon een grote TV van ca. 2m.
Dit is de indeling zoals ik hem nu graag zie:

Vraag mij trouwens af of dit in een ander topic moet. Heb nog meer vraagjes en problemen.
ik zie ik zie wat jij niet ziet
ik projecteer op witte muur, hdmi kabel van 20 meter full hd. perfect beeld, enige waar ik me aan stoor is het lawaai van e beamer (optoma 141 geloof ik). Muur i is 3 meter breed, ik gebruik de volle breedte (hoeveel inch is dat bij 16:9?)
3 Meter breed is circa 116".
Ik heb in een diagonaalcalculator net zo lang een grote beelddiagonaal ingevuld tot de breedte rond de 116" uitkwam. Volgens deze website: http://www.silisoftware.c...n_aspect_ratio_calculator kom je dan uit op een beelddiagonaal van circa 133".
Ik heb in een diagonaalcalculator net zo lang een grote beelddiagonaal ingevuld tot de breedte rond de 116" uitkwam. Volgens deze website: http://www.silisoftware.c...n_aspect_ratio_calculator kom je dan uit op een beelddiagonaal van circa 133".
Your Friendly Neighborhood Moderator
Dit topic is gesloten.
![]()
Let op:
- Dit is geen "wat-moet-ik-kopen"-topic: start zo'n discussie dan ook niet hier.
Voor kleine audio gerelateerde vragen kan je terecht in Het Kleine Vragen Topic. Voor aankoopadvies graag een topic openen in Consumentenelektronica Aankoopadvies - Let ook op de grootte van de foto's wanneer je deze post: de banner rond te grote foto's met betrekking tot het thumbnails maken staat er niet voor niets! Te grote foto's en/of van een trage host worden getrashed.
- Voor audiomeubels en Hifi Racks verwijzen we graag door naar Het grote Audiomeubel topic!
- Akoestische aanpassingen, -verbeteringen, et cetera mogen in Het grote akoestiek topic