Goedenavond allen. Ik hoop wat hulp te krijgen bij mijn twijfel tussen CV en warmtepomp. Ik had in eerste instantie een CV gepland, maar zit met nu toch af te vragen of het verstandiger is gelijk een warmtepomp te nemen, al dan niet hybride.
Probleem waar ik vooral tegenaan loop is het ruimtegebrek en een houtskeletbouw constructie met daardoor veel/meer kans op trillingen en geluid, zowel voor de buitenunit die op het platte dak zou moeten als voor binnen omdat de ruimte waar het in moet komen direct naast de slaapkamer ligt.
Een CV neemt heel weinig plek in en maakt weinig geluid (behalve als er warm water getapt wordt, maar dan lig ik niet in bed
) en is daardoor een stuk zekerdere keuze.
Het gaat om een tussenwoning van voor 1900 die op dit moment verbouwd wordt.
Nieuwe oppervlakte is ~78m2 verdeeld over begane grond en 1e etage, inhoud ongeveer 210m3. Er is ook nog een kleine vliering, hier staat de WTW.
De oude voorgevel en uiteraard de zijgevels naar de buren toe
staan nog, de rest (fundering/vloer, achtergevel, dak) is allemaal nieuw. De nieuwe bouw is gedaan met houtskeletbouw, zowel begane grond als 1e etage.
Isolatie is volgens huidig bouwbesluit nieuwbouw, dus dak Rc 6,3, gevels Rc 4,7 en vloer begane grond Rc 3,7. Overal nieuwe houten kozijnen en ramen met HR++ dubbel glas.
Kwa uitstraling/looks proberen we het zo goed mogelijk te laten matchen met de oude bouwstijl, zowel binnen als buiten. Buitenzijde is beschermd stadsgezicht.
Verder is het huis voorzien van WTW/balansventilatie met enthalpiewisselaar en bouwen we zo luchtdicht mogelijk. Helaas nog geen cijfers want blowerdoortest moet nog gedaan worden.
Daarnaast is het hele huis voorzien van KNX voor de domotica.
Hieronder de details volgens de FAQ:
Middels de vuistregel berekeningen zou dit betekenen:
- koevlaas2: 3.88 kW
- Op basis van gemiddeld warmteverlies bij -10C (YouTube: Warmtepompen berekenen — Besparingen en Duurzaamheid 2.3kW. Als ik 2010 aanhou als extra marge dan 3.1kW
- Remeha (YouTube: Warmtepompen berekenen — Besparingen en Duurzaamheid 2.8kW
- Vaillant (YouTube: Warmtepompen berekenen — Besparingen en Duurzaamheid 4.4kW
Zoals gezegd betrof dit de oude situatie met overal enkel glas, overal kieren en geen isolatie, CV van 15 jaar oud en type 11 radiatoren, maar zelfs daarmee lijkt 4kW al meer dan voldoende te zijn. Of mis ik iets?
- 1e etage ~39m2 vloerverwarming 16mm, 100mm hart op hart in voorgefreesde magnesietplaten (R-Floorzz). De badkamer is voorzien van voorgefreesde Wedi platen.
- Alleen een normale handdouche, geen stortdouche, geen bad. Ik ga er van uit dat het in ieder geval < 9L/min zal zijn. Douchen 10-20min per dag.
- Douche wtw zou ik graag willen, maar alleen drain wtw is mogelijk en dat is een beetje een uitdaging met de houtskeletbouw. Ik kan me voorstellen dat dit haast noodzakelijk is gezien het gebruik aan (ruimte voor) een buffervat?
Volgorde eigenschappen:
- Stil
- Domotica integratie
- DIY/tweakersvriendelijk
- Zuinig
- Goedkoop/prijs
Plaatsing:
De buitenunit kan alleen op het dak. De tuin is geen optie want die is te klein.
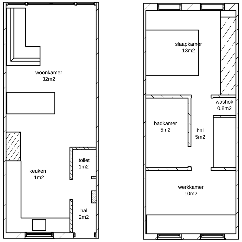
De binnenunit en een eventuele boiler of doorstroomverwarmer kunnen alleen in het washok geplaatst worden. Dit is ook de plek waar de CV zou komen als die het zou worden.
Het washok is 90x90x255cm en ligt direct naast de slaapkamer. Hierin staan een wasmachine en een wasdroger. Een CV past makkelijk boven/achter de wasmachine en de droger.
De binnenunit van een warmtepomp is ook geen probleem zowel als deze de CV zou vervangen als bij hybride naast de CV, maar ik heb geen ruimte voor een boilervat van 80L of meer.
Net als alle andere ruimten in het huis is het washok middels houtskeletbouw gebouwd en de ruimte bevindt zich direct naast de slaapkamer. Zo min mogelijk geluid en trillingen zijn dus erg belangrijk. Ik kan nog wel wat zwaardere houtplaten tegen de constructie schroeven, maar ik heb dus geen stenen wand om iets tegenaan te schroeven.
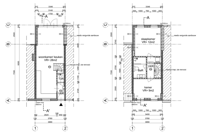
Ik heb de plattegrond en de bouwtekeningen hieronder toegevoegd. De maten van de bouwtekeningen zijn niet helemaal meer correct, het washok is bijvoorbeeld iets groter geworden/gemaakt dan het op de bouwtekening staat.
/f/image/e9WV6rRZW9rHeUruEmaJT7PK.png?f=fotoalbum_large)
/f/image/ZjigbmAhjrRy0ACOp5fHbQqG.png?f=fotoalbum_large)
/f/image/KLmm6H6uG8EKfVQp1KOiKdNQ.png?f=fotoalbum_large)
Monoblock heeft denk ik de voorkeur aangezien daar binnen minder ruimte voor nodig is.
Dat was het wel zo'n beetje
Samenvattend heb ik de volgende vragen:
- Is een warmtepomp een goed idee ipv een CV?
- Zo ja, wel of niet hybride?
- Zo ja, is dit mogelijk zonder geluids/trillingsoverlast te hebben binnen (lijkt erop van wel gezien Trillingen warmtepomp dempen)
- Zo ja, welke dan? Vermogen en split vs monobloc?
- Wat te doen met SWW ivm weinig/geen ruimte?
Probleem waar ik vooral tegenaan loop is het ruimtegebrek en een houtskeletbouw constructie met daardoor veel/meer kans op trillingen en geluid, zowel voor de buitenunit die op het platte dak zou moeten als voor binnen omdat de ruimte waar het in moet komen direct naast de slaapkamer ligt.
Een CV neemt heel weinig plek in en maakt weinig geluid (behalve als er warm water getapt wordt, maar dan lig ik niet in bed
Het gaat om een tussenwoning van voor 1900 die op dit moment verbouwd wordt.
Nieuwe oppervlakte is ~78m2 verdeeld over begane grond en 1e etage, inhoud ongeveer 210m3. Er is ook nog een kleine vliering, hier staat de WTW.
De oude voorgevel en uiteraard de zijgevels naar de buren toe
Isolatie is volgens huidig bouwbesluit nieuwbouw, dus dak Rc 6,3, gevels Rc 4,7 en vloer begane grond Rc 3,7. Overal nieuwe houten kozijnen en ramen met HR++ dubbel glas.
Kwa uitstraling/looks proberen we het zo goed mogelijk te laten matchen met de oude bouwstijl, zowel binnen als buiten. Buitenzijde is beschermd stadsgezicht.
Verder is het huis voorzien van WTW/balansventilatie met enthalpiewisselaar en bouwen we zo luchtdicht mogelijk. Helaas nog geen cijfers want blowerdoortest moet nog gedaan worden.
Daarnaast is het hele huis voorzien van KNX voor de domotica.
Hieronder de details volgens de FAQ:
Historisch gasverbruik
700-800 m³/jaar over de afgelopen 5 jaar. 20/21 was 800 m3. Kanttekening is dat dit natuurlijk de oude situatie was.Middels de vuistregel berekeningen zou dit betekenen:
- koevlaas2: 3.88 kW
- Op basis van gemiddeld warmteverlies bij -10C (YouTube: Warmtepompen berekenen — Besparingen en Duurzaamheid 2.3kW. Als ik 2010 aanhou als extra marge dan 3.1kW
- Remeha (YouTube: Warmtepompen berekenen — Besparingen en Duurzaamheid 2.8kW
- Vaillant (YouTube: Warmtepompen berekenen — Besparingen en Duurzaamheid 4.4kW
Zoals gezegd betrof dit de oude situatie met overal enkel glas, overal kieren en geen isolatie, CV van 15 jaar oud en type 11 radiatoren, maar zelfs daarmee lijkt 4kW al meer dan voldoende te zijn. Of mis ik iets?
Afgiftesysteem
- Begane grond ~39m2 vloerverwarming 16mm, 100mm hart op hart in cementdeklaag- 1e etage ~39m2 vloerverwarming 16mm, 100mm hart op hart in voorgefreesde magnesietplaten (R-Floorzz). De badkamer is voorzien van voorgefreesde Wedi platen.
SWW
- Weinig/geen ruimte voor een boiler. 50L vat past waarschijnlijk net, ik zou er daarvan heel misschien net twee kwijt kunnen.- Alleen een normale handdouche, geen stortdouche, geen bad. Ik ga er van uit dat het in ieder geval < 9L/min zal zijn. Douchen 10-20min per dag.
- Douche wtw zou ik graag willen, maar alleen drain wtw is mogelijk en dat is een beetje een uitdaging met de houtskeletbouw. Ik kan me voorstellen dat dit haast noodzakelijk is gezien het gebruik aan (ruimte voor) een buffervat?
Warmtepompvoorkeur
Lucht/water, grondboring wordt lastig gezien de kleine tuin en kosten plus er is geen manier om de leidingen dan bij de warmtepomp op de 1e etage te krijgen (achterzijde van het huis bestaat volledig uit achterpui).Volgorde eigenschappen:
- Stil
- Domotica integratie
- DIY/tweakersvriendelijk
- Zuinig
- Goedkoop/prijs
Plaatsing:
De buitenunit kan alleen op het dak. De tuin is geen optie want die is te klein.
De binnenunit en een eventuele boiler of doorstroomverwarmer kunnen alleen in het washok geplaatst worden. Dit is ook de plek waar de CV zou komen als die het zou worden.
Het washok is 90x90x255cm en ligt direct naast de slaapkamer. Hierin staan een wasmachine en een wasdroger. Een CV past makkelijk boven/achter de wasmachine en de droger.
De binnenunit van een warmtepomp is ook geen probleem zowel als deze de CV zou vervangen als bij hybride naast de CV, maar ik heb geen ruimte voor een boilervat van 80L of meer.
Net als alle andere ruimten in het huis is het washok middels houtskeletbouw gebouwd en de ruimte bevindt zich direct naast de slaapkamer. Zo min mogelijk geluid en trillingen zijn dus erg belangrijk. Ik kan nog wel wat zwaardere houtplaten tegen de constructie schroeven, maar ik heb dus geen stenen wand om iets tegenaan te schroeven.
Ik heb de plattegrond en de bouwtekeningen hieronder toegevoegd. De maten van de bouwtekeningen zijn niet helemaal meer correct, het washok is bijvoorbeeld iets groter geworden/gemaakt dan het op de bouwtekening staat.
/f/image/e9WV6rRZW9rHeUruEmaJT7PK.png?f=fotoalbum_large)
/f/image/ZjigbmAhjrRy0ACOp5fHbQqG.png?f=fotoalbum_large)
/f/image/KLmm6H6uG8EKfVQp1KOiKdNQ.png?f=fotoalbum_large)
Monoblock heeft denk ik de voorkeur aangezien daar binnen minder ruimte voor nodig is.
Wie gaat het installeren?
Ik zelf samen met de loodgieter.Dat was het wel zo'n beetje
Samenvattend heb ik de volgende vragen:
- Is een warmtepomp een goed idee ipv een CV?
- Zo ja, wel of niet hybride?
- Zo ja, is dit mogelijk zonder geluids/trillingsoverlast te hebben binnen (lijkt erop van wel gezien Trillingen warmtepomp dempen)
- Zo ja, welke dan? Vermogen en split vs monobloc?
- Wat te doen met SWW ivm weinig/geen ruimte?
/f/image/sI6me8piACtL9hBxupSBXgLU.png?f=fotoalbum_large)
/f/image/SrMOPaeXea50sq6iMrVtO2xx.png?f=fotoalbum_large)
/f/image/y26Bmqp7CB9Y1urdd40xjY7F.png?f=fotoalbum_large)