twain4me schreef op woensdag 3 maart 2021 @ 15:07:
@jens1211
ik heb je dit schema al een keer eerder gegeven, maar nu iets duidelijker gemaakt met kleurtjesen misschien kan je nu wel antwoord geven op de vraag of je dit schema zo begrijpt. zo ja dan kan je het gebruiken om je afgifte systeem op in te tekenen, ik heb zelfs al ruimte gemaakt aan de rechter kant
![]()
[Afbeelding]
/f/image/0g6APxvmQghZiMjyzp8YbygM.png?f=fotoalbum_large)
Ik denk dat dit al beter is , enkel twijfel ik nog over wanneer dus het afgekoeld water vanuit de vloerverwarmingsverdeler terug naar de warmtepomp stroomt , of er daar een T-stuk naar boiler-warmtepomp of 3weg klep ?
Ik beeld mij nu gewoon even in " in principe moet er enkel water bijgevuld worden in de boiler SWW wanneer er dus water wordt gebruikt in de keuken of iemand gaat douchen of een bad neemt."
"Dan moet de boiler terug worden bijgevuld en zal er dus water naar daar worden gestuurd."
( en het water wordt opgewarmd via een elektrisch verwarmingselement van 3kw-4kw)
Maar anders zal er nooit water moeten circuleren naar de boiler SWW.
Als ik nu kijk naar dit schema en bijvoorbeeld het water stroomt door naar de vloerverwarmingsverdeler en zo terug via de blauwe alpex naar het T-stuk dan stroomt het water naar de SWW + een deel naar de warmtepomp voor terug process te ondergaan voor het water optewarmen.
Maar dit deel die naar de SWW boiler stroomt , wat als die vol is en er dus al 300liters in zit ,
komt dit toch niet goed ?
Enkel dit principe begrijp ik nog niet 100%.
Want ik dacht dat je het water apart moet houden van je CV met je SWW boiler.
Bijvoorbeeld dan mijn SWW boiler met stadswater en CV met regenwater.
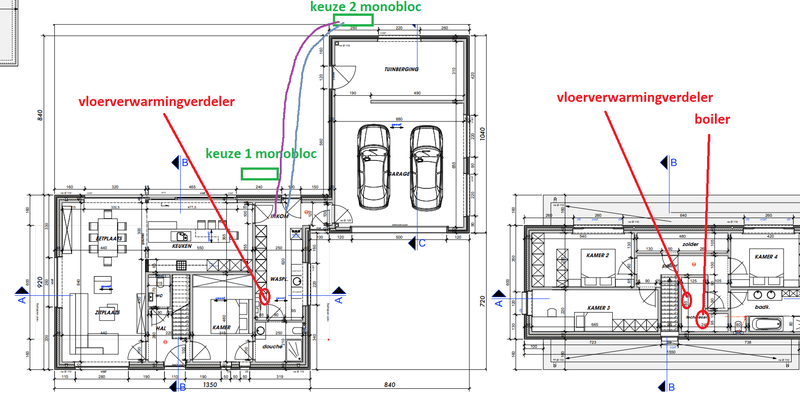
/f/image/Hfk2uwXAmIZjrkC40coZmGGf.png?f=fotoalbum_large)
/f/image/gOE1Cg0HxGdok4AXmLrvERMd.png?f=fotoalbum_large)
/f/image/2321E0w89GCbiY8BqL8XFVUK.png?f=fotoalbum_large)
/f/image/3GJAPmZeJLNR6sY6as8qCURG.png?f=fotoalbum_large)
/f/image/URCqIHXOvXsVohctjGenO9Xd.png?f=fotoalbum_large)
:fill(white):strip_exif()/f/image/ijV0FELHk0TfuV3UECG8pJvX.png?f=user_large)
:strip_exif()/f/image/09ShVYYizgOqYqOrZje2dCnk.jpg?f=fotoalbum_tile)
/f/image/ja5KCFZ6JiVhRe6N8EmtoxA5.png?f=fotoalbum_tile)