![]() | ![]() | ![]() |
Volgend weekend een deel de vloertegels erop, de rest van de vloer afwerking kan pas na droging en t bezoek van de stukadoor.
Ik denk idd dat dit de perfecte omschrijving van deze werkzaamheden is....deWit schreef op woensdag 16 juni 2021 @ 16:41:
De stukadoor is er! Wat lijkt het me ontzettend dankbaar kutwerk
Life sucks. Then you die. Then they throw mud in your face. Then you get eaten by worms. Be happy it happens in that order...
![]() | ![]() | ![]() |
Ook de keuken staat definitief de levering op 12 juli, dus dat is lekker snel. IKEA als basis met wat tweaks; custom fronten, los blad en een verhoogd houten blad-deel. Bijna 3.40 eiland straks, en een tweetal hoge kasten voor koelkast en ovens. Ertussen een laag stuk met deur ervoor om de keukenmachine te verstoppen.
:no_upscale():strip_icc():fill(white):strip_exif()/f/image/vAz8Q8iOZl356WqDylCMkQxI.jpg?f=user_large)
En de vloer komt de 14e, voor die tijd en als het een beetje wil drogen met de bouwdroger gaan de plinten er al op en de boel geëgaliseerd.
Plinten doe je toch na de vloer? Of mis ik iets?[b]deWit in "Modernisering vrijstaande jaren 30 woning"
En de vloer komt de 14e, voor die tijd en als het een beetje wil drogen met de bouwdroger gaan de plinten er al op en de boel geëgaliseerd.
Fijn dat de boel nu gestuukt is, ik kan me voorstellen dat dat gevoelsmatig een behoorlijke mijlpaal is.
It's time to play the music, it's time to light the lights
Ik ben benieuwd. Volgens mij weet je wat ie doet en anders weet ik waar hij woont
We zijn nu bezig met een architect om van het bestaande rommelige gebouw een mooi geheel te maken, zodat dit voor de vergunningen hopelijk een eitje wordt. Het begint met een draagmuur die je weg wil hebben en voor je het weet is het bijna compleet een nieuw huis
Hopelijk in het najaar starten met slopen en heropbouwen. Wij hopen - fingers crossed - het wel in een korter tijdsbestek voor elkaar te krijgen, maar dat gaat allemaal sterk afhangen vd aannemersprijzen.
[ Voor 11% gewijzigd door Ethirty op 02-07-2021 15:09 ]
#team_UTC+1
An investment in knowledge always pays the best interest - Benjamin Franklin
You can call me McOverloper Mini '12 i7/16/256 Air '13 i5/8/256 iPad mini 5 64GB iPhone SE 128GB
![]() | ![]() |
Afgelopen week zou er iemand komen om de oprit glad te maken en te voorzien van een pad langs het huis en grind met plek voor 4 auto's. Bewust besloten om het uit te besteden want heb nog genoeg te doen in huis. Helaas is het tegenwoordig een dingetje om als 'vakman' gewoon niet te komen opdagen en vervolgens ook niet meer te reageren. Lang verhaal kort, ik had het voorbereidende werk gedaan en een grote zandbak voor de deur en geen pad meer.
Dus uiteindelijk toch maar zelf gedaan...
Gebakken klinkers geregeld een dorp verderop, kabels voor verlichting en EV lader erin, bandjes erin, en dan maar leggen... Kan ik het, ja. Besteed ik het liever uit; JA!
K-werk maar kan nu ten minste weer schoon het huis in en het oog wil ook wat... Het grind-deel zoek ik wel weer iemand voor na de bouwvak.
:strip_exif()/f/image/Gg40lNBH703m6pshYheEfRpU.jpg?f=fotoalbum_large)
:strip_exif()/f/image/hriqABr6mpDrRwHaydio1jqg.jpg?f=fotoalbum_large)
![]() | ![]() | ![]() |
Gisteren nog even 40m1 plint afgekit en morgen op vakantie. Kan ik na de vakantie mooi beginnen met het plaatsen van de keuken en het sauzen van de muren en plafonds. De tegelzetter is ook wezen kijken en gaat in week 34 beginnen met de tegels in de bijkeuken en de badkamer/toilet boven zodat dat ook ergens op gaat lijken.
[ Voor 24% gewijzigd door deWit op 30-07-2021 13:55 ]
Ik ben toch malle pietje niet!
Afgelopen week vooral voorbereidend werk gedaan zodat de tegelzetter volgende week aan de gang kan. Dat betekende alle waterleiding voor de badkamer afmaken en testen, de wanden van de badkamer dichtmaken met qboard, het bad plaatsen, stellen en testen en de ombouw maken. En een hoop kleine klusjes zoals even zorgen dat er ook licht is op wat plekken zodat met de kortere avonden we niet in het donker werken.
![]() | ![]() |
Voordat de keuken op z'n plek kan dus eerst even de boel voorgestreken en geverfd, architraven geplaatst, een hoop kastjes alvast in elkaar gezet en wat voorbereidend werk gedaan met de afvoer etc. De eerste kasten staan op hun plek om een beetje te kunnen uitmeten, volgende week de boel definitief op z'n plek, daar heb ik even een handje extra bij nodig voor de kasten van 2m op hun plek zetten.
![]() | ![]() | ![]() |
Er word druk getegeld in de badkamer en de keuken staat. Nouja, de kasten staan gesteld en vast en er is water en stroom, maar nog geen deuren en lades. Soms is een weekend te kort... (en een veel te drukke brandweer piketdienst helpt ook niet mee)
Dit is een tijdelijk keukenblad. Het eiland word nog langer maar dat deel van het huis is de vloer nog niet vervangen. De gipswand op de foto is voor het stof en moet er dan ook nog uit.
[ Voor 5% gewijzigd door deWit op 29-08-2021 21:44 ]
![]() | ![]() |
Tussendoor ook de oprit even afgemaakt, met de winter op komst was het wel fijn om dat klaar en schoon te hebben. Er passen nu 4 auto's op, komende week nog even de beukenhaag langs het pad erin en de laadpaal plaatsen.
![]() | ![]() | ![]() |
![]() |
Gisteren weer verlost van een stukje bankrekening/asbest. Het schuurdak was zo slecht aan het worden dat het binnen ook niet meer droog was, dat is onhandig voor het opslaan van dingen/gereedschap. Dus maar vervangen voor een geïsoleerd sandwichplatendak.
![]() | ![]() | ![]() |
![]() | ![]() |
Komende tijd vooral afwerkklusjes (lange lijst) en heel veel schilderwerk. En daar heb ik een hekel aan dus dat kan zomaar eens even wat langer duren, er is dan al snel iets 'beters' te doen.
Dit was 1700 eur voor 70 m2, had per m2 nog wat goedkoper kunnen worden als ik de andere schuur mee had laten nemen (maar die doe ik op een later moment zelf)marcelcee schreef op maandag 15 november 2021 @ 08:31:
Ziet er weer top uit! Mooi dat de vaart er in blijft :)Zit zelf ook met zo’n asbestdak dat ik liever weg heb. Wat is de ordegrootte qua kosten (per m2) voor het verwijderen?
Panelen staan op de verlanglijst, ben beetje marktplaats in de gaten aan het houden voor een leuk setje...
![]() | ![]() |
Vooruitgang, de to-be woonkamer schiet eindelijk een beetje op. Verfwerk uitbesteed, electra en spots aangesloten, voor de kerst hopelijk daar zitten. Kan ik mooi m'n kerstcadeau aanschouwen op de besta-met-eiken-blad over de hele breedte. Overigens ook de oprit afgemaakt met de beukenhaag...
![]() | ![]() |
[ Voor 16% gewijzigd door deWit op 13-12-2021 21:12 ]
Op de bekende veiling sites staan vaak goed geprijsde nieuwe setjes. Die dan panelen van vorig jaar bevatten.deWit schreef op maandag 15 november 2021 @ 20:05:
[...]
Dit was 1700 eur voor 70 m2, had per m2 nog wat goedkoper kunnen worden als ik de andere schuur mee had laten nemen (maar die doe ik op een later moment zelf)
Panelen staan op de verlanglijst, ben beetje marktplaats in de gaten aan het houden voor een leuk setje...
Prima zelf te leggen op zo een plat dak.
Sites als marktplaats? Of welke bedoelt u?luccie schreef op zaterdag 18 december 2021 @ 15:33:
[...]
Op de bekende veiling sites staan vaak goed geprijsde nieuwe setjes. Die dan panelen van vorig jaar bevatten.
Prima zelf te leggen op zo een plat dak.
De kat voelt zich alvast helemaal thuis. Nice work.deWit schreef op zondag 19 december 2021 @ 15:14:
[Afbeelding]
Nou, best wel opgeknapt zo. Er missen nog planken op de kast en aan de muur, de lampenkap mist nog en de aankleding.
Even pauze en dan de bijkeuken eens afmaken.
BVA even googlenymaenhout schreef op zondag 19 december 2021 @ 15:26:
[...]
Sites als marktplaats? Of welke bedoelt u?
Ziet er goed uit!deWit schreef op zondag 19 december 2021 @ 15:14:
[Afbeelding]
Nou, best wel opgeknapt zo. Er missen nog planken op de kast en aan de muur, de lampenkap mist nog en de aankleding.
Even pauze en dan de bijkeuken eens afmaken.
Vraagje, welke (kleur) verf heb je voor de blauwe muur gebruikt? Wil ook een kamer die tint verven
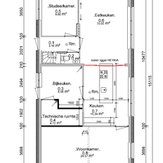
Het plan (en nog een laatste foto van de nu wel af zijnde woonkamer). Bij het rode lijntje staat nu nog een tijdelijke stofwand als scheiding tussen nieuw en oud.
![]() | ![]() |
De afgelopen tijd is de schuur geupgrade met een nieuw dak, dakrandje en nog wat extra zonnepanelen 'omdat het kan'.
![]() | ![]() |
Vorig weekend maar eens begonnen met het eruit halen van de oude zachtboard plafonds, de MV buizen erin, wat elektrakabels, steenwol en daarna het plafond weer dichtmaken met stucplaten.
![]() | ![]() |
Volgend weekend het plafond verder dichtmaken, hopelijk de latei boven de deur tussen de gang en eetkamer erin en dan kan de vloer er in twee delen uit. Idee is om eerst een deel eruit te halen, te egaliseren en de EPS erin te leggen en dan in 1 keer deel 2 eruit en erin om zo kort mogelijk niet bij de trap te kunnen. Sowieso is dat een dingetje, want ik wil het liefste de trap tijdelijk laten zitten maar die hangt op een stukje muur dat er weer uit moet. Waarschijnlijk daar nog wat voor knutselen zodat het een beetje blijft hangen.
![]() | ![]() |
Net op tijd voor de volgende prijsstijging wat pruttel besteld...
![]() | ![]() |
Balkje erin (overkill, maar leftover) en de deur sparing die niet meer nodig is dicht zetten.
![]() | ![]() | ![]() |
![]() |
Vloer eruit slopen en plafond weer dicht maken. Moet klein beetje zand in om af te vlakken en dan eps stapelen...
![]() | ![]() |
Wel klaar mee, maar dit is het laatste stukje kutwerk. Uitbesteden is geen optie, niemand te vinden op korte termijn (lees voor eind 2022). Dan maar weer alles zelf, dus nu 25 mei betonstorten...
Vraag me wel af of de kat in die kattenbak gaat met al dat zand dat daar ligt
haha dat ken ik. Was laatst bij de Hornbach met het idee om genoeg OSB te halen om een schuurdak te vervangen. Zag de prijs en heb het gauw aangepast naar "genoeg OSB om de slechte delen van een schuurdak te vervangen".deWit schreef op zaterdag 2 april 2022 @ 19:05:
En huilen in een hoekje dat ik niet genoeg EPS heb (wist ik) en hoe duur dat nu is vergeleken met een jaar geleden (wist ik niet)
Ging om 10% van het dak dat rot was. De rest was na al die jaren nog prima, maar wilde in eerste instantie gelijk alles ff mooi maken. Je komt er toch maar eens in de ~30 jaar bij immers. Nou volgende keer beter
)
Bouwmaterialen is gewoon niet grappig meer.
#team_UTC+1
An investment in knowledge always pays the best interest - Benjamin Franklin
You can call me McOverloper Mini '12 i7/16/256 Air '13 i5/8/256 iPad mini 5 64GB iPhone SE 128GB
Misschien is dit nog relevant: feddez in "Voorbereidingen schuimbeton woonkamer/keuken - tips?"
Er ligt EPS100 onder 120 mm dik, twee lagen. Vorige bestelling betaalde ik 7.80/m2, en dat was september 2020. Nu 15.80/m2 en dat voor met name luchtSmurf schreef op maandag 4 april 2022 @ 13:05:
[...]
haha dat ken ik. Was laatst bij de Hornbach met het idee om genoeg OSB te halen om een schuurdak te vervangen. Zag de prijs en heb het gauw aangepast naar "genoeg OSB om de slechte delen van een schuurdak te vervangen".
Ging om 10% van het dak dat rot was. De rest was na al die jaren nog prima, maar wilde in eerste instantie gelijk alles ff mooi maken. Je komt er toch maar eens in de ~30 jaar bij immers. Nou volgende keer beter
Helaas, maar ik wil het toch ook wel af hebbenEthirty schreef op maandag 4 april 2022 @ 13:57:
Wij hadden plannen voor het verbouwen van een heel huis. Na een tijdje werd dat een half huis en het wordt met de week minder huis![]()
Bouwmaterialen is gewoon niet grappig meer.
Doorgaans leg je die niet in de (constructieve) betonvloer maar in de zandcement dekvloer. Daar gaan ze dan ook in en dan gaan ze ca 20 cm omhoog naar de WCD's. Zelfde geld voor de UTP. De rest gaat inderdaad via het plafond. Kun je goed in deze post zien van de voorkant van t huis, daar heb ik hetzelfde gedaan.ThinkPad schreef op maandag 4 april 2022 @ 14:15:
Ik mis op de foto's de loze leidingenBijv. voor je netwerk/coax bij je TV etc? Of doe je dat allemaal via het plafond en dan naar beneden de muur in door te frezen?
Misschien is dit nog relevant: feddez in "Voorbereidingen schuimbeton woonkamer/keuken - tips?"
[ Voor 4% gewijzigd door deWit op 04-04-2022 14:29 ]
Welke tegels zijn dit? (de witte)deWit schreef op zaterdag 18 september 2021 @ 19:16:
Badkamer updates! Er mist alleen nog een plafond (stukadoor) en badmeubel (besteld).
[Afbeelding] [Afbeelding] [Afbeelding] [Afbeelding]
Veder is de oprit een eind klaar voor de grindmatten
[Afbeelding]
[Afbeelding]
De keuken is grotendeels klaar, moeten nog wat fronten die missen op en de plint. Kasten kunnen ook de bijkeuken in, daar is inmiddels ook een vloer.
[Afbeelding] [Afbeelding] [Afbeelding]
Ik heb volgens mij exact dezelfde tegels, maar een paar met een haarscheurtje door werking van de wand er achter. ZOu die graag nog eens vervangen, maar heb de tegels niet meer. Vorige bewoner in 2016 aangelegd.
PV: 13 x LG Solar 320N1K-A5 - NeON2 / WP: Adlar Aurora II 6kw / WPB: Atlantic Explorer 200l / jaren 70 woning gasloos sinds 10-2024
Wij gaan grofweg een zelfde plan uitvoeren. Jaren 70 huis, vrijstaand compleet verbouwen, isoleren, steenstrips, etc. Waar ik vooral benieuwd naar ben is welke installaties je hebt geplaatst. Warmtepomp (welke?) en vloerverwarming las ik, maar verder? Verwarming bovenverdieping? Warmwater voorziening? Ventilatiesysteem? Voor ons is dit nu de grootste uitdaging op dit moment.
Beneden alles voorzien van vloerverwarming op een 7 kw lucht-water warmtepomp. 12 lussen op twee open verdelers. Panasonic monoblock. Boven heeft alleen de badkamer vloerverwarming, de rest niets. Wel een optie voor evt IR panelen.
Ventilatie met een Itho HRU 350 WTW. De inblaast van het huis kan nog na-verwarmt worden met de WP door een warmtewisselaar in het luchtkanaal. Boven is het afhankelijk van het weer en de ventilatie tussen de 17 en 20 graden, maar de vloerverwarming in de hal ligt er nog niet in.
Warm water komt uit een Atlantic 270 L warmtepompboiler. Bewust los van de verwarming, twee losse systemen leek mij robuuster. Ruim voldoende voor lang douchen met vier personen, de douche-WTW help daarin mee. Heb nog geen koude douche gehad door een lege boiler, ook niet na een bad. De keuken heeft warm water uit de warmtepompboiler en heeft een Quooker.
Met hoeveel m2 en met welk afgifte vermogen ben je tot die warmtepomp gekomen? En heb je dat zelf becijferd of laten doen?deWit schreef op dinsdag 5 april 2022 @ 13:25:
Wat betreft installaties;
Beneden alles voorzien van vloerverwarming op een 7 kw lucht-water warmtepomp. 10 lussen op twee open verdelers. Panasonic monoblock. Boven heeft alleen de badkamer vloerverwarming, de rest niets. Wel een optie voor evt IR panelen.
#team_UTC+1
An investment in knowledge always pays the best interest - Benjamin Franklin
You can call me McOverloper Mini '12 i7/16/256 Air '13 i5/8/256 iPad mini 5 64GB iPhone SE 128GB
Bedankt. Zeer informatief en op papier een mooie setup. Niet toevallig de Eco variant van de Itho? (warmteterugwinning rendement van tot wel 94%). En voor de balansventilatie van dit systeem heb je het huis zo luchtdicht mogelijk gemaakt en dus ook geen ventilatieroosters geplaatst?deWit schreef op dinsdag 5 april 2022 @ 13:25:
Wat betreft installaties;
Beneden alles voorzien van vloerverwarming op een 7 kw lucht-water warmtepomp. 10 lussen op twee open verdelers. Panasonic monoblock. Boven heeft alleen de badkamer vloerverwarming, de rest niets. Wel een optie voor evt IR panelen.
Ventilatie met een Itho HRU 350 WTW. De inblaast van het huis kan nog na-verwarmt worden met de WP door een warmtewisselaar in het luchtkanaal. Boven is het afhankelijk van het weer en de ventilatie tussen de 17 en 20 graden, maar de vloerverwarming in de hal ligt er nog niet in.
Warm water komt uit een Atlantic 270 L warmtepompboiler. Bewust los van de verwarming, twee losse systemen leek mij robuuster. Ruim voldoende voor lang douchen met vier personen, de douche-WTW help daarin mee. Heb nog geen koude douche gehad door een lege boiler, ook niet na een bad. De keuken heeft warm water uit de warmtepompboiler en heeft een Quooker.
Boven alleen vloerverwarming in de badkamer is hoe wij er ook over dachten / denken. En dan IR-panelen..maar jij hebt dat als optie. Hoe moet ik dat voor me zien? Dat je de leidingen met electra al op de juiste plekken hebt liggen hiervoor? Op zich geen gek idee. In de praktijk dan kijken of het nodig is (is het nog niet blijkbaar?). Wij hebben iets oudere kinderen en die gaan straks huiswerk maken op hun kamertjes.. dus ik zit daar wel wat mee. Dan wil je ze niet in de kou laten zitten
Grofweg 100 m2 aan vloerverwarming, hoh 10 cm, krappe 1000 m aan buis erin. Ik heb eigenlijk weinig berekend en gewoon een educated guess gedaan op basis van te verwachten isolatieniveau en wat rekenregels, maar geen complete warmtverliesberekening laten maken. Wel na de isolatiemaatregelen een maandje gestookt met een electrisch kacheltje en dat geextrapoleerd voor de wp.Ethirty schreef op dinsdag 5 april 2022 @ 13:39:
[...]
Met hoeveel m2 en met welk afgifte vermogen ben je tot die warmtepomp gekomen? En heb je dat zelf becijferd of laten doen?
Inderdaad de ECO unit.L_T schreef op dinsdag 5 april 2022 @ 15:16:
[...]
Bedankt. Zeer informatief en op papier een mooie setup. Niet toevallig de Eco variant van de Itho? (warmteterugwinning rendement van tot wel 94%). En voor de balansventilatie van dit systeem heb je het huis zo luchtdicht mogelijk gemaakt en dus ook geen ventilatieroosters geplaatst?
Boven alleen vloerverwarming in de badkamer is hoe wij er ook over dachten / denken. En dan IR-panelen..maar jij hebt dat als optie. Hoe moet ik dat voor me zien? Dat je de leidingen met electra al op de juiste plekken hebt liggen hiervoor? Op zich geen gek idee. In de praktijk dan kijken of het nodig is (is het nog niet blijkbaar?). Wij hebben iets oudere kinderen en die gaan straks huiswerk maken op hun kamertjes.. dus ik zit daar wel wat mee. Dan wil je ze niet in de kou laten zitten
Er zitten nieuwe kunststof kozijnen in met triple-glas en geen roosters. We hebben gepoogd zo luchtdicht mogelijk te bouwen maar met bestaande bouw is dat lastig. Wel alle kozijnen extra afgedicht maar de aannemer had zeker moeite met luchtdicht bouwen. Er is behoorlijk wat flex-PUR en afdichtingspasta aan te pas gekomen.
Elke slaapkamer heeft inderdaad een schakelbaar WCD op een logische plek voor een IR paneel zitten, maar het is nog niet aan de orde geweest want kleine kinderen. Ik denk dat met naverwarmen op de WTW slaapkamerinblaas het daar ook prima comfortabel is te maken. Het is een beetje dubbel, slapen wil je in een koudere kamer, maar (huis)werk iets warmer. We hebben straks ook een werk/studeerkamer beneden waar ik hoop dat de kinderen gaan zitten voor huiswerk ipv boven
[ Voor 112% gewijzigd door eXtink op 05-04-2022 20:16 ]
Bedankt voor toelichting. Duidelijk en goed idee ook wel van die werkkamer beneden. Is hier ook nog wel optie.. of ze dat willen is wel een tweede hèdeWit schreef op dinsdag 5 april 2022 @ 19:52:
[...]
Grofweg 100 m2 aan vloerverwarming, hoh 10 cm, krappe 1000 m aan buis erin. Ik heb eigenlijk weinig berekend en gewoon een educated guess gedaan op basis van te verwachten isolatieniveau en wat rekenregels, maar geen complete warmtverliesberekening laten maken. Wel na de isolatiemaatregelen een maandje gestookt met een electrisch kacheltje en dat geextrapoleerd voor de wp.
[...]
Inderdaad de ECO unit.
Er zitten nieuwe kunststof kozijnen in met triple-glas en geen roosters. We hebben gepoogd zo luchtdicht mogelijk te bouwen maar met bestaande bouw is dat lastig. Wel alle kozijnen extra afgedicht maar de aannemer had zeker moeite met luchtdicht bouwen. Er is behoorlijk wat flex-PUR en afdichtingspasta aan te pas gekomen.
Elke slaapkamer heeft inderdaad een schakelbaar WCD op een logische plek voor een IR paneel zitten, maar het is nog niet aan de orde geweest want kleine kinderen. Ik denk dat met naverwarmen op de WTW slaapkamerinblaas het daar ook prima comfortabel is te maken. Het is een beetje dubbel, slapen wil je in een koudere kamer, maar (huis)werk iets warmer. We hebben straks ook een werk/studeerkamer beneden waar ik hoop dat de kinderen gaan zitten voor huiswerk ipv boven
Dat dubbele klopt wel inderdaad maar verwarmen met IR paneel is toch maar heel tijdelijk en die warmte is snel weg als je hem uit doet.
Wel benieuwd hoe je dat luchtdichte bouwen hebt ervaren en waar de uitdagingen lagen + hoe gemeten elke keer? Er zijn geloof ik speciale luchttesten voor?
Wij gaan die uitdaging waarschijnlijk ook aan. Ik las dat afdichtingstape bij de kozijnen juist een goed idee kan zijn overigens.
![]() | ![]() | ![]() |
![]() | ![]() |
Nee de kat zit niet in de vloer....
[ Voor 8% gewijzigd door deWit op 19-04-2022 07:55 ]
ping 127.212.23.124
![]() | ![]() | ![]() |
Nu dus weer even wat inhalen. Vandaag de oude trap gesloopt zodat ik de wanden van de nieuwe wc beneden erin kan zetten. Hemelvaartsweekend alles stuc en vloer klaar maken, 30 mei vloerverwarming erin, 1 juni de dekvloer, 7 juni de nieuwe trap en vanaf de 15e juni komt de stukadoor weer langs.
![]() | ![]() | ![]() |
![]() | ![]() |
Vandaag alle bekabeling in het plafond van het trapgat gemaakt; led spots, knx bewegingsmelder, rookmelder, loze leiding voor rolgordijn, loze leiding naar buiten om toch op de dakkapel toch maar screens te maken en daarna dicht.
Groot deel van de netten voor de vloerverwarming ligt er in, en begonnen met de WC opbouw en aansluitingen.
![]() | ![]() | ![]() |
![]() | ![]() |
Zo, de wanden van het toilet, en toilet zelf, zitten erin, het luik op de overloop zit erin, morgen nog even de laatste netten voor de vloerverwarming erin schuiven en dan maandag slangen knopen.
Omdat de dekvloer gestort word moest de tijdelijke tussenwand er uit. Tof te zien hoe groot en licht de keuken/eetkamer straks gaan zijn.
Ik volg dit topic al lang, al is het maar om de plaatjes te bekijken. Ik hoop ooit eens zo'n project te mogen meemaken, maar mijn huidige financiële situatie laat dit helaas niet toe. Tot dan, bedankt voor je moeite om dit topic bij te houden!
Voordeel van uitbesteden is dat je eens kunt toekijken hoe iemand aan het werk is. Nadeel is het achteraf moeten afrekenen...
![]() | ![]() | ![]() |
![]() | ![]() |
Uiteraard inspectie van de viervoeter...
![]() | ![]() |
En na het glad polijsten niets meer te zien (en de kat buiten opsluiten voor een paar uur...
![]() | ![]() |
Klopt het dat je in het halletje de naden van de gipsplaten gelijk heb lopen ?deWit schreef op maandag 6 juni 2022 @ 19:31:
Alles is dicht, in de voorstrijk en maar even een toiletpot opgehangen beneden zodat de dixi ook weg kan...
[Afbeelding] [Afbeelding] [Afbeelding] [Afbeelding] [Afbeelding]
Ik zou ze laten verspringen ivm werking van het onderliggende hout, Dan komen er geen scheuren in je platfond.
Heb die fout 1x gemaakt, mocht mooi het platfond er weer uit
Zelf beginnen we 15 september aan vergelijkbaar, maar kleiner project!
Voordeel voor ons is dat de bovenverdieping nog "kaal" is.
Ik ga hem volgen!
Open ook een topic, altijd leuk.KMO1988 schreef op vrijdag 10 juni 2022 @ 14:55:
Hey, wat leuk zo'n topic zeg!
Zelf beginnen we 15 september aan vergelijkbaar, maar kleiner project!
Voordeel voor ons is dat de bovenverdieping nog "kaal" is.
Ik ga hem volgen!
klein advies, doe het niet
![]() | ![]() | ![]() |
Eind volgende week komt eindelijk de trap en dan is het weer een beetje een huis. De ladder op is leuk voor een dagje, maar met een dreumes van anderhalf eigenlijk gewoon heel kut. Scheelt wel dat we nu grossieren in traphekjes
[ Voor 11% gewijzigd door deWit op 16-06-2022 11:29 ]
![]() | ![]() | ![]() |
![]() |
Dinsdag de trap erin. Schildermaatje heeft in aug tijd, tegelzetter eind juli voor het toilet beneden. Kan ik mooi alle afwerklijsten er op gaan zetten, de schuifdeuren naar de werkkamer erin maken en het resterende stukje keuken erin zetten zodat het definitieve blad ingemeten kan worden.
Ik ben zo blij voor jou en je familie dat er dinsdag een trap in komt. Doodeng.deWit schreef op vrijdag 24 juni 2022 @ 17:52:
Zo, weekendje de stuc droog kijken.
[Afbeelding] [Afbeelding] [Afbeelding] [Afbeelding]
Dinsdag de trap erin. Schildermaatje heeft in aug tijd, tegelzetter eind juli voor het toilet beneden. Kan ik mooi alle afwerklijsten er op gaan zetten, de schuifdeuren naar de werkkamer erin maken en het resterende stukje keuken erin zetten zodat het definitieve blad ingemeten kan worden.
Toke heeft hoogtevrees en heeft al knikkende knieën op een keukentrapje
![]() | ![]() | ![]() |
![]() |
Eindelijk, een trap. Nog een heel gevecht om die erin te krijgen, want met inmeten was er nog niet gestuct en ondanks mijn opmerking extra speling te houden was het toch nog een gedoetje. Uiteindelijk de hele ochtend maar zelf meegeholpen zodat ik toch een trap had. Zelfs het bovenste schopplankje moest er aan geloven (maar toch stofferen dus geen groot probleem).
Maarrrr, hij staat erin
![]() | ![]() | ![]() |
Hoogtevrees is niet realistisch, de meeste mensen durven prima midden op het dak van een flatgebouw te staan. Niet aan de rand dan want je bent bang om te vallen. Dus hoogtevrees is eigenlijk angst om te vallen.Toke_gt schreef op vrijdag 24 juni 2022 @ 18:02:
[...]
Toke heeft hoogtevrees en heeft al knikkende knieën op een keukentrapje
@deWit heerlijke vooruitgang!
[ Voor 3% gewijzigd door No Hands op 28-06-2022 14:00 ]
Veroordeel niet, verwonder u slechts
Volgens mij zit het iets complexer in elkaar. Maar laten we daar dit leuke topic niet mee vervuilen.No Hands schreef op dinsdag 28 juni 2022 @ 13:59:
[...]
Hoogtevrees is niet realistisch, de meeste mensen durven prima midden op het dak van een flatgebouw te staan. Niet aan de rand dan want je bent bang om te vallen. Dus hoogtevrees is eigenlijk angst om te vallen.
Hold. Step. Move. There will always be a way to keep on moving
Wel is nu nummer twee anderhalf is, m'n vrouw af en toe wel klaar met het single parenting als in aan het klussen ben. Soms is het gewoon makkelijker met z'n tweeën.
De vloer en stuc is droog, dus alle afwerklijsten, vensterbanken en de schuifdeuren erin maken. Schuifdeuren zijn nog tijdelijke deuren, we weten nog niet of we met of zonder ruitje willen.
10 aug gaat als het goed is de PVC vloer erin, en vanaf de 12 komt de schilder weer dingen doen. Heb daar zelf echt geen zin meer in
Na de vakantie het laatste keukenkastje op zn plek zodat het definitieve blad ingemeten kan worden, wcds, ethernet en verlichting aansluiten en een eettafel kopen.
![]() | ![]() | ![]() |
![]() | ![]() | ![]() |
Inmiddels drie jaar later, 10 jaar ouder loopt het op z'n einde. Vandaag alle muren en plafonds gedaan, alle afwerklatjes her en der er in gemaakt zodat als het wat minder warm is de schilder al het houtwerk kan doen, deurbeslag uitgekozen en de eerste proefversie gemonteerd, behang voor de studeerkamer uitgekozen (schuifdeurwand).
Jaar langer bezig dan gepland nu. Maar het einde is ein-de-lijk in zicht.
ca. 2.5 jaar terug... | ![]() | ![]() |
![]() | ![]() | ![]() |
zo was het 3 jaar terug... |
Echt geheel klaar is het nog niet, er is nog een grote lijst met klusjes maar het grote verbouwwerk is wel langzaamaan richting het einde aan het gaan. Vooral veel afwerk en inricht klusjes.pjottum schreef op maandag 22 augustus 2022 @ 22:24:
En dan? De rest? Of is die ook al klaar? Is dit topic dan klaar? Wat gaat @deWit dan doen? Bankhangen?
Vragen, vragen.. 😊😊
Top gedaan @deWit!
Bankhangen zal het sowieso niet worden, daar ben ik niet goed in. Er staan nog twee schuren in de tuin die gesloopt moeten worden waarvan 1 herbouwd (termijn 5ish jaar...) en er is nog 1000 m2 tuin waar nog wel wat mee mag gebeuren.
Voor nu eerst de keuken, werkkamer en hal helemaal afmaken en dan is er boven de ouderslaapkamer waar nog wat verf en behangwerk is.
Verplicht voortgangsplaatje in elke post:
Misschien kun je als hobby Warmtepompen bij mensen gaan installeren.deWit schreef op woensdag 24 augustus 2022 @ 10:23:
Bankhangen zal het sowieso niet worden, daar ben ik niet goed in.
Ik zweer je dat je dan nooit meer op de bank hangt.
Ja, als je uitgeput thuiskomt.
Ik bied me bij deze aan als eerste klant waarbij uitgeprobeerd mag worden of het iets voor DeWit is.Rzaan schreef op woensdag 24 augustus 2022 @ 10:38:
[...]
Misschien kun je als hobby Warmtepompen bij mensen gaan installeren.
Ik zweer je dat je dan nooit meer op de bank hangt.
Ja, als je uitgeput thuiskomt.
PV: 13 x LG Solar 320N1K-A5 - NeON2 / WP: Adlar Aurora II 6kw / WPB: Atlantic Explorer 200l / jaren 70 woning gasloos sinds 10-2024
)
![]() | ![]() | ![]() |
Geen verveling, over een paar weken gaat het laatste asbest eraf en dan een schuur slopen en een fietsenschuur terug zetten. Als ik zin heb, en als ik geen zin heb doe ik lekker even niets. Dat bevalt wel na drie jaar en hebben vrouw en kinderen ook wel verdiend.
![]() | ![]() | ![]() |
![]() | ![]() | ![]() |
Dat valt altijd tegen. Als het mooi gestapeld is (want dat is een muur) dan valt het nog mee, en verkijk je je er altijd op.deWit schreef op zaterdag 24 december 2022 @ 08:45:
Komt nog best veel puin vanaf, zit nu al op 18m3...
Als je op 18 kuub zit, heb je meldingsplicht bij de gemeente.
Meer dan 10 m³ namelijk.
Neem aan dat je dat niet gedaan hebt (zoals de meeste mensen dat niet doen)
Vraag me ook af op gemeenten er op handhaven.
eigenlijk niet behalve als het heel extreem is. (of ze een handhavingsverzoek krijgen)Rzaan schreef op zaterdag 24 december 2022 @ 10:10:
[...]
Dat valt altijd tegen. Als het mooi gestapeld is (want dat is een muur) dan valt het nog mee, en verkijk je je er altijd op.
Als je op 18 kuub zit, heb je meldingsplicht bij de gemeente.
Meer dan 10 m³ namelijk.
Neem aan dat je dat niet gedaan hebt (zoals de meeste mensen dat niet doen)
Vraag me ook af op gemeenten er op handhaven.
Vraag me ook af of veel gemeentemedewerkers het wel weten van dit maximale aantal m³.twain4me schreef op zaterdag 24 december 2022 @ 10:51:
eigenlijk niet behalve als het heel extreem is. (of ze een handhavingsverzoek krijgen)
Ik denk dat ze meer kijken naar of je container niet gevaarlijk staat.
Of dat i lange tijd parkeerplaatsen bezet houdt, of dat er veel naast de container komt te liggen.
zeker, het komt dan bij een bouwinspecteur vandaan en zeker niet bij een gemiddelde boa.Rzaan schreef op zaterdag 24 december 2022 @ 11:07:
[...]
Vraag me ook af of veel gemeentemedewerkers het wel weten van dit maximale aantal m³.
Ik denk dat ze meer kijken naar of je container niet gevaarlijk staat.
Of dat i lange tijd parkeerplaatsen bezet houdt, of dat er veel naast de container komt te liggen.
Klopt, ideaal stapelen wil niet echt, zeker als je grote delen hebt die de bak in gaan.
Ik heb twee vragen:
- Wat is de isolatiewaarde van je dak? Dat zie ik nergens in dit topic.
- We zijn nu twee winters verder. Hoe bevalt het? Isolatie en ventilatie naar wens? Warm en comfortabel in huis? Lage energielasten?
2) Geen centje pijn met de 7 kW WP. Ik denk eigenlijk dat deze net wat te groot is zelfs, in combinatie met de panelen op het dak zitten we ruim positief. Gemiddeld genomen denk ik in de winter 10 kWh aan verwarming/WP kwijt. Sommige dagen met een beetje zonneschijn gaat ie nu eigenlijk al niet eens meer aan.
Wel verkeken op geen verwarming boven, op zich is het niet heel koud maar doordat er veel dak is met EPS is er weinig thermische massa, en is er daar wat meer fluctuatie. Dat is bij wat langer koud of warm weer soms een ding; ik overweeg boven alsnog een kleine airco op te hangen om zowel in de zomer als in de winter er net iets meer comfort van te maken.
Wij zijn ook recent gestart met "de grote verbouwing". Helaas zijn zonnepanelen geen optie vanwege grote (maar gelukkig wel mooie) bomen rondom het huis. Zelf energie opwekken gaat dus lastig worden. Daarom ben ik benieuwd naar het totale verbruik.
Als ik kijk naar afgelopen januari dan is de verdeling een beetje als volgt:
/f/image/1mPMgNOTJgJfRmy6YXlYesqz.png?f=fotoalbum_large)
Ik realiseer me dat ik hier nooit meer een update over heb gedaan. Inmiddels is er een nieuwe schuur gebouwd van 6.5x4 waar de aanhanger, fietsen en tuinpruttel in kan.deWit schreef op zaterdag 24 december 2022 @ 08:45:
In huis niet veel gedaan, wel de laatste schuur gesloopt.. dakje eraf en toen viel de rest al om. Buurman met grote kraan al het puin eruitgehaald, tussen kerst en oud en nieuw een beetje opruimen zodat ik in het voorjaar de nieuwe schuur kan gaan neerzetten... Komt nog best veel puin vanaf, zit nu al op 18m3...
[Afbeelding] [Afbeelding] [Afbeelding] [Afbeelding] [Afbeelding] [Afbeelding]
![]() | ![]() | ![]() |
![]() | ![]() | ![]() |
![]() | ![]() | ![]() |
[ Voor 140% gewijzigd door deWit op 31-01-2024 09:25 ]
De isolatieplaten zijn op de bestaande gevel gelijmd. Je schrijft ook over 20cm isolatie. Je gebruikt gekantelde stenen als vensterbank aan de buitenkant. Als ik kijk hoe diep het kozijn in de voorgevel ligt, lijkt dit geen 20 cm extra te zijn. Is je kozijn verder naar voren geplaatst?
Alles komt goed, maar niet vandaag
:strip_exif()/f/image/VEnsceftQzlkBxcYhQwbAHz0.jpg?f=fotoalbum_tile)
:strip_exif()/f/image/RoFLHhvWTY1J5ztsIQJx1sMr.jpg?f=fotoalbum_tile)
:strip_exif()/f/image/t4zJ0JsIFrrG9ORGwQeBQtfL.jpg?f=fotoalbum_tile)
:strip_exif()/f/image/ulIPAYuxLxZslknzSGOncepB.jpg?f=fotoalbum_large)
:strip_exif()/f/image/GQorGUSi0EGz7X4Rg1Y2iq3m.jpg?f=fotoalbum_tile)
:strip_exif()/f/image/6GGCm7rpcudMBK89aY5cvEiD.jpg?f=fotoalbum_tile)
:strip_exif()/f/image/aHuYtzJlcLT8NoPaxcIlLAtl.jpg?f=fotoalbum_tile)
:strip_exif()/f/image/9SYeyt4IxbhAc4BJnNmqS32j.jpg?f=fotoalbum_tile)
:strip_exif()/f/image/uL0dkHh4obEFCpI6km4j716e.jpg?f=fotoalbum_tile)
/f/image/32EsqBFybLjFNMfVjCQXG3Th.png?f=fotoalbum_tile)
/f/image/EB6Y9RHhOAzHT1KcWykebq2E.png?f=fotoalbum_tile)
/f/image/pam82ZnAfGjksJFFi7HVh2LC.png?f=fotoalbum_tile)
:strip_exif()/f/image/sWAnHEUb3bTaDQTImZ1zZGs6.jpg?f=fotoalbum_tile)
:strip_exif()/f/image/VVBNawld31lnK24N9la8PbAr.jpg?f=fotoalbum_tile)
:strip_exif()/f/image/lrFnnBOaKCsuPsRR9I0tltsw.jpg?f=fotoalbum_tile)
:strip_exif()/f/image/9ilSiFHpZDdL3DEi12oGTT4B.jpg?f=fotoalbum_tile)
:strip_exif()/f/image/SmFEUXhGY95tvNjbdprdnnP1.jpg?f=fotoalbum_tile)
:strip_exif()/f/image/RFZQn8q4wnN9q1Emevz9wyBQ.jpg?f=fotoalbum_tile)
:strip_exif()/f/image/JNvKzUQxgXWjhRD43jnWJwag.jpg?f=fotoalbum_tile)
:strip_exif()/f/image/wVNScAji7PCj1njN1LHJKLoW.jpg?f=fotoalbum_tile)
:strip_exif()/f/image/kMx7VSxkFUOYEXao2dWHl21U.jpg?f=fotoalbum_tile)
:strip_exif()/f/image/r9u3TuCN2dM8G96qHgsp1ed4.jpg?f=fotoalbum_large)
:strip_exif()/f/image/Ji9WXCHgxOdbTY4UD6CPDOX8.jpg?f=fotoalbum_large)
:strip_exif()/f/image/xSzkN3HXXsXwM4SuzpIS06o7.jpg?f=fotoalbum_tile)
:strip_exif()/f/image/7laWpS6iRVEo6d5JWWct8slY.jpg?f=fotoalbum_tile)
:strip_exif()/f/image/iUyxzMLllMiGTJq7UrgzIZ4T.jpg?f=fotoalbum_tile)
:strip_exif()/f/image/OTQcakxFZSgV8YTGhxIXsFFZ.jpg?f=fotoalbum_tile)
:strip_exif()/f/image/MKZy5nlH86o33z5FIG7pWUXX.jpg?f=fotoalbum_tile)
:strip_exif()/f/image/OXUJznWWeQdoP2hUUlS1Fezg.jpg?f=fotoalbum_tile)
:strip_exif()/f/image/8XhcIaZMetltE2RPJaEmSxHH.jpg?f=fotoalbum_tile)
:strip_exif()/f/image/HB8ra3yF6BkEuN7LChPEFPcD.jpg?f=fotoalbum_tile)
:strip_exif()/f/image/YEoOF4LpanGTZdLJcvQ0yULe.jpg?f=fotoalbum_tile)
:strip_exif()/f/image/G8Y0quV1Th2t2pngAmzxaE1f.jpg?f=fotoalbum_tile)
:strip_exif()/f/image/Nxeo1tpkgAfLcX8aX2yydyve.jpg?f=fotoalbum_tile)
:strip_exif()/f/image/W4ufuWF7vGEru7P27d9EdxKY.jpg?f=fotoalbum_tile)
:strip_exif()/f/image/DU9QR4Qq7TVW0ruEjEkY8Ht7.jpg?f=fotoalbum_tile)
:strip_exif()/f/image/7Wpd2VITSR3hxW1qNSEUXKix.jpg?f=fotoalbum_tile)
:strip_exif()/f/image/ddFOs54GjD6k82xbrg5ZFxVO.jpg?f=fotoalbum_tile)
:strip_exif()/f/image/RFVZ7QgiZoiJEtzpX04XDVUO.jpg?f=fotoalbum_tile)
:strip_exif()/f/image/aXmLLl3zJj7kCnNp4t5wfgkr.jpg?f=fotoalbum_tile)
:strip_exif()/f/image/LLAjgcBPkaUtRpcjOGXCpsEp.jpg?f=fotoalbum_tile)
:strip_exif()/f/image/bUWYrMp2S75R5XpLWEkMpJuP.jpg?f=fotoalbum_large)
:strip_exif()/f/image/5hgqyodPQChdSo9qHEBm7wXt.jpg?f=fotoalbum_tile)
/f/image/4CMiTqcrurmp1H8PHqBn1ouv.png?f=fotoalbum_tile)
:strip_exif()/f/image/Hl3aGaovGF7t0NfIHCULMPxM.jpg?f=fotoalbum_tile)
:strip_exif()/f/image/8Lvbdy7zkKifAwaZ0GMSG04G.jpg?f=fotoalbum_tile)
:strip_exif()/f/image/ZFPldHzS0wdLoizyMFKo9p4e.jpg?f=fotoalbum_tile)
:strip_exif()/f/image/G7hUNcVX3PGr98KzIytvoM9t.jpg?f=fotoalbum_tile)
:strip_exif()/f/image/Hwa1ElQKtr7ZFyD23JIcVWTp.jpg?f=fotoalbum_tile)
:strip_exif()/f/image/8WgrQ6ZBfnkGJ18Aq7as2vJB.jpg?f=fotoalbum_tile)
:strip_exif()/f/image/DXcARSxaCuZtYUgo7bClYxVv.jpg?f=fotoalbum_tile)
:strip_exif()/f/image/iWPZYZdu6rasx9ajG4DyWMMy.jpg?f=fotoalbum_tile)
:strip_exif()/f/image/8nP6zkrMbu6xTWKPsdnrox0p.jpg?f=fotoalbum_tile)
:strip_exif()/f/image/JwXssew9VicpFVIylWk3cTJT.jpg?f=fotoalbum_tile)
:strip_exif()/f/image/NSvGw294gaCGOeYfNxB5iVlD.jpg?f=fotoalbum_tile)
:strip_exif()/f/image/FTFUb2OoerM21QvEbSx2iE3e.jpg?f=fotoalbum_tile)
:strip_exif()/f/image/DZ1LNuuw4vTzi8runHG2PZxs.jpg?f=fotoalbum_tile)
:strip_exif()/f/image/RAGMVpp2dLO0eRLlQf4fcu2Y.jpg?f=fotoalbum_tile)
:strip_exif()/f/image/Z7NpniLHMpISI975RRmsyMXC.jpg?f=fotoalbum_tile)
:strip_exif()/f/image/7Nzj5zs61nzEw5SlOKcutIXL.jpg?f=fotoalbum_tile)
:strip_exif()/f/image/myuHIp7bkWGMu7klUkLhSaPO.jpg?f=fotoalbum_tile)
:strip_exif()/f/image/GjNUV39IbMWV94J3FyJVI5gG.jpg?f=fotoalbum_tile)
:strip_exif()/f/image/E2huKeRGTHQTGPqojUyoc0X9.jpg?f=fotoalbum_tile)
:strip_exif()/f/image/gFMU3elgc53pMG5zeKX5j7Yx.jpg?f=fotoalbum_tile)
:strip_exif()/f/image/xDJfdDalNByOLP32tkVjAVSf.jpg?f=fotoalbum_tile)
:strip_exif()/f/image/XqDUfr8RvWCWHBynWi84wkbL.jpg?f=fotoalbum_tile)
:strip_exif()/f/image/oMrGFAY890v6CDd43GEYpsG5.jpg?f=fotoalbum_tile)
:strip_exif()/f/image/egBG71nSU1oF7ZyeeLN2UmC8.jpg?f=fotoalbum_tile)
:strip_exif()/f/image/igvqFlnXqw16hZ5OnOoVC8rQ.jpg?f=fotoalbum_tile)
:strip_exif()/f/image/SfcrduztbyI1d59lcF1DNAua.jpg?f=fotoalbum_tile)
:strip_exif()/f/image/PQL08Kh8BC4aUrLOTJnH4pDJ.jpg?f=fotoalbum_tile)
:strip_exif()/f/image/Cz7J3Y7F6cXMTclW605HOYoi.jpg?f=fotoalbum_tile)
:strip_exif()/f/image/p2Y8Zb48eNoJ8F8TkWyRVFGJ.jpg?f=fotoalbum_tile)
:strip_exif()/f/image/cX3jExxM1OQkqsaB0guMncMP.jpg?f=fotoalbum_tile)
:strip_exif()/f/image/2g6WDQYkcHFBs579BzaOTLyn.jpg?f=fotoalbum_tile)
:strip_exif()/f/image/d02pvKirZ6MWiZwaG1OwRIiX.jpg?f=fotoalbum_tile)
:strip_exif()/f/image/eQM5yKtsS59cIut17AA5zo4Q.jpg?f=fotoalbum_tile)
:strip_exif()/f/image/tltmsRc1QQTH4UmpGjDc3qPK.jpg?f=fotoalbum_tile)
:strip_exif()/f/image/jmyQtnM9pXXN6Z7vOxORjSUH.jpg?f=fotoalbum_tile)
:strip_exif()/f/image/HhmUxgJxEbzmNtocLdUrvE8w.jpg?f=fotoalbum_tile)
:strip_exif()/f/image/XWGkxzKYc1ZRcsgPHKhrASgu.jpg?f=fotoalbum_tile)
:strip_exif()/f/image/cvxeQBMKQwfs0Ad4lWz40W95.jpg?f=fotoalbum_tile)
:strip_exif()/f/image/ViQQZzHkw9Ud8XDOrNs2zTrP.jpg?f=fotoalbum_tile)
:strip_exif()/f/image/cukNjtP5VnUoQs3kaKShYhFR.jpg?f=fotoalbum_tile)
:strip_exif()/f/image/jH1Sa0aCz2EZXK1X4XSDlevZ.jpg?f=fotoalbum_tile)
:strip_exif()/f/image/wwzV7daupYytseZzlBeRU8MS.jpg?f=fotoalbum_tile)
:strip_exif()/f/image/1LE2QtqjjnFYay8uzPnUVFps.jpg?f=fotoalbum_tile)
:strip_exif()/f/image/pZi2wbnTuZJfTP2IAL1CBKQQ.jpg?f=fotoalbum_tile)
:strip_exif()/f/image/3OElWvNqsmQHD9J3duesf1rF.jpg?f=fotoalbum_tile)
:strip_exif()/f/image/J7gSr04urBWviBK1hC1vbWAK.jpg?f=fotoalbum_tile)
:strip_exif()/f/image/1PHyzI71Enpib3hFoGsCeUS0.jpg?f=fotoalbum_tile)
:strip_exif()/f/image/9gL82WshfB2Hx3ZRpLZn2eV4.jpg?f=fotoalbum_tile)
:strip_exif()/f/image/vyyUWTCATxpAsnghHiTIstUZ.jpg?f=fotoalbum_tile)
:strip_exif()/f/image/XFsvb3ITzJkgd9CZqTlnhZI2.jpg?f=fotoalbum_tile)
:strip_exif()/f/image/7JL7tkDXURkxjhKRFa959ocN.jpg?f=fotoalbum_tile)
:strip_exif()/f/image/gmqTNal3GAzlk1OJrDx0Hb4L.jpg?f=fotoalbum_tile)
:strip_exif()/f/image/Ro9RM9e8rTfQYtZSlKUPM8KA.jpg?f=fotoalbum_tile)
:strip_exif()/f/image/MDCMOy20PO0N49Zm8DAO0lo9.jpg?f=fotoalbum_tile)
:strip_exif()/f/image/smAPg9cfGZbF5SW6WiNm2SMQ.jpg?f=fotoalbum_tile)
:strip_exif()/f/image/3TMrmbr9KbGrWEqjG7fH4fvb.jpg?f=fotoalbum_tile)
:strip_exif()/f/image/qZh8utDix9q62LmegU0xdPKy.jpg?f=fotoalbum_tile)
:strip_exif()/f/image/8hGwGwvIqALFmAgUp7Jvxaqf.jpg?f=fotoalbum_tile)
:strip_exif()/f/image/ecTDsw6zzcDIcSzupVFwCvtk.jpg?f=fotoalbum_tile)
:strip_exif()/f/image/DT2CqpB7xeJJFkao5SGNycfG.jpg?f=fotoalbum_tile)
:strip_exif()/f/image/LO4ccS7cyWAMmtswJJTusUw0.jpg?f=fotoalbum_tile)
:strip_exif()/f/image/OndJXPMmcbrAePGOki3jcgeU.jpg?f=fotoalbum_tile)
:strip_exif()/f/image/I6er54g1ZYgfDXSD6ldriwut.jpg?f=fotoalbum_tile)
:strip_exif()/f/image/Nvq7PcrKDxiuRnYDT9UD8v6U.jpg?f=fotoalbum_tile)
:strip_exif()/f/image/IMC1B8RGMQc5nSAbEU0RXlOF.jpg?f=fotoalbum_tile)
:strip_exif()/f/image/o0vlLmFXbQYknF4lcIabQiKE.jpg?f=fotoalbum_tile)
:strip_exif()/f/image/XUsoYQhcMsvtNTL6rZnLaz8D.jpg?f=fotoalbum_tile)
:strip_exif()/f/image/01fC9uJdgGpyjf9x0za1L1Ge.jpg?f=fotoalbum_tile)
:strip_exif()/f/image/qwo5Om8IeFFUFkFHPc7YYe1F.jpg?f=fotoalbum_tile)
:strip_exif()/f/image/gzbP79EcElgIxUG8n23j51Wb.jpg?f=fotoalbum_tile)
:strip_exif()/f/image/9V7hawCuBaz2tPTAIpSHVQhZ.jpg?f=fotoalbum_tile)
:strip_exif()/f/image/v1r17ePOMXzhEISvXxFz4L8l.jpg?f=fotoalbum_tile)
:strip_exif()/f/image/SCQgyGb3IKV0OSiCWTBH65xO.jpg?f=fotoalbum_tile)
:strip_exif()/f/image/JwZVZS9x7WyvMrNnvpP47nGi.jpg?f=fotoalbum_tile)
:strip_exif()/f/image/6uWDM8FjL6pWTPfPAvSA0vjJ.jpg?f=fotoalbum_tile)
:strip_exif()/f/image/0vrzdMmQ0keRhrBWNksoSpCF.jpg?f=fotoalbum_tile)
:strip_exif()/f/image/k0pCaR9pCIAy3qqx4vwv1heK.jpg?f=fotoalbum_tile)
:strip_exif()/f/image/FUVAhVwxLl0jXOJ35AoUW9G8.jpg?f=fotoalbum_tile)
:strip_exif()/f/image/BtNEAkDzwCU83MMweh9YxQmU.jpg?f=fotoalbum_tile)
:strip_exif()/f/image/T2o9wSURAI6t8jLwjJ9ouTRR.jpg?f=fotoalbum_tile)
:strip_exif()/f/image/g1ORQ5mFw6iSc4oGJtI63Dnp.jpg?f=fotoalbum_tile)
:strip_exif()/f/image/4EYBT1M3dqdSfy2ApjzKaTwd.jpg?f=fotoalbum_tile)
:strip_exif()/f/image/8m7AffpxvJw1HTGe2gUKhEZn.jpg?f=fotoalbum_tile)
:strip_exif()/f/image/PSMC0m85lW2gS709DU6Gm7bQ.jpg?f=fotoalbum_tile)
:strip_exif()/f/image/gtmdbmlPBVHAiG4n81L5YgkC.jpg?f=fotoalbum_tile)
:strip_exif()/f/image/riAPnQn19201F83BBbX1FEnc.jpg?f=fotoalbum_tile)
:strip_exif()/f/image/OaKjcZHpiQqx1t5wzqSAfUGd.jpg?f=fotoalbum_tile)
:strip_exif()/f/image/2BHIJGFgpTSq2Be6MRvg1o3H.jpg?f=fotoalbum_tile)
:strip_exif()/f/image/vEgc9A6hQRG1yzwpXdM66tSj.jpg?f=fotoalbum_tile)
:strip_exif()/f/image/xquc47bwZUMK1ghHfHe5IRAE.jpg?f=fotoalbum_tile)
:strip_exif()/f/image/Bd39XOHsgEEtzfgwK2D2V6gU.jpg?f=fotoalbum_tile)
:strip_exif()/f/image/pn9WkDKdkagvCVl0cwstNWtJ.jpg?f=fotoalbum_tile)
:strip_exif()/f/image/ByS3oYd5bJqhvM89XYVBz4dK.jpg?f=fotoalbum_tile)
:strip_exif()/f/image/Wt3zBnqderLlPqA908ntmSx8.jpg?f=fotoalbum_tile)
:strip_exif()/f/image/r9Q7JRkQbtC5EoIwjwsi161K.jpg?f=fotoalbum_tile)
:strip_exif()/f/image/w5rB0hP8Lgha8yASeOj9oQDN.jpg?f=fotoalbum_tile)
:strip_exif()/f/image/cjNcw9so2wDSCqevwdx2byps.jpg?f=fotoalbum_tile)
:strip_exif()/f/image/d6GUf4jQu2dWZ3ndZf5IXKbY.jpg?f=fotoalbum_large)
:strip_exif()/f/image/dsfMLA6Y8AsMoksK2PM1Vf0o.jpg?f=fotoalbum_tile)
:strip_exif()/f/image/qLrgftL2XNvJVf0x9wJOUOCf.jpg?f=fotoalbum_tile)
:strip_exif()/f/image/NwOe65cvBqGyZSUOXCuX7mLi.jpg?f=fotoalbum_tile)
:strip_exif()/f/image/dl1CqnWpXsX1t7ANj1sx0zZf.jpg?f=fotoalbum_tile)
:strip_exif()/f/image/2otbnVviSRsWa2t0MSHLs5Ib.jpg?f=fotoalbum_tile)
:strip_exif()/f/image/M54JeacWVJakSdRwIyYBtpAN.jpg?f=fotoalbum_tile)
:strip_exif()/f/image/OEuuVHLcsq7TEM7CUSgGofIm.jpg?f=fotoalbum_tile)
:strip_exif()/f/image/bdwAYcFRqhFFsEiPIXOoTf30.jpg?f=fotoalbum_tile)
:strip_exif()/f/image/lSel6Kk4zvjwt393u2uaQDIC.jpg?f=fotoalbum_tile)
:strip_exif()/f/image/IY8uwEKLbHuF7QWvBvDjFk0u.jpg?f=fotoalbum_tile)
/f/image/g809vTcd9uERa8SjZTT1VQBv.png?f=fotoalbum_tile)
:strip_exif()/f/image/O4LOWfOsSjdkgN2r1c1LlJvi.jpg?f=fotoalbum_tile)
:strip_exif()/f/image/2329RNttrkT1JAy3fxvxYtKL.jpg?f=fotoalbum_tile)
:strip_exif()/f/image/1g0sgNAKHkzolxi8wmRXPedi.jpg?f=fotoalbum_tile)
:strip_exif()/f/image/LlnsIRI4F9c9DeQ5jANJ32IB.jpg?f=fotoalbum_tile)
:strip_exif()/f/image/PYjSq5s7rOS3kBBz7X1IvgOE.jpg?f=fotoalbum_tile)
:strip_exif()/f/image/4LIXi1cIEdclVpng9P3T9QQo.jpg?f=fotoalbum_tile)
:strip_exif()/f/image/9A1shW10pxypTWxHssGHtgMz.jpg?f=fotoalbum_tile)