In mijn topic over onze verbouwing weer wat foto's van de totstandkoming van de badkamer. Einde komt in zicht.
X2O heeft ook een staand toilet zonder reservoir. Dan kun je er een voorzetwandje met inbouwreservoir achter bouwen. Betegelen (als de tegelzetter er toch voor de badkamer is), opnieuw afkitten en ineens een veel moderne look.Phusebox schreef op zondag 24 maart 2024 @ 22:14:
Ik wil ook nog een staand toilet vervangen, de rest kan blijven zoals het was. Hangend past niet vanwege de doorvoer in de vloer die op ca. 40 cm uit de muur zit.
Moet ik ergens rekening mee houden qua staand toilet, of moet normaal elk toilet wel passen... kan er maar weinig informatie over vinden.
It's time to play the music, it's time to light the lights
Ik heb er wel slechte ervaringen mee. Vooral als het dingen zijn waar je vaak aan zit, komt het in mijn ervaring al snel naar beneden. En dan probeer ik het echt goed te doen door het vooraf met wal IPA schoon te maken.ViezeVis schreef op maandag 25 maart 2024 @ 10:36:
[...]
Volgens mij werkt dit doorgaans prima, maar er zijn signalen dat met dubbelzijdig plakband het geheel soms ook naar beneden komt vallen. Wij hebben gekozen voor Smedbo (compleet set).
A good way to test the effectiveness and strength of a strategy is to look at whether it contains a strong and authentic tagline.
Ja die heb ik ook gezien. Alleen wordt dat "wandje" dan wel erg dik volgens mij.big bang schreef op maandag 25 maart 2024 @ 16:10:
[...]
X2O heeft ook een staand toilet zonder reservoir. Dan kun je er een voorzetwandje met inbouwreservoir achter bouwen. Betegelen (als de tegelzetter er toch voor de badkamer is), opnieuw afkitten en ineens een veel moderne look.
[ Voor 3% gewijzigd door Phusebox op 25-03-2024 16:47 ]
xbox live / psn / steam / nintendo id: phusebox | iRacing
940 euro was het bij ons om te wijzigen. Nog geen half dagje was de aannemer er mee bezig. Ik zou het wel doen.Phusebox schreef op maandag 25 maart 2024 @ 09:49:
[...]
Tja de afvoer zit ca. 35-40 cm vanaf de muur in de vloer. Hangend wordt dan lastig. Ik zou niet weten hoe iig.
Nieuwe vloer, muren opnieuw betegelen. Dan heb je nog een hele oude wasbak met leiding gewoon in het zicht. Wil je die ook weg hebben.Murkmans schreef op maandag 25 maart 2024 @ 17:22:
[...]
940 euro was het bij ons om te wijzigen. Nog geen half dagje was de aannemer er mee bezig. Ik zou het wel doen.
- Sprongbocht 345mm
- Zandcement 25kg
- Villeroy & Boch Subway 2.0 Verkort / Geberit UP320 set
- Underlayment 122x122
- Polyblue toiletplaat
- Arbeid
[ Voor 10% gewijzigd door Phusebox op 25-03-2024 17:34 ]
xbox live / psn / steam / nintendo id: phusebox | iRacing
Maar dat laat je dan sowieso al doen toch in je badkamer?Phusebox schreef op maandag 25 maart 2024 @ 17:25:
[...]
Nieuwe vloer, muren opnieuw betegelen. Dan heb je nog een hele oude wasbak met leiding gewoon in het zicht. Wil je die ook weg hebben.
Als ik moet gokken, minimaal 5k. Eerder 6 a 7.
Die goedkope prijzen die iedereen hier noemt kom ik echt nooit aan.
Badkamer is met accessoireset bijna 30k. Zonder vloerverwarming. 5m2 badkamer.
Ja in de badkamer wordt alles vervangen. Idee was quick fix, die 36 jaar oude toiletpot beneden vervangen maar de rest laten.Murkmans schreef op maandag 25 maart 2024 @ 17:29:
[...]
Maar dat laat je dan sowieso al doen toch in je badkamer?
Of betreft het hier een wc van apk hem beet 1m2. Wat ze vaak doen is dan de vloertegels doortegelen op het inbouwreservoir (het voorzetwandje). Dan hoef je de muur verder niet te wijzigen/opnieuw te tegelen.
xbox live / psn / steam / nintendo id: phusebox | iRacing
Als je het toilet later nog een keer apart wilt laten doen ben je sowieso veel meer kwijt dan als je het nu in 1x aanpakt. Aannemer is er toch al.Phusebox schreef op maandag 25 maart 2024 @ 17:25:
[...]
Nieuwe vloer, muren opnieuw betegelen. Dan heb je nog een hele oude wasbak met leiding gewoon in het zicht. Wil je die ook weg hebben.
Als ik moet gokken, minimaal 5k. Eerder 6 a 7.
Die goedkope prijzen die iedereen hier noemt kom ik echt nooit aan.
Badkamer is met accessoires bijna 30k. Zonder vloerverwarming. 5m2 badkamer.
9-2 alle Hansgrohe besteld bij SSD armaturenshop in dld. 15-3 werd alles door DHL bezorgd. Wat een pracht material is dat brons toch!martinus83 schreef op dinsdag 5 maart 2024 @ 23:16:
Materiaal overzicht
:strip_exif()/f/image/ohbJwe5jEkhMd6ZLwV0myNOy.jpg?f=fotoalbum_large)
[ Voor 44% gewijzigd door martinus83 op 26-03-2024 22:08 ]
Heb je het al eens gevraagd aan je aannemer wat het moet kosten?Phusebox schreef op maandag 25 maart 2024 @ 17:25:
[...]
Nieuwe vloer, muren opnieuw betegelen. Dan heb je nog een hele oude wasbak met leiding gewoon in het zicht. Wil je die ook weg hebben.
Als ik moet gokken, minimaal 5k. Eerder 6 a 7.
Die goedkope prijzen die iedereen hier noemt kom ik echt nooit aan.
Badkamer is met accessoires bijna 30k. Zonder vloerverwarming. 5m2 badkamer.
PSN: Flix20-NL
Ik heb een afspraak gemaakt. Maar 600 euro aan sanitair is wel erg weinig?Flix20 schreef op dinsdag 26 maart 2024 @ 08:59:
[...]
Heb je het al eens gevraagd aan je aannemer wat het moet kosten?
Voor ~2k moet het echt wel te doen zijn, zeker als de werklieden toch al over de vloer zijn is het letterlijk een paar uurtjes werk.
Trek zelf de ruimte leeg.
Voor de stukadoor is het 2uur werk, loodgieter 2 uur, tegelzetter dag werk.
Dan heb je voor circa 1200eu aan materiaal nodig (600sanitair, 600 tegels)
[ Voor 3% gewijzigd door Phusebox op 26-03-2024 09:22 ]
xbox live / psn / steam / nintendo id: phusebox | iRacing
Nu ben je al 2k goedkoper dan je eerst roept.Phusebox schreef op dinsdag 26 maart 2024 @ 09:22:
[...]
Ik heb een afspraak gemaakt. Maar 600 euro aan sanitair is wel erg weinig?
Up320 is al 220 euro. Met een goedkope drukknop en toiletpot zit je al aan 600 euro.
Dan moet je nog een fontein, ook snel 400-500 euro. Spiegel erbij.
Denk eerder tegels + sanitair 2 tot 2,5k. Uurloon 1,5k.
En dan ga ik uit van tegels over tegels, zonder stucwerk.
PSN: Flix20-NL
Van 7k, naar 7 à 6k, naar 5k. En nu op ~3,5 à 4k.Flix20 schreef op dinsdag 26 maart 2024 @ 09:30:
[...]
Nu ben je al 2k goedkoper dan je eerst roept.
Waarschijnlijk merk je de inzet v/d loodgieter zelf al niet eens omdat die toch al in huis is.
Tegelzetter is een dag extra kwijt. Dat kost je circa 500eu
Wij hebben maand geleden te toilet laten doen, waren al met al 2.3k kwijt.
Foto's zijn hier gedeeld.
Van vrienden heb ik bedragen gehoord van 6 tot 8k de afgelopen jaren, dat was dus uitgaande van los het toilet doen, zonder meenemen met de badkamer.ViezeVis schreef op dinsdag 26 maart 2024 @ 09:41:
[...]
Van 7k, naar 7 à 6k, naar 5k. En nu op ~3,5 à 4k.
Met andere woorden: er wordt maar wat geroepen, zonder eerst even te checken wat daadwerkelijk de prijs zal worden. Ik denk idd ook dat het meevalt. Bovendien ook maar één keer stof en ook nog alles in dezelfde stijl leverbaar. Dat is mij ook wel wat waard eigenlijk.
[ Voor 20% gewijzigd door Phusebox op 26-03-2024 09:53 ]
xbox live / psn / steam / nintendo id: phusebox | iRacing
Ah, ik ben dan wel benieuwd of je dan met deze wijsheid nu je tegelzetter/aannemer bevraagd wat het zou kosten als ze die direct meepakken. Ik had namelijk niet graag 3-4k ingeleverd op het feit dat ze het anders later alsnog zouden doen.Phusebox schreef op dinsdag 26 maart 2024 @ 09:51:
[...]
Van vrienden heb ik bedragen gehoord van 6 tot 8k de afgelopen jaren, dat was dus uitgaande van los het toilet doen, zonder meenemen met de badkamer.
En nu?ViezeVis schreef op dinsdag 26 maart 2024 @ 09:58:
Bij ons is een verkeerd badkamermeubel geleverd. I.p.v. 2 laden naast elkaar, zitten er nu 2 laden onder elkaar
.
xbox live / psn / steam / nintendo id: phusebox | iRacing
Vanaf het begin hebben wij op de tekeningen en schriftelijke offertes staan dat het om '2 laden' ging maar ergens halverwege het proces is het ineens 2 laden opliggend geworden. En op de factuur staat ook 2 laden opliggend met een typenummer erbij. Dus wij hadden de fout ook kunnen signaren alleen is dus in het hele proces nooit 2 opliggende lades aan de orde gekomen. Wij hebben namelijk 2 topbladen: een topblad van 41 cm en een liggende plank van 35 cm waar we de handdoeken op gaan bewaren. Dan zou dus een extra rij met lades voor ons helemaal niet nodig zijn.Phusebox schreef op dinsdag 26 maart 2024 @ 09:59:
[...]
En nu?
Dat soort ellende ben ik dus ook bang voor. Met de lange levertijden en het feit dat de spullen ca. 1-2 weken voor aanvang geleverd worden heb je dan wel een probleem.
[ Voor 6% gewijzigd door ViezeVis op 26-03-2024 11:33 ]
Phusebox schreef op maandag 25 maart 2024 @ 16:46:
[...]
Ja die heb ik ook gezien. Alleen wordt dat "wandje" dan wel erg dik volgens mij.
Zal eens informeren wat me het geintje zou kosten maar dan maar niks doen is de uitkomst denk ik. Want dan moet je ook de hele wc ruimte aanpakken.

[ Voor 7% gewijzigd door big bang op 26-03-2024 12:28 ]
It's time to play the music, it's time to light the lights
@Phusebox update;Phusebox schreef op dinsdag 26 maart 2024 @ 09:59:
[...]
En nu?
Dat soort ellende ben ik dus ook bang voor. Met de lange levertijden en het feit dat de spullen ca. 1-2 weken voor aanvang geleverd worden heb je dan wel een probleem.
Even in Duitsland kijken bij wat van de gebruikelijkere adressen (reuter, skybad), zijn wellicht ook een stukje goedkoper?ViezeVis schreef op dinsdag 26 maart 2024 @ 12:56:
[...]
@Phusebox update;
fout erkend. Maar, levertijd 20 weken. M.a.w. we hebben geen badkamermeubel op tijd![]()
Definitieve leverdatum volgt nog.
Mwa, we hebben gekozen voor een specifiek meubel omdat die aan onze wensen voldoet. Ook qua materiaal en feeling. Shit happens. Heb aangeboden dat we eventueel ook naar een meubel van 45 diep willen kijken (nu gekozen voor 40). Qua maat maakt dat niet zo heel veel uit. Fout erkend, door leverancier en winkel fout bevestigd. Mooi kut, en weer doorr.....Mvd1981 schreef op dinsdag 26 maart 2024 @ 12:59:
[...]
Even in Duitsland kijken bij wat van de gebruikelijkere adressen (reuter, skybad), zijn wellicht ook een stukje goedkoper?
De eerste bestellingen zijn hier ook aan het binnenkomen. Alleen de douchebak wordt nog even spannend maar die zou ik ook voor 1 mei moeten hebben.Bobmeister schreef op vrijdag 15 september 2023 @ 21:16:
[...]
Die montage tikt wel aan ja. Ik ben ook in de markt voor een nieuwe badkamer van 1.80x2.80 en was eigenlijk van plan het geheel beneden de 5k te houden. Dat is dan exclusief montage want dat doe ik zelf. Een kleine badkamer heeft als voordeel dat er weinig grote dingen gekocht hoeven te worden: een douche, een wc en een meubel. Zodra de plannen en het budget concreter zijn zal ik dat hier nog eens posten. Ook als het boven de 5k uitkomt.
De bedoeling is overigens dat het gewoon goed merk spul is. Geen huismerk van de een of andere zaak. Maar ook geen exclusief design waar je voor betaald.
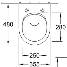
Afstand muur tot hart afvoer is nu 41cm.big bang schreef op dinsdag 26 maart 2024 @ 12:27:
[...]
[Afbeelding]
Nou, die pot kan best een stuk naar achteren gezet worden. Wat is nu de afstand tussen het hart van je afvoer en de muur?
Als je bedoelt dat het muurtje te dik wordt door het reservoir, een up720 heeft maar 8 a 9 cm ruimte nodig.
xbox live / psn / steam / nintendo id: phusebox | iRacing
Dan blijft er nog 16cm over als je ‘m maximaal naar achter zet. Dat is ongeveer precies een up320+wedi-plaat+tegels.
It's time to play the music, it's time to light the lights
Ligt eraan welk toilet. De Subway 2.0 kan bijvoorbeeld verder naar achter dan de 3.0, maar van de 2.0 zag ik zo snel geen staande versie zonder duoblok versie.big bang schreef op dinsdag 26 maart 2024 @ 21:45:
[...]
Dan blijft er nog 16cm over als je ‘m maximaal naar achter zet. Dat is ongeveer precies een up320+wedi-plaat+tegels.
xbox live / psn / steam / nintendo id: phusebox | iRacing
Het plaatje dat 25cm naar achteren kon kwam van de eerder besproken X2O.
It's time to play the music, it's time to light the lights
Sorry, even gemist. Ja goed eens kijken wat de aannemer zegt donderdag.big bang schreef op dinsdag 26 maart 2024 @ 21:55:
[...]
Het plaatje dat 25cm naar achteren kon kwam van de eerder besproken X2O.
Uiteraard is het een compromis oplossing. Da’s niet persé erg, want je betaalt er ook compromis geld voor. De rest van de afweging is persoonlijk.
[ Voor 6% gewijzigd door Phusebox op 26-03-2024 22:04 ]
xbox live / psn / steam / nintendo id: phusebox | iRacing
Welkom in de bouw. Informeren en plannen. Ik post net dat ik de kranen in 5 weken na bestellen en de rest van de hele badkamer in 2 wkn in huis heb.Phusebox schreef op dinsdag 26 maart 2024 @ 09:59:
[...]
En nu?
Dat soort ellende ben ik dus ook bang voor. Met de lange levertijden en het feit dat de spullen ca. 1-2 weken voor aanvang geleverd worden heb je dan wel een probleem.
Nou als ze die gelijktijdig gaan doen heb ik er dus geen meer.martinus83 schreef op dinsdag 26 maart 2024 @ 22:07:
[...]
Welkom in de bouw. Informeren en plannen. Ik post net dat ik de kranen in 5 weken na bestellen en de rest van de hele badkamer in 2 wkn in huis heb.
En bij onmacht, moet je schuiven, of je keuze herzien. Zo'n ramp is dat ook weer niet.
Vooral bij een toilet. Je hebt er toch twee?
xbox live / psn / steam / nintendo id: phusebox | iRacing
[ Voor 12% gewijzigd door martinus83 op 26-03-2024 23:17 ]
[ Voor 20% gewijzigd door Draakje5 op 27-03-2024 07:35 ]
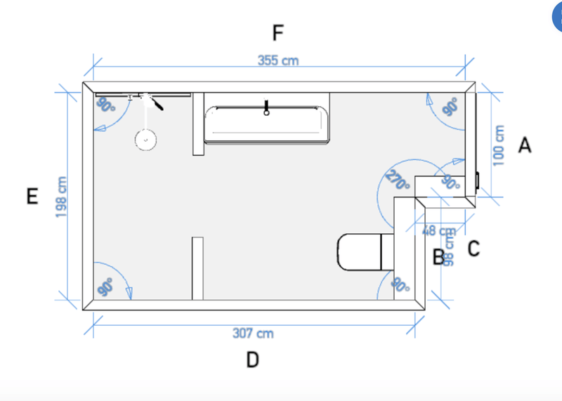
Begane grond. Afmetingen weet ik zo niet maar was enkele cm's te kort.El-Vder schreef op woensdag 27 maart 2024 @ 07:41:
@Draakje5 wat zijn de afmetingen van jullie toiletruimte en op welke verdieping is dit toilet? En waar staat dat van die 50cm in het bouwbesluit?
De compacte versie heeft inderdaad ook een iets smallere en kortere zit en toiletbril.Draakje5 schreef op woensdag 27 maart 2024 @ 07:32:
Vraag.
Wij zitten met een dilemma.
We hebben een toilet dat niet voldoet aan bouwbesluit. Ruimte tussen toilet en muur is 50cm<.
Zijn er ondiepere toiletpotten die dezelfde maat toiletbril hebben en waar je dus niets inlevert in comfort?
We hebben een Subway. Maar mijn vrouw dacht dat het ondiepere model ook een kleinere zitting heeft of geen softclose bril.
![]() | ![]() |
[ Voor 36% gewijzigd door Phusebox op 27-03-2024 07:49 ]
xbox live / psn / steam / nintendo id: phusebox | iRacing
Die maat is mij niet bekend, meeste aanvragen voor vergunning worden ook in een stadium gedaan voordat sanitair bepaald is. Vanuit bouwbesluit ken ik ook enkel de min. 1,2mx0,9m vloeroppervlakte, waarbij een inbouwreservoir niet mee gerekend hoeft te worden vanuit gelijkwaardigheid.Draakje5 schreef op woensdag 27 maart 2024 @ 07:43:
[...]
Begane grond. Afmetingen weet ik zo niet maar was enkele cm's te kort.
Die 50cm werd me verteld door de keurder van eigen huis.
https://technischabc.nl/artikelen-abc/toiletruimte/El-Vder schreef op woensdag 27 maart 2024 @ 07:50:
[...]
Die maat is mij niet bekend, meeste aanvragen voor vergunning worden ook in een stadium gedaan voordat sanitair bepaald is. Vanuit bouwbesluit ken ik ook enkel de min. 1,2mx0,9m vloeroppervlakte, waarbij een inbouwreservoir niet mee gerekend hoeft te worden vanuit gelijkwaardigheid.
Dankjewel, dat moeten we dus niet hebben. Het liefst eenzelfde maat opening..Phusebox schreef op woensdag 27 maart 2024 @ 07:48:
[...]
De compacte versie heeft inderdaad ook een iets smallere en kortere zit en toiletbril.
(Betreft de 2.0 dan, de 3.0 weet ik niet)
28x25 cm opening vs 32x28 cm opening wat ik zo heb gezien.
[Afbeelding] [Afbeelding]
Zoals anderen ook omschreven gaat er altijd wel iets mis. Hoort nou eenmaal bij verbouwen. Loslaten van de verwachting dat het vlekkeloos en perfect wordt scheelt mij altijd een hoop stress... Onze verbouwing is net klaar, alle "gedoetjes" op een rij:Phusebox schreef op dinsdag 26 maart 2024 @ 22:14:
[...]
Vraag me dan ook af als de winkel een fout maakt, wie betaalt die extra kosten dan? Want de installateur heeft ook een planning en als die tig weken later terug moet komen hangt daar ook een prijskaartje aan.
Ik ga er ook wel vanuit dat er iets niet goed zal gaan. Ze zullen wel door de muur gaan met slopen, problemen met de inbouwkranen en het verkeerde bad (aangezien de fabrikant daar zelfs niet duidelijk over kon zijn).
xbox live / psn / steam / nintendo id: phusebox | iRacing
@jelveen aangeraden/afgeraden op basis van? Oppervlak? En elektrisch/water?Phusebox schreef op woensdag 27 maart 2024 @ 11:59:
"Vloerverwarming wilde we niet maar op advies van de aannemer toch gedaan;"
Grappig, bij mij was het andersom, werd afgereden door op 1 na alle aannemers.
Daar maken wij ons ook een beetje zorgen over. De ene winkel zegt dit, de andere dat. Weet je toevallig hoeveel liter per minuut jouw installatie levert? Hoe groot is jouw douchekop?jelveen schreef op woensdag 27 maart 2024 @ 11:44:
[...]
*Ik was wat bezorgd of we wel voldoende waterdruk zouden hebben voor een regendouche. Zeker zo'n grote als we hebben maar dat gaat prima!
:fill(white):strip_exif()/f/image/9Ox28kVqT8KHYn8bPPZhwuSj.png?f=user_large)
:fill(white):strip_exif()/f/image/6dGPveITfd7ibuIbQ8pMqyYF.png?f=user_large)
:fill(white):strip_exif()/f/image/hquHoapisdXzinS3c1OWEXGB.png?f=user_large)
Puur op basis van comfort. We hadden in de oude badkamer alleen een handdoekradiator. Omdat de badkamer gedeeltelijk boven het portiek zit was het 's winters wel echt koud aan de voetjes. De aannemer redeneerde vooral dat als de vloer dan toch open lag en er beton gestort werd het bijna geen extra werk was om er een elektrische vloerverwarming in te leggen. Qua materiaal was het ook verwaarloosbaar dus waarom het niet gewoon doen. Beter mee verlegen dan om verlegen zij mijn oma altijd.Ladypurple schreef op woensdag 27 maart 2024 @ 12:20:
[...]
@jelveen aangeraden/afgeraden op basis van? Oppervlak? En elektrisch/water?
We hebben deze set en een nieuwe CW4 ketel.Blurk62 schreef op woensdag 27 maart 2024 @ 13:17:
[...]
Daar maken wij ons ook een beetje zorgen over. De ene winkel zegt dit, de andere dat. Weet je toevallig hoeveel liter per minuut jouw installatie levert? Hoe groot is jouw douchekop?
Wij kunnen kiezen voor CW4 (7,5 l/m) of tegen bijbetaling en hoger jaartarief voor CW5 (9 l/min)
Via stadsverwarming (HVC) overigens, niet via een CV ketel.
Iig niet je eigen schets, dat is echt heel krap. Vraag je af waarom je een bad wil en hoe vaak je die gaat gebruiken. Maak dan een keuze douche of douche in bad. Ik zou in ieder geval niet wat van de slaapkamer afsnoepen, want dan houd je een vreemde ruimte over ( bedenk dat je er ms ooit nog een fatsoenlijk bed neer wil zetten). @Phusebox heeft ongeveer dezelfde oppervlakte, andere toegang, maar met mooie renders om een idee te krijgen van ruimtelijkheid. Lees zijn struggle Phusebox wil een badkamer maar kan niet kiezenABCstabiel schreef op woensdag 27 maart 2024 @ 14:24:
Beste Tweakers,
Wij gaan binnenkort naar een huis kijken. Nu lijkt het huis op zich uitermate geschikt voor ons, alleen valt de badkamer wat tegen, gezien wij een bad willen. Nu heb ik zeg al wat lopen tekenen/zoeken wat betreft mogelijke opties voor de badkamer, maar vroeg ik mij af of jullie nog andere ideeën hebben?
[Afbeelding]
Dit is de plattegrond van de huidige badkamer.
[Afbeelding]
Een schets die ik online tegenkwam waarbij de afmetingen vrijwel overeenkomen met de afmetingen van de badkamer.
[Afbeelding]
Mijn eigen schets, waarbij we de linker wand van de badkamer verplaatsen richting de slaapkamer/kantoor.
Wat zouden jullie doen? of zouden jullie het totaal anders aanpakken.
xbox live / psn / steam / nintendo id: phusebox | iRacing
Wat vind je goedkoop? En welke regio?bmwdennis schreef op woensdag 27 maart 2024 @ 22:34:
Ik ben opzoek naar een 120cm Badkamermeubel (voor losse waskommen) van het liefst massief eiken met 3/4 lades.
Iemand nog een goedkoop en goed adresje toevallig?
[ Voor 31% gewijzigd door YKla op 27-03-2024 22:49 ]
Tja rond de 1000 - 1500 euro, woon in de achterhoek dus provincie Gelderland/Overijssel
Ah, oke. Kom zelf uit Brabant en daar kun je nog wel slagen voor €1100 in dat formaat bij de zaak waar ik destijds heb gekocht zie ik. Omgeving Den Bosch dus wellicht nog te doen voor je?bmwdennis schreef op woensdag 27 maart 2024 @ 22:53:
[...]
Tja rond de 1000 - 1500 euro, woon in de achterhoek dus provincie Gelderland/Overijssel
Ja hoor, dat is nog wel te doen! Welke zaak ben je destijds geweest? 1100 euro klinkt als een mooi bedrag 😉remzor schreef op woensdag 27 maart 2024 @ 22:59:
[...]
Ah, oke. Kom zelf uit Brabant en daar kun je nog wel slagen voor €1100 in dat formaat bij de zaak waar ik destijds heb gekocht zie ik. Omgeving Den Bosch dus wellicht nog te doen voor je?
Ik had enkele jaren terug dezelfde zoektocht en wilde ook geen plastic/nep/gelamineerd meubel
Je zou eens kunnen kijken naar dit meubel als je 4 lades wil hebben. Er staat ook een mooi alternatief tussen met 2 lades en een plank onder (voor handdoeken o.i.d.). Hopelijk is het wat voor jullie, ze hebben eventueel ook een showroom dus je kunt zelf gaan kijken. Maten en afwerking qua olie/lak is ook deels zelf te bepalen.bmwdennis schreef op donderdag 28 maart 2024 @ 09:46:
[...]
Ja hoor, dat is nog wel te doen! Welke zaak ben je destijds geweest? 1100 euro klinkt als een mooi bedrag 😉
Wil je goedkoop of goed?bmwdennis schreef op woensdag 27 maart 2024 @ 22:34:
Ik ben opzoek naar een 120cm Badkamermeubel (voor losse waskommen) van het liefst massief eiken met 3/4 lades.
Iemand nog een goedkoop en goed adresje toevallig?
Thanks, ziet er indd goed uit zo op het eerste gezicht. Zal daar eens kijken of ik wat kan vinden! Afstand is nog wel te doen.remzor schreef op donderdag 28 maart 2024 @ 10:55:
[...]
Je zou eens kunnen kijken naar dit meubel als je 4 lades wil hebben. Er staat ook een mooi alternatief tussen met 2 lades en een plank onder (voor handdoeken o.i.d.). Hopelijk is het wat voor jullie, ze hebben eventueel ook een showroom dus je kunt zelf gaan kijken. Maten en afwerking qua olie/lak is ook deels zelf te bepalen.
Het liefst goed en goedkoop natuurlijk, maar een meubel/bedrijf met een goede prijs kwaliteitverhouding. Rond de 1000-1500 euro max
Mijn (recente) ervaring is dat 20k wel moet lukken (voor precies dit bedrag heb ik een luxe wastafelmeubel, bad, douche met scheidingswand (betegeld met glasdeur) en verlaagd plafond), mits je niet te dure onderdelen/tegels kiest.YKla schreef op woensdag 27 maart 2024 @ 22:46:
Wij zijn ons nieuwbouwproject aan het begroten. Badkamer van ongeveer 6m2 met een badmeubel, 2 kranen, een douche en een scheidingswandje (deels glas / deels metselwerk). Kom je dan met 20k een beetje weg? Of doen we er verstandig aan ruimer te begroten? Wat reserveert men tegenwoordig voor losse toiletruimtes? 2,5k? Ga even uit van grohe.
Ik ben daarnaast ook wel benieuwd naar de ervaringen met slabs van 2,80m. Die zie je overal langskomen tegenwoordig. Het lijkt me dat deze qua arbeidsintensiteit een stuk makkelijker te zetten en dus naar verhouding goedkoper zouden moeten zijn. Of zie ik dat verkeerd?
Iets anders, ik begrijp dat je alles in je badkamer wilt, daarmee rekenend kom ik op zoiets uit.ABCstabiel schreef op woensdag 27 maart 2024 @ 14:24:
Beste Tweakers,
Wij gaan binnenkort naar een huis kijken. Nu lijkt het huis op zich uitermate geschikt voor ons, alleen valt de badkamer wat tegen, gezien wij een bad willen. Nu heb ik zeg al wat lopen tekenen/zoeken wat betreft mogelijke opties voor de badkamer, maar vroeg ik mij af of jullie nog andere ideeën hebben?
[Afbeelding]
Dit is de plattegrond van de huidige badkamer.
[Afbeelding]
Een schets die ik online tegenkwam waarbij de afmetingen vrijwel overeenkomen met de afmetingen van de badkamer.
[Afbeelding]
Mijn eigen schets, waarbij we de linker wand van de badkamer verplaatsen richting de slaapkamer/kantoor.
Wat zouden jullie doen? of zouden jullie het totaal anders aanpakken.
:strip_exif()/f/image/jjK8No1Ioe3ZofNHnlOrWEnh.jpg?f=fotoalbum_large)
[ Voor 5% gewijzigd door Murkmans op 29-03-2024 23:44 ]
Welke ledprofielen heb jij gebruikt?Masterkale1 schreef op donderdag 8 december 2022 @ 17:16:
Ik heb enige tijd geleden ook mijn badkamer gedaan. Ik wilde dit even delen ter inspiratie voor de mensen hier.
[Afbeelding][Afbeelding][Afbeelding]
[Afbeelding]
ik zie ik zie wat jij niet ziet
Hold. Step. Move. There will always be a way to keep on moving
Zeker! Kan jij ze aanleveren en de categorieën erbij zetten? Heb nu deze 3:D_Jeff schreef op maandag 1 april 2024 @ 20:33:
@ViezeVis Wellicht een idee om een aantal Duitse namen (winkel / webshops) in de TS op te nemen, zodat een nieuwkomer geen 200+ pagina's hoeft door te worstelen?
xbox live / psn / steam / nintendo id: phusebox | iRacing
Dat gebeurt bij ons ook. En dat heeft er mee te maken dat als je 2 toiletten hebt en ze tegelijk de boel gaan slopen, je niet in de tuin hoeft te poepenPhusebox schreef op dinsdag 2 april 2024 @ 20:56:
Aannemer is vorige week geweest om te kijken wat het kost om ook get toilet te laten doen samen met de badkamer. Heb nog geen offerte maar hij gaf al aan dat ze dat niet tegelijk doen. Toilet doen ze pas als de badkamer functioneel is.
Dus vraag me af of het echt goedkoper is. Laat me verrassen deze week.
Dat snap ik. Maar waar zit de tijdswinst dan?ViezeVis schreef op woensdag 3 april 2024 @ 09:43:
[...]
Dat gebeurt bij ons ook. En dat heeft er mee te maken dat als je 2 toiletten hebt en ze tegelijk de boel gaan slopen, je niet in de tuin hoeft te poepen
xbox live / psn / steam / nintendo id: phusebox | iRacing
Sloopwerk, opbouw, tegelwerk, droog tijd en afbouwwerk. Je kan een toilet binnen 10 minuten plaatsen of weer verwijderen, dus als je er even omheen moet werken is die zo (tijdelijk) weg.Phusebox schreef op woensdag 3 april 2024 @ 09:47:
[...]
Dat snap ik. Maar waar zit de tijdswinst dan?
Ze deden niks aan de ruimte tot de badkamer klaar was. Dus zo goed als twee losse projecten. Maar goed laten we de offerte even afwachten.m181087 schreef op woensdag 3 april 2024 @ 12:54:
[...]
Sloopwerk, opbouw, tegelwerk, droog tijd en afbouwwerk. Je kan een toilet binnen 10 minuten plaatsen of weer verwijderen, dus als je er even omheen moet werken is die zo (tijdelijk) weg.
xbox live / psn / steam / nintendo id: phusebox | iRacing
Ik denk eerder voorbereidend werk zoals planning, afplakken, afbouw (kit, montage, eindcontroles), spullen leveren/bestellen.m181087 schreef op woensdag 3 april 2024 @ 12:54:
[...]
Sloopwerk, opbouw, tegelwerk, droog tijd en afbouwwerk. Je kan een toilet binnen 10 minuten plaatsen of weer verwijderen, dus als je er even omheen moet werken is die zo (tijdelijk) weg.
Nieuwe ontwikkelingen nu ik de bovenindeling wat verander:icecreamfarmer schreef op donderdag 7 december 2023 @ 19:16:
[Afbeelding]
Voor de nieuwbouw nu ook aan het oriënteren op de badkamer indeling maar ik zit met een vervelend raam waar ik eigenlijk mijn inloop douche zou willen.
Bij A zit de deur op de originele plek. Deze deur is nog ca 200mm naar links of naar rechts te schuiven.
Voordeel is de grotere douchehoek maar een nadeel is dat je tegenover het melkglas aan het douchen bent en de entree oogt gedrongen en minder ruimtelijk.
Bij B heb ik de deur verplaatst maar de douchehoek wordt zo wel smaller en ik vraag mij af of dat qua ruimtebeleving niet te krap wordt. Overigens is hij in mijn huidige badkamer maar 650mm breed en dat gaat op zich wel maar fijn is anders. Voordeel is meer privacy tijdens het douchen.
Eigenlijk zijn mijn eisen heel simpel:
- Alles geoptimaliseerd voor de schoonmaak. Dus ik zat aan een gietvloer, hele grote tegels of een volledige terrazodouchehoek te denken. Zo min mogelijk randjes, richeltjes en materialen die niet tegen een hogedrukspuit kunnen;
- Inloopdouche met regendouche;
- Dubbele wastafel bestaande uit 1 bak;
- Alle kranen uit de muur;
- Er mag niets op de vloer staan.
- Zo'n douchegoot: https://www.easydrain.nl/product/waterstop-wall-tile-grate/
- Ik wil absoluut geen glazen wanden of deuren.
Ik ben alleen nog niet echt overtuigd van de indeling. Beiden zijn wat mij betreft niet optimaal.
Iemand slimme ideeen?
Van deze stijl ben ik wel gecharmeerd:
[Afbeelding]
ik zie ik zie wat jij niet ziet
It's time to play the music, it's time to light the lights
I don't know what happened, but it sure don't add up on paper And as long as she lets me, I'll take her wherever she wants me to take her
Hold. Step. Move. There will always be a way to keep on moving
Tegeldepot ZeewoldeD_Jeff schreef op vrijdag 5 april 2024 @ 21:56:
Iemand nog tips/adressen (mag ook in DE) voor 120 x 120 cm tegels?
(Heb max 4 tegels nodig, maar Jan Groen begint gewoon bij zo'n 200 euro per doos)
Fliesenmax.D_Jeff schreef op vrijdag 5 april 2024 @ 21:56:
Iemand nog tips/adressen (mag ook in DE) voor 120 x 120 cm tegels?
(Heb max 4 tegels nodig, maar Jan Groen begint gewoon bij zo'n 200 euro per doos)
xbox live / psn / steam / nintendo id: phusebox | iRacing
https://www.fliesen-huening.de/nl/D_Jeff schreef op vrijdag 5 april 2024 @ 21:56:
Iemand nog tips/adressen (mag ook in DE) voor 120 x 120 cm tegels?
(Heb max 4 tegels nodig, maar Jan Groen begint gewoon bij zo'n 200 euro per doos)
https://www.tegelsinhuis.nl/D_Jeff schreef op vrijdag 5 april 2024 @ 21:56:
Iemand nog tips/adressen (mag ook in DE) voor 120 x 120 cm tegels?
(Heb max 4 tegels nodig, maar Jan Groen begint gewoon bij zo'n 200 euro per doos)
Helaas iets minder geschikt vanwege een verplichte afnamen van 10 tegels (14,4m2 online benoemd).
Hold. Step. Move. There will always be a way to keep on moving
De tip van @Vijeta is voor mij ook een kleine verrassing (lees: de eerste winkel die een minimale afneemhoeveelheid zie benoemen). Dus blijkbaar niet overal.Guido7619 schreef op zondag 7 april 2024 @ 11:39:
Overal waar ze tegels op voorraad hebben liggen kun je toch gewoon zoveel kopen als je wilt?
Marktplaats biedt ook uitkomst. Genoeg mensen die 4 tegels over hebben na een badkamer verbouwing.
Hold. Step. Move. There will always be a way to keep on moving
Haha, nou de offerte is binnen.Phusebox schreef op dinsdag 26 maart 2024 @ 09:22:
[...]
Ik heb een afspraak gemaakt. Maar 600 euro aan sanitair is wel erg weinig?
Up320 is al 220 euro. Met een goedkope drukknop en toiletpot zit je al aan 600 euro.
Dan moet je nog een fontein, ook snel 400-500 euro. Spiegel erbij.
Denk eerder tegels + sanitair 2 tot 2,5k. Uurloon 1,5k.
En dan ga ik uit van tegels over tegels, zonder stucwerk.
[ Voor 27% gewijzigd door Phusebox op 08-04-2024 17:15 ]
xbox live / psn / steam / nintendo id: phusebox | iRacing
En het eindresultaat is er al eventjes, kan al weer tijdje douchen en dat bevalt beter dan verwacht onder de regendouche. Goed ding die euphoria 310!Minaaj schreef op maandag 18 maart 2024 @ 21:56:
[...]
***members only***
Zit ondertussen in de 7de dag van de verbouwing, toilet is vandaag gevoegd.
Badkamer zijn ze aan het tegelen ondertussen, hopelijk deze week klaar want grote tegels en kleine badkamer.
Hopelijk kan ik weekend of begin volgende week weer douchen in mijn eigen huis.![]()
Radiator heb ik nog moeten ontkoppelen van blokverwarming was nog aardige klus, komt nu elektrische radiator aan de muur met wifi.
Zie post die ik quote voor aanvullend verhaal. Op dit moment zit ik nog aardig rond het budget dat ik had ingecalculeerd. Vermoedelijk nu 15-16k kwijt maar heb ook wat tegels te veel die eventueel terug kunnen.
Heb wel douchedeur moeten veranderen omdat ik niet zeker wist of ik op 60CM uitkwam bij muurtje na betegelen en sluiting daarvan. Ook heb ik huismerk kranen en regendouche verwisseld met Grohe kranen in Supersteel uitvoering. (Ook euphoria 310 xxl)
Zelf alles ontworpen en keuze tegels, tot zover ben ik er zeker blij mee.
[ Voor 52% gewijzigd door Minaaj op 08-04-2024 22:28 ]
Ik ken dit bad niet.Vijeta schreef op dinsdag 9 april 2024 @ 15:22:
Wij zitten te kijken naar een vrijstaande bad voor onze nieuwe badkamer. Zoiets als dit is voor ons prima, maar ik twijfel een beetje ivm de lage prijs. Wat denken jullie?
https://www.woon-discount...gn-ligbad-lubana-160.html
Hold. Step. Move. There will always be a way to keep on moving
[ Voor 11% gewijzigd door hdtracer op 09-04-2024 21:41 ]
xbox live / psn / steam / nintendo id: phusebox | iRacing
Optie 1 is mooi hoor, maar wel smaakgevoelig en veel minder tijdloos.Phusebox schreef op donderdag 11 april 2024 @ 09:50:
Kan niet kiezen qua tegels als accent voor het toilet:
[Afbeelding]
[Afbeelding]
En 3x zo duurSquareOne schreef op donderdag 11 april 2024 @ 09:54:
[...]
Optie 1 is mooi hoor, maar wel smaakgevoelig en veel minder tijdloos.
[ Voor 12% gewijzigd door Phusebox op 11-04-2024 09:59 ]
xbox live / psn / steam / nintendo id: phusebox | iRacing
Met die geribbelde tegel heb je toch al een fraaie accent tegel. Ik zou niet voor 2 accent tegels gaan.Phusebox schreef op donderdag 11 april 2024 @ 09:57:
[...]
En 3x zo duur
Ben beetje bang dat ik spijt ga krijgen en het andere erg saai is. Maar ja, ik en kiezen. Dan maar goedkoop en als het dan saai en lelijk is was het tenminste niet schreeuwend duur.
[Afbeelding]
xbox live / psn / steam / nintendo id: phusebox | iRacing
Ohoh, plaatjes verwisseld, bedoel tweePhusebox schreef op donderdag 11 april 2024 @ 09:50:
Kan niet kiezen qua tegels als accent voor het toilet:
[Afbeelding]
[Afbeelding]
/f/image/gZXPCUCGpUSUTAJsp2pRBLe2.png?f=fotoalbum_large)
/f/image/ARhuw3AgLbcbuRyFnQ72pga9.png?f=fotoalbum_large)
/f/image/c52CBwic1vdyomTp3JByII1j.png?f=fotoalbum_large)
:strip_exif()/f/image/eCfHRKSwENIC5Wtf7lCyBwdA.jpg?f=fotoalbum_large)
:strip_exif()/f/image/ezsqrtNgWbrSQgPau6KuY8MK.jpg?f=fotoalbum_large)
Apple iPhone 17 LG OLED evo G5 Google Pixel 10 Samsung Galaxy S25 Star Wars: Outlaws Nintendo Switch 2 Apple AirPods Pro (2e generatie) Sony PlayStation 5 Pro
Tweakers is onderdeel van
DPG Media B.V.
Alle rechten voorbehouden - Auteursrecht © 1998 - 2025
•
Hosting door TrueFullstaq