Dus niks qua versteviging boven de gipsplaat waar de stang eraan vast geschroefd zit?
Nee niks. In mijn oude huis zat er een stang naar de muur toe en had verwacht dat dat nu ook zou zijn. Daarom geen rekening mee gehouden. Als je het wel weet, kleine moeite om een extra balk te plaatsen.olafmol schreef op vrijdag 27 maart 2026 @ 15:53:
[...]
Dus niks qua versteviging boven de gipsplaat waar de stang eraan vast geschroefd zit?
De badkamerwinkel voorziet normaliter toch de klant van een installatietekening? We hebben alleen een ruwe maatschets gekregen, niet een echte installatietekening met bv vooraanzicht met posities warm/koud water op de mm in afstand tot muur en vloer.
20k uitgeven en dan geen installatietekening. Hadden we met zo goed naar x2o kunnen gaan.
20k uitgeven en dan geen installatietekening. Hadden we met zo goed naar x2o kunnen gaan.
Misschien niet standaard, maar als je het vraagt lijkt me dat ze dat kunnen doen?Hertog_Martin schreef op zaterdag 28 maart 2026 @ 17:48:
De badkamerwinkel voorziet normaliter toch de klant van een installatietekening? We hebben alleen een ruwe maatschets gekregen, niet een echte installatietekening met bv vooraanzicht met posities warm/koud water op de mm in afstand tot muur en vloer.
20k uitgeven en dan geen installatietekening. Hadden we met zo goed naar x2o kunnen gaan.
Hebben ze het wel ingemeten allemaal?
Nee dat doen zeker niet alle badkamerzaken. Is niet zo gebruikelijk als bij een keuken.Hertog_Martin schreef op zaterdag 28 maart 2026 @ 17:48:
De badkamerwinkel voorziet normaliter toch de klant van een installatietekening? We hebben alleen een ruwe maatschets gekregen, niet een echte installatietekening met bv vooraanzicht met posities warm/koud water op de mm in afstand tot muur en vloer.
20k uitgeven en dan geen installatietekening. Hadden we met zo goed naar x2o kunnen gaan.
13480 Wp solar | 2x Panasonic 7j met 1x 300l sww | (Laadpaal) installateur, pb voor een offerte
Hm oké, apart, het is belangrijker dan bij een keuken aangezien bv voor een douchekraan de wateraansluiting exact op de juiste positie moet zitten.Makrolon schreef op zondag 29 maart 2026 @ 16:50:
[...]
Nee dat doen zeker niet alle badkamerzaken. Is niet zo gebruikelijk als bij een keuken.
Ja alleen als de aanemer zelf niet kan bedenken waar dat moet komen kan je beter een andere zoeken.Hertog_Martin schreef op zondag 29 maart 2026 @ 18:12:
[...]
Hm oké, apart, het is belangrijker dan bij een keuken aangezien bv voor een douchekraan de wateraansluiting exact op de juiste positie moet zitten.
En als je in het werk beslist dat je de douche iets groter maakt en de kraan moet in t midden heb je ook niks meer aan die tekening.
13480 Wp solar | 2x Panasonic 7j met 1x 300l sww | (Laadpaal) installateur, pb voor een offerte
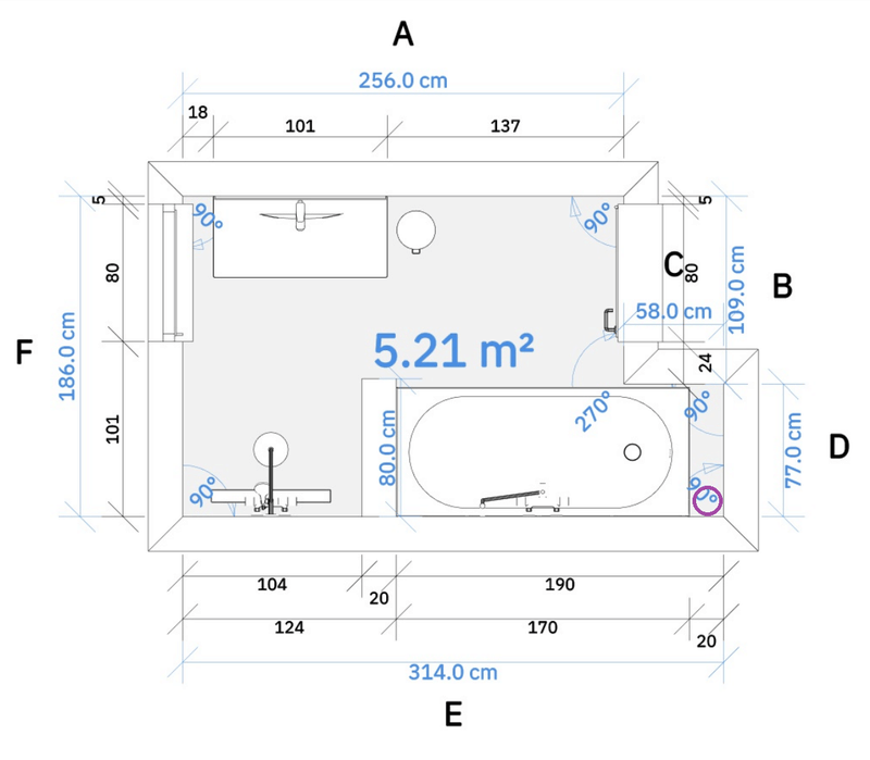
Wij willen in een aangekochte woning onze badkamer (4m2) en een toilet (1.1m2) laten renoveren met een basis opstelling in het laag / midden segment. Denk aan een inloopdouche, toilet, wasmeubel, spiegel en spotjes.
Wij zijn langs 3 badkamer speciaalzaken geweest, een aannemer gesproken en heb nog kort met Hornbach gesproken over hun plaatsingsservice over onze wensen en wat de kosten ongeveer gaan worden.
Bij de speciaalzaken liggen de prijzen op 22k totaal inclusief montage waarvan de montage ongeveer 13k - 15k als range in beslag neemt voor badkamer & toilet samen en variërend van 7k-9k kosten voor sanitair en alle benodigdheden voor de klus.
De aannemer rekent 24k in totaal met 5k als reservering voor sanitair als stelpost.
Hornbach zegt dat ze voor een badkamer van dit formaat 15k rekenen voor installatie en een toilet vaak rond de 5k en zegt dat 25k-27k totaal realistisch is.
Ben benieuwd of dit een beetje herkenbare bedragen zijn en gebruikelijk, of dat we echt verkeerd aan het kijken zijn wellicht.
Wij zijn langs 3 badkamer speciaalzaken geweest, een aannemer gesproken en heb nog kort met Hornbach gesproken over hun plaatsingsservice over onze wensen en wat de kosten ongeveer gaan worden.
Bij de speciaalzaken liggen de prijzen op 22k totaal inclusief montage waarvan de montage ongeveer 13k - 15k als range in beslag neemt voor badkamer & toilet samen en variërend van 7k-9k kosten voor sanitair en alle benodigdheden voor de klus.
De aannemer rekent 24k in totaal met 5k als reservering voor sanitair als stelpost.
Hornbach zegt dat ze voor een badkamer van dit formaat 15k rekenen voor installatie en een toilet vaak rond de 5k en zegt dat 25k-27k totaal realistisch is.
Ben benieuwd of dit een beetje herkenbare bedragen zijn en gebruikelijk, of dat we echt verkeerd aan het kijken zijn wellicht.
In sept/okt heb ik (samen met m'n vriendin) een huis gekocht. Op 2 feb de steutel gekregen en 2 feb waren de eerste tegels van de badkamer. Oh ja wij hadden geen klus ervaring. Omdat dit topic vooral over de verkopers, kwaliteit en prijs gaat zal ik daar mee beginnen. TLDR: kosten stan onderaan.
Goed het begint met een geschikte toko uitzoeken die je helpt, mijn voorkeur had er een bij uit het dorp, maar mijn vriendin die wilde graag naar zo'n sale/dump winkel, dus we zijn een rondje gaan doen op zo'n boulevard. Ik schrok op dat moment wel een beetje van de prijzen. Uiteindelijk hebben we er één gekozen, maar achteraf kan ik niet goed vertellen waarom. Prima geholpen met wat voor spullen we wilde, maar er moest een inmeting worden gedaan a 180 euro. Vond ik al vreemd en ik had al gezegd dat het waardeloos is, want het verlaagd plafond moet eruit en het muurtje van de badkamer van de oud bewoners. De verkoper stond erop en wil het anders niet verkopen. Oh ja alles moest in de winkel worden afgesproken, niets via de mail, niets via de telefoon. Niet echt handig maar goed. Uiteindelijk hebben we de prijs uit onderhandeld en een handtekening eronder(waarom bestaat dit soort handje klap nog). Ohja, het slopen, tegels zetten, plafond stucen, loodgieter werk en alle randzaken kon je afnemen a 15k. We hadden al een loodgieter en stucadoor (voor het plafond) dus we vonden niet nodig. Slopen zouden we zelf doen, waar ik me zelf zeer overschat ben trouwens. We hebben bij deze partij ook de wc tegels en WC + fontein met meubel(tje) gekocht. Spullen zouden 10 weken levertijd en ruim op tijd zouden we zijn (12 weken van te voren).
Al dit soort toko's maken gebruik van onder aannemers en verkopen alleen iets. Spullen worden opgeslagen bij Punt A. Spullen worden geleverd door Punt B. naja opzich niet erg, maar zo ook het inmeten. We hadden nog niet de sleutel maar van de (oude) bewoners konden wel ff langs komen. Zijn immers oude mensen dus ze vonden het wel leuk dat er mensen op bezoek kwamen. Heb natuurlijk wel aan de inmeter gevraagd waarom we dit nu doen, want heel die badkamer gaat plat "geen idee waarom je dat zou doen, er zit een verlaagd plafond onder" aldus de inmeter. Hierna nogmaal tegen de verkoper gezegd dat het plafond er nog uit gaat, maar dat beetje gaat niet veel uit maken. We hadden 0 tegels over en er zijn er gelukkig 0 gebroken.
In de tussentijd hebben we de sleutel gekregen en ben ik de eerste week bezig geweest met deel de badkamer te slopen, waar 3 lagen(!!!) tegels overheen zaten. De tegels zouden geleverd worden op 9 feb, althans in de week van 9 feb, maar helaas gebeurde dit niet. Op 6 feb om 16:30(!!!), sorry meneer we kunnen niet leveren volgende week de tegels zijn niet op voorraad. Deze zouden op 17 maart leverbaar zijn. Deze man sprak vrij gebrekig nederlands en ik kon de datum niet verstaan alleen 17. Ik heb het op de mail laten zetten en hier kwam ik erachter dat deze persoon maart zei (ofdat hij ook echt maart heeft gezegd kan ik me niet meer herinneren). Ik heb geprobeerd de winkel te bellen, maar die waren onbereikbaar. Ik ben vervolgens zelf die avond op zoek gegaan naar het zelfde merk en waar deze verkocht worden en ja hoor, ik vond een webshop waar ze op voorraad waren. Hup daar heen de volgende dag, maar helaas deze showroom kon ze ook niet bestellen. Deze showroom wilde wel ff bellen hoe het kan dat al die tegel in een dag weg zijn gegaan. Een project ontwikkelaar, ohja op donderdag einde van de middag! Uiteindelijk hebben we een tint donkerder gekozen en daarvoor een offerte willen laten opmaken, zodat we deze eventueel dinsdag bij hun konden bestellen en ze van de factuur laten halen bij de badkamer winkel. Dinsdag dr heen, want aan de telefoon krijg je niets klaar bij ze. we hebben ook een douch goot willen switchen, een zonder flens op aanrader van de loodgieter. Het argument was daar; nee we hebben al ingekocht (HOE KUN JE DE TEGELS NIET HEBBEN DAN!?). Goed, terug naar de winkel, was allemaal moeilijk maar meneer ging de leverancier bellen. De tegels zouden 26 feb binnen komen en dan 27ste uitgeleverd worden. Nou prima, iets later en de tegelzetter zou die week erna ook nog kunnen. Zet het op de mail dat je het bevestigd en dan bel ik morgen voor een afspraak te maken voor het transport. Dit moest dan met de verkoper zelf gebeuren die was die dag vrij. Woensdag ochtend; neemt niet op; woensdag middag; Ja hij zit met een klant, eind van de dag belt hij terug. donderdag ochtend; hij belt eind van de dag terug. Daar trap ik geen twee keer in dus ik heb gevraagd wanneer hij klaar is dat ik zelf wel bel, omdat ze dit gisterne zijn vergeten. Gelukkig nam hij daarna wel op. Nou af gesproken dat de 27ste alles zouden leveren (of nee toch niet). Uurtje later belt de verkoper terug. Gaat niet lukken worden toch pas in maart geleverd. Toen heb ik toch even uigelegd dat we ons in allerlei bochten aan het wurmen zijn, omdat één partij zich niet aan afspraken kunnen houden. Geprobeerd om nog onder de tegels uit te komen, maar ze bleven steen vast dat dit niet kon. Uiteindelijk heb ik het artikel nummer gegeven van de tint donker en deze was wel op voorraad (joh) en hebben we deze maar bestelt. Alles zou op de 27ste binnen komen (hopen we).
In de tussen tijd hebben de hele badkamer gesloopt, zit de afvoer toch iets anders dan gedacht, maar daar maak ik wel iets van met de loodgieter. Ik ben blij dat ik een goeie breekhamer heb gekocht, want holy shit. maar goed spullen zijn binnen gekomen, ik was die dag in het nieuwe huis gaan werken, zodat ze niet zeggen dat er niemand is. Ze zouden tussen 11 en 1 komen en wat denk je, half 11 waren ze er al. Ook niet gebeld van te voren.
Loodgieter is een collega van m'n vader en niets op aan te merken. Hadden zelf alles al uitgebikt hij hoefde alleen de nieuwe leidingen te leggen, af te knellen en de nieuwe afvoer naar de koof. Tegelzetter komt ook uit het dorp en ook niets op aan te merken. Binnen 6 dagen was alles af en een random 7de dag is alles gekit. Meubel, douch, wc en spiegel hebben we zelf opgehangen.
Het lijkt nu een beetje een negatief verhaal, maar er zijn ook best wel dingen goed gegaan, maar de slechten dingen blijven meer hangen in zoiets. Ik ben hier veel te veel mee bezig geweest, waardoor ik ik merkte dat ik soms met een ander humeur aan de slag ging in het huis. Je denkt een badkamer te kopen bij één partij en dan ben je als nog heel de tijd bezig met van alles te regelen. Ga ik ooit terug naar deze toko? Nee ik zal weer een partij kiezen in de buurt in plaats van dit soort cowboys. Maar goed, de kosten;
Badkamer spullen: 8.5k (incl wc beneden + fontein met op berg kastje, zelfde merk/vorm als badkamer)
Stucadoor: 1000, ongeveer (cement basis op de muur & plafond. We hebben nog meer laten stucen in het huis)
Tegelzetter: 7.5k (wc wand + badkamer wand en vloer)
Loodgieter: 550 en 2 lunches + wat bier (prijs is incl materiaal)
Eigen uren: rond de 70 uur (elektra punt, wc ophangen en meubels, maar voornamelijk slopen)
Totaal: 17.550
Volgende week overhuizen na elk weekend klussen vanaf 2 feb. Nog niet af, maar wel bewoonbaar. Ik ben er onderhand ook wel klaar en ik ben blij 11 jaar geleden de keuze heb gemaakt om toch een HBO studie achter m'n MBO te gaan doen. Hieronder nog een foto van het resultaat. Badkamer is 2.50 bij 2.26.
Goed het begint met een geschikte toko uitzoeken die je helpt, mijn voorkeur had er een bij uit het dorp, maar mijn vriendin die wilde graag naar zo'n sale/dump winkel, dus we zijn een rondje gaan doen op zo'n boulevard. Ik schrok op dat moment wel een beetje van de prijzen. Uiteindelijk hebben we er één gekozen, maar achteraf kan ik niet goed vertellen waarom. Prima geholpen met wat voor spullen we wilde, maar er moest een inmeting worden gedaan a 180 euro. Vond ik al vreemd en ik had al gezegd dat het waardeloos is, want het verlaagd plafond moet eruit en het muurtje van de badkamer van de oud bewoners. De verkoper stond erop en wil het anders niet verkopen. Oh ja alles moest in de winkel worden afgesproken, niets via de mail, niets via de telefoon. Niet echt handig maar goed. Uiteindelijk hebben we de prijs uit onderhandeld en een handtekening eronder(waarom bestaat dit soort handje klap nog). Ohja, het slopen, tegels zetten, plafond stucen, loodgieter werk en alle randzaken kon je afnemen a 15k. We hadden al een loodgieter en stucadoor (voor het plafond) dus we vonden niet nodig. Slopen zouden we zelf doen, waar ik me zelf zeer overschat ben trouwens. We hebben bij deze partij ook de wc tegels en WC + fontein met meubel(tje) gekocht. Spullen zouden 10 weken levertijd en ruim op tijd zouden we zijn (12 weken van te voren).
Al dit soort toko's maken gebruik van onder aannemers en verkopen alleen iets. Spullen worden opgeslagen bij Punt A. Spullen worden geleverd door Punt B. naja opzich niet erg, maar zo ook het inmeten. We hadden nog niet de sleutel maar van de (oude) bewoners konden wel ff langs komen. Zijn immers oude mensen dus ze vonden het wel leuk dat er mensen op bezoek kwamen. Heb natuurlijk wel aan de inmeter gevraagd waarom we dit nu doen, want heel die badkamer gaat plat "geen idee waarom je dat zou doen, er zit een verlaagd plafond onder" aldus de inmeter. Hierna nogmaal tegen de verkoper gezegd dat het plafond er nog uit gaat, maar dat beetje gaat niet veel uit maken. We hadden 0 tegels over en er zijn er gelukkig 0 gebroken.
In de tussentijd hebben we de sleutel gekregen en ben ik de eerste week bezig geweest met deel de badkamer te slopen, waar 3 lagen(!!!) tegels overheen zaten. De tegels zouden geleverd worden op 9 feb, althans in de week van 9 feb, maar helaas gebeurde dit niet. Op 6 feb om 16:30(!!!), sorry meneer we kunnen niet leveren volgende week de tegels zijn niet op voorraad. Deze zouden op 17 maart leverbaar zijn. Deze man sprak vrij gebrekig nederlands en ik kon de datum niet verstaan alleen 17. Ik heb het op de mail laten zetten en hier kwam ik erachter dat deze persoon maart zei (ofdat hij ook echt maart heeft gezegd kan ik me niet meer herinneren). Ik heb geprobeerd de winkel te bellen, maar die waren onbereikbaar. Ik ben vervolgens zelf die avond op zoek gegaan naar het zelfde merk en waar deze verkocht worden en ja hoor, ik vond een webshop waar ze op voorraad waren. Hup daar heen de volgende dag, maar helaas deze showroom kon ze ook niet bestellen. Deze showroom wilde wel ff bellen hoe het kan dat al die tegel in een dag weg zijn gegaan. Een project ontwikkelaar, ohja op donderdag einde van de middag! Uiteindelijk hebben we een tint donkerder gekozen en daarvoor een offerte willen laten opmaken, zodat we deze eventueel dinsdag bij hun konden bestellen en ze van de factuur laten halen bij de badkamer winkel. Dinsdag dr heen, want aan de telefoon krijg je niets klaar bij ze. we hebben ook een douch goot willen switchen, een zonder flens op aanrader van de loodgieter. Het argument was daar; nee we hebben al ingekocht (HOE KUN JE DE TEGELS NIET HEBBEN DAN!?). Goed, terug naar de winkel, was allemaal moeilijk maar meneer ging de leverancier bellen. De tegels zouden 26 feb binnen komen en dan 27ste uitgeleverd worden. Nou prima, iets later en de tegelzetter zou die week erna ook nog kunnen. Zet het op de mail dat je het bevestigd en dan bel ik morgen voor een afspraak te maken voor het transport. Dit moest dan met de verkoper zelf gebeuren die was die dag vrij. Woensdag ochtend; neemt niet op; woensdag middag; Ja hij zit met een klant, eind van de dag belt hij terug. donderdag ochtend; hij belt eind van de dag terug. Daar trap ik geen twee keer in dus ik heb gevraagd wanneer hij klaar is dat ik zelf wel bel, omdat ze dit gisterne zijn vergeten. Gelukkig nam hij daarna wel op. Nou af gesproken dat de 27ste alles zouden leveren (of nee toch niet). Uurtje later belt de verkoper terug. Gaat niet lukken worden toch pas in maart geleverd. Toen heb ik toch even uigelegd dat we ons in allerlei bochten aan het wurmen zijn, omdat één partij zich niet aan afspraken kunnen houden. Geprobeerd om nog onder de tegels uit te komen, maar ze bleven steen vast dat dit niet kon. Uiteindelijk heb ik het artikel nummer gegeven van de tint donker en deze was wel op voorraad (joh) en hebben we deze maar bestelt. Alles zou op de 27ste binnen komen (hopen we).
In de tussen tijd hebben de hele badkamer gesloopt, zit de afvoer toch iets anders dan gedacht, maar daar maak ik wel iets van met de loodgieter. Ik ben blij dat ik een goeie breekhamer heb gekocht, want holy shit. maar goed spullen zijn binnen gekomen, ik was die dag in het nieuwe huis gaan werken, zodat ze niet zeggen dat er niemand is. Ze zouden tussen 11 en 1 komen en wat denk je, half 11 waren ze er al. Ook niet gebeld van te voren.
Loodgieter is een collega van m'n vader en niets op aan te merken. Hadden zelf alles al uitgebikt hij hoefde alleen de nieuwe leidingen te leggen, af te knellen en de nieuwe afvoer naar de koof. Tegelzetter komt ook uit het dorp en ook niets op aan te merken. Binnen 6 dagen was alles af en een random 7de dag is alles gekit. Meubel, douch, wc en spiegel hebben we zelf opgehangen.
Het lijkt nu een beetje een negatief verhaal, maar er zijn ook best wel dingen goed gegaan, maar de slechten dingen blijven meer hangen in zoiets. Ik ben hier veel te veel mee bezig geweest, waardoor ik ik merkte dat ik soms met een ander humeur aan de slag ging in het huis. Je denkt een badkamer te kopen bij één partij en dan ben je als nog heel de tijd bezig met van alles te regelen. Ga ik ooit terug naar deze toko? Nee ik zal weer een partij kiezen in de buurt in plaats van dit soort cowboys. Maar goed, de kosten;
Badkamer spullen: 8.5k (incl wc beneden + fontein met op berg kastje, zelfde merk/vorm als badkamer)
Stucadoor: 1000, ongeveer (cement basis op de muur & plafond. We hebben nog meer laten stucen in het huis)
Tegelzetter: 7.5k (wc wand + badkamer wand en vloer)
Loodgieter: 550 en 2 lunches + wat bier (prijs is incl materiaal)
Eigen uren: rond de 70 uur (elektra punt, wc ophangen en meubels, maar voornamelijk slopen)
Totaal: 17.550
Volgende week overhuizen na elk weekend klussen vanaf 2 feb. Nog niet af, maar wel bewoonbaar. Ik ben er onderhand ook wel klaar en ik ben blij 11 jaar geleden de keuze heb gemaakt om toch een HBO studie achter m'n MBO te gaan doen. Hieronder nog een foto van het resultaat. Badkamer is 2.50 bij 2.26.
En bij welke zaak was dit?SlqmLqck schreef op zondag 29 maart 2026 @ 21:52:
In sept/okt heb ik (samen met m'n vriendin) een huis gekocht. Op 2 feb de steutel gekregen en 2 feb waren de eerste tegels van de badkamer. Oh ja wij hadden geen klus ervaring. Omdat dit topic vooral over de verkopers, kwaliteit en prijs gaat zal ik daar mee beginnen. TLDR: kosten stan onderaan.
Goed het begint met een geschikte toko uitzoeken die je helpt, mijn voorkeur had er een bij uit het dorp, maar mijn vriendin die wilde graag naar zo'n sale/dump winkel, dus we zijn een rondje gaan doen op zo'n boulevard. Ik schrok op dat moment wel een beetje van de prijzen. Uiteindelijk hebben we er één gekozen, maar achteraf kan ik niet goed vertellen waarom. Prima geholpen met wat voor spullen we wilde, maar er moest een inmeting worden gedaan a 180 euro. Vond ik al vreemd en ik had al gezegd dat het waardeloos is, want het verlaagd plafond moet eruit en het muurtje van de badkamer van de oud bewoners. De verkoper stond erop en wil het anders niet verkopen. Oh ja alles moest in de winkel worden afgesproken, niets via de mail, niets via de telefoon. Niet echt handig maar goed. Uiteindelijk hebben we de prijs uit onderhandeld en een handtekening eronder(waarom bestaat dit soort handje klap nog). Ohja, het slopen, tegels zetten, plafond stucen, loodgieter werk en alle randzaken kon je afnemen a 15k. We hadden al een loodgieter en stucadoor (voor het plafond) dus we vonden niet nodig. Slopen zouden we zelf doen, waar ik me zelf zeer overschat ben trouwens. We hebben bij deze partij ook de wc tegels en WC + fontein met meubel(tje) gekocht. Spullen zouden 10 weken levertijd en ruim op tijd zouden we zijn (12 weken van te voren).
Al dit soort toko's maken gebruik van onder aannemers en verkopen alleen iets. Spullen worden opgeslagen bij Punt A. Spullen worden geleverd door Punt B. naja opzich niet erg, maar zo ook het inmeten. We hadden nog niet de sleutel maar van de (oude) bewoners konden wel ff langs komen. Zijn immers oude mensen dus ze vonden het wel leuk dat er mensen op bezoek kwamen. Heb natuurlijk wel aan de inmeter gevraagd waarom we dit nu doen, want heel die badkamer gaat plat "geen idee waarom je dat zou doen, er zit een verlaagd plafond onder" aldus de inmeter. Hierna nogmaal tegen de verkoper gezegd dat het plafond er nog uit gaat, maar dat beetje gaat niet veel uit maken. We hadden 0 tegels over en er zijn er gelukkig 0 gebroken.
In de tussentijd hebben we de sleutel gekregen en ben ik de eerste week bezig geweest met deel de badkamer te slopen, waar 3 lagen(!!!) tegels overheen zaten. De tegels zouden geleverd worden op 9 feb, althans in de week van 9 feb, maar helaas gebeurde dit niet. Op 6 feb om 16:30(!!!), sorry meneer we kunnen niet leveren volgende week de tegels zijn niet op voorraad. Deze zouden op 17 maart leverbaar zijn. Deze man sprak vrij gebrekig nederlands en ik kon de datum niet verstaan alleen 17. Ik heb het op de mail laten zetten en hier kwam ik erachter dat deze persoon maart zei (ofdat hij ook echt maart heeft gezegd kan ik me niet meer herinneren). Ik heb geprobeerd de winkel te bellen, maar die waren onbereikbaar. Ik ben vervolgens zelf die avond op zoek gegaan naar het zelfde merk en waar deze verkocht worden en ja hoor, ik vond een webshop waar ze op voorraad waren. Hup daar heen de volgende dag, maar helaas deze showroom kon ze ook niet bestellen. Deze showroom wilde wel ff bellen hoe het kan dat al die tegel in een dag weg zijn gegaan. Een project ontwikkelaar, ohja op donderdag einde van de middag! Uiteindelijk hebben we een tint donkerder gekozen en daarvoor een offerte willen laten opmaken, zodat we deze eventueel dinsdag bij hun konden bestellen en ze van de factuur laten halen bij de badkamer winkel. Dinsdag dr heen, want aan de telefoon krijg je niets klaar bij ze. we hebben ook een douch goot willen switchen, een zonder flens op aanrader van de loodgieter. Het argument was daar; nee we hebben al ingekocht (HOE KUN JE DE TEGELS NIET HEBBEN DAN!?). Goed, terug naar de winkel, was allemaal moeilijk maar meneer ging de leverancier bellen. De tegels zouden 26 feb binnen komen en dan 27ste uitgeleverd worden. Nou prima, iets later en de tegelzetter zou die week erna ook nog kunnen. Zet het op de mail dat je het bevestigd en dan bel ik morgen voor een afspraak te maken voor het transport. Dit moest dan met de verkoper zelf gebeuren die was die dag vrij. Woensdag ochtend; neemt niet op; woensdag middag; Ja hij zit met een klant, eind van de dag belt hij terug. donderdag ochtend; hij belt eind van de dag terug. Daar trap ik geen twee keer in dus ik heb gevraagd wanneer hij klaar is dat ik zelf wel bel, omdat ze dit gisterne zijn vergeten. Gelukkig nam hij daarna wel op. Nou af gesproken dat de 27ste alles zouden leveren (of nee toch niet). Uurtje later belt de verkoper terug. Gaat niet lukken worden toch pas in maart geleverd. Toen heb ik toch even uigelegd dat we ons in allerlei bochten aan het wurmen zijn, omdat één partij zich niet aan afspraken kunnen houden. Geprobeerd om nog onder de tegels uit te komen, maar ze bleven steen vast dat dit niet kon. Uiteindelijk heb ik het artikel nummer gegeven van de tint donker en deze was wel op voorraad (joh) en hebben we deze maar bestelt. Alles zou op de 27ste binnen komen (hopen we).
In de tussen tijd hebben de hele badkamer gesloopt, zit de afvoer toch iets anders dan gedacht, maar daar maak ik wel iets van met de loodgieter. Ik ben blij dat ik een goeie breekhamer heb gekocht, want holy shit. maar goed spullen zijn binnen gekomen, ik was die dag in het nieuwe huis gaan werken, zodat ze niet zeggen dat er niemand is. Ze zouden tussen 11 en 1 komen en wat denk je, half 11 waren ze er al. Ook niet gebeld van te voren.
Loodgieter is een collega van m'n vader en niets op aan te merken. Hadden zelf alles al uitgebikt hij hoefde alleen de nieuwe leidingen te leggen, af te knellen en de nieuwe afvoer naar de koof. Tegelzetter komt ook uit het dorp en ook niets op aan te merken. Binnen 6 dagen was alles af en een random 7de dag is alles gekit. Meubel, douch, wc en spiegel hebben we zelf opgehangen.
Het lijkt nu een beetje een negatief verhaal, maar er zijn ook best wel dingen goed gegaan, maar de slechten dingen blijven meer hangen in zoiets. Ik ben hier veel te veel mee bezig geweest, waardoor ik ik merkte dat ik soms met een ander humeur aan de slag ging in het huis. Je denkt een badkamer te kopen bij één partij en dan ben je als nog heel de tijd bezig met van alles te regelen. Ga ik ooit terug naar deze toko? Nee ik zal weer een partij kiezen in de buurt in plaats van dit soort cowboys. Maar goed, de kosten;
Badkamer spullen: 8.5k (incl wc beneden + fontein met op berg kastje, zelfde merk/vorm als badkamer)
Stucadoor: 1000, ongeveer (cement basis op de muur & plafond. We hebben nog meer laten stucen in het huis)
Tegelzetter: 7.5k (wc wand + badkamer wand en vloer)
Loodgieter: 550 en 2 lunches + wat bier (prijs is incl materiaal)
Eigen uren: rond de 70 uur (elektra punt, wc ophangen en meubels, maar voornamelijk slopen)
Totaal: 17.550
Volgende week overhuizen na elk weekend klussen vanaf 2 feb. Nog niet af, maar wel bewoonbaar. Ik ben er onderhand ook wel klaar en ik ben blij 11 jaar geleden de keuze heb gemaakt om toch een HBO studie achter m'n MBO te gaan doen. Hieronder nog een foto van het resultaat. Badkamer is 2.50 bij 2.26.
[Afbeelding]
Toevallig zijn wij naar exact dit type meubel aan het kijken. Mag ik vragen welk merk/type, materiaal blad, en wat je betaald hebt? We merkten bij bijv. X2O dat er van dit type meubel dan 2 smaken zijn: 1 massief hout, 1 met spaanplaat binnenwerk en gammel(er).
Joejoe!
Sanisale, maar deze was toen net nieuw en hadden ze nog niet in de show room staan, stijltje wel dus obv daarvan de keuze gemaakt. Ik weet dat hij bij sanitairwinkel(.nl) in Den Bosch staat als binnen komt loop je er tegen aan. Moest nog een sifon hebben en dacht deze daar even snel te halen totdat ze die niet op voorraad hadden, maar alleen in het magazijn. Geen idee welke versie we hebbenDonMetal schreef op maandag 30 maart 2026 @ 11:54:
[...]
En bij welke zaak was dit?
Toevallig zijn wij naar exact dit type meubel aan het kijken. Mag ik vragen welk merk/type, materiaal blad, en wat je betaald hebt? We merkten bij bijv. X2O dat er van dit type meubel dan 2 smaken zijn: 1 massief hout, 1 met spaanplaat binnenwerk en gammel(er).
Kosten zal tussen de 1200 en 1300 ergens zijn geweest denk ik. Meeste marges heeft de winkel op de tegels gepakt.
[ Voor 6% gewijzigd door SlqmLqck op 30-03-2026 13:50 ]
Hoi,Ricktachtig schreef op zondag 29 maart 2026 @ 21:29:
Wij willen in een aangekochte woning onze badkamer (4m2) en een toilet (1.1m2) laten renoveren met een basis opstelling in het laag / midden segment. Denk aan een inloopdouche, toilet, wasmeubel, spiegel en spotjes.
Wij zijn langs 3 badkamer speciaalzaken geweest, een aannemer gesproken en heb nog kort met Hornbach gesproken over hun plaatsingsservice over onze wensen en wat de kosten ongeveer gaan worden.
Bij de speciaalzaken liggen de prijzen op 22k totaal inclusief montage waarvan de montage ongeveer 13k - 15k als range in beslag neemt voor badkamer & toilet samen en variërend van 7k-9k kosten voor sanitair en alle benodigdheden voor de klus.
De aannemer rekent 24k in totaal met 5k als reservering voor sanitair als stelpost.
Hornbach zegt dat ze voor een badkamer van dit formaat 15k rekenen voor installatie en een toilet vaak rond de 5k en zegt dat 25k-27k totaal realistisch is.
Ben benieuwd of dit een beetje herkenbare bedragen zijn en gebruikelijk, of dat we echt verkeerd aan het kijken zijn wellicht.
Welke buurt?
Ik kan je anders ons klusje sturen.
Heeft wat minder gekost.
Stuur je ff een berichtje?
hoi allemaal, zoals beloofd even een update nadat het is afgerond.
De communicatie en samenwerking met SKT ging echt nice. heb de vergunning ook al binnen. De gemeente kwam met een aantal aanpassingen en dit deden ze zonder extra kosten dus daar was ik wel blij mee.
Al met al een goede ervaring.
@BBBrt ik zou het niet weten, maar ze doen in iedergeval wat ze beloven
Succes allemaal met jullie verbouwingen!
De communicatie en samenwerking met SKT ging echt nice. heb de vergunning ook al binnen. De gemeente kwam met een aantal aanpassingen en dit deden ze zonder extra kosten dus daar was ik wel blij mee.
Al met al een goede ervaring.
@BBBrt ik zou het niet weten, maar ze doen in iedergeval wat ze beloven
Succes allemaal met jullie verbouwingen!
Heb je een bericht gestuurd.geenflauwidee91 schreef op maandag 30 maart 2026 @ 21:47:
[...]
Hoi,
Welke buurt?
Ik kan je anders ons klusje sturen.
Heeft wat minder gekost.
Stuur je ff een berichtje?
Mooi met die ronde bovenkant van de nissen!K1p schreef op dinsdag 31 maart 2026 @ 09:16:
[Afbeelding]
[Afbeelding]
[Afbeelding]
[Afbeelding]
[Afbeelding]
Laatst een aantal fotos gedeeld van mijn voortgang. Het is op schilderen, afmonteren en kitten na bijna af. Door de extra droogtijd toch wel wat meer tijd kwijt dan verwacht. Verwacht op max 15k uit te komen. Natuurlijk hoop ik minder.
13480 Wp solar | 2x Panasonic 7j met 1x 300l sww | (Laadpaal) installateur, pb voor een offerte
Heeft iemand nog tips waar ik hotbath kranen kan bestellen voor scherpe prijs?
Ik heb vandaag bij de oplevering van mijn woning hetzelfde te horen gekregen, ook van de keurder van VEH.Draakje5 schreef op woensdag 27 maart 2024 @ 07:32:
Vraag.
Wij zitten met een dilemma.
We hebben een toilet dat niet voldoet aan bouwbesluit. Ruimte tussen toilet en muur is 50cm<.
Hij zei dat die 50cm wettelijk verplicht is, maar als ik het aan chatgpt vraag
Hoe heb jij dit uiteindelijk opgelost? (Ik wacht nog op antwoord van het bouwbedrijf overigens hoe zij ernaar kijken)
Aannemer heeft een nieuwe ondiepere toiletpot bekostigd en gemonteerd.Bananeman schreef op donderdag 2 april 2026 @ 14:37:
[...]
Ik heb vandaag bij de oplevering van mijn woning hetzelfde te horen gekregen, ook van de keurder van VEH.
Hij zei dat die 50cm wettelijk verplicht is, maar als ik het aan chatgpt vraagkrijg ik als antwoord dat het een richtlijn is, geen wettelijke eis.
Hoe heb jij dit uiteindelijk opgelost? (Ik wacht nog op antwoord van het bouwbedrijf overigens hoe zij ernaar kijken)
Dat is idd ook wat ik waarschijnlijk ga vragen.Draakje5 schreef op donderdag 2 april 2026 @ 14:41:
[...]
Aannemer heeft een nieuwe ondiepere toiletpot bekostigd en gemonteerd.
Heeft ie dat alleen voor het primaire toilet gedaan, of ook voor het/de andere toilet(ten)?
Andere toilet hebben we zelf volgebs mij bekostigd en aannemer 'gratis' gemonteerd.Bananeman schreef op donderdag 2 april 2026 @ 14:45:
[...]
Dat is idd ook wat ik waarschijnlijk ga vragen.
Heeft ie dat alleen voor het primaire toilet gedaan, of ook voor het/de andere toilet(ten)?
Voordeel was dat we nu een mooie turboflush hebben en voorheen de standaard villeroy enboch.
Wij zoeken ook zo'n meubel, ik denk dat deze helemaal in zijn/worden het komende jaar.DonMetal schreef op maandag 30 maart 2026 @ 11:54:
[...]
En bij welke zaak was dit?
Toevallig zijn wij naar exact dit type meubel aan het kijken. Mag ik vragen welk merk/type, materiaal blad, en wat je betaald hebt? We merkten bij bijv. X2O dat er van dit type meubel dan 2 smaken zijn: 1 massief hout, 1 met spaanplaat binnenwerk en gammel(er).
De mooiste die ik gezien heb was van het merk Ink, maar dan betaal je voor 140cm model gelijk 4k..
Ik zag vanochtend deze nog langskomen, ook ronde hoeken en massief eiken: https://www.vanheckbadkam...ken-met-mat-wit-wastafel/wokkelz schreef op donderdag 2 april 2026 @ 15:54:
[...]
Wij zoeken ook zo'n meubel, ik denk dat deze helemaal in zijn/worden het komende jaar.
De mooiste die ik gezien heb was van het merk Ink, maar dan betaal je voor 140cm model gelijk 4k..
Joejoe!
Hallo, fijne Pasen! De afgelopen weken is hier de badkamer gesloopt en weer opgebouwd. We begonnen met deze 3D-tekening:
/f/image/42B5aPLjt0vWKgUDj8Ktyg6e.png?f=fotoalbum_large)
Intussen ziet het er zo uit:
/f/image/8VqLDbUYM46IKK2mvuxeDKrr.png?f=fotoalbum_large)
:strip_exif()/f/image/AQ1LWlHYRD3KjLDOvY35LMl7.jpg?f=fotoalbum_large)
/f/image/42B5aPLjt0vWKgUDj8Ktyg6e.png?f=fotoalbum_large)
Intussen ziet het er zo uit:
/f/image/8VqLDbUYM46IKK2mvuxeDKrr.png?f=fotoalbum_large)
:strip_exif()/f/image/AQ1LWlHYRD3KjLDOvY35LMl7.jpg?f=fotoalbum_large)
Members only:
Alleen zichtbaar voor ingelogde gebruikers.
Inloggen
Dat kleine randje wordt ook niet mooi. Mooiste oplossing is zoals in de render als je het mij vraagt. Twee tegels evenredig verdeeld.Sandro! schreef op zondag 5 april 2026 @ 11:36:
Hallo, fijne Pasen! De afgelopen weken is hier de badkamer gesloopt en weer opgebouwd. We begonnen met deze 3D-tekening:
[Afbeelding]
Intussen ziet het er zo uit:
[Afbeelding]
[Afbeelding]
***members only***
Dat word een lastige discussie, het ligt er ook aan welke afspraken gemaakt zijn. Heb je de 3d render laten zien dat het zo gemaakt moet worden?Sandro! schreef op zondag 5 april 2026 @ 11:36:
Hallo, fijne Pasen! De afgelopen weken is hier de badkamer gesloopt en weer opgebouwd. We begonnen met deze 3D-tekening:
[Afbeelding]
Intussen ziet het er zo uit:
[Afbeelding]
[Afbeelding]
***members only***
Ik ben het eens met bovenstaande, dat was het mooiste geweest. Zoals jij voorsteld vind ik nog lelijker als dit.
Maar zelf zou ik dit niet zonder overleg zo maken, vind een voeg die net verspringt echt niet mooi. Of gelijk of minimaal 10cm verspringen.
13480 Wp solar | 2x Panasonic 7j met 1x 300l sww | (Laadpaal) installateur, pb voor een offerte
SquareOne schreef op zondag 5 april 2026 @ 12:09:
[...]
Dat kleine randje wordt ook niet mooi. Mooiste oplossing is zoals in de render als je het mij vraagt. Twee tegels evenredig verdeeld.
Bij mijn schoonouders is het op die manier opgelost, ziet er imo niet slecht uit en daar kwam dan ook mijn inspiratie vandaan. Wij werken met dezelfde aannemer, maar hij heeft voor deze klus een andere tegelzetter ingezet. Zoals op de render had ik het ook verwacht, maar het is anders gelopen. Volgens de aannemer omdat hoe ze het bij de sanitairwinkel tekenen niet altijd mogelijk is - de verkoper daar heeft juist nog met de voegen zitten spelen om ze er op een mooie manier in te krijgen. Waarom het hier niet mogelijk zou zijn heb ik nog niet gevraagd.Makrolon schreef op zondag 5 april 2026 @ 12:16:
[...]
Dat word een lastige discussie, het ligt er ook aan welke afspraken gemaakt zijn. Heb je de 3d render laten zien dat het zo gemaakt moet worden?
Ik ben het eens met bovenstaande, dat was het mooiste geweest. Zoals jij voorsteld vind ik nog lelijker als dit.
Maar zelf zou ik dit niet zonder overleg zo maken, vind een voeg die net verspringt echt niet mooi. Of gelijk of minimaal 10cm verspringen.
De 3D-renders heeft de aannemer geprint en die liggen bij de technische tekeningen in/bij de badkamer.
Het zijn 120x60cm tegels en de vloertegel rechts (in de hoek) is niet bijgesneden. Die tegel langer maken gaat natuurlijk niet, maar ik kan wel nog informeren of deze tegels ook in 120x120 te krijgen zijn. Er liggen drie tegels in de breedte, en volgens mij gaan ze per vier bij de sanitairwinkel. Dan moeten er zes tegels uit de vloer, drie een fractie inkorten (nieuwe, we hebben nog over) en drie van de 120x120 tegels er bij. Dat is dan misschien de mooiste oplossing.
Bedankt voor jullie reacties! Geeft me in ieder geval het vertrouwen dat ik dit nogmaals met de aannemer kan bespreken
Een beetje als mosterd na de maaltijd, maar dat tekenprogramma van de sanitaire shop kan ook een tegel plan voor je genereren. Die houdt o.a. rekening met de voegdiktes en laat ook precies zien welke tegels gezaagd moeten worden.Sandro! schreef op zondag 5 april 2026 @ 12:53:
[...]
[...]
Bij mijn schoonouders is het op die manier opgelost, ziet er imo niet slecht uit en daar kwam dan ook mijn inspiratie vandaan. Wij werken met dezelfde aannemer, maar hij heeft voor deze klus een andere tegelzetter ingezet. Zoals op de render had ik het ook verwacht, maar het is anders gelopen. Volgens de aannemer omdat hoe ze het bij de sanitairwinkel tekenen niet altijd mogelijk is - de verkoper daar heeft juist nog met de voegen zitten spelen om ze er op een mooie manier in te krijgen. Waarom het hier niet mogelijk zou zijn heb ik nog niet gevraagd.
De 3D-renders heeft de aannemer geprint en die liggen bij de technische tekeningen in/bij de badkamer.
Het zijn 120x60cm tegels en de vloertegel rechts (in de hoek) is niet bijgesneden. Die tegel langer maken gaat natuurlijk niet, maar ik kan wel nog informeren of deze tegels ook in 120x120 te krijgen zijn. Er liggen drie tegels in de breedte, en volgens mij gaan ze per vier bij de sanitairwinkel. Dan moeten er zes tegels uit de vloer, drie een fractie inkorten (nieuwe, we hebben nog over) en drie van de 120x120 tegels er bij. Dat is dan misschien de mooiste oplossing.
Bedankt voor jullie reacties! Geeft me in ieder geval het vertrouwen dat ik dit nogmaals met de aannemer kan bespreken
Bijna alle sanitairwinnkels in Nederland maken gebruik van hetzelfde programma voor het tekenen van de badkamer.
http://www.tweakers.net/gallery/119170/sys
Iemand ervaring met de easydrain XS Z-1?
Vind deze drain er wel mooi uit zien, vraag me alleen af of het qua onderhoud en schoonmaken wel praktisch is.
Vind deze drain er wel mooi uit zien, vraag me alleen af of het qua onderhoud en schoonmaken wel praktisch is.
Wij hebben de Easy Drain Compact met tegel er in gelegd, maar die heb je ook de look krijgen van de XS Z-1. Het voordeel vind ik dat ik de sifon eruit kan halen en ik altijd ook dus de rioolbuis zou kunnen schoonmaken.jesse111 schreef op woensdag 8 april 2026 @ 14:23:
Iemand ervaring met de easydrain XS Z-1?
Vind deze drain er wel mooi uit zien, vraag me alleen af of het qua onderhoud en schoonmaken wel praktisch is.
We "krijgen" een badkamer met koperen kranen en beige tegels. Welke drukknop voor een UP320 inbouw is hiervoor een logische keuze? Bijvoorbeeld compleet wit, met een chrome randje of toch een andere kleur?
Heeft iemand hier ervaring mee?
Heeft iemand hier ervaring mee?
4800Wp - 225° ZW - 12°
Wat je zelf mooi vind toch.Padje87 schreef op zaterdag 11 april 2026 @ 16:27:
We "krijgen" een badkamer met koperen kranen en beige tegels. Welke drukknop voor een UP320 inbouw is hiervoor een logische keuze? Bijvoorbeeld compleet wit, met een chrome randje of toch een andere kleur?
Heeft iemand hier ervaring mee?
Wij hebben laatst de badkamer gedaan en gekozen voor geborsteld koper kranen (douche, wasbak, bad). Zijn uiteindelijk voor compleet wit bedieningspanelen gegaan omdat dat dan matcht met de wasbak, wc pot en het bad.
Iemand hier ervaring met de easy drain pureflow variant? Ik wil de doucheruimte laten storten (momenteel zwaluwplaat) nu moet ik een drain bestellen om deze mee te laten storten. Als eerste had ik een muurdrain op het oog maar door de info op het forum heb ik dat laten schieten (iets met veel lekkages) daarna de r-line op het oog, maar zag nu dat er een nieuw variant is (pureflow) waarbij de siliconenrand aan de onderkant zit. Lijkt heel fijn want ben geen fan van kitranden, als het niet nodig is. Echter heeft deze geen flens waardoor ik twijfel of er dan toch mooie een tegel tegenaan kan.. keuzes keuzes
Dag tweakers, wij zijn bezig met het finetunen van het ontwerp van onze badkamer (nieuwbouwwoning). We lopen nog tegen één dingetje aan en zouden graag jullie mening daarover horen.
De indeling is als volgt:
:strip_exif()/f/image/GgREQGvmbVXhsSS69mrKMjnV.jpg?f=fotoalbum_large)
Wij twijfelen nog enigszins of er voldoende hoogte zit onder het bad. Het onderstaande dwarsprofiel (kijkend van boven naar beneden) geeft een beeld van de huidige indeling. Het rode vak geeft een ruimtereservering van 500x2000 mm vanaf de bodem van het bad (ca. 150 mm boven afwerkvloer).
Wat denken jullie? Kan dit prima zo of zouden we toch meer ruimte moeten pakken en het bad verder de badkamer in moeten schuiven?
De indeling is als volgt:
:strip_exif()/f/image/GgREQGvmbVXhsSS69mrKMjnV.jpg?f=fotoalbum_large)
Wij twijfelen nog enigszins of er voldoende hoogte zit onder het bad. Het onderstaande dwarsprofiel (kijkend van boven naar beneden) geeft een beeld van de huidige indeling. Het rode vak geeft een ruimtereservering van 500x2000 mm vanaf de bodem van het bad (ca. 150 mm boven afwerkvloer).
Wat denken jullie? Kan dit prima zo of zouden we toch meer ruimte moeten pakken en het bad verder de badkamer in moeten schuiven?
[ Voor 4% gewijzigd door ChillPascal op 13-04-2026 22:06 ]
Hoe vaak sta je rechtop in bad als je ook een douche hebt?ChillPascal schreef op maandag 13 april 2026 @ 22:04:
Dag tweakers, wij zijn bezig met het finetunen van het ontwerp van onze badkamer (nieuwbouwwoning). We lopen nog tegen één dingetje aan en zouden graag jullie mening daarover horen.
De indeling is als volgt:
[Afbeelding]
Wij twijfelen nog enigszins of er voldoende hoogte zit onder het bad. Het onderstaande dwarsprofiel (kijkend van boven naar beneden) geeft een beeld van de huidige indeling. Het rode vak geeft een ruimtereservering van 500x2000 mm vanaf de bodem van het bad (ca. 150 mm boven afwerkvloer).
Wat denken jullie? Kan dit prima zo of zouden we toch meer ruimte moeten pakken en het bad verder de badkamer in moeten schuiven?
[Afbeelding]
Daily driver | ’19 Ford Focus ST | Orange Fury
M.I.A.T.A. Is Always The Answer
Ik denk dat het op zichzelf prima kan, maar bedenk ook of het fijn voelt, onder een schuin dak. Sommige mensen (ik) zijn daar gevoelig voor (het dak komt wat op je af).ChillPascal schreef op maandag 13 april 2026 @ 22:04:
Wij twijfelen nog enigszins of er voldoende hoogte zit onder het bad.
Zelf zou ik het bad liever voor het raam plaatsen en het badmeubel onder het schuine dak. Idee als je blijft twijfelen?
Ga je douchen in het bad? Zo nee, dan is er toch helemaal geen probleem. Of je bent 2,10m en dan stoot je misschien één keer je hoofd een beetje. En daarn nooit meerChillPascal schreef op maandag 13 april 2026 @ 22:04:
Dag tweakers, wij zijn bezig met het finetunen van het ontwerp van onze badkamer (nieuwbouwwoning). We lopen nog tegen één dingetje aan en zouden graag jullie mening daarover horen.
De indeling is als volgt:
[Afbeelding]
Wij twijfelen nog enigszins of er voldoende hoogte zit onder het bad. Het onderstaande dwarsprofiel (kijkend van boven naar beneden) geeft een beeld van de huidige indeling. Het rode vak geeft een ruimtereservering van 500x2000 mm vanaf de bodem van het bad (ca. 150 mm boven afwerkvloer).
Wat denken jullie? Kan dit prima zo of zouden we toch meer ruimte moeten pakken en het bad verder de badkamer in moeten schuiven?
[Afbeelding]
@ChillPascal dit was ook mijn eerste idee qua indeling bij jouw vraag. Alle ruimte boven het bad en die kast zou ook nog netjes schuin gemaakt kunnen worden aan de bovenkant zodat hij daar mooi past. En dan links boven een handdoekradiator, is toch ook fijn om te hebben.
[ Voor 6% gewijzigd door Joove op 14-04-2026 08:58 ]
Dank voor alle reacties! @BBBrt @Fanta
@Toke_gt @Joove Dat was ook een van onze ideeën. We hebben echter lopen puzzelen en kwamen er qua breedte niet goed uit. Van boven naar beneden hebben we ca. 3.80 m. Een snelle optelling van 1.00 meter (bad), 1.60 m (wastafel), 0.15 (wand) is 2.75 m. Rekening houdend met nog tegels houd je inwendig minder dan 1.00 meter doucheruimte over. Dat vinden we te krap.
Daarnaast zal de wastafel ook flink de badkamer inschuiven als je daar nog een fatsoenlijke spiegel wilt ophagen.
@Toke_gt @Joove Dat was ook een van onze ideeën. We hebben echter lopen puzzelen en kwamen er qua breedte niet goed uit. Van boven naar beneden hebben we ca. 3.80 m. Een snelle optelling van 1.00 meter (bad), 1.60 m (wastafel), 0.15 (wand) is 2.75 m. Rekening houdend met nog tegels houd je inwendig minder dan 1.00 meter doucheruimte over. Dat vinden we te krap.
Daarnaast zal de wastafel ook flink de badkamer inschuiven als je daar nog een fatsoenlijke spiegel wilt ophagen.
Is er iemand die me een beetje op weg kan helpen met positie spotjes in het plafond?Remco Tr schreef op zondag 8 maart 2026 @ 12:56:
Binnenkort gaan we onze badkamer verbouwen. Twijvel alleen over de spotjes in verlaagd plafond.
Hebben jullie nog goede suggesties?
[Afbeelding]
Naast de spotjes heb ik nog nis bij toilet en in de douche met ledstripje. Ook de spiegel heeft indirect en direct licht.
Ik zou max twee spots doen. Schuif die van het toilet wat naar voren (weg van het toilet), op de lijn van de deurstijl. En dan een tweede spot op dezelfde lijn maar dan in het midden van de wasbak. Heb je meer licht nodig dan zet je de spiegel aan.Remco Tr schreef op dinsdag 14 april 2026 @ 15:31:
[...]
Is er iemand die me een beetje op weg kan helpen met positie spotjes in het plafond?
Naast de spotjes heb ik nog nis bij toilet en in de douche met ledstripje. Ook de spiegel heeft indirect en direct licht.
Zitten in die douche ook nog twee spots tegen de muur?
optie 1: rood, wat ik hierboven benoem, rechte lijn vanuit +- deurlijst
optie 2: blauw, wat meer licht in de douche (en minder schaduw, afhankelijk van wat voor deur/glasplaat er in zit), diagonale lijn vanuit hoek linksboven naar middenpunt douche
[ Voor 19% gewijzigd door Bobmeister op 14-04-2026 16:02 ]
Gewoon 4 spotjes zou ik doen symmetrisch verdeeld over t plafond. Bv 50cm uit de kant met ca 100 cm er tussen. Wel even opletten dat er niet een boven de douchekop eindigt.Remco Tr schreef op dinsdag 14 april 2026 @ 15:31:
[...]
Is er iemand die me een beetje op weg kan helpen met positie spotjes in het plafond?
Naast de spotjes heb ik nog nis bij toilet en in de douche met ledstripje. Ook de spiegel heeft indirect en direct licht.
13480 Wp solar | 2x Panasonic 7j met 1x 300l sww | (Laadpaal) installateur, pb voor een offerte
Misschien toch nog een keertje opnieuw berekenen? Ik heb de afmetingen van het bad gelijk gehouden dus je verliest daar niets?ChillPascal schreef op dinsdag 14 april 2026 @ 09:43:
Dank voor alle reacties! @BBBrt @Fanta
@Toke_gt @Joove Dat was ook een van onze ideeën. We hebben echter lopen puzzelen en kwamen er qua breedte niet goed uit. Van boven naar beneden hebben we ca. 3.80 m. Een snelle optelling van 1.00 meter (bad), 1.60 m (wastafel), 0.15 (wand) is 2.75 m. Rekening houdend met nog tegels houd je inwendig minder dan 1.00 meter doucheruimte over. Dat vinden we te krap.
Daarnaast zal de wastafel ook flink de badkamer inschuiven als je daar nog een fatsoenlijke spiegel wilt ophagen.
(Een bad is overigens niet 100 cm, maar eerder 80). En je wastafel en douche zijn toch niet tegen dezelfde wand geplaatst?
Ik heb toch even uitgeschetst. Wij voorzien nu in een ruim bad (190x90 cm). Tel daar nog een tegeldikte bij kom je al >90 cm, vandaar de ruimtereservering van 100 cm.Toke_gt schreef op dinsdag 14 april 2026 @ 20:11:
[...]
Misschien toch nog een keertje opnieuw berekenen? Ik heb de afmetingen van het bad gelijk gehouden dus je verliest daar niets?
(Een bad is overigens niet 100 cm, maar eerder 80). En je wastafel en douche zijn toch niet tegen dezelfde wand geplaatst?
Ik heb het badmeubel nu tegen de 2.60 m lijn (rood) gedrukt, zodat je daar de volle hoogte hebt. An sich vind ik de indeling inderdaad fraai zo. Vooral omdat je niet vanuit de deur vol tegen het badmeubel aankijkt.
Echter zie ik ook een paar nadelen:
- Ruimte voor bereikbaarheid bad beperkt
- Nagenoeg geen afzetruimte bij het bad
- Kleinere doucheruimte ,de maten zijn allemaal weergegeven excl. tegelwerk. Dus daar gaat ook nog eens 5 cm vanaf.
[ Voor 7% gewijzigd door ChillPascal op 15-04-2026 08:07 ]
Dit is niet wat @Toke_gt en ik voorstellen. Wastafel gewoon links houden en alleen het bad met de kast verwisselen. Daardoor wordt het dus ook niet te krap zoals in jouw nieuwe plaatje. Je gebruikte de slecht bruikbare ruimte onder het raam met het bad. In het midden heb je alle ruimte om binnen te komen, douchen, wastafel gebruiken, kast gebruiken en in bad te stappen.
[ Voor 5% gewijzigd door Joove op 15-04-2026 09:19 ]
Ja, de rechtervariant zou echt mijn voorkeur hebben, dus ben wel benieuwd wat jij ervan vindt. Wat ik ervan vind, is natuurlijk niet zo belangrijk, het is mijn badkamer niet en misschien voel jij niet hetzelfde bezwaar als ik bij een bad direct onder een schuin dak.
Wat me bij deze ook fijn lijkt is dat je én je douche lekker ruim hebt, én de meeste bewegingsruimte in het hart van de badkamer.
Inmiddels is de badkamer af, en wil ik nog even de resultaten delen. Ik had als ZZPer vanaf eind november vorig jaar geen opdracht meer, dus heb ik bewust 3 maand geen nieuw werk aangenomen maar tijd ingeruimd om de hal+toilet beneden, badkamer en toilet boven helemaal zelf aan te pakken. Helaas is het toilet boven niet gelukt ivm tijdgebrek, deze komt later nog.ConQuestador schreef op zondag 24 augustus 2025 @ 09:16:
Ik ben zelf alvast aan het designen geslagen voor onze nieuwe badkamer, deze is 3x4m, en de indeling blijft grotendeels gelijk aan hoe het nu is. Aangezien ik (gratis) homestyler heb gebruikt had ik niet altijd de perfecte materialen (vooral bij wasbak), het is vooral een impressie van de formaten en kleurstellingen.
[Afbeelding]
[Afbeelding]
[Afbeelding]
Paar focus punten:
- We wilden aan de achterwand graag 30cm diepe planken voor de handdoeken, hadden we gezien in een badkamerzaak en dat lijkt ons erg mooi zo. Hiervoor ga ik dus 30cm opofferen van de badkamer, door valse muren voor de muur te zetten.
- Ik hou van symmetrie , ik heb dus de nis bij de douche ook boven het bad geplaatst, niet nodig, wel mooi.
- In de nisjes wil ik (led) verlichting inbouwen. Bij de handdoekplanken niet.
- We willen een losstaand bad, ik heb ook half losstaande baden bekeken, maar die vind ik toch minder mooi.
- We willen maar 1 douche, ondanks dat er ruimte is voor 2. Het idee is om de regendouche (die wij zelf zelden gebruiken) en de handdouche aan stang 50cm uit elkaar te plaatsen. Met de juiste inbouwset kan je dan alsnog beide tegelijkertijd gebruiken, ondanks dat dit niet het hoofddoel is.
- We willen geen inloopdouche maar een glazenwand met deur, zodat de warmte lekker blijft hangen bij het douchen.
- De knoppen van de douche wil ik in het muurtje doen, zodat je de douche aan/uit kan zetten zonder de douche te betreden (handig met kinderen).
- We willen alle tegels onder verstek laten zagen, hebben we nu ook, en ik hou niet echt van die strips.
- Tegels heb ik op 100x100 ingetekend, nav een eerdere vraag in dit topic kwam ik uit op dit formaat, en de lijnen bevallen me erg goed zoals ze nu zijn.
- Onder de ramen zit nu een 10cm muurtje, deze laten we toch maar staan. In 3d zie je dat het erg kaal wordt zonder, en we vinden dat muurtje ook gewoon erg handig om spullen op te leggen.
- Plafond blijft zoals die is, er zitten reeds spotjes op de juiste plekken aangezien de huidige indeling grotendeels gelijk is.
- We zijn nog niet over de kleurstelling uit, We weten dat we 100x100 tegels met groene zweem als accentmuur willen doen. De rest van de tegels zijn we nog niet uit.
Vragen:
- Gaat onder verstek zagen nog lukken bij de nisjes zoals ze nu zijn? Deze zijn namelijk precies in het midden van een volle tegel.
- Kom maar op met meningen / suggesties
De werkzaamheden waren niet bepaald klein te noemen:
- Overal nieuwe plafonds in, onder andere om precies uit te komen met een hoogte van 2.40, wat precies 4 tegels is.
- Overal (extra) vloerverwarming ingefreest
- Leidingwerk in badkamer moest overal aangepast worden
- In badkamer moesten grote delen van de zandcementvloer opnieuw gedaan worden.
- Aan de wand moesten 120x60 tegels, vrij pittig voor een beginner
- Op de vloer 100x100 tegels, nog pittiger
- ALLE buitenhoeken in verstek, dat was iets van 50 strekkende meter tegel die in verstek gezaagd moest worden.
- Buitenhoeken met epoxy afgewerkt.
Fotootje om een impressie te geven halverwege.
:strip_exif()/f/image/IGvx7adkLEsrnv5almEZnkdl.jpg?f=fotoalbum_large)
Allereerst durf ik te zeggen dat alles zeer goed geslaagd is, er waren alleen enkele tegenvallers:
- De oude tegels bleken in het cement gezet te zijn. Tijdens de klus dus besloten toch tegel over tegel te gaan, maar alsnog moest ik meerdere delen alsnog opnieuw opstucen met een dikte van 3cm om gelijk uit te komen met de oude tegels.
- Toen ik de wandtegels wilde plaatsen bleek er een productiefout in te zitten. Er moesten nieuwe tegels uit de fabriek in Spanje komen wat 4 weken heeft geduurd.
- Doordat ik 4 weken moest wachten ben ik begonnen met de vloer, later bij het tegelen van de wand glipte een 120x60 tegel uit de zuignap, precies op de rand van 2 vloertegels.. Aangezien ik nog maar 1 vloertegel over had, heb ik 6 weken moeten wachten op 1 nieuw doosje tegels (want ook die waren niet op voorraad). Pas na 6 weken kon ik dus de vloer afmaken en voegen.
- De gemetselde muren bleken met (keiharde) buitenstenen gemetseld te zijn. Een simpele WC ombouw slopen koste dus al een volle dag door met een zware sloophamer steen voor steen uit te bikken.
- De waterleidingen liepen erg onverwacht, zelfs voor de stortbak langs in de tegels. Ik heb dus 3x moeten rennen naar de hoofdleiding omdat ik weer een onverwachte leiding kapot hakte.
- De wandtegels lieten zich absoluut niet snijden (en ik had nog wel een professionele snijder gekocht). Ik moest dus alle wandtegels zagen, en zelfs dan sprongen ze soms nog kapot (zelfs bij meerdere dieptes inzagen)
- De douchewand is 2x verkeerd geleverd, het heeft dus 6 weken geduurd voor we konden douchen achter een scherm.
- De "douche-toilet" heeft 1 week warm water gegeven, ik ben nu al meerdere maanden bezig om onder garantie dit te laten repareren.
Al met al ging het allemaal wat minder snel dan gehoopt (hal+toilet beneden 1 maand, badkamer boven 2 maand), maar het is helemaal gelukt in mijn eentje met het nodige youtube werk.
De hal/WC beneden:
:strip_exif()/f/image/PzoBs2AZcgmsQ4tx1uC4NwZS.jpg?f=fotoalbum_large)
:strip_exif()/f/image/qpshTDS9tLHIsd0TYSB0piqI.jpg?f=fotoalbum_large)
En de badkamer:
:strip_exif()/f/image/BYDWh1Ee73rhJffZbn5uak7R.jpg?f=fotoalbum_large)
:strip_exif()/f/image/JNKK8IOiwrtTHDs7kahKcn4o.jpg?f=fotoalbum_large)
:strip_exif()/f/image/tl1RDFiE4pozKURtmuEIYhoG.jpg?f=fotoalbum_large)
:strip_exif()/f/image/4ZN9mcXjwagkWHf6vV1XUeHi.jpg?f=fotoalbum_large)
:strip_exif()/f/image/9DEywLP3Zk4M60XYMOGiH5Zm.jpg?f=fotoalbum_large)
:strip_exif()/f/image/gclB6Zl0tT4NMLKiAoI2Gnh2.jpg?f=fotoalbum_large)
En uiteraard wil altijd iedereen weten wat het gekost heeft:
Toilet beneden:
| Toilet | Vitra V-Care basic | 970 |
| Inbouwframe | Grohe Rapid SLX | 180 |
| Grohe fresh | 38796000 | 50 |
| Grohe spoelknop | 37601DC0 | 131 |
| toilet kastje | Gliss design echo | 380 |
| Waskom | Mondiaz poole | 320 |
| sifon RVS | best design | 35 |
| waskom plug mat RVS | Mueller bella | 27 |
| Toilet kraan | aquatulp RVS | 99 |
| Spiegel 60cm | spiegelautomaat | 120 |
| Grohe toiletrolhouder | Grohe essentials | 40 |
| Totaal | 2312 |
| douchegoot (140 cm): | Bruaer douchegoot 140 | 277 |
| regendouche set | grohe set : 34863DC0 | 1450 |
| douche wandaansluiting | 27057DC0 | 60 |
| douche glijstang | 26603DC0 | 134 |
| Vrijstaande badkraan | Crosswater MPRO | 1136 |
| 2 kranen voor wasbak RVS | GROHE Lineare New - 23106DC1 | 420 |
| Douche wand | Glazz - Anna XL | 900 |
| Vrijstaand bad Acryl 170 x 80 | Looox Chill | 1350 |
| Radiator | YDay halv 180x60 | 335 |
| Verwarmings element 900W | EMKE | 76 |
| 4x Wandplanken op maat | 212 | |
| Inbouwspots 12 GU12 / IP65 | ibood | 55 |
| Spiegel | spiegelpracht 160x130 | 800 |
| Totaal | 7205 |
| Toilet | 2312 |
| Badkamer | 7205 |
| Tegels | 4400 |
| Materialen | 3500 |
Grand total | 17.417 |
Panasonic 12J T-CAP | Atlantic Explorer 270L | 4 x MHI SRK24ZS-WF + SRF35ZS-W | 12.000 Wp Enphase | Home Assistant, Heishamon, Mhi-ctrl | Alfa Romeo Giulia Veloce
@ConQuestador heel mooi geworden!
Zou je wat meer willen vertellen hoe je de verlichting achter de schappen hebt weggewerkt, wat je daarvoor hebt gebruikt?
Zou je wat meer willen vertellen hoe je de verlichting achter de schappen hebt weggewerkt, wat je daarvoor hebt gebruikt?
_Chris_ schreef op donderdag 16 april 2026 @ 12:58:
@ConQuestador heel mooi geworden!
Zou je wat meer willen vertellen hoe je de verlichting achter de schappen hebt weggewerkt, wat je daarvoor hebt gebruikt?
:strip_exif()/f/image/vH231fln9UoDWRwcofAzGLUi.jpg?f=fotoalbum_large)
Vooraf heb ik uitgetekend waar ik de planken wilde hebben, daar heb ik vooraf kabels naartoe getrokken, net zoals ik ze naar de 2 nissen heb gebracht.
Boven het plafond bij de dichtsbijzijnde spot ligt de omvormer, mocht het ooit nodig zijn dan kan ik via het gat van de spot er nog bij komen.
In de (masief eiken) planken heb ik met een bovenfrees een geul gefreesd en hier heb ik een ledprofiel in gelijmd.
[ Voor 5% gewijzigd door ConQuestador op 16-04-2026 13:16 ]
Panasonic 12J T-CAP | Atlantic Explorer 270L | 4 x MHI SRK24ZS-WF + SRF35ZS-W | 12.000 Wp Enphase | Home Assistant, Heishamon, Mhi-ctrl | Alfa Romeo Giulia Veloce
Mooi hoor! Je had al echt zoveel tijd bespaard door gewoon de hele dekvloer er in een keer helemaal uit te rammenConQuestador schreef op donderdag 16 april 2026 @ 12:51:
[...]
Inmiddels is de badkamer af, en wil ik nog even de resultaten delen. Ik had als ZZPer vanaf eind november vorig jaar geen opdracht meer, dus heb ik bewust 3 maand geen nieuw werk aangenomen maar tijd ingeruimd om de hal+toilet beneden, badkamer en toilet boven helemaal zelf aan te pakken. Helaas is het toilet boven niet gelukt ivm tijdgebrek, deze komt later nog.
De werkzaamheden waren niet bepaald klein te noemen:
- Overal nieuwe plafonds in, onder andere om precies uit te komen met een hoogte van 2.40, wat precies 4 tegels is.
- Overal (extra) vloerverwarming ingefreest
- Leidingwerk in badkamer moest overal aangepast worden
- In badkamer moesten grote delen van de zandcementvloer opnieuw gedaan worden.
- Aan de wand moesten 120x60 tegels, vrij pittig voor een beginner
- Op de vloer 100x100 tegels, nog pittiger
- ALLE buitenhoeken in verstek, dat was iets van 50 strekkende meter tegel die in verstek gezaagd moest worden.
- Buitenhoeken met epoxy afgewerkt.
Fotootje om een impressie te geven halverwege.
[Afbeelding]
Allereerst durf ik te zeggen dat alles zeer goed geslaagd is, er waren alleen enkele tegenvallers:
- De oude tegels bleken in het cement gezet te zijn. Tijdens de klus dus besloten toch tegel over tegel te gaan, maar alsnog moest ik meerdere delen alsnog opnieuw opstucen met een dikte van 3cm om gelijk uit te komen met de oude tegels.
- Toen ik de wandtegels wilde plaatsen bleek er een productiefout in te zitten. Er moesten nieuwe tegels uit de fabriek in Spanje komen wat 4 weken heeft geduurd.
- Doordat ik 4 weken moest wachten ben ik begonnen met de vloer, later bij het tegelen van de wand glipte een 120x60 tegel uit de zuignap, precies op de rand van 2 vloertegels.. Aangezien ik nog maar 1 vloertegel over had, heb ik 6 weken moeten wachten op 1 nieuw doosje tegels (want ook die waren niet op voorraad). Pas na 6 weken kon ik dus de vloer afmaken en voegen.
- De gemetselde muren bleken met (keiharde) buitenstenen gemetseld te zijn. Een simpele WC ombouw slopen koste dus al een volle dag door met een zware sloophamer steen voor steen uit te bikken.
- De waterleidingen liepen erg onverwacht, zelfs voor de stortbak langs in de tegels. Ik heb dus 3x moeten rennen naar de hoofdleiding omdat ik weer een onverwachte leiding kapot hakte.
- De wandtegels lieten zich absoluut niet snijden (en ik had nog wel een professionele snijder gekocht). Ik moest dus alle wandtegels zagen, en zelfs dan sprongen ze soms nog kapot (zelfs bij meerdere dieptes inzagen)
- De douchewand is 2x verkeerd geleverd, het heeft dus 6 weken geduurd voor we konden douchen achter een scherm.
- De "douche-toilet" heeft 1 week warm water gegeven, ik ben nu al meerdere maanden bezig om onder garantie dit te laten repareren.
Al met al ging het allemaal wat minder snel dan gehoopt (hal+toilet beneden 1 maand, badkamer boven 2 maand), maar het is helemaal gelukt in mijn eentje met het nodige youtube werk.
De hal/WC beneden:
[Afbeelding]
[Afbeelding]
En de badkamer:
[Afbeelding]
[Afbeelding]
[Afbeelding]
[Afbeelding]
[Afbeelding]
[Afbeelding]
En uiteraard wil altijd iedereen weten wat het gekost heeft:
Toilet beneden:Badkamer
Toilet Vitra V-Care basic 970 Inbouwframe Grohe Rapid SLX 180 Grohe fresh 38796000 50 Grohe spoelknop 37601DC0 131 toilet kastje Gliss design echo 380 Waskom Mondiaz poole 320 sifon RVS best design 35 waskom plug mat RVS Mueller bella 27 Toilet kraan aquatulp RVS 99 Spiegel 60cm spiegelautomaat 120 Grohe toiletrolhouder Grohe essentials 40 Totaal 2312 Totalen:
douchegoot (140 cm): Bruaer douchegoot 140 277 regendouche set grohe set : 34863DC0 1450 douche wandaansluiting 27057DC0 60 douche glijstang 26603DC0 134 Vrijstaande badkraan Crosswater MPRO 1136 2 kranen voor wasbak RVS GROHE Lineare New - 23106DC1 420 Douche wand Glazz - Anna XL 900 Vrijstaand bad Acryl 170 x 80 Looox Chill 1350 Radiator YDay halv 180x60 335 Verwarmings element 900W EMKE 76 4x Wandplanken op maat 212 Inbouwspots 12 GU12 / IP65 ibood 55 Spiegel spiegelpracht 160x130 800 Totaal 7205
Toilet 2312 Badkamer 7205 Tegels 4400 Materialen 3500 Grand total
17.417
Maar je hebt ook wel echt pech gehad zeg...
13480 Wp solar | 2x Panasonic 7j met 1x 300l sww | (Laadpaal) installateur, pb voor een offerte
Vvw invrezen heeft me maar een dag gekost, en gaf me wel mooi waterpas hoogte voor de rest. Als ik weer moest had ik het weer zo gedaan, als beginner vond ik dit makkelijker.Makrolon schreef op donderdag 16 april 2026 @ 20:24:
[...]
Mooi hoor! Je had al echt zoveel tijd bespaard door gewoon de hele dekvloer er in een keer helemaal uit te rammen![]()
Maar je hebt ook wel echt pech gehad zeg...
Panasonic 12J T-CAP | Atlantic Explorer 270L | 4 x MHI SRK24ZS-WF + SRF35ZS-W | 12.000 Wp Enphase | Home Assistant, Heishamon, Mhi-ctrl | Alfa Romeo Giulia Veloce
Ik kan wel een betoog gaan houden waarom het makkelijker en sneller was geweest om de hele dekvloer er uit te halen, maar met klussen moet je doen waar je jezelf prettig bij voelt.ConQuestador schreef op donderdag 16 april 2026 @ 21:11:
[...]
Vvw invrezen heeft me maar een dag gekost, en gaf me wel mooi waterpas hoogte voor de rest. Als ik weer moest had ik het weer zo gedaan, als beginner vond ik dit makkelijker.
13480 Wp solar | 2x Panasonic 7j met 1x 300l sww | (Laadpaal) installateur, pb voor een offerte
Hier mijn eindresultaat, al eerder de voortgang laten zien.
Eindschade bijna 15k, meer dan verwacht. Hoopte op 12-13 uit te komen, maar verbouwen is duur en je wil wel dat het goed en recht gebeurd. Wel uiteindelijk vloerverwarming er bijgenomen. Heeft het ook iets duurder gemaakt.
:strip_exif()/f/image/gL0sNEc4WRH4KkWRSQYwZU6s.jpg?f=fotoalbum_large)
:strip_exif()/f/image/ztJGRvY4F4qMAP1fhGAbGZb5.jpg?f=fotoalbum_large)
:strip_exif()/f/image/8t5BphuWEXhslVzw1kpf1oE1.jpg?f=fotoalbum_large)
:strip_exif()/f/image/acMUiLOmsPCDed311wIlBdVw.jpg?f=fotoalbum_large)
:strip_exif()/f/image/5TslSDk3GksusMfp4LZPFU7k.jpg?f=fotoalbum_large)
Van oud naar nieuw. Vanaf nu zal ik weer kijken naar alle mooie badkamers van anderen 😁
Eindschade bijna 15k, meer dan verwacht. Hoopte op 12-13 uit te komen, maar verbouwen is duur en je wil wel dat het goed en recht gebeurd. Wel uiteindelijk vloerverwarming er bijgenomen. Heeft het ook iets duurder gemaakt.
:strip_exif()/f/image/gL0sNEc4WRH4KkWRSQYwZU6s.jpg?f=fotoalbum_large)
:strip_exif()/f/image/ztJGRvY4F4qMAP1fhGAbGZb5.jpg?f=fotoalbum_large)
:strip_exif()/f/image/8t5BphuWEXhslVzw1kpf1oE1.jpg?f=fotoalbum_large)
:strip_exif()/f/image/acMUiLOmsPCDed311wIlBdVw.jpg?f=fotoalbum_large)
:strip_exif()/f/image/5TslSDk3GksusMfp4LZPFU7k.jpg?f=fotoalbum_large)
Van oud naar nieuw. Vanaf nu zal ik weer kijken naar alle mooie badkamers van anderen 😁
[ Voor 9% gewijzigd door K1p op 18-04-2026 17:25 ]
Heel mooi geworden! Als je alles hebt laten doen vind ik het echt heel goedkoop.K1p schreef op zaterdag 18 april 2026 @ 17:25:
Hier mijn eindresultaat, al eerder de voortgang laten zien.
Eindschade bijna 15k, meer dan verwacht. Hoopte op 12-13 uit te komen, maar verbouwen is duur en je wil wel dat het goed en recht gebeurd. Wel uiteindelijk vloerverwarming er bijgenomen. Heeft het ook iets duurder gemaakt.
[Afbeelding]
[Afbeelding]
[Afbeelding]
[Afbeelding]
[Afbeelding]
Van oud naar nieuw. Vanaf nu zal ik weer kijken naar alle mooie badkamers van anderen 😁
13480 Wp solar | 2x Panasonic 7j met 1x 300l sww | (Laadpaal) installateur, pb voor een offerte
Slopen, afvoeren en schilderwerk even zelf moeten doen. Kost ook tijd uiteraard!Makrolon schreef op zaterdag 18 april 2026 @ 18:24:
[...]
Heel mooi geworden! Als je alles hebt laten doen vind ik het echt heel goedkoop.
Met alles wat ik afgelopen weken aan offertes heb opgevraagd: dat is echt voordelig hoor 😅K1p schreef op zaterdag 18 april 2026 @ 22:12:
[...]
Slopen, afvoeren en schilderwerk even zelf moeten doen. Kost ook tijd uiteraard!
Joejoe!
Mijn tip, zoek een aannemer die zowel timmerman als tegelzetter is. Ik was dus +-7000 kwijt voor het bouwwerk en tegelen. Als je een standaard badkamer hebt en alles op dezelfde plek terug komt kan het nog wel wat goedkoper verwacht ik.DonMetal schreef op zaterdag 18 april 2026 @ 22:26:
[...]
Met alles wat ik afgelopen weken aan offertes heb opgevraagd: dat is echt voordelig hoor 😅
Ik heb alle materialen zelf bij elkaar gesprokkeld, kranen, drain en bad komen bij voordelig design en sanitair vandaan. Kranen zijn van rvs met koperen pvd coating. Douchecabine maxaro. Tegels bij tegelsaanhuis. Spiegel was een open doos model. Wastafelmeubel bij sanimaster. Verlichting is hue in ip65 spotjes van een tientje de stuk.
In februari post ik nog met vragen over het verplaatsen van een draagmuur. Uiteindelijk besloten om het niet te doen. De kosten om een draagmuur de verplaatsen over een lengte van 2m15 om zo de badkamer 40cm breder te maken waren het imho niet waard. Dan heb je het alles bij elkaar toch snel over 4-5k.
Uiteindelijk hebben we de doucheruimte 10cm minder diep gemaakt en een badmeubel van 120x45 ipv 160x55 genomen.
Donderdag na het werk begonnen met slopen vrijdag vrijgenomen, hele daf bezig geweest en gistermiddag af gemaakt. Na 2,5dag was ik er wel klaar mee wat een rotklus
De rest is voor de installateur.
:strip_exif()/f/image/yvuUqptxspVOqerBToUZYenM.jpg?f=fotoalbum_large)
Uiteindelijk hebben we de doucheruimte 10cm minder diep gemaakt en een badmeubel van 120x45 ipv 160x55 genomen.
Donderdag na het werk begonnen met slopen vrijdag vrijgenomen, hele daf bezig geweest en gistermiddag af gemaakt. Na 2,5dag was ik er wel klaar mee wat een rotklus
De rest is voor de installateur.
:strip_exif()/f/image/yvuUqptxspVOqerBToUZYenM.jpg?f=fotoalbum_large)
PSN: Wanderer200 | Switch: Wanderer
Van wel merk zijn de kranen als vragen mag?K1p schreef op zondag 19 april 2026 @ 09:08:
[...]
Mijn tip, zoek een aannemer die zowel timmerman als tegelzetter is. Ik was dus +-7000 kwijt voor het bouwwerk en tegelen. Als je een standaard badkamer hebt en alles op dezelfde plek terug komt kan het nog wel wat goedkoper verwacht ik.
Ik heb alle materialen zelf bij elkaar gesprokkeld, kranen, drain en bad komen bij voordelig design en sanitair vandaan. Kranen zijn van rvs met koperen pvd coating. Douchecabine maxaro. Tegels bij tegelsaanhuis. Spiegel was een open doos model. Wastafelmeubel bij sanimaster. Verlichting is hue in ip65 spotjes van een tientje de stuk.
Mooi! En als dit ook incl. Het plaatsen is heel weinig geld.K1p schreef op zaterdag 18 april 2026 @ 17:25:
Hier mijn eindresultaat, al eerder de voortgang laten zien.
Eindschade bijna 15k, meer dan verwacht. Hoopte op 12-13 uit te komen, maar verbouwen is duur en je wil wel dat het goed en recht gebeurd. Wel uiteindelijk vloerverwarming er bijgenomen. Heeft het ook iets duurder gemaakt.
[Afbeelding]
[Afbeelding]
[Afbeelding]
[Afbeelding]
[Afbeelding]
Van oud naar nieuw. Vanaf nu zal ik weer kijken naar alle mooie badkamers van anderen 😁
Voordelig design en sanitair voert een soort eigen lijn. Maar er wordt vermeldt dat het om het merk " Guido Gusto" gaat. Ik heb het op de gok besteld aan het begin van de verbouwing. Het bleek degelijk zo op het oog en de tast. Toen de rest besteld.
Lijkt verdacht veel op de hier eerder genoemde white label kranen:K1p schreef op zondag 19 april 2026 @ 19:52:
[...]
Voordelig design en sanitair voert een soort eigen lijn. Maar er wordt vermeldt dat het om het merk " Guido Gusto" gaat. Ik heb het op de gok besteld aan het begin van de verbouwing. Het bleek degelijk zo op het oog en de tast. Toen de rest besteld.
Bobmeister in "Het Badkamer topic: verkopers, kwaliteit, prijs - Deel 1"
Prima kranen overigens!
[ Voor 11% gewijzigd door Bobmeister op 19-04-2026 20:33 ]
Wat een werk zo'n badkamer ontwerpen zeg. We hebben mooi tegels en kranen gevonden en ik ben me nu aan het verdiepen in de douchehoek. Dat zou een wand met nisje worden maar we hebben bij een Baderie showroom een opstelling van een glazen douchewand en deur gezien wat er wel erg strak uit zag. Daar ter plekke niet zoveel aandacht aan besteed maar wel een foto van gemaakt:
:strip_exif()/f/image/72Fc63M912JLv8PMIWIgh5Ss.jpg?f=fotoalbum_large)
Wat het vooral zo strak maakt is dat er vrijwel geen bevestigingselementen zijn gebruikt, dus geen montage elementen voor de wand aan de muur, geen stabilisatiestang en geen deurknop (maar een uitsparing). Het enige is dat er een paar scharnieren zijn gebruikt voor de profielloze deur, verder is alles gekit.
:strip_exif()/f/image/72Fc63M912JLv8PMIWIgh5Ss.jpg?f=fotoalbum_large)
Wat het vooral zo strak maakt is dat er vrijwel geen bevestigingselementen zijn gebruikt, dus geen montage elementen voor de wand aan de muur, geen stabilisatiestang en geen deurknop (maar een uitsparing). Het enige is dat er een paar scharnieren zijn gebruikt voor de profielloze deur, verder is alles gekit.
- Is zo'n opstelling nou ook realistisch in de praktijk (sterk genoeg)? En hoe dik zou dat glas dan moeten zijn 8mm, 10mm? Zijn er nog andere nadelen?
- Wat ik me ook afvraag: hoe moet de tegelzetter de tegels in de douchehoek op afschot leggen maar direct daarnaast weer waterpas leggen zodat de glaswand naadloos geplaatst en gekit kan worden? Is dat te doen en mooi (in de showroom liggen de tegels op de vloer immers waterpas)?
- Ook kun je vaak kiezen voor een nano coating tegen een meerprijs, is dat nou een nuttige toevoeging?
Members only: wat offertes voor een glazen douchehoek van 100x100x200cm
Alleen zichtbaar voor ingelogde gebruikers.
Inloggen
Afschot vanaf de deur. Zijwand op een afschotprofiel plaatsen.XhaiKhaL schreef op zaterdag 25 april 2026 @ 14:21:
Wat een werk zo'n badkamer ontwerpen zeg. We hebben mooi tegels en kranen gevonden en ik ben me nu aan het verdiepen in de douchehoek. Dat zou een wand met nisje worden maar we hebben bij een Baderie showroom een opstelling van een glazen douchewand en deur gezien wat er wel erg strak uit zag. Daar ter plekke niet zoveel aandacht aan besteed maar wel een foto van gemaakt:
[Afbeelding]
Wat het vooral zo strak maakt is dat er vrijwel geen bevestigingselementen zijn gebruikt, dus geen montage elementen voor de wand aan de muur, geen stabilisatiestang en geen deurknop (maar een uitsparing). Het enige is dat er een paar scharnieren zijn gebruikt voor de profielloze deur, verder is alles gekit.***members only***
- Is zo'n opstelling nou ook realistisch in de praktijk (sterk genoeg)? En hoe dik zou dat glas dan moeten zijn 8mm, 10mm? Zijn er nog andere nadelen?
- Wat ik me ook afvraag: hoe moet de tegelzetter de tegels in de douchehoek op afschot leggen maar direct daarnaast weer waterpas leggen zodat de glaswand naadloos geplaatst en gekit kan worden? Is dat te doen en mooi (in de showroom liggen de tegels op de vloer immers waterpas)?
- Ook kun je vaak kiezen voor een nano coating tegen een meerprijs, is dat nou een nuttige toevoeging?
Thanks, daar kon ik op Googlen. Dus de tegel doorsnijden op de plek van de douchewand of ze precies zo uitlijnen dat er een voeg op dat punt komt.SquareOne schreef op zaterdag 25 april 2026 @ 14:27:
[...]
Afschot vanaf de deur. Zijwand op een afschotprofiel plaatsen.
Wij krijgen in juni/juli een dergelijke opstelling van de Baderie. Het inmeten en montage, is nadat de badkamer gereed is want het wordt geheel op maat gemaakt. Het (helder) glas is 8mm. Deur 79cm en nog een glazen deel van 88cm. Vierkante uitsparing als gat. Dezelfde scharnieren als op jouw foto, 2 stuks.XhaiKhaL schreef op zaterdag 25 april 2026 @ 14:21:
[list]
• Is zo'n opstelling nou ook realistisch in de praktijk (sterk genoeg)? En hoe dik zou dat glas dan moeten zijn 8mm, 10mm? Zijn er nog andere nadelen?
[ Voor 3% gewijzigd door _Arthur op 25-04-2026 16:42 ]
Interessant! Klinkt zo alleen wel of daar ook een prijskaartje aan zit, zou je de totale kosten voor inmeten, op maat laten maken en monteren willen delen?_Arthur schreef op zaterdag 25 april 2026 @ 16:42:
[...]
Wij krijgen in juni/juli een dergelijke opstelling van de Baderie. Het inmeten en montage, is nadat de badkamer gereed is want het wordt geheel op maat gemaakt. Het (helder) glas is 8mm. Deur 79cm en nog een glazen deel van 88cm. Vierkante uitsparing als gat. Dezelfde scharnieren als op jouw foto, 2 stuks.
Ik begrijp trouwens niet helemaal waar het glas bij jullie komt? Ook in een hoek of zit het bij jullie in een nis van in totaal 79+88cm breed ofzo?
Wordt jullie opstelling dan ook helemaal profielloos en zonder afdichtstrips, dus niks onder de deur of tussen de deur en de glaswand?
Ik zie nu ook dit berichtje van jou, zoals ik 4 posts hierboven aangeef willen wij eigenlijk hetzelfde.Edje44magnum schreef op zaterdag 27 december 2025 @ 15:54:
Een mooie oplossing ik zelf heb ook een hoek douche met een deur ik heb deze besteld bij een glashandel dit is goedkoper dan bij de badkamerwinkels en ik heb ook geen PVC strips of andere meuk rondom het glas[Afbeelding]
Op je foto is het niet te zien, maar uit je tekst maak ik op dat je ook geen stabilisatiestang hebt gebruikt? Bevalt deze hele opstelling nog altijd en voelt het allemaal stevig genoeg?
[ Voor 4% gewijzigd door XhaiKhaL op 25-04-2026 17:16 ]
Nee het is 1 vastdeel met deur (dus om 1 vlak). Zover ik op de tekening zie, wordt bij het vaste deel wel 2 bevestigingspunten gebruikt aan de muurzijde, in dezelfde stijl als de scharnieren.XhaiKhaL schreef op zaterdag 25 april 2026 @ 16:51:
[...]
Interessant! Klinkt zo alleen wel of daar ook een prijskaartje aan zit, zou je de totale kosten voor inmeten, op maat laten maken en monteren willen delen?
Ik begrijp trouwens niet helemaal waar het glas bij jullie komt? Ook in een hoek of zit het bij jullie in een nis van in totaal 79+88cm breed ofzo?
Wordt jullie opstelling dan ook helemaal profielloos en zonder afdichtstrips, dus niks onder de deur of tussen de deur en de glaswand?
Onder de deur of tussen de deur en de glaswand komen geen strips oid nee. Boven en onder de deur is natuurlijk wel een ruimte om de deur te kunnen openen. Boven de glaswand ook een kleine opening; dus niet 100% tegen het plafond (wat bij ons een kanaalplaatvloer is en die zijn nooit 100% recht).
als ik het dan goed begrijp heb je een douche van zeg 160 cm lang. En 1 wand daarvan is dus die glazen wand en deur?_Arthur schreef op zaterdag 25 april 2026 @ 17:30:
[...]
Nee het is 1 vastdeel met deur (dus om 1 vlak). Zover ik op de tekening zie, wordt bij het vaste deel wel 2 bevestigingspunten gebruikt aan de muurzijde, in dezelfde stijl als de scharnieren.
Onder de deur of tussen de deur en de glaswand komen geen strips oid nee. Boven en onder de deur is natuurlijk wel een ruimte om de deur te kunnen openen. Boven de glaswand ook een kleine opening; dus niet 100% tegen het plafond (wat bij ons een kanaalplaatvloer is en die zijn nooit 100% recht).
Dat klinkt exact als hoe ik het ga doen. De eventuele strips kun je er altijd later nog plaatsen, mits er toch hinderlijke lekkage doorheen komt.
Maar je vaste glazen wand zit dus enkel op de vloer vast met kit en aan de wand met 2 beugels, die er net zo uitzien als de scharnieren van de deur?
Douche is 1670x850Guido7619 schreef op maandag 27 april 2026 @ 14:26:
[...]
als ik het dan goed begrijp heb je een douche van zeg 160 cm lang. En 1 wand daarvan is dus die glazen wand en deur?
Dat klinkt exact als hoe ik het ga doen. De eventuele strips kun je er altijd later nog plaatsen, mits er toch hinderlijke lekkage doorheen komt.
Maar je vaste glazen wand zit dus enkel op de vloer vast met kit en aan de wand met 2 beugels, die er net zo uitzien als de scharnieren van de deur?
/f/image/vN98XnMmjvCFsD8Q6w73tt5g.png?f=fotoalbum_large)
En het wordt geplaatst. Dus als het goed is hoeven er geen strips te komen, dat zou afdoen aan het ontwerp.
Hoe het exact op/in de vloer wordt geplaatst kan ik niet in detail zien op de tekening. Maar gezien het inmeten en plaatsing gebeurt nadat de badkamer bijna geheel klaar is, zal dat op de vloertegels worden.
Scharnieren en houders van de wand zijn hetzelfde getekend.
Zijn deze scharnieren als ik het goed zie: https://glasmaatje.nl/gla...nier-santos-glas-wand-90/
Een glashouder in dezelfde serie kan ik niet zo 123 vinden.
[ Voor 11% gewijzigd door _Arthur op 27-04-2026 15:53 ]
In een nieuwbouwhuis in aanleg tref ik op meerdere plekken de warm- en waterleidingen over elkaar, terwijl een aantal kruisingen eenvoudig lijken te voorkomen zoals te zien op de foto's.
Kan ik de bouwer hierop aanspreken zonder het risico te lopen dat hij mij als een zeikerd ziet en meer "half werk" gaat doen? En wat zeggen de regels en "etiketten" in dit soort situaties?
Het betreft de warm- en koudwaterleidingen voor twee badkamers (wasbak / douche / bad). Bedankt en klus ze!
:strip_exif()/f/image/rt43PbwZURKr6V03qjDTc8im.jpg?f=fotoalbum_large)
Kan ik de bouwer hierop aanspreken zonder het risico te lopen dat hij mij als een zeikerd ziet en meer "half werk" gaat doen? En wat zeggen de regels en "etiketten" in dit soort situaties?
Het betreft de warm- en koudwaterleidingen voor twee badkamers (wasbak / douche / bad). Bedankt en klus ze!
:strip_exif()/f/image/rt43PbwZURKr6V03qjDTc8im.jpg?f=fotoalbum_large)
Iemand ervaring met glazendouchedeuren.com? Ik ben op zoek naar een glazen douchewand + deur voor in de hoek, van een beetje kwaliteit.
Alternatief is maxaro of X2O, maar daar lees ik niet al te beste meningen over. Voordeel is wel dat al het metaal bij Maxaro van dezelfde kleur is; als we bronze afwerkstukjes bij de douchewand kiezen, dan matched de kleur bij de toekomstige kranen/douche/e.d., mochten we die natuurlijk ook bij Maxaro kopen.
Alternatief is maxaro of X2O, maar daar lees ik niet al te beste meningen over. Voordeel is wel dat al het metaal bij Maxaro van dezelfde kleur is; als we bronze afwerkstukjes bij de douchewand kiezen, dan matched de kleur bij de toekomstige kranen/douche/e.d., mochten we die natuurlijk ook bij Maxaro kopen.
Ja ik vind dat wel slordig.2_linkerhanden schreef op maandag 27 april 2026 @ 16:04:
In een nieuwbouwhuis in aanleg tref ik op meerdere plekken de warm- en waterleidingen over elkaar, terwijl een aantal kruisingen eenvoudig lijken te voorkomen zoals te zien op de foto's.
Kan ik de bouwer hierop aanspreken zonder het risico te lopen dat hij mij als een zeikerd ziet en meer "half werk" gaat doen? En wat zeggen de regels en "etiketten" in dit soort situaties?
Het betreft de warm- en koudwaterleidingen voor twee badkamers (wasbak / douche / bad). Bedankt en klus ze!
[Afbeelding]
[Afbeelding]
Is dit in Nederland?
Komt hier beton of een dekvloer overheen?
Welk merk staat op de leiding/T-stukken?
ik zou mij eerder zorgen maken over die kunststof koppelingen die straks in de dekvloer komen.2_linkerhanden schreef op maandag 27 april 2026 @ 16:04:
In een nieuwbouwhuis in aanleg tref ik op meerdere plekken de warm- en waterleidingen over elkaar, terwijl een aantal kruisingen eenvoudig lijken te voorkomen zoals te zien op de foto's.
Kan ik de bouwer hierop aanspreken zonder het risico te lopen dat hij mij als een zeikerd ziet en meer "half werk" gaat doen? En wat zeggen de regels en "etiketten" in dit soort situaties?
Het betreft de warm- en koudwaterleidingen voor twee badkamers (wasbak / douche / bad). Bedankt en klus ze!
[Afbeelding]
[Afbeelding]
Hier een foto van de T- en koppelstukken. Een merk op deze leiding/t-stukken kon ik zo snel niet ontdekken.Bobmeister schreef op dinsdag 28 april 2026 @ 07:58:
[...]
Ja ik vind dat wel slordig.
Is dit in Nederland?
Komt hier beton of een dekvloer overheen?
Welk merk staat op de leiding/T-stukken?
:strip_exif()/f/image/h57eeajsPt8YPOoh9XXfY3rk.jpg?f=fotoalbum_large)
Uit de technische omschrijving:
"cementdekvloer met een dikte van ± 70mm"
"Een complete bedrijfsklare warm- en koudwaterinstallatie aan te leggen naar de diverse op
tekening aangegeven tappunten, één en ander volgens voorschriften van het Bouwbesluit. De
warmwatervoorziening geschiedt vanaf de warmtepomp inclusief boilervat naar de aansluitpunten in
de keuken en de badkamer"
Deze aannemer ontwikkelt een project met enkele tientallen woningen varierend van EUR 500k - EUR 1 miljoen. Gasloze woningen met vloerverwarming op alle 3 etages.
Dank voor alle tips en/of opmerkingen
Dat is Uponor Q&E ook wel bekend als Wirsbo.2_linkerhanden schreef op dinsdag 28 april 2026 @ 18:32:
[...]
Hier een foto van de T- en koppelstukken. Een merk op deze leiding/t-stukken kon ik zo snel niet ontdekken.
[Afbeelding]
Uit de technische omschrijving:
"cementdekvloer met een dikte van ± 70mm"
"Een complete bedrijfsklare warm- en koudwaterinstallatie aan te leggen naar de diverse op
tekening aangegeven tappunten, één en ander volgens voorschriften van het Bouwbesluit. De
warmwatervoorziening geschiedt vanaf de warmtepomp inclusief boilervat naar de aansluitpunten in
de keuken en de badkamer"
Deze aannemer ontwikkelt een project met enkele tientallen woningen varierend van EUR 500k - EUR 1 miljoen. Gasloze woningen met vloerverwarming op alle 3 etages.
Dank voor alle tips en/of opmerkingen
https://www.uponor.com/nl...en-(polymeer)/q-e-systeem
Please state the nature of the technical emergency
PEX A. Daar doen ze in amerika al die huizen mee.edsandje schreef op dinsdag 28 april 2026 @ 19:02:
[...]
Dat is Uponor Q&E ook wel bekend als Wirsbo.
https://www.uponor.com/nl...en-(polymeer)/q-e-systeem
Toevallig een goede website waar je die besteld hebt.?Mutybay schreef op vrijdag 27 maart 2026 @ 13:14:
[...]
Plafondbevesting. "gewoon" kiezen voor een op maat gemaakte douchewand. 1800 euro voor alles. De gap tussen het plafond en de wand is 23 cm. Afmeting is 88b x 208h (vaste deel).
[Afbeelding]
Heeft iemand nog een goed programma om een mooie 3d render te maken van een badkamer?
Vind het lastig om een totaal plaatje te krijgen voor ons nieuwbouw woning en tegels en badmeubels gaan weer via verschillende uitvoerders die alleen een schema aanbieden.
Ken wel programma's als Visoft maar ik zoek iets toegankelijkers/gratis.
Vind het lastig om een totaal plaatje te krijgen voor ons nieuwbouw woning en tegels en badmeubels gaan weer via verschillende uitvoerders die alleen een schema aanbieden.
Ken wel programma's als Visoft maar ik zoek iets toegankelijkers/gratis.
Ik ben met Blender aan de slag gegaan, hiervoor nog niet gewerkt met Blender. Van een hoop dingen in de badkamer is een gratis 3D model te downloaden op de website van de leverancier of elders. Tegels heb ik van de leverancier een plaatje/motief overgenomen en als texture gebruikt.Palindrome schreef op donderdag 7 mei 2026 @ 22:01:
Heeft iemand nog een goed programma om een mooie 3d render te maken van een badkamer?
![]() | ![]() |
Is dat als leek in een avondje onder de knie te krijgen? Of heb je daar een specifieke badkamer tutorial voor gevolgd?Joove schreef op donderdag 7 mei 2026 @ 22:14:
[...]
Ik ben met Blender aan de slag gegaan, hiervoor nog niet gewerkt met Blender. Van een hoop dingen in de badkamer is een gratis 3D model te downloaden op de website van de leverancier of elders. Tegels heb ik van de leverancier een plaatje/motief overgenomen en als texture gebruikt.
[Afbeelding] [Afbeelding]
Leuke badkamer!
[ Voor 4% gewijzigd door Palindrome op 07-05-2026 22:55 ]
In een avondje gaat het je niet lukken en enig ruimtelijk inzicht helpt. Dit heeft mij uiteindelijk meer tijd gekost dan gehoopt. Er is niet 1 handleiding online, is dingen combineren zoals basis Blender, hoe maak ik glas, hoe importeer ik een 3D model, hoe maak ik chrome look, hoe voeg ik een texture toe etc.Palindrome schreef op donderdag 7 mei 2026 @ 22:53:
[...]
Is dat als leek in een avondje onder de knie te krijgen? Of heb je daar een specifieke badkamer tutorial voor gevolgd?
Leuke badkamer!
Wij zijn opzoek naar een 120cm breed wastafelmeubel met 4 lades (lijkt ons praktischer dan 2 brede lades zodat je elkaar niet in de weg zit als je samen voor de spiegel staat en de ander wil de lade openen), als het even kan greeploos. Dit willen we graag combineren met een asymmetrische wastafel met 1 wasbak en inbouwkraan. Dit lijkt ons weer praktisch met schoonmaken en je hebt wat werkruimte om spulletjes neer te zetten, ook heb je dan geen extra (dure) inbouwkraan nodig. Overigens zou een gecentreerde kraan voor ons ook prima zijn, echter heb ik dat nog nooit gezien met 4 laden.
In principe voldoet de Fontana Cosmos van Sanitairkamer aan alle wensen (en is erg goedkoop) maar we hebben dit meubel in het echt bekeken en de kwaliteit is helaas wel echt ondermaats (denk aan gammele lades en een lelijk aangebrachte melamine laag).
Om het betaalbaar te houden overwegen we nu 2x IKEA ÄNGSJÖN wastafelkasten van 60cm met een wastafel van elders. Hiervoor zoeken we dus een asymmetrische wastafel van 120cm breed en ongeveer 49m diep maar dat is nog niet makkelijk. Heeft iemand hiervoor de gouden tip? Deze Sapho wastafel zou passen maar is met 51,5cm eigenlijk net te diep en heeft een kraangat.
TL;DR - heeft iemand een suggestie voor een asymmetrische wastafel die past op het IKEA ÄNGSJÖN meubel (120x49cm) zonder kraangat?
In principe voldoet de Fontana Cosmos van Sanitairkamer aan alle wensen (en is erg goedkoop) maar we hebben dit meubel in het echt bekeken en de kwaliteit is helaas wel echt ondermaats (denk aan gammele lades en een lelijk aangebrachte melamine laag).
Om het betaalbaar te houden overwegen we nu 2x IKEA ÄNGSJÖN wastafelkasten van 60cm met een wastafel van elders. Hiervoor zoeken we dus een asymmetrische wastafel van 120cm breed en ongeveer 49m diep maar dat is nog niet makkelijk. Heeft iemand hiervoor de gouden tip? Deze Sapho wastafel zou passen maar is met 51,5cm eigenlijk net te diep en heeft een kraangat.
TL;DR - heeft iemand een suggestie voor een asymmetrische wastafel die past op het IKEA ÄNGSJÖN meubel (120x49cm) zonder kraangat?
@XhaiKhaL kijk eens bij X2O die hebben volgens mij meubels van 120cm met losse lades. Alles wat ze verkopen staat ook online incl prijzen.
Wij hebben al onze spullen, op de spiegelkast na, bij X2O besteld. Ik ben zeer positief over deze winkel, fijne showroom waar ze daadwerkelijk alle modellen en kleuren hebben om in het echt te bekijken en 'voelen'. En ze zijn super flexibel met het bestel proces.
Wij hebben zelf de meubels (onderkast + kolomkast) van Balmani dat is hun duurste merk en dat voelt echt heel degelijk aan erg netjes afgewerkt.
Wij hebben wel een meubel van 120cm met 2 brede lades en moet zeggen dat dit niet hinderlijk is. We hebben bewust een spiegelkast gekozen voor de dagelijks benodigdheden. We gebruiken een kolomkast voor de handdoeken, washandjes en wat andere flessenspul. En de beide lades zijn voor de voorraad en spullen die we weinig gebruiken.
Wij hebben al onze spullen, op de spiegelkast na, bij X2O besteld. Ik ben zeer positief over deze winkel, fijne showroom waar ze daadwerkelijk alle modellen en kleuren hebben om in het echt te bekijken en 'voelen'. En ze zijn super flexibel met het bestel proces.
Wij hebben zelf de meubels (onderkast + kolomkast) van Balmani dat is hun duurste merk en dat voelt echt heel degelijk aan erg netjes afgewerkt.
Wij hebben wel een meubel van 120cm met 2 brede lades en moet zeggen dat dit niet hinderlijk is. We hebben bewust een spiegelkast gekozen voor de dagelijks benodigdheden. We gebruiken een kolomkast voor de handdoeken, washandjes en wat andere flessenspul. En de beide lades zijn voor de voorraad en spullen die we weinig gebruiken.
[ Voor 5% gewijzigd door Chaoss op 09-05-2026 12:31 ]
PSN: Wanderer200 | Switch: Wanderer
Laufen heeft een asymmetrische wastafel (€750,-) met 2 laden (€650,-), wel 120mm hoog dus andere look dan de Fontana.XhaiKhaL schreef op zaterdag 9 mei 2026 @ 10:24:
Wij zijn opzoek naar een 120cm breed wastafelmeubel met 4 lades (lijkt ons praktischer dan 2 brede lades zodat je elkaar niet in de weg zit als je samen voor de spiegel staat en de ander wil de lade openen), als het even kan greeploos. Dit willen we graag combineren met een asymmetrische wastafel met 1 wasbak en inbouwkraan. Dit lijkt ons weer praktisch met schoonmaken en je hebt wat werkruimte om spulletjes neer te zetten, ook heb je dan geen extra (dure) inbouwkraan nodig. Overigens zou een gecentreerde kraan voor ons ook prima zijn, echter heb ik dat nog nooit gezien met 4 laden.
In principe voldoet de Fontana Cosmos van Sanitairkamer aan alle wensen (en is erg goedkoop) maar we hebben dit meubel in het echt bekeken en de kwaliteit is helaas wel echt ondermaats (denk aan gammele lades en een lelijk aangebrachte melamine laag).
Om het betaalbaar te houden overwegen we nu 2x IKEA ÄNGSJÖN wastafelkasten van 60cm met een wastafel van elders. Hiervoor zoeken we dus een asymmetrische wastafel van 120cm breed en ongeveer 49m diep maar dat is nog niet makkelijk. Heeft iemand hiervoor de gouden tip? Deze Sapho wastafel zou passen maar is met 51,5cm eigenlijk net te diep en heeft een kraangat.
TL;DR - heeft iemand een suggestie voor een asymmetrische wastafel die past op het IKEA ÄNGSJÖN meubel (120x49cm) zonder kraangat?
https://www.laufen.nl/producten/wastafel-afleg-links-verborgen-afvoer-H813333...1121?sku=H8133330001121
https://www.laufen.nl/producten/wastafelonderbouwkast-2laden-afleg-l-H403982112...1?sku=H4039821122611
maar mogelijk past de wastafel ook op de kast met 4 lades (€650,-), staat dat deze voor Lua wastafel is dus even navragen of dit kan.
https://www.laufen.nl/producten/wastafel-onderbouwkast-4lades-H403574112...1?sku=H4035741122601
Mijn Laufen wastafel en kasten bevallen goed, zit stevig in elkaar. Is niet het beste van het beste maar is de prijs ook naar.
Mijn ervaring is 2 laden met dubbele wastafel niet erg onhandig, wij staan zelden samen voor de spiegel dat er iemand iets uit de lade moet pakken. We hebben naast lades ook een spiegelkast met plakjes waar mijn spullen aan 1 kant staan en haar aan de andere kant en zo gebruiken we de wastafel ook.
Een asymmetrische wastafel klinkt leuk voor spulletjes neerzetten, maar die staan bij ons gewoon in de lades en spiegelkast en anders tussen de kranen aan de achterkant. Wat wil je op 60x45cm allemaal plaatsen, dat is wat ruimte?
Wij hebben onze Laufen meubels bij https://www.shkshop.com in Duitsland gekocht, veel goedkoper dan de aanbieders in Nederland.
Hier het resultaat van onze badkamer na 3 weken verbouwen. Was een hele klus voor de installateur om dat echt alles op een andere plek moest, nieuwe dekvloer etc.
Eerder poste ik al dat we plannen hadden de muur 45cm op te sluiven maar dat bleek ivm draagmuur uit verhouding duur te worden. Uiteindelijk wel heel erg blij met het resultaat, badkamer is door de indeling alsnog ruimer geworden en het installatiewerk werk is echt super netjes gedaan.
:strip_exif()/f/image/y09P0a3bzvS6YNo7lSyRZohd.jpg?f=fotoalbum_large)
:strip_exif()/f/image/IXudG1gGDrKRzELztM5jrtw5.jpg?f=fotoalbum_large)
:strip_exif()/f/image/sjZHQeAFxnHln5EWihq8IY8B.jpg?f=fotoalbum_large)
Eerder poste ik al dat we plannen hadden de muur 45cm op te sluiven maar dat bleek ivm draagmuur uit verhouding duur te worden. Uiteindelijk wel heel erg blij met het resultaat, badkamer is door de indeling alsnog ruimer geworden en het installatiewerk werk is echt super netjes gedaan.
:strip_exif()/f/image/y09P0a3bzvS6YNo7lSyRZohd.jpg?f=fotoalbum_large)
:strip_exif()/f/image/IXudG1gGDrKRzELztM5jrtw5.jpg?f=fotoalbum_large)
:strip_exif()/f/image/sjZHQeAFxnHln5EWihq8IY8B.jpg?f=fotoalbum_large)
PSN: Wanderer200 | Switch: Wanderer
Wat heeft jou het installeren gekost? Bij alle badkamershops.word je ook maar doorverwezen.. met garantie tot de voordeur.
Maar ja, wat voor garantie moet je hebben op installeren? 2 of 4 pluggen in de muur, meubel ophangen, aan de bovenkant afkitten, en dan zijn we er.Scheurbuik schreef op zondag 10 mei 2026 @ 10:39:
Wat heeft jou het installeren gekost? Bij alle badkamershops.word je ook maar doorverwezen.. met garantie tot de voordeur.
Waterleidingen is persen en dat is gegarandeerd dicht (mits uiteraard de juiste perstang), afvoer is lijm PVC dat is ook voor altijd dicht.
PV: Growatt MOD5000TL3-XH + 5720wp, WPB: Atlantic Explorer v4 270LC, L/L: MHI SCM 125ZM-S + SRK 50ZS-W + 2x SRK 25ZS-W + SRK 20ZS-W Modbus kWh meter nodig?
Ik zal je even uit een droom helpen
met het installeren van een badkamer op technische gebied tenminste
kan heel veel misgaan zeker bij het knellen van leidingen
PVC willen lijmen op polyethyleen gebeurt ook allemaal
koppelingen verkeerd gebruiken dus toch gaan lekken op den duur
hier moet je echt niet te licht overdenken
met het installeren van een badkamer op technische gebied tenminste
kan heel veel misgaan zeker bij het knellen van leidingen
PVC willen lijmen op polyethyleen gebeurt ook allemaal
koppelingen verkeerd gebruiken dus toch gaan lekken op den duur
hier moet je echt niet te licht overdenken
Uit welke droom helpen?Edje44magnum schreef op maandag 11 mei 2026 @ 19:19:
Ik zal je even uit een droom helpen
met het installeren van een badkamer op technische gebied tenminste
kan heel veel misgaan zeker bij het knellen van leidingen
PVC willen lijmen op polyethyleen gebeurt ook allemaal
koppelingen verkeerd gebruiken dus toch gaan lekken op den duur
hier moet je echt niet te licht overdenken
Als je leidingen gaat knellen in plaats van persen of solderen kan er inderdaad veel mis gaan. Ik heb in mijn bericht nadrukkelijk persen gezet en niet knellen.
Koppelingen verkeerd gebruiken, ik zou niet weten waarom je dat zou doen?
Ja, op die manier zijn er overal beren op de weg te vinden... Als je met die instelling je badkamer gaat doen, dan moet je er niet aan beginnen.
PV: Growatt MOD5000TL3-XH + 5720wp, WPB: Atlantic Explorer v4 270LC, L/L: MHI SCM 125ZM-S + SRK 50ZS-W + 2x SRK 25ZS-W + SRK 20ZS-W Modbus kWh meter nodig?
@Edje44magnum reageert denk ik op jouw '2 of 4 pluggen in de muur en kitten' opmerking die je wat gechargeerd hebt. Ik kan mij goed voorstellen dat een mate van garantie op installatiewerk wel een fijn gevoel geeft. Zo hebben wij 2 jaar garantie op installatie en 3 jaar op kitwerk. Zou er een lampje kapot gaan, plafond naar beneden komen of de afvoer ineens gaan lekken komen ze daar voor terug. Kitwerk wat loslaat? Dan bel ik gewoon direct met de kitter. Dan hebben we het nog niet gehad over gelijk hebben en gelijk krijgen, maar dat hangt ook af van de installateur. Zo hadden wij voegwerk wat op sommige plekken niet netjes gevuld was. Dat hebben ze een dag later keurig bijgewerkt.Tanuki schreef op maandag 11 mei 2026 @ 22:05:
[...]
Uit welke droom helpen?
Als je leidingen gaat knellen in plaats van persen of solderen kan er inderdaad veel mis gaan. Ik heb in mijn bericht nadrukkelijk persen gezet en niet knellen.
Koppelingen verkeerd gebruiken, ik zou niet weten waarom je dat zou doen?
Ja, op die manier zijn er overal beren op de weg te vinden... Als je met die instelling je badkamer gaat doen, dan moet je er niet aan beginnen.
Beren op de weg zien is geen goed idee voor een badkamerverbouwing, en tegelijkertijd is naïviteit ook een killer heb ik gemerkt. Al moet ik zeggen dat wij onze tegelzetter c.q. aannemer zelf hebben gevonden die op eigen initiatief een installateur en kitter hebben aangewezen.
Tegels die los gaan zitten, afvoer niet op afschot of juiste diameter wat verstopping op termijn veroorzaakt, koppelingen van waterleidingen die gaan lekken, tegelwerk niet waterdicht en geen kimband gebruikt wat op termijn voor problemen zorgt, toilet frame niet goed bevestigd, pvc slecht gelijmd etc etc etc.Tanuki schreef op maandag 11 mei 2026 @ 22:05:
[...]
Uit welke droom helpen?
Als je leidingen gaat knellen in plaats van persen of solderen kan er inderdaad veel mis gaan. Ik heb in mijn bericht nadrukkelijk persen gezet en niet knellen.
Koppelingen verkeerd gebruiken, ik zou niet weten waarom je dat zou doen?
Ja, op die manier zijn er overal beren op de weg te vinden... Als je met die instelling je badkamer gaat doen, dan moet je er niet aan beginnen.
Er kan zoveel mis gaan in een badkamer installatie, direct zichtbaar bij montage (zie de vele topics hier op Tweakers maar) of op termijn pas zichtbaar.
13480 Wp solar | 2x Panasonic 7j met 1x 300l sww | (Laadpaal) installateur, pb voor een offerte
Mooi geworden. Waar zijn de radiator en het bad van?Mutybay schreef op maandag 11 mei 2026 @ 19:41:
Zo is het bij ons geworden. Eerst de 12(!) cm dikke vloer uit:
[Afbeelding]
Muur slopen en 60cm verder weer opbouwen.
[Afbeelding]
Vele weken verder...
[Afbeelding]
[Afbeelding]
[Afbeelding]
[Afbeelding]
[Afbeelding]
[Afbeelding]
[Afbeelding]
[Afbeelding]
[Afbeelding]
De badkamer heb ik laten tegelen. De WC beneden heb ik zelf gedaan.
[Afbeelding]
[Afbeelding]
Radiator is de Plieger Palermo NXT Nexus en het bad ZEZA Grand (sanitairwinkel).MikaX schreef op dinsdag 12 mei 2026 @ 11:14:
[...]
Mooi geworden. Waar zijn de radiator en het bad van?
Thanks. Wij hadden een ander model van Plieger op het oog, wel in deze kleur, fijn om te zien hoe dat staat op beige tegels (wat we ook van plan zijn te bestellen).Mutybay schreef op dinsdag 12 mei 2026 @ 20:32:
[...]
Radiator is de Plieger Palermo NXT Nexus en het bad ZEZA Grand (sanitairwinkel).
Palermo NXT Nexus heeft ronde horizontale buizen, die van jou lijken vierkant?Mutybay schreef op dinsdag 12 mei 2026 @ 20:32:
[...]
Radiator is de Plieger Palermo NXT Nexus en het bad ZEZA Grand (sanitairwinkel).
Daily driver | ’19 Ford Focus ST | Orange Fury
M.I.A.T.A. Is Always The Answer
Ben je hier nog uit gekomen? Ik zit met soortgelijk vraagstuk.Chaoss schreef op zaterdag 9 mei 2026 @ 11:04:
@XhaiKhaL kijk eens bij X2O die hebben volgens mij meubels van 120cm met losse lades. Alles wat ze verkopen staat ook online incl prijzen.
Wij hebben al onze spullen, op de spiegelkast na, bij X2O besteld. Ik ben zeer positief over deze winkel, fijne showroom waar ze daadwerkelijk alle modellen en kleuren hebben om in het echt te bekijken en 'voelen'. En ze zijn super flexibel met het bestel proces.
Wij hebben zelf de meubels (onderkast + kolomkast) van Balmani dat is hun duurste merk en dat voelt echt heel degelijk aan erg netjes afgewerkt.
Wij hebben wel een meubel van 120cm met 2 brede lades en moet zeggen dat dit niet hinderlijk is. We hebben bewust een spiegelkast gekozen voor de dagelijks benodigdheden. We gebruiken een kolomkast voor de handdoeken, washandjes en wat andere flessenspul. En de beide lades zijn voor de voorraad en spullen die we weinig gebruiken.
:strip_exif()/f/image/rTFjFkjbzU59UUEcWU25CPWw.jpg?f=fotoalbum_large)
:strip_exif()/f/image/Hze49Ds6jlKiksWG26OY61iR.jpg?f=fotoalbum_large)
:strip_exif()/f/image/rlDjt7r0XKuWxEt6Y5rWTe6e.jpg?f=fotoalbum_large)
:strip_exif()/f/image/061yqGZSDuYGuZmTrB775FSv.jpg?f=fotoalbum_large)
:strip_exif()/f/image/coLlKMhLzkyuHOxrjJZ2TGDk.jpg?f=fotoalbum_large)
:strip_exif()/f/image/s0NcRmVLwPocESlegWH46yqH.jpg?f=fotoalbum_tile)
:strip_exif()/f/image/koShiPk3s9Bgp2Xih5ofY1qy.jpg?f=fotoalbum_tile)
:strip_exif()/f/image/McThCdt4doHZzwjgRQctx644.jpg?f=fotoalbum_large)
:strip_exif()/f/image/4wgfzWX8vZFGQlSc0bk5nvgy.jpg?f=fotoalbum_large)
:strip_exif()/f/image/UkumLyxe2i89SfVlQdhmNhK2.jpg?f=fotoalbum_large)
:strip_exif()/f/image/HU7MYHt0ml5oSYOT4jgWN3fn.jpg?f=fotoalbum_large)
:strip_exif()/f/image/wxTzQNuy1Z4SiXJnJPZ84bvw.jpg?f=fotoalbum_large)
:strip_exif()/f/image/ItgrbmUsPrMVmkDIYT1gwInL.jpg?f=fotoalbum_large)
:strip_exif()/f/image/0eRJ8tjKJaSRCZ0eFXsNVePX.jpg?f=fotoalbum_large)
:strip_exif()/f/image/ZDlYoruycxDroJSl9H8LMrLv.jpg?f=fotoalbum_large)
:strip_exif()/f/image/Z2JtZfirRJkFS6FT1GWaCdHE.jpg?f=fotoalbum_large)
:strip_exif()/f/image/VxQYrnTAEsPpYoT5DIuXu8rq.jpg?f=fotoalbum_large)
:strip_exif()/f/image/8odZX5eTF1g6wdcA7CqgU25d.jpg?f=fotoalbum_large)
:strip_exif()/f/image/R8HtZpPRl3qrL3TYB84Y8CBk.jpg?f=fotoalbum_large)
:strip_exif()/f/image/sYuzWK0QoAA7k6zdpXEoUcsQ.jpg?f=fotoalbum_large)