Heb mijn vorige keuken aan een vriend gedoneerd die hem in een huur appartement heeft staan.B-Real schreef op dinsdag 6 augustus 2019 @ 09:22:
Wat hebben jullie eigenlijk met de oude keuken gedaan?
Ik wil hem eigenlijk wel op marktplaats zetten, elke 100eu is mooi meegenomen natuurlijk.
Maar haal ik hem er zelf uit of laat je dat de kopers doen? Voor- en nadelen kan iedereen zich wel wat bij voorstellen.
Ik vond met 2 min Googlen ook een bedrijf in de buurt die hem netjes komt verwijderen, maar er geen cent voor geeft maar alles dus wel netjes afgesloten (GWE) achter laat. Scheelt ook weer werk natuurlijk.
De keuken is, gok ik, een jaar of 20 oud. Niet heel modern dus, niet heel mooi maar alles werkt nog wel naar behoren qua kastjes, lades en apparatuur. Oh en het is een relatief grote keuken twee stukken van 3.70m.
En de apparatuur (rond de 5/6 jaar oud) staat bij andere vrienden dienst te draaien ter vervanging van uber goedkope rotzooi van hun 5 jarige keuken.
De keuken daar voor was een jaartje of 20 oud en heb ik twee honderd euro voor gevangen.
Zelf er uit gehaald en even in de garage gezet.
Game PC
2 Post or Not 2 Post What's the question ?
"If it ain't broken, you didn't try hard enough"









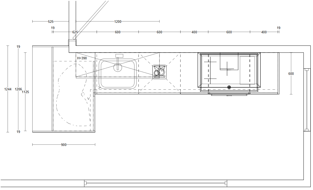
(droomkeuken uit de Siematic Classic serie



